Professional Portfolio 2024

Page 1

davian ellis

architecture professional portfolio

selected works

01 brooklyn heights 1860 reno

1860 single family home gut renovation status: in progress

02 lgbtqia+ inclusive programing

inclusive housing & programs for a marginilized group fall 2018

03

04 brooklyn brownstone

3 family brownstone in the heart of boerum hill status: in progress

audubon library

new library in Harlem, NY spring 2017

table
of contents...

brooklyn heights 1860 reno

1860 single family home gut renovation status: in progress

01

role in project

schematic design

Proposed Work - Massing Diagrams

Existing Conditions

-generated design schemes w/ project principal & project manager -draft schematic plan options

design development & CD’s

-produced 3D Models & renders

-finalized schematic plans, prep for LPC/DOB approvals

-produced construction documents w/ project manager -assisted in coordinating plumbing, MEP design

project management/construction administration

-produced LPC & DOB documents

-Coordinated meetings w/ architect & contractor -assisted with materials & product selections

programs used: autoCAD

adobe suite - photoshop, illuistrator & indesign sketchup podium rendering

POPLARSTREET

HICKSSTREET

Proposed Work

Proposed Work - Massing Diagrams

POPLARSTREET

PROPERTYLINE PROPOSED REAR ADDITION AT SECOND FLOOR & THIRD FLOOR EXISTING PORTION TO REMAIN REAR ADDITION ALIGNMENT REAR ADDITION TO ALIGN WITH NEIGHBORING BUILDING EXISTING REAR ADDITION TO BE REMOVED EXISTING REAR ADDITION TO BE REPLACED WITH LARGER REAR ADDITION 40 HICKS STREET 38 HICKS STREET
HICKSSTREET MIDDAGH STREET POPLARSTREET HICKSSTREET MIDDAGH STREET POPLARSTREET PROPERTYLINE PROPERTYLINE PROPOSED SIDE YARD PORCH AT BASEMENT, FIRST FLOOR SECOND FLOOR TERRACE 40 HICKS STREET PROPOSED REAR ADDITION AT SECOND FLOOR & THIRD FLOOR EXISTING PORTION TO REMAIN REAR ADDITION ALIGNMENT REAR ADDITION TO ALIGN WITH NEIGHBORING BUILDING EXISTING REAR ADDITION TO BE REMOVED EXISTING REAR ADDITION TO BE REPLACED WITH LARGER REAR ADDITION 40 HICKS STREET 38 HICKS STREET EXISTING PORTION TO REMAIN 38 HICKS STREET
Existing to be Removed Existing to Remain Proposed Work: Facade Work Legend: Existing Conditions Proposed Work
massing diagrans

5.

6.

UP DN DN 1 R. 24" W.F DN UP UP 14 R. DN 16R DN UP UP UP first floor plan second floor plan third floor plan fourth floor plan
entry hallway
library
storage
guest bedroom
1.
2.
3.
4.
guest bathroom
office
mechanical/storage 8. living room 9. dining room 10. wet bar 11. 1/2 bath 12. kitchen 13. side yard porch 14. children’s play area 15. bathroom 16. bedroom 17. laundry area 18. bedroom 19. hall/office 20. primary bedroom 21. walk in closet 22. primary bathroom 23. roof terrace 1 2 8 9 10 11 12 13 14 15 16 17 18 19 20 21 22 23 3 4 5 6 7
7.

EXISTING FRAMING w/ NEW HIGH DENSITY FIBERGLASS BATT INSULATION

WINDOW CASING; SEE A-032

EXIST. HDR. FRAMING (2"x4" ACTUAL)

NEW 5 8" GWB

NEW 4" HIGH DENSITY

12" VENT BOARD

TAPERED XPS INSULATION

COPPER FLASHING

VAPOR BARRIER DYKES #213 CROWN & 1x4 WOOD CAP

2" x 6" WHITE PINE BOARD (TRIM AS NEEDED)

TAPERED XPS CONTINUOUS INSULATION NEW CLAPBOARD SIDING: 3/4" THICK WITH 5" EXPOSURE AT FRONT 5/4" x 6 JAMB TRIM 1/2" VENT BOARD

REUSE EXISTING BRACKET - TRIM 1" OFF TOP OF BRACKET

5 8" x 6" WHITE PINE BOARD

TAPERED XPS CONTINUOUS INSULATION

NEW CLAPBOARD SIDING: 3/4" THICK WITH 5" EXPOSURE AT FRONT 5/4" x 6 JAMB TRIM 1/2" VENT BOARD

NEW TRIPLE GLAZED SIMULATED DOUBLE-HUNG: ZOLA "AMERICAN HERITAGE SDH", TO REPLACE EXISTING 1-1/2" = 1'-0"

EXPOSURE AT FRONT

LINE OF EXISTING WINDOW CROWN & BRACKET RELATIVE TO PROPOSED

TYPICAL WINDOW TRIM DETAIL AT FRONT FACADE (EAST FACADE) Scale: 6" = 1'-0" detailed wall section at replacement windows typical window detail at existing stone wall

TYPICAL WINDOW PLAN DETAIL AT STONE WALL (SOUTH FACADE) Scale: 1-1/2" = 1'-0"

4 1 2 " 13 16 " 1 7 8 " 2" 2 3 16 " 3" 67 8 " FIXED SASH OPERABLE SASH NEW JAMB EXTENSION NEW TRIPLE GLAZED SIMULATED DOUBLE-HUNG: ZOLA "AMERICAN HERITAGE SDH", TO REPLACE EXISTING NEW 3 4" CEMENT STUCCO NEW 1" XPS INSULATION NEW BLUESTONE SILL 3 INTERIOR EXTERIOR EXISTING STONE WALL TO REMAIN NEW 5 8" GWB NEW 4" HIGH DENSITY FIBERGLASS BATT INSULATION WINDOW CASING; SEE A-032 3" EXISTING STONE WALL TO REMAIN 4 1 2 " 3" 2 7 8 " 4 1 2 " 4" 1" 11 8 " 23 4 " 1 5 16 " ±114" MATCH EXIST. 4 1 2 " 3" John H. Hatheway, Jr. ARCHITECT 114 Clinton Street, #1H Brooklyn, NY, 11201 tel. 718 855 4414 fax. 718 855 8680 Seal 2006 Owner / Tenant: Liz Ewing and Ted Rosenwasser 38 Hicks Street Brooklyn, NY 11201 38 Hicks Street Brooklyn, NY 11201 OF 51 Issued: For: Contract A Set 01/08/21 Contract A Set 02/03/21 Electrical Revision 02/04/21 02/23/21 Contract A Set 08/20/21 Con A Set Rev 2 12/03/21 Electrical Revision 01/13/22 Finish Plan Revision 02/09/22 Door Schedule Revision 02/09/22 Electrical Revision 02/14/22 Interior Elev: Millwork 02/24/22 Door Schedule Revision 03/01/22 Electrical Revision 03/10/22 Construction Set 04/04/22 Door Schedule Revision 04/28/22 Recessed Clg Dtls. 05/23/22 Framing Heights 11/09/22 Wetbar Elevations 11/17/22 Construction Set WINDOW DETAILS L-102.00 31 WINDOW NOTED CLAPBOARD SIDING ON CONTINUOUS INSULATION CEDAR CLAPBOARD SIDING CONTINUOUS INSULATION WINDOW TRIM; PAINTED WHITE PINE - SEE DETAIL SILL NEW 5 8" GWB EXISTING SHEATHING
EXTENSION OF JAMB TRIM
3 4" X 114" JAMB
NEW
CLAPBOARD SIDING: 3/4" THICK WITH 5" EXPOSURE AT FRONT
NEW EXTENSION
NEW 5 8" GWB NEW 4" HIGH DENSITY FIBERGLASS
INSULATION 2HEAD 3JAMB (PLAN SECTION) 4SILL
FIBERGLASS BATT INSULATION
SILL
BATT
DETAILED WALL SECTION AT REPLACEMENT WINDOW Scale: 3" = 1'-0" INTERIOR EXTERIOR TYPICAL
PLAN DETAIL AT STONE WALL (SOUTH FACADE) Scale: 1-1/2" = 1'-0" 11
WINDOW
TYPICAL
AT
Scale: 6" = 1'-0" 4 1 2 " 13 16 " 1 7 8 " 2" 2 3 16 " 3" 67 8 " FIXED SASH OPERABLE SASH NEW JAMB EXTENSION NEW TRIPLE GLAZED SIMULATED DOUBLE-HUNG: ZOLA "AMERICAN HERITAGE SDH", TO REPLACE EXISTING NEW 3 4" CEMENT STUCCO NEW 1" XPS INSULATION NEW BLUESTONE SILL 3 INTERIOR EXTERIOR EXISTING STONE WALL TO REMAIN NEW 5 8" GWB NEW 4" HIGH DENSITY FIBERGLASS BATT INSULATION WINDOW CASING; SEE A-032 3" EXISTING STONE WALL TO REMAIN 4 1 2 " 3" 1" 11 8 " 23 4 " 1 5 16 " ±114" MATCH EXIST. 38 Hicks Street Brooklyn, NY OF For: Contract - A Set Contract - A Set Electrical Revision Contract - A Set Con A Set - Rev 2 Electrical Revision Finish Plan Revision Door Schedule Revision Electrical Revision Interior Elev: Millwork Door Schedule Revision Electrical Revision Construction Set Door Schedule Revision Recessed Clg Dtls. Framing Heights Wetbar Elevations Construction Set WINDOW L-102.00 31 JAMB EXTENSION 5 8" x 6" WHITE PINE BOARD NEW CLAPBOARD
3/4" THICK WITH 5"
WINDOW TRIM DETAIL
FRONT FACADE (EAST FACADE)
SIDING:
GWB HIGH FIBERGLASS INSULATION
GWB HIGH FIBERGLASS INSULATION
INTERIOR EXTERIOR
NEW EXTENSION SILL
3JAMB (PLAN SECTION) 4SILL NEW TRIPLE GLAZED SIMULATED DOUBLE-HUNG: ZOLA "AMERICAN HERITAGE SDH", TO REPLACE EXISTING DETAILED WALL SECTION AT REPLACEMENT WINDOW Scale: 3" = 1'-0"
OFF TOP OF BRACKET
9 TONGUE AND GROVE CEDAR BOARDS - 5 1 2 WIDE CROWN MOLDING NEW HEADER; SEE S-100 STEEL COLUMN w/ WOOD SURROUND 1"x5" WOOD FASCIA 1"x 9" WOOD FASCIA ± 4 1 2 7 1 2 NEW FRAMING; SEE S-100 PLANS COPPER FLASHING STANDING SEAM METAL ROOF FINISH TRIM BOARD 3 L005 3 L005 6" 1'-6" 4" CONC. SLAB ON GRADE; PITCH SLAB TO DRAIN EXPANSION JOINT 5" SIDING BASEBOARD CONCRETE GRADE BEAM GRADE LINE CUSTOM WOOD DOOR w/ GLASS PANELS; BY ZOLA LINE OF DOOR STOP 10 1'-5" 2'-11" 2" 3'-0" 5" 63 4 13 8 13 4 10'-8 1 2 9'-3 3 4 8'-7 1 4 6" " BRICK TILE COPPER FLASHING 1" 13 4 11 4 1" RIGID INSULATION STUCCO 1" CROWN MOLDING 1"x 5" WOOD FASCIA 1"x 9" WOOD FASCIA FRIEZE AGAINST GABLE FACE WOOD SURROUND 9 " SIDING BASEBOARD CONC. SLAB ON GRADE; PITCH SLAB TO DRAIN GRADE LINE " CORNER TRIMBOARD LINE OF STRUCTURAL POST NEWFRAMING;SEES-100 NEW FRAMING; SEE S-100 4 1 2 " +/7 1 2 " 5 1 4 " 4 L005 5 L005 3 4 " 3 8 " 51 2 " 11 8 " 73 4 7 1 2 1 3 4 9 1 4 " 1" SIM. CROWN MOULDING 4 L005 1 2 " 3" 3" 11 8 21 4 1" 3 4 " 1 4 1 2 SHIM AS REQUIRED 1 x 6 PINE BOARDS, TO CLAD COLUMN COLUMN W/ WOOD CLADDING, PAINTED SOUTH PORCH SECTION Scale: 1" = 1'-0" SOUTH PORCH ELEVATION Scale: 1" = 1'-0" SOUTH PORCH DETAILED SECTION Scale: 1-1/2" = 1'-0" FASCIA DRIP DETAIL POST DETAIL 1 L005 2 L005 3 L005 4 L005 5 L005 York State Education Law for any Person, unless acting under the authority of a Registered Archite ct, to alter any item on these plans in any way. If alterations to these plans are made, they shall be made in accordance with Article 145.
section
south porch elevation south porch section detailed
SHELF SHELF SHELF 24" NEW STL. ∠ 2.5"x2.5"x 4". WELD TOP & BOTTOM OF VERTICAL LEG EVERY 6" WITH 1" LONG WELD NEW 1.5" 20GA CORRUGATED STEEL DECKING NEW 3 4 PLYWOOD SUB-FLOOR NEW STL. ∠ 2.5"x2.5"x1 ". WELD TOP & BOTTOM OF VERTICAL LEG EVERY 6" WITH 1" LONG WELD NEW DOUBLE JOIST BOX BEAM WITH 400T162-54 TRACK NEW DOUBLE JOIST BOX BEAM ± 5 5 8 NEW CEILING RECESS, FINAL DEPTH TO BE CONFIRMED WITH ARCHITECT 1 1 2 " ELECTRICAL BOX FOR LIGHT FIXTURE PROVIDED BY OWNER 6'-21 2 FRAMING PLACEMENT FOR NEW RECESS 2 A214 NEW WOOD FINISHED FLOORING PROVIDE BLOCKING FOR RECESS TO ALIGN WITH ISLAND BELOW; TYP. 5'-57 8 TO WEST WALL 1 A214 NEW SINGLE BEAM NEW SINGLE BEAM ± 5 5 8 NEW CEILING RECESS, FINAL DEPTH TO BE CONFIRMED WITH ARCHITECT 1 1 2 NEW STL. ∠ SHOW BEYOND NEW 1.5" 20GA CORRUGATED STEEL DECKING NEW 3 " PLYWOOD SUB-FLOOR ELECTRICAL BOX FOR LIGHT FIXTURE PROVIDED BY OWNER 7'-7" FRAMING PLACEMENT FOR NEW RECESS 2'-105 8 TO SOUTH WALL 5'-0" TO NORTH WALL NEW 3x10 PER S-100 SISTER NEW 1.75" x 9.25" LVL TO EXISTING BEAM NEW FCU-1-1 PER M-101 NEW STL. ∠ 2.5"x2.5"x1 4 NEW 1.5" 20GA CORRUGATED STEEL DECKING NEW 3 4 PLYWOOD SUB-FLOOR NEW STL. ∠ 2.5"x2.5"x NEW WOOD FINISHED FLOORING EXISTING HEAVY TIMBER JOIST TO REMAIN NEW 1.5" 20GA CORRUGATED STEEL DECKING NEW 800S200-68 BEAM NEW 800S200-68 BEAM NEW DOUBLE 800S200-68 BOX BEAM NEW DOUBLE 800S200-68 BOX BEAM NEW STL. ∠ 2.5"x2.5"x 4". WELD TOP & BOTTOM OF VERTICAL LEG EVERY 6" WITH 1" LONG WELD NEW STL. ∠ 2.5"x2.5"x1 ". WELD TOP & BOTTOM OF VERTICAL LEG EVERY 6" WITH 1" LONG WELD 5'-5 7 8 2'-10 9 16 " 6'-2 1 2 5'-0" 7'-7" NEW 1.5" 20GA CORRUGATED STEEL DECKING NEW 1.5" 20GA CORRUGATED STEEL DECKING 1 A214 2 A214 JOIST HANGERS TO BE PROVIDE AS PER TYPICAL CFS TO CFS CONNECTIONS" DETAIL 7 S-303.01; TYP. SISTER NEW 1.75" x 9.25" LVL TO EXISTING BEAM SISTER NEW 3x10 DF#1 TO EXISTING BEAM EXISTING JOISTS TO BE REMOVED NEW STL. ∠ 2.5"x2.5"x1 ". THROUGH BOLTED ALONG VERTICAL LEG EVERY 6" TOP AND BOTTOM STAGGERED NEW STL. ∠ 2.5"x2.5"x1 ". THROUGH BOLTED ALONG VERTICAL LEG EVERY 6" TOP AND BOTTOM STAGGERED NEW 1.5" 20GA CORRUGATED STEEL DECKING NEW 1.5" 20GA CORRUGATED STEEL DECKING NEW 1.5" 20GA CORRUGATED STEEL DECKING NEW 1.5" 20GA CORRUGATED STEEL DECKING NEW 1.5" 20GA CORRUGATED STEEL DECKING NEW LVL HEADER AS PER S-100.01 NEW LVL HEADER AS PER S-100.01 NEW POST AS PER S-100.01 NEW FCU-1-1 PER M-101 NEW LVL HEADER AS PER S-100.01 EXIST./NEW FLOOR JOIST SEE S-100 EXIST./NEW FLOOR JOIST SEE S-100 NEW FLOOR JOIST SEE S-100 3 A214 CEILING DETAILS DETAILS: RECESSED CONSTRUCTION A-214.01 It is a violation of the New York State Education Law for any Person, unless acting under the authority of a Registered Archite ct, to alter any item on these plans in any way. If alterations to these plans are made, they shall be made in accordance with Article 145. John H. Hatheway, ARCHITECT 114 Clinton Street, Brooklyn, NY, 11201 tel. 718 855 4414 fax. 718 855 8680 Owner Tenant: Liz Ewing and Ted Rosenwasser 38 Hicks Street Brooklyn, NY 11201 38 Hicks Street Brooklyn, NY 11201 OF For: Contract A Set Contract A Set Electrical Revision Contract A Set Con A Set Rev 2 Electrical Revision Finish Plan Revision Door Schedule Revision Electrical Revision Interior Elev: Millwork Door Schedule Revision Electrical Revision Construction Set Door Schedule Revision Recessed Clg Dtls. Framing Heights Wetbar Elevations Construction Set RECESS CEILING AT KITCHEN ISLAND (SOUTH) - 2ND FLOOR KITCHEN SCALE: 3/4" = 1'-0" 1 RECESS CEILING AT KITCHEN ISLAND (EAST) - 2ND FLOOR KITCHEN SCALE: 3/4" = 1'-0" 2 FLOOR FRAMING AT FCU-1-1 (NORTH) - 1ST FLOOR READING ROOM SCALE: 3/4" = 1'-0" 3 PARTIAL FRAMING PLAN AT KITCHEN CEILING SCALE: 3/4" = 1'-0" 4 PARTIAL FRAMING PLAN AT RECESSED FCU 1-1 SCALE: 3/4" = 1'-0" 5 1 partial framing plan at kitchen ceiling partial framing plan at air handler recess ceiling at kitchen island
recess ceiling at kitchen island (east) floor framing at air handler
(south)

lgbtqia+ inclusive programing

advanced studio- inclusive housing for a marginilized group

128TH STREET SITE PLAN 02
design team: davian ellis avi nagel

WHAT’S ON THE SITE? WHAT CAN WE BUILD?

KEY PLACES IN THE AREA

WHEN DOING RESEARCH ON THE SITE, THERE ARE SEVERAL KEY PLACES THAT MAKES THE AREA PERFECT FOR LGBTQIA YOUTH. THERE’S EASY ACCESS TO SEVERAL DIFFERENT MASS TRANSIT LINES (TRAIN, BUS & SUBWAY). THERE ARE ALSO SEVERAL YOUTH OUTREACH PROGRAMS SUCH AS THE CAYUGA CENTER, HARLEM’S CHILDREN ZONE AND THE ASSOCIATION TO BENEFIT CHILDREN. THE SITE IS ALSO VERY CLOSE TO THE LARGE MARCUS GARVEY PARK

SPECIALTY HOSPITAL HEALTHCARE

MARCUS GARVEY PARK RECREATION

ZONING: BUILDING POSSIBILITIES

WHAT’S GREAT ABOUT THIS AREA IS THAT IT HAS JUST BEEN REZONED TO SUPPORT HIGHER BUILDINGS HEIGHTS. THE CITY SEE’S THIS AREA AS BEING ANOTHER TRANSIT HUB, SIMILAR TO PEN STATION AND GRAND CENTRAL. BUT WHY CAN’T WE DO THATAND GIVE SPACE TO A DEMOGRAPHIC THAZT IS PRACTICALLY IGNORED?

METRO NORTH/SUBWAY

ASSOC. BENEFIT CHILDREN CHILDREN/YOUTH OUTREACH NYC SANITATION DEPT. CITY FACILITIES

PROMISE ACADEMY CHARTER SCHOOL (RENO)

CAYUGA CENTER YOUTH OUTREACH CENTER

HARLEM’S CHILD ZONE CHILDRENYOUTH OUTREACH

AERIAL VIEW: PARK AVENUE VIADUCT EAST HARLEM SITE PLAN: NO SCALE

THE YOUTH THE
PARK AVENUE THE VIADUCT MAXIMIZING
A
B MAXIMIZING F.A.R ON BOTH SITES C SKINNY TOWER REACHING MAXIMUM HEIGHT
B
C SKINNY
F.A.R
IDENTIFYING THE SITE
MAXIMIZING F.A.R A IDENTIFYING THE SITE
MAXIMIZING F.A.R ON BOTH SITES
TOWER REACHING MAXIMUM HEIGHT
B MAXIMIZING F.A.R
C SKINNY
REACHING MAXIMUM HEIGHT
MAXIMIZING F.A.R A IDENTIFYING THE SITE
ON BOTH SITES
TOWER

HOW CAN WE MAKE THIS SITE EASILY ACCESIBLE FOR YOUTH OUTSIDE THE RADIUS?

FOR

A PUSH/PULL BOUNDARIES FOR TRANSITION

TRENCHING DOWN BELOW THE VIADUCT ALLOWS FOR MORE SPACE FOR ADDITIONAL PROGRAMMING

HOW CAN WE MAKE THIS SITE EASILY ACCESIBLE FOR YOUTH OUTSIDE THE RADIUS?

A PUSH/PULL BOUNDARIES FOR TRANSITION

TRENCHING DOWN BELOW THE VIADUCT ALLOWS FOR MORE SPACE FOR ADDITIONAL PROGRAMMING

DESIGNING THE SITE

B PUSH/PULL BOUNDARIES FOR TRANSITION

TRENCHING DOWN BELOW THE VIADUCT ALLOWS FOR MORE SPACE FOR ADDITIONAL PROGRAMMING

massing diagrams

C PUSH/PULL BOUNDARIES FOR TRANSITION

TRENCHING DOWN BELOW THE VIADUCT ALLOWS FOR MORE SPACE FOR ADDITIONAL

B PUSH/PULL BOUNDARIES FOR TRANSITION

TRENCHING DOWN BELOW THE VIADUCT ALLOWS FOR MORE SPACE FOR ADDITIONAL PROGRAMMING

128TH STREET

C PUSH/PULL BOUNDARIES FOR TRANSITION

PERFORMANCE SPACE

TRENCHING DOWN BELOW THE VIADUCT ALLOWS FOR MORE SPACE FOR ADDITIONAL PROGRAMMING

DESIGNING THE SITE

HOME

DESIGNATED SPACE FOR OUTSIDE PERFORMANCES

SUSPENDED TRAM

128TH STREET

PERFORMANCE SPACE

DESIGNATED SPACE FOR OUTSIDE PERFORMANCES

ESTABLISHING AN HOUSING + MODEL, WITH HEALING SPACE AND ROOM TO GROW FOR A COMMUNITY WITH A FUTURE

HALF A HOUSE

SUSPENDED TRAM

HYPERLOCAL

127TH STREET

PROVIDING HIGH QUALITY HOUSING WITH STABLE ROOM TO GROW INTO A LIFE IN TRANSITION

ENGINEERED WOOD CLADDING WOOD CLADDING IS NOT ONLY A SUSTAIN-

TERRACE
ESTABLISHING AN OUT
ELEVATED BIKE LANE
TOWER
ACCESIBLE
CONNECTS
ENTIRE
HARLEM 127TH STREET CORE 1 SITE SITE
HYPERLOCAL THAT
SITE TO
EAST
PLAN
TO ENTIRE
HARLEM EDUCATIONAL STAIRS STAIRS BECOME A PLACE TO SIT AND AND TRANSITION
THAT CONNECTS SITE
EAST
CORE 3

128TH STREET

127TH STREET

PERFORMANCE SPACE

DESIGNATED SPACE FOR OUTSIDE PERFORMANCES

SITE PLAN

SUSPENDED TRAM

HYPERLOCAL THAT CONNECTS SITE TO ENTIRE EAST HARLEM

EDUCATIONAL STAIRS

STAIRS BECOME

ELEVATED BIKE LANE ELEVATED BIKE LANE
BIKE LANE REDUCE CARBON FOOTPRINT
A PLACE TO SIT AND AND TRANSITION
CORE 1 CORE 2 CORE 3
PRE-FAB STEEL PANEL

MASSING THE SITE

HOW CAN WE PULL THE CURRENT BUILT ENVIRONMENT INTO OUR SITE?

WILD NATIVE SPECIES HOMELESS DESIGNS TO SIT BIOPHILIC

ENGINEERED WOOD CLADDING

WOOD CLADDING IS NOT ONLY A SUSTAINABLE MATERIAL, BUT IT IS EASY TO MAINTAIN, AGES BEAUTIFULLY, CARBON NOEUTRAL AND AESTHETICALLY FRIENDLY

PRE FABRICATED STEEL PANELING IS A DURABLE MATERIAL THAT IS INEXPENSIVE TO PURCHASE AND MAINTAIN, EASILY CUSTOMIZABLE AND SUSTAINABLE

COMMUNAL GARDENING

COMMUNAL GARDENING ALLOWS COMMUNITIES TO GROW AND MAINTAIN THEIR OWN VEGETATION AND CREATES A LARGE COMMUNAL AREA FOR ALL RESIDENTS TO INTERACT

BIKE LANE REDUCE CARBON FOOTPRINT CORE 3
PRE-FAB STEEL PANEL
03
brooklyn brownstone 3 family brownstone in the heart of boerum hill status: in progress

role in project

schematic design

-documented existing conditions, systems & utility services

-generated design schemes w/ project principal

design development & CD’s

-finalized schematic plans, prep for LPC/DOB approvals

-produce and coordinate construction documents

-coordinated Plumbing, MEP design

bidding & construction administration

-generated bid comparisons & assisted with bid analysis

project management/construction Administration

-produced and submitted LPC & DOB documents through DOB Now

-coordinated meetings w/ architect & contractor

-finalized all fixtures & finishes

-correspondence w/ clients throuhgout project

UP UP DN MURPHY BED 81" x 64" STOOP DN DN DN UP UP UP DN MURPHY BED 81" x 64" STOOP DN DN DN UP UP DN UP DN DN UP DN UP DN DN
apartment 1 owner’s duplex basement plan 1. entry hallway 2. bedroom 3. office/guest room 4. master bedroom 5. walk-in closet 6. bathroom 7. outdoor area apartment 1 owner’s duplex first floor plan 8. foyer 9. apartment entryway 10. living room 11. dining room 12. hallway to downstairs 13. bathroom 14. kitchen 15. rear deck apartment 2 1 bedroom apartment second floor plan 1. public stairway 2. living room 3. office 4. kitchen 5. bedroom 6. closet 7. bathroom apartment 3 1 bedroom apartment second floor plan 1. public stairway 2. living room 3. dining room 4. kitchen 5. bedroom 6. closet 7. bathroom 1 2 3 4 5 6 7 9 8 10 11 13 14 12 15 1 2 3 4 5 6 7 1 2 3 4 5 6 7
7'-3 1 2 8'-4 1 4 11'-11 3 4 9'-11 3 4 11'-5 5 8 EXISTING WINDOWS TO BE REPLACED, TYP. EXISTING WINDOWS TO BE REPLACED, TYP. EXISTING WINDOWS TO BE REPLACED, TYP. EXISTING WINDOWS TO BE REPLACED, TYP. BASEMENT LEVEL -2'-0" EXISTING GRADE 0'-0" FIRST FLOOR 6'-42" SECOND FLOOR 18'-4 " THIRD FLOOR 28'-4" ROOF 39'-95 8 CELLAR LEVEL -9'-31 4 DAMAGED CORNICE TO BE RESTORED 1 2 7 8 11 12 13 17 18 19 4'-9" 2'-11" 2'-11" 2'-11" 6'-2" 2'-11" 2'-11" 2'-11" 8'-7 3 4 2'-11" 2'-11" 4'-8 1 2 2'-11" 2'-11" 3 1 LPC-006 1 LPC-005 4 LPC-003 4'-8 1 2 8'-7 3 4 6'-2" 6'-2" 4'-9" 4'-9" 7'-3 1 2 8'-4 1 4 11'-11 3 4 9'-11 3 4 11'-5 5 8 NEW MARVIN WOOD ULTIMATE DOUBLE HUNG MAGNUM WINDOW IN EXISTING OPENINGS BASEMENT LEVEL -2'-0" EXISTING GRADE 0'-0" FIRST FLOOR 6'-4 " SECOND FLOOR 18'-4 " THIRD FLOOR 28'-4" ROOF 39'-95 8 CELLAR LEVEL -9'-31 4 RESTORED CORNICE NEW MARVIN WOOD ULTIMATE DOUBLE HUNG MAGNUM WINDOW IN EXISTING OPENINGS NEW MARVIN WOOD ULTIMATE DOUBLE HUNG MAGNUM WINDOW IN EXISTING OPENINGS NEW MARVIN WOOD ULTIMATE DOUBLE HUNG MAGNUM WINDOW IN EXISTING OPENINGS RESTORED WOOD CROWN MOLDING AT CORNICE, PAINTED BLACK TO MATCH EXISTING EXISTING CORNICE TO REMAIN NO DAMAGE) FRONT ELEVATION - EXISTING/DEMOLITION SCALE: 1/4" = 1'-0" 1 FRONT ELEVATION - PROPOSED SCALE: 1/4" = 1'-0" 2 It is a violation of the New York State Education Law for any Person, unless acting under the authority of a Registered Archite ct, to alter any item on these plans in any way. If alterations to these plans are made, they shall be made in accordance with DOB CORNICE DETAIL SCALE: 1" = 1'-0" 2 front elevation
existing/demolition cornice detail front elevation - proposed
-

221 Dean Street BROOKLYN, NY 11217 BLOCK: 190 LOT: 51

EXTERIOR INTERIOR EXISTING WINDOW SILL TO REMAIN NEW MARVIN WOOD ULTIMATE DOUBLE HUNG MAGNUM WINDOW TO REPLACE EXISTING WINDOWS IN EXISTING MASONRY OPENINGS NEW BRICK MOULDING NEW JAMB EXTENSION LOWER SASH EXISTING POCKET SHUTTERS 3 LPC006 8 3'-1" 2'-11" 2'-7" 2" 2" 4 LPC006 1 2 7 8 11 12 13 17 18 19 4'-9" 2'-11" 2'-11" 2'-11" 6'-2" 2'-11" 2'-11" 2'-11" 8'-7 3 4 2'-11" 2'-11" 4'-8 1 2 2'-11" 2'-11" 3 LPC-006 1 LPC-006 1 LPC-005 4 LPC-003 4'-8 1 2 8'-7 3 6'-2" 6'-2" 4'-9" 4'-9" EXISTING WINDOW SILL TO REMAIN NEW MARVIN WOOD ULTIMATE DOUBLE HUNG MAGNUM WINDOW TO REPLACE EXISTING WINDOWS IN EXISTING MASONRY OPENINGS NEW WOOD BRICK MOULDING EXISTING MASONRY TO REMAIN 8'-7 1 2" 1 2 1" 2'-11" 1'-1 8 2'-11" 5'-0" 1" 5 LPC006 2" 11 2 1'-11 2 EXTERIOR INTERIOR 2 3 8 1'-8" 2 3 8 2" 17 8 1 8 11 45 8 2" 91 4 1" 3 1 2 EXISTING WINDOW SILL TO REMAIN 2" 1 1 2 NEW MARVIN WOOD ULTIMATE DOUBLE HUNG MAGNUM WINDOW TO REPLACE EXISTING WINDOWS IN EXISTING MASONRY OPENINGS NEW WOOD BRICK MOULDING EXISTING MASONRY TO REMAIN 2 LPC006 EXISTING INTERIOR TRIM TO REMAIN NEW 2" WOOD BRICK MOLD EXISTING INTERIOR TRIM TO REMAIN EXISTING WINDOW SHUTTERS TO REMAIN EXISTING FRAMING TO REMAIN NEW MARVIN WOOD ULTIMATE DOUBLE HUNG MAGNUM WINDOW TO REPLACE EXISTING WINDOWS IN EXISTING MASONRY OPENINGS 2" 1" 4 1 2 " 3 4 1'-8" 31 8 " 11 8 45 8 2" 91 4 1" 2" 1 1 2 2 3 8 2" 17 8 " 2 3 8 " 3 1 2 " LPC-006.00 PROPOSED DETAILS SECTION WINDOW DETAIL DH AT FIRST FLOOR (TYP.) - PLAN SCALE: 1-1/2" = 1'-0" 5 KEY ELEVATION - FRONT SCALE: 1/4" = 1'-0" 1 WINDOW DETAIL DH AT FIRST FLOOR (TYP.) - ELEVATION SCALE: 1-1/2" = 1'-0" 2 WINDOW DETAIL DH AT FIRST FLOOR (TYP.) - SECTION SCALE: 1-1/2" = 1'-0" 3 MATERIAL SAMPLE 6 SCALE: NTS EXTERIOR WINDOW COLOR MARVIN WINDOWS PAINT - EBONY BLACK It is a violation of the New York State Education Law for any Person, unless acting under the authority of Registered Archite ct, to alter any item on these plans in any way. If alterations to these plans are made, they shall be made in accordance with Article 145. John H. ARCHITECT 114 Clinton Brooklyn, tel. 718 fax. 718 For: LPC Submission Owner: Maya & Williamson 221 Dean Brooklyn, 11217 221 Dean Brooklyn, 11217 DOB Stamp 4 WINDOW JAMB DETAIL SCALE: 3" = 1'-0" WINDOW DETAIL DH AT FIRST FLOOR (TYP.) - SECTION SCALE: 3" = 1'-0" 7 key elevation - front window elevation at first floor window section at first floor window detail at first floor window jamb detail window detail plan at first floor
SHWR 32x42 REF. SHELVES NICHE DW SHELVES PANTRY 404 2 4 3 5 3" 1'-6" 2'-0" 2'-6" 1'-6" 3'-0" 2 3 4 4'-11" 4'-0 1 4 3'-3 3 4 7'-71 2 3'-31 2 " 4'-6" 3'-0" 8'-2 3 4 2'-11 2 2'-12 10'-11 3 4 3'-5 1 2 3" 1 1 2 4 1 4 FIXED 23 4 3'-0" 11 2 1'-6" 2'-6" 2'-0" 11 2 " 1'-3" 3" 10'-1134" (V.I.F) 6'-0" 2'-0" 1" 2'-0" 10'-11 3 4 "(V.I.F) 3'-0" 1'-6" 3'-6" 4" 1'-0" ADJ. 1'-0" 1'-0" 1'-0" 1'-0" 1'-0" 1'-0" 5 1 2 2'-0" INSTALL NEW UPPER CABINETRY NEW SOFFIT ABOVE UPPER CABINETRY OUTLET 3'-8" A.F.F. INSTALL NEW REFRIGERATOR INSTALL NEW GAS STOVE: CAFE 30" SLIDE IN CONVECTION RANGE MODEL #C2S900P4MW2 INSTALL NEW BASE CABINETRY INSTALL NEW STOVE HOOD 1'-0" 10" INSTALL NEW BACKSPLASH (+/-10.4 SF) INSTALL NEW ADJUSTABLE SHELVING ADJ. ADJ. ADJ. ADJ. ADJ. ADJ. 41 4 " 2'-3" 2'-3" 11 2 3'-0" 3" 1'-9" 1'-0" 10'-113 4 1'-0" 1'-0" 1'-0" 1'-0" 1'-0" 1'-0" 1'-0" 1'-0" 2'-11 3 4 10'-11 3 4 2'-8" 2'-0" 3'-0" 1" 2'-0" 5 1 2 5 1 4 10'-11 3 4 8'-0" 4" 3'-0" NEW BASE CABINETRY NEW TOP CABINETRY CABINETRY NEW SOFFIT ABOVE UPPER CABINETRY NEW BUMPOUT AT WALL INSTALL NEW BACKSPLASH (+/-9 SF) INSTALL NEW FIXED SHELVING FIXED FIXED FIXED FIXED FIXED FIXED FIXED FIXED NEW PANTRY 4" 1'-0" 1'-0" 1'-0" 1'-0" 1'-0" 1'-0" 1'-0" 1'-0" 10" 1'-9 3 4 10'-11 3 4 "(V.I.F) 1'-0" 11'-31 4 2'-01 4 " 3'-8" 2'-11 2 " 3'-0" 2'-0" 3'-0" 1" 2'-0" 10 3 4 20'-1"(V.I.F) 11 9 10 FIXED ADJ. ADJ. ADJ. ADJ. ADJ. ADJ. ADJ. INSTALL NEW ADJUSTABLE SHELVING NEW WINDOWS IN EXISTING OPENING Kx1 UP TO ROOF NEW BASE CABINETRY NEW UPPER CABINETRY CABINETRY NEW SOFFIT ABOVE UPPER CABINETRY NEW BUMPOUT AT WALL NEW DOOR W/ TRANSOM IN EXISTING OPENING OPEN TO DINING ROOM 2'-11 2 2'-4" 4'-8" 8" 6'-117 8 8" 53 4 2'-2" 5'-11" 1" 2'-0" 1" 2'-10 3 4 10'-11 3 4 1'-0" 1'-0" 1'-0" 1'-0" 1'-0" 1'-0" 1'-0" 1'-0" FIXED FIXED FIXED FIXED FIXED FIXED FIXED FIXED NEW PANTRY AND UPPER CABINETRY NEW SOFFIT ABOVE UPPER CABINETRY INSTALL NEW UPPER CABINETRY NEW SOFFIT ABOVE UPPER CABINETRY NEW REFRIGERATOR INSTALL NEW FIXED SHELVING SWITCH 4'-4" A.F.F. 2'-2" 2'-2" L C INSTALL NEW PENDENT LIGHTS; SUPPLIED BY OWNER CENTER PENDENT LIGHT ON CENTER OF ISLAND COUNTERTOP INSTALL NEW FAUCET L C INSTALL NEW PENDENT LIGHTS; SUPPLIED BY OWNER INSTALL NEW PENDENT LIGHTS; SUPPLIED BY OWNER INSTALL NEW FAUCET 2'-2" 2'-2" L C L C CL INSTALL NEW PENDENT LIGHTS; SUPPLIED BY OWNER 1/2" = 1'-0" KITCHEN 204 - ENLARGED PLAN SCALE: 1 INTERIOR N unless acting under the authority of a Registered Archite ct, to alter any item on these plans in any way. If alterations to these plans are made, they shall be made in accordance with Article 145. John ARCHITECT 114 Brooklyn, tel. fax. For: Owner: Maya Williamson 221 Brooklyn, 11217 221 Brooklyn, 11217 Contract Interior 1/2" = 1'-0" KITCHEN 204 - WEST ELEVATION SCALE: 2 1/2" = 1'-0" KITCHEN 204 - EAST ELEVATION SCALE: 3 1/2" = 1'-0" KITCHEN 204 - NORTH ELEVATION SCALE: 4 1/2" = 1'-0" KITCHEN 204 - SOUTH ELEVATION SCALE: 5 404 9 404 404 8 404 6 NEW WOOD FLOORING kitchen enlarged plan kitchen west elevation kitchen east elevation kitchen north elevation kitchen south elevation
spring
04audubon library new library in Harlem, NY
2017
design team: davian ellis

DOCUMENTING THE SITE

AUDUBON TERRACE, ALSO KNOWN AS THE AUDUBON TERRACE HISTORIC DISTRICT, IS A LANDMARK COMPLEX OF EIGHT EARLY-20TH CENTURY BEAUX ARTS/AMERICAN RENAISSANCE BUILDINGS LOCATED ON THE WEST SIDE OF BROADWAY, BOUNDED BY WEST 155TH AND WEST 156TH STREETS, IN THE WASHINGTON HEIGHTS. NEIGHBORHOOD OF UPPER MANHATTAN, NEW YORK CITY. THERE IS A VACANT SPOT LOCATED ON THE NORTH END OF THE SITE, A PERFECT SPACE FOR A LIBRAY THAT CONNECTS THE HISTORICAL AUDUBON TERRACE TO THE COMMUNITY.

WEST 156TH STREET

ACADEMY HISPANIC SOCIETY HISPANIC SOCIETY

PLAN OF AUDUBON TERRACE

WEST 155TH STREET

PRECEDENT STUDY

AMUSEUM OF ART OF SÃO PAULO (MASP) LOCATION: SÃO PAULO, BRAZIL ARCHITECT: LINA BO BARDI

SITE PLAN

SCALE

SITE
CENTRAL COURTYARD
ACADEMY ACADEMY
BROADWAY
BORICUA COLLEGE
NO

MASSING DIAGRAM: BREAKING THE ENVELOPE

BREAKING THE ENVELOPE

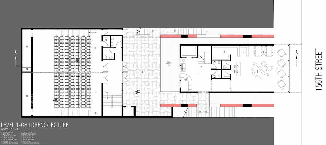
LEVEL 1: CHILDRENS/LECTURE HALL

1. MAIN RECEPTION 2. QUIET AREA 3. CHILDRENS RECEPTION 4. CHILDREN STACKS 5. STACKS AND PLAY AREA 6. STORAGE 7. ARTS AND CRAFTS TABLES 8. LEVEL 1 TERRACE 9. LECTURE HALL LIBRARY 10. LECTURE HALL A 11. LECTURE HALL B 12. PROJECTION ROOM 13/15. STORAGE 14. ACCORDIAN WALL STORAGE auditorium & childrens library plan
site section

Turn static files into dynamic content formats.

Create a flipbook
Issuu converts static files into: digital portfolios, online yearbooks, online catalogs, digital photo albums and more. Sign up and create your flipbook.
Professional Portfolio 2024 by Davian Ellis - Issuu