PORTFOLIO
DARLENE GALEON ARCHITECTURAL TECHNOLOGIST

![]()


My name is Darlene Galeon, and I am a second-year student enrolled in Architectural Technology program. Over the course of my time here studying at NAIT (Northern Institute of Technology), I have worked on a variety of softwares such as AutoCAD, Revit, Enscape, and Sketchup, as well as Adobe products including Photoshop, InDesign, and Illustrator. am a current honour roll student in my program, and am involved in volunteer work, such as helping out with our program’s booth during NAIT’s Open House, enabling me to share my passion and love of architecture to others. I specialize in creating visually pleasing and viable designs as showcased in my drawings, renderings, and design process, which will continually develop as I continue to grow my career. I am committed to using my education to design buildings that are both functional and beautiful that will prioritize safety, accessibility, and the well-being of the communities they serve, so that they may improve the everyday life of the public.
CONTACT: 587-987-4981
EMAIL: darlenejgaleon@gmail.com
LINKEDIN: Darlene Galeon

The Windsor Residence was our first official introductory project to the software Revit. This project introduced to students how to properly draft construction documents, including tagging and dimensioning each floor according to the required draft standards. This project enabled students to learn to work within all views, helping them to build a residential house both accurately and efficiently.







The NAIT Ambulance Station is our latest project in our Construction Documents class. The assignment enables students to apply their skills in BIM software, with this project specifically using REVIT, in practice to produce industry-grade documents that are readable and valuable to the construction process.
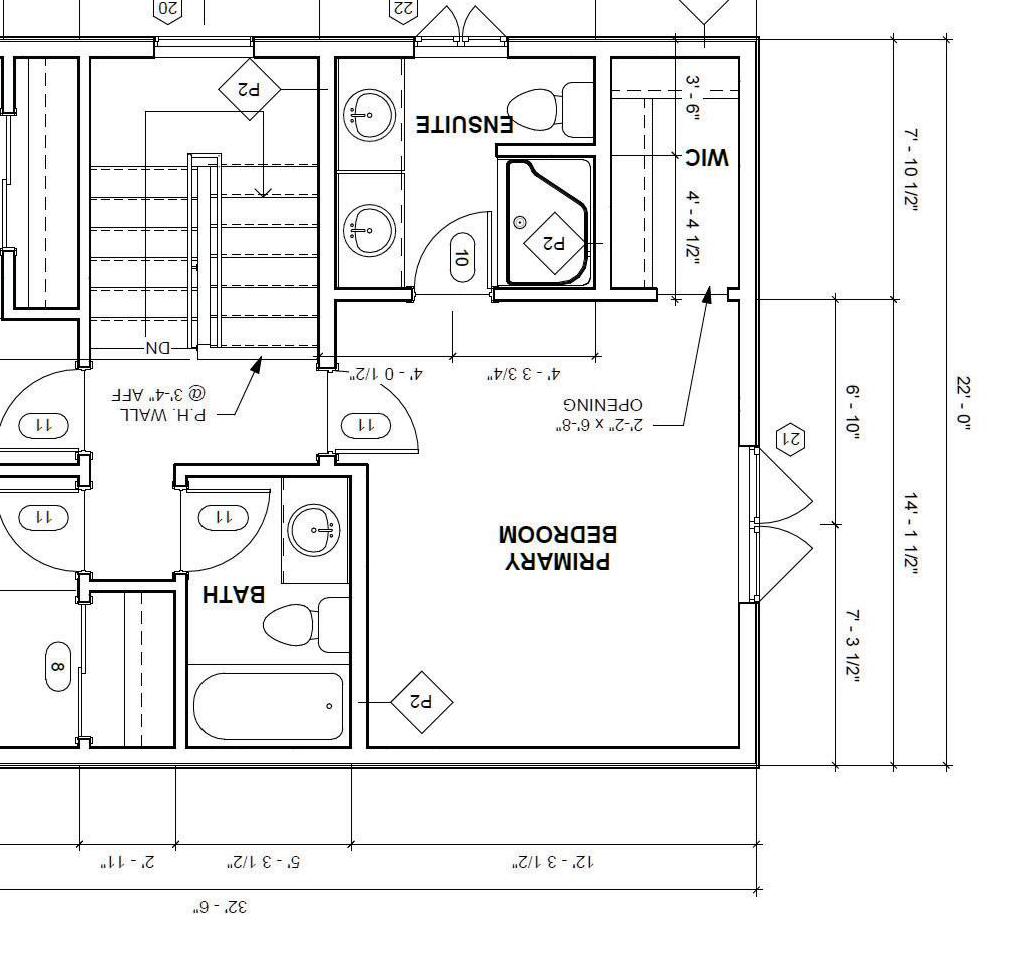
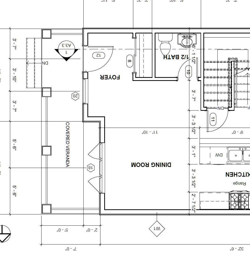
The floor plans attatched show an example of the Main and Second floor plans of the fourplex, as well as an example of the South Elevation of the headquarters, showcasing the attention to detail from each component to every linework.
































In our Construction Detailing class, our focus was to explore and expand our understanding in Technical knowledge related to a typical Building Envelope.
Students were focused on specific building components, including roof and parapet detailing, glazed aluminum curtain wall and storefront systems, Exterior Insulated Finish System (EIFS) wall construction, and the Pressure Equalized Rainscreen Insulated Structure Technique (PERSIST) method for detailing exterior walls. The details below showcacse the various examples of details we undergone in the course.
On this first page is an example of Section Detail by a Parking Curb, which was one of our first introductory details we did in the beginning of the course.
Curb & Bumper Section
DRAFTED EXAMPLES
This following page includes three example of major details we did throughout the course; Parapets, OHD’s, and typical Pile sections in different areas of a building. Throughout the semester, our instructor ensured that we got the needed practice in order to understand each component’s role integral to make the whole structure of that section work.

The Mulder Residence was our first introduction to rendering on Enscape, elevating our understanding of construction documents to fully modelled buildings to provide a better visual understanding of the building itself. This assignment highlights the use of colour and texture harmony, as well as exploring the different use of furniture and layout space.
The first image above is the Exterior of the building at eye-level, and the following image below is a render of the interior kitchen, showcasing the consistent warm tones and textures that are reflected throughout the whole house,





In contrast to the Mulder Residence, the Red Lion marks as our last project when rendering in Enscape.
From a typical residential house to a public Pub and Grill, the Red Lion building showcases an elevated understading of lighting, exterior finishes, as well as spatial awareness and visual balance. This project also explored video rendering, having students create a minute walk-through video of the bar, helping expose students to such renderings used to help communicate design concepts to clients in industry. The photos show both the Exterior elevation of the pub, as well as the main interior part of the bar, balacing between the theme of a rustic, yet modern take on a typical bar design.
The Student Fourplex Residence was our first offical residential project, which challenges students to apply their knowledge of building code, basic construction documentation knowledge, and drafting standards in order to create their own floor plan for a residence housing four students per unit, with one being barrier-free. The floor plans attatched show the first and second floor plans of the fourplex, as well as a front rendered elevation to better visualize the building’s final design.














