
Harvard · GSD · M.Arch 1 2021 - 2025
Tsinghua · B. A. 2017 - 2021



Architectural elements and building requirements integrate into monolithic roof object.
CORE 3 INSTRUCTOR: EMMETT ZEIFMAN FALL 2022
![]()

Harvard · GSD · M.Arch 1 2021 - 2025
Tsinghua · B. A. 2017 - 2021



Architectural elements and building requirements integrate into monolithic roof object.
CORE 3 INSTRUCTOR: EMMETT ZEIFMAN FALL 2022
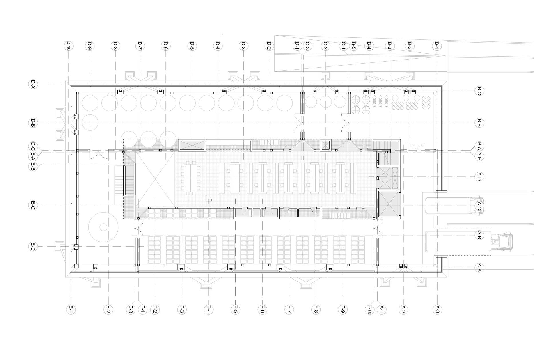
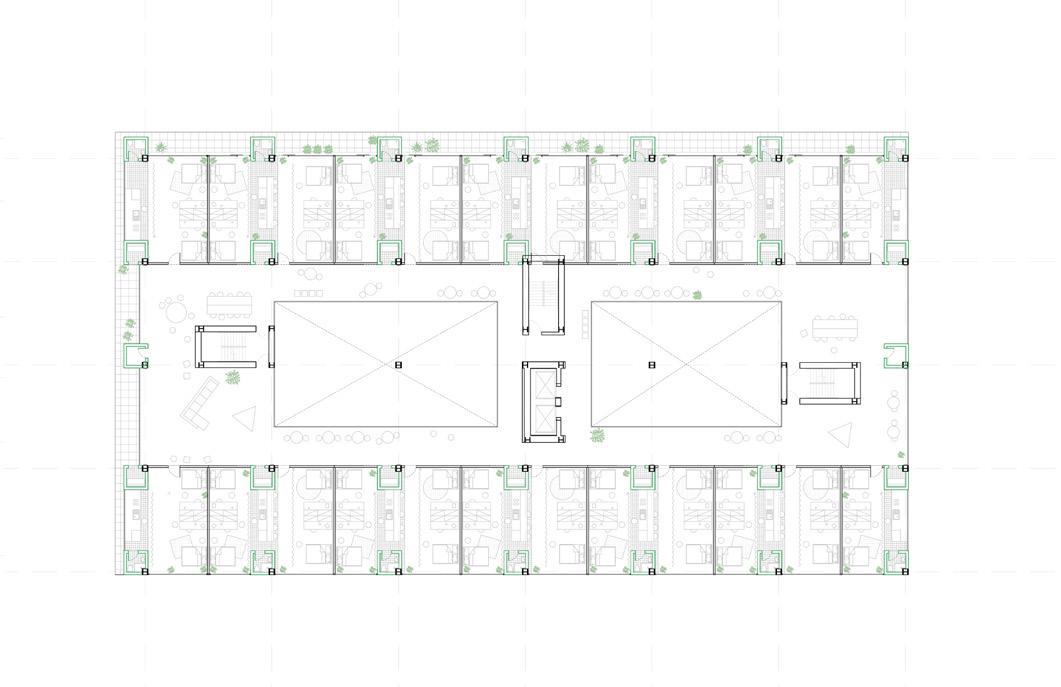
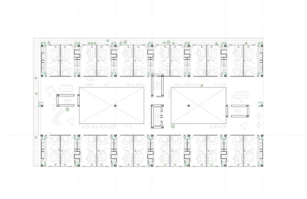
This project involves the design of a bourbon distillery in Lanesville, Boston. Economic forces prevent many of today’s craft distilleries from inhabiting the idyllic landscapes of the past. Tradition and authenticity remain steeped in bourbon’s product image yet large footprints are increasingly unsustainable for small businesses. In response, public programs are playing an increasingly important role.
This project explores the typology of the roof, and how it may provide a possibility of layering dramatically different programs, scales and micro-climate conditions.
The south side of the site faces back of house of autobody shops, convenient stores, and warehouses. The north side sits alongside a commercial train track and faces an arboretum. Inserting a pure distillery factory into the site tends to further separate the block/mound from neighborhood fabric.
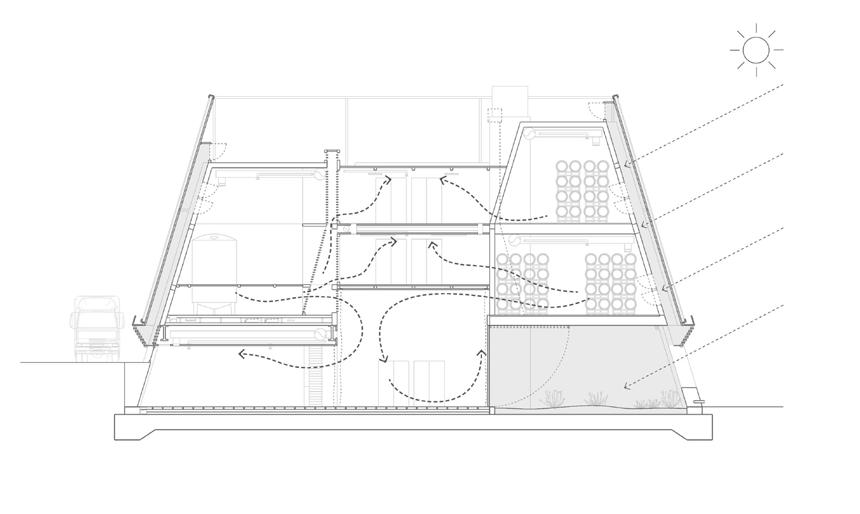
Re-tying these industrial scaled activities with neighborhood communal event spaces would require the public space be advanced by this alienated factory object. Lifting the bourbon factory and integrating the mechanical equipment into the ceiling, the roof becomes an integrated entity which serves the ground floor public free plan. Ceiling height and ceiling conditions would be the factor that defines spatial separation, control heat and humidity, provide shading and sheltering for the public space.








With the doors and curtains opened this space could hold large events and make the ground floor experienced in its entirety.
The center of the ground floor free plan is a twenty-four-foot space.
Above being the secondary service area that holds the labs and office spaces.
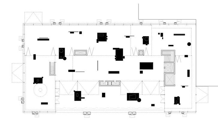
This image shows an exhibition being held.


All curtains and doors around the center space and outer ring module spaces could be closed.
Subdividing the ground floor into seven individual spaces (or any amount between one and seven) of different sizes.
This image shows the center space holding a lecture.


Different ceiling heights and ceiling conditions indicate the distillery program happening above head.
The ceiling becomes an annotation of the factory process, providing a chance for the public to learn the bourbon production.
This image shows the column still extruding down from the ceiling, a circular flow around the first floor would provide a distillery tour.


The ground floor is the extension of the city fabric. Parameter doors could be opened and let the ground floor become open air. Larger events such as performances could then take place under the shelter.
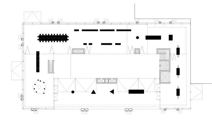
This image shows a stage being temporarily set up in the middle of the free plan.







The polycarbonate and elevation pipes form a double facade that helps adjust micro-climate. Opening the windows in summer, air flow takes away solar radiation. Closing the double facade in the winter could help form a buffer zone and keep the building warm.

Tracing the widest length of each module, the diagnol trusses indicate the size and weight of the distillery program




GSD · OPTION STUDIO · INSTRUCTOR: CRISTIANE MUNIZ, FERNANDO VIEGAS FALL 2023
São Paulo Across Scale Reconnection
The project looks at Sao Paulo’s mass number of vacant infrastructures. Responding to the governments newest urban planning policies of encouraging buildings in the central requalification zone to be renovated and devote private property to be publicly used, new connections would be made, and boundaries would be blurred.
The project explores the cross-scale reconnections across vacant buildings and public infrastructure within Sao Paulo’s oldest central promenade area. A new urban core act as infrastructure to connect the metro station with the promenade and new collective spaces in the once vacant buildings. A stepped urban terrace connecting the ground floors in the street block would integrate the abandoned ground floor retail spaces. And an urban core would act as vertical public circulation, connecting the metro with newly redeveloped public spaces in the vacant buildings.
Having buildings that have outlived their programs multiple times. The spaces do not point to specific programs, but rather their scale for housing activities. My intervention aims to edit the old buildings while providing appropriate scale for the new needs. The spaces would continue to not have designated programs but purely defined by collective use or individual use. They are open ended for future alterations.








Topography Open for Reinterpretation
Looking at São Paulo’s topography, it is at a scale able to be redefined, and gain new character through interventions. This map shows precedent studies being analyzed through infrastructure, street, and building scale, it tries to understand the sectional relationship of São Paulo.

Central Promenade Area Street Front Interactiveness
As one of the oldest parts of São Paulo, the promenade is currently being considered for renovation by the government. New programs such as offices, and residential units would reoccupy the vast number of vacant buildings in downtown. Asking for more amenity and recreational spaces.





São Bento station being São Paulo’s busiest metro station, connects 10 exits from the underground. Making the station not only a transportation system, but also connector for the surrounding blocks, it is also a cultural hotspot for performances, especially hip-hop music.
The infrastructural functions and need for collective gathering space, is the driving force of the urban terrace. Extracting and extending the vital energy from underground and making it flow into the promenade area. This intends to form a hub of collective public programs amongst the retrofitted vacant spaces in the street block linked together by the urban core.











GSD · CORE 4 · INSTRUCTOR: ELIZABETH WITTAKER
COLLABORATION: YVONNE GU · SPRING 2023
Taking on a block scale office park, containing four buildings and their surface parking lots. The task is to convert these structures to housing, through thoughtful removal and addition. These buildings are located north of the city in Chelsea, MA, on the periphery of the urban core.
Problems of domestic space can’t be simplified to mere housing questions, because architectural projects could be a place of reflection and create opportunities to reveal the relationships among housing programs of human beings, their contextual environment, and habitats of the other natural elements, which in turn increase the living quality of human beings as well. We need to keep in mind that our strategies would require a much wider shift into apprehending the building no longer as a commodity, whose form is determined by its market value, but as an infrastructure defined by its functional/social and ecological value (e.g. sustainable building code, environmental effects,etc.). Such a shift is not just a matter of architecture but a broader socio-ecological reformation that would challenge the current economic and political regime.
In this project, we propose a typology of housing with variations of domestic spaces. Making use of the existing columns of the original building, we investigate the transformation of columns into multi-functional columns, structural walls and poches with different widths and water-related functions. The column-transformed poches create various spaces, layouts, and programs for residents, which can be applied into other neighborhoods of the region.




The columns become inhabitable poches for water facilities. Popping out of the façade, the rainwater flows down the terrace, and becomes surface streams in the courtyard. As sewage water is led by the back of these poches, grey water is managed and help irrigate the new softscape in the courtyard.

With office buildings usually coupled with large areas of hardscape parking, there is a need for it to be transformed into a softscape to be more living friendly. With gutters carved into the asphalt, continues surface water flows led by the poches crack the asphalt gradually, allowing plants to take over. As infiltrating grey water from below ground provides a stable water source.

[1] Fragment Model. 1/2’’=1’
[2] Site Model. 1/32’’=1’
[3] Site Model. 1/32’’=1’
[4] Massing Model. 1/32’’=1’
[5] Massing Model. 1/32’’=1’
[6] Site Study Model. 1/32’’=1’
[7] Tectonic Study Model. 1/4’’=1’
[8] Concept Model. 1/24’’=1’

Structural Retrofiting of Column Spatial Prototypes





Working as a prototype to deal with varies needs of living conditions, four poche prototypes were set up, each accommodating a different living typology. Among these four, the thickened column all ways play a role of becoming structural reinforcement, spatial poche and wet cores.






















gardens of all four buildings and the ground floors of
and 90 Everett are communal spaces. Inviting pedestrian circulation to penetrate the site and share the softscape park between the four buildings.

The studio assignment is an addition to Kusakabe Mingei Museum in Takayama, Gifu, a rural city in the
The concept of Mingei gives aesthetic definition to the traditions of craft, utility objects, and functional utensils. The museum should act as promoter for local crafts and traditions, as well as engaging with global culture at large.
Takayama is known as the home of master carpenters who traditionally helped to build temples and shrines. The tradition of wood craft was an innovative process, with new wood crafting techniques and traditions constantly being formed until contemporary times.
This Carpentry workshop acts as a platform based on the existing local wood industry, which tries to form a local wood cycle to provide jobs and sustainable development. Showcasing both local efforts of adaptively reusing wood residues, and upcycling wood pieces, the workshop displays local wood products, the process of natural wood drying, wood sizing and trimming, along with a carpentry workshop open to the public. Being a connector between Kusakabe Folk Museum and Yoshijima House, the workshop act as a courtyard and rear entrance, connecting the two museums with the riverside, and providing a modern extension to the two national heritage buildings.



Site Plan
[a] Site
[b]
[c]
[d]
[e] Morning Market
Study Models
[1] Massing Model. 1/16’’=1’
[2] Massing Model. 1/16’’=1’
[3] Massing Model. 1/16’’=1’
[4] Massing Model. 1/16’’=1’
[5] Structural Model. 1/8’’=1’
[6] Fragment Model. 1/4’’=1’
[7] Presentation Model. 1/4’’=1’











GSD · CORE 1 PROJECT 3 · INSTRUCTOR: IMAN FAYYAD
COLLABORATION: KALEB SWANSON · FALL 2021
FACULTY NOMINATED WORK FOR GSD PUBLICATION
This project encompass the design of an artist residency situated within and between two existing residences. This combination of domestic and institutional programs will generate a small institution for creative practice, collective engagement, and living.
One should consider what is already exceptional within the ordinary as a generative approach to imagining a specific relationship between the domestic and the institutional.
The project is a residency for ceramic artists located in Cambridge, Boston.
With the original site buildings back-to-back, we exploited the representational flexibility of brick to produce a sidedness to the new structure, creating a relationship between resolution, (chunkiness and smoothness) with program.
Materiality is frequently cited as a defining limitation of an architectural type. A binary threshold that’s largely true of prototypical Cambridge and Somerville triple-deckers with wood siding and lightweight timber frame. However, with the introduction of brick as a largely foreign material to the type, the programmatic, formal and tectonic bounds of the triple-decker can be changed additively and produce a new, more communal focus for the typology.

The cone which synchronizes the connection of the two buildings grow as the floor rises. On the ground floor where it is the smallest, a gathering place invites the neighbours to path through or dwell.

The artifacts or remnants of the transformation is shown, with misaligned center points from the roof skylight to the spiral stairs and looking to below space. It shows how the smoothness absorbs the changing volume of the chunky.
The program of the neighbourhood side residential building transforms from residency to working space as the floors ascend to meet the needs of the artists, where the building is shifted to produce a more connected relation with the prior building.
While the interior of the more public one is reorganized and greatly effected by the residential one, relocating its interior axis according to the connection point. The exterior conceals the shifting tectonics, only producing a polished, smooth institution like look.

GSD · CORE 2 PROJECT 1 · INSTRUCTOR: JEFFRY BURCHARD SPRING 2022
Boston’s North End community wishes to create a vibrant multi-purpose neighborhood amenity at the site of the DeFilippo Playground. The City, cognizant of the site’s current use as a recreational area and always challenged by its municipal budget, has created a program that includes interior (climate controlled) and exterior recreational spaces.
The project cooperates with the misalignment and irregularity of the sites form and context. Situated on a hill, the southern side of the site is visually enclosed by historical Italian neighborhoods, where Italian feast and parades pass through these blocks, and large events take place.
The northern side sits beside the tourist visiting “Freedom Trial” and has an unblocked view towards downtown Boston. Detached to the immersed sensation which the lower hillside provides, the north hilltop acts partially as an observer. Placing the site against a bigger scale of the modern city and the value of this neighborhood’s historical heritage.
Intermediating with how the lower level interacts with the neighborhood through misalignment and extension of street activities. The higher level connects these fragments through an infrastructure like city walk/ playground. Drawing a connection between “fragments” and “whole”.



The lower level, programs fully interact with the micro scale of the neighborhood, being fully immersed in the neighborhood activities itself.

[a] Basketball Court
[b] Pickleball Court
[c] Playground
[d] Snack Bar
[e] Stage
[f] Doggy Park
[g] Fountains
[h] Skateboard slopes
[i] Seating
Linking the various neighborhood programs, the City Walk bleeds into the leftover spaces. Together with the path itself, a continues playground is formed.

Birsfelden Hochhaus, Basel-Landschaft, Switzerland
Christ & Gantenbein, Intern, 2024
Design Development Phase
Facade Design, Visualization, Technical Communication
(Image Credit: Nightnurse Image)

Shede Experience Center, Sichuan, China
OPEN Architects, Intern, 2023
Concept Design, Schematic Design
Technical Drawings, Visualization, Digital Modeling, Physical Model

Wallraf-Richartz-Museum, Cologne, Gernmany
Christ & Gantenbein, Intern, 2024
Interior Renovation
Furnutire Design, Visualization, Digital Modeling

Project Designer, 2023
Interior Design & Installation Design
Concept Design, Presentation, Visualization

Master
Scheme

Winned Competition For Children Hospital, Boston, United States
Elkus Manfredi Architects, Intern, 2022
Concept Design Phase
Digital Modeling, Massing Design, Lobby Interior Design

Theatre & Multiuse Building for Casino, Boston, United States
Design Development Phase
Digital Modeling, Visualization, Technical Drawings
