PORTAFOLIO ARQUITECTURA

Page 1

Querido lector, el portafolio que esta visualizando muestra mi esfuerzo, dedicación y mi habilidad profesional como arquitecta y urbanista. Mostraré los proyectos más importantes a los largo de mi formación academica - profesional los cuales demostrarán mi criterio y creatividad.

Soy una estudiante de arquitectura del 8ctavo ciclo apasionada por su carrera, que busca que busca adquirir conocimiento y práctica en el rubro de la construcción y diseño arquitectónico integrándose con facilidad al trabajo en equipo con mucho entusiasmo y empeño,

D
N
M
S O B R E M I 997 - 118 - 817 timoteocampos23@gmail.com @danitzagtc L I M A S O B R E M I P E R Ú F O R M A C I Ó N A C A D É M I C A C O M A S 2 0 1 8 P R A C T I C A N T E LIMA , PERÚ C U L M I N O S E C U N D A R I A C O M P L E T A I E PRESENTACIÓN DE MARÍA N°41 2 0 1 9 LIMA , PERÚ P R E P A R A C I Ó N A C A D É M I C A CEPREVI
2 0 1 9 LIMA
E S T U D I O S U P E R I O R CARRERA DE
Y URBANISMO
P R E S E N T E E X P E R E N I C I A L A B O R A L 2 0 2 0 LIMA
F R E E L A N C E ELABORACIÓN DE
DE VIVIENDAS
DE
3D. P R E S E N T E
A
I T Z A T I
O T E O C A M P O S
- VILLAREAL
, PERÚ
ARQUITECTURA
- UTP - 8TAVO CICLO
, PERÚ
PROYECTOS
PROPIOS INCLUYENDO PLANOS
ESTRUCTURAS Y ARQUITECTURA, MODELADO

H A B I L I

D A D E S H A B I L I D A D E S

MIS HBAILIDADES PROFESIONALES SON EL DISEÑO ARQUITECTONICO Y LA PROYECCIÓN Y PNATEAMIENTO DE PROYECTOS , LA REPRESENTACIÓN DE ESTOS MEDIANTE RENDERS, PLANIMETRIA Y VIDEOS., PARA QUE PUEDEN SER VISUALID¿ZADOS CON MAYOR CLARIDAD.

I N T E R É

S E S I N T E R É S E S

RESTAURACIÓN ARQUITECTONICA

ARTES PLASTICÁS PINTURA Y DIBUJO FOTRAFIA ARQUITECTONICA DISEÑO Y EDICIÓN FOTOMONTAJE

"La arquitectura descansa en 3 principios : La belleza , la firmeza y la utilidad."
M A R C O V I T R U B I O
P R O G R A M A S
C O N T E N I D O 01 02 03 04 05 06

PROYECTO

PROYECTO

01 02 PROYECTO - HOTEL 3 ESTRELLAS Sumaq Qocha Piuray 03
INTERVENCIÓN URBANA Huarmey Centro - Sector 1 04
PROPUESTA
financiero 05
nueva mirada a la calle Monte rosa" 06
PROYECTO - EDIFICIO FINANCIERO Edificio
PROPUESTA INTERVENCIÓN URBANA "Una
- VIVIENDA BIFAMILIAR Vivienda con crecimiento Progresivo
- VIVIENDA UNIFAMILIAR Vivienda Unifamiliar

CHINCHERO ES UN LUGAR MUY RECONOCIDO INTERNACIONACIONALMENTE POR SU TEXTILERÍA,ADEMAS TIENEN UN VALOR ANCESTRAL MUY IMPORTANTE, YA QUE SIGUEN CON LAS TRADICIONES MILENARIAS COMO EL USO DE LA PIGNACIÓN NATURAL Y LA SIMBOLOGIA ANDINA ESTE PROYECTO DE HOTEL ESTA DISEÑADO EN BASE A LAS CASAS ORIUNDAS DE LA REGIÓN

EL HOTEL CUENTA CON DISITNTAS ACTIVIDADES TANTO INTERIROES COMO EXTERIORES QUE PERMITIRAN IMPULSAR EL TURISMO Y LA REVALORACIÓNCULTURAL DE LA ZONA INCA PROYECTO: HOTEL

01
SUMAQ QOCHA LOCALIZACIÓN: CUSCO - CHINCHERO -PIURAY AÑO DE DISEÑO: JULIO 2022

CONEXIÓN

BUSCAMOS LA COENXCION DE TODOS LOS AMBIENTES, LO CUAL SE LOGRA MEDIANTE LOS CAMINOS QUE GIRAN EN TORNO A LA PLZ CENTRAL

ESPIRITUALIDAD

SE PROPONE ACTIVIDADES CERCA A LA LAGUNA CON EL FIN DE LOGRAR QUE EL HUESPED ENCUENTRE LA PAZ VIENDO LA LAGUNA

PUNTO CENTRAL

COMO PUNTO CENTRL SE ENCUENTRA LA PLAZA, LA CUL DISTRIBUYE REPARTE A LOS DEMAS AMBIENTES DEL HOTEL.

VISUAL

EN TODOS LOS AMBIENTES

SE PRIORIZA QUE LA VISUAL ATRYENTE DEL HOTEL SEA EN DIRECCION DE LA LAGUNA DE PIURAY.

E S T R A T E G I A D E I N T E R V E N C I Ó N E S T R A T E G I A D E I N T E R V E N C I Ó N
TERRENO TERRENO CON ANDENES INSERSIÓN DE VOLUMEN VOLUMEN CON CUBIERTA DE TECHO A DOS AGUAS TIPOLOGIA DE VOLÚMENES COLOCADOS EN ANDENES TIPOLOGIA DE VOLÚMENES AL REDEDOR DE UN PATIO CENTRAL P R O C E S O P R O C E S O D I S E Ñ O D I S E Ñ O PLOT PLAN

ACTIVIDADES EXTERIORES

ZONA DE YOGA PUBLICA CAMINATA ZONA DE CONTEMPLACIÓN LAGUNA PIURAY ZONA DE CAMPING PRIVADA ZONA DE YOGA PRIVADA PASEO DE ALAMEDA ZONAS DE DESCANSO ACCESO AL HOTEL
ALAMEDA EXTERIOR - MOBILIARIOS
MADERA
PLATAFORMAS CAMINOS CESPED
CAMINOS
ÁRBOL
VEGETACIÓN CAMINO
ÁRBOL SAUCE
SAUCE VEGETACIÓN
NATURAL
Y ZONAS
SAUCE
ZONA DE CAMPING EXTERIOR ZONA DE YOGA EXTERIOR

E X T E R I O R E S

E X T E R I O R E S

CORTE LONGITUDINAL A-A CORTE LONGITUDINAL A-A
PLANTA - ZONA DE YOGA EXTERIOR PLANTA - ZONA DE CAMPING EXTERIOR

I N T E R I O R

I N T E R I O R E

PLANTA - PUNTO DE ENCUENTRO INTERIOR PLANTA - PLAZA CENTRAL INTERIOR
E S
S
PLANTA PRIMER PISO - HOTEL
D I
U C I O N
U C I Ó N
CORTE LONGITUDINAL - HOTEL
S T R I B
D I S T R I B

ELEVACIÓN FRONTAL - HOTEL

ELEVACIÓN FRONTAL - ZONA TEXTIL

E S P
C I A L E S P A C I A L
A

PROYECTO VIVIENDA UNIFAMI LIAR

ESTE PROYECTO DE VIVIENDA UNIFAMILIAR TIENE COMO OBJETIVO CREAR ESPACIOS FUNCIONALES Y ESTETICOS PARA EL USUARIO. SE PLANTEA UNA ILUMINACIÓN NATURAL A TRAVEZ DE DOS JARDINES QUE SE INTEGRARÁN DE MANERA CONTINUA

PROYECTO ACADÉMICO

02
PROYECTO: VIVIENDA UNIFAMILIAR LOCALIZACIÓN: LIMA - SURQUILLO AÑO DE DISEÑO: OCTUBRE 2021

VOLUMETRÍA VOLUMETRÍA

PLANTA PRIMER NIVEL

P R O P U E S T A F A C H A D A P R O P U E S T A F A C H A D A

FACHADA FACHADA DINAMICA DINAMICA CON CON ELEMENTOS COMO ELEMENTOS COMO CINTA Y CINTA Y DESNIVELES DESNIVELES

REALIZAMOS UNA REALIZAMOS UNA CONEXION DE LAS CONEXION DE LAS DOS AREAS DOS AREAS MEDIANTE UNA MEDIANTE UNA CINTA, CINTA,

SUSTRACION DEL VOLUMEN PARA SUSTRACION DEL VOLUMEN PARA LA ILUMINACION Y VENTILACIÓN LA ILUMINACION Y VENTILACIÓN

DIFERENCIAMOS EL ÁREA DIFERENCIAMOS EL ÁREA SOCIAL DE LA SOCIAL DE LA PRIVADA PRIVADA

P R O C E S O D
O P R O C E S O
E D I S E Ñ
D E D I S E Ñ O
U
B I C A C I Ó N U B I C A C I Ó N

P R O P U E S T A P R O P U E S T A

LA DISTRIBUCIÓN DEL LA DISTRIBUCIÓN DEL PRPYECTO ES PRPYECTO ES CONVENCIONAL, SIN CONVENCIONAL, SIN EMBARGO CUENTA EMBARGO CUENTA CON ESPACIOS CON ESPACIOS FUNCIONALES E FUNCIONALES E ILUMINADOS CON LUZ ILUMINADOS CON LUZ NATURAL LO CUAL NATURAL LO CUAL BRINDA A LA VIVIENDA BRINDA A LA VIVIENDA UN ACABADO MÁS UN ACABADO MÁS LIMPIO Y SENCILLO. LIMPIO Y SENCILLO.

UNIFAMILIAR UNIFAMILIAR

M A Q U E T A M A Q U

SE OBERVAN LOS SE OBERVAN LOS ESPACIOS AMPLIOS Y ESPACIOS AMPLIOS Y TOTALMENTE TOTALMENTE IILUMINADOS LUMINADOS
E T A

PROPUESTA DE INTER VENCIÓN URBANA

PROYECTO DE INTERVENCIÓN URBANA QUE SE PROPONE PARA LA CIUDAD DE HUARMEY CENTRO SECTOR 1 ESTA INTERVENCIÓN PROPONE UNA RENOVACIÓN URBANA LA CUÁL BUSCA SOLUCIONAR PROBLEMAS SOCIALES Y ECONOMICOS EL RIO HUARMEY EL CUAL ESTA EN MALAS CONDICIONES SE REHABILITARA ELIMINANDO LOS BOTADEROS DE BASURA ILEGALES LOS CUALES CAUSAN CONTAMINACIÓN AMBIENTAL EN EL DISTRITO

PROYECTO ACADÉMICO

PROYECTO URBANO: RENOVACIÓN URBANA EN HUARMEY CENTRO LOCALIZACIÓN: LHUARMEY CENTRO

AÑO DE DISEÑO:

03
JULIO 2022

ESTE SECTOR DE LA CIUDAD PRESENTA DIVERSOS

PROBLEMAS: SOCIALES, ECONOMICOS Y AMBIENTALES. EL RIO ESTA TOTALMENTE CONTAMINADO

HUARMEY CENTRO CUENTA CON ZONAS VULNERABLES A INUNDACIÓN SIN EMBARGO EXISTE CONSTRUCCIONES CERCA DE ESTE RIO POR ESO SE PLANTEA COLOCAR DEFENSAS RIBEREÑAS Y REUBICAR LAS ZONAS VULNERABLES

CTORES
U B I C A C I Ó N U B I C A C I Ó N
COLCHÓN DE ÁREA RECREATIVA JARDÍN BOTÁNICO
EJES PRINC PALES PLAZA MERCADO PARQUE RECREATIVO JARD N BOTANICO MALECÓN
ESTRATEGIA DE ESTRATEGIA DE INTERVENCIÓN INTERVENCIÓN
LEYENDA: P R O P U E S T A P R O P U E S T A

M A Q U E T A D E L A

P R O P U E S T A M A Q U E T A D E L A P R O P U E S T A

ALAMEDA COMERCIAL

ZONAS RECREATIVAS JARDÍN BOTÁNICO Y MALECÓN CORREDOR VERDE

M O B I L I A R I O S M O B I L I A R I O S

ASIETO DE PIEDRA CON RECUBRIMIENT O DE MADERA Y TECHO DE MADERA

ASIENTO DE PIEDRA CON RECUBRIMIENTO DE MADERA Y MACETERO DE ARBOL CON PIEDRA.

PUESTO DE VENTA ELABORADO DE MADERA, JUNTO A TACHOS PARA LA BASURA ECHO DE MADERA.

CORTE 1-1 AV EL OL VAR CORTE 2-2 AV GARCILAZO DE LA VEGA CORTE 2-2 AV GARCILAZO DE LA VEGA CORTE 1-1 RIO HUARMEY

PROYECTO

ESTE PROYECTO PLANTEA UN EDIFICIO FINANCIERO EL CUAL PERMITA CREAR ESPACIOS EN DONDE SE PUEDAN ESTBLECER OFICINAS DE CIERTO BANCOS Y A LA VEZ SEA UN ESPACIO INTEGRADOR Y DE OCIO EN DONDE SE ENCONTRARAN ZONAS DE COMIDA ESPACIOS DE ESPARCIMIENTO ETC

EDIFICIO FINAN CIERO
04 PROYECTO ACADÉMICO PROYECTO: EDIFICIO FINANCIERO
DE SURCO AÑO DE DISEÑO:
LOCALIZACIÓN: LIMA - SANTIAGO
OCTUBRE 2021
CORTE A-A CORTE B-B
F L
SE PLANTEA UN DISEÑO DINAMICO Y EN MOVIMIENTO TQUE SE VISUALIZA TANTO EN LA FACHADA CY EN LOS ESPACIOS INTERNOS DEL EDIFICIO MAQUETA TERCER PISO 3D PRIMER NIVEL C O
C
PLANTA PRIMER PISO
F L E X I B I L I D A D Y D I N A M I S M O
E X I B I L I D A D Y D I N A M I S M O
R T E S
O R T E S

PROPUESTA

INTERVENCI ÓN URBANA

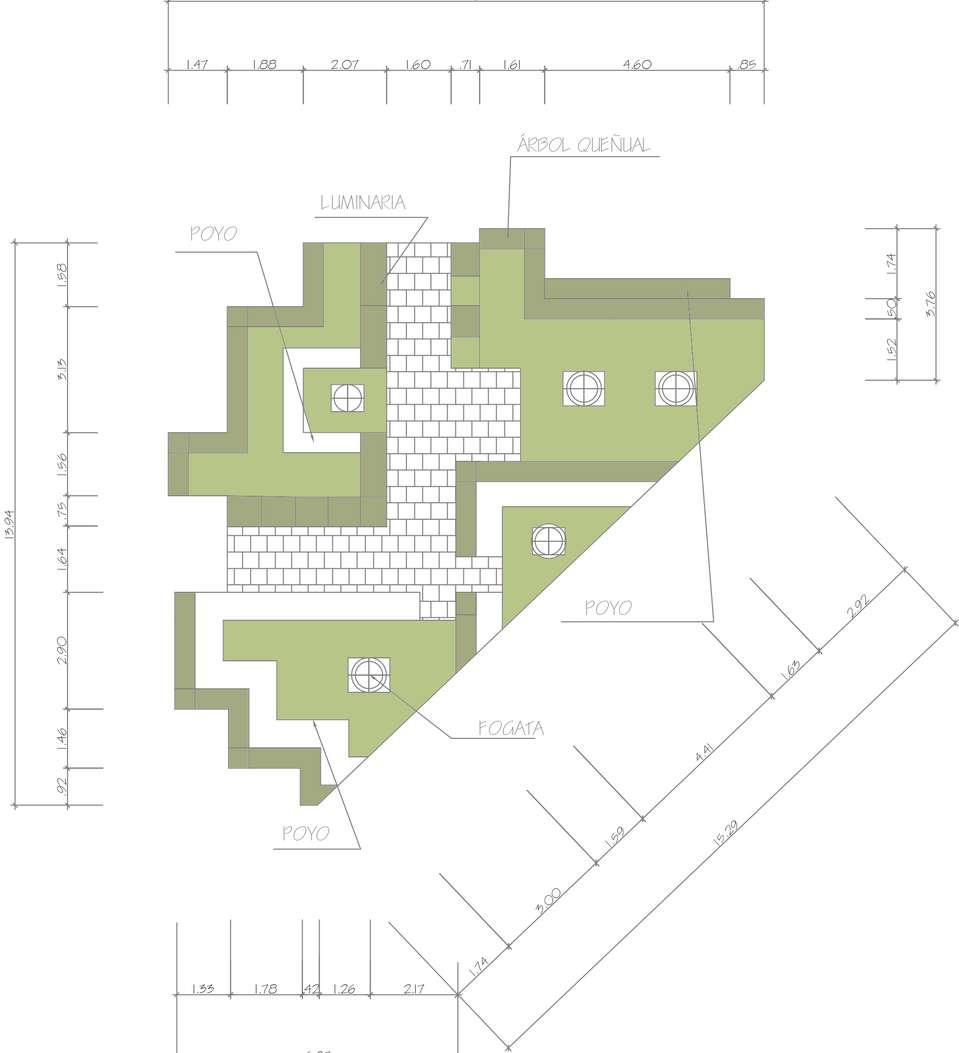
"Una nueva mirada a la calle Monte rosa "

PROYECTO DE INTERVENCIÓN URBANA DE LA CALLE MONTE ROSA SE PROPONE UNA REHABILITACIÓN URBANA DE LA CALLE MENCIONADA ANTERIORMENTE Y OTORGARLE UN NUEVO USO PLANTEANDO NUEVOS ESPACIOS DE ESPARCIMIENTOS Y RECREACIÓN PARA LOS USUARIOS

PROYECTO ACADÉMICO

PROYECTO: INTERVENCIÓN URBANA LOCALIZACIÓN: LIMA - SANTIAGO DE SURCO

AÑO DE DISEÑO: MAYO 2021

05

CAFETERIAZUM

DESCANSO

ESQUEMA DE ZONIFCACIÓN EN DONSE SE OBSERVAN 5 ESPACIOS DE ESPARCIMIENTOS PLANTEADOS SIGUIENDO UN DISEÑO AUTONOMO . SE ESCOGIERON LA CALLE MONTE GRANDE PARA REALIZAR LA INTERVENCIÓN URBANA Y CREAR NUEVOS ESPACIOS

B
C
C I Ó N
U
I
A
LIMA SANTIAGO DE SURCO LEYENDA
U B
C I Ó N Z O N I
Z O N
ZONA DE
ANFITEATRO-MIRADOR INGRESO PRINCIPAL PARQUEO DE BICICLETAS
I C A
F I C A C I Ó N
I F I C A C I Ó N
M O B I L I A R I O S M O B I L I A R I O S
PLANTA PARKING DE BICILETA
CORTE A-A

DETALLE TECHO DE CAFETERIA

PROYECTO DE VIVIENDA BIFAMILAR

ESTE PROYECTO DE VIVIENDA BIFAMILIAR CON CRECIMIENTO PROGRESIVO PERMITE DISEÑAR DESDE CERO UN HOGAR CON TENDENCIA DE CRECIMIENTO ESPACIAL A LARGO O MEDIANO PLAZO PERMITIENDO CREAR MÁS ESPACIOS FUNCIONALES PARA LOS USUARIOS

06 PROYECTO
VIVIENDA BIFAMILIAR - CRECIMIENTO PROGRESIVO LOCALIZACIÓN: LIMA - SAN ISIDRO
DISEÑO:
ACADÉMICO PROYECTO:
AÑO DE
OCTUBRE 2021

PLANTA PRIMER PISO PRIMERA ETAPA

PLANTA PRIMER PISO SEGUNDA ETAPA

PLANTA SEGUNDO PISO SEGUNDA ETAPA

C R E C
C
E C
CORTE A-A
I M I E N T O P R O G R E S I V O
R
I M I E N T O P R O G R E S I V O
CORTE B-B
D A N I T Z A T I M O T E O C A M P O S
A R Q U I T E C T U R A

Turn static files into dynamic content formats.

Create a flipbook
Issuu converts static files into: digital portfolios, online yearbooks, online catalogs, digital photo albums and more. Sign up and create your flipbook.
PORTAFOLIO ARQUITECTURA by Danitza Timoteo Campos - Issuu