EXPOSICIÓN FINAL DE ESTRUCTURAS II_G3

Page 1

TRABAJO FINAL ESTRUCTURAS II

G3

INTEGRANTES

DANITZA GRACIELA TIMOTEO CAMPOS U 19221578

JORDAN ALEXANDER CHAPOÑAN LLONTOP

MARIA CRISTINA GALVEZ MOROCHO U19208373

HENRY LARRY RIJALVA URBINA U19204746

U 19217535 U19204548

JACKELIN MARGOTH CONDORI MAMANI

ING. JOSE AUGUSTO HUARI LAZARO

DOCENTE
ESTRUCTURAS II CICLO II - 2022
INDICE
1. INTRODUCCIÓN 2. MEMORIA DESCRIPTIVA ARQUITECTURA 3.MEMORIA DESCRIPTIVA ESTRUCTURAS 4.METRADOS DE CARGAS 5. IDENTIFICACIÓN DE PARÁMETROS SÍSMICOS Y VALORACIÓN A PARTIR DEL ESTUDIO DE LA MECÁNICA DE SUELOS (EMS). 6. PREDIMENSIONAMIENTO DEL SISTEMA ESTRUCTURAL Y DE LA CIMENTACIÓN - CARÁCTER NORMATIVO 7. BIBLIOGRAFÍA 8.PLANOS ESTRUCTURALES.
INTRODUCCIÓN

Es necesario conocer las dimensiones estándares que se utilizan en los elementos estructurales y según norma es lo más adecuado para la concepción de la resistencia de una vivienda u otro edificio. De esta forma, se puede reducir las posibilidades de se produzca algún tipo de fisura, pandeo o deflexión excesiva.

Saber la ubicación exacta de la vivienda nos permite identificar los parámetros sísmicos y el EMS para ejecutar con la finalidad de asegurar la estabilidad y permanencia de la edificación.

Evaluar el sistema estructural convencional de un proyecto arquitectónico.

NORMA E.020(CARGAS) NORMA E0.50( SUELOS Y CIMENTACION)

Vivienda de 2 pisos más azotea.

MEMORIA DESCRIPTIVA ARQUITECTURA

E S C R I P C I Ó N G E N E R A L

UBICACIÓN USO EDIFICACIÓN

OBJETIVO

N I V E

DISTRITO CARABAYLLO, PROVINCIA DE LIMA

VIVIENDA

L

ÁREA A CONSTRUIRSE EN SEGUNDO PISO : 67.75 M²

ÁREA A CONSTRÁREA A CONSTRUIRSE EN PRIMER PISO : 100.31 M²

ÁREA A CONSTRUIRSE EN SEGUNDO PISO : 95.57 M²

²

1ra, 2da planta y azotea Comodidad, Hogar, D
PERÚ LIMA CARABAYLLO LIMA METROPOLITANA
ÁREA A CONSTRUIRSE AZOTEA : 90.30M²
E
La edificación comprende primer piso, segundo piso y una azotea, cuyas áreas son las siguientes:
S
:

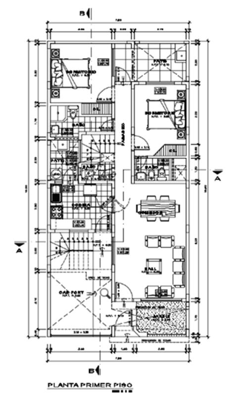
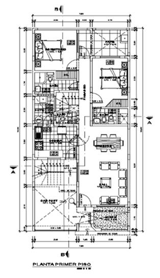
PRIMER NIVEL

SALA COMEDOR COCINA CAR PORT SS. HH DORMITORIO ESCALERA CORREDOR LAVANDERIA JARDIN

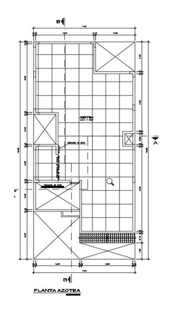
AZOTEA

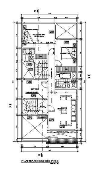
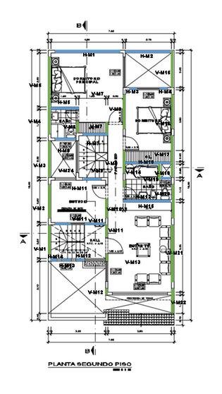
SEGUNDO NIVEL

DORMITORIO SS.HH PASILLO ESCALERA ESTUDIO SALA TV

TERRAZA

D I S T R I B U C I Ó N D E E S P A C I O S :

MEMORIA DESCRIPTIVA ESTRUCTURAS

D E L A E S T R U C T U R A Y C I M E N T A C I Ó N

En referencia del sistema estructural que se utilizo en este trabajo, es el de un sistema aporticado, con el objetivo de brindar mayor seguridad y firmeza a la vivienda, además, lograr posteriormente identificar los elementos para un mantenimiento a los elementos estructurales. En el sistema aporticado que presentaremos, tendrán como luz mayor 4.3 metros y luz mínima de 1.9 metros.

E L S U E L O

El suelo lo consideramos medianamente rígidos de arena densa. Suelo cohesivo compacto, con una resistencia al corte en condiciones no drenada . Precisamente, porque es un caso teórico, no presentamos un estudio geotécnico realizado y de complementar el trabajo con un estudio geotécnico, se debe adecuarlo al estudio realizado.

J U S
T I F I C A C I Ó N D E L A I M P L E M E N T A C I Ó N
D E S C R I P C
I Ó N D E L S I S T E
M
A
E S T R U C T U R A L L A S C O L U M N A S L A S Z A P A T A S L A C I M E N T A C I Ó N L A S V I G A S

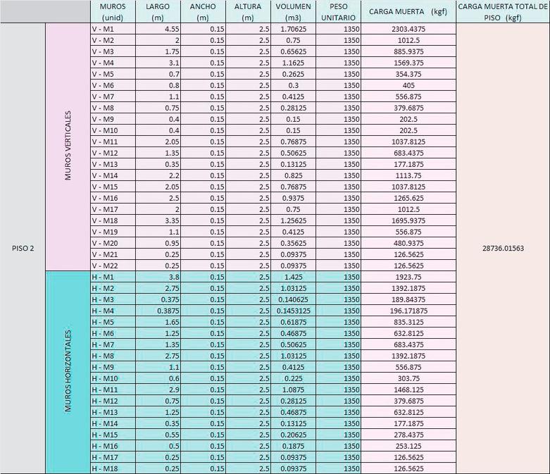
RESUMEN DE

METRADOS DE CARGAD

1 . 1 - C Á L C U L O D E C
A R G A V I V A

Muros Verticales

Muros Horizontales

se utiliza un peso unitario de 1350 ya que el proyecto presenta MURO DE ALBAÑILERÍA HUECA

1 . 1 - C Á
C
U R O S
L
U L O D E C A R G A M U E R T A D E M

CARGA MUERTA DEL PRIMER NIVEL

CARGA MUERTA DEL SEGUNDO NIVEL

CARGA MUERTA DE LA TERRAZA

SUMATORIA DE CARGA MUERTA DEL PROYECTO

Se calcula con la fórmula h = L/10 y el ancho mínimo según norma de 0.25 m.

1 . 2 - C Á
C
V I G A S
L
U L O D E C A R G A M U E R T A D E

PREDIMENCIONAMIENTO DE VIGAS

Se realiza el predimencionamiento de vigas para sacar el ancho y peralte que posterios se utilizara para e calculo de la carga muerta.

CARGA MUERTA DE VIGA PRIMER PISO

CARGA MUERTA DE VIGA SEGUNDO PISO

SUMATORIA DE CARGA MUERTA DE VIGAS

CALCULO DE LOSA ALIGERADA 1° NIVEL

CALCULO DE LOSA MACIZA 1° NIVEL

1 . 3 - C Á L C U
O D E C A
E L O S A
L
R G A M U E R T A D

CALCULO DE LOSA ALIGERADA 2° NIVEL

CALCULO DE LOSA MACIZA 1° NIVEL

SUMATORIA DE CARGA MUERTA DE LOSA

ÁREA TRIBUTARIA

Gracias al área tributaria podemos hayar la carga axial con la siguente formula:

• El peso, según la norma. (P)

• El área tributaria. (A)

• El N° de pisos. (N)

1 . 4 - C Á L C U
O D E C A
L U M N A S
L
R G A M U E R T A C O
P(SERVICIO) = P X A X N P(SERVICIO) = 1000KGF X A X 3

CALCULO DE CARGA AXIAL

PREDIMENCIONAMIENTO DE COLUMNA

Se realiza el calculo para sacar las dimensiones de las columnas para luego sacar la carga muerta.

CARGA MUERTA DE COLUMNASD EL 1° Y 2° NIVEL

CALCULO DE CARGA MUERTA TOTAL DE COLUMNAS

CALCULO DE CARGA MUERTA TOTA

IDENTIFICACIÓN DE PARÁMETROS

SÍSMICOS Y VALORACIÓN A PARTIR DEL ESTUDIO DE LA MECÁNICA DE SUELOS

(EMS)

La vivienda multifamiliar pertenecer a la categoria de edificaciones C

C O N D I C I O N E S E M S
:
V A L O R Z : F A C T O R D E Z O N A : Z 4 = 0 . 4 5 Z O N A 4 L I M A , C A R A B A Y L L O V A L O R U : C A T E G O R Í A D E L A E D I F I C A C I Ó N Y F A C T O R D E U S O : U = 1 . 0

Perfil tipo S2: Suelos intermedios: A este tipo corresponden los suelos medianamente rígidos

V A L O R S : P A R Á M E T R O D E L S U E L O : S = 1 . 0 5
Z O N A 4 L I M A , C A R A B A Y L L O S U E L O S 2
V A L O R C : F A C T O R D E A M P L I F I C A C I Ó N S Í S M I C A : C = 2 . 5 0
RESULTADO FINAL:

PREDIMENSIONAMIENTO DEL SISTEMA ESTRUCTURAL Y DE LA CIMENTACIÓN

CARÁCTER

-
NORMATIVO

La Normativa utilizada en este proyecto (vivienda multifamiliar) de dos niveles y una azotea, está dentro del reglamento Nacional de edificación E.020 que indica las cargas estáticas mínimas que se debe utilizar para el diseño estructural y la E.050 para el Estudio de Mecánica de Suelos.

Pre dimensionamiento de Viga :

La longitud (L) de la viga y altura (h) serán multiplicado por el valor escogido como se presenta en la imagen, dando como resultado el peralte (a).

La norma nos recomienda que la base de la viga no sea menor a 25 cm

N O R M A T I V A R N E

Pre dimensionamiento de Losa :

El proyecto esta cumpliendo con el peralte requerido de 20 cm

·Redimensionamiento de Columnas:

Para el calculo del área mínima de las columnas:

P(servicio)/0.35 x f’c

Área mínima excéntrica y esquinada: Área mínima excéntrica y esquinada:

P(servicio)/0.45 x f’c

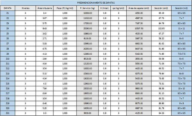
Pre dimensionamiento de las Zapatas :

Según el EMS, para la ciudad de Lima se evaluó un tipo de suelo S2 Intermedio, localizado en una zona geográfica comprendida, según el RNE en Z4.

Lo cual se necesitaba conocer algunos datos:

Niveles (N) Peso (P) Constante K Qa

CONCLUSIONES

CONCLUSIONES

El Estudio de Mecánica de Suelos, nos ayudó a poder determinar la capacidad admisible del suelo es decir qué tipo de cimentación se utilizará en la construcción y a observar el comportamiento de la estructura para su predimensionamiento.

Nos ayudó a conocer más sobre la norma vigente que regula los procedimientos y los parámetros en la E 050, como toda norma esta nos ayudó a conocer las medidas mínimas que se deben de tener en cuenta para realizar un EMS.

Para el predimensionamiento de la vigas y losas aligeradas en el proyecto se tuvo que escoger la luz libre mayor para realizar el cálculo de su peralte.

Para el predimensionamiento de las columnas, losas aligerada o maciza, vigas y cimentación (zapatas) se realizó con la norma E 020 del reglamento nacional de Edificaciones, para saber los parámetros mínimos que requiere la vivienda multifamiliar.

PLANOS ESTRUCTURALES

A-01 UTP PROYECTOFINAL A4 ESC.1/75 ZAPATAS C-4 A 1 C D E 1 2 3 4 4 5 6 5 6' E D C B A 7 8 7 8
A-02 UTP PROYECTOFINAL A4 ESC.1/75 COLUMNASYVIGASNIVEL1 ESC.1/75 COLUMNASYVIGASNIVEL2 1 A 1 C-1 C D C-3 E C-1 1 C-1 2 3 C-1 C-4 4 C-2 C-1 4 5 C-4 C-2 6 C-2 C-4 C-2 C-2 C-1 5 C-2 6' E D C B A 7 C-1 8 C-2 C-2 C-4 C-2 7 C-2C-4 C-4 8 C-1 C-1 C-1 C-1 C-1 C-1 V-P(.15x.40) V-P (.15 x .40) V-P (.15 x .40) V-CH(.40x.20) V-CH(.40x.20) V-P1 V-P V-R (.15 x .20) V-P (.15 x .40) V-P (.15 x .40) V-P1 V-R (.15 x .20) V-P1 V-P V-P V-P (.15 x .40) V-P1 V-P V-P1 V-R (.15 x .20) V-R V-R(.15x.20) V-CH(.40x.20) V-CH
V-P(.15x.40) V-CH(.40x.20) V-CH (.40x.20) V-CH(.40x.20) V-CH(.40x.20) V-CH(.40x.20) V-P(.15x.40) V-D(.15x.20) V-V V-V V-D V-CH(.40x.20) V-CH(.40x.20) 2 3 4 5 V-P (.40x.20) V-P(.15x.40) V-CH(.40x.20) V-P(.15x.40) A 1 V-P (.15 x .40) 3 C-1 V-P(.15x.40) V-P 4 C-2 V-CH(.40x.20) 4 V-P 5 C-2 V-CH C-2 6 C-2 V-CH C-2 V-P 2 A B V-P (.15 x .40) 7 C-1 1 8 C-2 V-P1 E C D 1 V-V V-D(.15x.20) V-CH(.40x.20) C-1 C-1 2 C-1 5 V-P1 V-P V-P1 V-CH(.40x.20) C-1 V-P C-1 4 V-P1 V-P (.15 x .40) C-1 C-2 V-CH(.40x.20) 6 C-1 5 V-P1 C-1V-CH(.40x.20) C-1 6' V-P C D E V-P (.15 x .40) C-2 V-CH(.40x.20) C-2 7 C-2 8 V-V
A-03 UTP PROYECTOFINAL A4 ESC.1/75 MUROSNIVEL1 ESC.1/75 MUROSNIVEL2 A C D E 1 2 4 4 5 6' 7 8 A 1 3 5 6 A B 7 8 E C D C D E A 1 3 4 5 6 A B 7 8 E C D 1 2 4 5 6' C D E 7 8
A-04 UTP PROYECTOFINAL A4 ESC.1/75 MUROSAZOTEA A 1 3 4 5 6 A B 7 8 E C D 1 2 4 5 6' C D E 7 8

Turn static files into dynamic content formats.

Create a flipbook
Issuu converts static files into: digital portfolios, online yearbooks, online catalogs, digital photo albums and more. Sign up and create your flipbook.