Thesis Black Book Global Design Center R&D Center for OLA Electric Cars -

Page 1

ARCHITECTURE PROJECT

2021-22

GLOBAL DESIGN CENTER: R&D CENTER FOR OLA ELECTRIC CAR

HINJEWADI , PUNE

FIFTH YEAR B.ARCH

PREFACE

Electric Vehicle Industry is expanding and getting expanded all across the world day after day. While the Western World has accepted this change, India is still lacking behind in accepting this change. India Requires a best in class R&D Center to accept this world wide trend and bring change in Indian Automobile Industry. This Thesis will hep our Nation to Reduce the Research & Technology gap between the western world and India

The dream future with flying cars all around, teleportation, speed and artificial intelligence influenced life is what we are accelerating to. Well we are not getting flying cars anytime soon but slowly will be there. Not long time ago we were all fascinated by the idea of self-driven and electrical cars. And now they are there in market for you to own your one self-driven solar powered smart car. As transport network is de veloping at a fast pace, Automobile Industry is growing too. With all this we are moving towards a revolution that will change our transport networking, having power charging stations everywhere, attempting to reduce the use of fossil fuels.

Also, the industry has strong backward and forward linkages and hence provides employment to a large section of the population. Thus the role of Automobile Industry cannot be overlooked in Indian Economy. The high growth in the Indian economy has resulted in many foreign car manufacturers entering the Indian market. Recently Indian Government also came up with their ‘Auto Policy’ and the vision of this policy is “To establish a globally competitive automotive industry in India and to have electric cars on Indian roads by 2030.”

There are many automobile research and development centres in Pune. But there is a need for more to carry out the research on new technol ogy get more foreign investors. Architecture that will showcase sustainability and be example for coming years as this is the start of electric car development. To making working environment that employees will like to be in, increasing the productivity. Self-sustained building with

GLOBAL DESIGN CENTER DANISH PATHAN | 01

ACKNOWLEDGMENT

16 February 2022,

The opportunity I had with Allana College of Architecture, Pune (MH) was a great chance for learning and professional development. Therefore, I consider myself as a very lucky individual as I was provided with an opportunity to be a part of it. I am also grateful for having a chance to meet so many wonderful people and professional who led me though this thesis period.

Bearing in mind previous I am using this opportunity to express my deepest gratitude and special thanks to the Ar. Prashant Deshmukh who in spite of being extraordinarily busy with his duties, took time out to hear, guide and keep me on the correct path and allowing me to carry out my project at their esteemed organization and extending during the training.I express my deepest thanks Ar. Madhav Hundekar & Ar Maithilee Chandratre for taking part in useful decision & giving necessary advices and guidance and arranged all facilities to make thesis development easier. I choose this moment to acknowledge his contribution gratefully.

Special thanks to Ar. Lina Debnath (Principal: ACOA) ,Ar. Romeiro Silveira,Ar.Dhwani Iyer,Ar Rina Salvi ,Ar Fiona Menezes, Ar Aamir Patel, Ar Sayanti Barman ,Ar. Aadil Peerbhoy

I would also like to express my deepest thanks to Ar. Kiran Kale & Ar. Abhay Bhonsale (Ingrain Architects) for giving me an oppurtunity to work along side and exploring the real proffesional side of Architetcure.

I perceive as this opportunity as a big milestone in my career development. I will strive to use gained skills and knowledge in the best possible way, and I will continue to work on their improvement, in order to attain desired career objectives.

GLOBAL DESIGN CENTER DANISH PATHAN | 02

TABLE OF CONTENT

Cover Page Preface Acknowledgment Synopsis Certificate

Part I: Design Investigation

Chapter I: Introduction

1.1 History and Evolution of Automobile industry?

1.2 Benefits of Electric Vehicles.

1.3 What is Research and Development Center

Part II: Design Investigation

Chapter IV: Design Data .............

Chapter V: Area Programme & Analytic.....

countries center around the countries.

1.5 Current Scenario of Electric cars R&D Centers in India

1.6 Hinjewadi Developing Tech & Industrial Hub

Chapter II: Case Studies

2.1 National Automotive Innovation Center?

2.2 Porsche Headquarter & Experience Center .

2.3 Mahindra Research Valley

1.4 Industry Runner Electric Cars R&D center around the 2.4 Automotive Research Association Of India (ARAI)

2.5 Automobile Design Studio- Mahindra

Chapter III: Comparative Analysis

3.1 Comparison Of Case Studies 2.1 - 2.4

PageNo

Chapter VI: Predesign : Matrix .........

Chapter VII: Design Approach .........

Chapter VIII: Site Analysis & Selection .....

Chapter IX : Design Solutions ...........

Chapter X : Bibliography ...........

91 98

PageNo PageNo 07 19 39 43 61 68 71 83 1.7 Why OLA Electric?

GLOBAL DESIGN CENTER DANISH PATHAN | 03

SYNOPSIS

INTRODUCTION:

Research Methodology

Introduction Aim Objective Scope of Study Limitation

Manufacturing process has of auto industry has entered a new age of production. This transformation in the design and manufacture of goods is not just the result of a single trend, but is process driven by a broad range of complex ideas and interconnected design factors. Research and Development Center is the Core of any emerging Industry, it carries out the burden of updating a wide range of technology with this ever-developing world. Research and Development Center help Automobile Industry in developing new automotive technologies and finding solution that meet and anticipate market. The Future of road transportation is expanding and it moving towards the Electronic Mobility.

The Western world has already adopted this change. Recently Indian Government also came up with their ‘Auto Policy’ and the vision of this policy is “To establish a globally competitive automotive industry in India and to have electric cars on Indian roads by 2030.” Electric Vehicles are the Future and the time travel distance between future and present can be only covered through Innovation in Technology.

AIM:

The Aim of this topic is building a Global Design Center for Ola Electric Cars, which will help the nation make its different Identity in the field of Electric Automobile Industry through its best-in-class facilities provided in Research and Development Center

KEYWORD:

Design Center, E-Mobility, Research and Development , Automobile

OBJECTIVE:

• To provide future proof facility for Research and Development Center which helps the collaborate in different stages of research.

• To design a research and development campus which fulfills all the demand of automobile industry.

• To Design the campus which collaboration through formal and informal interaction within a landscaped campus setting.

GLOBAL DESIGN CENTER DANISH PATHAN | 04

SYNOPSIS

SCOPE OF STUDY:

The Scope of the study is to provide Design studio, CAD-CAM center, Experience Center, administration, Recreational, Planning & development, Procurement center, testing and crash test lab, support services ,fatigue testing lab, aerodynamics lab.

RESEARCH METHODOLOGY:

The Research combines primary,secondary and Inductive Research Data. The Research will deal with exisiting case studies and data related to case study as well secondary dtaa like book standards data.

RESEARCH METHODOLOGY

PRIMARY DATA

SECONDARY DATA

BOOKS :

The standard andvehicle turning radius and data collection

INTERVIEW:

to

LIMITATION:

Stats

stats regarding Popula tion and Employement Rate.

The Scope of the project is Limited to Research and Development Center i.e Design Studio and Prototype Development Lab. The Total Builtup Area is Around 9000-10000 Sqm.

GLOBAL DESIGN CENTER DANISH PATHAN | 05
Interview With Industry Experts
collect design data RESEARH PAPERS: Informaton from Research papers regarding Automobile Industry
& Publications: Collecting

SYNOPSIS

PROBABLE CASE STUDY:

• National Automotive Innovation Center ,UK

• Automotive Research Association of India, Pune

• Porsche Experience Center , Atlanta

• Mahindra Research Valley , Chennai

• Mahindra Design Center , Mumbai

WHY OLA ELECTRIC ? COMPANY FUNDAMENTAL:

• The Aim of the company is that Local Will be Global. They call themselves neither Uber of India Nor Tesla of India , they are OLA of the World.

• The Ola Electric Cars will be out in 2023.

• Wayne Burgess, a Jaguar veteran, will lead Ola’s design centers in London and Bengaluru

REFERENCE ARTICLES:

• https://economictimes.indiatimes.com/tech/startups/ola-electric-hires-yongsung-kim-to-head-global-sales-and-distribution/article show/81933776.cms

• https://economictimes.indiatimes.com/tech/startups/ola-electric-hires-yongsung-kim-to-head-global-sales-and-distribution/article show/81933776.cms

GLOBAL DESIGN CENTER DANISH PATHAN | 06

CHAPTER 1: INTRODUCTION

GLOBAL DESIGN CENTER DANISH PATHAN | 07

1. INTRODUCTION:

With the evolution of the automobile industry, the journey from the combustible engine to the electric motor is now only had reached its destination because of the innovation & technology enhancements in Research and Development Centers around the world.

A Research and Development Center does not only set up a benchmark for an industry, but it also helps a particular sector to stay ahead of the future. Similarly, the Automobile industry is also evolving day after day and achieving innovation goals, in all allied fields of Automobile which includes, Efficiency, speed, Automatic Driving Automation, Design and Aerodynamics.

A Research and Development center evaluates and forms the image of the company for both the revenue and innovation made by the company. Ola is currently one of the leading market players in the electric vehicle segment. The company has planned to make its mark in the car segment, too. Currently, in India, very few brands focus specially only on electric cars and Ola is a name that belong in that segment.

The Global Design Center will develop a place that combines innovation + technology + Collabartive business (fig.1) at a single place with its world-class automobile designing facilities, R&D Laboratories & Customer experience zone. The project will involve both the private and public spaces at a place together. Therefore, this thesis will explore these various what-ifs and try to understand them? How can private and public space become more productive in terms of business relevant and active in present times and for the future?

INNOVATION : Is a process of identifying, pinpointing, and under standing the needs of the user or audience.

RESEARCH AND DEVELOPMENT CENTER

TECHNOLOGY : Is the study, design, development, application, implementation, support and management of computer and non-computer based technologies for the express purpose of communicating

Collabration : It’s a multi-pronged process that involves planning and strategy that revolves around feedback and is delivered collaboratively.

Fig 1. 1 Main Aspects of R&D Centers © Research and Development Principles

GLOBAL DESIGN CENTER DANISH PATHAN | 08

1.1 History and Evolution of Automobile industry?

• Cars powered by internal combustion engines became the dominant technology solutionthe automotive industry also established how transportation systems are organised around the world. Given an urgent need to eliminate carbon from the global economy, however, other powertrain technologies now exist to gain a competitive advantage, and industries must adapt. Hybrid and fully electric powertrains

• Attract major investment, as well as new travel ideas and services in the visual environment transport and energy system. How industries get used to each other, what other alternatives are emerging, how quickly be competitive and eventually replace existing technology, however, subject to certain national considerations, including policy frameworks, existing industry frameworks and expertise, conditions of need, etc. As a result, switching to electromobility follows a specific technology methods. This Shift of Electric mobility is only possible if the country has good policies and infrastructure research institutes and testing center to set up a pre-ground practice.

Transformation In Automotive © Evolution In Automobile

1.1.2 Transformation Of Vehicle from Combustion Engine to Electric:

• Current research reveals some unique aspects of switching to electromobility around the world. Getting started with, electromobility still plays a low role in the business models of Indian and large automotive manufacturers providers.

• The automotive industry is gradually shifting from producing traditional cars powered by internal combustion engines (ICE) to less carbon-intensive drive technologies, including fully battery-electric as well as hybrid-electric cars ( Fig 1.2)

Fig 1.2
GLOBAL DESIGN CENTER DANISH PATHAN | 09

1.2 Benefit Of Electric Vehicle ?

• Electric Vehicles (EVs) are a new concept in the automotive industry. Although other companies have developed a model of all of the cars operating and using electricity; some more provide mixed electric and gas vehicles. Cars produce a lot of car bon emissions emitted into our natural environment, leaving us vulnerable to such things as pollution and greenhouse gases.

• To better serve the environment, in which we live, an electric car is a good step forward. Ngu to buy an electric car, you can also get government support for environmental protection. While you may end up paying more for your car, the good cover us the worst. However, there are still two aspects to consider when considering investing in an electric car EVs get their power from rechargeable batteries installed inside the car.

• These batteries are not the only ones used to power the car but are also used for the operation of lights and wipers. Electric cars have a lot more batteries than normal gasoline. It is the same type of battery that is widely used when starting a gasoline engine. The only difference is that they have electric cars, many of them, which are used to power the engines.

Some Of the Benefits of Electric Cars Are:

1. No Gas Required

2. Saves Money

3. No Emissions

4. Safe to Drive

5. Less Maintainace

1.2.1: Positive Impact on Environment :

• In the UK in 2019, a lifetime drive per kilometer of driving a Nissan Leaf EV was aboutthree times less than the average car, even before the fall the carbon footprint of generating electric ity during the lifetime of a car. The comparison between electric cars and conventional cars is complex.

• They depend on Motor size, accuracy of fuel economy estimates used, how electricity generation occurs calculated, what driving modes are considered (fig3), and even the weather conditions in the regions there.Cars are used. There is no single standard that works every

Fig 3 Other Benefits of Ev’s © Futureof Mobility

(Fig 4)Emission Of Different Vehicles

GLOBAL DESIGN CENTER DANISH PATHAN | 10

1.2.2

FAME Scheme by Government to promote electric Vehicle.

• The government has approved Phase II of the Fame Program for an estimated Rs. 10,000 Crore for 3 years from 1 April 2019 (Figure 4). Without full budget support, almost 86% of the fund is set aside for Demand Incentive to meet the demand for EVs of the country. This phase aims to generate demand in the form of funding for 7000 e Buses, 5 lakh 3 Wheels, 55000 4 Wheeler Passenger Cars (including Strong Hybrid) and 10 lakh 2 Wheels. However, depending upon off-take of different category of xEVs, these numbers may differntiate as the provision has been made for inter as well as intra segment wise fungibility.

• Only upgraded batteries and registered vehicles will be promoted under this programme. With greater emphasis on providing affordable & environmentally friendly public transport options, for the most part, the system will work best on vehicles used for public transport or those registered for commercial purposes in parts e-3W, e-4W and e-bus. However, in private registered e-2Ws are also covered under the system as a major component

(Fig 5)Fame Scheme Benefits of Ev’s ©Times of India

GLOBAL DESIGN CENTER DANISH PATHAN | 11

1.3 What is Research and Development Center ?

• The research and development centre is the backbone of the automotive industry, carrying heavy loads to revitalize the various technol ogies of this developing world. Research and Development The centre assists the Automotive Industry in developing new automotive technologies and finding solutions that meet and anticipate the market.

(Fig 6)Defination of R&D Center © Development Center Resourses

• A Research and Development Center Deal with Innovation, Design, team collaborations and the most important aspect is technology enhancement with the ever-updating world. R&Ds are considered the first step of marketing hence plays an important role in evoking competitiveness which indirectly benefits user groups in getting better products. Services, technologies, systems & policies. It generates massive employments, partnerships with associates, benefit to investors and nation wise economic growth also having autopilot EVs will eventually encourage the improvement of Indian infrastructures (roads, traffic management systems, solar harvesting & charging stations, clean energy products etc.), causing fewer accidents and more safety. Clean energy systems like Powerwall, Solar roofs and panels will get cheaper and will be made easily available for Indian nationals. Further, this huge investment in India will attract other MNCs and will promote the Make in India initiative..

GLOBAL DESIGN CENTER DANISH PATHAN | 12

1.4 Functions of Electric Cars Research and Development Center

• Improving the number of competitive and innovative solutions offered to the automotive sector developed by Polish research institutes and companies.

• Increasing the interest of national athletes from the automotive sector to use together to fund R&D projects focusing on innovation.

• Increased use of Polish innovative solutions by industrial companies.

(Fig 7) Growth Features of Research Facility

GLOBAL DESIGN CENTER DANISH PATHAN |13

1.4

Industry Runner Electric Cars R&D center around the countries.

• Findings of 2017 Scoreboard reveal that the automotive sector is the world’s third largest industry in terms of R&D and the largest one in the European Union and Japan. Currently, electric mobility is rising in prominence. British and French governments have announced that all cars marketed after 2040 must be fitted with an electric drive.

• The Above data is of 2017 Where the investors and their profit are shown: The Result clearly shows in the world rank of 2500 enterprises with the highest expenditure on R&D in 2016, the automotive sector was clearly in the lead - Volkswagen once again came 1st (EUR 13.67b), GM 11th (EUR 7.68b), Daimler 12th (EUR 7.53b), Toyota 13th (EUR 7.50b), Ford 15th (EUR 6.92), and Robert Bosch 20th (EUR 5.58b). The automotive industry is also the pillar of the European economy and a leader driving R&D and innovation. The Company which invests more in R&D is ranked higher in an account of profit they receive from the Automobile sector.

• Here is the second proof of 2021 research which shows the Tesla’s Investment in R&D Facilities

A Research Was Conducted in Which Business Model of all the leading Car manufacturers was statistically divided into

Two main heads which are used in Statistic:

1) Investment done on Developing Research and Development Centers

2) Investment done on Advertisement

The Research Shows:

1) The Car Manufacturing Company which invests more in their R&D Facilities has greater shares in Automobile Market Cap

2) Good R & D Facilities increases the Innovation & Experiments

Fig 8. Tesla Investment in R&D © Statista

GLOBAL DESIGN CENTER DANISH PATHAN | 14

1.5

Current Scenario of Electric cars R&D Centers in India

• India’s share of global R&D spending increased to 3.53 per cent in 2015 from 3.43 per cent in 2014 and is expected to be 3.67 per cent in 2016

• Since March 2017, the World Intellectual Property Organization (WIPO) has stated that India is at the forefront of the development of sustainable and sought-after youth among various countries around the world.

• In May 2017, the central government introduced various initiatives to implement intellectual property protection to facilitate the introduc tion of patents for beginners and to promote awareness and acceptance of IP rights. In addition, under these programs, the central govern ment has payments for patents, trademarks or projects that may be introduced by the launcher.

Fig 9.Global Runners In Electric Mobility ©Statista

• The Current Situation for new companies to come out of shell and Develop the new emeriging electric market is well planned by India Government .Seperate budget is assigned towards the electric market and research involve in developing good research centers in India Few of the Example Of Government Owned R&D Center are :1)DRDO 2)ARAI 3)NATRAQ

GLOBAL DESIGN CENTER DANISH PATHAN | 15

1.5.2

Future Road Map of R&D Centers in India

• Research and development (R&D) spending by India Inc increased in 2018-19 (FY19) over the previous years (led by automobile and pharmaceutical sectors). But it was still a small percentage of the total sales. In FY19, India Inc spent Rs 8,721.3 crore under the R&D head nearly a fifth more than the amount in 2017-18 (FY18), which was Rs 7,098.5 crore.

• The details of these expenses are available in the annual reports of companies, usually pub lished by the end of the second quarter of the next financial year. This analysis looked at 440 companies for whom the continuous data is available for the past 10 years. Even though the R&D expenditure has increased, it is still a small percentage of the total sales. The total R&D spending is about 11 basis points (bps) as a percentage of net sales. It was 10 bps in FY18. It was about 13 basis points in FY16 and FY17 for the sample under consideration, showed the data.

1.5.3

Pune-R&D Hub of India

Fig 10.Growth Of India in R&D ©Economics

• India has become a hotbed of R&D and in line with last year’s global R&D scenario, the country is now the preferred destination for automotive R&D, according to a Global Top 500 R&D fundraiser conducted by Zinnov, global trade advice and market growth. it is solid. “With strong growth potential in areas such as engineering statistics and significant talent found in the ‘Deccan Triangle’ region - includ ing Pune, Bangalore and Hyderabad - India is ready to become an auto R&D centre,” the study noted.

• Pune is transforming into a global R&D hub for the automotive and auto components sectors as most auto giants are setting up R&D centres in the country. The country offers several key advantages to global auto majors: Lower R&D costs, availability of skilled human capital, and a potentially large domestic market that justifies the investment. Having established itself as a small car hubIndia is now becoming a formidable choice for performing R&D activities. Auto giants, including small car makers and luxury car manufacturers like MercedesBenz, have set up R&D centres in the Pune over the past few years. The focus on R&D has further scope for expansion in the country over the next decade.

GLOBAL DESIGN CENTER DANISH PATHAN | 16

HIJEWADI - DEVELOPING TECH & INDUSTRIAL CENTER

• Hinjewadi, over a period of time, has grown multifold to become one of the biggest industrial areas in and around Pune with a wide range of organizations operating from this area. Hinjewadi contributes around 60 per cent of Maharashtra’s total industrail exports. As of now we are able to generate the revenue of Rs 35,000 crore.

• This area has around 90 companies employing people and generating revenue however, around 50 companies are part of HIA. The major players in this area includes Tata ,Infosys, Wipro, Mahindra, TCS, Persistent, KPIT Cummins, Mercedes along with Citrus and many others.

• Looking at this picture Hinjewadi can surely expect around 15 per cent rise in next one year. Since it is a difficult horizon to predict we can restrict ourselves to one year in place of three years.

HINJEWADI - SHIVAJI NAGAR METRO
1.6
METRO LINE JUNCTION/ CHOWK MUMBAI-BANGLORE HIGHWAY PRIMARY ROAD SECONDARY ROAD 7 MINUTES WALK 2KLAWRETEM 5 MINUTESWALK
HINJEWADI PHASE 2 ROAD GLOBAL DESIGN CENTER DANISH PATHAN | 17

1.6.1 FUTURE ASPECTS OF HINJEWADI

• To address the issue of commuting and public transportation, MIDC recently allotted 1.5 acre land to Pune Mahanagar Parivahan Ma hamandal Limited (PMPML) to construct a bus terminus in Hinjewadi Phase II. That’s not all! Soon, there will be about 100 air-conditioned buses to provide shuttle services to various IT companies

• Makeover of Rajiv Gandhi Infotech Park (RGIP) and its adjoining areas is also in the pipeline. This Rs 500 croreambitious plan by MIDC takes into consideration issues related to roads, power and water.

• For smooth flow of traffic, there are plans for a four-lane flyover from Pimpri-Chinchwad limit to the T-junction. Also, there is a road project worth Rs 143.55 crore, which will connect Balewadi to RGIP. Once completed, this will give a major facelift to Hinjewadi’s con nectivity.

• Hinjewadi is all set to a get a lifeline as well. The 44km Phase II of the Pune metro that will start at Shivajinagarand end at Nigdi will also have a station at Hinjewadi, ensuring metro connectivity.

• The aggregate employment data of study area was obtained by assuming workerparticipation rates of 32%. Modifications have been done in view of the recent IT developments as the RITES study did not witness the industrial boom in Pune. A proxy index for employment has been developed from the HIS data and has been used to moderate the Zone wise Employment values. A lot of change has been observed in the recently developed zones like Hinjewadi.

AREA 2008 2011 2021 2031

Rajiv Gandhi InfoTech Park Hinjewadi Phase I 21750 21750 21750 21750

Rajiv Gandhi InfoTech Park Hinjewadi Phase II 19075 27250 54500 54500

Rajiv Gandhi InfoTech Park Hinjewadi Phase III 7000 17500 56000 70000

Rajiv Gandhi InfoTech Park Hinjewadi Phase IV 0 10000 70000 100000

Fig 11. Additional Employment due to new development © Pune Metro Report

GLOBAL DESIGN CENTER DANISH PATHAN | 18

CHAPTER 2: TECHNICAL DATA : CASE STUDIES

GLOBAL DESIGN CENTER DANISH PATHAN | 19

2.1 NATIONAL AUTOMOTIVE INNOVATION CENTER

• The National Automotive Innovation Centre (NAIC) in the Prof. Lord Bhattacharyya Building at the University of Warwick is one of the largest research centers of its kind in Europe. The NAIC brings together the brightest minds from industry and academia; the Centre is a beacon for future mobility and sustainability research and development.

• CRITERIA FOR SELECTION : It will create future vehicles and Personal mobility solutions as well as deliver the skills required to keep the UK globally competitive. The National Auto motive Innovation Centre is driving the future of the automotive industry from the heart of the United Kingdom. The Aim for automotive research is to brings together the brightest minds from industry and academia, to develop future vehicles and mobility solutions

2.1.1 COMPANY PHILOSOPHY & ARCHITECTURE:

Location : Coventry , England

Climate : 1 - 22 Degree Cel

Built-up : 33946 Sqm

Structural Engineer : ARUP

Architect : Cullinan Studio

Owner/ Client: TATA motors, Jaguar

Design Occupancy : 1060

Fig 12. Location Map © Earth

• IMPACT Design is a sharper, more contemporary expression of the now recognizable Tata-JLR’ Design language, which cap tures the attention of the viewer in the first few seconds. It is recognizable, memorable and above all stunning.

• Tata Motors and JLR is the company which focus more on designing and R&D.

2.1.2 COMPANY PHILOSOPHY & ARCHITECTURE:

Designing the NAIC required us all to take an extraordinary journey in response to a unique brief that co-located industry, research and academia into the heart of the University of Warwick’s campus.

1) To foster innovation and collaboration across disciplines

2)To connect academic and manufacturing research

3)To inspire a new generation of engineers

Fig 14 Innovation Require Idea to Be Shared © Cullian Studio

Fig 13. Impact Concept © CS

Fig15.Collaborative Spaces Sparks Innovation © Cullian Studio

GLOBAL DESIGN CENTER DANISH PATHAN | 20

2.1 NATIONAL AUTOMOTIVE INNOVATION CENTER

2.1.3 ZONING:

• The building combines Public, Semi Public and Private Spaces very well.The Labs and engieering hall is place on ground floor to make sure that cars won’t be required the vertical transporation and have smooth circluation throughoiuut the building.

• The Research Offices and Design Studios are arranged on higher floor as it requires more privacy.

2.1.4 BUILDING MASTERPLAN & ORIENTATIONS :

• The arrival to the building is marked by the timber latticed roof structure oversailing the entrance doors. Soft green landscape and seating guide visitors to the entrance, with a large café to one side.

• This is open to anyone and also opens into the reception foyer. Emphasis is placed on the building entrance being welcoming, in contrast to the traditional science build ing which would usually be hidden away on the campus. One of the challenges for this project was to bring together multiple facilities that were used to working independently.

Fig 17. Zoning © Cullinan Studio Fig Masterplan © Cullinan Studio
Pedestrain Access Service and Vehicle Access
18.
GLOBAL DESIGN CENTER DANISH PATHAN | 21

2.1 NATIONAL AUTOMOTIVE INNOVATION CENTER

2.1.5

SPACE DISTRIBUTION & PLANNING:

• As many of these facilities carry out highly confidential work, the architect’s challenge was to provide lines of security whilst also creating shared space for collaboration and a building that felt connected. This has been achieved by moving security to different levels and maintaining large open spaces for communal activity.

• The building plan is a simple L shape with stacked volumes around a stepped atrium. There is a Hollywood glamour to this space with long, white sweeping curves, generous stairs, and the play of light into the volume through the latticed roof structure.

• The material palette is pared down and neutral, the focus being on the timber roof, the beautifully engineered details and the cars and models on display.

• Behind the scenes is the latest in automotive engineering, design labs with robots creating clay models at 1:1 scale, VR rooms where cars are tested and adjusted and a studio with turntables for cars that are driven across bridges, crossing the atrium into the external display garden- surely a moment of theatre when put in motion.

J & L

Collaborative Hub External Terrace

Tata Motors Research Of fice

Advance Research labs

Fig Fig
19. Ground Floor Plan© Cullinan Studio
20. First Floor Plan© Cullinan Studio GLOBAL DESIGN CENTER DANISH PATHAN | 22

2.1 NATIONAL AUTOMOTIVE INNOVATION CENTER

SPACE DISTRIBUTION & PLANNING:

SECOND

• You can rise from terrace to terrace towards the showroom and ‘design garden’ on the top floor, which front the more private world of the design studios.

• Inside, in the engineering hall, the sets of balconies rising to the showroom at the top both underline the openness of the spaces but create a theatrical route up: a promenade through a hillside town is how I describe it. You can see all the activities going on. It’s a four-storey building, but almost everybody chooses to use these stairs.

Fig 21. Second Floor Plan© Cullinan Studio Fig 22. Third Floor Plan© Cullinan Studio Fig 23. Section © Cullinan Studio
2.1.5
FLOOR Digital Review Room Colour And Trim Clay Loading Room Design Halls Hard Modelling Training Room Research Office Project Spaces
GLOBAL DESIGN CENTER DANISH PATHAN | 23

2.1 NATIONAL AUTOMOTIVE INNOVATION CENTER

2.1.5 SPACE DISTRIBUTION & PLANNING:

• The ground-floor slab required loads of pits to be cast into it –for engine testing and fuel sumps and for car-lift hydraulics. o there was quite a complex, time-consuming ground plane con struction before you could build on top of it.

• Spaces and work settings range from acoustic mobile phone booths to spaces capable of events, such as car launches and other functions. The building structure is exposed wherever possible and we have chosen carefully where to integrate supporting services to maintain a de-cluttered, calming interIOR .

2.1.6 SPECIAL FEATURES:

Fig

Fig

Fig 24. Section © Cullinan Studio

2.1.7 CONCLUSION:

• The building belies its cost and is actually quite simple in terms of its fabric. External walls were assembled using a pioneering system of prefabricated, self-spanning timber and CLT ‘mega panels’. The CLT panels we chose are slim, 90mm-thick, 12m sheets, which are very economical when used on a big scale, offered performance better than steel, needed no extra secondary steelwork and could be erected quickly.

• Structural engineers developed the largest glulam roof structure in Europe in close collaboration to achieve a high level of aesthetic and design detail.

25. Use Of Artificial Light in Engineering Hall
26. Natural Light Through Atrium GLOBAL DESIGN CENTER DANISH PATHAN | 24

2.2

PORSCHE HEADQUARTER & EXPERIENCE CENTER.

• The design by HOK of Porsche’s new North American Experience Center and Headquarters combines office, training, design studio and driving functions into one sleek, high-performance facility that encapsulates the essence of the company’s brand. Bringing together 400 Porsche employees from five divisions of the company, the facility serves as a new destination for partners, customers and car enthusiasts.

• CRITERIA FOR SELECTION Located on a former automobile production facility adjacent to Hartsfield-Jackson Atlanta International Airport, the building and test track are a prominent symbol of the Porsche brand to passengers on arriving and departing flights. The facility is expected to catalyze development in the burgeoning aerotropolis.

2.2.1 COMPANY PHILOSOPHY & ARCHITECTURE:

Location : Atlanta , United States

Climate : 5 - 30 Degree Cel

Built-up : 18580.6 Sqm

Structural Engineer : Fa.Ma Ingegne

Architect : HOK

Owner/ Client: Porsche

Design Occupancy : 3150

• The building structures of Porsche specifies the dynamically formed, monolithic structure, seemingly detached from the entry level’s folded topography. Its reflective the speed and sharpeness which reflects in all there cars. .

• Porsche Experience center is good example of collaboration of Innovation & Experience.

2.2.2 COMPANY PHILOSOPHY & ARCHITEC-

Dynamic building Entrance with the building looking towards the testing tracks as the building itself acts as it is binded with the testing facilities . It shouws the company phyilosophy of building huge and which can be visible from far distance away .The Buidling occupies : Testing Track ,Experience Center, Headquarter, Design Center,Testing

Fig 29. Headquarter+ Training + Studios+ Experience centre © HOK

Fig 30. Development of Masterplan with Testing Facility © HOK

Fig 27. Location Map © Earth Fig 28. Concept© HOK
GLOBAL DESIGN CENTER DANISH PATHAN | 25

PORSCHE HEADQUARTER & EXPERIENCE CENTER.

2.2.3 ZONING:

• The building combines Public, Semi Public and Private Spaces very well.

• The Labs and training facilities for workers is place on ground floor to make sure that cars won’t be required the vertical transporation and have smooth circluation throughoiuut the building.

• The Experience center , research offices and design Studios are arranged on higher floor as it requires more privacy.

2.2.4 BUILDING MASTERPLAN & ORIENTATIONS :

• The building’s east-west exposures eliminate glare. North-south curtain walls maximize natural light and minimize solar heat gain.

• The three levels of contemporary, naturally illuminated office space to encourage collaboration and creativity. A 13,000-sq.-ft. business center features state-of-the-art conference rooms, event spaces and a driving simulator lab.

The Center comprises of Testing track, Headquarter and Experience Center.

RECEPTION+ EXPERIENCE CENTER

TESTING LAB & TRAINING FACILITIES

PEDESTRAIN CIRCULATION

DESIGN AND OFFICE STUDIOS

RECEPTION+ EXPERIENCE CENTER

TESTING LAB & TRAINING FACILITIES

PEDESTRAIN CIRCULATION

DESIGN AND OFFICE STUDIOS

EXPANSIONS

2.2
FUTURE EXPANSIONS
FUTURE
Pedestrain Access Service and Vehicle Access Fig 31.Zoning © HOK Fig 32. Master Plan © HOK GLOBAL DESIGN CENTER DANISH PATHAN | 26

&

• A curvy, 1.6-mile test track shoots through the building’s lower levels before vanishing into the center and beyond. Though it is the track that immediately connects visitors to Porsche’s legendary heritage, this is more than a testing ground for motor sport enthusi asts. The building also brings together employees from five divisions into one sleek, high-performance workplace.

• Visitors can see the historic Porsches remodelled with old German parts at the restoration centre. In the design studio, customers can build the cars of their dreams with options that can be fully customized. Restaurant 356, named after the first Porsche production, offers eaters a front seat on the test track. The centre also includes a driving simulation lab. The modern, naturally illuminated office encourages collaboration and creativity among Porsche employees. 13,000-sq.-ft. the business centre has state-of-the-art conference rooms and event venues.

2.2.4 SPACE DISTRIBUTION
PLANNING: 2.2 PORSCHE HEADQUARTER & EXPERIENCE CENTER. 1 5 3 3 6 3 4 3 7 8 7 8 2 9 GROUND FLOOR 1-Staff Parking 2-Technical Training 3-Test Facilities 6-Paint Shop 7-Common Meeting 8-Test Control Facility 9- Pit Lane 11 15 12 12 14 FIRST FLOOR 11-Business Centre / Public Cafe 12-Experience Centre 13-VR Experience Centre 14 – Shops 15- Outdoor Terrace Fig 33. Ground Plan © HOK Fig 33. First Plan © HOK GLOBAL DESIGN CENTER DANISH PATHAN | 27

PORSCHE HEADQUARTER & EXPERIENCE CENTER.

SPACE DISTRIBUTION & PLANNING:

To immerse visitors in the Porsche experience, the team incorporated motor-sport-related cues. Vintage and modern Porsches are on display in a classic car gallery. Exterior and interior wall configurations keep track noise outdoors.

• Visitors can see historic Porsches undergoing renovations at the restoration center. In the design studio, visitors can virtually create their dream cars with fully customizable options. Restaurant 356, named for the first production Porsche, offers diners front-row seats and a balcony overlooking the track.

2.2.4
2.2
SECOND FLOOR 16- Office & Research Spaces 17- Business Centre 18- Dinning / Employee Cafeteria 22- Core 19 19 23 20 21 22 THIRD FLOOR 19- Design Studio 20-Clay & Hard Modelling 21- Roof Terrace 22- Core 23- Lazer Cutting Studio Fig 34. Second Floor Plan © HOK Fig 35. Third Floor Plan © HOK Fig 36. Section © HOK GLOBAL DESIGN CENTER DANISH PATHAN | 28

2.2 PORSCHE HEADQUARTER & EXPERIENCE CENTER.

2.2.4

SPACE DISTRIBUTION & PLANNING:

• The three levels of contemporary, naturally illuminated office space to encourage collaboration ,design studio and creativity. A 13,000-sq.-ft. business center features state-of-the-art confer ence rooms, event spaces and a driving simulator.

• The floors surrounding the courtyard will be lined with floorto-ceiling windows that open up the interior spaces and blend them with the exterior. In the first for any North American Automative Headquarters, the Porsche site design integrates the track with the building, bringing a whole new definition to ‘rush hour’ – namely that of the adrenaline kind

Fig 37. Section © HOK

2.2.5 SPECIAL FEATURES: 2.2.6 CONCLUSION:

• The LEED Gold-certified building’s east-west exposures eliminate glare while the north-south curtain walls maximize natural light and minimize solar heat gain. Previously home to an automobile production facility, the former brownfield site was remediated as part of the development process.

• A green roof links the building to the landscape while providing insulation and reducing storm water runoff and the parking area includes charging stations for Porsche’s elec tric vehicles.

Fig 38. Daylight Analysis © HOK
GLOBAL DESIGN CENTER DANISH PATHAN | 29

2.3

MAHINDRA RESEARCH VALLEY .

The Mahindra Research Valley is a modern workspace. With its workstations and conference Rooms, the architecture of MRV ensures productivity. But there is more to architecture that goes farther than creating a functional space.

Criteria of Selection :

Architecture that understands the ethos of a work culture. As a plan, the MRV project is simple the design workplaces at the center where many disciplines meet, the workshops and test labs are placed at the periphery and linked to this core, expressing the essential pattern of Row of work. for design and prototyping of automobiles, the design centers, test labs and prototype labs have to work in a system. the master plan essentially establishes this system.

COMPANY PHILOSOPHY & ARCHITECTURE:

Location : Chengalpattu, Tamil Nadu

Climate : 21 - 30 Degree Cel

Built-up : 74421 Sqm

Structural Engineer : ---

Architect : Charles Correa

Owner/ Client: Mahindra

Design Occupancy : 4800

• Mahindra Outstands concept of ‘simple , bold and tough’ The same concept can be seen in the cars they manufacture.

• Mahindra optimised the look and view of the products and building wiith the use of nature and involing nature inside the design concept.

COMPANY PHILOSOPHY & ARCHITECTURE:

• The design centre at the core of all activities is organised in three levels. Within a rectilinear grid, 8m x 8m, the levels are staged and staggered to create patterns of double height spaces, circulation moments and working spaces. In a regular grid of circular columns, the flow of internal spaces is independent and liberated from the restrictionsof the walls.

Fig 39.The Design Studio Revolves Around the Central Landscape Spaces

Fig 40.Large voids in walls and slab Collaborating the concept

Fig 38. Location © Google Earth
GLOBAL DESIGN CENTER DANISH PATHAN | 30

MAHINDRA RESEARCH VALLEY .

ZONING: BUILDING MASTERPLAN & ORIENTATIONS :

The building combines Semi Public and Private Spaces.The Research office and the deisgn and modelling studio is place one above another i.e Research offic eoverlooking design studios

• The Labs and and other testing is placed in surrounding of the main design building .

The main Design Office has been placed in the centre of the project - connected by overhead bridges to work shops on three sides; and on the fourth, to the Main Entrance and driveway.

This Design Office has three main levels. Along the periphery of each floor plate are workstations laid out in an organic fractal pattern.

• As one crosses the floor plate and approaches the garden in the centre, this strict geometry dissolves into a loose casual pattern of glass walls - defining meeting rooms, cabins and break-out spaces, all focussing on the central garden.

Fig 41. Concept modelling

42. Master Plan

2.3
RECEPTION+ DISPLAY LOBBY MAHINDRA CARS RESEARCH & DESIGN COMMON CIRCULATION MAHINDRA TRACTORS AND HEAVY VEHICLE DEISGN AND RESEACH FACILITY VIP GUEST LOUGUE BRIDGE CONNECTING CENTRAL PARK RECEPTION+ DISPLAY LOBBY MAHINDRA CARS RESEARCH & DESIGN COMMON CIRCULATION MAHINDRA TRACTORS AND HEAVY VEHICLE DEISGN AND RESEACH FACILITY VIP GUEST LOUGUE BRIDGE CONNECTING CENTRAL PARK Service Access Vehicle Access Engine Development Center NVH SHOP FABRICATION SHOP PROTOSHOP DESIGN STUDIO CENTRAL BUILDING PROTO SHOP STORES FATIGUE & LABS GLOBAL DESIGN CENTER DANISH PATHAN | 31
Fig

SPACE DISTRIBUTION & PLANNING:

• The reception which is at the entrance level is partly double-height and has a spectacular view of the courtyard as well. This space is also used to display some of the Mahindra cars and tractors. The main aim while designing the interiors was to keep the focus on the garden and use the natural light which filtered through the glazing around it, as this mini rain forest is the heart and soul of the project.

• The office building, designed to house 1800 workshops, cabinets and conference rooms, has a large three-story apartment with a central courtyard. The courtyard, designed as a rain forest, is the main source of natural light for the building. Workplaces are planned with a grid of 8m x 8m next to the building. So each table has a custom size 2m x 2m, which is then assembled to form 11, 22 and 33 table collections. These collections also help to divide the locations of the various MRV teams and the special table of the group leader is provided accordingly.

• A path has been created inside the building to access these collections of workspaces located near the outer boundary of the building. Cabinets and conference rooms (enclosed spaces) are housed in close proximity to any outdoor living area. Some of the spaces between closed cupboards have been opened as burglary areas for staff, where they will be able to relax on the sofa and gaze at such a beautiful garden.

2.3 MAHINDRA RESEARCH VALLEY . ENTRANCE LOBBY RECEPTION MAHINDRA TRACTOR RESEARCH OFFICE MAHINDRA CARS RESEARCH OFFICES VIP VISTORS ROOM MAHINDRA CARS RESEARCH OFFICES MAHINDRA ELECTRIC RESEARCH OFFICE AUDITORIUM FATIGUE & LABS DESIGN AND MDELLING DSIPLAY DESIGN AND MDELLING DSIPLAY CAFE CAFE DESIGN AND MDELLING DSIPLAY VIP VISTORS ROOM GLOBAL DESIGN CENTER DANISH PATHAN | 32 Fig 43.Entry Level Plan © Charles Correa Foundation Fig 44.FirstLevel Plan © Charles Correa Foundation

2.3 MAHINDRA RESEARCH VALLEY .

SPACE DISTRIBUTION & PLANNING:

The courtyard is where the construction unfolds. In addition to the building structure, the free interior facade provides a pow erful view of the plants at the core of the built form.

• As the day progresses, changes in light and shade, light and weather are recorded internally as light penetrates deeper areas through this glass skin. the fractal surface of the inner glass walls make a kaleidoscope for a straight and pointed view. Bridges over the area connect the interior spaces.

SPECIAL FEATURES: CONCLUSION:

The sense of light and time is never lost in MRV. As sunlight permeates the court, an ever (hanging and omnipresent sense of time prevails in the building. Many small niches and hidden spaces allow getaways and retreats. Ihe experience in the build ing changes with time and season.

As a system of sun breakers filter direct glare, many intricate details interact with the built form a strip of green, vertical glass signage systems, full height glass openings, and ellipsoidal sky lights.

Fig 46 double height and split enables the 8 m x 8 m grid © Charles Correa Foundation

Fig 47 Glass wall brings the light inside building © Charles Correa Foundation

The design of NW/ aims to Wing the complete workflow of automobile design in one cohesive campus. With an eye for every detail, the experience within is conducive to an efficient and productive culture.

Fig 45. Section © Charles Correa Foundation
RECEPTION DISPLAY AREA CENTRAL LANDSCAPE COMMON PASSAGE COMMON PASSAGE COMMON PASSAGE BRIDGE
GLOBAL DESIGN CENTER DANISH PATHAN | 33

2.4 AUTOMOTIVE RESEARCH ASSOCIATION OF INDIA.

• Automotive Research Association of India (ARAI), established in 1966, is the leading automotive R&D organization of the country set up by the Automotive Industry with the Government of India. ARAI is an autonomous body affiliated to the Ministry of Heavy Industries, Criteria Of Selection :

• ARAI Equips the state-of-the-art Laboratories of ARAI are well equipped with the most advanced facilities in the areas of Emission Evaluation, Noise Vibration and Harshness, Powertrain Engi neering, Computer-aided engineering, E Mobility-Centre of Excellence, Environmental Research Laboratory, Virtual Calibration Centre, Futuristic Adaptive Smart Techniques (FAST) Laboratory are some of the recent additions to ARAI’s comprehensive capabilities.

COMPANY PHILOSOPHY & ARCHITECTURE:

Fig 48 Location © Google

Location : Kandivali, Mumbai

Climate : 18 - 35 Degree Cel

Built-up : 2333Sqm

Structural Engineer : ----

Architect : SMJ Architects

Owner/ Client: Mahindra

Design Occupancy : 75

• Mahindra Outstands concept of ‘simple , bold and tough’ The same concept can be seen in the cars they manufacture.

• Mahindra optimised the look and view of the products and building wiith the use of nature and involing nature inside the design concept.

COMPANY PHILOSOPHY & ARCHITECTURE:

• The studio would be the designer’s domain, holding special status and pride of place in the company, and frequented by the company’s top management as well as by their international collaborators. The brief described the need for the studio to have an ‘overwhelming sense of design’, an ‘emotive’ quality that could ‘energize and inspire thoughts’, ‘evolve’ with time and feel ‘true to its origins.

Fig 49 Concept © Google

Fig 50.True to its origin interior & exterior © SMJ

GLOBAL DESIGN CENTER DANISH PATHAN | 34

RESEARCH ASSOCIATION OF INDIA

ZONING:

• The access to the site is through a 30m wide road, which runs through a slum area located on the slope and then through the green patches of the hilly region.

• The feasibility of the site to the core Pune area and even to the transport hubs provides abundance job opportuni ties. The well connectivity to the highways and airport provides steady flow of raw materials, finished goods and testing vehicles.

PLAN OF MOTOR TESTING

EMC Testing Requires Services as control room and control system to maintain the efficiency in testing Battery testing
BUILDING MASTERPLAN & ORIENTATIONS : 2.4 AUTOMOTIVE
BLOCK A : Administration BLOCK B :Automotive Electronic Labs Chassis Dynamic Test Lab BLOCK C :Prototype Devevelopment Noise & Harness lab BLOCK D : Amenities , Canteen and Auditorium BLOCK E : Safety and homogenous Lab BLOCK F : Structure dynamimc Fatigue Test Lab Service Access Vehicle Access
lab Acceleration test GLOBAL DESIGN CENTER DANISH PATHAN | 35

2.5

AUTOMOBILE DESIGN STUDIO -MAHINDRA.

The site identified for the design studio was within their 64 acre M&M factory campus in Kandi vili, with its low-lying sheds and lush greenery - an oasis, reminiscent of Mumbai of the bygone decades, amidst the concrete jungle surrounding it.

• It is perhaps the last of industrial campuses that occupied land on the highway of what was previously the outskirts of a fast growing city.

Criteria Of Selection :

• The site consisted of 5 existing sheds, totally 25,000 square-feet in size, nestled amongst other similar looking contiguous sheds.

COMPANY PHILOSOPHY & ARCHITECTURE:

Location : Kothrud, Pune

Climate : 13 - 35 Degree Cel

Built-up : 35000 Sqm

Structural Engineer : ---Architect : ----

Owner/ Client: ARAI

Design Occupancy : 3500

SITE & CLIMATE STUDY:

• ARAI is an autonomous body affiliated to the Ministry of Heavy Industries, Government of India.

• The Department of Scientific and Industrial Research, Ministry of Science and Technology, Government of India, has recognized ARAI as a Scientific and Industrial Research Organisation (SIRO)

The 263 acres site which was initially under the forest department was bought by the Government of India for establishing this institution. The site has gradual slope towards the northern side. To the north is Vetal hill, to the east is a comparatively flat land, developed for future expansion, to the south is a steep gorge followed by a slum area and to the west is a barren area with moderate vegetation

Fig 52. Temperature © climatic

Fig 52. Location © Google Rainfall

GLOBAL DESIGN CENTER DANISH PATHAN | 36

2.5 AUTOMOBILE DESIGN STUDIO -MAHINDRA.

ZONING & PLANNING:

• The main entrance is from the southwest of the plot. Upon entering, there is a huge 9m wall made of weathered mild steel with a grand staircase that leads to the mezzanine floor of the structure. On the left side of the entrance on the ground floor is the display/ review area where the designs are displayed for the officials and clients.

• A winding concrete staircase with a metal handrail is placed in one corner of the review area, rising to a small viewing area. The review area has 3 working spaces. The longest side to the north is to use the unburned northern sunlight. The two steps of the stairs serve as a link between the structure. The core of the project, Design Studio, is a mezzanine floor that cuts through the entire building on the north side, receives a lot of light and serves as a viewing point.

• On the north side of the building are two large doors, one for the direct entry to the design studio and another for load ing and unloading of products. A long linear narrow bal cony facing north is accessed through a series of wooden doors provisioned in the mezzanine. The north has major glass provisions when compared to the south to cut down the natural heat.

Fig 53. Ground Floor Plan © SMJ Fig 54. ,Mezzanine Plan © SMJ
GLOBAL DESIGN CENTER DANISH PATHAN | 37

2.5 AUTOMOBILE DESIGN STUDIO -MAHINDRA.

SPACE DISTRIBUTION &

• Automobile Design Studio is an impeccable marriage of origin and modern, contextual and contemporary, old and new. The structure’s response to the culture and context of the place is inextricable from the overall serendipity of the structure. This structure would be one of the references in the present and fu ture for any budding architect to look out to on how architects can design not only aesthetically pleasing structures but also meaningful structures in response to the locality and needs.

SPECIAL FEATURES: CONCLUSION:

This Automobile Design Studio is an impeccable marriage of origin and modern, contextual and contemporary, old and new. The structure’s response to the culture and context of the place is inextricable from the overall serendipity of the structure.

This structure would be one of the references in the present and future for any budding architect to look out to on how architects can design not only aesthetically pleasing structures but also meaningful structures in response to the locality and needs.

This project is one of the noteworthy projects of Ar. Shimul Javeri Kadri, as it started giving the limelight she deserves.

Fig. 56 Marriage of old and new structure © SMJ Fig 57. Interior lighting in display hall © SMJ Fig 55. Section © SMJ
PLANNING:
GLOBAL DESIGN CENTER DANISH PATHAN | 38

CHAPTER 3: COMPARITATIVE ANALYSIS

GLOBAL DESIGN CENTER DANISH PATHAN | 39

3.1

COMPARITATIVE ANALYSIS

ASPECT

NATIONAL AUTOMOTIVE INNOVATION CENTER PORCHE HEADQUARTER AND EXPERIENCE CENTER

MAHINDRA RESEARCH VALLEY

AUTOMOTIVE RESEARCH ASSOCIATION OF INDIA (ARAI) INFERENCE

LOCATION & CONTEXT

COMPANY PHILOSOPHY

CLIMATE

Max :22 Degree C Min : 1 Degree C

Max :33 DegreeC Min 5 Degree C

Mahindra Outstands concept of ‘simple, bold and tough’ The same concept can be seen in the cars they manufacture.

Max :39 Degree C Min : 17 Degree C

Max : 31 Degree C Min : 12 Degree C

Meet revolutionary Design The Design Which Changes the Concept of Normal with connect ing different peoples with it

R&D Facilties Demand modernate climate not to cold or not to hot as some of the labs requires tem perate control system for testing. Climate Like : Pune , Banglore

SITE AREA & TYPOLOGY

Site Area: 23696 Sqm

Ground: 12502 Sqm Built-up : 33000 Sqm

Site Area: 105218 Sqm Ground: 5827 Sqm Built-up : 24160 Sqm

Site Area: 37,597 Sqm Ground: 5827 Sqm Built-up : 69,471 Sqm

Site Area: 48546 Sqm Built-up : 35,050 Sqm

Buildup : 13,000 Sqm Site Area: 25,000 Sqm

Tentetive Based on Brief Develop ment and area distributions

Location: Coventry ,United Kingdom The Site is Situated inside a education institutional campus . Topography : Flat Surface Location: Atlanta, USA The Site is Situated near Airport in Urban Context Topography Flat Surface Location: Chengalpattu, Tamil Nadu The Site is Situated in industrial Zone Topography :Contour Location Pune Maharashtra The Site is Situated on Mountain Palteau of Arai Hill in Pune Topography : Plateau Contour The location of the site can be urban and even inside institute or near the labs if any . The Most important factor for R&D Facilities is that it should be situated in a location in which the production facilties is well developed and has good con nectivity . Tata Motors & GLR has used ‘IMPACT’ Design Philosophy which stood for immediate impact at first sight The Porsche museum is designed as a dynamically formed, monolithic structure, seemingly detached from the entry level’s folded topography. GOVERNMENT ASSOCIATE BODY ---------
ZONING BLOCK A Administration BLOCK B :Automotive Electronic Labs Chassis Dynamic Test Lab BLOCK C :Prototype Devevelopment Noise & Harness lab BLOCK D Amenities Canteen and Auditorium BLOCK E Safety and homogenous Lab BLOCK F Structure dynamimc Fatigue Test Lab Vertical Circulation Creates more chaotic and horizonal placement of buildings will help in handling service well USER GROUP Footfall 800 Employee 260 Visitors Footfall 680 Employee 350 Visitors Footfall : 1000Employee 200 Visitors Footfall 800 Employees 150 Visitors PARKING DETAILS 375 Cars Adjacent Parking Building 650 Cars 150 Surface Parking 800 Cars Basement & Podium 150 Cars 600 Bikes Surface Parking Based on Case studies the Base ment parkings systems occupies more vehicles Employee parking can given in basment and vistors parking can be arrange on surface parking 23%58% 10% 9% Public Private Semi Public Semi Private 40% 25% 11% 24%Public Private Semi Public Semi Private 39% 15%17% 29% Public Private Semi Public Semi Private GLOBAL DESIGN CENTER DANISH PATHAN | 40

COMPARITATIVE ANALYSIS

ASPECT

NATIONAL AUTOMOTIVE INNOVATION CENTER PORCHE HEADQUARTER AND EXPERIENCE CENTER

Floor

SPACE DISTRIBUTION

The Structure is ‘L’ with International Production Center On Opposite Side.

ORINETATION

CIRCULATION

STRUCTURAL SYSTEM

SUSTAINABILITY

Long Span Lattice Roof Structure

The Center is Placed with the visual Connect to testing track

MAHINDRA RESEARCH VALLEY

AUTOMOTIVE RESEARCH ASSOCIATION OF INDIA (ARAI) INFERENCE

BLOCK A Administration

BLOCK B :Automotive Electronic Labs Chassis Dynamic Test Labs BLOCK C :Prototype Development Noise & Harness lab

Test Laboraties Can Be placed on Ground FLoor as it reuires more services and even vehicles entering the building

Whiel Design studios can be places in upper floor as it re quires more privacy and god natural light

1) The building promotes wellbeing through the generous daylighting and with its timber roof visible from nearly every space, while wood is touched through hand and leaning rails to guide movement

2) Low volatile organic compound finishes were specified for all internal surfaces, floor coverings, and furniture.

Long Span – Flat truss

1.Green solutions, such as natural ventilation, on-site energy generation, planted roofs and gray-water systems will contribute to the Firm’s pursuit of a mini mum of LEED Silver for the project..

The entrance is place facing North and has central court yard

Most of the labratories are facing north side and the entrance is from eastern side with parking sperated for visitors and employees

Building orientation plays an important part in planing of re search center as some spaces requires more light and some spaces requires more artifical lighting.

Long Span –Slope truss supported by Y Column’s

1.Richly landscaped in granite and tropical plants, this space designed by landscape architect Mohammad Shaheer, becomes a refuge. It opens the architecture of MRV to sun, wind and rain. the non formal garden will eventually become a forest like dense space at the heart of the built form a secret garden

The Circulation for Vistors is allowed only till Admin block . While Employees are allowed in specific work related re search lab with each blocks divided into labs and control rooms

Admin block : RCC Structure Laboraties : North Ligth Long span Truss

Two main entry one Entry for Visitor And Employee entry and Material Drop Off Area , Vertical & Hor izontal Circulation , Pedestrian Circulation ,

Long Span Structure is more situable

Sustainability factor of the building becomes important in different cli matic conditions In Hot Climate Like Tamil Nadu incorporating landscape inside workspace can make the temperature inside the building more pleasant.whereas in UK, the architect more focus on wood as it keep build ing more warmer.

Reception ,Exhibit ,Engine Testing Cells, Stu dent Practice, Engineer Hall, Development Lab, Paint booth , Research Cen ter with structure height G GROUND FLOOR Staff Parking ,Technical Training ,Test Fa cilities Courtyard ,Workshops GROUND FLOOR Design Studios ,Dining area, Office ,laboratory, Research Offices Audi torium VIP Visitor
3.1
+ 3
GLOBAL DESIGN CENTER DANISH PATHAN | 41

3.1

COMPARITATIVE ANALYSIS

ASPECT

MATERIAL

NATIONAL AUTOMOTIVE INNOVATION CENTER

PORCHE HEADQUARTER AND EXPERIENCE CENTER

MAHINDRA RESEARCH VALLEY

AUTOMOTIVE RESEARCH ASSOCIATION OF INDIA (ARAI) INFERENCE

A veil that gives shifting patterns of light and shade, and a sense of depth

NATURAL LIGHT

ARTICIAL LIGHT

ARCHITECTURAL FEATURE

The Enginnering Hall & Display Area Requires sufficent lux of Artificial Light for Visibity

The contemporary, naturally illuminated office space encourages creativity among Porsche staff.

The courtyard is a refuge, a possible retreat whose constantly changing views give pleasant distraction from the austere spaces within..

Open to Roof Atrium with Natural Light entering building are good for workspaces

Massive roof lights in the center, bringing day light deep into the plan of the building.- ETFE Roof

Having the correct lighting addresses both of these issues. In order to create a warm, welcoming atmosphere, one of the most important considerations is the colour temperature of the lighting.

The Massive Long Cantilever Steel Roof act as shade for café and restaurant below And also free ups the view of track because of its double height

The Mahindra Research Valley is Perfect ex ample of the balnce use of Articial and Natural Light at Work space. The Design Studios has Perfect natural lighting where as the model ling and Clay Model Studio has good mix or Artificial and Natural light

Lanscape Architect imagined the central space as a mass of green with the appear ance of a lush tropical forest, the foliage dense enough to evoke a sense of mystery and something unexpected within its ver dant recesses (just like a real forest)..

Few of the testing facilities requires control environment and Artificial Lighting

A clear and well-lit lab can help minimise the risk of mistakes be ing made during practical experi ments. Making it easier to clearly read and follow instructions and complete every step of the re search – it is more likely that ac curate and repeatable results will be reached when experimenting in a well-lit and clear lab.

Inclusion of Architectural feature improve the overall appearance of architectural structure . It help the structure to achieve the sus tainability is applied appropriately

Timber For Roof ,CLT panel 12 mm, ACP panels for facade Timber For Roof ,CLT panel 12 mm, ACP panels for facade Steel ,Glass and solar canopies Steel wood and Glass is good choice for long space The Central Court yard between the Admin Blocka And Block B Is the only natural light entering dedicated design spaced for buildings
------------------
GLOBAL DESIGN CENTER DANISH PATHAN | 42

CHAPTER 4: DESIGN DATA

GLOBAL DESIGN CENTER DANISH PATHAN | 43

STANDARDS.

RECEPTION & WAITING AREA :

• By definition, a reception area is designed to receive, be it clients, business partners, prospects or visitors, it is the gate to your office and the reflection of your business.

• The most important factor in any reception desk reception. Welcome desks are essential. They quickly highlight and send a message about the level of service that visitors can expect from your business. It is worth spending extra money to get the perfect design, guaranteed to please and keep their minds relaxed.

• In its original form, the reception area is part of your office which is used to greet all guests and to provide them with a waiting area until they are met by a visitor.

• The size of the reception area you create will be directly proportional to both the type and size of your business. The complexity and associated costs of building a stylish reception area, compared to the base will largely depend on what is happening in the business. All reception areas have the same properties and components:

1. Desk / recipient channe. 2)A comfortable and ergonomically suitable recipient seat. 3)Seats to be used by guests while waiting. 4)A table that will hold books or magazines or give guests a place to pack their bags, purses, or other personal belongings while waiting.

Fig

of recpetion

univerity

Standards

Reception

Fig. 59 Standards areas for reception © Standards

Reception

58. Importance
in connceting spaces( macquarie
©
for
for
4.1
GLOBAL DESIGN CENTER DANISH PATHAN | 44

DESIGN DATA.

CONFERENCE ROOM:

• Staff meetings, customer meetings, training sessions, interviews and other scheduled conferences (video or in person). The conference room is large or medium and may be the room for monthly reviews, board meetings and information sharing for all teams - and yes, you guessed it, conference calls.

• Conference rooms are for conference calls, board meetings, management discussions, and other major decision-making situations They are some of the most elaborate meeting rooms in an office, both in terms of AV gear and furniture.

• Conference facilities should be accessible directly at the door place. Provide smooth parts (which can separate large rooms tables, chairs, presentation media, and store rooms and a pantry for catering (these lower rooms need about Vs of theconference venue). Good noise reduction is important. Conference space requires approximately 2.5 m2 per seat (excluding floor areas).Spacing - 0.3-1.0 m2 per working area.

Fig 60. Space required for conference © Standards for Reception 4.1
Fig. 61 Standards areas for conference © Standards for Reception GLOBAL DESIGN CENTER DANISH PATHAN | 45

4.1 DESIGN DATA.

VEHICLE EXHIBIT:

Fig 62. Various exhibits option for cars © Standards for Office Spaces

The decisive factor in the layout of display rooms is the relationship between the collection and the way it is to be displayed (display concept). There are the following basic types of layout

Open plan -(1)large and visually autonomous items on display, free circulation, function rooms in basement.

Core and satellite rooms --(2) main room for orientation in the museum or the exhibition, side rooms for autonomous displays.

Linear chaining -(3) linear sequences of rooms, controlled circulation, clear orientation, separate entrance and exit.

Labyrinth --(4) free circulation, guided route and direction are variable, entrance and exit can be separate.

Complex --(5): combined groups of rooms with typical features of (1-4) complex organisation of collection and display concept.

• The Exhibit Space for Car inside the experiecne cneter will allow the visiotrs to get the guist of electric vehicle or the first glance of vehicle just like a showroom.

It will give the visitors to experience the look and feel of the car.

GLOBAL DESIGN CENTER DANISH PATHAN | 46

4.1 DESIGN DATA.

VEHICLE EXHIBIT: TURNTABLE

• The car turntable can be used for all kinds of purposes. Show off your latest model at a car show, take a good photo of your car immediately or ask your designers to check out the concept cars.

• 5 ADVANTAGES OF CAR TURNTABLES.

• Helps the Vehicle to turn easility at compact space.

• Stable, sturdy and smooth turning platform.

• Adjustable speed, positioning optional.

• Noiseless and maintenance-free turntable.

• Ease of Installation and Flexible.

Fig 63.Vehicle turning Table ©Turnables Fig 64.Turntable for exhibition ©Turnables
GLOBAL DESIGN CENTER DANISH PATHAN | 47

4.1 DESIGN DATA.

VEHICLE EXHIBIT: LIGHTING & TEMPERATURE

• LIGHTING

There should be no direct daylight falling on museum objects as this could cause damage. Therefore display rooms should be provided with flexible lighting systems: no permanently built-in lights, no fixed wall and ceiling lights.

• Guidelines for lighting:

• Very sensitive display objects 50-80 lx

• Sensitive display objects: 100-150ix

• Less sensitive display objects: 150-300 lx

• UV radiation must not be exceed 25 W/m2

It must be possible to completely darken all display rooms. In public rooms where no items are displayed, e.g. entrance area, cafe, library, a greater amount of daylight is desirable.

The lighting calculations for museums are highly theoretical: the quality of lighting is decisive. American tests can be more informative.

• TEMPERATURE:

The ideal temperatures in the store and the display areas are 15-18°C in the winter and 20-22°C in the summer. Except as short peaks, in the summer 26°C should not be exceeded. Stores should not therefore be located in uninsulated attics, for example.

GLOBAL DESIGN CENTER DANISH PATHAN | 48 Fig 65 Lighting © Times Saves Standards

4.1 DESIGN DATA.

DRIVEIN SIMULATOR

• Driving simulation offers great benefits for systems development that help future drivers as well as automated operations, in partic ular. Road conditions involving accidents or irregularities in real driving are unlikely to be assessed on the road. In the simulator, they can be duplicated safely and with as much detail as many times as needed. And the individual characteristics of the situation can be varied and integrated with each other as it pleases.

• The conclusion is that complex systems can be tested under different, realistic situations before the start of a road test.

• Driving simulation offers great benefits for systems development that help future drivers as well as automated operations, in partic ular. Road conditions involving accidents or irregularities in real driving are unlikely to be assessed on the road. In the simulator, they can be duplicated safely and with as much detail as many times as needed. And the individual characteristics of the situation can be varied and integrated with each other as it pleases.

Fig. 66. Top view of the driving simulator including tables, monitors, seat, gear shift, and steering wheel © Times Saves Standards
GLOBAL DESIGN CENTER DANISH PATHAN | 49

4.1 DESIGN DATA.

CONTROL ROOM & DATA ROOM

Fig. 67. Data Room plan © data control room

The control room is the most important in your area - this is where daily decision-making affects business objectives and returns on plant assets. The design of the integrated, individual and ergonomic control room makes operators an integral part of the process. Whether you need to redesign and fully customize your current control room, combine functions or build a new control room we have the solution ready for you. Even amazingly small spaces are fully utilized.

A well-designed control room solution, whether new or upgraded, total or partial, your operator’s assurance is secure, alert, more alert, faster and more responsive and more productive.

Control room design benefits: Improve operator alertness , Drive efficiency, Cut total costs ,Promote collaboration and teamwork

GLOBAL DESIGN CENTER DANISH PATHAN | 50

4.1 DESIGN DATA.

ENGINEERING HALL - PROTOTYPE ASSEMBLY

A prototype is an early sample or model built to test a concept or process or to act as a thing to be replicated or learned from. A prototype is often used as part of the product design process to allow engineers and designers the ability to explore design alternatives, test theories and confirm performance prior to starting production of a new product.

User Experience Prototype Model invites active human interaction and is primarily used to support user focused research. While intentionally not addressing possible aesthetic treatments, this type of model does more accurately represent the overall size, proportions, interfaces, and articulation of a promising concept.

This type of model allows early assessment of how a po tential user interacts with various elements, motions, and actions of a concept which define the initial use scenar io and overall user experience. As these models are fully intended to be used and handled, more robust construc tion is key. Materials typically include plywood, REN shape, RP processes and CNC machined components.

Construction of user experience models is typically driv en by preliminary CAID/CAD which may be construct ed from scratch or with methods such as industrial CT scanning.

Fig. 68 Engineer hall with its assembly car hoist ©Car Garage DESIGN CENTER Fig. 67. Engineering hall © National Automative Innovation Center
GLOBAL
DANISH PATHAN | 51

4.1 DESIGN DATA.

ENGINEERING HALL - PROTOTYPE ASSEMBLY(STANDARDS)

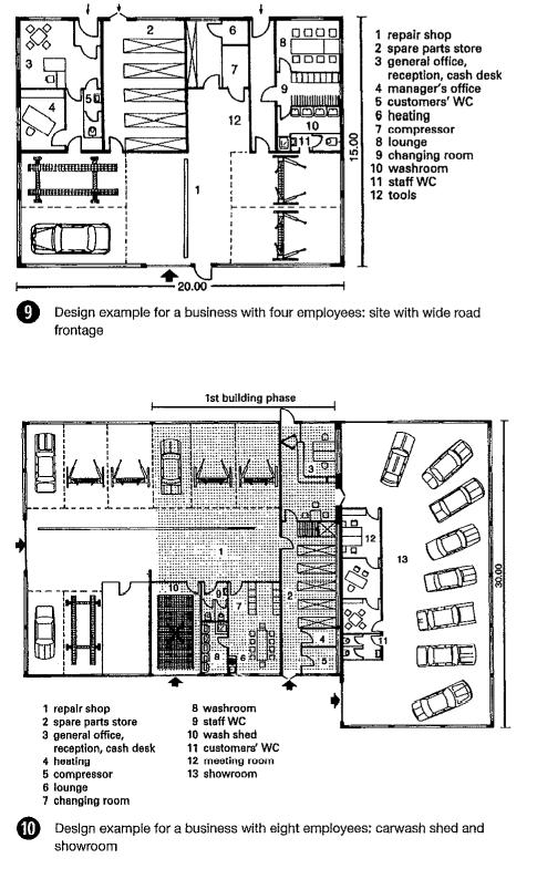
Basic rule: site % built, % unbuilt. Take possible later extension into account. For larger businesses, the average is 200 m2 per employee for workshop operation. In addition to this, rooms are required for sales, office, customer waiting room and social rooms

etc. The building will be mostly steel construction, single-storey. Freespanning shed construction without obstructive columns is preferred.

Possible future extension should be taken into account in the spacing of the bays. The workshop floor should be sealed against penetration of oil and grease, and grease separators installed in the drainage system. Provide extract duct for exhaust gases. Design automatically opening doors with air curtain. Installation ducts for electricity, compressed air, waste oil and water are recommended. Check utility supply connections. Carwash equipment has high water consumption.

Fig 69. Engineer hall with its assembly car hoist © time saver standards
GLOBAL DESIGN CENTER DANISH PATHAN | 52

4.1 DESIGN DATA.

ENGINEERING HALL - PROTOTYPE ASSEMBLY(STANDARDS)

Paint booths come in a wide range of sizes to accommodate every vehicle type and varying shop productivity levels. You can purchase/ build paint booths that are specifically designed for painting motorcycles or smaller vehicles or for larger projects up to semi size, depending on your shop needs. Dimensions range from motorcycle paint booths at 8’ H x 10’D x 12’8” W to booths 45 feet in length that will accommodate a semi. The functioning of the paint booth takes place in two stages painting mode and baking mode painting mode the damper positions are kept like this to allow the air from outside through pre-filters.

Fig 70.Isometric of standard paint shop for cars ©paintshops Fig. 71 Paint shop ©paintshops
GLOBAL DESIGN CENTER DANISH PATHAN | 53

4.1 DESIGN DATA.

RESEARCH OFFICE / WORKSPACE

The so-called general office takes on a variety of forms and con figurations. In its simplest variation it may be nothing more Lex than several standard desks we returns located within a room or space. In its more sophisticated and ergonomically designed form, the general-office may be based_ on an open planning or office landscaping concept, involving a system of workstations. The workstations include desk surfaces, files, acoustic partitions, and a host of other optional components to suit the nature of the particular work tasks involved, the system are extremely flexible, allowing the workstations to be configured in a variety of shapes.

Group rooms (smaller open-plan) are suitable for work groups with constant information exchange. This form of office was an attempt to install room layouts with more scope for individual decisions Changes at the workplace, , via the size of the workplace surroundings (max. 7.5 m to a window), and thus improve the working conditions of an open-plan arrangement (light, air, individuality), which were found to be inadequate with the increasing demands on office work. It is possible to do without full air conditioning in favour of back-up ventilation services, in addition to opening windows and using radiators.

Fig . 71 Relationship between duties and room type ©time savers standards Fig. 72 Floor layout for group office & research space ©time savers standards
GLOBAL DESIGN CENTER DANISH PATHAN | 54

4.1 DESIGN DATA.

RESEARCH OFFICE / WORKSPACE

Fig 72. Floor layout for group office & research space ©time savers standards

fig 73.Relationship between duties and room type ©time savers standards

The table and chair must be adjustable to allow proper positioning for users of different heights. Two ergonomic systems are equally acceptable. A: Type 1 workstation Adjustable-height table 60-78cm Adjustable-height chair 42-54cm B: Types 2 and 3 workstations Fixed-height table 72cm Adjustable-height chair 42-50 cm Adjustable foot rest 0-15cm Sufficient leg clearance should be provided -4 O. In work areas, all items of equipment close to the user (on the desk top, etc.) should have a 20-25% reflection factor. Illumination should be between 300 and 500Lx, and glare from lights must be limited (e.g. by providing specular louvered ceilings above VDU stations). Arrange lighting strips parallel to the window. Matt surfaces in the room should have the recommended reflection factors (ceiling approx. 70%, walls approx. 50%, movable partitions approx. 20-50%). The worker’s line of sight to the monitor should be parallel to the windows and to any lighting tubes; the monitor should be between these if possible. It is necessary to install blinds to control daylight at visual display workstations. Follow local recommendations for environmental control and noise protection.

GLOBAL DESIGN CENTER DANISH PATHAN | 55

4.1 DESIGN DATA.

RESEARCH OFFICE / WORKSPACE

fig 74. drafting table standards ©time savers standards

Basic equipment Drawing table of dimensions suitable for AO size (92x 127cm); fixed or adjustable board . Drawings cabinet for storing drawings flat, of same height as drawing table, surface can also be used to put things on. A small cupboard on castors for drawing materi als, possibly with filing cabinet, is desirable.Adjustable-height swivel chair on castors. Drawing tables, upright board, adjustable height or usable as flat board when folded down. Further accessories: table top for putting things on, drawing cabinets for hanging drawings or storing flat, suitable for AO at least ,. Each workplace should have a locker.

Drawing studios Each space requires 3.5-4.5 Sqm, depending on the size of the drawing table. Natural lighting is preferable and so a north-facing studio is best to receive even daylight. For right-handed people, it is best if illumination comes from the left. Artificial light should be at 5001x, with 10001x (from mounted drawing lamps or linear lamps hung in variable positions above the long axis of the table) at the drawing surface. Rooms for life drawing, painting and modelling: Accommodated if possible in the attic facing north with large windows (1/3-1/4 of floor space) and, if necessary, additional top lights.

GLOBAL DESIGN CENTER DANISH PATHAN | 56

4.1 DESIGN DATA.

CLAY MODELLING STUDIO

Basic equipment : Drawing table of dimensions suitable for AO size (92x 127cm); fixed or adjustable board . Drawings cabinet for storing drawings flat, of same height as drawing table, surface can also be used to put things on. A small cupboard on castors for drawing materials, possibly with filing cabinet, is desirable.Adjustable-height swivel chair on castors. Drawing tables, upright board, adjustable height or usable as flat board when folded down. Further accessories: table top for putting things on, drawing cabinets for hanging draw ings or storing flat, suitable for AO at least ,. Each workplace should have a locker.

Drawing studios :Each space requires 3.5-4.5 Sqm, depending on the size of the drawing table. Natural lighting is preferable and so a north-facing studio is best to receive even daylight. For right-handed people, it is best if illumination comes from the left. Artificial light should be at 5001x, with 10001x (from mounted drawing lamps or linear lamps hung in variable positions above the long axis of the table) at the drawing surface. Rooms for life drawing, painting and modelling: Accommodated if possible in the attic facing north with large windows (1/3-1/4 of floor space) and, if necessary, additional top lights.

fig 75. Turn Table Standards ©Natioal Automotive Innovation Center
GLOBAL DESIGN CENTER DANISH PATHAN | 57

4.1 DESIGN DATA.

TESTING TRACKS :

External Noise Test Track :

Driving features to improve the car’s external noise are highly anticipated by customers and others the need to reduce traffic noise. The external sound of the car is the only non-essential quality in the car owner, but equally affects pedestrians and residents. To force low levels of sound pressure (SPLs), they are strong regulations are approved by management.

In order to meet these needs during vehicle development, detailed information about prominent audio sources and their contribution to the external sound of the vehicle is essential. To show the external noise of the car, the car ratings in different driving conditions e.g. inactive, fixed speed or run-up can be used. Examination of car audio accreditation of ISO 362-1: 2007 in general used to measure the noise emitted by a passing speeding vehicle. As the weather conditions like rain, wind or ambient noise can greatly affect the measurement results, it is better to make these measurements in the house. To transfer the external vehicle specifications specified by ISO 362-1: 2007 internally, built indoor pass-through sound noise or simulated passing modes.

fig 78. ExternalNoise track standards dimension ©NATRAX

GLOBAL DESIGN CENTER DANISH PATHAN | 58

4.1 DESIGN DATA.

TESTING TRACKS :

Steering Pad Test :

Test Hill Track :

CENTER

fig 78. Steering Pad Test ©NATRAX fig 80. Test Hill Track ©NATRAX
GLOBAL DESIGN
DANISH PATHAN | 59

4.1 DESIGN DATA.

TESTING TRACKS :

Oval Track:

Surface Track:

Break
GLOBAL DESIGN CENTER DANISH PATHAN | 60 fig 81. Oval Track ©NATRAX fig 82. Break Surface ©NATRAX

CHAPTER 5: AREA PROGRAM AND ANALYSIS

GLOBAL DESIGN CENTER DANISH PATHAN | 61

CONNECTING AREA ANALYSIS

PUBLIC SPACE

PRIVATE SPACE

5.1 AREA PROGRAM AND ANALYSIS. CUSTOMER EXPERIENCE ZONE ADMINISTRATION FRONT OFFICE PROTOTYPE DEVELOPMENT DESIGN STUDIO TESTING FACILITY VR VEHICLE VEHICLE SIMULTOR WAITING LOUNGE
GLOBAL DESIGN CENTER DANISH PATHAN | 62

5.1 AREA PROGRAM AND ANALYSIS.

OVERVIEW OF PROJECT & DESIGN PROGRAM:

Research and development center is a life line for any automobile industry. It focuses on wide variety of important trends and changes related to automobile industry and so ciety at international level. It is involved in the research of significant issues that relates to the future direction of automobile sector. It studies, researches and analysis all the automobiles spread globally.

DISTRIBUTION

The final conclusion achieved through the study leads to the development of a vehicular design that surpasses the rest. Automobile industry is volatile. Nothing is permanent as the designs and the technology keeps changing according to the present day need of the customers and the present condition of the natural resources and environmental change.

The research team is on a constant run for experimenting new ideas that are compatible and innovative in every way. The team needs to have timely update of the global scenario in this sector. This is required to match up with others or be a step ahead of them to sustain in this industry.

PIE DIAGRAM
33.06% (I) TOTAL BUILDUP : 12563 SQM 3.99%(B) 5.96 % (C) 10.30% (D) 17.33% (E)9.32% (F) 9.93% (G) AREA
GLOBAL DESIGN CENTER DANISH PATHAN | 63

AREA PROGRAM AND ANALYSIS.

5.1
GLOBAL DESIGN CENTER DANISH PATHAN | 64

AREA PROGRAM AND ANALYSIS.

5.1
GLOBAL DESIGN CENTER DANISH PATHAN | 65

AREA PROGRAM AND ANALYSIS.

5.1
GLOBAL DESIGN CENTER DANISH PATHAN | 66

AREA PROGRAM AND ANALYSIS.

5.1
GLOBAL DESIGN CENTER DANISH PATHAN | 67

CHAPTER 6: PRE-DESIGN

GLOBAL DESIGN CENTER DANISH PATHAN | 68

PREDESIGN.

MATRICES

A) ENTRANCE/ COMMAN SEMI PUBLIC

C) ADMINISTRATION

B) COSTUMER EXPERIENCE ZONE

6.1
GLOBAL DESIGN CENTER DANISH PATHAN | 69

6.1 PREDESIGN-MATRICES.

A) ENTRANCE/ COMMAN SEMI PUBLIC

B) COSTUMER EXPERIENCE ZONE

GLOBAL DESIGN CENTER DANISH PATHAN | 70

CHAPTER 7: DESIGN APPROACH

GLOBAL DESIGN CENTER DANISH PATHAN | 71

7.1 PHILOSOPHY :

The Design Approach is based from the case-study and comparitative analysis is done in earlier chapters . Base on that study , a cer tain hypothesis have been made in order to guide the topic forward toward the design process.

Tentitive Plan Of Action :

1) Philosophy of Project.

2) Site Planning & Zoning

3)Master Plan Approach.

4)Response to user group.

5)Massing Study and Volumatric analysis.

6)Interior Spaces

7)Inputs From Case-Study

8) Sustainability

9)Parking

10) Outdoor spaces and Landscape

PHILOSOPHY:

The Topic R&D Center for Ola Eelctric is a very internse and vast topic, the R&D Center is the Core of any industry now-a-days. Along with research & development center the campus also fulfilled the dream of having a expeience zone & various types of testing tracks.

The design approach can be guided by the need of the R&D Center Campus and how can such complex facility can be contributed to the industry of automobile (cars) and finally at the national level to the country.

The Design philosophy and approach has to just focus on creating spaces which will promotemore and more research. Each arrangement and composition should be blended into a nice canvas that gives the output as invention

‘2D’ Of Design and Development Multi benefits of 2D
GLOBAL DESIGN CENTER DANISH PATHAN | 72
2D =

7.1 DESIGN PHILOSOPHY :

A Research and Development Center in the automobile sector has a major role to play it carries the burden of incorporating the design and development of the product.

Design : Designing plays an important role in development of any product because it give different shape & form to the product and Good Working Atmosphere is Require for the Designer to achieve the Perfection in design.

Development : Any design is incomplete without the actual development of that product and workability of that design. Design will be only a piece of paper if it not executed developed further .

The ‘2D’ Factors in Any Research Center is most important part of that Research Facilities to work and innovate further.

Client’s Need :

Ola Electric is one of the emerging Indian Automobile Brand which has already clarified its Revolution in Electric Vehicle Industry .The Companies aim is to become the Worlds Top EV Manufacturing brand and this goal can be only Fulfilled by Developing the Best in Class R&D Facilty which will help the company to fulfilled it Dream of marking India as EV adopted country.

LINKAGE AT

Exposure

Hub

Approach

EXPERIENCE

GLOBAL DESIGN CENTER DANISH PATHAN | 73
INNOVATION TECHNOLOGY DESIGN & DEVELOPMENT
MICRO LEVEL MAIN FACTORS FOR R&D CENTER Innovation
Global
Sustainable

7.2.1 SITE PLANNING:

R&D Parks need site which can be falt or gentle slope level not more than 1 meter .The Site Selection Criteria depens on the fact that industrial area is near the site , as well as Information technology Industry should be linked with the site to the R&D Center.

Apart From this the travelling distance for the employee’s is very important.The Site should be located close to the city for ease of travel.

FACTORS IT TO APPROCH INDUSTRY
GLOBAL DESIGN CENTER DANISH PATHAN | 74
IMPRTANT FOR SITE LOCATION
TECHNOLOGY EASY
AUTOMOBILE
TESTING TRACK FACILITY EXPERIENCE CENTER GRADIENT TEST TRACK FATIGUE TEST TRACK CONCRETE TEST TRACK DYNAMIC RADIUS TRACK DESIGN STUDIO TEST LAB PROTOTYPE DEVELEOPMENT R&D FACILITY FACILITY 12 M 30M 5 M +1 M GENTLE SLOPE SITE

ZONING :

ENOZECNEIREPXE DESIGNSTUDIO

YROTAROBALD&R

SBALEPYTOTORP

PUBLIC ZONE

The Most Secured zone is the Research & Development Laboratory. with Prototype development lab and Design Studio are the Semi Private Spaces where the Company Vis itors are allowed.

The Leisure Space between the private and semi private space playes important role is connecting all the spaces at one complex.

R&DLABORATORY

EXPERIENCEZONE

PRIVATE ZONE

Experience Zone is all Public Zone with Public Interection spaces , exhibit spaces for product,Corperate Auditorium for Product lauch , Vehicle Experience Zones.

Vertical Zoning plays in Important role in Separating public space from private space.

The Level Difference between the Public zone and Private Zone makes it possible in vertical zoning of section.

The Entrance to the Private zone is one level up which sep arates the Public and Private Zone. Research Facility should be well connected to all four major activities like Prototype development design studio and Admin Block . The Leisure Space in Center makes it possible and less complicate the circulation

ZONING OF SPACES BASED ON LEVEL OF PRIVACY PRIVATE ZONE SEMI PRIVATE ZONE SEMI PRIVATE ZONEPUBLIC ZONE SECTIONAL ZONING 7.2.2 STORY BOARD SHOWING RELATIONSHIP OF SPACES
GLOBAL DESIGN CENTER DANISH PATHAN | 75

MASTERPLAN APPROACH

STAGE 1

The Master Planning Need to be done keeping in mind the following :

Security- The R&D Development Center Require High level of security and most of the spaces should have good buffer zone.

Public Spaces- Public space should be kept well apart from private activities as the Research center requires good privacy

2

7.3
GLOBAL DESIGN CENTER DANISH PATHAN | 76 BUFFER ZONE TESTING TRACK FACILITY DESIGN STUDIO PROTOTYPE LAB EXPERIECE CENTER LABORATIES
PROTOTYPE LAB PROTOTYPE LAB DESIGN STUDIO EXPERIECE CENTER EXPERIECE CENTER LABORATIES LABORATIES TESTING TRACK FACILITY
STAGE
STAGE 3

7.4 RESPONSE TO USER GROUP :

PRIVATE ZONESEMI PRIVATE ZONEPUBLIC ZONE

Pschycology of Researcher Through Design :

The Design, Styling Studio & Engineering is the space which uses maximum spaces and require double height space for the stack effect and heat to get release through top of roof.

The Similar design style was used in Case-Study to Reduce the heat generated in Building.

The Planning Strategy used for Design Studio is to Keep the Workspace on mezzanine level so that there can be direct interaction between the Design Studio and Workspace.

The Same Strategy is used for the Library and Research of fice as both of the space depend on each other for smooth conduct of Circulation.

The Cutouts are provide in slab for providing proper ventilation to the lower floors.

CUTOUTS ON SLAB

WORKSPACE LOOKING INTO STUDIO PASSAGE LOOKING INTO STUDIO CASE STUDY REFERENCE SPACES
GLOBAL DESIGN CENTER DANISH PATHAN | 78

7.5 MASSING STUDY AND VOLUMETRIC ANALAYSIS :

STAGE 1

With Respect to the Site form and the testing track position on master plan. The Stage 1 of the Massing shows the parallel buidlings arrangement.

The Stage 2 cuts the building from center in ‘V’ shape which gives prototype building a direct view towards the tetsing track.

Stage 3 helps the central space with circulation , good leisure activities and connects the all fours building together from center

Stage 4 is the Formation of all shape which forms a complete R&D facilty for Electric Vehicle .

STAGE 2 STAGE 3 STAGE 4
GLOBAL DESIGN CENTER DANISH PATHAN | 78

7.6 INTERIOR SPACES :

First and foremost, a design studi must be able to light the car displays properly, but it should also be a reflection of the brand. The feeling of the car showroom, the building structure, interior design and lighting design should reflect the statement of the Car brand.

Lighting can play a large part in contributing to the overall impression and communicating brand values. When a potential owner enters a showroom they should recognise and be able to identify the car’s brand. To achieve this we need suitable lighting knowledge and the right products and solutions.

Important Points to consider in Design Studio:

High Ceilings - Lights mounted on a high ceiling means you will need a higher wattage, and most likely a narrow beam angle. Be careful to select fittings with low glare.

Flexibility - Car Showrooms tend to be changed regularly, to keep it fresh and feeling new. A great way to achieve this with lighting it to use track lighting. This allows fittings to be added or removed, as well as re-positioned in relation to the car displays.

Variety of lux levels - Do not just use general light throughout - it will seem flat, and give no contrast to highlight cars.

GLOBAL DESIGN CENTER DANISH PATHAN | 79

7.7 INPUTS FROM CASE STUDY :

• This Automobile Design Studio is an impeccable marriage of origin and modern, contextual and contemporary, old and new. The structure’s response to the culture and context of the place is inextricable from the overall serendipity of the structure.

• This structure would be one of the references in the present and future for any budding architect to look out to on how architects can design not only aesthetically pleasing structures but also meaningful structures in response to the locality and needs.

• This Automobile Design Studio is an impeccable marriage of origin and modern, contextual and contemporary, old and new. The structure’s response to the culture and context of the place is inextricable from the overall serendipity of the structure.

• This structure would be one of the references in the present and future for any budding architect to look out to on how architects can design not only aesthetically pleasing structures but also meaningful structures in response to the locality and needs.

INTERIOR LIGHTING IN DISPLAY HALL (MAHINDRA DESIGN STUDIO) DOUBLE HEIGHT AND SPLIT ENABLES THE 8 M X 8 M GRID (MRV, CHENNAI)
GLOBAL DESIGN CENTER DANISH PATHAN | 80

7.7

SUSTAINABILITY :

A ‘green’ building is a building that, in its design, construction or operation, reduces or eliminates negative impacts, and can create positive impacts, on our climate and natural environment. Green buildings preserve precious natural resources and improve our quality of life.

There are a number of features which can make a building ‘green’. These include:

• Efficient use of energy, water and other resources

• Use of renewable energy, such as solar energy

• Pollution and waste reduction measures, and the enabling of re-use and recycling

• Good indoor environmental air quality

• Use of materials that are non-toxic, ethical and sustainable

• Consideration of the environment in design, construction and operation

• Consideration of the quality of life of occupants in design, construction and operation

• A design that enables adaptation to a changing environment

ADOPTION OF PASSIVE SOLAR DESIGN

ORIENTATION OF BUILING WRT CLIMATE

USAGE OF STACK EFFECT IN BUILDING

GLOBAL DESIGN CENTER DANISH PATHAN | 81

7.8 PARKING AND LANDSCAPE:

One of the primary objectives of landscape architecture in hot areas is to improve the micro-climate passively by modifying the extremes of particular environmental con ditions through increasing or decreasing the effect of prevailing conditions.

In hot arid climates, we wish to make the outdoor environment cooler, breezier and more humid. This happens through planting vegetation as different design elements, e.g. shelterbelts, wind barriers, wind filter or water elements

Trees are arguably the most important form of greenery for landscaping a parking lot. They not only screen and provide shade for cars, but also guide traffic and frame views.

Trees also require minimal maintenance compared to other greenery like shrubs, plus they collect less trash and create better air quality. Trees should be planted any where you can spare some space.

GLOBAL DESIGN CENTER DANISH PATHAN | 82

CHAPTER 8: SITE ANALYSIS& SITE SELECTION

GLOBAL DESIGN CENTER DANISH PATHAN | 83

8.1

SITE ANALYSIS & SITE SELECTION .

SITE- I

Location : Electric City, Bangalore

Climate : Tropical Moderate Climate

OPEN SWOT ANALYSIS FOR SELECTION & FINALISATION OF SITE

Connectivity : Well Connected corridor with Metro and Public Transportation.

Target Audience: All Age Group, Technology oriWented user group Site Area : 16000 SQM

GEOGRAPHICAL SATELITE LOCATION MAP

COMPARISON PARAMETER

ACCESSIBILITY

LANDUSE

STRENGTH

CONTEXT

PROXIMITY FROM CITY

WEAKNESS

OPPURTUNITY

APPEARANCE OF SITE

IMPACT ON FUTURE

GROWTH OF SUPPORTING INDUSTRIES

NOISE AND TRAFFIC

THREATS

SECURITY MANAGEMENT

0-10 POINTS

Site has good access with the primary road directly connecting to the National highway (Kashmir- Kanyakumari)

Site is located in Industrial Zone, as per the Development plan the adjacent plots and surrounding area is also dedicated Towards an industrial zone.

The Site is Situated in the premises of good tech giant established brands like, Wipro , Infosys, Titan .Which makes the site make the site more approachable and helps to build the innovative work environment for the project.

The site is located , 24 Km away from center of city towards the south of banaglore

As site has longer breadth and shorter length. The appearance of the site front road is a bit restricted.

The locality has future growth potential in Tech Industries. Electronic city is the hub for the innovation in India.

Electronic city has potential growth of Automobile industries in the city with 08 % of overall industries are involved in work related to automobile.

The main access road approaching the site has engaging traffic as the site is located near the Toll plaza which leads to signifi cant amount of noise in premises throughout the day

As the Site as access from all 3 side , managing the security and the privacy of the research building can be difficult

TOTAL POINTS

SITE- II

Location :Koramangala , Bangalore

Climate : Tropical Moderate Climate

Connectivity : Well Connected corridor with PublicTransportation.

Target Audience: All Age Group, Technology oriented user group Site Area 20000 SQM

Location : Hinjewadi , Pune

Climate : Moderate Climate

SITE- III

Connectivity : Well Connected Corridor with Mumbai –Pune Highway, Metro Station and Public Transportation

Target Audience: All Age Group, Technology oriented user group Site Area : 23000 SQM

POINTS 0-10 POINT POINTS

08 Site has good access with directly connecting site to the National highway 48 (Delhi- Chennai)

07 Site is located in Industrial Zone, as per the Development plan the adjacent plots and surrounding area is dedicated towards the public & residential zone.

08 The Site is located in the premises of Ola Campus, with strong connectivity the company headquarter itself.

03 The site is located , 10 Km away from center of city.

02 As site has shorter breadth and longer length. As the Re sult the longer side of the site is completely visible

07 The Location is well developed in terms of technology oriented industries . With mixture of Institional and Industrial developments

07 Koramangala has few of the supporting industries in Premises.

02 The Site is located near a junction , which leads heavy traffic & Noise near the site and adjacent area

02 As the Site as access from all 1 side , managing the se curity and the privacy of the research building won’t be difficult

0-10 POINTS POINTS

06 Site has good access with the primary road directly connecting the highspeed corridor of Mumbai-Pune Expressway 09

07 Site is located in Industrial Zone, as per the Development plan, the Site has mix of both residential + industrial Development

05 The Site is Situated in the premises of good R&D established companies like, Wipro Campus, Infosys,KPIT, Mercedes R&D .Which makes the site make the site more approachable and helps to build the innovative work environment for the project.

02

08

08

The site is located 19 Km away from center of city towards the west of Pune City 04

03 As site is pentagon in shape. With the Length of the site facing the Main Road . The Site has potential of catering both public & private 04

06 The locality ranks as one of the most sought-after areas by the city’s immigrant workforce. Hinjewadi has good potential to generate innovation & employment in Automobile Sector

06 Growth of supporting industries will allow assemblers to reduce production costs. With Mercedes Benz, MG Motor’s R&D, KPIT tech located in the premises it will help in growth of automobile R&D Center

03 The main access road is the only approaching road for Hinjewadi Info-tech park which lead to lack of traffic enforcement during rush hours only

04 As the Site as access from all 2 side managing the security and the privacy of the research building won’t be difficult. One Entrance can handle entry and exit and other can handle the Mate rial Entry and Exit with out disturbing the privacy of the building.

07
09
04
03
( OUT OF 70 )W 46 42 56 SELECTED SITE : Selected the 3rd Site based on the Assessibilty, Context ,Future impact on project and Development of Automobile sector in City GLOBAL DESIGN CENTER DANISH PATHAN | 84

8.1 SITE ANALYSIS & SITE SELECTION .

LOCATION : HINJEWADI, PUNE , INDIA

ABOUT :

Hinjawadi is a sprawling modern suburb with a high concentration of tech companies and business parks. Hinjewadi has developed beyond everybody’s imagination. It boasts of several educational institutes along with numerous global IT companies, business centres, hospitals, hotels, shopping destinations and a lot more conveniences, which has profoundly uplifted lifestyle at Hinjewadi. It is the fastest developing industrial & IT hub of Pune, is to get commer cialcum-residential developments that promote the walk-to-work con cept. It is the proximity to Pune city, which is a 25-minute to an hour’s drive away, which gives it an edge.

HISTORY OF HINJEWADI AND TIMELINE :

2003

INDIA

Over1,140 centers in India are dedicated to R&D which employ over 900,000 professionals. India has been ranked as the top innovation destination in Asia and second in the world for new innovation centres

PUNE

Pune attracts about 20 percent of the entire industrial investment in the country. It is an established automobile, durable goods manufacturing and an IT hub with several Indian and foreign industry majors working in the city.

HINJEWADI

A prominent location in Pune which has the tendency to combine Innovation, Automobile, Advance Information technology in a single cup.

1999

The construction of the Mumbai-Pune Express Highway offers excellent connectivity to the area.

With the development of the Rajiv Gandhi Infotech Park & Biotechnology Park, Hinjewadi Phase III is brought to light as one of the country’s top industrial & IT hubs

Hinjewadi is selected to be the proposed location for the development of smart cities by the PCMC and the Government of India.

PMRDA approves Hinjewadi-Shivaji Nagar Metro (23.33km, 23stations & cost of Rs. 7947 Crores) line.

2002
2016
GLOBAL DESIGN CENTER DANISH PATHAN | 85

8.1 SITE ANALYSIS & SITE SELECTION .

WHY HINJEWADI, PUNE ?

Hinjewadi is a major industrial center in Pune,which does not only cater growing Information Techology companies, but also focus on Innovation and Research Sector. Hinjewadi is the Perfect combination of IT, Auto mobile , Research and development facility. Hinjewadi has many developed Automobile Research Centers like KPIT Technology,Mercedes Benz, Bajaj ,TCS

EMPLOYEMENT IN HINJEWADI

Innovation Information Tech Automobile Hub Hinjewadi KPIT Technology-ADAS
+ + =
Mercedes R&D Center APPL - Automobile Parts Mahindra R&D Center METRO LINE JUNCTION/ CHOWK MUMBAI-BANGLORE HIGHWAY PRIMARY ROAD SECONDARY ROAD AUTOMOBILE SHOWROOMS AUTOMOBILE R&D CENTERS 7 MINUTES WALK 2KLAWRETEM 5MINUTESWALK GLOBAL DESIGN CENTER DANISH PATHAN | 86

8.1 SITE ANALYSIS & SITE SELECTION .

AREA

Rajiv Gandhi InfoTech Park Hinjewadi Phase I 21750 21750 21750 21750

Rajiv Gandhi InfoTech Park Hinjewadi Phase II 19075 27250 54500 54500

Rajiv Gandhi InfoTech Park Hinjewadi Phase III 7000 17500 56000 70000

Rajiv Gandhi InfoTech Park Hinjewadi Phase IV 0 10000 70000 100000

Additional Employment due to new development ( Source: Pune Metro Study)

LANDUSE

Hinjewadi has good mixture Work , Stay and Play .It has huge potential for job creation. Pune is also known as Oxford of East. SWeveral educational institutes are preparing students with the current upgrade developments related to IT & Automobile sector at least.

This helps in increasing the productivity of any employee who is of fer job in this area. Currently Hinjewadi has been employing around 1, 20,000 employees in all four Phases. As the business is expected to rise by 15 per cent there will be also rise in job requirements by 15 per cent .

INDUSTRIAL ZONE

RESIDENTIAL ZONE

AGRICULTURE ZONE RECREATIONAL ZONE

COMMERCIAL ZONE

2008 2011 2021 2031
GAT NO : 250 SHEET NO 13 HINJEWADI DEVELOPMENT PLAN
DATA GLOBAL DESIGN CENTER DANISH PATHAN | 87
SITE AREA : 23,000 SQM 100 M -BUS STOP 150M -METRO STATION30METERSWIDETWOWAYROAD TOWARDS WAKAD 18 METERS SOVEREIGN ROAD +7.5 M 24 METERS WIDE PRIVATE ROAD +1 M +1 M +2 M +2 M +3 M +3 M +4 M +4 M +6 M +6 M IWAKAD-HINJEWADI RAOD LEGEND INFOSYS WIPRO TATA TECH IALTAS CORP SHIVAJINAGAR-HINJEWADI CONTOUR METRO 8.1 SITE ANALYSIS & SITE SELECTION . GLOBAL DESIGN CENTER DANISH PATHAN | 88

SITE ANALYSIS & SITE SELECTION .

STAGE

PLANNING ZONING

PATH & ZONE ANALYSIS :

Hinjewadi is divided in Phase I,II,III and IV. Phase I and II is completely developed and Phase III and IV is currently in the development stage. This Phases is well divded in zone with goofd mixture of Residential, Commercial and Industrail Zone. There are three Primary roads that connects this all phases : Hinjewadi -Wakad Road which connects phase II & III .The Wakad -Pirangut Road Connects Phase I & IV

INDUSTRIAL

COMMERCIAL ---RESIDNETIAL

STAGE

ROAD

PRIMARYROAD

SECONDARYROAD

STAGE

CIRCULATION ROUTES

PUNE-HUBOFR&DIN INDIA

AUTOMOBILER&DIN HINJEWADI&EMPLOYEES

8.1
MAIN BUS STOP : 1.5 KM PROPOSED METRO STATION : 0.15 KM PUNE AIRPORT : 24 KM AKURDI RAILWAY RAILWAY: SITE CONNECTIVITY :
12 M 30M SITE 5 M +1 M
STAGE I LOCATION -R&D FACILITY
---
---
---
---
II
III PRIMARY & SECONDARY
IV SPACIAL
GLOBAL DESIGN CENTER DANISH PATHAN | 89

ANALYSIS & SITE SELECTION .

STRENGTH

ACCESSIBILITY : Site has 2 Main Access Road . One through Hinjewadi Wakad Road & Second Through Soverign Road

CONTEXT : The Site is Situated in the premises of good R&D established companies like, Wipro Campus, Infosys,KPIT, Mercedes R&D .Which makes the site make the site more ap proachable and helps to build the innovative work envi ronment for the project.

WEAKNESS

PROXIMITY FROM CITY :

The site is located , 19 Km away from center of city to wards the west of Pune City

APPEARNCE OF SITE FROM ROAD :

As site is pentagon in shape. With the Length of the site facing the Main Road . The Site has potential of catering both public & private

OPPURTUNITY

IMPACT ON FUTURE :

The locality ranks as one of the most sought-after areas by the city’s immigrant workforce. Hinjewadi has good potential to generate innova

SUPPORTING INDUSTRIES IN LOCALITY :

Growth of supporting industries will allow assemblers to reduce pro duction costs. With Mercedes Benz, MG Motor’s R&D, KPIT tech locat ed in the premises it will help in growth of automobile R&D Center

THREAT:

TRAFFIC & NOISE :

8.1 SITE The main access road is the only approaching road for Hinjewadi Info-tech park which lead to lack of traffic enforcement during rush hours only

FROM SITE KPIT & MERCEDES

SITE VIEWS FROM ROAD
----- SITE ACCESS ROADS
TRAFFIC DURING PEAK HOURS DISTANCE
6KM 5.5 KM
GLOBAL DESIGN CENTER DANISH PATHAN | 90

CHAPTER 9: DESIGN SOLUTION

GLOBAL DESIGN CENTER DANISH PATHAN | 91

DESIGN SOLUTION :

PLANS & DRAWINGS

9.0
GLOBAL DESIGN CENTER
DANISH PATHAN | 92

9.0 DESIGN SOLUTION :

PLANS & DRAWINGS

GLOBAL DESIGN CENTER DANISH PATHAN | 93

9.0 DESIGN SOLUTION :

PLANS & DRAWINGS

GLOBAL DESIGN CENTER DANISH PATHAN | 94

9.0 DESIGN SOLUTION :

PLANS & DRAWINGS

GLOBAL DESIGN CENTER DANISH PATHAN | 95

9.0 DESIGN SOLUTION :

PLANS & DRAWINGS

GLOBAL DESIGN CENTER DANISH PATHAN | 96

9.0 DESIGN SOLUTION :

PLANS & DRAWINGS

GLOBAL DESIGN CENTER DANISH PATHAN | 97

BIBLIOGRAPHY

SHiFt Architects. (2009). Our Projects. Retrieved from SHiFt : https://shift.org.in/agilent.php

(2015). Retrieved from bbmo.gov: https://bbmp.gov.in/PDF/townplanning/Zoning_Regulations_RMP2015f%20(1).pdf

Architects, S. J.-P. (2015). SJK Architects - Projects. Retrieved from sjkarchitects.com: https://www.sjkarchitect.com/automobile-design-studio

Clive Wilkinson Architects. (2005). Googleplex. Retrieved from clivewilkinson.com: https://www.clivewilkinson.com/pdfs/CWACaseStudy_GoogleplexANewCampusCo mmunity.pdf

Heinz, K. (2019, September 6). For Employers : THE 4 TYPES OF ORGANIZATIONAL CULTURE YOU SHOULD KNOW. Retrieved from Built in: THE 4 TYPES OF ORGANIZATIONAL CULTURE YOU SHOULD KNOW

Lambert, F. (2020, September 21). Ola is in talks to build R&D center in India, report says. India.

Poovanna, S. (2021, September 21). Tesla in talks with Karnataka govt to set up R&D centre in Bengaluru. India.

Team ARAI. (2021). Retrieved from Automotive Research Association of India: https://www.araiindia.com/services/department-and-laboratories/electric-vehicledevelopment

Team ARAI. (2021). Retrieved from Automotive Research Association of India: https://www.araiindia.com/services/department-and-laboratories/vehicle-dynamics

Team ARDC. (2021). Faculty of Engineering. Retrieved from University of Windsor: https://www.uwindsor.ca/engineering/310/corrosion-teardown-laboratory Team Steel case. (2013). Retrieved from Steel case: https://www.steelcase.com/research/articles/topics/innovation/how-place-fostersinnovation/ Wow Shack Team. (2017, July 29). Tesla Model X Electric Cars Coming To An Indonesian Street Near You. Indonesia

10 :
GLOBAL DESIGN CENTER DANISH PATHAN | 98

Turn static files into dynamic content formats.

Create a flipbook
Issuu converts static files into: digital portfolios, online yearbooks, online catalogs, digital photo albums and more. Sign up and create your flipbook.
Thesis Black Book Global Design Center R&D Center for OLA Electric Cars - by Danish - Issuu