Centro Integral para el Adulto Mayor

Page 1

1.ANÁLISIS

2. SITUACIÓN ACTUAL

DISEÑO ARQUITECTÓNICO–10th SEMESTER CÁTEDRA: ARQ FERNÁNDEZ / ARQ LUNA / ARQ VALDIVIA CICLO: 2022-2 INTEGRANTES:HUAMAN UNSUETA, DANELLY ANTEPROYECTO Centro Integral para el Adulto Mayor
URBANO

DISEÑO ARQUITECTÓNICO–10th SEMESTER

ANTEPROYECTO Centro Integral para el Adulto Mayor

4.USUARIO

NIVEL +4.00

5.PROGRAMAARQUITECTÓNICO

3.PROYECTO ARQUITECTÓNICO
NIVEL +18.00 m
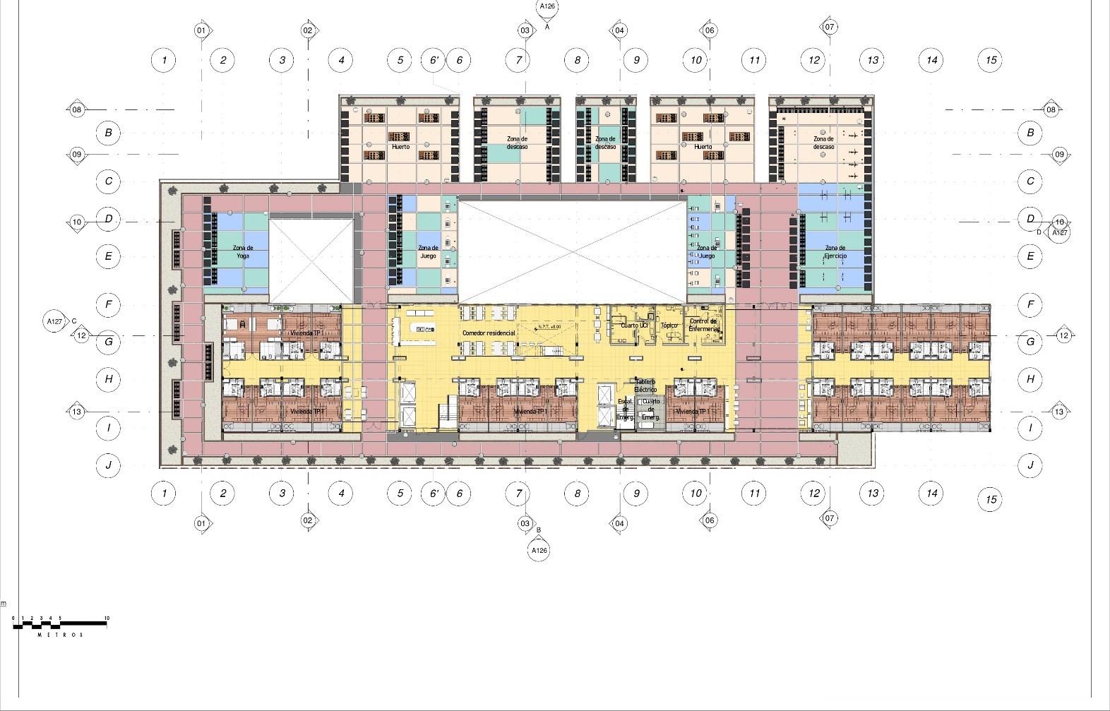
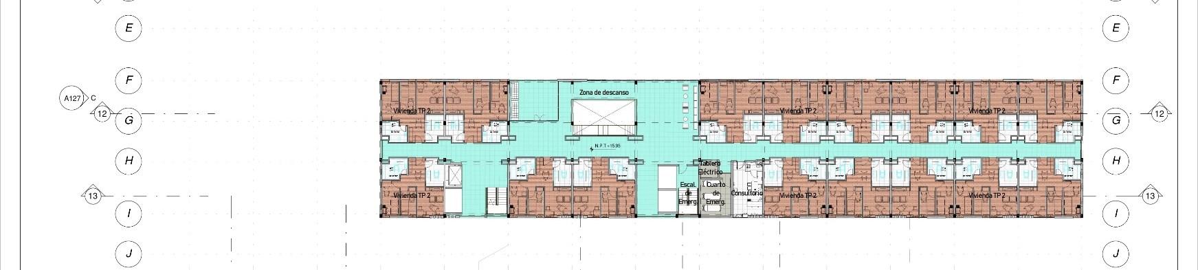
m NIVEL +0.00 m 1.Zona Culľuíal (MENľAL) 1.Aíľísľica ľalleí de baile (2) ľalleí aíľísľico (2) ľalleí de manualidades (2) ľalleí de ceíámica(2) ľalleí de música (2) 2. Académica Sala de ofimáľica (2) ľalleí de ideíazgo (2) Oficinalegal (4) 2 Zona complemenľaíia Comedoí comuniľaíio 3.Hall de vivienda 4.Zona Salud(FÍSICO) 2.1Zona de consulľoíios C Medicina Geneíal C Geíiáľíico C Nuľíicón C Ofľalmológico C Odonľológico 2.2Zona de íehabiiľación Zona de ľeíapia gíupalgimnasio Zona de ľeíapia individual Hidíomasaje Piscinade íehabliľación 2.Zona complemenľaíia Sala de lecľuía 3.Hall de vvienda NIVEL +8.00 m NIVEL +10.50 m Viviendapaía 2 peísonas Sala de esľaí NIVEL +13.00 m Viviendapaía 2 peísonas Sala de esľaí 3 Hall de vivienda Vivienda individual ľópico Enfeímeíía Sala de esľaí Alameda NIVEL +15.50 m Viviendapaía 3 peísonas Sala de esľaí Viviendaľipología 2 Sala de esľaí
CÁTEDRA: ARQ FERNÁNDEZ / ARQ LUNA / ARQ VALDIVIA CICLO: 2022-2 INTEGRANTES:HUAMAN UNSUETA, DANELLY

ANTEPROYECTO

Centro Integral para el Adulto

PLANOS DE PISO SÓTANO -2.80 M PLANO PRIMER NIVEL +0.00M PLANO SEGUNDO NIVEL +4.00 M PLANO TERCER NIVEL +8.00 M PLANO CUARTO NIVEL +10.65 M PLANO QUINTO NIVEL +13.30 M PLANO CUARTO NIVEL +15.95 M PLANO QUINTO NIVEL +18.60 M PLANO SEGUNDO NIVEL +8.00 M DISEÑO ARQUITECTÓNICO–10th SEMESTER CÁTEDRA: ARQ FERNÁNDEZ / ARQ LUNA / ARQ VALDIVIA CICLO: 2022-2 INTEGRANTES:HUAMAN UNSUETA, DANELLY
Mayor
6. ANÁLISIS DE VIVIENDA 7. ANÁLISIS DE SOSTENIBILIDAD TIPO 1 ( NIVEL + 8.00 NIVEL +10.65 ) TIPO 2 ( NIVEL + 13.00 NIVEL +15.95 ) DISEÑO ARQUITECTÓNICO–10th SEMESTER CÁTEDRA: ARQ FERNÁNDEZ / ARQ LUNA / ARQ VALDIVIA CICLO: 2022-2 INTEGRANTES:HUAMAN UNSUETA, DANELLY ANTEPROYECTO Centro Integral para el Adulto Mayor

Zonas comunes

ZONA COMÚN DE REHABILITACIÓN FÍSICA

Zonas residencial

ÁREAS DE OSCIO EXTERIOR

ÁREAS DE OSCIO INTERIOR

DISEÑO ARQUITECTÓNICO– 9th SEMESTER CÁTEDRA: ARQ. FERNÁNDEZ / ARQ. LUNA / ARQ. VALDIVIA / ARQ. GARAY / ARQ. CACHO / ARQ. LÓPEZ / ARQ. CORRO CICLO: 2022-1 INTEGRANTES: HUAMAN UNSUETA, DANELLY PRE- ANTEPROYECTO Centro Integral para el Adulto Mayor VISTAS 3D INTERIORES ENTRADA
SUM
COMEDOR COMUNITARIO

ELEVACIÓN A

ELEVACIÓN D

ELEVACIÓN B

ELEVACIÓN C

ELEVACIÓN A

ELEVACIÓN D

ELEVACIÓN C

ELEVACIÓN B

VISTAS 3D
CÁTEDRA: ARQ FERNÁNDEZ / ARQ LUNA / ARQ VALDIVIA CICLO: 2022-2 INTEGRANTES:HUAMAN UNSUETA, DANELLY ANTEPROYECTO Centro Integral para el Adulto Mayor
DISEÑO ARQUITECTÓNICO–10th SEMESTER

Turn static files into dynamic content formats.

Create a flipbook
Issuu converts static files into: digital portfolios, online yearbooks, online catalogs, digital photo albums and more. Sign up and create your flipbook.
Centro Integral para el Adulto Mayor by Danelly Rosario Huamán Unsueta - Issuu