









Given how important heritage and sustainability are to the client, I drew a lot of inspiration from the nature around me.



























Experimented with materials to generate ideas for the shop floor








TISSUE PAPER | USED LIGHT TO DEVELOP IDEAS | NOVEMBER 2025









PERSONAL PROJECT | LEARNING AND EXPERIMENTING WITH DIFFERENT PERSPECTIVES | OCT 24



































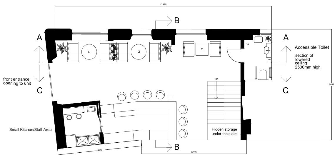
GROUND FLOOR
UPPER



















EXPLORATION OF PATTERNS AND SHADOWS













































Scale 1:50 (all pictures)