The Real Estate Weekly | 11.23.2022

Page 1

VOL. 31 NO. 47 n NOVEMBER 23 - 29, 2022 WWW.C-VILLE.COM
30 YEARS OF REAL ESTATE SPRING CREEK AT ZION CROSSROADS: Close-In, Affordable & Loaded with Amenities
CHARLOTTESVILLE ALBEMARLE, FLUVANNA, GREENE, LOUISA, MADISON, NELSON, ORANGE, AUGUSTA

Tour ou ewest Model Homes in Belvedere and Old Trail Village

Tour ou ewest Model Homes in Belvedere and Old Trail Village

Currituck Model in Belvedere | 905 Belvedere Blvd, Charlottesville, VA 22901 Villa Model in Old Trail Village | 406 Astel St, Crozet, VA 22932

Currituck Model in Belvedere | 905 Belvedere Blvd, Charlottesville, VA 22901 Villa Model in Old Trail Village | 406 Astel St, Crozet, VA 22932

Currituck Model in Belvedere | 905 Belvedere Blvd, Charlottesville, VA 22901 Villa Model in Old Trail Village | 406 Astel St, Crozet, VA 22932

MODEL HOMES OPEN DAILY 12-5 | 434-973-3362 | craigbuilders.com

MODEL HOMES OPEN DAILY 12-5 | 434-973-3362 | craigbuilders.com

MODEL HOMES OPEN DAILY 12-5

WWW.C-VILLE.COM NOVEMBER 2329, 2022 ISSUE 3147 2
Main Level Living Homes Surrounding a Pocket Park
$569,900! Decorated
Home Now Open! Conceptual images shown. Pricing and design subject to change Walkout Basement Homesites with 9’ Ceilings from $649,900 — Our New Future Model Home is Ready for Framing Tours Today!
Future Community Clubhouse/Pool New Plan with Early Summer 2023 Deliveries! Find Homes REALTORS® are licensed to sell real estate in the Commonwealth of VA Locally owned and operated Find Homes Realty Brokerage License # 0226033659 90 Whitewood Rd # 6, Charlottesville VA 22901 434 218 0221 If you have a relationship with another Realtor, this isn’t a solicitation Information deemed reliable but not guaranteed Looking to buy or sell real estate? Text THANKFUL to 434-337-3216 Happy Thanksgiving from the mily to yours! Integrity & Service is Our Motto!
| 434-973-3362 | craigbuilders.com Tou ewest Model Homes in Belvedere and Old Trail Village Semi-Custom
From
Model
OPEN DAILY 12-5 | 434-987-6522 NorthPointe@craigbuilders.com | craigbuilders.com/northpointe

CLUB DRIVE

RESORT STYLE LIVING Enjoy Resort Style Living in Keswick Estate with newly remodeled Keswick Hall and Country Club. French Normandy style home set on a 2.7acre corner, wooded lot. Elegant and gracious custom designed residence, built by Baird Snyder. Light filled, comfortable rooms, thoughtfully planned. Interior archways, arched windows and doors. A 20’ high sweeping entry with curved staircase. Custom door design and carved white statuary marble fireplace mantel. Cast stone work on the exterior Solid mahogany arched, leaded beveled glass front doors lead to the limestone foyer. Extensive gardens and terraces. $2,950,000

Over 25 years of Real Estate experience. email: callsharon.today@yahoo.com cell: 434.981.7200

3 NOVEMBER 2329, 2022 ISSUE 3147 THE REAL ESTATE WEEKLY WWW.C-VILLE.COM
Gould
A
Annie
Gallery
unique art gallery located in the heart of historic Gordonsville. 109 S. Main Street, Gordonsville, VA • (540) 832-6352 anniegouldgallery
CALL SHARON
Farm, Estate and Residential Brokers 503 Faulconer Drive ∙ Charlottesville ∙ VA ∙ 22903 WWW.MCLEANFAULCONER.COM
WATERFRONT HOME! New construction with Hardie Plank siding 4 bedrooms and 3 bathrooms on .42 acres. Bright open floor plan with hardwood floors and a fireplace. The 1st floor and terrace level have beautiful water views. Full length double decks. Perfect for everyday living or a wonderful vacation home. $500,000
StrongTeamRealtors.com LakeMonticelloProperties.com NEW WATERFRONTS PATSY STRONG, Principal Broker SRES, SRS, CLHMS Certified Luxury Home Marketing Specialist Seller Representative Specialist #1 In Area Waterfront Sales Since 2002 Patsy@StrongTeamRealtors.com (434) 996-4606 Top-Producing Area Realtor Since 2002 $625,000 2737 sf 4 BR - 3 BA THE PERFECT WA TERFRONT FOR THOSE WHO LOVE THE WATER...AND THEIR PRIVACY! Custom-Built by Ce cil Cobb, This Vaulted Rancher Boasts Tons of Upgrades— Hardwoods Throughout Main Level, Vaulted Greatroom w/ Gas FP & Skylights, Open Kitchen w/Island & Breakfast Bar, Beautiful Sunroom Overlooking the Water w/Walk-out to Deck, & Vaulted Owner’s Suite w/Whirlpool/Shower, Walk-in Closet, Hardwood Flooring, & Waterviews. On Terrace Lev el, Home Features A Nice Family Rm w/Walk-out to Covered Patio, Private 4th BR Suite w/Walk-out & Waterviews, & Tons of Storage. Plus, Gentle Walk to Water, Paved Circular Drive way w/No-Step Entry, Trane HVAC, & Beautiful Water Views! Walkable to Beach #3. Home has been approved for Dock. On .53 Acre $795,000 2898 sf fin. / 1118 sf unfin. - 3 BR2.5 BA TOTAL TRANQUILI TY—Vaulted Water front w/100-ft of Wa terfrontage-Dock w/ Electricity-Bulkhead— Beautiful Water Views & Just 2 Blocks to Beach #3! Vaulted Rancher w/Basement -- Home Features Open & Bright LivingRm
Hickory Flooring Throughout Main Level, Arched Doorways,
Kitchen
Water, Vaulted
Storage,
$355,000 2228 sf fin. / 1142 sf unfin, 3 BR - 2 BA - On .60 Ac. ENJOY ONE-LEV EL LIVING w/BASE MENT ON PRIVATE .60/ACRE IN SYC AMORE SQUARE - Plus, Near Community Walking Trail & Picnic Area! Fea tures: Hardwood Entrance Foyer, Open Greatroom w/Gas FP, Bright Kitchen w/Hardwoods & Granite, Dining Area w/ Relaxing Views of Backyard, Spacious Owner’s Ste w/Dou ble Vanity & Walk-in Closet, Main Level Laundry
Rm...Plus-Lrg. Family/Media Room in Basement & Room to Expand w/Over 740-sf of Unfin Space! Lrg. Back
Drive, Garage. Walk
51 PONDEROSA LANE 9 LEISURE COURT 72 KENDALL COURT SYCAMORE SQUARE
w/Skylights,
Open
w/Bay-Windowed Dining Nook-Quartz Countertops-Wall Oven-Built-in Desk-Island Cooktop, Luxurious Owner’s Ste w/Walk-out to Deck Overlooking
Main Level Family Rm w/Walk-out & Beautiful Palladian Window, 2nd Family Rm on Terrace Level w/Walk-out to Covered Patio. Add’l Upgrades: Arched Doorways, Main Level Laundry, HVAC w/Propane Backup, Paved Driveway, Garage,
Terraced Walkway to Water. On .55 Acre - Custom-Built by Southern Home Builders.
Rm/Mud
Trex Deck. Paved
to Shopping-Dining-Coffee. SELLER IS OFFERING $4,500 FOR FLOORING ALLOW ANCE! Room To Expand!

Southern Albemarle estate with 1.5 miles of frontage on the James River with 540± acres of highly fertile, gently rolling landscape. Historic farmhouse dating to the late 1700s offers extensive views of the river. Under conservation easement with the VOF. MLS#630470 $4,865,000 Steve McLean, 434.981.1863

EDNAM FOREST

First time on the market for this delightful, well-maintained 2-story home. Situated on two lots containing 3.60 acres (divisible) in Ednam Forest. The 2,950+ sf home contains a LR with FP, DR, eat-in kitchen, FR with cathedral ceiling and FP, sunporch, study with FP on the 1st floor. The second floor has the main BR with FP, large BA and ample closet space, a small study, two additional well-sized BRs (one currently being used as an office) and a full BA . The home is in a totally private environment of mature plantings with lovely mountain views. MLS#636669 $1,745,000 Steve McLean, 434.981.1863

DUDLEY MOUNTAIN ROAD

Unique 88-acre property with 4-bedroom home. Property includes two-car garage, storage shed/ shop and 3760 sf. multipurpose building. Beautiful mountain and lake views just 4 miles from Charlottesville. MLS#635483 $1,275,000 Jim Faulconer, 434.981.0076

OWENSVILLE ROAD

5-BR, 6.5-BA home built in 2003 and significantly enhanced. Open main floor with heart pine flooring, stone fireplaces, gourmet kitchen, office, covered deck, and guest suite. Lower level with exercise, game, family rooms. MLS#634194 $2,395,000 Court Nexsen 646.660.0700 / Steve McLean 434.981.1863

WOLFCREEK FARM

Situated near the Blue Ridge Mountains in Madison County on 333 acres. Currently runs as a grazing farm for beef cattle. There are 2 homes on the property and a complement of necessary farm buildings. Not in conservation easement! MLS#630435 $3,200,000 Jim Faulconer, 434.981.0076

EVERGREEN HILL

A private 18 acre horse farm, with 4-bedroom main residence, 1-bedroom cottage, beautiful 8-stall center aisle barn, outdoor riding ring, and several fenced pastures and hay fields. With access onto 570 plus acres of parkland with trails. MLS#632164 $1,295,000 Jim Faulconer, 434.981.0076

RAGGED MOUNTAIN FARM

Two wonderful estate parcels comprised of 185.01± acres in coveted Ragged Mountain Farm. Excellent elevated building site, complete privacy, and beautiful views. Murray/Henley/Western school district. MLS#621083 $1,895,000 Steve McLean, 434.981.1863

BELMONT LOFTS SPACIOUS PENTHOUSE CONDO!

One of the finest condos in Belmont and the Downtown Mall area. 2-story, 3-bedroom 3.5-bath condo, over 3,150 finished square feet, extra high ceilings, a modern and open floor plan with huge windows and doors, plus a large rooftop terrace with views of the Downtown Mall all the way around to Monticello. Contemporary flair with many fine architectural details, many built-ins and great storage unit. Secure garage and garden space. MLS#634149 $1,950,000 Jim Faulconer, 434.981.0076

HATTON RIDGE FARM

A most tranquil and private 278+ acre grazing and hay farm with two-thirds mile of James River front age. The centerpiece of Hatton Ridge Farm is an im pressive 4-5 bedroom, brick Georgian home, built circa 2000. MLS#634311 $3,675,000 Jim Faulconer, 434.981.0076

PEA RIDGE FARM

317 acre estate that has it all: location, views, water, a spectacular 5-BR residence, event center and more! 15+ acre lake is centered among lush rolling fields of rich grass and unparalleled views. Additional acreage avail able. 25 minutes west of Charlottesville. MLS#631962 $8,875,000 Steve McLean, 434.981.1863

THE REAL ESTATE WEEKLY WWW.C-VILLE.COM NOVEMBER 2329, 2022 ISSUE 3147 4 WWW.MCLEANFAULCONER.COM 503 Faulconer Drive| Charlottesville | VA 22903 | office: 434.295.1131 | email:
homes@mcleanfaulconer.com
RIVER LAWN FARM

SIMMONS GAP ROAD

5-acre lot with mature hardwoods. Great opportunity to build with no HOA. Private building site amongst beautiful woods. Located between Free Union and Earlysville but so convenient to Charlottesville and UVA. MLS#621177 $140,000 Charlotte Dammann, 434.981.1250

GARTH ROAD

11.73-acre, buildable lot in Western Albemarle! One of a kind location and a rare opportunity to purchase a large lot in an estate neighborhood 10 minutes to town. 2 division rights and is gently rolling with a small stream bisecting the property. MLS#628219 $795,000 Steve McLean, 434.981.1863

OWENSVILLE ROAD

Custom built 5-BR residence on 2 ac. lot in Meri wether Lewis Elementary District! Top quality fin ishes and many features include: an open floor concept on all levels; cathedral & vaulted ceilings; fully loaded chef’s kitchen; and so much more! MLS#632111 $1,675,000 Will Faulconer, 434.987.9455

SOUTHERN ALBEMARLE

87+ acre pine forest property is a good investment tract, or use as a hunting and recreational tract, or with multiple division rights, a place to build a home or more than one home. Potential mountain views, and private settings. MLS#629213 $499,000 Jim Faulconer, 434.981.0076

CROZET AREA

Beautiful building lot, 3.3 acres, fronting on a quiet paved county road. Land is mostly in pasture, some woods, creek and elevated homesite with panoramic views of mountains, pond, and surrounding pastoral area. Less than a mile to Harris Teeter at Crozet. MLS#636349 $450,000 Jim Faulconer, 434.981.0076

GREENTREES

94+ acres 20 minutes from Charlottesville. Originally part of a 188-acre tract, two parcels may be purchased separately or together, with 2 developmental rights each. Mostly maturing pine and very long public road frontage. MLS#635861 $700,000 Tim Michel, 434.960.1124

EDNAM FOREST

Wonderfully large 1.5+ acre building lot in Ednam Forest. Build your dream home on this elevated, wooded lot located in a single family community, minutes from UVA and within walking distance to Boar’s Head Resort. MLS#598537 $289,500 Steve McLean, 434.981.1863

ECOVILLAGE CHARLOTTESVILLE

The Owner has been working with planners and the County of Albemarle to develop on this property an environmentally sensitive and sustainable housing community. 6.5 acre site with two houses. MLS#633951 $1,750,000 Jim Faulconer, 434.981.0076 www.ecovillagecharlottesville.org

MEADOW FARM

436+ acre parcel of land in Southern Albemarle! 4 division rights; complete privacy; lush, gently rolling terrain; long road frontage; stream; 3-acre lake; 125135 acres of open land; mature hardwood forests. Under conservation easement. Owner/agent. MLS#634139 $2,985,000 Steve McLean, 434.981.1863

MISSION HOME ROAD

INVESTMENT OPPORTUNITY

GIBSON’S HOLLOW

146.88 ac. in Albemarle & Greene

County. Privacy & protection adjacent to the Shenandoah National Park! Full division rights & multiple home sites. Extraordi nary timberland. Views of the mountains, along with easy access to trails and Skyline Drive. MLS#620276 $1,100,000 Steve McLean, 434.981.1863

Currently zoned R-1. County plan projects land as urban density. 12” Water line along Rt 29. Best use would be multi-family housing adjacent to Forest Lakes and Hollymead. MLS#636152 $2,995,000 Sharon Donovan, 434.981.7200 Steve McLean, 434.981-1863

Ivy area! A 249 + acre hidden, private Arcadia controlling its own little valley up to the mountain ridge top building sites. Multiple parcels and subdivision rights make it a conservation easement candidate. MLS#634183 $4,000,000 Tim Michel, 434.960.1124 or Steve McLean, 434.981.1863

5 NOVEMBER 2329, 2022 ISSUE 3147 THE REAL ESTATE WEEKLY WWW.C-VILLE.COM WWW.MCLEANFAULCONER.COM 503 Faulconer Drive| Charlottesville | VA 22903 | office: 434.295.1131 | email: homes@mcleanfaulconer.com

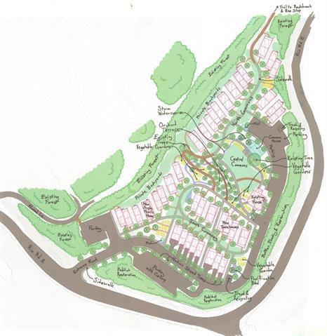
SPRING CREEK

What do you like in a com munity? What do you want in a place to lay your head?

Maybe you love the sporting life. Or perhaps you want a spot where people know each other and enjoy hanging out together. Or a place with walking trails or a friendly nearby restaurant where you can meet for business or for relaxing evenings with family or friends.

Perhaps a golf-front home is what you want, or a wooded lot on which to build your dream home, a place for a large family, or just a modest villa.

Whatever it is Spring Creek has what you’re looking for. With all of its many amenities you’ll almost certainly find something that is just right for you.

Conveniently located just 15 miles east of Charlottesville down Route 64 at Zion Crossroads, Spring Creek is a gated, 950-acre, 1,200-home resort-style village.

More affordable than many such at tractive developments, and with lower than average property taxes, Spring Creek’s amenities include a nationally recognized golf course, a fitness center, swimming pool, basketball, tennis, and pickle ball courts, as well as a clubhouse. You’ll also find a park, playground, and miles of trails.

And you can also enjoy the restaurant, pub, and event space that are also perfect for private celebrations and corporate functions.

Spring Creek Living

Sherry Palmer of Lloyd’s Real Estate, LLC has been showing homes in Louisa County since 1994, so she knows the region well. It says a lot then, that Palm er and her husband recently moved to Spring Creek. “We like the area and the amenities, and the neighborhood feel and the security,” she says. “It’s a private community, so I like the safety of it; there is a gate guard at all times.”

Another thing Palmer loves is the idyllic feel of the place, with its wellmanicured lawns, sidewalks that connect to miles of walking trails, and lots of life on the street. “It’s very well set up,” she says. “We take our little dogs and ride around on our golf carts and see the area. It’s nice seeing the kids out playing. For Halloween we rode around just to see the decorations.”

“It doesn’t matter where you go, you’re going to see kids outside playing, and that was important to me, to know that in this day and time you can still send your kids outside to play and not worry about it. You know they’re going to be safe; it’s a community where your neigh bors watch out for the children.”

THE REAL ESTATE WEEKLY WWW.C-VILLE.COM NOVEMBER 2329, 2022 ISSUE 3147 6 FEATURE
AT ZION CROSSROADS: Close-In, Affordable & Loaded with Amenities
7 NOVEMBER 2329, 2022 ISSUE 3147 THE REAL ESTATE WEEKLY WWW.C-VILLE.COM FEATURE A DREAM HOME IS GREAT, BUT THE RIGHT ONE IS BETTER. Let an agent who knows guide you. Pat Burns 434-465-4444 • Sitting amidst estates and horse properties this beautiful 5 acre lot in Keswick area for sale to build your dream home. Convenient to Charlottesville, Gordonsville. $69,900. $69,900 Bev Nash 434-981-5560 • Two new 1512 sf quality homes • 3 bedrooms, 2 baths, rear deck • Walk out, roughed in basement • LVP floors, granite and stainless steel kitchen • 4+ acre very private lots Between Gordonsville, Louisa and Orange Bev Nash 434-981-5560 • 2+ mature wooded acres • 1,926 sf, 3 BR, 2.5 baths • Elevated front porch • Oversized side deck • Covered rear verandah • Shaker kitchen, real oak floors, masonry FP • Dynamic master suite on main level • $695,000 LOUISA COUNTY $379,900 Candice van der Linde 434-981-8730 • Pre-Listing Inspection Done. Move right in! • 5 BR Ranch on full fin. basement • Sun Room & Large Rear Deck • Main: Hdwd Floors, 3 BR/1.5 Ba, Large LR w/FP • Terrace Level APT: Kitchen, FullBath, 2 BR & FP • NEW Windows, HVAC, Electric Panel x2, Septic pump, lines & field • Deck repaired & Stained, chimney cap, tree removal...etc $399,000 EARLYSVILLE RD Dan Corbin 434-531-6155 • 24 Beautiful Wooded Acres • Long Paved Road Frontage • 3 bedroom Perc - Year Round Creek • 15 Mins to Lovingston, 40 Mins to Cville • Call for Plat and C&Rs at Piney Mtn • MLS 630947 Nelson County Land $79,000 $340,030 14 ELM CT/TROY Lori Click 434-326-7593 • To Be Built! The Brookwood, Similar to Photo! • 4 Bedrooms, 2.5 Baths, Attached Garage, 1.66 Acres • Upgraded Siding Accent, Wide Window Trim, 10’x16’ Rear Deck • Master Suite with Garden Tub, Double Bowl Vanity • Kitchen with Granite Countertops, Stainless Appliances • Luxury Vinyl Plank Floors, Forest View s/d offer DSL, Fiber Optic Dan Corbin 434-531-6155 • New Build - Custom One Level Living • 2900+ sq. ft. 5 Bedroom, 4.5 Bath • Must See Kitchen, Center Island, Walk In Pantry • Features include Coffered Ceiling, In to Out Gas Fireplace • Wonderful Owner’s Suite, Bonus Room over Large Garage • Pastoral Views on 2+ Acres, 15 Minutes to Charlottesville • READY NOW - MLS 634470 - Call for Personal Tour 36 NAYLOR LN, TROY $779,000 434.985.0021 410 West Main Street Charlottesville, VA 22902 Downtown 434.974.1500 943 Glenwood Station Ln Suite 203 Charlottesville VA 22901 Ruth Guss 434-960-0414 • 4 Bedroom, 2.5 Baths • 0.41 Acres, 1,803 Finished Sq. Ft. • Upgraded Siding Accents, Cozy Front Porch • 10’x12’ Rear Deck • First Floor Vaulted Master Suite, Large Great Room • Open Kitchen w/ 36” Wall Cabinets, Dining Nook, Stainless Appliances • High Point s/d located minutes from Palmyra, County Schools, and Rt 15 $324,100 197 RIVA WAY/FLUVANNA COMING SOON IN KESWICK REDUCED Candice van der Linde 434-981-8730 • Green Home w Custom Detached Apartment in Downtown Cville. • Vaulted ceilings, abundant light, sunken great room with Sauna • Massive Timber Framed Screened porch, Arched Brick carport detail • Solar Ready 400 amp & ERV charging Station • MLS#636010 BELMONT $835,000 REDUCED

While Spring Creek has many activi ties for children, the grown-ups have fun too. “When they have yard sales, it’s huge—like 200 sites participating. They had a football pool and we joined that. They do a golf cart Christmas parade. They have craft shows, and bingo. It’s just these little things that you don’t get in other subdivisions. Spring Creek has a nice community feel.”

Are we intrigued yet? Clearly Spring Creek is special. Let’s take a closer look.

We’ll start at Tavern on the Green, a 144-seat, full-service restaurant and bar with a view of the lake and the Spring Creek Golf Club’s 18th green. Open to the public seven days a week, it’s an ap pealing spot for a happy hour drink with friends, a meal with family, or a pint after a round of golf. The chef happily provides vegan, gluten-free or kosher meals, and sources as many ingredients as possible from local farms.

Tavern on the Green also hosts events each week—Bourbon Nights, for example, and Passport Dinners to such interest ing places as Brazil, Morocco, and the Caribbean. A December 3 celebration will mark the anniversary of the 1933 repeal of “The Stupidest Constitutional Amendment,” Number 18—Prohibition. The expansive menu for Brunch With Santa, December 11 at the golf course clubhouse, ranges from a pancake bar and other breakfast items to savory de lights like chicken, ham, and brisket.

Spring Creek Golfing

And what about that golf course? When it comes to a game of golf, the people at Spring Creek say, “there are basically two kinds of courses; those you play for the convenience, and the courses you truly seek out.”

Spring Creek Golf Club was built for “the seekers,” the people for whom “aver age just doesn’t work,” the ones looking for a golfing experience that is “the best life has to offer.”

They aren’t just talking. Designed to be attractive to high-handicap golfers, but challenging even for tournament professionals, the 18-hole Spring Creek course has received awards from Golf Digest and other publications as one of the best public courses in the nation.

It was also named the 2021 Golfers’ Choice by GolfPass, as the top public course in Virginia. Meticulously groomed, it traverses rolling hills and woods with views of rock walls and bridges, offer ing strategic challenges in an especially lovely setting.

A driving range, short game area, and golf shop supplement the course. And a staff full of PGA Professionals is available by appointment for individual and group instruction. Tee-times can be booked online. Current course conditions are updated daily.

Up-and-coming—young—golfers can choose from three programs. The Fire 12 Junior Program for ages 6-13 intro

duces key golf concepts, and develops skills through clinics and competition. This eight-week program is offered both spring and fall. Clinics provide formal instruction as well as game-based learn ing. Spring Creek also offers a “Little Linksters” program for ages four and five. Little Linksters meet weekly for eight weeks, accompanied by a parent or chaperone.

Spring Creek’s 9,500 square foot Sports Club & Fitness Center is the place to work out with cardio and aero bic equipment, as well as free weights. The 25 meter pool and toddler wading pool are close by a children’s playground. The Center’s meeting space and banquet rooms can accommodate as many as 150 people, and include a catering kitchen.

Spring Creek Homes

What a place to live—and spots are still to be had. But let’s back up a moment.

Zion Crossroads hasn’t always had

this much going on. Not much was hap pening at all until the early 1970s, in fact. Things really took off in the early 2000s, when plans were put in place for both Spring Creek and a business corridor. Take Exit 136 off of Route 64 today, where it crosses Highway 15 (James Madison Highway), go north on 15, and you’ll find the entrance to Spring Creek just a mile up the road.

More pre-construction single family lots are now available for buyers, includ ing Neighborhood lots priced from the $80 thousands, Conservation lots priced from the $90 thousands, and spectacular Golf Front lots overlooking Fairway #1 from $175 thousand and up.

Buyer incentives include reduced HOA fees until building begins, no time limits on building, the opportunity to choose your own builder, and developer financing.

Stanley Martin Homes currently has four 1,877-square foot villa homes avail able now, and four more to come. Each

THE REAL ESTATE WEEKLY WWW.C-VILLE.COM NOVEMBER 2329, 2022 ISSUE 3147 8 FEATURE
Spring Creek Golf Club was built for “the seekers,” the people for whom “average just doesn’t work,” the ones looking for a golfing ex perience that is “the best life has to offer.”
9 NOVEMBER 2329, 2022 ISSUE 3147 THE REAL ESTATE WEEKLY WWW.C-VILLE.COM FEATURE We are thankful for you, our customers and clients for putting your trust in Montague Miller & Co for your real estate needs over seventy years. Your Place. Our Purpose. MONTAGUEMILLER.COM | 800.793.5393 | CHARLOTTESVILLE | AMHERST | MADISON | CULPEPER | ORANGE Wishing you and your loved ones a joyous and gratitude-filled holiday!

villa home is attached to one other home and features main level living. While all are set up a little differently, each shares the same floor plan, and has three bed rooms and two and half bathrooms. Some have a screened porch, and some an outdoor patio.

On the main level, in addition to the dining room and family room, are the primary bedroom, bathroom with double vanity, and a walk-in closet. The kitchen features a large pantry. The laundry room is on the main level as well. Near the front door is a half bath and a clothes closet. Each villa has a generous amount of space on the second floor, with two bedrooms, full bath, and walk-in closet, plus space for a den perhaps, or an office. Each has a two-car garage. Options include an upgraded fireplace and a gourmet kitchen set-up.

One such home is currently on the market for $399,990, while another on the same street is priced at $414,990. “The villas are so beautifully built,” Palmer says. “and very nice.” She recently aided a retired couple looking for a villa, who decided to have one built in Spring Creek. “They moved here from further South,” she says. “We spoke to them a couple of weeks ago, and they’re very happy in there.”

Another, ready-to-be-built option, priced from the low $500Ks and com prising 2,042 to 3,339 square feet, is called the Willow. These one-level, Arts and Crafts style homes come with a sunny, open floorplan, luxurious main floor owner suite, and a kitchen with stainless appliances, granite counters and soft close cabinetry. The walk in pantry has solid wood shelving. The bedrooms are carpeted. Two-car garages are attached.

Two-story homes in what’s been named Parksley style have four bedrooms and three and a half baths. An open floor

plan includes a generous kitchen and pantry space. Owners also enjoy stainless appliances, real hardwood floors in com mon areas, quartz counter and painted cabinets. And 2X6 exterior walls are stan dard. Parksley home have 2,944 square feet, and prices range from $734,900 to $759,900.

Shops, Schools and Medical Facilities

Spring Creek Business Park is a multilot 155-acre site. The UVA Medical Park at Zion Crossroads is located here as is the Sentara Martha Jefferson Health Services at Spring Creek. And for dental care, services are available at nearby Spring Creek Family Dentistry & Orthodontics.

Animal lovers can take their pets to Crossroads Animal Hospital, a full service veterinary clinic that offers boarding, dental cleanings, surgery and preventive care along with many other options.

If you are entertaining more guests than you can house, the nearby Best Western Hotel can help. Directly across the street is Lowes, Super Wal-Mart, WalMart Distribution Center, and an array of retail shops.

For more choices, not only is Charlot tesville just 20 minutes away, but you can reach Short Pump Town Center on the outskirts of Richmond in just 35 minutes.

For home buyers with kids, Louisa County has three elementary schools, a middle school, a high school, and a Christian academy. The high school and Thomas Jefferson Elementary were rebuilt after being damaged by an earth quake in 2011.

The new high school has received accolades for its student achievement, which puts it in the top 25 percent of high schools in the country.

What’s Not to Like?

Homes for families, singles, first-time buyers, and downsizing seniors. Inviting spots for great golfing, hiking, swimming and you name it.

There is something for everyone in this lovely and active community. “When you move into Spring Creek,” Sherry Palmer says, “you know you’re going to get top of the line.”

THE REAL ESTATE WEEKLY WWW.C-VILLE.COM NOVEMBER 2329, 2022 ISSUE 3147 10 Mortgage Loans A new home on Santa’s wish list this year? Give our Mortgage Lending team a call today ! *Offer of Credit Subject to Credit Approval. Crystal Gaines Financial Center Manager NMLS# 1751241 540.778.6394 cgaines@pioneerbks.com Richard Owen, VP Senior Commercial Loan Officer NMLS# 206364 540.778.6393 rowen@pioneerbks.com 58 Stoneridge Dr. North Ruckersville, VA 22968 Purchase | Refinance | Non Conforming | Home Equity Lines Construction | Home Improvement | Raw Land Make your Move
REALTORS® are members of the National Association of REALTORS® REALTORS® are members of the National Association of REALTORS® THE REALTOR CODE OF ETHICS Never heard of it? It’s probably because our code is something we like to practice rather than preach. It’s a commitment to honesty, integrity, and trust that’s been protecting property owners like you since 1913.

SPRING HILL

$2,495,000 | MLS 630710

Beautiful 207+ acre farm in a protected enclave of Madison County with incredible views of both the Blue Ridge and Southwest Mountains. The natural beauty and privacy are unparalleled. An attractive farmhouse with a c. 1804 section is perfect as a weekend getaway or guesthouse leaving numerous incredible building sites for a main residence. Additional improvements include a large pond with dock, pool, manager’s cottage, a center aisle stable with 8, 12 x 12 stalls and finished office space above, garage and good farm buildings and farm infrastructure An excellent candidate for conservation easement.

PETER A. WILEY | 434 422 2090

HEADQUARTERS

$2,490,000 | MLS 633952

Headquarters, circa 1837, is located west of Charlottesville in the foothills of the Blue Ridge Mountains, one of White Hall's/Browns Cove's most historically significant and best preserved properties married with a tastefully designed 2005 addition. The 5 bedroom, 4 bath home sits on 50 acres of pasture and mature hardwoods with stunning views of the pond and surrounding mountains. The estate includes a managers house, stable, utility barn, and numerous other dependencies. Incredibly private surrounded by the natural beauty of the Blue Ridge Mountains. Doyles River frontage. Property can also be purchased with 428 acres for $5,250,000.

JUSTIN H. WILEY | 434 981 5528

PETER A. WILEY | 434 422 2090

SOLITE FARM

$910,000 | MLS 630924

129 rolling acres minutes from the Village of Fork Union. The land is a mix of open crop/pasture, and hardwood forest, and is in two tax map parcels. The existing driveway enters the property from West Bottom Road and continues on past the beautiful two acre pond to a perfect elevated home site. The larger of the two parcels also has frontage on Route 15, and has 11 acres zoned commercial. The open land is currently leased as crop land. Great farm property, or solid investment.

JUSTIN H. WILEY | 434 981 5528

GREYLEDGE

$6,950,000 | MLS 634509

A spectacular 1842 Virginia Landmark situated on a 739acre estate with magnificent views of the Blue Ridge & Allegheny mountains. The original architectural elements: 17-inch thick, Flemish bond laid brick walls, oversized 6 over 6 windows, 13 fireplaces, plaster walls and tongue and groove flooring have been expertly paired with all the modern conveniences. The 9723 sq ft Greek Revival residence has been meticulously renovated to a pristine level rarely seen. The residence sits at 1200 feet overlooking the beautiful 6-acre lake w/ layered mountain views beyond. The level of natural beauty & privacy enjoyed from the residence is unparalleled. 20 min south of Lexington & 30 min to Roanoke airport, 7 min to Town of Buchanan.

JUSTIN H. WILEY | 434 981 5528

PETER A. WILEY | 434 422 2090

VERULAM FARM

$10,500,000 | MLS 622844

One of Virginia’s preeminent estates, Verulam is nestled on 503 acres in the breathtaking foothills of the Blue Ridge Mountains, conveniently located just 4 miles from the University of Virginia and modern amenities of Charlottesville. The Classical Revival manor, offers an easy elegance with both formal and informal spaces that flow seamlessly to bucolic grounds, formal Charles Gillette designed gardens and handsome pool complex. Additional amenities include a charming guest house and restored dairy barn turned grand event venue. The farm abuts 1,000+ additional acres of protected land including the Ragged Mountain Reservoir Natural Area.

JUSTIN H. WILEY | 434 981 5528

PETER A. WILEY | 434 422 2090

FOSTERS BRANCH

$575,000 | MLS 623681

First time ever on the open market, two exceptional parcels with incredible views over Charlottesville and layered Blue Ridge Mountains beyond. These private parcels, perched on the western slope of the Southwest Mountains, offer complete seclusion yet are only 15 minutes from downtown Charlottesville, its restaurants, amenities and UVA. Perfect as a family compound or build on one and sell the other. Please do not drive on property without an appointment.

PETER A. WILEY | 434 422 2090

11 NOVEMBER 2329, 2022 ISSUE 3147 THE REAL ESTATE WEEKLY WWW.C-VILLE.COM
WILEYPROPERTY.COM
ORANGE VA | 540 672 3903 CHARLOTTESVILLE VA | 434 293 3900

All advertising published in the REAL ESTATE WEEKLY is believed to be truthful and accu rate. No advertising will be published in the Real Estate Weekly if it is known to be inaccu rate or untruthful, but this publication does not warrant, nor is it liable for, the accuracy or truthfulness of the advertising placed within this publication. Neither the Real Estate Weekly, Inc., nor its corporate parent, the C-VILLE Weekly, assume any responsibility and shall have no liability whatsoever for errors, including without limitation, typographical errors or omissions in the REAL ESTATE WEEKLY.

The Real Estate Weekly, Inc. reserves the right to edit or refuse any advertising it deems inappro priate or misleading. No advertising will be published in the Real Estate Weekly if it is known to be inaccurate or untruthful. Every effort has been made to assure accuracy, but this publication does not warrant, nor is it liable for the advertising placed within this publication. This publication will not accept advertising that refers to or attempts to establish fees or rates of commissions charged for services rendered.

All real estate advertised herein is subject to the Federal Fair Housing Act, which makes it illegal to advertise “any preference, limitation, or discrimination because of race, color, religion, sex, handicap, familial status, or national origin, or intention to make any such preference, limitation, or discrimination.” Virginia Fair Housing Law also makes it illegal to discriminate because of elderliness (age 55 and over). We will not knowingly accept any advertising for real estate which is in violation of the law. All per

are hereby informed that all dwellings advertised are available on an equal opportunity basis.

THE REAL ESTATE WEEKLY WWW.C-VILLE.COM NOVEMBER 2329, 2022 ISSUE 3147 12
308 E. East Main Street • Charlottesville, VA 22902 • e-mail: ads@c-ville.com Send your news and/or press releases to editorREW@gmail.com THE Staff: EDITORIAL COORDINATOR Celeste Smucker • REWeditor@c-ville.com MARKETING SERVICES DESIGNER Tracy Federico designer@c-ville.com The Real Estate Weekly Is printed on 100% recycled paper Beth Wood beth@c-ville.com 434.996.4019 Theresa McClanahan theresa@c-ville.com Faith Gibson ads@c-ville.com SENIORS Safe at Home “I had been living in a home that was not safe or healthy for me or anyone else. I don’t know where I would be living today if it weren’t for AHIP.” —Seniors Safe at Home client SENIORS Safe at Home 179 elderly neighbors are waiting for critical home repairs right now. Your support will keep them safe. Seniors Safe at Home helps local senior citizens age in place by taking care of urgent repairs: leaking roofs, access ramps, plumbing and electrical issues, failed furnaces, and more. AHIP + CAAR + BRHBA | AHIPVA.org SPONSORS Champion: Wells Fargo Benefactors: Pape and Company, Inc. and Home Instead Senior Care Supporters: Better Living, Inc.; Central Virginia Waterproofing; and Blue Ridge Termite and Pest Management FINE PROPERTIES Extraordinary mountain and pastoral views from the all angles. Perched atop one of many rolling hills the stunningly renovated Georgian manor home, with first and second story elegant master suites. The land has an active organic farm, CONOR MURRAY MURDOCH MATHESON West Wind Live It Up Homes of Distinction in Central Virginia Look for our latest issue where you pick up C-VILLE Weekly
sons
13 NOVEMBER 2329, 2022 ISSUE 3147 THE REAL ESTATE WEEKLY WWW.C-VILLE.COM This detects smoke. We detect smokescreens. Housing discrimination isn’t always obvious. These are the kinds of smokescreens you might run into: “Sorry, we’ve changed our minds about selling.” “We just rented that apartment.” “It doesn’t look like you qualify for the loan.” If you believe you may be a victim of housing discrimination, contact HUD or your local Fair Housing Center: Visit www.hud.gov/fairhousing or call the HUD Hotline 1-800-669-9777 (voice) 1-800-927-9275 (TTY) Your Choice. Your Right. Your Home. A public service message from the U.S. Department of Housing and Urban Development in partnership with the National Fair Housing Alliance. The federal Fair Housing Act prohibits discrimination because of race, color, religion, national origin, sex, familial status or disability. For more information, visit www.hud.gov/fairhousing

Turn static files into dynamic content formats.

Create a flipbook
Issuu converts static files into: digital portfolios, online yearbooks, online catalogs, digital photo albums and more. Sign up and create your flipbook.