Information Memorandum_53 Elm Park Drive, Hoppers Crossing

Page 1


As Melbourne’s leading independent commercial property agency, we take pride in creating worth across all four points of this city.

of

06. Sales Process

07. Appendices

Zoning and Overlays

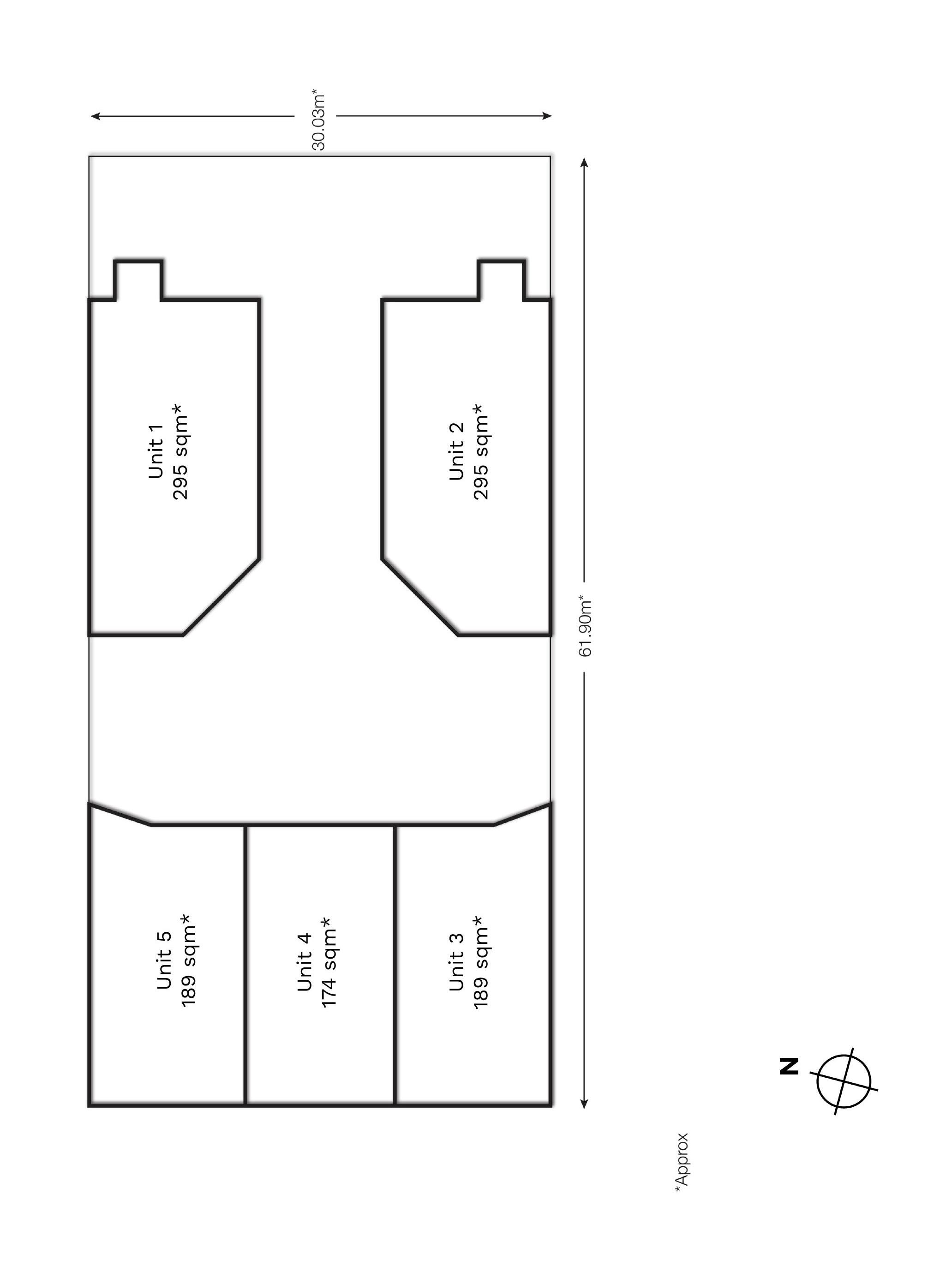
Floorplan Plan of Subdivision

Tenancy Schedule

Rare opportunity to purchase your own whole industrial complex with scope for “value add”.

Set on a generous 1,860 sqm* site in one of Hoppers Crossing’s best-in-class precincts, 53 Elm Park Drive offers 5 versatile warehouses totaling 1,142 sqm* — 3 of which are already leased on solid terms, offering immediate rental income. With 2 units vacant and ready for occupation, the whole-package estate suits both owner-occupiers looking to anchor their business and investors chasing a value-packed, income-generating asset.

Each industrial unit comes with heating and cooling in the offices, allocated car parks, and access via a secure gated entry, all within an Industrial 1 Zone. The layout invites flexibility — lease them all, occupy part, or reconfigure over time — while the estate’s strategic location ensures long-term growth and connectivity. Princes Highway is 1.5 km* away, while Old Geelong Road’s retail prowess is only a short walk from here, boasting JB Hi-Fi, Officeworks, and Anaconda.

1,142 sqm*

1,860 sqm*

1.5 km*

Total building area.
To Princes Freeway
Total land area.
Multi-use warehouse configurations within a secure gated estate.
Zoning.
Car spaces on site.

You might be buying your first or fortifying your fifth; regardless, this readymade estate is a portfolio piece with punch. Grow, lease, occupy, or do a bit of everything — it gives options, and the returns to match.

Anders Skoglund | 0409 101 022 anders.skoglund@cva.melbourne

“Where some properties tick boxes, this one offers options — a rare mix of rental return, vacant space, and long-term potential.”

With an eye for commercial detail, Anders can identify the unique elements of a property to expertly match the needs of his clients. He learned this from his extensive experience in residential real estate, but the problem-solving reflexes came from obtaining his pilot’s license in his spare time. This is an example of Anders’ hunger to always be chasing further growth and knowledge, regardless of what’s in the calendar. Approachable by nature but diligent by nurture, Anders has a reputation for making every sales and leasing campaign better — as well as the team he’s a part of.

Leo Mancino | 0418 343 147 leo.mancino@cva.melbourne

“An industrial opportunity with dual personalities — earn from three, move into two, and reshape the future as you see fit.”

It’s the expertise accumulated over three decades paired with a realistic outlook on life, that makes Leo not just a seasoned director to the CVA team, but a significant asset when it comes to dealing with yours. From personable first impressions to successful business transactions, he has not just built a solid and loyal client base, but developed negotiation techniques that have earned him great respect in this city’s industry.

Domenic Sgambellone | 0418 327 676 domenic.sgambellone@cva.melbourne

“A smart, secure holding in the west’s most connected industrial precinct — the kind of asset that underpins a strong portfolio.”

Thanks to more than four decades of experience, Domenic is no stranger to commercial real estate. In fact, he’s likely had a hand in several transactions you missed out on. Incredibly thorough, undoubtedly reliable. Domenic relishes the opportunity that commercial delivers, particularly in making a difference in the community he operates — but it’s his personable professionalism from beginning to end that will see him more as a partner in your portfolio. Present. Driven. Human. It’s his pursuit of creating a lasting legacy for his clients’ future generations that has already solidified his own within the industry.

Phoebe Nguyen | (03) 9623 2579 phoebe.nguyen@cva.melbourne

From over a decade working in retail, Phoebe’s customer service skills and working quickly on her feet have led to the perfect runway for a career in independent real estate. Efficient. Loyal. Hardworking. Property was always a natural evolution, as the ever-evolving nature of the industry coupled with her zest for challenges and stamina for solutions made this move as seamless as the ones she assists with. Either asking questions or answering yours, Phoebe will stop at nothing to keep every process, campaign, and email thread as buttoned up as her blazer.

A rare opportunity to acquire a full-spectrum industrial estate that blends flexibility, income, and long-term potential across a commanding 1,860 sqm* landholding. This tightly held address presents five individually titled warehouses totalling 1,142 sqm*, designed for multi-use adaptability and portfolio versatility. Three of the five units are already leased on secure terms, delivering immediate, passive income. The remaining two units are offered with vacant possession, inviting owner-occupiers to strategically position their operations or astute investors to realise full tenancy across the board.

Each warehouse is intelligently configured to accommodate contemporary business needs, with dedicated office areas complete with heating and cooling for year-round comfort. Every unit is serviced with allocated car parks, and all enjoy streamlined access via a secure gated entry, enhancing operational efficiency and peace of mind. The complex sits within an Industrial 1 Zone, opening the door to a range of commercial and light industrial uses. With the flexibility to occupy part, lease the rest, or reconfigure tenancies over time, this asset adapts as your business or portfolio evolves. Whether you’re consolidating, expanding, or diversifying, this complete industrial package is equipped to perform from day one.

Principle Outgoings

Site Details

Title particulars

Outgoings

$35,000 per annum approx.

Owners corporation No Owners corporation

Frontage to Elm Park Drive 30.03 metres*

Northern side boundary 61.90 metres*

Southern side boundary 61.90 metres*

Western side boundary 30.03 metres*

Total site area 1,860 square metres*

Certificate of Title - Volume 11064 Folio 686

Certificate of Title - Volume 11064 Folio 687

Certificate of Title - Volume 11064 Folio 688

Certificate of Title - Volume 11064 Folio 689

Certificate of Title - Volume 11064 Folio 690

Lots 1, 2, 3, 4, 5 on Plan of Subdivision 604407C

Zoning Industrial 1 Zone

Municipality City of Wyndham

All signs point to: Elm Park Drive

Situated within the tightly held Elm Park Drive estate, this address benefits from direct connectivity just 1.5 km* from the Princes Freeway, ensuring seamless arterial access across Melbourne’s western growth corridor. Proximity to Old Geelong Road elevates the convenience factor — home to large-format retailers like JB Hi-Fi, Officeworks, and Anaconda, enhancing amenity and visibility for trade-driven businesses. With immediate freeway links and a walkable commercial precinct, the position is tailored to support logistics, warehousing, and light industrial functions in a thriving ecosystem. Here are some notable aspects and benefits of buying property in this area:

Proximity to Major Arterials:

Elm Park Drive is just 1.5 km* from the Princes Freeway, providing seamless access to Melbourne CBD, the western industrial corridor, and regional logistics routes. This strategic positioning helps streamline transport, deliveries, and staff commutes.

Established Industrial Precinct:

Located in one of Hoppers Crossing’s most active and established industrial zones, the area attracts a strong mix of local businesses, service providers, and logistics operators. This means built-in demand, reliable foot traffic, and strong surrounding business activity.

Nearby Retail & Trade Amenities:

Just minutes away from Old Geelong Road’s retail strip, including JB Hi-Fi, Officeworks, and Bunnings — offering convenience for staff and easy access to business essentials. Your team and clients benefit from a well-connected location with everything close at hand.

Secure and Business-Friendly Environment:

The precinct features wide roads, secure gated properties, and dedicated on-site parking — ideal for both client-facing operations and trade-based businesses. Operate with confidence in a well-planned estate designed for efficiency and safety.

Growth-Focused Location:

Part of the high-growth City of Wyndham, Hoppers Crossing continues to benefit from population expansion, infrastructure upgrades, and rising commercial demand. It’s a future-proofed area perfect for businesses ready to scale or invest long term.

AND THE POINT?

Strategic. Connected. Proven.

An established industrial locale that delivers on both visibility and viability, in one of the west’s most active logistics corridors.

All signs point to: Hoppers Crossing

Hoppers Crossing stands as one of Wyndham’s foundational suburbs, located just 24 km west of Melbourne’s CBD. With a median age of 37 and a population exceeding 37,000, it balances family-oriented living with a dynamic labour force, reinforcing its role as a hub for both residential and industrial growth. The suburb features essential infrastructure including the Hoppers Crossing Railway Station and Pacific Werribee shopping complex, making it an ideal location for work-life integration.

The area exhibits a predominance of standalone housing (84.8%), with a strong owner-occupier and purchasing demographic (over 77% combined), reflecting stability and community longevity. Median house prices sit at $620,000, with units at $417,500 — indicating sustained affordability and potential for capital appreciation. Backed by vital transport links and recreation amenities like AquaPulse and Heathdale Wetlands, Hoppers Crossing continues to attract both residents and industrial occupiers alike.

And the point?

Hoppers Crossing is a thriving business destination in Melbourne’s west, offering a strategic location just minutes from the Princes Freeway and key freight routes that connect directly to the CBD, Port of Melbourne, and regional Victoria. As part of the rapidly growing City of Wyndham, the area is supported by strong population growth and increasing demand for commercial and industrial services. This growth fuels consistent foot traffic, a reliable workforce, and long-term economic potential for businesses of all sizes.

RECENT MARKET TRANSACTIONS

21 STAR CIRCUIT, DERRIMUT

Sale Price: $700,000 Date: April 2025

Building Area: 262 sqm* Rate: $2,672 per sqm*

Zoning: Industrial 1 Zone

Description: Modern warehouse with mezzanine, roller door, kitchenette, and parking in a brand-new business park near Western Fwy and Boundary Rd.

Sale Price: $600,000 Date: November 2024

Building Area: 133 sqm* Rate: $4,511 per sqm*

Zoning: Industrial 2 Zone

Description: Premium office-warehouse with firstfloor office and container access, designed for modern, value-driven businesses.

LOT 73, UNIT 3E/36 HUME ROAD, LAVERTON NORTH

Sale Price: $525,000 Date: January 2025

Building Area: 113 sqm* Rate: $4,646 per sqm*

Zoning: Industrial 2 Zone

Description: Versatile warehouse with office, mezzanine, parking, and secure access in Melbourne’s industrial hub.

1 & 2/415-417 OLD GEELONG ROAD, HOPPERS CROSSING

Sale Price: $3,980,000 Date: August 2024

Building Area: 1,193 sqm* Rate: $3,336 per sqm*

Zoning: Industrial 1 Zone

Description: Fully leased site with strong income, main road exposure, and development potential near Princes Fwy.

LOT 47, UNIT 11B/36 HUME ROAD, LAVERTON NORTH

3/387-393 OLD GEELONG ROAD, HOPPERS CROSSING

Lease Price: $46,305 Date: November 2024

Building Area: 343 sqm* Rate: $135 per sqm*

Zoning: Industrial 1 Zone

Description: Clear-span warehouse with amenities and parking, near Princes Fwy and major retailers. Ideal for storage, retail or distribution.

Lease Price: $40,000 Date: April 2024

Building Area: 310 sqm* Rate: $129 per sqm*

Zoning: Industrial 3 Zone

Description: Warehouse with dual-level offices, highclearance roller door, secure access, and parking, in prime Hoppers Crossing near Princes Highway.

Lease Price: $33,000 Date: August 2024

Building Area: 191 sqm* Rate: $173 per sqm*

Zoning: Industrial 1 Zone

Description: Near-new warehouse with office, 3-phase power, and 4 car spaces, just 2 km from Princes Freeway near Old Geelong Road.

Lease Price: $40,000 Date: February 2024

Building Area: 304 sqm* Rate: $132 per sqm*

Zoning: Industrial 3 Zone

Description: Office/warehouse with roller door and secure parking, near Old Geelong Road and major retailers.

5/16-17 HAMMER COURT, HOPPERS CROSSING
5/8 INDUSTRIAL AVENUE, HOPPERS CROSSING
2/9 MOTTO COURT, HOPPERS CROSSING

Private Sale Process

At CVA, we are dedicated to providing a professional and transparent experience throughout the private sale process.

To ensure clarity and fairness, we have outlined the key steps below, allowing prospective purchasers to fully understand the process when submitting an offer.

1. Submitting Offers

Offers can be submitted at any point during the private sale period, as there is no fixed closing date. We recommend that all interested parties submit their strongest offer using the provided documentation, ensuring all fields are completed and the form is signed. Once submitted, your offer will be promptly presented to the vendor for consideration.

2. Review Process

Upon receipt, all offers are carefully reviewed by the vendor. We will communicate any feedback or decisions regarding your offer in a timely manner. Unlike auctions or formal Expressions of Interest campaigns, the private sale allows the vendor the flexibility to accept, negotiate, or decline offers at their discretion as they are received.

3. Contract and Settlement

Should your offer be accepted, a formal contract of sale will be prepared. At this stage, a deposit may be required to secure the property. The agreed terms of the contract, including the settlement period, will then be finalised between the buyer and vendor.

We strive to maintain open communication and provide professional guidance throughout the private sale process, ensuring a seamless experience for all parties involved.

For more information, contact

Anders Skoglund

0409 101 022

anders.skoglund@ cva.melbourne

Leo Mancino

0418 343 147 leo.mancino@ cva.melbourne

Domenic Sgambellone

0418 327 676 domenic.sgambellone@ cva melbourne

33.03

31/07/2018 VC148

INDUSTRIAL 3 ZONE

Shown on the planning scheme map as IN3Z

Purpose

To implement the Municipal Planning Strategy and the Planning Policy Framework

To provide for industries and associated uses in specific areas where special consideration of the nature and impacts of industrial uses is required or to avoid inter-industry conflict

To provide a buffer between the Industrial 1 Zone or Industrial 2 Zone and local communities, which allows for industries and associated uses compatible with the nearby community

To allow limited retail opportunities including convenience shops, small scale supermarkets and associated shops in appropriate locations

To ensure that uses do not affect the safety and amenity of adjacent, more sensitive land uses.

33 03-1

14/01/2025 VC237

Table of uses

Section 1 - Permit not required

Automated collection point

Must meet the requirements of Clause 52.13-3 and 52.13-5.

The gross floor area of all buildings must not exceed 50 square metres.

Convenience shop

Crop raising

Grazing animal production

Home based business

Informal outdoor recreation

Mail centre

Railway

Service industry

Must not be a purpose listed in the table to Clause 53.10 with no threshold distance specified.

The land must be at least the following distances from land (not a road) which is in an Activity Centre Zone, Capital City Zone, Commercial 1 Zone, Docklands Zone, residential zone or Rural Living Zone, land used for a hospital, an education centre or a corrective institution or land in a Public Acquisition Overlay to be acquired for a hospital, an education centre or a corrective institution:

The threshold distance, for a purpose listed in the table to Clause 53.10.

30 metres, for a purpose not listed in the table to Clause 53.10.

Must not:

Exceed a fire protection quantity under the Dangerous Goods (Storage and Handling) Regulations 2022

Page 1 of 8

Use

Service station

Shop (other than Adult sex product shop, Convenience shop, Restricted retail premises and Supermarket)

Condition

Require a notification under the Occupational Health and Safety Regulations 2017

Require a licence under the Dangerous Goods (Explosives) Regulations 2011

Require a licence under Dangerous Goods (HCDG) Regulations 2016.

The land must be at least 30 metres from land (not a road) which is in an Activity Centre Zone, Capital City Zone, Commercial 1 Zone, Docklands Zone, residential zone or Rural Living Zone, land used for a hospital, an education centre or a corrective institution or land in a Public Acquisition Overlay to be acquired for a hospital, an education centre or a corrective institution.

Must adjoin, or be on the same lot as, a supermarket when the use commences.

The combined leasable floor area for all shops adjoining or on the same lot as the supermarket must not exceed 500 square metres.

The site must adjoin, or be within 30 metres of, a road in a Transport Zone 2 or a Transport Zone 3.

Supermarket

The leasable floor area must not exceed 1800 square metres.

The site must adjoin, or be within 30 metres of, a road in a Transport Zone 2 or a Transport Zone 3.

Must be on land within an urban growth boundary and in metropolitan Melbourne.

Take away food premises

Tramway

Warehouse (other than Fuel depot, Mail centre or Shipping container storage)

Must not be a purpose listed in the table to Clause 53.10 with no threshold distance specified.

The land must be at least the following distances from land (not a road) which is in an Activity Centre Zone, Capital City Zone, Commercial 1 Zone, Docklands Zone, residential zone or Rural Living Zone, land used for a hospital, an education centre or a corrective institution or land in a Public Acquisition Overlay to be acquired for a hospital, an education centre or a corrective institution:

The threshold distance, for a purpose listed in the table to Clause 53.10.

30 metres, for a purpose not listed in the table to Clause 53.10.

Must not:

Exceed a fire protection quantity under the Dangerous Goods (Storage and Handling) Regulations 2022.

Require a notification under the Occupational Health and Safety Regulations 2017

Require a licence under the Dangerous Goods (Explosives) Regulations 2011

WYNDHAM PLANNING SCHEME

ZONING AND OVERLAYS

Any use listed in Clause 62.01

Require a licence under the Dangerous Goods (HCDG) Regulations 2016

Must not adversely affect the amenity of the neighbourhood, including through the:

Transport of materials, goods or commodities to or from the land.

Appearance of any stored goods or materials.

Emission of noise, artificial light, vibration, odour, fumes, smoke, vapour, steam, soot, ash, dust, waste water, waste products, grit or oil

Must meet the requirements of Clause 62.01.

Section 2 - Permit required

Adult sex product shop

Must be at least 200 metres (measured by the shortest route reasonably accessible on foot) from a residential zone or land used for a hospital, primary school or secondary school or land in a Public Acquisition Overlay to be acquired for a hospital, primary school or secondary school.

Agriculture (other than Apiculture, Crop raising, Grazing animal production, Intensive animal production, Pig farm and Poultry farm)

Caretaker's house

Education centre

Industry (other than Automated collection point and Service industry)

Leisure and recreation (other than Informal outdoor recreation, Major sports and recreation facility, and Motor racing track)

Office

Place of assembly (other than Carnival, Cinema based entertainment facility and Circus)

Restricted retail premises

Retail premises (other than Shop and Take away food premises)

Must not be a primary or secondary school.

The leasable floor area must not exceed the amount specified in the schedule to this zone.

Page 3 of 8

WYNDHAM PLANNING SCHEME

Sex services premises - if the Section 1 conditions for a shop are not met

Utility installation (other than Minor utility installation and Telecommunications facility)

Any other use not in Section 1 or 3

Section 3 - Prohibited Use

Accommodation (other than Caretaker's house)

Cinema based entertainment facility

Hospital

Intensive animal production

Major sports and recreation facility

Motor racing track

Pig farm

Poultry farm

Shop (other than Adult sex product shop, Convenience shop, Restricted retail premises, Sex services premises and Supermarket) – if the Section 1 conditions are not met

Supermarket – if the section 1 conditions are not met

Amenity of the neighbourhood

A use must not adversely affect the amenity of the neighbourhood, including through the:

Transport of materials, goods or commodities to or from the land

Appearance of any stored goods or materials.

Emission of noise, artificial light, vibration, odour, fumes, smoke, vapour, steam, soot, ash, dust, waste water, waste products, grit or oil

Application requirements

An application to use land for an industry or warehouse must be accompanied by the following information, as appropriate:

The purpose of the use and the types of processes to be utilised

Page 4 of 8

WYNDHAM PLANNING SCHEME

33 03-3

31/07/2018

VC148

The type and quantity of goods to be stored, processed or produced

How land not required for immediate use is to be maintained.

Whether a Development Licence, Operating Licence, Permit or Registration is required from the Environment Protection Authority

Whether a notification under the Occupational Health and Safety Regulations 2017 is required, a licence under the Dangerous Goods Act 1985 is required, or a fire protection quantity under the Dangerous Goods (Storage and Handling) Regulations 2022 is exceeded

The likely effects, if any, on the neighbourhood, including:

– Noise levels

– Air-borne emissions

– Emissions to land or water

– Traffic, including the hours of delivery and despatch.

– Light spill or glare

Decision guidelines

Before deciding on an application, in addition to the decision guidelines in Clause 65, the responsible authority must consider, as appropriate:

The Municipal Planning Strategy and the Planning Policy Framework

The effect that the use may have on nearby existing or proposed residential areas or other uses which are sensitive to industrial off-site effects, having regard to any comments or directions of the referral authorities.

The effect that nearby industries may have on the proposed use

The drainage of the land

The availability of and connection to services

The effect of traffic to be generated on roads.

The interim use of those parts of the land not required for the proposed use

The effect on nearby industries

Subdivision

Permit requirement

A permit is required to subdivide land.

VicSmart applications

Subject to Clause 71 06, an application under this clause for a development specified in Column 1 is a class of VicSmart application and must be assessed against the provision specified in Column 2.

Class of application

Subdivide land to realign the common boundary between 2 lots where:

The area of either lot is reduced by less than 15 percent.

The general direction of the common boundary does not change.

Information requirements and decision guidelines

Clause 59.01

Page 5 of 8

ZONING AND OVERLAYS

Class of application

Subdivide land into lots each containing an existing building or car parking space where:

The buildings or car parking spaces have been constructed in accordance with the provisions of this scheme or a permit issued under this scheme.

An occupancy permit or a certificate of final inspection has been issued under the Building Regulations in relation to the buildings within 5 years prior to the application for a permit for subdivision.

Subdivide land into 2 lots if:

The construction of a building or the construction or carrying out of works on the land:

– Has been approved under this scheme or by a permit issued under this scheme and the permit has not expired.

– Has started lawfully

The subdivision does not create a vacant lot.

Exemption from notice and review

Clause 59.02

Clause 59.02

33.03-4 01/12/2023 VC217

An application is exempt from the notice requirements of section 52(1)(a), (b) and (d), the decision requirements of section 64(1), (2) and (3) and the review rights of section 82(1) of the Act This exemption does not apply to land within 30 metres from land (not a road) which is in a residential zone or land used for a hospital or an education centre or land in a Public Acquisition Overlay to be acquired for a hospital or an education centre

Decision guidelines

Before deciding on an application, in addition to the decision guidelines in Clause 65, the responsible authority must consider, as appropriate:

The Municipal Planning Strategy and the Planning Policy Framework

Any natural or cultural values on or near the land

Streetscape character.

Landscape treatment

Interface with non-industrial areas

Buildings and works

Permit requirement

A permit is required to construct a building or construct or carry out works

This does not apply to:

A building or works which rearrange, alter or renew plant if the area or height of the plant is not increased

A building or works which are used for crop raising or informal outdoor recreation

A rainwater tank with a capacity of more than 10,000 litres if the following requirements are met:

Page 6 of 8

ZONING AND OVERLAYS

– The rainwater tank is not located within the building’s setback from a street (other than a lane)

– The rainwater tank is no higher than the existing building on the site

– The rainwater tank is not located in an area that is provided for car parking, loading, unloading or accessway

A building or works which are used for grazing animal production, except for permanent or fixed feeding infrastructure for seasonal or supplementary feeding constructed within 100 metres of:

A waterway, wetland or designated flood plain.

– A dwelling not in the same ownership

A residential or urban growth zone

VicSmart applications

Subject to Clause 71.06, an application under this clause for a development specified in Column 1 is a class of VicSmart application and must be assessed against the provision specified in Column 2.

Class of application

Construct a building or construct or carry out works with an estimated cost of up to $1,000,000 where the land is not:

Within 30 metres of land (not a road) which is in a residential zone.

Used for a purpose listed in the table to Clause 53.10.

Used for an Adult sex product shop.

Application requirements

Information requirements and decision guidelines

Clause 59.04

An application to construct a building or construct or carry out works must be accompanied by the following information, as appropriate:

A plan drawn to scale which shows:

– The boundaries and dimensions of the site

– Adjoining roads

– Relevant ground levels

– The layout of existing and proposed buildings and works

– Driveways and vehicle parking and loading areas.

– Proposed landscape areas

– External storage and waste treatment areas

– Mechanisms to mitigate noise, odour and other adverse amenity impacts of, and on, nearby industries.

Elevation drawings to scale which show the colour and materials of all buildings and works

Construction details of all drainage works, driveways and vehicle parking and loading areas

A landscape layout which includes the description of vegetation to be planted, the surfaces to be constructed, a site works specification and the method of preparing, draining, watering and maintaining the landscape area

Page 7 of 8

Decision guidelines

Before deciding on an application, in addition to the decision guidelines in Clause 65, the responsible authority must consider, as appropriate:

The Municipal Planning Strategy and the Planning Policy Framework

Any natural or cultural values on or near the land

Streetscape character

Built form.

Landscape treatment

Interface with non-industrial areas

Parking and site access

Loading and service areas.

Outdoor storage

Lighting

Stormwater discharge

The effect on nearby industries.

The effect of nearby industries

Maintenance

All buildings and works must be maintained in good order and appearance to the satisfaction of the responsible authority

33.03-5

31/07/2018 VC148 Signs

Sign requirements are at Clause 52 05 This zone is in Category 2

8 of 8

ZONING AND OVERLAYS

Page 1 of 1

Imaged Document Cover Sheet

The document following this cover sheet is an imaged document supplied by LANDATA®, Secure Electronic Registries Victoria.

Document Type

Document Identification

Number of Pages

(excluding this cover sheet)

Document Assembled

18/06/2025 15:25

Copyright and disclaimer notice:

© State of Victoria. This publication is copyright. No part may be reproduced by any process except in accordance with the provisions of the Copyright Act 1968 (Cth) and for the purposes of Section 32 of the Sale of Land Act 1962 or pursuant to a written agreement. The information is only valid at the time and in the form obtained from the LANDATA® System. None of the State of Victoria, LANDATA®, Secure Electronic Registries Victoria Pty Ltd (ABN 86 627 986 396) as trustee for the Secure Electronic Registries Victoria Trust (ABN 83 206 746 897) accept responsibility for any subsequent release, publication or reproduction of the information.

The document is invalid if this cover sheet is removed or altered.

Turn static files into dynamic content formats.

Create a flipbook
Issuu converts static files into: digital portfolios, online yearbooks, online catalogs, digital photo albums and more. Sign up and create your flipbook.
Information Memorandum_53 Elm Park Drive, Hoppers Crossing by CVA Property Consultants - Issuu