Skip to main content

4/35-37 Canterbury Road, Braeside

Page 1


As Melbourne’s leading independent commercial property agency, we take pride in creating worth across all four points of this city.

01. Point of Interest 02. Point of View 03. Property Features

04. Property Particulars

05. Location

06. Sales Process

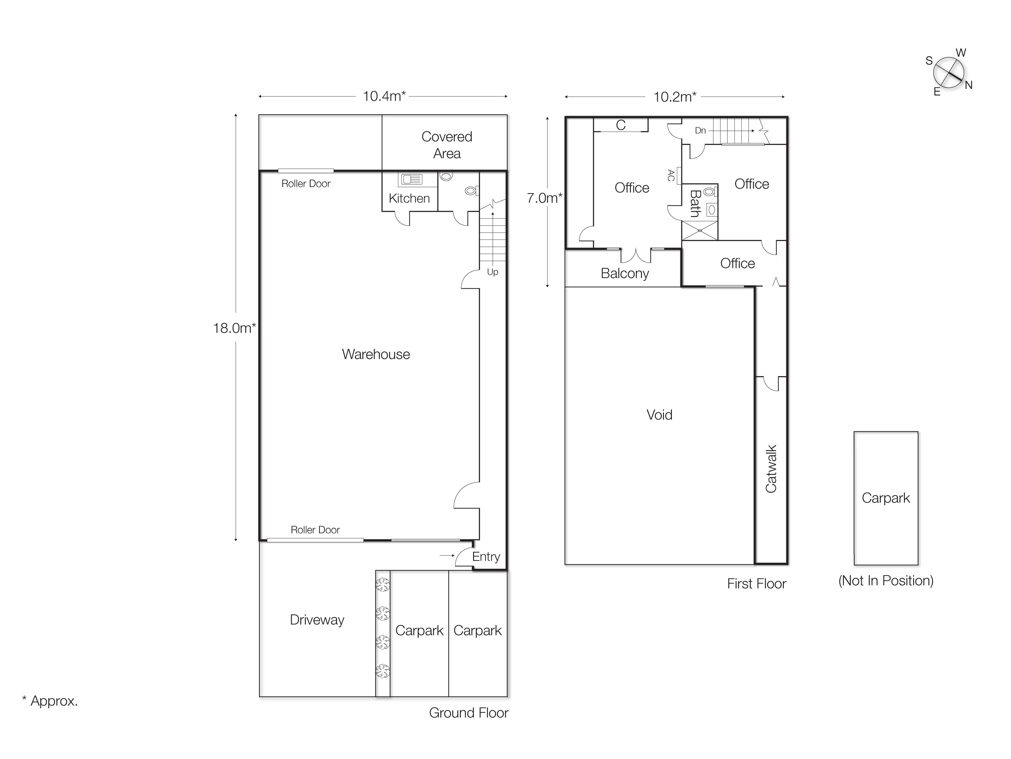
07. Appendices Floor Plan

Private Sale by Closing Date - Wednesday 18th March 2026 at 3pm, unless

A genuinely rare offering within the Braeside industrial precinct, Unit 4 delivers a level of finish and functionality seldom found in strata industrial property. The building presents with a high-quality, residentialgrade office fit-out, container-height roller door access, upgraded power supply and a unique rear yard complete with pizza oven — all within a total building area of 261 sqm*.

Positioned within a modern and tightly held industrial business park, the property benefits from excellent connectivity to key arterial roads including the Mornington Peninsula Freeway, Governor Road, Nepean Highway and Springvale Road. This is an exceptional opportunity for owner-occupiers or investors seeking a premium asset in the heart of Melbourne’s South-East industrial corridor.

Complete

Ventilation

Dual bathrooms, including shower
Split system heating and cooling
Modern fit-out with great natural light.

With its upgraded presentation, flexible layout, substantial power supply and highly accessible location, this property stands out as a compelling occupier or investment opportunity in a tightly held market.

Tim Cooney | Director - Southern Region tim.cooney@cva.melbourne

“Unit 4 blends industrial functionality with boutique office style — a rare find in Braeside.”

After five years spent working in commercial real estate in London, Tim is home in 2021. Melbourne born and bred with more than 5 years’ experience locally, there aren’t many who are better suited to this business. Diligent. Proactive. An honest communicator. Tim knows it’s in the face-toface where deals are won and lost for all parties. Because of this, he takes great care in building rapport and learning the long-term strategy of his clients to enable the best advice not just shortterm, but for life. Meticulously detailed and across all of the numbers, you’ll be glad you have Tim’s on hand – plus his support across all points of your deal.

Stirling Findlay | 0481 848 240 stirling.findlay@cva.melbourne

“A modern, versatile industrial asset with upgraded power and a unique outdoor space — perfect for business and lifestyle.”

Honest. Ambitious. Professional. From scaffolding sites to sales doors, Stirling built his work ethic the hard way — early starts, long days and zero shortcuts. But it was in commercial real estate that he found his stride: where discipline meets people, hustle meets strategy, and every move is about doing right by clients — helping each make decisions that matter, not just closing deals. Because Stirling knows, real estate can be complicated — but it doesn’t have to be. As the bridge, he spots opportunities, clears obstacles, and keeps clients connected to what matters most. The outcome? Smarter strategies, stronger deals, and relationships that last well beyond the contract.

The property features a thoughtfully designed office component that blends modern finishes with functional workspace design. A light-filled private office is fitted with a built-in workstation, overhead shelving, stone-look benchtops and sleek black trim detailing, complemented by warm timber flooring throughout. A striking circular internal window creates architectural interest while allowing natural light to flow between spaces, enhancing the professional and contemporary feel.

The warehouse area offers clear-span accommodation with exposed steel beams and high ceilings, providing excellent vertical clearance and flexibility for storage or operational use. A mezzanine level with steel balustrading overlooks the warehouse floor, adding additional utility and internal connectivity. Timber feature wall paneling introduces warmth to the industrial setting, while direct access to amenities and partitioned rooms ensures a practical layout suited to a range of business uses.

Principle Outgoings

Owners corporation

$1,346 per annum*

$842 per annum*

$2,768 per annum*

Land tax $975 per annum*

Site Details Frontage to street

Title particulars

Certificate of Title — Volume 11261 Folio 235 Lot 4 PS637412

Zoning Industrial 1 Zone (IN1Z)

Planning Overlays

Land Subject To Inundation Overlay (LSIO)

Municipality City of Kingston

All signs point to: Canterbury Road.

Positioned along Canterbury Road in one of the south-east’s most tightly held commercial ecosystems, this address sits at the centre of Melbourne’s trade, logistics, and lifestyle — where owner-occupiers can take knock-offs to the beach.

Caffeinated and catered.

Braeside isn’t just forklifts and roller doors — it’s a precinct with real day-to-day amenity stitched in. With an authentic woodfire pizzeria and a bevvy of breweries just minutes away, lunch breaks, client catch-ups, and after-hours decompression come with minimal detour and maximum reward.

Industry’s inner circle.

Surrounded by some of Melbourne’s most established industrial and trade operators, Braeside continues to be a cornerstone suburb for owner-occupiers chasing proximity to Moorabbin, Mentone, Cheltenham and the broader bayside business belt.

Everything within reach.

Major retail and service amenity is close at hand, with Southland Shopping Centre, Costco, and HomeCo. Keysborough all within easy access. It’s an industrial address that doesn’t leave lifestyle at the roller door.

Connected by every corridor.

With Nepean Highway, Boundary Road, Lower Dandenong Road and EastLink forming the immediate arterial spine, access to the CBD, Port of Melbourne and the broader south-east freight network is seamless. Add in the recent Peninsula Link upgrades, and the connection south toward Mornington and the bayside corridor is now smoother, quicker, and more future-proof than ever.

Exposure gets attention — rarity holds value. In a market full of standard warehouses, this Canterbury Road offering stands apart, backed by arterial access and a level of flexibility most commercial assets simply can’t match. AND THE POINT?

All signs point to: Braeside.

Braeside began as a bayside fringe of paddocks, market gardens and open land — a quiet stretch on Melbourne’s southern edge. Today, it has evolved into one of the south-east’s most tightly held industrial strongholds.

Connectivity is a defining strength. Braeside benefits from immediate access to Nepean Highway, Boundary Road, Lower Dandenong Road and EastLink, creating fast, efficient movement north to the CBD and Port of Melbourne, east toward Dandenong and the south-east growth corridor, and west through Melbourne’s arterial freight network.

Recent upgrades to the Peninsula Link have further elevated the suburb’s strategic appeal, streamlining travel between Braeside, Bayside, and the Mornington Peninsula. These improvements have reduced travel times, improved freight efficiency, and reinforced Braeside’s role as a

key operational midpoint between metropolitan Melbourne and the peninsula’s expanding residential and commercial markets — a dynamic that continues to drive demand from both owneroccupiers and businesses servicing multiple regions.

Land value has also increased steadily over time. With a local workforce catchment supported by surrounding residential hubs and a broader south-east population now exceeding 1.3 million residents, the suburb continues to benefit from deep demographic fundamentals — reinforcing Braeside as a market where scarcity, connectivity, and long-term growth trends converge.

Private Sale by Closing Date Process

At CVA, we provide prospective purchasers full transparency, fairness, and respect during the Private Sale process. To make our point, we’ve defined and outlined the process below so you’re across it prior to submitting an offer.

1. Submitting Offers:

Offers are due no later than the date and time advertised for the Private Sale campaign. They must be submitted through this form with every section completed, signed and emailed to the relevant contact persons by campaign closure. Any offers submitted after this time will be deemed as non-compliant.

Our point of view: we recommend all interested parties submit their best offer, as the vendor reserves the right to accept an initial offer or to deal exclusively with certain offers in a second round. If you can do so, we strongly encourage submitting an offer signed on a Contract of Sale as this may influence the vendors feedback and/or decision.

2. Review Process:

All offers will be compiled and presented to the vendor for their consideration after the closing of the Private Sale campaign.

Upon feedback, we will contact all parties promptly to communicate the vendors instructions relating to their offer. In the event of a second round, we will request all offers to be provided on a contract of sale with a deposit payable to the CVA Trust account, for the vendor’s consideration.

3. Contract and Settlement

Following the acceptance of an offer, a contract of sale will be prepared. At this stage, a deposit will typically be required to secure the property. The terms of the sale, including the settlement date, will then be finalised between the vendor and the successful buyer.

We are dedicated to maintaining clear communication and ensuring that all participants are fully informed throughout the private sale process by closing date. Our goal is to provide a seamless and respectful transaction for all parties involved.

For more information, contact

Tim Cooney

0468 860 737

tim.cooney@ cva.melbourne

Stirling Findlay

0481 848 240

stirling.findlay@ cva.melbourne

Turn static files into dynamic content formats.

Create a flipbook
4/35-37 Canterbury Road, Braeside by CVA Property Consultants - Issuu