Skip to main content

1190 Glen Huntly Road, Glen Huntly

Page 1


As Melbourne’s leading independent commercial property agency, we take pride in creating worth across all four points of this city.

01. Point of Interest 02. Point of View 03. Property Features

04. Property Particulars

05. Location

06. Sales Process

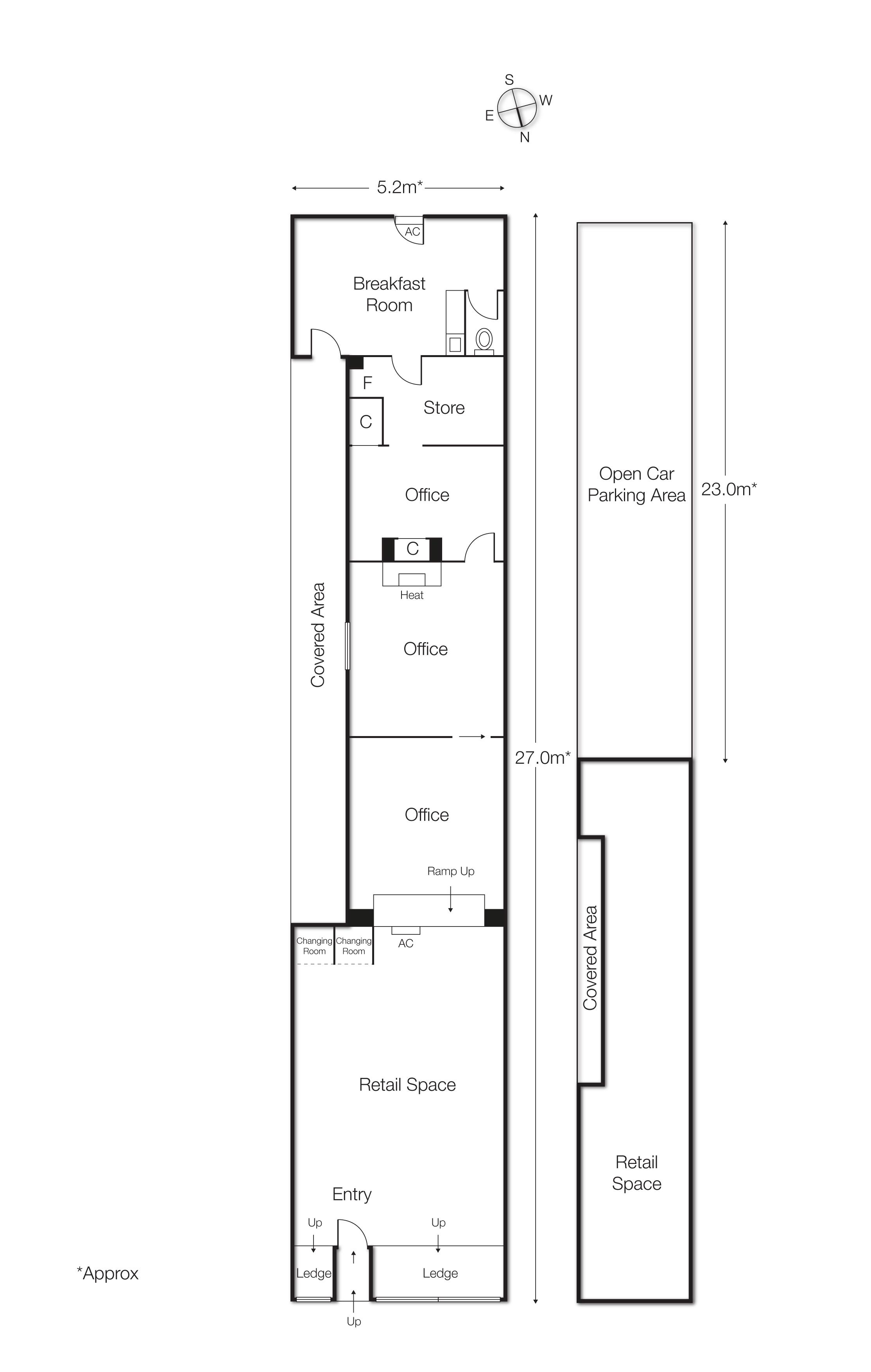
07. Appendices Floor Plan

FOR SALE VIA AUCTION - THURSDAY 19 MARCH AT 2.30PM.

Set right in the heart of this tightly held shopping strip, this single-level 125 sqm* freehold delivers a bold 5.4 m* frontage just 100 m* from the newly upgraded Glen Huntly railway station, with Woolworths around the corner doing what it does best: pulling constant foot traffic past your front door. Recently vacated and ready for its next logo, the property sits on 272 sqm* of Commercial 1 zoned land, offering the kind of flexibility that speaks fluently to owner-occupiers, investors, and developers alike. Inside is a bright, functional retail space with rear rooms for office or storage, plus a kitchenette, bathroom facilities, and heating/cooling already in place. But the real rarity is out the back — a generous rear yard with laneway access and parking for up to 6 cars, giving hospitality, medical, retail, or future mixed-use ambitions room to breathe.

Surrounded by established multi-level developments and positioned on one of Glen Huntly’s most connected corners, this is a precinct-backed platform to occupy now, land-bank smartly, or deliver the next standout addition to the strip.

On-site

Total building area.
Total land area.
Frontage to Glen Huntly Road’s shopping precinct.
Metres from Woolworths, BWS, the 67 tram stop, and Glen Huntly Village.
From Glen Huntly railway station. Zoning.
To Dandenong Road.

The Glen Huntly double-track advantage: commuters out front, Woolworths shoppers around the corner. Retail here doesn’t rely on luck; it runs on routine.

Tim Cooney | 0468 860 737 tim.cooney@cva.melbourne

“Steps from Glen Huntly railway station and around the corner from Woolworths, this is bluechip freehold buying in Glen Huntly’s busiest pocket.”

After five years spent working in commercial real estate in London, Tim is home in 2021. Melbourne born and bred with more than 5 years’ experience locally, there aren’t many who are better suited to this business. Diligent. Proactive. An honest communicator. Tim knows it’s in the face-toface where deals are won and lost for all parties. Because of this, he takes great care in building rapport and learning the long-term strategy of his clients to enable the best advice not just shortterm, but for life. Meticulously detailed and across all of the numbers, you’ll be glad you have Tim’s on hand – plus his support across all points of your deal.

Stirling Findlay | 0481 848 240 stirling.findlay@cva.melbourne

“A Commercial 1 landholding with rear access and parking, metres to Dandenong Road — built to occupy now or redevelop for tomorrow.”

Honest. Ambitious. Professional. From scaffolding sites to sales doors, Stirling built his work ethic the hard way — early starts, long days and zero shortcuts. But it was in commercial real estate that he found his stride: where discipline meets people, hustle meets strategy, and every move is about doing right by clients — helping each make decisions that matter, not just closing deals. Because Stirling knows, real estate can be complicated — but it doesn’t have to be. As the bridge, he spots opportunities, clears obstacles, and keeps clients connected to what matters most. The outcome? Smarter strategies, stronger deals, and relationships that last well beyond the contract.

The existing improvements present as a bright, well-maintained retail environment with a clean, contemporary aesthetic that immediately feels open and inviting. Polished timber flooring runs throughout, complemented by high ceilings and modern suspended lighting that evenly illuminates the space. The expansive glazed shopfront draws in strong natural light while creating excellent exposure to passing foot and vehicle traffic along Glen Huntly Road. A centrally positioned service counter anchors the front retail zone, while full-height wall shelving and display systems line the perimeter, offering practical merchandising infrastructure that can be retained, removed, or reconfigured depending on the incoming operator’s requirements. Heating and cooling are already installed, supporting year-round comfort and genuine turnkey functionality.

The layout extends seamlessly into a secondary rear section, providing additional display, consulting, or storage space while maintaining clear sightlines and operational flow from front to back. This configuration allows for separation between customer-facing retail and back-of-house functions

without compromising openness. Rear amenities, including kitchenette and bathroom facilities, add day-to-day convenience for staff and support a wide range of uses. Overall, the improvements offer a flexible and adaptable foundation suited to retail, medical, beauty, showroom, or professional services, enabling occupiers to move straight in or undertake a light cosmetic refresh to align the space with their brand vision.

Zoning Commercial 1 Zone (CIZ)

Planning Overlays

Parking Overlay - Precinct 2-2 (PO2-2)

Municipality City of Glen Eira

All signs point to: Glen Huntly Road.

Glen Huntly Road combines transport connectivity, daily-needs retail anchors and a growing residential catchment to create one of Melbourne’s most reliable and tightly held village trading environments. Here are some notable aspects and benefits of buying property in this area:

Strong Lifestyle & Community Appeal:

Positioned within the vibrant Glen Huntly precinct, the strip benefits from a familyoriented, café-driven and service-focused local culture. This strong sense of community encourages repeat visitation, longer dwell times and loyal customer relationships that underpin sustainable business performance.

Major Supermarket & Daily-Needs Anchors:

With Woolworths and BWS located within metres, the precinct enjoys strong daily visitation driven by essential shopping. These national brands act as foot-traffic magnets, ensuring consistent customer flow and encouraging cross-shopping across neighbouring businesses.

High-Exposure Village Retail Strip:

Glen Huntly Road is a tightly held, well-established shopping village with strong street activation and limited vacancy. The strip blends national tenants with long-standing local operators, creating a vibrant retail ecosystem where businesses benefit from community loyalty and repeat custom..

Growing Residential Catchment:

Surrounded by established housing and ongoing medium- to high-density residential developments, the immediate catchment continues to expand. This population growth strengthens demand for food, medical, lifestyle and service retail, providing businesses with a built-in and growing customer base within walking distance..

Strategic Road & Arterial Access:

Located moments from Dandenong Road, one of Melbourne’s key arterial routes, the precinct offers seamless connectivity to the CBD and south-eastern suburbs. Easy vehicle access, combined with public transport options, ensures convenience for customers, staff and suppliers — a critical advantage for modern retail and service operators.

Connected. Consistent. Proven.

Glen Huntly Road offers consistent, commuter-driven foot traffic and a loyal village catchment that keeps businesses trading strongly year-round. AND THE POINT?

All signs point to: Glen Huntly.

The Glen Huntly region is one of Melbourne’s most attractive precincts for businesses seeking a blend of visibility, connectivity, and consistent foot traffic. Situated just steps from the upgraded Glen Huntly railway station and serviced by the Route 67 tram, the area ensures a constant flow of commuters throughout the day. This accessibility is complemented by major retail anchors such as Woolworths and BWS, which attract a steady stream of shoppers. Businesses located along Glen Huntly Road benefit from this regular, routine-driven traffic, making it an ideal location for retailers, hospitality operators, and service providers looking for visibility, high exposure, and a reliable customer base.

In addition to transport and retail connectivity, Glen Huntly is supported by a growing residential population, including medium- to high-density housing developments, which creates a strong local customer catchment. The precinct’s

vibrant village atmosphere fosters community engagement, encouraging repeat visitation and longer dwell times in shops, cafés, and services. Strategic road access via Dandenong Road further enhances convenience for customers, suppliers, and staff, making the area easy to reach by both car and public transport. For owner-occupiers, investors, and developers, Glen Huntly presents a rare combination of consistent trading conditions, redevelopment potential, and long-term growth opportunities, making it a proven location for commercial success.

SALES PROCESS

Public

Auction Sale Process

At CVA Property Consultants, we are committed to providing a transparent and structured approach to public auctions, ensuring all interested buyers have an equal opportunity to participate. Here is an outline of the key steps in our auction process:

1. Registering to Bid

We request that all interested parties register prior to auction, to ensure they are kept informed of any changes or updates. Registration can be done with the agent you are dealing with or on-site or online, depending on the auction format. Please ensure you provide all required identification and contact detai

2. Auction Day

On the day of the auction, the property will be offered for sale to the highest bidder. Bidding will be open, and participants can place bids. The auctioneer will guide the process, and once the highest bid is reached and meets the vendor’s reserve price, the property will be declared sold to that bidder. If the reserve is not met, the vendor may choose to negotiate with the highest bidder or withdraw the property from sale.

3. Contract and Settlement

Following a successful auction, the winning bidder must immediately sign the contract of sale and pay a deposit (10% of the purchase price). The remaining terms, including the settlement date, will be finalised between the vendor and the successful buyer. The property is considered sold upon the fall of the hammer, and both parties are legally bound by the contract at this point.

We are dedicated to clear communication and ensuring that all participants are fully informed throughout the public auction process. Our goal is to facilitate a seamless and respectful transaction for all parties involved.

REIV Auction Rules:

1. The Auctioneer may make one or more bids on behalf of the vendor of the land at anytime during the Auction.

2. The Auctioneer may refuse any bid.

3. The Auctioneer may determine the amount by which the bidding is to be advanced.

4. The Auctioneer may withdraw the property from sale at any time.

5. The Auctioneer may refer a big to the vendor at any time before the conclusion of the Auction.

6. In the event of a dispute concerning a bid, the Auctioneer may re-submit the property for sale at the last undisputed bid or start the bidding again.

7. The Auctioneer must not accept any bid or offer for a property that is made after the property has been knocked down to the successful bidder, unless the vendor or successful bidder at the Auction refuses to sign the contract following the auction.

8. If a reserve price has been set for the property and the property is passed on below the reserve price, the vendor will first negotiate with the highest bidder for the purchase of the property.

For more information, contact

Tim Cooney

0468 860 737

tim.cooney

@cva.melbourne

Stirling Findlay

0481 848 240

stirling.findlay @cva.melbourne

PL A N N IN G PROPERTY REPORT

Addres s :

Lo t and Pl an Number:

S tandard Parcel I dentifier ( S PI ) :

Lo cal Go vernment Area ( Co uncil ) :

Co uncil Pro perty Number:

Pl anning S cheme:

Directo ry Reference: Rural Water Co rpo ratio n: Mel bo urne Water Retail er: Mel bo urne Water: Po wer Dis tributo r:

Plan n in g O v er lay

P ARK ING OVE RLAY (P O)

P ARK ING OVE RLAY - P RE C INC T 2 -2 S C H E D U LE (P O2 -2 )

PO - Par king Ov e r lay Tr am line

Note : due to ove rlaps, som e ove rlays m ay not be visible and som e c olours m ay not m atc h those in the le ge nd

F u r t h er Plan n in g In fo r mat io n

Pl anning s cheme data l as t updated o n 2 4 February 2 02 6

A plan n in g s ch eme s ets o ut po l icies and requirements fo r the us e, devel o pment and pro tectio n o f l and This repo rt pro vides info rmatio n abo ut the zo ne and o verl ay pro vis io ns that appl y to the s el ected l and

I nfo rmatio n abo ut the S tate and l o cal po l icy, particul ar, general and o peratio nal pro vis io ns o f the l o cal pl anning s cheme that may affect the us e o f this l and can be o btained by co ntacting the l o cal co uncil o r by vis iting https :/ / www pl anning vic go v au

This repo rt is NOT a Plan n in g Cer t ificat e is s ued purs uant to S ectio n 1 9 9 o f the Plan n in g an d En v ir o n men t A ct 19 87 .

I t do es no t incl ude info rmatio n abo ut exhibited pl anning s cheme amendments , o r zo nings that may abut the l and

To o btain a Pl anning Certificate go to Titl es and Pro perty Certificates at Landata - https :/ / www l andata vic go v au

Fo r detail s o f s urro unding pro perties , us e this s ervice to get the Repo rts fo r pro perties o f interes t

To view pl anning zo nes , o verl ay and heritage info rmatio n in an interactive fo rmat vis it https :/ / maps hare vic go v au/ vicpl an/

Fo r o ther info rmatio n abo ut pl anning in Victo ria vis it https :/ / www pl anning vic go v au

Des ign at ed Bu s h fir e Pr o n e A r eas

T h i s p rop erty i s n ot i n a d es i g n a ted b u s h fi re p ron e a rea

N o s p eci a l b u s h fi re con s tru cti on req u i rem en

h

e

r

do n o t a pply

0 25 m

D e signate d Bushfir e Pr o ne A r e as Tr am line

D es ig n a ted BP A a r e deter m in ed by th e M in is ter fo r P la n n in g fo llo w in g a deta iled r eview pr o ces s T h e Bu ildin g Reg u la tio n s 2 018, th r

Bu ildin g C o de o f Au s tr a lia , a pply bu s h fir e pr o tectio n s ta n da r ds fo r bu ildin g w o r ks in des ig n a ted BP A

D es ig n a ted BP A m a ps ca n be view ed o n VicP la n a t h ttps : //m a ps h a r e vic g o v a u /vicpla n / o r a t th e r eleva n t lo ca l co u n cil

C r ea te a BP A defin itio n pla n in VicP la n to m ea s u r e th e BP A

In fo r m a tio n fo r lo t o w n er s bu ildin g in th e BP A is a va ila ble a t h ttps : //w w w pla n n in g vic g o v a u

Fu r th er in fo r m a tio n a bo u t th e bu ildin g co n tr o l s ys tem a n d bu ildin g in bu s h fir e pr o n e a r ea s ca n be fo u n d o n th e Victo r ia n Bu ildin g Au th o r ity w

P

Nat iv e Veget at io n

Native pl ants that are indigeno us to Victo ria and impo rtant fo r bio divers ity might be pres ent o n this pro perty This co ul d incl ude trees , s hrubs , herbs , gras s es o r aquatic pl ants There are a range o f regul atio ns that may appl y incl uding need to o btain a pl anning permit under Cl aus e 52 1 7 o f the l o cal pl anning s cheme Fo r mo re info rmatio n s ee Native Vegetatio n ( Cl aus e 52 1 7) with l o cal variatio ns in Native Vegetatio n ( Cl aus e 52 1 7) S chedul e

To hel p identify native vegetatio n o n this pro perty and the appl icatio n o f Cl aus e 52 1 7 pl eas e vis it the Native Vegetatio n Regul atio ns Map ( NVR Map) https :/ / maps hare vic go v au/ nvr/ and Native vegetatio n ( enviro nment vic go v au) o r pl eas e co ntact yo ur rel evant co uncil

Yo u can find o ut mo re abo ut the natural val ues o n yo ur pro perty thro ugh NatureKit NatureKit ( enviro nment vic go v au)

Turn static files into dynamic content formats.

Create a flipbook
1190 Glen Huntly Road, Glen Huntly by CVA Property Consultants - Issuu