Historia de la Arquitectura

Page 1

"UNIVERSIDADNACIONALDELCENTRODELPERÚ"

HISTORIA DE LA

ARQUITECTURA

DOCENTE:

Arq. Ingrid Milagros Avila Saldaña

FACULTAD: ARQUITECTURA

SEMESTRE: III

Realizado por:

-Camarena Curi Paul

-Huamán Cusi Daniel

-Huaman Contreras Jork

-Atencio Campos Javier

-Ninahuanca Pizarro Shantal

-Cunyas Nieto Oscar

grupo 6

LOS ORIGENES

MATERIALES

PIEDRA

MADERA PLANTAS HUESOS SILEX TIERRA

Era paleolítica TIPOLOGIAS

ABRIGOS ABIERTOS Y CERRADOS CAMPAMENTOS CUEVAS

ESPACIOS FUNCIONALIDAD

REFUFIO DEZCANZO

DORMIR COMER

MATERIALES

CERAMICAS ARCILLA

FUNCIONALIDAD

ALMACEN HABITAD

Era Mesolítica

INTERPERIE CERROS CAÑONES

TIPOLOGIAS

ESTRUCTURAS NO TAN SIMPLES

ESPACIOS

CERCA DE RIOS

Era Neolítica

MATERIALES

ADOVE PIEDRA

MADERA

LADRILLOS DE ARCILLA COCIDA

FUNCIONALIDAD

RESIDENCIAL CEREMONIAL

Mesolítico

TIPOLOGIAS

PLANTA CIRCULAR U OVALADA

MUROS GRUESOS

PUERTAS ESTRECHAS

PLANTAS

RECTANGULARES

TECHOS DE MADERA

ESPACIOS

ESPACIO CENTRAL HABITACIONES LATERALES

Neolítico

PRIMERAS CIVILIZACIONES

Cultura Mesopotámica

MATERIALES

ADOVE PIEDRA MADERA ASFALTO

FUNCIONALIDAD

ESTABLECER UNA RELACION CON LAS ESTRELLAS Y CONSTELACIONES

Cultura Egipcia

MATERIALES

ADOVE PIEDRA MADERA SISTEMA

CONSTRUCTIVO

PILARES

SOBRE UNA BASE DE PIEDRA MUROS GRUESOS EN TALUD

DINTELES Y CUBIERTAS

PLANAS

TIPOLOGIAS SUERTE DE PIRAMIDE ESCALONADA QUE SE CORONABA CON UN TEMPLO

URBANISMO

TRAZADO IRREGULAR ALREDEDOR DE LOS TEMPLOS, DESPUES SERIA CUADRICULADO.

TIPOLOGIAS PIRAMIDAL

TRONCOPIRAMIDAL DE BASE

RECTANGULAR PIRAMIDES

ESCALONADAS

URBANISMO

CIUDADES CONSTRUIDAS

CERCA A LAS PIRAMIDES

CRECIMIENTO DE LAS

POBLACIONES ORDENADO Y PLANIFICADO

EXPANSION DE NUCLEOS

URGANNOS MAS ORGANICA

CIVILIZACIONES

PRECOLOMBINAS

CULTURA CARAL

MATERIALES

PIEDRA MADERA

ARCILLA FINA

ARGAMASA SHICRAS

SISTEMA

CONSTRUCTIVO

MONUMENTOS

TEMPLOS

PIRAMIDES ESTATUAS

CULTURA CHAVIN

MATERIALES

PIEDRA MADERA

ARCILLA MORTERO

SISTEMA

CONSTRUCTIVO

GRANDES CENTROS

CEREMONIALES

PIEDRAS TALLADAS CON

FORMAS ANTROPOMORFAS

PLANIFICACION URBANA

DEFINIDA

TIPOLOGIAS

CIRCULAR PIRAMIDAL CUADRANGULAR

BANISMO

ONTABAN CON 25

SENTAMIENTOS

RMONIA CON LA ATURALEZA

RAN ABIERTO A TODO PUBLICO

TIPOLOGIAS

CIRCULAR PIRAMIDAL CUADRANGULAR URBANISMO

TEMPLOS Y PLATAFORMAS

ESTATUAS

PIRÁMIDES

SISTEMAS DE DRENAJE

CIVILIZACIONES

PRECOLOMBINAS

CULTURA WARI

MATERIALES

TIPOLOGIAS

CIRCULAR

CULTURA CHIMÚ

MATERIALES CAÑA TIERRA SUELTA

MORTERO

ADOBE PIEDRA

SISTEMA

CONSTRUCTIVO

QUINCHA CON PIEDRAS

MUROS DE PIEDRA UNIDAS

CON MORTERO

HORNACIDAS PARA UNA

IMAGEN O ADORNO

CHACRAS UNDIDAS

SMO

IONES

DAL NGULAR SIST CONSTR MURO SOPO TERAZAS

EOS COMO

FUNERARIO

TIPOLOGIAS

PIRAMIDES TRUNCAS

ESCALONADAS

RESINTOS

CUADRANGULARES DE TAMAÑOS VARIADOS

URBANISMO

MUROS ALTOS Y DISEÑOS

ZOOMORFOS

LARGOS

CORREDORES CON ENTRADAS

PEQUEÑAS

PIE MA ARC ARG SHI

CIVILIZACIONES INCAS

CULTURA INCAICA

MATERIALES

PIEDRA ADOBE MADERA MIMBRES

AGAVES PAJAS

SISTEMA CONSTRUCTIVO

MUROS DE PIEDRA CON DISTRIBUCION

DIFERENTE

TECHOS A UNA, DOS

Y CUATRO CUESTA

TECHOS CONICOS.

TIPOLOGIAS

TUMBAS O CHULLPAS AYLLUS

TEMPLOS DEDICADOS AL CULTO

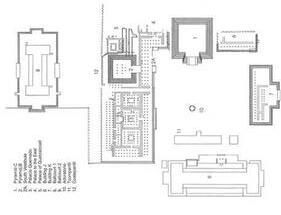
SACSAYHUAMAN

URBANISMO

DESORDENADO MANZANAS

PARCELAS IRREGULARES

CIVILIZACION PREHELENICA

Se desarrollo aproximadamente 2000 a.c.

Su nombre proviene del rey era Minos (Minotauro y Teseo).

La isla de creta fue su principal centro de civilización. primer imperio marino que logro conquistar la zona de Balcanes.

Civilización minoica Civilización micenica

Se desarrolló aproximadamente entre 17001050 a c

Civilizacion militar con ciudades fortificadas (Torintio, Micenas)

Arquitectura jerarquizada Sistema politico con una fuerte centralizacion (el palacion fortaleza controlaba las actividades politicas, religiosas, militares,religiosa,etc)

MATERIALES DE CONSTRUCCION

piedra madera armol

TIPOLOGIA

Grandes palacios

centros

administrativos

villas tumbas

CIVILIZACIÓN PRECOLOMBINA

CULTURA OLMECA

TIPOLIGIA Y SISTEMAS

URBANISMO MATERIALES

Piedra

tierra

CONSTRUCTIVOS

CULTURA TEOTIHUACANOS

TIPOLOGIA

Piramides escalonadas

Casas cuadrangulares

MATERIALES

Piedra volcánica

tezontle

cobre, plata

jade

madera

CONSTRUCCIONES

Piramide del sol

Templo de Quetzalcóatl

Ciudadela

Piramide de la luna

CIVILIZACIÓN PRECOLOMBINA

CIVILIZACION MAYA

MATERIALES

Madera Caña Paja

Adobe

TIPOLOGÍA

o Unidades habitacionales o Palacios o Templos o Juegos de pelota o Torres o Cuadrángulos o Edificios astronómicos o Laberinto o Baños de vapor o Me o Murallas

SISTEMAS CONSTRUCTIVOS

o Muros de carga y cubierta vegetal

o Muros y bóvedas de aproximación

o Muros de carga y forjados

o Sistemas adintelados

o Encajuelado o sistema celular

o Sistemas agrícolas

CULTURA ZAPOTECA

MATERIALES

estuco piedra Piedra caliza.Tezontle

URBANISMO

TIPOLOGIA

rmas escalonadas ma de piramides as). Su construccionormente en las as por que pensaron s vinieron mente del cielo

SISTEMAS CONSTRUCTIVOS URBANISMO

una plaza central campo de juegos

palacios

observatorios

Talud- tablero Mozaicos Grecas Tableros

CIVILIZACIÓN PRECOLOMBINA

CULTURA TOLTECA

MATERIALES

Madera Mortero de cal Arena

Adobe

TIPOLOGÍA

Campo de juego de pelota

Vivienda urbana

Piramides

Palacios

MATERIALES

Estuco piedra Piedra caliza. carriz

CULTURA AZTECA

URBANISMO

URBANISMO

El desarrollo urbano azteca fue impresionante, porque Construyeron una ciudad capital, Tenochtitlán, sobre un lago, con calles, canales y puentes. Además, eran expertos en agricultura y tenían impresionantes templos y palacios.

TIPOLOGIA

Palacios templos calzadas acueductos chinampas

SISTEMAS

CONSTRUCTIVOS

MATERIALES

Madera adobe mármol caliza terracot a

CULTURA GRIEGA

CULTURA TOLTECA TIPOLOGÍA

estoa acrópolis el ágora odeonteatro

URBANISMO

SISTEMAS CONSTRUCTIVOS

MATERIALES

Madera adobe

mármol caliza tterraco a ladrillo

CULTURA ROMANA

TIPOLOGÍA

TEMPLOS: Estructuras elevadas con columnas y frontones, que albergaban la estatua de una deidad romana

ANFITEATROS: Grandes estructuras ovaladas o circulares, diseñadas para albergar eventos públicos, especialmente combates de gladiadores y espectáculos.

ACUEDUCTOS:Estaban compuestos por arcos y canales construidos en piedra u hormigón

ARCOS DE TRIUNFO:Eran estructuras de arco con relieves decorativos en las principales calles y plazas de las ciudades

URBANISMO

Planificación era de diseño ordenado y regular. Las calles principales cardo y decumano. Contaban con calles pavimentadas, acueductos y sistemas de alcantarillado. Tenían plazas publicas donde se debatían asuntos políticos.

SISTEMAS CONSTRUCTIVOS

OPUS CAEMENTICIUM: mezcla de toba con puzolana y cal.

OPUS QUADRATUM: bloques escuadrados y compatibles en cualquier altura de ilada

OPUS SILICEUM: bloques labrados a distintos grados.

OPUS RETICULATUM: pequeñas pirámides diagonales.

OPUS QUASI RETICULATUM: piezas labradas no tan finamente.

OPUS SPICATUM: ladrillos rectangulares escalonado,

OPUS TESTACEUM: lajas estrechas en soga

CULTURAPALEOCRISTIANA

TIPOLOGÍA MATERIALES

mortero

mader ladrillo

Basílica: Estas estructuras solían tener una planta rectangular con una nave central y naves laterales separadas por columnas.

Catacumbas: eran complejos subterráneos de galerías y pasadizos utilizados como lugares de entierro y reunión para los primeros cristianos.

Baptisterio: generalmente tenían una planta circular o octogonal, edificios dedicados al bautismo cristiano.

vidrio yeso

PIEDRA

Edificios palatinos: Estos edificios palatinos combinaban elementos arquitectónicos romanos con influencias cristianas.

Martyria: podían tener una planta central, como una basílica circular, o una planta e, cerca de las tumbas de los y í lugares de ción

SISTEMAS CONSTRUCTIVOS URBANISMO

Urbanísticamente hablando no supone grandes modificaciones ya que éstas surgen sobre todo en las ciudades episcopales de las que dependen otras más pequeñas. Lugares como los circos y los foros se siguen utilizando y no desaparecen con la aparición de la basílica episcopal

Domus ecclesiae: Espacios adaptados en casas para reuniones litúrgicas y ritos religiosos

Catacumbas: Nichos rectangulares en las paredes encontradas en una intrincada red de galerías subterráneas para fieles difuntos.

Silicas: Cuando los cristianos tenían más libertad Convirtieron el concepto como base de iglesia medieval

El interior no era abovedado, sino que se usaba armazon de madera

Edificio rectangular en donde se podia dividir acomodar a los fieles

Publica (atrio) Semipublica (naves)

-PIEDRA -LADRILLO

-MORTERO

CULTURABIZANTINA

-ORO

-CERAMICA VIDRIADA

-MARMOL(en placas)

-PINTURAS

-TEJAS

-TUBOS

-PIEDRAS POROSAS

TIPOLOGÍA MATERIALES SISTEMAS CONSTRUCTIVOS URBANISMO

Catatumbas: Son santuarios de los martires, centros de devocion y perigrinacaion

Mausoleo: Edificio funerario con caracter monumental el cual solia erigirse donde estaba enterrado un personaje historico o heroico

La basilica: Destinado a reuniones dominicales y lugar de residencia de obispos y sacerdotes

Condiciones designadas a las cuidades bizantinas:

Cerradas con murallas (para facilitar el control administrativo)

Contar con un punto de confluencia es decir, un mercado intramuros (anteriormente conocido para los romanos como foro) un espacio representativo de la ciudad generalmente ubicada en el centro donde posteriormente alrededor de este estaran ubicados edificios civiles y seculares.

Cupulasdetambor

Cupula sobre una corniza que sobresale, siendo cilindrica u ortogonal.

Arco de medio punto

Uso externo e interno para elevar la altura de las iglesias.

Columnas

Ademas de tener una funcion constructiva tienen una funcion decorativa

Capiteles

De mayor tamaño para soportar los arcos. Distintas formas decorativas ( animales y plantas).

(LUJO ORNAMENTAL)

CULTURA DE LA ALTA EDAD MEDIA

TIPOLOGIA MATERIALES

RELIGIOSOS

IGLESIAS

Piedrasin desbastar

Teja

Piedra cortadosa martillo

Piedrasin pulir

Iglesias pequeñas Iglesias de peregrinacion

MONASTERIOS

Abadías

CIVILES

PALACIOS URBANOS Duque

CASTILLOS

URBANISMO

Las cuidades se formaron sobre primitivos asentamientos romanos, como Florencia, Milán, Colonia, Viena

SISTEMAS CONSTRUCTIVOS

Murosgruesos

Bóvedasdecañón

TIPOSDE TRAZADO

BASTIDAS

LINEAL CIRCULAR

IRREGULARES

Arcosdemediopunto

Grandestorres

Robustospilares

Arcadas decorativas

BóvedadeCrucerías

unanave

Contrafuertes Pináculos

TIPOLOGIA

Aunque la arquitectura gotica se caracterizo por ser religiosa tambien presentaba edificaciones de caracter civil.

MADERA LADRILLO

PIEDRA HIERRO, EL PLOMO, EL VIDRIO PAJA Y CAÑA

cinconaves ventanales

Utilizaron un nuevo método de soporte estructural llamado bóveda de crucería Arcos colocados de forma paralela entre sí para poder soportar un techo redondeado.Tambien emplearon otro método único de soporte estructural: los contrafuertes. Estas estructuras de piedra reforzaron los edificios al redistribuir el peso del techo a un nivel más bajo y más sólido.

LACATEDRALDENOTREDAMEFRANCIA ABADÍADELATRINIDADDEVENDÔME FRANCIA SANTOSTEFANO IGLESIADEIFRARI RELIGIOSO

La arquitectura gótica se desarrolló en Europa occidental a partir del siglo XII y se extendió hasta el siglo XVI. MATERIALIDAD
SISTEMA CONSTRUCTIVO
Arbotantes
CATEDRALES ABADIAS IGLESIAS
LA BAJA EDAD MEDIA

ELEMENTOS CARACTERISTICOS

URBANISMO

Clasificación en función de su origen

Ciudades de origen romano Burgos: construidos al principio como bases militares fortificadas que después fueron adquiriendo funciones comerciales.

Ciudades de crecimiento orgánico desarrolladas a partir de aldeas.

Bastidas francesas, inglesas o galesas: asentamientos de nueva creación que se trazaban de acuerdo a un plano geométrico definido generalmente de forma rectangular y generalmente estaban fortificadas.

Formas

Ciudades de nueva planta de toda Europa, la mayoría de ellas fundadas con fines comerciales.

aldeas encerradas o nucleares, que surgen a partir de un núcleo compacto.

aldeas polinucleares, que se desarrollan a partir del crecimiento de diversos núcleos de población cercanos entre si y que posteriormente se convierten en uno.

aldeas lineales o pueblos camineros, que se desarrollan a lo largo de un eje de comunicación.

aldeas dispersas o diseminadas, sin formas coherentes, con casas aisladas y esparcidas en grupos de dos o tres unidas por una red de caminos

CIVIL UNIVERSIDADES PALACIOS AYUNTAMIENTOS LACADOROPALACIODE VENECIA ELPALACIOBEMBOOCA'BEMBO
CASTILLOS
AYUNTAMIENTODELOVAINABÉLGICA AYUNTAMIENTODEBRUJASBELGICA
CASTILLODEMALBORK, POLONIA
BÓVEDA DE
O NERVADA
Y ARBOTANTES
Y
PUERTAS Y FACHADAS
CASTILLODEPONFERRADA(LEÓN) ARCO APUNTADO
CRUCERÍA
CONTRAFUERTES
COLUMNAS VENTANAS
ROSETONES

MATERIALIDA

MARMOL Y ESTUC LADRILLO PIEDRA

RENACIMIENTO

arquitectura del Renacimiento, un ovimiento artístico y cultural que se esarrolló en Europa entre los siglos XV y VI

SISTEMA CONSTRUCTIVO

Bóvedasde Aristas

Bóvedasdecrucerías Bóvedasdoble cañón

TIPOLOGIA

VILLASDEPALADIO

ESTILODECUPULA

Es así como, los estilos propios nacen, dejando de lado los estilos de la época, como sucedió en toda la historia, es aqui cuando se dejaron de usar la bóveda de aristas, o la bobea de crucerías, se empezaron a dedicar a construir a la bóveda de doble cañón, o la tradicional bóveda de cañón.

Básicamente, los arquitectos buscaron renacer el estilo clásico de los griegos y romanos, por lo que en cuestión de estructura no hubo grandes cambios a comparación de estas épocas y estilos. Sin embargo su gran innovación estuvo en su forma peculiar de bóvedas.

ESTILODEBOBEDA "BAÍDA"

La cúpula esta acentuada sobre una base octonal (), la cúpula tiene nervaturas blancas, a los cuales se les llama absidiolos, que transmiten la carga de la cúpula a las aristas. En ese caso no es necesario que la forma será cónica, o de revolución, entonces ya no se usa las pechinas, al no haber esa transición de arco a plano

En el arte renacentista no se usaron arcos apuntados, en su defecto todo se redujo al arco de medio punto, formando asi su propia bóveda, muy similar al de crucerías, pero con un arco de medio punto, esta bóveda tiene parecido con la cúpula a nivel estructura porque sus cargas son distribuidos de manera equitativa por todos los vectores, y al concentrarlos en solo 4 pilares, esta cubierta (bóveda) es autoportante

estrcutradeuna cupula

URBANISMO

Calles ortogonales manteniendo la regularidad de la altura de los edificios.

Siguieron los principios de Vitruvio sobre la creacion de la ciudad ideal Arquitectura paisajistica.

Higiene y orden.

Calles amplias para la contemplacion de los edificios.

Plazas que recuerda el antiguo agora para la concentracion ciudadana

BIBLIOTECASYTEATROS
Palmanova
PALACIOSTROZZI IGLESIAJESUSDENAZARENA

LA BAJA EDAD MEDIA

Manierismo

MATERIALIDAD

MARMOL Y ESTUCO LADRILLO PIEDRA BRONCE

SISTEMA CONSTRUCTIVO

La gerarquizacion del acceso. Permitio que los elementos clasicos se usaran con libertad alentando a la creación y expresión individual . Mismo lenguaje clasico. Arcos de medio punto, cúpulas, pilares, frontón, columnas.

Villafarnesina

Planta en U.

Dos alas laterales

Un portico constituido por 5 arcos de medio punto Friso que recorre la parte mas alta.

TIPOLOGIA

PalacioMassimo aColonne

Fachada curvilínea. Portico arquitrabado Dintel sobre las columnas Ventanas decoradas con cornisas Prevalece la excepción sobre la norma.

PALACIOS TEATROS

A menudo se caracterizaban por sus proporciones alargadas, fachadas y esquemas decorativos elaborados. Un ejemplo famoso es la Villa Farnese en Caprarola, Italia, que fue diseñada por Jacopo Barozzi da Vignola.

PalaciodelTé

Planta cuadrado con un patio cuadrado

Arcos sobre columnas. Serliana (recurso utilizado en el renacimiento y neoclásico) arcos de medio punto con vano adintelado.

Los teatros manieristas a menudo se diseñaron para crear una ilusión de espacio y movimiento Un ejemplo famoso es el Teatro Olímpico de Vicenza, Italia, que fue diseñado por Andrea Palladio

EMPLEODEELEMENTOSDECORATIVOS EXTRAVAGANTES

El manierismo se caracterizó por la utilización de elementos decorativos elaborados y exuberantes. Se usaron relieves, frontones, cornisas y columnas con adornos detallados y complejos

JARDINES

los jardines manieristas a menudo se diseñaron para crear una sensación de sorpresa y deleite. A menudo presentaban elaboradas fuentes, grutas y otros elementos decorativos. Un ejemplo famoso es la Villa d'Este en Tivoli, Italia, que fue diseñada por Pirro Ligorio.

URBANISMO

ELUSODEEJESDIAGONALES

Los urbanistas manieristas a menudo usaban ejes diagonales para crear una sensación de movimiento y dinamismo en sus paisajes urbanos. Esto contrastaba con la práctica renacentista de usar ejes ortogonales, que creaban una sensación de orden y estabilidad.

ELUSODEDISEÑOSDECALLESIRREGULARES

los urbanistas manieristas a menudo usaban diseños de calles irregulares para crear una sensación de sorpresa y curiosidad en sus paisajes urbanos. Esto contrastaba con la práctica renacentista de utilizar diseños de calles regulares, lo que creaba una sensación de orden y previsibilidad.

ELUSODECONTRASTES DRAMÁTICOS

los urbanistas manieristas a menudo usaban contrastes dramáticos de escala, masa y textura para crear una sensación de interés visual en sus paisajes urbanos. Esto contrastaba con la práctica renacentista de utilizar composiciones más armoniosas y equilibradas

ELUSODEELEMENTOSSIMBÓLICOS

los urbanistas manieristas a menudo usaban elementos simbólicos, como obeliscos, fuentes y arcos triunfales, para crear un sentido de orgullo cívico e identidad en sus paisajes urbanos. Esto contrastaba con la práctica renacentista de utilizar elementos arquitectónicos más clásicos

Arquitectoitaliano

INTEGROLOSPÓRTICOSCLÁSICOS

PÓRTICOS ACOLUMNADOS PÓRTICOS CUBIERTOS

Su diseño era un vestíbulo central y las habitaciones se situaban alrededor.

Arquitectoypintoritaliano

La construcción mas resaltante en que participo fue edificación del palacio de Fontainebleau.

Llevo el estilo romano a Francia después del rey Francisco I.

BARROCO

MATERIALIDAD SISTEMA CONSTRUCTIVO

PIEDRA SILLAR MARMOL

MARMOL

LADRILLOS EST BRO MADERA

Los métodos constructivos utilizados no se diferenciaron demasiado de los métodos usados en el arte gótico, los elementos estructurales mas usados fueron los contrafuertes, ya sea como dobles columnas o en forma de arbotantes externos, esos últimos generalmente eran ocultados a través de falsos cerramientos, y para buscar pasar desapercibidos, estos arbotantes barrocos eran mas altos y así ocupaban menos espacio que los usados en el arte gótico. Cabe la contraparte del gótico, los elementos góticos, sin ológicos muy importantes

murosportantes

cúpuladeSanPablo

TIPOLOGIA

estosmurosseusaronparadar unaconcavidadenlaparte interiorydisimularlasdobles murallas

La iglesia o monasterio (Religioso)

Lanovedaderanelusaron cupulasdecatenariasalserla formageométricaoptima

El palacio cortesano (característico de la época)

En ambos casos aparecen siempre en grandes plazas como telón de fondo teatraldel "teatro del mundo". O bien, rodeados de inmensos jardines, que en este periodotiene un desarrollo enorme, y que prolongan "infinitamente" las perspectivas depalacios e incluso iglesias. Siempre subyace como arte que unifica el teatro, el efectoteatral, de escenografía.

doblecolumna arbotantesenuntejadoy ocultoporunfalsomuro comocerramientos arbotantealto

HISTORIA

EN 1585 EL PAPA SIXTO V INICIO LAS OBRAS PARA LA TRANSFORMACION URBANA DEROMA, ENCARGANDO A DOMENICO FONTANA LA CONEXIÓN ENTRE LOS PRINCIPALESEDIFICIOS RELIGIOSOS DE LA CIUDAD POR MEDIO DE GRANDES EJES VIARIOSRECTILÍNEOS.

CARACTERISTICAS

EL MONUMENTO SE CONVIRTIO EN ELEMENTO POLARIZADOR DE TODO UN ESPACIO, EN UNFACTOR URBANISTICO ALDEREDOR EL CAUL SE ORGANIZABA TODO UN ENTORNO. SE INTRODUCEN EJES TRANSVERSALES Y ESQUEMAS RADIALES

LA ARQUITECTURA ES LA PRINCIPAL MANIFESTACIÓN DEL ESTILO BARROCO.

SE DEFINE POR LA LIBERTAD EN LA UTILIZACIÓN DEL LÉXICO ARQUITECTÓNICOCLÁSICO EL RENACIMIENTO ELABORADO DURANTE

EL URBANISMO BARROCO ES LA CONSECUENCIA DE LA NECESIDAD DE ORDENAR ELDESARROLLO DE LAS CIUDADES Y DE EXPRESAR A TRAVEZ DE LA ARQUITECTURAMONUMENTAL EL PODER DEL ESTADO O DE LA IGLESIA.

PREDOMINIO DE LA FORMASOBRE LA FUNCION

OBSTENTACION:LA CIUDAD REFLEJA EL PODER DEL REYO DE LA IGLESIA CARÁCTER PERIFERICO:SE CONSTRUYE SOBRE EL MISMO PLANO

PERSPECTIVA

TRAZADO ORTOGONAL

PLAZAS

UNODELASMAS

IMPORTANTESELEMENTOS

DELURBANISMOBARROCO

REFLEJOYSÍMBOLODEL

PODERCIVILORELIGIOSO

IGLESIAS

EDIFICACIONDE CULTOADIOS

PALACIOS

LAVIVIENDAURBANADELAS

FAMILIASNOBLESESELEJEMPLO

MASCARACTERISTICODELA

ARQUITECTURACIVILDELBARROCO

PAP

LAARQUITECTURADEBERNINI

Dar mucha importancia a lo decorativo, tanto en el interior como en el exterior

Los elementos constructivos (columnas, pilastras, etc.) se multiplican, pero con función decorativa, siendo su único fin dar ritmo arquitectónico

Frontones, entablamientos, etc se rompen, las curvas se compenetran con líneas rectas, buscando siempre presiones dinámicas.

En las iglesias prefiere las plantas centralizadas, fundamentalmente la planta ovalada (pequeñas iglesias)

Introdujo cambios en algunas manifestaciones escultóricas, como los bustos, las fuentes y las tumbas.

LAARQUITECTURADEBORROMINI

Sus proyectos se ajustaban a unas leyes estrictas de simetría y proporciones

En sus edificios, el vacío y el lleno se combinan en una culminación de la búsqueda barroca de espacios dramáticos y el uso de la luz para darle más claridad a la obra.

Borromini consiguió una nueva forma de expresión arquitectónica con sus muros ondulantes, cóncavo-convexos, así como con sus originales volúmenes, desarrollados a partir de un motivo geométrico, además de darle un gran dinamismo y movimiento a las obras, sobre todo se caracteriza por el exceso de adorno en las iglesias y fachadas para sorprender e impresionar

Incorporando a su obra rasgos de la arquitectura antigua y de la barroca

San Carlo alle Quattro

Fontane

Santa Inés en Agonía

Sant' Ivo alla

Sapienza

Oratorio de San

Felipe Neri (Oratorio dei Fillipini)

Santa Maria dei Sette

Dolori

GianLorenzoBernini ESCULTOR,ARQUITECTO YPINTORITALIANO Plaza de San Pedro Iglesia de Sant'Andrea en el Quirinal La Capilla Cornaro Capilla del marqués Raimondi en San Pietro in Montorio, Roma Colegiata de Ariccia Iglesia de San Tomás de Villanova (Ariccia) Palacio Montecitorio Palacio Chigi Odescalchi Scala Regia del Vaticano FrancescoBorromini ARQUITECTOITALIANO

LAARQUITECTURADEGUARINI

Destacóenlaépocabarrocaporsusproyectoscomplejoseimaginativos

Laintegracióndetodassusinfluencias,desdeelbarrocoromanodeBorromini, hastaelartegóticoyárabe,estofuelaquehizotanatractivasuarquitectura

LainterpretacióndeGuarinisobrelaArquitecturaesquetieneuncomponente unicamente “mental” por lo que está desvinculada de toda determinación naturista.

Guarinifueelarquitecto“másmoderno”entrelosarquitectosbarrocos.

Diseñó escenarios extraordinarios en los que "hizo tangible la infinidad del espacio repitiendo formas; y lo reiteró aún más al convertir las cúpulas en estructuraslibresyabiertas.

En su arte encontramos rastros de gótico, mezclados con contribuciones

hispano-árabes

Predominio de la línea

curva

El colorido

Entrantes y Salientes

Abundancia de columnas aparece las salomónicas

Fuerza y Dramatismo

Mármol en columnas

Variación de arcos

Nichos y hornacinas

Ventanales ovoide

Palacio Carignano Iglesia de la Santissima

Annunziata

GuarinoGuarini SACERDOTETEATINO, MATEMÁTICO, ESCRITORY ARQUITECTO ITALIANO

Capilla de la Sábana

Santa Iglesia de San Lorenzo

Castillo Real de Racconigi

Otras obras en Italia

Sant'Anne La Royale de París

Santa Maria da Altötting en Praga

Santa María de la Divina Providencia de Lisboa

NEOCLÁSICO

SIGLO XVIII-XIX

Simetría

Los edificios neoclásicos eran típicamente simétricos, con un eje central y fachadas idénticas a ambos lados Esto creó una sensación de equilibrio y orden

Proporción

Lasdimensionesdelosedificios neoclásicos fueron cuidadosamente proporcionadas según los principios de la arquitectura clásica.Estocreóunasensación dearmoníaybelleza

granito mármol caliza pizarra

vidrio.

MATERIALES TIPOLOGIAS

CARACTERISTICAS:

-Cornisas y frisos con metopas y triglifos

-Grecas

-Guirnaldas vegetales: flores,frutas

-Palmas y laureles

Y las edificaciones más dadas:

Columnas conmemorativas

Templos

Arcos del triunfo

Propileas

Estructural

Arenisca grava cal yeso cemento mortero, hormigón arena.

Clasicismo Durabilidad

los edificios neoclásicos a menudo incorporaron elementos clásicos, como columnas, capiteles y entablamentos. Esto reflejó el énfasis del estilo en el pasadoclásico

los edificios neoclásicos generalmenteseconstruyeronpara durar, utilizando materiales como ladrillo, piedra y mármol. Esto aseguró que resistirían la prueba deltiempo

Tipologiade edificios:

Vivienda:

-Palacios

-Mansiones señoriales.

Religión:

-Iglesias.

Civiles

-Palacios de justicia

-Pabellones

-Plazas

-Universidades

-Teatros

-Museos

-Galerías

-Puertas (arcos de triunfo)

-Hospitales

-Palacios de gobierno

-Monumentos

-propileos (pórticos)

SISTEMA CONSTRUCTIVO

NEOCLÁSICO

SIGLO XVIII-XIX

Urbanismo

El impacto fuerte que se vivio por los pensamientos ilustrados y la nueva Era Neoclasica influenciaron a tener nuevos cambios en lasciudades.

Busca los trazados geométricos, de damero o estrellados, con amplias avenidas y plazas. En la ciudad,zonasverdes.

R A N C I A

A S H I N T O N G

Los pensamientos ilustrados influenciaron a los franceses, con cambiosurbanosquesebasaronendar un servicio publico y social. En esto se tenia el objetivo de solucionar problemas en la sociedad, como embellecer, mejorar la estructura urbana, la circulacion en calles y apreciarlosmonumentoshistoricos.

ARQUITECTURA DE DURANT

NUEVAS CALLES ANCHOS BULEVARES EN DISPOSICION RADIAL A PARTIR DEL ARCO DEL TRIUNFO CONFINAR CALLLES

Buscarsololosmedios purosdeformaspurasy dequesignifiquenun gastomenor,siendouna arquitectura consecuenteala función

La cuidad planificada, construida especificamente para ser la capital de los estados confederados. Fue llevada acabo en su mayoria porPierreCharlesL'Enfant.

Se desarrollo un conjunto urbanistico y arquitectonico extravagante, el plan urbano incorporaba amplias avenidas ,las calles principales desembocaban en grandes rotondas que proporcionaban vistas a monumentos importantes.

Adiferenciadeotrasavenidasquerecibieronelnombrede una colonia en esta ciudad recibian los nombres de los estadosmasprominentesdelaepoca E D I M B U R G O

Inspirados por la nueva ciudad Neoclasica que fue Francia, se enfocaron en la ampliacion de la ciudad. Expandiendo pueblos hasta realizar nuevas conexiones de calles que permitieran facil acceso a la ciudad.

La acropolis es uno de los ejemplos mas literales del pensamiento ilustrado de la epoca que era retomar las ideas de los antiguas civilizaciones tanto de Roma comodeGrecia.

F
W

SIGLO XX- XIX

NEOGOTICO MATERIALES

Bóvedade Crucerías(mismo metodoqueeartegotico)

La presencia de los vanos hizo que se use el vidrio, se seguía usando piedra, hormigón, piedra caliza, piedra blanca, marmol, hierro, ladrillos, y madera.

TIPOLOGIA

El eclecticismo se empleó ampliamente en los grandes edificios de carácter público como ayuntamientos u otros edificios de gobierno, estaciones de ferrocarril, mercados, teatros, casinos, escuelas, bancos, edificios bursátiles y culturales.

vidrio.

TEATROS

AYUNTAMIENTOS ESCUELAS

FERROCARRILES MERCADOS

BANCOS

ELEMENTOS ARQUITECTONICOS

GENERALMENTE USADOS

Generalmente obtienen influencias de dos estilos: El clásico grecolatino, de donde extraen elementos como pilastras, capiteles y frontones; y; el estilo Beaux-Arts, que incluye un repertorio basado en mansardas, óculos y gran ostentación general.

PILASTRAS

MANSARDAS

MANSARDAS

SISTEMA
CONSTRUCTIVO
CAPITELES FRONTONES
OCULOS

ECLÉTICA

SIGLO XIX-XX

MATERIALES

Ladrillo

Concreto

El hierro fundido

El hierro forjado

El acero

La placa de vidrio

SISTEMA CONSTRUCTIVO

Al ser una mezcla de diferentes estilos y épocas, no existe un método de construir en particular, sin embargo la estructura casi siempre funciona en base a vigas y columnas, y asea por dinteles de manera o tecos a dos aguas, y el uso de columnas con cimientos reforzados

El eclecticismo es un estilo en el que una sola obra incorpora una mezcla de elementos de estilos históricos anteriores, estos elementos pueden incluir características estructurales, muebles, motivos decorativos, ornamentos.

TIPOLOGIA

Ventana clasica

Tejado a doble agua

arcos de medio punto

Balastros

vigas y columnas

ECLÉTICA

SIGLO XX- XIX

laarquitecturadeaugustuspuging

laarquitecturadejhonruskin

laarquitecturadeCharlesGarnier

ThéâtredeMonte-Carlo elGrandHoteldeMonte-Carlo

Augustus Puging Capilla de la Reina Victoria en el Palacio de Westminster Catedral de San Patricio en Dublín Abadía de Westminster Jhon Ruskin Charles Garnier CasadeWilliamMorris,RedHouse (1859-1860),Bexleyheath,Inglaterra CasadeCharlesRennie Mackintosh,TheHillHouse(19021904),Helensburgh,Escocia CasadeFrankLloydWright,Fallingwater(1935-1937),MillRun,Pennsylvania CasinodeMonte-Carlo

Turn static files into dynamic content formats.

Create a flipbook
Issuu converts static files into: digital portfolios, online yearbooks, online catalogs, digital photo albums and more. Sign up and create your flipbook.