
MARANDO CRISTINA
PORTFOLIO

![]()


Via Giuseppe Verdi 77
00041 Albano Laziale
FORMA z ION e
Buona capacitĂ di comunicazione e interazione con i clienti, sia telefonicamente che di persona, e di adeguarsi ad ambienti multiculturali, che a lavorare in team. CapacitĂ conseguite sia in ambito universitario che lavorativo. Socievole, precisa, multitasking, attenta alle esigenze dei clienti, cerco un ruolo che mi possa offrire opportunitĂ di crescita e che mi permetta di affrontare esperienze motivanti e nuove, nel quale consolidare e ampliare le mie competenze per fornire un contributo concreto.
Modellazione tridimensionale e renderizzazione base di interni ed esterni.
Approccio alla stesura delle pratiche edilizie quali CILA, DOCFA, APE.
Gestione dei contatti e rapporto con i clienti, fornitori aziende e gruppo stagisti. _Tirocinio/Stage__Part-time verticale_
h OST e SS/PROMOT e R_
SMARTBOX SRL_Roma_ Dal 01/09/2015 in corso
Promozione, consulenza e vendita dei cofanetti viaggio Smartbox.
AGENzIE DI COMUNICAzIONE VARIE_Reggio calabria_ Dal 01/09/2015 in corso
Hostess di eventi e gestione con la clientela, inaugurazione di nuovi punti vendita,
Allestimento e promozioni per varie aziende aliimentari e non. _Part-time misto_
formazione professionale
AGHAPE_Roma_ 17/10/2015
Corso alta formazione professionale in Efficienza Energetica degli Edifici
Attestato di prestazione energetica_APE _Attestato di Partecipazione_
esperienze professionali pubblicazioni
h IT e TTO_
Architetto Demarzio_Albano Laziale_ Dal 01/10/2016 in corso
Stesura pratiche edilizie quali CILA, DOCFA, APE. _Stage Part-time_
_ARC h IT e TTO_
DV-SRL_Roma_ Dal 01/11/2014 al 31/05/2015
Rilievo architettonico e restituzione grafica di unitĂ immobiliari private ed non.
Progettazione di Interni comprensiva di redistribuzione degli spazi e progettazione dei componenti d’arredo, fino agli impianti elettrico - termico - idraulico.
Personalizzazione degli ambienti, compresa la scelta dei materiali e delle finiture.
Rappresentazione grafica manuale e non dei progetti per presentazioni ai clienti.
_Progetto scelto per la Mostra sulla Ricerca Compositiva Architettonica nei Laboratori di Progettazione Architettonica_
“Sala Petruccioli” _Facoltà di Architettura “Valle Giulia”_ La Sapienza Roma_ 2007
Progetto di una cellula abitativa per studenti collocata in un area del LungoTevere.
Laboratorio di Architettura 1 - Prof. Del Debbio; Prof. F. Contini; Prof. R. Giammarini;
_Progetto scelto per la Mostra sui Progetti di Scenografia a cura del Prof. Arch. Massimo zammerini_
“Sala Petruccioli” _Facoltà di Architettura “Valle Giulia”_ _La Sapienza Roma_ 28 aprile al 14 maggio 2009. Scenografia teatrale dell’opera “Don Carlo” di Giuseppe Verdi.






RIGENERARE PER GENERARE
_La tesi individua nella pratica della rigenerazione urbana, lo strumento adeguato a risanare punti deboli del pru, quelli sottovalutati o mancanti., attraverso interventi sostenibili rivolti sopratutto alla valorizzazione dello spazio pubblico elemento di coesione sociale, e valorizzazione ambientale; gli spazi indefiniti o abbandonati possono diventare significativi e attraenti luoghi in cui gli abitanti riscoprono il concetto di abitare lo spazio condiviso con la comunitĂ .
_La riqualificazione delle aree di pertinenza residenziale e degli spazi pubblici; la valorizzazione e la salvaguardia delle risorse rurali e delle pratiche agricole esistenti, che sulla scia del fenomeno di “guerrilla gardening” in italia creato dallo StudioUap con il movimento “zappata romana_ horto urbis” in alcuni casi regolati dalle stesse amministrazioni per la gestione e monitoraizzazione delle attività dei giardini ed orti condivisi, si propone la creazione di una parco urbano, fatto di molteplici e diversificate attivita’, mirate a rivalorizzare e riqualificare soprattutto l’area rurale di frangia, convertendola
in orti urbani condivisi e non, connessi con attività di laboratorio e attività terapeutiche tramite la mappatura di zappata romana, e all’attivita’ di vendita a km0 connessa con il nuovo mercato, con l’intento di renderlo un punto di riferimento per l’intera città .
_Il nuovo parco urbano di fatto entrerebbe a fare parte dell’ arcipelago verde di roma studiato dagli studi landsrl e tspoon una sorta di green belt sul modello inglese, che ha come fine l’attivazione del territorio attraverso la creazione di ambiti pubblici interconnessi da una rete di connessioni tra vari Parchi delle periferie romane.
_La realizzazione di un corridoio verde attrezzato connesso al parco e che attraverso l’uso del concetto di rete_network funga da connettore con le nuove centralità , poli attrattori adeguati alle esigenze del quartiere, attraverso un sistema di redistrizione nel territorio, creando di fatto una rete di connessioni tra loro e una ricucitura del territorio con le aree marginali del quartiere.


_La tesi individua nella pratica della rigenerazione urbana, lo strumento adeguato a risanare punti deboli del pru, quelli sottovalutati o mancanti., attraverso interventi sostenibili rivolti sopratutto alla valorizzazione dello spazio pubblico elemento di coesione sociale, e valorizzazione ambientale; gli spazi indefiniti o abbandonati possono diventare significativi e attraenti luoghi in cui gli abitanti riscoprono il concetto di abitare lo spazio condiviso con la comunitĂ ..











MIXITè_LIFE_PUBBLIC SPACE_COMMUNITY
_La tesi individua nella pratica della rigenerazione urbana, lo strumento adeguato a risanare i punti deboli del pru, quelli sottovalutati o mancanti., attraverso interventi sostenibili rivolti sopratutto alla valorizzazione dello spazio pubblico elemento di coesione sociale, e valorizzazione ambientale; gli spazi indefiniti o abbandonati possono diventare significativi e attraenti luoghi in cui gli abitanti riscoprono il concetto di abitare lo spazio condiviso con la comunitĂ .





_concept processo compositivo
_elaborazione dei piani
_manipolazione dei piani attraverso l’azione della piega

_assemblaggio piani + volumi

unicum space urban
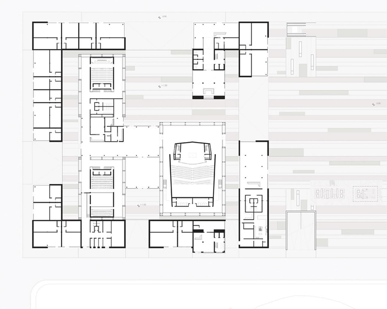
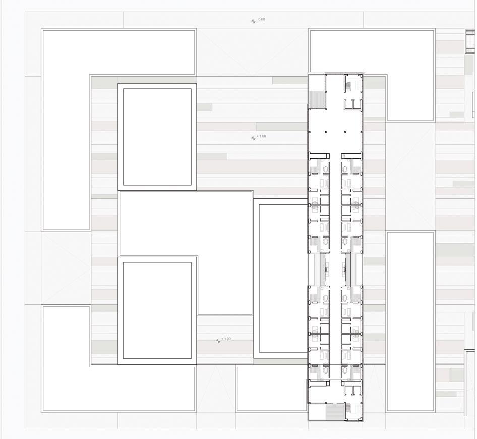
CAMPUS UNIVERSITARIO via guido reni via p. de coubertin_Centro culturale delle arti hotel e attivitĂ terziare via p. de coubertin
MIXITè_art_music_cinema_pubblic space_
Il progetto si propone di connettere le due vie dell’asse centrale, con un intervento volto a ricucire la “rottura” per dare un senso di continuità . La riqualificazione di un vuoto urbano, fornisce alla città una nuova centralità , caratterizzato da un mix di funzioni di intrattenimento e cultura, a cui si affiancano aree commerciali, direzionali e turistiche di ricezione, di un campus con residenze temporanee per studenti ed annesse strutture didattiche, e infine ampi spazi publici attrezzati, luoghi di incontro e svago. Dare una nuova veste al luogo e nuove potenzialità con programmi di cultura, diversificati che sviluppino una dinamicità che produca una nuova e costante afflunza di utenti, residenti e non, i quali a loro volta porteranno alla nascità di questa nuova centralità che mira ad una coesione e al rinnovamento di un “UNICUM SPACE URBAN”. Matrice del progetto è “la memoria del quadrato”, che si identifica in una
sorta di bassa cinta che ricorre la forma, e si ripete in modo diversificato nell’intero lotto, giocando su fratture che altro non sono che delle aperture al quartiere. La memoria del quadrato è così frammentata, anche in altezza con volumi longitudinali che danno ritmo a tutta la composizione. materiali si contrastano e si equilibrano in un gioco tra pesante e leggero. La semitrasparenza dei volumi dedicati alle sale, dà leggerezza all’architettura e porta dei giochi di luce che compongono uno spazio dinamico all’interno della fascia frammentata che ridisegna la memoria di un quadrato, entro cui sorgono tre volumi contenitori che assieme al volume che si staglia in altezza irrompendo nel contesto, un volume a ponte che affronta la grande luce e sormonta il volume dell’auditorium incorniciandolo dentro, divengono un elemento attratore e di riconoscimento nel paesaggio della città .















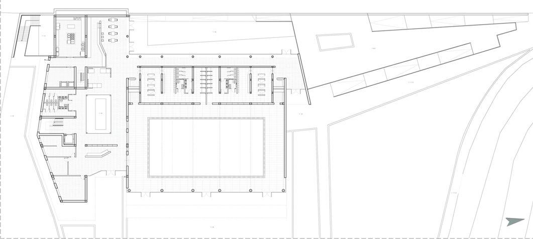
attraversamento e fruibilitĂ
L’obbiettivo del progetto è la riqualificazione dell’area di Grottarossa, che costeggia la tratta ferroviaria Roma-Viterbo, che si trova vicino la stazione omonima; accanto è presente un area archeologica, il tutto lungo un tratto del lungotevere.
L’intervento si pone l’obbiettivo di valorizzare il sito e il contesto archeologico e paesaggistico presenti, per promuovere lo sviluppo dell’area, attraverso progetti di carattere sportivo e di relax.
L’impianto sportivo, è composto da impianto natatorio, zone attrezzate con bar-ristoro, passeggiate e relax, fruibili sia dagli utenti dell’impianto che non, provenienti dalle altre aree come proseguimento della passeggiata, o dal lungotevere, o fruitori dei campi da tennis.












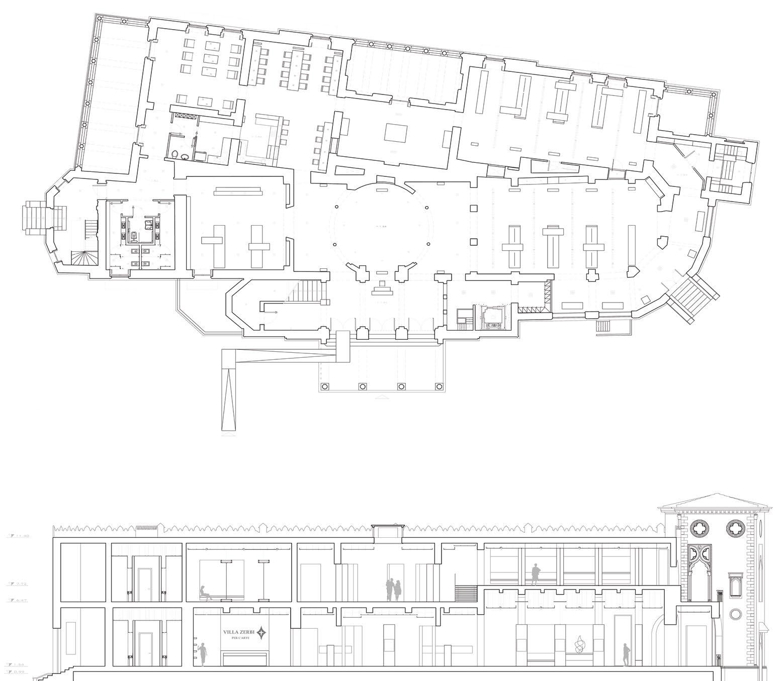
villa zerbi
riqualificare con l’arte
L’obiettivo della tesi è quello di reimmettere nel circuito di vita della città Reggio Calabria, la Villa Genoese Zerbi, un episodio simbolico e significativo dell’immagine del Lungomare Falcomatà , infatti la sua architettura rompe l’omogeneità con il contesto imponendosi come splendido attrattore di sguardi. Risalente alla ricostruzione avvenuta dopo le distruzioni del sisma del 1908, su progetto dall’ingegner zerbi Pertini. Alla struttura in cemento armato, materiale all’epoca in via di sperimentazione, troviamo il recupero di linguaggi che derivano dalle sperimentazioni stilistiche tipiche dell’ultimo scorcio del XIX secolo, in una rivisitazione delle forme del medioevo veneziano. Lo stato di fatto presenta una doppia connotazione: finito e non finito. Infatti il piano terra è stato lasciato al rustico, mentre il 1° livello
rifinito. Da qui scaturisce il problema di ricucire due livelli, con un intervento che rispetti sia l’edificio che suoi caratteri storico-artistici. Per questo la tesi ipotizza un riuso della villa come struttura culturale che guardi al contemporaneo, in modo particolare, all’arte contemporanea. Una galleria d’arte con le proporzioni di una villa, non un museo convenzionale, ma un luogo di confronto e discussione sull’arte che consente l’esposizione a rotazione delle opere, come occasione di stimoli, sollecitazioni e scambi, che mira a unificare e ricucire tra di loro in un unico linguaggio architettonico, tutte le parti compiute e incompiute. Un architettura storica che deve diventare unn nuovo punto di riferimento, da fruire e vivere, parte integrante della vita di una comunità come quella città di Reggio Calabria.











strutture temporanee

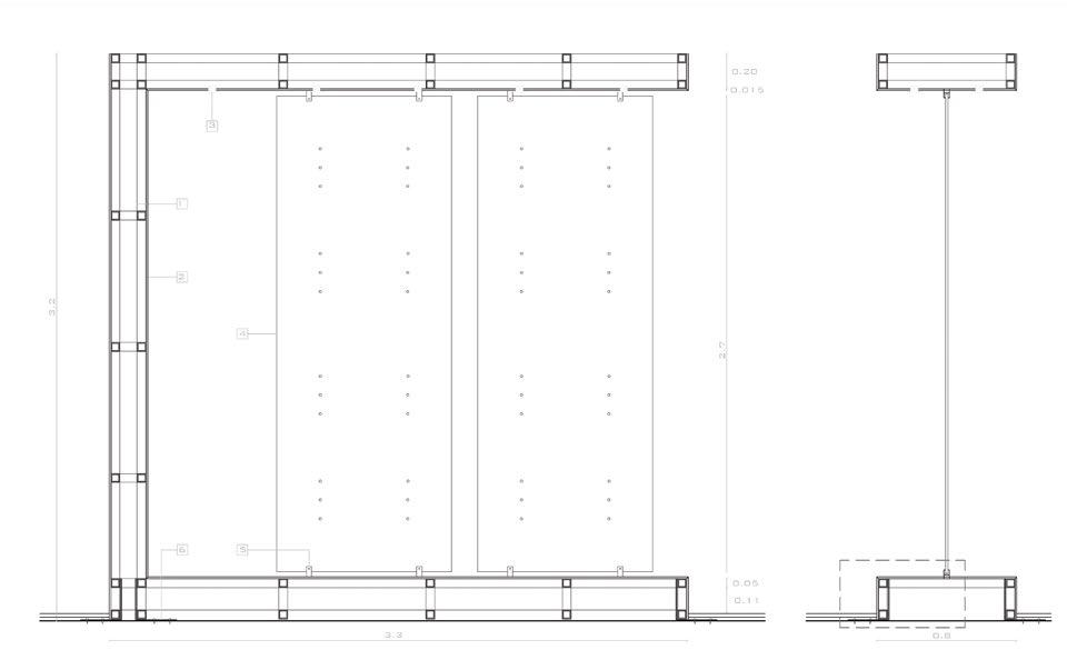
Il progetto prevede l’installazione di un Padiglione temporaneo da collocare in un isola posta di fronte al Parco della Musica, di supporto all’evento della Mostra del Cinema di Roma.
L’iter progettuale si sviluppa sullo studio del lavoro di Peter Eisenmann, tramite l’uso di diagonali, griglie, sfalsamenti e l’intersecamenti di linee e volumi, ha portato alla realizzazione di un Padiglione, caratterizzato da una modularità rotta a favore di spazi e percorsi fluidi, adatti alla fruizione dell’allestimento della mostra dedicata alle opere del regista Steven Spielberg.


Scenografia elaborata per l’opera Don Carlo di Giuseppe Verdi, è suddiviso in quattro scene, una per ogni atto, studiate per essere mutevole all’esigenza dell’opera durante l’atto.






















