

Présentation Résidence renaissance
Résidence RENAISSANCE à LUXEMBOURG - Logements Plan de situation
DESCRIPTION
94 à 104 Route d’Arlon L-1150 Luxembourg parcelle n°148/7131
Commune : Luxembourg
RÉSIDENCE RENAISSANCE
HÔPITAUX
CENTRE-COMMERCIAL SUPER-marchÉ ÉCOLE
CENTRE-SPORTIF PISCINE VÉLO
MARCHE COURSE CENTRE EQUESTRE
CINéMA / cinémathÈque / centre culturel THÉÂTRE














CENTRE-VILLE LUXEMBOURG PARC MUNICIPAL DE LUXEMBOURG

Résidence RENAISSANCE à LUXEMBOURG - Logements
Plan d’implantation

Résidence RENAISSANCE à LUXEMBOURG - Logements
SOUS-SOL -2

Résidence RENAISSANCE à LUXEMBOURG - Logements
SOUS-SOL -1

Résidence RENAISSANCE à LUXEMBOURG - Logements
SOUS-SOL INTERMÉDIAIRE

Résidence
RENAISSANCE à LUXEMBOURG - Logements AMÉNAGEMENTS EXTÉRIEUR


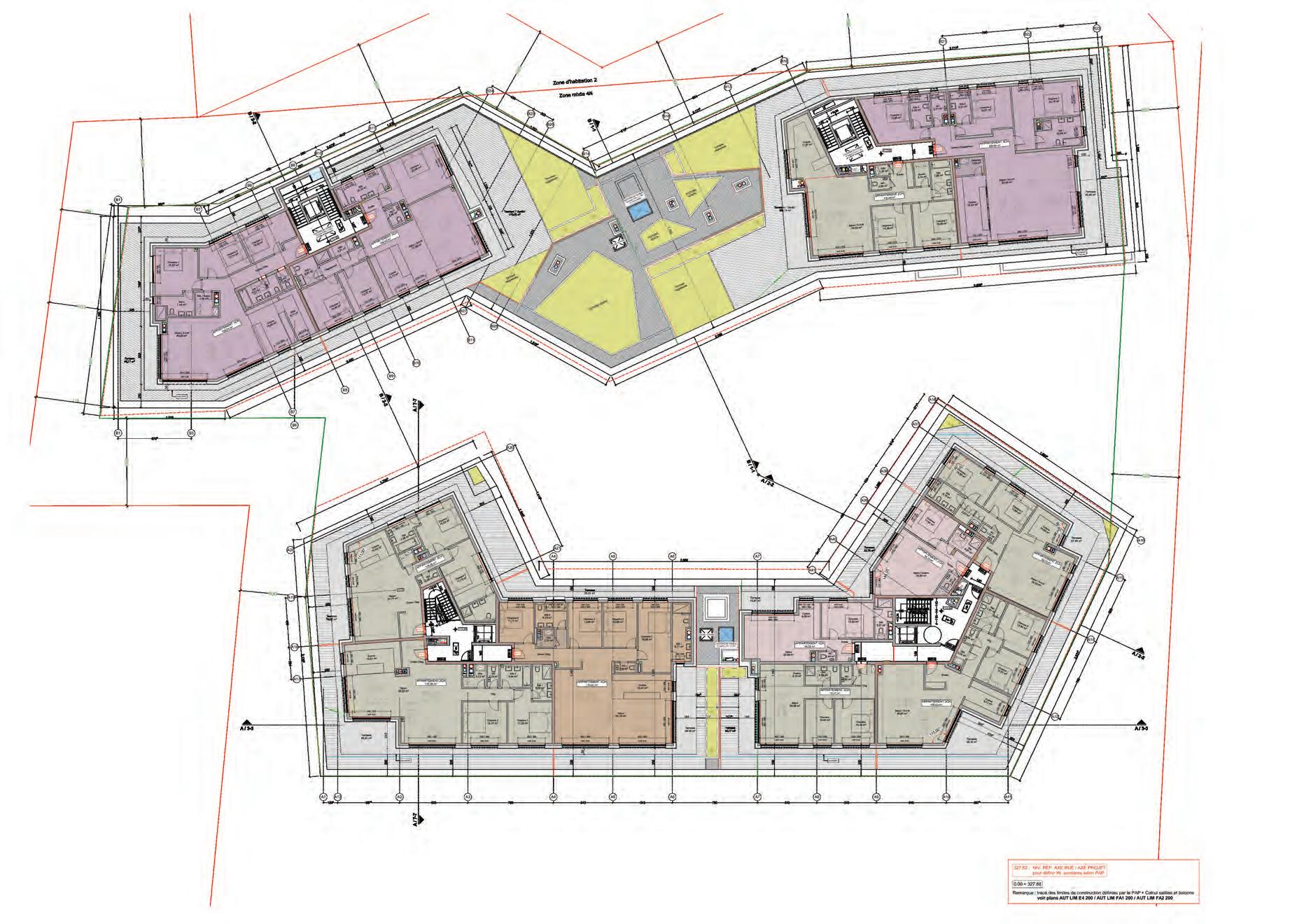
Résidence RENAISSANCE à LUXEMBOURG - Logements REZ-DE-CHAUSSÉE, VUE D’ensemble

Résidence RENAISSANCE à LUXEMBOURG -
Logements
REZ-DE-CHAUSSÉE, APPARTEMENT N°B-0.8 - 2 CHAMBRES, SURFACE +/- 85,84 M²


DESCRIPTION
Appartement N° b-0.8
Rez de chaussée
Appartement 2 chambres
Surface : +/- 85,84 m²
Séjour
S.A.M / Cuisine
Chambre 1
Chambre 2
Entrée
Dégagement
S.D.B
WC
Terrasse
Jardin

Résidence RENAISSANCE à LUXEMBOURG - Logements REZ-DE-CHAUSSÉE, APPARTEMENT N°B-0.8 - 2 CHAMBRES, SURFACE +/- 85,84 M²


Résidence RENAISSANCE à LUXEMBOURG - Logements
01, VUE D’ensemble

Résidence RENAISSANCE à LUXEMBOURG - Logements ÉTAGE 01, APPARTEMENT N°B-1.6 - 2 CHAMBRES,
SURFACE +/- 90,44 M²


DESCRIPTION
Appartement N° A-1.6
Étage 01
Appartement 1 chambre
Surface : +/- 90,44 m²
Séjour / S.A.M : +/- 36,91 m²
Cuisine : +/- 8,03 m²
Chambre 1 : +/- 13,43 m²
Chambre 2 : +/- 11,17 m²
Entrée : +/- 4,54 m²
S.D.B : +/- 5,85 m²
WC : +/- 1,90 m²
Débarras : +/- 1,65 m²
Balcon

Résidence RENAISSANCE à LUXEMBOURG - Logements
ÉTAGE 01, APPARTEMENT N°B-1.6 - 2 CHAMBRES, SURFACE +/- 90,44 M²
Résidence RENAISSANCE à LUXEMBOURG - Logements ÉTAGE 01, APPARTEMENT N°B-1.8 - 2 Chambres,
SURFACE +/- 85,84 M²


DESCRIPTION
Appartement N° B-1.8
Étage 01
Appartement 2 chambres
Surface : +/- 85,84 m²
Séjour : +/- 21,76 m²
S.A.M / Cuisine : +/- 14,30 m²
Chambre 1 : +/- 13,13 m²
Chambre 2 : +/- 12,85 m²
Entrée : +/- 3,18 m²
Dégagement : +/- 6,01 m²
S.D.B : +/- 7,55 m²
WC : +/- 1,95 m²
Débarras : +/- 2,58 m²
Balcon

Résidence RENAISSANCE à LUXEMBOURG - Logements ÉTAGE 01, APPARTEMENT N°B-1.8 - 2 Chambres, SURFACE +/- 85,84 M²

BALCON
Résidence RENAISSANCE à LUXEMBOURG - Logements
ÉTAGE 01, APPARTEMENT N°B-1.11 - 2 Chambres, SURFACE +/- 92,43 M²


DESCRIPTION
Appartement N° b-1.11
Étage 01
Appartement 2 chambres
Surface : +/- 92,43 m²
Séjour / S.A.M / Cuisine
Chambre 1
Chambre 2
Entrée / Dégagement
S.D.B
WC
Débarras
Balcon

Résidence RENAISSANCE à LUXEMBOURG - Logements ÉTAGE 01, APPARTEMENT N°B-1.11 - 2 ChambreS, SURFACE +/- 92,43 M²

APPARTEMENT 2CH 92,43 m²
ENTRÉE / DÉGAGEMENT
SÉJOUR / S.A.M / CUISINE
DÉBARRAS

Résidence RENAISSANCE à LUXEMBOURG - Logements ÉTAGE 02, VUE D’ensemble

Résidence RENAISSANCE à LUXEMBOURG - Logements
Étage 02, APPARTEMENT N°B-2.8 - 2 CHAMBRES, SURFACE +/- 86,84 M²


DESCRIPTION
Appartement N° B-2.8
Étage 02
Appartement 2 chambres
Surface : +/- 86,84 m²
Séjour
S.A.M / Cuisine
Chambre 1
Chambre 2
Entrée
Dégagement
S.D.B
WC
Débarras
Balcon

Résidence RENAISSANCE à LUXEMBOURG - Logements Étage 02, APPARTEMENT N°B-2.8 - 2 CHAMBRES, SURFACE +/- 86,84 M²


Résidence RENAISSANCE à LUXEMBOURG - Logements ÉTAGE 03, VUE D’ensemble

Résidence RENAISSANCE à LUXEMBOURG - Logements
Étage 03, APPARTEMENT N°B-3.4 - 3 CHAMBRES, SURFACE +/- 123,71 M²


DESCRIPTION
Appartement N° B-3.4
Étage 03
Appartement 3 chambres
Surface : +/- 123,71 m²
Séjour / S.A.M
Cuisine
Chambre 1
Chambre 2
Chambre 3
Entrée / Dégagement
S.D.D 1
S.D.D 2
WC
Débarras
Balcon 1
Balcon 2

Résidence RENAISSANCE à LUXEMBOURG - Logements Étage 03, APPARTEMENT N°B-3.4 - 3 CHAMBRES, SURFACE +/- 123,71 M²

Résidence RENAISSANCE à LUXEMBOURG - Logements
Étage 03, APPARTEMENT N°B-3.9 - 2 CHAMBRES, SURFACE +/- 92,34 M²


DESCRIPTION
Appartement N° B-3.9
Étage 03
Appartement 2 chambres
Surface : +/- 92,34 m²
Séjour / S.A.M / Cuisine
Chambre 1
Chambre 2
Entrée / Dégagement
S.D.B
WC
Débarras
Balcon

Résidence RENAISSANCE à LUXEMBOURG - Logements Étage 03, APPARTEMENT N°B-3.9 - 2 CHAMBRES, SURFACE +/- 92,34 M²

ENTRÉE / Dégagement
APPARTEMENT 2CH 92,34 m²
BALCON
CHAMBRE 1
CHAMBRE

Résidence RENAISSANCE à LUXEMBOURG - Logements ÉTAGE 04, VUE D’ensemble

Résidence RENAISSANCE à LUXEMBOURG - Logements
Étage 04, APPARTEMENT N°B-4.4 - 3 CHAMBRES, SURFACE +/- 185,82 M²


DESCRIPTION
Appartement N° b-4.4
Étage 04
Appartement 3 chambres
Surface : +/- 185,82 m²
Séjour / S.A.M
Cuisine
Chambre 1
Chambre 2
Chambre 3
Entrée / Dégagement
S.D.B 1
S.D.B 2
S.D.B 3
WC
Débarras
Terrasse

Résidence RENAISSANCE à LUXEMBOURG - Logements Étage 04, APPARTEMENT N°B-4.4 - 3 CHAMBRES, SURFACE +/- 185,82 M²

ENTRÉE / Dégagement
APPARTEMENT 3CH 185,82 m²
SÉJOUR /
TERRASSE
