






![]()











This 38-home community in Bethany (Washington Co.), nestled against the rural reserve, blends natural beauty with convenient access to major employers and the tech corridor. Homes range from 2,600–4,500 SQ FT and offer thoughtful designs including main-level primary suites, daylight basements, guest suites, 3-car garages, and greenspace views.











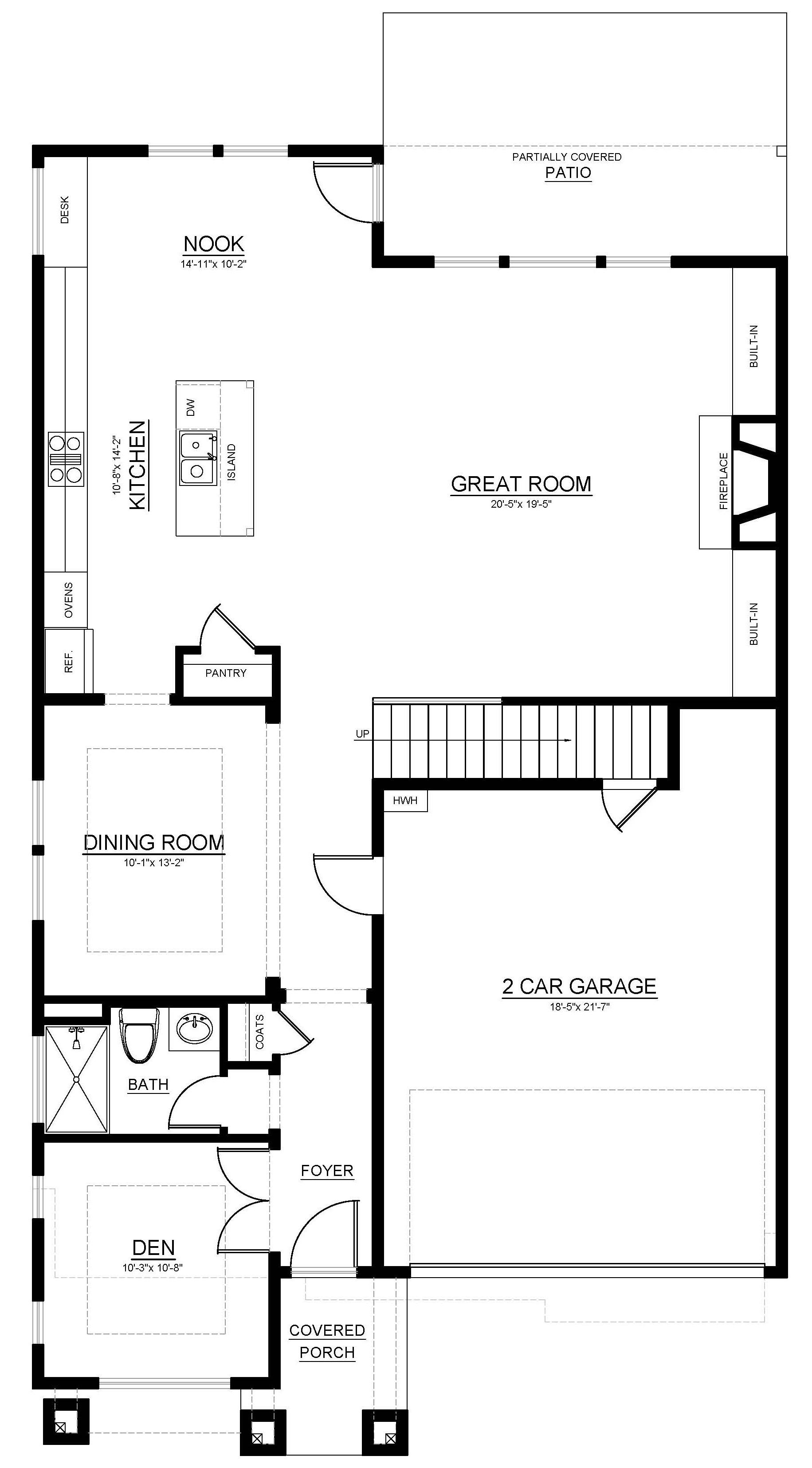
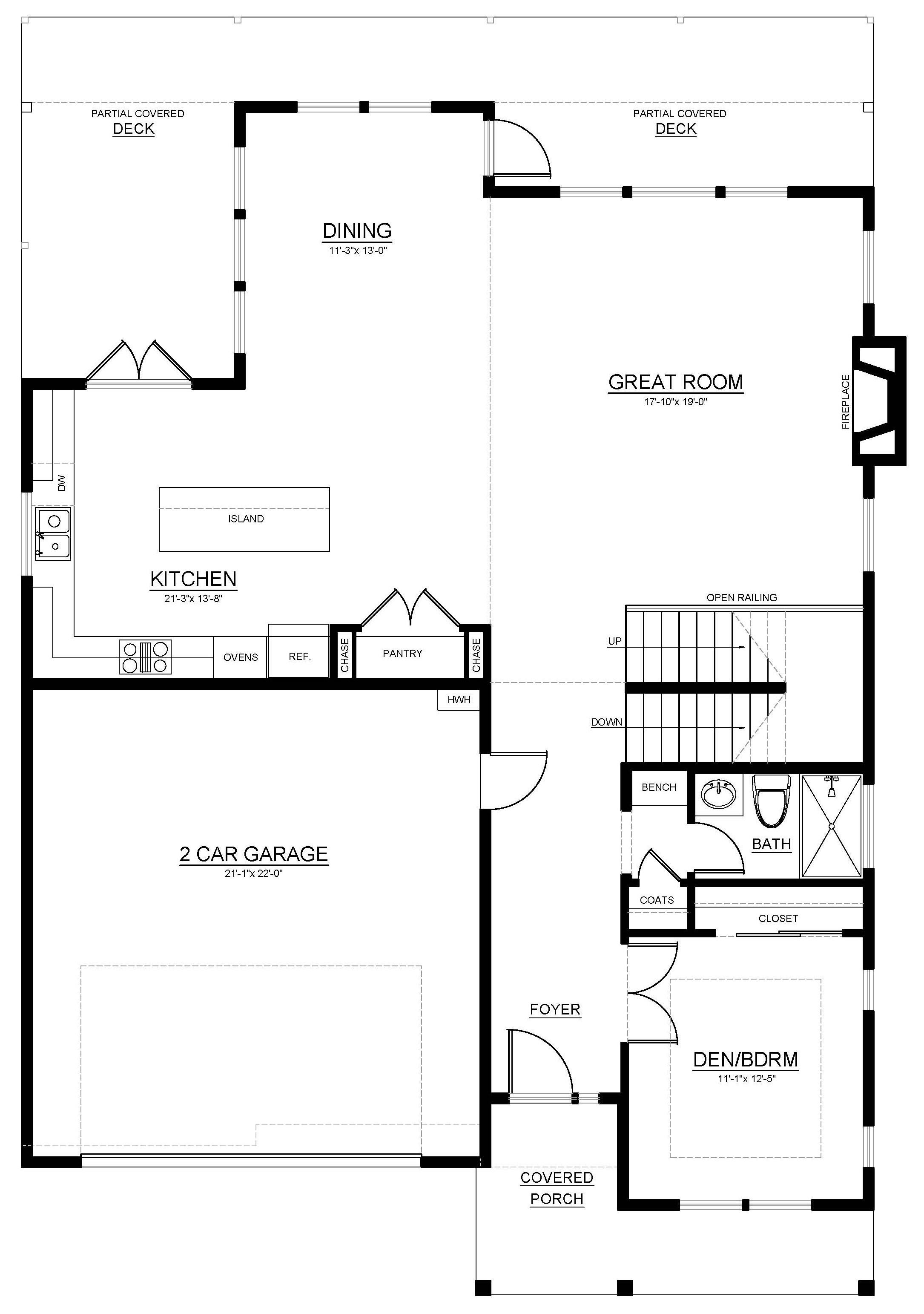
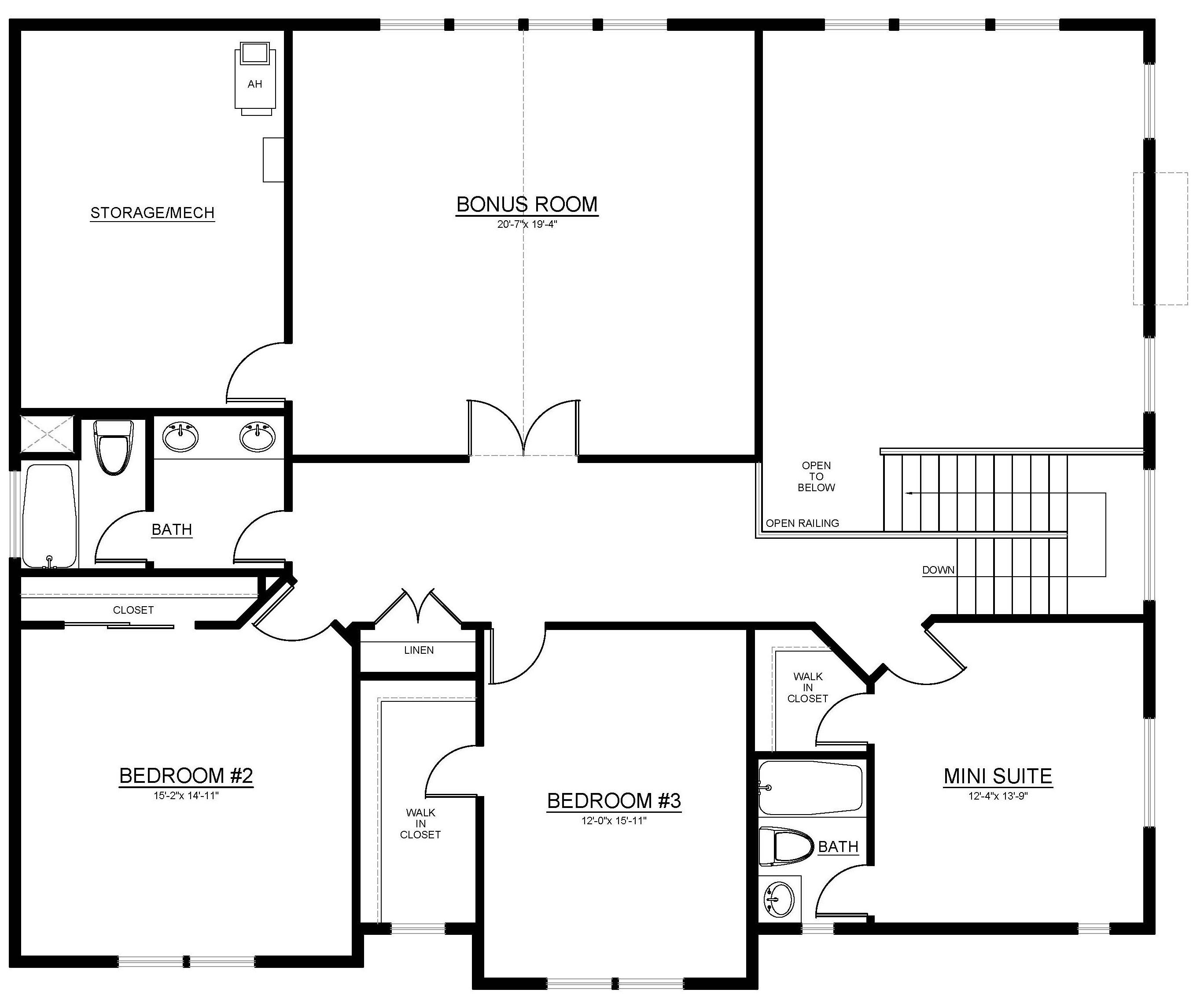
2,829 BED + DEN + BONUS BATH
SQ. FT
3 CAR GARAGE 2 LOT #28
5908 NW 132nd Ave, Portland, OR 97229
Bonus Room
Dining Room
Guest Suite
Dining Nook
Den
Covered Patio
Eco-Friendly Construction
Walk-In Closets
Welcome to this thoughtfully designed two-story home offering 2,829 sq. ft. of well-planned living space with 3 bedrooms and 3 bathrooms. This residence combines open living, flexible spaces, and everyday functionality.
The main level features a spacious great room with a cozy fireplace that flows effortlessly into the kitchen, nook, and dining area—ideal for gathering and entertaining. A main-level den or bedroom with an adjacent full bath offers flexibility for guests or a home office, while the partially covered patio and welcoming front porch extend the living space outdoors.
Upstairs, the private living area includes a generous primary bedroom with a walk-in closet and spa-inspired bath, two additional bedrooms, a full bath, and a versatile bonus room. A conveniently located laundry room adds everyday ease.
A 2-car garage and energy-efficient construction complete this well-balanced and inviting home.


▪ 18-time Earth Advantage Award Winner
▪ 9-time Oregon Home Magazine Winner
▪ EEBA - Excellence in Healthy Homes National Champion
▪ EEBA - Zero Energy Ready Homes at Production Scale National Champion
▪ HBA Builder of the Year
▪ Energy Star Market Leader
▪ Department of Energy ZER Housing Innovation Award Winner
▪ Earth Advantage’s Project of the Year











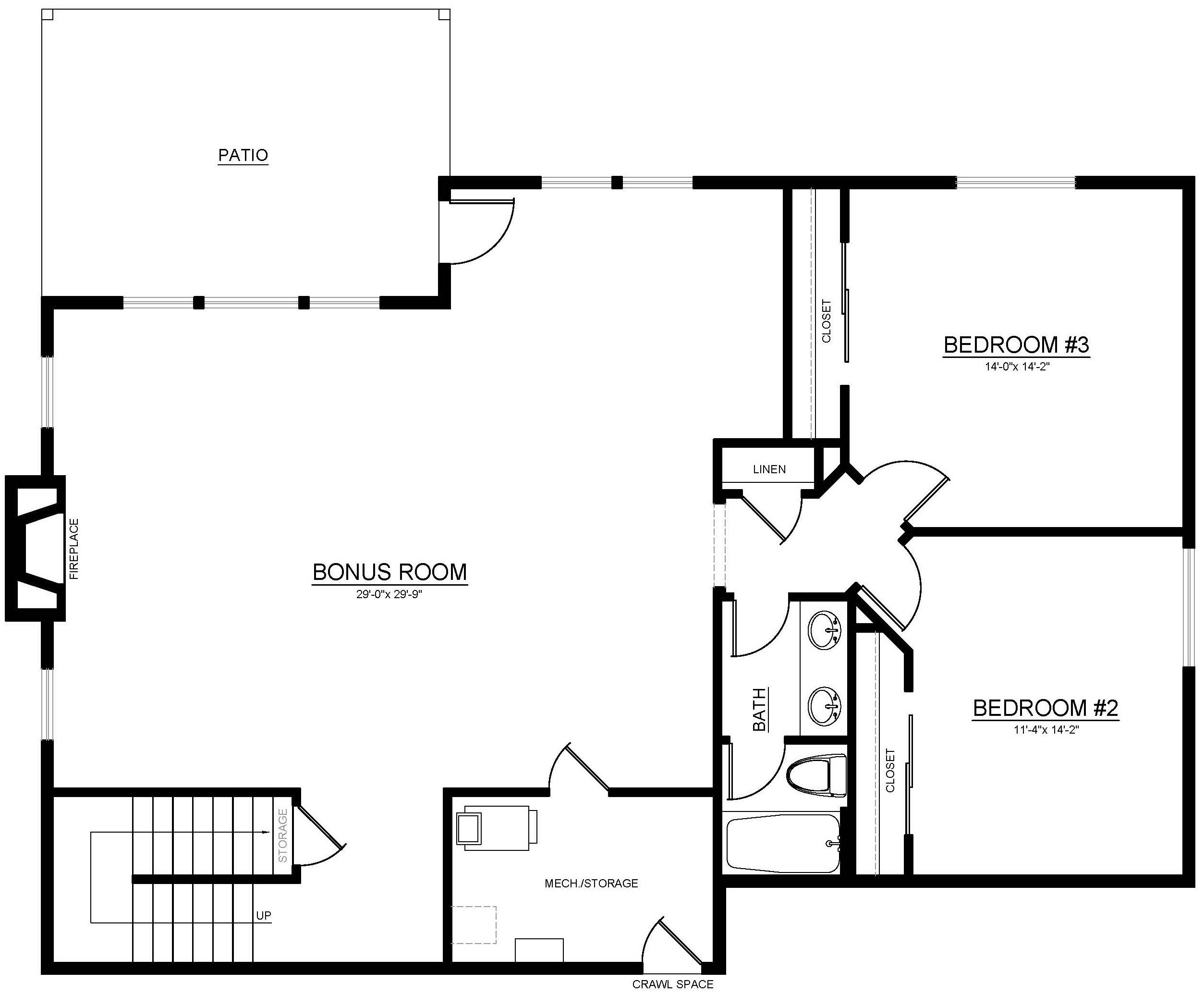
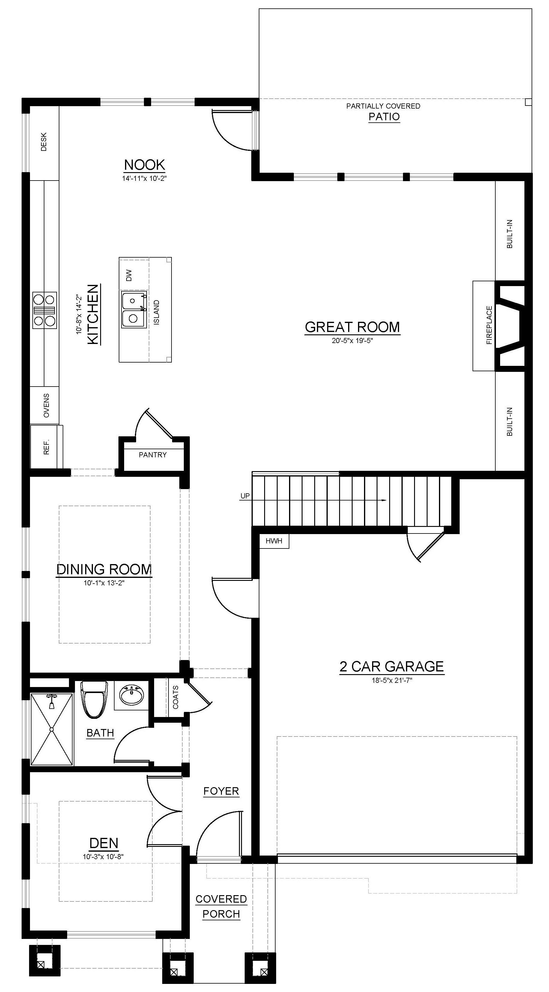
3,286 BED + DEN + BONUS BATH
SQ. FT
3.5 CAR GARAGE 2
Welcome to this spacious two-story home offering 3,286 sq. ft. of thoughtfully designed living space with 5 bedrooms and 3.5 bathrooms. This plan delivers a perfect balance of open gathering areas and private retreats.
The main level features an expansive great room with a cozy fireplace, seamlessly connecting to the kitchen, nook, and dining room—ideal for entertaining and everyday living. A main-level den or bedroom and a separate guest bedroom, each with nearby baths, provide excellent flexibility for visitors or home office needs. Enjoy outdoor living on the covered patio, complemented by a welcoming covered front porch.
Upstairs, the private living area includes a generous primary bedroom with a walk-in closet and spa-inspired bath, along with three additional bedrooms, a full bath, and a versatile bonus room. A conveniently located laundry room adds everyday ease.
A 2-car garage and energy-efficient construction complete this well-designed and highly livable home.


LOT #30
5895 NW132nd, Portland, OR 97229
Bonus Room
Dining Room
Guest Suite
Dining Nook
Den
Covered Patio
Eco-Friendly Construction
Walk-In Closets
▪ 18-time Earth Advantage Award Winner
▪ 9-time Oregon Home Magazine Winner
▪ EEBA - Excellence in Healthy Homes National Champion
▪ EEBA - Zero Energy Ready Homes at Production Scale National Champion
▪ HBA Builder of the Year
▪ Energy Star Market Leader
▪ Department of Energy ZER Housing Innovation Award Winner
▪ Earth Advantage’s Project of the Year











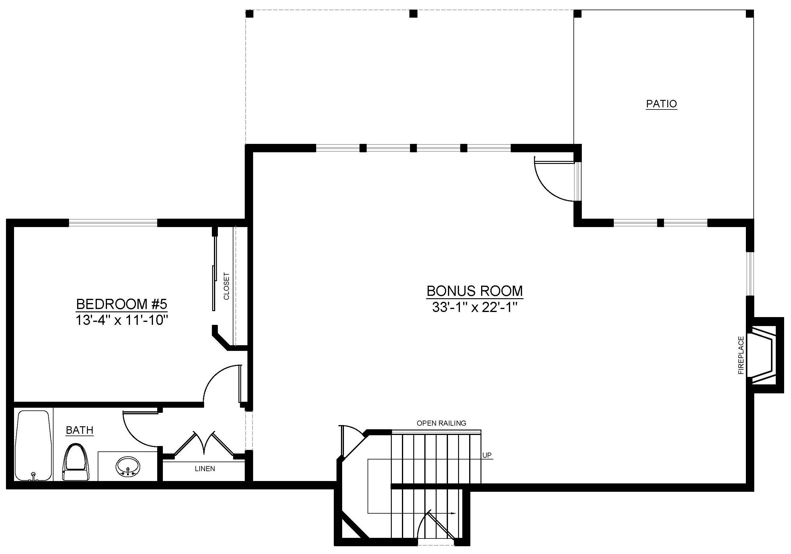
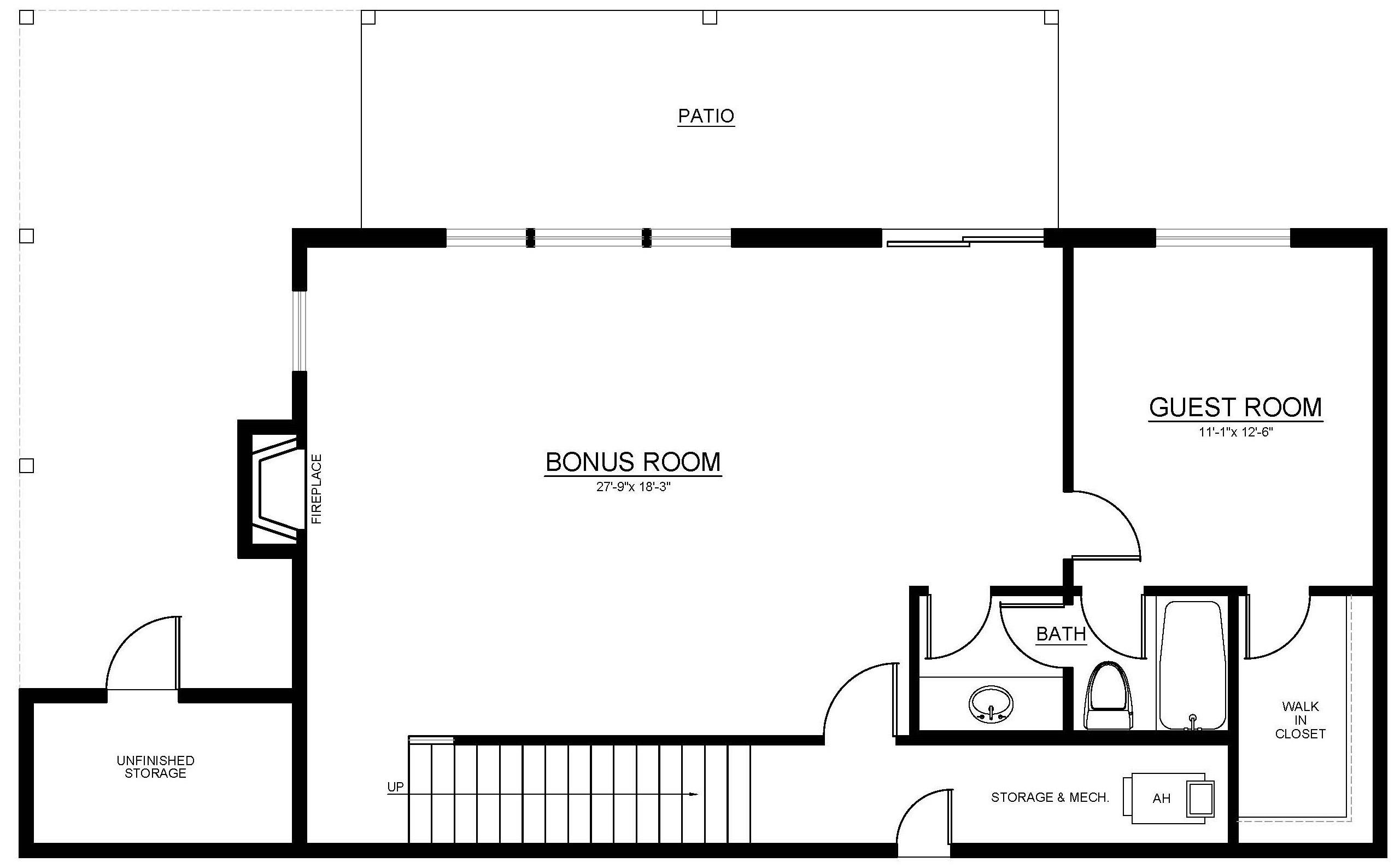
3,792 BED + DEN + BONUS 5 BATH 4.5 CAR GARAGE 2
Discover the comfort and versatility of Lot 27, a beautifully planned two-story home offering generous spaces for gathering, hosting, and everyday living. With 5 bedrooms, including both a guest suite and a mini suite, this plan supports multigenerational needs or long-term visitors with ease.
The main floor centers around a bright, open great room with a welcoming fireplace, connecting seamlessly to the dining nook and a chef-friendly butler’s pantry. A separate dining room and a quiet den add flexibility for work, entertaining, or hobbies.
Upstairs, a spacious bonus room provides the perfect spot for movie nights, play space, or a second lounge. Thoughtful storage is found throughout, including multiple walk-in closets.
Enjoy outdoor relaxation on the covered patio, where serene green space views extend the sense of privacy and calm. Eco-friendly construction ensures long-lasting comfort and efficiency. Lot 27 blends smart design with inviting living spaces—ideal for today’s lifestyle.


Bonus Room
Dining Room
Guest Suite
Mini Suite
Dining Nook
Butler's Pantry
Den
Covered Patio
Eco-Friendly Construction
Walk-In Closets
Green Space Views
▪ 18-time Earth Advantage Award Winner
▪ 9-time Oregon Home Magazine Winner
▪ EEBA - Excellence in Healthy Homes National Champion
▪ EEBA - Zero Energy Ready Homes at Production Scale National Champion
▪ HBA Builder of the Year
▪ Energy Star Market Leader
▪ Department of Energy ZER Housing Innovation Award Winner
▪ Earth Advantage’s Project of the Year












3,409
Thoughtfully designed for health, comfort, and high performance, this 3,409 sq. ft. home offers a smarter, more efficient way to live. The open-concept main level features a vaulted great room, a spacious kitchen with an oversized island, a dedicated dining room, and a butler’s pantry—creating seamless flow for both everyday living and elevated entertaining. With 4 bedrooms, 3.5 bathrooms, and a 2-car garage, the layout balances functionality with refined design, complemented by carefully selected, high-end finishes and attention to detail throughout.
The main level includes both a private primary suite and a separate guest suite, ideal for multigenerational living or hosting visitors. The primary suite offers a relaxing retreat with a walk-in closet and well-appointed bath, while the guest suite provides flexibility and privacy. Downstairs, the daylight basement expands the home’s livability with abundant natural light, additional bedrooms, and a spacious bonus room—perfect for a media room, fitness space, or play area. Designed with energy efficiency and performance in mind, this home delivers year-round comfort, improved air quality, and lower utility costs.


Christina Smith
Primary Suite on Main
Guest Suite on Main
Daylight Basement
Bonus Room
Dining Nook
Great Room
Covered Deck
Covered Porch
Fireplace
Eco-Friendly Construction
Walk-In Closets
Green Space Views











3,590
Designed with a focus on health, comfort, and high-performance living, this 3,590 sq. ft. home offers a well-balanced blend of functionality and elevated design. The main level features an open-concept layout anchored by a spacious great room with built-ins and a fireplace, seamlessly connecting to the kitchen with a large island, walk-in pantry, and adjacent dining area—ideal for both everyday living and entertaining. A dedicated den provides additional flexibility for a home office or quiet retreat, while carefully selected finishes throughout add a refined touch.
With 5 bedrooms, 4.5 bathrooms, and a 3-car garage, the home is designed to accommodate a variety of lifestyles.
A main-level guest suite offers privacy and convenience for visitors or multi-generational living. Upstairs, the primary suite serves as a spacious retreat with a walk-in closet and well-appointed bath, accompanied by additional bedrooms, a centrally located laundry room, and a versatile bonus room perfect for a media space, playroom, or fitness area. Built with energy efficiency in mind, this home delivers improved indoor air quality, consistent comfort, and lower utility costs for a better everyday living experience.


Christina Smith
Guest Suite on Main
Bonus Room
Den
Dining Room
Dining Nook
Butlers Pantry
Great Room
Covered Patio
Covered Porch
Fireplace
Eco-Friendly Construction
Walk-In Closets
Green Space Views











Guest Suite on Main
Daylight Basement
Bonus Room
Dining Room
Dining Nook
Butlers Pantry
Great Room
Covered Deck
Covered Porch
Fireplace
Eco-Friendly Construction
Walk-In Closets
Green Space Views
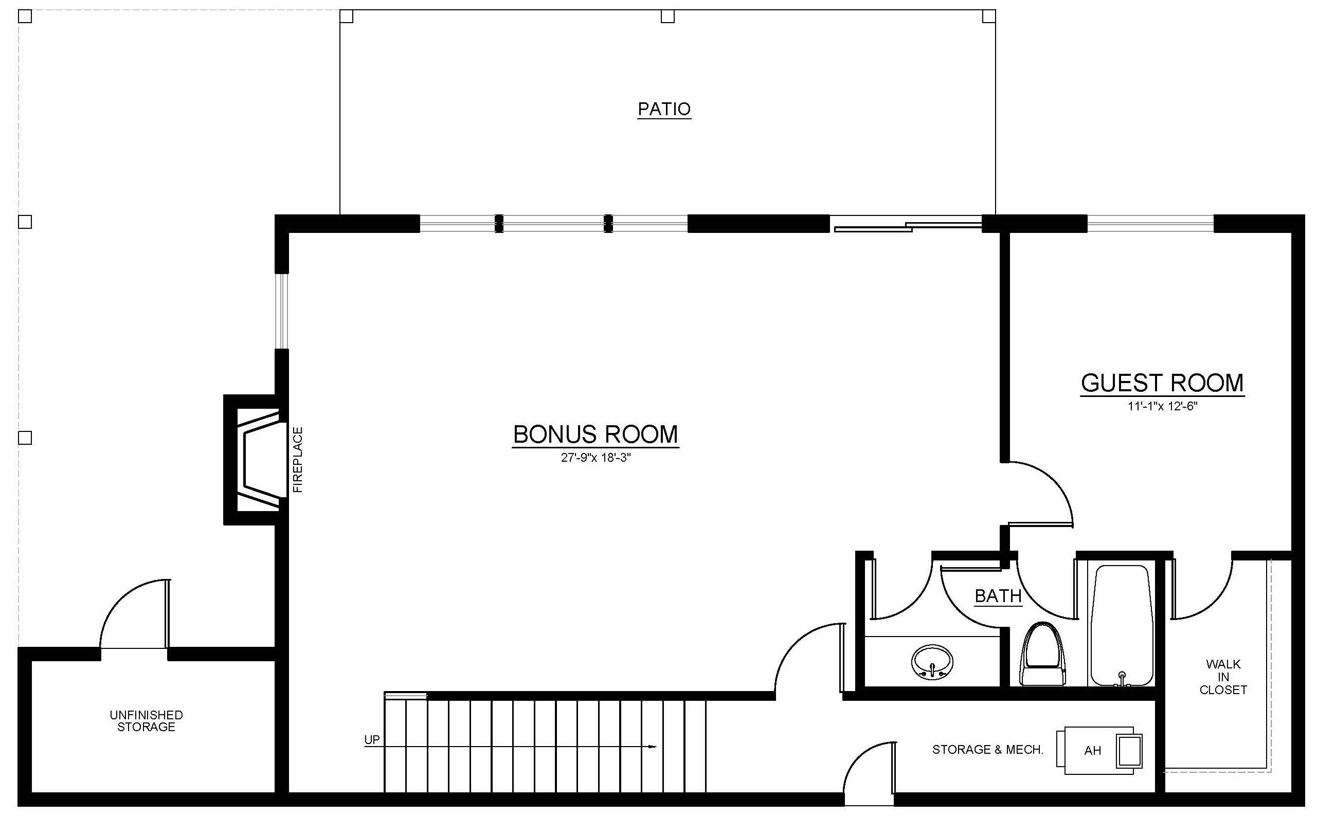
Designed to deliver a healthier, more comfortable living environment, this 4,188 sq. ft. home blends thoughtful design with high-performance construction. At the heart of the home is a dramatic, light-filled great room with soaring two-story ceilings that create an open, airy feel and a strong connection between levels. The space flows effortlessly into the kitchen—complete with a large island and butler’s pantry—and a dedicated dining area, making it ideal for both everyday living and entertaining. With 6 bedrooms, 5.5 bathrooms, and a spacious 3-car garage, the home offers exceptional flexibility and function, elevated by carefully selected finishes and attention to detail throughout.
The layout is designed for versatility, featuring a main-level guest suite that provides comfort and privacy for visitors or multi-generational living. Upstairs, the primary suite serves as a peaceful retreat with generous proportions, a walk-in closet, and a well-appointed bath, along with additional bedrooms and convenient laundry. The daylight lower level expands the home even further, offering an additional bedroom, full bath, and a large bonus room—perfect for a media lounge, fitness area, or recreation space. Built with energy efficiency and indoor wellness in mind, this home delivers consistent comfort, improved air quality, and lower utility costs.


Smith












4,205
6 BATH 5 CAR GARAGE 3
Lot 5 is a spacious three-story home offering 6 bedrooms, 5 bathrooms, a daylight basement, and a versatile bonus room. Thoughtfully designed for comfort and flexibility, the main level features a welcoming den, elegant dining room, butler’s pantry, and an open great room with a cozy fireplace.
Enjoy year-round outdoor living on the covered deck, showcasing peaceful green space views. Dual guest suites, abundant walk-in closets, and eco-friendly construction elevate both convenience and sustainability.
With a bright daylight basement, covered porch, and a roomy 3-car garage, this home offers exceptional space, style, and livability.
Daylight Basement
Bonus Room
Dining Room
Butler’s Pantry
Den
Covered Deck
Eco-Friendly Construction
Walk-In Closets
Green Space Views
▪ 18-time Earth Advantage Award Winner
▪ 9-time Oregon Home Magazine Winner
▪ EEBA - Excellence in Healthy Homes National Champion
▪ EEBA - Zero Energy Ready Homes at Production Scale National Champion
▪ HBA Builder of the Year
▪ Energy Star Market Leader
▪ Department of Energy ZER Housing Innovation Award Winner
▪ Earth Advantage’s Project of the Year












• High e ciency variable speed heat pump provides heating and cooling for optimal comfort
• Wifi compatible thermostat
• Air handler and ducts inside conditioned space for health and e ciency
• Energy Recovery Ventilator pulls fresh air in and takes stale air out increasing e ciency, comfort, and health
• .95 EF Navien tankless hot water heater
• Milgard vinyl insulated windows with lifetime limited manufacturer warranty and special energy and comfort package
• Energy e cient insulation package including polar blown in blanket insulation and extensive air sealing
• Raised heel trusses and high-performance framing system
• All homes built solar ready with many Zero Energy Ready Certified homes available
• Garage exhaust fan
• Ask sales agent for detailed list of high-performance features


• Covered front entry/porch (per plan)
• Enhanced front and back yard landscaping with irrigation
• Fully fenced backyard
• Patio or deck (per plan)
• Hardie panel and plank siding and fiber cement trim with an industry leading manufacturer warranty
• Partial exterior decorative stone (per plan)
• Architectural roof with lifetime manufacturer warranty
• Raised 4 panel garage door (per plan)
• Satin Nickel dead bolt - Matte Black optional
• Aggregate driveway and walkway
• Grids on front windows (per plan)
• Rain Screen moisture management system
• Outdoor living options available
• Fully wood wrapped windows
• Decorative panel doors and millwork
• Iron baluster and open rail staircase throughout
• Stair skirt board
• Wood floors in Entry, Kitchen, Butler’s pantry (if applicable), Nook, Dining, Great Room and Powder Bath (if applicable)
• Durable designer carpet and upgraded pad
• Built-ins with tile face gas fireplace (per plan)
• Satin Nickel plumbing fixtures - Matte Black optional
• Satin Nickel decorative light fixtures - Matte Black optional
• Primary walk-in closet
• Co ered ceilings (per plan)
• 2-step crown moulding in primary bedroom
• 2-step crown moulding and wainscoting in dining room
• Contemporary square sheetrock corners
• Wood shelving and recessed lighting throughout
• 10’ main floor & 9’ upper floor ceilings (per plan)
• One year builder’s warranty, 2 year extended systems and a 10 year home buyer’s warranty
• Ceiling fan in primary bedroom
• Surround sound pre-wire in family/great room & basement (per plan)
• Pre-plumb for central vac retractable hose system
• Phone jacks conveniently located in kitchen and primary bedroom
• Cable television pre-wired in the family/great room and in all bedrooms
• High-tech structured low voltage wiring
• Leviton smart switch - front porch (additional options available)
• Leviton smart home panel (smart breaker ready)
• 3 weather proof electrical outlets (per plan)
• 2 exterior faucets
• Automatic wifi-capable belt drive garage door opener and keypad
• Dedicated circuit for freezer in garage
• Hard wired smoke detectors with hush feature and battery backup for safety
• Direct vent gas fireplace in family/great room and basement (per plan)
• Dedicated circuit and outlet in garage for electric vehicle charging
• Irrigation system with rain sensor
• Quartz counter with full height designer backsplash
• Recessed lighting and decorative pendants
• Under cabinet lighting
• Stainless steel four piece appliance package, including convection oven and microwave combination, and vent hood
• Custom beech cabinetry with 48” and 42“ staggered uppers (per plan) and 3-step crown moulding
• Composite undermount sink
• Quality waste disposal
• Stainless high neck faucet with pull down sprayer - Matte Black and Champagne Bronze optional
• Pre-plumbed for refrigerator
• Concealed outlets
• Slab countertops with undermount sinks in all bathrooms
• 6’ soaking tub in primary bath
• Tile floors in primary, hall bathrooms and laundry room
• Tile mud set primary bath shower
• Tile-walled shower in main level bathroom (per plan)
• Fiberglass tub/shower in hall bathroom
• Custom cabinetry with 36” lower cabinet vanity in master bath
• Full width wood wrapped vanity mirrors
• Satin Nickel finish faucet fixtures - Matte Black optional
• Elongated bowl water closets
• Tile countertops in utility room
• Decorative powder vanity


