






![]()






























































Structure and Efficiency
New home warranty
Durable Hardie fiber cement siding
Tyvek drain wrap for moisture management
30-year premium composition shingle roofing
Moisture testing and dry out at framing
Energy efficient insulation package
Vinyl insulated double glazed windows (white, with screens)
Solar Pre-wire
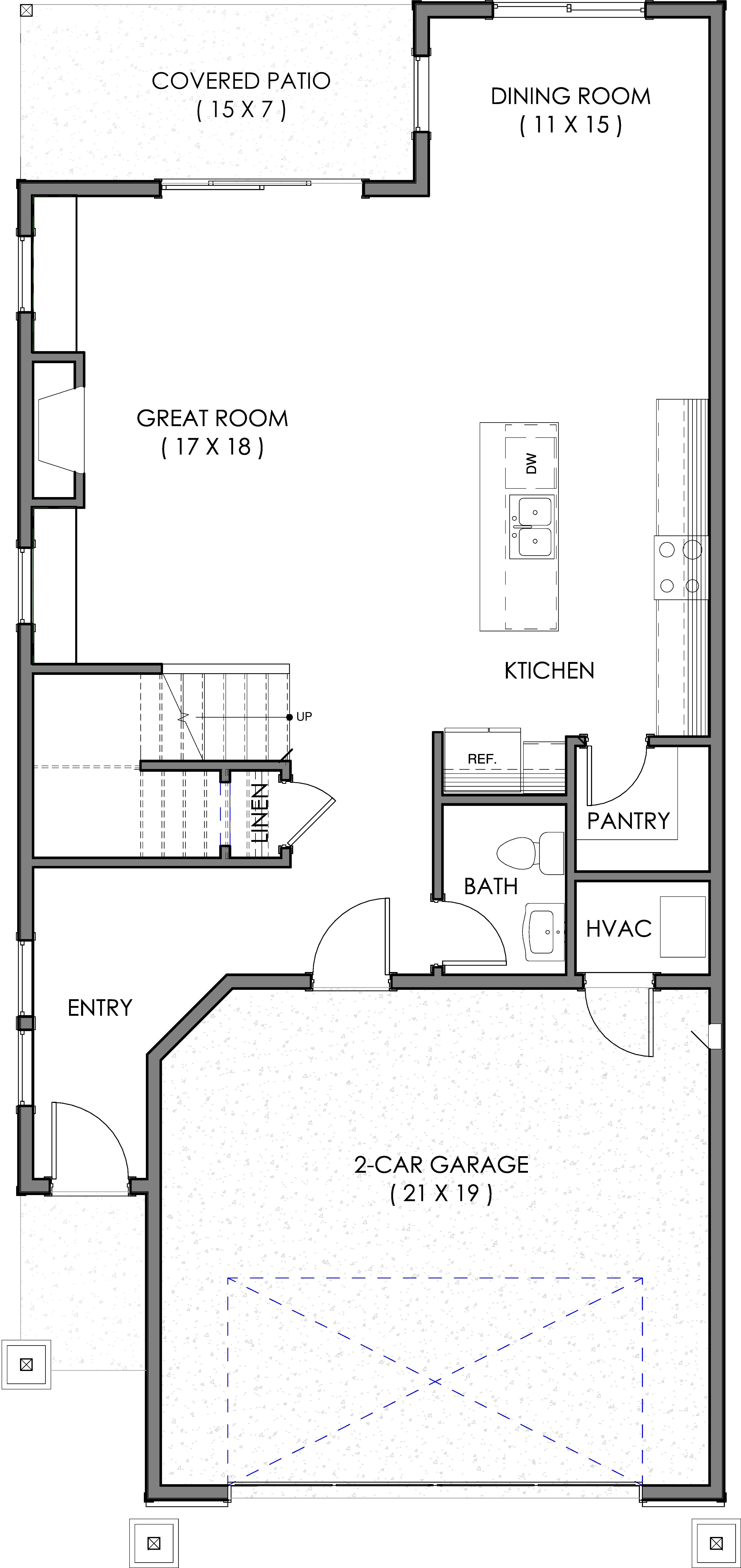
Garage
Insulated garage doors with windows, styles vary
Automatic garage door openers w/ keyless entry
Interior painted garage
Electric Vehicle Charger
2 GFCI outlets
Exterior
Covered front entry porch, per plan
Complete 6ft exterior fencing with a gate
Painted fiberglass front door with glass window, styles vary
Front and rear landscape with automatic sprinkler system, sod, plantings and bark dust
Covered rear concrete patio or Trex deck, vary by plan
Exposed aggregate concrete on driveway
Weatherproof exterior electrical outlets and faucets
Interior Touches
9ft ceilings and vaulted rooms, vary per plan
Decorative single panel doors with matte black doorknobs
Painted wood shelves in all closets
Stylish door casings and 6in base throughout Wood open railing, locations vary per plan
Gas fireplace with tile surround and shelf mantle
Built-in shelves on each side of fireplace
Soft close cabinets throughout
Dramatic light fixtures in matte black finish
Functional and stylish laminate floors in the great room, kitchen, main floor hallway and dining room
Soft and cozy carpet in dens, on stairs, upper hallway and bedrooms
Electrical
High-tech wiring including a structured low voltage wire panel
CAT 5, coax and USB plugs
Recessed can lighting throughout
Plumbing and Heat/Air
95% efficiency forced air gas central heating + A/C
Programmable thermostat
Energy saver tankless water heater (sized per plan)
Lifetime warranty on function and finish for faucets
Gourmet Kitchens
Pro stainless-steel appliances including: 36” slide-in gas range w/ under cabinet hood, built- in microwave and quiet dishwasher
Slab countertops with full-height tile backsplash
Island with counter seating
Custom cabinetry with quiet close hinges
Stainless steel single basin undermounted sink
Delta high arch pull-down faucet in matte black
Pre-plumbed for refrigerator ice maker
Spacious pantry for additional storage
Primary Suite
Raised height cabinetry with dual sinks
Delta single handle faucets in matte black
Separate tiled walk-in shower and glass shower door
Tiled shower bench and niche
Freestanding soaking tub with deck mounted faucet
Slab counters and tile floors
Walk-in closet with built-in storage
Elegant Additional Baths
Slab counters and undermounted square sink
Waterproof luxury vinyl tile flooring
Matte black faucets and coordinating light fixture
Frameless mirrors over vanity and black towel bars
Elongated toilets
Fiberglass tub/showers and curtain rod OR fiberglass shower with matte black framed door, per plan
Laundry Room
Extra storage w/ upper cabinets and laundry hanging rod
Lower folding table with laminate counter and tile splash
Waterproof and durable luxury vinyl tile flooring
Design Consultation
Depending upon your homes stage of construction, you may have the opportunity to choose your own colors and designs on the following:
Interior/Exterior paint colors or stone
Flooring/Counter Surface selections throughout
Cabinet color
Multiple paint and stains to choose from
Lighting, plumbing fixtures and more!
www.WestwoodHomesLLC.com
Disclaimer: Builders standard spec list may be changed at builder’s discretion with the replacement item of comparable quality.

