SEDGEFIELD


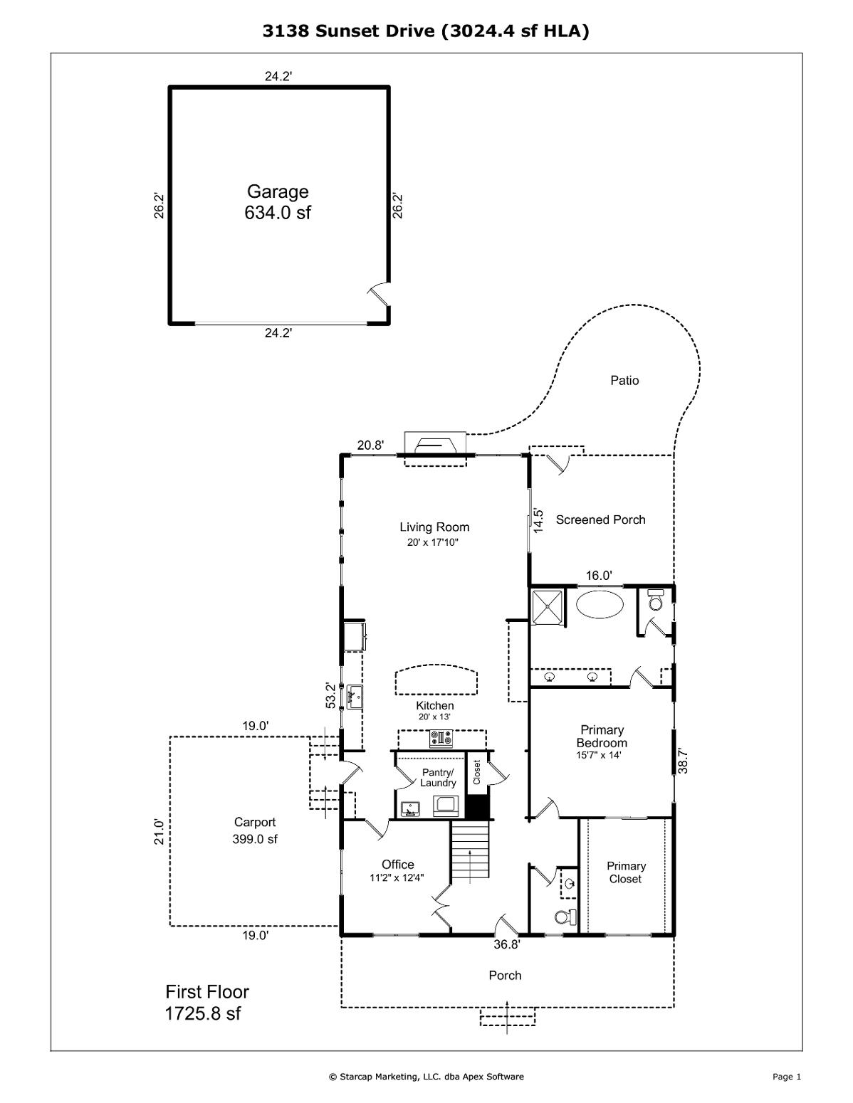
Absolutelybeautiful 2016 constructionon quiet treelined street insought-after Sedgefield! Withcharmingcurb appeal, beautiful finishes,anopenfloor plan,main level primary,bonusroom,2-car garage& expansiveback yard thishomehasit all. Stunningkitchenfeaturingwhitecabinetry, quartzcountertops,subwaytilebacksplash,SS appliances,afarmsink& alargeisland with seating.Primarysuite withhugewalk-incloset & ensuite bathwith basketweaveflooring,dual vanity,soakingtub & a framelessglasswalk-in shower.Upstairsfeatures3 additional bedrooms,2 full bathrooms,abonusroom& walk-inattic storage Enjoymulti-seasonal outdoor livingwithacovered front porch spanningthewidthof thehome,ascreened porchoff thegreat room& paver patio overlookingtheprivateback yard.Rare opportunity for acustomMillsElogehome Welcomehome!