3138 Sunset Boulevard - Leigh Corso - Cottingham Chalk

Page 1

SEDGEFIELD

3138 SUNSET DRIVE

WELCOME HOME

3138 SUNSET DRIVE

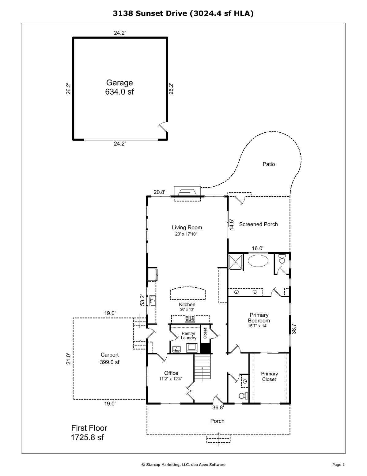
Absolutelybeautiful 2016 constructionon quiet treelined street insought-after Sedgefield! Withcharmingcurb appeal, beautiful finishes,anopenfloor plan,main level primary,bonusroom,2-car garage& expansiveback yard thishomehasit all. Stunningkitchenfeaturingwhitecabinetry, quartzcountertops,subwaytilebacksplash,SS appliances,afarmsink& alargeisland with seating.Primarysuite withhugewalk-incloset & ensuite bathwith basketweaveflooring,dual vanity,soakingtub & a framelessglasswalk-in shower.Upstairsfeatures3 additional bedrooms,2 full bathrooms,abonusroom& walk-inattic storage Enjoymulti-seasonal outdoor livingwithacovered front porch spanningthewidthof thehome,ascreened porchoff thegreat room& paver patio overlookingtheprivateback yard.Rare opportunity for acustomMillsElogehome Welcomehome!

704.650.0063 lcorso@cottinghamchalk.com LEIGH CORSO REALTOR®/ Broker

Turn static files into dynamic content formats.

Create a flipbook
Issuu converts static files into: digital portfolios, online yearbooks, online catalogs, digital photo albums and more. Sign up and create your flipbook.