Northeast 21, October 12, 2022

Page 1

The New York State Department of Transportation (NYSDOT) is investing

to reconstruct and modernize a key segment of State Route 347.

in Suffolk County, the project is adding new travel lanes, signals, crosswalks and other improvements to a 2-mi. section of the

between Gibbs Pond Road and Hallock Road in the towns of Smithtown and Brookhaven.

from Peter Scalamandre

Sons

Buy Clean Initiative … Explained

Task Force Readies to Issue Instructions

President Joe Biden’s

which

concrete, asphalt and flat

their manufacturing,

installation, maintenance and disposal.

according

Federal agencies will prioritize the purchase of steel, concrete, asphalt and flat glass that feature lower emission levels in their manufacturing, transportation, installation, maintenance and disposal.

“TheNation’sBestReadConstructionNewspaper…Founded1957.” ® Northeast Edition 470 Maryland Drive • Ft. Washington, PA 19034 • 215-885-2900 • Toll Free 800-523-2200 • www.constructionequipmentguide.com Published Nationally October 12 2022 Vol. LXIV • No. 21
$71.4 million
Located
roadway
Crews
&
Inc. see SUFFOLK page 116
Interagency
Instructions for integrating
Buy Clean Initiative are on the way, compliments of an interagency task force overseeing the procurement program.Agencies will receive the instructions,
prioritize the purchase of steel,
glass that feature lower emission levels in
transportation,
These materials account for 98 percent of the government’s purchased construction material,
see INITIATIVE page 46 Table of Contents 4 Aggregate & Recycling Section . . . . . . . . . . . . . . . . . . . . . . .65-88 Attachments & Parts Section . . . . . . . . . . . . . . . . . . . . . . . .89-96 Truck & Trailer Section . . . . . . . . . . . . . . . . . . . . . . . . . . . .97-104 Snow & Ice Section 105-107 Auction Section . . . . . . . . . . . . . . . . . . . . . . . . . . . . . . . . .110-124 Business Calendar . . . . . . . . . . . . . . . . . . . . . . . . . . . . . . . . . . .117 Advertisers Index 122 GT&E Hosts Minotaur Roadshow in Pa. ...12 Eagle Power Hosts Hauling Compliance Course...20 UTCA Holds Convention in Atlantic City...16 Inside Construction is expected to be completed by the end of 2024.
Page 2 • October 12, 2022 • www.constructionequipmentguide.com • CONSTRUCTION EQUIPMENT GUIDE . T. ALUE & PERFORMANCE ASSUREDVA QUALITY USED EQUIPMENT 267-990-8161 JVILLA@FOLEYINC.COM Used Equipment Sales & Purchasing International & Domestic JOE VILLA , DEr,A; Whitehall, PBensalem, P , NJ; Hammonton, NJ;Piscataway 732-417-7109 A; Bear ASK ABOUT OUR FLEET RESTRUCTURING OPTIONS. WE CAN HELP WITH ONE MACHINE OR THE ENTIRE FLEET V CATERPILLAR 420EIT S/N: DAN01346 ................$50,000 CATERPILLAR 272D1 HF S/N: B5W01230................$45,000 CATERPILLAR 289D3HF S/N: JX905166 ................$97,000 CATERPILLAR 307 S/N: KC900408 ................$83,000 CATERPILLAR 299D3XE S/N: BX902124 ..............$124,000 JOHN DEERE 310SL S/N: 280227....................$71,000 CATERPILLAR 950 G S/N: 5FW02320 ................$47,500 KUBOTA B7200D S/N: B7200D616260 ............$6,600 CATERPILLAR 259D3 S/N: CW910834................$71,000 CATERPILLAR D5-17XL S/N: ZDA00264 ..............$357,000 CATERPILLAR 315FL S/N: TDY10397 ..............$146,000 CATERPILLAR 349FL S/N: BZ200524 ..............$187,000 CATERPILLAR 289D S/N: TAW06308................$68,500 Used Parts • Quality Parts • Attachments Are you looking for a reliable source for quality used components and parts? Outback Parts is linked nationwide with three used parts networks, so finding dependable parts fast and conveniently is never a problem. Outback Parts also supplies replacement parts for Non-Cat® machines. So when you’re needing parts, call or visit us on-line. www.outbackparts.com Call: 732/885-3005 Fax: 908/995-7522 jmeyer@foleyinc.com Visit our Used Equipment Center! 974 Route 33 East Monroe Township, NJ 732-417-7040
CONSTRUCTION EQUIPMENT GUIDE • www.constructionequipmentguide.com • October 12, 2022 • Page 3

USACE PROPOSES $52B BARRIERS FOR NY-NJ WATERWAYS

IN

12 GT&E HOSTS MINOTAUR ROADSHOW IN MECHANICSBURG, PA.

The new Case Minotaur DL550

at

also

a

&

in Mechanicsburg, Pa., where

16 UTCA OF NJ HOLDS ANNUAL CONVENTION IN ATLANTIC CITY

At the convention’s trade show

than

32 CENTURY-OLD TRAIN STATION TO GET NEARLY $50M MAKEOVER

The train station upgrades, unveiled near the future site of the New Jersey Innovation and Technology Hub — known as “The Hub” — are to include extending and replacing well-worn passenger platforms and rehabbing bulky escalators and elevators.

42 CONSTRUCTION OF W.VA.’S LANEVILLE BRIDGE BEGINS RAMPING UP

NORTHEAST

kept

20 EAGLE POWER & EQUIPMENT HOSTS HAULING COMPLIANCE COURSE

The course, led by Pennsylvania State Troopers Anthony (Dan) Falgares and Sean Ahearn, as well as Dalton Leonard, motor carrier enforcement officer of the Pennsylvania State Police, was open to all companies, organizations and individuals who haul equipment in Pennsylvania.

26 BUILDING INFIELD TUNNEL TO PAVE WAY FOR NEW BELMONT PARK

The first step in bringing beautiful Belmont Park and its 54-year-old grandstand into the modern era began a few months ago with the construction of retaining walls that would allow a tunnel to the infield to be built.

26 ATTENDEES, EXHIBITORS FROM ACROSS GLOBE READY FOR CONEXPO

Registration for the show opened in early August and the largest groups of international registrations are coming in from Canada, Australia, the UK, Mexico and New Zealand.

32 N.J. BEGINS WORK ON FIRST OF TWO NEW PEDESTRIAN BRIDGES

Officials in New Jersey’s Camden County have announced that plans are being made for a trail bridge over the Cooper River.

Both the old bridge and the temporary bridge spans Red Creek (a tributary of Dry Fork of Cheat River) along the southern border of the Dolly Sods Wilderness in the Monongahela National Forest.

52 ARMY CORPS OF ENGINEERS BEGIN RAILHEAD UPGRADES AT FORT DRUM

The project is being built by the U.S. Army Corps of Engineers (USACE) with the goal of enhancing the ability of military personnel to deploy more quickly and safely, according to a news release from the Army’s engineering branch.

97 TRUCKING FIRM MAKES SWITCH TO SMITHCO SIDE DUMPS

Solving tough problems for its customers is important to SmithCo, and its team works with customers every step of the way to make sure they get what they need to do the job better.

102 FONTAINE HEAVY-HAUL CHANGES ITS NAME TO FONTAINE SPECIALIZED

“In order to meet the evolving and ever challenging needs of our customer base, our product line will continue to expand beyond traditional heavy-haul trailers,” explained Todd Anderson, president of Fontaine Specialized.

108 COMPANY WRENCH CREATES SERVICE TECH APPRENTICESHIP PROGRAM

The program gives recent high school graduates the opportunity to obtain their associates degree in diesel technology.

Kent Hogeboom

Ed Bryden

Teddy McKeon

Page 4 • October 12, 2022 • www.constructionequipmentguide.com • CONSTRUCTION EQUIPMENT GUIDE ® Circulated Throughout ï New Hampshire ï Vermont ï Connecticut ï Rhode Island ï New York ï New Jersey ï Delaware ï Maine ï Pennsylvania ï Maryland/D.C. ï Virginia ï West Virginia ï Massachusetts Construction Equipment Guide Northeast Edition (ISSN 1058-787X) is published bi-weekly by Construction Equipment Guide Ltd. Advertising and Editorial Offices are located at 470 Maryland Dr., Ft. Washington, PA 19034. Toll Free 800/523-2200 or Fax 215/885-2910. Annual Subscription Rate $65.00. Call for Canadian and foreign rates. Periodicals postage paid at Ft. Washington, PA and at additional mailing offices. POSTMASTER: Send address changes to Construction Equipment Guide Northeast Edition, 470 Maryland Dr, Ft. Washington, PA 19034. Contents Copyrighted ©2022, by Construction Equipment Guide, which is a Registered Trademark, registered in the U.S. Patent Office. Registration number 0957323. All rights reserved, nothing may be reprinted or repro duced(including framing) in whole or part without written permission from the publisher. All editorial material, photographs, drawings, letters, and other material will be treated as unconditionally assigned for publication and copyright purposes and are subject to Construction Equipment Guide's unrestricted right to edit and comment editorially. Contributor articles do not necessarily reflect the policy or opinions of this publication. Call or write for advertising rates, publication schedule and media kit. The Construction Equipment Guide is not responsible for clerical or printer's errors, every care is taken to avoid mistakes. Photographs of equipment used in advertisements are not necessarily actual photographs of the specific machine. Similar photographs are used occasionally and every effort is taken to depict the actual equipment advertised. The right is reserved to reject any advertising.
EDITION Ted McKeon Jr. • New Jersey • Eastern Pennsylvania 215/885-2900 Cell 215/760-6641 e-mail tmckeon@cegltd.com
• New York • New England 315/866-1423 Cell 518/221-5159 e-mail khogeboom@cegltd.com
• West Virginia • Western Pennsylvania 440/243-9690 Cell 440/865-0630 e-mail ebryden@cegltd.com
• Delaware • Maryland 215/885-2900 Cell 215-260-8709 e-mail tmckeonjr@cegltd.com Founder Emeritus (1930-2021) Edwin M. McKeon Sr. Northeast Publisher Edwin M. McKeon Jr. Executive Publisher Teddy McKeon Editor In Chief Craig Mongeau Senior Editor Robby Chakler Editorial Assistant Katherine Petrik Production Mgr. John Pinkerton Controller Judith Nixon Circulation Mgr. Cathy Printz Main office 470 Maryland Drive Fort Washington, PA 19034 215/885-2900 Toll Free 800/523-2200 Fax 215/885-2910 Web site www.constructionequipmentguide.com Advertising e-mail production@cegltd.com To read these stories and many more, visit www.constructionequipmentguide.com
THIS ISSUE MobileLinkedInFacebookTwitterYouTube For advertising rates Contact 8
If approved, funded and built, the U.S. Army Corps of Engineers proposal would create the largest and most comprehensive system of coastal protections in the region.
made
stop on its Nationwide Groundbreaker Roadshow
Groff Tractor
Equipment (GT&E) on Wednesday, Sept. 28 at its headquarters
the dealer also held an open house to
showcase the new Case E-Series excavators and more.
exhibit, more
100 exhibitors
attendees busy touting their equipment offering and services.
65 WELL-KNOWN NAME BUILDS SUCCESSFUL AGGREGATE BUSINESS 68 ASTEC LAUNCHES GT2612V MOBILE HIGH FREQUENCY SCREEN PLANT 80 RECYCLING TODAY EVENTS HOSTS INAUGURAL SCRAP EXPO 86 CAT BUILDS NEW D1 MULCHER TO OPTIMIZE PERFORMANCE 110 COMING AUCTIONS 117 BUSINESS CALENDAR 89 WERK-BRAU NOX Tiltrotaters 89 DITCH WITCH MT164 Microtrencher 100 SMITHCO Side Dump Trailers FEATURES DEPARTMENTS EQUIPMENT 8 42 97 Patrick Kiel • Key Accounts Manager 952/353-1770 Cell 612/481-8557 e-mail pkiel@cegltd.com AGGREGATE PRODUCTION & RECYCLING SECTION
With up to 75% more bucket breakout force than the leading competitor 330G or 332G Skid Steer or 331G or 333G Compact Track Loader is sure to these machines can help shape up your operation — call us today. IT ALL ADDS UP TO MORE PRODUCTIVITY. www.plasterer.com CONSTRUCTION EQUIPMENT GUIDE • www.constructionequipmentguide.com • October 12, 2022 • Page 5
Might... Mid-size Excavators 210G ationstoServo14Loa e ceY 508)379 9810(Swansea 413) 543-5595(pfieldSring 508) 830-9997(Pymouth l 978) 667-4345(Ba illeric 508) 9878786(ordN.Oxfo G C N P u: 207) 773-3777(estookWbr 207) 834-6701(.entFtK 207) 532-6517(ouonHlt 207) 947-6786(Hermon ou N W S (315) 287-0703Gouverneur 371 5111(518)oark n tP NEWYORK (603) 225-2769embroke NEWHAMPSHIRE w lif V 885 6840 8856840(802)pringfield www.UnitedCF.co VERMONT m 508) 3799810 Page 6 • October 12, 2022 • www.constructionequipmentguide.com • CONSTRUCTION EQUIPMENT GUIDE
CONSTRUCTION EQUIPMENT GUIDE • www.constructionequipmentguide.com • October 12, 2022 • Page 7 STILL FAMILY OWNED & OPERATED SINCE 1970 Serving Nassau, Suffolk and the Five Boroughs 631/643-2605 www.allislandequipment.com follow us on Instagram MACHINES ON HAND FOR IMMEDIATE DELIVERY BEFCO 90” REAR DISCHARGE MOWER WITH AIR TIRES $6,900 NEW HYUNDAI R55-9A CAB HEAT AC, STRAIGHT DOZER BLADE, RUBBER TRACKS, LONG ARM, HYDRAULIC COUPLER, 24” BUCKET, READY FOR IMMEDIATE DELIVERY! 2018 LEEBOY 8520 1536 HOURS, HEATED ENDGATES, 3:1 SCREWS, READY TO WORK! $89,900 2022 V270 GEHL HIGH FLOW, 2 SPEED, HYD QUICK CPLR, 12:00 X 16.5 TIRES, 74" BKT, 14 ELECTRIC PIN CONNECTOR, AM FM BLUE TOOTH, READY FOR IMMEDIATE DELIVERY! CATERPILLAR IT14G WITH 10,500 HOURS, 17.5-R25 TIRES, ENCLOSED CAB, RIDE CONTROL, 4IN1 BUCKET $25,900 2011 TEREX TLB840 397 HRS, FRNT COUNTERWEIGHT / FUEL STRAINER / WORKLIGHTS / BU ALARM/ EXTENDABLE DIPPER CAB W/ HEAT & AIR $34,900 2010 LEEBOY 8515B WITH 3100 HOURS, POLY PADS, ELECT SCREED, 87HP KUBOTA READY TO WORK! $39,900 2021 HYUNDAI HL955 3.5 CU YARD BKT, ISO HYD COUPLER, RIDE CON TROL, L3 RADIALS, HEATED AIR RIDE SEAT, WEIGH SCALE SYSTEM & A REAR VIEW CAMERA $119,000 2017 LEEBOY 8616C WITH 2050 HOURS HD SCREED CLEAN UNIT! $59,900 2018 LEEBOY 1000G WITH 964 HRS LED WORK LIGHTS/49HP KUBOTA TIER 4/8'-13' PROPANE SCREED/SEAT/STROBE/BU ALARM/HORN $49,900 2019 DYNAPAC CC3200 9 TON ROLLER WITH 2110 HRS, 68” WIDE DRUMS, DUAL ASPHALT TEMP METERS, DEUTZ FINAL TIER 4 NO (DPF) CALL FOR PRICE 2022 GEHL V420 LOADED, SEVERE DUTY 14 X 17.5 TIRES, 2 SPEED, HIGH FLOW, AM FM BLUE TOOTH, AIR SEAT, RIDE CONTROL, 84" 1 CU YARD BUCKET, READY FOR IMMEDIATE DELIVERY! 2018 LEEBOY 8520 1289 HOURS HD SCREED, 3:1 FLIGHT SCREW, COMPLETE SERVICE, HEATED ENDGATES READY FOR IMMEDIATE DELIVERY. $109,000 2019 LEEBOY 5300 64HP KUBOTA T4F, 4-7' MINI ELECTRIC LEGEND SCREED, ELECTRONIC JOYSTICK STEERING, 13" CONVEYOR, 12" AUGERS, LED WORKLIGHTS, STROBE, BU ALARM $129,900 2004 KOMATSU PC228USLC-3N WITH LABOUNTY GRAPPLE $24,900 2022 FUCHS MHL340 F3 NOW AVAILABLE, BRAND NEW, READY TO WORK! CALL FOR PRICE 2015 TAKEUCHI TL8 2900 HRS, HIGH FLOW, POLY CARBONATE FRONT DOOR,2 SPEED, HYD COUPLER, 67" BUCKET, CAB A/C AND HEAT $38,500 2018 LEEBOY 8515E 1397 HOURS, HD SCREED, HEATED ENDGATES, 3:1 SCREWS, 74HP KUBOTA TIER 4F $89,000 2022 GEHL RT165 CAB HEAT AC, HIGH FLOW, 2 SPEED, AM FM BLUE TOOTH, 74" BUCKET BOE, REAR COUNTER WEIGHT, ALL SEASON TRACKS, READY FOR IMMEDIATE DELIVERY!
DYNAPAC
CC412 SMOOTH DRUM ROLLER NEEDS FRONT DRIVE BEARING, CUMMINS ENGINE, RUNS GOOD 1734 HOURS $6,500

USACE Proposes $52B Barriers for NY-NJ Waterways

The U.S. Army Corps of Engineers (USACE) released a report Sept. 24 detailing the agency’s proposed $52 billion plan to protect the New York City metropolitan area from storm surges and coastal flooding. The study marks a major step forward in a long-delayed plan first proposed in the aftermath of Hurricane Sandy exactly 10 years ago.

The USACE report notes significant details for a proposal that was chosen from a range of five options, as part of the NY & NJ Harbor & Tributaries Focus Area Feasibility Study (HATS).

The tentative plan, Alternative3B,currentlyproposes a 14-year construction project that would build 12 storm surge gates across some of the largest waterways around the metropolitan New York City region, reported Gothamist, a New York Public Radio online news service.

Alternative 3B also would erect coastal barriers across more than 41 mi. of the city’s shoreline, including extensive systems of seawalls and floodwalls in East Harlem, Lower Manhattan, southern Brooklyn and the entire Rockaway Peninsula.

USACE is asking for public feedback on its report through Jan. 6, 2023, in order to refine the proposal. The Corps expects to begin final designs for the plan in 2025 and start construction in 2030.

If approved, funded and built, the USACE proposal would create the largest and most comprehensive system of coastal protections in the region, while dramatically reshaping New York City’s waterfront.

Italsowouldbeoneofthelargestinfrastructure projects in the city’s history. The scale of the proposal is comparable to the $14.5 billion system of levees, flood gates and seawalls that the federal agency built along 133 mi. of New Orleans’ coastline in the aftermath of Hurricane Katrina.

However, just 11 months after completion of the Louisiana project, that system was deemed insufficient and in need of upgrades due to subsidence and rising sea levels.

After Delays, Plans Restarted in 2021

The Corps initially expected to announce its tentative plan for New York in late 2019 or early 2020. But funding for the study was abruptly halted in February 2020, after thenPresident Donald Trump described it as “a costly, foolish & environmentally unfriendly idea that, when needed, probably won’t work anyway.”

The largest alternative considered was a $119 billion plan that included a five-mi.-long storm surge barrier built across the mouth of Lower New York Bay, stretching from Sandy Hook, N.J., to Breezy Point, Queens.

The HATS study was quietly restarted in October 2021, under the Biden Administration, andAlternative 3B was selected this past July, after more than two years of delays.

Several factors went into its choice, including an evaluation of how it would protect the region from storm surges over a 50-year period.According to the HATS report,Alternative 3B could reduce the economic damages causedbycoastalstormsfrom2044to2093by an average of $6.2 billion a year.

Gothamist reported USACE expects storm surges in New York City to become more frequentandintenseintheyearsahead,duetoclimate change and sea level rise.

Environmental Concerns Aplenty

The proposal would potentially affect many ecosystems and wildlife species with surge barriers and seawalls constructed in marine habitats, wetlands, beaches and parks. The Corps report, though, noted that the impacts on wildlife, fish and endangered species would generally be low to moderate.

The largest environmental impacts are expected in the Jamaica Bay region, where the USACE rated the disruption on floodplains, wetlands, and the parklands managed by the National Park Service (NPS) as part of the Gateway National RecreationArea to be moderately high.

Several environmental groups, including the Natural Resources Defense Council,

Riverkeeper, Gowanus Canal Conservancy, Guardians of Flushing Bay and Newtown Creek Alliance, have expressed serious concerns about the barriers.

Riverkeeper, a non-profit working to protect the entire Hudson River watershed, has described the HATS study as “fatally flawed,” and said storm surge barriers would pose “a threat to the very life of the Hudson [River and] Harbor.”

Gothamist noted that these organizations have raised questions about the destruction of marine habitats and migration routes as well as the possibility that closing the gates during major storms would trap rainwater runoff, raw sewage and other pollutants behind barriers, causing flooding and pollution inland, in residential neighborhoods and parks.

Three of the waterways where storm surge gates are planned are highly polluted Superfund sites, which are undergoing lengthy cleanupsbytheU.S.EnvironmentalProtection Agency (EPA).

The Waterfront Alliance, an organization that works with a coalition of more than 1,100 waterfront organizations in the region, released a statement aboutAlternative 3B to Gothamist.

“Waterfront Alliance is pleased to see the U.S.ArmyCorpsofEngineersshiftawayfrom a storm surge barrier at the mouth of the New York-New Jersey harbor, to a more hybrid approach of green and grey infrastructure solutions,” said Tyler Taba, the organization’s senior manager for Climate Policy. “We continue to echo our support for a phased approach that incorporates more natural and nature-based features. We particularly encourage a closer look at buyouts, restored natural areas, elevation or relocation of infrastructure, and non-

physical nonstructural measures.”

What Is in Alternative 3B?

The 12 storm surge gates proposed by the USACE would be constructed in tidal straits and rivers across the city. During major storms, they would be closed, protecting inland communities from the Atlantic Ocean, but the gates are not intended to guard against the gradual creep of sea level rise or inland flooding from heavy rainfalls, like the deadly floods caused by Hurricane Ida last year.

The largest gates currently proposed include a dual surge gate system on the Arthur Kill and the Kill van Kull, two of the busiest shipping channels in the region, and a gate across the entrance to Jamaica Bay, a vast tidal estuary that is home to nature preserves and endangered salt marshes.

Gothamist reported that storm surge gates also would be built in NewYork at the mouths of Flushing Creek, Newtown Creek, Gowanus Canal, Sheepshead Bay, Gerritsen Creek, Shellbank Basin, Hawtree Creek, and at the head of Jamaica Bay, and, in New Jersey on the Hackensack River.Atidal gate also is proposed for the middle section of Coney Island Creek.

On shore, these gates would be connected to more than 31 mi. of coastal defenses built across surrounding neighborhoods, including a system of levees, floodwalls and seawalls that would stretch over 22 mi. from Bath Beach, Brooklyn, to Far Rockaway, Queens. The plan also calls for constructing walls, elevated promenades, and flood barriers along 5.7 mi. of shoreline in Lower Manhattan, 4.7 mi. in East Harlem, and 8 mi. in Jersey City, N.J.

While Alternative 3B was not the largest proposal considered by the USACE, it is, by far, the most comprehensive system of coastal barriersproposedforthecity.TheCorpsisalso building coastal defenses along the waterfront of the Rockaway Peninsula and has begun its preliminary work on a 5.3-mi.-long shoreline barrier in Staten Island.

Other large efforts currently under way in New York City include the Governor’s Office of Storm Recovery’s Living Breakwaters in Staten Island and the East Side Coastal Resiliency (ESCR) Project in Manhattan, Gothamist noted. Each of these projects protects a relatively small part of the city’s waterfront, compared to the USACE’s latest proposal.

Page 8 • October 12, 2022 • www.constructionequipmentguide.com • CONSTRUCTION EQUIPMENT GUIDE
Image courtesy of the U.S. Army Corps of Engineers A conceptual rendering of the Arthur Kill Storm Surge Barrier, from the new HATS report.
CONSTRUCTION EQUIPMENT GUIDE • www.constructionequipmentguide.com • October 12, 2022 • Page 9 FIVESTAREQUIPMENT.C R.C E Q UIPMEN DKREIS@FIVESTAT 456 520341 5L-RATEFINANCINGFOROW CONTACTDVEKREIS A E Y TA AV WE’R YOOUR USED EQUIPMEN HEADQUARTER COM OM NT RS! SYRACUSE,NY ROCHESTER, ORCHARDPAR KIRKWOOD, WILLIAMSPORT,PA TERFORD,PAWT A DUNMORE,PA WEPROUDLYREPRESENT NY RK,NY NY THESEBRANDSANDMORE! THEMOREYOUSAVE RENTBIGIRON.THEBIGGERTHEIR ARTERS OURRENALWE’REO Y T RON, 2018 JOHN DEERE 180GLC $180,000 Stk#16470, 430 HRS, 28" PADS, AUX HYD, 10'6"ARM, BKT, WRNTY, ON RENT 2015 JOHN DEERE 700K LGP $165,000 Stk#23715, 2,773 HRS, 30" PADS, SWEEPS, SCRNS, WINCH 2018 JOHN DEERE 350GLC $220,000 Stk#16192, 3,431 HRS, 32" TBG, AUX HYD, 13'1" ARM, CPLR, BKT 2018 HITACHI ZX300 $215,000 STK#70922, 2,252 HRS, 28" SBG, AUX HYD, 12'4" ARM, CPLR, BKT, WRNTY 2016 HITACHI ZX380LC-6 $210,000 STK#31275, 3,363 HRS, 32" TBG, AUX HYD, 13'1" ARM, CPLR, BKT 2017 HITACHI ZX130-6 $145,000 STK#70948, 890 HRS, 28" PDS, AUX HYD, 9'11" ARM, CPLR, BKT, WRNTY, ON RENT 2014 JOHN DEERE 310SK $60,000 Stk#23640, 3,586 HRS, CAB A/C, 4WD, 2-LVR CNT 2017 JOHN DEERE 310SL HL $68,900 Stk# 23875, 2,258 HRS, CAB A/C, 4WD, PILOT CNT, EXT DIP 2018 JOHN DEERE 310SL $85,000 STK#24314, 2,313 HRS, CAB, A/C, 4WD, 2-LVR CNT, 1-WAY REAR AUX HYD, EXT DIP 2019 FECON SHX33SS STUMPEX $19,000 STK#41041, MOUNTS ON SKID STEER, 20-40 GPM, AR500 STEEL BLADES 2018 BW 211 DH-5 $133,000 STK#41357, 887 HRS, CAB, A/C, 84" SINGLE DRUM, ON RENT 2017 JOHN DEERE 624K-II $185,000 STK#23632, 1,384 HRS, STD BOOM, 3 FN HYD, CPLR, RIDE CNT, 3.5 YD BKT

BACKHOES:

SCREENERS:

MISCELLANEOUS:

hlff ®D arann H 'ET ed! l TL netniaan!warran&m sesaelthincdefull -wohouroerslnas Doo 36 MONTHS FINANCING FOR UP TO %APR0 GOOIINNGGASSTT! R ER ! AVVAIILLAABE! TSLUNITB UNI A AILABLE GDE OIN FA S O R S WheelLoader DL-220®Doosan Wheel Loaders®on select Doosan BES79-1-800-6 6700AlentownB HRISBUR AR 1315HausmanRd LNTOWNALE enxo eighte rhs teserveC rLLcamerh Aorte Nacornfn IDoosa dedrovg pnancinFsetair dfoeeae dSeonormatnogramp segibledeandelg ancipattpaableameoffer.AvaedtLim r r r r ORRDOWW! NO NODW estLin• B)2378(T 140Hawbaker STTECO 8001PossumHollowRd SHIPPENSBURG Blvd G A ese BSeceotr nriot phoue wmy tans aograme pthesy one anuscontr dd o e pfinancLLCcamerh Aorte NInfracooosand Dhorizeauyt bcredfl opprovan ao sindealerinvectunmodelandseesseroducttypey py bary versmay.Ofson f r r r im • FeDoosan.co IndustralDr LLGE E 2266Unive UNIONT 183TomahawkRd TOWANDA espoor neDeatsunuact aesenept roy nas moPhosetaie dompletr coLine avat aor nfeOyappmayeesveatAdministbuyersfiedquaeltsdeov oicty.SomerestpmentinUSandCanadaoneonnewequabsava sfeentory.O r r r o w l r t r n:s Od Un 275ClarkSt KEYPORT,N 515SouthBolmarSt WESTCHESTER yrrsitD OWN CEG1012NHC2BLDOg • 2nisAdvermpac2022orsercaaphypogr toe fbns customedy bti/uunicipad mns aaccounonanataccountsovernmento ge tb edessnotaeunbgurchasesnoter poary.Pry vhofcontractmay.Lengnsapp r J 22 s din ! TOODDAY!S CAALLLUS HIIRRIINNGG! NW OWHRO NOIN IRIN CA T TOLA O LUDL DAY EXCAVATORS: 2013 BOBCAT E45, 2351 HOURS, CAB HVAC, MANUAL COUPLER, PLUMBED, RUBBER TRACKS..................................................................................................................$49,995 2016 KOBELCO SK85, 1235 HOURS, CAB HVAC, PLUMBED, MANUAL COUPLER$79,995 2020 KUBOTA KX057-4, CAB HVAC, ANGLE BLADE, HYD THUMB, 230 HOURS $81,995 2018 KUBOTA U35-4, ROPS, HYD THUMB, ANGLE BLADE SOLD 1995 SAMSUNG SE280LC2, 9723 HOURS, 2 BUCKETS, NEWER BOTTOM, CUMMINGS ENGINE........................................................................................................................$30,000 CHIPPERS: 2016 BANDIT 75XP, KOHLER 37 HP V TWIN GAS, AUTO FEED 7” CAPACITY, 640 HOURS....................................................................................................................$15,995 1997 MORBARK 2100D CHIPPER, 1300 HRS, 12" CAPACITY, PERKINS DIESEL ENGINE, WAS OWNED BY MUNICIPALITY CALL SKID STEER LOADERS: 2012 NEW HOLLAND L223, 2549 HOURS, CAB HVAC, PILOT CONTROLS, 2 SPEED ........ $37,995 2019 NEW HOLLAND C245 TRACK SKID STEER, CAB HVAC, 2 SPEED, PILOTS, LOW HOURS, HIGH FLOW, SELF-LEVELING, RIDE CONTROL, RADIO SOLD
1996 FORD 575D, 1034 HOURS, NEW TIRES, ALL GLASS GOOD $25,995 2000 NEW HOLLAND LB75, CAB W/HEAT, 7700 HOURS, 4WD, FLIPOVER FORKS, UB 1000 LB HAMMER $29,995
2018 VIBROSCREEN SCM40C BOX SCREENER W/CONVEYOR $99,995 2021 VIBROSCREEN SCM40 $79,995 2021 VIBROSCREEN SCM27 ..................................................................................$45,000 NEW VIBROSCREEN SCM75C BOX SCREEN W/CONVEYOR, TIER 3 ENGINE $165,000 NEW VIBROSCREEN SCM115T TROMMEL, NO DPF, NO DEF $150,000 2018 VIBROSCREEN SCM115T TROMMEL, 400 HOURS, NO DPF, NO DEF $123,500
2014 DOOSAN DXB260 BREAKER, 8500 LBS, FOR DX350, HAMMER TOP FOR PIN GRABBER $35,000 GROUSER TRACKS FOR SKID STEER, MODEL 14740F-9, FITS TIRE SIZE 12X16.5 ..$2,500 2021 LANDPRIDE 50” REVERSE TILLER, 3 PT MOUNT $2,880 LELY 1500 SPREADER, TOW BEHIND, MISSING PTO SHAFT $495 TORO 1660 HL TURFVAC, TOW BEHIND, SELF-CONTAINED, PTO DRIVE $2,500 LATE MODEL EQUIPMENT 60 International Blvd • Brewster, NY 10509 See dealer for financing details. CNH Capital America LLC standard terms and conditions apply. Subject to customer credit qualifications. CNH Capital America LLC reserves the right to cancel any program without notice. VISIT OUR WEB SITE AT WWW.WTRACTOR.COM Westchester Tractor, Inc. NowAllServing of Connecticut 845/278-7766 Fax: 845/278-4431 E-mail: dan@wtractor.com
VIBROSCREEN
SCM40C
VIBROSCREEN
SCM75C Page 10 • October 12, 2022 • www.constructionequipmentguide.com • CONSTRUCTION EQUIPMENT GUIDE

Rogers TAG25XXL, 25 Ton Capacity, Premium Specs, Superior Quality, 235’s Aluminum, 7-Year Warranty, Black or Red Paint, 22' and 24' deck, 8’ Air Ramps IN STOCK!

Rogers 35 Ton Gentle Riser, 24' deck, adjustable width bi-fold ramps, 275's on Aluminum, Extra lights and strobes, Red and Black......IN STOCK!

Rogers 55 No-Foot, 25' deck, Deep Well pocket, Reinforced wheelcovers, 275's on Aluminum, Air lift 3rd, Air lift flip 4th, Night Lights, Strobes, Red Paint IN STOCK!

Ton

24' deck, adjustable width bifold ramps, Bucket cut-out, 275's, Aluminum outers, Night Lights, Strobes, Rogers

STOCK!

40 Ton No-Foot, 24' deck, adjustable width bifold ramps, Bucket cut-out, 275's, Aluminum outers, Night Lights,

2005 Rogers 55 Ton Dropside, No-Foot Heavy Lift Pkg. 26’ deck, Air Ride, Air Lift 3rd, outriggers IN STOCK $55,900 Rogers TAG21XL 22' + 6' tail, 235's on Aluminum, Air Ramps, Safety Lighting Pkg. with Strobes. Black or Red Paint........IN STOCK! ROGERS 60 TON 4-AXLE GENTLE RISER 8’6” X 26’ DECK ASK ME ABOUT AIR RAMPS! Air Lift 3rd & 4th Axles New Rogers 55 ton, No-Foot Neck, 25' deck, Deep Well Stick Pocket Reinforced wheel covers, 275's on Aluminum, Air lift 3rd, Strobes, Black Paint......IN STOCK! Rogers 40
No-Foot,
Black......IN
135 Lincoln Avenue, Prospect Park, PA (Philadelphia) 19076 • John Conner - 800-220-4033 • 610-534-0700 796 Unionville Road, Prospect, PA (Butler) 16052 • Ryan Alles - 888-806-0643 • 724-636-9986 6018 Drott Drive, Syracuse, NY 13057 • Darrick Marris - 800-368-6455 • 315-345-4744 ON ORDER Rogers
Strobes, Rogers Red IN STOCK!
CONSTRUCTION EQUIPMENT GUIDE • www.constructionequipmentguide.com • October 12, 2022 • Page 11

GT&E

Hosts Minotaur Roadshow in Mechanicsburg, Pa.

The new Case Minotaur DL550 made a stop on its Nationwide Groundbreaker Roadshow at Groff Tractor & Equipment (GT&E) on Wednesday, Sept. 28 at its headquarters in Mechanicsburg, Pa., where the dealer held an open house to not only promote the new compact dozer loader, but to also showcase the new Case E-Series excavators and demonstrate the services offered by Groff for helping customers maximize uptime.

Weighing in at more than 18,000 lbs. and working with 114 hp, the new first-of-its-kind Case DL550 delivers true dozing and grading performance, as well as powerful site loading capabilities and compatibility with hundreds of attachments. Also on hand for customers to demo was the Case CX365E SR minimum-swing-radius excavator. The new Case E-Series excavators are built for fast cycle times, fuel efficiency, extremely smooth and responsive control and a revolutionized operator experience, according to the manufacturer.

Approximately 40 students from the Pennsylvania College ofTechnology (PennTech) attended the open house, and all are in the heavy construction equipment and diesel program. Penn Tech is affiliated with the Case Top Tech program, which is a collaboration between CNH Industrial and North America’s top technical colleges that will train

Page 12 • October 12, 2022 • www.constructionequipmentguide.com • CONSTRUCTION EQUIPMENT GUIDE
Pennsylvania College of Technology students check out Hamm rollers and Kleemann crushing/screening equipment. Attendees gather around to learn more about the new Case Minotaur DL550. Pennsylvania College of Technology students arrive for the open house and to take a tour of Groff Tractor & Equipment’s headquarters in Mechanicsburg, Pa. Mike Savastio, president and CEO of Groff Tractor Holdings LLC, speaks with attendees during the event. Pennsylvania College of Technology students learn about the new Case Minotaur DL550.
see
ROADSHOW
page 40
CONSTRUCTION EQUIPMENT GUIDE • www.constructionequipmentguide.com • October 12, 2022 • Page 13

MOVING

Page 14 • October 12, 2022 • www.constructionequipmentguide.com • CONSTRUCTION EQUIPMENT GUIDE
RIGHT ALONG No interruptions, no hiccups – it’s business as usual for you, with compressor rentals from Milton CAT. • Contractor, high-pressure and instrument-quality models. • Range from 2 hp to 500 hp. • Portable models from 185 cfm to 1,600 cfm; up to 500 psi. • Diesel and electric models. • Meeting all emission requirements. • After-cooler, sound-attenuated enclosures available. • Prices to fit all budgets. • Expert service and support. www.miltoncat.com 800-821-6412 Serving MA, RI, NH, ME, VT and Upstate NY. Generators, Compressors, Chillers trenchboxorshoringsystem s largest or smallests e can provide you with thee• W world’ EV e will delivere s very bess Contact us for t ervison-site sup e will show ye while keeping y Get high produ trench box or sh • • W • world’ • W on time, est shoring the sion. you how with our our workers safe. uction numbers horing system. ALSRENTA E N TAL S ates ding: •e S E wordforit t take our vice”...our ser “No one beats customers that told by ourareWe• when you want it where you want it, fleet of trucksourWee’ll bring it with So don’ •®MightyLite• Road PlaRock Boxes Call for Catalogs Inclu See our Entire Lin• AIRS SERVICE SALES REP • A PA S SAAL E S S E RVVI C R E PAI R who use our pro just ask the peo word for it, oduct. ple 20 Fa •Hydraulic Shoring• 07LAKESTREET(Rote32) ctory & Corporate Office: Installed Portable Safety Rail Slide System with Ne Fo Ne Call 1 Ca MA01545 283 E Cherry Street esternNYStat e ermont,For New England: Maine, V ew Hampshire and W Shesb w Jersey and Connecticut Inquiries or o .845.562.4477 , 12550 07 LAKE STREET (Route 32 NEWBURGH, NY l us for local Metropolitan New Y all our Boston area location Factory Direct Stores: p 1 nia te . rk, 2) n: on: So. Fo Cal oll Free from anywhere: Or Phone usOr Phone us T 1.443.313.3461 Joppa, MD 21085 506 Pulaski Highway irgi, r the Mid- Atlantic Region: Eastern Pa, 1.508.842.2822 , MA 01545Shrewsbury Jersey Delaware, Maryland and V o To area locatioll our Baltimore Ph Phohoone ne us oll ll Fr Freree ee fr froroom a anyywywhwheherereree: ilE-i E-M-Ma Ma a 1-800-407-4674 ao .o t: y 74 www americanshoring.c m us a s sales@americ nshoring.c m

RELI LAB EFWITH BOOSRSH T

THCA HORTOA

T

CONSTRUCTION EQUIPMENT GUIDE • www.constructionequipmentguide.com • October 12, 2022 • Page 15 GET
WO
OO OORK
AGES? OLS FOR MOORE INFO SCAN QR CODE OR R GO TO HOPENN.COM

UTCA of NJ Holds Annual Convention in Atlantic City

The Utility & Transportation Contractors Association of New Jersey (UTCA) held its annual convention at the Borgata Casino Resort Sept. 29 to Oct. 1, 2022, in Atlantic City, N.J.

At the convention’s trade show exhibit, more than 100 exhibitors kept attendees busy touting their equipment offering and services.

This year’s keynote address featured Jimmy Wayne, award-winning song writer and recording artist; author of the novel and made for TV movie Paper Angels; and author of the NY Times Bestseller, Walk to Beautiful.

Wayne opened his keynote by performing his song, “Kerosene Kid,” and his Hall & Oates cover of “Sara Smile.” He then spoke about the challenges he faced in his childhood. He grew up in Bessemer City. His biological father abandoned him, and he and his sister were raised in and out of foster homes or were left with other people when

their mother would leave them or was in prison. She served four months in prison in 1985 when Wayne was 12.

After entering a group home, Wayne ran

away and lived with his mother for a brief time before living on the streets and with his sister, Patricia, for a short while. He was invited to move in with an elderly couple, Russell and Bea Costner, (just down the road from where his mother was living), after being hired to mow their lawn.Afterfinishinghighschoolandearning a degree in Criminal Justice, he worked as a guard at the Gaston Correctional Facility, where he worked as a corrections officer for four years before moving to Nashville, Tenn., to pursue his musical interests.

On Jan. 1, 2010, Wayne set out on a 1,660-mi. walk from Nashville to Phoenix to raise awareness to the plight of the 30,000 children who age out of foster care every year in America, into homelessness homeless youth aging out foster system. Called the “Meet Me Halfway” campaign, he walked 25 mi. a day, only taking days off see UTCA page 36

JESCO, which is celebrating its 50-year anniversary, raffled off a John Deere model XUV550 for one lucky attendee. Derrick Ward (L) and Charles Dull pose in front of the giveaway.

Page 16 • October 12, 2022 • www.constructionequipmentguide.com • CONSTRUCTION EQUIPMENT GUIDE
Representing GT Mid Atlantic are Victor Riga (L) and Mike Chenet. (L-R): Hoffman Equipment, represented by Walt Joachim, Brian Clark, Eric Seikel, Carl Stroh, Jessica Bueno and Ray Gallanrt, showcased the line of Volvo electric equipment at UTCA. Modern Group representatives Sam Maury (L) and Anthony Brown told attendees all about the new SENNEBOGEN line that the company just picked up, which includes the 718 material handler. (L-R): Longtime supporter of the UTCA, Foley CAT was well represented by Denny Bergmaier, Pete Reis, Brian Viglante, Carmen Pino, Bill Grater and Todd Yazujian. Theresa Brill of Sussman Enterprises Inc. was the winner of Hoffman Equipment’s grand prize drawing during the UTCA Convention. Here, Tim Watters, president of Hoffman Equipment, presents her with the one week St. Maarten vacation and $2,000 toward airfare. Glenn Ely of PKF-Mark III takes the oath of office as the new UTCA of NJ president during the convention.
CONSTRUCTION EQUIPMENT GUIDE • www.constructionequipmentguide.com • October 12, 2022 • Page 17 oven worldPr ele-craw ed-class T MERICA! H WLER wlers MEERRIICCAA! NOORTTH R WLEER L T1# L T1# AM TELE CRA LINE-UP W A NE-UP -C IN-U A ELLEE-CRAW etts 508 499 1950 02-658-1700 | 68m main boom|223 ft Massachus mont 8erVe TELESCOPIC CRAWLER 230 mt|250 t 4 cameras!Vision packageUltra-wide winch design Superior capacities with full attachment 105m max tip height348 ft , Uentuckyexington, KL www.woods ork 3oNew Y Pennsylvani .linkbelt.comSA | www scrw.com 315 676 2008 a 717-795-0700 5084991950 THE MARKET! AILABLEINAVA ACITYHIA GHEST CAP BUY ï LEASE ï RENT
Page 18 • October 12, 2022 • www.constructionequipmentguide.com • CONSTRUCTION EQUIPMENT GUIDE
CONSTRUCTION EQUIPMENT GUIDE • www.constructionequipmentguide.com • October 12, 2022 • Page 19 1569 US Route 9W • Selkirk, NY 12158 (518) 767-9331 www.finkeequipment.com

EaglePower&EquipmentHostsHaulingComplianceCourse

Eagle Power & Equipment and PALICA held a Hauling Compliance Course Sept. 21, 2022, at the equipment dealer’s Montgomeryville, Pa., facility.

The course, led by Pennsylvania State Troopers Anthony (Dan) Falgares and Sean Ahearn, as well as Dalton Leonard, motor carrier enforcement officer of the Pennsylvania State Police, was open to all companies, organizations and individuals who haul equipment in Pennsylvania.

Approximately 170 attendees learned the different federal and state requirements to safely and legally tie down machines for highway travel. Prior to the presentation, Eagle Power provided dinner and snacks, and the class ran from 6 p.m. to 8 p.m.

The Pennsylvania Chapter of the Land Improvement Contractors of America (PALICA) co-hosted the event and is one of the original LICA chapters, founded in 1970. The association’s members consist of utility contractors, earthmovers, road builders, drainage and field tilers, landscapers, pavers, site contractors and more and its primary goal is to “work smarter, safer and more efficiently.”

Gerald Biuso is the national LICACEO and attended the event.

“Pennsylvania LICAand Eagle Power are getting together to educate contractors about the new laws and regulations thatcomefromDOT,”hesaid.“PennsylvaniaStateTroopers Dan Falgares and SeanAhearn also will provide a simulated inspection on a truck and trailer loaded with a Case Super N backhoe. I’m sure our contractors will learn a great deal of what they do right and what they do not do right.”

Biuso added that PA LICA is among the fastest-growing chapters in the United States.

“And our goal, my goal specifically is to help contractors run safer, smarter and more profitable,” he said. “And I take my job very seriously. I go across the country helping contractors to do exactly that.”

Attendees fill out PALICA membership applications while (L-R) Gerald Biuso, national LICA CEO; Chris Wagner, national LICA president; and Eddy Mayen, executive director of LICA Educational Foundation for Veterans, look on.

Bridget McDonald, vice president of Eagle Power & Equipment, was proud that her company was hosting this event with PALICA for the third time.

“It has always been a great success,” she said. “This is probably the largest that we have hosted in years, and we are very excited for that. PALICA is a great organization and we’ve been partners together for about seven years now. We became partners with them through a Case program. They had a program with them years ago.And our relationship has continued since then. We are happy to be able to allow our customers the opportunity to bring their employees here, and we are hoping that everyone has a nice time and gets something out of it to make their jobs safer. For the simulated inspection part of the event, I want to thank Flourtown Sunoco Inc. for bring their truck here tonight to help PALICA, the Pennsylvania State Police and us to educate our guests.”

For more information, visit www.pennsylvanialica.com and www.eaglepowerandequipment.com.

CEG

(All photographs in this

Page 20 • October 12, 2022 • www.constructionequipmentguide.com • CONSTRUCTION EQUIPMENT GUIDE
article are Copyright 2022 ConstructionEquipmentGuide.AllRightsReserved.)
An attendee asks Pennsylvania State Troopers Sean Ahearn and Dan Falgares a question during the Hauling Compliance Course. A Case SV340B provides refreshments for attendees. A
truck
provided by Flourtown Sunoco Inc., a lowboy trailerandaCaseSuperNbackhoeservedastheprop for a simulated inspection. Bridget McDonald, vice president of Eagle Power & Equipment, addresses guestsandwasproudthathercompany was hosting this event with PALICA for the third time. A crowd gathers around as Pennsylvania State Troopers Sean Ahearn and Dan Falgares perform a simulated hauling compliance inspection. Pennsylvania State Troopers Sean Ahearn (L) and Dan Falgares lead the Hauling Compliance Course. (L-R): Dalton Leonard, motor carrier enforcement officer, Pennsylvania State Police; and Pennsylvania State Police Troopers Anthony (Dan) Falgares and Sean Ahearn.
20X onAir o : 40:•CAPAACITY • 20T XPT Brakes 0,000 lbs. Wid • Brakes: Air (Full ABS System) ires: Eight 215/75R17.5 (H)i • Deck Height: 34" tail• 6’ Beaver • Deck Length: 21’ Flat (model shown) 102", Length: 31'4":idth i eight: 8,380 lbs.er• T ailer W • Overall W • T R72"L22” #ii70000 ARKING 2JACK SPEED P VY HEAVDUTY ardFeaturesOnAllEasyLoa L.E.D. Lights LowProfile ee Loading Angle• 8 Degr on Air20 T Stddllibktil with Spring Brakes on all axles ALL WHEEL ABS ders DblCitDkii APITONG/COMPOSITE DECK unitizedframe. possible deck height and more through Main Beam for lowest piercedCROSSMEMBERS One piece and cold formed HIGH TENSILE MAIN RAIL Standardonalltrailers. and wrap around nose plate ested @ 275,000#e LUNETTE EYE ONEPIECECAST T Stand 100% Sealed Wiring harness and:• Lighting Max.29" Min.102"Range: Wide• Ramps: 72" Long x 22” SUMITOMOBRANDTIRES ontrailers. o Standard on all 15 25 3 LEAF SUSPENSION ADJUSTABLE trailersTon15 25Standard on all # static capacity70,000 T 92” WIDTH 98” WIDTH Some Competition - 92” WIDE TRACK AXLES: 98” Eager Beaver Standard on all air brake trailers decking when required. making it easier to replace withboltsanddeckwashers fastened to the crossmembers Durable Composite Decking is p,y modeuoteonanor a qFo l maintenance. Outboardbrakedrumsforeasier HUBPILOTEDWHEELS National Dealer Supported 800-257-8163asecallle 76 6 th >>EagerBeaverTrailerscom 1946-2022 rBeaverTrailers.co CONSTRUCTION EQUIPMENT GUIDE • www.constructionequipmentguide.com • October 12, 2022 • Page 21
Page 22 • October 12, 2022 • www.constructionequipmentguide.com • CONSTRUCTION EQUIPMENT GUIDE Silvi Group Companies • Fairless Hills, Pennsylvania Please contact Tim Kurz for questions or pricing: 267-566-1802 or tkurz@silvi.com www.silvi.com Front Discharge Mixers (8) 2007 Oshkosh S-2346 (2) 2006 Oshkosh S-2346 (7) 1994-2006 Terex FDB4000 “PRICES REDUCED” w. NoReliable ul. Depeowerf uction Lineuponstr P C d-wthat’s a har e. a enginesableKubot ndabl Dur ew.orking cr Upgradedtech&features 800.222.3 ABBOTTSTOWN BENDE © Kubota Tractor Corporation, 2022. This material is for desc ot our ccloser look aor ay fop bt 373 WWW.MES ERSVILLE CARLISLE M S riptive purposes only. Kubota disclaims all representations and wa tion lineup.onstruce cplet SSICKS.COM MOUNTJOY HALIFAX m arranties, express or implied, or any liability from the etyantyluse of this material. For complete warr y, saf y, , incentive o dfff d f loffer and product information, consult your local dealer or go o K , pp,yy KubotaUSA.com.

Hamm 3412P, 2012, 84” vibratory padfoot compactor, EROPS w/ heat & A/C, 1,200HMR . . . . . . . . . .$82,500

Cat 815F, 2006, EROPS cab, 12’4” S-Blade w/ tilt, new paint job, very good condition, 9,400 HMR $195,000

Hamm GRW-5 Pneumatic Roller, 1994, Deutz Diesel, ROPS Canopy, (9) Ea. 7.50-15C1 Tires $15,500 (4) Cat 825C’s, 1981-1990, EROPS, S-blade w/tilt, all work ready . . . . . . . .

.From $79,500

Rammax Walk Behind Rollers, over 25 in stock, lever & remote . . . . . . . . . . . . . . . . . . . . . . . .$4,000 to $10,000

(8) Sheepsfoot, 48" and 60", double drum & single drum, tow type . . . . . . . . . . . . . . . . . . .$4,000 - $6,500

Cat 336EL, 2012, 33.5” TBG pads, Q/C, aux hyd, 6,700 HMR, work ready . . . . . . . . . . . . . . . . . . . . . .$162,500

Cat 336FL, 2015, 33.5” TBG Pads, Q/C, aux hyd, 4,300

HMR, work ready $224,500

Komatsu PC220LC-8 Longreach, 2011, Young Boom/Stick 60’ reach, 3,500 HMR $179,000 Kobelco SK210LC, 2007, Q/C, aux hyd, 31.5” TBG Pads, 3,900 HMR . . . . . . . .

.$72,500

Volvo A40, 1998, 40 tons, 10991 hrs, 395 hp, 8WD, 29.5R25, A/C, 29 cy cap. sideboards, tailgate (currently off work), work ready

$127,500

Volvo A40, 1996, 40 tons, 395 hp, 6WD, A/C, 29.5R25, working everyday $145,000

Volvo A40, 1996, 40 tons, 11,000 hrs, 6WD, 20.5R25, A/C, P/S trans, 29 cy cap., 6/06 hitch rebuilt .$115,000

Volvo A40, 1995, 40 tons, 395 hp, 8WD, 29.5R25, A/C,

P/S trans, tailgate, work ready $115,000

Volvo A35C, 1998, 35 tons, 6WD, 26.5R25 tires, approx 7,000 hrs, good condition $147,500

Volvo A35, 1995, 35 tons, 326 hp, 6WD, 26.5x25, A/C, P/S trans, working everyday on jobsites . . . . .$87,500

Volvo A35, 1995, 35 tons, 326 hp, 6WD, 26.5R25, A/C, P/S trans, 26 cy, working everyday on jobsites . . . . . .

$89,000

Broderson IC80-2E, 1997, 8.5 ton, 24’ boom, dual fuel, 10.00R15 tires, 3,400 hrs $21,500 Grove RT58C, 1981, down cab, 18 ton r.t., 70' boom anti-two block, GM dsl, clean

Case

Cat 613C Water Wagon, 1994, 5000 gal drop tank, ROPS, spray heads

$49,500

Cat 621F, 1996, Scraper, OROPS, 33.25x2, very good condition

CALL

Cat 621E, 1989, Scraper, OROPS, 33.25x29, very nice CALL

Volvo A30C, 1996, 30 tons, 11,000 hrs, 296 hp, 6WD, 23.5R25, 21 cy cap, A/C, P/S trans, works everyday . . . . . . . . . . . . . . . . . . . . . . . . . . . . . . . . . . . .

$122,500

Cat D5NXL, 2006, 10’ PAT Blade, Paccar PA55 winch, 22” Pads, 4,100 HMR $82,000

Cat D6NLGP, 2008, VPAT Blade, Drawbar, 33” Pads, 9,900 HMR

$87,500

Cat D6NLGP, 2014, Foldable VPAT Blade, Paccar PA55 winch, 7,200 HMR .

. .

$142,500

Komatsu D155AX-6, 2007, Sigma S-U Blade, 4-bbl Single Shank Ripper, 8,400 HMR $229,500

Cat D6TXW, 2013, 13’6” VPAT Blade, Carco 70APS winch, 28” pads, 7,300 HMR $152,500

CONSTRUCTION EQUIPMENT GUIDE • www.constructionequipmentguide.com • October 12, 2022 • Page 23 ALEX E. PARIS CONTRACTING COMPANY, INC. Route 18 - Atlasburg (Pittsburgh), PA 15004 724/947-2235 Day/Night Fax 724/947-3820 Call Andy Miller Established 1928 Our Greatest Assets .. Our Employees
. . . . . . . . . . . . . .
. . . . . . . . . . . . . . . . . . .
. . . . . . . . . . . . . . . . . . . . .
. . . . . . . . . . . . . . . . . . . . . . . . . . . . . . .
(2) 48' Box Vans w/Liftgates, Good Condition CALL
. . . . . . . . . . . . . . . . . .
. . . . . . . . . . . . . .$49,500 IR 185’s, JD diesels . . . . . . . . . . . . . . . . . . . . . . .CALL (12) Allmand Light Plants, 2008-2010, diesel, s/a towtype, (4) MH lights, excellent From $5,200
580L Rubber Tire Loader Backhoe, 1997, OROPS, std stick, 24" bkt . . . . . . . . . . . . . . . . . . . . . . .$24,500 (2) Balderson Broom Attachment for Cat IT Machines, 8' wide, good condition $4,000 Ea. NUMEROUS Rivinius R600’s, 10’ Wide, Mount on Dozer Blade . . . . . . . . . . . . . . . . . . . . . . . . . . . . . . . .$25,500 BUCKETS Over 100 Excavator, Loader, Specialized & Grapple Buckets in Stock -Call ForYour Needs FORKS (8) IT28F/G Forks, Balderson qc, 48"-60" pallet style, excellent . . . . . . . . . . . . . . . . . . . . . . . . . . . . . . .$4,000 Others Available Call Prices Are Negotiable - At Your Inspection All Equipment is Owned & Operated By ALEX E. PARIS CONTRACTING CO., INC. OFF ROAD HAULERS ATTACHMENTS MISCELLANEOUS DOZERS COMPACTORS CRANES SPECIALS BACKHOES AIR COMPRESSORS HYDRAULIC EXCAVATORS MOTOR SCRAPERS TRUCKS & TRAILERS
Page 24 • October 12, 2022 • www.constructionequipmentguide.com • CONSTRUCTION EQUIPMENT GUIDE Eqipment u Used $121,053 radial307ridetires,cwt,3rdcontrol, spoolvalve, t&air,STKt # 652,,2012 CASE 621F $121,053 tires,307 t&air,STKt # 652,,2012 CASE 621F STK# 652,,2012 CASE 621F / cabw/heacabw/hea See Our Website for a Complete Listing of Used Equipment for Sale www.gtmidatlantic.com Call today! (800)737-0049 MEMBER ©2019 GT Mid Atlantic. All rights reserved. CASE is a trademark registered in the United States 2019 Case 580 SUPER N, stk # EQ0034010, Cab w/ Heat & AC, 4WD, Extendahoe, Powershift, Ride Control, 2-Lever, 82" GP Bkt., 24"Bkt., Only 109 Hours CALL 2019 Case CX250D Long Reach, stk #EQ0033143, Cab w/ Heat & AC, 60’ Reach, Long U/C, 32" TBG Pads, 60" Ditching Bkt., 975 Hrs CALL 2006 Case 580MII, stk # EQ0061222, Cab w/ Heat, 4 Wheel Drive, Extendahoe, 82” G.P. Bkt ., 24” Bkt., Case Controls, 5,262 Hrs................................................$34,500 2022 CASE 1150MWT/LGP, stk # EQ0054108, SN: NMC105831, Hours: 353, 26” Closed SALT HD; 132’ Blade POR 2017 Case CX160D, stk #EQ0033615, Cab w/ Heat & AC, Standard Boom & Arm, Auxiliary Hydraulics, 24" TBG Pads, 42" Bkt, 3,852. Hrs CALL 2019 Case SR240 stk # EQ0063416, High Flow, 2-Speed, Cab w/ Heat & AC, Front Electric, Deluxe Air Suspension Seat, Ride Control, Hydr. QC, Self-Level, 12x16.5 Tires, 1,333 Hrs $38,500 ©2019 GT Mid Atlantic. All rights reserved. CASE is a trademark registered in the United States
CONSTRUCTION EQUIPMENT GUIDE • www.constructionequipmentguide.com • October 12, 2022 • Page 25

Building Infield Tunnel to Pave Way for New Ultramodern Belmont Park

The mountains of dirt are back at New York’s Belmont Park.

They became part of the sports complex’s landscape in 2019 when construction began on the 19,000-seat UBS Arena at Belmont Park, home to the NHL’s New York Islanders. The project chewed up about half of the historic horse track’s backyard and a parking area behind its grandstand.

Now it is the racetrack’s turn to begin a renovation process that in the next five years will transform Belmont Park into an ultramodern facility built for the realities of racing in the 2020s and beyond, reported BloodHorse Daily, a publication devoted to the sport.

“It’s going to be an incredible complex once we finish,” said Glen Kozak, the New York Racing Association’s (NYRA) senior vice president of operations and capital projects.

The first step in bringing beautiful Belmont Park and its 54-year-old grandstand into the modern era began a few months ago with the construction of retaining walls that would allow a tunnel to the infield to be built.

The second part of that process is currently under way with the task of excavating the dirt and setting the concrete for a 504-ft.-long, 48-ft.-wide tunnel from the backstretch to the infield that will be 33 ft. underground.

“It’s a massive excavation of sand,” Kozak explained. “Fortunately, there is good product out there, so the excavation has been fairly quick.”

While the tunnel ultimately will enable patrons to enter the infield from the racetrack’s parking lots and Long Island Railroad station, for now it will allow construction equipment to drive into the infield. That will allow infrastructure work to be done, paving the way for work in the next few years when NYRA will rebuild its main dirt track and two turf courses as well as add a fourth track topped by a synthetic Tapeta surface.

“On one side it will be a pedestrian tunnel and [on] the other a vehicular path so that we can get trucks and other vehicles through it,” noted Kozak, adding, “Obviously, it’s multi-purposed. It gives us access to the infield so that we can continue construction while everything is going on over a multi-year span and we are not damaging the surfaces by driving over them to get to the infield.”

Additionally, the tunnel will allow infield work to be finished without damaging the main track and turf courses that will re-open for racing and training next spring.

While the tunnel is expected to be finished by the end of November, the infrastructure work will be a lengthier process, according to BloodHorse. Before work on any of the tracks begins, Kozak explained that contractors have many projects to tackle, such as building a lined infield pond for irrigation, along with a pump station, and doing all the electrical work to connect with a power grid that was previously installed for the arena and the complex.

Racing, Training Adjust to ParkÊs Renovation

Although the upcoming Belmont Park fall race meet was moved to Aqueduct Racetrack due to the construction work, race training will continue daily. With the tunnel positioned

near the three-quarters pole, shadow fencing will be put up at the 11/16ths and 13/16ths poles, allowing horses to gallop on turf and dirt over 11 of the track’s 12 furlongs.

“We’re losing about an eighth of a mile for training, so we are adding another outrider position to help with that,” explained Kozak. “We want to accommodate the trainers during this time because we realize it is an inconvenience for them, and [the New York Thoroughbred Horsemen’s Association] has done a great job of helping us deal with it.”

Once the tunnel work is wrapped up, he said the next phase will consist of covering the underground pathway with the proper dirt for each course so that Belmont can resume normal activities in 2023.

Following that, once racing moves upstate to Saratoga Race Course in July for the 2023 meet, work on the courses should begin. Kozak said the order for working on the three existing tracks and adding the fourth one has yet to be determined. He said a schedule detailing what Belmont’s next steps will be are being prepared for the NYRA board.

“But with the tunnel in place, we can decide if we will work on putting in a fourth track first or redoing a turf or dirt course first,” he told BloodHorse. “To get four tracks done in a year’s time is unrealistic. We don’t want to lose a Belmont Stakes, so we are looking at the best scenario for phasing all of this to have the least amount of impact on the horsemen. There will be a tunnel to the grandstand, but that’s coming later. Our goal is to do the infrastructure work and get the turf courses back together and the main track back together so that we can have spring racing and training at Belmont.”

Once the surfaces are finished, the final phase, and the most meaningful one for fans, will get under way with the renovation of a grandstand and clubhouse structure with a length as long as the Empire State Building is tall.

New Belmont Park to Be Smaller, But Expandable

For New York racing fans in their mid-60s and older, the construction at Belmont is resurrecting dusty memories of 1963-67, when the original Belmont Park was razed and a racetrack that first opened its doors in 1905 was remodeled to include a magnificent grandstand for the huge crowds that would stream into the building on a regular basis.

After the 1970 season, though, off-track wagering was introduced at Belmont Park and as it became increasingly popular, attendance began an ugly downward spiral. Now, more than half of the cavernous building is deserted on most days, and NYRA officials understand the key to a successful future for New York racing is a consolidation of downstate racing at Belmont Park in a smaller, year-round facility with the modern amenities sports fans covet.

“When we right-size the building, our goal is to be able to have it set up like other venues, where we have the ability to expand it on big days but to also have it where it’s more efficient and with the right amenities on a daily basis,” Kozak said. “The key is to have something that is functional for the daily operation and have the ability to ramp up for events like the Belmont Stakes or the Stars and Stripes or [the time] when we’re able to get the Breeders’ Cup back.”

Attendees,Exhibitors FromAcross Globe Ready for ConExpo

Attendees and exhibitors from across the globe are getting ready to make their way to ConExpo-Con/AGG and the International Fluid Power Exposition (IFPE) next March, after government and corporate travel restrictions have either been reduced or eliminated since the 2020 show.

With NorthAmerica having one of the largest construction industries in the world, exhibitors know ConExpoCon/AGG and IFPE are where their market is, and attendees know a greater number of exhibitors are bringing more, better technology to show than anywhere else.

“ConExpo-Con/AGG is the most visible expo in North America for our geospatial technology to be showcased. We’re inviting our worldwide dealer network to attend,” said Ray Weatherbee of Milan, Italy-based measurement and survey specialist Stonex.

“I would recommend exhibiting at ConExpo-Con/AGG to any manufacturer to display at any capacity. This is the Ferrari/Lamborghini/Bugatti of shows that you need to attend and display at.”

“The international audience for IFPE is significant,” said John Rozum, show director of IFPE. “These are the engineers, the product planners, the executives from OEMs all over the world. The fluid power and motion control technology on display at IFPE is what makes the construction equipment you see at ConExpo-Con/AGG work, and that doesn’t change regardless of where the product is made.”

Registration for the show opened in early August and the largest groups of international registrations are coming in from Canada, Australia, the UK, Mexico and New Zealand.

“In 2020, being able to present business opportunities about the Philippines at the International Lounge was a good ‘image building’ exercise for the country,” said Patrick Tan of Global-Link MP Events International, based just outside of Manila. “There were plenty of inquiries thereafter specially on the presentation of the Philippine Construction Industry Roadmap that will be implemented over the next 30 years.”

ConExpo-Con/AGG and IFPE also are bringing back the International Trade Center (ITC) to the 2023 show, to help exhibitors and attendees connect across oceans and languages.

“The ITC is a really useful resource for international salespeople like me,” said Matt McCormick, director of international sales at Minnesota-based Cimline. “Having an area with translators on call in a quiet environment where we can offer an overseas visitor hospitality is valuable. I also find the input and presentations from the staff at the ITC to be useful.”

Register now for ConExpo-Con/AGG and IFPE and use code MEDIA40 to save 40 percent off your badge through Oct. 28, 2022.

With

Page 26 • October 12, 2022 • www.constructionequipmentguide.com • CONSTRUCTION EQUIPMENT GUIDE
Keep Up
All the Industry News Subscribe to Construction Equipment Guide Today! Toll Free 800/523-2200
CONSTRUCTION EQUIPMENT GUIDE • www.constructionequipmentguide.com • October 12, 2022 • Page 27
Page 28 • October 12, 2022 • www.constructionequipmentguide.com • CONSTRUCTION EQUIPMENT GUIDE
CONSTRUCTION EQUIPMENT GUIDE • www.constructionequipmentguide.com • October 12, 2022 • Page 29 quipmed EUse nt POR 2299 Hours SN: NFS6K1330, EQ23843, 2016 CASE CX23 ,5CSR POR 269.5 hou SN: NHM4 EQ32976, 2018 CA rs 37033, , SE TV380, .com https://ePortal. vailable to Order 24A our EquipmentYo Y PartsGenuine CASE Sales, Rental & Serv /7 for ice: (800) 334-7633 Parts Hotl See O Listing ww ©2022CNHIndustrialAmericaLLC MEMBER ine: (844) 694-7 ur Website for a Com of Used Equipment fo w.GroffTractor.co AllrightsreservedCASEisatradema 633 plete or Sale om arkregisteredintheUnited©2022 CNH Industrial America LLC. All rights reserved. CASE is a trademark registered in the United 2018 CASE SR270 EQ0030349 SN: NJM450012 Hours: 873 POR 2022 CASE SR240B EQ0056624 SN: NNM412772 Hours: 28 POR SeHablaEspañol SeHablaEspañol www.newarkequipment.com • www.newarkequipment.com • www.newarkequipment.com www.newarkequipment.com • www.newarkequipment.com • www.newarkequipment.com www.newarkequipment.com • www.newarkequipment.com • www.newarkequipment.com www.newarkequipment.com • www.newarkequipment.com • www.newarkequipment.com 2013 CAT D6K-2 LGP, STK#22E038 2015 CAT 950M, STK# 21E061 22E038 – 2013 CAT D6K-2 LGP, EROPS W/AC, 11’.11” 6-WAY BLADE, TRACTION CONTROL, 30” SHOES, ACCUGRADE PREWIRE, RIPPER VALVE, DRAW BAR $125,000 22E029 – 1992 CAT D8N, OROPS, 12’10” SEMI-U-BLADE W/TILT, 24” SHOES, TOPCON PREWIRE, DRAW BAR $69,000 21E067 – 1989 CAT 926E, EROPS, AUXILIARY HYDRAULICS, SIDE DUMP BUCKET, 17.5X25 TIRES $45,000 21E070 – 2017 CAT 938M, EROPS W/AC, QUICK COUPLER, GP BUCKET, RIDE CONTROL, 20.5X25 TIRES $112,000 21E061 – 2015 CAT 950M, EROPS W/AC, AUX HYD S, QC, GP BKT, RIDE CONTROL, BACKUP CAMERA, 23.5X25 TIRES $133,000 22E033 – 2008 CAT 938H, EROPS W/AC, RIDE CONTROL, HYD. QC, AUX. HYDRAULICS, SIDE DUMP BUCKET, 20.5R25 TIRES $70,000 22E042 – 2011 CAT 950H, EROPS W/AC, RIDE CONTROL, Q/C, GP BUCKET, AUXILIARY HYD, 23.5R25 TIRES $85,000 22E037 – 2008 CAT 966H, EROPS W/AC, RIDE CONTROL, QUICK COU PLER, SIDE DUMP BUCKET, AUXILIARY HYD, 26.5R25 TIRES $97,000 22E036 – 2001 CAT 972G, EROPS W/AC, RIDE CONTROL, GP BUCKET $90,000 22E046 - 2012 JOHN DEERE 624K, EROPS W/AC, JRB Q/C, GP BUCKET, AUXILIARY HYDRAULICS, 20.5R25 TIRES $80,000 22E047 – 2005 CATERPILLAR 330CL, EROPS W/AC, 12’.10” STICK, 72” BUCKET, 33’.5” SHOES $66,000 22E045 – 2008 CAT 330DL, EROPS W/AC, 12’10” STICK, HYDRAULIC Q/C, 40” BUCKET, 33’.5” SHOES $78,000 22E018 – 2016 CAT 330FL, EROPS W/AC, REVERSE CAMERA, 12’2” STICK, AUX HYDS, HYD. QC, 48” BUCKET, 31’5” SHOES $185,000 22E019 – 2016 CAT 325FL CR, EROPS W/AC, REVERSE CAMERA, AUX HYDRAULICS, HYD. QUICK COUPLER, 31” SHOES $132,000 22E022 – 2014 CAT 320EL, EROPS W/AC, AUX HYDRAULICS, HYDRAULIC QUICK COUPLER $115,000 21E068 – 1999 CAT 426C, EROPS, 4X4, GP BKT, EXT-HOE $38,000 21E069 – 1998 CAT 426C, EROPS, 4X4, GP BUCKET, EXT-HOE, 30” BUCKET......................................................................................$38,000 22E043 – 2002 CAT 140H VHP PLUS, EROPS W/AC, 14’ MOLD BOARD, PUSH BLOCK, REAR RIPPER, TRIMBLE CB450 SYSTEM, 17.5X25 TIRES, CAT 3176T ENGINE $95,500 EXCAVATORSDOZERS RUBBER TIRE LOADERS / WHEEL LOADERS LOADER BACKHOES MOTOR GRADERS

Space Selling Fast

fast to be a part of the big show!

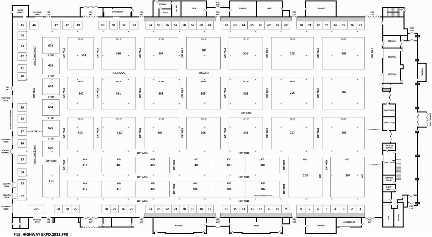
Page 30 • October 12, 2022 • www.constructionequipmentguide.com • CONSTRUCTION EQUIPMENT GUIDE * Show Floor Plan as of Oct. 2022. Subject to changes. Altec Industries Stephenson Equipment MDI Truck Boondocker Equipment Inc. Trux Outfitter Grassland Equipment & Irrigation STS Trailer & Truck Equipment Clinton Tractor J & J Equipment Northeast Sweepers & Rentals Inc. Stadium International Smith Metal Works of Newark Inc. Basil Commercial & Fleet Sales MTE Equipment Solutions Joe Johnson Equipment Milton CAT Tracey Road Equipment Viking Cives Cyncon Equipment Inc. Alta Equipment Company Tracey Road Equipment Buyers Products Co. Montage Enterprises Bobcat of Buffalo Henderson Products Tenco Industries Five Star Equipment Pavement Group JC Smith Inc. Haun Welding Austin Farm Eagle Associates Lorusso 2022 N.Y.S. Highway & Public Works Expo Floorplan … Exhibitor
SOLD AVAILABLE Act
Contact Teddy McKeon, general manager of the N.Y.S. Highway & Public Works Expo, for booth space. tmckeonjr@cegltd.com 800-523-2200 x170 or 215-260-8709 2022 N.Y.S. Highway & Public Works Expo is an excellent place to sell your municipal services Peirce-Eagle Equip. Co. 402b 402a 20’ X 20’ 48 Nationwide Transport Services, LLC 20’ X 20’ J Russell Group Midland Asphalt Materials Grassland Equipment & Irrigation Tora Crushing & Screening Skyworks, LLC Charles D Stahl Sales and Service Sany New York Soundoff Signal

Case Contstruction Unveils New E Series Excavator Lineup

Case Construction Equipment revealed the full rollout of its new E Series excavator models in North America on Sept. 22 at CaseCE.com/ESeries.

The rollout features seven new models — including two entirely new excavators — focused on enhancingthetotaloperatorexpe rience to deliver even greater pro ductivity, operator satisfaction and operational efficiency.

New features (and models) that will help drive the more complete operator experience include:

ï A massive new 10-in. LCD display that serves as the control center for each new machine and provides even greater access and visibility to cameras, machine data and controls. This includes the ability to customize your view (with rear, sideview and Max View perspectives) at the same timewhilestillaccessingmachine data and controls — ensuring optimal visibility and jobsite awareness. The display includes extensiveandintuitivecustomiza tion capabilities that help the operator make the workspace

their own.

ïAnew capability — hydraulic flow con trolbalance—thatallowstheoperatortoset arm in and boom up, and arm in and swing

ing flow and priority to their preference.

ï New and increased attachment setting and profile storage capabilities, helping operators dial in attachment performance

operator

and ensuring proper operation.

ï Four new operating modes available to be set in a range of up to 10 throttle settings thatallowoperatorstobetterdialinperform ance to their work.

ï New engines from FPT Industrial for increased horse power, torque, transient response and emissions simplification — as well as extended service inter vals.

ï One of the industry’s most expansive offerings of OEM-Fit 2D and 3D machine control sys tems to simplify the adoption and expansionofprecisionexcavation solutions.

ï Greater connectivity and col laborative fleet management capabilities through the Case SiteConnect Module and SiteManager App — including remote diagnostics and software uploading capabilities.

A new CX190E model expands on an important class of machine, and a second entirely new CX365E SR model.

For more information, visit CaseCE.com/ESeries.

The rollout features
seven
new models
— including two
entirely new excavators
focused
on enhancing the total operator experience to deliver even greater productivity,
satisfaction and operational efficiency. CONSTRUCTION EQUIPMENT GUIDE • www.constructionequipmentguide.com • October 12, 2022 • Page 31

Century-Old Train Station to Get Nearly $50M Makeover

Mayor Jim Cahill of New Brunswick, N.J., was thanking Gov. Phil Murphy and others on Sept. 23 for planning to invest $49 million for the modernization and expansion of his city’s train station when he was interrupted by the whoosh of a passing commuter train.

“Well-cued,” Cahill said, with a laugh.

The same thing could be said about the planned renovations considering that more than a billion dollars of nearby development projects are moving ahead faster than a locomotive and will likely bring thousands of new commuters to the city one day soon.

TAPinto New Brunswick reported that the train station upgrades, unveiled near the future site of the New Jersey Innovation and Technology Hub — known as “The Hub” — are to include extending and replacing well-worn passenger platforms and rehabbing bulky escalators and elevators.

The state funds also will go toward installing brighter and more energy-efficient lighting, upgrading heating and air conditioning systems, and making other improvements to the building, both internal and external, the community online news service noted.

Located at a critical point on NJ Transit’s

Northeast Corridor rail line, the significant investment in local economic development and passenger experience is just one piece of the $814 million the fiscal year 2023 state budget agreement is dedicating to rail station improvements through the Debt Defeasance and Prevention Fund.

The Middlesex County Improvement Authority (MCIA) plans to oversee the design, renovation, and construction of the station on behalf of the county and NJ Transit. In addition, the latter will provide technical assistance, procure and manage an engineering and design firm, retain construction services, and have review and approval rights throughout the project.

MCIAis currently preparing the scope for the project, TAPinto Brunswick noted, which will focus on enhancements to the station and customer experience.

Old Station to Keep in Step With Neighborhood

For a train station built in 1903, when, as Murphy pointed out, Teddy Roosevelt was in the White House, it is about time that amenities and upgrades were to improve the passenger experience at the New Brunswick

station.

“This station has lived through New Brunswick’s ups and downs,” Murphy said. “It has witnessed the buildings around it being demolished and replaced, only to be demolished and replaced again. [It] helped New Brunswick earn its nickname as ‘The Hub City.’”

Overall, the terminal is in good shape considering its age, MCIA officials told Tapinto New Brunswick, but the time for a facelift is now, especially with the $665 million technology hub to be built across the street. The first phase of that project, which will include a 12-story, 560,000-sq.-ft. building filled with some of the region’s best academic and business minds, was approved by New Brunswick’s Planning Board in July.

Nearby, too, crews are building the Jack

and Sheryl Morris Cancer Center, New Jersey’s first freestanding cancer hospital. The $750 million, care and research center will encompass 12-stories and 519,000-sq.-ft. of space.

“You’ve recognized the potential of the New Jersey Innovation and Technology Hub and the importance of its central location here right in the heart of New Jersey, directly across from the city’s train station on the most traveled rail line in the entire United States,” Cahill said at the gathering of politicians and area leaders for the project’s announcement.

He was, of course, addressing Murphy, but also others attending the event such as Democratic Rep. Frank Pallone, from New Jersey’s Sixth District, Middlesex County Commissioner Director Ron Rios, and Assembly Speaker Craig Coughlin, D-19th District.

“This is the next step in the New Brunswick renaissance,” Coughlin added.

“When I grew up in Middlesex County, New Brunswick didn’t have the greatest reputation. The truth of the matter is that’s totally different now. All you need to do is walk around New Brunswick to appreciate all the great things that have happened.” 

N.J. Begins Work On First of Two New Pedestrian Bridges

Officials in New Jersey’s Camden County have announced that plans are being made for a trail bridge over the Cooper River catering specifically to bicyclists and pedestrians — the first of two new spans to cross the river and help connect the county’s local and regional trail system.

Jack Sworaski, director of the county’s Division of Environmental Affairs, told the Cherry Hill Courier-Post that the municipality recently was awarded a $1 million grant from the New Jersey Department of Transportation (NJDOT )to build a bridge over the Cooper, a tributary of the nearby Delaware River that parallels the heavily traveled U.S. Highway 30/Admiral Wilson Boulevard in Camden.

The Cooper River winds its way through Cooper River Park in Haddonfield, Cherry Hill and Pennsauken before reaching Gateway Park in Camden along Admiral Wilson Boulevard, a main entry road into Camden and to the Ben Franklin Bridge and PATCO Speedline over the Delaware River into Philadelphia.

The new 12-ft.-wide span will cross the Cooper River near the Speedway Gas station on Admiral Wilson Boulevard to Flanders Boulevard on the opposite side of the river close to the Campbell Soup Co. headquar-

ters and the Subaru office complex.

In addition, the first structure will be 236 ft. in length, have a clearance from the river at high tide of 10 ft., and parallel theAdmiral Wilson Boulevard span that already crosses over the river.

The Courier-Post noted that it is one link in a portion of the Camden County LINK Trail, which also has other unfinished segments. When completed, the trail will travel through 17 county municipalities between the Ben Franklin Bridge in Camden and the Pinelands National Reserve in Winslow Township.

“The bridge will be built to make access

to the trail system easier and safer and help to complete the LINK trail loop through the city,” explained Matthew Ludwig, senior engineer with NV5, a Philadelphia consulting engineering firm hired by the county to design the bridge.

County officials are optimistic the bridge will have a positive economic impact, generating $19.5 million in projected new tourism spending and serve as a benefit to local businesses and services.

Ludwig told the Cherry Hill news source that Camden County estimates construction on the pedestrian bridge will begin by the spring of 2023 and will require some night-

Another Pedestrian Structure Still Being Planned

Discussions are ongoing about a second bridge that Camden County officials hope will come into better focus soon. It will be designed as an elevated crosswalk over U.S. 130 and will connect the county’s golf driving range and Cooper River Park at North Park Drive in Pennsauken. By elevating the pathway for hikers and bikers, the need for them to cross the heavily traveled highway at crosswalks will be eliminated.

Ahearing on the bridge, a larger undertaking that has already been awarded a $3.2 million state grant, will be held in 2023, although no date has been set. The elevated crosswalk also needs approval from the historic preservation office within the New Jersey Department of Environmental Protection, according to Sworaski.

When each are built, the two proposed pedestrian bridges will join Camden County’s popular Cuthbert Boulevard bridge farther upriver in Cooper River Park connecting Cherry Hill with Collingswood. That structure already has walkways that are used by bicyclists and pedestrians.

Page 32 • October 12, 2022 • www.constructionequipmentguide.com • CONSTRUCTION EQUIPMENT GUIDE
time lane closures on U.S. 30/Admiral Wilson Boulevard.
“The bridge will be built to make access to the trail system easier and safer and help to complete the LINK trail loop through the city.”
Matthew Ludwig NV5
“This is the next step in the New Brunswick renaissance.”
Craig Coughlin
N.J. Assembly Speaker
563-8 sales@jj Bellevue (D 872-441112 jscheckel.com ubuque), Iowa UY BUY NT BU B ENT YRE R U UY! O OR ipp T D11T - $788 lDDC 2014 CAAT HA03091. 7,691 HoursonCatDealerD Rebuild. JEL Series, U blade, SS R hfundercarriage. Very clean unit with f UY BUY NT BU B ENNT E RE R U UYY! O OR per fll ipper T D11T - $ DC 2013 CAAT HA03090. 7,984 HoursonCatDea $718,000 Full Rebuild invoice. JE SS R r, , Like new UC. Very clean 8,000 ocumented r, , Good history. $888,000 lD alerDocumented L Series, U blade, unit w/ full history. arriage eady g ll T T D7E lh 2018 CAAT A03113. 5,040 Tootal ho Excellent Underc F , 24 Control r y, , Full servic 4” E - $178,000 , SUBld/ ipper pp dC T D62018 CAAT HA03116. 4,437 Hour Rear MS R r, , Sw ARO GPS Grade Con urs, SU Blade w/ tilt, ” Pads, ARO GPS Grade e history since new. machine w/ pr p dll nly 1 2014 CAAT T D A03081. O y / / e w/ excellentunde arriageeeps 6T XW - $328,000 , SUbldls, 1,374 in neutral. SU blade. p l , Good underc g ii , trol ready. Clean & original lean and original g /BR riginal hours Cl ,750 O $348,000 ar ,hl VPAD6T XW PAAT TR DEF g ii .R e elowhour -DEFemmisions.C SRdercarriage. ARO GPS Ready.Rent/Buy. ing hoursg Mli VPA2014 CAAT T D6T XW PAAT T -$ A03080. 7,360 Total hours, 2,201 Ho 5,159 Actual work. Comes GPS equipment. Multi-shank riipper $248,000 , idlours at idle. s with full r. , clean & origi g R Machine is good y blade T D6N LGPAbldW 2019 CAAT 3,784 Total hours, 6 a l& , cc g 100% , khi 100%newtrackchains Re , 70”Y T 2012 CAAT T 374D 7,858 Tootal hours, 75’ Pierce 2 Yaard ” Bucket. Lots o lifetime load facent or Buy inal pain ade GPS Readyugr ihi - $258,000 , dGPSRg l y, , p B twith y. . orr acific long r $488,000 hb DLfilP g idlh each boom. ofidlehourswithlow t e ecorded. , 12’8” 2019 CAAT T 3 A03110. 5,170 Total h hydraulics ” St undercarriage 2019 CAAT T 3 3,700 Total h hydraulics, 2D G Documente oupler p Lik, 50” $338,000 k ,l A 349FLkours, Quick c r, , uxiliary ick ” Bucket, Like new , Very clean machine. y , 54”.10’6”tr $268,000 ,ili 336 Next GenAhours, 1,486 Idle hours, uxiliar Grade con o ol ” Stick ” Bucket, ed history, Very clean machine. y, , 6.25 ying hours L s - $24(2)2017 CA lf AT T 972M’ h~9,000 total frame hours, 5,000 hours Actual work g hi y ili ard GP Documentedhistory, , Lowutilization ing hours ar DY $2015 CAAT T 972M A03043. 8,876 Total frame hou idle. 6,093 Actual work kTires, 6.25 Ya d dGPbucket.Docu 8,000 Ea., dlat idle, 4,000 P buckets, machines. y $238,000 , 283Hrs, 2,783 Hours at s. 100% New Radial mented Histor Y 2020 Deere 744 ddfE2,930930HHours, xtended fac or 6,000 hours, 5.5 Yaard GP Excellent condition ,ggp g Y T 92009 CAAT A03011. 5,435 Hours, 1 Enclosed cab, 3 Yaard G Straight, clean & origi y till 2026 l y w 4L - $348,000 , ill20tory k arranty P bucket, Ride control, , Original paint. y y riginalgppain dU/C 963D- $148,000 ii , O1,226226Idlh Idle hours, g G t, P bucket w/ teeth. Good U/C, nal with documented histor (2)2018 CA) h500 ( L Less than 5,00 pair availab warranty, , Mic ew tailga ching s - $488,000 Ea. hi, Midl A 00 AT T 745’ 0000 hours w/ 1,500 at idle. Mat ble. N g 875/65/ tes. Transmission chelin 875/65/29 extra wide tires. $ 1TRebild$11T DAT BPLUS RERTRAIN 2016 CA POWE ailga y g l ching set of 3 tr , 90% Rubber T ange g il $388(3)2018 CA() 300h AT T 745’sf37,300 hour r T , Mat g 90%Rbb u since new. C tes r, , r warranty, , Cleantrucks with full h y to ship!Read utting widtc’’2 Models /0-F11Holmes, , 11’ or16’ $29,50 485000 HOLMES SMOOTH DRUM RUILDS ing hours $2016 CAAT T 725C 7,850 Total frame hours, 3,207 Actual work hii . Good tires, Matching pair of 725C truc ogether 8,000 Ea. h, k ucks, t g ii ansmission history. ll Te 2016 John Dee K-T p k ADES ec 1233 Scrapea.h. Made in I $-6F 1 $36,500 tf y Rem T 836K Y 2016 CAAT R1 Yeear Factory Warrant ihours, Documented Service cab, Excellen feeet, Teste OLLERBL NE NEWEW! W! riginal c ilb $248,000 ,Idlh dle hours, 4,643 O g ondition, ksavailable h K--TTe K T 1228S2017 Case IH S ec 1228 Scrg d re 9570RX & , l er Pkg- $468,000 y sinc d maining g K - $488,000 hi , 7,050 total frame history e new. Clean d, and ready to work. , only 5,33 yyY 2015 CAAT T 8 1 Yeear factor Warrant 332,937 at idle y Ehistory since new.Exce l p d g Pk $Steiger 580 graper Pkg38 hours in oper p Clf remaining 836K - $458,000 lT 388hi , 8,275 otal hours, ll ation. Service llentfeet.Clean, ready to work. t pu (2)2014 K-T) i$598,000 Quadtrac Q ,l Direct moun p 20Y dt T2019 CAAT h1,180 Totalh Reclamation, S dealer mainta apacitapers p i ull scr V s - $178,000 EA. hdY $ d T l Teec 1233’ k . 33 Yaardc p y heaped, dl ining g ’ixing or M A sphalt .540HP p HP C T RM500B - $588,000 orf f , hlAlRUours, niversalRot foorA PSoil M i W P..CAT T ined since new. on’t disappoint! . Ahistellencyort ew UC. ExN ladeU Bytanarr, 6,000 hr wr, p UB erT cA, Cr,. 0 ocHess o C 1 p /4 our ifid 1T Rebuild-$1 In pr ear l tified po yw/ 4 y T WATWE OWN WHA tting & sealing dirompac, celinglev di ,g y all 2022.e F , r,SS R ebuildain rtr ,bild ,485,000 pp 2022 emeduteadetionruconstrC g d , WE ADVERTISE! 56all: ipper c visit JJSc ted.1ed & inspecDealertestent.ain evo rprior t ddl , 33ackst trellenc , Ex4,800 Hrs H E com eoad & sitor haul r sales@|email: F 63-872-4112 and wheckel. ewtracks.N, Nwarranty1ownerwellmaintained idll k uaours on te Q2,400 H y d Ver, r,scrYaar3 Y p aper y vid jjswww y clean. @jjscheckelcom | watch our new compan ardW 2022 28 yNE 28 y d tr, Eadtxac r quipmLarge E oadersheel LWtion, t 740/745, &aleetCuckFrT t 374FLaorsCtavacgeExarL , T,T,aersCzogeDarL with & will not be bea Delivered Nationwide t D8T, D9T w foorscheckelcom | emely The fastest gro wusf eo! Y aper y clean, F lF dEj actory Eject scr r. 20 Yaard stru with low time ment Rental .e, and much mors o A40GolvV L, 390FL , D11TT, at on price and terms! e are easy to workW. D10T wing choice for rdailyupda apers .12fy nicuck. Very e and clean scr p idusesince new fttCutting width. call:|email: www. es:tr dailyupda CONSTRUCTION EQUIPMENT GUIDE • www.constructionequipmentguide.com • October 12, 2022 • Page 33
Page 34 • October 12, 2022 • www.constructionequipmentguide.com • CONSTRUCTION EQUIPMENT GUIDE 2011 Case 580SN, Pilot Controls, 3070 Hours ..............................$46,500 2020 John Deere 710L, 4x4, Ext, 4&1 Front Bucket, 105 Hours....$165,000 2013 Case 580N, Joystick Controls, 1880 Hours $49,500 2014 Hudson, 10 Ton Elec Brakes .... $6,500 USED TRUCK & EQUIPMENT SALES 1361 Conshohocken Rd., Plymouth Meeting, PA 19462 (610) 277-0100 Authorized Dealer FINANCING AVAILABLE 286 Central Ave., South Kearny, New Jersey 07032 800-255-5512 • 973-589-4100info@tes-inc.netwww.tes-inc.net 2006 Manitou MT 8044XT, S/N: 318157, 8,000 lbs. capacity, 44’ max lift height, 3 speed powershift trans mission, 4 wheel drive, F.O.B. New Jersey P.O.R. 2015 Manitou MRT 2150P+, 11,000 lbs. capacity, 67’7” max lift height, Enclosed cab w/ heater & AC, F.O.B. New Jersey P.O.R. 2001 Link-Belt RTC 8040 SII, 40-ton, 105’ main boom, 28’-51’ 2-piece jib, Hydro gas ride, Aux winch, Rear steer indicator P.O.R. 2020 Manitou M30-4, 6,063 lbs. capacity, Enclosed cab with heater/defroster & AC, 106.89” down, 146” lift, Side shift, 58” wide carriage P.O.R. 2013 Manitou MT10055, 10,000 lbs. capacity, 55’ lift height, open cab, 4 speed forward/reverse, F.O.B. New Jersey................................................................P.O.R. 2015 Manitou MT625, 5,500 lb. maximum lift capaci ty, 19’ 2” lift height, semi enclosed cab, 60” shaft type carriage, diesel engine, F.O.B. New Jersey P.O.R. 2009 Shuttlelift 3340B, S/N: 321134, 10.5-ton, Diesel engine, Independent outriggers, 13’-32’ boom w/12’28’ jib, Block & ball, New York City swing lock P.O.R. 2020 Manitou ATJ 46+, 900 lbs. capacity, 45’ 6” platform height, 28’ reach, 7’ 6” x 2’ 11” platform P.O.R.
CONSTRUCTION EQUIPMENT GUIDE • www.constructionequipmentguide.com • October 12, 2022 • Page 35 Shipping and Handling Included WE PURCHASE COLLECTIONS!!! Contact – Barry McKeon 610-506-5961 Email – bmckeon9@gmail.com Bmckeon Collectibles 470 Maryland Drive Fort Washington, PA 19034 Visit our Ebay Store – bmckeon collectibles – for a complete list with pictures. Toys For Boys(and also men) Realistic Scale Models of Construction Equipment, ideal gifts for the Holidays, Birthdays, Graduation, etc. John Deere Backhoe/Loader, 1:64 scale - $30 Terex 72-71 Wheel Loader, 1:43 scale - $200 Barber-Greene BG2455C Track Paver, 1:50 scale - $125 Caterpillar 920 Wheel Loader, 1:50 scale - $75 Liebherr RL52 Pipelayer, 1:50 scale - $125 Grove GMK 3050 White All Terrain Crane, 1:50 scale - $125 Ingersoll-Rand SP60-DD Soil Compactor, 1:50 scale - $75 John Deere 690C Excavator, 1:64 scale - $30 Hitachi Zasis 200LC Excavator, 1:50 scale - $75 Vermeer BC1000XL Brush Chipper, 1:50 scale - $60 Kobelco TLK860 Backhoe/Loader, 1:35 scale - $75 John Deere 675 Skid Steer Loader, 1:64 scale - $30 John Deere 310SL Backhoe/Loader, 1:50 scale - $60 Caterpillar 528 Log Skidder, 1:50 scale - $100 Terex 33-07 Off-Highway Dump Truck, 1:40 scale - $200 John Deere Telehandler, 1:32 scale - $60

Country Star Jimmy Wayne Delivers KeynoteAddress

UTCA from page 16

the walk for scheduled concerts and to go to the California State Capitol to speak in favor of a bill that would increase the age kids age out of the foster system from 18 to 21.

He successfully arrived in Phoenix on Aug. 1, 2010, after suffering a broken foot four days prior, having walked 1,700 mi. over seven months. Even after completing his walk, Wayne continues to advocate for foster children.

In 2012, he co-wrote the novel Paper Angels, a Christmas story about a child who receives help from the Salvation Army's Angel Tree program and the man who picked his name. He wrote Walk to Beautiful: The Power of Love and a Homeless Kid Who Found the Way with Ken Abraham. The autobiography, published in 2014, details his life story which inspired the “Meet Me Halfway” campaign.

Fletcher Creamer and Son for 26 years, becoming the first non-Creamer family member to hold the position of president and was named COO in 2016, and then CEO in 2020. He also served as president of the UTCA in 2012-2013 and 2018-2019 and was an executive member on the association’s board for

many years. He started the NJ Chapter of the National Utility Contractors Association (NUCA) in 2020 and served as its board president.  CEG

(All photographs in this article are Copyright 2022 Construction Equipment Guide.AllRightsReserved.)

Lou Slota was a one-man booth for family-owned Bay Crane.

During the keynote luncheon on Sept. 30, UTCAalso inducted the late Joseph T. Walsh, who passed away on Aug. 2, 2021, into the UTCA of NJ Hall of Fame He worked for J.

Toys for Tots is always a popular exhibitor at the UTCA conference. (L-R) are Robert Moran, Bob Groeber, Eddy Androvich Sr. and William McGinley.

Denise Blakely of Arthur R.HenryInc.triestograb as much cash as she can in 20 seconds in the KennedyCompanies’“Fun Machine.” She emerged with $57.

Larry Gilberson (L) and Mark Cassidy, both of Emerald Equipment Systems, were on hand to discuss the company’s crushing and recycling equipment. These machines assist with jobs involving topsoil, mulch, aggregate and natural materials.

This year’s keynote address featured Jimmy Wayne, award-winning song writer and recording artist.

Page 36 • October 12, 2022 • www.constructionequipmentguide.com • CONSTRUCTION EQUIPMENT GUIDE
(L-R): ECA’s team was represented by Bruce Langan, Michael Langan, Keith Meitzler, Kelly Simon, Steve Sigmund and Pat Lanni. Van Pham (L) and Nicole Matthew, both of Tenna, educated attendees on the company’s asset tracking solutions and fleet attachments. American Shoring’s Dave Moinar (L) and Bill Edgerly were on hand to support the utility industry. (L-R): The Ritchie Bros. group of Adam Byrne, Peter Mangelli and Fred Vilsmeier were on hand at the UTCA Annual Convention.

HabitatforHumanitytoBuild10 HomesinBordentownTownship

Plans are being finalized for Habitat for Humanity of South CentralJersey(SCNJ)tosoonbegin construction on 10 new affordable housing units for Bordentown Township, south of Trenton.

The new development will be constructed on Thorntown and Crosswicks Road, according to Bordentown Township Administrator Michael Theokas.

CentralJersey.com, a regional New Jersey online news service, noted Sept. 13 that as part of the town’s affordable housing policy with the state and Burlington County, the community struck a partnership deal with Habitat SCNJ more than a year ago to create affordable housing units for present and future Bordentown residents.

Township officials later identified Thorntown Lane and Crosswicks Road as a possible corridor to utilize for its affordable housing operation and bought three proper ties that were on sale in the area. Bordentown then demolished those proper ties to create land space that Habitat for Humanity now owns.

Theokas told the news outlet that the township has worked “hand and glove” with HabitatSCNJthroughouttheprocesstohelp the organization create a plan to build five duplex buildings, providing a total of 10 homes for prospective families.

“TheTownshipCommitteeisreallyproud andhappytohavepartneredwithHabitatfor Humanity,” he said. “[We are] very commit ted and focused on the inclusion of afford able housing and helping families own their own homes. We also look forward to bring ing in 10 families to our community.”

To be known as the “Bordentown Residential Development,” half of the homes will be for low-income families, with the five units going to families that are con sidered to have a moderate-income.

Each of the five duplex buildings will be two-story modular homes with three bed roomsandoneandahalfbathroomsandwill include a pocket park for families of three to six people, CentralJersey.com noted.

Project Is Habitat SCNJ’s Largest So Far

HabitatSCNJChiefDevelopmentOfficer

Annie Fox said the Bordentown Residential Development is, to date, the “biggest” proj ect that the organization has built.

“We build homes all over that are afford able to owners and do not exceed 30 percent of their monthly income,” she explained. “Bordentown Township has been a great

town to partner with. [It] has been very receptive to [building these affordable homes].”

Habitat SCNJ received applications for the Bordentown Residential Development until the end of September, Fox said, adding that potential families must have met three criteria to be considered for placement:

ï Provide verification that their current housing is overcrowded, unaffordable, dan gerous, unhealthy, temporary or otherwise substandard.

ï Meet the required financial categories as a household and be able to pay the monthly fees during their duration in the home.

ï Possess a willingness to work with Habitat for Humanity SCNJ and volunteer sweat-equity hours toward their home.

“We want hard working families that are willingtoputthetimeintogettheextrahelp they need [to own their home],” explained Fox. “We’re not giving these houses to peo ple for free.”

All eligibility requirements are available under theAffordable Housing section on the Bordentown Township’s website, Theokas added.

As construction of the new Bordentown Residential Development nears, he said the township expects many volunteers from his community and local municipalities to help aid Habitat SCNJ with completing the con struction of the affordable housing units.

“Things are really moving. We’re very excited,” he said.

Habitat SCNJ is an independent affiliate ofHabitatforHumanityInternational,which operates through local affiliates to ensure that all functions of the organization have maximum relevance and impact on individ ual communities.

In January, the affiliate changed its name to reflect its expanded service area, which covers Burlington, Mercer, Atlantic and parts of Middlesex counties.

more information, visit

Elliott & Frantz can show you the latest Gradall models, including Series IV excavators with highway speed travel capability.

AutoDrive™, these models integrate a 6-speed automatic transmission and a new transfer case for efficient, simplified travel as well as convenient jobsite repositioning

upper cab.

excavators

job-proven telescoping,

boom

enables

CONSTRUCTION EQUIPMENT GUIDE • www.constructionequipmentguide.com • October 12, 2022 • Page 37
For
www.HabitatSCNJ.org. 
Habitat SCNJ’s Chief Development Officer said the project is, to date, the “biggest” one that the organization has built.
Featuring
from the
Gradall
also feature the
tilting
that
you to do more different jobs with just one machine – even under bridges and trees. Delmar, DE 302-846-3033 Jessup, MD 410-792-9134 King of Prussia, PA 610-279-5200 Manassas, VA 703-257-2381 WWW.ELLIOTTFRANTZ.COM Four locations serve Maryland, Delaware, Washington, D.C. and parts of Virginia, New Jersey, and Pennsylvania
Page 38 • October 12, 2022 • www.constructionequipmentguide.com • CONSTRUCTION EQUIPMENT GUIDE
CONSTRUCTION EQUIPMENT GUIDE • www.constructionequipmentguide.com • October 12, 2022 • Page 39 VI CONCRETE, PHILADELPHIA, PASIL GIVEN US A DISTINCT COM TTENDING CONEXPO-CO“A AGE.” AAMPETITIVE ADV NT N/AGG FOR 50 YEARS HAS AKITA ING CONSTRUCTTION TO THE NEXT LEVEL. REGISTER Save 20% with promo code SHOW20 at conexpoconagg.comR sionsstionSeaducEd150 E s rs00 Exhibit81, or sendeetet000 A , 0,130 t s tst oeeFe7M S2. quare F f Exhibit MARCH 14-18 / 2023 / LAS VEGAS VAADA/ NEV

Future Technicians Tour GT&E Facility During Event

students on Case Construction Equipment machines and digital products.

“Since we are one of the first dealers in NorthAmerica to get our hands on the Case

CX365E SR and with the Minotaur arriv ing, we decided to have an open house,” said Corey Berkheimer, vice president of sales & rental – Central PAof Groff Tractor & Equipment. “It’s the perfect opportunity to welcome customers and the Penn Tech students at our facilities, as well as introduce them to our new prod ucts and everything Groff Tractor has to offer, including product sup port across construction, paving and material processing and more.”

(L-R): Gerald Biuso, National LICA CEO; Eddy Mayen, executive director, LICA Educational Foundation for Veterans; and Steve Latimer, PA LICA board member and territory manager of Groff Tractor & Equipment, are ready to dis cuss the benefits of membership with attendees.

The event had two sessions that included tours of the Groff Telematics Uptime Center: one from 11 a.m. to 2 p.m. and the other running from 4 p.m. to 7 p.m. The evening session also featured two local Sprint Car dirt track racers, Anthony Macri, aka “The Concrete Kid,” and Dylan Cisney, aka “The Mayor,” where fans lined up to get pictures and autographs.

“Having the local Sprint Car drivers, the Minotaur and Case being kind enough to bring the CX365E for us to demo with cus

Everyone was treated to a delicious lunch and din ner for both sessions of the Case Minotaur road show and open house event.

Also on hand for customers to demo was the Case CX365E SR minimum-swing-radius excavator.

tomers, really made this event special,” said Berkheimer. “We also have our precision control station, where we have a Case 850M equipped with 3-D GPS, a CX145D exca vator equipped with 3-D GPS, and a TV450B equipped with a grading box and 2-D system.”

Berkheimer also touted the star of the show.

“The Minotaur DL550 is two machines in one. It’s part dozer and part compact track loader with a fully integrated ripper on it. It’s a one-of-a-kind, must-see machine. It comes with steel tracks, and you can also get it with rubber tracks.”  CEG

(All photographs in this article are Copyright 2022 Construction Equipment Guide.AllRightsReserved.)

Page 40 • October 12, 2022 • www.constructionequipmentguide.com • CONSTRUCTION EQUIPMENT GUIDE
Kyle Sarvis, machine control specialist of Groff Tractor & Equipment, discusses the Case CX145D excavator with Pennsylvania College of Technology students. Pennsylvania College of Technology students learn about crushing and screening equipment during their tour of the facility.
ROADSHOW from page 12
Attendees register for the event at Groff Tractor & Equipment’s facility in Mechanicsburg, Pa. Jeremy Helm, regional service manager of Groff Tractor & Equipment, leads a group of Pennsylvania College of Technology students through the service area. Pennsylvania College of Technology students get ready for their tour of Groff Tractor & Equipment’s facility in Mechanicsburg, Pa. The evening session featured two local Sprint Car dirt track racers, Anthony Macri (R), aka “The Concrete Kid,” and Dylan Cisney, aka “The Mayor.”

PENNSYLVANIA

LINE

EQUIPMENT

CORP.

AUTHORIZED DOOSAN DEALERS
BEST
EQUIPMENT 484-223-3814 doosandealers.com/Allentown 717-540-7867 doosandealers.com/Harrisburg 724-437-1578 doosandealers.com/Lemont-Furnace 570-546-8422 doosandealers.com/Muncy 717-530-8400 doosandealers.com/Shippensburg 814-237-9050 doosandealers.com/State-College 570-265-4440 doosandealers.com/Towanda 215-675-3009 doosandealers.com/Warminster 610-241-3633 doosandealers.com/West-Chester MAINE CENTRAL EQUIPMENT CO. 207-827-6193 doosandealers.com/Stillwater MASSACHUSETTS BARRY EQUIPMENT CO. 508-949-0005 doosandealers.com/Webster EQUIPMENT EAST 508-484-5567 doosandealers.com/Brockton 978-454-3320 doosandealers.com/Dracut CONNECTICUT BARRY
CO. 860-288-4600 doosandealers.com/South-Windsor F&W EQUIPMENT
203-795-0591 doosandealers.com/Orange NEW HAMPSHIRE EQUIPMENT EAST 603-410-5540 doosandealers.com/Bow NEW JERSEY BEST LINE EQUIPMENT 732-334-6225 doosandealers.com/Keyport VERMONT G. STONE COMMERCIAL 802-388-9599 doosandealers.com/Middlebury NEW YORK CAPITAL TRACTOR 518-692-9611 doosandealers.com/Greenwich EQUIPMENT RENTALS, INC. 518-825-7368 doosandealers.com/Plattsburgh 315-788-7368 doosandealers.com/Watertown KLEIS EQUIPMENT 315-623-2111 doosandealers.com/Constantia ROBERT H. FINKE & SONS 518-767-9331 doosandealers.com/Selkirk UPSTATE EQUIPMENT 716-625-6092 doosandealers.com/Lockport ©2022 Hyundai Doosan Infracore. All rights reserved. Hyundai Doosan Infracore is an affiliate of Hyundai Heavy Industries Group. The Doosan trademark, , is used under license from Doosan Corporation.Learn more at NA.DOOSANEQUIPMENT.COM The new Doosan® dozer delivers more horsepower, better visibility and easier operation to help you push through your biggest challenges. Contact your local Doosan dealer for details. NEVER STOPS PUSHING. POWERED BY INNOVATION. CONSTRUCTION EQUIPMENT GUIDE • www.constructionequipmentguide.com • October 12, 2022 • Page 41

ConstructionofW.Va.’sLanevilleBridgeBeginsRampingUp

The last stages of the installa tion of a temporary replacement for a West Virginia bridge that was closed for safety reasons was planned to begin the first week of October, according to an announcement from the state Department of Transportation (WVDOT).

The old Laneville Bridge was demolished in September and cut intopiecesforremoval,WDTVin Bridgeport, W. Va., reported Sept. 27.

Located in the rugged Alleghany Mountains within the state’s north-central region, the structure gave drivers access to the small unincorporated commu nity of Laneville in Tucker County.

Both the old bridge and the temporary bridge spans Red Creek (a tributary of Dry ForkofCheatRiver)alongthesouthernbor der of the Dolly Sods Wilderness in the Monongahela National Forest.

The roadway and bridge over scenic Red Creek also led motorists to the Red Creek trailhead and is a key connection to the rural counties of Randolph, Grant and Tucker.

TheUnitedStatesForestServicebuiltand maintained the Laneville Bridge, but it is on a road supported by the state. Safety issues on the structure were discovered during a routine inspection on July 26, causing the bridge to be blocked to traffic.

The West Virginia Department of Highways (DOH), a division of the WVDOT,hasagreedtodesignandconstruct a permanent structure downstream of the

existing span at a later date. The Forest Service intends to pay for the new bridge with funds from the Great American Outdoors Act, state officials told West Virginia Daily News.

Forest Service Plans to Open Interim Bridge Nov. 1

In the meantime, an $800,000 contract was awarded to A.L.L. Construction Inc.,

from nearby Mount Storm, W. Va., to both remove the demol ished bridge and complete the replacement project, Forest Service officials said. The federal agency hopes to open the tempo rary bridge to traffic on Nov. 1. Now that work has ramped up on the interim bridge, cranes could be seen recently lifting a span of the structure over Red Creek.

DOH warns people driving in the area that heavy construction traffic on Forest Road 19 as well as increased truck traffic on the west side of the bridge of Laneville Road will be ever pres ent until November. Visitor park ing will be scarce on the span’s west side, and construction equipment will come and go on both sides of the bridge, the West Virginia Daily News reported.

Unfortunately for folks wanting to visit Dolly Sods Wilderness via Laneville to enjoy the October peak leaf season, the U.S. Forest Service is asking them to avoid the construction zone at the Laneville Bridge site.Otherdriversmaydosoonlywhennec essary.

 Photo courtesy of WVDOT Both the old bridge and the temporary bridge spans Red Creek (a tributary of Dry Fork of Cheat River) along the southern border of the Dolly Sods Wilderness in the Monongahela National Forest. 1 2 0 2 d t L s iutortrb no ad a T © www.tadano mricas.comae a cCireomnAada Ts nee2r W 4G,2n4oirtopr oa6P 607,X7nTotsu,odH R0 3090)6188:+2eno h1 ( www.empirecrane.com 7021 Performance Drive N. Syracuse, NY 13212 800-342-7575 12 Mear Road Holbrook, MA 02343 508-868-7734 9 Finderne Avenue, Ste 7 Bridgewater, NJ 08807 908-203-0400 Page 42 • October 12, 2022 • www.constructionequipmentguide.com • CONSTRUCTION EQUIPMENT GUIDE
PER TRIE FOR D & TR RMAN RUE CE HASSLE0 0W DO PERCEN0 E N. T FOR 36.* Learn more at N E. ECatDealers.com/finance + A C RV OTECTION P AGE* Unlike the qualit connect with yo come to those w SINCE 1948 ty and dependability of Ca ur local Cat dealer for hu who wait. act now. SINCE 1957 Since 1923 t ® equipment, this offer w ge savings and an unbeat SINCE 192 on’t last a lifetime. It’s hig table Protection Package 3 SINCE 196 MIL M h time you Good things 0 NCAL NC © 2022 Caterpillar (CV dealer *Offer valid from July 1, 2022 through participating Cat dealers to customer r. . Payments are based on term l VAA) or qualifying Equipment Protect EPP is the same for all models. In som r. All Rights Reserve andmaynotbeusedwithoutpermis Cleveland Brothers www.clevelandbrother Serving Pennsylvania and northern West Virginia 844-720-4CAT , CATed. CA December 31, 2022 on new small (compact track load s in the USA or Canada. Purchase and delivery must ength. Payments do not include taxes, freight, set-up tion Plan (EPP). Amount of the credit cannot exceed t me areas, EPP might be sold separately from the CVA. ATT, ATTERPILLAR, LET’S DO THE WORK, their re sionwwwcatcom/wwwcaterpillar rs.com d Foley, Incorporat www.foleyinc.com Serving New Jersey, ea Pennsylvania, northern Delaware and Staten Is 732-885-5555 CVA or EPP ers, compact wheel loaders, micro/mini excavators, occur during offer period. Offer subject to machine av , delivery, document fees, inspections, additional opti the price of qualifying CV P. VA A must include 1 Offer may change without prior notice and cannot be espective logos, “Caterpillar Corporate Yellow”, the ed stern sland 844 CA H.O. Penn Mac www.hopenn.com Serving Connecticut southern New York ATT-1923 1-year preventive maintenance parts kit, T skid steer loaders) and new compact (backhoe loade ailability and credit approval by Cat Financial. Not al ions, or attachments. The credit of up to $500 USD ca TAA1 annual i combined with any other offers. Additional terms an “Power Edge” and Cat “Modern Hex” trade dress a hinery and Milton CAAT T www.miltoncat.co Serving Massachuse New Hampshire, Ver Island, and Upstate N 888-347-3449 H.O.P LEEVEEL BRO LEV O CLE ML ONC H VEELAAND EY NCFO FOLELEY,INCNC. OLE rs, telehandlers, small dozers, small wheel loaders) customers will qualify. Length of contract is limited. n only be applied towards the purchase of a qualifyin nspection, signed CVA contract and Product Link® A nd conditions may apply. Contact your Cat dealer for d s well as corporate and product identity used herei m tts, Maine, mont, Rhode ew York V PENN P Cat® machines sold by 0% offers may vary by model and g Cat Customer Value Agreement Amount of credit towards CVA or details. in, are trademarks of Caterpillar and may not be used without permis .caterpillarsion. www.cat.com / www r..com CONSTRUCTION EQUIPMENT GUIDE • www.constructionequipmentguide.com • October 12, 2022 • Page 43

Abele Tractor &

Ahearn Equipment Inc.

MA 01562

Cherry Valley Tractor

Marlton, NJ 08053 856/983-0111

Erb & Henry Equip., Inc. www.erbhenry.com New Berlinville, PA 19545 610/367-2169

he ultim eobsit ma oe sat lut

j

ADMAR Construction Equipment & Supplies www.admarsupply.com

Vestal, NY 13850 607/798-0333

Tonawanda, NY 14217 716/873-8000

Canandaigua, NY 14424 585/396-0031

Rochester, NY 14623 585/272-9390

Cicero, NY 13039 315/433-5000

Eagle Power & Equipment Company www.eaglepowerandequipment.com West Chester, PA 19380 610/458-7054 Doylestown, PA 18901 215/348-9041

F&W Equipment www.fwequip.com Orange, CT 06477 203/795-0591

Reading Tractor and Equipment www.readingtractor.com 5538 Pottsville Pike Leesport, PA 19533 610/926-2441

Marshall Machinery, Inc. www.marshall-machinery.com

Honesdale, PA 18431 570/729-7117

Johnson City, NY 13790 607/729-6161

Middletown, NY 10940 845/343-6683

South Abington Township, PA 18411 570/489-3642

Tannersville, PA 18372 570/895-4884

Westchester Tractor Inc. www.wtractor.com Brewster, NY 10509 845/278-7766

Chappell Tractor www.chappelltractor.com 454 Route 13 South Milford, NH 03055 603/673-2640

ABLE Equipment Rental www.ableequipment.com Deer Park, NY 11729 866/468-2666 631/841-3333

Highway Equipment Company www.highway-equipment.com Millstone Township, NJ 08535 732/446-7600

Page 44 • October 12, 2022 • www.constructionequipmentguide.com • CONSTRUCTION EQUIPMENT GUIDE thGet t Tight
g ?
ion. gnNwU e ail swMinimalt05U1- ompact desiing C Get the n Kubota h • Side lev • Minima confined ears. imble, powerful U10-5 Excavator for your next jobsite and see why as been the world’s #1 selling compact excavator for the last 20 y * er joystick operation l tailswing for work in spaces • Compact size for easy transport • The newest member of our 1-ton lineup Highway Research including all Kubota Group brand sales. 022.This material is for descriptive purposes only.Kubota disclaims all representations and warranties,express or implied,or any liability from the e warranty, safety and product information, consult your local Kubota dealer. For the complete disclaimer, go to KubotaUSA.com/disclaimers and see KubotaUSA.com *According to 2021 data from Off-H © Kubota Tractor Corporation,20 use of this material. For complete the posted disclaimer.
Equipment Co., Inc. www.abeletractor.com Albany, NY 12205 518/438-4444
www.ahearnequipment.com Spencer,
877/624-3276
www.cherryvalleytractor.com
CONSTRUCTION EQUIPMENT GUIDE • www.constructionequipmentguide.com • October 12, 2022 • Page 45

Buy Clean Initiative to Cover Federally-Funded Projects

to the task force.

“In addition to federal procurement, Buy Clean will cover federally-funded projects,” said the task force.

The group pointed out that last year’s infrastructure spending law included funds for GSA, Transportation and EPA to “designate and use construction materials and products that produce substantially lower levels of greenhouse gas emissions.”

It also noted that the recently enacted Inflation Reduction Act provides funding for retrofitting industrial facilities and tax credits for clean technology manufacturing.

“The federal government is for the first time providing a market differentiation and incentives for lower-carbon materials,” said the task force. “Companies across the nation will be rewarded for cutting carbon pollution across their entire value chains while supporting good American manufacturing jobs.”

More than a dozen agencies that account for nine-tenths of federally-financed and purchased construction materials comprise the task force.

In the future, the group will continue to launch pilots, expand the scope of industrial pollutants and materials, engage industry and establish mechanisms for collection and public disclosure of the data.

From the Ground Up

In March, the General ServicesAdministration (GSA) issued new standards for the concrete and asphalt used in nationwide GSA construction, modernization and paving projects.

These were the first standards in the United States to apply beyond a local jurisdiction.

So far, seven Bipartisan Infrastructure Law-funded paving projects have been completed using the new asphalt standards.

All of these projects were awarded to and completed by small or disadvantaged businesses, said GSA.

“The historic passage of the Inflation Reduction Act provides a boost to these efforts with $3.375 billion that will allow GSA to invest in federal buildings with lower-carbon materials and sustainable technologies,” said the agency.

It also will allow for the leveraging of emerging clean technologies that help achieve greater carbon reductions and catalyze American innovation.

“These investments help boost the competitiveness of American manufacturers developing sustainable materials and technologies,” said GSA.

“Using domestic, lower-carbon construction materials is a triple win — creating good-paying American jobs, reducing energy costs and tackling climate change,” said GSA Administrator Robin Carnahan. “At GSA, we’ve already started deploying standards that help reduce emissions and advance sustainable projects with little to no additional cost — while supporting small businesses along the way.”

Under GSA’s concrete and asphalt standards, construction contractors are required to provide a product-specific cradleto-gate Type III environmental product declaration (EPD).

An EPD is a third-party-verified summary of the primary environmental impacts associated with a product’s extrac-

tion, transportation and manufacture.

GSA’s asphalt standard requires at least two environmentally-preferable techniques or practices to be used during the material’s manufacture or installation.

These options include bio-based or alternative binders, recycled content and reduced mix temperatures. They are considered best practices that reduce fossil fuel use and environmental impacts.

Under GSA’s low embodied carbon concrete standard, according to FedWeek.com, contractors are asked to provide concrete that reflects a 20 percent reduction in the amount of “embodied carbon,” associated with its production.

GSA also will ask to hear directly from manufacturers, including small businesses, on the availability of construction material and products with lower embodied carbon.

Findings from that request for information will help the government understand industry trends and opportunities.

The investments are intended to reduce carbon emissions from the federal supply chain by millions of metric tons per year, save millions of dollars in energy costs and support GSA’s sustainability goals.

Buy-Clean Commitments

The White House explained that the Buy Clean Initiative is a part of President Biden’s economic plan to usher in a manufacturing boom in America.

The economic plan includes the Bipartisan Infrastructure Law, Inflation Reduction Act and CHIPS and Science Act.

“The initiative ensures that federal financing and purchas-

ing power are creating good-paying jobs, protecting public health, enhancing American competitiveness and strengthening national security,” said the White House. “Today’s Federal Buy Clean actions build on Buy Clean commitments made earlier this year.”

Those commitments include standing up the Federal Buy Clean Task Force, and complements Biden’s comeback for American factories, which represents 668,000 added manufacturing jobs.

“The federal government is the largest direct purchaser in the world and a major infrastructure funder,” said the White House. “By leveraging the U.S. government’s purchasing power, President Biden is ensuring that American manufacturing is positioned to compete and lead, while catalyzing markets and accelerating innovation across the country.”

The Inflation ReductionAct boosts the Federal Buy Clean Initiative with $4.5 billion in funding for GSA, DOT and EPA to use construction materials and products that substantially lower greenhouse gas (GHG) emissions.

The Inflation Reduction Act also provides the DOE with billions to invest in retrofitting industrial facilities and tax credits for clean technology manufacturing.

Through the Federal Buy Clean Initiative and Task Force, the federal government is for the first time providing a market differentiation and incentives for lower-carbon materials.

“Companies across the nation will be rewarded for cutting carbon pollution across their entire value chains while

Page 46 • October 12, 2022 • www.constructionequipmentguide.com • CONSTRUCTION EQUIPMENT GUIDE
INITIATIVE from page 1
President Biden’s Buy Clean Initiative gets under way with instructions for integrating construction materials that feature low emission levels.
see INITIATIVE page 114

bridge the technology gap

guidance and payload monitoring — tools to drive accuracy and

www.andersonequip.com

NEW YORK

Buffalo, NY 716/877-1992

Henrietta, NY 585/334-6770

Syracuse, NY 315/463-8673

Albany, NY 518/785-4500

Watertown, NY 315/788-5512

Endicott, NY 607/748-3400

Olean, NY 716/372-8822

NEW HAMPSHIRE Lancaster, NH 603/788-6595 Manchester, NH 603/627-7696

PENNSYLVANIA

Pittsburgh, PA 412/343-2300

Clarion, PA 814/226-4100

Clearfield, PA 814/765-5311

Somerset, PA 814/443-2867

MAINE Bangor, ME 207/942-0177

Gorham, ME 207/591-5482

VERMONT

East Montpelier, VT 802/223-9689

www.cn-wood.com

Avon, MA 508/584-8484

Woburn, MA 781/935-1919

Whately, MA 413/665-7009

Smithfield, RI 401/942-9191

Danbury, CT 203/743-0088 Newington, CT 860/665-7470

Laurel, DE 302/715-5382

Baltimore, MD 410/247-2100

South Plainfield, NJ 908/561-9000

Winslow Township, NJ 856/767-5900

Holbrook, NY 631/563-7600 Holmes, NY 845/878-4004

New York City, NY 718/626-3331

Pine Bush, NY 845/744-2006

Yonkers, NY 914/738-5100

Frackville, PA 570/874-6140

Harrisburg, PA 717/652-3190

Hatfield, PA 215/822-0145 State College, PA 814/308-5660 Wilkes-Barre, PA 570/824-9891

CONSTRUCTION EQUIPMENT GUIDE • www.constructionequipmentguide.com • October 12, 2022 • Page 47
smartconstruction.mykomatsu.komatsu

HowardUniversity,Developers to Build Mixed-Use Building

Howard University in Washington, D.C., announced Sept. 20 that it is partnering with three development companies to construct a sparkling mixed-use building next to its main campus inWashington, D.C.’s historic Shaw neighborhood.

The plan is the latest real estate initiative in the university’s Campus Master Plan, according to The Dig, Howard’s news serv ice.

The college is working in cooperation with Lowe, a leading national real estate investment, development and management firm in LosAngeles; FLGA, a Washingtonarea minority developer; and D.C.-based firm Davenport Group.

Howard and its partners will transform the 1.85-acre site, currently used as parking lots for the university, into a 10-story build ing with up to 500 residential units, 27,000 sq. ft. of retail and 246 below-grade parking spaces, including amenities for Howard’s community members.

“We are thrilled to partner with another best-in-class team that will build on the momentum of our Campus Master Plan,” said university President Wayne A. I. Frederick. “This project will deliver muchneeded housing and retail space that will serve Howard students, faculty, staff and visitors,aswellasourneighborsinthecom munity. Through this initiative, we are proud to support the district’s goal of build ing 36,000 new homes by 2025 to combat rising housing costs.”

In a statement, Lowe’s Executive Vice President Mark Rivers added, “Our team is working closely with Howard University to develop and execute plans and programs for the parcel that are consistent with the uni versity’smissiontobeasupportiveresource for and contributor to the surrounding com munity, with an emphasis on diversity and inclusivity.Thisincludesarobustsetofmis sion-orientedobjectivestoprovideexposure and opportunities for Howard students to careers in real estate, architecture, engineer ing and hospitality management as well as opportunities for minority-owned firms to participate in the development of the proj ect.”

Project One of Several to RestoreDuke District

This mixed-use project — along with others Howard is delivering with its devel opment partners in the vicinity — fulfills and expands on the vision for the Howard Town Center Area Sub-District outlined in the District of Columbia’s DUKE Framework, a plan to restore the historic community as a cultural destination, The

Dig noted Sept. 20.

Howard is currently referring to this area astheDukeDistrict,anodtotheframework and the neighborhood’s past as the heart of an important economic, cultural, social and institutional center of a proud and accom plishedAfricanAmerican community, most of which was affiliated with Howard University and its hospital.

In addition, the new effort will build on Howard’s reintegration of the historic street grid by featuring a public plaza along the future extension of W Street.

“This project is another example of Howard’s strategy to utilize long-term ground lease structures that preserve the institution’s real estate portfolio while allowing it to reinvest in its academic facil ities,” explained Anthony Freeman, a real estate executive and head of Real Estate Development and Capital Asset Management (REDCAM) at Howard.

Freeman noted that per the Howard Forward strategic plan, the institution is planningtodeliveroverthreemillionsquare feetofdevelopmentintheDukeDistrictand create “a vibrant, connected neighborhood” while building on the momentum of Howard’s other nearby projects.

Thetransactionispartofastrategicinitia tivebyHowardtomaximizethevalueofthe school’s real estate portfolio. The Dig reported that the university has assembled a dedicated team of industry leaders in real estate, finance and law to further the initia tive, including Hayat Brown and Lerch Early & Brewer.

The Lowe-led team is undertaking the development in collaboration with USAA Real Estate, with which Lowe also devel oped the recently completed Park + Ford apartment and office property, and the National Science Foundation, both in Alexandria, Va.

Construction on Howard’s new mixeduse facility is projected to commence in the fall of 2023.

Howard a Prestigious College

Founded in 1867, Howard University is a private, research university made up of 14 schools and colleges. Students pursue more than 140 programs of study leading to undergraduate, graduate and professional degrees. The university has produced one Schwarzman Scholar, three Marshall Scholars, four Rhodes Scholars, 12 Truman Scholars, 25 Pickering Fellows and more than 165 Fulbright recipients.

It also produces more on-campusAfrican American Ph.D. recipients than any other university in the United States.

Page 48 • October 12, 2022 • www.constructionequipmentguide.com • CONSTRUCTION EQUIPMENT GUIDE
 SOLIE D SIGN PERFOR -TOBUIT L M CONTACT YOUR LOCAL GEHHL DEALER TODDAY! estrictions apply to*Certain r o the 2 year 2,000 hour warranty www.allislandequipment.com 39 Jersey Street West Babylon, NY 11704 631/643-2605 sales@admarsupply.com www.admarsupply.com 878 Old Albany Shaker Road Latham, NY 12110 518/690-0750 3001 West 17th Street Erie, PA 16505 814/833-7761 121 Armstrong Road Pittston, PA 18640 570/299-5505 1990 McKees Rocks Road McKees Rocks, PA 15136 412/458-4421

Walter S.

&

Washington

M MOR R E POWE liable, undeniable p f .sevor Mewoe PakMyou can ancmorer . Wi h Do an P table P eorsote id,esruoyn er o sooDtull lineup ahefeteS abtorom/Pc.sevorMewoPan .rewobleP .deversesrtigh. .VESOMREWE POKMA Highway Equipment & Supply Co. www.hwyequip.com PENNSYLVANIA Drums (570) 788-1127 Harrisburg (717) 564-3031 Ephrata (717) 859-3132 Lock Haven (570) 769-1070 Hoffman Equipment www.hoffmanequip.com NEW JERSEY Piscataway (732) 752-3600 Deptford (856) 227-6400 NEW YORK Bronx (718) 822-1180 Marlboro (854) 236-3000 Medford (631) 207-2900 PENNSYLVANIA (610) 363-9200 Best Line Equipment www.BestLine.com PENNSYLVANIA Muncy (570) 546-8422 Towanda (570) 265-4440 State College (814) 237-9050 Mechanicsburg (717) 697-1177 Shippensburg (717) 530-8400 Harrisburg (717) 540-7867 Tyler Equipment Corporation www.tylerequipment.com CONNECTICUT Berlin (800) 352-4473 Parts: (860) 356-0848 Fax: (860) 828-6727 MASSACHUSETTS East Longmeadow (800) 292-6351 Parts: (877) 255-6351 Fax: (413) 525-6840 Absolute Equipment www.absoluteequip.com PENNSYLVANIA Pittsburgh (412) 931-6655 (866) 931-6655
Air Compressor Rental Co. www.washair.net MARYLAND Frederick (301) 662-7711 Hyattsville (301) 277-1300 DISTRICT OF COLUMBIA Washington (202) 635-1500 VIRGINIA Chantilly (703) 742-6200
Pratt
Son www.prattandsons.com NEW YORK Rensselaer (Albany) (518) 465-1549 CONSTRUCTION EQUIPMENT GUIDE • www.constructionequipmentguide.com • October 12, 2022 • Page 49
Page 50 • October 12, 2022 • www.constructionequipmentguide.com • CONSTRUCTION EQUIPMENT GUIDE PER DEL RFORM IVERI MANC NG E VAND ERSATILITYAT For 75 years customers Grove produc > All-terrain m ,Grove mobile thanks to their ts are available in odels with capacitie cranes continue reliability and in : s from 55 USt to 550 to earn the tru ndustry leading USt st and confiden performance. ce of > Rough-terra > Truck-moun > Telescoping > Industrial m in models with capa nted models with cap crawler models wit odels with capacitie cities from 30 USt to pacities from 40 USt h capacities from 30 s from 9 USt to 25 US 165 USt to 115 USt USt to 140 US t www.manitowoc.com 300 South Randolphville Rd. at Route 287 Piscataway, NJ 08854 800-446-3362 22 Peconic Ave. Medford, NY 11763 631-207-2900 1144 Zerega Ave Bronx, NY 10462 718-822-1180 1330 Hurffville Rd. Deptford, NJ 08096 856-227-6400 1440 Route 9W Marlboro, NY 12542 845-236-3000 120 Gordon Drive Lionville, PA 19341 610-363-9200 www.shawmutequipment.com Philadelphia, PA 800-220-4033 Harrisburg, PA 800-325-6455 Wilkes-Barre, PA 866-667-6756 Pittsburgh, PA 800-692-7600 Syracuse, NY 800-368-6455 Albany, NY 518-357-2200 20 Tolland Turnpike Manchester, CT 06042 800-829-4161 136 Eastman St. South Easton, MA 02375 877-526-9213 Shawmut Equipment of Canada, Inc. 318 Park Road Elmsdale, NS B2S 0G2 902-883-7450 www.hoffmanequip.comwww.stephensonequipment.com
MAKEYOUR MOVETO MECALAC ME - VT - NH - MA - CT 508-660-7600 www.lhequip.com Central PA 717-795-0700 www.woodscrw.com Upstate NY 888-897-0229 www.altaequipment.com Northern NJ - Eastern PA 908-735-2149 www.powercoinc.com MD/ DC - DE - Northern VA 410-242-6500 www.mcclung-logan.com WWW.MECALAC.COM ANDAWHOLE LOTMORE! YUP IT’SAN EXCAVATOR… MORE AD CEG-09/22Photo credits: SémaphoreNo binding document CONSTRUCTION EQUIPMENT GUIDE • www.constructionequipmentguide.com • October 12, 2022 • Page 51

Army Corps of Engineers Begin Railhead Upgrades at NewYork State’s Fort Drum

A formal groundbreaking cere mony took place at the U.S. Army’s Fort Drum installation in northwestern New York State ear lier in September, marking the beginning of the construction on $31.5 million in improvements to the military railhead found at the base.

The project is being built by the U.S. Army Corps of Engineers (USACE)withthegoalofenhanc ingtheabilityofmilitarypersonnel to deploy more quickly and safely, according to a news release from theArmy’s engineering branch.

USACE New York District DeputyCommanderCol.Matthew Pride spoke to the groundbreak ing’s audience of U.S. Army offi cers, soldiers, engineers and Corps personnel stationed at Fort Drum.

“The importance of this project cannot be underestimated,” he remarked. “The new railhead will facilitate the ability to project power around the world more quickly and safely.All aspects of the new railhead are being built for a 40-plus-year design life serving Fort Drum well into the mid-21st century.”

Photo courtesy of U.S. Army Corps of Engineers New York District website New York District Deputy Commander Col. Matthew Pride (L) participates in a ground-breaking ceremony at Fort Drum in northern New York marking the beginning of major renovations to the railhead there.

any successful deployment and require advance planning and training.

Expected to be complete in late 2023, the upgrades will benefittheArmy’s10thMountainDivision ajointteamof specially trained U.S. soldiers and air personnel performing operations in rugged, mountainous terrain, and stationed at Fort Drum.

Reactivated in 1985 as one of the Army’s new lightinfantrydivisions,itsspecialcapabilitiesenableawiderange of global missions, adding a new dimension to the strategic mobility of the U.S.Armed Forces.

Modern Military Railhead

When the Fort Drum project is finished and operational next year, some of its new features will include:

ï A mile of new railroad track, along with four parallel tracksandfivenewloadingramps,toallowforsimultaneous drive-on loading of rolling stock.

ï A container-side loading area, a capability the current railhead lacks.

ïA5,000-sq.ft.-railheadoperationsbuildingofferingrest rooms and space for 100 soldiers to use as a break area from deployment operations, especially important during harsh weather.

ïAscale house with a weigh-in motion and profiling sys tem to hasten loading operations.

ï A marshalling yard where railway cars are separated onto different tracks.

ïAn alert holding area, or control area, for equipment and vehicles prior to loading.

ï A container-handling and storage/repair facility with a staging area.

Safety is Priority One at Fort Drum’s Railhead

The USACE noted that safe rail operations are crucial to

To that end, a Fort Drum safety officer and non-commis sioned officer (an enlisted soldier with specific skills and duties)willbeonhandtooverseeoperations.Thatiscritical, the Corps of Engineers explained, as a great deal of labor is needed to lift/move heavy equipment, and hazards do exist, especially during adverse weather conditions. Safeguards must be in place to reduce the risk of accidents and injuries.

The U.S. Army has experienced issues at railheads in recent years that lacked the latest improvements to its facili ties, according to the USACE news release.

Forexample,aJanuary2019peacetimedeploymentillus trated that very point when soldiers with the 1st Brigade CombatTeam,10thMountainDivision,werelaunchingload operations for deployment to the Joint Readiness Training Center in Fort Polk, La., when unusual weather conditions for the Deep South set in. Three feet of snow, blizzard con ditions, and wind chills of minus 30 degrees hampered oper ations and created dangerous conditions for soldiers han dling heavy equipment.

Alocal news story published shortly thereafter recounted theArmy’s difficulties:

“On top of everything, we had a problem with guys stay ing warm,” said Sgt. 1st Class Charles Kohut, platoon ser geant for 3rd Platoon, D Company, 1-87 Infantry. “They’re on top of those trucks in minus-degree winds, gloves getting soaked from snow and ice. We had to rotate them out to get warmforthreetofiveminutesbeforetheyhadtocomeback. The closest building for them to get warm in was a little less than a mile walk.”

Fort Drum is situated close to the Canadian border where harsh winters are common. The military installation is a sprawling facility encompassing 107,000 acres, employing 4,700 civilians, and training some 80,000 troops each year withnearly20,000Armysoldiersandtheirfamiliesstationed there.

72 Everett Road Albany, NY 12205 518-438-4444 abeletractor.com

460 Main Street Spencer, MA 01562 508-885-7085

10 West Road Hudson, NH 03051 603-324-1164

ahearnequipment.com

1750 Hackers Creek Road Jane Lew, WV 26378 304-786-9587 aesolutionswv.com

70 Upper Main Street Essex Junction, VT 05452 802-872-2666

ccrsalesvt.com

Page 52 • October 12, 2022 • www.constructionequipmentguide.com • CONSTRUCTION EQUIPMENT GUIDE
CONSTRUCTION EQUIPMENT GUIDE • www.constructionequipmentguide.com • October 12, 2022 • Page 53 AMERIC MADE FO A OR DEMOA SCHEDUL LOCAL T’S T SVIC ER THA O LE E ANY America, Inc©2021 S WITH A LOCAL DEA TODAY sanyamerica.co LER Y m SY155U adiusompactRC 12861 Route 30 Irwin, PA 15642 724-864-5147 sanyofpittsburgh.com 260 Shady Lane, Ste 3 Manchester, PA 17345 717-793-3102 scandforestry.com 5105 Lockport Road Lockport, NY 14094 716-625-SANY 165 Stone Castle Road Rock Tavern, NY 12575 845-295-SANY sanynewyork.com

Hyundai leads the industry with great warranties and a trusted dealer network that will support you.

Northeast

A. Montano

amontanoco.com

Saugerties, NY 845-247-0206

All Island Equip Corp allislandequipment.com

West Babylon, NY 631-643-2605

Butler Equip butlerequip.com

West Hartford, CT 860-233-5439

Chappell Tractor

chappelltractor.com

Milford, NH 603-673-2640

Brentwood, NH 800-616-5666 Concord, NH 800-358-6007

Correlli, Inc.

Dundalk, MD 443-503-5641

George & Swede georgeandswede.co

Pavillion, NY 585-584-3425

Highway Equip Co. highway-equipment.com

Dubois, PA 814-371-3600

Millstone TWP, NJ 732-446-7600

Troutville, VA 540-992-4150

Zelienople (Pittsburgh), PA 724-452-7800

Kahn Tractor & Equip Inc. kahntractor.com

N Franklin, CT 860-642-7596

Lorusso Heavy Equip, LLC lhequip.com

Walpole, MA 508-660-7600

Modern Group Ltd. moderngroup.com

Bristol, PA 800-866-3376

Allentown, PA 610-398-1101 York, PA 800-866-3376 Edison, NJ 800-866-3376

Hasbrouck Heights, NJ 201-288-1441

Pete’s Equip Sales & Rentals Inc. petesequipmentvt.com Morrisville, VT 802-888-5138

Quality Fleet Service, Inc. qualityfleetservice.com South Hadley, MA 413-213-0632

Seaview Equipment seaviewequipment.com Bridgeport, CT 203-330-0130

Shafer Equipment shaferequipmentwv.com Charleston, WV 304-550-9966

TB Equip & Rental tbequipment.net

Bangor, ME 207-262-0014

Tracey Road Equip, Inc. traceyroad.com

Albany, NY 518-438-1100

Binghamton, NY 607-775-5010

Marcy (Utica), NY 315-765-8746

Queensbury, NY 518-793-9688

Syracuse, NY 315-437-1471

Watertown, NY 315-788-0200

Whited Equipment whitedtruck.com

Auburn, ME 207-786-3673

Presque Isle, ME 207-764-7300 Saco, ME 207-391-6250

Page 54 • October 12, 2022 • www.constructionequipmentguide.com • CONSTRUCTION EQUIPMENT GUIDE hceamericas.com ver. 05 - 0522
AWARDED CONTRACT #032119-HCE

THE DOER’S DREAM

Loved for the features. Trusted for the performance. Hyundai articulated dump trucks have the power and performance — not to mention top-notch interiors, clear sight lines and handy tech — that make life on the jobsite easier. So you can do more without longtime fans.

See the Hyundai difference yourself at your local dealer or hceamericas.com.

CONSTRUCTION EQUIPMENT GUIDE • www.constructionequipmentguide.com • October 12, 2022 • Page 55

Volvo CE Launches Online Configuration Tool to ‘Build, Price’Electric Equipment

Volvo Construction Equipment has created an online tool that allows customers to “build and price” their ideal electric compact excavatorandwheelloader,mark ing the company’s latest advance mentsinbothe-commerceandthe introduction of electric construc tion equipment to the market.

Initially available in North America and Norway, the tool on the Volvo CE website lets users configure any of the electric com pact machines in Volvo’s lineup with the features they want and see the suggested retail price.

“Construction equipment cus tomers do a lot of research online already, and our configurator tool puts even more information at their fingertips,” said Jefferson Yin, director of new business models and commercial intelli gence, Volvo CE.

Since Volvo CE first opened pre-booking for its electric machines in 2020, customers have been able to reserve a machine online. Now, they also can configure their machine and instantly see the manufacturer’s suggested retail price (MSRP).

“We’re especially happy we can give them a price estimate because that’s something other brands aren’t doing. Customers will continue to be supported by their localVolvo CE deal er during the sales process and with ongoing support after their purchase.”

Simplifying Buying Process

Since Volvo CE first opened prebooking for its electric machines in 2020, customers have been able to reserve a machine online. Now, they also can configure their machine and instantly see the manufacturer’s sug gested retail price (MSRP).

The configurator tool will walk them through these options:

ï Package — There will be pre-built configuration packages to choose from: each with options tailored to different applications and customer needs.

Initially available in North America and Norway, the tool on the Volvo CE website lets users configure any of the electric compact machines in Volvo’s lineup with the features they want and see the suggested retail price.

ï Canopy or cab — The ECR25 Electric compact excavator includes a choice of canopy or cab. That option also will exist for the EC18 and ECR18 Electric compact excavators this fall (these are available for reservation now for a 2023 delivery). The L20 and L25 Electric compact wheel loaders come with a cab.

ïAttachments—Commonattachmentswillbeavailable to select, and a dealer will follow up on any special attach ments that may be needed.

ï Chargers — U.S. customers will have two options to choosefrom:standardandhigh-poweredchargers.Canadian customerswillbeabletopurchaseastandard600-voltcharg er.

Ultimately, the customer will see a price estimate (MSRP). Their information will go to a Volvo CE dealer in their area who will respond within 48 hours, providing more

detailed pricing and offering all the support and information they typically get from a dealer, such as an opportunity to demo the machine and financing options from Volvo Financial Services.

“This is the next step in our electromobility journey and digital transformation,” said Yin. “The goals are to improve the customer experience, provide an easy understanding of our industry-leading electromobility offering and ensure a seamless sales experience.”

StartingasapilotprojectintheUnitedStates,Canadaand Norway, the new touch point will serve as a test bed for future solutions that could be scaled up for other markets.

To try the electric machine configuration tool, visit www.volvoce.com/united-states/en-us/products/electricmachines and select the model you are interested in.

ALL ISLAND EQUIPMENT

39 Jersey Street • West Babylon, NY 11704 631-643-2605 www.allislandequipment.com

TRACEY ROAD EQUIPMENT

East Syracuse, NY 315-437-1471

Kirkwood, NY 607-775-5010

Henrietta, NY 585-334-5120

Adams Center, NY 315-788-0200

Utica, NY 315-765-8746 • 800-872-2390 www.traceyroad.com

HIGHWAY EQUIPMENT COMPANY

Zelienople, PA 724-452-7800

Dubois, PA 814-371-3600

McKean, PA 814-476-7755 Millstone Township, NJ 732-446-7600

www.highway-equipment.com

MARSHALL MACHINERY, INC.

South Abington Twp., PA 570-489-3642

Tannersville, PA 570-895-4884 marshall-machinery.com

Page 56 • October 12, 2022 • www.constructionequipmentguide.com • CONSTRUCTION EQUIPMENT GUIDE
EXPEC whilepro COKOBEL T MORE FROM Y vidingunrivaledopera machines lead the fi VATOCOUR EX A torcomfort–allsoyo e spormanceld on perf OR oucangetmoredonee er and fuewor poecs f eachday onomyl ec ouisit yV support outhan y while pr O dealeCOBEL OBELerful Kwof the po sibleer thought posvu e aled operviding unriv r local K o find the model buer t ork.O dealer netwC ee all backy’r. Plus, the ort all so yor c ou Get Moo help yilt t e and py the servicd b e done eou can get mor .e Doneor arts each da WESTCHESTER TRACTOR Brewster, NY 845-278-7766 www.wtractor.com BASCHMANN SERVICES, INC. Elma, NY 888-655-1101 www.baschmann.com COMPANY WRENCH, LTD. Williamstown, NJ 856-404-9618 www.companywrench.com ROBERT H. FINKE AND SONS, INC. Selkirk, NY 518-767-9331 www.finkeequipment.com CONSTRUCTION EQUIPMENT GUIDE • www.constructionequipmentguide.com • October 12, 2022 • Page 57

FragaleBuildingCorporation Grows BizFromHumbleStart

In accordance with local zoning regulations, three walls of the original 2,800-sq.-ft. home in Newton, Mass., had to remain intact so that an expanded 6,000-sq.-ft. home could be built.

Edoardo and Carlo Fragale are very proud of their company’s rich heritage.

Their father, Paul Fragale, emigrated from Italy in 1964. He established Fragale Building Corporation in 1971 and incorporated the company in 1992.

When Paul founded the company, it had a primary focus on the masonry trade, which he had learned from his father, Paolo Fragale, in his hometown of Calabria, Italy. During the company’s humble beginnings, Paul would work doing construction during the days and then as a dishwasher at night. Edoardo and Carlo joined their father’s company after completing their college educations.

Most of the work that the company does falls primarily into one of two categories: masonry or excavation. Edoardo focuses his energies on the masonry side of the company while Carlo focuses on the excavation and civil side of the business. The vast majority of the company’s work is in the metro Boston area, and for the past decade or so, much of their work has been in the building segment of the market.

Today, Fragale Building Corporation has diversified its business supplying services at every phase of the building process, adding construction management services, excavation, landscape design and a sister company — Eastern Mass Crushing — which does custom mobile crushing and

The three remaining sides of the original home were jacked up and the original basement of 7.5 ft. was excavated to 10 ft. The new residential area also will have a 10-ft. basement ceiling.

One of the workhorses recently purchased from Equipment East is a Doosan DX63.

recycling. They operate today with 20 to 25 employees.

Fragale recently worked on a project located in an upscale historical community in Newton, Mass. Because the homes in the community are deemed historical, building a new home is virtually impossible and reconditioning an existing home is uniquely regulated. In this particular case, a home that was built in the 1800s has been completely torn down except for the bare structure of three original walls and the original roof line. The local zoning rules dictate that you leave three original walls in place but you can do virtually anything you want building and expanding off the home’s original footprint.

In the case of this home, an addition is being added to the side of the home, along with a lower-level garage. The structure that was originally approximately 2,800 sq. ft. will exceed 6,000 sq. ft. when completed.

Fragale Building’s responsibilities on this project include all the site work, foundation work, civil engineering work, water and sewer drainage and the construction of a pool house for the swimming pool that will be a part of the completed project, along with all the hardscape work.

The terrain of the property has a downhill grade from front to back. The original basement of the home was 7-1/2-ft. Fragale has excavated out the original basement and

Page 58 • October 12, 2022 • www.constructionequipmentguide.com • CONSTRUCTION EQUIPMENT GUIDE
see FRAGALE page 60
Dan Clifford (L), sales representative of Equipment East, and Carlo Fragale of Fragale Building Corporation.

COMFORTABLE AND IN CONTROL.

Combining serious productivity with a redesigned cab and controls, John Deere 744L, 824L, and 844L Loaders give you the muscle you need to work comfortably all day long. The L-Series boasts increased horsepower, ergonomic programmable controls, and reimagined electrical and hydraulic routing. Plus, they’re built rock solid with rugged Deere diesels and high-capacity, heavy-duty axles, so you have the performance, reliability, and comfort to power through. Stop by or call us today.

CONNECTICUT

The W.I. Clark Company

Wallingford, CT 203/265-6781

Danbury, CT 203/775-1203

Plainfield, CT 860/546-4808 www.wiclark.com

DELAWARE

JESCO, Inc.

Middletown, DE 302/376-0784

MARYLAND

JESCO, Inc.

Baltimore, MD 410/687-1700

Delmar, MD 410/546-1090 Frederick, MD 301/874-5500

District Heights, MD 301/909-7799

Waldorf, MD 301/861-2323

MAINE

United Construction & Forestry

Hermon, ME 207-947-6786

Houlton, ME 207-532-6517

New Canada, ME 207-834-6701 Westbrook, ME 207-773-3777 www.unitedcf.com

MASSACHUSETTS

United Construction & Forestry North Oxford, MA 508-987-8786 North Billerica, MA 978-667-4345 Plymouth, MA 508-830-9997

NO. Swansea, MA 508-379-9810 Springfield, MA 413-543-5595 www.unitedcf.com

NEW JERSEY

JESCO, Inc.

118 St. Nicholas Ave. South Plainfield, NJ 908/753-8080 800/241-7070

1275 Bloomfield Ave. Fairfield, NJ 973/227-2221 800/321-8080

1790 Route 38 Lumberton, NJ 609/267-2020 888/217-0600

www.jesco.us

NEW YORK

Five Star Equipment, Inc.

60 Paul Rd. Rochester, NY 585/235-3011

1653 NY Route 11 Kirkwood, NY 607/775-2006

284 Ellicott Rd. Orchard Park, NY 716/662-2191

5835 East Taft Road North Syracuse, NY 315/452-4560

JESCO, Inc.

497 Fishkill Avenue Beacon, NY 845/831-1800 800/724-0725

East Jefryn Blvd. Deer Park, NY 844-482-0910

NEW YORK

United Construction & Forestry

Clifton Park, NY 518-371-5111 Gouverneur, NY 315-287-0703

NEW HAMPSHIRE

United Construction & Forestry Pembroke, NH 603-225-2769

VERMONT

United Construction & Forestry Springfield, VT 802-885-6840 Williston, VT 802-658-2121

PENNSYLVANIA

Five Star Equipment, Inc.

1300 East Dunham Dr. Dunmore, PA 570/346-1701

Route 97 Waterford, PA 814/796-2663

2585 Lycoming Creek Rd. Williamsport, PA 570/494-4030

Plasterer Equipment Co., Inc.

2550 E. Cumberland St. Lebanon, PA 717/273-2616 800/225-4001

State Rd. Sellersville, PA 215/258-5700 800/523-2209

400 Stoke Park Rd. Bethlehem, PA 610/867-4657 800/587-9790

640 Lowther Rd. Lewisberry, PA 717/938-6568 866/787-0001 www.plasterer.com

CONSTRUCTION EQUIPMENT GUIDE • www.constructionequipmentguide.com • October 12, 2022 • Page 59
110
www.unitedcf.com
46
www.fivestarequipment.com
3215

Fragale Building Corporation, EquipmentEastGrowTogether

ence for us.

has excavated in tiers the area of new con struction with terraced levels of foundation in a manner that the basement area of the new structure will have a 10-ft. ceiling. To do that, the existing floor and corners had to be jacked up prior to full demolition. After putting shoring staging in place, new con crete walls were poured against the existing walls. Crewsthenjackhammeredouttheold wall, lowered the building back into place and demolished the rest of the house.

A significant part of the project is an extensive drainage field, which collects the runoff water from the driveway, as well as water from the courtyard. The overall drainage for the property includes (32) 4x4 galleys.Allroofleadersrunintoamazeof8in.ADS N-12.

Most of the earthmoving equipment fleet owned by Fragale Building is made up of Doosan machines purchased from Equipment East. “We started working with Dan Clifford at Equipment East early on when we first started looking at expanding our excavating business,” Carlo Fragale said. “Dan actually showed up at one of our projects; his timing was perfect, and he got us to try a Doosan DX225 excavator.”

“We were thrilled with that machine and soon after we asked him to send us a DX235 zero tailswing machine that we purchased shortly after,” Carlo added. “Transitioning to doing business with a smaller dealership and theDoosanproductlinewasinitiallyatough sell for my dad. He had always done busi nesswith‘thebigguys.’ Danarrangedforus to meet the owner of Equipment East, Giovanni Albanese, and that made a differ

“Doing business together, one small busi ness owner with another small business owner who was fully vested in our success just made a difference. Doosan also does a tremendousjobputtingtogetherthefinancial packages to make the financing work for us.

“Every time we have shopped the financ ing, Doosan has been much better than any one else’s. Specifically, great lease programs with great buyouts at the end of the lease.

Currently, we own Doosan DX235, DX225, DX140, DX85 and DX63 excavators. We also own two Doosan DL220 loaders.”

In addition to the Doosan equipment, Fragale Building has purchased a Wacker Neuson tracked loader, two Wacker Neuson rollers and three Ramfos hammers from Equipment East.

“Oncewemadethedecisiontogrowwith Equipment East, we really have never looked back,” Carlo said. “Our business has experienced tremendous growth and we have watched their business grow from a single location to three locations. I know when I pick up the phone and need them, they are almost immediately here. As an example, we were working on a project at Endicott College, and we had a machine blow a pressure relief valve. I put a call in to Dan and literally within 45 minutes they wereonoursitewiththepartweneeded,and we were back to work shortly thereafter.”

For more information, visit www.fragale buildingcorp.com and www.equip menteast.com.

Page 60 • October 12, 2022 • www.constructionequipmentguide.com • CONSTRUCTION EQUIPMENT GUIDE
 CEG (All photographs in this article are Copyright 2022 Construction Equipment Guide.AllRightsReserved.) FRAGALE from page 58 Fragale’s tri-axle dump gets loaded from a Doosan DX140 zero tail-swing exca vator. MILTON CAT www.miltoncat.com Milford, MA 508-634-3400 Wareham, MA 508-291-1200 Cranston, RI 401-946-6350 Richmond, VT 802-434-4228 Scarborough, ME 207-883-9586 Brewer, ME 207-989-1890 Londonderry, NH 603-665-4500 Clifton Park, NY 518-877-8000 Syracuse, NY 315-476-9981 Batavia, NY 585-815-6200 Binghamton, NY 607-772-6500 North Reading, MA 978-276-2400

Frank Martin Sons, Inc.

Market Street

Kent Mills, ME 04744

Lakewood Road Madison, ME 04950 207-858-4748

Elliott & Frantz, Inc.

E. Church Rd.

of Prussia, PA 19406 610-279-5200

10421 Guilford Road Jessup, MD 20794 410-792-9134

6918 Wellington Rd Manassas, VA 20109 703-257-2381

38420 Sussex Hwy Delmar, DE 19940 302-846-3033 elliottfrantz.com

Chappell Tractor

Route 13 South Milford, NH 03055 603-673-2640

251 Route 125 Brentwood, NH 03833 603-642-5666

391 Loudon Rd. Concord, NH 03301

MA, NH & VT

Tracey Road Equipment, Inc.

Manlius Center Road East Syracuse, NY 13057 315-437-1471

1523 Route 11 North Kirkwood, NY 13795 607-775-5010

300 Middle Road Henrietta, NY 14467 585-334-5120

19598 Cady Road Adams Center, NY 13606 315-788-0200

9598 River Road Marcy, NY 13403 315-765-8746

CONSTRUCTION EQUIPMENT GUIDE • www.constructionequipmentguide.com • October 12, 2022 • Page 61 O Y NTHE OURR O ELINE EPUT EEVER INATO YY IS YDA us SelaS dereenigne p yt kaht . Ttt iee gW d tu no Yo ps kboJ Y innud rnp auup yo t ks tnoit Pytilatne ” menot dt ih a “w t nug onillo. Rdrawro g fnivou mo hg tnikan me by wehs w’tah fife ed mnr aetsae ft dt i eo g ps kenilemi . Trehguo g tnitte g . .gn ret f Afnidivor senihca w me sevog mie b .yltneic .retroh g snitteg g A su.mchiact I.cn MihcaneAyrmecirasCihcatiHonrtsucon motsur cud yon. Atd ienrae ev’ue yosuaceB hi e ivrese s d All Island Equipment 39 Jersey St. West Babylon, NY 11704 631-643-2605 allislandequipment.com
316
Fort
207-834-3171 491
fms-equipment.com
450
King
454
603-225-3361 chappelltractor.com Serving
6803
traceyroad.com

MAXIMIZE EFFICIENCY. MINIMIZE COSTS.

Hoffman Equipment

Tyler Equipment

Highway Equipment

DEALER LOGO

Alta Equipment Company

Woodco Machinery

Page 62 • October 12, 2022 www.constructionequipmentguide.com • CONSTRUCTION EQUIPMENT GUIDE CONSTRUCTION EQUIPMENT GUIDE • www.constructionequipmentguide.com October 12, 2022 • Page 63 City Address City, ST 12345 123.456.7890 City Address City, ST 12345 123.456.7890 City Address City, ST 12345 123.456.7890
website.com Volvo wheel loaders simply offer more — more power, more fuel efficiency and more uptime to improve your bottom line. Spend less and increase your profits with a versatile, reliable Volvo loader that’s ready to help you take on your toughest jobs. Learn how Volvo wheel loaders can help you lower your operating costs for a better ROI. Contact your nearest XXXX location today.
Experience faster cycle times while staying comfortably productive. Contact your loca dealer:
& Supply Co. www.hwyequip.com Harrisburg, PA 717.564.3031 Drums, PA 570.788.1127 Ephrata PA 717.859.3132 Lock Haven, PA 570.769.1070
www.hoffmanequ p.com Corporate Headquarters Piscataway, NJ 732.752.3600 Deptford, NJ 856.227.6400 Lionville, PA 610.363.9200 Bronx, NY 718.822.1180 Medford NY 631.207.2900 Rudd www.ruddequipment.com Pittsburgh, PA 412.741.1731 Clearfield PA 814.765.8500 Louisville, KY 502.456.4050 Charleston WV 304.755.7788
www.tylerequ pment.com East Longmeadow, MA 413.525.6351 Be lin CT 860.356.0840
AltaEqu pNY.com Syracuse, NY 833-NY-ALTA-1 Albany, NY 833-NY-ALTA-2 Batavia NY 833-NY-ALTA-3
www.woodcomachinery.com Headquarters Woburn, MA 781.935.1919 Avon MA 508.584.8484 Smithfield, RI 401.942.9191
Page 64 • October 12, 2022 • www.constructionequipmentguide.com • CONSTRUCTION EQUIPMENT GUIDE

Aggregate Production and Recycling Section

Well-Known Name Builds SuccessfulAggregate Business

Sammy Petrowsky, well-known in New England as the founder and president of Sammy P Auction Services, has wanted to get into the aggregate business for some time; in 2020, the right opportunity came along for him to make his move.

Petrowsky found the right property located at Millbrook Road, Plainfield, Conn., and he found the right individual to

run his operation, Richard Cheney, who has decades of experience in construction equipment and aggregate production.

The company was named Sammy P Inc.

The next step called for putting together the right spread of aggregate processing equipment to maximize efficiency and production levels. Several different aggregate plants were brought into the site in a search to find what setup

would be ideal for the type of aggregate, the conditions at Millbrook Road, and the type of product whose goal it was to produce, namely a high-quality sand for asphalt production.

In came Graham Wylie with the new Titan model 2300 from Powerscreen New England. The Titan 2300 was so new that the plant that ended up in the Sammy P Inc. plant was the first of its kind to ever arrive in the United States.

Powerscreen is among the world’s leading providers of

Another key element to the high production levels of the Titan 2300 is the 60-in. primary conveyor that moves materials from the screen deck, the largest of its type in the industry.

A series of tracked conveyors stockpile materials throughout the site.

Pages 65-88
For more information on crushing, screening and recycling equipment, visit CEG's Web site at www.constructionequipmentguide.com
Richard Cheney (bottom L), Sammy P Inc. plant manager, and Graham Wylie (bottom R), Powerscreen New England sales rep; with Sammy Petrowsky, president of Sammy P Inc.
see AGGREGATE page 70

W.I. Clark Company www.wiclark.com

17 Eagle Road Danbury, CT 06810 203-775-1203 • 866-675-2120

80 Pratt Road Plainfield, CT 06374 860-546-4808

30 Barnes Industrial Park Road Wallingford, CT 06492 203-265-6781

Company Wrench www.companywrench.com

2636 S Black Horse Pike Williamstown, NJ 08094 855-562-3526 • 856-404-9618

RELIABL STRONG E

EFFICIENT. E.

Highway Equipment Company

www.highway-equipment.com

4690 Route 219 DuBois, PA 15801 814-371-3600 • 877-888-4326

5846 West Road McKean, PA 16426 814-476-7755 • 866-476-7755

22035 Perry Highway Zelienople, PA 16063 724-452-7800 • 800-222-8798

Woodco Machinery Corporation www.woodcomachinery.com

Headquarters 22 North Maple Street Woburn, MA 01801 781-935-3377

140 Wales Avenue Avon, MA 02322 508-584-8484

3 Rocky Hill Road Smithfield, RI 02917 401-942-9191

All Island Equipment www.allislandequipment.com

39 Jersey Street West Babylon, NY 11704 631-643-2605

Page 66 • October 12, 2022 • www.constructionequipmentguide.com • Recycling Section • Construction Equipment Guide F-SERIES mhl375
.
l Dior r © 2019 Terex Corporation. Fuchs is a trademark owned by Terex Corporation or its subsidiaries.
Construction Equipment Guide • Recycling Section • www.constructionequipmentguide.com • October 12, 2022 • Page 67 tPleas s i d MounAe e a ErieA PAfontell P rn lle PA e mp o S P C h b 0 c P 8-d • Camp Hill, P CBCon-Agg, a division of Cleveland Brothers www.cbc nagg.com 2009 State R PA A | 88 -7725-4903 on, P , P , P field, P V0 g, P g, P airvilleA , P a, P 4 V x, P , P 7 , P 1220 Morea Rd Barnesville PA A 1755Progress Dr Belle 400 4th St Blawno PA A 6286 W Veet Memorial Bridgeport, WV 1307S2ndSt 43326 Oregon Pike Ephr t PA A 3950 Depot Rd 336 F Avve Harrisbur PA A 5300 Paxton St Harrisbur PA A 10225NEagle VaalleyRd 18516 US-6 Mans PA A 309 Foothills Ln asant PA A 4565 William Penn Hwy Murrysville PA A 441 Route 315 Hwy Pittst PA A 5541BenedumDr 19e 2out5 R310dnlee RBrow , P Indiana, P 4 , P d, P , P g, P PT ss A arfield, P 1307 S 2nd St Cle PA A 11 Progre Avve Cranberry Twwp., PA A 100 Commerce Dr Ebensbur PA A 35 Br nleeR Eighty Four PA A 5 N Eagle Howar PA A 190 Earnhardt D Hunker PA A 145 5 Rose St PA A 5R e2 Kane PA A veland90 Cle1 n, PW , P , P ey Rd Dr 5541 Benedum Dr Shinnston, WV 168 Industrial Park Rd Somerset PA A 2955 Stewart Dr State College PA A 90Cle eland Bros. Rd Waatsontow PA A 0LTT2kootracec Loto OutMets ok k® L apacitye c30% mor 00HPX™ 725102BeekmantownRd ehall, P ennialA855 Cent Avve Piscataway, NJ 732-885-5555 650 S Egg Ha Hammonton, 609-561-030 2 B n R Whit PA A 610-261-4887 3 www.foleyinc 0PulaskiHwy 30 9 4 ensalem, P 7rbor , NJ 08 29755Galloway Rd B PA A 215-63 43300 0 Pulaski Hwy Bear, DE 022-328-4131 c.com 86075500755831 4 g 6 7 2 7 hmer Union A 6 BrushA6 5 4 www.hopenn 122Noxon Rd Poughkeepsie, NY 84 4552-1200 99 Avve Bronx, NY 718-8633-3800 660 Avve Holtsville, NY 1- 8225 New In CT•Scott Gilligan, 86 In NY•Kevin Kretsc r, , 01 4 r n fw owt forms thaplatf fficiencs high fuel eensure onveyowide cs andchassi with a 2s equippedand i eatuX fLTT200HPkootracL e-with pr ok k L old do b 066684 84 n.com 783 Bloomingburg Rd Bloomingbu g, NY 455-733-6400 5 Richard St wington, CT 666 84 60-461-6534 646-315-2284 om/lokotrack. om orve.mogroup.ct lioom awrvirtual shosit ourvior orstributec dit oduction.s praggregateapacityor high ceens fcrs and s therwith oombinationcrusher in certiaryor tyeced as a s k.bed trucwe on a loansporting in one piecor tr ervicee sexxtensivasye made etion aransportae and tr. Servicy. ve-belt crusher drivect, and diroughpute high thracilitats fr dutyya. Heapacityor 30% higher cwing feen, alloe-scrk prdec one crusher00™ c® HP2dbergec Noroto OutMetsfficients an eure -screen vy cy with e ondary 2 A9 www.whitneyandson.com 95 5 Kelley Avve • Fitchburg, MA 01420 800-2445-5472 • 978-343-6353 | info@whitneyandson.com mogroupcom oupcot mogre aarn morle oo OutMetsyourContact sk mobile crusherkootracL et usss bePXXiLTT2The L 00HP ok

Astec Industries Launches GT2612V

Mobile High Frequency Screen Plant

The mobile GT2612V is manufactured on a heavy-duty, welded steel main frame with a channel cross section. A walkway around the screen and remote grease lubrication for ground-level access make maintenance simple.

Astec Industries’ Materials Solutions Group has launched its newest mobile high frequency screening plant, the GT2612V.

The plant features a 2612V VariVibe high frequency screen. The two-deck, 6 by 12 ft. (1.8 by 3.7 m) screen uses a unique rotary tensioning system that allows for some of the quickest screen media changes on the market, giving producers more uptime, according to the manufacturer.

The 2612V also has deck-mounted, variable speed hydraulic vibrators, a hydraulic mechanism for varying operating angles, a fines collecting hopper, top and bottom deckdischargechutesandanaggregate spreader. The high frequency screen can quickly and efficiently size crushed stone, recycled asphalt pavement, sand, gravel, coal and a variety of other materials.

The mobile GT2612V is manufactured on a heavy-duty, welded steel main frame with a channel cross section. A walkway around the screen and remote grease lubricationforground-levelaccessmake maintenance simple.

The plant includes a large hopper with a capacity of 8 cu. yds. that is equipped with 6-in. sloped grizzly openings and a remote tipping grid. The hopper also includes foldable wings and hydraulic support legs. Thevariable-speed,48-in.widebelt feeder features a high-torque hydraulic drive, full length impact bed, rubber lagged head pulley and self-cleaning wing tail pulley.

The screen plant is equipped with four conveyors: a delivery conveyor, two side conveyors and a fines conveyor. All conveyors feature a variable-speed hydraulic drive and easily fold for transport. The

GT2612V is powered by a Caterpillar Tier IV Final, 136 hp (101.4 kW) engine, while engine mounted hydraulic pumps operate all plant functions. The plant includes a PLC control system with pendant remote controls for the tracks.

Additional options for the GT2612V mobile plant include: engine alternatives (Caterpillar Tier III and Stage V) 15-ft. hopper/feeder in lieu of standard for additional capacity, heavier-duty grizzly section with replaceable grouser bar cartridge, vibrating grid, bridge breaker, vinyl dust cover, standard steel screen cloth, engine enclosure filter kit, engine block heater, immersion heater, wireless track remote, telematics system, autogrease system and more.

For more information, visit www.astecindustries.com.

HAND-FED EQUIPMENT/ SKID

ATTACHMENT DEALERS

Stephenson Equipment, Inc.

Butler, PA 724-865-9221

Ebensburg, PA 814-886-5191

Harrisburg, PA (HQ) 800-325-6455

Wilkes-Barre, PA 866-667-6756

Robert H. Finke & Sons, Inc.

NY 12158 518-767-9331

Bobcat of Saratoga www.bobcatofsaratoga.com

1279 Route 9 ï Gansevoort, NY 12831 518-798-9283

Westchester Tractor, Inc.

Westchester Tractor, Inc. www.wtractor.com

60 International Blvd ï Brewster, NY 10509 845-278-7766

LARGE & SMALL EQUIPMENT DEALERS

(The Beast, Whole Tree Chippers, Sawmill / Chipmill Chippers, Track Carriers, Brush Chippers, Stump Grinders, Skid Steer Attachments)

Stephenson Equipment, Inc.www.stephensonequipment.com

Butler, PA 724-865-9221

Ebensburg, PA 814-886-5191

Harrisburg, PA (HQ) 800-325-6455

Wilkes-Barre, PA 866-667-6756

Modern Group, Ltdwww.moderngroup.com

Headquarters: 2501 Durham Road ï Bristol, PA 19007 855-299-7698

75 New Street ï Edison, NJ 08837 800-846-5840

Route 17 North

Hasbrouck Heights, NJ 07604 800-233-0197

Page 68 • October 12, 2022 • www.constructionequipmentguide.com • Recycling Section • Construction Equipment Guide
YEE-O
STEER
(Brush Chippers, Stump Grinders)
www.stephensonequipment.com
www.finkeequipment.com 1569 US Route 9W ï Selkirk,
112-128
ï

LARGE EQUIPMENT DEALERS

6248 Webster Rd. Cowen, WV 26206 304-226-3299

304-226-3067

Beaver, WV 304-255-1525

Cross Lanes, WV 304-204-1818

Fairmont, WV 304-534-5454

Norton, WV 304-636-6421

Ashland, KY 606-327-1709

Pikeville, KY 606-432-0321

Marietta, OH 740-373-5255

Butler, PA 724-865-9221

Ebensburg, PA 814-886-5191

Harrisburg, PA (HQ) 800-325-6455 Philadelphia, PA 800-220-4033

Wilkes-Barre, PA 866-667-6756

New

Road

Hadley, MA 01075 413-213-0632

Construction Equipment Guide • Recycling Section • www.constructionequipmentguide.com • October 12, 2022 • Page 69 YEE-O ed ChiCapacity1 NTIMI ty Hand-F5” I py ipper pp T A F to m m s y RE NO MA REES,BRANCHES,LIMB ATTCH FORA BAN rom roadways to right-of-w o road clearing, get your wo more efficiently than ever be machinery! Choose from diff izes to suit your needs. Cal oursortorequestademon S,AND STUMPS DIT® ays, lot clearing rk done faster and fore with Bandit® erent styles and l today to reserve nstration T ours or to request a demon rack Carrir rie rier M BTC-300 BTMODEL B T W M Whole T pp Slow Sp K KTIMP p M• Remus, IN 750 FINDUSONLINE 6750 Millbrook Rd. 781-800-952-01I 49340 • BANDITCHIPPERSCOMWWW kSGidFIND US ONLINECOMWWW.BANDITCHIPPERS. rack Stump Grinderp
(The Beast, Whole Tree Chippers, Sawmill / Chipmill Chippers, Track Carriers) Leslie Equipment Company www.lec1.com
Fax:
Stephenson Equipment, Inc.www.stephensonequipment.com
Quality Fleet Service, Inc.www.qualityfleetservice.com 548
Ludlow
South

For Sammy P, Production Rises, Fuel Use Holds Steady

The 1-1/2 in. minus product is stockpiled.

The quarry’s primary product is dry screened sand that meets Connecticut DOT specs for asphalt.

With the right soil conditions, the hopper width can be expanded to receive greater volumes of material.

mobile crushing and screening equipment and the new Titan 2300 is a new scalping screen designed to provide a cost-effective solution for larger applications.

The Titan 2300 is a completely new machine to Powerscreen in terms of concept and design. The massive 64 -in. oversized belt feeder, which moves material from the 6- by 20-ft. deck immediately gave Sammy P’s operation significantly higher production levels. Powerscreen of New England had promised an increase of production of at least 50 percent. In fact, the production levels increased significantly more, which also resulted in an over 50 percent cut in fuel consumption.

“The new Titan plant had the same engine, thus the same fuel consumption as our old plant, thus the direct savings in fuel cost versus production,” Cheney

Stockpiles of dry screened sand that meets Connecticut DOT specs for asphalt.

The Titan 2300’s 6 by 20-ft. screening deck receives a massive amount of unprocessed material and is largely responsible for Sammy P Inc.’s dramatic increase in production levels.

Page 70 • October 12, 2022 • www.constructionequipmentguide.com • Recycling Section • Construction Equipment Guide
An overhead view of the Sammy P Inc. spread. Three conveyors from the Titan 2300 feed a network of tracked conveyors that process material to stockpiles throughout the pit.
AGGREGATE from page 65 see AGGREGATE page 78
Construction Equipment Guide • Recycling Section • www.constructionequipmentguide.com • October 12, 2022 • Page 71 THE MOST MATERIAL HANDLING MACHINES IN NEW ENGLAND SCREENING CRUSHING CONES IMPACTORS CONVEYORS TROMMELS WASHING RECYCLING USED AND NEW MACHINERY RENTALS AND FINANCING AVAILABLE CALL TODAY! 1-800-53-CRUSH Over 100 Machines in Stock Family Owned and Operated for over 20 years Call for Parts Today 140 Nutmeg Road South South Windsor, CT 06074 51 Veterans Drive Loudon, NH 03307 SCREENING CONVEYORSCRUSHING IMPACTORS TROMMELS 1-800-53 CRUSH WWW.POWERSCREEN-NE.COM LARGEST DEALER IN NEW ENGLAND ROCK SOLID SERVICE WE CRUSH YOUR ROCKS ROCK SOLID SERVICE WE CRUSH YOUR ROCKS
Page 72 • October 12, 2022 • www.constructionequipmentguide.com • Recycling Section • Construction Equipment Guide
Construction Equipment Guide • Recycling Section • www.constructionequipmentguide.com • October 12, 2022 • Page 73 CRUSHING | SCREENING | RECYCLING | SALES | RENTAL | SERVICE | SPARES 2022 MCCLOSKEY 516RE,  CAT engine, Hydraulic Tipping grid ready, 5 Hours................................$Call 2022 MCCLOSKEY 512A,  CAT engine, 5 hours...... $Call 2022 MCCLOSKEY R155,  CAT motor, 5 Hrs $Call2022 MCCLOSKEY 516REG,  CAT engine with Hydraulic Tipping grid........................................$Call 2022 MCCLOSKEY ST80T, Tracking Conveyor, CAT engine..........................................................$Call TEREX PEGSON 1300 AUTOMAX, Complete with 3-axle Carrier, Feed Bin & Feed Conveyor, Discharge Conveyor underneath Cone and Full Electrical Switch Gear....................................$Call 2015 MCCLOSKEY R155, 2,800 Hrs, 3-way Scalping Screen, Finger Decks on the top. In Excellent Condition............................................................$Call 2021 MCCLOSKEY S190 3D, the most advanced and innovative 20’ x 5’ mobile Screener..............$Call 2021 MCCLOSKEY ST80, Road Towable, Wheel Radial Stacker, Tier 4 CAT engine......................$Call 2021 MCCLOSKEY ST100  Road Towable, Wheel Radial Stacker, CAT engine, 0 hours....................$Call EXTEC ROBOTRAC, S/N: 5054, In good running order with low hours............................................$Call Gencor Asphalt Crusher,  Skid-mounted electric drive..............................................................$14,500 2016 SANDVIK QA441,  20x5 Double Deck, Double Box, 3-way Split, CAT engine 4.4Hp. New Belts$149,000 METSO R224STD, S/N: R2240002, 3-way Screener, In good Condition................................................$Call High Energy Durable Screener High Energy Durable Screener High Protection Screener Power Radial Stock Conveyor 2021 MCCLOSKEY R155, 510 hours, Nice!....$Call 2005 MCCLOSKEY 728RE, radial fines conveyor and oversize conveyor, Being totally refurbished $Call 2010 MCCLOSKEY 621RE, CAT engine, 2329 Hours..................................................................$Call Weekly Special!
Page 74 • October 12, 2022 • www.constructionequipmentguide.com • Recycling Section • Construction Equipment Guide

M

AND

D TIME

Construction Equipment Guide • Recycling Section • www.constructionequipmentguide.com • October 12, 2022 • Page 75
VE
SAV
MONEY eused.o be readyterial , it trortavcaxouretalled ortavcaxoureor USHER BUCKETCR o highe inttasormswfans 667Booth O30 ONCRETEORLD OF CW omc.mbcrusher @fo OMCUSHER.MBCR anget roducSee the whole pr REDUCE>>REUSE>> 23ONEXPO20C on: RE
Page 76 • October 12, 2022 • www.constructionequipmentguide.com • Recycling Section • Construction Equipment Guide tdil capable of screeningScalper 77C ent or own.to r vailableommels aTr eens andMobile Scr mulchandcompost.processtopsoil, – ideal for skid steers toMight II sand and gravel. soils,designed to separate rock, – double deck,yder 516TSp product separation. – perfect for twoScapler 107D aggregates and more.so s, commonroetractors Business.Women’e are a CertifiedW 585.202.2067 See what we can do for your job-site! technical support. Complete.exceptional durability American Made Grade 80 steel for compost and green waste. – separates topsoil,rommel 612TTr mulch and compost.process topsoil, TION SINCE 1966TAMERICAN MADE INNOVA Albany BinghamtoNY: n Buffalo Campbell Rochester WorceWoburnMA:Syracuse HartfordCT:ster Keep the screening revenue where it belongs…in your pocket Tech Specs • 12’x 5’ Trommel Screen • Stockpiles to 14ft • Variable Speed Feeder • Diesel/Hydraulic Drive System Ship Anywhere in the USA Units in Stock Today Best Bang for your Buck Roto-Screen 454 Trommel Screener Compact and Productive Tow with a Dump truck High Production screener for Topsoil, Mulch, Compost, Recycling and more The Contractors Machine
Construction Equipment Guide • Recycling Section • www.constructionequipmentguide.com • October 12, 2022 • Page 77 ostMewithship or pore looking fou ar ytherhe W Getthebig oyexperiencs and eoductec has the pr o Out one crushs, crswed jat-mounkacable tr rt crusher picture e. Sincore looking fou ar yhitneWs, scrs or sher eener s.egaaggr/ac.ostt mea om/ Meor the& Son f yhitneWacttonC yhe onlT.one crusher00HP™ c T2LT L yhitneWalls ceroduce pr tA om 2 72475-42 -2800- 547 021 04g, MAhburcitF enuev AvyelleK5 95 9 A adeedtreregis a r i oEngland. Lwf Neo ortributsec diOut s a& Son iyhitne earn morou, or le yort fsrightiolutionthaec s o Oute ad legal.os rtit tha eed crusher on the markt-mounkactr crusher andw06™ jaT1LTooko LMee thes likoductor pr & Son f k® L W femark o k®actr ook erving alls ost Me andsyhitnew@of in omcon.s orec Co OutMe tion.arpor

Powerscreen’s Titan 2300 Shines for

Sammy P Inc. in Plainfield, Conn.

JESCO Inc.

New Jersey & New York

118 St. Nicholas Ave. South Plainfield, NJ 08070 (908) 753-8080

1790 Route 38 Lumberton, NJ 08048 (609) 267-2020

1275 Bloomfield Ave. Fairfield, NJ 07004 (973) 227-2221 (800) 321-8080

497 Fishkill Ave. Beacon, NY 12508 (845) 831-1800 (800) 724-0725

110 East Jefryn Blvd. Deer Park, NY 11729 (844) 482-0910 www.jesco.us

GROFF TRACTOR & EQUIPMENT, LLC Pennsylvania

6779 Carlisle Pike Mechanicsburg, PA 17050 (800) 33-GROFF (717) 766-7671

Ephrata, PA (717) 738-0220

State College, PA (814) 353-8400

Cranberry Twp., PA (724) 898-1535

New Stanton, PA (724) 755-0124 Ebensburg, PA (814) 472-7300 www.grofftractor.com

said. “Our production levels increased, and our fuel consumption stayed the same. It was a win all the way around.

“The screening deck on our previous screener was 5 by 16. The difference between the 5 by 16 and the 6 by 20 on the Titan 2300 was astounding,” Cheney added. “ We see even additional fuel savings with the number of cycles the excavator has to make to feed the hopper and the number of trips the loader has to make to carry away materials.

“We finally have our excavators and loaders paired up with the right size plant. Under the right conditions with dry material, we can open up the hopper extensions on the Titan and increase our production levels even more.”

“What’s really ideal about this machine is that the 60-inch screen conveyor to the screening deck is perfectly paired to handle the volume going into the hopper and the screens in the lower deck are perfectly paired to handle the volume coming from the upper deck,” Petrowsky added. “So, you can really maximize your production levels.”

According to Cheney, “Depending on type of material, before the Titan their plants were producing 750 ton of sand in an 8-hour day compared to their current production levels of 1,250 ton plus in a typical 8-hour day. With a hopper capacity of 14 yards the ability to increase production levels was immediate and substantial.”

The Titan 2300 is primarily producing three products, most importantly a dry screened sand that is Connecticut DOT approved for direct asphalt use. They also produce a 11/2 (+/-) in. stone and an 8-in. to 2-in. minus gravel. The 8in. to 2-in. minus gravel is sold in bulk for re-crushing for many other uses.

According to Cheney, “It’s quite plausible that the Titan could hit significantly higher production levels, perhaps as high as 200 to 250 tons per hour of sand if the material fed was less rocky. Unfortunately, their sand condition is quite stony and is always going to limit the production levels. Because the new machine has 42-inch side conveyors, the plant is now capable of handling much larger volumes of rock.The term for our type of sand is bony and bony material takes longer to process.

Wylie added “When I evaluated Sammy P’s situation one of the challenges I identified was precisely the amount of stone in his sand, and the width of his conveyors on the existing plant. His existing plant had 35-inch and 55-inch stone conveyors, and they were running at full capacity. My research showed that the Titan machine had stone conveyors measuring 42 inch and 64 inch with twin drive. Therefore, the Titan machine would be able to process a much greater volume of sand for Sammy Pbecause it could handle removing a greater volume of stone.”

Cheney continued “There were a lot of factors in determining what plant to buy. This decision was relatively easy. The Titan was by far the best engineered plant to handle the type of material we are processing and to achieve the spec we are looking for.”

“We’ve known Seamus Sheelan, president of Powerscreen New England, and Graham Wylie, his sales rep, for a long time. Certainly, more than 20 years. So, I was confident I was dealing with people who are stable, who have a great reputation, and were going to be here when I need them,” Petrowsky concluded.

MONROE TRACTOR

New York

1001 Lehigh Station Road Henrietta, NY 14467 (585) 334-3867 (866) 683-5338

5035 Genesee Street Buffalo, NY 14225 (716) 681-7100 (800) 834-9606

7300 Eastman Road N. Syracuse, NY 13212 (315) 452-0000 (800) 287-5286

8194 State Route 415 Campbell, NY 14821 (607) 739-8741 (800) 866-8912

6 Equipment Drive Bingamton, NY 13904 (607) 754-6570 (866) 321-4277 www.monroetractor.com

UNITED CONSTRUCTION & FORESTRY

New England 80 Southbridge Road Rt. 20 North Oxford, MA 01537 (508) 987-8786 (800) 922-8295

2397 GAR Hwy, Rt 6 & 136 North Swansea, MA (508) 379-9810 (800) 456-6885

88 Camelot Drive, Unit 42 Plymouth, MA (508) 830-9997 (800) 916-0997

1620 Page Blvd. Springfield, MA (413) 543-5595 (800) 734-5594

4 Sterling Road North Billerica, MA (978) 667-4345 (800) 531-2266

98 Sheep Davis Road Pembroke, NH 03275 (603) 225-2769

300 Clinton Street Springfield, VT 05156 (802) 885-6840 www.unitedcf.com

Page 78 • October 12, 2022 • www.constructionequipmentguide.com • Recycling Section • Construction Equipment Guide
 CEG (All photographs in this article are Copyright 2022 ConstructionEquipmentGuide.AllRightsReserved.) A Komatsu PC490 with an
oversized bucket
is perfectly matched to keep the
Titan
operating
at peak
efficiency. AGGREGATE from page 70
Construction Equipment Guide • Recycling Section • www.constructionequipmentguide.com • October 12, 2022 • Page 79 NRAIRTGEG W POMANYOUC P KLEEMAN ONE TWO NG NRUSHIA C GRET A OPOWE DCREENINGNS RESUT L RFULPR PLANTS . RODUCTS. MEELKFFEDNAICIENCY ANCE mocyllamitp eobna sctnal gpnineerc dsnagnihsurcNNA nAtcudorpdneytilauq eataercotdenibm stnalN pNAMEEL h K. Wsnoitacilpp e asrevid dnt acapm, ie jawlibof mn ooitcele e svisnetxe . FFEDNAICIENCY.EANCE ·NEGTRIARICINC. P W Y luset re bhe tveihc l al’uo, y gnineerc d sns arehsur e cc gnineercd snagnihsurcN N , Thcoitny · Aaa W0 D306 A gnilcyce , renot l sarutan ns – it gniplacs se albaliav , astnal p mocyllamitpe obnasctnal 0060-10 ) 5516: (le Te107N 3 3 · T g p gtriw.wwwe .gnini d mna ep, osneerc g sniyfissal d cna dneytilauqe ataerco tdenib 1960-10 ) 5516: (· F m moc. ngroup tsoe mhp tn u tcudorp d ROBERT H. FINKE AND SONS Western VT & Upstate NY 1569 US Route 9W Selkirk, NY 12158 (518) 767-9331 www.finkeequipment.com CENTRAL EQUIPMENT COMPANY Maine 45 Dempsey Graves Stillwater, ME 04489 (888) 927-8762 (207) 827-6193 www.centralequipmentco.com ELLIOTT & FRANTZ, INC. DE, MD, VA & Southeast PA 450 East Church Road King of Prussia, PA 19406 (800) 220-3025 (610) 279-5200 www.elliottfrantz.com W. I. CLARK COMPANY Connecticut 30 Barnes Industrial Park Road S. Wallingford, CT 06492 (866) 675-2120 (203) 265-6781 www.wiclark.com

Recycling Today Events Hosts Inaugural Scrap Expo

R

ecycling Today Events held its inaugural Scrap Expo at the Kentucky Exposition Fairgrounds in Louisville Sept. 13 to 14. The event, with an attendance of nearly 800, attracted scrap, recycling and demolition professionals from throughout the United States.

The trade show portion of the event featured the industry’s leading equipment, service and product providers in an indoor exhibit area. The main attraction at the Scrap Expo was the equipment, with live demonstrations conducted in an outdoor exhibit area throughout the two-day event. Attendees were able to watch the material handlers, scrap shearing, baling and other material processing equipment while gaining some one-on-one time with factory and dealer representatives for in-depth insights into the equipment at work.

The Scrap Expo also featured a series of technical sessions sponsored and conducted by some of the leading names in the scrap industry. Topics included “Mobile Shear Maintenance” presented by Loren LaGesse, technical trainer of Genesis Attachments; “Material Handler Hydraulic System Maintenance” presented by Constantino Lannes, president of SENNEBOGEN and Colleen Miller, SENNEBOGEN national accounts and sales manager; “Baler Maintenance” presented by Ricardo Diaz, lead technician of Sierra International; and “Insights into Specifying the Right Attachments for Scrap and Demolition” presented by Bill Abraham, territory manager of Company Wrench.

Brett Ekart, CEO of United Metals Recycling and host of popular podcast, "A Scrap Life," joined Norman Wright, CEO of Stadium Auto Parts to provide insights into the scrap markets.

Sessions on scrap commodities were conducted by Davis Klein, senior vice president of Nonferrous Marketing/Alter Trading Corporation; Michael Diehl, president of Coremet Trading Inc.; Bobby Triesch, vice president of SA Recycling; and Brett Ekart, CEO of United Metals Recycling. The discussions, focused on “Red” metals (copper, brass and bronze) and ferrous metals, were moderated by Daniel Poris, vice president of Nonferrous GLE Scrap Metal and Zulma Herrera-Vakkur, manager of Ferrous Davis Index.

John Sacco, president and co-owner of Sierra International Machinery presented his popular podcast, “Pile of Scrap” with Jay Robinovitz, president and CEO of Alter Trading and Gordon Driscoll, GreenSpark Software co-founder and CEO gave a talk on software for scrap and auto dismantling.

Sponsors of the Scrap Expo includedAlter Trading Corporation, SENNEBOGEN, Company Wrench, US Conveyor, Genesis, Sierra, Steinert and Caterpillar.

more information visit scrapexpo.net.

Page 80 • October 12, 2022 • www.constructionequipmentguide.com • Recycling Section • Construction Equipment Guide
For
 CEG (All photographs in this article are Copyright 2022 Construction Equipment Guide.AllRightsReserved.)
(L-R): Colby Perkins of Company Wrench spoke with Kevin Bean of Allied Demolition LLC, along with Danny Seal, Jason Templeton and Bill Abraham of Company Wrench, to discuss the dealership’s lineup of JCB, Kobelco, Terex Fuchs and LaBounty shears and demolition attachments. (L-R): River Metals Recycling’s Mark Mullen joined SAS Forks’ Adam Lindley and Kyle and Michael Hamrick of Universal Salvage to talk about SAS Forks’ attachment and Builtrite handlers and grapples. (L-R): Noah Devine, Bob Hruby and Robert Jordon, all of Terex Fuchs, welcome attendees to their outdoor equipment demonstration. (L-R): Genesis Attachments’ Jeff Powell and Jon Fodor spoke with Rick and Dave Schoenlein of Schoenlein Trucking and Salvage.
see SCRAP page 86
Construction Equipment Guide • Recycling Section • www.constructionequipmentguide.com • October 12, 2022 • Page 81 350 Arona Road New Stanton, PA 15672 724-863-7000 www.murrysvillemachinery.com

Dealer for Eastern New York

Page 82 • October 12, 2022 • www.constructionequipmentguide.com • Recycling Section • Construction Equipment Guide EVOLUTION OF INNOVATION Innovative details, safety of the operator, simple handling - with optimal performance values at the same time. This is what KLEEMANN crushing and screening plants represent. The technical know-how and detailed knowledge of the technology is transferred directly to production when working together as a team. 1569 US Route 9W • Selkirk, NY 12158 (518) 767-9331 www.finkeequipment.com Now Your Kleemann
State!
Construction Equipment Guide • Recycling Section • www.constructionequipmentguide.com • October 12, 2022 • Page 83
Page 84 • October 12, 2022 • www.constructionequipmentguide.com • Recycling Section • Construction Equipment Guide Setting The Standard In Static Screening Since 1998 With the largest selection of adjustable bar grizzlys available anywhere YOU DON’T HAVE TO COMPROMISE Produce Many Products With A Single Grizzly Set the deck bar opening you need and produce the exact material required You don’t have to settle for reducer grates that only allow two sizes, usually too large or too small ï Deck Bar Adjustments In 1” Increments ï New Deck Bar Attachment System ï Safe / Self Cleaning ROCK RELEASE ï Easy Deck Bar Replacement 541-383-3700 / rocktough.com / 800-496-3431 SAMS & DUNNS Listed Rock Grizzlys is all we do, contact us anytime to discuss your rock screening needs. EVO ELLIOTT & FRANTZ, INC. WWW.ELLIOTTFRANTZ.COM 10421 Guilford Road Jessup, MD 20794 301/725-7394 Fax: 301/725-7361 38420 Sussex Highway Delmar, DE 19940 302/846-3033 Fax: 302/846-0763 12051 Tac Court Manassas, VA 20109 703/257-2381 Fax: 703/257-2383 450 E. Church Road King of Prussia, PA 19406 610/279-5200 Fax: 610/279-6366

BUILT

Construction Equipment Guide • Recycling Section • www.constructionequipmentguide.com • October 12, 2022 • Page 85 astecindustries.com
TO CONNECT Many Models, Endless Applications High volume wood waste recyclers know that when it comes to creating the highest volume products at the lowest cost per ton, Peterson horizontal grinders offer better fracturing, more accurate product sizing, and more throughput than any horizontal grinder on the market. New England, New York Metropolitan Area & Long Island www.barryequipment.com 508-949-0005 New Jersey www.gtmidatlantic.com 800-874-2659 Pennsylvania, Northern West Virginia & Western Maryland www.ClevelandBrothers.com 844-720-4CAT Upstate, Central & Western NY www.traceyroad.com 800-872-2390

Cat Builds New D1 Mulcher to Optimize Performance

Complete with its high-performance powertrain, closed-loop hydraulics and upgraded screening, the new Cat D1 mulcher is specially designed to optimize performance when clearing a mix of small- to medium-diameter materials.

Design-matched with the rugged Cat HM518 mulcher, the D1 mulcher clears a 72 in. wide strip on each pass, making it the right machine for right-of-way construction and maintenance, site development, tree management and firebreak clearing, according to the manufacturer.

The new mulcher is powered by the 77.6 kW (104 hp) Cat C3.6 Diesel Engine meeting U.S. EPATier IV Final/EU Stage V emission standards.An alternate emissions package for the C3.6 is available to meet Tier III-equivalent standards.

The machine’s lower sloping hood line improves visibility to the mulching head, allowing the operator to better assess the job site from the cab. Standard auto reversing fan purges debris from the radiator and enclosures, plus the hinged grill requires no tools to access the radiator for cleaning.

Isolating machine vibration from the operator to reduce fatigue, the Cat HM518 mulcher controls are mounted on the air-suspension seat. Inside the pressurized, heated

The D1 mulcher clears a 72 in. wide strip on each pass, making it the right machine for right-of-way construction and maintenance, site development, tree management and firebreak clearing, according to the manufacturer.

and air-conditioned cab, an intuitive operator interface features a 10 in. color touchscreen monitor with standard reversing camera display to help improve all-around visibility to the jobsite. An in-cab drum indicator offers quick glance of drum speed and direction to

help the operator manage ground speed and mulching productivity.

Featuring cladding material in high-wear areas, the new HM518 mulcher frame offers increased service life. Bolt-on wear plates deliver long wear life and are quickly

replaced.

Offering a drum speed range of 2,150 to 2,450 rpm, the drum’s 38 fixed teeth feature a single-bolt carbide tooth retention design for simple replacement. Its closed-loop hydraulic circuit includes load-sensing hydraulics to preventrotordamagewhenhittinganobstruction.

The HM518 mulcher has a 31 in. maximumliftheight,14.5in.maximumtiltand25degree maximum angle to either side.

Standard sweeps, screens, windows plus rear guard help to protect both the operator andmachinewhenmulching.Withitsspecially designed tractor platform, the D1 mulcher is balanced and rugged to increase efficiency when operating in challenging applications.

Contractors can choose between the conventional (XL) or low-ground-pressure (LGP) undercarriage design, offering 16 in. or 25 in. track shoe widths respectively, to increase flexibility and efficiency for working in soft underfoot conditions, on slopes and in rough terrain. To increase machine versatility, the new D1 mulcher can be equipped with an optional variable-pitch/angle/tilt (VPAT) blade in XL, LGP or Intermediate configuration.

For more information, visit www.cat.com.

Recycling, Scrap, Demolition Firms Meet at Two-Day Event

SCRAP from page 80

Page 86 • October 12, 2022 • www.constructionequipmentguide.com • Recycling Section • Construction Equipment Guide
Kyle Barton of SENNEBOGEN was kept busy speaking with attendees about the company’s material handling equipment. (L-R): GRYB International’s Jon Craft, Marylou Courtemanche and Mike Kane spoke with attendees about the company’s lines of material handling attachments. (L-R): Logan Kloeck and Andrew Mullen of the local Caterpillar dealer, Boyd CAT, joined Rich Knudson, Caterpillar product application specialist, while Jadon Kool is in the cab of a Caterpillar MH3040 wheeled material handler to give a demonstration. Al-Jon Manufacturing by C&C Machining’s Curt Spry was on hand to demonstrate the Al-Jon Series Twin-Ram 580CL car logger baler at the show.
Construction Equipment Guide • Recycling Section • www.constructionequipmentguide.com • October 12, 2022 • Page 87

UPCOMING SPECIALSECTIONS

ISSUE 22 Crawler Loaders, Dozers

AdClosingDate October13,2022 PublishingDate October26,2022

ISSUE 24 Trailers

AdClosingDate November10,2022 PublishingDate November23,2022

ISSUE 26 Compact Equipment

AdClosingDate December18,2022 PublishingDate December21,2022

ISSUE 2 Technology

AdClosingDate January5,2023 PublishingDate January18,2023

ISSUE 4 Excavators

AdClosingDate February2,2023

February15,2023

PublishingDate

SECTION Attachments & Parts

Werk-Brau NOX Tiltrotators Feature Compact Design

New Werk-Brau Nox tiltrotators provide 360-degrees of endless rotation with a tilt angle of 2 x 50-degrees allowing greater versatility with a wide range of attachments.

With a strong, compact design, this versatile tool transforms excavators into multi-functional carriers that work in deep trenches, under or between existing pipes and tubes, and in other confined space applications.

Ideal for use with fork tines, grabs, grippers, buckets, and more, this technology allow operators to complete projects without repositioning the carrier. This allows faster, safer, more efficient project completion, shaving up to 25 percent from the project time, according to the manufacturer.

ArangeofWerk-BrauNOXtiltrotators are available for excavators in various classes and categories, from 3 to 25 tons.

With integrated hydraulics and no components protruding from the compact design, the risk of damaging hydraulic cylinders, hoses or other components is very small. There are minimal wear parts, and only two fittings that require grease, so

maintenance time and consumables are minimized.

A special cast housing provides stability and a long service life, even in adverse con-

ditions.An elliptical rotary actuator provides a low overall height and a narrow width with no cylinders. The wider tilt angle allows greater flexibility. A robust, low-mainte-

nance worm drive is designed for difficult tasks. Industrial valves provide long service life.

Safety is assured due to the D-Lock coupler, which locks front and rear pins and does not require a safety pin. D-Lock couplers are to ISO 13031, Australian standard AS4772-2008, European EN474 standard, and all major contractor policies.

The NOXPROP+ control system provides convenient and effective control of the NOX tiltrotator, quick coupler and mounted attachments. Easily retrofittable for every excavator, the attached touchscreen allows individual assignment of functions and easy menu navigation.

Integrated GPS, LTE, Bluetooth and WiFi antennas link the machine to the digital working world. When combined with SmartTag, the system can be connected to fleet management systems. NOXPROP+ is pre-equipped for future assistance functions such as dynamic scales, 2D height and depth display, BPM and fleet management or copilot systems. For more information, call 800/537-9561, e-mail sales@Werk-Brau.com or visit www.Werk-Brau.com.

Ditch Witch MT164 Brings Power, Flexibility to Job Sites

Built to help power and fiber-optic contractors easily create a clean, narrow trench in one pass, the new Ditch Witch MT164 microtrencher attachment offers maximum compact cable installation performance.

Equipped with a standard hydraulic plunge and option to offset the frame, the MT164 provides variable depth control and gives contractors the ability to cut right up next to a curb, increasing productivity. The MT164 can trench up to 2 in. wide by 16 in. deep, allowing crews to cut deep enough to get through a standard-sized curb. It also can be set up for a push or pull application depending on the job site.

The microtrencher’s compact footprint provides operators increased flexibility with minimal disruption to surrounding

infrastructure in urban areas. Additionally, contractors can more easily cross-cut roads, trenching from curb to curb.

The MT164 is part of a complete microtrenching system that includes a construction-grade lineup of the Ditch Witch SK3000 stand-on skid steer and the Ditch Witch HX75 vacuum excavator.

For more information, visit www.ditchwitch.com/trenchers/micro/mt164.

Equipped with a standard hydraulic plunge and option to offset the frame, the MT164 provides variable depth control and gives contractors the ability to cut right up next to a curb, increasing productivity.

 Pages 89-96 For more information about these attachments and more, visit our Attachments Section on our Web site at www.constructionequipmentguide.com
A
range
of Werk-Brau NOX tiltrotators are available for excavators in various classes
and categories, from 3 to 25 tons.

Fecon’s New 135VRT Mulcher Delivers More Horsepower

Fecon’s 135VRT CTL, which is available through select Vermeer dealerships, features a 132 hp 3.8 LCummins Tier IV Final engine that delivers 10 percent more horsepower than its predecessor 125VRT, while a 50 gpm auxiliary attachment flow provides 119 hp to the Bull Hog forestry mulcher or other attachments.

A16 gpm reserve allows full machine control without loss of attachment performance. Designed for use in the woods, this new model features all steel hoods, and standard cage guard andlimbrisersforgreaterprotectionanddurability. A full forestry spec cab features ¾ in. polycarbonate front door and ½ in. polycarbonate side windows along with level 2 FOPS and a compete guarding package. A more spacious,

comfortable operator station includes an 8-in. color display. There are no cross bars on the doors or windows, providing unobstructed visibility.

Improved loader arm design also enhances attachment visibility. Equipped with a bite limiting rotor to maintain rotor RPMs, the 135VRT easily mulches material to 8-in. in diameter, according to the manufacturer.

This new model features 4,150 ROC with integrated counterweight or hydraulic winch kit for improved balance with Fecon Bull Hog mulchers.A52-gal. fuel tank allows nearly double the run time between fill-ups. Full coverage fuel tank guarding safeguards against damage while working, and improved sealing prevent debris ingestion.

Hinged belly pans and tilting cooler and condenser guards allow easier cleaning. Sealed fuse panels and improved wiring harness routing enhances durability.

Each 135VRT comes with a VM602SS Bull Hog forestry mulcher equipped with bite limiting rotor for a finer output while maintaining rotor RPMs. Rotor fitted with 30 carbide or double-sided tools.

For more information, visit www.Fecon.com.

Page 90 • October 12, 2022 • www.constructionequipmentguide.com • Attachments & Parts Section • Construction Equipment Guide
Each 135VRT comes with a VM602SS Bull Hog forestry mulcher equipped with bite limiting rotor for a finer output while maintaining rotor RPMs. Rotor fitted with 30 carbide or double-sided tools.
Construction Equipment Guide • Attachments & Parts Section • www.constructionequipmentguide.com • October 12, 2022 • Page 91

building the best mobile shears since 1977

TRACEY ROAD

Page 92 • October 12, 2022 • www.constructionequipmentguide.com • Attachments & Parts Section • Construction Equipment Guide
EQUIPMENT www.traceyroad.com Albany, NY 518-438-1100 866-740-8853 Kirkwood, NY 607-775-5010 800-370-9488 Queensbury, NY 518-793-9688 833-817-2917 Henrietta, NY 585-334-5120 866-950-6210 Utica, NY 315-765-8746 800-872-2390 Adams Center, NY 315-788-0200 888-335-0200 6803 Manlius Center Road East Syracuse, NY 13057 315-437-1471 800-872-2390 COMPANY WRENCH www.companywrench.com 2636 S Black Horse Pike Williamstown, NJ 08094 856-404-9618 855-562-3526
Construction Equipment Guide • Attachments & Parts Section • www.constructionequipmentguide.com • October 12, 2022 • Page 93 Do This? (800) 526-8538 Amulet.com It Can Now! Can Your Mini-Excavator... Quick Change from Excavator... To Rigid Boom, Universal Skid-Steer Tool Carrier! To Rigid Boom, Universal Skid-Steer Tool Carrier! XBoom Coupler® System Available for most late-model brands up to 13K-Lbs (800) 526-8538 Amulet.com It Can Now! Can Your Mini-Excavator... Do This? Quick Change from Excavator... XBoom Coupler® System The XBoom Coupler® is an Exclusive, Patented product. XBoom Coupler® is a Registered Trade Mark and all product name(s), logo(s) and content is Copyright Protected © 2018. www.nationalattachments.comVisit our website for more attachments! We have an Extensive Used Inventory!

Versatile Skid-SteerAttachment Helps Okla. Parks Dept.

From towering sand dunes and refreshing lakes to forested retreats and cool caverns, Oklahoma’s state parks are ready to whisk adventurers away on great outdoor experiences.

Whether lacing up a pair of hiking boots or looking for some relaxing fun in the sun, the scenic beauty of these varied ecoregions and impressive natural resources is sure to provide breathtaking moments. But how exactly do these environments remain so picturesque?

Enter Josh Baker, a forestry technician with one of the Oklahoma State Parks Department’s regional construction crews. Baker and his colleagues utilize two of Diamond Mowers’SK Disc Mulcher Pro X attachments on their compact track loaders (CTLs) to not only shred Cedar, Cottonwood, Oak and Salt Cedar trees common in their service areas, but also clear roadways, campsites, hiking trails, fence lines, mower pathways and more.

“Our experience with these disc mulchers has been exceptional,” said Baker. “They have impressed us with their ability to maintain and elevate the look of our state parks and are well-constructed to take the abuse that forestry work puts our equipment through.”

Before purchasing their Diamond Mowers disc mulchers, Baker and his team were limited to cutting everything they encountered by hand. Then they realize Diamond attachments were ideal for use in rural environments — the versatile 60 in. attachments can cut through trees as large as 14 in. in diameter and continuously mulch material up to 6 in. in diameter.

Four-point hardened steel teeth inside the deck shell act like axe blades to slice though broken branches and trees, while their aggressive design effectively grabs and pulls in material for processing.

“The mulchers are quite easy to use and have become a huge asset to our fleet,”

The Oklahoma State Parks Department’s regional construction crews utilize two of Diamond Mowers’ SK Disc Mulcher Pro X attachments on their compact track loaders (CTLs) to not only shred Cedar, Cottonwood, Oak and Salt Cedar trees common in their service areas, but also clear roadways, campsites, hiking trails, fence lines, mower pathways and more.

added Baker. “They attach to our CTLs quickly and easily, and after watching a few tutorial videos on proper operating techniques, they were a breeze to get the hang of.”

Baker noted that the difference between what the mulchers do compared to cutting everything by hand is “unmatched.” Between land clearing, site preparation, forestry management and even storm and disaster cleanup, the Disc Mulcher Pro X’s versatility has proven to be a key ally for tackling a variety of applications.

The SK Disc Mulcher Pro X is available in two sizes: a 48 in. unit optimal for smaller skid-steers operating in compact spaces, and a 60 in. unit ideal for tackling projects in open, rural areas where there’s a need to clear large areas quickly. It is available with three motor options and is compatible with both standard and high-flow hydraulic machines.

When asked about the value and cost of the disc mulchers, Baker reiterated how important they’ve been to him and his team.

“The design of the attachments and their ease of operation has allowed us to increase efficiency like never before. If I were in the market for a mulcher, I’d purchase this one and be extremely happy,” said Baker.

Diamond Mowers offers a wide range of specialized cutting attachments compatible with most tractor, skid-steer, wheel loader, and excavator brands.

For more information, visit DiamondMowers.com.

Page 94 • October 12, 2022 • www.constructionequipmentguide.com • Attachments & Parts Section • Construction Equipment Guide
The SK Disc Mulcher Pro X is available in two sizes: a 48 in. unit optimal for smaller skid-steers operating in compact spaces, and a 60 in. unit ideal for tackling projects in open, rural areas where there’s a need to clear large areas quickly.

www.eaglepowerandequipment.com

953 Bethlehem Pike Montgomeryville, PA 18936 215/699-5871

2211 N. Dupont Highway New Castle, DE 19720 302/652-3028

1416 Phoenixville Pike Suite 200 West Chester, PA 19380 610/458-7054

697 N Main Street Doylestown, PA 18901 215/348-9041

www.contractorssales.com

121 Karner Road Albany, NY 12212-2010 518/456-1445

1283 Dolsontown Road Middletown, NY 10940 845/956-0222

www.highway-equipment.com

22035 Perry Highway Zelienople, PA 16063 724/452-7800

5846 West Road McKean, PA 16426 814/476-7755

4690 Route 219 Dubois, PA 15801 814/371-3600

www.tylerequipment.com

251 Shaker Rd. East Longmeadow, MA 01028 800/292-6351

1980 Berlin Turnpike Berlin, CT 06037 800/352-4473

Construction Equipment Guide • Attachments & Parts Section • www.constructionequipmentguide.com • October 12, 2022 • Page 95

Industrial

JORDAN EQUIPMENT CO.

GENALCO

Reservoir Street

MA 02494

Albany Street

MA 01105

Jefferson Blvd. (rear)

RI 02888

Clark Street

Haven, CT 06516

Page 96 • October 12, 2022 • www.constructionequipmentguide.com • Attachments & Parts Section • Construction Equipment Guide QUALI BRI ITY IGIN N NG TOG AND S IV NNO GETHE ST UPPOR TION,AT , ER feature the Ultralo loader bu®ESCO YDURABILIT BRING SAFE tooth system that prov® ckets are precision engine SITJOBOUR OTO TION &VATETY, INNO Y ok ides safer and ered TE and high-performance and skilled fabric easier tooth repla ESCO buckets available delivers oneation, ESCO cement. Combined with p yp ® Manganese Crusher W®O e of the most durable, remium ear Partse materials Ua Systemooth o®alok T esy Bucyrus Blades AcceCuttingEdges Cutting Edges™ s as s and essories www.esco.weir Copyright ©, W WEIR and the WEIR Logo are trademarkks and/or registered trademarks of Weeir E Engineering Services Ltd. C.N. WOOD CO., INC. 200 Merrimac Street Woburn, MA 01801 781/935-1919 Whately, MA 413/665-7009 Smithfield, RI 401/942-9191 Avon, MA 508/584-8484 www.cn-wood.com ANDERSON EQUIPMENT COMPANY www.andersonequip.com 1000 Washington Pike Bridgeville, PA 15017 412/343-2300 7550 Clearfield Curwensville Hwy Clearfield, PA 16830 814/765-5311 20561 Paint Blvd. Shippenville, PA 16254 814/226-4100 436 Riggs Road Somerset, PA 15501 814/443-2867 2007 Ruskin Drive Pleasant Valley, WV 26554 302/366-3075 2140 Military Road Tonawanda, NY 14150 717/877-1992 115 Middle Road Henrietta, NY 14467 585/334-6770 6317 Thompson Road Syracuse, NY 13206 315/463-8673 912 Albany Shaker Road Latham, NY 12210 518/785-4500 22607 Murrock Circle Watertown, NY 13601 315/788-5512 720 E Franklin Street Endicott, NY 13760 607/748-3400 4176 Route 417 Allegany, NY 14706 716/372-8822 18 Gorham Industrial Pkwy Gorham, ME 04038 207/591-5482 142 Target
Circle Bangor, ME 04401 207/942-0177 1645 Candia Road Manchester, NH 03109 603/627-7696 151 Packard Road East Montpelier, VT 05651 802/223-9689
18 Blackstrap Road Falmouth, ME 04105 207/797-2240 35 Daves Way Hermon, ME 04401 207/848-9036 744 Clough Mill Road Pembroke, NH 03275 603/228-3377 www.jordanequipment.com
INC. 333
Needham,
781/444-9500 321
Springfield,
413/781-4170 380
Warwick,
401/736-9724 44 W
West
203/932-5991 www.genalco.com

SECTION Trucks & Trailers

Trucking Firm Makes Switch to SmithCo Side Dumps

Solving tough problems for its customers is important to SmithCo, and its team works with customers every step of the way to make sure they get what they need to do the job better.

That’s why when Kevin McGee of V McGee Inc. in Tennessee told SmithCo about his unique situation, sales manager Gerred Zeising dug in to develop a unique solution.

McGee needed a special set up for hauling coal ash (also called fly ash). Coal ash hauling is notoriously difficult and must adhere to special regulations.

V McGee Trucking had been using end dump trailers for these loads but started to think seriously about side dump trailers. It did not want the possibility of the end gate opening and leaving ash on the highway. This is especially important because any leak of fly ash during transport can lead to large fines and other penalties.

“I’d been using end dump trailers, but I needed something safer and more reliable for hauling fly

SmithCo helped V McGee design and build a quad-axle box truck, which was outside of its normal scope.

ash,” said McGee. “SmithCo helped me design and build a quad-axle box truck, which was outside of their normal scope. We designed a configuration that was able to do big hauls without a lot of extra weight in the trailer.”

The SmithCo engineering team collaborated with Zeising and McGee and designed the right setup for the job, a custom SHV-style truckmounted bodies on a quad axle. This setup met

McGee’s load hauling needs (about 80k pounds) without adding too much extra weight from the trailer itself.

The result? V McGee can now haul more loads of coal ash with more efficiency and less risk.

“The team at SmithCo was great from start to finish. The job wouldn’t be possible without these trailers,” McGee said.

For more information, call 800/779-8099 or visit sidedump.com.

To
view our current
comparison trailer specification charts visit www.constructionequipmentguide.com The SmithCo engineering team collaborated with Sales Manager Gerard Zeising and Kevin McGee to design the right setup for the job, a custom SHV-style truck-mounted bodies on a quad axle.
.ogerstrailewwwr g neour haulinyo y t-dut -avt hey beserve y Y of buUR Uer a CENeOv T NTHEJOBEVYO ER .omersc eds! m osraailer rs f hg t R ildin e !DY A 80 clo 00-441-9880 osestdealercall: ourion or yreinformat Truck & Trailer Section sponsored by Rogers Bros. Corp

Grote Adds Accomplished Members to Leadership Team

Grote continues its refocus on creating and leading safety-related innovation with the addition of three experienced members to its leadership team.

Kent Bode has been promoted to vice president of sales and marketing for the U.S. sales team, while Cesar Perez-Bolivar transitions to take over leadership responsibilities of Grote Electronics, and Mel Mendoza has been hired as the new vice president of operations, North America.

“Facing challenges head-on with strong leadership has been instrumental to Grote’s legacy over the past 120 years,” said John Grote, chief operating officer of Grote Industries.

“These three leaders all embody that, two of them with more than 30 years of industry experience, and each with the ability to rise to the occasion and meet our customers’ ever-changing needs.”

Bode started at Grote in 1997, serving in various engineering capacities as a product manager, regional manager and director of OEM sales. Bode’s leadership was instrumental in Grote Industries winning several prestigious business awards. He has had lifelong exposure to the lighting and electrical industries, growing up in his family’s electrical contracting business.

Bode will lead the U.S. sales team, the marketing team and the business development team in his new role.

Perez-Bolivar has been with Grote for nearly a decade, working on research, engineering and development, while focusing on Grote’s focus on safety, productivity, security and cost savings. He’s long been an expert in material selection, design of experiments and testing, most recently serving as the director of engineering, leading Grote’s headlamp engineering and manufacturing division in Madison, Ind.

Mendoza is new to the Grote team, bringing more than 35 years of experience as a global business leader working for a diverse group of manufacturing companies. His track record of leading and building teams at Plymouth Tube Company, Acuity Brands Lighting, Emerson Electric, Danaher Controls and Zenith Electronics, positions him as an expert to lead the manufacturing and supply chain for all of Grote’s North American facilities in Madison, Waterloo and Monterrey.

“Grote has always been known for our innovation, ethical business practices and a strong commitment to providing quality products and service,” Grote said. “As we expand the company’s vision to make the world safer and smarter through connected

visibility, I believe the broad experiences and successful leadership styles of our new management team put us in a position to focus on the future.”

For more information, visit Grote.com/leadership-of-grote.

4565 William Penn Highway Murrysville, PA 15668

Bellefonte 175 Progress Dr Bellefonte, PA 16823 814-353-2800

Blawnox 400 4th St Blawnox, PA 15238 412-828-7810

Camp Hill 2009 State Rd Camp Hill, PA 17011 717-730-7435

Clarksburg 6286 West Veterans Memorial Highway Bridgeport, WV 26330 304-842-2222

Clearfield 1307 S Second Street Clearfield, PA 16830 814-765-1611

Cranberry 11 Progress Ave Cranberry Township, PA 16066 724-776-7660

Ebensburg 100 Commerce Dr Ebensburg, PA 15931 814-471-1710

Erie 3950 Depot Road Erie, PA 16510 814-898-3388

Harrisburg Paxton Street Harrisburg, PA 17111 717-564-0598

Indiana 145 Rose St. Indiana, PA 15701 724-463-8743

Lancaster 4326 Oregon Pike Ephrata, PA 17522 717-859-4905

Lantz Corners 3105 Route 219 Kane, PA 16735 814-778-5250

Mahanoy City 1220 Morea Rd

Barnesville, PA 18214 570-773-1720

Manada Hill 336 Fairville Ave Harrisburg, PA 17112 717-526-2121

Mansfield 18512 Route 6 Mansfield, PA 16933 570-662-7171

Milesburg 1025 N Eagle Valley Rd Howard, PA 16841 814-355-3500

Mount Pleasant 309 Foothills Lane Mt. Pleasant, PA 15666 724-696-4080

New Stanton 190 Earnhardt Dr Hunker, PA 15639 724-861-6080

Shinnston 5541 Benedum Drive Shinnston, WV 26431 304-592-5855

Somerset 168 Industrial Park Road Somerset, PA 15501 814-445-7915

State College 2955 Stewart Dr. State College, PA 16801 814-237-8338

Turbotville 190 Cleveland Brothers Road Watsontown, PA 17777 570-538-2551

Washington 35 Brownlee Rd Eighty Four, PA 15330 724-325-9297

Milton CAT 100 Quarry Dr Milford, MA 01757 508-634-3400

84 Concord St North Reading, MA 01864 978-276-2400 978-276-2410 Parts

14 Kendrick Rd Wareham, MA 02571 508-291-1200

4610 E Saile Dr Batavia, NY 14020 585-815-6200 585-815-6250 Parts

500 Commerce Dr Clifton Park, NY 12065 518-877-8000 518-877-6860 Parts

55 Industrial Park Dr Binghamton, NY 13904 607-772-6500 607-251-6550 Parts

294 Ainsley Dr Syracuse, NY 13210 315-476-9981 315-703-7042 Parts

79 Robertson Blvd Brewer, ME 04412 207-989-1890 207-991-3130 Parts

16 Pleasant Hill Rd Scarborough, ME 04074 207-883-9586 207-885-8045 Parts

30 Industrial Dr Londonderry, NH 03053 603-665-4500 603-665-4510 Parts

150 Cat Lane Richmond, VT 05477 802-434-4228 802-434-7810 Parts

2158 Plainfield Pike Cranston, RI 02920 401-946-6350 www.miltoncat.com

Bobcat of North Jersey 201 Maltese Dr. Totowa, NJ 07512 973-774-9500 www.njbobcat.com

Page 98 • October 12, 2022 • www.constructionequipmentguide.com • Truck & Trailer Section • Construction Equipment Guide
Kent Bode Cesar Perez-Bolivar Mel Mendoza

Profes Pr s

ur r qui q tim im iler ler er r

ailer th taile ail thatr t y tim tiereve our equiour equ eqour eYo f r e er tha

ssional Haussi ssio ssion ssiona sional Hional Haonal nal al l Hau au u ver ha hveou ne nyt yat t rust the thrust trus rust the expTe. e our bouripment is yipment is iipmen ipme ipm i Hi u r a

pment ment ent nt y ur e exust st t he e exp p r

rust ArustTrusulers l lers s ust st t y abou abo ab ayo wor wo w worre te t owmas owma owmToow Ts atts apert business, ours iss is t business busines busine busin bus worrry abboou

ousiness, ousiness, ouriness, oursness, oursess, isss, s, ours urs wmas mas as s abou u

Care Equipment Inc. 2765 Galloway Rd. Bensalem, PA 19020 215-639-9800 www.asphaltcare.com

Douglas Equipment & Supply Co. 7100 Kreidler Rd. York, PA 17403 717-428-1517 www.douglasequip.com

FOLEY Inc. 855 Centennial Avenue Piscataway, NJ 08854 732-885-5555

650 S. Egg Harbor Road Hammonton, NJ 08037 609-561-0308

2975 Galloway Road Bensalem, PA 19020 215-639-4300

5102 Beckmantown Road Whitehall, PA 18052 610-261-4887

720 Pulaski Highway Bear, DE 19701 302-328-4131 www.foleyinc.com

Bobcat of Connecticut, Inc. 54 Alna Lane E. Hartford, CT 06108 860-282-2648

Bobcat of Stratford 821 Woodend Road Stratford, CT 06615 203-380-2300

Bobcat of Greater Springfield 181 Wayside Ave. West Springfield, MA 01089 413-746-4647 www.bobcatct.com Company Wrench 2636 S. Black Horse Pike Williamstown, NJ 08094 856-404-9618 www.companywrench.com

Metro Bobcat, Inc. 8250 Beechcraft Ave. Gaithersburg, MD 20879 301-840-9300

33 West Old Liberty Rd. Eldersburg, MD 21784 410-795-1500

11000 Pulaski Hwy White Marsh, MD 21162 410-483-0600

7002 Marlboro Pike, Forestville, MD 20747 301-568-1104 www.metrobobcat.com

sign

a

s Bmerica meric meri merAmeerica’ rica ica ca a . t. ut. ut t o design desigo des de d atr er ter ster ste e ie sur su

Robert H. Finke & Son, Inc. 1569 Route 9W Selkirk, NY 12158 518-767-9331 www.finkeequipment.com

TBest BuiltBe Bes Best B Bu Buiest st t uilt lt t

il iB Bil

gets

able,

Lea

o the th t

the job jo

he e

lon lo

long

Monroe Tractor & Implement 1001 Lehigh Station Rd Henrietta, NY 14467 585-334-3867

6 Equipment Dr Binghamton, NY 13904 607-754-6570

5035 Genesee St Buffalo, NY 14225 716-681-7100

8194 State Route 415 Campbell, NY 14821 607-739-8741

423 Old Loudon Rd Latham, NY 12110 518-785-8013

7300 Eastman Rd N Syracuse, NY 13212 315-452-0000 www.monroetractor.com

Ditch Witch Mid-States 3660 Interchange Road Columbus, OH 43204 614-443-9751 888-DITCHWITCH

9052 Marshall Road Cranberry Township, PA 16066 724-742-2844 888-DITCHWITCH www.ditchwitchmidstates.com H.A. DeHart & Son 311 Crown Point Rd. Thorofare, NJ 08086 856-845-2800 www.hadehart.com

A. Montano Company 571 NY 212 Suagerties, NY 12477 845-247-0206 www.amontanoco.com

Construction Equipment Guide • Truck & Trailer Section • www.constructionequipmentguide.com • October 12, 2022 • Page 99
so mako m mas t i ak k urre esign
ign gn
n a
Lear
L Learnmoreatwww eliable,
eliable eliabl eliab elia li eliable, long-laliable,
r o
j
it
tget ge git l
earrn m moore atwww w t gets tets tts
iable, long-
long-lble, le, e, , ong-la ngla gla earnrnmnmomoreoreareatatwtwwwww ww ailers ailer aile ail ir ilers lers ers rs s c owcom o wtowmaster t asting b site s sit l il wmmasster om site ite asti astinsting ting ng g owmmasastster ter r coomeaaetatyoue aeettaataty yabout.etoo yaaboout Le.t.com Learn arn eat wmamastaste Asphalt

Volvo Trucks Simplifies EV Charging With New Program

Volvo Trucks North America announced a new program to provide streamlined access to electric vehicle (EV) charging offerings for dealers and fleet customers.

The Vendor Direct Shipping program provides customers the opportunity to procure mobile and fixed charging hardware solutions directly fromVolvoTrucks dealers when they purchase Volvo VNR Electric trucks.

“The Vendor Direct Shipping program is a simple and effective method of ordering charging hardware for customers purchasing VNR Electric trucks. The Volvo Trucks dealer will be able to log in to the parts portal and order chargers just as they would to order any truck part,” said Peter Voorhoeve, president, Volvo Trucks North America.

“As we’ve said from the beginning, the purchase of a VNR Electric is more than just a truck, it’s a total transportation solution and providing our customers with reliable charging hardware is a key pillar in that process.”

Beginning this October, customers will have the opportunity to purchase charging hardware when they purchase a Volvo VNR Electric truck. Customers will have two chargers from Heliox to choose from initially: a 50kWMobile DC Fast Charger (Single

Port CCS1) or a 180kW Flex DC Fast Charger (up to three CCS-1 dispensers). Volvo Trucks will continue to expand its offerings and partners as more and more fleets begin to adopt battery-electric trucks.

Customers participating in the program also can work with participating vendors to develop tailored and scalable infrastructure to ensure the battery-electric trucks are being charged up efficiently while making the best use of available power. Heliox is the first provider to participate and has a team of EV charging experts and partners to ensure the entire project goes smoothly, from delivery, setup, commissioning, testing, training, operations and beyond.

“Heliox is excited to mature our partnership with Volvo Trucks. After many great projects over the past year, this agreement will make it exponentially easier for Volvo Trucks dealers and end users to procure everything they need to kickstart their EV fleet projects,” said David Aspinwall, president, Heliox North America. “By giving them simplified access to our full portfolio of CCS-1 products, future e-mobility programs can now happen faster and with greater efficiency.”

For more information, visit www.Volvotrucks.us. 

SmithCo Unveils Side Dump With Hydraulic Suspension

SmithCo Side Dump Trailers mining side dump trailer with a fully dedicated hydraulic suspension system reduces issues for mines in cold climates and further enhances the advantages SmithCo side dump trailers offer to the mining industry.

Compared to conventional haul units, SmithCosidedumps,whichwereengineered by Simard Suspensions, offer lower ton-mile costs, a smaller footprint, less fuel use and many other benefits, the company said.

“SmithCoishelpingtotransformthemining industry and this is another example of how SmithCo is at the forefront of hauling innovations,” said Scott Lovell, SmithCo president and CEO. “We’re always pushing ourselves and our partners to offer more capabilities for our customers.”

Advantages of Hydraulic Suspensions for Mining

The advantages of side dumps with

hydraulic suspensions for the mining industry are many. The Simard suspension system allows axle ends to move independently of one another to navigate washboard roads more easily, reducing wear and tear and improving stability.

A trailer with this system allows optimal axle load distribution whether fully loaded, partially loaded, or empty. It offers automatic transverse leveling before dumping and semi-active roll stabilization. The hydraulic

system also eliminates the need for replacing air springs, shocks or trailing arms, which cuts down on maintenance and downtime. For mining operations in Arctic conditions, the hydraulic system eliminates the risk of air freeze-up issues.

Side Dump Trailers Open Doors for Mining

Mine operations around the world are discovering the advantages of hauling with custom SmithCo side dump trailers instead of conventional haul trucks. The smaller footprint of the tractor-trailer combo improves the feasibility of opening satellite mines.

Ton-mile costs are further lowered with less fuel use, less tire wear and less expensive tires, more easily serviceable parts and more uptime. Side dumps can dump their loads over barriers, berms or into crusher chutes and deliver payloads up to 200 tons when trained together, making them a nimble competitor to conventional mining trucks.

“We don’t know of any trailer that’s been built like this, and we’re eager to show what’s new and what’s next for mining trailers,” said Lovell.

For more information, visit sidedump.com.

Page 100 • October 12, 2022 • www.constructionequipmentguide.com • Truck & Trailer Section • Construction Equipment Guide
Volvo Trucks’ Vendor Direct Shipping program provides Volvo VNR Electric truck customers the opportunity to include mobile and fixed charging hardware solutions like this Heliox 180kW DC Fast Charger to support small and midsize fleets as they transition to battery-electric trucks.
Compared to conventional haul units, SmithCo side dumps, which were engineered by Simard Suspensions, offer lower ton-mile costs, a smaller footprint, less fuel use and many other benefits, the company said.
Construction Equipment Guide • Truck & Trailer Section • www.constructionequipmentguide.com • October 12, 2022 • Page 101 Cincinna Hubbard Lancaste Pittsburg railer Sales ï Rental / LeasinNew & Used T (513) 874-488ti, OH (330) 534-008d, OH (717) 569-453Aer, P (412) 747-777Agh, P ng ï Financing ï Servic 0 2 1 124 ) (47 Termg-Lon 7 Daily REN ce ï Parts 7-7777 !LEASING ALS &T IADD’L(1sony Motorith P(2) W Renegade XN 20, 53’ 77’x102Qty 3 Discharge, Galvan – 2023 HeiQty 6 DECEMBER)IN on Capacity2”, 40 T Accepts Both Flip Box and FlipHeight, on oXL 80 HDGM, 53'x102", 40-TQty 3 ized Hangers. , Full Rear, 3 Hopperil MW Cementer op DecoiQty 1 – with a Full WidthTAxle. ( n Minideck, Hydraulic Classic Neck, 33'7 ck) " Clear Deck, 12" Loaded Deck ANGUARDRENEWA V AluminuQuilted Stainless Steel Doors, 53’X102”X13’6”, Carrier XQty 15 EEFERS mOutsideWheels. Air Ride,4 7300, rail King, 5T2017 2018 Pitts, Fixed Neck w/Ramps.Unit # 5583 ell. e55-Toon, 26' in W or Details!Call f ans, some with Hi-Base Rails.PlateVa New2024Fruehauf53'x102"x136"Qty 100 Unit#5548 AGS Hydraulicwith gle Iron Ramps,Gooseneck, Dual Hydraulic, Front Li , HydraAxle Connections at RearFlip ,on Lowboy2019 Kalyn Siebert 60 T Unit#5286 Axleift ulic Detachable 59'x102", 30' Deck (2) COMINail.Ta New 35Qty 2 ADQty 8 –Ride. ( Hydraulic Detach New EagQty 3 .NG IN SEPT Deck, Beaveron, 24’GSL-BR, 35-T .)DD’L COMING IN SEPT AirDeck,on, 24’hable Lowboys, 35-T er Beaver Pavers, 35 GSL PT VERTEAGERV BEA ) Both Red and BlackRamps Qty 4 –on (o– New 25XPL, 25-TQty 9 ood Ramps, 6-Hydraulic Ramps).o4 W on, (7-AngoNew20XPT, , 20-TQty 17 60-TONBEAM Qty- Standard RedQty 1 Connection at Rear Fontaine Magnitude 60 MBMD, 28' B eseF e eHa les l W lipx l ve e &F MS - Black1 eam, Modular ell. e21'4" inW 2008 Load King 4 *(36)NEW2023FR ell. eoa2015 Talbert, 40-Ton, 29'7" in W Unit # 4807 Axle Folding Neck,on Quad40-T onCurbSide Deck Length 38', Win Trans2023Qty 15 U48’X102”UFREHA Unit # 5591 ie BarsTrack on Roadside,Tnch craft DTL-2100, 48'X102", Main TS*STEET L FLA 1-Dec.) AlumAxle, o/sSide Rail, Rear Lift – New Fontaine MagnitudeQty 2 ., 2-Dec.)(ADD’L 2 NovandBlack. Axle, Some w/ Wheel CoRearLift Alumell, o/se18” Deck Height, 26’ W orkhorsNewFontaineWoQty 13 Both Red and Bl NewFoQty 6 1 Sept.)(ADD’L – New FoQty 2 Front Ramps, Re Deck Height,18” – New FoQty 3 (ADD’LmWheels. on Drop55-T ) vers, Both Red Wheels, se 55LCC, ack ell, e, 24’onPaver oontaine55 T W ntaine EQI Hydraulic Spreader Axle, Both Red and Black.ar Lift Alum Wheels,ell, o/se26’ W ontaine Magnitude 60LCC, Axleandems 30K- New 2023 Fruehauf Steel Flatbeds, Spring Sliding TQty 36 rack & More!Tes, Winch

Fontaine Heavy-Haul Changes Its Name to Fontaine Specialized

The trailer business previously known as Fontaine Heavy-Haul is now Fontaine Specialized.

“In order to meet the evolving and ever challenging needs of our customer base, our product line will continue to expand beyond traditional heavy-haul trailers,” explained Todd Anderson, president of Fontaine Specialized.

“Over the last several years we have expanded our Xcalibur extendable flatbed and dropdeck models, introduced the Traverse hydraulic tail models, created a new line of Workhorse lowbed models and added several new Magnitude heavy-haul models. We believe our name should reflect our entire product lineup, and our dealer network is very supportive of re-branding the business as Fontaine Specialized.”

“We’ve heard from many of our most respected dealers, and the feedback for this change is very positive,” remarked Heather Gilmer, VP sales. “The name change in a way is a ‘Back to the Future’ move for our company as we were previously ‘Fontaine Specialized’from 1993 to 2009. In fact, many of our seasoned customers continued to refer to our trailers as ‘Fontaine Specialized’even under the Heavy-Haul brand.

“Our tradition of industry leading innovation and unmatched customer support will most certainly continue under the Fontaine Specialized name,” she added.

more information, call 800/633-6551 x826 or visit www.fontainespecialized.com.

Page 102 • October 12, 2022 • www.constructionequipmentguide.com • Truck & Trailer Section • Construction Equipment Guide
For
 S WIMOVE FUEL & SE OUTH Y TRVICE THA solution for any worksi servicefluidsourM up twithEquippable railerfFuel&ServiceT eep your equipmentK service fluids, our M Foormoreinformatio F te. ank line is the p Multi-Tanklineisthep dieselofgallons920o romThunderCreekEquipm moving with a No HAZ Multi on,pleasecontactusat perfect plus ent. MAT 1.866.535.7667orlearn go.thunmoreonlineat nderrcreeek.coom/CEG102 cr c 22.

Stephenson Equipment, Inc.

Tracey Road Equipment

Vermeer

Construction Equipment Guide • Truck & Trailer Section • www.constructionequipmentguide.com • October 12, 2022 • Page 103
www.traceyroad.com Chappell Tractor www.chappelltractor.com 454 Route 13 South Milford, NH 03055 800-698-2640 251 Route 125 Brentwood, NH 03833 800-616-5666 391 Loudon Rd. Concord, NH 03301 800-358-6007
All Roads www.vermeerallroads.com 8830 Corridor Rd. Annapolis Junction, MD 20701 301-498-5200 • 800-492-1274 Manassas, VA 877-661-6566 Ashland, VA 800-552-2074 6803 Manlius Center Road East Syracuse, NY 13057 315-437-1471 • 800-872-2390 1523 Route 11 North Kirkwood, NY 13795 607-775-5010 • 800-370-9488 300 Middle Road. Henrietta, NY 14467 585-334-5120 • 866-950-6210 19598 Cady Road Adams Center, NY 13606 315-788-0200 • 888-335-0200 115 Railroad Ave. Albany, NY 12205 518-438-1100 • 866-740-8853 9598 River Road Marcy, NY 13403 315-765-8746 • 800-872-2390 Trailer Sales Contact John Connor 302-521-2601 135 Lincoln Avenue Prospect Park, PA 800-220-4033 • 610-534-0700
www.stephensonequipment.com
Page 104 • October 12, 2022 • www.constructionequipmentguide.com • Truck & Trailer Section • Construction Equipment Guide

For

information

Snow and Ice Section

at www.constructionequipmentguide.com.

Hilltip Offers Large IceStriker 6000CM Combi Spreaders

Hilltip is offering its IceStriker combi spreaders in a 6 cu. yd. capacity, 12-in. pintle chain-drive unit. The 6000CM model is the largest Hilltip model available in the North American market.

Along with this size, Hilltip is adding chain-driven options for all other IceStriker combi spreaders, including the 2000, 2800, 3400 and 4200 models. Previously, these models were only offered as auger-driven machines.

Hilltip is expanding the option to meet the preferences of all winter care professionals. The new 6000 model will only be offered in the chain-driven system at this time. Customers can expect all chain-driven models to be available for the 2021/2022 season.

Designed for ½-ton trucks and larger, the electricpowered IceStriker spreaders (12- or 24-volt dual motors) are now available in capacities of 2.0, 2.8, 3.4, 4.2 and 6.0 cu. yds. They not only offer the ability to spread granular salt, sand and gravel, but also can be transformed into a liquid deicing sprayer — either prewetting material as it’s spread or directly spraying brine to the driving surface for anti-icing applications.

Every IceStriker spreader features liquid tanks integrated into both sides of the double-walled poly hopper, which hold up to 220 gal. of liquid. By simply adding the optional pre-wet liquid kit, which includes a pump and spray nozzle, an operator can pre-wet spreading materials to help activate the salt as it’s spread and to reduce material bounce.

Furthermore, by adding the optional 6-ft. 7-in. dual spraybar, an operator can now spray brine directly onto the driving surface with a maximum 16-ft. spraying width. This makes the spreaders ideal for all operations, whether they are just getting into liquid applications or are well experienced in brine.

The addition of a 40-ft. hose reel and hand-held spray nozzle allows for easier spraying in hard-to-reach areas, such as on sidewalks and steps. Also, an optional bladder tank increases the unit’s overall brine capacity to 550 gal.

All spreader and sprayer functions are operated using the advanced StrikeSmart controller. Featuring a detailed color

The controller also automatically collects and saves essential data. Logging data 24 hours a day, seven days a week, this feature provides operators with spreading reports that can reduce potential liability issues. Accessory buttons are built into the controller, making the actuation of any standard or optional accessories simple.

Another exclusive ability with the advanced controller is the optional adjustable spreading symmetry function. Typically only found on larger truck spreaders, this feature allows the operator to adjust the direction of material off of the spinner from the cab-mounted control. This is ideal when working in parking lots or when working on properties adjacent to other businesses, so the operator can ensure that material is only being directed onto a paying customer’s property and away from vehicles.

An easy-to-understand graphic indicates the current direction of the material, which can be easily adjusted with the integrated dial.

For maximum control and observation of an equipment

Designed for ½-ton trucks and larger, the electric-powered volt dual motors) are now availableincapacitiesof2.0,

rates to be remotely set and adjusted for each customer’s site, depending on weather conditions.

Other standard equipment on the IceStriker combi spreader includes a sealed, weather-resistant motor enclosure, automatic vibrator, integrated tie-down loops, top screen and pre-routed accessory wire for simplified light/rear camera installation. Auger models include an inverted-V structure over the auger drive to reduce heavy start-up loads on the feed mechanism.

Additional accessory options include an LED work light, strobe lights, illuminated license plate kit, rear and indicator lights, leg stand for more convenient storage/installation, end material alarm sensor on the spinner, tarp cover and an extended auger for axle loading optimization. One also can choose to get the hopper in orange instead of the standard gray color.

For more information, call 859/760-7211 or visit www.hilltipna.com.

Pages 105-107
more
on snow-clearing equipment and spreaders, visit CEG's Web site

Custom Truck Creations

Supply LLC

Old Suffolk Avenue

Southside Trailer Service Inc.

Lake Ave.

NY

Two Mile Creek Rd.

14150

S.Lake Rd. (Rt19)

Wattsburg Rd.

Sykes Industrial Services, LLC

W.

Page 106 • October 12, 2022 • www.constructionequipmentguide.com • Snow & Ice Section • Construction Equipment Guide
www.customtruckcreations.com 130 Despatch Drive East Rochester, NY 14445 585-425-1110 Confer
www.rbrsnow.com 434
Islandia, NY 11749 631-234-4858 Fax: 631-234-4654
www.southsidetrailer.com 310
Buffalo,
14219 716-828-1555 250
Tonawanda, NY
716-874-3381 7192
Rochester, NY 14416 585-494-2750 8405
Erie, PA 16509 814-825-9100
www.sykesindustrial.net 1002
6th Street Chester, PA 19013 610-389-2113 Mobile: 610-587-8494 Fax: 610-874-1415

njbobcat.com

201 Maltese Drive Totowa, NJ 07512 973-774-9500

monroetractor.com

1001 Lehigh Station Road Henrietta, NY 14467 585-334-3867

Binghamton, NY 607-754-6570

Buffalo, NY 716-681-7100 Campbell, NY 607-739-8741

Latham, NY 518-785-8013

North Syracuse, NY 315-452-0000

Westborough, MA 508-845-4343 Woburn, MA 781-933-4217

hwyequip.com

4500 Paxton Street Harrisburg, PA 17111 717-564-3031

15 Honey Hole Road Drums, PA 18222 570-788-1127

200 Burkholder Drive Ephrata, PA 17522 717-859-3132 122 Fritz Road Lock Haven, PA 17745 570-769-1070

wtractor.com

60 International Blvd. Brewster, NY 10509 845-278-7766

chappelltractor.com

454 Route 13 South Milford, NH 03055 603-673-2640

251 Route 125 Brentwood, NH 03833 603-642-5666

391 Loudon Road Concord, NH 03301 603-225-3361

chadwick-baross.com

67 McGuire Road South Windsor, CT 06074 860-761-0381

10 Fox Hollow Road Oxford, CT 06478 203-200-8637

Construction Equipment Guide • Snow & Ice Section • www.constructionequipmentguide.com • October 12, 2022 • Page 107

CompanyWrenchCreatesService TechApprenticeship Program

Company Wrench recently signed Branyon Dodds and Kevin Tyler to its apprenticeship program, the Company WrenchAcademy.The program gives recent high school graduates the opportunity to obtain their associates degree in diesel technology with tuition, housing, books and supplies paid for by Company Wrench.

The work-study portion of the program will last approximately 26 to 30 months, during which two groups will rotate on six-week intervals. One group will complete coursework at the University of Northwestern Ohio, and the other will receive hands-on experience at a Company Wrench branch location. While working as a shop technician, apprentices will earn an hourly wage with the opportunity to receive increases based on academic performance.

“We created this program because we feel it’s vital to invest in the next generation of service technicians,” Cam Gabbard, Company Wrench’s president said.

Company Wrench Academy will provide high school graduates with the education and experiences to become cutting edge service

technicians at almost no cost to them.”

For more information, contact Jason Templeton, Company Wrench’s vice president at j.templeton@companywrench.com.

Page 108 • October 12, 2022 • www.constructionequipmentguide.com • CONSTRUCTION EQUIPMENT GUIDE
“The
(L-R) are Jason Templeton, Company Wrench vice president; Kevin Tyler; Branyon Dodds; and Keith Dodds, vice president of product support of Company Wrench. Lowboy Trailer Pin On Flip Axles, In Stock, 275/Tires, Aluminum Wheels 610/534-0700 John at Stephenson Equipment 21-22 TM
Here's how the BARGAIN ADS Work: Your Ad Will Be Seen By Over 25,589 Construction Equipment Buyers in the Northeast States. For more information, call Construction Equipment Guide today at 800/523-2200 • Supply us with a photo of a machine (one machine per Bargain Ad) and a maximum 17 word description, plus contact and phone number. • Either email your copy & photo to: production@cegltd.com, or mail to: Construction Equipment Guide, 470 Maryland Drive, Ft Washington, PA 19034. • Cost is $135 per ad, $60 additional for color. Additional $25 to place online • Your ad will run for two consecutive issues in 1 region. NEW AND SURPLUS STRUCT. STEEL JUMBO BEAMS, PIPE, ROAD PLATE Joseph Fazzio Inc.com • 856-881-3185 N.J. 20-21 TM BUCKETSBOX: EXCAVATOR, MINI EXCAVATOR GRAVEL, BEDDING BOXES & BACKHOE BUCKETS DUMP HOPPERS ALL FULLY DRESSED SKID STEER ATTACHMENTS W/ PINS & SIDE CUTTERS Joseph Fazzio Inc.com • 856-881-3185 20-21 TM 20-21 TM Excavator, Backhoe & Loader Buckets, New & used, over 500 in stock, also Grapples, Thumbs & other attachments C&S Equipment Co. 609/267-0782 21-22 AP Sentry Tires - Skid Steer and Wheel Loader Tires at Volume Buyers Prices! Call Company Wrench for Sizes & Pricing 866-294-6103 21-22 EB PLATE JFISTEEL.COM • 856-881-3185 96” X 240” & LARGER ALL THICKNESSES - PREMIUM GRADE A572-50 ALSO - LARGE STEEL ANGLES 1967 Ford F600, 8cyl. 4spd, 2spd Rear, 123,697 Orig Miles.. $7,500 Joe at D’Angelo Bros. Inc. • 215-271-7800 20-21 TM The Easy Way To Advertise Your Equipment Run In Two Consecutive Issues – Black & White $135 • Color $195 JESCO is looking for candidates in a variety of different positions, including: We have openings across all branch locations: South Plainfield, NJ … Lumberton, NJ … Beacon, NY … Deer Park, NY … Shrewsbury, MA … Baltimore, MD … Delmar, MD … Waldorf, MD … Middletown, DE Whether you are entry level or experienced, JESCO wants you to be part of our world class team. We have exciting career opportunities for dedicated professionals who want to learn and grow with us. Visit our career site at https://sites.hireology.com/jescoinc/jobs.html and apply today! • Sales • Service • Parts • Technicians • Rentals • Admin Support EMPLOYMENT OPPORTUNITIES

WANTED (US): LOOKING FOR EITHER A USED, OR NEW GRAPPLE BUCKET, DEMOLITION BUCKET, FORKS WITH GRAPPLE, OR A STANDARD GP BUCKET TO FIT A NEW 2022 CAT 980-14A (OLD MODEL = 980-M) RUBBER TIRED WHEEL LOADER. IT CAN EITHER BE "DIRECT PIN" OR TO FIT A FUSION COUPLER. OUR NEED IS IMMEDIATE.

EMAIL:BSCHAAB@AMERICANDND.COM PHONE: 716-984-7566

WANTED (US): HITACHI EX400 EXCAVATOR – LOOKING FOR A USED HITACHI EXCAVATOR EX-400 & EX 450 TO PURCHASE ASAP. (RUNNING OR NON-RUNNING MACHINES). EMAIL: IKCEQUIPMENTS@GMAIL.COM

WANTED (TX): JOHN DEERE WHEEL LOADERS – LOOKING FOR A JOHN DEERE 544K & 644K TO PURCHASE ASAP WITH HOURS 5000 OR LESS.

EMAIL: NORTHHEAVYEQUIPMENTS

281-694-5478

WANTED (US): HYUNDAI HL757-9A WHEEL LOADER – LOOKING TO BUY 2012-2013 WHEEL LOADER OF APPROX. 200 HP (EX:HL757-9A)WITH HOURS LESS THAN 6000.

EMAIL: BERTRANDLAZURE @CHARETTETRANSPORT.COM; PHONE: 1-450-691-5151

WANTED (NY): CASE 721F WHEEL LOADER – LOOKING TO BUY 2012-2013 WHEEL LOADER OF APPROX. 200 HP (EX:CASE 721F)WITH HOURS LESS THAN 6000.

BERT@MEXUSCAN.COM;

1-514-233-5151

WANTED (US):

WANTED (US): HITACHI EX450LC 5 EXCAVATORS – NEED TO BUY HITACHI EXCAVATOR (DIGGERS) 450, 400, 270, 300, 200 SIZE.

IKCEQUIPMENTS@GMAIL.COM

WANTED (WORLDWIDE): DOOSAN DX480 EXCAVATORS - WANTED TO BUY USED DOOSAN EXCAVATORS DX480 - DX520 4000-5000HRS.

AMERICAUSEDEQUIPMENT@ GMAIL.COM; PHONE: +1-657-236-7399

WANTED (WORLDWIDE): CATERPILLAR CAT D10N / D10R CRAWLER DOZER. EMAIL: USEDEQUIPMENTSOURCING@ GMAIL.COM; PHONE: 281-694-5478

WANTED (US): HITACHI EX220 EXCAVATORS – WANT TO BUY USED HITACHI EXCAVATORS EX-220, EX-270, EX-400, AND EX450, ANY CONDITION.

EDDIE.SIDDIQUI3@GMAIL.COM

WANTED (US): CATERPILLAR 936 WHEEL LOADERS – NEED TO BUY CAT USED WHEEL LOADER 916,926,936,950B/E,966E/D/F, 970F, 980C AND 980F.

ANY OF THEM AVAILABLE, PLEASE EMAIL US.

AHMED@IUKANDCO.COM;

+923003695360

WANTED (WORLDWIDE): HITACHI EX400LC EXCAVATORS - NEED TO LOCATE HITACHI EXCAVATORS EX270, EX-300, EX-400, AND EX-450.

IKCEQUIPMENTS@GMAIL.COM

WANTED (US): HITACHI EX450 EXCA-

- LOOKING TO BUY OLD USED

EX 450 EXCAVATORS.

IKRAMKHAN@IUKANDCO.COM;

WANTED (WORLDWIDE): HITACHI EX450 EXCAVATORS - NEED TO

HITACHI, JOHN DEERE, KOMATSU

AND

WANTED (US):

WANTED (WORLDWIDE): KOMATSU WA30-2 WHEEL LOADER - LOOKING TO BUY A REAR AXLE FOR A KOMATSU WA30-2. IF YOU HAVE A REAR AXLE PLEASE CONTACT ME @ 6I6/8I3/3642. ALSO INTERESTED IN BUYING COMPLETE RUNNING KOMATSU LOADERS WA40 OR SMALLER.

EMAIL:CRAIGBERENS944@GMAIL.COM PHONE: 6I6-813-3642 ––––––––––––––––––––––––––––––––MANUFACTURER: MEC 3391RT AERIAL LIFT - CONTROL BOX FOR A MEC 3391RT YEAR 2000 PART NO. 20783. DOUBLE FUEL GAS/PROPANE. NO OUTRIGGER.

EMAIL: TAVAKE08@ICLOUD.COM; PHONE: 415-748-8079 ––––––––––––––––––––––––––––––––

WANTED (US): CATERPILLAR WHEEL LOADERS, ALL MODELS - NEED CATERPILLAR WHEEL LOADERS 950B, 950E, 966F, 966FII, 980F AND CATERPILAR MOTOR GRADERS 140G.

EMAIL: NAQIB_KHAN73@YAHOO.COM; PHONE: +923333298751

––––––––––––––––––––––––––––––––

WANTED (US): HITACHI EXCAVATORS, ALL MODELS - LOOKING TO BUY HITACHI EXCAVATORS EX270LC,EX330LC-5, EX450LC-5, EX400LC AND JOHN DEERE 495D, 595D.

EMAIL: NAQIB_KHANINTRCO@HOTMAIL.COM; PHONE: +923332316587

WANTED (WORLDWIDE): CATERPILLAR 966F WHEEL LOADERS – NEED TO BUY USED CAT WHEEL LOADERS 966F, 966-F-II, 980C, AND CAT 970F. EMAIL: AHMED@IUKANDCO.COM; PHONE: +923003695360

WANTED (WORLDWIDE): CONCRETE PUMPS: SCHWING, PUTZMEISTER, ALLIANCE, ELBA,

WANTED (US): JOHN DEERE 992D EXCAVATORS – NEED TO LOCATE JOHN DEERE'S EXCAVATORS SIZES 190E, 200, 210, 230, 270, 300, 400. EMAIL: USEDEQUIPMENTS TRADINGLLC@GMAIL.COM PHONE: 281-694-5478

WANTED (US): EZ SCREEN 1200XLS SCREENING – ANYTHING THAT WOULD BE LIKE A 1200 OR1200 XLS. EMAIL: MAIERLANDSCAPING@GMAIL.COM

WANTED (WORLDWIDE): CATERPILLAR BACKHOE LOADERS, ALL MODELS – NEED TO BUY USED CAT WHEEL LOADERS, BACKHOES, EXCAVATORS, HIGHWAY TRUCK.

EMAIL: SEARCHT930@GMAIL.COM PHONE: 657-236-7399

CHAINS AND SPROCKETS FOR KOBELCO 400IV OR 480 EXCAVATOR, NEW OR USED. EMAIL: FJS-1@ATT.NET PHONE: 724-535-7722

WANTED: BUCKET FOR JOHN DEERE 644H WITH CUTTING EDGE OR TEETH 4.25 YARD. EMAIL: FJS-1@ATT.NET PHONE: 724-535-7722

WANTED (PA): JOHN DEERE BUCKETS, ALL MODELS; LOOKING FOR BUCKET FOR JOHN DEERE 644H WITH CUTTING EDGE OR TEETH 4.25 YARD. EMAIL: FJS-1@ATT.NET PHONE: 724-535-7722

WANTED (US): CATERPILLAR DUMP

- CAT 725-745'S 10,000 HOURS

LESS, WILL BUY IN GROUPS.

ANDREWL@BLACKSTARACA.COM;

312-898-5355

(US); TEREX BUCKET TRUCKS, ALL MODELS - 55

WANTED (WORLDWIDE): CATERPILLAR MOTOR GRADERS, ALL MODELSLOOKING TO BUY USED CAT MOTOR GRADERS 140G,12G/H, 14G/H, 140H AND 14M. PLEASE SEND ME A PICTURE WITH DETAIL ANDASKING PRICE.

IKCEQUIPMENTS@GMAIL.COM

(US): CATERPILLAR 916 WHEEL LOADERS - URGENTLY NEED CAT 916, 926, 966F AND 970F WHEEL LOADER, ALSO HITACHI EXCAVATORS EX 270, EX 400 AND 450. EMAIL: IUKANDCO@GMAIL.COM; PHONE: +923335555360

WANTED (US): HITACHI EXCAVATORS, ALL MODELS; WE ARE INTERESTED IN BUYING HITACHI EXCAVATORS (DIGGERS) 450, 400, 270, 300, 200 SIZE.

NORTHHEAVYEQUIPMENTS@GMAIL.COM

WANTED (US): INTERNATIONAL MODEL FUEL / LUBE TRUCKS, ALL MODELS. LOOKING FOR 1 OR 2 FUEL TRUCKS. THEY WOULD NEED TO BE:AUTOMATIC TRANSMISSION -DECENT MILES, ENGINE HOURS -PREFERABLY MULTIPLE COMPARTMENTS -PREFERABLY INTERNATIONAL, BUT NOT A MUST -NO DPF, OR MAXXFORCE ENGINES. MAXIMUM $40,000 TO AS CHEAP AS POSSIBLE. THANK YOU. EMAIL: MANAGER@ COMMERCIALFLEETSUPPLY.COM; PHONE: 347-489-4474

WANTED (US): CATERPILLAR WHEEL LOADERS, ALL MODELS. WE NEED TO BUY CAT USED WHEEL LOADER

970F, 980C,980F ALSO CAT MOTOR GRADERS 140G,12G/H, 14G/H, 140H, AND 14M. IF ANY OF THEM ARE AVAILABLE PLEASE

WANTED (US): CATERPILLAR 950B WHEEL LOADERS - LOOKING TO BUY CAT WHEEL LOADERS 950B, 950E, 966E, 966F, 966F II, 970F, 980F. EMAIL: NAQIB_KHAN73@YAHOO.COM PHONE: +923333298751

WANTED (US): CATERPILLAR EXCAVATORS, ALL MODELS; LOOKING FOR SEVERAL CAT 330DL, 336DL, 336EL EXCAVATORS UNDER 10,000 HOURS AND WHOLESALE PRICED. EMAIL: LJEQUIPMENT3@GMAIL.COM; PHONE: 1-3309873508

WANTED (US): HITACHI EXCAVATORS, ALL MODELS; LOOKING FOR OLDER HITACHI EXCAVATORS AND CAT WHEEL LOADERS, IN GOOD RUNNING CONDITION OR NON-RUNNING MACHINES. EMAIL US TO DISCUSS. EMAIL: IKCEQUIPMENTS@GMAIL.COM

WANTED (US): ALL MODELS KOMATSU WHEEL LOADERS - WE NEED TO BUY KOMATSU WHEEL LOADER WA600-3, WA-600-6, WA-30, WA-40, WA 50.

YOU HAVE AVAILABLE, PLEASE LET US KNOW.

EMAIL: IKCEQUIPMENTS@GMAIL.COM

(WORLDWIDE): CATERPILLAR 972H WHEEL LOADER.

EMAIL: PONTO2002EG@YAHOO.COM

WANTED (NE): ALL MODELS ATLAS COPCO BREAKERS / HAMMERS.

EMAIL: JAKE.SMITH41@YAHOO.COM; PHONE: 402-350-3280

WANTED (US): ALL MODELS WAIN ROY BUCKETS - LOOKING FOR 24", 30" OR 36" BACKHOE BUCKETS. I HAVE A CATERPILLAR 420D EQUIPPED WITH THE ONE PIN CATERPILLAR QUICK EXCHANGE SYSTEM. CATERPILLAR, WAIN-ROY OR SIMILAR BUCKETS WOULD BE FINE. THE CLOSER TO SOUTHWEST FLORIDA, THE BETTER, BUCKET WILL NEED TO BE SHIPPED.

SEND PHOTOS AND PRICES.

SIZES

(US): LOOKING TO BUY HITACHI EXCAVATORS EX330LC-5, EX450LC-5, EX400LC AND JOHN DEERE

INFO@IUKANDCO.COM;

(US): KUBOTA

PRONCALLO@AOL.COM;

(US):

INDUSTRIES

& 60 FT

YEARS OLD, PREFERABLY PREFER TEREX 5TC-55 & ALTEC AA55E

NAQIB_KHANINTRCO@ HOTMAIL.COM

+923332316587

IN ADVANCE.

TWOPETIES@AOL.COM;

239-440-4254

WANTED (WORLDWIDE): ALL MODELS HITACHI EXCAVATORS - LOOKING TO BUY HITACHI EXCAVATOR EX200, EX200LC, EX270LC, EX330LC-5, EX400LC, EX450LC-5. OFFER AVAILABLE EQUIPMENT AND GOOD PRICE.

ELROYFITZGERALDSALES@

(MD): KOMATSU ANY KOMATSU PC100-5,120-5,150-5,200-5,220-5,300-

CONSTRUCTION EQUIPMENT GUIDE • www.constructionequipmentguide.com • October 12, 2022 • Page 109
––––––––––––––––––––––––––––––––
––––––––––––––––––––––––––––––––
@GMAIL.COM; PHONE:
––––––––––––––––––––––––––––––––
––––––––––––––––––––––––––––––––
EMAIL:
PHONE:
––––––––––––––––––––––––––––––––
CATERPILLAR EXCAVATORS, ALL MODELS. LOOKING TO PURCHASE ANY HEAVY EQUIPMENT LOGGING AGGREGATE TRUCKS IN THE USA EMAIL:EQUIPMENTPRO22@GMAIL.COM PHONE: 570-423-7631 ––––––––––––––––––––––––––––––––
CATERPILLAR 936E WHEEL LOADERS - NEED TO BUY CAT USED WHEEL LOADER 916, 926, 936, 950B/E, 966E/D/F, 970F, 980C AND 980F. IF ANY OF THEM AVAILABLE PLEASE LET ME KNOW. EMAIL: AHMED@IUKANDCO.COM; PHONE: +923003695360 ––––––––––––––––––––––––––––––––WANTED (US): WACKER NEUSON WL30 WHEEL LOADERS - LOOKING FOR RUNNING WACKER NEUSON WL30 WHEEL LOADER. EMAIL: CRAIGBERENS944@GMAIL.COM; PHONE: 616/8I3/3642 ––––––––––––––––––––––––––––––––WANTED (US): HITACHI EX450LC 5 EXCAVATORS – NEED TO BUY HITACHI EXCAVATOR (DIGGERS) 450, 400, 270, 300, 200 SIZE. EMAIL: IKCEQUIPMENTS@GMAIL.COM ––––––––––––––––––––––––––––––––
EMAIL:
––––––––––––––––––––––––––––––––
EMAIL:
––––––––––––––––––––––––––––––––
––––––––––––––––––––––––––––––––
EMAIL:
––––––––––––––––––––––––––––––––
IF
EMAIL:
PHONE:
––––––––––––––––––––––––––––––––
EMAIL:
––––––––––––––––––––––––––––––––
VATORS
HITACHI
EMAIL:
PHONE: +923331234598 ––––––––––––––––––––––––––––––––
BUY
300, 400,
450
EXCAVATORS. OFFER ME RUNNING OR NON-RUNNING EXCAVATORS. EMAIL: USEDEQUIPMENTSOURCING@GMAIL.COM PHONE: 281-694-5478 ––––––––––––––––––––––––––––––––WANTED
495D, 595D. EMAIL:
PHONE: +923331234598 ––––––––––––––––––––––––––––––––WANTED
B7300HSD TRACTOR WITH 60 INCH MOWER DECK. EMAIL:
PHONE: 845-225-7504 ––––––––––––––––––––––––––––––––WANTED
ACS
–BUCKETS, ALL MODELS EMAIL: BEBOMOR2003@YAHOO.COM ––––––––––––––––––––––––––––––––
––––––––––––––––––––––––––––––––
––––––––––––––––––––––––––––––––
CONCORD, PUMPSTAR, ETC. ALL MODELS, BRANDS, & SIZES, OLD OR NEW! BOOM PUMPS, TRAILER & TRUCK MOUNTED CITY PUMPS PURCHASED. OLD, RETIRED, NO LONGER USED AND PARTS & PUMPS NEEDING REPAIRS. INSTANT PAYMENT GUARANTEED. EMAIL: BBENEDETTO@COMCAST.NET ––––––––––––––––––––––––––––––––WANTED (WORLDWIDE): CATERPILLAR 140G MOTOR GRADERS – CAT USED MOTOR GRADER 140G AND 140H FOR OWN STOCK. EMAIL: EDDIE.SIDDIQUI3@GMAIL.COM ––––––––––––––––––––––––––––––––WANTED (WORLDWIDE): HITACHI EX330-5 EXCAVATORS – WE ARE LOOKING TO BUY A COUPLE OF UNITS OF HITACHI EXCAVATORS EX 330-5 & EX 450-5. IF YOU HAVE ANY OF THEM AVAILABLE, PLEASE LET ME KNOW. EMAIL: IKCEQUIPMENTS@GMAIL.COM ––––––––––––––––––––––––––––––––WANTED (WORLDWIDE): CATERPILLAR 988B WHEEL LOADER– WE NEED TO BUY A CAT USED WHEEL LOADER 936, 988B/F & 950B. IF YOU HAVE AVAILABLE, PLEASE LET US KNOW. EMAIL: NORTHHEAVYEQUIPMENTS@GMAIL.COM ––––––––––––––––––––––––––––––––
––––––––––––––––––––––––––––––––
––––––––––––––––––––––––––––––––
––––––––––––––––––––––––––––––––WANTED:
––––––––––––––––––––––––––––––––
––––––––––––––––––––––––––––––––
––––––––––––––––––––––––––––––––
TRUCKS
OR
EMAIL:
PHONE:
––––––––––––––––––––––––––––––––WANTED
FT
4-5
PREFER FREIGHTLINER CHASSIS. EMAIL: ZACHZ@BLACKSTARACA.COM; PHONE: 815-575-6797 ––––––––––––––––––––––––––––––––WANTED (US): CATERPILLAR 916 WHEEL LOADERS; RUNNING OR NONRUNNING UNITS REQUIRED. EMAIL: IMPERIALMACHINERYTRADER@GMAIL.COM; PHONE: 281-694-5478 ––––––––––––––––––––––––––––––––WANTED (US): CATERPILLAR 966F II WHEEL LOADERS EMAIL: ILYAS.MTCPK@GMAIL.COM; PHONE: +923322489350 ––––––––––––––––––––––––––––––––WANTED (NJ): CASE BACKHOE LOADERS: 580SK, 580L, 580SL, 580LII, 580SLII, 580M, 580MII, 580MIII, 580SM, 580SM+, 580SMII, 580SMIII, 580N EP, 580N, 580SN, 580SN WT EMAIL: FRANKHORAN@ GROFFTRACTOR.COM PHONE: 800-654-USED ––––––––––––––––––––––––––––––––
EMAIL:
––––––––––––––––––––––––––––––––WANTED
––––––––––––––––––––––––––––––––
EMAIL:
––––––––––––––––––––––––––––––––
––––––––––––––––––––––––––––––––
916,926,936,950B/E,966E/D/F,
LET US KNOW THANKS. EMAIL: IKCEQUIPMENTS@GMAIL.COM ––––––––––––––––––––––––––––––––WANTED (US): ALL MODELS HITACHI EXCAVATORS – WE NEED TO BUY HITACHI EXCAVATORS ZX 200-1, ZX 330, ZX 450, ZX 650, ZX 850 EX 270-1, EX 300-1, EX 400-1 AND EX 450-5. ALSO KOMATSU EXCAVATORS PC400, KOMATSU PC 450-6, KOMATSU PC 7506. IF ANY OF THEM ARE AVAILABLE PLEASE LET US KNOW, THANKS. EMAIL: EDDIE.SIDDIQUI3@GMAIL.COM ––––––––––––––––––––––––––––––––WANTED (WORLDWIDE): HITACHI EX450 LC-5 EXCAVATORS. WE ARE LOOKING FOR USED HEAVY CONSTRUCTION MACHINES. PLEASE OFFER US FOLLOWING MENTION MACHINES & EMAIL US DETAILS WITH PICTURES CATERPILLAR MOTOR GRADERS 140G CATERPILLAR WHEEL LOADERS 950B, 950E, 966E, 966F, 966FII, 970F, 980F HITACHI EXCAVATORS EX200, EX200LC, EX270LC, EX400, EX400LC, EX300LC, EX330LC-5, EX450LC-5, EX400-5, EX60WD, EX100WD. JOHN DEERE 495D, 595D. EMAIL:
PHONE:
––––––––––––––––––––––––––––––––
––––––––––––––––––––––––––––––––
––––––––––––––––––––––––––––––––
––––––––––––––––––––––––––––––––
IF
––––––––––––––––––––––––––––––––WANTED
––––––––––––––––––––––––––––––––
––––––––––––––––––––––––––––––––
PLEASE
THANKS
EMAIL:
PHONE:
––––––––––––––––––––––––––––––––
EMAIL:
GMAIL.COM ––––––––––––––––––––––––––––––––WANTED
5 EXCAVATOR EMAIL: MIKE@3MEQUIPMENT.COM; PHONE: 240-910-0877 WANTED (WORLDWIDE): LOOKING TO BUY HITACHI EXCAVATOR EX200, EX200LC, EX270LC, EX330LC-5, EX400LC, EX450LC-5. OFFER AVAILABLE EQUIPMENT AND GOOD PRICE. EMAIL: NAQIB_KHANINTRCO@ HOTMAIL.COM ––––––––––––––––––––––––––––––––Attention Contractors! Post Your Wanted To Buy Listings FREE! Here’s How! List Your Wanted Items. If you would like to place your Wanted To Buy listings on our website for inclusion in our newsletters, simply visit: www.ConstructionEquipmentGuide.com/wanted-to-buy and enter your listings. Inappropriate or Sale Ads will be Deleted

ALEX LYON & SON AUCTIONEERS

www.lyonauction.com

315-633-2944

ï Timed Online

October 12 - 26, 2022

For: Major Job Completion in Victoria, TX (Part 1)

ï Online

October 14 - 30, 2022

For: Collectibles

ï Cincinnati, OH

Sat., October 15, 2022

For: Earthmoving & Job Completion of Major Utility Construction Co.

ï Pittsburgh, PA

Thurs., October 20, 2022

For: Late Model Construction Equipment & more

ï Manchester, NH

Sat., October 22, 2022

For: One Owner, Construction & Agricultural Equipment

ï Victoria, TX

Thurs., October 27, 2022

For: Major Job Completion (Part 2)

ï Online Thurs., October 27, 2022

For: Late Model Construction Equipment & more (Mexico)

ï Online

Oct. 28 – Nov.10, 2022

For: Late Model Snow & Construction Equipment & more

ï Montague, NJ

Sat., October 29, 2022

For: Retirement – Construction, Utility Equipment & more

ï Newport, VT

Fri., November 4, 2022

For: Large Construction, Logging, Recycling Equipment & more

ï Atkinson, NH Sat., November 5, 2022

For: Large Late Model Trucks, Construction Equipment & more

RITCHIE BROS. AUCTIONEERS

www.rbauction.com 402-421-3631

All our auctions are now online bidding only!

ï BC Regional Event October 12-13, 2022

ï Saskatoon, SK October 18-19, 2022

ï Edmonton, AB October 25-28, 2022

ï Orlando, FL November 3-4, 2022

ï Houston, TX November 8-9, 2022

ï Tipton, CA November 18, 2022

ï Las Vegas, NV November 22, 2022

BAR NONE AUCTION www.barnoneauction.com 866-372-1700

ï Online

Fri., October 21, 2022

For: Woodburn, OR Monthly Public Auction

ï Online

Sat., November 12, 2022

For: Sacramento, CA Monthly Public Auction

Coming Auctions

ï Online Fri., November 18, 2022

For: Woodburn, OR Monthly Public Auction

BIDADOO AUCTIONS www.bidadoo.com 1-877-BIDADOO

ï Online October 18, 2022

ï Online October 25, 2022

BIG IRON AUCTIONS www.bigiron.com 800-937-3558

ï Online October 12, 2022

ï Online October 19, 2022

BUNCH BROTHERS AUCTIONEERS www.bunchbrothersauctioneers.com 270-376-2992

ï New Haven, KY Sat., October 29, 2022

For: Absolute Estate Auction

DEANCO AUCTIONS www.deancoauction.com MS: 601-656-9768 AL: 334-693-2540

ï Philadelphia, MS Wed., November 16, 2022

For: Huge Construction Equipment & Truck Public Auction

DON SMOCK AUCTION CO., INC. www.dsa-auctions.com 765-778-9277

ï Princeton, IN Tues., October 18, 2022

For: 2022 Fall INDOT Absolute Auction

ï Madison, IN Tues., October 25, 2022

For: 2022 Fall INDOT Absolute Auction

ï Crawfordsville, IN Tues., November 1, 2022

For: 2022 Fall INDOT Absolute Auction

FREY & SONS, INC. www.freyandsons.com 419-455-3739

ï Archbold, OH Thurs., November 10, 2022

For: NW Ohio Contractors Auction

ï Hubbard, OH Thurs., November 17, 2022

For: Equipment Auction

HANSEN AUCTION GROUP www.hansenauctiongroup.com 920-383-1012

ï Mosinee, WI October 27 - 28, 2022

For: Nitke Fall Contractor Auction

HESS AUCTIONEERS www.hessauctioneers.net 866-511-2493

ï Marietta, PA Fri., October 14, 2022

For: Truck, Trailer & Equipment Auction

HUNYADY AUCTION COMPANY www.hunyady.com 800-233-6898

ï Virtual Live Wed., October 12, 2022

For: Absolute Auction, Gernatt Asphalt Products, Inc.

ï Virtual Live Wed., November 2, 2022

For: Complete Liquidation, Meadville Redi-Mix Concrete, Inc.

I.R.A.Y. AUCTION www.iraymn.com 320-968-7230

ï Online Wed., November 2, 2022

For: Heavy Equipment, Semi, Truck, Trailer Consignment Auction

IRON AUCTION GROUP www.ironauctiongroup.com 864-546-1216

ï Gaston, SC Thurs., October 20, 2022

For: Unreserved Contractor Liquidation Auction

J.J. KANE AUCTIONEERS www.jjkane.com 856-764-7163

ï Timed Online Thurs., October 13, 2022

For: Ken Porter Auction

ï Timed Online Tues., October 18, 2022

For: Western Regional Auction Event

ï Timed Online Tues., October 25, 2022

For: Southern Regional Auction Event

ï Timed Online Thurs., October 27, 2022

For: First Capital Auction

J. STOUT AUCTIONS www.jstoutauction.com 888-897-8864

ï Online October 25-26, 2022

For: 2 Day – Public Live Online Only Auction

JAMES G. MURPHY INC. AUCTIONEERS

www.murphyauction.com 425-486-1246

ï Online

October 6 - 13, 2022

For: Kenmore Heavy Equipment, Contractors Equipment & Vehicles

JEFF MARTIN AUCTIONEERS, INC. www.jeffmartinauctioneers.com 601-450-6200

ï Stanton, TX Wed., October 12, 2022

For: Permian Basin Unreserved Public Auction

ï Prosperity, SC Sat., October 15, 2022

For: Unreserved Public Estate Auction

ï Conway, SC Tues., October 25, 2022

For: Construction Equipment & Truck Public Auction

MIDEAST EQUIPMENT AUCTIONS

www.mideastequip.com 860-370-9993

ï Virtual Online Tues., October 25, 2022

For: 3rd Annual Truck & Equipment Auction H&K Group

MIEDEMA ASSET MANAGEMENT GROUP www.1800lastbid.com 616-538-0367

ï Online RangerBid.com

Ends October 18, 2022

For: Municipality & Consignment Auction. Various locations

ï Online Repocast.com

Ends November 1, 2022

For: Construction/Heavy Equipment & Snow Removal Equipment

ï Online Orbitbid.com

Ends November 8, 2022

For: Construction Equipment & Inventory Reduction

PAUL E. SAPERSTEIN INC. www.pesco.com 800-660-6553

ï Dighton, MA Sat., October 22, 2022

For: Major NE Contractor – 1 Owner Sale

PURPLE WAVE AUCTION www.purplewave.com 866-608-9283

ï Online Wed., October 12, 2022

For: Ag Equipment Auction

ï Online Thurs., October 13, 2022

For: Truck & Trailer Auction

ï Online Thurs., October 13, 2022

For: Kansas Turnpike Authority Auction

ï Online Wed., October 19, 2022

For: Vehicles & Equipment Auction

ï Online Thurs., October 20, 2022

For: Construction Equipment

ï Online Tues., October 25, 2022

For: Government Auction

ï Online Wed., October 26, 2022

For: Ag Equipment Auction ï Online Thurs., October 27, 2022

For: Kansas Dept. of Transportation Auction

ï Online Thurs., October 27, 2022

For: Truck & Trailer Auction

RES AUCTION SERVICES www.RES.bid 833-SOLD-RES

ï Mount Sterling, KY Fri., October 28, 2022

For: Construction & Ag Equipment Auction

SALES AUCTION COMPANY, LLC www.salesauctioncompany.com 860-627-7506

ï Suffield, CT Thurs., October 27, 2022

For: Purinton Builders, Inc. Retirement Auction

STEFFES GROUP INC. www.steffesgroup.com 701-237-9173

ï Timed Online October 7-12, 2022

For: Online Steffes Auction

ï Timed Online October 10-19, 2022

For: Northern Lights Specialized Shop Equipment Auction

ï Timed Online October 12-19, 2022

For: JNS Trucking Inc. Retirement Auction

ï Timed Online October 21-26, 2022

For: Online Steffes Auction

ï Timed Online November 4-9, 2022

For: Online Steffes Auction

VANTAGE AUCTIONS www.vantageauctions.com 951-228-9040

ï Lake Elsinore, CA Sat., November 12, 2022

For: Public Auction

WSM AUCTIONEERS www.wsmauctioneers.com 623-936-3300

ï Virtual Online Sat., November 12, 2022

For: Public Auction

YODER & FREY

HEAVY EQUIPMENT AUCTIONS www.yoderandfrey.com 419-865-3990

ï Kissimmee, FL Wed., November 2, 2022

For: Florida Auction

Page 110 • October 12, 2022 • www.constructionequipmentguide.com • CONSTRUCTION EQUIPMENT GUIDE
To view information on upcoming auctions visit our Auction Calendar at www.constructionequipmentguide.com Auctions are subject to change, please check Auctioneers websites for details

Go to WWW.LYONAUCTION.COM for START-STOP times on our TIMED & LIVE AUCTIONS

1. LIVE: Saturday, October 15: CINCINNATI, OHIO: 2 Auctions in One Day. Complete Liquidation. Earthmoving Division and Job Completion of Major Utility ConstructionCompany. HIGHLIGHTS: Cat615C,(2)Cat621B,CatD7,CatD6,Cat953, (2)Komatsu D37P-8, Superior Broom, Several Dump Trucks, Several Fire Trucks, Several Tagalongs,KomatsuPC200LC-6,KomatsuPC130LC-8,(2)JD35G,2018Cat930M,2014 JD 700K/sideboom, JD 6506LGP, Ditch Witch 4020AT, Ditch Witch 30 Boring Units.

2. LIVE: Thursday, October 20: PITTSBURGH (Acme), PENNSYLVANIA: Late Model Cat, John Deere, Komatsu, Volvo Construction Equipment, Aerial Lifts, Telescopics, Truck Tractors, Dump Trucks, Pickups,All Types of Trailers,Attachments & Support.

3. LIVE: Saturday,October22: MANCHESTER(Bridgewater),NEWHAMPSHIRE: 1 Owner. A Collection Decades in the Making of the Nicest Construction & Agricultural Equipment FoundAnywhere(ItAll Runs). Cat D4, Quantity of Cat D2's, Cat 9(winch), Cat D7, IH and John DeereAg Tractors, Drag Lines, IH TD24, Quantity of Hit-Miss Engines, Ford Model T and much more.

4. TIMED PART 1: Closes-Wednesday, October 26, Opens-Wednesday, October 12: VICTORIA, TEXAS: Major Job Completion. All Types of Support Equipment, Accessories & Shop Equipment to be Found in a Company of This Size.

5. LIVE PART 2: Thursday, October 27: VICTORIA, TEXAS: Major Job Completion. HIGHLIGHTS: 2018VolvoA5G, (2)2015 Cat 725, Cat 16G, (Cat D6TLGP, (3)Cat D6RLGP, (2)Cat 330DLC(long reach), Steiger HD385, (6)Case IH 9380-9370, 2)Case IH 9370- 9350 Quad Trac Pulling Tractors, (6)17ft. & 14ft. Yard Pans, (2)Ford F750 Water Trailers, 2019 Ford F550 Service Truck, (2)Telescopic Forklifts, Manitowac 4500, Linkbelt 418, Grove 8050, Pile Driving Equipment.

6. ONLINEAUCTION: Thursday,October27: QUERETARO,MEXICO: LateModel Cat, Case, John Deere, Volvo Construction Equipment, Aerial Lifts, Forklifts, Trucks and Trailers, Large QuantityAttachments & Support Equipment.

7. LIVE: Saturday, October 29: MONTAGUE, NEW JERSEY (Port Jervis, NY): 2Auctions in 1 Day. 2 Retirements. Construction, Utility Equipment,Attachments, Support, Trucks and Trailers.

8. TIMED: Closes- Sunday, October 30, Opens- Friday, October 14: CAMBRIDGE, MAINE: Group of Collectible Trucks, Collectible Snowmobiles & more. Large Amount of Support.

9. LIVE: Friday, November 4: NEWPORT, VERMONT: 1 Owner Auction. Large Construction, Logging, Recycling, Equipment,TruckTractors, DumpTrucks,AllTypes of Trailers.

10. LIVE: Saturday, November 5: ATKINSON, NEW HAMPSHIRE: Large Quantity Late Model Trucks: Pickups, Service, Bucket & Derrick, Construction Equipment,Aerials and Forklifts.

11. TIMED: Closes- Thursday, November 10, Opens- Friday, October 28: NEWARK, NEW JERSEY: Later Model Snow & Construction Equipment, Attachments, Support, Snow Trucks, Pickups, Skid Steers, Forklifts,Aerial Lifts.

12. LIVE: Friday, November 11: AKRON, OHIO: MajorJobCompletion.Aggregate Division. Late Model Crushers, Screening Plants, Radial Stackers, Conveyors, Construction Equipment, Dump Trucks, Truck Tractors, Various Types of Support and Attachments.

13.

LIVE: Saturday, November 12: BUFFALO, NEW YORK: Late Model Construction &Agricultural Equipment,Attachments, Support, Trucks, Trailers.

14. LIVE: Friday, November 18: SAUGET, ILLINOIS: Late Model Cat Rental Returns, Large Quantity of All Types of Construction & Utility Equipment, Aerial Lifts, Crawler Tractors, Rubber Tired Loaders, Skid Steers, Hydraulic Excavators, Loader Backhoes, Forklifts, Boom & Scissor Lifts,Attachments, Trucks & Trailers.

15.

LIVE: Saturday, November 19: ALBANY, NEW YORK: 1 Owner. Complete Liquidation. Late Model Construction,Aggregate Equipment, Late Model Dump Trucks, Mack Truck Tractors, Dump Trailers, Pickups,Attachments & Support.

Tuesday, November 22: LONG ISLAND, NEW YORK: 1 Owner. Complete Liquidation. Very Late Model Cat Construction & Snow Equipment, Snow Related Trucks, SnowAttachments, Tools & much more.

Closes- Saturday, November 26, Opens- Tuesday, November 15: BRIDGEPORT (Syracuse), NEW YORK: Complete Liquidation. Over 50 Years in Business Paving & Construction Company. Plus Late Model Medium- Compact Construction Equipment, Forklifts, Aerial Lifts, Skid Steers, Attachments, Snow Plows, New & Used Support, Truck Tractors, Refrigerator Trucks, Van Trailers, Pickups.

18. TIMED: Closes-Friday,December2,Opens-Sunday,November20: COLUMBUS, OHIO: Large Quantity Late Model Vans-Mostly 53', Truck Tractors, Service Trucks, Several Rubber Tired Loaders, Skid Steers.

19.

20.

21.

22.

LIVE: Wednesday, December 7: FORT WORTH, TEXAS: Late Model Cat, Komatsu, John Deere Rental Fleet Construction Equipment, Attachments, Support, Trucks, Trailers.

LIVE: Friday, December 9: SCOTTSDALE, ARIZONA: Late Model Rental Cat, John Deere, Hitachi Construction Utility Equipment, Aerial Lifts, Forklifts, Accessories,Attachments, Trucks, Trailers.

LIVE: Saturday, December 10: LAS VEGAS, NEVADA: Late Model Boom Lifts, Aerial Lifts, Scissor Lifts, Forklifts, Construction Equipment, Trucks, Trailers, Support andAttachments.

LIVE: Wednesday, December 14: HAGERSTOWN, MARYLAND: Major Coal Company Job Completion of Several Major Jobs. HIGHLIGHTS: Cat 785D, Cat 785C, (6)Cat 777D, Cat D11R, (4)Cat D11N, Cat D10N, (3)Cat 992G, Cat 992D, (2)Cat 992C, Komatsu PC300LC, SPECIAL: Hitachi EX2500-6, (2)Cat 5230, Cat 773B, Cat 770B Water Trucks.

23. LIVE: Saturday, December 17: ATLANTIC CITY, NEW JERSEY: Late Model Rental Fleet Construction, Utility Equipment, Aerial Lifts, Forklifts, Trucks, Trailers, Large Quantity Support Equipment and Buckets.

24. LIVE: Wednesday, December 28: ALBANY, NEWYORK: Very Large, 1 Owner Major Job Completion of Several Jobs. NO CONSIGNMENTS. Construction Equipment, Aerials,Aggregate, Trucks, Trailers & Support

25. LIVE: Thursday, December 29: ALBANY, NEW YORK: Late Model EarthmovingEquipment,CatKomatsu,JohnDeere,Volvo,MultipleTrucks,Trailers,Aerial Lifts, Forklifts,Attachments and Support.

26. LIVE: Saturday, January 28: COLUMBUS (Delaware), OHIO: Large Cat, John Deere Construction & Agricultural Equipment Auction. Construction Equipment, Ag Tractors,Aerial Lifts, Forklifts, Trucks & Trailers.

27-35.

LIVE: Saturday, February 4 to Sunday, February 12: BUSHNELL (Orlando), FLORIDA: 30th Annual 9-Day Rental Return Auction. The Greatest Construction Equipment,Aerial Lifts,Trucks,Trailers,Attachments, Support Equipment on Planet Earth - The Best of the Best.

NEW DATES TO BE ANNOUNCED

36. TORONTO, CANADA: Late Model Rentals of Agricultural Equipment, Construction Equipment,Attachments, Tools, Support, Various Trucks and Trailers.

37. RACINE, WISCONSIN: Job Completion Auction of Late Model Construction, Aggregate, Utility Equipment, Truck Tractors, Dump Trucks, Service & Pickup Trucks, Trailers,Attachments and Support.

38. MANCHESTER, NEW HAMPSHIRE: 2nd Annual Classic Car, Classic Truck, Classic Construction EquipmentAuction. Something Really Neat.

39. PITTSBURGH, PENNSYLVANIA: Late Model Cat, John Deere, Komatsu,Volvo Construction Equipment,Aerial Lifts, Telescopics, Truck Tractors, Dump Trucks, Pickups, All Types of Trailers,Attachments & Support.

40. CHICAGO, ILLINOIS: Construction Equipment, Aerial Lifts, Forklifts, Truck Tractors, Dump Trucks, Pickups, All Types of Trailers (Equipment & Van), Attachments

Quantity Late Model Trucks: Pickups, Service,

ATTLEBORO, MASSACHUSETTS:

& Derrick,

Equipment,Aerials and Forklifts.

WEST VIRGINIA: Very Large, Late Model Construction & Utility Equipment Auction. Construction & Utility Equipment, Accessories, Trucks, Trailers

CONSTRUCTION EQUIPMENT GUIDE • www.constructionequipmentguide.com • October 12, 2022 • Page 111 Important Auctions45 AUCTION CALENDAR www.lyonauction.com followuson @LyonAuction! 315.633.2944 • www.lyonauction.com • www.lyonauctionlive.com
16. LIVE:
17. TIMED:
and Support. 41.
Large
Bucket
Construction
42. PARKERSBURG,
from Dirt Job Completion. 43. DALLAS- FT. WORTH, TEXAS: Late Model Cat, John Deere, Volvo Construction Equipment,Aerial Lifts, Trucks & Trailers. 44. BATON ROUGE, LOUISIANA: Very Late Model Rental Fleet Construction & Utility Equipment Auction. Aerial Lifts, Forklifts, Air Compressors, Welders, Light Plants, Utility Carts, Pickups, Trailers. 45. CANTON, NEW YORK: Estate Liquidation. The finest Small Machine Shop in the North Country. Plus Small Collection of Guns. Heavy Equipment Trucks Road Maintenance Utility Equipment Trailers Much More... www.AuctionsInternational.com 1.800.536.1401 www.AuctionsInternational.com YONLINE LIQUIDATION MARKETPLACEOUR BIG orwe sell itALL!SMALL Virtual equipment showroom. Hassle free process. Accredited auctioneers. Hundreds of assets. Check us out today! @auctionsinternationalinc
Page 112 • October 12, 2022 • www.constructionequipmentguide.com • CONSTRUCTION EQUIPMENT GUIDE

DAVIS AUCTIONS,

LOCATION: 210 CHESHIRE ROAD, RT. 68, PROSPECT, CT

Davis Auctions, Inc. will be conducting our next auction of utility and construction equipment and related supplies on October 22, 2022. This auction will consist of excess equipment from the power companies, municipalities, and others to be sold in absolute. Please call about consigning through October 15.

Early Consignments: EQUIPMENT

Skid Steer Loader: VOLVO MC95C, EROPS; CASE 1845B, OROPS; Wheel Loader Backhoe: CASE 580E Super E, EROPS; HY-DYNAMIC DYNAHOE 160 Series B; JOHN DEERE110, EROPS, 4x4; m

Wheel Loader: CAT 950F2;

Track Loader: BOXER 320, 800 +/- hrs., w/bucket & post hole digger on trailer; Dozer: Cat D5; Wheel Tractors: Antique NATIONAL Reel Mower Tractor, Kohler motor; Forklifts: ALLIS CHALMERS ACC100 10,000#; HYSTER 5120SLS 12,000#; TOYOTA; CROWN Walk Behind; Skid Steer Attachments: Over the Rail Mower; Plow; Forks; Grapple Buckets; Post Hole Diggers; Tree Shear; Rototiller;

Track Digger: 2002 SOFT TRACK ST15TXL Track Digger w/pole grabber, Cummins dsl; Misc.: MORBARK MD17 Chipper, hyd feed, JD dsl; SULLIVAN D1850 Trailer Mounted Air Compressor, JD dsl; MOBIL Sweeper, JD dsl; Asphalt Roller w/ 1986 HOMEMADE 1 Ton Trailer; Roller; Curbing Machine; (3) Air Hammers; Trench Bucket; Auger; CAT 12’ Quick Connect Snowplow; FORD MD706 Scoop Bucket; 3 PtH Planter; 3 PtH Post Hole Digger; 3 PtH 3 Bottom Plow; Turf Vac

Power Equipment Dealer Retiring after 50 years- Most items below are New in Original Packaging ARIENS Bagger for 50” Zoom; HUSQVARNA Baggers for 42” Stamped Dock; HUSQVARNA W242SL Bagger; 242FZ Bagger for Zero Turn; HUSQVARNA Mower Parts; KAWASKI Engine Parts; BRIGGS Filters; ARIENS Parts; TECUMSEH Parts; ECHO Parts; Misc. Engine Parts; Rotary Mower Parts; KOHLER Engine Parts; BINO Parts; BRIGGS & STRATTON Parts

VEHICLES

Bucket Trucks: (8) 2009-2007 INT’L 4400 Bucket Trucks; 2007 INT’L 4400 w/Terex Telelect Hi-Ranger HR50M Bucket, Dakota utility body, 4 outriggers, DT466; (2) 2005 INT’L 4400 w/Terex Telelect Hi Ranger HR50M Bucket, Dakota utility body, DT466, 4 outriggers; 2010 FORD F750 Bucket Truck; (3) 2012 DODGE Ram 5500HD w/Altec AT37G Bucket, Cummins Turbo dsl; 2005 FORD F750 w/Versalift VST240 Bucket; 2002 INT’L 4900 Bucket Truck, 75’, chip body; 2003 STERLING L9500 Tri-Axle, Cat C16 600 hp; 2006 STERLING LT9500, Cat C15; 1997 MACK CH613; Dump Trucks: 1977 MACK RD612 T/A, w/cover; 1969 MACK U600 w/Ruff Roller cover; 2011 FORD F550XL SD w/Reading dump body, plow, pintle hitch,6.7 L Powerstroke; 2012 FORD F550 Mason Dump w/sander & x-blade plow;

Utility Trucks: 2011 FORD F350XL SD Ext. Cab w/Reading enclosed utility body, 4x4; 2011 FORD F350XL SD w/Reading utility body, & rack, 4x4; 2010 FORD F350XL SD Ext. Cab w/Reading utility body, TommyGate liftgate & rack, 4x4; 2005 FORD F350XL SD w/Knapheide utility body, PowerBox port. power source, Venturo CE6K crane, Powerstroke Turbo dsl, winch, 4x4

Misc. Trucks: 2015 FORD F450SC Rack Body Dump, 4x4, w/Fisher plow; 2012 FORD F4510SC Rack Body Dump, 4x4, w/Fisher x-plow; 2007 INT’L 4400 Flatbed, pintle hitch; 2002 INT’L MD2654 Vac Truck, dsl, auto w/VACTOR C100 Body, JD 6 cyl. motor; 2001 INT’L 4900 w/Flink hyd angle plow & S/S sander, dsl, auto; 1999

Bidding,

MITSUBISHI FE6 Tilt Cab Box Truck; 2003 FORD F450 Supercab Flatbed w/hyd. lift; 2003 CHEV. Silverado 3500 Dump w/plow; Army 5-ton 6x6 Rack Body Truck; Pickups: 2014 FORD F150XL Ext Cab w/toolbox, 4x4; (4) 2013 CHEV Silverado 1500 Crew Cab, 4x4; 2012 FORD F150XL Ext Cab w/hard top tonneau cover, 4x4; 2012 FORD F150XL Ext. Cab w/toolbox & tonneau cover, 4x4; 2011 FORD F250, 4x4; (3) 2011 FORD Ranger Ext. Cab w/ toolbox, 4x4; 2010 FORD F350XL SD Crew Cab w/toolbox & rack, 4x4; 2010 FORD F350SD Ext Cab, w/toolbox & rack; 2010 DODGE Dakota Ext. Cab, w/cap, 4x4; 2010 DODGE Dakota Ext. Cab, 4x4; 2005 FORD F150; 2004 FORD F150, 4x4; 2004 NISSAN Titan, 4x4; Cars/SUV: (2) 2015-2014 JEEP Patriot; 2015 NISSAN Leaf 4 dr Electric SUV; 2013 FORD Escape SE; 2012 CHEV. Equinox LT, AWD; 2012 JEEP Cherokee Laredo, 4x4; 2012 FORD Fusion; (3) 2011 FORD Explorer, 4wd; (3) 2011 FORD Escape; 2011 CHEV Equinox LT, AWD; 2010 FORD Escape XLT; 2009 FORD Escape; 2000 BMW 323I Sedan; 1989 CADILLAC Brougham 4 dr Sedan; Vans: 2014 RAM C/V Cargo w/toolbox; 2013 CHEV Express w/storage, AWD; 2011 DODGE Caravan; 2010 DODGE Caravan; Trailers: 2018 MMDI ME510R Equipment; 2017 MMDI ME510R Equipment; 2001 TOWMASTER T5T Flatbed; Campers: 2005 FOREST RIVER WPT28BR Toy Hauler; Antique Coca Cola Vending Tandem Axle Trailer, 2 side doors, 1 back door; Storage Containers: 40’ Storage Container w/ 4 doors; 9’ Container w/door & window; Portable Buildings: Portable Bathroom w/ shower; Portable Bathroom w/2 Stalls; (2) Portable Bathrooms; (2) 6’ x 4’ Ticket Booth; Stone: (11) Pallets- 2” Tumbled Irregular Pavers; (10) Pallets- Thermal Treads; (3) Pallets- 12”x18”x1” Thermal Pattern; Pallet- ¾” Mixed Variegated Thermal; (2) Pallets- Thin Blue G Wall; Pallet- 6”x6”x2” Tumbled Pavers; Pallet- 6”x12”x2” Tumbled Pavers; (4) Pallets- 12”x12”x2” Tumbled Pavers; (2) Pallets- 18”x48”x6” Thermal Steps; (12) Pallets- Gauged Colonial Wallstone; Misc.: Large Quantity of Unused Items from Home Depot- Tools, Fixtures, Etc.; (2) XMARK 60” Walk Behind Mowers; XMARK 24” Mower; (2) XMARK Thatcher; 5’ Flail Mower; SNOW EX P/U Tailgate Sander; FISHER MD1000 P/U Tailgate Sander; BODY for 2021 CHEV 2500; Pallets-Pipe Elbows; PCV Pipes; Pallets- Electrical Parts; Pallet- MILWAUKEE Chargers; Pallets- Spacers- Elbow Pipe & PVC Duck; Pallet- Roof Pipe Stanchion; ECHO CSG 7410 Masonry Saw; Generators; Air Compressors; Welders; Pressure Washer; Cement Mixers; Table Saws; Lawn Mowers; Sewer Line Cleaners; Post Hole Digger; Irrigation Pump w/ 550’ pipe; Torch Set; Line Set w/torches; Retractable Wall/Ceiling Reel; Air Hose Reels; Hyd. Motorcycle Lift; Hyd. Hoist; Chain Hoist; Engine Stand; WITTE One Luger Gas Motor w/steel wheels; Toolboxes; Plate Tamper; Trolling Row Boat; Hitch Storage Box; Construction Road Signs; Mason Levels; Outdoor Sink; Light Fixtures; Pipe Wrenches; Hedge Trimmers; Weed Wackers; Leaf Blowers; Chainsaws; Blowers; Misc. Hardware; Auto Scrubbers; Carpet Extractor; PalletHeat Sealers, Scales, Etc.; Ladders; Carts; Pump Jacks; 40’ Demo Trash Chute; Alum. Headache Rack; Snowplows;

Inspection: Friday, October 21- 8:00 am to 5:00 pm

Online bidding will be available.

Please register for online bidding a minimum of 24 hours before sale.

Sale

CONSTRUCTION EQUIPMENT GUIDE • www.constructionequipmentguide.com • October 12, 2022 • Page 113 For Online
Visit https://www.proxibid.com Call for more information: AUCTIONEER: DAVIS AUCTIONS, INC. REGINALD LUSSIER (203) 758-4087 or 1-800-201-4368 LYNDONVILLE, VT 05851 www.davisauctionsinc.com NH LICENSE #2413 CONSTRUCTION AUCTION
INC. SATURDAY, October 22, 2022 9:00 A.M.
Terms: 10% Buyer’s Fee Payment: Cash, Good Checks, Credit Card & Certified Checks

UnderNewConcrete,AsphaltRegs,FirmsMustProvideEPD

supporting good American manufacturing jobs,” said the White House.

In addition to prioritizing the purchase of steel, concrete, asphalt and flat glass, the federal government will purchase these materials when they have fewer emissions.

The Biden Administration anticipates prioritizing additional construction materials and pollutants for Buy Clean Federal procurement.

The administration will expand lower-carbon construction materials used in federallyfunded projects.

In addition to federal procurement, Buy Clean will also cover federally-funded projects.

The initiative will jumpstart a new partnership between state governments and federal partners to align state-based Buy Clean policies with federal incentives.

The incentives will expand markets for clean manufacturing and low carbon materials across the nation’s buildings and infrastructure.

Next month, the White House will convene states to share knowledge and build capacity for public construction projects that support American workers and lower carbon emissions, it said.

The initiative will increase data transparency through supplier reporting to help American manufacturers track and reduce emissions.

The administration plans to expand the reliability, transparency and verification of EPDs including GHG emissions reporting for actual supply chain production.

The initiative will launch pilot programs to advance federal procurement of clean construction materials.

“Federal Buy Clean Initiative pilots have already broken ground across the country — from Denver, Colorado, to Salt Lake City, Utah, to Champlain, New York, to Lukeville, Arizona — in partnership with regional contractors and subcontractors including engineering, architecture and materials firms, with technical support from DOE, EPA and USDA.”

Agencies Join Effort

Together, the expanded Task Force agencies account for 90 percent of all federally-financed and purchased construction materials.

The Department ofAgriculture is supporting innovations in construction materials made from sustainablyharvested and waste bio-materials

The goal is to integrate these materials into and potentially replace carbon-intensive materials. In grant program criteria, the DOT has incentivized the use of materials that reduce carbon emissions.

In June, the department’s chief sustainability officer launched a lower carbon procurement pilot to increase utilization of EPDs and encourage the acquisition of products and materials with low embodied carbon emissions.

In April 2022, FHWA issued a climate challenge to reduce the lifecycle emissions in the design, construction and maintenance of pavements. The challenge received 40 submissions from 25 states.

FHWA also launched a tool, known as LCA PAVE, that can be used to assess environmental impacts of pavement material and design decisions.

The department’s Embodied Carbon Working Group will support new efforts to ensure all of USDOT’s modal administrations are prioritizing Buy Clean.

The DOE is supporting Buy Clean with training, technical assistance and innovation grants.

The Building Technology Office is building tools for whole building lifecycle analysis. The Advanced Manufacturing Office is supporting with tools to support

standard-setting for specific products. The DOD and the military departments are analyzing modernization requirements for process, guidance, criteria and specifications to accelerate the transition to low-carbon building materials.

“This includes screening potential projects to implement Buy Clean specifications,” said the White House.

It also involves coordinating with U.S. Army Engineer Research and Development Center’s Geotechnical and Structures Laboratory and Construction Engineering Research Laboratory to analyze the lifecycle carbon footprint, costs, resilience and timeliness of low-carbon building materials.

The EPA is emphasizing the urgency of investing in energy efficiency across manufacturing facilities with access to the ENERGY STAR program. It will integrate energy performance benchmarking tools and enable facility-level industrial carbon emissions via facility benchmarking data. EPA also is working with external partners to standardize and improve EPDs guidelines.

GSA will require suppliers to provide environmental product declarations and meet low-carbon concrete and environmentally preferable asphalt standards informed by insights from industry.

The Department of State and U.S. Special Presidential Envoy for Climate are aggregating corporate purchasing commitments of near- and net-zero materials through the First Movers Coalition.

The department also has launched a decarbonization initiative, focused on reducing embodied emissions in overseas construction at embassies and other facilities.

CEG

Page 114 • October 12, 2022 • www.constructionequipmentguide.com • CONSTRUCTION EQUIPMENT GUIDE
INITIATIVE from page 46
In March, the GSA issued new standards for the concrete and asphalt used in the agency’s construction, modernization and paving projects. The
Buy Clean task force agencies will continue to launch pilots, expand the scope of industrial pollutants and materials, engage industry and establish mechanisms for collection and public disclosure of the data.
CONSTRUCTION EQUIPMENT GUIDE • www.constructionequipmentguide.com • October 12, 2022 • Page 115

Crews Reconstruct, Modernize State Route 347 On L.I.

challenges of having to maintain two lanes of traffic and access to all adjacent properties during construction and to coordinate with various utility companies to maintain public services in the area, said Glenn Blain, NYSDOT spokesman.

“The design maximizes construction by widening the roadway footprint to install an additional eastbound and westbound travel lane on State Route 347, a shared use path and other roadway features. Retaining walls, profile adjustments, etc., are also being used to minimize impacts to the adjacent properties.”

Safety is a top concern

every Friday

Scalamandre & Sons Inc. safety director gives a weekly tool box talk to discuss

began the work this past December, a year ahead of schedule. Construction is expected to be completed by the end of 2024. The initiative, part of the Statewide Transportation Improvement Program (STIP), is being financed by federal and state funds.

The work constitutes the latest phase in the NYSDOT’s ongoing initiative to ease congestion, improve mobility and enhance safety along the busy Long Island roadway by transforming a 12-mi. stretch between State Routes 454 and 25A into a multimodal, environmentally sustainable boulevard for motorists, pedestrians, bicyclists and transit users.

Constructed in the 1950s as a farm delivery route, State Route 347 , also known as the Smithtown Bypass, grew along with the suburban development boom and has become a major east-west corridor for Long Island motorists.

“Building on the success of five earlier phases of the State Route 347 modernization, the new phase will reimagine the roadway by adding a new road surface, raised planted medians and a continuous third travel lane in both directions,” according to NYSDOT.

“Intersections with local roads and the Smith Haven Mall entrances will also be enhanced with new traffic signals and turning lanes to improve traffic flow. Other improvements include enhanced bus stops with pull-off areas for buses, shaded shelters and solarpowered lighting, solar-powered pedestrian level lighting at intersections, coordinated traffic signals that reduce congestion and high-visibility crosswalks with pedestrian countdown timers

“The Parks to Ports Greenway shared-use path that’s adjacent to the road’s eastbound lanes will also be

extended by an additional two miles as part of the project,” NYSDOT added.

Bicycle racks and informational panels with details about the local community and environment also are being added. New landscaping, a rain garden and greenway stop with benches and informational panels are planned for along the roadway.

“Rain gardens improve the collection and treatment of storm water runoff in an environmentally-friendly manner by creating a natural filtration system,” NYSDOT said.

The ongoing project was designed by NYSDOT consultants Greenman - Pedersen Inc.

The project also had to contend with the

The current features of Route 347 are inadequate to handle the significant volumes of motorists and trucks that now use this roadway, which was constructed in the 1960s, according to NYSDOT.

“In 1969, an average of 48,000 vehicles per day used Route 347. Presently there are an estimated 71,000 vehicles per day using this road. Increased accidents, traffic congestion, lack of continuous sidewalks and limited turning lanes are safety and traffic flow concerns that need to be addressed to improve mobility, and driver and pedestrian safety.

“Over the past decade, the DOT has worked closely with communities and officials to develop project features and designs that meet safety and mobility objectives as well as the needs of local communities and businesses. The ‘community sensitive’ Green Route 347 alternative will make this roadway safer for motorists, pedestrians and bicyclists, while addressing issues raised by the local communities.”

Five sections have been completed thus far: the $26.8 million Veterans Memorial Highway to Hampauge Road section in 2013; the $30.5 million Hampauge Road to Mount Pleasant Road section in 2015; the $26.5 million NYS Route 112 Intersection in 2015; the $39.2 million Mount Pleasant Road to Terry Road section in 2017; and the $36.3 million Terry Road to Gibbs Pond Road section in 2017.

So far, Peter Scalamandre & Sons has completed all the clearing and grubbing, the recharge basins and the pipe section running the drainage into them. Operations are ongoing for the electrical, gas and water main installations.

“We are actively doing drainage work, which includes the leaching and catch basins and reinforced concrete pipe —15 to 60 inch,” said Project Manager Chris Lacagnina. “We are also installing retaining walls and dense concrete walls. Over the next 12 months, we’re going to be doing the

Page 116 • October 12, 2022 • www.constructionequipmentguide.com • CONSTRUCTION EQUIPMENT GUIDE
So far, Peter Scalamandre & Sons has completed all the clearing and grubbing. Crews from Peter Scalamandre & Sons Inc. began the work this past December, a year ahead of schedule.
and
Peter
safety issues. There are between 50 to 60 Scalamandre crew members and approximately 15 subcontractor employees on site. SUFFOLK from page 1 see SUFFOLK page 120

cranesafe@gmail.com

Address:

ASSOCIATED GENERAL CONTRACTORS (AGC) AGC EVENTS CALENDAR: All AGC Web-Eds are scheduled in Eastern Standard Time (EST) Conferences are

• AGC EDGE Lean Construction Education Program (https://training.agc.org/course/vlea221101)

Date: Tuesday, November 15, 2022 – 5:00 PM ONLINE, Virtual Training/Professional Development

For further information, contact AGC: Phone: 703/548-3118 Email: info@agc.org

NECA 2022 Austin presented by National Electrical Contractors Association

Dates: Sunday, October 16, 2022 – Tuesday, October 18, 2022 Show Hours:Sunday, October 16: 11:30 AM – 5:00 PM Monday, October 17: 11:30 AM – 4:00 PM Tuesday, October 18: 9:00 AM – 1:00 PM

Dates: Tuesday, October 18, 2022 – Friday, October 21, 2022

Place:New Orleans, Louisiana

Advance Your Lean Journey at Congress!

Gain new ideas and perspectives that will enrich your work and drive your Lean practice forward. Playing a vital role in the ever-evolving design and construction industry for nearly 25 years, Congress is where your Lean community comes together for unparalleled knowledge-sharing across disciplines. Attendees come back year after year to reconnect while sharing experiences and successes – and return home with critical, actionable knowledge. We expect this year’s exhibit hall to be bigger and better than ever!

Sponsor or Exhibit to Expand Your Reach!

ACI FALL CONVENTION 2022

Fall Convention of the American Concrete Institute

Dates:Sunday, October 23, 2022 - Thursday, October 27, 2022

Place: Hyatt Regency Dallas 300 Reunion Boulevard Dallas, TX, 75207

ACI is pleased to be hosting its ACI Concrete Convention in-person, in Dallas, TX, USA on

The LCI Congress offers exceptional opportunities to increase your company’s visibility and advance your mission within the design and construction industry. Introduce your latest offerings, raise your profile, and build connections with your audience.

Who Should Attend?

The LCI Congress brings together owners, members of the design community, general contractors, trade partners and other Lean professionals to collaborate, network, learn and share both success stories and challenges. Gain inspiration with stakeholders across the design and construction industry.

October 23 – October 27, 2022. This expo is going to be a four (4) day event. This event forays into categories like Education and Training, Building and Construction. The convention will have a robust schedule that includes traditional in-person activities. Select programming will also be available on-demand to attendees who choose to participate remotely. Most committee meetings and all social events will be limited to in-person attendees.

ACI Fall Convention could be a base where plenty of useful goods can be displayed. Most of these are typically about Building, Construction, Construction Materials, Concrete and Concrete Design.

ACI Fall Convention is organized annually.

In-Person Convention Registration

time

where the event takes place.

• AGC EDGE Construction Supervision Fundamentals (CSF) Education Program (https://training.agc.org/course/vcsf221001/)

Date: Tuesday, October 18, 2022 – 3:00 PM (EST)

ONLINE, Virtual Training/Professional Development

• AGC EDGE BIM Education Program (https://training.agc.org/course/vbim221002/)

Date: Wednesday, October 19, 2022 – 11:00 AM (EST)

ONLINE, Virtual Training/Professional Development

• AGC EDGE Project Manager Development Program (https://training.agc.org/course/vpmdp221101/)

Date:Wednesday, November 2, 2022 (1:00 PM)

ONLINE, Virtual Training/Professional Development

• 2nd Annual National Construction Industry Workforce Summit (https://fallsummit.agc.org/construction-industry-workforce-summit/)

Date:Thursday, November 3, 2022 (8:00 AM)

Place: Phoenix, Arizona

Training/Professional Development

• The Construction Leadership Advancement Summit (https://fallsummitagc.org/)

Date:Thursday, November 3, 2022 (8:00 AM)

Place: Phoenix, Arizona

Training/Professional Development

• AGC EDGE Construction Supervision Fundamentals (CSF) Education Program (https://training.agc.org/course/vcsf221101/)

Date: Monday, November 7, 2022 – 5:00 PM (EST)

ONLINE, Virtual

Training/Professional Development

Place: Austin Convention Center, Austin, TX Who Attends? Thousands of C-level executives, Project Managers, Purchasing Agents, Supervisors, Foremen, Safety Directors, Estimators, Inspectors, Apprentices, Journeymen, and Distributors…all who are electrical construction decision makers from across the nation and around the world. Description: Electrical contractors, this is your event! Presented by the National Electrical Contractors Association, the NECA Show is the premier trade show for the electrical industry. You will find attendees from all over the globe ready to discuss industry innovations, purchase new products, and explore new solutions. The NECA Show is where leaders of the $202 billion electrical construction industry convene each year to discuss the ever-changing, ever-growing, business environment. Each year, the National Electrical Contractors Association (NECA) opens the doors and invites the entire industry to see, touch and talk about new solutions that will benefit their bottom-line. Come join us! Their success is your success! It’s good for your business!

For more information on this event contact: Phone: 555/634-8002 Email: exhibitsales@necanet.org.

Equipment Exposition/Hardscape North America Event

Dates:Wed, October 19, 2022 – Fri, October 21, 2022

Place:Kentucky Exposition Center, Louisville, KY

Description: Tradeshow – Hardscape North America is co-located with Equip Exposition. The combined mega industry event will take place October 19-21,2022 at the state-of-the-art Kentucky Exposition Center in Louisville, KY. HNA has a dedicated area of the floor and a 6,500+ square foot Hardscape House adjacent to the exhibit hall. Hardscape North America and Equip Exposition hosts more than 850 exhibits including the Hardscape House and 20+ acre outdoor demo area with everything you need to learn and grow as a hardscape professional. This is the can’t-miss tradeshow for hardscape contractors, dealers, and landscape professionals! Education and Demos – Network and learn from the “best in the industry.” Courses, Demos, and Sessions are led by some of the top speakers in North America.

Competitions – Enter the HNA Awards or compete in the national HNA Installer Championship. Be recognized as the best of the best in the hardscape industry in North America! Admission – Admission is open to adults and children ages 12 and up. For more information on this event contact Hardscape North America, 937 Phillips Lane, Louisville, KY 40209. 812/949-9200 www.equipexposition.com

LEAN CONSTRUCTION INSTITUTE (https://www.leanconstruction.org/)

Transforming Design and Construction

Construction Institute (LCI) Congress

For more information on this event, contact: Lean Construction Institute, Inc., 4601 N. Fairfax Drive, Suite 1200, Arlington, VA 22203

Phone: 703/343-1061

EQUIPMENT EXPOSITION 2022

International Landscape, Outdoor Living and Equipment Exposition

Dates: Wednesday, October 19, 2022 – Friday, October 21, 2022

Venue: Kentucky Exposition Center (KEC) Louisville, Kentucky, United States

Description: Equipment Exposition is held in October, the perfect timing for manufacturers to show their new lines. As a business-owner there are seminars and technology available to boost your efficiency and bottom line and endless networking opportunities. Equipment Exposition is an event you would not dream of missing!

Concurrent Expo: Hardscape North American 2022

The Trade Show for Hardscape Contractors and Distributors Website: https://www.equipexposition.com/ Our tradeshow is located at the Kentucky Exposition Center, 937 Phillips Lane, Louisville, KY 40209. Our operating headquarters is located at 209 E. Main Street, Louisville, KY 40202.

If you have any questions, please call: 844/770-2963 or 502/5367050

American Concrete Institute (ACI)

History of ACI

Always Advancing – The American Concrete Institute is a leading global authority for the development, dissemination, and adoption of

In-Person convention registration includes access to all committee meetings, sessions (live and on-demand), special events, and the exhibit hall.

Health & Safety Requirements

ACI will be following the health and safety requirements set by the local, state, and federal governments at the time of the convention. All meeting rooms and special event spaces will be set to normal convention capacities.

For more information on this event, contact American Concrete Institute: Phone: 248/848-3700.

GREENBUILD International Conference and Expo Greenbuild 2022

Dates: Tuesday, November 1, 2022 – Thursday, November 3, 2022

Venue: Moscone Center, 747 Howard Street, San Francisco, CA 94103 http://www.moscone.com/

Description: Greenbuild International Conference and Expo is the largest annual event for green building professionals worldwide to learn and source cutting edge solutions to improve resilience, sustainability, and quality of life in our buildings, cities, and communities.

Website: https://www.greenbuildexpo.com/

Greenbuild organizes the premier event for learning together as an industry. Our audience includes architects, consultants, sustainability managers, designers, engineers, educators, real estate agents and builders in the green building industry. To commemorate our 20th year, we are transforming Greenbuild. You will find a broader range of programming, experiences, and speakers. We are now not only imagining and constructing LEED-certified structures, but we are also building: Communities and Sustainable Cities, New Workplaces, Social Equity, New Products and Services, Ways to Use Technology to Track Our Progress.

This event features sustainability product suppliers, a 3-day education program with world class keynotes covering cutting edge topics, and numerous networking opportunities and special events.

For more information on this event visit U.S. Green Building Council (USGBC) 2101 L St. NW #500, Washington, DC 20037 USA Telephone: +1202/828-7422 http://www.usgbc.org/

For information on CRANE SAFETY COURSES:
800/654-5640
224 W. Central Parkway, Suite 1024 Altamonte Springs, FL 32714
scheduled using the local
zone
24th Lean
its consensus-based standards, technical resources, and educational, training, and certification programs. Founded in 1904, ACI is headquartered in Farmington Hills, Michigan, USA, with a regional office in Dubai, UAE, and resource centers in Southern California and Chicago/Midwest. ACI has over 94 chapters, 244 student chapters, and 30,000 members spanning over 120 countries.
Events are subject to change, check websites for updates Business Calendar To view our Business Calendar online, go to www.constructionequipmentguide.com.

STATEMENT OF OWNERSHIP, MANAGEMENT AND CIRCULATION

Required by 19 USC 3685

Title of publication: CONSTRUCTION EQUIPMENT GUIDE NORTHEAST EDITION; Publication Number: 1058-787X; Date of filing: Sept. 19, 2022; Frequency: Bi-weekly, 26 issues annually; Annual Subscription price: $65.00; Complete mailing address of known office of publication: 470 Maryland Dr., Ft. Washington, PA 19034; Publisher’s general business office: 470 Maryland Dr., Ft. Washington, PA 19034; Publisher’s name and address: Edwin M. McKeon, Jr. 470 Maryland Dr., Ft. Washington, PA 19034; Editor in Chief: Craig Mongeau, 470 Maryland Dr., Ft. Washington, PA 19034; Owner: CONSTRUCTION EQUIPMENT GUIDE NORTHEAST EDITION, 470 Maryland Dr., Ft. Washington, PA 19034; Edwin M. McKeon Jr., 470 Maryland Dr., Ft. Washington, PA 19034; Joseph McKeon, 5875 N. Lincoln Ave. Suite 227, Chicago, IL 60659; Richard McKeon, 3307 Indian Meadows Ln, Charlotte, N.C. 28210; Known bondholders, mortgages, and other security holders: None, Issue date for circulation data below 09/28/22; Extent of circulation (Average number of copies during preceding 12 months): Net press run 20,277; paid circulation through agents 1,150; through mail subscription 19,020; free distribution 0; total distribution 20,170; copies not distributed 107; return from news agents 0; Total 20,277; Percent Paid and/or Requested Circulation 100%; Actual number of copies for issue published nearest to filing date: Net press run 21,619; paid circulation through agents, 1,150; through mail subscription, 20,365; free distribution, 0; total distribution, 21,515; copies not distributed, 104; return from news agents, 0; Total 21,619; Percent Paid and/or Requested Circulation 100%.

Page 118 • October 12, 2022 • www.constructionequipmentguide.com • CONSTRUCTION EQUIPMENT GUIDE
I certify that the above statements made by me are correct and complete. /s/ Edwin M. McKeon, Jr., President/CEO Crushing and Screening: `05 FINTEC 1107 Crawler Crusher, s/n 061107237 • EAGLE 500-05-CC Portable Crushing Plant, s/n 11589 • CEDARAPIDS 543 Commander Crusher, s/n 21517 • `07 FINTEC 570 Crawler Screening Plant, s/n 2007570450 • `04 FINTEC 540 Crawler Screening Plant, s/n 2004540215 • POWERSCREEN Mark II Portable Screener, s/n 2723688 • POWERSCREEN Commander Portable Screener, s/n 5102332 • LORD Portable Screening Plant • CEDARAPIDS Washall Portable Wash Plant, s/n 18819 • PROTO-GRIND 1200L Portable Hydraulic Top Soil Shredder, s/n 98161 Hydraulic Excavators and Attachments: `11 KOBELCO SK2609, Acera Mark 9 Long Reach, s/n LL14U1710 • `95 CAT 330L, s/n 5YM01746 • `93 CAT 330L, s/n 8FK00610 • `03 KOMATSU PC300-7L, s/n A85675 • `98 HITACHI EX330LC-5, s/n 1H1P020320 • `99 KOBELCO SK220 IV, s/n LL02307 • `00 JD 160LC, s/n 041325 • `92 CAT EL200B, s/n 7DF02064 Crawler Tractors: `94 CAT D6HXL, s/n 9KJ00787 • `80 CAT D6D, s/n 4X06031 • `66 CAT D6C, s/n 76A4438 • `97 CAT D5C Series II, s/n 7PS00428 • CAT D4E, s/n 51X01273 • CAT D8H, s/n 46A13427 • `89 KOMATSU D68P-1, s/n 45771 • `84 KOMATSU D65P-7, s/n 40174 • INT’L TD25, s/n 005766 Rubber Tired and Crawler Loaders: `13 CAT 930K, s/n RHN01971 • `88 CAT 966E, s/n 99Y05975 • `98 CAT 950G, s/n 3JW00748 • `73 CAT 950, s/n 81J6079 • `98 KOMATSU WA4503, s/n 53130 • `94 VOLVO L150, s/n 150V60340 • `05 SAMSUNG 180-2, s/n NBY0165 • `84 FIAT ALLIS FR20, s/n 500228 • `76 FIAT ALLIS 745H-B, s/n 72C03451 • `77 CAT 977L Crawler, s/n 11K8418 Tractor Loader Backhoe, Skid Steers, and Attachments: `93 CAT 426B, 4x4 Extend-A-Hoe, s/n 5YJ00487 • `02 NEW HOLLAND LS180, s/n 191358 • `95 NEW HOLLAND LX665, s/n 864561 • `93 BOBCAT 753, s/n 511525503 Dump Trucks: (2) 2007 MACK CV713 Granite Tri-Axles • `06 INTERNATIONAL 7600 Tri-Axle • `00 PETERBILT 357 Tri-Axle • `99 MACK CL713 Tri-Axle • `98 MACK RD688S Tri-Axle • `00 INTERNATIONAL Eagle Tri-Axle • `98 MACK RD688S Quad Axle • `97 MACK RD688S Tri-Axle • (2) `94 MACK DM690S TriAxles • `89 MACK RD690S Tri-Axle • `88 MACK RD690S TriAxle • `87 MACK RD688S Tri-Axle • MACK RD685S T/A Roll-Off Trucks and Containers: `06 KENWORTH • `03 INTERNATIONAL 7500 T/A • `99 MACK RD688S Tri-Axle • Roll-Off Containers Tri-Axle Vac and Mixer Trucks: `13 INT’Paystar Vac Truck • `97 MACK 6x6 Front Discharge • `05 MACK CV713 Granite Rear • `07 STERLING Rear • `02 STERLING Rear • (2) 2000 MACK DM690S Rear • `99 MACK RD688S Rear • `99 VOLVO MACK WG64 Rear • `96 MACK RD688S Quad Axle Rear • `94 MACK DM690S Rear Truck Tractors and Lowboy: `03 MACK CX613 Vision T/A • `96 INT’ 9300 GLR T/A • `96 MACK CH613 T/A • `85 MACK RS686LST T/A • `02 TALBERT TDW35SAHRG1T1, 35 Ton T/A Lowboy PA Auction License No: AY000281 While information is believed to be accurate, all items will be sold “As-Is, Where-Is” without guarantee or warranty. A physical inspection is suggested. Call (800) BID-N-BUY or Email sales@hunyady.com For Complete Descriptive Brochure! www.Hunyady.com Absolute Auction Virtual, Live Broadcast Complete Liquidation Meadville Redi-Mix Concrete, Inc. Wednesday, November 2, 2022 – 9:00AM Meadville, Pennsylvania PLUS! Conveyors • Paver and Compaction Equipment • Rough Terrain Crane • End Dump • Forklifts • Flatbed and Salt Trucks • Utility and Pickup Trucks • Dump Trailers • Bulk Trailers • PLUS MUCH MORE! ONSITE/ONLINE PUBLIC EQUIPMENT AUCTION OCTOBER 27, 2022 ï 9:00 AM ï SUFFIELD, CT Northern Connecticut’s Largest Industrial Auction Company PURINTON BUILDERS, INC. SPECIALIZING IN ALL TYPES OF EARTHMOVING AND HEAVY EQUIPMENT, FLEET VEHICLES, TRUCKS, TRAILERS, AERIAL AND MATERIAL HANDLING EQUIPMENT, LANDCARE AND FARM EQUIPMENT SALES ONE OWNER RETIREMENT SALE!!! COMPLETE DISPERSAL!!! (860)627-7506 (860)903-101 55 KING SPRING RD. WINDSOR LOCKS, CT 06096 FOR A FULL LIST OF CONSIGNMENTS AND TO BID LIVE ONLINE PLEASE VISIT OUR WEBSITE AT: WWW.SALESAUCTIONCOMPANY.COM Office Fax 1517 HRS! 1156 HRS! 1755 HRS! 1588 HRS! 59K MILES! 40K MILES!
CONSTRUCTION EQUIPMENT GUIDE • www.constructionequipmentguide.com • October 12, 2022 • Page 119

Long Island Project to Be Completed in Four Phases

noise wall foundations and panels and continue with the drainage work. We just finished the steel sheeting and our electrical subcontractor is working on the new traffic signal poles, putting in all the wiring.

“The recharge basins with the landscaping, as well as the chain link fence, are going in. We’ll be doing some major earthwork, digging out the roadway and widening. The project has its challenges.

“Right now, most of the industry is seeing long lead times on materials, as well as procuring materials,” said Lacagnina. “We’re having issues obtaining a lot of the materials we need.”

Peter Scalamandre & Sons has some night work planned in the future.

“We did some directional drilling overnight and drainage crossings across SR 347 to not impact the travelling public during the day. We’re right on schedule. We’re trying to finish Phase 1 as soon as possible and progress to Phase 2 and get the pipes set. There is always going to be utility conflicts here and there and we have some sewer conflicts with our drainage runs and a few gas and electric ones. We’re working with the utility companies.”

Lacagnina has two construction yards and the westbound shoulder lane is basically closed for the duration of Phase 1.

“This allows us to work safely,” he said. “We don’t plan on shutting down in the winter. We’re going to continue as long as we can and look to do earthwork and drainage.

“The relationship with the DOT is great. We speak and meet every day and we have weekly meetings. We both have offices in the same building. The second something happens, we’ll sit down and hash it out.”

Current operations are focusing on setting the site up for the road work.

“We have the westbound MPT detour along the shoulder giving us access to install the drainage infrastructure and for any crossings,” said Lacagnina.

In terms of asphalt paved lanes, crews will install a bike lane in the eastbound direction and widen the roads to provide more room on each side of the road.

“They are going to increase the roadway with three lanes in each direction — they will have a wider shoulder and bigger turning lanes at each intersection or driveway,” said Lacagnina.

Project Supervisor Keith Bigbie added that “the work is straightforward. Like anything else in heavy construction, it’s just the supply chain issues that we are having. We’re trying to get materials and dealing with inflation and freight carrying charges. This makes the project more challenging as we try to meet and exceed production.”

The project is being completed in four phases and ensuring there is sufficient storage space is a constant issue.

“We have limited space and the stockpiles for the earth that has been excavated can only get so big,” said Lacagnina. “But we’re probably 90 percent done on the major clearing and grubbing and now the earthwork will concentrate along the roadways.”

The excavated material has been tested and classified as Select Plus.

“We’re able to use all of it for our drainage

and equipment-wise that Keith needs. He’s on it. We have some of the greatest guys in the union. We have some of the hardest working people in the field.”

Excavation should have crews remove 83,610 cu. yds. of various materials. New materials should include 86,108 tons of HMApavement; 1,620 cu. yds. of concrete retaining walls; 27,550 linear ft. of reinforced concrete pipe; 1,852 cu. yds. of concrete flatwork; and 4,329 tons of HMA for the bike paths.

There are between 50 and 60 Scalamandre crew members and approximately 15 subcontractor employees on site. The subcontractors are Araz Industries for watermains, Bohemia Garden Center Inc. for landscaping, Hinck Electrical Contractors for electrical and Sea Crest Development Corp. for trucking.

Crews are using a Komatsu PC238 excavator, a PC490 excavator, a WA380-8 wheel loader, a WA470-8 wheel loader, a D51-PX crawler dozer and a PC200 LC hydraulic excavator. For Caterpillar, they are using a 335F excavator, a 308-07A excavator, an M320F wheeled excavator, a 316F-rubber-tire hydraulic excavator, a D6K2 LGP dozer and a 450F backhoe. And for Liebherr, they are using an LBR18 sheeting rig; for Dynapac, a CA251D roller; and for Hamm, an HD12VV asphalt roller.

work,” said Lacagnina. “So it’s a pretty green project in that everything we dig up can be reused as backfill. Nothing has to be trucked away or disposed of that is not warranted or needed.”

There is no bridge work in any of the phases.

The management team includes: General Superintendent Thomas Hayes and Project Administrator Thomas Boccard.

“It’s a collaborative team effort,” said Lacagnina. “We all know each other and have worked together for many years. Boccard does all the paperwork and provides anything the state needs. Hayes provides anything involving manpower

“We have a repair shop at our yard in Freeport, N.Y., which is about 40 minutes away,” said Lacagnina. “The mechanics can be here within an hour. The major wear and tear is the unknowns of what is in the ground, especially with the steel sheeting drilling. You don’t know what rocks, boulders or substances you’re going to drive into and with the excavators and other equipment, it is the constant digging — sometimes you’ll get cutting edges that will break off. Again, it’s all the unknowns in the ground and being careful with utilities and not damaging anything. The key to good maintenance is always having the master mechanics and foremen talking with our operators, making sure the machines are greased everyday. If any lights or errors come up, our foremen and myself are notified right away and we’ll have a mechanic on site within the hour or later that day to get the work done.”

Scalamandre purchases and rents equipment from HO Penn Machinery Sales & Rentals (Caterpillar); JESCO (John Deere rentals); and Komatsu USA (Komatsu rentals).

“We rent specialty equipment as required from local vendors” said Lacagnina. “It’s just a question of being friendly and letting them know what we need. They give us the trials on all of the machines to see if we like them and they are acceptable for what we are doing. We have good relationships with all the rental companies on Long Island. Whatever we need and when we need it, they get it for us.”

Safety is a top concern and every Friday the company’s safety director gives a weekly tool box talk to discuss safety issues.

“The management team and the guys in the field are like a big family,” said Lacagnina. “A bunch of brothers and sisters working together and getting the job done.”

Page 120 • October 12, 2022 • www.constructionequipmentguide.com • CONSTRUCTION EQUIPMENT GUIDE
 CEG (All photos courtesy of Peter Scalamandre & Sons Inc.)
Crews are actively doing drainage work, which includes the leaching and catch basins and reinforced concrete pipe — 15 to 60 in.
Over the next 12 months, crews will be doing the noise wall foundations and panels and continue with the drainage work. SUFFOLK from page 116

The addition of B2W’s comprehensive suite of pre-construction and operations capabilities will expand Trimble’s already extensive civil infrastructure portfolio and Trimble Construction One, a purpose-built connected construction management platform.

Trimble Announces B2W Acquisition to Expand Its Civil Construction Portfolio

Trimble announced it has acquired privately-held B2W Software, a provider of estimating and operations solutions for the heavy civil construction industry. Financial terms were not disclosed.

With the passage of the Infrastructure Investment and Jobs Act (IIJA) and other infrastructure legislation across the globe, construction organizations are fast tracking the digitization of their processes and operations. As infrastructure projects become increasingly complex, data-driven insights and analytics will be imperative to improve productivity, increase efficiency and drive sustainability.

“Seamlessly connected workflows are key to unlocking the true potential of an organization’s data,” said Elwyn McLachlan, vice president of Trimble’s Civil Solutions Division. “With the acquisition of B2W,Trimble will be able to provide an unparalleled end-to-end digital experience—connectingthedigitaltothephysical —forheavycivilandinfrastructurecontractors.”

The addition of B2W’s comprehensive suite of pre-construction and operations capabilities will expand Trimble’s already extensive civil infrastructure portfolio and Trimble Construction One, a purpose-built connected construction management platform.

B2W’s integrated suite of applications includes estimating, scheduling, field tracking, equipment maintenance, data capture and business intelligence. By combining these capabilities with Trimble’s rich field data, project management, finance and

human capital management solutions, civil contractors will be able to bridge the gap between office and field in new ways, promoting transparency, efficiency and ultimatelyprofitability,accordingtothecompany.

“B2W has helped thousands of heavy civil contractors increase their bid accuracy and operational efficiency,” said Paul McKeon, B2W founder and CEO. “And now with Trimble, we can realize the next chapter of our story. By linking the planned withtheexecuted,wewillprovidecivilcontractors with a truly connected construction experience, unlocking valuable new insights for our customers across their entire operation.”

B2W will be reported as part of the Buildings and Infrastructure segment.

PerkinsCoieLLPactedaslegaladvisorto Trimble. Piper Sandler & Co. acted as a financial advisor and Foley Hoag LLPacted as legal advisor to B2W Software.

About B2W

Headquartered in Portsmouth, N.H., and founded in 1993, B2W (formerly known as Bid2Win) provides specialized software for heavy civil construction management. Companies throughout North America and severalothercountriesuseB2WSoftwareto bid on large-scale infrastructure and commercial projects, plan and manage operations, maintain large fleets of equipment and leverage business intelligence.

For more information, visit www.b2wsoftware.com.

CONSTRUCTION EQUIPMENT GUIDE • www.constructionequipmentguide.com • October 12, 2022 • Page 121
Page 122 • October 12, 2022 • www.constructionequipmentguide.com • CONSTRUCTION EQUIPMENT GUIDE ADVERTISER INDEX The Advertisers Index is printed as a free editorial service to our advertisers and readership. Construction Equipment Guide is not responsible for errors or omissions. AED SUMMIT/CONDEX........................................................................31 ALEX LYON & SON INC PLAN AHEAD CALENDAR..........................................................111 BRISTOL NH 10/22 MONTAGUE NJ 10/29................................115 BUFFALO NY 11/12 MECHANICSVILLE NY 11/19....................119 BRIDGEPORT NY 11/19-26........................................................121 ALEX PARIS CONTRACTING CO INC................................................23 ALL ISLAND EQUIPMENT CORP..........................................................7 AMERICAN SHORING..........................................................................14 AMULET............................................................................................90,93 ASTEC KPI-JCI......................................................................................81 ASTEC PETERSON PACIFIC CORP....................................................85 AUCTIONS INTERNATIONAL INC......................................................111 BANDIT INDUSTRIES INC..............................................................68,69 BARGAINS..........................................................................................108 BASCHMANN SERVICES INC..............................................................82 BEST LINE EQUIPMENT......................................................................10 CATERPILLAR INC................................................................................43 CEG SCALE MODELS..........................................................................35 CEG WANTED....................................................................................109 COMPANY WRENCH............................................................................24 CONDUIT SEARCH GROUP................................................................38 CONEXPO-CON/AGG 2023..................................................................39 CONSTRUCTION EQUIPMENT GUIDE..................................64,104,12 DANELLA USED TRUCKS & EQUIPMENT..........................................34 DAVIS AUCTIONS INC PROSPECT CT 10/22..................................................................113 DOOSAN................................................................................................41 DOOSAN PORTABLE POWER............................................................49 EAGER BEAVER TRAILERS................................................................21 EAGLE POWER & EQUIPMENT CORP............................................123 EESSCO................................................................................................74 ELLIOTT & FRANTZ INC..................................................................37,84 EQUIPMENT CORP OF AMERICA........................................................6 ESCO CORP..........................................................................................96 FAE USA INC........................................................................................75 FELLING TRAILERS............................................................................103 FIVE STAR EQUIPMENT INC................................................................9 FLANGE LOCK......................................................................................18 FOLEY INC..............................................................................................2 FRALEY CONSTRUCTION MARKETING............................................29 G T MID ATLANTIC LLC........................................................................24 GEHL......................................................................................................48 GROFF TRACTOR & EQUIPMENT INC..............................................29 GROVE CRANES..................................................................................50 H O PENN MACHINERY CO INC........................................................15 HINIKER..............................................................................................106 HITACHI EXCAVATOR ..........................................................................61 HUNYADY AUCTION COMPANY MEADVILLE PA 11/02..................................................................118 HYUNDAI CONSTRUCTION EQUIPMENT....................................54,55 JESCO..............................................................................................3,108 JJ SCHECKEL CORP............................................................................33 JOHN DEERE........................................................................................59 KAGE INNOVATION............................................................................107 KLEEMANN......................................................................................78,79 KOBELCO CONSTRUCTION MACHINERY ..................................56,57 KOMATSU AMERICA CORP................................................................47 KUBOTA EXCAVATOR ..........................................................................44 LABOUNTY MANUFACTURING INC....................................................92 LORUSSO HEAVY EQUIPMENT LLC..................................................27 MANITOWOC CRANES........................................................................45 MB AMERICA INC..................................................................................75 MECALAC NORTH AMERICA LLC......................................................51 MESSICK’S............................................................................................22 METSO OUTOTEC................................................................................67 MIDEAST EQUIPMENT SUPPLY LLC SKIPPACK PA 10/25....................................................................117 MILTON CAT..........................................................................................14 MONROE TRACTOR............................................................................76 MUNICIBID.COM..................................................................................111 NATIONAL ATTACHMENTS..................................................................93 NEW MILLENNIUM RENTALS..............................................................22 NEWARK EQUIPMENT SALES CORP................................................29 PLASTERER EQUIPMENT CO INC........................................................5 POWERSCREEN MID-ATLANTIC........................................................87 POWERSCREEN NEW ENGLAND......................................................71 PROFILE PUBLICATIONS................................................................28,30 RAMMER................................................................................................95 RITCHIE BROS. AUCTIONEERS UNRESERVED PUBLIC AUCTIONS..........................................124 ROBERT H FINKE & SONS INC......................................................19,82 ROCK TOUGH QUALITY SCREENING PR..........................................84 ROGERS BROTHERS CORPORATION..............................................97 SALES AUCTION COMPANY LLC SUFFIELD CT 10/27....................................................................118 SAND SCIENCE....................................................................................76 SANY AMERICA INC........................................................................52,53 SCHAEFER ENTERPRISES................................................................90 SENNEBOGEN......................................................................................83 SILVI CONCRETE..................................................................................22 SMH GROUP-US..................................................................................72 SPECIALTY RENTALS & ATTACHMENTS..........................................25 STEPHENSON EQUIPMENT INC........................................................11 SUMMIT SUPPLY GROUP....................................................................34 TADANO CRANES................................................................................42 TERAN INDUSTRIES INC....................................................................91 TEREX FUCHS......................................................................................66 THUNDER CREEK - PKA....................................................................102 TORA CRUSHING & SCREENING......................................................73 TOWMASTER INC...........................................................................98,99 TRACEY ROAD EQUIPMENT INC......................................................13 TRANSPORT EQUIPMENT SALES......................................................34 TRI-STATE TRAILER SALES..............................................................101 UNITED CONSTRUCTION & FORESTRY............................................6 VOLVO CONSTRUCTION EQUIPMENT........................................62,63 WEILER GRADER................................................................................60 WESTCHESTER TRACTOR INC..........................................................10 WHITNEY & SON INC..........................................................................77 WOODS CRW CORP............................................................................17
CONSTRUCTION EQUIPMENT GUIDE • www.constructionequipmentguide.com • October 12, 2022 • Page 123 Call or Text (484) 810-4791 | EaglePE.com | $45,000 Spotlight: • Stock# 40641 • 354.8 Hours • HVAC • 2 Speed / E-H Controls • Performance Package • Emissions Warranty Through June 2025 2019 SV280 Skid Steer Support The PA BreastCancer Coalition 953 Bethlehem Pk (Route 309) Montgomeryville, PA 18936 215-699-5871 Mon.-Fri. 7AM-5:30PM 2211 Dupont Highway New Castle, DE 19720 302-652-3028 Mon.-Fri. 7AM-5PM 1416 Phoenixville Pike, Suite 200 West Chester, PA 19380 610-458-7054 Mon.-Fri. 7AM-5PM, Sat. 9AM-1PM 697 North Main Street Doylestown, PA 18901 215-348-9041 Mon.-Fri. 8AM-5PM, Sat 8AM-12PM *While Supplies Last. Pricing subject to change. Taxes, delivery, and other charges not included. Other restrictions may apply. 2019 Kubota SSV75 Skid Steer Stk# 43429, 2931 Hours, Pilot Ctrls, Hyd Coupl, High-Flow Sale Price: $34,900 2015 Kubota KX080-4R3A Stk# 43513, 4,610 Hours, Ang Blade, Hyd Thumb, 36” Bucket. Sale Price: $58,500 2015 CASE 580SN LOADER BACKHOE Stk# 37443, 2713 Hrs, Case Ctrls, Hammer Kit, Extendahoe® Sale Price: $71,750
Page 124 • October 12, 2022 • www.constructionequipmentguide.com • CONSTRUCTION EQUIPMENT GUIDE Unreserved public equipment auctions 1 of 4 – 2016 Freightliner Cascadia 125 | OrlandoGrove RT540E 40Ton 4x4x4 | Houston 2017 Hitachi ZX135US-6 | Edmonton 2015 John Deere 544K | Orlando2019 Cat 320 | Houston 2014 John Deere 872GP AWD | EdmontonCat D6K LGP | Edmonton 2018 Cat 906M | Orlando 73,405+ items in 95+ auctions including See full auction & equipment listings at rbauction.com Edmonton,AB Oct25-28 Orlando,FL Nov3–4 Houston,TX Nov8–9 Tipton,CA Nov18 LasVegas,NV Nov22 Phoenix,AZ Dec14 NortheastRegionalEvent Dec14–16 PacificNorthwestRegionalEvent Dec21 Online bidding information ▸Nominimumbidsorreserveprices ▸It'salwaysfreetoregisterandbid onlineinanyofourauctions,create youraccountnow! Financing & leasing available Upto100%financing, withnomoneydown. More items added daily Callaboutselling: 1.866.679.7783 Plan for tomorrow with pre-approved financing – PurchaseFlex™ Financing* Auction Company Bond #0470724, Auctioneer Patrick J. Hicks Bond # 0470727, Auctioneer Chad M. Johnson # 17668, Auction Business License #AB303, Auctioneer Trevor J. Moravec # AU3889, Auction Company License # 001348, Auctioneer Frederick R. Vilsmeier # AUNR003087, Auction Company License # 1981, Motor Vehicle Dealer License #1539, Used Motor Vehicle Dealer License #2647, Auction Company License #AY00208L, Motor Vehicle Dealer License #DLR25867, Auctioneer Chad M. Johnson # 17668, Auction Company Bond #0470724, Auctioneer Greg Highsmith Bond # 0470728, Auction Firm # 2008000166, Auctioneer Kevin L. Perry # 2002000227, Auctioneer James L. Valentine #5623, Auctioneer Kevin L. Perry # 2763, Auction Company Bond #0470724, Auctioneer Trevor J. Moravec Bond # 0466225, Auction Firm License # 444.000193, Auctioneer Greg M. Highsmith # 441.000865 * OAC. Terms & conditions apply. See rbauction.com/financing.

Turn static files into dynamic content formats.

Create a flipbook
Issuu converts static files into: digital portfolios, online yearbooks, online catalogs, digital photo albums and more. Sign up and create your flipbook.