conarquitectura 94, resumen

Page 1


CA 94 01

Pág. 12

MUSIKTOPA. Museo de la Musica folk vasca en Artea, Bizkaia

BEAR

Ane Arce, Iñigo Berasategui

CA 94 02

Pág. 20

54 viviendas de protección pública en Inca, Baleares

Joan J Fortuny Giró / Alventosa Morell Arquitectes (F-AM arquitectes)

CA 94 03

Pág. 28

Ca na Birgit en El Toro, Calvià, Mallorca

TEd’A arquitectes

Irene Pérez, Jaume Mayol

CA 94 04

Pág. 34

Centro Sociocultural

El Ensanche en Alcalá de Henares, Madrid

INCOSA + Parra Arquitectos

José Miguel Useros y Enrique Parra

CA 94 05

Pág. 40

54 viviendas en El Cañaveral, Madrid

aybar.mateos.arquitectos

Juan José Mateos, Camila Aybar

CA 94 06

Pág. 46

CA 94 07

Pág. 50

Casa Umbral en Madrid ARQUID

Begoña Soto e Itziar Echebarrieta

M 5605 en Ciudad de Buenos Aires, Argentina

ARQTIPO (Diego Aceto –Dario Litvinoff – Alejandro Camp) + Juan Pablo Negro

CA 94 08

Pág. 56

CA 94 09

Pág. 61

Aparcamiento Saukonlaituri en Helsinki, Finlandia

ALA Architects

Yarrila Place en Coffs Harbour, Australia

BVN Architecture

66 ART TEC

68

Los arquitectos detrás de las obras

Artículo técnico:

NEXT-CER. Innovador sistema constructivo gran formato cerámico visto para una construcción sostenible

Marta Millanes / Celia Peces, investigadoras de NOTIO - Centro Tecnológico de Actividades de la Construcción

Archivo Histórico:

72

Torre Conurban en Buenos Aires

Enrique Sanz Neira, arquitecto y director de conarquitectura

Víctor Hugo Coronel, arquitecto

Reflexiones sobre arquitectura:

80

New York es Europa (I)

Rogelio Ruiz Fernández, dr. arquitecto

Entrevista Pág. 85

Beatriz Ramo, STAR: Estrategias (para) más Arquitectura

Enrique Sanz Neira, arquitecto y director de conarquitectura

96

Monografía y noticias

54 viviendas de protección pública en Inca

Inca 54 state-subsidised homes

Inca (Mallorca), Baleares

Arquitectos

Joan J Fortuny Giró / Alventosa Morell Arquitectes (F-AM arquitectes)

Proyecto Incial

Carlos Meri (fase inicial)

Año finalización construcción 2023

Superficie construida (m2)

4.633,60 m2 de viviendas sobre rasante y 1.746,90 m2 de garaje en planta soterranio

Programa

54 viviendas de protección

social, mejora del espacio interior comunitario y aparcamiento

Arquitecto(s) a cargo

Joan Josep Fortuny Giró + Xavier Morell + Marc Alventosa

Arquitectura y deliniación

Marina Morey

Supervisión de obra

Gori Llambías

Delineación

Sandra Vargas

Maquetación

Raquel Mirón, Rebeca López y Eric Moya

Control ejecución de obras y cordinador de salud

Marco Menendez y Jaime Oliver

Cálculo y diseño de las instalaciones

Estudis d’enginyeria de les Illes S.L. Cálculo estructural

Joan Mas y Juan Fortuny

Cálculo cimentación por pilotaje

Lluis Guasp

Arquitecto y redactor del proyecto básico

Jose Hevia

Materiales

Diasen: Mortero aislante a partir de corcho reciclado

Ladrillerías mallorquinas: Ladrilleria cerámica cocida con biomasa

Teulera can Benito: Pavimiento de barro cocido con biomasa

Fusteria Galmes: Protecciones solares de alerce

Tejar Victoria : Pavimentos Biomasa Unicmall: Morteros de Cal / pintura de cal

Fotografía

José Hevia

El solar, que es propiedad del IBAVI, tiene una forma rectangular con una superficie aproximada de 3266 m2. La propuesta planteada atiende a dos aspectos fundamentales, a la correcta inserción del edificio en el entorno urbano y físico, así como a una solución que es síntesis de los aspectos funcionales del programa.

El programa propuesto por el Instituto Balear de la Vivienda consta de aparcamiento, y 54 viviendas que se sitúan en planta baja, planta primera y planta segunda. En el espacio interior se sitúa un espacio común de relación para los usuarios. El edificio se organiza mediante un eje norte-sur que da origen a la ubicación de dos volúmenes independientes, generando un espacio público entre ambos.

Estrategia urbana

The proposal its resolving two fundamental aspects, the correct insertion of the building into the urban and physical environment, as well as a solution that is a synthesis of the functional aspects of the program (54 social housing units and interior common space).

The building is organized along a north-south axis that gives rise to the location of two independent volumes, generating a public space between them.

The housing module is organized around a central wet core that defines two areas with double orientation. The location of the day and night areas varies in height, generating different types of housing per floor.

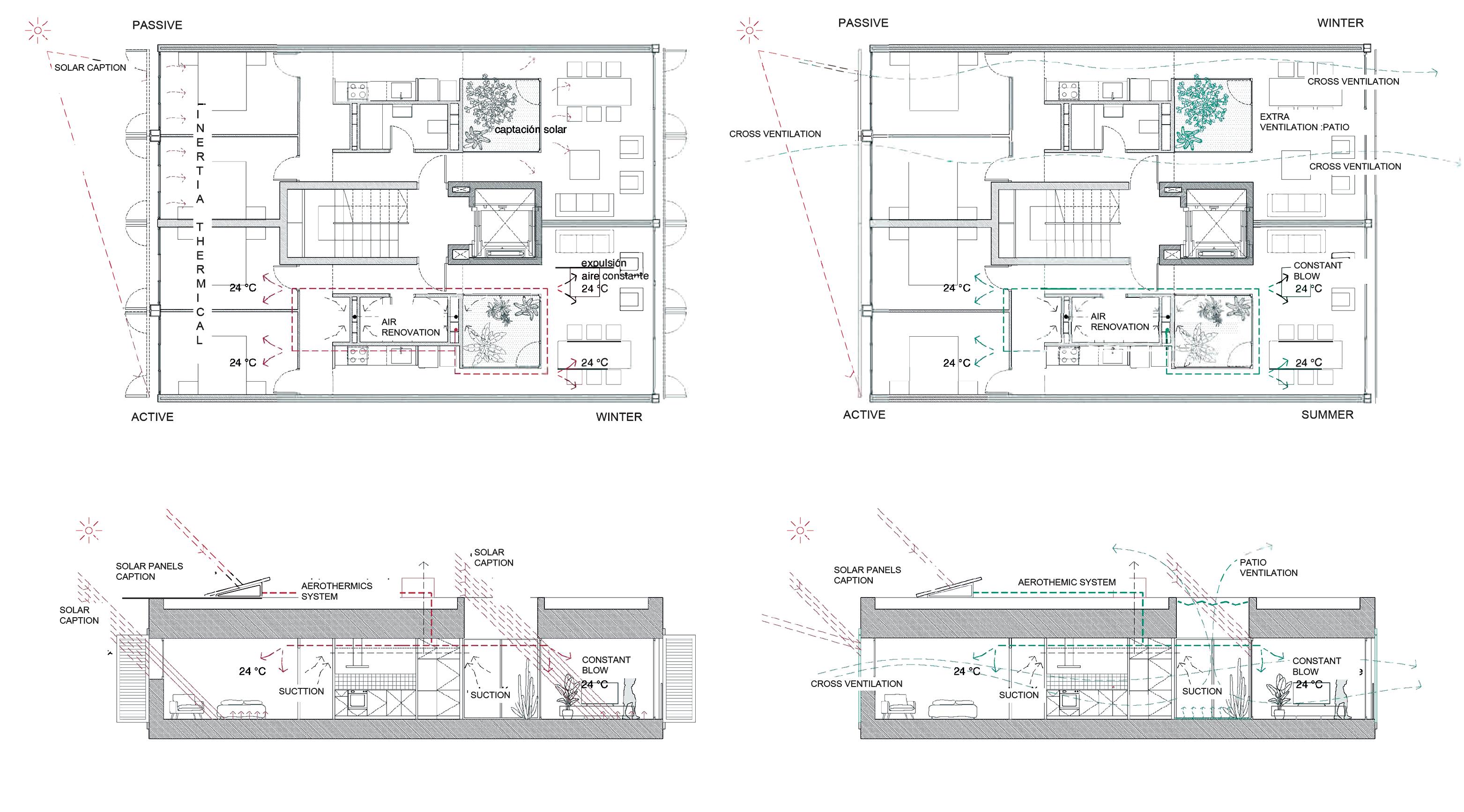
The homes have cross ventilation and outdoor spaces: a private garden on the ground floor, terraces and patios on the successive floors, which will allow the excess of summer heat to be regulated through passive strategies.

vistas sierra manzanaautosuficiente pasajeaccesoedificio patioaccesoviviendas vistas sierra pasovíasdeltren

Como consecuencia del fuerte desnivel del terreno, se ha asentado el edificio en la cota superior enrasado con la calle creando un recorrido accesible, así se define la cota +0.00 en la confluencia de la avenida del Raiguer con Enmet Arrahin (punto más alto del solar), como nivel de inicio del conjunto.

El módulo de la vivienda se organiza a partir de un núcleo húmedo central que define dos zonas con doble orientación. La ubicación de las zonas de días y de noche varía en altura generando distintas tipologías de vivienda por planta. Las viviendas cuentan con espacios exteriores: un jardín privado en planta baja, y terrazas en las sucesivas plantas.

Estructuralmente el edificio se construye mediante un sistema de forjados reticulares de hormigón de grandes luces y pilares metálicos. El sótano se resuelve mediante muros de contención de hormigón, y la cimentación mediante un sistema de micropilotes y encepados debidos a las arcillas expansivas de la zona.

Los cerramientos de fachada se resuelven mediante una doble hoja cerámica con aislamiento en la cámara y exteriormente, se resuelve con un asilamiento exterior mediante corcho proyectado y basto de cal, sobre el cual va una capa de fino de cal con pigmentos

The façade is resolved by a double ceramic sheet with recycled cotton insulation and externally, it is resolved with exterior insulation using projected cork and lime coarse developed by local companies, the solar protections made of larch wood (FSC) manufactured by local artisans.

The interior floors are clay ceramics fired with biomass, and lime paint is applied directly on the ceramic walls to give hygroscopic capacity and inertia to the homes. all from and manufactured on the same island

The ACS is produced thanks to a NUOS Aerothermal system with very low consumption and high performance. The ventilation of the homes is resolved by means of heat recovery that temper the air thanks to community Aerothermal systems.

The result of this process is a building with practically zero consumption (0.64 kWh/m2 x year ‘NZBE’) developed from a local economy model, passive strategies and with naturally healthy materials.

VIVIENDA COLECTIVA

Ladrillo para revestir

Como respuesta a la necesidad de vivienda en Ibiza, este proyecto utiliza la repetición tipológica y la estandarización de soluciones (todas con un responsable sentido de eficiencia energética) para una mayor rapidez de ejecución.

Funcionamiento climático

1. Persianas de protección solar de madera de alerce

2. Carpintería fabricada en la isla (KM0)

3. Revestimiento de corcho natural proyectado y mortero de cal, con una capa de pigmentos naturales

4. Suelos interiores de barro cocido con biomasa

5. Pavimentos de patios con grava drenante que permiten la recuperación del agua de lluvia

6. Vegetación que actúa como regulador térmico en verano e invierno

7. Revestimientos cerámicos de paredes

8. Pinturas minerales de interior y morteros de cal

9. Estructura de hormigón

10. Tabiques interiores cerámicos

11. Áridos de construcción reciclados en grava

12. Pavimentos exteriores con grava drenante que permite que el agua de lluvia se filtre al subsuelo

13. Sistema de aerometría NUOS (1 por cada 18 viviendas)

14. Sistema de ACS

15. Paneles fotovoltaicos

16. Expulsión de aire caliente/frío a 24 grados C

17. Extracción constante de aire en el interior de la vivienda

18. Jacaranas que ayudarán a protegerse del sol

Ca na Birgit

Arquitectos

TEd’A arquitectes

Irene Pérez, Jaume Mayol

Toni Ramis, Tomeu Mateu, Giovanni Fenoglio, Magdalena Weiland

Colaboradores

Sergi Altarriba (cálculo estructural)

Arquitecto técnico

Bernat Parera, Guillem Mas

Constructor

Joan Sastre Cerdà

Promotora

Birgit Jandl

Situación

Av. De la mar, 50. El Toro. Calvià. Mallorca

Superficie construida

194,33 m2

Proyecto

2016 – 2018

Obra 2018 – 2024

Materiales

Obres i construccions Tomeu

Rosselló (Porreres): hormigón armado (losas, muros i forjados)

Trossos de marès (Petra): pavimento, encimeras y aplacados – Piedra de Binissalem

Germans Tortella (Petra): carpintería exterior e interior – Madera de roble Galán Santandreu (Manacor): carpintería exterior – Aluminio

Ladrillerías Mallorquinas (Felanitx): cerámica (muros portantes y no portantes, fachadas, encofrado perdido, estanterías, etc.)

Grupo Aismar (Ribaforada, Navarra): aislamiento natural en base soja

Imper Da & Co Espj (Inca): impermeabilización cubierta

Rafel Miralles (Montuïri): herrería (bastidor puerta garaje, lucernarios, chimenea, grifería, etc.)

Buscasolutions (Palma): electricidad y sistemas de control, fontanería Hidroinstalaciones Forteza (Muro): piscina

Contain Studio (Palma): iluminación

Santa & Cole (Barcelona): iluminación

Font Barcelona (Barcelona): mecanismos instalación eléctrica

Vivero Sa Porrassa (Calvià): jardinería

Fotografía

Luis Díaz Díaz

El Toro es una urbanización construida en la antesala del boom turístico mallorquín. La parcela se sitúa en primera línea de mar sobre unos imponentes acantilados. Las vistas a poniente son despejadas, con el mar como protagonista.

ENTORNO

A izquierda y derecha del solar, las construcciones vecinas se separan tan sólo 3 m del linde entre ambas. Esta proximidad entre edificaciones limita la privacidad y condiciona la intervención.

La casa quiere mirar al mar y debe protegerse de las vistas de los vecinos. Un solo gesto resuelve ambas cuestiones y sobre este gesto pivota todo el proyecto.

TIPOLOGÍA PORCHE

Se definen dos gruesos muros paralelos a los vecinos, al mismo tiempo que nos garantizan la privacidad, nos enmarcan las vistas hacia el mar. Éstos son los únicos elementos de estructura vertical. La cubierta salta de uno a otro, construyendo una casa porche, sin apoyos intermedios.

Debajo de este gran porche se acomoda la vida. Varios volúmenes dispuestos estratégicamente, liberan el espacio a su alrededor. Estos cuerpos contienen las habitaciones, cocina, servicios y chimenea. Ninguno de ellos es estructural.

El Toro is a housing estate built on the cusp of Majorca’s tourism boom. The plot lies on a magnificent cliff overlooking the sea. The views to the west are unobscured, with breathtaking vistas of the ocean.

THE SETTING / The adjacent buildings to the right and left of the plot are separated from one another by just three metres, compromising their privacy, and influencing this project. The residents wanted to be able to see the sea yet be shielded from the view of neighbours.

PORCH LAYOUT / Two thick walls were built parallel to the neighbouring plots to provide privacy while framing the sea views. These are the only vertical structural components of the project. The roof stretches from one wall to the next to create a porch house with no intermediate props. Several strategically placed volumes free up the space around them, and house the bedrooms, kitchen, toilets and fireplace. None of these are structural.

NATURAL COMFORT / The layout and materials were chosen to enhance the natural comfort of the user. The layout creates a large shade towards the sea, and the interior space is fluid, allowing the sea breeze to cross the entire house in the summer. Because the façade to the sea is more open than the one facing it, the air speeds up as it crosses the space, thus enhancing the comfort of the interior.

VIVIENDA UNIFAMILIAR

Ladrillo para revestir

Como defensa ante un lugar con distracciones, la arquitectura resuelve el problema fundamental: unos muros gruesos y una cubierta sobre ellos, para que debajo se organice la vida.

Centro Sociocultural El Ensanche

Socio-Cultural Center “El Ensanche”

Alcalá de Henares, Madrid

Arquitectos

INCOSA + Parra Arquitectos

Autores del proyecto

José Miguel Useros + Enrique Parra

Dirección de Obra

INCOSA (Jose Miguel Useros + Pablo Rivera)

Directora de Ejecución Material INCOSA (Pilar Vera Olmos)

Coordinador de Seguridad y Salud

INCOSA (Ivan Rey García)

Colaboradores en fase de Proyecto

José Santos, Irene Rodríguez, Miriam Martínez, Diego Martín, Gloria Sandía, Jorge Puente

Equipo Técnico en fase de Obra INCOSA: Aliseda Alonso-Arqto Tco., María Llanos de Lama, I. Industrial –Instalaciones

Empresa Constructora Ceviam spc SL

PEM

1.423.695’99 €

Superficie Construida 1924 m2

Cliente

Ayuntamiento de Alcalá de Henares Fecha 2022-2024

Materiales

Termoarcilla: ECOrec City19-14

Acústico Cerámica Sampedro + mortero junta fina ECOrec

Ladrillo:Termocer 19 Cerámica Millas Prefabricados hormigón: Egea

Forjado sanitario: Caviti Sanitarios: Roca, Gala

Fotografía

Imagen Subliminal (Rocío R. Rivas + Miguel de Guzmán)

DOTACIONES PÚBLICAS

Bloque Termoarcilla

Situado a una de las últimas expansiones de la ciudad se haya el nuevo Centro Socio Cultural “El Ensanche” que el Excmo. Ayto de Alcalá de Henares ha promovido para dar servicio a las asociaciones ciudadanas ubicadas en el entorno. El nuevo equipamiento está rodeado de edificaciones residenciales y frente al Colegio San Ignacio de Loyola. Aunque las tipologías de su entorno son variadas, existe un elemento vertebrador que dota al conjunto de cierta homogeneidad, y es, en este caso, el uso de los materiales cerámicos como acabados de fachada.

El edificio se concibe como un único volumen al cuál se le horadan 4 huecos en, todos ellos junto a fachada y a través de los cuales se producen los 2 accesos principales, igual que gran parte de la iluminación de las estancias principales. Estas oquedades, al igual que las aperturas del resto de huecos se han planteado en función de la orientación del edificio, protegiendo la incidencia directa en los grandes ventanales al abrir a los patios y mediante un sistema de embocaduras en el resto de casos.

La piel blanca del edificio contrasta con el color rojizo de las fachadas interiores del edificio, que recuperan, actualizados, los sistemas constructivos tradicionales de la zona. El acceso al edificio se hace a través de dos pórticos de grandes luces que dan acceso a los patios principales y en los cuales se enmarca la entrada pasante al edificio.

Un volumen alargado y consciente de su carácter urbano se recorta en partes de su perímetro para facilitar la entrada de luz y aire, estableciendo un programa complejo a partir de una circulación clara. Se formalizan los paramentos interiores por una pieza cerámica sin revestir para acentuar el contraste interior-exterior.

Located in one of the latest expansions of the city, the new Socio-Cultural Center “El Ensanche” has been promoted by the Honorable City Council of Alcalá de Henares to serve the citizen associations in the surrounding area. The new facility is surrounded by residential buildings and faces San Ignacio de Loyola School. Although the surrounding architectural typologies are varied, there is a unifying element that provides a certain homogeneity: the use of ceramic materials as façade finishes.

The building is conceived as a single volume into which four voids are carved, all adjacent to the façade. These openings serve as the two main entrances and also allow natural light to enter the primary spaces. These voids, as well as the other openings, have been strategically placed based on the building’s orientation, protecting large windows from direct sunlight by opening onto courtyards and using a system of recessed frames in other cases.

The white exterior of the building contrasts with the reddish tones of its interior façades, which reinterpret and update the region’s traditional construction techniques. Access to the building is through two large-span porticos that lead to the main courtyards and frame the central entrance passage.

The interior program consists of multipurpose spaces, a versatile hall, offices, an administrative area, and a café. These are organized into three functional blocks over two floors, using mobile panel systems that allow the spaces to be reconfigured to accommodate the building’s flexible future needs.

In addition to a thorough study of orientation for window placement, the building’s envelope is designed as a thermally efficient system. The main façade employs an External Thermal Insulation System applied over lightweight ceramic blocks, internally lined with gypsum board and rock wool insulation, which ensures very low thermal transmittance. In the courtyard façades, lightweight ceramic blocks are used on both sides, reinforcing the close relationship between indoor and outdoor spaces.

To enhance acoustic performance, the suspended ceiling is finished with wood fiber panels. For durability and minimal maintenance, the floors are finished with a semi-polished concrete screed.

The building’s surroundings are defined by a sequence of transition, garden, and gathering spaces, all kept at the same level to ensure accessibility not only for users with reduced mobility but for everyone. Additionally, movement speed is influenced by the density of vegetation, with a gradient transitioning from harder to softer paving materials. For the exterior hardscape, a highly permeable porous concrete screed has been used, minimizing the impact on the urban water cycle and improving the natural recharge of groundwater.

This building is designed with a focus on maximum efficiency and durability while allowing for flexible use and seamless integration into its urban environment.

1 Terreno existente compactado

2 Hormigón de Limpieza HM-20/B/20/X0 - 10 cm de espesor

3 Encofrado perdido - Piezas de polipropileno reciclado de 750x500x300 mm

4 Armadura de Reparto - Malla electrosoldada ME 10x10 r 5-5 B500 T 6x2,20

5 Hormigón HA 25/b/12/IIa

6 Tapa de estanqueidad para cámara de aire de polipropileno reciclado

7 Cámara de Aire Ventilada

8 Viga Riostra de Hormigón Armado según plano de Estructuras

9 Impermeabilización - Membrana cementosa impermeable monocomponente

10 Capa drenante y filtrante - Lamina nodular de polietileno de alta densidad unida por termofusión a geotextil

11 Tubo Dren - tubo fabricado a base de polietileno de alta densidad corrugado, flexible y perforado en todo su perímetro.

12 Relleno en trasdós de muro de hormigón, con grava de 20Ø a 30Ø mm

13 Capa separadora - Geotextil no tejido, fabricado a base de fibra corta de poliéster de 120 g/m2.

14 Relleno de tierras compactadas

15 Pavimento exterior - Pavimento continuo poroso de hormigón HM-D-225/f/8, de bajo contenido en finos, drenante de 8 cm de espesor.

16 Ventilación - Tubo de PVC de 90 mm con rejilla de acero galvanizado atornillada para ventilación de cámara sanitaria.

17 Ventilación - Tubo de PVC de 90 mm con rejilla de acero galvanizado atornillada para ventilación de cámara sanitaria.

18 Pletina de acero galvanizado atornillada y sellada con elastómero

19 Aislamiento térmico de suelos flotantes, con poliestireno expandido.10 cm

20 Solera - Hormigón armado HA-25/b/12/IIa

21 Aislamiento térmico reflexivo de suelos flotantes, formado por complejo multicapa, de 8 mm

22 Solado - Solera de hormigón en masa con fibras de e: 10 cm, para pavimento decorativo, realizada en HM-20/B/12/X0 fabricado en central y vertido con bomba, y fibras de polipropileno, extendido y vibrado manual, con acabado superficial mediante fratasadora mecánica

23 Junta de Dilatación - Poliestireno Extruido de 3 cm.

24 Cerramiento - Fábrica tipo capuchina de bloque cerámico aligerado visto de 14 cm de espesor con junta rectificada, unida mediante mortero premezclado en seco, con enfoscado interior de 10 mm e imprimación promotora de silicatización.

25 Cerramiento - Fábrica de bloque cerámico aligerado visto de 24 cm de espesor con junta rectificada, tomada con mortero premezclado en seco, con enfoscado interior de 10 mm e imprimación promotora de silicatización.

26 Cerramiento - Fachada SATE de 10 cm de aislante y revestida de mortero monocapa blanco sobre fábrica de bloque cerámico aligerado de 19 cm de espesor y con enfocado interior de 10 mm.

27 Pieza Especial - Sistema de Arranque para cerramiento tipo SATE en contacto con el terreno.

28 Vierteaguas - Alfeizar cerámico de baldosín catalán, acabado mate, color rojo, en piezas de 11x24x1'2 cm, con goterón, empotrado en jambas y recibido con mortero de cemento.

29 Carpintería Exterior - Serie kommerling elegance, exterior antracita e interior blanco, con herrajes uni jet perimetral premium.

30 Vidrio -Doble acristalamiento templado, de baja emisividad térmica y seguridad (laminar), de color gris 4/12/4+4, conjunto formado por vidrio exterior templado de color gris 4 mm cámara de gas deshidratada con perfil separador de aluminio y doble sellado perimetral, de 12 mm, rellena de gas

Varilla de cuelgue

Twist-suspensión 0,25 kN para perfil primario T

Banda de dilatación Knauf Uniflott

Banda acústica

Canal Montante Placa Knauf (A)

argón y vidrio interior laminar de baja emisividad térmica 4+4 mm compuesto por dos lunas de vidrio de 4 mm, unidas mediante una lámina incolora de butiral de polivinilo; espesor total 24 mm, fijado sobre carpintería con acuñado mediante calzos de apoyo perimetrales y laterales, sellado en frío con silicona sintética incolora, compatible con el material soporte

Varilla de cuelgue

Twist-suspensión 0,25 kN para perfil primario T

31 Cargadero - Dintel de fábrica armada en bloques "U", con refuerzo de hormigón de relleno preparado en obra, HA-25/b/12/IIa y acero B500S, cuantía 1'1kg/m.

32 Premarco - de aluminio

33 Falso Techo - registrable suspendido, de perfilería vista, de acero galvanizado, color blanco, con suela de 24 mm de anchura, comprendiendo perfiles primarios y secundarios;

34 Placas - paneles ligeros de lana de madera, de 600x600 mm y 20 mm de espesor.

Banda de dilatación Knauf Uniflott Banda acústica Canal Montante Placa Knauf (A)

35 Remate - placas de yeso laminado A / UNE-EN 520 - 1200 / longitud / 12,5 / con los bordes longitudinales afinados en borde perimetral.

36 Remate - placas de yeso laminado A / UNE-EN 520 - 1200 / longitud / 12,5 / con los bordes longitudinales afinados en borde perimetral.

37 Placas - paneles de yeso laminado, acabado sin revestir, de 1200x600x9,5 mm, de superficie lisa.

38 Aislamiento térmico bajo forjado - formado por panel semirrígido de lana mineral, según UNE-EN 13162, no revestido, de 80 mm de espesor, colocado a tope y fijado mecánicamente.

39 Aislamiento térmico entre los montantes de la estructura portante del trasdosado autoportante de placas, formado por panel semirrígido de lana mineral, espesor 45 mm, según UNE-EN 13162, colocado entre los montantes de la estructura portante.

40 Aislamiento térmico continuo en trasdosado autoportante de placas, formado por panel rígido

de poliestireno expandido, de superficie lisa y mecanizado lateral recto, de 60 mm de espesor, resistencia térmica 2,05 m²K/W, conductividad térmica 0,029 W/(mK), colocado a tope y fijado mecánicamente a la fábrica

41 Formación de pendiente - hormigón ligero con arcilla expandida

42 Aislamiento - panel rígido de poliestireno extruido, de superficie lisa y mecanizado lateral a media madera, de 50 mm de espesor, resistencia a compresión

43 Impermeabilización tipo monocapa, no adherida, formada por una lámina impermeabilizante flexible de PVC-P, (fv), de 1,2 mm de espesor, con armadura de velo de fibra de vidrio, y con resistencia a la intemperie

44 Capa Separadora - Geotextil no tejido compuesto por fibras de poliéster unidas por agujeteado, con una resistencia a la tracción longitudinal de 1,63 kN/m, una resistencia a la tracción transversal de 2,08 kN/m, resistencia CBR a punzonamiento 0,4 kN y una masa superficial de 200 g/m².

45 Protección - Gravilla volcánica de machaqueo, de granulometría comprendida entre 7 y 15 mm, color rojo / Astillas de madera de pino seleccionada, según planimetrías

46 Remate - Albardilla metálica, de chapa plegada de acero galvanizado, con goterón, espesor 0,8 mm, desarrollo 300 mm y 4 pliegues; colocación con adhesivo bituminoso de aplicación en frío; y sellado de las juntas entre piezas y, en su caso, de las uniones con los muros con sellador adhesivo monocomponente.

47 Aislamiento panel rígido de poliestireno extruido, de superficie lisa y mecanizado lateral, de e:50 mm, resistencia a compresión >= 300 kPa;

49 Nivelación - Capa de mortero ligero 5 cm

50 Adhesivo - cementoso de fraguado normal

51 Pavimento - Baldosín catalán, acabado mate o natural, 24x40 cm.

54 viviendas en El Cañaveral

54 homes in El Cañaveral

Madrid

Arquitectos

aybar.mateos.arquitectos

Arquitectos directores

Juan José Mateos, Camila Aybar

Arquitectos Colaboradores Estudio

Susana Granizo, Marta Escuderos, Emilia Navarrete, Merici García, Mireia Arias

Técnicos Participantes:

Telecomunicaciones

David Sánchez Gómez

Actividad piscina

Manuel Moreno Tena

Fontanería y electricidad

Manuel Moreno Tena

Calefacción y ACS

Manuel Moreno Tena

Seguridad y salud

Jorge Luis García Peña

Estudio básico SS

Jorge Luis García Peña

Seguridad y salud fase de ejecución

Jorge Luis García Peña

Director de obra

Juan José Mateos Bermejo, Camila Aybar Rodríguez

La zona en consolidación del distrito de Vicálvaro necesita de un proyecto capaz de adaptarse al conjunto de identidades locales existentes. El modo de abordar estas oportunidades urbanas debe ser capaz de generar una identidad propia del entorno, y aportar un ámbito urbano contemporáneo. Dada el área de movimiento y la orientación de la parcela, se proyectan dos edificios compactos, paralelos entre sí de PB+ 5. El proyecto busca ordenar una diversidad de orientaciones de las viviendas, con las unidades de 3 dormitorios pasantes o

This project addresses an emerging area in the Vicálvaro district, requiring an intervention that resonates with the local identity while introducing a contemporary urban character. The approach aims to respond to the site’s diverse surroundings, fostering a coherent yet distinctive sense of place.

Due to the parcel’s orientation and designated movement area, the design consists of two compact, parallel buildings within the permitted planning volume (Ground Floor + 5 stories). The layout accommodates a variety of housing orientations, including through-apartments with three bedrooms and corner units. Outdoor spaces with double-height terraces are created through the interplay of living room positions and the reversed orientation of some units, allowing for efficient alignment of wet areas and building systems.

Director de ejecución de obra

Jorge Luis García Peña

Geotécnico

Empresa Ceyge

Promotor

Prolasa, S.A

Constructora

Grupo Roca

Plazo de ejecución

18 Meses

Fotógrafo

Jose Hevia

aybar.mateos.arquitectos

movimiento establecida por el Plan Parcial.

Una exploración de lo cotidiano: vivienda contemporánea en Vicálvaro

En el contexto urbano actual, la vivienda debe responder no solo a estándares de confort y habitabilidad, sino también a las nuevas formas de vida que emergen en la sociedad contemporánea. Las ciudades se transforman y, con ellas, surgen nuevos retos para la arquitectura, que debe ser capaz de generar espacios flexibles, adaptables y en sintonía con su entorno. En esta línea, un nuevo proyecto residencial en Vicálvaro busca dar respuesta a las necesidades de la comunidad, equilibrando identidad local y modernidad.

VIVIENDA COLECTIVA

Ladrillo cara vista

Con una estructura sencilla de bloques lineales, se aprovecha el área de movimiento de la edificación para plantear una generosa terraza para cada vivienda. El aparejo y las juntas especiales son pequeñas singularidades que se valoran en las distancias cortas.

Both blocks are situated within the defined development zone from the Partial Plan. The planning sets a 17-meter depth for this zone; the proposed buildings are 12.35 meters deep, leaving a margin that enables the incorporation of terraces in each unit, enhancing orientation diversity and outdoor access.

Each building includes two circulation cores. To optimize vertical circulation, some cores serve two units per floor, while others serve three. Standard floors contain 10 dwellings; the ground floor includes four homes, each with private gardens. These gardens serve as a buffer from public space, ensuring privacy in both day and night areas.

The façades are composed of two brick types. The ground floor features black Clinker solid brick (½-brick wall), while the upper levels use a textured ash-toned brick. Both are laid in traditional bond: horizontal joints are beveled at 45° with a 1 cm minimum thickness, and vertical joints are less than 0.5 cm, with water-repellent M-7.5 cement mortar. On the terraces, the brickwork is unbonded, with 1 cm vertical joints and 0.5 cm horizontal joints.

This configuration promotes spatial richness, orientation variety, and privacy, aligning with both urban constraints

El conjunto se organiza a partir de dos edificios compactos, dispuestos de manera paralela y desarrollados en el volumen permitido por el planeamiento urbanístico. Ambos bloques, de planta baja más cinco alturas (PB+5), configuran un sistema arquitectónico eficiente que favorece la diversidad en la orientación de las viviendas. Se han proyectado unidades de tres dormitorios con ventilación cruzada y viviendas en esquina, lo que permite una relación dinámica con el exterior y una mayor variedad de soluciones espaciales.

Casa Umbral

Casa Umbral

Madrid

Arquitectos

ARQUID

Begoña Soto e Itziar Echebarrieta

Promotor/Cliente

Privado

Constructora COGSL

(Construcciones Olias Gómez SL)

Superficie total de la vivienda

768.61 m² sobre parcela de 479 m²

Materiales

Carpintería: Care

Fachada cerámica: Ferrés

Carpintería de ventanas: Itesal

Fotografía

Alberto Amores

VIVIENDA UNIFAMILIAR

Ladrillo cara vista

Tras una gran celosía que define la relación de la casa con la ciudad, y que es un telón permeable a la luz y a las vistas controladas, se organizan una serie de volúmenes para permitir patios a fachada en tres alturas diferentes.

La distribución estructural de la vivienda unifamiliar Casa Umbral –situada en el distrito noreste de Madrid–está pensada para adaptarse al estilo de vida y a las rutinas diarias de la familia, con el objetivo principal de crear un hogar que proporcione tranquilidad y espacios serenos, eficazmente protegidos del entorno exterior y del ruido de la calle. La planta baja se destina exclusivamente a las actividades cotidianas, donde se ubican la cocina, el despacho y el salón, mientras que los espacios que se usan de noche, como los dormitorios, se sitúan en un nivel superior. Esta distribución permite incorporar grandes ventanales en la planta baja, que ofrecen vistas y acceso al jardín privado.

Se compone de cuatro volúmenes: uno hacia la calle Gutiérrez Canales, que actúa como filtro, y los otros tres se abren hacia el jardín. Se utilizó una combinación de materiales, como celosía de cerámica junto con hormigón o ladrillo, para crear un envolvente que maximiza la privacidad sin sacrificar la luz natural y las vistas. Esta disposición volumétrica también se refleja en el interior, integrando cerramientos a medida que conectan los espacios principales.

La fachada de cerámica se plantea con un diseño modular que añade al interior un fascinante efecto visual. Se construye a base de piezas cerámicas muy sencillas de color terracota que permiten crear una celosía reticular, sobria y elegante. Esta enorme celosía no solo cubre los cerramientos acristalados interiores, sino que deja intuir dos terrazas en la planta superior.

Fiel a su nombre, Casa Umbral es un espacio de transición donde la solución cerámica proporciona un atractivo visual exterior con texturas y patrones únicos. Sirve para regular la entrada de luz natural, ofreciendo intimidad y privacidad en contraste con el dinamismo de la vida urbana. Esta elección de material crea un diálogo entre la tradición y la modernidad, al tiempo que mejora la eficiencia energética del edificio al permitir un control pasivo del clima interior.

Interior en equilibrio

El interior de la vivienda maximiza la conexión con el entorno natural y optimiza la funcionalidad. Con una distribución abierta y fluida, los espacios principales, como salón, comedor y cocina, están integrados. Los grandes ventanales ofrecen vistas panorámicas del jardín a la vez que permiten la entrada de luz natural. La elección de colores neutros y materiales naturales crea un ambiente sereno y sofisticado. Destaca el uso de madera de acabado suave en las carpinterías interiores, como las puertas, que genera un equilibrio entre la estética contemporánea y la naturaleza.

The layout of this single-family home is designed to accommodate the family’s lifestyle and daily routine. The main goal was to create a peaceful home with serene spaces that are well protected from the external environment and the noise of the street. The ground floor is intended exclusively for everyday activities, with the bedrooms on the upper floor. This layout allowed the incorporation of large windows on the lower level that provide views and access to a private garden.

Casa Umbral consists of four volumes: one overlooking calle Gutiérrez Canales street, which acts as a filter, and three opening out to the garden. A combination of materials was used, such as ceramic lattice, concrete and brick, to create an envelope that provides as much privacy as possible without compromising natural light or obstructing the views. This layout is also reflected in the interior, where bespoke enclosures connect the main domestic spaces.

The façade, comprised of very simple modular brick cladding in a terracotta tone, creates a gridded lattice that is both pared-back and elegant. This enormous lattice not only covers the interior glass enclosures, but also provides a glimpse of two terraces on the upper floor.

True to its name, ‘Threshold’ House is a transition space, where the ceramic solution creates an attractive exterior with unique textures and patterns. It also serves to regulate the entry of natural light, while providing privacy and sheltering the property from the hustle and bustle of urban life. The material chosen creates a dialogue between tradition and modernity and enhances the building’s energy efficiency by facilitating passive control of indoor climate.

Eco-friendly architecture

The home employs cutting-edge eco-friendly strategies, such as the use of greenery in patios and terraces to purify the air and improve indoor air quality. In addition, a geothermal system was installed for climate control, harnessing the energy of the Earth’s subsurface to provide highly efficient heating and cooling. Provision has also been made for the installation of photovoltaic panels for the generation of solar power, which will further reduce household energy consumption in the future. Finally, an electric car charger was installed in the garage to facilitate the transition towards more sustainable mobility.

Planta baja
Planta primera
Planta segunda

M 5605

M 5605

Ciudad de Buenos Aires, Argentina

Arquitectos

ARQTIPO

Proyecto

Arqtipo (Diego Aceto – Dario Litvinoff – Alejandro Camp) + Juan Pablo Negro

Jefe de Proyecto

Lucas Gorroño

Superficie

665 m2

Cálculo estructural

Ing. Pablo Lulkin

Ubicación

Monroe 5605, Villa Urquiza, Ciudad de Buenos Aires, Argentina

Fecha de realización

2020 – 2022

Valor x m2

$1250 USD/m2

Materiales

Materiales para la construcción:

Corralón Tramontana Ast

Carpinterías: Construser Alvear

Hormigón elaborado: Ing. Casas

Ascensores: Micromac

Ladrillos: Corblock (Modelo Bricko)

Sanitarios: San Martín

Hornos y anafes: Domec

Griferías y sanitarios: Fv-Ferrum

Hierros: Corletto

Fotografía

Federico Kulekdjian

El proyecto M 5605 nos interpeló acerca de los posibles modos de abordaje de nuestra práctica proyectual. La propuesta reconoce las instancias temporales y espaciales inherentes al proyecto, a partir del reconocimiento de las categorías de: contextualización (entre la inserción y la implantación), de configuración (entre un objeto material y el sistema), y de disposición (entre lo determinado y lo indeterminado).

Contextualización

VIVIENDA COLECTIVA

Ladrillo cara vista

El edificio desarrolla 10 viviendas en total (dos por planta), y se situa en un solar reducido en esquina. La habilidad para relacionar el programa con su entorno, ajustando las vistas y los retranqueos en planta y sección, se uniformiza a partir de la elección del sistema constructivo con ladrillo, que se lleva al máximo de su capacidad.

M 5605 es un edificio de propiedad horizontal de diez unidades funcionales, ubicado en el barrio de Villa Urquiza en un terreno en esquina de poca superficie de 8,80 × 12.72 m. Se encuentra emplazado en un tejido residencial medio, lindante a las vías del F.F.C.C. Mitre. Se propone múltiples relaciones de su contextuales, desde incorporar el espacio público al interior de toda su planta baja, a partir de un único solado. Como el reconocimiento de sus linderos preexistentes, infiriendo posibles relaciones y distancias de sus expansiones. Además, incorpora los retranques superiores a la envolvente de manera sensible que promueve una mayor empatía en su entorno.

Configuración

El edificio maximiza su capacidad constructiva, a partir de una envolvente mono material utilizando el ladrillo Bricko de Corblock. En ese sentido se permite una experimentación material a partir de diversas operaciones

The M 5606 building questioned us about the possible ways of approaching our design practice. The proposal recognizes the temporal and spatial instances inherent to the project, based on the recognition of the categories of: contextualization (between insertion and implementation), configuration (between a material object and the system), and disposition (between what is determined and the indeterminate).

Contextualization

M 5605 is a horizontal property building located in the Villa Urquiza neighborhood with ten functional units, on a small corner lot measuring 8.80 × 12.72 m. It’s located in a medium residential fabric, adjacent to the Mitre railroad. Multiple contextual relationships are proposed, from incorporating the public space into the interior of its entire ground floor, from a single floor. Like the recognition of its pre-existing boundaries, inferring possible relationships and distances from its expansions. In addition, it incorporates the upper setbacks to the envelope in a sensitive way that promotes greater empathy in its environment.

Configuration

The building maximizes its constructive capacity, from a mono-material envelope using the Bricko brick from Corblock. In this sense, a material experimentation is allowed based on various precise morphological operations (repetition, section, linking) to assume its own complexity, and investigate the encounters, arrangements, modes of union and fixations with the intention of configuring an atmosphere desired (light and space in a constant interpellation).

Aparcamiento Saukonlaituri

Saukonlaituri Parking Facility

Helsinki, Finlandia

Arquitectos

ALA Architects

Collaborators

SRV Rakennus, Jones Lang LaSalle Finland, AFRY Finland, Vahvacon, Sitowise, Sipti Infra, WSP Finland, KK-Fireconsult, Roslings Manor Gardens

Type

Commission, 2016

Status

Built, construction started in June 2018, handed over in June 2020

Program

600-car parking garage for area residents, maintenance depot facilities, GFA 19,700 m²

Location

Bahamankatu 5, Helsinki, Finland

Client

City of Helsinki in collaboration with the municipally owned parking corporation Jätkäsaaren Pysäköinti

Fotografía

Marc Goodwin, Tuomas Uusheimo (TU)

La ciudad de Helsinki está reconvirtiendo sus antiguas zonas portuarias en zonas residenciales. Una de ellas, el puerto de carga y astillero de Jätkäsaari, de 100 hectáreas, situado junto al centro de la ciudad, albergará viviendas para 21.000 personas y lugares de trabajo para otras 6.000 cuando esté terminado. Construir todos los aparcamientos residenciales bajo el nivel del mar sería muy caro, por lo que se han encargado una serie de aparcamientos en superficie de gran ambición arquitectónica para cubrir las necesidades de aparcamiento residencial del barrio. Estas instalaciones también contribuyen a reducir la necesidad de aparcamiento en la calle.

The City of Helsinki is in the process of redeveloping its former harbor areas for residential use. One of these areas, the vacated 100-hectare cargo port and dock yard in Jätkäsaari, right next to the city center, will, when completed, contain housing for 21,000 people and workplaces for another 6,000. As building all the required residential parking capacity underground, below sea level would be restrictively expensive, the city has commissioned a series of architecturally ambitious over-ground parking facilities to cover the residential parking needs in the neighborhood. These facilities also assist in reducing the need for street-side parking.

The new five-cornered, five-story-tall Saukonlaituri parking facility consists of six circuits of parking for 600 private cars around a landscaped central courtyard with boulders, moss and ferns. Five of the circuits are covered and the sixth one is located on the roof. The courtyard has a double function: it both forms a light-well bringing daylight down to the lower parking circuits and serves as a storm water retainer and snow deposit. The southern side of the building falls back from the entrance square, stretching the ground level public space as a terraced park all the way up to the roof. This solution allows the residents of the surrounding apartment blocks to access their cars by hiking up the terraces to the correct floor instead of taking the elevator there. The terraced area can also be used for picnics and sunbathing.

The load bearing structure of the parking facility is cast-in-situ concrete and the facades are prefabricated elements made of large hollow terracotta profiles in galvanized steel frames. The natural hues of the unglazed terracotta bars blend in softly with the neighboring buildings laid in various types of brick. The sandy color scheme, the Lyme grass and the dune-like character of the terraces refer to the island called Saukko - its outline long since disappeared in land reclamation and only presence today being in street names used in the area. The terraced volume also makes the almost 20,000 m2 parking facility seem smaller than its size.

In addition to functioning as a parking garage and offering charging stations for electric vehicles, the facility houses the maintenance depots of the Helsinki City Housing Company HEKA and one private maintenance company.

In addition to having completed the Saukonlaituri parking facility in 2020, ALA is currently working on the Melkinlaituri parking facility in the same area, set to be handed over in June 2025.

DOTACIONES PÚBLICAS

Ladrillo cara vista

Revistiendo una estructura portante de hormigón in situ, las fachadas son elementos prefabricados de grandes perfiles huecos de terracota en marcos de acero galvanizado. Texturas y colores rememoran la antigua geografía del lugar.

El nuevo aparcamiento Saukonlaituri, de cinco esquinas y cinco pisos de altura, consta de seis circuitos de aparcamiento para 600 coches privados alrededor de un patio central ajardinado con cantos rodados, musgo y helechos. Cinco de los circuitos están cubiertos y el sexto está situado en la azotea. El patio tiene una doble

Edificio multiusos Yarrila Place

Yarrila Place

Coffs Harbour, Australia

Arquitectos

BVN Architecture

Equipo

Laurie Aznavoorian, Matthew Blair, Barry Cantor, Jonathan Capparelli, Tim Crawshaw, Liam Croft, Kate Field, Andrew Le, Amelia Lipa, Ayelen Moure, Kevin O’Brien, Phillip Rowden, Ploiphan Saengporm, Jessica Smith, Sergio Sottomaior Alves, Mateusz Sum, Eric Yeoh

Collaborators

City of Coffs Harbour

Lipman

Consultants

Citizen Group, TTW, LCI, Urbis, Blackett Maguire Goldsmith, Wall to Wall, Sangster, Geolink, Thylacine, Group DLA, Turner & Townsend, Surface Design, Ason Group, Windtech Consultants

Materiales

Fachada de Tempio, Cerámica Mayor

Fotografía

Tom Roe

En el norte de Nueva Gales del Sur, donde las montañas llegan hasta el mar, se reúne en un nuevo edificio la comunidad y el ayuntamiento para crear un lugar de encuentro idóneo. Se trata de Yarrila Place, un centro de arte y cultura para los habitantes de Coffs Harbour.

Un diseño anclado en el paisaje Tres elementos naturales de la ciudad fundamentan el diseño: su acogedor puerto, el impresionante fondo montañoso y la higuera milenaria impresionantemente frondosa.

Yarrila Place debe su nombre a una palabra gumbaynggirr que significa «iluminar, dar brillo, alumbrar o ilustrar». El arquitecto principal de este nuevo icono regional es nativo; Matthew Blair se crió en la ciudad y su profundo conocimiento de este lugar y esta comunidad aporta una pasión personal a este proyecto. Su colega Kevin O’Brien lo conecta con las singulares capas indígenas y la gente de la zona. Y el equipo en su conjunto aporta al edificio lo mejor de las fortalezas colectivas de BVN.

Un hito cultural

DOTACIONES PÚBLICAS

Piezas de gran formato

Este lugar para la cultura de Coffs Harbour, que cuenta con comunidades indígenas y migrantes, tiene una forma única en una ubicación prominente, y está diseñado para ser visible, acogedor y memorable...

Yarrila Place se asienta en pleno centro de Coffs, en un valle costero de la Gran Cordillera Divisoria. El edificio es una estructura distintiva envuelta en una piel de cerámica vidriada, que anuncia con orgullo su presencia y optimismo. Es un lugar para la cultura de Coffs Harbour, incluida la diversa gama de comunidades indígenas y migrantes. Esta mezcla está entretejida en el tejido mismo del edificio, resultado de muchas conversaciones e ideas exploradas en colaboración con las comunidades locales. De colores vivos, con una forma única y una ubicación prominente, está diseñado para ser visible, acogedor y memorable.

Un espacio acogedor Yarrila alberga espacios públicos, instalaciones comunitarias y servicios del Consejo. Hay una nueva y dinámica

Where the mountains meet the sea in northern NSW, a new building knits together community and council to form a special kind of meeting place. This is Yarrila Place – an arts and culture hub for the people of Coffs Harbour.

A design anchored by the landscape

Three natural features anchor the design: the welcoming harbour, a stunning surrounding mountain range and a massive, historic fig tree. These are not just orienting features but meaningful points of reference that resonate for the community as they do for the design of Yarrila.

Yarrila Place is named after a Gumbaynggirr word that means “illuminate, brighten, light up or illustrate”. The lead architect for this new regional icon is one of its own. Matthew Blair was raised in the town and his deep, nuanced understanding of this place and community brings a personal passion to this project. Colleague Kevin O’Brien connects it with the unique indigenous layers and people local to the area. And the broader team brings the best of BVN’s collective strengths to the building.

A cultural landmark

Yarrila Place sits in the middle of Coffs City Centre, in a coastal valley of the Great Dividing Range. It’s a distinctive structure wrapped in a glazed ceramic skin, proudly announcing its presence and optimism. This is a place for every cultural thread of Coffs Harbour, including the diverse range of indigenous and migrant communities. This blend is woven into the very fabric of the building –the result of many conversations and ideas explored in collaboration with local communities. Brightly coloured, uniquely shaped and prominently situated, it’s designed to be visible, welcoming, and memorable.

A welcoming space

Yarrila hosts public spaces, community facilities and Council services. There’s a dynamic new library split over three levels with dedicated areas for kids, young adults, local history, and private study. On the ground floor sits the new Yarrila Art Museum (YAM) celebrating local stories and creativity as well as the council’s customer service centre. There are libraries, maker spaces, plus an open-air rooftop garden with cascading greenery, open to the public.

A spectacular skylight

An internal open-air atrium spans the middle of the building, connecting the ground to the sky, and binding together the people and the energy of Yarrila.

Reflecting the curvature of the giant fig tree nearby, a continuous track takes visitors up through each of the three floors reaching the rooftop terrace which sits in the tree’s canopy.

Like Coffs Harbour itself, Yarrila Place will evolve over time, and reflects a philosophy of open minded welcome, creative collaboration and community spirit.

Las fachadas cerámicas son visualmente atractivas, y resistentes a las condiciones climáticas costeras, lo que las hace ideales para la región. Se han utilizado piezas FFNR 745/40 de Tempio de Cerámica Mayor.

Artículo Técnico

NEXT-CER. Innovador

sistema constructivo gran formato cerámico visto para una construcción sostenible

Según establece la Unión Europea, edificar de manera sostenible implica construir de manera más eficiente, consumir, cada vez, menos energía y materiales, realizar edificios inteligentes y respetuosos con el medio ambiente, garantizando la salud y el confort de sus ocupantes. Los objetivos de sostenibilidad establecidos por la Unión Europea convergen con los desafíos tecnológicos clave del sector de la construcción. Destaca la necesidad de una innovación continua para desarrollar sistemas constructivos industrializados de alto valor añadido, con diseños y características mejoradas, que sean compatibles con un modelo de desarrollo sostenible, que reduzcan el consumo de recursos y la generación de residuos.

Producto: Ladrillo para revestir

Dirigido a: Proyectistas

Contenidos: Diseño

La falta de mano de obra cualificada en el sector ha generado la necesidad de evolucionar hacia sistemas constructivos más tecnificados y eficientes. La construcción de grandes formatos prefabricados, o preensamblados, optimizados para cumplir con altos estándares de eficiencia energética, representa una solución eficaz para agilizar los procesos constructivos sin comprometer la calidad y el rendimiento de los edificios. Diseñar elementos, para facilitar el montaje y reducir los tiempos de obra, permite una mayor precisión en la ejecución, disminuyen los residuos y contribuyen a la reducción del impacto ambiental asociado a la construcción tradicional.

En este ámbito, NOTIO-Centro Tecnológico de Actividades de la Construcción, está trabajando en el proyecto NEXT-CER. Éste se centra en el desarrollo de sistemas constructivos cerámicos innovadores para envolventes de edificios, orientados hacia la industrialización y con criterios bioclimáticos para la reducción del consumo energético de los edificios. Además, considera todo el ciclo de vida del producto y del edificio. De esta manera, se busca contribuir al incremento de la capacidad competitiva del sector de la cerámica estructural mediante el diseño de nuevos materiales de alto valor añadido, alineados con las tendencias internacionales contemporáneas en arquitectura y diseño; materiales que deben ser técnica, medioambiental y económicamente viables.

Para fundamentar el diseño, se ha llevado a cabo un análisis exhaustivo de las problemáticas derivadas de la evolución histórica de los sistemas constructivos de fachada en los que emplean piezas cerámicas.

El problema de la fabricación

A pesar de la evolución significativa del sector de la cerámica estructural hacia procesos productivos más eficientes y sostenibles, este sigue siendo considerado intensivo en consumo energético. Alrededor del 30% del coste total de producción se atribuye a las etapas de secado, cocción y enfriamiento. Para mitigar este impacto, se están investigando activamente diversas estrategias. Estas incluyen la integración de energías renovables, la optimización de hornos y secaderos para maximizar el aprovechamiento energético, y el desarrollo de métodos de cocción que reduzcan la demanda energética mediante la incorporación de desechos orgánicos en el proceso de fabricación. Estas iniciativas reflejan el compromiso del sector con la adaptación a las exigencias del mercado y la normativa vigente, buscando la reducción de costes y la minimización del impacto ambiental.

Figura 1. Horno con quemadores de gas natural y recuperadores de calor.
Figura 2. Instalación de paneles solares fotovoltaicos en cubierta.

Archivo Histórico

Torre Conurban en Buenos Aires

Enrique Sanz Neira, arquitecto

Proyecto

Estanislao Kocourek, Erenesto Katzenstein y Carlos Llorens

Año

1969-1973

Ubicación

Catalinas Norte. Retiro. CABA. Argcnrina Promotor Conurban S.A

Contratista

Kocourek S.A. de Construcciones

Uso

Tercer edificio, con uso de oficinas, construido del submercado del 70’

Sup. cubierta 26.217,30 m2

Altura

95 m

Estudio de suelos

Jorge Laborde

Kocourek, Katzenstein y Llorens. Vista general de la Torre Conurban. Nuestra arquitectura, abril 1971

Hormigón Armado

Miguel Becerra y Juan Lange

Aire Acondicionado

Jorge Wiegandt

Obras Sanitarias

Antonio Causino

Electricidad Luis Grinner

Gas

C. F. Hurtado

Estudio estructural lng. Alejandro Lange

La Torre Conurban es una estructura destinada a oficinas ubicada en el complejo Catalinas Norte, en el barrio de Retiro, Ciudad Autónoma de Buenos Aires, Argentina. Su diseño y construcción estuvieron a cargo de los arquitectos Estanislao Kocourek, Ernesto Katzenstein y Carlos Llorens. Finalizado en 1973, el edificio se distingue por su concepción arquitectónica y el uso optimizado de materiales en sus fachadas.

Ubicado en la Avenida Eduardo Madero 1020, el edificio alcanza una altura de 95 metros, distribuidos en 25 niveles sobre rasante. Complementariamente, dispone de tres niveles subterráneos destinados a estacionamiento y áreas técnicas, totalizando una superficie cubierta aproximada de 26.217,30 metros cuadrados. La obra fue ejecutada por la firma Kocourek S.A., con un período de construcción comprendido entre 1969 y 1973.

Desde el punto de vista arquitectónico, el Edificio Conurban presenta una configuración adaptada a las condiciones climáticas y funcionales propias de una torre de oficinas. La fachada orientada al Río de la Plata está compuesta por un sistema de muro cortina en vidrio tonalizado color bronce con doble vidriado hermético, optimizando el aprovechamiento lumínico y las vistas panorámicas.

Referencias

Begino, J., Devecyan, M., Loro Meyer, D., Zeitler, B. “Post Canon. Re: Edificio Conurban”. [Tesis de Licenciatura. Universidad Torcuato Di Tella]. Repositorio Digital Universidad Torcuato Di Tella. https://repositorio.utdt. edu/handle/20.500.13098/12109

“Conurban”, Laboratorio de Documentos de Arquitectura, Universidad Nacional de San Martin, 2019. https://labda.com.ar/portfolio/conurban/ Katzenstein, Ernesto; Katzenstein, Inés. Ernesto Katzenstein Arquitecto Buenos Aires, Argentina: Fondo Nacional de las Artes, 1999. Moderna Buenos Aires, “Edificio Conurban”, https://www.modernabuenosaires.org/obras/20s-a-70s/edificio-conurban

Revista Construcciones. Número 234. Buenos Aires, Argentina: Cámara Argentina de la Construcción, 1972.

Revista Nuestra Arquitectura. Número 470. Buenos Aires, Argentina: Editorial Contemporánea, 1973.

Planta baja y sótano. Nuestra arquitectura, abril 1971

Planta tipo. Laboratorio de Documentos de Arquitectura, Universidad Nacional de San Martin, 2019

Reflexiones sobre arquitectura

New York es Europa (I)

Ahora más que nunca es el momento de reconocer las similitudes y el mestizaje. Características humanas, en un mundo en el que la globalización no es detenida ni por una pandemia, y también culturales, que han estado ahí siempre y que en la actualidad se señalan con más intensidad; algunos piensan que es una pérdida de identidad.

En el caso concreto de la arquitectura neoyorquina, ya conectada como Nueva Ámsterdam entre el segundo y tercer cuarto del siglo XVII, las vinculaciones con el viejo continente son numerosas y evidentes.

Rogelio Ruiz nos muestra en varias entregas estas conexiones, en un viaje de vuelta a NYC. Arte urbano, en la ciudad que nunca duerme, y que ha acogido, como en otras partes de los EE.UU., puntas de lanza creativas de los grandes artistas europeos de los últimos cien años.

Fotografías / Rogelio Ruiz, Jaime Ruiz, Marcela Pérez Referencias

Egaña Casariego, F., Joaquín Vaquero Palacios en Nueva York, Universidad de Valladolid

Archivo español de Arte, LXXXVI, 343 julio-septiembre2013, pp. 237262ISSN: 0004-0428AVS. https://xn--archivoespaoldearte-53b.revistas. csic.es/index.php/aea/article/view/549/546

García Lorca, Federico, Poeta en Nueva York, NY: 1929. https://www. cervantesvirtual.com/obra-visor/poeta-en-nueva-york-785140/html/ a17d2a80-fa3c-40bd-b333-4d82ae223500_2.html#I_1_ González, Enric, Historias de Nueva York, RBA, Barcelona 2014 Koolhaas, Rem, Delirius New York, a retroactive manifesto for Manhattan, The Monacelli Press, NY 1994

Philip Johnson, Simon & Schuster, New York 1972 Rappaport, N., Rappaport Stoller, E., Ezra Stoller, photographer, Yale Press 2012

“What Do we Do, with the Art of Monstrous Men?” The Paris Review https://www.theparisreview.org/blog/2017/11/20/art-monstrous-men/

Hace muchos años, acababa de cumplir dieciocho, me recorrí a dedo Italia. Compraba guías al llegar a Roma, a Florencia, a Pisa..., y me veía hasta la última iglesia y palacio. Cuando llegué a Venecia y desperté en la estación de Santa Lucía (¡dedicada a una santa sin ojos!), viendo tanta belleza me dediqué solo a pasear y a comer manzanas. Así, en piel propia, descubrí que ya era un flanneur (aunque no conociese la palabra). Lo mismo me pasa en esta otra Gran Manzana, da igual que prepare que no, que me haga con una guía mejor o peor, ya que la ciudad, la gente, las mil razas que viven su New York particular, te envuelven, y te atraen más que la propia arquitectura. Es verdad que, al llegar, el cuello se te dobla para mirar las torres hacia el cielo. Pero después, en esta ley no establecida, que desde el vienés Loos y el concurso del Chicago Tribune, despieza cada rascacielos en basa, fuste y capitel, las torres se dividen en una parte abajo que da frente a la gente, donde, por cierto, ves obras de arte impresionantes: Lucien Freud (inglés), Jeff Koons, Plensa (catalán), Anish Kapoor (indobritánico), son algunas de las que, junto a las que aparecen por las calles: Picasso (malagueño), Barbara Hepworth (inglesa) , Dubuffet (francés), Claes Oldenburg (sueco), Robert Indiana etc., animan y sirven de escala entre la magnitud de las construcciones y el tamaño de los peatones. Luego viene otra parte, interminable, de pisos de oficinas, iguales, repetitivos, para culminar en un remate que juega al juego del Empire State o del gran Chrysler, pero sin esperar ganar ninguno en este trance. Ves otros edificios imponentes Woolsworth, Helmshey, El Dorado, el Hotel Plaza... que nos hablan de otros tiempos.

AVANT GARDE

Dice el periodista catalán Enric González, al inicio de su libro Historias de Nueva York, que cuando son las tres en Nueva York, son las nueve en Europa, pero de diez años después. Yo suelo decir que Nueva York es la ciudad europea más al oeste, porque no la acabo de ver integrada en su propio país (¡aquí ganó Kamala Harris!), como no veo, por ejemplo, a Ámsterdam en el suyo, o a Madrid, que es bastante diferente al resto de España. Y sí encuentro aquí muchos refinamientos del viejo continente. Hasta el hecho de que un buen número de sus nombres (York, Harlem, Chelsea, Greenwich...) son repeticiones de sitios europeos. También esos museos, que son, a veces literalmente como en los claustros del Met, recortes de la vieja Europa. San Patricio es Europa, y lo mismo St John The Divine que tiene una fachada tan gótica como la Catedral de Rouen que vemos colgada en el Met de la mano del francés Monet (y, además, ¡gran parte de The Divine construida por el valenciano Guastavino!, a quien The New York Times apodó a su muerte “el arquitecto de Nueva York”). La Quinta Avenida es París, y cuando entras en Tiffany’s –ahora sobreelevado por la firma holandesa O.M.A., con una caja de cristal ondulado, como el que puso en su día Koolhaas en Porto– te das cuenta de hasta dónde llega el lujo (en el rellano del ascensor tiene cuadros de Schnabel, artista que, por cierto, tiene casa en Donosti).

Entrevista a Beatriz Ramo López de Angulo, STAR strategies + architecture

Estrategias (para) más Arquitectura

st-ar.nl

STAR strategies + architecture es una oficina que se interesa por todos los temas directa o indirectamente relacionados con la arquitectura y trabaja en proyectos e investigaciones de cualquier escala en los ámbitos de la arquitectura y el urbanismo. Fue fundada por Beatriz Ramo en Róterdam en 2006.

STAR asume la responsabilidad de todas las fases del proyecto. Desde 2006, varios premios en concursos internacionales (Francia, Países Bajos, China, Islandia, Líbano, Noruega y España) para el desarrollo de proyectos de vivienda, edificios públicos o planificación urbana, han otorgado a STAR reconocimiento internacional.

El trabajo de STAR ha sido publicado en la prensa general a nivel mundial en medios como The New York Times, de Volkskrant, Corriere della Sera, El País, El Mundo, Libération, Humanité, Vogue, Elle, etc.; en publicaciones de arquitectura como Casabella, AA Files, Arch+, Le Moniteur, Domus, Abitare, Architectural Review, A+U, Deutsche Bauzeitung, entre otras, y ha sido exhibido en prestigiosos centros como el NAi en Róterdam, la Storefront Gallery en Nueva York, el Pavillon de l’Arsenal en París o el Ludwig Forum en Aquisgrán.

Beatriz Ramo es invitada regularmente a impartir conferencias en instituciones como la Galería Nacional de Arte en Vilna, el Pavillon de l’Arsenal en París, la SCA en Buenos Aires, el Architecture Club en Kiev, el Museo de Arquitectura en Breslavia, la Independent School for the City en Róterdam o la Rietveld Academy en Ámsterdam.

STAR mantiene una actividad constante en investigación y textos y colabora regularmente con la revista MONU sobre urbanismo, donde Beatriz Ramo es editora colaboradora desde 2008. Desde 2007, STAR desarrolla actividades académicas en varias escuelas e instituciones en los Países Bajos como extensión de los proyectos de estudio de la oficina, a través de cursos y talleres de investigación sobre tipología arquitectónica, urbanismo, arquitectura de interiores y crítica. Beatriz Ramo ha dirigido cursos en el Sandberg Institute y la Academia de Arquitectura de Ámsterdam, así como en la Academia de Arquitectura de Tilburg, donde también fue crítica invitada en StadslabEuropean Urban Design Laboratory.

El pasado Noviembre Beatriz Ramo recibió el premio nacional francés ARVHA 2024 a mujeres arquitectas por su proyecto START de viviendas experimentales en Ivry, al sur de Paris.

Enrique Sanz: Te agradezco especialmente que tengamos esta conversación, porque hay varios temas en los que creo que puedes dar un punto de vista muy interesante: eres zaragozana y graduada en la ETSA de Valencia en 2002, y resides hace unos veinte años en Países Bajos. Has participado en debates y proyectos urbanos, centrados en nuevas soluciones de vivienda. Me gustaría que habláramos sobre tus experiencias, pero también sobre tu trabajo como arquitecta joven europea, colaborando en iniciativas grandes o pequeñas y en general muy transversales.

Empecemos hablando de vivienda; yo creo que son necesarias ideas nuevas, ahora más que nunca. Desde la creación de STAR, la vivienda ha sido uno de tus principales campos de investigación y experimentación. Habéis explorado el tema a través de múltiples proyectos, que van desde la teoría hasta la escala real (1:1). Se ha abordado la adaptación de la vivienda a los estilos de vida cambiantes de los hogares actuales, la optimización de los espacios “servidores” y la escalabilidad de los apartamentos. Los ejemplos son diversos: desde The Cabanon en Róterdam (un apartamento de 7 m²) hasta el proyecto de Ivry-sur-Seine, con más de 23.000 m² de vivienda innovadora, flexible, asequible y resiliente, además de espacios comunitarios. STAR también desarrolló su investigación en vivienda como miembro del Consejo Científico de la AIGP (Atelier International du Grand Paris), donde creó entre otros el concepto de “Co-Residence”. Estos proyectos y obras los explicamos en estas páginas; recomiendo que los interesados en vuestras propuestas visiten la web de STAR (st-ar.nl), pero tengo muchas preguntas sobre este tema que hacerte:

¿Crees que los problemas de definición/acceso/promoción de vivienda y sus soluciones son más o menos iguales en toda Europa o aún las diferentes regiones exigirán diferentes planteamientos? Quizá los dos extremos sobre este tema sean España y Países Bajos. En Alemania aproximadamente el 54% de los alemanes viven en viviendas de alquiler. En Berlín, alrededor del 84% de los residentes alquilan sus viviendas. En España, el 75% de la población es propietaria de su vivienda (en el 2022, pero en el 2011 era el 84%). Y el porcentaje es mucho menor entre los jóvenes de menos de 35 años (55%) mientras que los mayores de 74 ronda el 84%.

¿A escala macro (o política) crees que hay que definir una directriz europea o mantenerla a escala regional, como hasta ahora? ¿Puede venir Bruselas a salvar a los jóvenes españoles?

Beatriz Ramo: La crisis de la vivienda es un problema multifactorial y complejo, que requiere compromiso y acción desde todos los frentes: política, promoción, instituciones, arquitectos e incluso ciudadanía. Aunque el problema afecta a muchas ciudades europeas, las diferencias entre países son enormes, y no sólo por cuestiones económicas, sino por décadas de políticas de vivienda diferentes y contextos culturales muy distintos. Este tema da para hablar horas.

Turn static files into dynamic content formats.

Create a flipbook
Issuu converts static files into: digital portfolios, online yearbooks, online catalogs, digital photo albums and more. Sign up and create your flipbook.