6 viviendas de alquiler publicadas en conarquitectura

Page 1

ARQUITECTOS

José Costa Pelufo

Gabriel Doménech Bardisa

Jorge Llopis Vañó

Andrés Puertas Cabot

42 viviendas de alquiler joven / Benidorm, Alicante / 42 rented homes for young people

Este edificio es el resultado del primer premio del V Concurso de Anteproyectos convocado por el IVVSA. Benidorm posee dos características que esta propuesta intenta aprovechar: la posibilidad de disfrutar de vista sobre el mar y un urbanismo que propicia la construcción en altura. Sin embargo, la parcela sobre la que se sitúa el proyecto se enfrenta a una orografía abrupta que constituye un condicionante decisivo: sólo a partir de la novena planta se consigue divisar el Mediterráneo. Así, el edificio se divide de forma natural en dos partes. Hasta la octava planta se desarrollan las viviendas dúplex que poseen terrazas de doble altura sobre las que vuelcan las distintas estancias. Estas oclusiones de aire permiten esponjar el edificio, acumulando la mayor edificabilidad posible en las plantas altas. A partir de la novena planta se disponen los tipos desarrollados en un solo nivel, consiguiendo un mayor número de viviendas que disfrutan de vistas lejanas al mar.

La división programática se traslada con fuerza al aspecto exterior de la torre manifestando una doble escala: en primer plano la vibración entre las líneas horizontales de las barandillas, cuya separación cambia según la planta sea de dúplex o no, y por detrás la variación de las terrazas en función de las diferentes combinaciones de viviendas.

This building came about after its architects won first prize at the Fifth Preliminary Design Awards organised by IVVSA. Benidorm has two features that this project aimed to exploit: the possibility to have sea views and a town layout that favours high-rise buildings. However, the uneven ground of the plot on which it is located was a restricting factor: it is only from the ninth floor that the Mediterranean Sea can be seen. The building is therefore divided into two natural parts: the first eight floors house duplexes with double-height terraces, with the different rooms looking onto these. These air occlusions allowed us to expand the building and to make the most of the space available for building on the upper floors. From the ninth floor (inclusive), the housing units are developed on one level, thus enabling us to construct a larger number of homes with distant views of the sea.

The two different layouts are powerfully reflected in the tower exterior which has a double scale: from the front, the vibration between the horizontal lines of the banisters, the spacing between which varies depending on whether the floor houses duplexes or single-storey apartments and, secondly, from the rear, the variation of the terraces according to the different combinations of housing units.

21 con arquitectura
Ladrillo cara vista

Las viviendas dúplex pese a estar privadas de vistas al mar, poseen como contrapartida su propio espacio de desahogo, con terrazas de doble altura sobre las que vuelcan las distintas estancias. Esto permite esponjar el edificio, acumulando la mayor edificabilidad posible en las plantas altas.

En el último tramo se consiguen más viviendas que disfrutan de vistas al mar. Esta división programática se traslada con fuerza al aspecto exterior de la torre manifestando una doble escala: en primer plano la vibración entre las líneas horizontales de los forjados y, por detrás, la variación de las terrazas.

Las barandillas adquieren una mayor dimensión para reforzar la percepción en el ritmo de crecimiento de la torre y sirven como viseras que tamizan el sol. El uso público de los espacios y el destino de las viviendas para alquiler joven permiten dotar a todo el conjunto de un carácter abierto y dinámico.

22 Benidorm, Alicante
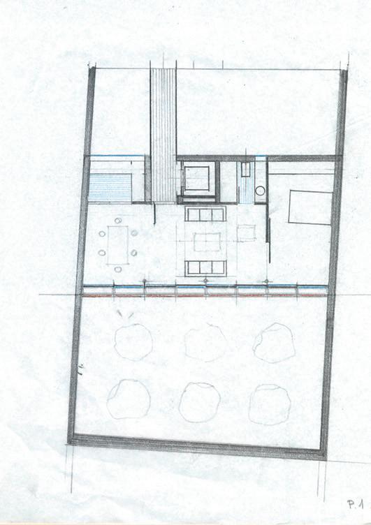
Vivienda dúplex planta baja Vivienda dúplex planta alta Planta novena a veintitrés tipo A Planta novena a veintitrés tipo B Plantas baja y sótanos
23 con arquitectura

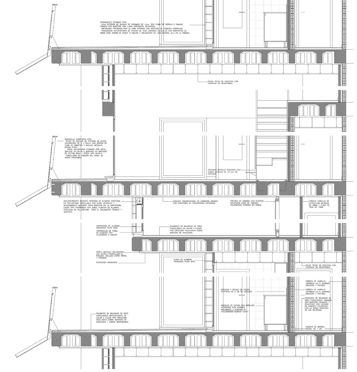
El edificio queda definido a través de la estructura de hormigón en base a una retícula confinada entre los dos testeros laterales, las cajas de ascensores y la doble escalera exterior. Las fachadas se resuelven como relleno de este esqueleto estructural con un cerramiento de bloque cerámico.

24 Benidorm, Alicante
25 con arquitectura

ARQUITECTOS AUTORES

José Costa Pelufo

Gabriel Doménech Bardisa

Jorge Llopis Vañó

Andrés Puertas Cabot

COLABORADORES

Sergio Casanova Mayor, aparejador

PROMOTOR

Instituto Valenciano de la Vivienda, SA - IVVSA

FECHAS

Agosto 2006 - Septiembre 2011

EMPLAZAMIENTO

C/ Juan Antonio Baldoví, 2 - 03500 Benidorm (Alicante)

PRESUPUESTO FINAL E. CONTRATA

3.962.413,84 €

MATERIALES Y EMPRESAS

Constructora, Tecnología de la Construcción, SA - Grupo Ortiz Construcción

Fachada, bloque cerámico Pierola

Carpintería exterior, Codeval Pavimentos interiores, Taugres Alicatados, Keramex Sanitarios y griferías, Roca Pavimento ascensor, goma Pirelli Bancadas cocinas, Silestone Banco urbanización, Saura

26 Benidorm,
Alicante

ARQUITECTO

Edificio de 226 viviendas de Protección Pública en alquiler / Madrid / Apartments in Las Tablas

El edificio es de viviendas de protección pública destinadas al alquiler, junto con garaje, trasteros, zona común ajardinada, además de 4 locales comerciales y un local para un transformador de Iberdrola. Se encuentra en el PAU de Las Tablas, una zona nueva en el norte de Madrid. Cuando se realiza las parcelas vecinas estaban todas construidas y la zona ya consolidada.

El Proyecto se realiza en dos fases, en la primera el programa se resuelve con 160 viviendas, con acceso desde 10 portales, a base de modelos de viviendas que se van repitiendo en planta, con doble fachada para facilitar su ventilación, siempre con el mismo ancho de crujía y con pequeñas diferencias de longitud para adaptarse a las dimensiones de parcela. Son viviendas de 2 o 3 dormitorios, a excepción de las viviendas de esquina que serían dos de 1 dormitorio y las dos últimas plantas. Los salones se agrupan con las cocinas en las orientaciones Sur. Desde la planta primera a la quinta todas las plantas son iguales, a excepción de una terraza en planta primera en los tres primeros portales, y el movimiento de las ventanas.

The building houses state-subsidised rented apartments, in addition to a garage, storage rooms, communal garden, four retail outlets and premises to house an Iberdrola transformer. It is located in PAU Las Tablas, a newly developed area in the north of Madrid. When construction began, the neighbouring plots were already complete and the district firmly established.

The project was carried out in two phases. The first consisted of 160 apartments accessed via 10 entrances. The housing models, which are repeated on each floor, have a double façade to facilitate ventilation, the same centreline width and slight variations in length in order to fit the dimensions of the plot. They consist of 2 and 3-bedroom apartments, except for the ones on the corner and on the two top floors, which are onebedroom. The living rooms are located beside the kitchen and are south facing. All of the floors are identical from the first to the fifth floor, except for three of the blocks, where the windows vary and which have a terrace on the first floor.

65 con arquitectura
Ladrillo cara vista y adoquín
66 Madrid
Planta baja Planta sótano 1
Planta 1 Planta
4
Planta 6 Planta 7
de la versión inicial de 160 viviendas
Planta sótano 2
2 y
Planta 3 y 5
Planta tipo

La tipología obligatoria es la de bloque aislado con espacio libre interior. Para tener el mayor espacio de jardín continuo, el edificio se posiciona en la alineación oficial en gran parte obligatoria, excepto en el tramo de la calle Puente de la Reina, donde se retranquea 3 metros, principalmente para poder retranquear la planta ático en la fachada más soleada, disfrutando así de terrazas al Sudeste, además así se independizan las viviendas del comercial. El flanco Suroeste se ha dejado libre, con la intención de permitir el soleamiento del espacio libre ajardinado. Además, con esta configuración se evita ver desde el jardín de zona común los edificios vecinos, y se disfruta únicamente de la visión del propio edificio o del gran talud al Suroeste lleno de vegetación hasta la cota de la planta tercera

Los accesos al edificio están condicionados por el deseo de independizarlos de la actividad comercial de los locales, y por la topografía. Ya que hay una diferencia altimétrica entre el extremo norte y el sur de la parcela de 3 m. También por la topografía el edificio se banquea por juntas de estructura. El ancho de algunas calles limita tanto la altura del edificio que en algunos casos llegando a la altura máxima permitida con el ladrillo, se ha tenido que poner en lugar de peto barandilla de chapa.

The mandatory layout is a detached block with an open space in the interior. In order to free up as much space as possible for the garden, the building was positioned in accordance with the official alignment which is practically mandatory, except in the section of calle Puente de la Reina where it is set back 3 metres, mainly so that the top floor in the sunniest façade could be set back so that terraces could be built in the southeast, and to separate the residential units from the commercial ones. The southwest side was left free so that the sun can reach the garden area. In addition, this configuration prevents the neighbouring buildings from being seen from the communal garden, from which only this building can be seen or a slope in the southwest which has lush vegetation up to the third floor.

Access to the building was conditioned by the desire to keep the houses separate from the commercial activity of the retail outlets, and by the topography, given that there is an altimetric difference of 3 metres between the north and south ends of the plot. Also because of the topography, the building had to be adapted to the level using structural joints. The width of some streets limited the height of the building and, in cases where the maximum height allowed for brick was reached, metal railing had to be used in place of parapet.

A pale coloured brick was chosen to make the apartments facing one another seem brighter, and to give the complex unity. The façades are comprised entirely of six and twelve-inch brick. For this purpose, the brick was specially made for this project in a thickness of 25 cm so that no bricks had to be laid crossways. And with practically four different window widths, all of the building façades are modulated.

67 con arquitectura

Por inconvenientes de la gestión del proyecto en la Comunidad de Madrid, la promotora tiene que cambiar el programa del edificio con el primer proyecto de ejecución ya terminado y las viviendas de 7 portales vendidas. Hay que realizar viviendas para jóvenes, en portales diferenciados y que sumen en total el número de viviendas igual a las viviendas ya vendidas de los otros portales. La única opción es la de cortar un trozo del edificio del proyecto inicial dejando 113 viviendas correspondientes a 7 portales y realizar un nuevo edificio anexo con un solo portal y acceso desde este a 113 viviendas para jóvenes. La ocupación y trazado en planta sobre rasante del primer proyecto y el edificio construido prácticamente se mantiene. Resultando un edificio de 226 viviendas con 8 portales. Gracias al apoyo y la confianza en la arquitecto del proyecto por parte de los gestores de la Comunidad de Propietarios, fue posible la realización de este edificio a pesar de las numerosas dificultades.

La normativa permite planta baja, mas seis y ático retranqueado. Se renuncia a realizar las viviendas en planta baja para mejorar la calidad de los espacios comunes en esta. Las viviendas se desarrollan en todas sus crujías en las siguientes siete plantas.

Como las viviendas con terraza tienen gran éxito comercial, además de que estas no computan a efectos de edificabilidad siempre que no sean cubiertas, se retranquea tanto la planta ático (séptima), como la planta penúltima (la sexta), con la misma alineación, dándoles las terrazas resultantes a la planta sexta y realizándose viviendas con terrazas patio en la séptima. Esto se realiza también con la intención de dar menos altura al edificio, bien sea en la fachada más larga al jardín o en las que dan a las calles más estrechas, donde de lo contrario no podrían construirse 7 plantas, por la limitación de altura en función del ancho de calle del P.G.O.U.M.

68 Madrid F A B C D E G
B C A D F E G

El tendedero independiente del que disponen todas, de la planta primera a quinta da un entrante de la fachada, a modo de patio que queda cubierto en la sexta. Este queda protegido de dos fachadas de lamas de ladrillo haciendo del todo imposible su vista desde el exterior. A estos espacios exteriores, dan las futuras maquinas de la preinstalación del aire acondicionado, las salidas de las calderas ubicadas en los tendederos, además de discurrir las instalaciones de gas.

Los vestíbulos de los ascensores de acceso a las viviendas, tienen iluminación natural a través de un cerramiento de u-glass que da a los entrantes de fachada señalados, y a los que también se sacan ventilaciones naturales de dichos vestíbulos.

El octavo portal da acceso a las viviendas para jóvenes que tendrán una superficie de 25 m2 útiles, el mínimo que entonces admitía la Comunidad de Madrid. De planta primera a quinta, 13 ud. iguales por planta, en planta sexta y séptima varían en número y diseño por tener la fachada retranqueada respecto a la calle. Estas viviendas han tenido una gran aceptación.

69 con arquitectura
70

Se elige un ladrillo claro para hacer más luminosas las viviendas que quedan enfrentadas y dar homogeneidad al conjunto. Las fachadas se han replanteado enteras por pies y medios pies de ladrillo. Para ello, el ladrillo se realiza con medida especial de 25cm para toda la obra, de manera que no hay terciados. Y con prácticamente cuatro medidas de ancho de ventanas se modulan todas las fachadas del edificio. Para acentuar la horizontalidad del edificio las ventanas de las escaleras coinciden en forma y altura con las de las viviendas y se ha rehundido ligeramente la junta horizontal del ladrillo. La realización de las pérgolas, de acero galvanizado, responden a la solicitud de la promotora de dar una solución unificadora que facilite la colocación de toldos o cubriciones futuras.

Algunos voladizos de hormigón cumplen una función de protección de incendios y otros meramente compositiva para homogeneizar el conjunto. Al igual que el movimiento vertical de las ventanas que evita la transmisión de incendios entre plantas superpuestas. Las contraventanas son un elemento que dota de color y de movimiento a la fachada, dentro de que se ha buscado la sobriedad del conjunto. En el caso de las galerías de acceso a viviendas del portal 8, estás, protegen del sol de poniente, independizan visualmente las circulaciones que se dan en ellas y ocultan un poco la altura de la tabica del falso techo de estas, donde se hacía imposible casi distribuir los conductos de la energía solar obligatoria, telefonía, agua y electricidad.

71 con arquitectura

ARQUITECTO

Carmen García Sánchez

Proyecto y Dirección de Obra

COLABORADORAS

Isabel Crespo Motilla

Marta Parrilla Navamuel

APAREJADOR

Director de Ejecución de Obra

Gabriel Lendínez Martín

COORDINADOR SEGURIDAD Y SALUD

Vicente San Miguel Gonzalez

INSTALACIONES DE TELECOMUNICACIÓN

Ivan del Pozo Torres

PROMOTOR

Comunidad de Propietarios Sol Poniente

Madrid Norte c.b.

PRESUPUESTO DE EJECUCIÓN

MATERIAL 10.980.989 euros.

SUPERFICIES CONSTRUIDAS

Bajo Rasante 7.877 m2

Sobre Rasante 14.670 m2

EMPRESA CONTROL TECNICO

ESTRUCTURA E INSTALACIONES Intemac

ESTUDIO GEOTECNICO

Inteinco

FOTOGRAFÍA

Alfonso Quiroga

LOCALIZACIÓN

Calle Puente la Reina nº 25-39 Pau Las Tablas, Madrid.

INICIO Y FINAL DE LAS OBRAS

De agosto 2009 a septiembre 2011.

MATERIALESY EMPRESAS

ALBAÑILERÍA Y DIVISIONES, Hispalam y Ceramicas La Paloma.

ACABADO SUELOS

Tarima laminada Pergo Silver Domestic Plus.

El solado baño / cocinas gres Halcón Cerámicas, S.A. Perfiles Schlüter. Suelo en terrazas losa Filtrón de Intemper.

CARPINTERIAS VENTANAS

Carpintería de aluminio anodizado color plata, de Alumafel sistema Monobloc. Vierteaguas de hormigon polimero Ulma.

Contraventanas de la casa Durmi con perfiles de aluminio gris plata, y panel fenólico de la casa Parklex.

APARATOS ELEVADORES

ThyssenKrupp Elevadores S.L.

ACABADO SUELOS Galerías sobre rasante Taugres. Pavimento de trasteros Pavimentos Montero.

Pavimento de p. baja, escaleras de bajada a sótanos, adoquín Malpesa. Pavimento de terrazas y cubiertas de losa Filtrón.

Zona de juegos caucho DEXPLA.

PARAMENTOS VERTICALES

Cerramiento en fachada de chapa de aluminio anodizado ondulada de la casa Alucoil Monocapa Weber y Parex.

ACABADO TECHOS

Falso techo de porches y portales falso techo Celenit.

FACHADA

Ladrillo cara vista Greda HDR tipo liso hidrofugado.

Tamaño (largo especial) 252 mm x 115 mm x 50 mm.

Refuerzos armados y llaves Geo-Hidrol.

72 Madrid

ARQUITECTO

Viviendas de alquiler / Gójar, Granada Rented apartments

La obra que se presenta es un edificio de viviendas de alquiler en un pueblo al sur de Granada, donde la Vega empieza a ondularse en el encuentro con las últimas estribaciones de Sierra Nevada.

En un solar trapezoidal en un cruce de caminos y con una superficie de edificable de poco más de 100 m2. Uno de los lados, el suroreste es medianero, mientras que los otros tres dan a calles: sureste carretera de Gójar, Noroeste Avda. Carmen Morcillo y Noreste calle Alhambra.

El edificio se construye ocupando el total del suelo tras la cesión de una parte al Ayuntamiento, consolidando la esquina de la manzana con una pieza compacta. Consta tres plantas y bajo cubierta sobre rasante y una de sótano que sirve de almacén al local en planta baja. En las plantas altas una vivienda en cada, con dos dormitorios y amplio estar con cocina incorporada. El acceso al edificio se realiza por la Avda. Carmen Morcillo. Un núcleo de comunicaciones con escalera y ascensor se coloca en el lado medianero, de modo que se genera una planta con los núcleos húmedos junto al de comunicaciones y dejando el resto de la planta libre de instalaciones. Desde las plantas altas se disfrutan de magníficas vistas a la vega y sierra nevada.

This building houses rented apartments in a village south of Granada, where the Vega River begins to meander into the last foothills of the Sierra Nevada.

It was built on a trapezoidal plot at a crossroads and has a buildable area of just over 100 m2. The southwest side of the plot is adjacent to another plot, while the other three sides run alongside the following streets: Carretera de Gójar on the southeast; Avda. Carmen Morcillo on the northwest and Calle Alhambra on the northeast.

After giving up a part of the plot to the local town council, the building was built to occupy the entire plot and comprises a compact piece on the corner of the block. It has four floors above ground level (including the attic) and a basement which is being used as a storeroom for the shop on the ground floor. On the upper floors, there is one apartment per level, each having two bedrooms and a large lounge with a kitchenette. The building is accessed from Avda. Carmen Morcillo. The staircase and lift were placed against the party wall, beside the rooms with plumbing fixtures, so that the rest of the floor is free of utility equipment.

43 con arquitectura Termoarcilla / fachada ventilada
Gran inercia térmica cerámica esmaltada captadora de CO2

Esta obra se ha proyectado y construido con criterios de economía y racionalidad, economía no solo en la ejecución sino en el mantenimiento lo que ha llevado por caminos de sostenibilidad.

El primer factor el aislamiento, para minimizar las pérdidas de energía y optimizar el uso de la luz natural. Construido con Termoarcilla en el interior se recubre de trasdós de yeso laminado con aislamiento térmico y en el exterior la cerámica alveolar que genera una mejora del aislamiento.

Todo el edificio, tanto las fachadas como la cubierta, se reviste con una pieza de gres de alta temperatura bicocción 1220 grados esmaltado en blanco sierra nevada. Esta pieza de 40x80 con la que se ha modulado todo el edificio está atravesada por alveolos que por medio de grapas ocultas se anclan a la fachada.

La investigación en nuevos materiales se materializa por medio de la utilización de un esmalte que se caracteriza por su capacidad de captación de CO2. Lleva en su composición hidróxido de calcio Ca (OH)2 resultante del tratamiento de optimización y saneamiento de las cales de carburo residuales generadas en el proceso de obtención de gas acetileno. El tamaño de partícula primaria, debido a esta ruta alternativa de obtención, se presenta por debajo de los 100nm (nanomaterial) posibilitando una elevada reactividad frente al CO2.Ca (OH)2 + CO2 CaCO3 + H2O. De acuerdo a esta ecuación: 0.59 Toneladas de CO2 por cada tonelada de Ca (OH)2. Las condiciones de humedad en Gójar son óptimas para favorecer el proceso de fijación.

There are magnificent views of the Vega and Sierra Nevada from the top floors. The project was designed and built in accordance with economic and rational principles, not just in terms of construction, but also to ensure long-term sustainable maintenance. The main concern was insulation to minimise energy loss and optimise the use of natural light. Accordingly, the termoarcilla blocks used in the interior were lined with plasterboard containing thermal insulation and insulating brick was used in the exterior.

The entire building, from the façades to the roof, is covered with ceramic tile that was double fired at 1220 degrees and glazed in sierra nevada white. The 40x80 tile used to wrap the building is traversed by cavities and anchored to the façade using concealed staples.

Research into new materials is put into practice with the use of an enamel capable of capturing CO2

This enamel contains calcium hydroxide Ca (OH)2 resulting from the treatment and sanitation of the carbide lime waste generated during acetylene production. Because of this alternative production route, the primary particle size is less than 100nm (nanomaterial), thus enabling high reactivity with CO2.Ca (OH)2 + CO2 CaCO3 + H2O. According to this equation: 0.59 tons of CO2 for every ton of Ca (OH)2. The humidity conditions in Gójar are optimal for facilitating the setting process.

This undulating 80x40-piece that glistens in the sun like the snow on the Sierra adorns the walls and roof of the whole building.

44 Gójar, Granada
Sótano Planta baja Planta primera
45 0 1 5m
Planta segunda Planta de cubiertas Planta bajo cubierta

Esta pieza ondulada que brilla al sol como la nieve de la Sierra de dimensiones 80x40 reviste todo el edificio en paramentos verticales y cubiertas.

ARQUITECTO

Elisa Valero Ramos

ARQUITECTOS TÉCNICOS

Francisco Javier Escolano González y José Moreno Gómez

COLABORADOR

Leonardo Tapiz Buzarra, Arquitecto

PROMOTOR

Guillestanco, S.L. Unipersonal

CONSTRUCTOR

Construcciones Parejo Anguita S.L.

SITUACIÓN

Avda. Carmen Morcillo, 38, Gójar, Granada

PROYECTO / OBRA

julio 2008 / mayo 2012

SUPERFICIE CONSTRUIDA 424,35 m2

FOTÓGRAFO

Fernando Alda

MATERIALES

Termoarcilla

Pieza gran formato

Cerámica Decorativa

46 Gójar, Granada

Madrid

Edificio de viviendas en alquiler Rented apartment building

PROMOTOR

ARQUITECTOS TÉCNICOS

ESTRUCTURA

CONSTRUCTORA

INSTALACIONES

FOTÓGRAFO

Una sección sencilla, un programa escueto, en un solar que no se vé. Quizá por esa misma razón, una obra natural y sin artificio. Una fachada ciega y otra con vidrio. Construcción, igual que todo, pensada por un arquitecto... y muy poco catálogo.

En la parte posterior del edificio situado en la c/ Manzanares nº 5, como consecuencia de la demolición por ruina de una antigua tahona, ha quedado liberado un espacio que puede acoger una edificabilidad sobrante

La construcción residencial existente ocupa una superficie de 175,58 m2., quedando libre 217,25 m2., para el desarrollo del proyecto.

Aplicando la correspondiente normativa, se genera un volumen limitado por las 25,00 m., de fondo edificable máximo, con una sola crujía de 6,7 m., y limitado por las medianerías, en el que se proponen 5 viviendas de un dormitorio, distribuidas en cinco plantas, la primera ligeramente soterrada y con disfrute del jardín posterior. Se añade una planta sótano para instalaciones y trasteros.

El acceso desde calle al nuevo edificio es por el portal del inmueble con fachada a calle. Se traspasa un patio intermedio ajardinado y a través de una escalera exterior, se accede a cada vivienda, que organiza sus espacios dejando las cocinas y cuartos de baño al norte, enfrentados a la edificación existente; estar y dormitorio miran al sur y a un espacio exterior mas amplio, con una perspectiva mas abierta y desahogado, pero con la presencia inquietante de una estación eléctrica muy próxima.

La fachada norte muy cerrada se reviste con ladrillo blanco que proporcione un ambiente mas luminoso y con huecos pequeños y de dimensión variable según el uso correspondiente. La fachada sur, es una fachada doble, formada por un muro cortina, también con carpintería de aluminio termolacado, y una fachada de lamas de madera de ipé, practicable en varios módulos, para protegerse del sol de mediodía y tamizar las vistas a unas instalaciones eléctricas inmediatas. Ambos planos, el de vidrio y el de madera, quedan separados por unas pasarelas de tramex de medio metro de ancho aproximadamente, para mantenimiento y posible colocación de plantas.

La idea es crear un patio posterior ajardinado al que se abran totalmente las viviendas, revestido con el mismo ladrillo blanco, por mantenimiento y luminosidad, y que cree una barrera entre el edificio residencial y la instalación próxima.

After the ruins of an old flour mill were demolished, some free space became available for the construction of a building to the rear of the building situated in c/ Manzanares no. 5.

An existing residential building occupied an area of 175.58 m2, leaving 217.25 m2 free for the development of this project.

In accordance with town planning regulations, a volume was created within the maximum building depth of 25.00 metres; with one centreline of 6.7 metres, and bounded by party walls, it will house five one-bedroom apartments, one per floor, with the first floor being slightly sunken and having use of the rear garden. There is also a basement floor to house the utilities and storage rooms.

The new building is accessed from the street. After passing through an intermediate landscaped patio and climbing an exterior staircase, we reach the apartments. In the interior, the kitchens and bathrooms face north, looking out onto the existing building, and the living room and bedroom face south, looking onto a larger outdoor space with a more open and ample view, but with the disturbing presence of a power station nearby.

The closed north façade is covered with white brick which makes it look brighter, and has small openings of varying sizes depending on what the rooms are used for.

The south façade is a double façade comprised of a curtain wall and featuring thermo-lacquered aluminium joinery, as well as ipe wood slats that can be adjusted to protect the façade from the hot midday sun and to filter the view of the nearby power station. The two planes - the glazed one and the wooden one - are separated by grid panels, approx. half a metre wide, for maintenance purposes and possibly for displaying plants in the future.

The idea is to create a rear landscaped courtyard onto which all apartments open, covered in the same white brick, to facilitate maintenance and sunlight, and to create a barrier between the residential building and the power station.

40
ARQUITECTOS Carlos de Riaño Lozano COLABORADORES Almudena peralta Luis Abril GIL BISHOP, S.L. FOMENTO DE RENTA ANTIGUA, S.L María de Hierro Luís García Cebadera. OTEP INTERNACIONAL, S.L ESTUDIO K-5 Construcciones y J.G. ASOCIADOS, S.A. Jorge Crooke
41 con arquitectura
42 Madrid
Sección A Sección B
A B
Sección C Sección D
C D
Planta de cubiertas, tipo, baja y sótano

REMATE DE FORJADO

PARA INSERTAR MONTANTE

2 COMPONENTES

PORTALISTONES

43 con arquitectura DETALLE 1 TABICÓN UPN 260 RODAPIÉ PILAR ESTERDAM 40 P ELASTOMERO HORMIGON DE PENDIENTE >2% PROTECCION GRAVA 7 cm GEOTEXTIL POLIESTER
POLIESTIRENO EXTRUIDO 6 cm GLASDAN
EMULSION
PILAR
PLACA
CHAPA
MALLAZO
LÁMINA
CARPINTERÍA
CHAPA
MALLAZO
LÁMINA
CHAPA DE ZINC. ESPESOR MINIMO 1mm TABLA MADERA PARA CLAVADO DE CHAPA MALLAZO ø6 10x10cm TABLA MADERA PARA CLAVADO DE CHAPA FORJADO HORMIGÓN SOBRE CHAPA PLEGADA SOBRE IMPRIMACIÓN PREVIA PINTURA POLIURETANO 2 COMPONENTES CARPINTERÍA METÁLICA UPN 260 ACABADO POLIURETANO 2 COMPONENTES SOBRE IMPRIMACIÓN PREVIA CHAPA PLEGADA HAIRCOL 59 (ESPESOR 1mm) MONTANTE PORTALISTONES TUBO ACERO GALVANIZADO 60x40mm LISTÓN MADERA DE IPÉ SECCIÓN 40x40mm AISLAMIENTO 5 cm POLIURETANO PROYECTADO SOBRE IMPRIMACIÓN PREVIA PINTURA POLIURETANO
UPN
PERFORADO
FALSO TECHO PLADUR VIGA PRINCIPAL IPE 330 PILAR HEB 160 TABLERO PLADUR IGNÍFUGO SUJECCIÓN POR CLIPS FALSO TECHO PLADUR VIGA PRINCIPAL IPE 330 AISLAMIENTO 5 cm POLIURETANO PROYECTADO MONTANTE
TUBO ACERO
LISTÓN MADERA DE IPÉ SECCIÓN 40x40mm TRAMEX 50x50mm TUBO ACERO
TUBO ACERO GALVANIZADO 60x60mm SOLDADO A UPN 260 PINTURA
SOBRE
CARPINTERÍA METÁLICA UPN 260 CARPINTERÍA METÁLICA FALSO TECHO IPE 330 (SOLDADO A PLACA) TACÓN HORMIGÓN PARA APOYO MURO LADRILLO MURO DE HORMIGÓN ESTERDAM 40 P ELASTÓMERO LÁMINA DRENANTE DELTA-DRAIN GEOTEXTIL REJA RECOGIDA AGUAS TIPO S 200 ENCACHADO 20cm HORMIGÓN PENDIENTE min 2% PAVIMENTO FLOTANTE SOBRE PLOTS 1/2 PIÉ DE LADRILLO TOSCO MONTANTE PORTALISTONES TUBO METÁLICO 60x40mm LISTÓN MADERA DE IPÉ SECCIÓN 40x40mm DETALLE 3 DETALLE 5 FALSO TECHO IPE 330 TABICÓN ARMADO CARGADERO ANGULAR ACERO 120x80 mm ALICATADO ALICATADO CHAPA PLEGADA HAIRCOL 59 (ESPESOR 1mm) MALLAZO ø6 10x10cm LÁMINA ANTIMPACTO ARLITA PAVIMENTO (SOLDADO A PLACA) 1 PIE DE LADRILLO TOSCO CARPINTERÍA METÁLICA POLIURETANO PROYECTADO AISLAMIENTO 1/2 PIE DE LADRILLO BLANCO ENCACHADO GRAVA ESTERDAM 40 P ELASTÓMERO LÁMINA DRENANTE DELTA-DRAIN GLASDAN GEOTEXTIL POLIESTER 200 gr/m2 DETALLE 4 CAZOLETA SIFÓNICA DE 3 PIEZAS: CAZOLETA, SIFÓN Y TAPA REJILLA ALTA MURO LADRILLO VISTO BLANCO REMATE CHAPA PLEGADA TIRANTE SUJECCIÓN REMATE CHAPA AISLAMIENTO 5 cm CÁMARA AIRE 4 cm POLIURETANO PROYECTADO VIGUETA METÁLICA IPE 180 TRASDOSADO TABICÓN CHAPA DE ZINC. ESPESOR MINIMO 1mm TABLA MADERA PARA CLAVADO DE CHAPA LADRILLO PROTECCIÓN CAZOLETA HORMIGON DE PENDIENTE >2% POLIESTIRENO EXTRUIDO 6 cm PROTECCION GRAVA 7 cm FORJADO: HORMIGÓN + CHAPA FALSO TECHO PLADUR VIGA PRINCIPAL IPE 330 BAJANTE CHAPA PLEGADA HAIRCOL 59 (ESPESOR 1mm) DETALLE 1 HOJA PRACTICABLE PERNO SOLDADO LISTÓN MADERA DE IPÉ SECCIÓN 40x40mm MONTANTE PORTALISTONES SECCIÓN 60x40mm TORNILLO FIJACIÓN LISTÓN ø20 ACCESO PERNO MONTANTE PORTALISTONES LISTÓN MADERA IROKO HOJA PRACTICABLE SECCIÓN HORIZONTAL CELOSÍA ALZADO CELOSÍA DETALLE 1 DETALLE 5 DETALLE 3 DETALLE 2 DETALLE 4 PERNO SOLDADO
200 gr/m2
40 PLASTICO
ASFALTICA
HEB 160 RIGIDIZADORES ESPESOR 10mm
METÁLICA 200x200x10 (ENCUENTRO VIGA-PILAR)
PLEGADA HAIRCOL 59 (ESPESOR 1mm)
ø6 10x10cm
ANTIMPACTO 10 MM ARLITA PAVIMENTO RIGIDIZADORES ESPESOR 10mm PLACA METÁLICA 200x200x10 (ENCUENTRO VIGA-PILAR)
METÁLICA PLADUR EXTRUIDO RIGIDO AISLAMIENTO POLIESTIRENO MONTANTE PLADUR ENFOSCADO
PLEGADA HAIRCOL 59 (ESPESOR 1mm)
ø6 10x10cm
ANTIMPACTO ARLITA PAVIMENTO
180
GALVANIZADO 60x40mm
GALVANIZADO 60x60mm
POLIURETANO 2 COMPONENTES
IMPRIMACIÓN PREVIA

La fachada norte muy cerrada se reviste con ladrillo blanco que proporcione un ambiente mas luminoso y con huecos pequeños y de dimensión variable según el uso correspondiente. La escalera se recoge junto a la medianera, manteniendose en la posición más lógica, pero al estar abierta, es un espacio luminoso y ventilado.

44 Madrid
45 con arquitectura CHAPA DE ZINC. ESPESOR MINIMO 1mm TABLA MADERA PARA CLAVADO DE CHAPA IPE 330 MURO LADRILLO VISTO DETALLE 1 ESTERDAM 40 P ELASTOMERO HORMIGON DE PENDIENTE >2% PROTECCION GRAVA 7 cm GEOTEXTIL POLIESTER 200 gr/m2 POLIESTIRENO EXTRUIDO 6 cm EMULSION ASFALTICA GLASDAN 40 PLASTICO VIGUETA IPE 180 FALSO TECHO PLADUR VIGA IPE 330 DETALLE 3 CHAPA PLEGADA HAIRCOL 59 (ESPESOR 1mm) MALLAZO ø6 10x10cm LÁMINA ANTIMPACTO 10 mm ARLITA 6 cm PAVIMENTO RODAPIÉ VIGUETA IPE 180 FALSO TECHO PLADUR LINEA DE MEDIANERÍA DETALLE 1 DETALLE 3 DETALLE 5 DETALLE 7 DETALLE 2 DETALLE 4 CARPINTERIA METÁLICA CHAPA PLEGADA HAIRCOL 59 (ESPESOR 1mm) MALLAZO ø6 10x10cm LÁMINA ANTIMPACTO 10 mm ARLITA 6 cm PAVIMENTO MURO LADRILLO VISTO DETALLE 4 VIGUETA MURFOR IPE 330 ZANCA ESCALERA PLETINA 160x12mm PELDAÑEADO DE CHAPA REMATE DE ZANCA PLETINA 160x6mm BARANDILLA VIDRIO 6+6 AISLAMIENTO: 5cm CÁMARA AIRE 4cm TRASDOSADO TABICÓN POLIURETANO PROYECTADO MURO LADRILLO VISTO IPE 160 VIGA PRINCIPAL IPE 330 VIGUETA IPE 180 FALSO TECHO PLADUR DETALLE 2 ESTERDAM 40 P ELASTOMERO HORMIGON DE PENDIENTE >2% PROTECCION GRAVA 7 cm GEOTEXTIL POLIESTER 200 gr/m2 POLIESTIRENO EXTRUIDO 6 cm EMULSION ASFALTICA GLASDAN 40 PLASTICO CHAPA DE ZINC TABLA MADERA PARA LADRILLO VISTO ESPESOR MINIMO 1mm CLAVADO DE CHAPA LINEA DE MEDIANERÍA MURO LADRILLO VISTO VIGUETA MURFOR VIGA PRINCIPAL IPE330 MURO LADRILLO VISTO 1ø8 VIGUETA IPE 180 MALLAZO ø6 10x10cm CHAPA PLEGADA HAIRCOL 59 (ESPESOR 1mm) DETALLE 5 DETALLE 3 DETALLE 2

103 viviendas para alquiler

103 rental homes

Torrejón de Ardoz, Madrid

Arquitectos

Alberich-Rodríguez Arquitectos

Arquitectos técnicos

ATC. José Antonio Cuesta Bernárdez

FPromotora

AEDAS HOMES

Empresa constructora

ARPADA S.A

Plazo ejecución obra

20 meses

Presupuesto

8.430.193 €

Superficie construida 12.317,74 m2

Materiales

La Paloma Cerámicas - Ladrillo cara vista

Q-System (modelo Q67) - Carpintería exterior aluminio

Grohe - Grifería

Newker - Alicatados y pavimentos

Vicaima - Carpintería de madera interior

Fotografía

Carlos Alberich Lanzos

Entre las tipologías permitidas por la ordenanza del Plan Parcial de Torrejón de Ardoz se ha optado por la Ordenación en Manzana Cerrada.

Los factores que han llevado a esta decisión son: la superficie de la parcela respecto a su alta edificabilidad, la morfología de la parcela y los chaflanes, la elevada densidad de viviendas asignadas a la parcela y la necesidad de optimizar el rendimiento de los núcleos de comunicación respecto a las viviendas servidas.

El resultado volumétrico es un cuerpo de cinco plantas sobre rasante y un fondo edificado de 11,50 m, apoyado el desarrollo de la alineación exterior, con excepción de la esquina-chaflán a la rotonda de alineación NO obligatoria, donde no se cierra el volumen de la manzana, dejando en su interior un generoso patio de dimensiones 39,40 x 26,70 m, que permite el soleamiento de las fachadas interiores.

El acceso peatonal al interior de la manzana se hace desde la esquina de la calle Valle del Cabriel con la calle Valle del Jerte, cerrado por una cancela que eventualmente se abrirá al paso de los vehículos de extinción de incendios. Al interior del patio abren los seis portales para acceso a las viviendas que componen la promoción. Los núcleos de comunicación compuestos por ascensor y escalera. Las viviendas se agrupan alrededor de los núcleos en número de tres o cuatro viviendas, excepto la escalera E-C que únicamente sirve a dos. En el centro del patio manzana se ubica una piscina y un conjunto de juegos infantiles. Para el uso comunitario también se ha proyectado una sala de reuniones susceptible para celebración de eventos, o también gimnasio.

De acuerdo con la propuesta del promotor, se han proyectado 31 viviendas, con programa 3 dormitorios y 72 con programa 2 dormitorios. El carácter de promoción en alquiler y alcanzar un bajo coeficiente en la relación, han resultado ser factores determinantes en la redacción del proyecto.

VIVIENDA COLECTIVA

Ladrillo cara vista

La decisión de no cerrar la alineación de la manzana en el limite suroeste, junto a la rotonda, permite establecer una conexión visual del interior de la parcela con la ciudad y mejora el soleamiento y las condiciones térmicas del espacio del patio.

Todas las viviendas, salvo en lo que respecta al número de dormitorios, tienen el mismo programa, cocina, estancia-comedor, dormitorio principal y uno o dos dormitorios secundarios, un cuarto de baño que abre al dormitorio principal y otro abierto al pasillo de distribución. Las estancias se abren a terrazas y las cocinas a tendederos. Las viviendas situadas en planta baja a interior del patio manzana tienen terrazas más amplias que las de plantas superiores.

Of the layouts permitted by Torrejón de Ardoz’s Urban Development Plan, we chose the closed block arrangement. The factors underlying this decision were the footage of the plot and the large number of units that had to be accommodated, the morphology of the site, the chamfered corners and the optimisation of the vertical circulation cores to serve as many units as possible.

Pedestrian access to the block is via the corner of Calle Valle del Cabriel and Calle Valle del Jerte. Inside the courtyard are the six building entrances leading to the units comprising the development. The vertical circulation cores consist of a lift and staircase, and the homes are grouped around these in sets of three or four, except for one of them which only serves two housing units. At the centre of the courtyard is a swimming pool and a children’s play area. The fact that the development consisted of rental homes and the need to achieve a low coefficient in the relationship were determining factors when designing the project.

52 CA 83 Entrevista
a Alberich-Rodríguez Arquitectos
53
54 CA 83 Entrevista a Alberich-Rodríguez Arquitectos
55
56 CA 83 Entrevista a Alberich-Rodríguez Arquitectos

Viviendas de alquiler L’Hospitalet

Build to rent dwellings

L’Hospitalet de Llobregat, Barcelona

Arquitectos

b720 Fermín Vázquez Arquitectos

Superficie

4.477 m2

Cliente

Novainexa S.L.

Equipo

Fermín Vázquez, Peco Mulet, Pablo Garrido, Elisabet Usón, Luis Bellera, Carlos Maristany, Eduardo Palao

Estructura

BIS Structures

Instalaciones JG

Director de obra

b720: Fermín Vázquez, Peco Mulet, Pablo Garrido y Elisabet Usón

Project manager

Moro Ojeda y Asociados: Ignacio Moro (responsable) y Fernando Guerrero

Director de ejecución

Dalmau Morros SLP: Dídac Dalmau (responsable) y Antonio López

Consultor estructuras

Bis Structures: David Garcia, Esther Muñoz (responsables), Maralba Sanoja y Miguel Mira

Consultor instalaciones

JG: Vicens García (responsable), Xavier Llasera y Javier Nuñez

Coordinación de seguridad y salud

Dalmau Morros SLP: Dídac Dalmau

OCT

SGS: Sonia Borge

Dirección ambiental

Tubkal Ingenieria SL: Maite García (responsable) y Eva Martín

Director edificación construcción II

Luis Parés Constructora:

Toni Casamada, Àlex Sabaté (responsables) y Daniel Serrano

Materiales

Armado obra de fábrica: Murfor®

Compact E-35 Anclajes Sdv 250”

Prefabricado Hormigón: Ulma Pieza

Estandard 0,40 cm Ral 9001

Toldos: Cortinsa

Toldo Pivotante: Porticones Tamiluz

Pavimento Ext: Malpesa Adoquín

Cerámico Klinker Blanco

Ceramicas Calaf: Rasilla Cerámica Ibiza

Fábrica Vista: Malpesa, Klinker color

Blanco Andalucia y esmaltado Verde

Agua

Fotografía

Adrià Goula

Se trata de un edificio build to rent de 37 viviendas, situado en L’Hospitalet de Llobregat, en una zona periférica con un tejido urbano en constante transformación de zona industrial a residencial y de limitados recursos económicos. La propuesta se rige por la búsqueda en una solución que permita aprovechar las condiciones del emplazamiento en relación al asoleo y confort de sus ocupantes, al tiempo que racional y económica, de fácil mantenimiento y flexible a adaptaciones futuras.

El edificio consta de una planta sótano, planta baja y cinco plantas piso en la parte de mayor altura, escalonándose en su coronación para crear terrazas con adecuadas orientaciones en los áticos, en una estrategia de aprovechar las cubiertas como parte privilegiada de las viviendas. El proyecto plantea un edificio residencial de voluntad funcional, eficiente, con tipologías claras, flexibles y ordenadas que buscan unas condiciones de habitabilidad de mayor calidad que la habitual. Así, todos los apartamentos disfrutan de excelentes condiciones de iluminación natural, ventilación y relación con el entorno. Las zonas de día se benefician de la orientación suroeste potenciada con generosas terrazas como proyección de las salas de estar, con vistas hacia el pequeño parque público del patio interior. La organización de las viviendas permite optimizar la edificabilidad y maximizar el número de viviendas pasantes con ventilación cruzada. La estrategia de centralización de las instalaciones y su producción energética mejora las tareas de mantenimiento y optimiza su eficiencia.

La fachada está compuesta por una solución constructiva durable, eficiente y de bajo mantenimiento, al tiempo que utiliza un material reconocible en las edificaciones industriales colindantes. La obra de fábrica es el elemento principal, con el que se crean relieves, texturas, aparejos y celosías, introduciendo el color como una sencilla estrategia de amabilizar el conjunto.

“Build to rent” building of 37 dwellings, situated within an urban fabric in constant transformation from an industrial area to a residential one, with limited economic resources. The proposal searches for a solution that takes advantage of the site conditions in relation to sunlight and comfort of its occupants, while being rational and economical, easy to maintain and flexible to future adaptations.

The building consists of a basement, ground floor and five upper floors, staggered at the top to create terraces with appropriate orientations in the attics, in order to take advantage of the upper terraces as a privileged part of the residences. The apartments are mostly transversal, allowing ventilation between opposite facades. The daytime areas benefit from the southwest orientation enhanced by generous terraces as a projection of the living rooms, which are oriented towards the small public park of the inner courtyard. The strategy of centralizing the facilities improves maintenance tasks and optimizes their efficiency.

The façade follows a durable, efficient and lowmaintenance construction solution, while using a material recognizable in the surrounding industrial buildings. The masonry is the main element, with which reliefs, textures, rigging and lattices are created, introducing color as a simple strategy to make the whole building more friendly. The facade facing the street, with less sunlight and where most of the rooms are bedrooms, has a rhythm of repetitive openings protected by exterior shutters, allowing to control privacy and interior shading, while the southwest facade is permeable, with large balconies for the rooms and retractable sun protection awnings that are regulated both separately and centrally.

The main formal attribute of the building is brick, which might seem a humble material. Here it is used extensively and applied in different ways, evoking values of the traditional building tradition and, in a way, vindicating the professional skill and dignity of the construction workers.

VIVIENDA COLECTIVA

Ladrillo cara vista

Bajo la premisa de una construcción durable, eficiente energéticamente y de bajo mantenimiento, este edificio de viviendas de alquiler se convierte en un elegante palacio, gracias al proyecto de arquitectura.

42
CA 86 06
44 L’Hospitalet de Llobregat, Barcelona
Planta baja Planta tipo 1-3 Planta 4 Planta 5
45

La fachada que da a la calle, de menor incidencia solar y donde la mayoría de estancias son dormitorios, dispone de un ritmo de aperturas regulares protegidas por porticones exteriores, permitiendo controlar privacidad y oscurecimiento interior, mientras que la fachada suroeste es permeable, con grandes balcones para las estancias y toldos retráctiles de protección solar que son regulados tanto de forma individual como centralizada.

El principal atributo formal del edificio es el ladrillo, un material en principio humilde que se utiliza en este caso de forma extensiva aplicado de diferentes formas, evocando valores de la tradición constructiva tradicional y reivindicando, en cierto modo, la destreza y dignidad profesional de los trabajadores de la construcción.

46 L’Hospitalet de Llobregat, Barcelona
Sección longitudinal Alzado calle Leonardo Da Vinci Alzado interior de manzana Secciones transversales

ELEMENTOS POR ORDEN DE EJECUCIÓN

1. Regulación de superficie para arranque nivelado de obra de fábrica

2. Pletina de 6 mm de espesor de acero galvanizado lacado en caliente, perforación previa al galvanizado.

3. Antepecho de fábrica (aparejo tipo 2) con llaves conectoras a pilar y murfor en cada hilada.

4. Perfiles tubulares de 50x70 mm con mecha superior para permitir la regulación.

5. Enmarcado de acero lacado al horno de Hotpint. El marco ira fijado a los tubulares (5).

6. Llaves conectoras fijadas al tubular (5) para el cerramiento superior de la obra de fábrica.

7. Pared de fábrica (aparejo tipo 1 y 3) fijada a las llaves conectoras (6).

8. Espuma de poliuretano (según detalle) para garantizar la estanqueidad al aire y evitar los puentes térmicos.

9. Sellado de todo el perímetro del marco de Hotpint.

10. Pieza de ULMA y aislamiento de alta resistencia fijado al canto de forjado.

11. Porticones pivotantes de aluminio lacado serie tamiluz full opac chapa/40sct.20

48 L’Hospitalet de Llobregat, Barcelona

Turn static files into dynamic content formats.

Create a flipbook
Issuu converts static files into: digital portfolios, online yearbooks, online catalogs, digital photo albums and more. Sign up and create your flipbook.
6 viviendas de alquiler publicadas en conarquitectura by conarquitectura ediciones - Issuu