conarquitectura 86, resumen

Page 1

9 781578 020102 PVP 13,50 € con arquitectura Nº 86 abril 2023 Vivienda multiescala

CA 86 01

12

BlackB_House en Sant Antoni de Vilamajor, Barcelona

Joan Puigcorbé, PAAS / María K Hawkins, MKBSTUDIO

CA 86 02

18

CA 86 03

24

CA 86 04

30

Casa Dosmurs en Alella, Barcelona MESURA

Casas patio en Ullerntoppen, Oslo, Noruega R21 Arkitekter

Edificio Delicias: rehabilitación de edificio de viviendas y local en Cartagena Martin Lejarraga Oficina de Arquitectura

10

Al llegar al final comienza la ruta

Juan Luis Cano

81

Reflexiones sobre arquitectura: Ámsterdam: be water, my friend... (Parte 1/2) Rogelio Ruiz Fernández

87

86 05

36

105 viviendas en El Cañaveral en Madrid

ALBERICH-RODRÍGUEZ ARQUITECTOS

Emilio Rodríguez Jiménez Raimundo Alberich Cid

Carlos Alberich Lanzos

92

CA 86 06

42

CA 86 07

49

Viviendas en L’Hospitalet de Llobregat, Barcelona

b720 Fermín Vázquez Arquitectos

Celosía habitada: 54 viviendas sociales en el barrio de Bon Pastor en Barcelona

PERIS+TORAL ARQUITECTES

Marta Peris

José Manuel Toral

L3J TÈCNICS ASSOCIATS Jaime Pastor

100

Artículo técnico: Sistemas constructivos cerámicos que ahorran energía

Elena Santiago MonederoSecretaria General de Hispalyt

Ana Ribas Sangüesa - Asesor Técnico de Hispalyt

Rafael de La-Hoz Armas de arquitecto: medicina del alma

Enrique Sanz Neira

Los arquitectos detrás de las obras

Monografía y noticias

CA 86 08

56

CA 86 09

61

CA 86 10

68

Edificio Cubic en Lleida M2A Arquitectura (Quim Arenas y Joaquin Mora)

71 viviendas protegidas EMV La Rosilla, Madrid AYBAR MATEOS SLP

Vivienda colectiva en Sevilla este

Antonio G. Liñán (SV60 CORDÓN & LIÑÁN Arquitectos)

76

Casa Daoiz en Gines, Sevilla EOVASTUDIO

Juan José Baena Martínez

Marta Gómez Martínez

Joanna Jedrus Cabrera

9
01 04 08 09 10 11 06 02 05 03 07 Pág.
Índice
102
Pág.
Pág.
Pág.
Pág.
Pág.
Pág.
Pág.
Pág.
CA 86 11
Pág.
Pág.
Pág.
Intro Pág.
RsA Pág.
Pág.
CVS Pág.
ART TEC Pág.
CA
Entrevista

Vivienda como Arquitectura

Al llegar al final comienza la ruta

Cogí mi móvil, mi cuaderno y mi bolígrafo, era todo cuanto necesitaba para enfrentarme a mi siguiente entrevista. Había quedado en un café céntrico con una de las máximas estrellas de la arquitectura continental y, por ende, patria. No iba nervioso, no, ya tenía la experiencia suficiente como para saber lidiar con cualquier morlaco y este, ya me había advertido mi director, era de los encastados. Una leyenda, un creador alabado y multipremiado, que alardeaba de mal carácter y había hecho de él un arma conocida, sin duda para conseguir ahuyentar a la gente molesta, es decir, a casi todo el mundo, según había podido leer en alguna entrevista suya anteriormente publicada.

El local en el que me había citado era una cafetería moderna, inaugurada recientemente, un lugar frío, de un tamaño excesivo, sin alma, aunque estuviera llena a rebosar, como era el caso. La vida que le daba vida parecía no ser capaz de aposentar su presencia, porque el propio local se encargaba de repeler cualquier sensación que transmitiera calor humano. Me llamó la atención que me hubiera citado allí.

—Buenos días.

—Buenos días ¿Cuánto tiempo me tendrá usted secuestrado?

—Depende de usted, yo tengo todo el día.

—En caso de no fallecer yo también lo tengo, pero para repartir en diferentes tipos de actividades, así que le ruego que no se alargue mucho.

—Pues comencemos sin perder más tiempo entonces. ¿Puedo pedir antes un café?

—Por favor.

Mientras ordenaba un café con leche a la camarera, observé al gran arquitecto pasear su mirada por el techo del local como escrutándolo, examinando las dos bóvedas que transformaban el ruido que provocaba el trajín del negocio en una desagradable reverberación, en un eco molesto que inundaba el ambiente. Antes de poner en marcha la grabadora de mi móvil, le pregunté:

—¿Le importa que grabe la entrevista?

—En absoluto.

Decidí empezar valiente.

—¿Por qué me ha citado en esta cafetería tan, llamémosla, horrible, para no ser demasiado despreciativo?

—Me gusta la gente con sentido de la ironía. La primera pregunta cuando me someto a una entrevista la considero fundamental y condiciona, por tanto, mis respuestas y mi actitud de ahí en adelante. Bien, ha empezado usted muy bien, joven.

—Me alegro entonces. Gracias.

—Pues le he citado aquí precisamente por eso, porque se trata de un local horrible, frío y, lo peor de todo, pretencioso y sin personalidad. No hay ningún lugar mejor para hablar de arquitectura que un sitio como este, que servirá, por sí mismo, de ejemplo de mal gusto y desatino, que es todo lo contrario de lo que he buscado a lo largo de toda mi vida en mi obra. Digamos que esta construcción es como el reverso de mi trabajo. Conocer uno es comprender el otro.

—¿Y cree que ha conseguido que su obra haya sido todo lo contrario a esta edificación?

—Lo he intentado, al menos.

—Sí, de hecho, parece que todo el mundo piensa que sí, es usted uno de los arquitectos más valorados.

—Eso es cierto, no lo puedo negar, pero soy uno de esos artistas, porque yo considero que la arquitectura es un arte como lo son la música o la pintura, que cuando cumplió con el reto que le imponía ese arte a través de todo lo hecho anteriormente, solo he sabido imitarme a mí mismo.

—Pero imitarse a uno mismo, si ese uno es original y genuino, sigue siendo legítimo. —Puede ser, pero íntimamente frustrante. Y no me pelotee, por favor, o perderá el crédito que le he dado al principio.

—Perdón. Hábleme de ese reto que cree haber cumplido.

—Yo fui, posiblemente, uno de los arquitectos más atrevidos de todos los que tomamos el relevo de los genios Le Corbusier, Eileen Grey, Walter Gropius, Frank Lloyd Wright o Alvar y Aino Aalto. Ellos fueron quienes tuvieron que reconstruir muchas ciudades y dieron un revolcón a los conceptos de la arquitectura y el urbanismo antiguos. O sea, los más grandes, que buscaron prescindir de aderezos y detalles inútiles y se centraron en la funcionalidad que facilitara la vida a las personas.

10 CA 86 Intro
Modern Architecture ©duangbj1

BlackB_House

BlackB_House

Sant Antoni de Vilamajor, Barcelona

Arquitectos

Joan Puigcorbé, PAAS / María K Hawkins, MKBSTUDIO

Colaboradores

msb

Constructora

Construcciones Pruden / Construcciones Metàl.liques Olot / Fusteria R.Galera /

Instalaciones Herrera i Gargallo

Fechas

Proyecto: 2018

Construcción: 2019-2021

Superficie parcela

802 m2

Superficie construida

380 m2

Materiales

Fachada: Ladrillo clinker negro

Timanfaya

Piscina: plaqueta Gris - Porcelanosa

Garaje: Dark grey wood

Cristal: Clear Insolated Glazing

12+20+10

Pavimentos: Exposed grey concrete

Iluminación general: Flat LED 5050

SMD 127V IP65 BC. BSV light

Mecanismos eléctricos: JUNG Serie

LS white Black

Lavabos, baño y cocina: Sinks Black quartz 20 mm, Kitchen: Absolute black granite 20 mm

Grifería: Lavamanos ROCA L90, Cocina ROCA L90, Inodoros ROCA

Inspira Square, Ducha ROCA

Raindream

Impermeabilización cubiertas:

Pluvitec 3000 kg

Mobiliario: Rubik Verzelloni sofas, Nuez Andreu World chairs, Nuez

Andreu World tools

Habitación infantil y cortinas: Design by Puigcorbé. AmbitsDecor

Paisaje: Design by Puigcorbé

Fotografía

Jordi Miralles

Se plantan robles, encinas, olivos, cipreses y plantas autóctonas, alrededor de una secuencia, no alineada, de pilares de doble altura, construidos en su interior y exterior con ladrillo cerámico visto negro.

Entre estos pilares se situan algunas plataformas de hormigón visto, dejando parte de los espacios interiores a doble altura, y dejando entre los pilares aberturas verticales que nos acercan los diversos árboles exteriores, a la vez que nos llevan la vista desde la tierra del jardín hasta el cielo.

En el interior de la planta baja, los espacios principales: sala, comedor, cocina y escaleras, quedan abiertos y a la vez claramente delimitados. Las visiones cruzadas en toda la planta nos dan la sensación de un entorno exterior verde contínuo.

El porche exterior da continuidad al interior con el mismo tratamiento de materiales, pavimentos de hormigón visto y paredes-pilares de ladrillo negro.

En la planta superior, ocupada parcialmente, se ubican los dormitorios y una pequeña sala de tv. Estos dormitorios actúan tanto con los espacios exteriores como con los interiores, creando unas fachadas internas, enfatizando así, la relación vertical de los espacios.

La piscina pegada al porche pone límite entre lo construido y el jardín.

Oaks, holm oaks, olive trees, cypresses and native plants are planted around a non-aligned sequence of doubleheight pillars, built inside and outside with exposed black ceramic brick.

Exposed concrete platforms are suspeded among these pillars, leaving part of the interior spaces double height, and leaving vertical openings between the pillars that bring us closer to the various exterior trees, while at the same time taking our eyes from the land of the garden to the sky.

On the ground floor, the main spaces: living room, dining room, kitchen and stairs, are open and at the same time clearly delimited. The cross-views throughout the floor give us the feeling of a continuous green exterior environment.

The exterior porch gives continuity to the interior by the same treatment of materials, exposed concrete flooring and black brick pillar-walls.

On the upper floor, partially occupied, are the bedrooms and a small TV room. These bedrooms act with both exterior and interior spaces, creating internal facades, thus emphasizing the vertical relationship of the spaces.

The swimming pool, adjacent to the porch, sets a limit between what is built and the garden.

VIVIENDA UNIFAMILIAR

Ladrillo cara vista

A partir de un proyecto de paisajismo y jardinería, la construcción se formaliza a través de unas paredes-pilar de ladrillo negro y unas plataformas de hormigón que se colocan estratégicamente para formar unos espacios a doble altura que amplifican las relaciones exteriorinterior.

12
CA 86 01
15

Casa Dosmurs

Casa Dosmurs

Alella, Barcelona

Arquitectos MESURA

Detalles generales

Superficie: 180 m2

Plazo de ejecución: Finalizado en 2022 - 9 meses de ejecución (4 días de montaje de toda la estructura)

Promotor: Privado

Colaboradores:

Constructora y cálculo de estructura: Viraje

Arquitecto Técnico: Joan Capdevila

Mobiliario: Indoors, Passeu Passeu, Hostelgrup, Cubro, Max Enrich, Curated By, PESO, Brats, Robert Aregall, Nanimarquina, Santa & Cole, Font Barcelona, Iconico

Vídeo

Oriol Colomar, Enya Rodríguez, Elena Pauné, Berta Terrassa

Materiales

Ladrillo: Cerámica Farreen S.A. Ladrillo aligerado de arcilla cocida, no visto, categoría I, tipo LD, Dimensiones 275x130x90 mm, para muros resistentes, con exigencias acústicas, térmicas y frente al fuego.

GERO 10R LD

Rasilla: Cerámicas Calaf. Rasilla 1A 13 mm. 14x28x1,3 cm

Sanitarios: Roca, Iconico

Iluminación: Santa & Cole, Flos & Max Enrich

Aislamiento térmico: XPS

Cubierta: Placa alveolar de 25 cm + cubierta invertida con acabado de rasilla

Fotografía

Maxime Delvaux & Benjamín Iborra (MESURA)

VIVIENDA UNIFAMILIAR

Ladrillo cara vista

Haciendo de la necesidad virtud, esta vivienda explora las ventajas del sitio: una pendiente elevada ordena tanto la distribución a partir de las vistas como la construcción, definida por las dificultades del movimiento durante la obra.

ARQUITECTURA DE AISLAMIENTO

Una casa puede entenderse como un intermediario entre el exterior y el interior. Una cáscara que encierra el espacio habitable y capaz de regular el modo en que las personas interactúan con el exterior. Cuando se diseña con un enfoque adaptado al sitio, la arquitectura se abre o se cierra a su entorno para conseguir la experiencia deseada.

Para responder a la búsqueda de un espacio familiar sereno, Casa Dosmurs se concibe como un mecanismo de aislamiento capaz de ignorar su entorno perimetral inmediato, al tiempo que se abre a vistas al mar y a un patio verde contemplativo conectado transversalmente en un único espacio abierto: una manera radical de entender la vivienda como un espacio de conexión constante entre los espacios que la habitan.

EL MAR Y LA MONTAÑA: UNA RELACIÓN INTRÍNSECA

El proyecto se sitúa en una zona residencial a las afueras de Alella, una de las poblaciones costeras de El Maresme. El barrio se extiende a lo largo de la montaña en una mezcla ecléctica de estilos arquitectónicos, provocando una sensación de desorden y desarmonía.

Debido a su fuerte pendiente y a la proximidad entre casas, la única vista abierta desde el solar es hacia el mar. En la parte baja del terreno, los árboles autóctonos han crecido espontáneamente y enmarcan el paisaje, que se despliega en una continuación de colinas sinuosas.

LA TOPOGRAFÍA COMO ALIADA: SACAR EL MÁXIMO PARTIDO A UNA PARCELA DIFÍCIL

Lograr una conexión directa entre la arquitectura y su entorno es una constante en nuestra práctica. En este caso, al tratarse de una vivienda unifamiliar rodeada de vecinos, seguimos una premisa diferente: la casa se aparta de la calle y de las construcciones adyacentes ocultándose entre dos muros que siguen la abrupta pendiente del solar. De esta forma, la casa desaparece desde la visual de la calle.

El programa se divide en dos niveles escalonados colina abajo, evitando que el edificio destaque sobre el nivel de la calle. Dos entradas se conectan mediante una escalera a lo largo del muro oeste, mientras que en el frente opuesto las aberturas limitadas controlan las visuales hacia las casas vecinas. En una actitud radicalmente opuesta, las otras dos fachadas se abren por completo al exterior.

UN DIÁLOGO ENTRE PRIVACIDAD Y ESPACIOS DIÁFANOS

Un amplio ventanal a doble altura en la fachada orientada al sur enmarca vistas desde la zona de estar y la

ARCHITECTURE OF ISOLATION

A house can be understood as an intermediary between the exterior and interior. A shell enclosing a living space with the ability to regulate how its inhabitants interact with the outside world. When designed with a site-specific approach, architecture purposely opens and closes to its environment to allow the desired living experience.

To answer the search for a serene family retreat, Casa Dosmurs is conceived as an isolating mechanism capable of ignoring its immediate perimetral surroundings while opening to sea views and a contemplative green patio connected transversely in a single open space: a radical way of understanding the house as a space for constant connection between the people inhabiting it.

THE SEA AND THE MOUNTAIN: AN INTRINSIC RELATIONSHIP

The project is located in a residential area on the outskirts of Alella, one of the coastal towns in El Maresme, Spain. The neighbourhood spans along the mountain’s hillside with an eclectic mix of architectural styles, which causes a sense of discord and disharmony around the site.

Because of the steep slope and the closeness between houses, the only open view from the site is towards the sea. On the lower ground of the plot, native trees have grown spontaneously and frame the mountainous countryside, which unfolds in a continuation of rolling hills.

TOPOGRAPHY AS AN ALLY: MAKING THE MOST OF A DIFFICULT PLOT

Achieving a direct connection between architecture and its surroundings is a constant throughout our practice. In this case, being a single-family house surrounded by neighbours, we follow a different premise: the house is set apart from the street and adjacent constructions by hiding between two bare walls that follow the site’s abrupt slope. Thus, the house disappears entirely from the street’s view.

The programme is divided into two staggered levels down the hill, preventing the building from standing out over the street. Two entrances are connected through a staircase along the west wall, while on the opposite front, limited openings control visuals of neighbouring houses. In a radically different attitude, the two other facades open entirely to the outdoors.

18
CA 86 02 "# $! %!&

Dentro de la casa, las paredes de ladrillo visto provienen de una cantera local y maximizan la inercia del espacio a través de una cámara de aislamiento térmico. El sencillo aparejo del ladrillo es una muestra más de cómo reinterpretar los materiales que se utilizan en la obra, utilizando un aparejo “a sogas” que entiende los cortes verticales de los huecos arquitectónicos generando excepciones en el sistema con el giro de las mismas piezas. El mortero rehundido, de color terracota, huye de un ambiente industrial, y en combinación con carpinterías de madera y luces no encastadas crean un ambiente cálido. El salón es el corazón de la casa y conecta ambos niveles gracias a su doble altura.

Casa Dosmurs explora el encanto de combinar espacios habitables generosos con una materialidad austera y una resolución constructiva eficiente para crear una casa en la que las distintas actividades de la vida cotidiana puedan desarrollarse con intimidad, manteniendo al mismo tiempo una relación abierta con el paisaje.

on-site in only three days of work. This structure allows for the ten-meter-wide uninterrupted floorplan and minimizes the waste of materials. Structure and facade are conceived as a single element; walls are left untouched for the exterior.

Inside the house, walls are clad in brick from a local quarry to maximize thermal insulation through a thermal insulation chamber. The simple rigging of the brick shows another way of reinterpreting the materials used on the construction site, using a “rope” rigging that understands the vertical cuts of the architectural holes, generating exceptions in the system with the rotation of the same pieces. The sunk terracotta mortar flees from an industrial environment and combines wooden carpentry and non-recessed lights to create a warm atmosphere. The living room is the heart of the house and connects both levels thanks to its double height.

Casa Dosmurs explores the charm of combining generous living spaces with austere materiality and an efficient constructive resolution to create a house where different everyday life activities can happen with intimacy while maintaining an open relationship with the landscape.

22 Alella, Barcelona 0 2,5 5 10 m

Casas patio en Ullerntoppen

Courtyard houses in Ullerntoppen

Ullerntoppen, Oslo, Noruega

Arquitectos

R21 Arkitekter

Área

6 x 220 m²

Completado 2022

Constructor

Entreprenør 1

Ingeniería

Stabil AS

Elementos de fachada

EHI Group

Fotografía

Mariela Apollonio

El encargo plantea el proyecto y la construcción de 6 viviendas pareadas de dos plantas, sobre un estacionamiento subterráneo común, ubicadas en una zona dominada por viviendas unifamiliares.

Cada unidad está compuesta por una fachada abierta y otra cerrada. La implantación en forma de L junto con la repetición de las mismas genera las zonas exteriores. Estas aparecen entre la fachada abierta y la fachada cerrada del edificio vecino, logrando así una sensación de privacidad.

Respetando un severo código de alturas máximas, los volúmenes se posicionan cuidadosamente teniendo en cuenta la topografía de la parcela y priorizando las vistas y las condiciones de luz. Las viviendas se organizan en dos filas simétricas en torno a un camino de acceso común, el cual articula los diferentes niveles contribuyendo así a crear zonas protegidas para áreas de entrada y lugares de reunión informales. Un sutil desplazamiento transversal de las unidades mejora la relación entre ellas.

Los muros entre unidades, así como los que delimitan a los espacios comunes, son de ladrillo. El material sustenta el peso de la base y da a las viviendas un anclaje natural en contacto con el terreno. La parte superior y los espacios conectados a los jardines privados se materializa con madera y vidrio; donde el edificio se abre a las vistas y deja pasar la luz. Un sistema de pérgolas se extiende desde el acceso conectando visualmente las unidades dando sentido al conjunto.

The project involved the design and construction of six two-storey terraced houses built over a communal car park in an area dominated by single-family homes.

Each unit features both an open and closed façade. The L-shaped layout and the repetition of the L create the outdoor spaces. These appear between the open and closed façade of the neighbouring building, thus creating a feeling of privacy.

In compliance with strict maximum height requirements, the volumes were carefully positioned according to the topography of the plot and to maximise views and natural light. The homes are organised in two parallel rows around a communal driveway, which connects the different levels, thereby creating sheltered spaces for entrance areas and informal meeting places. A subtle transverse displacement of the units enhances the relationship between them.

The walls between the units and delimiting the communal areas are of brick. This material supports the weight of the base and gives the homes a natural anchorage in contact with the ground. Wood and glass were used in the upper part and in the spaces connected to the private gardens, where the building opens up to the views and allows light to enter. A system of pergolas that begins at the entrance visually connects the units and gives meaning to the whole.

VIVIENDA UNIFAMILIAR ADOSADA

Ladrillo cara vista

Las viviendas se escalonan sensiblemente con la pendiente del terreno y se conectan en planta mediante las pérgolas que se convierten en zonas de entrada y lugares de estancia en el exterior.

24
CA 86 03
27

Edificio Delicias: rehabilitación de edificio de viviendas y local

Delicias Building: renovation of a residential building and commercial premises

Cartagena

Arquitectos

Martin Lejarraga

Oficina de Arquitectura

Arquitecto

Martín Lejarraga

Arquitectos colaboradores

José Botí, Blanca Gutiérrez, José Maria Mateo, Óscar Romero

Noemie Martínez, Tatiana Ioannidou

Arquitectura técnica

María Esperanza Soto Meroño

Promotor

Marunisu Inmobiliaria S.L.

Ubicación

Plaza del Rey, Cartagena

Superficie

590,7 m2

Fecha

2022

Fachadas

Pieza Cerámica, con acabado vitrificado color blanco de Cerámica

Cumella

Fotografía

David Frutos

El proyecto rehabilita el edificio existente a través de la conservación y recuperación de sus cualidades históricas y arquitectónicas latentes. La intervención subraya el valor de sus características únicas, y revitaliza tanto el edificio en sí mismo como el área urbana circundante. En consecuencia, el proyecto recupera la edificación original rehabilitando el conjunto tras la limpieza del interior y la sustitución de la estructura y distribución interna del inmueble, dada la obsolescencia estructural y constructiva que presenta y la inexistencia de elementos de interés en su interior. Por todo ello, la solución arquitectónica del conjunto se concibe como una intervención íntegra y continúa resuelta en dos estratos diferenciados y complementarios:

• El primer estrato corresponde al exterior de las plantas baja, 1 y 2. Debido a la necesaria recuperación de la fachada original, el proyecto conserva y restaura los elementos protegidos, garantizando tanto su adecuación al uso interior de local comercial y vivienda, como la conservación y expresión de su reconocido valor histórico, y la continuidad del tejido urbano en el que está imbricado.

• El segundo estrato corresponde a las plantas 3 (ático) y 4 (sobreático) en el que se plantea la definición volumétrica y el tratamiento de nuevos planos de fachada y terrazas transitables, donde no hay elementos protegidos por la normativa, pero sí condiciones específicas de retranqueo, edificabilidad y soleamiento que concretan la solución propuesta.

La nueva distribución de las plantas, tanto del local en planta baja, como de las viviendas proyectadas en las plantas de piso, optimiza la geometría de la parcela y las posibilidades volumétricas y arquitectónicas del conjunto.

The project entailed the renovation of an existing building and the conservation and restoration of its latent historical and architectural qualities. The intervention underscores the value of its unique elements, and revitalises both the building itself and the surrounding urban area. As a result, the project restores the original building, which involved a complete restoration after cleaning the interior and replacing the structure and internal layout. Accordingly, the architectural solution encompassed a complete and ongoing renovation undertaken in two differentiated yet complementary ‘layers’:

• The first layer involved the exterior of the ground and first and second floors. Due to the need to restore the original frontage, the protected façade elements were conserved and restored.

• The second layer entailed the third (top) and fourth (penthouse) floors, where the volumetric definition and treatment of new façade planes and walkable terraces are proposed; here, there were no listed elements but there were specific requirements with regard to setback, development and sunlight.

The new layout of both the commercial premises on the ground floor and the residential floors optimises the geometry of the plot and its volumetric and architectural possibilities.

The façade of the second layer, which houses the topfloor residential units, opens to make use of the terrace, and the terrace finishes give the project a distinctive appearance, establishing an appropriate dialogue between the historical legacy and current reality.

The penthouses were designed to be consistent with the rest of the building by drawing on the existing architecture, and adopt the floor heights, the proportion of the façade openings, the ratio of solids and voids, the pregnancy of the axes and the use of materials.

VIVIENDA COLECTIVA

Termoarcilla

El volumen de las viviendas de ático se define con un cerramiento de Termoarcilla revestido con una pieza cerámica estableciendo un diálogo oportuno entre el legado histórico y la realidad actual.

La fachada del segundo estrato que alberga las viviendas de ático se abre para hacer uso del suelo de terraza, y sus acabados otorgan una apariencia diferencial a la intervención, estableciendo de esta manera el diálogo oportuno entre el legado histórico y la realidad actual. Esa relación/oposición se mantiene discreta ya que los retranqueos sucesivos garantizan desde todos los frentes la visual despejada de la fachada original catalogada.

Los áticos se definen en la propuesta como un elemento coherente con el resto de la edificación, y para ello aprende de lo existente y adopta las alturas de planta, la proporción de los huecos de fachada, la relación de llenos y vacíos, la pregnancia de los ejes y la utilización de los materiales.

30
CA 86 04
34 Cartagena

105 viviendas en El Cañaveral

105 homes in El Cañaveral Madrid

Arquitectos ALBERICH-RODRÍGUEZ

ARQUITECTOS

Emilio Rodríguez Jiménez

Raimundo Alberich Cid

Carlos Alberich Lanzos

Arquitectos técnicos

Sebastián Collado Bueno

Promotora

Neinor Homes

Empresa constructora

ACR Grupo

Plazo ejecución obra

18 meses

Superficie construida

15.324,30 m2

Materiales

Ladrillo cara vista: La Paloma

Cerámicas

Carpintería exterior aluminio: Grupo

Ayuso

Albañilería gran formato: Cerámica

Pastrana

Alicatados y pavimentos: Newker

Carpintería interior de madera:

Puertas Guillén

Fotografía

Carlos Alberich Lanzos

Se propone un edificio cuya CONTUNDENCIA FORMAL Y CONSTRUCTIVA resuelva el problema con un solo gesto, desde la racionalidad y la economía de su organización espacial, en aras de valorar el edificio, no desde singularidades específicas, sino desde la capacidad del objeto de resolver todas ellas en UN SOLO MECANISMO.

El proyecto residencial que se acomete responde a la tipología impuesta, en bloque abierto, de uso residencial plurifamiliar, sobre una parcela de 4752 m2, a la que corresponde una edificabilidad máxima de 9385 m2.

El urbanismo actual es rehén de las expresiones que tienden a simplificar las posibilidades de agregación y, por tanto, de habitar en comunidad. La parcela en cuestión está constreñida por la masa edificada que la circundará. Se trata, en definitiva, de una parcela cerrada, cuasi desconectada de la ciudad (si no fuera por su frente de 48 m, reducido además por la rampa de garaje y el Centro de Transformación), y con una explícita e inclemente norma impuesta que unido al programa de necesidades del Promotor hace que abordemos la propuesta desde las condiciones funcionales de la vivienda, ósea los tipos. Pretendemos ser capaces de tratar la parcela como el primer estrato del espacio urbano ligado a “la ciudad” a la que obliga el Plan Parcial. Uno de los retos de la propuesta será cualificar sus espacios comunes provenientes de la sustracción de viviendas en planta baja, junto a sus vacíos en continuidad: áreas estanciales y ajardinadas, de recreo, etc., que oxigenen la exigua superficie disponible en pos de favorecer un mínimo de encuentro comunal.

En la materialización a la propuesta subyace la idea de Rigor y Eficacia, apuntalada sobre una geometría sencilla (de métrica simple), con la que se pretende alcanzar un alto grado de racionalidad constructiva y aprovechamiento de recursos.

Viviendas:

VIVIENDA COLECTIVA

Ladrillo cara vista

Una de las virtudes del ladrillo es la extremada sencillez de las reglas que regulan su inclusión en estructuras más complejas: proporción 2/1, piezas de 1/4 de metro, espesores estandarizados en cerramientos adecuados para durar... En este proyecto se exploran estas reglas para racionalizar la construcción: la primera industrialización.

De acuerdo con las sugerencias del Promotor se han proyectado 12 viviendas de 1 dormitorio, 60 viviendas de 2 dormitorios, y 32 viviendas de 3 dormitorios, para abarcar así la demanda más amplia del mercado.

Viviendas de un dormitorio: todas ellas situadas en planta baja. Su distribución corresponde a tipología convencional de apartamento, compuesta por vestíbulo-distribuidor desde el que se accede a cocina, dormitorio, baño y estancia-comedor. La cocina está unida al comedor, diferenciándose este espacio por la altura libre, alicatado, pavimento y amueblamiento. El dormitorio y la estancia, abren en todo su frente a una terraza de generosas dimensiones.

Viviendas de tres dormitorios en planta baja: compuestas por vestíbulo desde el que se accede a estancia-co-

A building whose FORMAL AND CONSTRUCTIVE IMPACT overcomes a challenge with a single gesture, by the rationality and economy of its spatial organisation, to enhance the building, not by means of specific distinguishing features, but through the object’s ability to overcome all of the challenges using JUST ONE MECHANISM.

This residential project is the result of an imposed layout, an open block for multifamily housing use on a site of 4,752 m2, with a maximum buildable area of 9,385 m2.

Modern day planning tends to simplify aggregation possibilities and is therefore not conducive to living in a community. The plot is restricted by the mass of buildings that surrounds it. In short, it is a closed plot, virtually disconnected from the city (if it were not for its 48-metre frontage, which is nevertheless reduced by the garage ramp and the electrical substation). It was, moreover, subject to specific and strict planning regulations, which, together with the developer’s programme requirements, meant that we had to approach the proposal from the homes’ functional conditions, i.e. the layouts. We treated the plot as if it were the first layer of urban space linked to ‘the city,’ a requirement laid down by the partial development plan. One of the challenges of the proposal will be to define the communal spaces on the ground floor, together with the continuous voids: rest, recreational and green areas, etc., to oxygenate the scant surface area available to create spaces that promote at least some social interaction between the residents.

Underlying the implementation of the proposal is the idea of Rigour and Effectiveness, underpinned by a simple geometry that seeks to attain a high level of constructive rationality and utilisation of resources.

36
CA 86 05

medor, pasillo distribuidor, y cocina abierta a tendedero protegido de vistas. Dos dormitorios y cuarto de baño. Y dormitorio principal con baño incorporado. Todo el perímetro exterior se abre a una terraza en forma de “L”, desde la que se puede acceder a todos los espacios comunes situados en planta baja.

Viviendas de tres dormitorios en plantas tipo, 1ª a 5ª: de idéntico programa y distribución a la descrita en el punto anterior, excepto que no tienen terraza.

Viviendas de dos dormitorios en plantas tipo, 1ª a 5ª: compuestas por vestíbulo, desde que se accede a estancia-comedor y cocina abierta a tendedero protegido de vistas. Desde la estancia se accede a un pasillo distribuidor que conduce a un dormitorio, un cuarto de baño, y al dormitorio principal con cuarto de baño incorporado. En ese tipo de vivienda, debido a sus reducidas dimensiones, la estancia-comedor es “de paso”, pero dado que el programa es solo de dos dormitorios, esa circunstancia funcional tiene escasa importancia.

Viviendas de tres dormitorios en planta 6ª, situadas en los extremos del bloque: de idéntico programa y distribución a la descrita para las situadas de planta 1ª a 5ª. En la planta de cubierta se han proyectado terrazas comunicadas con la vivienda con una escalera interior.

Viviendas de tres dormitorios en planta 6ª, situadas en el centro del bloque: el programa consiste en vestíbulo desde que se accede a la cocina y a la estancia-comedor. Desde la estancia se accede a un pasillo, iluminado y ventilado mediante un ventanal abierto a un patio interior, que conduce a dos dormitorios y un cuarto de baño, y al dormitorio principal con cuarto de baño incorporado. En ese tipo de vivienda todas las dependencias abren a una gran terraza.

Las viviendas ubicadas en los extremos del bloque tienen dos orientaciones, y las centrales ventilación cruzada de fachada exterior a huecos abiertos a los patios interiores, creándose corrientes de aire debido a que los patios están abiertos en planta baja. Únicamente las viviendas de un dormitorio tienen una sola orientación.

Urbanización interior:

El diseño de la urbanización es resultado de:

• Necesidad de ocupar el 100 % de la superficie de la parcela, con el fin de ubicar los usos de garaje, trasteros y cuartos de instalaciones en un solo sótano.

• Conveniencia de dotar a las viviendas de planta baja de espaciosas terrazas que compensen la servidumbre que comporta su ubicación.

• Diseño de superficies necesarias para acceso y estacionamiento de vehículos de bomberos, centro de transformación y acceso rodado al garaje.

• Ocupación en planta del edificio obligada por la NN.UU. del Plan Parcial.

Como consecuencia de lo relacionado en puntos anteriores, el proyecto intenta paliar en lo posible la ridícula proporción entre número de viviendas y espacio resultante.

• Espacios cubiertos: en planta baja se proponen dos espacios porticados, bajo la planta primera, abiertos en fachada y a la proyección de los patios de la parcela, pretendiendo que se formen así corrientes de aire, que por “efecto chimenea” proporcionen cierto nivel de ventilación a las dependencias que, en plantas superiores, abran a los patios.

• Espacios descubiertos: en el espacio libre del testero de la parcela se ubica la zona de baño consistente en una piscina para adultos, un vaso de chapoteo para niños y la pradera-solárium.

Descripción de la edificación bajo rasante:

Ocupa la totalidad de la parcela (4.752 m2) en un solo nivel, de sótano, y se destina a los usos de garaje, trasteros y cuartos de instalaciones.

• Garaje: el acceso rodado se hace mediante una rampa desde la C/ Ferenc Puskas, con anchura suficiente para circulación en dos sentidos. El acceso peatonal y de evacuación se produce mediante cuatro escaleras que desembarcan en la planta baja, y cuatro ascensores. El número de plazas es de 141 uds. Los viales de circulación tienen ancho suficiente para que se pueda producir en los dos sentidos, situándose todas las plazas a 90° del vial. La ventilación es natural y mecánica.

• Trasteros: para almacenamiento de enseres se han propuesto 105 trasteros vinculados a cada una de las viviendas, agrupados en la franja central del sótano, agrupados en torno a los núcleos de comunicación (escalera y ascensor), de modo que para el acceso no sea necesario transitar por el ámbito del garaje. La ventilación es mecánica.

La evacuación en sentido ascendente se produce desde las escaleras, situadas a distancia inferior a 25 m desde el punto más alejado.

38 Madrid

Viviendas de alquiler L’Hospitalet

Build to rent dwellings

L’Hospitalet de Llobregat, Barcelona

Arquitectos

b720 Fermín Vázquez Arquitectos

Superficie

4.477 m2

Cliente

Novainexa S.L.

Equipo

Fermín Vázquez, Peco Mulet, Pablo Garrido, Elisabet Usón, Luis Bellera, Carlos Maristany, Eduardo Palao

Estructura

BIS Structures

Instalaciones JG

Director de obra

b720: Fermín Vázquez, Peco Mulet, Pablo Garrido y Elisabet Usón

Project manager

Moro Ojeda y Asociados: Ignacio Moro (responsable) y Fernando Guerrero

Director de ejecución

Dalmau Morros SLP: Dídac Dalmau (responsable) y Antonio López

Consultor estructuras

Bis Structures: David Garcia, Esther Muñoz (responsables), Maralba Sanoja y Miguel Mira

Consultor instalaciones

JG: Vicens García (responsable), Xavier Llasera y Javier Nuñez

Coordinación de seguridad y salud

Dalmau Morros SLP: Dídac Dalmau

OCT

SGS: Sonia Borge

Dirección ambiental

Tubkal Ingenieria SL: Maite García (responsable) y Eva Martín

Director edificación construcción II

Luis Parés Constructora:

Toni Casamada, Àlex Sabaté (responsables) y Daniel Serrano

Materiales

Armado obra de fábrica: Murfor®

Compact E-35 Anclajes Sdv 250”

Prefabricado Hormigón: Ulma Pieza

Estandard 0,40 cm Ral 9001

Toldos: Cortinsa

Toldo Pivotante: Porticones Tamiluz

Pavimento Ext: Malpesa Adoquín

Cerámico Klinker Blanco

Ceramicas Calaf: Rasilla Cerámica Ibiza

Fábrica Vista: Malpesa, Klinker color

Blanco Andalucia y esmaltado Verde

Agua

Fotografía

Adrià Goula

Se trata de un edificio build to rent de 37 viviendas, situado en L’Hospitalet de Llobregat, en una zona periférica con un tejido urbano en constante transformación de zona industrial a residencial y de limitados recursos económicos. La propuesta se rige por la búsqueda en una solución que permita aprovechar las condiciones del emplazamiento en relación al asoleo y confort de sus ocupantes, al tiempo que racional y económica, de fácil mantenimiento y flexible a adaptaciones futuras.

El edificio consta de una planta sótano, planta baja y cinco plantas piso en la parte de mayor altura, escalonándose en su coronación para crear terrazas con adecuadas orientaciones en los áticos, en una estrategia de aprovechar las cubiertas como parte privilegiada de las viviendas. El proyecto plantea un edificio residencial de voluntad funcional, eficiente, con tipologías claras, flexibles y ordenadas que buscan unas condiciones de habitabilidad de mayor calidad que la habitual. Así, todos los apartamentos disfrutan de excelentes condiciones de iluminación natural, ventilación y relación con el entorno. Las zonas de día se benefician de la orientación suroeste potenciada con generosas terrazas como proyección de las salas de estar, con vistas hacia el pequeño parque público del patio interior. La organización de las viviendas permite optimizar la edificabilidad y maximizar el número de viviendas pasantes con ventilación cruzada. La estrategia de centralización de las instalaciones y su producción energética mejora las tareas de mantenimiento y optimiza su eficiencia.

La fachada está compuesta por una solución constructiva durable, eficiente y de bajo mantenimiento, al tiempo que utiliza un material reconocible en las edificaciones industriales colindantes. La obra de fábrica es el elemento principal, con el que se crean relieves, texturas, aparejos y celosías, introduciendo el color como una sencilla estrategia de amabilizar el conjunto.

“Build to rent” building of 37 dwellings, situated within an urban fabric in constant transformation from an industrial area to a residential one, with limited economic resources. The proposal searches for a solution that takes advantage of the site conditions in relation to sunlight and comfort of its occupants, while being rational and economical, easy to maintain and flexible to future adaptations.

The building consists of a basement, ground floor and five upper floors, staggered at the top to create terraces with appropriate orientations in the attics, in order to take advantage of the upper terraces as a privileged part of the residences. The apartments are mostly transversal, allowing ventilation between opposite facades. The daytime areas benefit from the southwest orientation enhanced by generous terraces as a projection of the living rooms, which are oriented towards the small public park of the inner courtyard. The strategy of centralizing the facilities improves maintenance tasks and optimizes their efficiency.

The façade follows a durable, efficient and lowmaintenance construction solution, while using a material recognizable in the surrounding industrial buildings. The masonry is the main element, with which reliefs, textures, rigging and lattices are created, introducing color as a simple strategy to make the whole building more friendly. The facade facing the street, with less sunlight and where most of the rooms are bedrooms, has a rhythm of repetitive openings protected by exterior shutters, allowing to control privacy and interior shading, while the southwest facade is permeable, with large balconies for the rooms and retractable sun protection awnings that are regulated both separately and centrally.

The main formal attribute of the building is brick, which might seem a humble material. Here it is used extensively and applied in different ways, evoking values of the traditional building tradition and, in a way, vindicating the professional skill and dignity of the construction workers.

VIVIENDA COLECTIVA

Ladrillo cara vista

Bajo la premisa de una construcción durable, eficiente energéticamente y de bajo mantenimiento, este edificio de viviendas de alquiler se convierte en un elegante palacio, gracias al proyecto de arquitectura.

42
CA 86 06

Celosía habitada: 54 viviendas sociales en el barrio de Bon Pastor

54 Social dwellings in the Bon Pastor neighbourhood

Barcelona

Arquitectos PERIS+TORAL ARQUITECTES

Marta Peris

José Manuel Toral

L3J TÈCNICS ASSOCIATS Jaime

Pastor Año

2015- 2022

Superficie

8.085 m2

Presupuesto

760 €/m2 PEM

Promotor

IMHAB. Instituto Municipal de la Vivienda de Barcelona

Equipo P+T

Ana Espinosa

Guillem Pascual

Maria Megias

Izaskun González

Cristina Porta

Miguel Bernat

Consultores

Ingenieria y Estructuras: 3J Tècnics

Associats

Dirección de ejecución: Joan March

i Raurell

Fotografía

José Hevia

El Plan de Remodelación de Bon Pastor prevé el derribo de las 784 Casas Baratas del polígono construido en 1929 y su sustitución por bloques aislados para el realojamiento de todos los vecinos. La estructura urbanística de viviendas en planta baja y la proximidad de los vecinos favorecieron una forma de vida comunitaria que otorgaba al barrio la atmósfera de un pueblo dentro de la ciudad, con mucha vida en la calle.

El cambio de tipología de edificación, pactado con los vecinos, ofrece unas ventajas de la vivienda en altura, como las vistas privilegiadas al río Besòs, en detrimento de la vida comunitaria a ras de suelo donde las viviendas en planta baja se abren y se apropian de la calle. Con el fin de recuperar y preservar parte de este modo de vida exterior se incorporan una serie de espacios intermedios entre el espacio público y las viviendas. En planta baja, se accede a través de unos patios comunitarios que anteceden a los vestíbulos.

El aparcamiento discurre en una sola planta y consta de ventilación e iluminación natural ofreciendo un espacio adaptable en el tiempo a otros usos.

The Remodelling Plan for the neighbourhood of Bon Pastor anticipates the demolition of the 784 Casas Baratas (cheap houses) on the estate that was built in 1929, and their replacement by freestanding blocks to rehouse all of their occupants. The planning structure of single-storey houses and the closeness of the neighbours produced a form of community life that gave the district the atmosphere of a village within the city, with lots of life in the street.

The change in building typology, which was agreed on with the occupants, offers some advantages of high-rise living, such as prime views of the river Besòs, to the detriment of community life at ground level, where the single-storey dwellings open up and emerge into the street. In order to recover and preserve part of this outdoor way of life, a series of intermediate areas are incorporated between the public space and the dwellings.

At ground floor level, entrance is via communal courtyards that lead into the foyers. The lattice facing of the stairway externalizes the building’s vertical communications. On the first floor, generous terraces like outdoor rooms overlook the new park that borders the riverfront. The car park is laid out on a single level with natural ventilation and lighting, offering a space that can, in time, adapt to other uses.

VIVIENDA COLECTIVA

Ladrillo cara vista

El uso de la obra vista, como materialidad determinada por el planeamiento, supone una oportunidad para introducir celosías que permiten dar una textura porosa a la fachada del edificio.

La vivienda pasante dispone el baño exento articulando la sala en dos espacios alrededor del núcleo y dobles circulaciones que permiten que la casa parezca más grande. Esta organización favorece la ventilación cruzada y la permeabilidad de la planta, tanto al aire como a la mirada, de manera que largas visuales atraviesan la casa de fachada a fachada. Los bucles de circulaciones no solo se activan alrededor del baño sino también a través de las habitaciones mediante una terraza pasante que alarga el paseo por la casa, minimizando los espacios estancos y resiguiendo el contorno de la casa sin interrupción. En planta baja, las terrazas orientadas al parque se intercalan con los patios de ventilación del aparcamiento, generando un grosor a modo de filtro de intimidad entre el espacio público y la casa. El cerramiento de los patios orientados a la calle se desdobla para crear otra entrada de aire que permite la ventilación cruzada en el aparcamiento.

The cross-ventilated dwelling has a free-standing bathroom, arranging the lounge in two spaces around this nucleus with two-way circulations that make the apartment seem bigger. This layout favours cross ventilation and opens up the floor plan to both air and views, with long lines of sight between the two façades. These loops of circulation are created not just around the bathroom, but also through the bedrooms by means of a terrace that continues its route through the apartment, minimizing self-contained spaces and following the outline of the apartment without interruption. The cantilevered metal balcony system incorporates rolling shutters and provides a support for vegetation.

A park runs between the building and the river, filtering the sea air that circulates along the Besòs river corridor. The use of exposed brickwork, a material determined by planning, is an opportunity to introduce lattices that give the building’s façade a porous texture. At ground floor level, the terraces overlooking the park are interspersed with the car park’s ventilation shafts, generating a thickness that forms a filter of privacy between public space and home. The facing of the courtyards on the street side doubles up to create another air inlet that allows cross ventilation in the car park.

49
55

Edificio Cubic

Cubic Building Lleida

Arquitectos

M2A Arquitectura

(Quim Arenas y Joaquin Mora)

Colaboradores

Rafael Contreras, Marc Brotons (arquitectos)

Consultores

Dirección de ejecucion: Abel SerraMetric arquitectes tècnics SL

Ingeniería

Estructura: Francisco Cabezas

Instalaciones: Gabriel Garriga

Cliente

Cimexco SA

Contratista

Acsa Obras e infraestructuras SAU

Año finalización construcción

Mayo 2022

Superfície Construida

3875,17 m2 + garaje 1483,15 m2

Ubicación

Paseo 11 de septiembre 46, 48, Lleida

Materiales

Pavimentos: Keraben y Living

Ceramics

Sanitarios: Duravit

Aislamiento: Ursa y Webber ( Sate fachada)

Carpintería exterior: Exlabesa

Carpintería interior: Minguela

Cubierta: Danosa

Iluminación: Celer

Ladrillo cara vista: Palautec (negro y grafito) y Piera (rojo y Flexbrick)

Fotografía

Edgar Marín

VIVIENDA COLECTIVA

Ladrillo cara vista

En coherencia con la decisión de huir de la composición plana en fachada, se utilizan varios colores de ladrillos, dos oscuros casi negros y uno rojo, disponiéndose tanto en cerramientos como en las celosías de fachada, realizadas en Flexbrick.

La promoción de viviendas Cubic se sitúa en una zona residencial consolidada, con unos 30 años de antigüedad, denominada Zona Alta, ubicada en el Paseo 11 de Septiembre encontrándose a escasamente 500 m del centro neurálgico de la Ciudad de Lleida. Se trata de un espacio residencial tranquilo y amable, dotado de equipamientos y servicios y rodeado de amplias zonas verdes y edificios de misma tipología con alturas similares.

La organización de la edificación se realiza en planta sótano, ocupando la totalidad del solar, destinada a aparcamientos y trasteros, y 3 plantas piso destinadas a un total de 26 viviendas distribuidas en 2 escaleras, todas ellas nutridas de grandes terrazas exteriores y una zona comunitaria con solárium y piscina dispuesta en la zona central de la fachada principal en cubierta.

La propuesta de diseño del edificio aislado a 4 caras ha sido en todo momento la de huir geométricamente de una forma de “caja rectangular” con fachadas planas. Por lo tanto, se proyectan unos cubos blancos en fachada, opacos y perforados de distintas dimensiones dispuestos en todas las orientaciones, que acarician el volumen principal sobresaliendo del plano de fachada a lo largo de todo su perímetro.

En segundo plano, éstos están combinados con otros volúmenes de mayor dimensión, realizados con ladrillo clinker de tres tonalidades, del mismo aparejo pero texturas distintas, utilizando gama de colores gris y rojiza, integrando el edificio a su entorno más próximo , mimetizándolo y dotándolo de un gran carácter residencial con la finalidad de buscar un conjunto sobrio y elegante.

Se introduce un elemento puntual de celosía cerámica “flexbrick” en el plano exterior de estos cubos blancos, atravesándolos en ocasiones, con la finalidad de tamizar la luz en el interior de las terrazas, aumentando así su privacidad. Estos elementos repetidos generan un continuo juego de luz y sombras, dando vida al edificio dotándolo de un continuo movimiento.

The ‘Cubic’ housing development is located in a consolidated residential district, some 30 years’ old, known as the ‘Zona Alta’ and just 500 metres from the centre of Lleida city. It is a quiet and pleasant residential area, equipped with amenities and services and surrounded by large green areas and buildings of a similar type and height.

The building has 26 apartments, all with large exterior terraces and a communal area with a sun deck and swimming pool on the centre of the rooftop.

The design proposal for this four-sided detached building aimed to avoid at all costs a ‘rectangular box’ shape with flat façades. Therefore, white opaque perforated cubes of different dimensions were placed on the façade in all orientations; they caress the main volume and protrude beyond the façade plane along its entire perimeter.

In the background, these are combined with other, larger volumes of clinker brick in three shades, laid in the same pattern but with different textures. A range of grey and reddish colours was used to blend the building into its immediate surroundings and to give it a marked residential character that is simple and elegant.

A Flexbrick lattice has been used on the exterior of some of the white cubes, occasionally crossing them, to filter the light entering the terraces and provide more privacy. These recurring elements create a constant play of light and shadow and give the building continuous visual movement.

56
CA 86 08
58 Lleida ±0.00 DE SETEMBRE PL. BAJA PL. PRIMERA PL. SEGUNDA PL. TERCERA PL. SÓTANO PDT=1% IN SITU CANALETA ELEMENT DECORATIU PILAR METAL.LIC AMB LAMAS D'ALUMINI MARC METAL.LIC FLEXBRICK 25X10X3cms. FLEXBRICK 25X10X3cms. SORRA PISCINA IN SITU CANALETA 5% 1 PDT ±0.00 CARRER ENRIC ROCA PERALTA IN SITU CANALETA ARREBOSSAT PDT=10º IN SITU 3 2 1 sección 1 sección 3 +1.58 +4.73 +7.88 PDT=1.5% PDT=1.5% PDT=1.5% PDT=1% 12 17 12 12 14 08 07 07 21 20 22 11 16 13 11 12 14 28 16 20 08 16 12 14 08 15 07 07 21 20 22 11 16 13 11 12 14 12 10' 08 16 12 14 08 15 07 07 21 20 22 11 16 11 12 14 08 16 12 17 14 08 15 13 14 14 14 14 12 14 27 07 28 01 07 17 25 14 14 15 08 14 27 27 14 14 10 23 15 17' 17' PDT=10º 15 23 15 23 12 03 02 01 06 08 04 28 21 28 07 17 08 15 17' 17 15% PDT 15 15 20 15 20 24 +1.58 +4.73 +7.88 PDT=1.5% PDT=1.5% PDT=1.5% 17 14 14 05 01 03 02 06 08 04 28' 19 07 21 22 11 07 20 15 16 13 11 12 14 08 15 08 08 19 16 12 14 08 28 07 21 22 11 07 20 20 16 13 11 12 14 08 15 16 12 14 08 14 14 14 07 07 21 20 22 11 16 11 12 14 15 08 16 17 12 14 08 13 07 01 07 17 25 15 07 08 15 19 14 07 21 15 23 25 07 25 21 07 25 15 15 23 21 07 07 17 17 15% PDT 15 17 28 17 28 17 15 20 24 24

71 viviendas protegidas EMV La Rosilla

La Rosilla 71 state-subsidised homes

Madrid

Arquitectos

AYBAR MATEOS SLP

Proyectistas

Camila Aybar Rodríguez

Juan José Mateos Bermejo

Colaboradores

Emilia Navarrete Ruiz

Dirección de obra AYBAR MATEOS SLP

Dirección de ejecución de obra

Daniel Perez Gonzalez

Ingeniería de estructuras

ETESA Gerardo Cantalejo y Eladio

Ingeniería de instalaciones

Valladares Ingeniería SL. Jorge Vega

Martín

Constructora

Aquaterra Servicios Infraestructuras, S.L. y Construcciones Mariano López

Navarro, S.A. Unipersonal, UTE.

Superficie parcela

2520 m2

Superficie construida

10.457,73 m2

Emplazamiento

Parcela RC 4 de la Actuación

residencial La Rosilla, Madrid

Situación

Villa de Vallecas, Madrid. CP: 28031

Tipología

71 viviendas de protección pública, con 97 plazas de garaje y 16 plazas

Inicio y final de obra

Inicio: 7 agosto de 2019

Fin: 30 septiembre 2021

Fotografía

José Hevia y Aybar Mateos Arquitectos

VIVIENDA COLECTIVA

Ladrillo cara vista

La envolvente se ejecuta con ladrillo klinker en planta baja, como una exploración de diferentes aparejos y utilizaciones de la fábrica.

SITUACIÓN Y EMPLAZAMIENTO

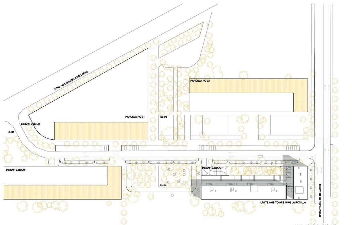
La parcela RC 4 se sitúa en un nuevo desarrollo urbanístico denominado APE 18.05 “La Rosilla” situado en Madrid junto al distrito de Vallecas. La Rosilla se encuentra en el triángulo formado por la Carretera de Villaverde a Vallecas, la avenida Mayorazgo y la calle Castejón de Henares. Está al suroeste del Casco histórico de Vallecas y se compone de 4 parcelas residenciales y 3 grandes zonas verdes entre las edificaciones, así como un equipamiento en la esquina creada por la carretera de Villaverde a Vallecas y la avenida Mayorazgo. Los límites de la actuación tanto al norte como al sur por zonas verdes aún sin definir.

Se trata de una parcela rectangular de dimensiones aproximadas de 28 x 90 m, con una superficie total de 2520 metros cuadrados. Los lados largos del rectángulo corresponden a las orientaciones norte-sur, mientras que los cortos a las este-oeste. El uso principal del edificio es el uso residencial vivienda. Las viviendas serán protegidas con protección básica. Esto significa que la superficie construida máxima será de 110 m2. Las viviendas se destinarán a alquiler social.

URBANO / una exploración de lo cotidiano

Una vez alcanzados los estándares propios de una sociedad moderna en confort, comodidad y salubridad en las viviendas, tanto por la normativa como por la industria, debemos evolucionar y aportar nuevos niveles de calidad en lo espacial, lo material y en las posibilidades de evolución de las viviendas. Es necesario generar propuestas capaces de adecuarse a los nuevos retos sociales y los tipos de núcleos familiares que conforman el tejido social en una exploración de lo cotidiano. Se proponen un edificio articulado en dos piezas pero que en planta baja se encuentran unidas para que tengan un basamento continuo, y se envuelven en una piel

URBAN / exploring the everyday

Once the housing standards of a modern society imposed by law and industry have been attained in terms of comfort, convenience and health, it is time to evolve and set new standards of quality where space, materiality and versatility are concerned. It is necessary to come up with proposals capable of adapting to the new social challenges and family units making up the social fabric in an exploration of the everyday. We chose a building comprising two pieces but connected at the ground floor so that they share a continuous base, and are wrapped in a continuous thermal skin, which, together with other general strategies, will allow it to achieve the B energy rating required by the specifications, without significantly increasing overall costs.

The buildings are adjacent to the yet-to-be developed park in the south of the city and as far away as possible from the noise of the traffic and industry in the north. The day areas are south facing, while the entrances and kitchens have a northern aspect. The pieces are organised in two alternating scales: one uses up the maximum permitted height of eight storeys and the other comprises five floors. Their orthogonal arrangement creates the impression of uniformity when viewed from the road and a clear discontinuity in the façade planes.

Solar photovoltaic panels were installed on the roofs of both the five-storey building and the tower to allow them to meet the near-zero energy consumption target, and an area has been earmarked for the installation of the air conditioning units serving each home.

61

ESPACIOS LIBRES DE PARCELA / paisajes capturados

Al interior de la parcela se accede a través de las entradas peatonales en rampa que permiten una completa accesibilidad universal a todas las viviendas y las zonas comunes. Los espacios libres comunes se extienden al interior de la edificación a través de portales abiertos que dan acceso a la escalera y los ascensores que comunican las viviendas, dándole una gran dignidad y calidad a los accesos, como reinterpretación de los tradicionales de los barrios de los ensanches madrileños.

Tal como prevé la normativa de La Rosilla, la vegetación a plantar en el patio es autóctona y combinada entre arboles de hoja caduca y perenne, así como de portes variados.

Los ascensores de los núcleos de comunicación se prolongarán hasta los sótanos, mientras que se disponen de escaleras de evacuación hasta la planta baja, con el fin de evacuar el sótano. Todo el conjunto se plantea como un ambiente equipado de manera óptima para el desarrollo de la vida urbana. Se interpretan los espacios interiores de la urbanización como un fragmento del paisaje natural adyacente capturado y manipulado.

A lo largo del jardín se generan unos núcleos de actividad formados por unos bancos y unas plantaciones de arbustos y plantas aromáticas autóctonas y de bajo mantenimiento (plantas tapizantes). Los árboles se plantan en la zona libre de la parcela, sin sótano, permitiéndose la plantación adecuada.

66 Madrid

Vivienda colectiva en Sevilla este

Arquitectos

Antonio G. Liñán (SV60 CORDÓN & LIÑÁN Arquitectos)

Situación

Calle Malaysia, Sevilla

Fechas

2019 – 2022

Superficie

18.988 m2 (Viviendas + Garaje)

Promotor

Promociones Habitat, S.A.U.

Director de obra

Antonio G. Liñán

Directores de ejecución

Javier Perales Martínez. Arquitecto Técnico

José Enrique López Letamendía. Arquitecto Técnico

Colaboradores

Victor Manuel Silveira Tesoro.

Arquitecto

Esteban Valencia Liñán. Arquitecto

Ignacio García Moliz. Arquitecto

Jose Miguel Pellicer. Arquitecto

Manuel Lóez Ruiz. Arquitecto Técnico

Salvador Lopez Cervantes. Arquitecto

Ingeniería de estructura

Fernando Medina Reguera (Nextforce)

Ingeniería de instalaciones

JG Ingenieros

Constructora

Jarquil Construcción, S.a.

Materiales

Pavimentos: Marazzi, Tarkett,

Pavimentos del Genil

Sanitarios: Jacob Delafon

Carpintería interior: Ramycor, Norma

Doors, Urano, Novofermalsal

Cerrajería: Metalica Dumar, General de Metalistería Maquetas y Diseños, Europerfil

Materiales Cerámicos: Malpesa

Aislamiento: TH Tecnic (PUR), Danosa (XPS), Knauf (MW)

Cubierta: Danosa

Iluminación: Philips, Iguzzini

Fotografía

Jesús Granada

El entorno se caracteriza por su heterogeneidad, con edificios de una arquitectura muy diversa y de diferente uso y tamaño (colegios, edificios de viviendas de diferentes tipologías, zonas verdes, etc.). Asimismo, la morfología urbana en relación a la posición de los edificios y sus alturas es muy diversa, encontrándonos algunos edificios que se posicionan aislados en el interior de las parcelas, otros alineados a vial y una mezcla de alturas que construyen una imagen diversa y heterogénea del entorno próximo. La integración del edificio con los espacios circundantes a la parcela es uno de los objetivos a resolver con la propuesta creando continuidad morfológica entre el nuevo edificio y los edificios y espacios públicos colindantes y resolviendo los accesos de la manera más cómoda y funcional posible.

El edificio propuesto responde a la diversidad del entorno con una volumetría que se adapta a los parámetros de la Ordenanza Municipal de alineaciones obligatorias y alturas permitidas. El edificio se posiciona en la parcela como un rectángulo en manzana cerrada de altura variable entre 4 y 8 plantas y alineado a los viales.

Todo el edificio funciona con una única entrada desde el exterior que accede a un patio interior desde el cuál se circula hasta los once portales-escaleras. Cada escalera consta de 2 viviendas por planta con fachadas exterior-interior. La estructura se integra en este sistema modular permitiendo una disposición adecuada de los sótanos para distribuir plazas de aparcamiento y circulaciones, a la vez que permite disponer en las plantas superiores espacios acordes a la distribución de las viviendas.

La diversidad en el posicionamiento de los huecos, terrazas y espacios interiores en general trata de establecer la continuidad espacial interior estableciendo relaciones internas entre las viviendas y mejorando el funcionamiento y la eficiencia energética de los edificios.

Homes in Sevilla este Sevilla VIVIENDA COLECTIVA

The environment is characterized by its heterogeneity, with buildings of a very diverse architecture and of different uses and sizes (schools, residential buildings of different types, green areas, etc.). Likewise, the urban morphology in relation to the position of the buildings and their heights is very diverse, finding some buildings that are placed isolated inside the plots, others aligned to the road and a mixture of heights that build a diverse and heterogeneous image of the nearby environment. The integration of the building with the spaces surrounding the plot is one of the objectives to be solved with the proposal, creating morphological continuity between the new building and the adjoining buildings and public spaces and solving the accesses in the most comfortable and functional way possible.

The proposed building responds to the diversity of the environment with a volume that adapts to the parameters of the local regulations (mandatory alignments and permitted heights). The building is positioned on the plot as a closed block rectangle of variable height between 4 and 8 floors and aligned to the roads.

The entire building works with a single entrance from the outside that accesses an interior patio from which users circulates to the eleven portals-stairs. Each staircase consists of 2 housing units per floor with exterior-interior facades. The structure is integrated into this modular system allowing an adequate layout of the basements to distribute parking lots and circulations, while allowing spaces on the upper floors to be arranged according to the distribution of the dwellings.

The diversity in the positioning of the openings, terraces and interior spaces in general tries to establish interior spatial continuity by establishing internal relationships between the dwellings and improving the functionality and energy efficiency of the buildings.

The typology of the housing units respond to the optimization of surfaces in relation to the number of bedrooms, allowing flexibility of personalized occupation for each group of inhabitants. A clear and rational geometry governs the entire distribution of rooms, structure, facade modulation, etc. In addition to the functionality of the houses, the proposed program presents a series of common spaces that allow coexistence. In the central patio, at the ground floor level, a large space is generated that will serve as a green lung and a social meeting place for neighbors.

Ladrillo cara vista

Este bloque de viviendas en Sevilla Este se relaciona con las edificaciones cercanas, la mayoría con fachadas enfoscadas con colores claros, utilizando un ladrillo cara vista blanco con aparejo de doble tizón.

68
CA 86 10

Casa Daoiz

Daoiz house

Gines, Sevilla

Arquitectos EOVASTUDIO

Juan José Baena Martínez, Marta

Gómez Martínez, Joanna Jedrus

Cabrera

Colaboradores

David Rivera Contreras

Estructura

Luis García Arrabal

Arquitectura técnica

Mariano Rodríguez Marín

Empresa constructora

Construcciones Javier Guzmán SL

Promotora

Privada

Plazo ejecución

12 meses

Superficie construida

Vivienda: 205,41 m2

Urbanización: 320 m2

Presupuesto

880 €/m2 (PEM)

Provedores

Pavimentos: Pasarela Cerámica y Baño

Sanitarios: Roca

Carpintería exterior: LUCOR Ventanas y Fachadas

Materiales cerámicos: Celosía cerámica Cerámica a Mano Alzada

Fotografía

Fernando Alda

Ubicada en un entorno residencial de baja densidad del municipio de Gines, Sevilla, la vivienda surge como fruto de la segregación de un solar de mayor tamaño y la necesidad de reforma y ampliación de una pequeña construcción existente. La parcela rectangular resultante, cuya orientación principal hacia el oeste limitaba las posibilidades de apertura al exterior, requería la mínima ocupación del suelo para poder organizar el programa requerido de espacios exteriores, tales como jardín, porche, zona de aparcamiento y piscina. Los diversos condicionantes urbanísticos, estéticos y funcionales del proyecto se resuelven mediante un volumen elevado generado a partir de las referencias tipológicas tradicionales del Aljarafe sevillano, una arquitectura modesta de paredes blancas y cubiertas inclinadas, creando con este gesto un porche en sombra totalmente abierto al jardín.

Desde su acceso en planta baja, la vivienda se desarrolla en un único espacio abierto al exterior donde gracias a sus fachadas acristaladas los límites visuales son los que aporta el espacio exterior, es decir, las medianeras ajardinadas de la propia parcela. Los espacios privados de la planta superior se protegen del entorno inmediato a través de una fachada prácticamente cerrada, cuya única apertura al exterior es mediante un patio adosado a fachada pero protegido por una celosía cerámica abatible. Dicha celosía permite el disfrute de las vistas exteriores desde la intimidad, generando al mismo tiempo un sistema de luces y sombras variables en función de la incidencia solar o de la emisión de luz interior en periodo nocturno.

La construcción del volumen se realiza utilizando un sistema estructural mixto de losa maciza de hormigón y estructura metálica superior, colaborando una con la otra en función de los requisitos estructurales de cada parte. Por otro lado, muros y pavimentos se realizan empleando diversos tipos de materiales cerámicos, algunos en crudo y otros simplemente encalados, de tal modo que lo tradicional y lo contemporáneo dialoguen de una forma sencilla y natural.

VIVIENDA UNIFAMILIAR

Ladrillo cara vista

Un patio adosado a fachada (inesperado en una vivienda unifamiliar) se abre o cierra, comunicando exterior e interior según pidan el clima y las vistas, gracias a una celosía cerámica abatible, que se dispone cerrando un volumen definido por unos sencillos muros encalados.

Located in a low density residential area in the municipality of Gines (Seville), this house is the result of dividing a larger plot and restoring and extending a small construction that was already on the site. The resulting rectangular plot, whose primarily west-facing aspect limited the possibilities of opening it up to the exterior, called for a minimum occupation of the site so that the programme requirement of exterior spaces, such as a garden, porch, parking area and swimming pool, could be met. The various planning, aesthetic and functional constraints were addressed using an elevated volume inspired by traditional elements of Sevillian Aljarafe architecture, which is modest and typically features white walls and sloping roofs.

From the entrance on the ground floor, the home unfolds over a single space open to the exterior, which can be seen in its entirety thanks to the glazed façades. The private spaces on the upper floor are protected from the immediate surroundings by a largely closed façade, with just one opening to the exterior in the form of a patio on the façade that is sheltered by a hinged brick lattice. The lattice allows views of the exterior from the privacy of the interior, while creating a system of lights and shadows that change with the sunlight and interior lighting at nighttime.

The volume was constructed using a mixed structural system that employs solid concrete slabs and an upper metal structure, each working in unison according to their structural functions. Different types of ceramic materials were used in the walls and flooring to allow the traditional and the contemporary to dialogue in a simple and natural language.

76
CA 86 11
78 Gines, Sevilla
Planta baja Planta primera Planta cubiertas Sección longitudinal Sección transversal

Reflexiones sobre arquitectura

Ámsterdam: be water, my friend... (Parte 1/2)

El agua es un elemento principal en la conformación del paisaje y la arquitectura de los Países Bajos. De la que se ha realizado en los últimos cien años en Ámsterdam, se pueden establecer dos periodos especialmente relevantes. Uno abarca hasta los años treinta del siglo XX, y el segundo llega hasta las primeras décadas del XXI.

Fotografías / Rogelio Ruiz (1, 3, 4, 5, 6a-6c, 10-12, 13b, 16-20), Choinowski (2), Hanno Lans (6a), Janericloebe (6d, 8c, 9, 15), Alf van Been (7), Marcelmulder68 (8a), Enrique Sanz (8b, 8e), Niels O. Kellerman (8d), Ben Bender (13a), Fred Romero (14)

Referencias

Casciato, Maristella. La Scuola di Amsterdam. Ed. Zanichelli, Bologna, 1987.

Jodidio, Philip. Architecture in the Netherlands. Taschen, Köln, 2006.

VV.AA. Amsterdam 1920-60 Het Nieuwe Bouwen, Delft University Press, 1983.

VV.AA. Arquitectos holandeses. Ed. Junta de Andalucía, Sevilla, 1995.

VV.AA. Paisajes artificiales. Ed. Gustavo Gili, Barcelona, 1998.

VV.AA. Amsterdam Architecture. Ed. Thoth Bussum, 2006.

DANTE, Divina Comedia, capítulo decimoquinto (1320). Trad. Bartolomé Mitre, Ed. Jacobo Peuser, Buenos Aires, 1894.

Holanda con una superficie como Extremadura, tiene una población de más de 17 millones de personas. Esta densidad hace que la competencia, la lucha por los metros cuadrados, sea una batalla librada desde hace tiempo. La batalla se extiende en todos los campos, y hace así que disfruten también de los arquitectos más punteros del mundo. En los Países Bajos, la apropiación debida de espacio del mar viene realizándose desde hace muchos siglos cambiando la estructura urbana1. El lago de IJ, el IJmeer, ha sido tomado a su vez por islas y otros desarrollos generados por la desaparición de muelles en la ciudad y su nueva ocupación por edificios. Desde 1988 en que se hizo el IJplein, urbanizado bajo la batuta de OMA, otras nuevas promociones e islas se han creado y los trasbordadores parten de la Estación Central para llevarnos allí. El hecho de que este gran lago central de Holanda, del que el IJmeer es el final junto a Ámsterdam, fuese cerrado al mar en 1932, hizo que cambiara su fisionomía, y este control al que se ha sometido la naturaleza invita a crear viviendas, como vemos allí, prácticamente a nivel del agua, porque gracias a estas compuertas la cota del agua es estable y las gabarras, que antes deambulaban por los canales, se han convertido en muchos casos en casas fijas al nivel de los canales que ocupan buena parte de sus pretiles. Y a pesar de lo “romántico” de las mismas, el atraque se convierte en atraco al espacio público y a la dimensión de los mismos canales. Para alguien del Atlántico, que ve el mar bajar y subir cada ocho horas más de cinco metros, observar que estos forjados están a cuarenta centímetros de la superficie del agua inquieta muchísimo. Pero, como ya dijimos, el agua, el control del agua, viene siendo patrimonio de los Países Bajos desde siempre.

Estas islas y nuevos brownies (terrenos industriales abandonados) que van apareciendo siempre disfrutan del más moderno urbanismo y de las figuras arquitectónicas más importantes en cada momento que realizan elementos singulares que den visibilidad en la ciudad a los nuevos terrenos urbanizados.

En 1989 quien esto escribe estaba realizando el proyecto final de carrera, y llegó a mis manos un Quaderns en el que aparecía el Teatro de la Danza de La Haya de OMA en color (que tristemente ha sido demolido a pesar de los esfuerzos de muchos para que así no fuera). En seguida vi que allí se estaba produciendo algo que escapaba a lo que yo había estudiado, con una libertad de colores y formas que traslucían una alegría contagiosa. Tomé el dedo y la mochila, entonces se podía, y me fui a comprobar cómo era en realidad aquella nueva arquitectura. Y desde luego aproveché la estancia para recorrerme el país viendo la arquitectura del Nieuwe Bouwen: Oud, Duiker (visité el Nirvana, la guardería de Ámsterdam, el CINEAC que ahora se está restaurando...), viviendas de Brinkman y Van der Vlugt y la fábrica Van Nelle (mucho antes de que la restaurara Wessel de Jonge, uno de los pioneros de do.co.mo.mo), el Hilversum de Dudok de ladrillo amarillo, la casa Schröder y el Café de Unie, que me ataban al Neoplasticismo, algún edificio de Bakema y van der Broek y, por supuesto, el Ámsterdam Zuid y la arquitectura de ladrillo que surgió de la revista Wendingen: la Escuela de Ámsterdam. Me sorprendió muchísimo el país ya que, viniendo yo de una España pueblerina, llena de prejuicios, contrastaba con una sociedad desenfadada que allí veía. También me sorprendió sobremanera ver cómo todo metro cuadrado del país enseñaba que detrás había un técnico que lo había diseñado. Luego, claro, el Mauritshuis en La Haya, el Rijksmuseum… Un país en el que la arquitectura, como en el cuadro de Delft de Vermeer (figs. 2 y 3), flota entre el agua del cielo y el de los canales. Porque en Ámsterdam, no en vano la “Venecia del norte”, el refrán de la Serenissima (Soto l´aqua supra l´aqua) se hace más cierto que en la ciudad del Véneto, ya que aquí a veces los canales son más anchos y nos permiten ver los reflejos con ángulo mayor. Como en la italiana, la gran laguna, y aquí más controlado el IJmeer, hacen que tengamos un filtro importante antes del mar abierto. Y una arquitectura de ladrillo también, como vemos en los cuadros de los pintores, en una zona sin montañas donde hacer canteras2

Como recuerdo de su pasado colonial asiático, hay un plato holandés, el Rijsttafel (mesa de arroz), que se compone de muchos pequeños cuencos en los que se van tomando diversos arroces, verduras, carnes… Es tal la cantidad de buena arquitectura que ver en Ámsterdam que, aquí, como en este plato, vamos a acercarnos a la imagen global, espero que más por exhaución que por agotamiento, ofreciendo una serie de platos-arquitecturas que, sabiendo de ante mano que con tan pocos será imposible abarcar el tema, den al menos una idea global.

1 Obsérvese la cita de Dante que en 1320 habla de Brujas y Gante, en los llamados Países Bajos españoles: “Cual los Flamencos entre Bruge y Gante, / Contra marea que su costa aventa, / Forman reparos, y huye el mar delante” (DANTE, 1320).

2 Hablando en cierta ocasión con Winy Maas, al decirle que era asturiano, me dijo inmediatamente que había estado en Asturias para subir a los Picos de Europa.

81
1

Artículo Técnico

Sistemas constructivos cerámicos que ahorran energía

Fachadas

Los ladrillos y bloques cerámicos son materiales muy polivalentes empleados para la construcción de muros de carga y de cerramiento, de una o de dos hojas, en todo tipo de edificios (viviendas unifamiliares y plurifamiliares, equipamientos, edificios comerciales y de oficinas, etc.).

Tanto las fachadas de doble hoja de ladrillo autoportantes, como las de una hoja de ladrillo con SATE o fachada ventilada, pueden alcanzar cualquier valor de transmitancia térmica (U) requerido, variando el espesor del aislamiento.

Fachadas de ladrillo cara vista

En las fachadas de dos hojas, la solución óptima es la de fachada autoportante, en la que la hoja exterior de ladrillo cara vista se construye tangente al edificio, permitiendo de este modo el paso continuo de una cámara de aire (ventilada o no) y un aislamiento térmico por delante de la estructura, eliminando los puentes térmicos de frentes de forjados y pilares.

Las fachadas autoportantes de ladrillo cara vista se engloban bajo la marca Structura-GHAS. Además de las ventajas en cuanto a su eficiencia energética, esta solución destaca por sus prestaciones técnicas, simplicidad constructiva, economía y ausencia de patologías.

Fachadas de ladrillo y bloque para revestir

Los ladrillos y bloques para revestir se pueden emplear en diferentes soluciones constructivas de fachada, como muros de carga y de cerramiento, de una hoja o de dos hojas.

Los ladrillos y bloques cerámicos para revestir son un soporte idóneo para actuar como hoja principal en fachadas ventiladas formadas por un revestimiento exterior discontinuo y en fachadas con sistemas de aislamiento por el exterior (SATE). En ambos casos, la colocación del aislamiento por el exterior permite aprovechar al máximo la inercia térmica de las fábricas de ladrillo y eliminar los puentes térmicos de frentes de forjados y pilares, mejorando con ello la eficiencia energética de la fachada.

En dichas soluciones, la hoja interior del cerramiento es un elemento fundamental, no sólo por ser el soporte para la instalación de la fachada ventilada o el SATE, sino por contribuir a que la solución global de fachada tenga unas prestaciones técnicas (acústicas, térmicas, etc.) adecuadas.

En este sentido, las paredes cerámicas destacan por su elevada inercia térmica, aislamiento acústico y resistencia al fuego, dotando a la fachada de unas altas prestaciones

Producto: Ladrillo cara vista

Dirigido a: Proyectistas

Contenidos: Diseño

87
Figura 2. Paneles solares sobre cubierta inclinada de teja cerámica Figura 3. Tabiquerías de ladrillo hueco de pequeño formato con revestimiento
Los materiales cerámicos contribuyen al confort higrotérmico en el interior de los edificios mediante la mejora del aislamiento y la inercia térmica de las soluciones de envolvente y particiones interiores del edificio, la eliminación de puentes térmicos y la regulación de la humedad ambiente.
Figura 1. Pabellón multideporte con bloque Termoarcilla en Güevejar (Granada). Arq. Juan Moya Arquitectura Figura 4. Fachada autoportante de ladrillo cara vista, STRUCTURA-GHAS Figura 5. Ensayos de anclajes para fachada ventilada

Entrevista a Rafael de La-Hoz

Armas de arquitecto: medicina del alma

El estudio de Rafael de La-Hoz ha realizado más de 500 proyectos en 20 países de todo el mundo. Escuchándole hablar sobre sus convicciones y dudas, recuerdo unas palabras de Jerónimo Junquera, cuando celebraba su centenario (doble 50) junto a Pérez Pita. Decía que habían terminado su “formación” y que parecía que ya entendían las claves del oficio de arquitecto. El entrecomillado es mío, porque está claro que llamar formación a la realización de proyectos y obras, a un ritmo vertiginoso, en unos 22 años, es valorar en mucho la experiencia. Rafael de La-Hoz (Córdoba, 1955) la acumula como pocos arquitectos en el mundo, pero, sin falsa modestia, como Tanis y Jero, sigue buscando las armas prácticas, intelectuales, emocionales y psicológicas para proponer, como profesional que ya domina las claves del oficio, una arquitectura positiva y optimista ante las circunstancias que, casi siempre, siguen poniendo las cosas muy difíciles.

La normativa y las regulaciones, la parálisis económica que llega por rachas y las malas decisiones políticas que afectan a la marcha del bien común son impedimentos para que la arquitectura aflore. Rafael suele decir que esta debe ser una medicina para el alma, que se ve acosada por diversos e intrincados avatares.

Rafael, te he escuchado hace unos días un interesantísimo análisis sobre la limitación del cuerpo humano y su relación con la estructura convencional de vivienda. La máquina imperfecta que somos (necesitamos comer tres veces al día, dormir 8 horas, lavarnos, evacuar residuos de todo tipo) y que la vivienda siempre se ha definido espacialmente para satisfacer esas necesidades, pero poco para satisfacer el alma. Parece que en vivienda unifamiliar es más sencillo encontrar propuestas que cambien estas inercias. ¿Crees que se irá imponiendo un cambio de paradigma en vivienda colectiva o es una quimera arquitectónica?

Efectivamente, la “vivienda como máquina” fue un avance del siglo XX, para la calidad de vida de las sociedades europeas.

Viviendas mecanizadas, higiénicas, saludables… Para comer, dormir, lavarse, etc. Tan eficaces que hemos superado una pandemia recientemente sin grandes contratiempos sociales, gracias a la eficacia higienista que las inspira.

¿Son también viviendas para encontrarse con los demás y consigo mismo? Me temo que no. Tal vez esa nueva vivienda colectiva de encuentro esté ya emergiendo en África o la India. Allí, creo que se dan condiciones, que aquí no tenemos, para realizar el proyecto arquitectónico que precisa la vivienda como tipo.

Estudiaste en la ETSAM, ¿qué recuerdos guardas de esa época?, ¿de qué profesores de proyectos y de qué compañeros mantienes más viva la memoria?

Fue mi escuela y no conocí otra como alumno.

Es verdad que ya era una escuela técnica donde había comenzado la masificación, pero tenía algunas ventajas.

Era única porque no había otra en Madrid.

Era acogedora porque allí estaban todas las mañanas mis amigos, a los que sigo viendo. Y era divertidísima porque la política engendraba algaradas.

Entre sus aulas y en sus patios se declaró inaugurada la Movida Madrileña. Nada menos. Pero, sobre todo, fue para mí el santuario donde profesaba una Santísima Trinidad: Fernández Alba, Sáenz de Oiza y Carvajal. Fe en la que sigo militando.

92 ca86 Entrevista
Fotografías Miguel de Guzmán (retrato Rafael de La-Hoz) Alfonso Quiroga (fotografías y edición) Juan Ramón Maroto Alted (vuelo dron) www.rafaeldelahoz.com/es
“Todo lo del cuerpo es un río; lo del alma, sueño y vapor; la vida, una guerra y un exilio, y la fama póstuma, olvido”.
Marco Aurelio, Meditaciones

Observatorio/refugio en el Valle de los Pedroches

Wildlife observatory Villanueva de Córdoba (Comarca Los Pedroches)

Arquitectos

Rafael de La-Hoz

Cliente

O.F.A.

Colaboradores

Rafael Quintana (gerente), Francisco Arévalo (director de diseño), Carolina Fernández y Silvia Rodríguez (directoras de proyecto), Ángel Rolán (dirección facultativa de obra), Sigfried Burger, David Montero, Rafael Guillem, Beatriz Carreto (Equipo de Proyecto), Saúl Castellanos (arquitecto técnico), Macario Cristóbal (dirección de obra), Luis Muñoz, Carlos Ripoll y Daniel Roris (infografías), Victor Coronel y Fernando Mont (maquetas), Mónica F. Ferreras (publicaciones y comunicación), Laura Gioya (gráfica para publicaciones)

Consultores

IDI (Ingeniería de Estructuras), R. Úrculo Ingenieros Consultores (instalaciones)

Contratista

Salazar Fernández Maico, s.l.

Superficie construida

1.063,83 m2

Presupuesto

913.546,29 €

Fotografías cortesía de Rafael de la Hoz

Alfonso Quiroga (fotografías y edición)

Juan Ramón Maroto Alted (vuelo dron)

Por tradición y sensatez popular los habitantes del Valle de los Pedroches –un enclave inmutable situado entre Extremadura, Andalucía y Castilla– han cuidado desde hace siglos de las encinas que cubren sus dehesas como si fuesen árboles sagrados.

Paradójicamente, tan radical protección arbórea ha condicionado más la arquitectura del valle que su paisaje, pues la carencia de madera para edificar propició la utilización del granito –Los Pedroches– como material de cubrición y, por lo tanto, de la cúpula de rincón como solución estructural, de forma que son las encinas las que caracterizan las dehesas y las cúpulas su arquitectura.

Por desgracia, estas cúpulas constituyen una especie en riesgo de desaparición ante la agresiva invasión de nuevas técnicas constructivas tal vez más rutinarias pero también más intrascendentes.

Con ocasión de la construcción de un observatorio de la fauna del valle, surgió la oportunidad en el año 2013 de revisitar la tradición, construyendo un rectángulo de cúpulas plementadas como techo protector desde donde observar las faunas protegidas.

La irónica suerte de una arquitectura en riesgo de extinción al servicio de una naturaleza sin amenazas.

Sobre un “solado de chicos” de 52x40 m, dimensiones determinadas por un claro en el encinar que proporciona el tamaño del edificio a la escala del paisaje, se dispuso un “rectángulo matriz” en el que se implementan dos corredores de distribución norte-sur y la trama reiterativa de 6x6 m que sustenta las cúpulas del observatorio.

La necesidad funcional de un patio de recibo y uno más reducido de iluminación introduce en la retícula de cúpulas la alteración precisa para evitar un exceso de literalidad geométrica.

No puede sorprender que las dimensiones del conjunto, tanto del “solado” y la planta de la casa, como de las cúpulas de 6 metros de base por 4,5 metros de altura, estén en proporción 1/3, denominada Proporción Cordobesa, y que se encuentra en toda la arquitectura de la comarca.

Esta simulación de estructura artificial (refugio) a través de una industrialización constructiva y estructural recupera imágenes ligadas a la arquitectura sin arquitectos (cueva, cabaña, oasis, sombra, cal blanca, agua...).

Un espacio continuo de planos curvos y aristas cruzadas para percibir sobre nosotros el sólido y pesado frescor de las cúpulas encaladas.

Guided both by tradition and common sense, over the centuries the people of Los Pedroches Valley – a protected area between Extremadura, Andalucía, and Castille – have cherished the holm oaks that cover the valley’s meadows as if they were sacred trees.

However, such radical protection of the trees has conditioned the architecture of the valley more than it has its landscape, because the lack of wood for construction led to the use of granite – Los Pedroches – as covering material and, therefore, to the cloister vault as structural solution. The result is that the oaks characterize the meadows, and the vaults the architecture in the region.

Unfortunately, these vaults are an endangered species under the agressive invasion of new building techiques, more standardized perhaps, but also less significant.

In the year 2013, the project to build a wildlife observatory brought the opportunity to revisit tradition with the construction of a rectangle of webbed vaults as a sheltering sky from which to observe the protected species.

The observatory somehow stands to represent the ironic fortune of an endangered architecture at the service of a protected landscape.

On a paved area of 52x40 meters, dimensions determined by a clearing in the oak grove that provides the size of the building at the scale of the landscape, rests a ‘matrix rectangle’ with two corridors running north-south and a repeated pattern of 6x6 meters that supports the observatory domes.

The functional need for an access courtyard, and a more reduced one for lighting, introduces in the grid a precise degree of alteration to prevent an excessive geometric literality.

It is no surprise that the dimensions of the complex, as much the flooring as the building’s plan and the domes of 6 meters at the base and 4.5 meters in height, follow a 1:3 proportion, denominated ‘Cordovan proportion,’ present in all the architecture of the region.

A continuous space of curved surfaces and groined vaults to perceive above us the solid and weighty freshness of the whitewashed domes.

Only a metal formwork has been used to raise the building, using concrete with local stone poured on site. And finally the domes have been left without covering, trusting that the exposure of their convexity will merge them visually and geometrically into the surrounding sea of oak trees that, like vegetal domes, reach the horizon.

94

Turn static files into dynamic content formats.

Create a flipbook
Issuu converts static files into: digital portfolios, online yearbooks, online catalogs, digital photo albums and more. Sign up and create your flipbook.