Chisago Lakes Comprehensive Facility Study

Page 1


TABLE OF CONTENTS

Section 1 Executive Summary Introduction Methodology Overview

Section 2 Chisago Lakes High School

Section 3 Chisago Lakes Middle School

Section 4 Taylors Falls Elementary

Section 5 Primary School

Section 6 Bus Garage

Section 7 District Wide

Section 8 Financials

INTRODUCTION

The Chisago Lakes School District has a proud history of accomplishments within a framework of fiscal responsibility to the taxpayers of the District. That focus has led to efficient operations, diligent maintenance, and prudent upgrades to the District’s facilities over decades. However, with significant use, the passage of time and changing needs in the District, a comprehensive assessment of facilities and resulting master plan became important to address both the deferred maintenance and educational adequacy of Chisago Lakes School District. This comprehensive assessment is the result of work completed by Nexus Solutions from March to July 2024. The following report documents the physical condition of the Chisago Lakes District buildings, site, and systems, as well as the educational adequacy of the environment.

The District is made up of six facilities.

• Primary School serves Pre-Kindergarten through 1st grade. The facility was originally built in 1965 with additions in 1970, 1978, 1991, 1999, 2022. It is a one-story building with 64,468 square feet.

• Lakeside Elementary serves 2nd grade through 5th grade. It was built in 2019. It is a two story building with 116,494 square feet.

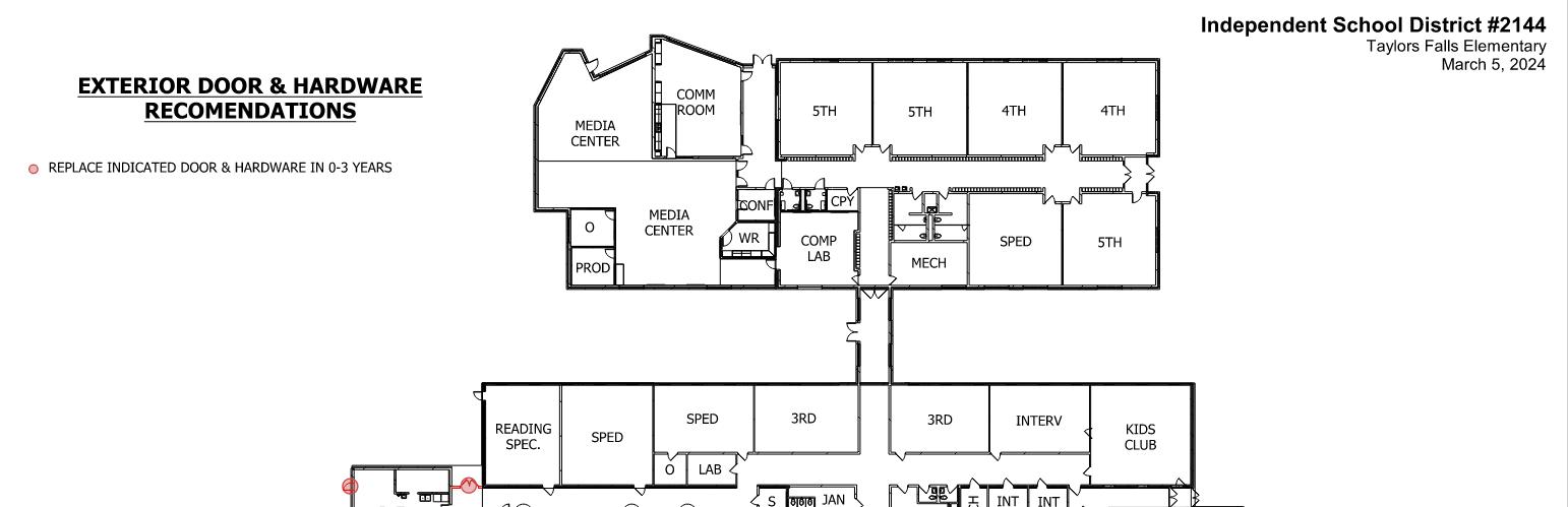
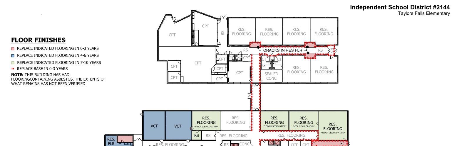
• Taylors Falls Elementary serves PreK through 5th grade. This facility was built in 1951, with additions in 1962, 1970, 1990, 2008, and 2019. It is a one-story building with 68,561 square feet.

• Chisago Lakes Middle School serves 6th grade through 8th grade. This facility was originally built in 1935, with additions in 1959, 1968, 1974, 1983, 1999. It is a multi-story building with 138,887 square feet.

Executive Summary

• Chisago Lakes High School serves 9th grade through 12th grade. This facility was built in 1976, with additions in1986, 2000, and 2019. The facility has 356.579 square feet.

• Chisago Lakes Bus Garage was built in 1973, with an addition in 1993. It has 19,996 square feet.

The District is made up of the towns of Chisago City, Chisago Lake Township, Lindstrom, Center City, Wyoming Township, New Scandia Township, Franconia Township, Shafer, Taylors Falls, Shafer Township, Amador Township, and Lent Township.

CHISAGO LAKES SCHOOL DISTRICT

Executive Summary

The facility improvements identified in this report provide the framework and direction for Chisago Lakes School District’s Facility Master Plan and includes detailed measures for necessary systemic improvements and/or renovations needed across the District. In this section, you will find an overall summary of the methodology used to identify needs, the solutions recommended to address needs and the costs estimated for implementation. Sections 2 - 4 of this report contain detailed descriptions of each identified deficiency, along with recommended solutions and corresponding budgets.

Our Methodology

This assessment was facilitated by Nexus Solutions and utilized a wide variety of data collection and analysis, including:

• Building tours and review of existing drawings

• Interactive sessions with District Leaders, Staff and Faculty

• Consultation with your financial advisor, subconsultants and subcontractors

• Survey of staff members

• Expertise from a team comprised of master planners, architects, engineers from multiple disciplines, designers, building envelope professionals, and construction/project managers.

This comprehensive assessment relied on two critical components: a detailed Facility Condition Assessment and a thorough Educational Adequacy Analysis, both of which are summarized on the following pages.

FACILITY CONDITION ASSESSMENT

A complete and multi-disciplinary assessment was conducted to estimate the cost of restoring, replacing, or maintaining defective assets. This assessment focused on five distinct facility systems, which included Mechanical, Electrical and Technology, Building Envelope, Site and Parking Lots and Interiors and Equipment.

Facility Improvement Measures (FIM) for Chisago Lakes are quantified by both priority and budget. For example, projects are prioritized within a 0-5-year, 5–10year, or 10-20-year timeframe.

Regarding budgets, the stated costs represent the total or “All-in” cost of the solution based on current market conditions – construction inflation, design contingency and soft costs are factored into the total budget.

It is important to remember that these are budgets, not bids. All budgets were developed utilizing the internal budgeting expertise of Nexus Solutions, incorporating historical cost data from actual projects, as well as similar recent projects bid in the competitive marketplace. In many cases, specific budgets were developed and reviewed in consultation with subconsultants and subcontractors, with experience working within District buildings.

EDUCATIONAL ADEQUACY ANALYSIS

Educational Adequacy (EA) is determined by assessing how effectively a school building supports current and planned educational programs. In this step we evaluated entrance security, special education spaces, (internally and externally), and the learning environments at each school.

Through interviews with staff and our experience working with other school districts, we were able to identify and prioritize building improvements that would have the highest impact on learning and teaching environments. The purpose of these improvements is to make spaces more efficient for educators, more comfortable for students with all abilities, and enhance modern curriculum for everyone.

Capacity planning is another major component considered when evaluating educational space. In this step we evaluated the capacity of the school to determine how it aligns with District policies adopted by the Board of Education. We consulted with staff and confirmed with the most recent demographics to maintain proper room capacities at each grade and discipline department. These are key factors considered when planning space requirements and the number of sections per grade.

OVERVIEW OF DEFICIENCIES, SOLUTIONS & COSTS

Executive Summary

The following pages provide a summarized overview of the identified deficiencies, proposed solutions, and estimated costs Districtwide. School-specific details can be found in Sections 2 -6 of this comprehensive facility assessment.

Based on facility walkthroughs and stakeholder interviews (with the District’s Administration, School Principal and Specialists), significant upgrades are needed at the facility to address deferred maintenance and ensure learning environments accommodate the modern educational programming expected of public schools today.

Recommendations included in this report will outline solutions for:

• Updates and repairs to electrical, low voltage, and lighting

• Updates to heating, ventilation, air conditioning (HVAC), and plumbing

• Updates and repairs to roof, windows, doors, and facade

• Updates to interior finishes including ceilings, flooring, casework

• Minor and major remodels within the building and additions

Making these investments now will make the building more efficient, more comfortable, and safer for all occupants. Additionally, extending the life span of the building by reinvesting in important infrastructure. Separately, but with heavy interaction, the educational adequacy sections address the deficiencies in the facility regarding its effect on teaching and learning.

Needs, Priorities & Estimated Costs by School:

CHISAGO LAKES SCHOOL DISTRICT

Executive Summary

The comprehensive analysis resulted in six (6) key categories of recommended solutions to address both deferred maintenance and educational adequacy needs across the District. Please note, the budgets are shown in 2024 dollars. The final comprehensive plan will include an allowance for future inflation, which will impact the total budget needed.

Nexus is not suggesting that all identified needs be addressed at this time. Rather, Nexus recommends the needs be prioritized through a series of highly collaborative meetings involving the administration, Board of Education, and community. The result will be a community-driven, long-term, comprehensive plan for your facilities.

** Detailed breakdowns for each school, by facility improvement measure (FIM), can be found in the FIM Matrix (Section 8). **

Recommendations for Districtwide Next Steps

The attached comprehensive assessment identifies approximately $121 million worth of facility needs for Chisago Lakes School District to consider over the next ten (10) years. And while it is common for a District’s needs to outweigh their budget dollars, this study also outlines recommendations for which needs are most critical and should be addressed over the next five (5) years.

Next steps start with the board reviewing this report alongside the administration, ensuring that all relevant details are considered. Following this, a community survey and engagement phase is conducted to gather input and feedback from the public. Nexus will assist with any community questions, providing clarity and support. Finally, the process culminates in community task force meetings, where discussions and decisions are made based on the gathered insights. This systematic approach emphasizes the importance of thorough review, active community involvement, and collaborative decision-making. Having the data from the survey and a recommendation from the community advisory group, the Board can make an informed decision for a referendum by December.

FACILITY CONDITIONS

BUILDING ENVELOPE IMPROVEMENTS

Roof Replacement on 1998 Addition Serving the Science and Media Center Wing

Roof Replacement on 1986 Pool Addition

Roof Replacement on 1998 Addition Serving the Cafeteria, Dance Studio, and Aux. Locker Rooms

The roofs over the 1998 additions (main office, media center, science wing, cafeteria, and auxiliary locker rooms) and the 1986 pool addition (have all reached the end of their useful life and are showing signs of aging such as bridging / stretching at roof perimeters and multiple previous repairs. The roofs should be replaced in the next 1 to 3 years. (areas C, D, F, Y, Z, 5, 6, 7 and 8)

Roofing system replacement will improve energy performance by increasing system insulation values, reduce leaks, and will reduce operating and maintenance expenses.

BUILDING ENVELOPE IMPROVEMENTS

HS-BE-1 Roof Replacement on 1998 Addition Serving the Science and Media Center Wing

HS-BE-2 Roof Replacement on 1986 Pool Addition

HS-BE-3 Roof Replacement on 1998 Addition Serving the Cafeteria, Dance Studio, and Aux. Locker Rooms

• Removal of old roof systems & wet insulation / deteriorated wood blocking.

• Polyisocyanurate insulation layers. R-30 with a minimum positive slope of 1/8" per foot to ensure proper drainage.

• Recovery insulation board to accept new roof system & provide a stop gap against thermal bridging from insulation fasteners.

• Multiply modified built-up roof system with gravel surfacing. Provides a "severe hail" rating.

• Pre-finished sheet metal copings & counterflashing at all perimeters and projections to protect against damage and UV degradation.

HS-BE-1, 2, and 3 Benefits

• Extend life of building

• Reduce energy costs

• Reduce leaks

• Reduce operating and maintenance expenses

BUILDING ENVELOPE IMPROVEMENTS

Install through-Wall Flashing and Rope Weeps at Steel Lintels of the Original Building. Repair of Brick Cladding Including Tuckpointing and Replacement of Damaged Brick

Chisago Lakes High School is constructed with a brick veneer, precast concrete panel, and metal panel façade. The building has aluminum framed windows.

Cracked mortar joints between the brick units were typically observed around the steel lintels, building corners, and windows.

Through-wall flashing was present at some, but not all, windows and doors. Weep ropes were deteriorated in many of the areas where flashing was present.

A few locations of cracked, spalled, or broken bricks were noted. Efflorescence is present at many locations.

Some maintenance work is needed to improve the water penetration resistance of the brick, and new through-wall flashing may be needed in some areas to prevent water entry into the structure and prevent deterioration of steel lintels and other wall components.

High priority repairs include installing through-wall flashing and rope weeps at steel lintels of the original building. General maintenance of brick cladding, including tuckpointing and replacement of damaged brick, is currently needed. The above repairs should be conducted in the next 0-3 years.

Brick Cladding Cracking

BUILDING ENVELOPE IMPROVEMENTS

HS-BE-4 Install through-Wall Flashing and Rope Weeps at Steel Lintels of the Original Building. Repair of Brick Cladding Including Tuckpointing and Replacement of Damaged Brick

• Install through-wall flashing and rope weeps (600 LF)

• Tuckpoint and replacement of brick (2500 SF)

• Repair damaged brick (400 bricks)

HS-BE-4 Benefits

• Extend life of building

• Reduce leaks

• Reduce operating and maintenance expenses

BUILDING ENVELOPE IMPROVEMENTS

Precast Panels Showing Signs of Deterioration, Cracks, and/or Delamination Should be Repaired using Concrete Patch Materials. A Clear Water Repellent Should be Applied to all of the Exposed Precast Panels to Reduce Future Moisture Absorption.

Precast panels around the 1998 addition are showing signs of taking on moisture which is visible at the window opening locations as well as at areas in the west section of the addition. Rust staining exiting at cracks and efflorescence are prevalent at many locations at the west addition.

Deteriorated, cracked, and/or delaminated precast should be repaired using concrete patch materials. Apply a clear water repellent to the exposed precast panels to reduce future moisture absorption. Precast panels repairs should be conducted in the next 0-3 years.

BUILDING ENVELOPE IMPROVEMENTS

HS-BE-5 Precast Panels Showing Signs of Deterioration, Cracks, and/or Delamination Should be Repaired using Concrete Patch Materials. A Clear Water Repellent Should be Applied to all of the Exposed Precast Panels to Reduce Future Moisture Absorption.

• Removal of old roof systems & wet insulation / deteriorated wood blocking.

• Polyisocyanurate insulation layers. R-30 with a minimum positive slope of 1/8" per foot to ensure proper drainage.

• Recovery insulation board to accept new roof system & provide a stop gap against thermal bridging from insulation fasteners.

• Multiply modified built-up roof system with gravel surfacing. Provides a "severe hail" rating.

• Pre-finished sheet metal copings & counterflashings at all perimeters and projections to protect against damage and UV degradation.

HS-BE-5 Benefits

• Reduces staining

• Prevents damage to structure

• Reduces water absorption

BUILDING ENVELOPE IMPROVEMENTS

Clean Exposed Steel Lintels and Paint to Minimize Corrosion. Spray the Exterior at Downspouts to Remove Staining. Replace six (6) Exterior Doors and One (1) Garage Door at Loading Dock. Repair the Metal Panel that is Bowing on the PAC Addition.

Lintels above window openings are corroding and forming pack rust, which applies stress on the brick veneer and causes misalignment of the brick units. This condition warrants repair to prevent further damage to embedded steel and brick cladding, and to prevent water entry into and through the exterior walls. Paint peeling from the bottom exposed lintel is likely due to rust formation. The exposed steel should be cleaned and painted to minimize future corrosion/deterioration.

Water staining is present at downspout nozzles. Localized brick staining is occurring at water runoff locations. The cast stone does not have a large enough extension to prevent runoff from the sills to cascade down the brick wall. Clean surface of bricks at downspouts by means of power washing.

The hollow metal swing doors are corroded at the bottom of the door frames. The doors and center mullion are showing signs of wear.

We recommend replacing the indicated exterior doors, including the hardware and locks.

BUILDING ENVELOPE IMPROVEMENTS

HS-BE-6 Clean exposed steel lintels and paint to minimize corrosion. Spray the exterior at downspouts to remove staining. Replace six (6) exterior doors and one (1) garage door at loading dock. Repair the metal panel that is bowing on the PAC Addition.

• Install through-wall flashing

• Clean and paint steel lintels

• Sealant replacement at doors, windows, and control joints

HS-BE-6 Benefits

• Extend life of building

• Reduce leaks

• Reduce operating and maintenance expenses

BUILDING ENVELOPE IMPROVEMENTS

Replace the leaking windows and doors on the 1998 addition that includes the science wing and media center. This includes replacing 22 windows, and vestibules 50 and 33. This includes new flashing membranes around the entire perimeter of window opening and new window with sill receptors.

The windows located within the 1998 additions to the building are all store front window systems built with an aluminum frame and double pane glass. Entry vestibules #50 and #33 are part of this system and have significant water leakage. These systems appear to be the original installation, and no major work appears to have been done to these windows over the years.

Investigation of the windows shows multiple issues occurring with the current system is performing. Noted issues are water intrusion and gasket shrinkage. Further investigation noted that the windows were missing a sill receiver which is meant to take on water for the system and expel the water to the exterior.

The existing windows appear to have met the end of their useful life, and it is recommended to replace the windows in the next 0 to 3 years.

BUILDING ENVELOPE IMPROVEMENTS

HS-BE-7 Replace the leaking windows and doors on the 1998 addition that includes the science wing and media center. This includes replacing 22 windows, and vestibules 50 and 33. This includes new flashing membranes around the entire perimeter of window opening and new window with sill receptors.

• Demo 22 windows out of existing openings.

• Demo vestibules 33 and 50

• Clean all sealant from substrates.

• Install spray foam in all cavities where windows span from structural wall element to precastpanels.

• Install flashing membrane around entire perimeter of rough opening.

• Install new windows with sill receptor. Spray foam and sealant to be installed between window frame andsubstrate.

HS-BE-7 Benefits

• Eliminate water intrusion.

• Extend the life of the building

• Improve indoor environment

BUILDING ENVELOPE IMPROVEMENTS

Replace Sealant at Doors, Windows, and Control Joints

Sealant appeared generally in poor condition at window openings in brick masonry and precast cladding. Weathering, splitting, debonding, and cracking of sealant was observed throughout the façade. At previously repaired areas, new sealant at window frame edges and corners was smeared over old sealant and is failing. Debonding of sealantat window and door heads was noted at numerous locations. Sealant is missing or has fallen out at some utility penetrations in the facade

Exterior sealants deteriorate as a result of exposure to UV light, moisture, and temperature cycles. Sealants typically have a lifespan of 8-12 years depending on material, material quality, and application/configuration. Based on observed conditions, it appears that the sealants on the building have reached or exceeded their useful life.

Sealants are an important component of the exterior building envelope and in many cases are the first line of defense in preventing water entry into and through exterior walls. Deteriorated sealants greatly increase the potential for water entry.

Replace all window and door perimeter, control joint, and penetration sealant at the building façade, as well as any miscellaneous sealants present. These repairs should be completed in the next 0-3 years.

BUILDING ENVELOPE IMPROVEMENTS

HS-BE-8 Replace Sealant at Doors, Windows, and Control Joints

• Replace sealant (approximately 16,000 LF)

HS-BE-8 Benefits

• Extend life of building

• Reduces water infiltration

• Reduce operating and maintenance expenses

CONTROLS SYSTEM IMPROVEMENTS

Upgrade Building Controls and Convert Remaining Pneumatic to Direct Digital Controls (DDC)

The Chisago Lakes High School controls system is a combination of pneumatic controls and direct digital controls (DDC). Pneumatic control systems are less energy efficient and more difficult to maintain than modern DDC Systems. The controls system could use the following upgrades to bring the buildings controls system to the same standard as the rest of the District.

- Existing field mounted panels and wiring/conduit to remain

- Replacement of field devices

o Temperature sensors

o Static pressure transducers

o Humidity sensors

o Differential pressure transducers

- Safeties and limits to remain unless faulty in the field during checkout

- Discretionary replacement of valve assemblies and damper actuators

o All pneumatics to be removed and replaced

o Electronic damper actuators and valve assemblies are brand and age dependent

 All JCI damper actuators replaced with Belimo

 If Belimo actuators are current, they will remain and be reused

- If there are existing pneumatically operating fire/smoke damper actuators, they will remain and stay in operation

Benefits of the DDC controls upgrade include improved occupant temperature control, reduced energy consumption, reduced maintenance, improved equipment scheduling and troubleshooting, alarm monitoring, operational tracking and trending of mechanical equipment parameters.

CONTROLS SYSTEM IMPROVEMENTS

HS-MP-1 Upgrade Building Controls and Convert Remaining Pneumatic to Direct Digital Controls (DDC)

• Replace all the pneumatic components with DDC on HVAC equipment that is being re-used as well as the new equipment

• Replace the existing failing DDC controls with the new building automation system platform with remote access

• Provide DDC controllers and control panels

• Provide all programming required for this conversion

HS-MP-1 Benefits

• Easy to use, modernized system control updates

• Improved building monitoring and maintenance troubleshooting

• Improved occupant comfort

• Extended heating system life

• Reduced energy consumption

• Reduced maintenance

HEATING SYSTEM IMPROVEMENTS

Heating Improvements, Including Replacing 10 Unit Heaters in Tech Ed, Pool, Locker Rooms, etc., Add Individual Room Controls for Student Services

Nexus recommends the following upgrades:

- There are about ten (10) 1976/1986 suspended unit heaters located in the tech ed, pool, and locker room areas at the High School. Nexus recommends replacing these old heaters with new hot water suspended unit heaters that are more efficient. These spaces would be calculated to determine the heat loss of the space so the unit heater can be appropriately sized.

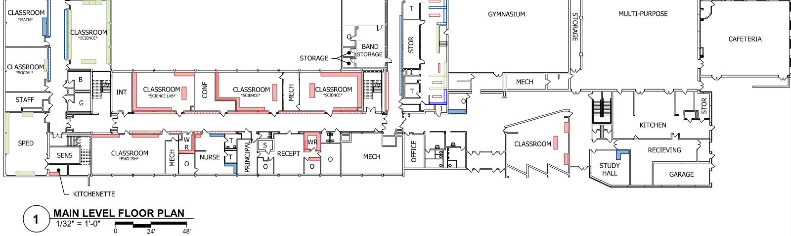
- Add individual control for the existing finned tube radiation (FTR) located in the exterior student services rooms as shown in the picture to the right. New thermostats and control valves would be installed so the temperature in these spaces can be controlled individually.

Replace Grooved Heating Piping Gaskets and Leaking Valves (Estimated 100)

- There are a number of grooved heating piping gaskets throughout the building that have failed and are leaking. Nexus recommends removing these gaskets and directly welding the pipes together as required by the district. Nexus has budgeted/estimated 100 of these gaskets to be welded.

Add New Hot Water Heating to Perimeter Rooms Including Band, Math Wing, and East Classrooms

- The band, math, and east classroom areas of the High School have no perimeter radiation as shown in the floor plan below. Nexus recommends adding new hot water radiant ceiling panels to these spaces to provide additional heating capacity for the cold seasons. New hot water piping would be extended to the new radiant ceiling panels from the nearest hot water mains. All associated valves and controls would be provided and installed as required.

Benefits of these heating system improvements include reduced maintenance, increased heating system life, and improved system operation.

HEATING SYSTEM IMPROVEMENTS

HS-MP-2, 3, 4 Miscellaneous Heating System Improvements

• Remove 1976/1986 suspended unit heaters located in the tech ed, pool, and locker room areas at the High School

• Install new hot water suspended unit heaters and associated piping

• Install new thermostats and control valves for FTR located in student services for individual room control

• Demo grooved heating piping gaskets and weld pipes together as required by the School District

• Install new radiant ceiling panels in band, math, and East classroom areas of the High School

• Provide DDC controls, sequencing, and programming

• Provide all associated general construction and electrical work as required

HS-MP-2, 3, 4 Benefits

• Upgraded heating system

• Improved temperature control

• Improved occupant comfort

• Reduced maintenance

• Improved learning/work environment

VENTILATION SYSTEM IMPROVEMENTS

Replace 1998 Roof Top Unit (RTU) Serving Fitness Room and Fan Coil Unit (FCU) Serving Tech/Staff Rooms, Remove Health Room RTU and Remove FCU-2, Outside and Relief Air Hoods. Add Ventilation from Adjacent AHUs to Cover Spaces from Removed Units.

There are several rooftop and fan-coil air handling units serving the Chisago Lakes High School that are becoming maintenance problems for the District. These units are as listed below.

• 1998 AAON RTU-1 that serves the fitness center (Wildcat Dance Studio). This rooftop air handling unit currently has R-22 DX cooling and gas heating. Nexus recommends replacing the rooftop air handling unit serving the fitness center (Wildcat Dance Studio) one for one with a new double wall rooftop air handling unit with hot water heating and DX dehumidification. The new rooftop air handling unit would come with code compliant filtration, hot water heating coils, DX dehumidification coils, access sections, and supply fans with variable speed drives (VSDs).

• 1998 Lennox RTU that serves the health room only. This rooftop air handling unit currently has R-22 DX cooling and no heating. Nexus recommends removing this unit entirely as it is no longer needed.

• 1998 FCU-1 and mated 2000 ACCU that serves two (2) spaces in the tech area. This fan coil air handling unit currently has R-22 DX cooling and hot water heating. Nexus recommends removing this fan coil unit and mated condensing unit entirely and extending new ductwork to ventilate these two (2) spaces from an adjacent air handling unit.

• 1998 FCU-2 that serves building storage room adjacent to the boiler room. This fan coil air handling unit currently has no cooling and hot water heating. This unit used to provide make-up air for a boiler that is no longer there. Nexus recommends removing this unit entirely as it is no longer needed and providing some ventilation air from adjacent air handling unit.

The benefits of this HVAC improvement include increased system life expectancy, improved DDC scheduling, improved ventilation, increased energy savings, improved occupant comfort, and an improved learning and working environment.

VENTILATION SYSTEM IMPROVEMENTS

HS-MP-5 Replace 1998 Roof Top Unit (RTU) Serving Fitness Room and Fan Coil Unit (FCU) Serving Tech/Staff Rooms, Remove Health Room RTU and Remove FCU-2, Outside and Relief Air Hoods. Add Ventilation from Adjacent AHUs to Cover Spaces from Removed Units.

• Remove existing rooftop and fan-coil air handling units, piping, and controls

• Provide new double wall rooftop air handling unit with hot water heating and DX dehumidification for fitness center

• Extend new ductwork from adjacent air handling unit to serve the two (2) spaces in tech ed

• Extend new ductwork from adjacent air handling unit to serve the building storage room

• Provide variable speed drives for the supply and relief fans

• Provide all roofing and sealing work as required

• Provide DDC controls, sequencing, and programming

• Provide all associated general construction and electrical work as required

HS-MP-5 Benefits

• Upgraded HVAC infrastructure

• Increased ventilation for improved indoor air quality

• Improved temperature control

• Improved occupant comfort

• Reduced maintenance

• Improved learning/work environment

VENTILATION SYSTEM IMPROVEMENTS

Replace 1998 Energy Recovery RTUs (Qty 4)

There are four (4) 1998 rooftop energy recovery air handling units serving the Chisago Lakes High School that are still in good shape but should be considered for replacement in ten (10) years. These units provide outside air to downstream air handing units. These units are as listed below.

- ERU-1 provides outside air to units AHU-S1, AHU-S2, and AHU-S3.

- ERU-2 provides outside air to units AHU-7, AHU-8, AHU-9, and AHU-10.

- ERU-3 provides outside air to units AHU-15, AHU-16, AHU17, and AHU-18.

- ERU-4 provides outside air to units AHU-S5 and AHU-S8.

Nexus recommends replacing these rooftop air handling units in ten (10) years one for one with a new double wall rooftop air handling units with energy recovery. The new rooftop air handling units would come with code compliant filtration, access sections, and supply fans with variable speed drives (VSDs).

The benefits of this HVAC improvement include increased system life expectancy, improved DDC scheduling, improved ventilation, increased energy savings, improved occupant comfort, and an improved learning and working environment.

VENTILATION SYSTEM IMPROVEMENTS

HS-MP-6 Replace 1998 Energy Recovery RTUs (Qty 4)

• Remove existing rooftop energy recovery air handling and controls

• Provide new double wall rooftop energy recovery air handling units

• Provide variable speed drives for the supply and relief fans

• Provide all roofing and sealing work as required

• Provide DDC controls, sequencing, and programming

• Provide all associated general construction and electrical work as required

HS-MP-6 Benefits

• Upgraded HVAC infrastructure

• Increased ventilation for improved indoor air quality

• Improved temperature control

• Improved occupant comfort

• Reduced maintenance

• Improved learning/work environment

VENTILATION SYSTEM IMPROVEMENTS

Replace 1986 Air Handling Units (AHU) Serving the Boys Locker Room (AHU-11) and the Choir/Band Rooms (AHU-12); and Two Make Up Air Units Serving the Paint Booths. Replace Dust Collector. Add Dehumidification (Cooling) to Boys Locker Room and Choir/Band Room.

There are several air handling units (AHUs) serving the High School that are becoming maintenance problems for the District. Some of the air handling units also have no means of dehumidification.

The lack of dehumidification results in higher humidity levels and occupant discomfort. The areas are also unable to meet the American Society of Heating and Refrigeration Engineer’s (ASHRAE) Thermal Environmental Conditions for Human Occupancy Standard 55. This ASHRAE design standard specifies the combinations of personal and indoor thermal environmental requirements necessary to achieve an occupant comfort satisfaction rate of 80% or greater. These indoor environmental requirements include temperature, thermal radiation, humidity, and air speed.

These air handlings units are listed below.

• 1986 AHU-11 that serves the boys locker rooms. This air handling unit currently has hot water heating and no dehumidification. Nexus recommends replacing AHU-11 one for one and adding dehumidification.

• 1986 AHU-12 and mated 2004 ACCU that serves choir, band, and classrooms. This air handling unit currently has no heating and R22 DX dehumidification. Nexus recommends replacing AHU-12 one for one.

• 1986 AHU-4 and AHU-5 that serve the paint booth to provide make-up air. These air handling units currently have hot water heating and no dehumidification. Nexus recommends replacing AHU-4 and AHU-5 with a single new make-up air handling unit.

The existing wood dust collector at the High School is 1976 vintage. This antiquated unit does not adequately remove dust from the woodworking spaces due to age-related wear and tear and component failure. This compromises air quality when the woodworking spaces are in use.

Nexus recommends replacement of this dust collector unit with a new modern International Mechanical Code (IMC) compliant system. New dust collection ductwork would be installed where required and routed to each piece of equipment requiring dust collection if existing ducts cannot be re-used.

This upgrade will ensure adequate dust collection in the woodworking spaces, increasing indoor air quality and providing reliable unit operation.

Replace Thirteen AHUs Serving the 1976 Addition that Includes the North Wrestling Room, Three Locker Rooms, Gym, Classrooms, Lecture Hall, Wood Shop, Art and Ag Classrooms, Tech, and Student Services. Add Dehumidification to these Thirteen AHUs. There are multiple air handling units (AHUs) serving the High School that are becoming maintenance problems for the District. Some of the air handling units also have no means of dehumidification.

The lack of dehumidification results in higher humidity levels and occupant discomfort. The areas are also unable to meet the American Society of Heating and Refrigeration Engineer’s (ASHRAE) Thermal Environmental Conditions for Human Occupancy Standard 55. This ASHRAE design standard specifies the combinations of personal and indoor thermal environmental requirements necessary to achieve an occupant comfort satisfaction rate of 80% or greater. These indoor environmental requirements include temperature, thermal radiation, humidity, and air speed.

• 1976 AHU-1 that serves the North part of the wrestling room. This air handling unit currently has hot water heating and no dehumidification. Nexus recommends replacing AHU-1 one for one and adding DX dehumidification.

• 1976 AHU-2 that serves the North part of the girl’s locker room. This air handling unit currently has hot water heating and no dehumidification. Nexus recommends replacing AHU-2 one for one and adding DX dehumidification.

• 1976 AHU-4 that serves the South part of the girl’s locker room. This air handling unit currently has hot water heating and no dehumidification. Nexus recommends replacing AHU-4 one for one and adding DX dehumidification.

• 1976 AHU-5 that serves the 1974 Gym. This air handling unit currently has hot water heating and no dehumidification. Nexus recommends replacing AHU-4 one for one and adding DX dehumidification.

• 1976 AHU-7 and mated 2002 ACCU that serves classrooms. This air handling unit currently has hot water heating and R22 DX dehumidification. Nexus recommends replacing AHU-7 one for one.

• 1976 AHU-8 and mated 2002 ACCU that serves classrooms. This air handling unit currently has hot water heating and R22 DX dehumidification. Nexus recommends replacing AHU-8 one for one.

• 1976 AHU-9 and mated 2002 ACCU that serves classrooms. This air handling unit currently has hot water heating and R22 DX dehumidification. Nexus recommends replacing AHU-9 one for one.

• 1976 AHU-10 and mated 2002 ACCU that serves classrooms. This air handling unit currently has hot water heating and R22 DX dehumidification. Nexus recommends replacing AHU-10 one for one.

• 1976 AHU-15 and mated 2002 ACCU that serves student services. This air handling unit currently has no heating and R22 DX dehumidification. Nexus recommends replacing AHU-15 one for one and adding hot water heating.

• 1976 AHU-16 that serves the locker commons. This air handling unit currently has hot water heating and no dehumidification. Nexus recommends replacing AHU-16 one for one and adding DX dehumidification.

• 1976 AHU-17 and mated 2002 ACCU that serves the tech ed spaces. This air handling unit currently has hot water heating and R22 DX dehumidification. Nexus recommends replacing AHU-17 one for one.

• 1976 AHU-18 and mated 2002 ACCU that serves student services. This air handling unit currently has no heating and R22 DX dehumidification. Nexus recommends replacing AHU-18 one for one and adding hot water heating.

• 1976 AHU-19 that serves the wood shop. This air handling unit currently has hot water heating and no dehumidification. Nexus recommends replacing AHU-19 one for one and adding DX dehumidification.

The new air handling units would come with code compliant filtration, heating water coils, DX dehumidification coils, access sections, and supply fans with variable speed drives (VSDs).

The benefits of this HVAC improvement include increased system life expectancy, improved DDC scheduling, improved ventilation, increased energy savings, improved occupant comfort, and an improved learning and working environment.

VENTILATION SYSTEM IMPROVEMENTS

HS-MP-7.1, 7.2, 8.1, 8.2 Air Handling Unit and Air-Cooled Condensing Unit Replacements and DX Dehumidification Addition

• Remove existing air handling units, air-cooled condensing units, piping, and controls

• Provide new double wall indoor air handling units with hot water heating and DX dehumidification

• Provide new mated air-cooled condensing units and associated refrigerant piping

• Provide variable speed drives for the supply and relief fans

• Provide all roofing and sealing work as required

• Provide DDC controls, sequencing, and programming

• Provide all associated general construction and electrical work as required

HS-MP-7.1, 7.2 ,8.1, 8.2 Benefits

• Upgraded HVAC infrastructure

• Increased ventilation for improved indoor air quality

• Improved temperature control

• Improved occupant comfort

• Reduced maintenance

• Improved learning/work environment

COOLING SYSTEM IMPROVEMENTS

Replace (8) R-22 Air-Cooled Condensing Units and Associated Coils in Units Serving the Gym, Pool, Wrestling, Foyer, Stage, and Cafeteria

The are currently eight (8) air-cooled condensing units at the High School that are starting to corrode and deteriorate. These 20-year-old plus condensing units are still utilizing R-22 refrigerant which has become obsolete and far less efficient than today’s systems. These units are listed below.

• 1998 ACCU-5. This is a 32-ton condensing unit that is mated with air handling unit AHU-S5 that serves the foyer.

• 1998 ACCU-6. This is a 20-ton condensing unit that is mated with air handling unit AHU-S6 that serves the stage.

• 1998 ACCU-7. This is a 60-ton condensing unit that is mated with air handling unit AHU-S8 that serves cafeteria.

• 2002 ACCU-S1. This is a 40-ton condensing unit that is mated with air handling unit AHU-S1 that serves the science classrooms.

• 2002 ACCU-S2. This is a 50-ton condensing unit that is mated with air handling unit AHU-S2 that serves the media center and classrooms.

• 2003 ACCU-3. This is a 40-ton condensing unit that is mated with air handling unit AHU-3 that serves the South part of the wrestling room.

• 2005 ACCU-2. This is a 100-ton condensing unit that is mated with air handling unit AHU-S7 that serves the 1998 gym.

• 2005 ACCU that serves the pool air handling unit. This is a 55-ton condensing unit. The pool air handling unit also has six (6) supply fan motors located in the unit. Three (3) of these fan motors were replaced in 2022 and the remaining three (3) are original to the unit. The original motors have started to fail and should be replaced. Nexus recommends the replacement of the three (3) original fan motors in addition to the aircooled condensing upgrades noted below.

Nexus recommends replacing all eight (8) of these old inefficient aircooled condensing units and their mated DX cooling coils with new aircooled condensing units and associated DX cooling coils with American Society of Heating and Refrigeration Engineer’s (ASHRAE) code compliant refrigerant that is more energy efficient and environmentally friendly. New refrigerant piping would be installed as required for the new refrigerant.

Benefits of this cooling system upgrade include increased energy savings, reduced maintenance, improved system operation, and reduced environmental impact.

COOLING SYSTEM IMPROVEMENTS

HS-MP-9A Replace Eight (8) R-22 Condensing Units and Associated Coils in Units Serving the Gym, Pool, Wrestling, Foyer, Stage, and Cafeteria

• Provide new DX cooling coils with code compliant refrigerant

• Provide new air-cooled condensing units

• Provide new refrigerant piping to air handling units as required for new refrigerant

• Provide all roofing and sealing work as required

• Provide DDC controls, sequencing, and programming

• Provide all associated general construction and electrical work as required

HS-MP-9A Benefits

• Upgraded HVAC infrastructure

• Improved temperature control

• Improved occupant comfort

• Reduced maintenance

• Improved learning/work environment

COOLING SYSTEM IMPROVEMENTS

Replace the R-22 Cooling Systems with a New Chilled Water Plant that Serves the Entire High School

As a secondary cooling option in lieu of the DX additions noted above, Nexus recommends the addition of an air-cooled chiller to serve the High School.

This chiller would be sized to serve all the rooftop and indoor air handling units in the building with some capacity for any future addition of cooling. All existing DX air handing units would be converted to chilled water except for the 2018 RTU-1 and MAU-1 that serves manufacturing/Ag, the 2018 Carrier ACCU-4 that serves the auditorium, the 2019 AHU-4 and ACCU-4 that serves the tech area, and the 2021 Trane ACCU that serves the media center/classrooms. New chilled water piping mains would be installed throughout the building as required and would be sized for the potential future addition of cooling.

The benefits of this HVAC improvement include increased system life expectancy, improved DDC scheduling, improved ventilation, improved occupant comfort, and an improved learning and working environment.

COOLING SYSTEM IMPROVEMENTS

HS-MP-9B Replace the R-22 Cooling Systems with a New Chilled Water Plant that Serves the Entire High School

• Install new air-cooled chiller, pumps, and chilled water main distribution piping

• Install new chilled water-cooling coils for each air handling unit

• Install new chilled water piping to air handling units as required for cooling addition

• Provide propylene glycol, glycol fill station, and side-stream filter for the new chilled water system

• Provide all roofing and sealing work as required

• Provide DDC controls, sequencing, and programming

• Provide all associated general construction and electrical work as required

HS-MP-9B Benefits

• Upgraded cooling infrastructure

• Improved temperature control

• Improved occupant comfort

• Reduced maintenance

• Improved learning/work environment

VENTILATION SYSTEM IMPROVEMENTS

Replace Eight (8) Air Handling Units Serving the 1998 Additions and One (1) 2003 Serving the Girl’s Locker Room

There are eight (8) 1998 air handling units and one (1) 2003 AHU serving the Chisago Lakes High School that are still in good shape but should be considered for replacement in ten (10) years. These units are as listed below.

• 1998 AHU-1 that serves the science classrooms. This air handling unit currently has hot water heating and DX dehumidification.

• 1998 AHU-2 that serves the locker commons. This air handling unit currently has hot water heating and DX dehumidification.

• 1998 AHU-3 that serves the media center and classrooms. This air handling unit currently has hot water heating and DX dehumidification.

• 1998 AHU-4 that serves the auditorium. This air handling unit currently has hot water heating and DX dehumidification.

• 1998 AHU-5 that serves the foyer. This air handling unit currently has hot water heating and DX dehumidification.

• 1998 AHU-6 that serves the stage. This air handling unit currently has hot water heating and DX dehumidification.

• 1998 AHU-7 that serves competitive gym. This air handling unit currently has hot water heating and DX dehumidification.

• 1998 AHU-8 that serves the cafeteria. This air handling unit currently has hot water heating and DX dehumidification.

• 2003 AHU-3 that serves the South wrestling room. This air handling unit currently has hot water heating and R22 DX dehumidification.

The new air handling units would come with code compliant filtration, heating water coils, DX dehumidification coils, access sections, and supply fans with variable speed drives (VSDs).

The benefits of this HVAC improvement include increased system life expectancy, improved DDC scheduling, improved ventilation, increased energy savings, improved occupant comfort, and an improved learning and working environment.

VENTILATION SYSTEM IMPROVEMENTS

HS-MP-10 Replace Eight (8) Air Handling Units Serving the 1998 Additions and One (1) 2003 Serving the Girl’s Locker Room

• Remove existing air handling units, piping, and controls

• Provide new double wall indoor air handling units with hot water heating and DX dehumidification

• Provide variable speed drives for the supply and relief fans

• Provide all roofing and sealing work as required

• Provide DDC controls, sequencing, and programming

• Provide all associated general construction and electrical work as required

HS-MP-10 Benefits

• Upgraded HVAC infrastructure

• Increased ventilation for improved indoor air quality

• Improved temperature control

• Improved occupant comfort

• Reduced maintenance

• Improved learning/work environment

EXHAUST/VENTILATION SYSTEM IMPROVEMENTS

Add Overhead Exhaust Range Hoods to FACS and Ag Classrooms, Replace Exhaust Fans (Qty 50), Add Exhaust to Art Room and Laser Engraver, Add Thermal Equalizers to 1998 Gym

There are over 100 total inline and rooftop exhaust fans at the High School. Many of these exhaust fans have exceeded their recommended service life and are in need of replacement.

Nexus recommends replacing some of these fans when major work is taking place so the best pricing can be obtained from the contractors. Nexus has budgeted for the replacement of fifty (50) existing exhaust fans for the school. Nexus will work along with the District on the priority of which ones want to be replaced.

Fans will be a direct replacement to the original size/capacity but will have premium efficiency motors installed to increase energy savings. The fan size/capacity may be reduced if engineering can justify where over ventilation is occurring.

The benefits of this HVAC improvement will result in increased energy savings, improved flow and reduced maintenance for exhaust fans, and reduced leaks from seals.

- The existing range ovens in the FACS (Qty 6) and Ag (Qty 2) classrooms have no exhaust hoods. There are currently exhaust grilles located in the ceiling above which are inadequate and don’t meet code. Nexus recommends adding new overhead exhaust range hoods in FACS and Ag classrooms. The hoods would be ducted directly out to a new exhaust fan on the roof.

- The Art 2 room as shown in the picture below currently has no space exhaust which is not code compliant. ASHRAE 62.1 Ventilation and Acceptable Indoor Air Quality requires art classrooms to be exhausted at a rate of 0.7 CFM per square foot. Nexus recommends adding a new exhaust system for the art classroom consisting of new grilles, ductwork, and rooftop exhaust fan.

- The laser engraver located in the tech classroom currently has no exhaust system. The District has already received a quote to add new exhaust ductwork and exhaust fan for the laser engraver. Nexus recommends the addition of a new exhaust system for the laser engraver.

These exhaust upgrades will increase indoor air quality, improve occupant comfort, and reduce maintenance.

The existing 1998 gym currently suffers from temperature stratification due to the height of this space. Warmer air migrates to the ceiling making it difficult to achieve proper temperature control, especially in winter.

Nexus recommends the installation of thermal equalizer destratification fans in the 1998 gym (Qty 6) to ensure proper ventilation.

Benefits of these improvements include energy savings, improved temperature control and occupant comfort.

EXHAUST/VENTILATION SYSTEM IMPROVEMENTS

HS-MP-11 Add Overhead Exhaust Range Hoods to FACS and Ag Classrooms, Replace Exhaust Fans (Qty 50), Add Exhaust to Art Room and Laser Engraver, Add Thermal Equalizers to 1998 Gym

• Replace exhaust fans with new exhaust fans with associated ductwork

• Add new overhead exhaust hoods, associated ductwork, and exhaust fan in FACS and Ag classrooms

• Add new ceiling exhaust grilles, associated ductwork, and exhaust fan in Art 2

• Add new exhaust system for the tech ed laser engraver as per quote received from district

• Provide all roofing and sealing work as required

• Install thermal equalizers in 1998 gym

• Wire thermal equalizers to wall switch/controls

• Provide DDC controls, sequencing, and programming

• Provide all associated general construction and electrical work as required

HS-MP-11 Benefits

• Upgraded exhaust system infrastructure

• Improved temperature control

• Improved occupant comfort

• Reduced maintenance

• Improved work environment

PLUMBING SYSTEM IMPROVEMENTS

Plumbing Upgrades Including Replacing Non-ADA Was Stations, Electric Water Coolers, and Drinking Fountains. Replace Science Room Faucets, Column Showers, Urinal and Flush Valves, and Sump Pumps

There are many plumbing devices that are starting to increase in maintenance/non-ADA compliant and should be replaced. See below for this equipment.

• Non-ADA Wash Fountain (Qty 3)

• Electric Water Coolers (Qty 16)

• Drinking Fountains (Qty 5)

• Science Room Faucets (Qty 90)

• Column Showers (Qty 8 Columns, Qty 40 Heads)

• Timer Flush Urinal Replacements in Toilet Rooms (Qty 11)

• Sump Pumps (Qty 2)

• Leaking Roof Drains (Qty 3)

Nexus recommends replacing these existing plumbing fixtures one for one with new ADA compliant fixtures. Plumbing piping would be modified as required for the new fixtures.

Replacing these plumbing fixtures would provide reduced water consumption, reduced maintenance, and extended life expectancy of the plumbing system.

PLUMBING SYSTEM IMPROVEMENTS

HS-MP-12,13 Plumbing Upgrades Including Replacing Non-ADA Wash Stations, Electric Water Coolers, and Drinking Fountains. Replace Science Room Faucets, Column Showers, Urinal and Flush Valves, Sump Pumps and Leaky Roof Drains

• Demo existing wash stations, electric water coolers, drinking fountains, sump pumps, column showers, urinals, and leaky roof drains

• Provide and install new ADA compliant fixtures one for one

• Modify existing plumbing piping as required for new fixtures

• Provide associated general and electrical construction work as required

HS-MP-12,13 Benefits

• Improved occupant comfort

• Improved plumbing fixture operation

• Increased equipment life

• Reduced maintenance

PLUMBING SYSTEM IMPROVEMENTS

Replace Sanitary Lines Under Boiler Room

The sanitary lines and drains in the boiler room are corroded and deteriorating. These sanitary lines are original to the building and should be replaced.

Nexus recommends sawcutting the existing sanitary lines out and demolishing them. New sanitary piping and floor drains would then be installed.

Replacing these sanitary lines would reduce maintenance and extend the life expectancy of the sanitary system.

PLUMBING SYSTEM IMPROVEMENTS

HS-MP-14 Replace Sanitary Lines Under Boiler Room

• Saw cut and remove existing sanitary lines as required

• Install new sanitary piping and floor drains

• Provide associated general construction work as required

HS-MP-14 Benefits

• Improved sanitary system

• Increased equipment life

• Reduced maintenance

FIRE PROTECTION SYSTEM IMPROVEMENTS

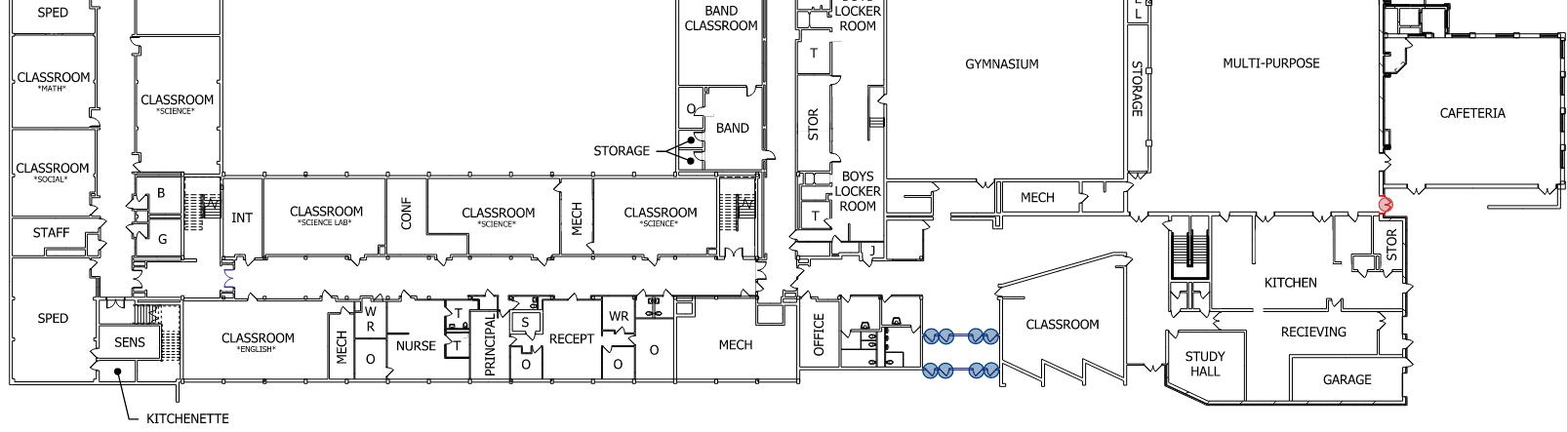
Extend Fire Protection Sprinkler System with New Water Service to Non-sprinkled areas

The existing Chisago Lakes High School has fire protection in all areas of the building except the areas as highlighted in yellow in the floor plan to the right. Therefore, these areas are not protected from property loss or life safety in the event of a fire. Installing fire protection sprinklers in buildings significantly enhances safety by automatically discharging water to suppress fires upon heat detection. According to the National Fire Protection Association (NFPA), buildings equipped with sprinklers see a lower rate of fire-related injuries and property damage compared to those without, highlighting their effectiveness.

Moreover, retrofitting buildings with these systems ensures compliance with modern safety standards and can lead to lower insurance premiums due to reduced risks of fire damage. Fire sprinkler systems also require minimal maintenance, ensuring durability and consistent performance over time, making them a reliable choice for enhancing safety.

Nexus proposes installing a fire protection sprinkler system for all the highlighted areas of the Chisago Lakes High School. Installation is a proactive measure to protect students, staff, and property.

CONDITIONS

FIRE PROTECTION SYSTEM IMPROVEMENTS

HS-MP-15 Extend Fire Protection Sprinkler System with New water Service to non-sprinkled areas

• Install new wet-pipe fire protection system to fully protect the entire building

• Provide all required general construction work

HS-MP-15 Benefits

• Reduced damage during a fire event

• Increased occupant safety

HVAC RETRO-COMMISSIONING

Retro-Commission HVAC Equipment

Building retro-commissioning is a systematic process that ensures all buildings perform as efficiently as possible according to the owner’s operational needs as well as adjustment of HVAC equipment’s operational parameters to meet current space use.

The Building Automation System (BAS) plays a crucial role in providing a comfortable, energyefficient environment for students, parents, and staff. Over time, damper and valve controls have gone out of proper adjustment, components fail, and controls sequences are modified and may not be programmed to provide an optimal balance between comfort, indoor air quality, and energy efficiency.

This Nexus Retro-commissioning Team will identify the root cause of HVAC equipment operational issues and will provide adjustments to the sequences and outdoor air setting to improve occupant comfort while reducing energy consumption where possible. The retrocommissioning process will also identify components that require adjustment or replacement.

Retro-commissioning activities include:

HVAC Equipment: Nexus will verify existing HVAC equipment operation and control sequences through observation. We will provide adjustment and tuning services to achieve optimal operation and improved occupant comfort. Documentation of the findings with corrections and recommendations for further improvements will be made.

Services include:

• Ventilation study to assure all spaces are ventilated per the current code requirements and the outdoor air setpoints will be adjusted up or down based on current space occupancy

• Test point commands vs actual controller output at each device for heating, cooling, and mixed air control

• Verify valve/damper operation on reheat coils and air handler coils

• Verify indicated vs actual (duct static, supply and return temperatures)

• Verify mixed-air operation (damper position and economizer operation)

Valves and Dampers: Nexus will test all existing rooftop (RTU) and indoor air handling unit (AHU) sequences along with the valve and damper operation to ensure control actuators are fully

operational. We observe valve/damper/actuator operation and check for any physical signs of valve/damper leakage or binding, which results in operational issues and increased energy consumption. We check discharge temperature with valves in the fully open and closed positions. In addition, we will provide unit pricing to replace any defective valves and/or actuators. Proper RTU and AHU operation provides improved occupant comfort at optimal energy efficiency.

Zone Reheat Valves: Nexus will test existing zone reheat valves for proper operation. We ensure command valves fully open and close and observe valve/actuator operation. We inspect valves for any physical signs of valve leakage or binding, check discharge temperature with valve in the fully open and closed positions and provide unit pricing to replace any defective valves and/or actuators.

Economizer: Nexus will update the control sequence for mixed-air dampers to their setpoints with economizer lockout setpoints.

Heating Water Pump Variable Speed Drives (VSDs): Nexus will lower the pressure setpoint to allow drives to modulate down to the slowest speed required to satisfy the most critical room temperature sensor.

Boilers: Nexus will optimize sequencing and staging of equipment and adjust the water reset schedules based on outside air temperature.

The action steps noted above are part of the Nexus retro-commissioning process. The benefits of this process include improved temperature control and occupant comfort, reduced energy consumption, reduced maintenance, and extended HVAC equipment life.

HVAC SYSTEM RETRO-COMMISSIONING

HS-MP-16 Retro-Commission HVAC Equipment

• Provide retro-commissioning of all existing HVAC systems

• Provide adjustments to existing sequences to improve HVAC system operation

• Verify operation of all dampers, actuators, valves, and terminal HVAC devices

HS-MP-16 Benefits

• Improved temperature control and occupant comfort

• Reduced energy consumption

• Reduced maintenance

• Extended HVAC equipment life

ELECTRICAL, TECHNOLOGY, AND SAFETY SYSTEMS

Electrical power distribution upgrades including switchgear, panels and backup generator for critical loads including boiler, boiler pumps, emergency lighting, coolers and freezers (450 kw)

Switchboard and panels

The switchboard and panels that are original to the 1974 building are now 50 years old and are at the end of their useful life. The original manufacturer of these panels no longer exists, and replacement circuit breakers are not available.

Panelboards that were installed for the 1986 and 1998 additions appear to be in good condition. However, there is electrical equipment in the pool chemical room (installed in 1986) that should be replaced due to rusted enclosures.

It is recommended that the 1974 electrical panels and switchboard be replaced. New panels will provide a safer electrical system since new equipment will be in compliance with current manufacturing standards for electrical equipment and will reduce maintenance costs.

Equipment in the pool pump room shows signs of corrosion due to the environment. Corroded controllers should be replaced.

Equipment recommended to be replaced includes one switchboard, one distribution panel, and 19 panelboards. In addition, it is recommended that three motor controllers in the pool chemical room be replaced.

Emergency/Standby Generator

There currently is no emergency or backup generator. It is desired to have a generator that will provide backup power for life safety equipment, IT equipment, coolers and freezers, and boilers and pumps associated with the heating system. A generator would prevent damage to the building in the event of a power loss and the building freezing. With the life safety and IT equipment on the generator, communications with building occupants can be maintained in the event of a power loss in an emergency situation.

Increase the size of the generator from 450kw to 1,750kw to cover full building load including cooling (cost represents the increased cost between the two generators)

Installing a generator with full building backup will allow the school to function, even when utility power is lost. Increasing the size of the generator from 450 kW to 1,750 kW will also allow the building to be cooled.

ELECTRICAL, TECHNOLOGY, AND SAFETY SYSTEMS

HS-ES-1.1 Electrical Power Distribution Upgrades Including Switchgear and Panels in the 1958 Building

• Replace original 1974 electrical panels

• Replace two Switchboards

• Replace 18 Panelboards

• Install new generator – 450 kW

• Install new automatic transfer switches, feeders, and electrical distribution

HS-ES-1.2 Increase the size of the generator from 450 kw to 1,750 kw to cover full building load including cooling (cost represents the increased cost between the two generators)

• Install new generator sized for entire building load including cooling – 1,750 kW

• Install new automatic transfer switches, feeders, and electrical distribution

HS-ES-1.1, 1.2 Benefits

• Protection of and Improved Reliability of Electrical Infrastructure

• Reduced energy consumption

• Reduced maintenance

• Extended HVAC equipment life

ELECTRICAL, TECHNOLOGY, AND SAFETY SYSTEMS

LED lighting upgrade. Retrofit kits for fixtures in good condition, replacement for unique or outdated fixtures.

Light Fixture Upgrades

The existing lighting in classrooms, gymnasiums, and common areas is primarily fluorescent lamps throughout. The fixtures appear to be in fair condition; however, LED lamp technology is more energy efficient.

Replacing the light fixtures with LED light fixtures will reduce energy use and maintenance costs. LED light fixtures have a life span of more than 50,000 hours and do not require lamp replacements, which reduces maintenance costs.

It is recommended that all light fixtures be replaced with new LED light fixtures.

Lighting Control Upgrades

With LED light fixtures, dimming becomes a more viable standard. Dimmable lighting allows the users of the space to adjust the light levels as needed to enhance learning for students. Implementing dimming and occupancy sensors not only improves the functionality of the space, it reduces energy use.

It is recommended that dimming and occupancy sensor lighting controls be implemented to enhance the functionality of the lighting and to reduce energy use.

ELECTRICAL, TECHNOLOGY, AND SAFETY SYSTEMS

HS-ES-2 LED Lighting Upgrade. Retrofit Kits for Fixtures in Good Condition, Replacement for Unique or Outdated Fixtures.

• Replace light fixtures throughout the building with LED light fixtures

• Controls to provide dimming capabilities

• Automatic shutoff of lighting

HS-ES-2 Benefits

• Reduce energy costs

• Reduce maintenance costs

• Enhance safety

ELECTRICAL, TECHNOLOGY, AND SAFETY SYSTEMS

Replace existing fire alarm system with a voice evacuation system

The existing fire alarm system is a Notifier system and is outdated. Current building codes require a voice evacuation fire alarm system in schools. The existing system is not capable of supporting a voice evacuation system. It is recommended that the entire fire alarm system be replaced throughout with a voice evacuation system to provide a code compliant system and better safety for staff and students.

ELECTRICAL, TECHNOLOGY, AND SAFETY SYSTEMS

HS-ES-3 Replace existing fire alarm system with a voice evacuation system

• Replace existing fire alarm panel and amp

• NAC panels

• Remote annunciators

• Smoke/heat and dust detectors

• Pull stations

• Monitor modules

• A/V Devices, speakers

HS-ES-3 Benefits

• Protection and improved reliability

• Improved safety

• Enhance security

ELECTRICAL, TECHNOLOGY, AND SAFETY SYSTEMS

Replace existing paging system and add audio enhancement to the remaining classrooms that is tied into the new paging system, replace common area speakers

The existing paging system is outdated and needs to be replaced. Newer systems have better intelligibility and easier to use, making them more functional. Continual issues with the existing system also have continual maintenance costs to keep it operational.

Audio Enhancement systems for classrooms implement speakers and microphones in classrooms that enhance the learning experience for students. These systems have become the standard for new classrooms. Audio enhancement systems for classrooms have become beneficial for teachers and students to enhance the audio in the room making it easier for students to listen and understand the teacher. There are audio enhancement systems in seven classrooms. Audio enhancement should be implemented in the remaining classrooms.

It is recommended that the paging system be replaced throughout the building and audio enhancement be implemented in classrooms. The paging and audio enhancement systems can utilize the same speakers for both functions to help manage costs of replacement and implementation.

CONDITIONS

ELECTRICAL, TECHNOLOGY, AND SAFETY SYSTEMS

HS-ES-4 Replace existing paging system and add audio enhancement to the remaining classrooms that is tied into the new paging system, replace common area speakers

• Replace Paging system

• Add audio enhancement to 51 classrooms

• Add 5 corridor paging zones

• Add 192 common area speakers

• Server

HS-ES-4 Benefits

• Better zone paging

• Improved scheduling of notification bells

• Improved safety

• Enhanced learning environment

ELECTRICAL, TECHNOLOGY, AND SAFETY SYSTEMS

Add 10 new security cameras to existing system, upgrade cable serving telephone system and install vape sensors to locker rooms and restrooms. There are several security system concerns that require attention. There is currently no visitor entry call system at the main entrance. Typically, there would be a pushbutton intercom with a camera that visitors activate to call the main office to be let into the building. This allows for a security checkpoint when visitors need to enter the building. Security cameras are approximately 5-6 years old. Although they still have 3-4 years left of their useful life, there are areas that need better camera coverage for better security.

Correcting these items will provide better security for staff and students.

Vape Sensors

With the increase in vaping among students, implementing vape sensors in restrooms and locker rooms helps to prevent vaping. It is recommended that vape sensors be installed in these problem areas.

ELECTRICAL, TECHNOLOGY, AND SAFETY SYSTEMS

HS-ES-5 Add 10 New Security Cameras to Existing System, Upgrade Cable Serving Telephone System and Install Vape Sensors to Locker Rooms and Restrooms

• Add 10 security cameras

• Add vape sensors to locker rooms and restrooms (qty 18)

• Upgrade cable serving telephone system

HS-ES-5 Benefits

• Protection and improved reliability

• Improved safety

• Enhance security

ELECTRICAL, TECHNOLOGY, AND SAFETY SYSTEMS

Install Additional Outlets in Classrooms

The older areas of the building were not designed for the current need for outlets. For example, the older ag classrooms have 4 outlets each. Other classrooms have 10. Students need the outlets to keep the computers charged for the day. Adding more outlets will eliminate the need for extension cords used throughout the rooms.

ELECTRICAL, TECHNOLOGY, AND SAFETY SYSTEMS

HS-ES-6 Install Additional Outlets in Classrooms

• Add additional outlets where needed to average 6 per room

HS-ES-6 Benefits

• Improved charging stations

• Improved safety

ELECTRICAL, TECHNOLOGY, AND SAFETY SYSTEMS

The Ward and main gym sound systems are more than 25 years old. Replace both sound systems.

The existing sound systems in both the Ward gym and the main gymnasium are approximately 25 years old. This equipment has passed its useful life. It is recommended that this system be replaced.

ELECTRICAL, TECHNOLOGY, AND SAFETY SYSTEMS

HS-ES-7 The Ward and main gym sound systems are more than 25 years old. Replace both sound systems.

• Replace speakers and headend (Qty 2)

HS-ES-7 Benefits

• Improved sound

• Improved functionality

ELECTRICAL, TECHNOLOGY AND SAFETY SYSTEMS

Enhance security with upgraded burglar alarm including controller, keypads and sensors

There is an existing burglar alarm intrusion detection system, but it is not currently functional. This system needs to be updated so it functions properly.

ELECTRICAL, TECHNOLOGY, AND SAFETY SYSTEMS

HS-ES-8 Enhance security with upgraded burglar alarm including controller, keypads and sensors

• Install new burglar alarm

• Install 64 motion sensors

• Install 2 keypads

HS-ES-8 Benefits

• Enhanced security

• Improved safety

ELECTRICAL, TECHNOLOGY AND SAFETY SYSTEMS

In the auditorium, replace the existing sound system, the speaker power amplifiers, and add an additional amplifier with 3 panels. Update portable wireless intercom to an FCC compliant system. Replace assisted listening transmitter with a combination Wi-Fi/FM system.

Auditorium Speakers

The auditorium is currently serviced by an aging main speaker system, consisting of two horn-loaded loudspeakers and two large horns and is original. 3D speaker simulation modeling of the space should be undertaken to determine the best coverage and help predict intelligibility.

The existing system be removed and replaced with a left/right array, allowing for multiple speaker patterns to cover the front and mid-section of the seating areas. As the catwalk area is easily accessible with structural iron in locations that allow for straightforward rigging, delay speakers could be added to provide better coverage in the rear seating area. Replacing these speakers and their associated amplifiers should be the top priority item for any updating of this space.

Audio Amplifiers

Power amplifiers for the speaker system are aging and should be replaced. An additional amplifier is recommended to be added into the “Effects” speaker system that has output panels around the space (stage, seating and balcony areas).

Production Intercom System

An older, portable wireless intercom system is currently in use, but no frequency information was visible. This system may be subject to FCC changes. It is recommended that the system be updated with a more robust, frequency compliant system that can be expanded in the future.

ADA Compliance

An older FM assisted listening transmitter is mounted in the equipment rack, but there wasn’t a clear count on the number of beltpacks/receivers for this system. It is recommended that a combination WiFi/FM system be installed to increase the usability of the system. Signage placards should be installed to alert guests on how to connect to the system.

ELECTRICAL, TECHNOLOGY, AND SAFETY SYSTEMS

HS-ES-9 In the auditorium, replace the existing sound system, the speaker power amplifiers, and add an additional amplifier with 3 panels. Update portable wireless intercom to an FCC compliant system. Replace assisted listening transmitter with a combination Wi-Fi/FM system.

• Replace auditorium speakers

• Replace power amplifier

• Replace wireless intercom system

• Replace assisted listening transmitter

HS-ES-9 Benefits

• Enhanced sound in auditorium

• Improved wireless intercoms

• Improved hearing accessibility

ELECTRICAL, TECHNOLOGY, AND SAFETY SYSTEMS

A new auditorium audio console and breakout boxes should be installed that route through a dedicated audio network switch and a digital signal processing unit. Update the wireless microphones.

Audio System Inputs and Infrastructure

Currently, all system inputs are routed to two patch panels in the control booth. This makes it straightforward to update and expand the capabilities of the audio system. The front of house mix position is in the control booth as well. This location presents difficulties in understanding the sound in the auditorium. The current audio mixer provides a control option via iPad that helps alleviate some of the difficulties, but having a wired position for the mixer in the auditorium would be beneficial. The mixer itself is primarily setup for analog inputs and outputs. This presents difficulty in expansion and routing.

The system would greatly benefit from a new console and breakout boxes which route through a dedicated audio network switch and digital signal processing unit. Two breakout I/O devices would be dedicated to on-stage use, while the other would be rack mounted to allow reuse of some of the existing analog infrastructure. In this case, the processor can also do double-duty as a control processor for AV presentations. Updating the console would also assist in teaching students a more modern workflow on audio mixers.

Wireless microphone systems

Four single wireless microphone systems are mounted in the rack with frequency bands not identified.

Updating the wireless microphone system with a common antenna and network audio outputs is recommended. This will also provide FCC frequency compliance well into the foreseeable future. The number of required wireless units would need to be discussed.

Microphone input, video inputs, intercom and effects speaker patch plates from the original construction are found at stage left, stage right, both sides of the audience seating area, in the booth and on the stage lip. It is likely the raceway and locations can be repurposed for the needed remote breakout box network audio connections.

HS-ES-10 A new auditorium audio console and breakout boxes should be installed that route through a dedicated audio network switch and a digital signal processing unit. Update the wireless microphones.

• Install new console and breakout boxes with dedicated audio network switch and digital signal processing unit

• Two breakout I/O devices on-stage

• Install rack mounted breakout devices

• Update wireless microphones

HS-ES-10 Benefits

• Processor can be used as a control for AV presentations

• Students learn modern workflow on audio mixers

• FCC compliant microphones

ELECTRICAL, TECHNOLOGY, AND SAFETY SYSTEMS

The auditorium video system should be upgraded to a new HD switcher, PTZ cameras, camera control system and a streaming appliance. Upgrade the existing projector and backstage monitors. Two new control panels should be installed: control booth and backstage left.

Video Systems

The auditorium is currently utilizing portable video cameras, typically operated from the balcony railing. These cameras provide SD, composite video down to the video switcher in the control booth. The video switcher has four camera inputs, no control or image adjustments. The auditorium and students would benefit from updating this system to an HD switcher, PTZ cameras, camera control system and streaming appliance.

The existing projection screen should be evaluated for surface integrity, size and aspect ratio. The existing projector should be replaced with a brighter, higher resolution and 16:9 or 16:10 format system.

Back Of House Audio Visual

There are currently five video monitors located throughout the backstage areas. These are in male & female dressing rooms, the common area, backstage and green room. Composite video signal is delivered to these, being routed out of the control booth video system. It is recommended that this system is updated to deliver HD content via network video and can be controlled/routed through the video production system.

Speakers in the auditorium lobby and backstage areas are serviced by existing analog mixer/amps. These devices have no remote-control capabilities. Control and a new amplifier for these areas would be integrated into audio DSP, video and control systems.

Control Systems

The auditorium has no existing control systems. It is recommended that two control panels being installed, connecting to the new AV system network. One device should be in the control booth and the other should be located backstage left. These devices would provide quick system preset recall for the sound and video systems.

HS-ES-11 The auditorium video system should be upgraded to a new HD switcher, PTZ cameras, camera control system and a streaming appliance. Upgrade the existing projector and backstage monitors. Two new control panels should be installed: control booth and backstage left.

• Install new HD switcher

• Install PTZ cameras

• Install a new camera control system

• Streaming device

• Upgrade projector

• Upgrade backstage monitor

• New control panels

HS-ES-11 Benefits

• Updated video system

• Ability to deliver HD content thru network video

• Better control for sound and video systems

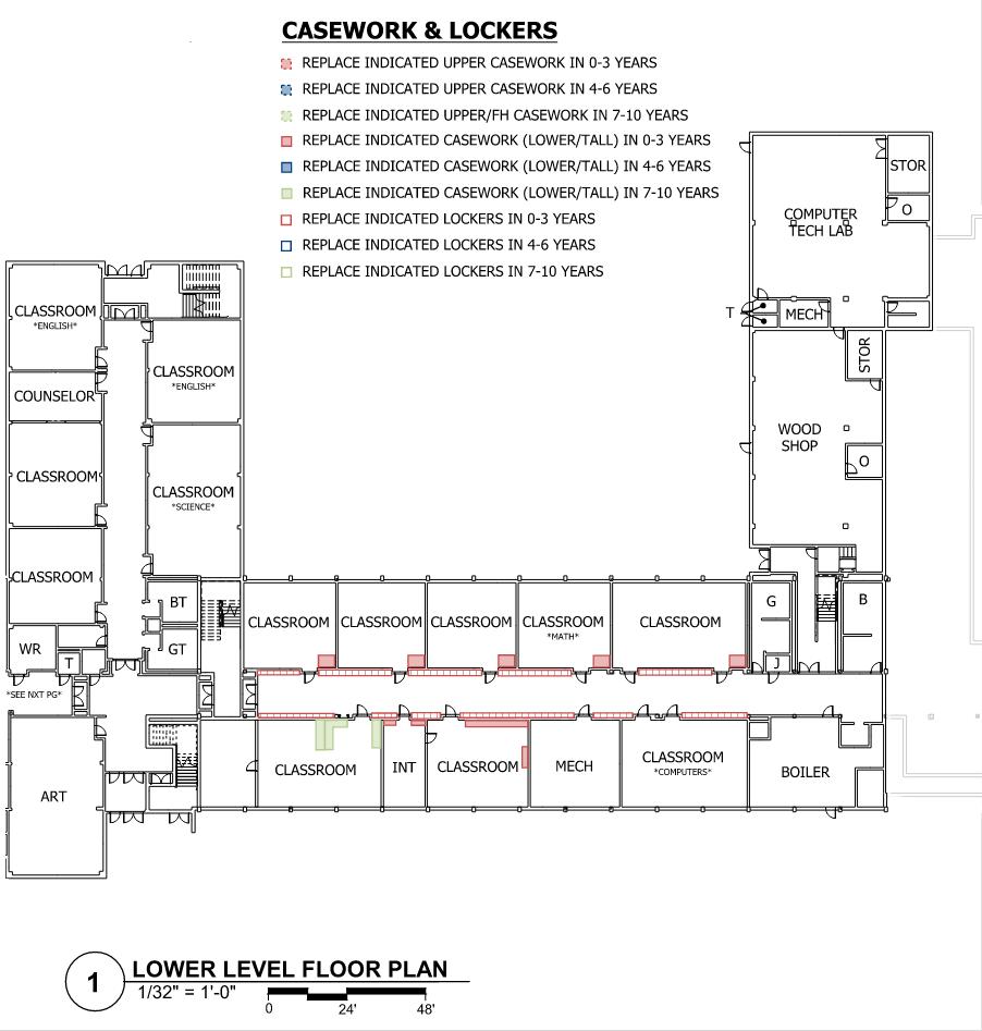
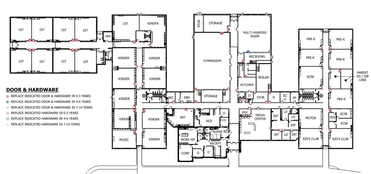
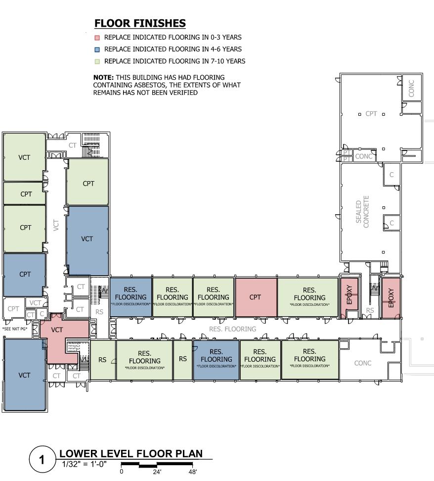
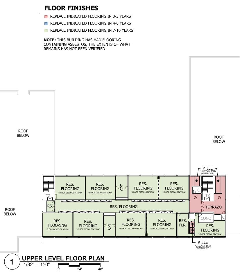
INTERIOR FINISHES AND ADA

High priority doors: Replace 10 sets of double doors and 72 single interior doors through out the building. Replace the hardware on 23 interior doors. Replace coiling shutter at lecture hall. Re-key all door locks to comply with district wide Schlage standard.

The interior doors in the original building and 1986 addition are reaching the end of their useful life. Twenty three doors need only the hardware updated in the next 3 years. There are also a number of doors that need to be replaced along with the hardware. All of the door locks need to be re-keyed to comply with the District-wide Schlage standard. The coiling shutter outside of the lecture hall is damaged and needs to be replaced. Refer to the following floor plan for information on what doors need replacement along with hardware changes.

Low priority doors: Replace doors in science wing, administration, and social studies area in the next 7 to 10 years.

The district should plan on replacing the doors in the 2000 addition within the next 10 years.

CHISAGO

Doors & Hardware

INTERIOR FINISHES AND ADA

HS-IA-1 High Priority Door Replacement, Hardware and Locks. Re-Key all Door Locks to Comply with District-Wide Schlage Standard

• Replace locks on all doors to comply with district standard

• Replace 10 double doors and hardware

• Replace 72 single doors and hardware

• Replace 23 hardware only

HS-IA-3 Low Priority Door Replacement, Hardware and Locks.

• Replace 41 single doors and hardware

HS-IA-1 and 3 Benefits

• Improved building aesthetics

• Improved acoustics

• Improved security

• Improved functionality of building

INTERIOR FINISHES AND ADA

Upgrade restrooms (14) and locker rooms (5) with new finishes

The interior finishes in the restrooms in the original building and the 1986 addition need updating. There are alos a few in the 2000 addition that do not comply with ADA. The boys and girls gym locker rooms do not have accessible benches, showers and toilets. There are 14 restrooms that also have a lack of accessible features. Smaller restrooms that include the PAC green rooms, the coaches in the boys locker room, the shop tech room, the main maintenance office are included, along with larger restrooms such as the ones located near the media center corridor. (The cost of locker replacements is in HS-IA-7).

CHISAGO

INTERIOR FINISHES AND ADA

HS-IA-2 Upgrade restrooms (14) and locker rooms (5) with new finishes

• Update finishes in restrooms

• Replace restroom partitions

HS-IA-2 Benefits

• Improved building aesthetics

• Extending the life of the interior materials

• Improved functionality of building

INTERIOR FINISHES AND ADA

In the Ward gym replace the existing wire glass windows on the east corridor. Remove bleachers on one side of gym and replace the bleachers on the other side. Replace the handrail on the staircases.

The Ward gym is in need of a few upgrades. The wire glass windows on the east corridor should be replaced due to safety and to improve visibility. The bleachers are damaged and do not meet ADA. Only one side of the bleachers needs replacement, while the other just needs to be removed. Replace the handrails on the staircase.

HS-IA-4 Ward gym windows, bleachers and handrails

• Replace wood floor in wood gym

• Replace VCT in corridors with rubber tiles

• Replace VCT and resilient flooring with LVT in areas marked on the plans

• Replace worn carpet

• Install carpet in music room

HS-IA-4 Benefits

• Extending the life of the interior materials

• Reduce maintenance cost

• Improves facility aesthetics

INTERIOR FINISHES AND ADA

High Priority Flooring

The majority of the carpet and VCT should be replaced in the next three years. The VCT in high use areas such as the corridors and cafeteria, should be replaced with new rubber tiles as part of District-wide standardization. Replace VCT flooring with a flooring material that requires less maintenance, such as an LVT. The original 1976 kitchen tile in the commons area and tech classrooms should be replaced with a combination of carpet and LVT. The needs in the Performing Arts Center are addressed HS-IA-12.

Low Priority Flooring

A few classrooms have recently been recarpeted but may need replacement in the next 10 years. At that point consideration should be given to replacement.

CHISAGO

FLOORING

INTERIOR FINISHES AND ADA

HS-IA-5 High Priority Flooring

• Replace VCT in corridors, cafeteria and commons areas with rubber tiles

• Replace worn outdated carpet

• Replace tile with combination of carpet/LVT

• Replace VCT with LVT

• Repair terrazzo

HS-IA-6 Low Priority Flooring

• Replace carpet with new carpet squares

HS-IA-5 & 6 Benefits

• Extending the life of the interior materials

• Reduce maintenance cost

• Improves facility aesthetics

INTERIOR FINISHES AND ADA

High Priority Casework and Lockers

The casework in the science classrooms, band, FACS, and the 3 classrooms east of band is in need of replacement. It is showing signs of damage and is not meeting the needs of the users. The lockers in the varsity and PE locker rooms for both men’s and women’s need to be replaced. The corridor lockers outside of the lecture hall also should be replaced.

Low Priority Casework

Classrooms in the math wing and in the language arts will need the casework updated in the next 10 years.

Casework

INTERIOR FINISHES AND ADA

HS-IA-7 High Priority Casework and lockers

• Replace casework in science classrooms including sinks

• Replace casework in FACs rooms (does not include appliances)

• Replace band cabinets and lockers in the classroom

• Replace casework in arts 2 and social studies 9

• Replaces casework in sped rooms 2 and 4

• Replace lockers in 4 locker rooms

• Replace corridor lockers outside of lecture hall

HS-IA-8 Low Priority Casework and lockers

• Replace casework in classrooms

HS-IA-7 & 8 Benefits

• Improved building aesthetics

• Extending the life of the interior materials

• Improved functionality of building

INTERIOR FINISHES AND ADA

High Priority Wall Finishes

The large gym, cafeteria and a few classrooms need to be repainted. This will brighten up the spaces, giving them a fresh, updated look. The demountable walls in the business classrooms are in poor to fair condition. They also allow sound carryover between classrooms causing disruptions.

CONDITIONS

INTERIOR FINISHES AND ADA

HS-IA-9 High Priority Wall Finishes

• Paint main gym, cafeteria

• Paint indicated classrooms

• Replace demountable walls with sheet rock walls

HS-IA-9 Benefits

• Improved building aesthetics

• Extending the life of the interior materials

• Improved functionality of building

INTERIOR FINISHES AND ADA

High Priority Ceiling

We have reviewed the ceilings and exposed structures to determine what has reached the end of useful life, shows stains, or is beginning to sag. The majority of the acoustical tile in the classroom areas need to be addressed in the next 6 years, with some of the main corridors needing to be replaced in the next 3 years. The exposed ceilings in the locker commons, media center corridor, cafeteria and the west gym need to be painted. The auditorium is addressed in HS-IA-12.

Low Priority Ceilings:

The business center and the math corridor can be updated in the next 10 years.

INTERIOR FINISHES AND ADA

HS-IA-10 High Priority Ceilings

• Replace ceiling as noted on the plans within the next 0-6 years

• Paint exposed ceilings in Ward gym, cafeteria, locker commons, media center corridor

HS-IA-11 Low Priority Ceilings

• Replace ceiling as noted on the plans within the next 10 years

HS-IA-1 Benefits

• Extending the life of the interior materials

• Reduce maintenance cost

• Improves facility aesthetics

INTERIOR FINISHES AND ADA

High Priority Needs in auditorium including stage floor, acoustical panels and carpet

The auditorium was built as part of the 2000 addition to the high school. After twenty five years the finishes including the ceiling, walls, floors, stage etc. need to be updated. The VCT flooring and carpeting all need to be updated. The wooden stage floor has holes and other damage. We recommend replacing it with “Stagelam” flooring. The acoustical treatment on the walls is in very poor condition. The floor plans below indicate recommended changes in the auditorium.

INTERIOR FINISHES AND ADA

HS-IA-12 High Priority Needs in Auditorium

• Install new stage floor

• Replace wall acoustical treatment

• Replace carpet

• Replace VCT flooring

HS-IA-12 Benefits

• Improved sound quality

• Increased safety on stage

• Improved functionality of building

INTERIOR FINISHES AND ADA

Replace Bleachers in Main competion Gym

The bleachers in the main gym are in need of replacementat this time.

INTERIOR FINISHES AND ADA

HS-IA-13 Replace Bleachers in main competition gym

• Replace bleachers with 16 rows on both sides

HS-IA-13 Benefits

• Improved safety

SITE IMPROVEMENTS

North drainage improvements: replace concrete walks and asphalt with new asphalt paths, install erosion control, improve roof drain system on north addition, and improve building utility connections. Regrade along exterior to improve water drain off.

Drainage Overview

Water / dampness issues have been occurring within the building. Near these areas are the vertical corrugated metal pipes filled with drainage rock that were installed at the time the building was built. These were originally connected to drain tile and likely no longer functioning as designed. During review of the site it was noticed many areas do not have the recommended minimum fall of six inches within ten feet of the building.

Over time low spots along the walking paths have formed and cause water to sit on the pavement.

Recommendation is to order an updated survey to most accurately add storm sewer at each roof drain location along the building. The remaining rock drains are located on the east, north and west sides of the northern end of the building. Low areas along paths in the northeast corner can potentially be fixed by regrading and repaving, otherwise storm sewer could also be extended to those areas.

The pathways are in poor shape and should be replaced. New erosion control and regrading along the exterior will improve water drain off.

SITE IMPROVEMENTS

HS-SC-1 North Drainage Improvements

• Asphalt pavement and concrete walk removal and replacement

• Remove drainage rock and metal pipes at each roof drain location.

• Add catch basins or direct connect pipe to underground at each of the roof drain locations that are ab

• Add swales and increase slope away from building within the first ten feet wherever possible.

• Raise path or lower turf areas adjacent to grass to improve drainage and eliminate pooling.

• Add catch basin(s) in any locations drainage cannot be solved by changing grades alone.

• reseeding

HS-SC-1 Benefits

• reduce water infiltration into the building

• safer walking paths

• improved storm water drainage

PAVEMENT OVERVIEW

Pavement Analysis

During the site walk, some immediate concerns were noticed. Two sections of curb pulled away from the walk and left a gap along the bus loop. During the winters this gap will continue to widen. These curbs and the failing concrete at the east exit trench drain were the main areas of concern. Most concrete and curb is in good condition with just spot repairs required. A large concrete area that is failing near a less popular north exit can be replaced with asphalt when the paths are replaced. Other sinking concrete walk by a north door needs replacement immediately to keep additional water away from the building. The exterior shop storage area also has concrete that is starting to disintegrate. Those are a few examples of other areas around the site have a few panels needing replacement.

Most of the pavements around the building were recently installed or received a reclaim and repave at that same time. The loading dock area pavement was not rebuilt in its entirely, likewise a portion of the east drive along the community center that received a mill and overlay over some existing pavement. Pavement appears to be aging as expected and will benefit from continued maintenance of crack sealing and eventual chip seal,

East parking and drives: spot replacement of asphalt pavement and concrete curb and gutter, retrench the concrete entrance

The east parking and drive do not need to be replaced at this time. There are a few spots of curb work repair, spot concrete repair, and retrench the drain at the exit onto Oleander, and creak seal and sealcoat that should be done within the next 5 years. The full reclaim and repavement can be done within 12 years.

Renovate the existing loading dock area to improve traffic flow

The loading dock drive will need concrete spot replacement, curb and gutter spot replacement and asphalt removal and replacement in the next 2 to 5 years. Consideration should be given to replacing with a slightly larger area.

South parking lot and drive: spot replacement of concrete curb, gutter and pavement

Within the next 5 years spot replacement of concrete curb and gutter along with spot replacement of concrete pavement.

PAC storm sewer repair and spot repair of concrete pavement and curb and gutter. This includes the repair of the damaged stormwater piping coming from the building and replacement of 3 gates

A storm sewer pipe near the PAC entrance is damaged and needs replacment. The pipe runs out to a catch basin in the PAC parking lot. The lot is in good shape, but it will need to be crack sealed, and sealcoat done in the next 5 years. The three manual yellow gates are showing signs of rust and need to be replaced.

PAC parking lot and west drive: replace asphalt pavement

The PAC parking lot and west drive will need the asphalt removed and replaced in 5 to 10 years.

Center Field parking lot: reclaim and repave asphalt, add 300 feet of concrete curb and gutter, restripe and seed

The parking lot north of the Varsity baseball field will need the asphalt removed and replaced in the next 6 to 10 years.

West parking lot: reclaim and repave asphalt, replace concrete where needed, install boulders between south field and drive

The west parking lot will need spot treatment of the concrete pavement and the cub and gutter. In the next 6 to ten years the asphalt pavement should be removed and replaced. Large boulders could be placed along the west road to prevent driving on the fi

CHISAGO LAKES HIGH SCHOOL FACILITY CONDITIONS

OVERVIEW OF PAVEMENTS

HS-SC-2, 3, 4, 5, 6, and 7 Parking lots

Asphalt Maintenance

• Regular maintenance schedule of most areas around the building section of the property over the next few years.

• Most areas require crack seals for their next round of maintenance.

Curb and Gutter Replacement

• Main area requiring replacement are the two areas at bus loop.

• Majority of curb was new or already had damaged curb sections replaced within the last 5 years.

Concrete Pavements

• A few areas around the site require spot replacement of concrete.

• Majority of concrete is in good condition.

Pipe Replacement

• Remove and replace storm sewer line from building to first structure

EDUCATIONAL

EDUCATIONAL ADEQUACY

Expand Exterior Patio, Door from Cafeteria, and Add Exterior Tables/Benches

There exists space to the south of the cafeteria to create an outdoor area for eating lunch, social gathering and classroom space. The patio would be constructed of concrete and have weatherproof permanent seating. A door would be installed between the patio and the cafeteria for easy access.

Renovate Locker Rooms for Private Showers and Changing Stalls

The existing boys and girls Phy Ed locker rooms are underutilized and in disrepair. They need significant upgrading. Additionally, in their current state, they do not comply with ADA, are difficult areas to supervise, and lack the proper amenities that students need in today’s world. The locker rooms would be completely renovated, including all of the finishes. The space would be reconfigured by replacing lockers to be right sized in terms of both quantity and size, updating the toileting and showers to meet ADA as well as align with desired plumbing counts of each, and creating a small amount of private changing and shower rooms. All locker rooms would be renovated to have equitable finishes and features. Scope includes creating functionally sized Phy Ed offices and consolidating some athletic storage.

Add Glass to Ward Gym along North Wall

The Ward gym has been surrounded by additions over the years. To better connect the space to the surrounding corridors/building it would be beneficial to add interior glass between the north hallway and the north side of the gym. Similar to what exists on the east wall but without the wire glass.

Create (3) Private Restroom Groups

The current restrooms do not meet ADA requirements, have sightline issues, have finishes and fixtures past their useful life, and do not maximize the use of space. At three locations, the restrooms would be remodeled into multiple single-occupant toilet rooms. Each single-occupancy bathroom features full height walls and doors similar to those of a single user restroom design. This design also includes proper lighting, ventilation, and finishes to align with applicable building codes. Hand washing would remain supervisable as it would be located near the hallway, often with partial height walls. While this benefits privacy efforts, it also can increase overall efficiency of use as less lines/congestion can accumulate.

Remove Lockers from Commons and Renovate with Small Group Rooms, Revised Stairs with Railings, Soft Seating, Raise Ductwork, New Flooring, Etc.

Students do not use lockers as they did in the past. Social dynamics around the student’s locker or a locker commons has changed with access to technology. Students do not need access to their items as often as in the past, they also do not have as strong of a need for ‘personal space’ that the locker once provided. The existing student locker commons (aka “Senior Lockers/Commons”) can be repurposed to support flexible learning for all classrooms. This space can be recreated to allow for flexible furniture for teachers to take their students to as an extension of their classroom space to support learning in a different environment. Opportunities can be endless but include that it is sized for multiple class learning experiences where 3+ classrooms can get together to collaborate on a lesson or share large group instruction. The space could be used as a study hall or for small groups. The location of this area is next to many classrooms and internal windows can be created to increase supervision of the Learning Commons. Renovations would include replacement of end-of-life flooring as well as updating finishes and lighting to best align with the functions of the space. Furniture and technology would be provided to support the variety of learning and group dynamics. Railings would be installed to eliminate the current fall hazard and a large corridor to the west side of the building created.

EDUCATIONAL ADEQUACY

Convert FACS Foods Area to Culinary Arts Lab

Programming for culinary arts, specifically at a high school level, has evolved. It goes beyond basic meal preparation and learning to use residential kitchen appliances and into nutritional science and has moved into the realm of introducing skills for jobs and careers after graduation. The existing Foods Lab has multiple ‘residential-style’ kitchens with sinks, ranges, microwaves, with cabinets and countertop finishes that would be found in a residential setting. The goal would be to provide a slightly elevated experience where skills can be taught not only for day-to-day skills but as well as food-industry skills. The room would be renovated to support a more commercialized setting where skills that are more specific to culinary careers can be taught. Renovations would include stainless steel work surfaces to represent a restaurant environment, more commercialized equipment to better expose students to career opportunities. These labs are still flexible and will be able to support all types of food instruction, without excluding the commercial setting as it does today. The goal is tied to a hybrid vision of learning the day to day meal prep and life skills yet allow for a true commercial kitchen workplace-ready experience as well.

Create Event Room for Pool Area, Eliminate Hot Tub Area to Construct Staff Office and Swim Equipment Storage

Outside of athletics for the school’s successful swimming and diving teams, the community is a huge supporter of the pool as an amenity. The pool is often a place where families want to host a birthday party or other type of gathering or celebration. However, there is no formalized place for this. Renovations would turn the existing office space into an event room that would be sized for tables and chairs, counter space for the host’s items, and have a view and close access to the kiddie pool/pool. The room would also support pool staff meetings/training. The office would be relocated to the existing hot tub area, the hot tub eliminated, and general pool equipment storage would be expanded with direct access to the pool deck.

Install Permanent Sheetrock Walls in Business Area to Improve Acoustics. In the Ag Room, Math Entry, and Student Services Extend Walls from Ceiling to Roof Deck to Reduce Noise Transfer

The business classroom suite is constructed of demountable walls and inefficient circulation paths. The rooms are inconsistent sizes and often too small for the class sizes. Some rooms were designed around a computer lab setting of the past and the proportion of the room is no longer suitable. The demountable walls pose a few issues, such as a reduced acoustical separation as compared to walls constructed for all the other classrooms in the area. Other issues include door swings and hardware due to the doors selected to best align with demountable walls. The wall system, doors and hardware, and teaching boards are past their useful life. The proposed renovation would remove all of these systems to create a more efficient layout of business classrooms that would be sized appropriately for both class size and quantity to meet scheduling needs. The suite would be configured to provide for some flexible learning area for student break-out work, as well as small group rooms that can be utilized by students, staff, and other conference needs. The flexible learning area would be located immediately outside of the classrooms so that teachers and staff can supervise students and be accessible to the students for any help/instruction.

EDUCATIONAL ADEQUACY

Create Learning Commons Outside Media Center and Connect with Operable Glass

Like the center locker commons, the lockers along the media center hallway are also not used. This space can be repurposed to support flexible learning, social gathering, and become the “learning main street” of the school Its proximity to the media center can be capitalized on be connecting the two spaces with an operable glass wall. The media center itself can be modernized with new furniture and paint. This new main street could be furnished with genius bars, booths, small group rooms, technology video displays, soft seating arrangements and a coffee shop/grab and go café.

Reconfigure SW Community Entrance for Security

The student check-in/security desk at the student parking entry is too far from the interior entrance to the school. The desk would be moved closer to the door and electrified hardware would be added to the double doors that separate the school hallway from the Wildcat Community Center area. The doors would be controlled by a button located at the relocated security desk. This desk could also have the ability to be a ticketing counter for swim meets or other pool events as well.

Reconfigure Center Administration Area

The front reception and attendance workspace layout in the main office could be improved to make better use of space and increase the waiting area within the office.

Construct Training Center Addition

The need for physical fitness and weight training is increasing both from an academic phy. ed., athletic performance, sports rehabilitation, and community demand. The recent construction Fitness/Weight room in the Wildcat Community Center is highly sought after and access is coveted by all users, creating a conflict that cannot be covered by scheduling. A smaller athletic training room would be created by an addition that focuses on the Phy-Ed/Athletic perspective and would be located near the athletic/PE locker rooms and the high school team gym. The training room would be sized for (8) weight racks, dumbbells, and open space for agility, aerobic, and class workout instruction, and a couple pieces of injury rehabilitation cardio equipment.

EDUCATIONAL ADEQUACY

New Flexible Classroom Furniture (50%)

Most classrooms have outdated furniture or do not have sufficient flexible furniture available that will attract students to those areas. Comfortable and inviting furniture has been studied to be as important to the spaces as the lighting, HVAC, and spaces themselves.

The instrument and music storage systems are past their useful life and need replacement with new systems that will align with the programs actual instrument and sheet music quantities. Band chairs will be replaced with furniture that is suitable for these programs.

CHISAGO

AQUATIC CENTER IMPROVEMENTS

Pool Boiler and Heat Exchanger Replacements and Add Glycol

The High School main swimming pool, wading pool, and spa are currently heated by two (2) hot water boilers and four (4) heat exchangers. The boilers are 2007 vintage Triangle Tube boilers with a capacity of 399,000 BTUs (British Thermal Units) each. The main swimming pool is served by two (2) of the heat exchangers while the wading pool and spa are each served by heat exchangers that have recently been replaced.

The pool boilers and main pool heat exchangers have started to corrode and increase in maintenance. The heat generated from the boilers is transferred to the chlorinated pool water loop via the heat changers. The hot water in the boiler loop currently does not have glycol. Glycol is used in hydronic heating systems to prevent freezing and corrosion in the pipes which can cause damage to the system.

Nexus recommends replacing both boilers (Qty 2) and the main pool heat exchangers (Qty 2) with new hot water boilers and heat exchangers. Glycol would also be installed in the new boiler loop system to prevent freezing during the winter months. Benefits of these replacements would include improved boiler operation, extended heating system life, reduced maintenance, and improved energy efficiency.

AQUATIC CENTER IMPROVEMENTS

HS-AC-1 Boiler and Heat Exchanger Replacements and Add Glycol

CHISAGO LAKES SCHOOL DISTRICT AQUATIC CENTER

• Remove existing 2007 pool boilers and main pool heat exchangers

• Install new hot water boilers and heat exchangers

• Modify pool water heating piping as required

• Add glycol to the pool boiler heating loop to prevent freezing

• Provide all necessary electrical, controls and general construction work

HS-AC-1 Benefits

• Upgraded heating system

• Improved temperature control

• Improved occupant comfort

• Reduced maintenance

• Improved learning/work environment

CHISAGO LAKES SCHOOL DISTRICT AQUATIC CENTER

AQUATIC CENTER IMPROVEMENTS

Replace Inline Supply and Exhaust Fans and Coil Serving the Pool Equipment/Chemical Room

There is currenlty a 2005 inline supply fan with a heating coil that provides fresh air to the pool equipment/chemical room. There is also a 2005 sidewall exhaust fan used to remove the pool vapors from the space.

The supply fan and heating coil have started to rust and degrade over time from the exposure to the chlorine that is present in the air.

Nexus recommends replacing the supply fan and heating coil with a new fan and hot water coil. The sidewall exhaust fan will also be replaced and relocated to the roof of the building as it currently stands out on this side of the building.

The new supply and exhaust fans would have a phenolic epoxy with UV coating to protect them from corrosion.

The benefits of this improvement include increased system life expectancy, improved ventilation, increased energy savings, and an improved working environment.

AQUATIC CENTER IMPROVEMENTS

HS-AC-2 Replace Inline Supply Fan/Coil and Exhaust Fan Serving the Pool Equipment/Chemical Room

• Remove existing supply fan, heating coil, and exhaust fan

• Provide new supply and exhaust fans with phenolic epoxy and UV coating

• Provide new hot water heating coil

• Provide all roofing and sealing work as required

• Provide DDC controls, sequencing, and programming

• Provide all associated general construction and electrical work as required

HS-AC-2 Benefits

• Upgraded HVAC infrastructure

• Increased ventilation for improved indoor air quality

• Improved temperature control

• Improved occupant comfort

• Reduced maintenance

• Improved learning/work environment

CENTER

AQUATIC CENTER IMPROVEMENTS

Replace pool recirculation system including lowering of pump pit and new 8” drain line from pool to surge tank, Replace stainless steel gutter system

The pool recirculation system consists of three main drains at the deepest point of the pool, for bottom recirculation and stainless-steel gutter edge for rim flow surface skimming. The main drain line is 4 inch and very undersized for this installation. The main drain line is attached to pump suction and is not in the surge tank and does not have a float valve for proper surge control. This must be replaced with an 8 inch line to the surge tank with a float valve for surge control. The stainless-steel gutter outlet piping is sized properly and does flow to the surge tank.

During inspection of the pool, a leak was discovered that follows the outline of the gutters system near the entry step. A 2-part epoxy was applied to temporarily minimize loss from the leak. Pressure checks were done on all pool lines including three bottom drains, gutter system, and twenty four floor returns. The return lines held. All other lines held pressure for five minutes with no drop. The bottom drain cannot be tested without the pool being drained. Missing grout and tiles were seen throughout the pool. It is recommended that the pool and deck be resurfaced.

The recirculation (filter) pump with motor is in fair condition. The pump with motor is in a pump pit but is not low enough for flooded suction. The pool operator has significant priming problems with this set up. The pump pit needs to be lowered to provide flooded suction to the pump.

To maintain the pool, we recommend replacing the main drain sump and main 8” drain piping from pool to surge tank. This would include a float valve in the surge tank. The existing 4” line can be used as a bypass line to drain the pool. The pump pit would be rebuilt.

Core drilling should be done to determine the condition of the soils behind the gutter system. Because leaks were found that follow the structural line of the gutters we are recommending replacement of the gutter system.

CHISAGO LAKES SCHOOL DISTRICT AQUATIC CENTER

AQUATIC CENTER IMPROVEMENTS

HS-AC-3 Replace pool recirculation system including lowering of pump pit and new 8” drain line from pool to surge tank, Replace stainless steel gutter system

• Remove main drainpipe

• Install new 8” drain line from pool bottom to surge tank

• Add float valve in the surge tank

• Replace sumps

• Reconstruct sump pit

• Replace gutter system

HS-AC-3 Benefits

• Better control of pool water level

• Improved control of draining of pool

• Reduction in leaks

CHISAGO LAKES SCHOOL DISTRICT AQUATIC CENTER

AQUATIC CENTER IMPROVEMENTS

Replace pool filtration with regenerative media filters, new UV disinfection and new chemical feed system for all pools

Filtration System:

The filter system consists of four horizontal high-rate sand media filters. The National Filters are in poor condition and no longer manufactured and parts for these filters are no longer available. Sand is a poor filter media as sand media removes particulate down to about 20 microns. The filter system is typical for the age of the pool but does not meet today’s aquatic industry standards for pool filtration.

Regenerative media filters are the new standard for pool filtration. Regenerative media filters will remove particulate down to one micron. This is important since the human eye can see down to about 30 microns, so sand media does not filter much finer than the eye can see. One-micron particulate removal is important as some bacteria, such as cryptosporidium, a parasite, are about one micron in size. The other advantage of regenerative media filtration is that they do not require reverse flow backwashing as compared to sand media filtration. Cleaning of regenerative media filtration only requires about 1/50 of the amount of pool water as compared with sand media filtration. Much less water to replace, treat and heat. We recommend replacement of the sand media filtration system with a regenerative media filtration system.

There should be a VFD for the recirculation pump and this would be part of the regenerative media filter system. The hair/lint strainer would also be replaced with the installation of a regenerative media filter system. The filter system for the wading pool has been replaced, but the spa pool filter system should also be replaced.

Disinfection System:

The disinfection system consists of liquid chlorine (sodium hypochlorite). The chlorine is in carboys in the pool mechanical room and dispensed by peristaltic metering pumps. The oxidation process of disinfecting pool water can be enhanced with the addition of ultraviolet light, (UV). UV will greatly reduce the formation of combined chlorine, which has a high limit of .5 PPM. We recommend the addition of UV for all three pools. For control of pH of the pool water muriatic acid is used and dispensed by a peristaltic metering pump.

The disinfection system and pH feed system are controlled by a Becs, System 3, chemical controller. The controller is in fair condition and could be replaced with an updated controller with internet capabilities. The flow cell appears to be in fair condition. We do recommend upgrading to Becs, System 5 chemical controllers.

CHISAGO LAKES SCHOOL DISTRICT AQUATIC CENTER

AQUATIC CENTER IMPROVEMENTS

HS-AC-4 Replace pool filtration with regenerative media filters, new UV disinfection and new chemical feed system for all pools

• Remove pool and spa sand filters

• Install new regenerative media filters for pool and spa

• Install VFD on the recirculation pump

• Add UV disinfection system to all 3 pools

• Add internet compatible chemical feed system to all pools

HS-AC-4 Benefits

• Better control of pool water filtration

• Improved disinfecting

• Better control of system

CHISAGO LAKES SCHOOL DISTRICT AQUATIC CENTER

AQUATIC CENTER IMPROVEMENTS

Replace 2005 Pool Air Handling Unit

The Chisago Lakes High School pool is currently being ventilated by a 2005 Huntair air handling unit with DX cooling and hot water heating. This air handling unit is still in good shape but should be considered for replacement in ten (10) years.

The new air handling unit would be rated for pool air and would come with code compliant filtration, heating water coils, DX cooling coils, access sections, and supply fans with variable speed drives (VSDs).

The benefits of this HVAC improvement include increased system life expectancy, improved DDC scheduling, improved ventilation, increased energy savings, improved occupant comfort, and an improved learning and working environment.

VENTILATION SYSTEM IMPROVEMENTS

HS-AC-5 Replace 2005 Pool Air Handling Unit

• Remove existing air handling unit, piping, and controls

• Provide new double wall indoor air handling unit rated for pool air with hot water heating and DX dehumidification

• Provide variable speed drives for the supply and relief fans

• Provide all roofing and sealing work as required

• Provide DDC controls, sequencing, and programming

• Provide all associated general construction and electrical work as required

HS-AC-5 Benefits

• Upgraded HVAC infrastructure

• Increased ventilation for improved indoor air quality

• Improved temperature control

• Improved occupant comfort

• Reduced maintenance

• Improved learning/work environment

CHISAGO LAKES SCHOOL DISTRICT AQUATIC CENTER

AQUATIC CENTER IMPROVEMENTS

Replace the ceramic tile on the pool and the deck

The tiles on the pool and the pool deck are from the original 1985 construction. During the inspection of the pool, missing grout and tiles were seen throughout the pool. Missing grout on the left hand side of wall of stairs was leaking and could be the cause of loss of water during the power outage. Areas of patching were also on the pool deck itself. We recommend that the pool and deck be resurfaced.

HS-AC-6 Replace the ceramic tile on the pool and the deck

• Remove and replace the ceramic tile on the pool and deck

• Core drill 4 samples to review soil conditions

HS-AC-6 Benefits

• Improved aesthetics

• Repairs leaking

CHISAGO LAKES SCHOOL DISTRICT AQUATIC CENTER

AQUATIC CENTER IMPROVEMENTS

Clean and paint the ceiling over the pool and wading pool; replace the pool sound system. Add aluminum ductwork to the spa and wading pool. Replace stainless light fixtures. Clean and paint spa area window lintel. The ceiling in the pool is difficult to clean due to location and height. The sound system is very distorted and needs to be replaced. The ductwork in the spa and wading pool area is blowing directly onto the ceiling preventing good circulation and should be replaced. The stainless steel light fixtures in the pool areas are in very poor condition. The window next to the spa has a rusted lintel that needs to be cleaned and painted.

HS-AC-7 Clean and paint the ceiling over the pool and wading pool; replace pool sound system. Add aluminum ductwork to the spa and wading pool. Replace stainless light fixtures. Clean and paint spa area window lintel.

• Clean ceiling over the pool and wading pool

• Paint ceiling

• Replace sound system

• Replace sock ductwork to the spa and wading pool areas

• Replace the stainless steel light fixtures

• Clean and paint the lintel in the window by the spa

HS-AC-7 Benefits

• Better aesthetics

• Improved sound

• Improved air flow

ATHLETIC IMPROVEMENTS

A review was made of the existing athletic fields at the high school campus. Information was provided by the Athletic Director and the Grounds manager. The onsite visit coincided with a rainy day so the observation clearly showed the crainage issues with many of the fields.

Site fields were viewed with School and Maintenance staff. Many of the fields have drainage issues that make the areas less playable. Causes issues especially in spring when the school needs them most.

The water fountains near the fields do not function and a cause has not been found through previous investigations. It is unknown for sure where they are connected to.

It is recommended that a new survey is taken of the area before some of the suggested or necessary work is completed. The previous survey was prior to west parking lot and fields and many of the fields around Varsity Softball were built. The survey should include investigating if there is any record of drain tile or old storm sewer between the drive and JV field causing sinkholes. Further discussion should be had of possibly taking soil borings in some of the areas with frequent water issues such as around the baseball fields. They could help guide frequency of drain tile lines in the fields if there are saturated soils present below the surface.

CHISAGO LAKES SCHOOL DISTRICT ATHLETIC FIELDS

ATHLETIC IMPROVEMENTS

HS-AI-1 Stadium lighting upgrades including new LED fixtures on existing poles

• Replace light fixtures on existing poles for the football field to reduce energy use and have better light quality.

HS-AI-2 Track resurfacing

• Resurface only, asphalt replacement is not needed within the next 10 years

HS-AI-3 Install New lighting at Molnar Field

• Replace the field lighting at Molnar Field to reduce energy use and have better light quality.

HS-AI-4 Turf Replacement

• Fabric only within the next 10 years.

HS-AI-5 Replace asphalt paths within stadium

• Remove and replace asphalt pavement in the next 8 years.

HS-AI-6 Replace asphalt paths around softball fields, add 3 hose bibs to fields for infield and repair trenching

• Remove and replace asphalt pavement in the next 8 years.

• Add 3 hose bibs to infields off existing line

HS-AI-7 Varsity baseball: address drainage issues with drain tile and top dressing low spots, connect drain tile to storm sewer, repair miscellaneous irrigation problems and reseed

• Install drain tile and do slight regrading of problem areas in outfield; reseed disturbed spots in the next 3 years

• Alternatively regrade all of outfield and add drain tile; potentially adjust sections of the outfield fence to follow grading adjustments

CHISAGO LAKES SCHOOL DISTRICT ATHLETIC FIELDS

HS-AI-8 Varsity baseball: replace existing lighting

• update lighting in the next 3 years

HS-AI-9 JV baseball: address drainage issues with drain tile and top dressing low spots and infield, repair outfield fence, connect drain tile to storm sewer and reseed

• Regrade low areas of outfield and between baselines and dugouts

• Install draintile system and find structure in area to send the draintile to

• Address sinkholes west of fence line

• Remove and replace outfield fence

HS-AI-10 Varsity softball: address drainage issues with drain tile, miscellaneous irrigation repairs, repair outfield fence, and seed

• Drain tile in the next 3 years

• Regrade center of outfield and other low spots in the outfield

• Remove and replace portion of the outfield fence where a gap exists at the bottom

HS-AI-11 West softball: install new drainage swale east of south field, regrade northwest corner of north field, miscellaneous irrigation repairs, adjust fence and seed

• Grade a swale between the two south softball fields to redirect the western flow of surface water that leaves the SW infield saturated at times

• Regrade a portion of the NW field along the outfield fence to eliminate that wet area. Steepen grade west of fence to keep water further from area and help drain field

• Remove, raise and replace path west of Varsity Softball or extend swale to provide drainage

HS-AI-12 North practice field: repair irrigation issues, erosion control and earthwork, seed

• Spot address low spots or top dress entire north field to fix drainage issues

• Owner not concerned about wet area behind bleachers that is not always mowable

• West fields not used very often by school so any work would be low priority. No drainage issues in fields were observed

CHISAGO LAKES SCHOOL DISTRICT ATHLETIC FIELDS

HS-AI-13 Varsity softball: add lighting

• Add field lighting at the varsity softball field.

CHISAGO LAKES SCHOOL DISTRICT ATHLETIC FIELDS

CHISAGO LAKES MIDDLE SCHOOL FACILITY CONDITIONS

FACILITY CONDITIONS

BUILDING ENVELOPE IMPROVEMENTS

Roof Replacement 1999 Cafeteria Addition - (3000 SF)

The roof on the 1999 cafeteria addition (area L) is a ballasted EPDM and is reaching the end of its useful life. It is showing signs of aging such as bridging / stretching at roof perimeters and multiple previous repairs.

Roof Replacement 1999 Media Center Classroom Addition (16,150 sf)

The roof over the 1999 media center and classroom addition (areas A, and B) is the same vintage as the cafeteria roof. The wing has a ballasted EPDM roof.

Roof Replacement 1999 Band and 2002 Boys Locker Room (5,700 sf)

The roofs over the band room and the boy’s locker room are built up with gravel.

All roofs should be replaced in the next 3 to 5 years. Roofing system replacement will improve energy performance by increasing system insulation values, reducing leaks, and will reduce operating and maintenance expenses.

1999 Classroom wing
Band and Boy’s locker room

CHISAGO LAKES MIDDLE SCHOOL FACILITY CONDITIONS

CHISAGO LAKES MIDDLE SCHOOL FACILITY CONDITIONS

BUILDING ENVELOPE IMPROVEMENTS

MS-BE-1, 2, and 3: Roof replacement 1999 cafeteria addition (3,000 SF), 1999 Media Center Classroom Addition (16,150 SF), Band and Boys Locker Room (5,700 SF)

• Removal of old roof systems & wet insulation / deteriorated wood blocking.

• Polyisocyanurate insulation layers. R-30 with a minimum positive slope of 1/8" per foot to ensure proper drainage.

• Recovery insulation board to accept new roof system & provide a stop gap against thermal bridging from insulation fasteners.

• Multiply modified built-up roof system with gravel surfacing. Provides a "severe hail" rating.

• Pre-finished sheet metal copings & counterflashing at all perimeters and projections to protect against damage and UV degradation.

MS-BE-1, 2, and 3 Benefits

• Extend life of building

• Reduce energy cost

• Reduce leaks

• Reduce operating and maintenance expenses

CHISAGO LAKES MIDDLE SCHOOL FACILITY CONDITIONS

BUILDING ENVELOPE IMPROVEMENTS

Tuckpointing and Replace Damaged Brick, Clean and Paint Steel Lintels Above the Window Openings, and Install Through-Wall Flashing and Rope Weeps at Steel Lintels of the Original Building

In general, the brick masonry façade appeared to be in fair to good condition for its age. Previously repointed/repaired areas appeared generally in good condition. However, cracked mortar joints between the brick units were noted at several locations on the façade. Many of these cracks were around the steel lintel locations. Vertical cracking was noted in isolated areas. Many locations on the original building section do not have through-wall flashing. Weep ropes were missing in localized areas. A few locations have cracked, spalled, or broken bricks.

Install through-wall flashing at steel lintels of the original section of the building, provide with rope weeps. Tuckpointing and replacement of damaged brick is needed at this time.

The tuckpointing, cleaning of steel lintels and installation of through wall flashing should be conducted in the next 0-3 years.

CONDITIONS

BUILDING ENVELOPE IMPROVEMENTS

MS-BE-4 Tuckpointing and Replace Damaged Brick, Clean and Paint Steel Lintels Above the Window Openings, and Install Through-Wall Flashing and Rope Weeps at Steel Lintels of the Original Building

• Tuckpoint approximately 5,000 SF

• Install through-wall flashing

• Clean and paint steel lintels

• Replace damaged brick

MS-BE-4 Benefits

• Extend life of building

• Reduce leaks

• Reduce operating and maintenance expenses

CHISAGO LAKES MIDDLE SCHOOL FACILITY CONDITIONS

BUILDING ENVELOPE IMPROVEMENTS

Replace Stucco Finish Coat and Repair Concrete Columns on the North and South Elevations

Stucco façade elements appear to be in fair condition. Stucco cracks were observed in many locations. The stucco finish coat should be replaced to repair cracking and water infiltration to the supporting structure behind. Stucco cracking is likely due to exposure to the elements. The stucco is typically on the vertical surface. Moisture that enters through the stucco cracks is likely able to escape or evaporate, but it can lead to damage to the structure if allowed to continue. These repairs should be completed in the next 4-7 years.

Exposed concrete columns are present at original building elevations. The surface of the concrete was generally in fair condition. During inspection cracks were noted in several concrete columns. Delamination/spalling of concrete was observed at a few exposed concrete columns. Deteriorated, cracked, and/or delaminated concrete should be repaired. Cracks should be hammer sounded for any delamination of the concrete. Cracks without delamination may be repaired via crack injection. Delaminated concrete is to be cut out and patched with anappropriate patching concrete mix. Concrete repairs should be conducted in the next 0-3 years. This work is primarily needed at the north and south elevation, but localized concrete deterioration is present throughout the main portion of the buildingwhere exposed concrete structure is present.

CONDITIONS

BUILDING ENVELOPE IMPROVEMENTS

MS-BE-5 Replace Stucco Finish Coat and Repair Concrete Columns on the North and South Elevations

• Stucco removal and replacement (1,000 SF)

• Remove spalled/ delaminated concrete (30 SF)

• Patch concrete (30 SF)

• Crack injection (100 LF)

• Repair concrete sidewalk (100 SF)

MS-BE-4 Benefits

• Extend life of building

• Reduce leaks

• Reduce operating and maintenance expenses

CHISAGO LAKES MIDDLE SCHOOL FACILITY CONDITIONS

BUILDING ENVELOPE IMPROVEMENTS

Replace 4 sets of Storefront Entry Doors, Five (5) Exterior Single Doors, and Two (2) Garage Doors, Clean and Paint Remaining Doors.

The hollow metal swing doors are corroded at the bottom of the door frames. The doors and center mullion are showing signs of wear.

We recommend replacing the indicated exterior doors, including the hardware and locks. Re-key all the door locks to comply with the District-wide Schlage standard.

BUILDING ENVELOPE IMPROVEMENTS

CHISAGO LAKES MIDDLE SCHOOL FACILITY

CONDITIONS

MS-BE-6 Replace 4 Sets of Storefront Entry Doors, Five (5) Exterior Single Doors, and Two (2) Garage Doors, Clean and Paint Remaining Doors.

• Replace exterior doors and frames including hardware and locks

• Re-key all locks to District-wide Schlage standard

• Clean and paint remaining doors

MS-BE-6 Benefits

• Extend life of structure

• Reduce maintenance

• Increase security

CHISAGO LAKES MIDDLE SCHOOL FACILITY CONDITIONS

CHISAGO LAKES MIDDLE SCHOOL FACILITY CONDITIONS

CHISAGO LAKES MIDDLE SCHOOL FACILITY CONDITIONS

BUILDING ENVELOPE IMPROVEMENTS

Replace Sealant Around Doors, Windows and Control Joints.

Exterior sealant at window & door perimeters, control joints, and other areas of the façade was in poor condition. Weathering, splitting, and cracking of sealant was observed throughout the façade (Photos 16-18). Sealant is missing or has fallen out at some penetrations in the brick (Photo 19).

Exterior sealants deteriorate as a result of exposure to UV light, moisture, and temperature cycles. Sealants typically have a lifespan of 8-12 years depending on material, material quality, and application/configuration. Based on observed conditions, it appears that the sealants on the building have reached or exceeded their useful life.

Sealants are an important component of the exterior building envelope and in many cases are the first line of defense in preventing water entry into and through exterior walls. Deteriorated sealants greatly increase the potential for water entry.

Replace all window and door perimeter, control joint, and penetration sealant at the building façade, as well as any miscellaneous sealants present. These repairs should be completed in the next 0-3 years.

CHISAGO LAKES MIDDLE SCHOOL FACILITY CONDITIONS

BUILDING ENVELOPE IMPROVEMENTS

MS-BE-7 Replace Sealant at Doors, Windows, and Control Joints

• Replace sealant (approximately 8,000 LF)

MS-BE-7 Benefits

• Extend life of building

• Reduce leaks

• Reduce operating and maintenance expenses

CHISAGO LAKES MIDDLE SCHOOL FACILITY CONDITIONS

MECHANICAL AND PLUMBING

Controls; Pneumatic to DDC and Upgrade Existing DDC

The Chisago Lakes Middle School controls system is a combination of pneumatic controls and direct digital controls (DDC). Pneumatic control systems are less energy efficient and more difficult to maintain than modern DDC Systems. The controls system could use the following upgrades to bring the building’s controls system to the same standard as the rest of the District.

- Existing field mounted panels and wiring/conduit to remain

- Replacement of field devices

o Temperature sensors

o Static pressure transducers

o Humidity sensors

CHISAGO LAKES MIDDLE SCHOOL FACILITY CONDITIONS

o Differential pressure transducers

- Safeties and limits to remain unless faulty in the field during checkout

- Discretionary replacement of valve assemblies and damper actuators

o All pneumatics to be removed and replaced

o Electronic damper actuators and valve assemblies are brand and age dependent

 All JCI damper actuators replaced with Belimo

 If Belimo actuators are current, they will remain and be reused

- If there are existing pneumatically operating fire/smoke damper actuators, they will remain and stay in operation

Benefits of the DDC controls upgrade include improved occupant temperature control, reduced energy consumption, reduced maintenance, improved equipment scheduling and troubleshooting, alarm monitoring, operational tracking and trending of mechanical equipment parameters.

CHISAGO LAKES MIDDLE SCHOOL

MECHANICAL AND PLUMBING

MS-ME-1 Pneumatic to Direct Digital Controls (DDC) and Upgrade Existing DDC

• Replace all the pneumatic components with DDC on HVAC equipment that is being re-used as well as the new equipment

• Replace the existing failing DDC controls with the new building automation system platform with remote access

• Provide DDC controllers and control panels

• Provide all programming required for this conversion

MS-ME-1 Benefits

• Easy to use, modernized system control updates

• Improved building monitoring and maintenance troubleshooting

• Improved occupant comfort

• Extended heating system life

• Reduced energy consumption

• Reduced maintenance

CHISAGO LAKES MIDDLE SCHOOL FACILITY CONDITIONS

MECHANICAL AND PLUMBING

Remove Abandoned Boiler and Piping, Metal Mezzanine and Steam Piping, Install New Condensing Boiler Consolidate Pumps and Add Glycol Feed Station with Filter, Demolish Chimney. Demolish Steam and Condensate Mains.

The existing Middle School hot water boiler plant consists of one (1) 2011 Hydrotherm KN-30 boiler that is 3,000,000 BTUs (British Thermal Units) and one (1) 2010 Hydrotherm KN-20 boiler that is 2,000,000 BTUs. There is an old, abandoned steam boiler and piping that takes up a lot of space making it difficult for maintenance.

Nexus recommends demolishing the abandoned steam boiler and all steam piping in the boiler room to make the space more usable and accessible for maintenance. A new 3,000,000 BTU hot water boiler would also be added to accommodate future hot water equipment that is currently gas-fired. The new boiler would be a condensing style, high efficiency boiler that would provide a high-efficiency heating water plant to accommodate the entire building. Hot water pumps would be consolidated as part of this improvement as there are several existing sets of pumps that are difficult to maintain and operate together.

A side-stream filter would also be added so it can collect any particulate, debris, and rust within the water volume. The filter can also affect control valves and heat transfer surfaces. A glycol fill tank will also be installed to allow for ease of refilling the heating piping system when required.

Benefits of this heating system improvement include reduced maintenance, increased heating system life, and improved system operation.

CHISAGO LAKES MIDDLE SCHOOL

MECHANICAL AND PLUMBING

MS-ME-2 Remove Abandoned Boiler, Metal Mezzanine and Steam Piping, Install New Condensing Boiler, Consolidate Pumps and Add Glycol Feed Station with Filter, Demolish Chimney. Demolish Steam and Condensate Mains.

• Remove existing steam boiler and piping

• Install new hot water, condensing boiler and associated piping

• Consolidate heating water pumps

• Add glycol feed station and side stream filter

• Provide all roofing and sealing work as required

• Provide DDC controls, sequencing, and programming

• Provide all associated general construction and electrical work as required

MS-ME-2 Benefits

• Upgraded heating system

• Improved temperature control

• Improved occupant comfort

• Reduced maintenance

• Improved learning/work environment

CHISAGO LAKES MIDDLE SCHOOL FACILITY CONDITIONS

MECHANICAL AND PLUMBING

Remove Abandoned Classroom Unit Ventilators and Old Finned Tube Radiation, Install New Finned Tube, Remove Heat Exchanger and Connect Piping Directly. Patch Exterior Wall Openings

Nexus recommends the following upgrades to the buildings overall heating system:

- Remove abandoned classrooms unit ventilators and old finned tube radiation (FTR) and replace with new hot water FTR. The classrooms would be calculated to determine the heat loss of the space so the appropriate amount of FTR can be installed.

- Remove old FTR in stairwells where there is no exterior wall exposure, so it is no longer needed. Paint and patch wall as required to match existing wall.

- Remove water to water heat exchangers (Qty 3) and connect hot water piping directly to avoid the loss in efficiency from pushing through these devices.

Benefits of this heating system improvement include reduced maintenance, increased heating system life, and improved system operation.

CHISAGO LAKES MIDDLE SCHOOL FACILITY CONDITIONS

MECHANICAL AND PLUMBING

MS-ME-3 Remove Abandoned Classroom Unit Ventilators and Old Finned Tube Radiation, Install New Finned Tube, Remove Heat Exchanger and Connect Piping Directly. Patch Exterior Wall Openings

• Remove abandoned classrooms unit ventilators, old, finned tube radiation (FTR), and water to water heat exchangers

• Install new hot water FTR in classrooms and associated piping

• Paint and patch wall in stairwells where old FTR was removed

• Re-pipe hot water piping directly after removal of heat exchangers

• Provide DDC controls, sequencing, and programming

• Provide all associated general construction and electrical work as required

MS-ME-3 Benefits

• Upgraded heating system

• Improved temperature control

• Improved occupant comfort

• Reduced maintenance

• Improved learning/work environment

CHISAGO LAKES MIDDLE SCHOOL FACILITY CONDITIONS

MECHANICAL AND PLUMBING

Replace Four 1999 Roof Top Units, Two R-22 Air-Cooled Condensing Units and Replace Three 2002-2005 Roof Top Units

There are several rooftop and make-up air handling units serving the Chisago Lakes Middle School that are becoming maintenance problems for the District. These units are as listed below.

• 1999 AAON RTU-1 and mated 2005 ACCU-1 that serves classrooms. This rooftop air handling unit currently has R-22 DX cooling and hot water heating.

• 1999 AAON RTU-2 that serves the media center. This rooftop air handling unit currently has R-22 DX cooling and hot water heating.

• 1999 McQuay RTU-3 that serves the band area. This rooftop air handling unit currently has R-22 DX cooling and gas heating.

• 1999 AAON RTU-4 and mated 2005 ACCU that serves the cafeteria. This rooftop air handling unit currently has R-22 DX cooling and gas heating.

• 2002 AAON RTU-5 that serves the classrooms. This rooftop air handling unit currently has R-22 DX cooling and hot water heating.

• 2002 AAON RTU-6 that serves the classrooms. This rooftop air handling unit currently has R-22 DX cooling and hot water heating.

• 2005 AAON RTU-7 that serves the classrooms. This rooftop air handling unit currently has R-22 DX cooling and hot water heating.

• 2005 AAON MAU-1 that serves the kitchen. This rooftop air handling unit currently has R-22 DX cooling and gas heating.

CHISAGO LAKES MIDDLE SCHOOL FACILITY CONDITIONS

Nexus recommends replacing the seven (7) rooftop and make-up air handling units one for one with new double wall rooftop air handling units with hot water heating and DX dehumidification. The new rooftop air handling units would come with code compliant filtration, hot water heating coils, chilled water dehumidification coils, access sections, and supply fans with variable speed drives (VSDs).

The benefits of this HVAC improvement include increased system life expectancy, improved DDC scheduling, improved ventilation, increased energy savings, improved occupant comfort, and an improved learning and working environment.

CHISAGO LAKES MIDDLE SCHOOL

MECHANICAL AND PLUMBING

MS-ME-4,5 Replace Four 1999 Roof Top Units, Two R-22 Air-Cooled Condensing Units and Replace Three 2002-2005 Roof Top Units

• Remove existing rooftop and make-up air handling units, piping, and controls

• Provide new double wall rooftop air handling units with hot water heating and DX dehumidification

• Extended new hot water and refrigerant piping to air handling units as required

• Provide variable speed drives for the supply and relief fans

• Provide all roofing and sealing work as required

• Provide DDC controls, sequencing, and programming

• Provide all associated general construction and electrical work as required

MS-ME-4,5 Benefits

• Upgraded HVAC infrastructure

• Increased ventilation for improved indoor air quality

• Improved temperature control

• Improved occupant comfort

• Reduced maintenance

• Improved learning/work environment

CHISAGO LAKES MIDDLE SCHOOL FACILITY CONDITIONS

MECHANICAL AND PLUMBING

Replace 1968 AHU-11 and R-22 Air Cooled Condensing Unit; Replace Gym AHU-4; Demo 1958 Boys Locker Room Unit Ventilators, Replace Exhaust Fan, and Add Transfer Air from Gym; Demo 1974 Girls Locker Room AHU, Replace Exhaust Fan, and Add Transfer Air from Gym. Replace 1981 Gym AHU-2, 1958 Wood Shop AHU-5, and Demo Abandoned 1984 ACCU. Add Dehumidification to Gym AHU-2, Wood Shop AHU-5.

There are several air handling units (AHUs) and unit ventilators serving the Middle School that are becoming maintenance problems for the District. These air handlings units and unit ventilators are listed below.

• 1968 AHU-11 and mated 2002 R-22 ACCU-11 that serves the third-floor classrooms. This air handling unit currently has DX cooling but no heating coil. There are terminal hot water heating coils located downstream in the ductwork. Nexus recommends replacing AHU-11 and ACCU-11 with a new packaged rooftop air handling unit with DX dehumidification, hot water heating, and would incorporate energy recovery. Nexus also recommends leaving the existing coils and adding variable air volume slipin boxes. The slip-in VAVs would be located in the duct upstream of each terminal coil. The existing overhead ductwork system would remain. The addition of these VAV boxes would allow the space airflow to vary based on the space conditions.

• 1981 AHU-2 that serves the gym. This air handling unit currently has hot water heating and no cooling. Nexus recommends replacing this unit with a new AHU with hot water heating and DX dehumidification (Option ME8).

• 1974 AHU-4 that serves the old gym. This air handling unit currently has hot water heating and no cooling. Nexus recommends replacing this unit with a new rooftop air handling unit with hot water heating and DX dehumidification.

CHISAGO LAKES MIDDLE SCHOOL FACILITY CONDITIONS

• 1958 AHU-5 that serves the wood shop. This air handling unit currently has hot water heating and no cooling. Nexus recommends replacing this unit with a new AHU with hot water heating and DX dehumidification (Option ME-8).

• 1958 unit ventilators (Qty 2) that serve the boys locker room. These unit ventilators have hot water heating and no cooling. Nexus recommends demoing these units and adding a new exhaust fan and transfer air from the gym.

• 1974 AHU that serves the girls locker room. This air handling unit has hot water heating and no cooling. Nexus recommends demoing this unit and adding a new exhaust fan and transfer air from the gym.

The benefits of this HVAC improvement include increased system life expectancy, improved DDC scheduling, improved ventilation, increased energy savings, improved occupant comfort, and an improved learning and working environment.

CHISAGO LAKES MIDDLE SCHOOL FACILITY CONDITIONS

MECHANICAL AND PLUMBING

MS-ME-6,7,8 Replace 1968 AHU-11 and R-22 Air Cooled Condensing Unit; Replace Gym AHU-4; Demo 1958 Boys Locker Room Unit Ventilators, Replace Exhaust Fan, and Add Transfer Air from Gym; Demo 1974 Girls Locker Room AHU, Replace Exhaust Fan, and Add Transfer Air from Gym. Replace 1981 Gym AHU-2, 1958 Wood Shop AHU-5, and Demo Abandoned 1984 ACCU. Add Dehumidification to Gym AHU-2, Wood Shop AHU-5.

• Remove existing air handling units, unit ventilators, piping, and controls

• Provide new double wall rooftop and indoor air handling units with hot water heating and DX cooling

• Provide new exhaust fans and transfer air for boy’s and girl’s locker rooms

• Provide variable speed drives for the supply and relief fans

• Provide all roofing and sealing work as required

• Provide DDC controls, sequencing, and programming

• Provide all associated general construction and electrical work as required

MS-ME-6,7,8 Benefits

• Upgraded HVAC infrastructure

• Increased ventilation for improved indoor air quality

• Improved temperature control

• Improved occupant comfort

• Reduced maintenance

• Improved learning/work environment

CHISAGO LAKES MIDDLE SCHOOL FACILITY CONDITIONS

MECHANICAL AND PLUMBING

Replace Six (6) R-22 Condensing Units and Associated Coils – Condensing Units ACCU-7, 8, 9, 10, 12,14

There are currently six (6) 2002/2005 air-cooled condensing units that remain at the Middle School that are starting to corrode and deteriorate. They are also having several maintenance issues such as control failures, leaking refrigerant, motor protection failures, and condensing fan failures. These 22-yearold condensing units are still utilizing R-22 refrigerant which has become obsolete and far less efficient than today’s systems. These units are listed below:

• 2002 ACCU-7. This is a 20-ton condensing unit that is mated with air handling unit AHU-7 that serves classrooms.

• 2002 ACCU-8. This is a 16-ton condensing unit that is mated with air handling unit AHU-8 that serves classrooms.

• 2002 ACCU-9. This is a 16-ton condensing unit that is mated with air handling unit AHU-9 that serves classrooms.

• 2002 ACCU-10. This is a 13-ton condensing unit that is mated with air handling unit AHU-10 that serves classrooms.

• 2005 ACCU-12. This is an 8-ton condensing unit that is mated with air handling unit AHU-12 that serves the technology classroom.

• 2005 ACCU-14. This is a 6-ton condensing unit that is mated with air handling unit AHU-14 that serves choir.

CHISAGO LAKES MIDDLE SCHOOL FACILITY CONDITIONS

Nexus recommends replacing these old inefficient air-cooled condensing units and their mated DX cooling coils with new air-cooled condensing units and associated DX cooling coils with American Society of Heating and Refrigeration Engineer’s (ASHRAE) code compliant refrigerant that is more energy efficient and environmentally friendly. New refrigerant piping would be installed as required for the new refrigerant. Nexus also recommends demoing the abandoned 1984 ACCU.

Benefits of this cooling system upgrade include increased energy savings, reduced maintenance, improved system operation, and reduced environmental impact.

CHISAGO LAKES MIDDLE SCHOOL FACILITY CONDITIONS

MECHANICAL AND PLUMBING

MS-ME-9 Replace Six (6) R-22 Condensing Units and Associated Coils – Condensing Units ACCU-7, 8, 9, 10, 12,14

• Provide new DX cooling coils with code compliant refrigerant

• Provide new air-cooled condensing units

• Demo abandoned 1984 as part of this improvement

• Provide new refrigerant piping to air handling units as required for new refrigerant

• Provide all roofing and sealing work as required

• Provide DDC controls, sequencing, and programming

• Provide all associated general construction and electrical work as required

MS-ME-9 Benefits

• Upgraded HVAC infrastructure

• Improved temperature control

• Improved occupant comfort

• Reduced maintenance

• Improved learning/work environment

MECHANICAL AND PLUMBING

Add New Chilled Water Plant for Entire Middle School

As a secondary cooling option in lieu of the DX additions noted above, Nexus recommends the addition of an air-cooled chiller to serve the Middle School.

This chiller would be sized to serve all the rooftop and indoor air handling units in the building with some capacity for any future addition of cooling. All existing DX air handing units would be converted to chilled water except for the 2020 RTU-1 that serves gymnastics and the 2018 ACCU that serves the Chisago Lakes Education Center (CLEC). New chilled water piping mains would be installed throughout the building as required and would be sized for the potential future addition of cooling.

CHISAGO LAKES MIDDLE SCHOOL

The benefits of this HVAC improvement include increased system life expectancy, improved DDC scheduling, improved ventilation, improved occupant comfort, and an improved learning and working environment.

CHISAGO LAKES MIDDLE SCHOOL FACILITY CONDITIONS

MECHANICAL AND PLUMBING

MS-ME-10 Add New Chilled Water Plant for Entire Middle School

• Install new air-cooled chiller, pumps, and chilled water main distribution piping

• Install new chilled water-cooling coils for each air handling unit

• Install new chilled water piping to air handling units as required for cooling addition

• Provide propylene glycol, glycol fill station, and side-stream filter for the new chilled water system

• Provide all roofing and sealing work as required

• Provide DDC controls, sequencing, and programming

• Provide all associated general construction and electrical work as required

MS-ME-10 Benefits

• Upgraded cooling infrastructure

• Improved temperature control

• Improved occupant comfort

• Reduced maintenance

• Improved learning/work environment

CHISAGO LAKES MIDDLE SCHOOL FACILITY CONDITIONS

MECHANICAL AND PLUMBING

Replace 1999, 2002, and 2005 Air Handling Units

There is one (1) 1999, four (4) 2002, and one (1) 2005 air handling units serving the Chisago Lakes Middle School that are still in good shape but should be considered for replacement in ten (10) years. These units are as listed below.

• 1999 AHU-12 that serves the computer lab. This air handling unit currently has hot water heating and DX dehumidification.

• 2002 AHU-7 that serves classrooms. This air handling unit currently has hot water heating and DX dehumidification.

• 2002 AHU-8 that serves classrooms. This air handling unit currently has hot water heating and DX dehumidification.

• 2002 AHU-9 that serves classrooms. This air handling unit currently has hot water heating and DX dehumidification.

• 2002 AHU-10 that serves classrooms. This air handling unit currently has hot water heating and DX dehumidification.

• 2005 AHU-14 that serves the choir room. This air handling unit currently has hot water heating and DX dehumidification.

The new air handling units would come with code compliant filtration, heating water coils, DX dehumidification coils, access sections, and supply fans with variable speed drives (VSDs).

The benefits of this HVAC improvement include increased system life expectancy, improved DDC scheduling, improved ventilation, increased energy savings, improved occupant comfort, and an improved learning and working environment.

CHISAGO LAKES MIDDLE SCHOOL

MECHANICAL AND PLUMBING

MS-ME-11 Replace 1999, 2002, and 2005 Air Handling Units

• Remove existing air handling units, piping, and controls

• Provide new double wall indoor air handling units with hot water heating and DX dehumidification

• Provide variable speed drives for the supply and relief fans

• Provide all roofing and sealing work as required

• Provide DDC controls, sequencing, and programming

• Provide all associated general construction and electrical work as required

MS-ME-11 Benefits

• Upgraded HVAC infrastructure

• Increased ventilation for improved indoor air quality

• Improved temperature control

• Improved occupant comfort

• Reduced maintenance

• Improved learning/work environment

CHISAGO LAKES MIDDLE SCHOOL

MECHANICAL AND PLUMBING

Replace Dust Collector and Ductwork

The existing wood dust collector at the Middle School is 2005 vintage. This antiquated unit does not adequately remove dust from the woodworking spaces due to age-related wear and tear and component failure. This compromises air quality when the woodworking spaces are in use.

Nexus recommends replacement of this dust collector unit with a new modern International Mechanical Code (IMC) compliant system. New dust collection ductwork would be installed where required and routed to each piece of equipment requiring dust collection if existing ducts cannot be re-used.

This upgrade will ensure adequate dust collection in the woodworking spaces, increasing indoor air quality and providing reliable unit operation.

CHISAGO LAKES MIDDLE SCHOOL FACILITY CONDITIONS

MECHANICAL AND PLUMBING

MS-ME-12 Replace Dust Collector and Ductwork

• Demo existing dust collector and ductwork

• Provide new recirculating dust collector

• Provide new dust collecting ductwork

• Provide code required fire protection if required

• Provide all associated controls and electrical work

MS-ME-12 Benefits

• Upgraded HVAC infrastructure

• Improved indoor air quality

• Improved occupant comfort

• Reduced maintenance

• Reduced energy consumption

• Improved learning environment

• Improved Safety

CHISAGO LAKES MIDDLE SCHOOL FACILITY CONDITIONS

MECHANICAL AND PLUMBING

Exhaust Fans Replacement (Qty 20)

There are about forty (40) total inline and rooftop exhaust fans at the Middle School. Several of these exhaust fans have exceeded their recommended service life and are in need of replacement.

Nexus recommends replacing some of these fans when major work is taking place so the best pricing can be obtained from the contractors. Nexus has budgeted for the replacement of twenty (20) existing exhaust fans for the school. Nexus will work along with the district on the priority of which ones want to be replaced.

Fans will be a direct replacement to the original size/capacity but will have premium efficiency motors installed to increase energy savings. The fan size/capacity may be reduced if engineering can justify where over ventilation is occurring.

The benefits of this HVAC improvement will result in increased energy savings, improved flow and reduced maintenance for exhaust fans, and reduced leaks from seals.

CHISAGO LAKES MIDDLE SCHOOL

Add Thermal Equalizers to Multi-Purpose Gym and Gymnastics Room

The existing multi-purpose gym and gymnastics room currently suffer from temperature stratification due to the heights of these spaces. Warmer air migrates to the ceiling making it difficult to achieve proper temperature control, especially in winter.

Nexus recommends the installation of thermal equalizer destratification fans in the multi-purpose gym (Qty 4) and gymnastics room (Qty 2) to ensure proper ventilation.

Benefits of these improvements include energy savings, improved temperature control and occupant comfort.

CHISAGO LAKES MIDDLE SCHOOL

MECHANICAL AND PLUMBING

MS-ME-13 Replace Exhaust Fans (Qty 20) and Add Thermal Equalizers to Multi-Purpose Gym and Gymnastics

• Replace exhaust fans with new exhaust fans with associated ductwork

• Provide all roofing and sealing work as required

• Install thermal equalizers in multi-purpose gym and gymnastics

• Wire thermal equalizers to wall switch/controls

• Provide DDC controls, sequencing, and programming

• Provide all associated general construction and electrical work as required

MS-ME-13 Benefits

• Upgraded exhaust system infrastructure

• Improved temperature control

• Improved occupant comfort

• Reduced maintenance

• Improved work environment

CHISAGO

MECHANICAL AND PLUMBING

Add Combustion Air Venting to Existing 2018 Water Heater, Add Additional Water Heater, and Replace Domestic Hot Water Recirculation Pump that is Undersized

The existing 2018 water heater currently pulls in combustion air directly from the boiler room which can lead to efficiency, safety, and maintenance issues.

Nexus recommends directly venting the combustion air for the water heater from the outside. This improvement would enhance the efficiency, safety, and performance of the water heater while contributing to better indoor air quality.

Nexus also recommends adding a secondary water heater and replacing the undersized domestic hot water recirculation pump. The new water heater would be ultra-high efficiency, condensing-style, and sealed combustion water heater.

The benefits of this upgrade would provide energy savings, reduce maintenance, and improve the overall water heating system.

MECHANICAL AND PLUMBING

MS-ME-14 Add Combustion Air Venting to Existing 2018 Water Heater, Add Additional Water Heater, and Replace Domestic Hot Water Recirculation Pump that is Undersized

• Install new combustion air venting directly from outside for the existing 2018 water heater

• Install new ultra-high efficiency, seal combustion hot water

• Extend hot water and hot water circulation piping to new water heater connections

• Provide and install domestic hot water recirculation pump

• Provide associated general and electrical construction work as required

MS-ME-14 Benefits

• Improved occupant comfort

• Improved plumbing fixture operation

• Increased equipment life

• Reduced maintenance

CHISAGO LAKES MIDDLE SCHOOL

MECHANICAL AND PLUMBING

Replace Six (6) Non ADA Wash Fountains and 20 Flush Valves and Replace One Sump Pump that is Undersized

There are several plumbing devices that are starting to increase in maintenance/non-ADA compliant and should be replaced. See below for this equipment:

• Non-ADA Wash Fountain (Qty 6)

• Flush Valve Replacements in Toilet Rooms (Qty 20)

• Sump Pump (Qty 1)

Nexus recommends replacing these existing plumbing fixtures one for one with new ADA compliant fixtures. Plumbing piping would be modified as required for the new fixtures.

Replacing these plumbing fixtures would provide reduced water consumption, reduced maintenance, and extended life expectancy of the plumbing system.

CHISAGO LAKES MIDDLE SCHOOL

MECHANICAL AND PLUMBING

MS-ME-15 Replace Six (6) Non-ADA Wash Fountains and 20 Flush Valves and Replace One Sump Pump that is Undersized

• Demo existing wash stations, sump pump, and flush valves

• Provide and install new ADA compliant fixtures one for one

• Modify existing plumbing piping as required for new fixtures

• Provide associated general and electrical construction work as required

MS-ME-15 Benefits

• Improved occupant comfort

• Improved plumbing fixture operation

• Increased equipment life

• Reduced maintenance

CHISAGO LAKES MIDDLE SCHOOL FACILITY CONDITIONS

MECHANICAL AND PLUMBING

Replace Galvanized Piping

Some domestic water piping located in the 1935, 1959, 1968, and 1974 portions of the building is old galvanized steel. Over time, galvanized pipes are susceptible to corrosion and rust, which can lead to a buildup of mineral deposits within the piping. This corrosion process not only reduces water flow but also compromises water quality, potentially introducing harmful contaminants into the water used by students and staff. The deterioration of these pipes can lead to frequent leaks and occasional bursts, disrupting school operations and requiring costly repairs and maintenance.

Nexus recommends the replacement of the galvanized domestic water piping with insulated copper piping. Copper plumbing offers superior durability and resistance to corrosion compared to galvanized steel and does not suffer from the same accumulation of mineral deposits that can impede water flow and quality. Furthermore, copper pipes are less prone to leaks and bursts, ensuring a more reliable water supply. Importantly, copper systems do not carry the risk of leaching harmful substances like lead, providing a safer environment for students and staff and aligning with health and safety standards in educational facilities.

Benefits of this work would be reduced maintenance, improved water quality, and improved domestic hot water system.

CHISAGO LAKES MIDDLE SCHOOL FACILITY CONDITIONS

MECHANICAL AND PLUMBING

MS-ME-16 Replace Galvanized Piping

• Remove existing galvanized domestic water piping and components in 1935, 1968, and 1974 portions of the building

• Install new insulated copper domestic water piping

• Provide associated general construction work as required

MS-ME-16 Benefits

• Reduced potential for elevated lead and galvanized contaminants in water supply

• Improved drinking water quality

• Reduced maintenance

MECHANICAL AND PLUMBING

Replace Sanitary Sewer on Main Level Under Building and Sanitary Pipe Feeding Lift Station in Lower-Level CLEC

There are several issues with the sanitary lines under the main level of the 1974 building addition that route to the manhole shown in the top picture to the right. This sanitary line has corroded to the point that tree roots have started to grow through the pipe.

The sanitary line in the Lower-Level CLEC that routes from the bathroom to the sanitary lift shown in the bottom picture to the right has also started to corrode and deteriorate.

Nexus recommends sawcutting these two existing sanitary lines out and demoing them. New sanitary lines would then be installed. The portion of the santiary line going to the manhole in the top picture will be included under the Civil scope of work.

Replacing these sanitary lines would reduce maintenance and extend the life expectancy of the sanitary system.

CHISAGO LAKES MIDDLE SCHOOL

CONDITIONS

CHISAGO LAKES MIDDLE SCHOOL

MECHANICAL AND PLUMBING

MS-ME-17,18 Replace Sanitary Sewer on Main Level Under Building and Sanitary Pipe Feeding Lift Station in Lower-Level CLEC

• Saw cut and remove existing sanitary lines as required

• Install new sanitary piping

• Provide associated general construction work as required

MS-ME-17,18 Benefits

• Improved sanitary system

• Increased equipment life

• Reduced maintenance

MECHANICAL AND PLUMBING

Add Fire Protection to Building (Includes Fire Pump & Structural Bracing)

CHISAGO LAKES MIDDLE SCHOOL FACILITY CONDITIONS

The existing Chisago Lakes Middle School only has fire protection in the lower-level CLEC spaces. The rest of the building does not have a fire protection sprinkler system installed and is not protected from property loss or life safety in the event of a fire. Installing fire protection sprinklers in buildings significantly enhances safety by automatically discharging water to suppress fires upon heat detection. According to the National Fire Protection Association (NFPA), buildings equipped with sprinklers see a lower rate of firerelated injuries and property damage compared to those without, highlighting their effectiveness.

Moreover, retrofitting buildings with these systems ensures compliance with modern safety standards and can lead to lower insurance premiums due to reduced risks of fire damage. Fire sprinkler systems also require minimal maintenance, ensuring durability and consistent performance over time, making them a reliable choice for enhancing safety.

Nexus proposes installing a fire protection sprinkler system for the entire Chisago Lakes Middle School. Installation is a proactive measure to protect students, staff, and property.

CHISAGO LAKES MIDDLE SCHOOL FACILITY CONDITIONS

MECHANICAL AND PLUMBING

MS-ME-19 Add Fire Protection to Building (Includes Fire Pump & Structural Bracing)

• Install new wet-pipe fire protection system to fully protect the entire building

• Provide all required general construction work

MS-ME-19 Benefits

• Reduced damage during a fire event

• Increased occupant safety

CHISAGO LAKES MIDDLE SCHOOL FACILITY CONDITIONS

MECHANICAL AND PLUMBING

Retro-Commissioning of HVAC Equipment

Building retro-commissioning is a systematic process that ensures all buildings perform as efficiently as possible according to the owner’s operational needs as well as adjustment of HVAC equipment’s operational parameters to meet current space use.

The Building Automation System (BAS) plays a crucial role in providing a comfortable, energy-efficient environment for students, parents, and staff. Over time, damper and valve controls have gone out of proper adjustment, components fail, and controls sequences are modified and may not be programmed to provide an optimal balance between comfort, indoor air quality, and energy efficiency.

This Nexus Retro-commissioning Team will identify the root cause of HVAC equipment operational issues and will provide adjustments to the sequences and outdoor air setting to improve occupant comfort while reducing energy consumption where possible. The retro-commissioning process will also identify components that require adjustment or replacement.

Retro-commissioning activities include:

HVAC Equipment: Nexus will verify existing HVAC equipment operation and control sequences through observation. We will provide adjustment and tuning services to achieve optimal operation and improved occupant comfort. Documentation of the findings with corrections and recommendations for further improvements will be made.

Services include:

• Ventilation study to assure all spaces are ventilated per the current code requirements and the outdoor air setpoints will be adjusted up or down based on current space occupancy

• Test point commands vs actual controller output at each device for heating, cooling, and mixed air control

• Verify valve/damper operation on reheat coils and air handler coils

• Verify indicated vs actual (duct static, supply and return temperatures)

CHISAGO LAKES MIDDLE SCHOOL FACILITY CONDITIONS

• Verify mixed-air operation (damper position and economizer operation)

Valves and Dampers: Nexus will test all existing rooftop (RTU) and indoor air handling unit (AHU) sequences along with the valve and damper operation to ensure control actuators are fully operational. We observe valve/damper/actuator operation and check for any physical signs of valve/damper leakage or binding, which results in operational issues and increased energy consumption. We check discharge temperature with valves in the fully open and closed positions. In addition, we will provide unit pricing to replace any defective valves and/or actuators. Proper RTU and AHU operation provides improved occupant comfort at optimal energy efficiency.

Zone Reheat Valves: Nexus will test existing zone reheat valves for proper operation. We ensure command valves fully open and close and observe valve/actuator operation. We inspect valves for any physical signs of valve leakage or binding, check discharge temperature with valve in the fully open and closed positions and provide unit pricing to replace any defective valves and/or actuators.

Economizer: Nexus will update the control sequence for mixed-air dampers to their setpoints with economizer lockout setpoints.

Heating Water Pump Variable Speed Drives (VSDs): Nexus will lower the pressure setpoint to allow drives to modulate down to the slowest speed required to satisfy the most critical room temperature sensor.

Boilers: Nexus will optimize sequencing and staging of equipment and adjust the water reset schedules based on outside air temperature.

The action steps noted above are part of the Nexus retro-commissioning process. The benefits of this process include improved temperature control and occupant comfort, reduced energy consumption, reduced maintenance, and extended HVAC equipment life.

CHISAGO LAKES MIDDLE SCHOOL

MECHANICAL AND PLUMBING

MS-ME-20 Retro-Commissioning of HVAC Equipment

• Provide retro-commissioning of all existing HVAC systems

• Provide adjustments to existing sequences to improve HVAC system operation

• Verify operation of all dampers, actuators, valves, and terminal HVAC devices

MS-ME-20 Benefits

• Improved temperature control and occupant comfort

• Reduced energy consumption

• Reduced maintenance

• Extended HVAC equipment life

CHISAGO LAKES MIDDLE SCHOOL FACILITY CONDITIONS

ELECTRICAL, TECHNOLOGY, AND SAFETY SYSTEMS

Electrical Power Distribution Upgrades Including Switchgear and Panels in the 1958 Building

The switchboard and panels that are original to the 1958 building are now 66 years old and are at the end of their useful life. The original manufacturer of these panels no longer exists, and replacement circuit breakers are not available.

Panelboards that were installed for the 1984 and 1998 additions appear to be in good condition.

It is recommended that the 1958 electrical panels and switchboard be replaced. New panels will provide a safer electrical system since new equipment will be in compliance with current manufacturing standards for electrical equipment and will reduce maintenance costs.

The equipment recommended to be replaced includes two switchboards and 18 panelboards.

ELECTRICAL, TECHNOLOGY, AND SAFETY SYSTEMS

MS-ES-1 Electrical Power Distribution Upgrades Including Switchgear and Panels in the 1958 Building

• Replace two Switchboards

• Replace 18 Panelboards

MS-ES-1 Benefits

• Protection of and Improved Reliability of Electrical Infrastructure

• Reduced energy consumption

• Reduced maintenance

• Extended HVAC equipment life

CHISAGO LAKES MIDDLE SCHOOL FACILITY CONDITIONS

ELECTRICAL, TECHNOLOGY AND SAFETY SYSTEMS

Install New Generator to Control Primary Systems Such as Boiler, Boiler Pumps, Emergency Lighting, Coolers and Freezers (230 kW)

Currently, there is no backup power generator installed. This poses a risk for building security and life safety. In addition, costs may be incurred due to loss of heat in the building causing it to freeze up and loss of food that is stored in the coolers and freezers.

It is recommended that a generator be installed to provide backup power for these necessary items.

Increase the Size of the Generator from 230 kW to 1,000 kW to Cover Full Building Load Including Cooling

Installing a generator with full building backup will allow the school to function, even when utility power is lost. Increasing the size of the generator from 230 kW to 1,000 kW will also allow the building to be cooled.

. ELECTRICAL, TECHNOLOGY, AND SAFETY SYSTEMS

MS-ES-2.1, 2.2 Install New Generator

• Install new natural gas generator

• Install new automatic transfer switches, feeders, and electrical distribution

MS-ES-2.1, 2.2 Benefits

• Protection of and Improved Reliability of Electrical Infrastructure

• Improved safety

• Option to handle the entire building load to prevent school shutdowns

CHISAGO LAKES MIDDLE SCHOOL FACILITY CONDITIONS

ELECTRICAL, TECHNOLOGY, AND SAFETY SYSTEMS

LED Lighting Upgrade. Retrofits Kits for Fixtures in Good Condition, Replacement for Unique or Outdated Fixtures.

The existing lighting in classrooms, gymnasiums, and common areas is primarily fluorescent lamps throughout. The fixtures appear to be in fair condition; however, LED lamp technology is more energy efficient.

Replacing the fluorescent light fixtures with light fixtures that utilize LED technology will reduce overall energy use. In addition, the LED light fixtures have a life of more than 50,000 hours, which will save on lamp replacement costs reducing maintenance costs.

With LED light fixtures, dimming becomes a more viable standard. Dimmable lighting allows the users of the space to adjust the light levels as needed to enhance learning for students. Implementing dimming and occupancy sensors not only improves the functionality of the space, but it also reduces energy use.

ELECTRICAL, TECHNOLOGY, AND SAFETY SYSTEMS

MS-ES-3 LED Lighting Upgrade. Retrofit Kits for Fixtures in Good Condition, Replacement for Unique or Outdated Fixtures.

• Replace light fixtures throughout the building with LED light fixtures

• Controls to provide dimming capabilities

• Automatic shutoff of lighting

MS-ES-3 Benefits

• Reduce energy costs

• Reduce maintenance costs

• Enhance safety

CHISAGO LAKES MIDDLE SCHOOL FACILITY CONDITIONS

ELECTRICAL, TECHNOLOGY, AND SAFETY SYSTEMS

Replace Fire Alarm with a Code Compliant Voice Evacuation System

The existing fire alarm system is a Notifier system and is outdated. Current building codes require a voice evacuation fire alarm system in schools. The existing system is not capable of supporting a voice evacuation system. It is recommended that the entire fire alarm system be replaced throughout with a voice evacuation system to provide a code compliant system and better safety for staff and students.

ELECTRICAL, TECHNOLOGY, AND SAFETY SYSTEMS

MS-ES-4 Replace Fire Alarm with a Code Compliant Voice Evacuation System

• Replace existing fire alarm panel and amp

• 4 NAC panels

• Remote annunciators

• Smoke/heat and dust detectors

• Pull stations

• Monitor modules

• A/V Devices, speakers

MS-ES-4 Benefits

• Protection and improved reliability

• Improved safety

• Enhance security

CHISAGO LAKES MIDDLE SCHOOL FACILITY CONDITIONS

ELECTRICAL, TECHNOLOGY, AND SAFETY SYSTEMS

Add 10 New Security Cameras to Existing System, Upgrade Cable Serving Telephone System and Install Vape Sensors to Locker Rooms and Restrooms

Security cameras are approximately 5-6 years old. Although they still have 3-4 years left of their useful life, there are areas that need better camera coverage for better security. Add 10 new security cameras to the existing system. Replace cable serving telephone system.

With the increase in vaping among students, implementing vape sensors in restrooms and locker rooms helps to prevent vaping. It is recommended that vape sensors be installed in these problem areas.

ELECTRICAL, TECHNOLOGY, AND SAFETY SYSTEMS

MS-ES-5 Add 10 New Security Cameras to Existing System, Upgrade Cable Serving Telephone System and Install Vape Sensors to Locker Rooms and Restrooms

• Add 10 security cameras

• Add vape sensors to locker rooms and restrooms (qty 13)

• Upgrade cable serving telephone system

MS-ES-5 Benefits

• Protection and improved reliability

• Improved safety

• Enhance security

CHISAGO LAKES MIDDLE SCHOOL FACILITY CONDITIONS

ELECTRICAL, TECHNOLOGY, AND SAFETY SYSTEMS

Replace the Existing Paging System

The existing paging system is outdated and needs to be replaced. Newer systems have better intelligibility and are easier to use, making them more functional. Continual issues with the existing system also have continual maintenance costs to keep it operational.

Audio Enhancement systems for classrooms implement speakers and microphones in classrooms that enhance the learning experience for students. These systems have become the standard for new classrooms. Audio enhancement systems for classrooms have become beneficial for teachers and students to enhance the audio in the room making it easier for students to listen and understand the teacher. There are audio enhancement systems in seven classrooms. Audio enhancement should be implemented in the remaining classrooms.

It is recommended that the paging system be replaced throughout the building and audio enhancement be implemented in classrooms. The paging and audio enhancement systems can utilize the same speakers for both functions to help manage costs of replacement and implementation.

CONDITIONS

ELECTRICAL, TECHNOLOGY, AND SAFETY SYSTEMS

MS-ES-6 Replace the Existing Paging System

• Replace Paging system

• Add audio enhancement to 45 classrooms

• Add 5 corridor paging zones

• Add 178 common area speakers

• Server

MS-ES-6 Benefits

• Better zone paging

• Improved scheduling of notification bells

• Improved safety

• Enhanced learning environment

CHISAGO LAKES MIDDLE SCHOOL FACILITY CONDITIONS

ELECTRICAL, TECHNOLOGY, AND SAFETY SYSTEMS

Install Additional Outlets in Classrooms

The older areas of the building were not designed for the current need for outlets. Students need the outlets to keep the computers charged for the day. Adding more outlets will eliminate the need for extension cords used throughout the rooms.

ELECTRICAL, TECHNOLOGY, AND SAFETY SYSTEMS

MS-ES-7 Install Additional Outlets in Classrooms

• Add additional outlets where needed to average 6 per room

MS-ES-7 Benefits

• Improved charging stations

• Improved safety

CONDITIONS

ELECTRICAL, TECHNOLOGY, AND SAFETY SYSTEMS

Replace the Existing Gymnasium Sound System

The existing sound systems in the gymnasiums are 50 plus years old and are in need of replacement.

ELECTRICAL, TECHNOLOGY,

AND SAFETY

SYSTEMS

MS-ES-8 Replace the Existing Gymnasium Sound System

• Replace speakers and headend (Qty 2)

MS-ES-8 Benefits

• Improved sound

• Improved functionality

CHISAGO LAKES MIDDLE SCHOOL FACILITY CONDITIONS

ELECTRICAL, TECHNOLOGY AND SAFETY SYSTEMS

Install New Burglar Alarm Systems with 54 Motion Sensors and Two Keypads.

A burglar alarm system is also needed to enhance the security of the building. It is recommended that a burglar alarm system be installed.

ELECTRICAL, TECHNOLOGY, AND SAFETY SYSTEMS

MS-ES-9 Install New Burglar Alarm Systems with 54 Motion Sensors and Two Keypads

• Install new burglar alarm

• Install 25 motion sensors

• Install 2 keypads

MS-ES-9 Benefits

• Enhanced security

• Improved safety

CHISAGO LAKES MIDDLE SCHOOL FACILITY CONDITIONS

INTERIOR FINISHES AND ADA

High Priority Ceiling Replacement

Chisago Lakes Middle School is well maintained considering the age of the buildings. However, because of the age, there is a considerable amount of high priority interior finishes needs that should be addressed in the next 0-6 years. We have reviewed the ceilings and exposed structures to determine what has reached the end of useful life, shows stains, or is beginning to sag. The flooring from worn carpet to old VCT in corridors has been prioritized. Other areas include casework, ADA needs, and interior doors. Prioritization is based on immediate needs (0-3 years), priority 2 is from 4 to 6 years. Low priority would be those items that can be addressed in 7 to 10 years. The floor plans on the following pages indicate areas that need to be addressed based on the prioritization.

High Priority Ceilings:

High priority areas include the majority of the classrooms, corridors, and auxiliary spaces.

Low Priority Ceilings:

The new gym and a few other spaces do not need updating.

CHISAGO LAKES MIDDLE SCHOOL FACILITY CONDITIONS

Ceilings

CHISAGO LAKES MIDDLE SCHOOL FACILITY CONDITIONS

INTERIOR FINISHES AND ADA

MS-IA-1 High Priority Ceilings

• Replace ceiling as noted on the plans within the next 0-6 years

• Replace gyp board ceilings adjacent to stage

MS-IA-1 Benefits

• Extending the life of the interior materials

• Reduce maintenance cost

• Improves facility aesthetics

CHISAGO LAKES MIDDLE SCHOOL FACILITY CONDITIONS

INTERIOR FINISHES AND ADA

High Priority Flooring

The majority of the carpet and VCT on the main level should be replaced in the next six years. The VCT in the corridors should be replaced with new rubber tiles as part of District-wide standardization. The concrete floor in the music room should have carpet installed. Replace VCT flooring with a flooring material that requires less maintenance, such as an LVT.

Low Priority Flooring

A majority of the flooring on the third floor and the classrooms on the lower level were recently redone with resilient flooring and will last another six years. At that point consideration should be given to replacement.

Cafeteria
Music Room

FLOORING

CHISAGO LAKES MIDDLE SCHOOL FACILITY

CONDITIONS

CHISAGO LAKES MIDDLE SCHOOL FACILITY CONDITIONS

CHISAGO LAKES MIDDLE SCHOOL FACILITY CONDITIONS

CHISAGO LAKES MIDDLE SCHOOL FACILITY CONDITIONS

INTERIOR FINISHES AND ADA

MS-IA-2 High Priority Flooring

• Replace wood floor in wood gym

• Replace VCT in corridors with rubber tiles

• Replace VCT and resilient flooring with LVT in areas marked on the plans

• Replace worn carpet

• Install carpet in music room

MS-IA-6 Low Priority Flooring

• Replace resilient flooring with LVT

MS-IA-2 & 6 Benefits

• Extending the life of the interior materials

• Reduce maintenance cost

• Improves facility aesthetics

CHISAGO LAKES MIDDLE SCHOOL FACILITY CONDITIONS

INTERIOR FINISHES AND ADA

High Priority Casework

The casework in the majority of the classrooms is in need of updating. Wood finish is worn, cracked and missing. The casework is outdated and, in most cases, is not meeting the needs of the users. All of the identified casework should be replaced in the next 6 years.

CHISAGO LAKES MIDDLE SCHOOL FACILITY CONDITIONS

Casework

CHISAGO LAKES MIDDLE SCHOOL FACILITY CONDITIONS

CHISAGO LAKES MIDDLE SCHOOL FACILITY CONDITIONS

INTERIOR FINISHES AND ADA

MS-IA-3 High Priority Casework

• Replace casework in classrooms

MS-IA-3 Benefits

• Improved building aesthetics

• Extending the life of the interior materials

• Improved functionality of building

CHISAGO LAKES MIDDLE SCHOOL FACILITY CONDITIONS

INTERIOR FINISHES AND ADA

High Priority Wall Finishes

The majority of the walls throughout the building are in need of paint including the glazed tile in the 1959 addition. This includes all of the classrooms, corridors, stairwells, restrooms and office spaces. The walls’ finishes are in poor condition and should be painted in the next three years. This will brighten up the spaces, giving them a fresh, updated look.

CHISAGO LAKES MIDDLE SCHOOL FACILITY CONDITIONS

CHISAGO LAKES MIDDLE SCHOOL FACILITY CONDITIONS

CHISAGO LAKES MIDDLE SCHOOL FACILITY CONDITIONS

INTERIOR FINISHES AND ADA

MS-IA-4 High Priority Wall Finishes

• Paint glazed tile where indicated on plans

• Paint corridors, stairwells

• Paint classrooms

MS-IA-4 Benefits

• Improved building aesthetics

• Extending the life of the interior materials

• Improved functionality of building

CHISAGO LAKES MIDDLE SCHOOL FACILITY CONDITIONS

INTERIOR FINISHES AND ADA

High Priority Door Replacement, Hardware and Locks. Re-key all Door Locks to Comply with District-wide Schlage Standard.

The majority of the interior door hardware needs to be replaced in the next 3 years. There are also a number of doors that need replacement including the hardware. The maintenance staff is also having issues with doors no longer closing and having to try and make adjustments. All of the door locks need to be re-keyed to comply with the District-wide Schlage standard. The third-floor classrooms do not have doors, just curtains.

Doors & Hardware

CHISAGO LAKES MIDDLE SCHOOL FACILITY CONDITIONS

CHISAGO LAKES MIDDLE SCHOOL FACILITY CONDITIONS

INTERIOR FINISHES AND ADA

MS-IA-5 High Priority Door Replacement, Hardware and Locks. Re-Key all Door Locks to Comply with District-Wide Schlage Standard

• Replace locks on all doors to comply with district standard

• Replace 87 single doors and hardware

• Replace 17 double doors and hardware

MS-IA-5 Benefits

• Improved building aesthetics

• Improved acoustics

• Improved security

• Improved functionality of building

CHISAGO LAKES MIDDLE SCHOOL FACILITY CONDITIONS

INTERIOR FINISHES AND ADA

Replace Main Corridor Hallway Lockers on all 3 Floors, Paint Remaining Hallway Lockers, Replace all the Girls’ Lockers and Replace the White Lockers in Boys Locker Room

The lockers on all 3 main corridors have been damaged over time and should be replaced. The remaining lockers should be painted. In the locker rooms, all of the girls’ lockers should be replaced immediately. In the boy’s locker room the white older lockers should be replaced and the remainder painted. Refer to the casework floorplans for information on the lockers.

INTERIOR FINISHES AND ADA

MS-IA-7 Replace Main Corridor Hallway Lockers on all 3 Floors, Paint Remaining Hallway Lockers, Replace all the Girls’ Lockers and Replace the White Lockers in Boys Locker Room

• Replace lockers in main corridors

• Repair and paint the lockers in the 1999 addition

• Replace lockers in girl’s locker room

• Repair and paint lockers in boy’s locker room

• Replace white lockers in boy’s locker room

MS-IA-7 Benefits

• Improved building aesthetics

• Extending the life of the interior materials

• Improved functionality of building

CONDITIONS

INTERIOR FINISHES AND ADA

Replace Window Blinds with New Roller Shades

The window blinds throughout the building have far exceeded their useful life and are a maintenance issue. The individual strips continue to fall off and have to be reinstalled. All of the blinds should be replaced with new roller shades.

INTERIOR FINISHES AND ADA

MS-IA-8 Replace Window Blinds with New Roller Shades

• Replace all of the window blinds

MS-IA-8 Benefits

• Improved maintenance costs

• Improved control of the light levels in the classroom

• Reduced glare

CHISAGO LAKES MIDDLE SCHOOL FACILITY CONDITIONS

INTERIOR FINISHES AND ADA

Replace Stairwell Rubber Teads, Paint Risers and Install Code Compliant Stainless Railings/Handrails

The stairwells in the main building are lacking in rubber tread and code compliant handrails. New rubber treads should be installed and the risers painted. New code compliant stainless railings/handrails should be installed.

CHISAGO

INTERIOR FINISHES AND ADA

MS-IA-9 Replace Stairwell Rubber Teads, Paint Risers and Install Code Compliant Stainless Railings/Handrails

• Replace the rubber treads in the stairwells

• Paint the risers

• Install code compliant handrails

MS-IA-9 Benefits

• Improved building aesthetics

• Extending the life of the interior materials

• Improved functionality of building

CHISAGO LAKES MIDDLE SCHOOL FACILITY CONDITIONS

INTERIOR FINISHES AND ADA

Sand & Refinish Wood Gym Floor, Skim Coat Plaster Walls with Parex ACF, Paint Ceiling and New Spiral Ductwork

The Wood Gym is in need of a refresh from the floor to the ceiling. The flooring in the Wood Gym should be sanded and refinished. The plaster walls are showing signs of damage from the balls hitting it over the years. They should be skim coated with Parex ACF. The ceiling should be painted, and new spiral ductwork installed.

INTERIOR FINISHES AND ADA

MS-IA-10 Sand & Refinish Wood Gym Floor, Skim Coat Plaster Walls with Parex ACF, Paint Ceiling and New Spiral Ductwork

• Sand and refinish the wood floor

• Skim coat the walls with Parex ACF

• Paint the ceiling

• Install new spiral ductwork

MS-IA-10 Benefits

• Improved building aesthetics

• Extending the life of the interior materials

• Improved functionality of building

CHISAGO LAKES MIDDLE SCHOOL

SITE IMPROVEMENTS

Remove and Replace the North West Drive and South Bus Drive Including the Curb and Gutter.

During the site visit it was observed that the west parking lot, north parking lot, and drive connecting the two are in need of removal and replacement. Soil borings and a topographic survey are recommended to understand the existing soils and pavement.

Areas not draining properly were observed at each of the zones needing replacement. A survey will show if simple regrading or more complex storm sewer changes are necessary to fix these issues.

As shown in the related graphic, the east parking and bus loop are in need of maintenance or partial replacement but do not need full replacement within the next few years.

The areas in greatest need of asphalt replacement are also in need of numerous sections of curb replacement. Not all curbs need replacement but a majority of them in some areas. To get a consistent finished look, consideration of replacing all curb and gutter and sidewalk may be considered. This is mainly for the north and west parking lot areas.

CHISAGO LAKES MIDDLE SCHOOL

SITE IMPROVEMENTS

MS-SI-1 Remove and Replace the North West Drive Including the Curb and Gutter

• Full removal and replacement of asphalt

• Removal and replacement of some of the curb and gutter

MS-SI-2 Remove and Replace the South Bus Drive including the Curb and Gutter

• Asphalt maintenance of south bus drive to delay a full removal and replacement

• Removal and replacement of asphalt within 8 years

• Removal and replacement of sections of failing curb and gutter

MS-SI-1, 2 Benefits

• Improved surface features and drainage patterns

• Extending the life of the parking lots

• Reduced maintenance issues

CHISAGO LAKES MIDDLE SCHOOL FACILITY CONDITIONS

SITE IMPROVEMENTS

Replace North Parking Lot and Replace Sanitary Piping Under Parking Lot

The north parking lot is in need of removal and replacement. The sanitary pipe under the north pavement area has failed and should be replaced at this time. Spot replacement of the curb and gutter along with some concrete pavement should also be addressed during the parking lot replacement.

SITE IMPROVEMENTS

MS-SI-3 Replace the North Parking Lot and Replace Sanitary Pipe Under Parking Lot

• Remove and replace problematic section of sanitary line

• Remove and replace asphalt pavement

• Fine grading/ soil correction

• Concrete pavement spot replacements

• Curb and gutter spot replacements

MS-SI-3 Benefits

• Improved surface features and drainage patterns

• Extending the life of the parking lots

• Reduced maintenance issues

CHISAGO LAKES MIDDLE SCHOOL FACILITY CONDITIONS

SITE IMPROVEMENTS

Replace West Parking Lot

The asphalt on the west parking lot is in need of removal and replacement. Soil borings and a topographic survey are recommended to understand the existing soils and pavement. The curb and gutter is in need of spot replacement.

Replace East Parking Lot

Within the next 10 years the East Parking lot should have the asphalt pavement removed and replaced, along with spot replacements of the concrete, curb, and gutter.

SITE IMPROVEMENTS

MS-SI-4 Replace West Parking Lot

• Remove and replace asphalt pavement

• Fine grading of pavement/ soil correction

• restripe

• Concrete sidewalk spot replacements

MS-SI-5 Replace East Parking Lot

• Remove and replace asphalt pavement

• Fine grading of pavement/ soil correction

• Restripe

• Concrete sidewalk spot replacements

MS-SI-4 & 5 Benefits

• Improved surface features and drainage patterns

• Extending the life of the parking lots

• Reduced maintenance issues

CHISAGO LAKES MIDDLE SCHOOL FACILITY CONDITIONS

SITE IMPROVEMENTS

Remove and Resurface the Acrylic on Tennis Courts, Restripe Courts

Resurfacing of the tennis courts is needed within the next five years. This is the regular maintenance interval for this surfacing.

Some cracking has appeared on the courts and will need to continue to be filled as they appear to prolong the system.

SITE IMPROVEMENTS

MS-SI-6

Remove and Resurface the Acrylic on Tennis Courts, Restripe Courts

• Resurface tennis courts

• Restripe

MS-SI-6 Benefits

• Improved surface features

• Improved safety

• Reduced maintenance issues

CHISAGO LAKES MIDDLE SCHOOL FACILITY CONDITIONS

CHISAGO LAKES MIDDLE SCHOOL FACILITY CONDITIONS

SITE IMPROVEMENTS

Rebuild the Retaining Wall on the North Elevation, Outside Door 16

The segmental retaining wall at the north elevation has begun to tip forward, and the lowest level is almost vertical. No geogrid was observed in the terraced retaining wall. The segmentalretainingwallatthenorthelevationhasbeguntotip,andthelowest levelisalmostvertical.Nogeogridwasobservedintheterracedretainingwall.The retainingwallappearstobeleaningforward,likelyduetosomesettlementofthe segmentalblockandlateralmovementoftheretainingwallduetoexcessivesoil pressure.Awallofthisheightandstyletypicallyrequiresgeogrid to help resist the lateral soil pressure and provide stability. Retaining walls at the north side of the building are likely to continue to move and should be monitored. Rebuild the retaining wall system at the north elevation of the building with a new engineered terraced retaining wall.

SITE IMPROVEMENTS

MS-SI-7 Rebuild the Retaining Wall on the North Elevation, Outside Door 16

• Remove existing wall

• Install geogrid textile

• Install new engineered terraced retaining wall

MS-SI-7 Benefits

• Improved safety

• Better drainage

• Reduced maintenance issues

SITE IMPROVEMENTS

Replace Embedded Handrails on Exterior Stairs

Railings at sidewalks and stairs are deteriorating and corroding at the embedded posts. Spalled concrete was observed at the corroded posts. Theconcreteat sidewalkrailingsiscrackingandspallingduetothecorrosionofthe embeddedsteelrailingpost.Assteelrusts,itincreasesinthicknessand exertspressureontheconcrete.Sidewalksrailingsarecorrodedandwill continuetodeteriorate,whichistypicalofembeddedrails.Railingsshould beinspectedyearlyforworseningconditions.Repairspalledconcrete sidewalkandsteps.Thisworkshouldbedoneinthenext4-6years.

Considerationshouldbegiventothereplacementofembedded handrailswithsurfacemountedrailings.

SITE IMPROVEMENTS

MS-SI-8 Replace Embedded Handrails on Exterior Stairs

• Remove embedded handrails

• Repair concrete

• Install surface mounted railings

MS-SI-8 Benefits

• Improved safety

• Reduced maintenance issues

CONDITIONS

CHISAGO LAKES MIDDLE SCHOOL FACILITY

EDUCATIONAL ADEQUACY

Remodel Kitchen Prep, Storage, and Office Areas (Includes New Makeup Air Unit)

The kitchen is undersized for the number of students that are being served. The average daily participation is 150 breakfast and 525 lunches over 3 lunch periods. The current student flow is from the gym, through two servery lines then back out into the gym and across to the cafeteria. There is not enough room for proper serving equipment, and it is not placed for optimal student flow. The hot food prep area is too small and expands into the meal service lines. This limits the abilities of the kitchen staff and causes disruption when serving meals. The dishroom is small, and carts of drying pans, dishes, etc. are placed in the hallway between the kitchen and maintenance. The location of storage, cooler and freezer are scattered reducing the efficiency of the prep work. The office space is located in one of the storage rooms. If the kitchen can expand into adjoining maintenance space, the servery lines can be modified allow more space for meal service and the hot food prep area can be expanded. The dishroom would be expanded, along with the dry storage area. The office could be relocated outside of the storage room.

Remodel and Expand Receiving/Dock Area (Need to Relocate Water Main)

As a result of improving the Food Service area, the existing receiving area is impacted. A building of this size and capacity commonly has a full receiving area with a loading dock. The proposal is to create a new receiving area with custodial office, workspace/shop, and building storage. Resultant site work will include relocating the water main, grading to provide for a recessed dock for truck deliveries, and creating a driveway for large trucks to access the new loading dock.

CHISAGO LAKES MIDDLE SCHOOL

EDUCATIONAL ADEQUACY

Demo Existing Fitness Area and Relocate Gymnasium North. Expand Cafeteria and Open Wall Between Two Cafeteria Spaces. New Café Flooring and Ceilings.

During lunchtime periods, one of the gymnasiums is not [fully] available as half of the gym needs to support lunch by allowing space for lunch lines for serving food as the access to the servery is through this gym. Half of the gym is used for circulation needed for stacking of lines as well as accessing the cafeteria. The proposed solution would shift the gym to the east by relocating the fitness room. The cafeteria would then expand where a portion of the former gym existed to create a contiguous cafeteria space that has immediate adjacency to the serving lines and access to dish drop/dishwash. This space would also act as multi-purpose space when it is not lunch time and provide a ‘lobby’ space to support larger gatherings/assemblies that would occur in the gymnasium. The renovations would increase sightlines from the existing cafeteria space to the new eating area, as well as allow a gym with a full regulation court to be accessible for physical education classes during lunch periods to accommodate scheduling needs.

Divide Large Boys Locker Room to Create New Fitness Space w/Windows to Gym. Relocate Equipment, Private Showers for Both Locker Rooms and Update Restrooms. New PE Offices.

The existing boys and girls Phy Ed locker rooms are underutilized and in disrepair. Additionally, in their current state, they do not comply with ADA, are difficult areas to supervise, and lack the proper amenities that students need. The proposal would include a complete renovation of finishes, replacing lockers to be right-sized in terms of both quantity and size, updating the toilets and showers to meet ADA as well as align with desired plumbing counts of each, There would also be private changing and shower rooms. Both locker rooms would be renovated to have equitable finishes and features. Additional scope includes creating new Phy Ed offices and consolidating some athletic storage.

Page | 128

CHISAGO LAKES MIDDLE SCHOOL

EDUCATIONAL ADEQUACY

Since a portion of the boys locker room is no longer utilized, this brings the opportunity to renovate the space to increase utilization. The renovation includes repurposing the former locker room into a fitness area. Windows would be installed between the new fitness area and the gym, which would allow for another Phy Ed teaching space as well as providing supervision of the fitness space.

Create (2) Groups of Private Restrooms

Both the 3rd floor student toilets and the toilets near the gym do not meet ADA requirements, have sightline issues, have finishes and fixtures past their useful life, and do not maximize the use of space. At these two locations, the restrooms would be remodeled into multiple single-occupant toilet rooms. Each single-occupancy bathroom features full height walls and doors similar to those of a single user restroom design. This design also includes proper lighting, ventilation, and finishes to align with applicable building codes. Hand washing would remain supervisable as it would be located near the hallway, often with partial height walls. While this benefits privacy efforts, it also can increase overall efficiency of use as less lines/congestion can accumulate.

Completely Renovate 3rd Floor to Enclose Classrooms (Must Include Fire Sprinklers)

The upper level of this building was originally designed as an “open concept”. In order to provide classrooms with a similar security and acoustics to the other classrooms on the lower level and main level, doors at each classroom would be needed. New permanent walls up to the ceiling deck would also be installed. There would be a reduction in student lockers to provide ADA clearances required at each door. This also requires replacement of the mechanical system as the existing system currently operates with an open air return. This work would include all finishes to be replaced/updated as well.

CHISAGO LAKES MIDDLE SCHOOL

EDUCATIONAL ADEQUACY

Relocate Main Office to Art Area in West End, Relocate Art and Reconfigure Student Services Office. Add Door for Flex Room and Finish Wall.

Not having direct visibility, supervision and control of the front doors can be a major security deficiency. The existing main entry is divorced from the front office and instead a ‘video doorbell’ is used to communicate between a visitor and unlocking a door. However, this approach doesn’t allow full screening of a person before they are granted access to the school. All other schools within the District have a secure vestibule with immediate access to the school office. In order to enhance security, as well as creating a customer service focused interaction with visitors, the office and the entry must be relocated. It is proposed to relocate the office and main entry to be closer to parking as well, thus creating a more accessible route to the front door. This would be achieved by reallocating the existing Art Room and an underutilized Media work/storage rooms to become the main office with Reception, Principal, Assistant Principal, Flexible Office, conference room, and Nurse. The existing vestibule will be modified to have electrified hardware to support a secure entry. The “work room” will be placed across the hall from the main office by repurposing a storage room. The existing office and nurse will then be remodeled to be a student support center as it will be centrally located in the school to optimize access for students. The remainder will be renovated to be an Art room and contain amenities to support Art functions. Exterior improvements will include a new canopy and signage to elevate the presence of this existing access to better identify it as the new “Main Entry”.

Create (5) Small Group Breakout Areas. Glass Wall, Furniture, Technology

In the evolving world of education, there is more of a need today for student work to be supported by individualized work/ instruction or small group work. The building is deficient in these spaces as they were not needed at the time the middle school was constructed. Small group rooms should be provided where they are easily accessible to staff and students, as such 1-2 are being provided per floor/per grade.

CHISAGO LAKES MIDDLE SCHOOL

EDUCATIONAL ADEQUACY

Create Masonry Corridor Thru Woods to Tech Lab & Relocate Wood Storage

Curriculum has evolved in “Industrial Tech” since the last time the Wood Shop and Tech Lab were renovated almost 30 years ago. The Computer Tech Lab will get new furniture and a refresh to remove the former “PLTW” furniture and configuration to support the teacher being able to supervise students monitors/work as well as allow students to more easily view the teacher’s demonstration monitor. Furthermore, creating a formal circulation path to the Computer Tech Room instead of walking through a Wood Shop would be created to help control dust and improve wayfinding for students.

New Flexible Classroom Furniture, Instrument & Sheet Music Storage, and Band Chairs

Most classrooms have outdated furniture or do not have sufficient flexible furniture available that will attract students to those areas. Comfortable and inviting furniture has been studied to be as important to the spaces as the lighting, HVAC, and spaces themselves.

The instrument and music storage systems are past their useful life and need replacement with new systems that will align with the programs actual instrument and sheet music quantities. Band chairs will be replaced with furniture that is suitable for these programs.

CHISAGO LAKES MIDDLE SCHOOL EDUCATIONAL ADEQUACY

CHISAGO LAKES MIDDLE SCHOOL EDUCATIONAL ADEQUACY

CHISAGO LAKES MIDDLE SCHOOL EDUCATIONAL ADEQUACY

FACILITY CONDITIONS

BUILDING ENVELOPE IMPROVEMENTS

Roof Replacement at Office Area and Resource Center

The roofs over the main office and resource center (areas H and I) are reaching the end of their useful life and are showing signs of aging such as bridging / stretching at roof perimeters and multiple previous repairs. These roofs should be replaced in the next 3 to 5 years.

Roofing system replacement will improve energy performance by increasing system insulation values, reduce leaks, and will reduce operating and maintenance expenses.

BUILDING ENVELOPE IMPROVEMENTS

TF-BE-1 Roof Replacement at Office Area and Resource Center

• Removal of old roof systems & wet insulation / deteriorated wood blocking.

• Polyisocyanurate insulation layers. R-30 with a minimum positive slope of 1/8" per foot to ensure proper drainage.

• Recovery insulation board to accept new roof system & provide a stop gap against thermal bridging from insulation fasteners.

• Multiply modified built-up roof system with gravel surfacing. Provides a "severe hail" rating.

• Pre-finished sheet metal copings & counterflashings at all perimeters and projections to protect against damage and UV degradation.

TF-BE-1 Benefits

• Extend life of building

• Reduce energy costs

• Reduce leaks

• Reduce operating and maintenance expenses

BUILDING ENVELOPE IMPROVEMENTS

Install Through-Wall Fashing at Steel Lintels, Structural Steel Lintels Should be Thoroughly Cleaned of Corrosion and Painted with Quality Steel Coating, Repair or Replace Lintels that Show Major Damage. Replace Perimeter Sealant, Control Joints, Cast Stone Sill Joints at the Building Façade

Taylors Falls Elementary School is a single-story building constructed of mass brick masonry walls and corrugated metal panels. The windows and doors throughout the complex are aluminum-framed with insulated glass glazing. In general, the brick masonry façade appeared to be in fair condition for its age.

Through-wall flashing is present along the sills of the windows. Steel lintels and weep vents were present at doors and windows heads. There is no metal drip edge or through-wall flashing installed along the heads of the windows and doors. Some through-wall flashing was present at the eastern portion of the building with a drip edge exposed. The original building section windows do not appear to have through-wall flashing present at the lintels above window/door openings in the brick masonry.

Many steel lintels at the building were in fair to poor condition. Some lintels exhibited corrosion and expansive forces into the brick. Layers of pack rust have also formed. Structural steel lintels should be thoroughly cleaned of corrosion and painted with a quality exterior steel coating. If major section loss is present, then repair of the lintel or replacement may be warranted. This condition warrants repair to prevent further damage to embedded steel and brick cladding, and to prevent water entry into and through the exterior walls. Install through-wall flashing at existing steel lintels.

Exterior joint sealants at windows, doors, corners, and other areas of the façade were in poor condition. Weathering, splitting, debonding, and cracking of sealant was observed throughout the façade. Utilities pipe penetration sealants are deteriorated, or adhesive failure was observed. Based on observed conditions, it appears that the sealants on the building have reached or exceeded their useful life. Widespread sealant deterioration is present at the building. A building-wide sealant replacement project is recommended in the next 4-6 years.

BUILDING ENVELOPE IMPROVEMENTS

TF-BE-2 Steel lintels, Sheet Metal Flashing and Through-Wall Flashing

• Install through-wall flashing

• Clean and paint steel lintels

• Sealant replacement at doors, windows, and control joints

TF-BE-2 Benefits

• Extend life of building

• Reduce leaks

• Reduce operating and maintenance expenses

BUILDING ENVELOPE IMPROVEMENTS

Repair Brick Deterioration at the Localized Elevations Where Roof Runoff is Damaging Brick. Tuckpoint, Replace Damaged Brick, Repair the Shrunken Gasket in Window to Prevent Future Water Entry into the Wall System, and Replace the Concrete Surface Drains.

In general, the brick masonry façade appeared to be in good condition for its age. However, spalling was observed at isolated locations throughout the façade. In the courtyard some areas of the brick façade are in poor condition. Localized areas exhibit damage/deterioration of brick and mortar that appears to have resulted from freezing thaw circle A few locations were seen to have cracked, spalled, or broken bricks. Efflorescence is present at many locations at the original section of the building.

Other miscellaneous items include a cracked and broken concrete surface drain and a junction box that is missing a cover and is exposed to the elements.

BUILDING ENVELOPE IMPROVEMENTS

TF-BE-3 Repoint Mortar Joints and Replace Cracked/Spalled Brick

• Replace brick (approximately 500)

• Repoint 2,000 square feet

• Replace the concrete surface drain and cover on junction box

TF-BE-3 Benefits

• Extend life of building

• Prevent moisture intrusion

• Reduce operating and maintenance expenses

BUILDING ENVELOPE IMPROVEMENTS

Replace Blue Metal Siding within Courtyard and Northside of Original Building Metal panel siding appears to be in fair to poor condition. No major dents or damage in the siding was noted during the inspection. Painting touchups have occurred on the siding at many locations. The metal siding is showing signs of aging. Consideration should be given to replacement of the metal siding.

BUILDING ENVELOPE IMPROVEMENTS

TF-BE-4 Replace Blue Metal Siding within Courtyard and Northside of Original Building

• Replace siding

TF-BE-4 Benefits

• Extend life of building

• Improve overall aesthetics

BUILDING ENVELOPE IMPROVEMENTS

Replace Two (2) Exterior Double Doors and Two (2) Single Exterior Doors

The hollow metal swing doors are corroded at the bottom of the door frames. The doors and center mullion are showing signs of wear.

We recommend replacing the indicated exterior doors, including the hardware and locks. Re-key all the door locks to comply with the District-wide Schlage standard.

BUILDING ENVELOPE IMPROVEMENTS

TF-BE-5

Replace Two (2) Exterior Double Doors and Two (2) Single Exterior Doors

• Replace exterior doors and frames including hardware and locks

• Re-key all locks to District-wide Schlage standard

TF-BE-5 Benefits

• Extend life of structure

• Reduce maintenance

• Increase security

MECHANICAL AND PLUMBING

Controls Upgrade

Controls Upgrade (Only if TF-ME-6 is NOT Accepted)

The Taylors Falls Elementary School building automation system is in good shape and all hardware and software are current.

The existing chiller is the only item that is in need of a controls upgrade. If the chiller replacement is NOT accepted in TF-ME-6 Nexus recommends upgrading the controls on the chiller. This upgrade would include new controls modules, programming, field labor, and mapping to the building’s BAS front end.

The benefits of this controls improvement include improved equipment scheduling, improved cooling system control, increased energy savings, improved occupant comfort, and an improved learning and working environment.

BUILDING ENVELOPE IMPROVEMENTS

TF-ME-1 Controls Upgrade (Only if TF-ME-6) is NOT Accepted

• Provide new controls for existing chiller

• Integrate new existing controls into updated platform

• Provide all programming required for this improvement

TF-ME-1 Benefits

• Easy to use, modernized system control updates

• Improved building monitoring and maintenance troubleshooting

• Improved occupant comfort

• Extended heating system life

• Reduced energy consumption

• Reduced maintenance

MECHANICAL AND PLUMBING

Add Suspended Unit Heaters to Gym Storage Rooms (Qty 2)

There are two (2) storage rooms located in the gym with external wall exposure but no source of heat. The lack of heat in the spaces results in them often being too cold resulting in comfort complaints. Additional temperature control zoning is required to improve occupant comfort.

Nexus proposes adding new hot water suspended unit heaters in each of the gym storage rooms. New hot water piping would be extended from the nearest existing hot water mains to the new suspended unit heaters. All associated valves and controls would be provided and installed as required.

Benefits of these heating system improvements include reduced maintenance and extended heating system life, and the ability to ventilate the spaces properly in all weather conditions.

MECHANICAL AND PLUMBING

TF-ME-2 Add Suspended Unit Heaters to Gym Storage Rooms (Qty 2)

• Add new suspended hot water unit heaters to each gym storage room

• Extend new hot water piping as required for these heating additions

• Provide all electrical and general construction work.

TF-ME-2 Benefits

• Reduced maintenance

• Improved occupant comfort

• Extended heating system life

MECHANICAL AND PLUMBING

Replace 1990 RTU-2 and 2004 RTU-5

There are several rooftop units serving the Taylors Falls Elementary School that are becoming maintenance problems for the District. These units are as listed below.

• 1990 Mammoth RTU-2 that serves a classroom and storage rooms. This rooftop air handling unit currently has a DX cooling coil and downstream hot water heating coils.

• 2004 AAON RTU-5 that serves the West classrooms and health office. This air handling unit currently has a chilled water cooling coil and hot water heating coil.

Nexus recommends replacing the two (2) rooftop units one to one with new double wall rooftop air handling units with hot water heating and chilled water dehumidification. The new rooftop air handling units would come with code compliant filtration, hot water heating coils, chilled water dehumidification coils, access sections, and supply fans with variable speed drives (VSDs).

The benefits of this HVAC improvement include increased system life expectancy, improved DDC scheduling, improved ventilation, increased energy savings, improved occupant comfort, and an improved learning and working environment.

MECHANICAL AND PLUMBING

TF-ME-3 Replace 1990 RTU-2 and 2004 RTU-5

• Remove existing rooftop units, piping, and controls

• Provide new double wall rooftop air handling units with hot water heating and chilled water dehumidification

• Extended new hot water and chilled water piping to air handling units as required

• Provide variable speed drives for the supply and relief fans

• Provide all roofing and sealing work as required

• Provide DDC controls, sequencing, and programming

• Provide all associated general construction and electrical work as required

TF-ME-3 Benefits

• Upgraded HVAC infrastructure

• Increased ventilation for improved indoor air quality

• Improved temperature control

• Improved occupant comfort

• Reduced maintenance

• Improved learning/work environment

MECHANICAL AND PLUMBING

Replace 2004 RTU-3, RTU-6, and Kitchen MAU

There are several rooftop units serving the Taylors Falls Elementary School that are becoming maintenance problems for the district. These units are as listed below.

• 2004 AAON RTU-3 that serves the Kid’s Club and small group classrooms. This air handling unit currently has a chilled water cooling coil and hot water heating coil.

• 2004 AAON RTU-6 that serves the cafeteria. This air handling unit currently has a chilled water cooling coil and hot water heating coil.

• 2004 Kitchen McQuay MAU that serves the kitchen hood. This air handling unit currently has a chilled water cooling coil and hot water heating coil.

MECHANICAL AND PLUMBING

TF-ME-4 Replace 2004 RTU-3, RTU-6, and Kitchen MAU

• Remove existing rooftop units, piping, and controls

• Provide new double wall rooftop air handling units with hot water heating and chilled water dehumidification

• Extended new hot water and chilled water piping to air handling units as required

• Provide variable speed drives for the supply and relief fans

• Provide all roofing and sealing work as required

• Provide DDC controls, sequencing, and programming

• Provide all associated general construction and electrical work as required

TF-ME-4 Benefits

• Upgraded HVAC infrastructure

• Increased ventilation for improved indoor air quality

• Improved temperature control

• Improved occupant comfort

• Reduced maintenance

• Improved learning/work environment

MECHANICAL AND PLUMBING

Replace Four (4) Fan Coil Air Handling Units with New Rooftop Energy Recovery Units

There are several fan coil air handling units serving the Taylors Falls Elementary School that are becoming maintenance problems for the District. These units are as listed below.

• 2004 MagicAire Classroom Fan Coil Units (Qty 4)

MECHANICAL AND PLUMBING

TF-ME-5

Replace Four (4) Fan Coil Air Handling Units with New Rooftop Energy Recovery Units

• Remove existing fan coil units, piping, and controls

• Provide new double wall rooftop air handling units with hot water heating and chilled water dehumidification

• Extended new hot water and chilled water piping to air handling units as required

• Provide variable speed drives for the supply and relief fans

• Provide all roofing and sealing work as required

• Provide DDC controls, sequencing, and programming

• Provide all associated general construction and electrical work as required

TF-ME-5 Benefits

• Upgraded HVAC infrastructure

• Increased ventilation for improved indoor air quality

• Improved temperature control

• Improved occupant comfort

• Reduced maintenance

• Improved learning/work environment

MECHANICAL AND PLUMBING

Replace 2004 R-22 Chiller

There is currently a 2004 vintage AAON air-cooled chiller serving Taylors Falls Elementary School. This existing unit has increased in maintenance and is experiencing corrosion, leaking, and mechanical component failure such as fans, belts, and motors.

Nexus recommends replacing the existing chiller with a new air-cooled chiller plant that is sized to accommodate the entire building. The new air-cooled chiller would be provided with variable frequency drives (VFDs) to provide maximum efficiency at part-load conditions when the chiller runs most of the time. A sound attenuating package will be included for noise reduction. The new chiller would be tied into the DDC control system.

The benefits of these chilled water system upgrades include improved equipment scheduling, improved ventilation, increased energy savings, improved occupant comfort, and an improved learning and working environment.

MECHANICAL AND PLUMBING

TF-ME-6 Replace 2004 R-22 Chiller

• Remove existing air-cooled chiller, piping, and controls

• Provide new air-cooled chiller

• Provide DDC controls, sequencing, and programming

• Provide all associated general construction and electrical work as required

TF-ME-6 Benefits

• Upgraded chilled water system infrastructure

• Improved temperature control

• Improved occupant comfort

• Reduced maintenance

• Improved learning/work environment

MECHANICAL AND PLUMBING

Add Dehumidification to Gym AHUs

The Gym is currently served by two (2) 2020 vintage Daikin air handling units. These air handling have no means of dehumidification which results in higher humidity levels and occupant discomfort in the Gym. The Gym is also unable to meet the American Society of Heating and Refrigeration Engineer’s (ASHRAE) Thermal Environmental Conditions for Human Occupancy Standard 55. This ASHRAE design standard specifies the combinations of personal and indoor thermal environmental requirements necessary to achieve an occupant comfort satisfaction rate of 80% or greater. These indoor environmental requirements include temperature, thermal radiation, humidity, and air speed.

Nexus recommends adding new chilled water dehumidification coils to both air handling units to allow for dehumidification of the code required ventilation air to the Gym. Chilled water piping would be extended to each air handling unit as required.

The benefits of these chilled water system upgrades include improved equipment scheduling, improved ventilation, increased energy savings, improved occupant comfort, and an improved learning and working environment.

MECHANICAL AND PLUMBING

TF-ME-7 Add Dehumidification to Gym AHU

• Provide new chilled water dehumidification coils to gym air handling units (Qty 2)

• Extended new chilled water piping to air handling units as required

• Provide DDC controls, sequencing, and programming

• Provide all associated general construction and electrical work as required

TF-ME-7 Benefits

• Upgraded chilled water system infrastructure

• Improved temperature control

• Improved occupant comfort

• Reduced maintenance

• Improved learning/work environment

MECHANICAL AND PLUMBING

Replace Eight (8) Rooftop and Inline Exhaust Fans, Replace Exhaust and Add Transfer Air to Lower-Level Locker Room, and Re-Route Water Heater Venting for Removal of Chimney, Add Demand Recirculation Pumps for Eight (8) Sinks with Hot Water Issues

There are several rooftop and inline exhaust fans serving the building that have exceeded their recommended service life and are in need of replacement.

Nexus recommends replacing some of these fans when major work is taking place so the best pricing can be obtained from the contractors. Nexus has budgeted for the replacement of eight (8) existing exhaust fans for the school. Nexus will work along with the district on the priority of which ones want to be replaced.

Nexus also recommends adding two (2) demand domestic hot water recirculation pumps for the classroom sinks that have trouble getting hot water in an appropriate amount of time. There are eight (8) classrooms with current hot water issues. These classrooms include rooms 109, 108, Quiet Room, Staff Restroom, 110, 111, 106, and 118.

Nexus also recommends replacing the inline exhaust fan serving the lowerlevel locker room and adding transfer air to better ventilate the space.

Fans will be a direct replacement to the original size/capacity but will have premium efficiency motors installed to increase energy savings. The fan size/capacity may be reduced if engineering can justify where over ventilation is occurring.

The existing water heating venting is routed right up through the chimney. As part of this improvement, we would reroute that venting so the chimney can be removed.

The benefits of this HVAC improvement will result in increased energy savings, improved flow and reduced maintenance for exhaust fans, and reduced leaks from seals.

MECHANICAL AND PLUMBING

TF-ME-8 Replace Eight (8) Rooftop and Inline Exhaust Fans, Replace Exhaust and Add Transfer Air to Lower-Level Locker Room, and Re-Route Water Heater Venting for Removal of Chimney, Add Demand Recirculation Pumps for Eight (8) Sinks with Hot Water Issues

• Replace rooftop and inline exhaust fans with new exhaust fans with associated ductwork

• Replace Lower-Level Locker Room inline exhaust fan with new exhaust fan and add transfer air

• Re-route water heating venting for chimney removal

• Provide all roofing and sealing work as required

• Provide DDC controls, sequencing, and programming

• Provide all associated general construction and electrical work as required

TF-ME-8 Benefits

• Upgraded exhaust system infrastructure

• Improved temperature control

• Improved occupant comfort

• Reduced maintenance

• Improved work environment

MECHANICAL AND PLUMBING

Replace Galvanized Plumbing

Some domestic water piping located in the 1951, 1962, and 1970 portions of the building is old, galvanized steel. Over time, galvanized pipes are susceptible to corrosion and rust, which can lead to a buildup of mineral deposits within the piping. This corrosion process not only reduces water flow but also compromises water quality, potentially introducing harmful contaminants into the water used by students and staff. The deterioration of these pipes can lead to frequent leaks and occasional bursts, disrupting school operations and requiring costly repairs and maintenance.

Nexus recommends the replacement of the galvanized domestic water piping with insulated copper piping. Copper plumbing offers superior durability and resistance to corrosion compared to galvanized steel and does not suffer from the same accumulation of mineral deposits that can impede water flow and quality. Furthermore, copper pipes are less prone to leaks and bursts, ensuring a more reliable water supply. Importantly, copper systems do not carry the risk of leaching harmful substances like lead, providing a safer environment for students and staff and aligning with health and safety standards in educational facilities.

Benefits of this work would be reduced maintenance, improved water quality, and improved domestic hot water system.

MECHANICAL AND PLUMBING

TF-ME-9 Replace Galvanized Plumbing

• Remove existing galvanized domestic water piping and components in 1951, 1962, and 1970 portions of the building

• Install new insulated copper domestic water piping

• Provide associated general and electrical construction work as required

TF-ME-9 Benefits

• Reduced potential for elevated lead and galvanized contaminants in water supply

• Improved drinking water quality

• Improved plumbing fixture operation

• Increased equipment life

• Reduced maintenance

MECHANICAL AND PLUMBING

Retro-Commissioning of HVAC Equipment

Building retro-commissioning is a systematic process that ensures all buildings perform as efficiently as possible according to the owner’s operational needs as well as adjustment of HVAC equipment’s operational parameters to meet current space use.

The Building Automation System (BAS) plays a crucial role in providing a comfortable, energy-efficient environment for students, parents, and staff. Over time, damper and valve controls have gone out of proper adjustment, components fail, and controls sequences are modified and may not be programmed to provide an optimal balance between comfort, indoor air quality, and energy efficiency.

This Nexus Retro-commissioning Team will identify the root cause of HVAC equipment operational issues and will provide adjustments to the sequences and outdoor air setting to improve occupant comfort while reducing energy consumption where possible. The retro-commissioning process will also identify components that require adjustment or replacement.

Retro-commissioning activities include:

HVAC Equipment: Nexus will verify existing HVAC equipment operation and control sequences through observation. We will provide adjustment and tuning services to achieve optimal operation and improved occupant comfort. Documentation of the findings with corrections and recommendations for further improvements will be made.

Services include:

• Ventilation study to assure all spaces are ventilated per the current code requirements and the outdoor air setpoints will be adjusted up or down based on current space occupancy

• Test point commands vs actual controller output at each device for heating, cooling, and mixed air control

• Verify valve/damper operation on reheat coils and air handler coils

• Verify indicated vs actual (duct static, supply and return temperatures)

• Verify mixed-air operation (damper position and economizer operation)

Valves and Dampers: Nexus will test all existing rooftop (RTU) and indoor air handling unit (AHU) sequences along with the valve and damper operation to ensure control actuators are fully operational. We observe valve/damper/actuator operation and check for any physical signs of valve/damper leakage or binding, which results in operational issues and increased energy consumption. We check discharge temperature with valves in the fully open and closed positions. In addition, we will provide unit pricing to replace any defective valves and/or actuators. Proper RTU and AHU operation provides improved occupant comfort at optimal energy efficiency.

Zone Reheat Valves: Nexus will test existing zone reheat valves for proper operation. We ensure command valves fully open and close and observe valve/actuator operation. We inspect valves for any physical signs of valve leakage or binding, check discharge temperature with valve in the fully open and closed positions and provide unit pricing to replace any defective valves and/or actuators.

Economizer: Nexus will update the control sequence for mixed-air dampers to their setpoints with economizer lockout setpoints.

Heating Water Pump Variable Speed Drives (VSDs): Nexus will lower the pressure setpoint to allow drives to modulate down to the slowest speed required to satisfy the most critical room temperature sensor.

CONDITIONS

Boilers: Nexus will optimize sequencing and staging of equipment and adjust the water reset schedules based on outside air temperature.

The action steps noted above are part of the Nexus retro-commissioning process. The benefits of this process include improved temperature control and occupant comfort, reduced energy consumption, reduced maintenance, and extended HVAC equipment life.

MECHANICAL AND PLUMBING

TF-ME-10 Retro-Commissioning of HVAC Equipment

• Provide retro-commissioning of all existing HVAC systems

• Provide adjustments to existing sequences to improve HVAC system operation

• Verify operation of all dampers, actuators, valves, and terminal HVAC devices

TF-ME-10 Benefits

• Improved temperature control and occupant comfort

• Reduced energy consumption

• Reduced maintenance

• Extended HVAC equipment life

ELECTRICAL, TECHNOLOGY, AND SAFETY SYSTEMS

Upgrade Electrical Power Distribution Including Switchgear, Panels, and Generator

There are five panels that are original to the 1962 building are now more than 60 years old and are at the end of their useful life. The panels were manufactured by States, which is no longer in existence. Parts for this equipment are no longer available.

It is recommended that the 1962 electrical panels be replaced. New panels will provide a safer electrical system since new equipment will be in compliance with current manufacturing standards for electrical equipment and will reduce maintenance costs.

Equipment recommended to be replaced includes one switchboard and 5 panelboards.

ELECTRICAL, TECHNOLOGY, AND SAFETY SYSTEMS

TF-ES-1 Upgrade Electrical Power Distribution Including Switchgear, Panels, and Generator

• Replace five original 1962 electrical panels and one switchboard

TF-ES-1 Benefits

• Protection of and Improved Reliability of Electrical Infrastructure

• Reduced energy consumption

• Reduced maintenance

• Extended HVAC equipment life

ELECTRICAL, TECHNOLOGY, AND SAFETY SYSTEMS

Install New Generator to Control Primary Systems such as Boiler, Boiler Pumps, Emergency Lighting, Coolers and Freezers (230kW)

Currently, there is no backup power generator installed. There are frequent power outages at this location. This poses a risk for building security and life safety. In addition, costs may be incurred due to loss of heat in the building causing it to freeze up and loss of food that is stored in the coolers and freezers. In addition, there is a 40-horsepower fire pump, which should be backed up by a generator for a code compliant installation.

It is recommended that a generator be installed to provide backup power for these necessary items.

Increase the Size of the Generator from 230kw to 700kw to Cover Full Building Load including Cooling (cost represents the increased cost between the two generators)

Alternately, with frequent power outages, installing a generator with full building backup will allow the school to function, even when utility power is lost.

ELECTRICAL, TECHNOLOGY, AND SAFETY SYSTEMS

TF-ES-2.1, 2.2 Install New Generator

• Install new natural gas generator

• Install new automatic transfer switches, feeders, and electrical distribution

TF-ES-2.1, 2.2 Benefits

• Protection of and Improved Reliability of Electrical Infrastructure

• Improved safety

• Option to handle the entire building load to prevent school shutdowns

ELECTRICAL, TECHNOLOGY, AND SAFETY SYSTEMS

LED Lighting Upgrade for Areas with Fluorescent. Retrofit Kits for Fixtures in Good Condition, Replacement for Unique or Outdated Fixtures. Including Emergency and Exit Lights. Add Lighting Controls to Corridors and Gym.

Light Fixture Upgrades

The existing lighting in classrooms, gymnasiums, and common areas is primarily fluorescent lamps throughout. The fixtures appear to be in fair condition; however, LED lamp technology is more energy efficient.

Retrofitting the light fixtures by replacing the fluorescent lamps with LED lamps will reduce overall energy use. In addition, the LED lamps have a life of 50,000 hours compared to only 36,000 hours for a fluorescent lamp, which will reduce maintenance costs.

In specific areas, such as corridors, it is recommended to replace the entire fixture to match newer LED fixtures installed in a recent renovation project.

Lighting controls that automatically shut off lights based on occupancy reduce energy use and are required to comply with current energy codes. There are no occupancy sensors in the corridors. It is recommended that occupancy sensors are installed in corridors to provide automatic shutoff of lighting.

ELECTRICAL, TECHNOLOGY, AND SAFETY SYSTEMS

TF-ES-3 LED Lighting Upgrade for Areas with Fluorescent. Retrofit Kits for Fixtures in Good Condition, Replacement for Unique or Outdated Fixtures. Includes Emergency and Exit Lights. Add Lighting Controls to Corridors and Gym.

• Replace light fixtures throughout the building with LED light fixtures

• Add light fixtures on building exterior

• Controls to provide dimming capabilities

• Automatic shutoff of lighting

TF-ES-3 Benefits

• Reduce energy costs

• Reduce maintenance costs

• Enhance outside security

ELECTRICAL, TECHNOLOGY, AND SAFETY SYSTEMS

Install New Burglar Alarm System with 10 Motion Sensors and 2 Keypads.

A burglar alarm system is also needed to enhance the security of the building. It is recommended that a burglar alarm system be installed.

ELECTRICAL, TECHNOLOGY, AND SAFETY SYSTEMS

TF-ES-4 Install New Burglar Alarm System with 10 Motion Sensors and 2 Keypads.

• Add a burglar alarm systems

• Add 10 motion sensors and 2 keypads

TF-ES-4 Benefits

• Enhance security

.

INTERIOR FINISHES AND ADA

Ceiling Replacement

Taylor Falls elementary has been maintained well, however, there are a few high priority interior finishes needs that should be addressed in the next 0-6 years. We have reviewed the ceilings and exposed structures to determine what has reached the end of useful life, shows stains, or is beginning to sag. The flooring from worn carpet to old VCT in corridors has been prioritized. Other areas include casework, ADA needs, and interior doors. Prioritization is based on immediate needs (0-3 years), priority 2 is from 4 to 6 years. Low priority would be those items that can be addressed in 7 to 10 years. The floor plans on the following pages indicate areas that need to be addressed based on the prioritization.

High Priority Ceilings:

High priority areas include the music room/ art room and adjacent rooms, the corridor from the kitchen past the SPED rooms, the cafeteria and the kitchen and a few smaller areas.

Low Priority Ceilings:

Low priority ceilings include the kid’s club/ intervention/ third grade classrooms, the corridor outside of the cafeteria, and the large kindergarten room. Other areas include the 1st and 2nd grade classrooms, the nurse’s office, and the reading specialist room.

Ceilings

INTERIOR FINISHES AND ADA

TF-IA-1 High Priority Ceilings

• Replace ceiling as noted on the plans within the next 0-6 years

• Replace gyp board ceilings adjacent to stage

TF-IA-6 Low Priority Ceilings

• Replace remaining ACT ceilings in older classrooms

• Replace corridor ceiling outside of cafeteria

TF-IA-1 & 6 Benefits

• Extending the life of the interior materials

• Reduce maintenance cost

• Improves facility aesthetics

INTERIOR FINISHES AND ADA

High Priority Flooring

The wood floor in the gym, including the stage, is at the end of its useful life and needs to be replaced. Replace the old VCT in the corridors east of the gym with new rubber tiles as part of a district wide standardization. The flooring in the kitchen and cafeteria, along with rooms 116 and 118. Replace VCT flooring with a flooring material that requires less maintenance, such as an LVT.

Low Priority Flooring

The resilient flooring in the classrooms for the 1st, 2nd and 3rd grades should be replaced in the next 10 years.

Room 118
Cafeteria

FLOORING

INTERIOR FINISHES AND ADA

TF-IA-2 High Priority Flooring

• Replace wood floor in gym and stage

• Replace VCT in corridors with rubber tiles

• Replace VCT and resilient flooring with LVT in areas marked on the plans

TF-IA-7 Low Priority Flooring

• Replace resilient flooring with LVT

• Replace corridor ceiling outside of cafeteria

TF-IA-2 & 7 Benefits

• Extending the life of the interior materials

• Reduce maintenance cost

• Improves facility aesthetics

INTERIOR FINISHES AND ADA

High Priority Casework

The casework in the majority of the classrooms is in need of updating. It is showing signs of damage and is not meeting the needs of the users. All of the identified casework should be replaced in the next 6 years. The lockers outside of the 4th and 5th grade classrooms should be painted.

Typical Classroom

Casework

INTERIOR FINISHES AND ADA

TF-IA-3 High Priority Casework

• Replace casework in classrooms

• Repair and paint the lockers outside 4th and 5th grade classrooms

TF-IA-3 Benefits

• Improved building aesthetics

• Extending the life of the interior materials

• Improved functionality of building

INTERIOR FINISHES AND ADA

High Priority Wall Finishes

The glazed tile in the original 1951 classrooms should be painted in the next three years. The health room, toilet rooms, and the 2008 classrooms should also be painted in the next three years. This will brighten up the spaces, giving them a fresh, updated look. To improve safety for staff and students, add clear, 24 ml thick security film to the two sliding windows in the main office. The handrails on the ramps and stairs are non-compliant and should be replaced.

INTERIOR FINISHES AND ADA

TF-IA-4 High Priority Wall Finishes

• Paint glazed tile in 8 classrooms and two offices

• Install 3M S2400 security film on sliding glass windows at main office

• Replace the handrails on the 3 ramps and 3 staircases Replace casework in classrooms

TF-IA-4 Benefits

• Improved building aesthetics

• Extending the life of the interior materials

• Improved functionality of building

• Improved safety and security

INTERIOR FINISHES AND ADA

High Priority Door Replacement, Hardware and Locks. Re-key all Door Locks to Comply with District-wide Schlage Standard. Low Priority Door Replacement and Hardware.

The majority of the interior door hardware needs to be replaced in the next 3 years. There are also a few doors that need replacement including the hardware. All of the door’s locks need to be re-keyed to comply with the district wide Schlage standard. In the next 7 to 10 years, the doors in the 4th and 5th grade classrooms should be replaced.

INTERIOR FINISHES AND ADA

TF-IA-5 Door, Hardware, and Locks – high priority

• Replace hardware on 23 doors

• Replace 21 single doors and hardware

• Replace 2 double doors

TF-IA-8 Door, Hardware, and Locks – low priority

• Replace doors in the 4th and 5th grade wing

TF-IA-5 and 8 Benefits

• Improved building aesthetics

• Extending the life of the interior materials

• Improved functionality of building

• Improved security

DOORS & HARDWARE

SITE IMPROVEMENTS

Replace Pavement Around the North and West Side of the Building and Replace Part of the South Side Drive. Includes Restriping and Fence Relocation. Crack Seal and Sealcoat the Hard Surface Play Area and the South East Parking Lot.

The West bus loop and parking was observed with significant cracking and in need of removal and replacement within the next few years. Previous borings should be analyzed, and possible new borings should be taken.

Cracked and chipped curbs and sidewalks were observed. Access to doors should be analyzed to update curb style as needed to provide ADA access to all doors as required. North door on the west side may need change to conform to requirements.

Pavement south of building and south parking needs typical pavement maintenance of crack seals and seal coats over the next few years. Reclaim and repave or a removal and replacement should be years down the line. Spot removal and replacement of cracked and failing curbs and gutter and walks is needed within the next few years.

SITE IMPROVEMENTS

Repair Play Area by Replacing Fence Backstop and Top Dress the Kickball Field

Observed backstop that seemed mostly sturdy but with some signs of movement and heaving. Weedy areas observed in the aglime. Additional sideline fencing could be added if uses of field would benefit from additional safety/protection in front of benches and/or along parking lot.

SITE IMPROVEMENTS

TF-SI-1 Replace Pavement Around the North and West Side of the Building and Replace Part of the South Side Drive. Includes Restriping and Fence Relocation. Crack Seal and Sealcoat the Hard Surface Play Area and the South East Parking Lot

• Replace pavement on the north and west side of the building, including restriping

• Replace part of the south side drive, including restriping and fence relocation

• Crack seal and sealcoat the hard surface play area

• Crack seal and sealcoat the southeast parking lot

TF-SI-2 Repair Play Area by Replacing Fence Backstop and Top Dress the Kickball Field

• Top dress aglime or continue weed removal

• New sideline fencing if wanted for type of existing and if any desire for expanded uses of field

• Budget for future removal and replacement of aging backstop

TF-SI-1, 2 Benefits

• Improved building aesthetics

• Increase safety

• Decrease maintenance issues

SITE IMPROVEMENTS

Purchase adjacent property and add new north parking lot with 20 additional spaces

To improve parking on the west side of the school, the District could purchase the adjacent property. This would allow for a new north parking lot with an additional 20 spaces.

Extend south drive to Center Street to improve parent drop-off/pick-up

Vehicles have backed up along West street during times of student drop-off and pick-up. Some of this has been resolved using the parent online app. To further resolve this problem the District can add a drive off the southeast parking lot that would exit onto Center street.

Replace aging playground equipment with new equipment, new plastic border timbers and engineered wood fiber. Existing swings and climbing tower to remain.

Some of the playground equipment is showing signs of deterioration and wear and should be replaced. The coatings have degraded over time, and in some cases, rust is starting to form. On some of the climbing apparatus there are exposed bolts, causing safety issues. The existing swings and one of the climbing structures would remain. The new equipment would be a mix of age appropriate items.

Add electronic/music playground with synthetic turf for an inclusive play area.

The area on the southeast corner that is outside of the plastic curb could be made into an inclusive play area with synthetic turf surfacings and ADA appropriate equipment.

SITE IMPROVEMENTS

TF-SI-3 Purchase adjacent property and add new north parking lot with 20 additional spaces

• Purchase the property on the west side of the building

• Add a parking lot with 20 additional space

TF-SI-4 Extend south drive to Center Street to improve parent dropoff/pick-up

• Add additional drive that exits off of Center Street

TF-SI-5 Replace Aging Playground Equipment

• Replace aging playground equipment with new 2-5 and 5-12 age group appropriate equipment

• Replace plastic curbing with new plastic timbers for playground border

• Top dress wood chips

• Keep swings and play structure

TF-SI-6 Add electronic/music playground with synthetic turf

• Install electronic and music playground equipment

• Install picnic tables

• Install synthetic turf

TF-SI-3, 4, 5, 6 Benefits

• Improve safety

• Improve aesthetics for the outside arear

EDUCATIONAL ADEQUACY

Renovate & Expand Kitchen, Café, Receiving

The kitchen is undersized for the number of students they are serving and has equipment deficiencies due to lack of space. They currently serve 240 breakfasts and 275 lunches on average. They currently serve food to students through a small window opening near the entrance of the cafeteria where lines back up into the hallway causing congestion. Currently, the receiving process for the building is done by unloading a truck next to an exterior door of the cafeteria and using hand trucks to bring food and deliveries into the building through the cafeteria. Depending on the timing of the delivery, this can be disruptive to before/after school activities as well as school-day uses in the cafeteria. The garbage cans also are taken through the kitchen in order to access the door to the dumpsters. An addition would be provided to expand and better the workflow for food service activities. It would provide space for equipment and processes needed for today’s food service requirements and create a dedicated servery for serving meals to students. The addition would provide dedicated receiving and building-wide storage that has immediate access to the exterior for deliveries and interior hallways to disperse the products. Renovations would also include relocating the food storage and coolers from the cafeteria to be in the food service space and allow internal expansion of the cafeteria.

Renovate 3rd Grade Area Restrooms

The existing toilet rooms near the 3rd grade classrooms are of original construction and the fixtures and finishes are beyond their useful life. In addition, the toilets an d sinks do not meet ADA and lack any type of supervision. These restroom areas would be renovated to still meet the toilet counts required by code and provide for increased supervision similar to the toilet renovations completed in recent projects at this building.

Add Resilient Flooring, Casework, and Shelving in Storage Rooms for Art.

Music and Art are not instructed year-round and currently share a space. That teaching space should be renovated to support multi-purpose functions, similar to recent renovations at Primary School. The room is large enough to create a space on the east end better appointed for art including hard surface flooring, providing casework for art storage, shelving solutions for adjacent storage rooms, and replacing the sinks to meet ADA requirements. There also exists a pair of double doors from the music area into the adjacent storage area. These doors are not used and could be eliminated to create more wall space for music.

Reconfigure Boiler Room Stairwell and Nurses Area

The existing toilet room that serves the Nurse’s room is barely 30” wide and is vastly undersized. It is inadequate to serve students and their needs while seeing the Nurse. To create an appropriately sized toilet room that meets ADA as well as changing area for students in this age group, the impact would impede on the Nurse’s area.

The existing stair access to the basement boiler room would be relocated and this area would then be converted into a toilet/changing room. The nurse’s room would have updated finishes and casework to support the health services provided.

Add Metal Awning to South Gym Doors for Pickup/Dropoff

At the end of the day, students that are receiving a ride by a parent/family member/guardian are queued in the Gymnasium. Staff escorts students outside when their ride approaches the pick-up zone, and staff supervises the traffic. The awning would provide for protection from weather for the staff and students, as well as help identify the zone for student pick-up.

New Flexible Classroom Furniture (50%)

Most classrooms have outdated furniture or do not have sufficient flexible furniture available that will attract students to those areas. Comfortable and inviting furniture has been studied to be as important to the spaces as the lighting, HVAC, and spaces themselves

FACILITY CONDITIONS

BUILDING ENVELOPE IMPROVEMENTS

Replace Roof on 1999 1st Grade Addition and Multipurpose Room Addition. Replace 1999 and 2001 Built Up Roofs Serving Office Area, Kitchen, and PreK Wing.

The roofs on the 1999 addition to the 1st grade classrooms and the multipurpose/cafeteria room (areas A, H and J) are reaching the end of their useful life and are showing signs of aging such as bridging / stretching at roof perimeters and multiple previous repairs. These roofs should be replaced in the next 3 years.

The roof over the pre-K classrooms, kitchen and boiler room (areas L, O and P) are also reaching the end of their useful life and should be replaced in the next 3 to 5 years. The pre-K classroom wing has a 2001 built up roof, while the kitchen, boiler room and front office are built up roofs done in 1999. The pre-K wing has a solar array that will need to be removed and reinstalled.

Roofing system replacement will improve energy performance by increasing system insulation values, reduce leaks, and will reduce operating and maintenance expenses.

PRIMARY SCHOOL FACILITY CONDITIONS

PRIMARY SCHOOL FACILITY CONDITIONS

BUILDING ENVELOPE IMPROVEMENTS

PS-BE-1 Priority 1 – Replace Roof on 1999 1st Grade Addition and Multipurpose Room Addition

• Removal of old roof systems & wet insulation / deteriorated wood blocking.

• Polyisocyanurate insulation layers. R-30 with a minimum positive slope of 1/8" per foot to ensure proper drainage.

• Recovery insulation board to accept new roof system & provide a stop gap against thermal bridging from insulation fasteners.

• Multiply modified built-up roof system with gravel surfacing. Provides a "severe hail" rating.

• Pre-finished sheet metal copings & counterflashing at all perimeters and projections to protect against damage and UV degradation.

PS-BE-2 Priority 2 – Replace 1999 and 2001 Built Up Roofs Serving Office Area, Kitchen and Pre-K Wing

• Removal of old roof systems & wet insulation / deteriorated wood blocking.

• Polyisocyanurate insulation layers. R-30 with a minimum positive slope of 1/8" per foot to ensure proper drainage.

• Recovery insulation board to accept new roof system & provide a stop gap against thermal bridging from insulation fasteners.

• Multiply modified built-up roof system with gravel surfacing. Provides a "severe hail" rating.

• Pre-finished sheet metal copings & counterflashing at all perimeters and projections to protect against damage and UV degradation.

PS-BE-1&2 Benefits

• Extend life of building

• Reduce energy cost

• Reduce leaks

• Reduce operating and maintenance expenses

BUILDING ENVELOPE IMPROVEMENTS

Install Through-Wall flashing at Steel Lintels, Remove Corrosion From Structural Steel Lintels and Coat with Corrosion Inhibiting Paint, Install Sheet Metal Fashing with Drip Edge Where Necessary Within the Next 3 Years

Through-wall flashing was not originally present at window, door, and other openings. However, drip edge flashing appeared to have been added at a few locations. Exposed steel lintels at many locations are forming pack rust. Through-wall flashings are not present on these lintels. Lintels over and adjacent to window openings in brick cladding are corroded. Pack rust formation can apply pressure on the brick cladding and cause deterioration of the cladding. Corrosion also results in the loss of section of the steel lintels, which reduces strength and stiffness of the steel lintels. This condition warrants repair to prevent further damage to embedded steel and brick cladding, and to prevent water entry into and through the exterior walls.

The exposed steel should be cleaned, corrosion removed and coated with a corrosion inhibiting paint to minimize future corrosion/ deterioration. Install through-wall flashing at existing steel lintels. Install sheet metal flashing with drip edge where necessary.

PRIMARY SCHOOL FACILITY CONDITIONS

BUILDING ENVELOPE IMPROVEMENTS

PS-BE-3 Install Through-Wall Flashing at Steel Lintels, Remove Corrosion from Structural Steel Lintels and Coat with Corrosion Inhibiting Paint, Install Sheet Metal Flashing with Drip Edge Where Necessary Within the Next 3 Years.

• Install through-wall flashing

• Clean and paint steel lintels

• Install sheet metal flashing with drip edge where needed

PS-BE-3 Benefits

• Extend life of building

• Reduce leaks

• Reduce operating and maintenance expenses

BUILDING ENVELOPE IMPROVEMENTS

Repoint Mortar Joints and Replace Cracked/Spalled Brick, Repair Bricks at Steel Bolts and Anchors

In general, the brick masonry façade appears to be in good condition for its age.

Cracked mortar joints between the brick units were noted at several locations and vertical cracking was observed in isolated areas. Cracked, spalled, and broken bricks were also observed. Localized mortar deterioration and isolated brick cracking/spalling is present. These conditions are generally attributable to long term exposure to the elements. Vertical cracks located at corners are likely attributable to a lack of control joints on the façade. Step cracking in the brick facade is likely due to differential settlement.

Mortar is missing at one corner of brick full height. The joint with missing mortar full-height was likely cut for an expansion joint, but no sealant was installed.

General maintenance of brick cladding, including tuckpointing and replacement of damaged brick, is not needed at this time. However, a brick maintenance project to repoint deteriorated mortar joints and replace cracked/spalled brick should be planned in approximately 4 to 6 years.

Steel rods and plates are protruding from the façade at a few locations. The brick surrounding these rods and plates has rust stains and the brick has spalled. The unfinished steel rod and plate corroded due to being exposed to the elements. Although some brick may have broken during the original installation, the majority of the brick damage at lintels is due to moisture intrusion/condensation through the bolt penetrations and the freeze/thaw cycle cracking and spalling the brick.

The purpose of this steel should be investigated further to determine whether they can be removed or if they require protection while repairing the adjacent brick. If abandoned, remove and repair brick masonry. If in use, determine if thermal transfer is occurring and eliminate thermal transfer during the brick repairs.

BUILDING ENVELOPE IMPROVEMENTS

PRIMARY SCHOOL FACILITY CONDITIONS

PS-BE-4 Repoint Mortar Joints and Replace Cracked/Spalled Brick, Repair Bricks at Steel Bolts and Anchors

• Replace brick (approximately 400)

• Repoint 2500 square feet

• Investigate the steel rod and plate to determine if needed

• If abandoned, remove and repair brick

• If in use, eliminate thermal transfer during brick repair

PS-BE-4 Benefits

• Extend life of building

• Reduce operating and maintenance expenses

BUILDING ENVELOPE IMPROVEMENTS

Replace Sealant at Doors, Windows, and Control Joints

Exterior sealant at windows, doors, corners, and other areas of the façade is in poor condition. Weathering, splitting, debonding, and cracking of sealant was observed throughout the façade.

Exterior sealants deteriorate as a result of exposure to UV light, moisture, and temperature cycles. Sealants typically have a lifespan of 8-12 years depending on material, material quality, and application/configuration.

Based on observed conditions, it appears that the sealants on the building have reached or exceeded their useful life.

Sealants are an important component of the exterior building envelope and in many cases are the first line of defense in preventing water entry into and through exterior walls. Deteriorated sealants greatly increase the potential for water entry.

Replace all window and door perimeter, control joint, and penetration sealant at the building façade, as well as any miscellaneous sealants present. These repairs should be completed in the next 0-3 years.

PRIMARY SCHOOL FACILITY CONDITIONS

BUILDING ENVELOPE IMPROVEMENTS

PS-BE-5 Replace Sealant at Doors, Windows, and Control Joints

• Replace sealant (approximately 6,000 LF)

PS-BE-5 Benefits

• Extend life of building

• Reduce operating and maintenance expenses

BUILDING ENVELOPE IMPROVEMENTS

Replace Three (3) Sets of Exterior Double Doors and Nine (9) Single Exterior Doors in the Next Three Years.

PRIMARY SCHOOL FACILITY CONDITIONS

The hollow metal swing doors are corroded at the bottom of the door frames. The door and door frame corrosion are due to water ponding against the building. The weatherstripping has failed at the perimeter of the garage doors. We recommend replacing the indicated exterior doors, including the hardware and locks. Re-key all the door locks to comply with the Districtwide Schlage standard.

PRIMARY

PRIMARY SCHOOL FACILITY CONDITIONS

BUILDING ENVELOPE IMPROVEMENTS

PS-BE-6 Replace Three (3) Exterior Double Doors and Nine (9) Single Doors Including Hardware and Locks. Re-Key all Door Locks to Comply with District Wide Schlage Standard

• Replace exterior doors and frames including hardware and locks

• Replace weatherstripping on garage doors

• Re-key all locks to district wide Schlage standard

PS-BE-6 Benefits

• Increase life of structure

• Prevent further deterioration of building

• Improve safety

PRIMARY SCHOOL FACILITY CONDITIONS

MECHANICAL AND PLUMBING

Update Building Automation System to Include Cooler and Freezer Temperatures and Alarms

The Chisago Lakes Primary School building automation system is in good shape and all hardware and software are current.

However, the existing cooler and freezer do not have temperature monitoring or alarms. Nexus recommends adding temperature monitoring and alarms to the cooler and freezer.

The benefits of this controls improvement include improved equipment control and monitoring.

MECHANICAL AND PLUMBING

PS-ME-1 Update Building Automation System to Include Cooler and Freezer Temperatures and Alarms

• Provide new controls for cooler and freezer

• Integrate new existing controls into platform

• Provide all programming required for this improvement

PS-ME-1 Benefits

• Easy to use, modernized system control updates

• Improved building monitoring and maintenance troubleshooting

• Reduced maintenance

MECHANICAL AND PLUMBING

Replace Seven (7) R-22 RTUs and One (1) 2005 Kitchen MAU

There are several rooftop and make-up air handling units serving the Chisago Lakes Primary School that are becoming maintenance problems for the District. These units are listed below.

• 2003 AAON RTU-3 that serves classrooms. This rooftop air handling unit currently has DX cooling and downstream hot water variable air volume (VAV) boxes.

• 2003 AAON RTU-4 that serves classrooms. This rooftop air handling unit currently has DX cooling and downstream hot water variable air volume (VAV) boxes.

• 2003 AAON RTU-5 that serves classrooms. This rooftop air handling unit currently has DX cooling and downstream hot water variable air volume (VAV) boxes.

• 2003 AAON RTU-6 that serves classrooms. This rooftop air handling unit currently has DX cooling and downstream hot water variable air volume (VAV) boxes.

• 2004 AAON RTU-7 that serves the Media Center. This rooftop air handling unit is a single zone unit with DX cooling and hot water heating coils.

• 2005 AAON RTU-8 that serves classrooms. This rooftop air handling unit currently has DX cooling and downstream hot water variable air volume (VAV) boxes.

• 2005 AAON RTU-9 that serves classrooms. This rooftop air handling unit currently has DX cooling and downstream hot water variable air volume (VAV) boxes.

• 2005 AAON Kitchen make-up air handling unit (MAU). This rooftop makeup air handling unit is a single zone unit with DX cooling and gas heating coils.

Nexus recommends replacing the eight (8) rooftop and make-up air handling units one for one with new double wall rooftop air handling units with hot water heating and DX dehumidification. The new rooftop air handling units would come with code compliant filtration, hot water heating coils, chilled water dehumidification coils, access sections, and supply fans with variable speed drives (VSDs).

The benefits of this HVAC improvement include increased system life expectancy, improved DDC scheduling, improved ventilation, increased energy savings, improved occupant comfort, and an improved learning and working environment.

PRIMARY SCHOOL FACILITY CONDITIONS

MECHANICAL AND PLUMBING

PS-ME-2 Rooftop and Make-Up Air Handling Unit Replacements

• Remove existing rooftop and make-up air handling units, piping, and controls

• Provide new double wall rooftop air handling units with hot water heating and DX dehumidification

• Extended new hot water and refrigerant piping to air handling units as required

• Provide variable speed drives for the supply and relief fans

• Provide all roofing and sealing work as required

• Provide DDC controls, sequencing, and programming

• Provide all associated general construction and electrical work as required

PS-ME-2 Benefits

• Upgraded HVAC infrastructure

• Increased ventilation for improved indoor air quality

• Improved temperature control

• Improved occupant comfort

• Reduced maintenance

• Improved learning/work environment

MECHANICAL AND PLUMBING

Add Dehumidification and Powered Relief to Gym Air Handling Unit

The Primary School Gym is currently being served by a 2021 air handling unit (AHU) with hot water heating but no means of dehumidification.

The lack of dehumidification results in higher humidity levels and occupant discomfort in the gym. The gym is also unable to meet the American Society of Heating and Refrigeration Engineer’s (ASHRAE) Thermal Environmental Conditions for Human Occupancy Standard 55. This ASHRAE design standard specifies the combinations of personal and indoor thermal environmental requirements necessary to achieve an occupant comfort satisfaction rate of 80% or greater. These indoor environmental requirements include temperature, thermal radiation, humidity, and air speed.

Nexus recommends adding a new DX dehumidification coil to the air handling unit to allow for dehumidification of the code required ventilation air to the gym. The coil would be mated with a new air-cooled condensing unit (ACCU) and refrigerant piping would be extended to the air handling unit as required.

Nexus also recommends adding powered relief to the gym in lieu of gravity relief. Powered relief systems provide enhanced control, efficiency, and adaptability compared to traditional gravity relief systems, contributing to better overall performance and operational benefits in air handling units.

The benefits of these upgrades include improved equipment scheduling, improved ventilation, increased energy savings, improved occupant comfort, and an improved learning and working environment.

PRIMARY SCHOOL FACILITY CONDITIONS

MECHANICAL AND PLUMBING

PS-ME-3 Add Dehumidification and Powered Relief to Gym Air Handling Unit

• Provide new DX dehumidification coil with mated air-cooled condensing unit

• Extend new refrigerant piping to air handling unit as required

• Install new powered relief fan for gym

• Provide DDC controls, sequencing, and programming

• Provide all associated general construction and electrical work as required

PS-ME-3 Benefits

• Upgraded HVAC infrastructure

• Improved temperature control

• Improved occupant comfort

• Reduced maintenance

• Improved learning/work environment

MECHANICAL AND PLUMBING

Replace 2005 R-22 ACCU Serving Multi-Purpose Room and Associated Coils and Add Ventilation to Maintenance Office

The existing 2005 condensing unit serving the multi-purpose air handling unit is starting to corrode and deteriorate. This 20-year-old condensing unit is still utilizing R-22 refrigerant which has become obsolete and far less efficient than today’s systems.

Nexus recommends replacing this old inefficient air-cooled condensing unit and the mated DX dehumidification coil with a new air-cooled condensing unit and associated DX dehumidification coil with American Society of Heating and Refrigeration Engineer’s (ASHRAE) code compliant refrigerant that is more energy efficient and environmentally friendly. New refrigerant piping would be installed as required for the new refrigerant.

The Maintenance Office 125 currently has no ventilation, which does not meet the current code for ASHRAE 62.1 Ventilation for Acceptable Indoor Air Quality. This code provides the minimum outside air ventilation rates that are required in the breathing zone for specific spaces.

Nexus recommends adding ventilation to the maintenance office from an adjacent air handling unit to bring in the code required ventilation air.

Benefits of these improvements include reduced maintenance, improved system operation, and increased occupant comfort.

MECHANICAL AND PLUMBING

PS-ME-4 Replace 2005 R-22 ACCU Serving Multi-Purpose Room and Associated Coils and Add Ventilation to Maintenance Office

• Provide new DX dehumidification coil with mated air-cooled condensing unit

• Extend new refrigerant piping to air handling unit as required

• Install new exhaust fan system for boiler room

• Provide DDC controls, sequencing, and programming

• Provide all associated general construction and electrical work as required

PS-ME-4 Benefits

• Upgraded HVAC infrastructure

• Improved temperature control

• Improved occupant comfort

• Reduced maintenance

• Improved learning/work environment

MECHANICAL AND PLUMBING

Replace Eight (8) Exhaust Fans

There are several rooftop exhaust fans serving the building that have exceeded their recommended service life and are in need of replacement.

Nexus recommends replacing some of these fans when major work is taking place so the best pricing can be obtained from the contractors. Nexus has budgeted for the replacement of eight (8) existing exhaust fans for the school. Nexus will work along with the District on the priority of which ones want to be replaced.

Fans will be a direct replacement to the original size/capacity but will have premium efficiency motors installed to increase energy savings. The fan size/capacity may be reduced if engineering can justify where over ventilation is occurring.

The benefits of this HVAC improvement will result in increased energy savings, improved flow and reduced maintenance for exhaust fans, and reduced leaks from seals.

PRIMARY SCHOOL FACILITY CONDITIONS

MECHANICAL AND PLUMBING

PS-ME-5 Replace Eight (8) Exhaust Fans

• Replace rooftop exhaust fans with new exhaust fans with associated ductwork

• Provide all roofing and sealing work as required

• Provide DDC controls, sequencing, and programming

• Provide all associated general construction and electrical work as required

PS-ME-5 Benefits

• Upgraded exhaust system infrastructure

• Improved temperature control

• Improved occupant comfort

• Reduced maintenance

• Improved work environment

MECHANICAL AND PLUMBING

Replace One (1) Non-ADA Wash Fountain, Three (3) Non-ADA Drinking Fountains, Add Domestic Hot Water to Twenty (20) Sinks that are Cold Only, and Replace Ten (10) Flush Valves in Toilet Rooms

There are several plumbing devices that are starting to increase in maintenance/non-ADA compliant and should be replaced. See below for this equipment.

• Non-ADA Wash Fountain (Qty 1)

• Non-ADA Drinking Fountains (Qty 3)

• Flush Valve Replacements in Toilet Rooms (Qty 10)

Nexus recommends replacing these existing plumbing fixtures one for one with new fixtures. Plumbing piping would be modified as required for the new fixtures.

Replacing these plumbing fixtures would provide reduced water consumption, reduced maintenance, and extended life expectancy of the plumbing system.

Nexus also recommends adding hot water to the sinks that are currently cold water only (Qty 20) and adding two (2) demand domestic hot water recirculation pumps for the rooms in the 1965 area of the building that have trouble getting hot water in an appropriate amount of time.

Benefits of this work would be reduced maintenance, improved water quality, and improved domestic hot water system.

MECHANICAL AND PLUMBING

PS-ME-6 Replace One (1) Non-ADA Wash Fountain, Three (3) Non-ADA Drinking Fountains, Add Domestic Hot Water to Twenty (20) Sinks that are Cold Only, and Replace Ten (10) Flush Valves in Toilet Rooms

• Demo existing wash station, drinking fountains, and flush valves

• Provide and install new fixtures one for one

• Modify existing plumbing piping as required for new fixtures

• Provide associated general and electrical construction

• Extend new hot water piping to sinks that are currently cold water only

• Provide and install new demand hot water recirculating pumps and piping for areas with current hot water issues

• Provide associated general and electrical construction work as required

PS-ME-6 Benefits

• Improved occupant comfort

• Improved plumbing fixture operation

• Increased equipment life

• Reduced maintenance

MECHANICAL AND PLUMBING

Fix Domestic Cold-Water Crossover Feeding and Replace Leaky Valves Located in Tunnel (Option 7A)

The existing valves and hangers for the domestic water piping in the tunnel have corroded and are starting to fail. This is causing the pipes to not be properly supported and failed valves are causing cold-water crossover/back feeding issues with the hot water system.

Nexus recommends replacing all the valves and hangers in the tunnel with new valves and hangers to ensure proper piping support and prevent cold and hot water crossover.

Replacing these valves and hangers would provide reduced water consumption, reduced maintenance, and extended life expectancy of the plumbing system.

Demo Domestic Piping in Tunnel Including Valves, Install New Domestic Water Piping (Option 7B)

The existing valves and hangers for the domestic water piping in the tunnel have corroded and are starting to fail. This is causing the pipes to not be properly supported and failed valves are causing cold-water crossover/back feeding issues with the hot water system.

Nexus recommends removing all the domestic water piping in the tunnels and installing a new overhead domestic water system throughout the building.

Replacing these valves and hangers would provide reduced water consumption, reduced maintenance, and extended life expectancy of the plumbing system.

MECHANICAL AND PLUMBING

PS-ME-7A Fix Domestic Cold-Water Crossover Feeding and Replace Leaky Valves Located in Tunnel

• Demo existing valves and hangers in tunnel

• Provide and install new valves and hangers as required

• Modify existing plumbing piping as needed

• Provide associated general construction

PS-ME-7A Benefits

• Improved plumbing fixture operation

• Increased equipment life

• Reduced maintenance

PS-ME-7B Demo Domestic Piping in Tunnel Including Valves, Install New Domestic Water Piping

• Demo existing piping, valves, and hangers in tunnel

• Provide and install new domestic water system overhead

• Modify existing plumbing piping as needed

• Provide associated general construction

PS-ME-7B Benefits

• Improved plumbing fixture operation

• Increased equipment life

• Reduced maintenance

PRIMARY SCHOOL FACILITY CONDITIONS

MECHANICAL AND PLUMBING

Retro-Commissioning of HVAC Equipment

Building retro-commissioning is a systematic process that ensures all buildings perform as efficiently as possible according to the owner’s operational needs as well as adjustment of HVAC equipment’s operational parameters to meet current space use.

The Building Automation System (BAS) plays a crucial role in providing a comfortable, energyefficient environment for students, parents, and staff. Over time, damper and valve controls have gone out of proper adjustment, components fail, and controls sequences are modified and may not be programmed to provide an optimal balance between comfort, indoor air quality, and energy efficiency.

This Nexus Retro-commissioning Team will identify the root cause of HVAC equipment operational issues and will provide adjustments to the sequences and outdoor air setting to improve occupant comfort while reducing energy consumption where possible. The retrocommissioning process will also identify components that require adjustment or replacement.

Retro-commissioning activities include:

HVAC Equipment: Nexus will verify existing HVAC equipment operation and control sequences through observation. We will provide adjustment and tuning services to achieve optimal operation and improved occupant comfort. Documentation of the findings with corrections and recommendations for further improvements will be made.

Services include:

• Ventilation study to assure all spaces are ventilated per the current code requirements and the outdoor air setpoints will be adjusted up or down based on current space occupancy

• Test point commands vs actual controller output at each device for heating, cooling, and mixed air control

• Verify valve/damper operation on reheat coils and air handler coils

• Verify indicated vs actual (duct static, supply and return temperatures)

• Verify mixed-air operation (damper position and economizer operation)

PRIMARY SCHOOL FACILITY CONDITIONS

Valves and Dampers: Nexus will test all existing rooftop (RTU) and indoor air handling unit (AHU) sequences along with the valve and damper operation to ensure control actuators are fully operational. We observe valve/damper/actuator operation and check for any physical signs of valve/damper leakage or binding, which results in operational issues and increased energy consumption. We check discharge temperature with valves in the fully open and closed positions. In addition, we will provide unit pricing to replace any defective valves and/or actuators. Proper RTU and AHU operation provides improved occupant comfort at optimal energy efficiency.

Zone Reheat Valves: Nexus will test existing zone reheat valves for proper operation. We ensure command valves fully open and close and observe valve/actuator operation. We inspect valves for any physical signs of valve leakage or binding, check discharge temperature with valve in the fully open and closed positions and provide unit pricing to replace any defective valves and/or actuators.

Economizer: Nexus will update the control sequence for mixed-air dampers to their setpoints with economizer lockout setpoints.

Heating Water Pump Variable Speed Drives (VSDs): Nexus will lower the pressure setpoint to allow drives to modulate down to the slowest speed required to satisfy the most critical room temperature sensor.

Boilers: Nexus will optimize sequencing and staging of equipment and adjust the water reset schedules based on outside air temperature.

The action steps noted above are part of the Nexus retro-commissioning process. The benefits of this process include improved temperature control and occupant comfort, reduced energy consumption, reduced maintenance, and extended HVAC equipment life.

PRIMARY SCHOOL FACILITY CONDITIONS

MECHANICAL AND PLUMBING

PS-ME-8 Retro-Commissioning of HVAC Equipment

• Provide retro-commissioning of all existing HVAC systems

• Provide adjustments to existing sequences to improve HVAC system operation

• Verify operation of all dampers, actuators, valves, and terminal HVAC devices

PS-ME-8 Benefits

• Improved temperature control and occupant comfort

• Reduced energy consumption

• Reduced maintenance

• Extended HVAC equipment life

ELECTRICAL, TECHNOLOGY, AND SAFETY SYSTEMS

Upgrade Electrical Power Distribution Including the 1965 Switchgear and Panels

The switchboard and panels that are original to the 1965 building are now 60 years old and are at the end of their useful life. The switchboard is manufactured by FPE, which is no longer in existence. Parts for this equipment are no longer available.

It is recommended that the 1965 electrical panels and switchboard be replaced. New panels will provide a safer electrical system since new equipment will be in compliance with current manufacturing standards for electrical equipment and will reduce maintenance costs.

Equipment recommended to be replaced includes one switchboard and 5 panelboards.

ELECTRICAL, TECHNOLOGY, AND SAFETY SYSTEMS

PS-ES-1 Upgrade Electrical Power Distribution Including the 1965 Switchgear and Panels

• Replace One Switchboard

• Replace Five (5) Panelboards

PS-ES-1 Benefits

• Protection of and Improved Reliability of Electrical Infrastructure

• Reduced energy consumption

• Reduced maintenance

• Extended HVAC equipment life

PRIMARY SCHOOL FACILITY CONDITIONS

ELECTRICAL, TECHNOLOGY AND SAFETY SYSTEMS

Install New Generator to Control Primary Systems Such as Boiler, Boiler Pumps, Emergency Lighting, Cooler and Freezer (130 kW)

Currently, there is no backup power generator installed. There are frequent power outages at this location. This poses a risk for building security and life safety. In addition, costs may be incurred due to loss of heat in the building causing it to freeze up and loss of food that is stored in the coolers and freezers.

It is recommended that a generator be installed to provide backup power for these necessary items.

Increase the Size of the Generator from 130 kW to 400 kW to Cover Full Building Load Including Cooling

Alternately, with frequent power outages, installing a generator with full building backup will allow the school to function, even when utility power is lost. Increasing the size of the generator from 130 kW to 400 kW will also allow the building to be cooled.

. ELECTRICAL, TECHNOLOGY, AND SAFETY SYSTEMS

PS-ES-2.1, 2.2 Install New Generator

• Add a backup generator to provide backup power for heating equipment, coolers/freezers, fire alarm/security, and IT network equipment.

• Increase size to also cover cooling of building

PS-ES-2.1, 2.2 Benefits

• Provides better life safety with the IT equipment and life safety systems on the backup power

• Prevents potential financial losses due to power outages

• Option to handle the entire building load to prevent school shutdowns

PRIMARY SCHOOL FACILITY CONDITIONS

ELECTRICAL, TECHNOLOGY AND SAFETY SYSTEMS

LED Lighting Upgrade for Areas with Fluorescent. Retrofit Kits for Fixtures in Good Condition, Replacement for Unique or Outdated Fixtures. Includes 3 Exterior Lights and 54 Emergency Lights

The existing lighting in classrooms, gymnasiums, and common areas is primarily fluorescent lamps throughout. The fixtures appear to be in fair condition; however, LED lamp technology is more energy efficient.

Replacing the light fixtures with LED light fixtures will reduce energy use and maintenance costs. LED light fixtures have a life span of more than 50,000 hours and do not require lamp replacements, which reduces maintenance costs.

It is recommended that the lighting controls be upgraded to include dimming and occupancy sensors.

There is an area outside that is frequently used that is not well lit. It is recommended to add light fixtures as necessary in this area to provide adequate light, which will enhance the safety and security of students and staff.

In addition, emergency batter lights have a useful life of 10-years. It is recommended that emergency lights be replaced to reduce maintenance costs due to fixture or battery replacement. Note – the costs were included in the lighting costs for 54 emergency lights. If the generator is accepted, the cost for these lights would be used to route emergency power throughout to lights so they can be on the generator per our discussion with Kyle.

ELECTRICAL, TECHNOLOGY, AND SAFETY SYSTEMS

PS-ES-3 LED Lighting Upgrade for Areas with Fluorescent. Retrofit Kits for Fixtures in Good Condition, Replacement for Unique or Outdated Fixtures. Includes 3 Exterior Lights and 54 Emergency Lights

• Replace light fixtures throughout the building with LED light fixtures

• Add light fixtures on building exterior

• Controls to provide dimming capabilities

• Automatic shutoff of lighting

PS-ES-3 Benefits

• Reduce energy costs

• Reduce maintenance costs

• Enhance outside security

PRIMARY SCHOOL FACILITY CONDITIONS

ELECTRICAL, TECHNOLOGY AND SAFETY SYSTEMS

Install 5 Additional Security Cameras and 12 Additional Clocks to Existing Systems. Repair Fire Alarm Interface with HVAC System.

Security System Upgrades

Security cameras are approximately 5-6 years old. Although they still have 3-4 years left of their useful life, there are areas that need better camera coverage for better security.

Clock System Upgrades

The existing clock system is a newer system consisting of wireless clocks that synchronize. However, there are 12 locations where older clocks still remain. These clocks should be replaced to match the newer system so all the clocks in the building synchronize together.

Fire Alarm System Upgrades

The existing fire alarm system is a Notifier system with voice evacuation and was recently installed. However, there is an issue with the system as it relates to interface with the HVAC system. This issue needs to be corrected.

ELECTRICAL, TECHNOLOGY, AND SAFETY SYSTEMS

PS-ES-4 Install 5 Additional Security Cameras and 12 Additional Clocks to Existing Systems. Repair Fire Alarm Interface with HVAC Systems

• Correct alarm code issues with fire alarm system

• Add 5 additional security cameras where coverage is lacking

• Add 12 clocks to existing system

PS-ES-4 Benefits

• Protection and improved reliability

• Improved safety

• Enhance security

PRIMARY SCHOOL FACILITY CONDITIONS

ELECTRICAL, TECHNOLOGY AND SAFETY SYSTEMS

Replace Non-Working Sound System in Multi-Purpose Room

The existing sound system in the Multi-Purpose Room is not working and should be replaced. It is recommended that the system be replaced and tied in with the paging system.

ELECTRICAL, TECHNOLOGY, AND SAFETY SYSTEMS

PS-ES-5 Replace Non-Working Sound System in Multi-Purpose Room

• Replace audio system in multi-purpose room

• Add 5 additional security cameras where coverage is lacking

• Add 12 clocks to existing system

PS-ES-5 Benefits

• Protection and improved reliability

• Improved safety

ELECTRICAL, TECHNOLOGY AND SAFETY SYSTEMS

Install New Burglar Alarm Systems with 10 Motion Sensors and Two Keypads.

PRIMARY SCHOOL FACILITY CONDITIONS

A burglar alarm system is also needed to enhance the security of the building. It is recommended that a burglar alarm system be installed.

ELECTRICAL, TECHNOLOGY, AND SAFETY SYSTEMS

PS-ES-6 Install New Burglar Alarm Systems with 10 Motion Sensors and Two Keypads

• Install new burglar alarm

• Install 10 motion sensors

• Install 2 keypads

PS-ES-6 Benefits

• Protection and improved reliability

• Improved safety

INTERIOR FINISHES AND ADA

High Priority Ceilings and Flooring

The Primary school building overall has been maintained very well, however, there are a few high priority interior finishes needs that should be addressed in the next 0-6 years. Replace ACT ceilings and repaint exposed structures as they have reached the end of their useful life and are showing stains and damage. The carpet in a few areas of the building is also showing wear and tear. Replace the old VCT in corridors with new rubber tiles as part of a District wide standardization. The resilient flooring is showing scratches and stains. Replace VCT flooring with a flooring material that requires less maintenance, such as an LVT.

INTERIOR FINISHES AND ADA

PS-IA-1 High Priority Ceiling Upgrades

• Replace ACT ceiling as noted on the plans in 0-6 years

• Repaint rooms with exposed structures

PS-IA-2 High Priority Flooring Upgrades

• Replace carpet in media center with new carpet tiles

• Replace VCT in corridors with rubber tiles

• Replace VCT and resilient flooring with LVT in areas marked on the plans

PS-IA-1 & 2 Benefits

• Improved building aesthetics

• Extending the life of the interior materials

• Reduced maintenance costs

PRIMARY SCHOOL FACILITY CONDITIONS

INTERIOR FINISHES AND ADA

Low Priority Flooring and Ceilings

The low priority needs to be addressed in the next 7-10 years would include. The ceilings in the four 1st grade classrooms and the adjoining corridor should be replaced. The remaining resilient flooring in the classrooms should be updated with a flooring material that requires less maintenance, such as an LVT.

INTERIOR FINISHES AND ADA

PS-IA-5 Low Priority Ceiling Upgrades

• Replace ACT ceiling as noted on the plans in 0-6 years

• Repaint rooms with exposed structures

PS-IA-6 Low Priority Flooring Upgrades

• Replace VCT in corridors with rubber tiles

• Replace VCT and resilient flooring with LVT in areas marked on the plans

PS-IA-5 & 6 Benefits

• Improved building aesthetics

• Extending the life of the interior materials

• Reduced maintenance costs

CEILINGS

FLOORING

PRIMARY SCHOOL FACILITY CONDITIONS

INTERIOR FINISHES AND ADA

Casework needs

The casework in the classrooms is in need of upgrading. It is showing signs of damage and is not meeting the needs of the users. All of the identified casework should be replaced in the next 6 years.

INTERIOR FINISHES AND ADA

PS-IA-3

High Priority Casework

• Replace existing casework with new upgraded casework

PS-IA-3 Benefits

• Improved building aesthetics

• Extending the life of the interior materials

• Reduced maintenance costs

Casework

PRIMARY SCHOOL FACILITY CONDITIONS

INTERIOR FINISHES AND ADA

High Priority Door Replacement, Hardware and Locks. Re-Key All Door Locks to Comply with District-Wide Schlage Standard.

The majority of the interior door hardware needs to be replaced in the next 3 years. There are also a few doors that need replacement including the hardware. All of the door’s locks need to be re-keyed to comply with the District-Wide Schlage standard.

INTERIOR FINISHES AND ADA

PS-IA-4 High Priority Door Replacement, Hardware, and Locks

• Replace hardware on 23 doors

• Replace 21 single doors and hardware

• Replace 2 double doors

PS-IA-4 Benefits

• Improved building aesthetics

• Extending the life of the interior materials

• Improved functionality of building

Doors & Hardware

SITE IMPROVEMENTS

Add New North Parking and Relocate Walkway and Fencing

The ECFE/pre-K wing does not have a way for parents to drop off/pick up the small children. The new parking lot with 16 stalls and a sidewalk directly to the separate entry will improve access. The relocated fence will also improve the safe walking route to school.

SITE IMPROVEMENTS

PS-SI-1 Add New North Parking and Relocate Walkway and Fencing

• New asphalt parking lot with cub and gutter

• New fencing

• Move ECFE entry to door 16

PS-SI-1 Benefits

• Improved building access

• Separate parent loop for ECFE

• Improved walking path for students

SITE IMPROVEMENTS

Remove and Replace Pavement of the Hard Playground on East & West Sides of Building. Improve Drainage with New Catch Basin.

During the site visit it was observed that the asphalt on the east and west hard play areas had a lot of cracking with signs of previous crack sealing. The east hard play area does not drain properly causing safety issues including ice formation. Both the east and west hard play surfaces need to be removed and replaced with new asphalt. A new catch basin should be added to improve drainage of the east area.

SITE IMPROVEMENTS

PS-SI-2 East Playground

• Remove and replace asphalt pavement

• Fine grading/soil correction

• Add catch basin and pipe

• Remove and replace sections of play curb and play mulch for drainage improvement

PS-SI-3 West Playground

• Remove and replace asphalt pavement

• Fine grading/soil correction

PS-SI-2 & 3 Benefits

• Safer play area

• Improved drainage

PRIMARY SCHOOL FACILITY CONDITIONS

East Playground
West Playground
East Playground

SITE IMPROVEMENTS

Remove and Repair North Loop Driveway, Parking Lot, and South Parking

The North parking lot aesthetically is poor because of numerous patches during previous projects, but the pavement is also starting to fail. Lot could benefit from regrading to improve drainage. With storm sewer possibly extended over to the east play area it may now be possible to extend it further to the north parking and add catch basin(s). The south parking lot and drive also had a few areas where pavement was failing. Some areas of curb and sidewalk throughout the site have cracks and large chips.

SITE IMPROVEMENTS

PS-SI-4 North loop driveway and parking lot

• Remove and replace asphalt

• Concrete pavement spot replacements

• Curb and gutter spot replacements

• Minimal fine grading/ soil correction

PS-SI-5 South parking lot

• Remove and replace asphalt pavement

• Concrete pavement spot replacements

• Curb and gutter spot replacements

• Fine grading/soil correction

PS-SI-4 & 5 Benefits

• Increased safety

• Decreased maintenance issues

• Improves facility aesthetics

PRIMARY

SITE IMPROVEMENTS

East and West Playground Equipment, new curbing and top dress wood chips

PRIMARY SCHOOL FACILITY CONDITIONS

The majority of the playground equipment has reached the end of its useful life and should be replaced. The existing arch and tire swings and unity climber on the east playground should remain as they still have some life. On the West playground some of the existing structure, the tire swing and the spin cup should remain. The plastic curbing should be replaced with new concrete curbing. The wood chips should be top dressed, so it is at the designated height for safety. The new equipment would be age appropriate.

SITE IMPROVEMENTS

PS-SI-6 East Playground Upgrade

• Replace aging playground equipment with new 5-12 years equipment

• Replace plastic curbing with concrete curbing

• Top dress wood chips

• Keep arch and tire swings and unity climber

PS-SI-7 East Playground alternate surface

• Replace wood chips with poured in lace rubber safety surfacing

PS-SI-8.1 West Playground Upgrade

• Attach new play structure (5-12 years) to existing structure

• Add new spin cup

• Replace plastic curbing with concrete curbing

• Top dress wood chips

• Keep tire swings and spin cup

PS-SI-8.2 West Playground alternate surface

• Replace wood chips with poured in place rubber safety surfacing

PRIMARY SCHOOL FACILITY CONDITIONS

East Playground

West Playground

PRIMARY SCHOOL FACILITY CONDITIONS

East Playground Equipment

Proposed West Playground

Proposed

SITE IMPROVEMENTS

Softball / Kickball Field Improvements

While onsite it was observed that the east backstop is leaning and should be removed and replaced. Additional fencing to fill gaps to stop balls would make the field more user friendly. The outfield fence is heaving and shifting but still appears to function as an outfield marker that stops balls.

All fields could benefit from weed killing and a top dressing of aglime. Wetlands exist between the north and south fields so no drastic changes can occur without looking at old surveys and possibly requesting a new survey and wetland delineation.

SITE IMPROVEMENTS

• PS-SI-9 Repair and upgrade two softball fields with new fence and backstops

• Remove east backstop as it appears to not be stable

• Install new backstop and additional sideline fencing

• Top dress aglime

• Improve field with installation of benches

• Budget for future removal and replacement of outfield fence

PS-SI-9 Benefits

• Safer play area

PRIMARY SCHOOL EDUCATIONAL ADEQUACY

EDUCATIONAL ADEQUACY

RECONFIGURE

KITCHEN & RELOCATE SERVERY

The kitchen is undersized for the number of students they are serving and creating lines for serving students in a hallway is not ideal. The current average daily participation is 150 breakfast and 290 lunches over 9 lunch periods. Renovations allow expanding of the kitchen by relocating the receiving area to be more centralized within the building and creating a formalized serving area with adjacency into the cafeteria. The new formalized serving area would provide space to utilize equipment that will maintain the proper food temperature during meal service.

DEMOLISH STAGE. RELOCATE RECEIVING AND TSA, PSYCH, PE, AND SPEECH OFFICES. CREATE CHAIR STORAGE ROOM OFF THE GYMNASIUM AND RELOCATE DOUBLE DOORS.

The Primary School was not designed to provide the student services that schools are now required to provide. The school has needs for officing (shared or dedicated) various support team members such as Psychologist, Speech, TSA, as well as providing the “stop and think”, which all support District initiatives. Providing dedicated space for these programs allows the student to engage with the staff or service with dignity. The existing stage space is underutilized as it is being used for storage. The stage would be converted to create these small rooms for officing and student services. A chair storage room would be created on the south end of the gymnasium.

PRIMARY

MEDIA CENTER RENOVATION

Media Centers have evolved over the years and have become a place for many resources beyond just books and research. The desire is to renovate the space to increase flexibility to best serve the versatile needs of media center and large group work.

DIVIDE READING ROOM INTO THREE SEPARATE TEACHING SPACES FOR ACOUSTICAL SEPARATION

Reading Intervention is provided with one staff member and a small group of 4-5 students. The scope includes formalizing the current situation of cubicle partitions into walls and doors with teaching surfaces (marker- and tack- boards) to provide acoustical privacy to allow student focus and enhance hearing/audible connections. Three small group rooms would be created in the current reading intervention space. These group rooms could support other small group activities outside of reading intervention. The space would provide flexibility for the building because it currently lacks small group instructional areas.

INSTALL PERMANENT SHEETROCK WALLS IN KINDERGARTEN AREA

In the Kindergarten classrooms, the walls separating the spaces, and the hallway are demountable wall assemblies. These walls are well past their useful lives. To enhance acoustical separation and increase durability, these demountable walls were requested to be replaced with permanent walls constructed to the underside of the roof. This would require replacement of the casework and teaching surfaces (marker- and tack- boards) that are currently located on the demountable walls.

NEW FLEXIBLE CLASSROOM FURNITURE (50%)

Most classrooms have outdated furniture or do not have sufficient flexible furniture available that will attract students to those areas. Comfortable and inviting furniture has been studied to be as important to the spaces as the lighting, HVAC, and spaces themselves.

PRIMARY

BUILDING ENVELOPE

Reinforce the Steel and Concrete Piers in the Center of the Bus Garage with Steel Plating and Cast the Bottom four Feet in Concrete to Add a Protective Layer at the Base (4 Columns), Remaining 11 Columns Should Have Steel Cleaned and Painted to Prevent Future Deterioration

Significant deterioration of the column bases supporting the steel beams of the roof was observed. The steel columns at the center of the bus storage area appeared to have the worst corrosion. The damage was localized to the lower twelve inches of the columns due to bus exhaust. To prevent any further deterioration, we recommend the columns be reinforced with steel plating and cast the bottom four feet in concrete to add a protective layer at the base.

BUILDING ENVELOPE IMPROVEMENTS

BG-BE-1

Reinforce the Steel and Concrete Piers in the Center of the Bus Garage with Steel Plating and Cast the Bottom four Feet in Concrete to Add a Protective Layer at the Base (4 Columns), Remaining 11 Columns Should Have Steel Cleaned and Painted to Prevent Future Deterioration

• Remove all rust and angle steel from around column.

• Chip out concrete to expose base plate of column.

• Install new steel sleeve around entire column and weld at top of sleeve to columnand to base plate. Plug welding intermittently around sleeve to column may be necessary.

• Cast new concrete beginning at slab and up steel column 3’-0” for protection. 12” minimum concrete diameter for encapsulating columns

• This occurs at 4 locations

BG-BE-1 Benefits

• Increase the life of the building

• Reduced maintenance

BUILDING ENVELOPE

Replace Damaged Metal Panels and Install Parking Curbs to Prevent Further Damage to the Metal Siding

The façade was constructed with uninsulated metal wall panels. Many of the metal panels are dented or twisted due to vehicular impacts. Parking curbs are not present around the building. We recommend installing parking curbs to reduce the number of vehicular impacts into the structure and replacing the damaged metal panels.

BUILDING ENVELOPE IMPROVEMENTS

BG-BE-2 Replace Damaged Metal Panels and Install Parking Curbs to Prevent Further Damage to the Metal Siding

• Replace damaged metal panels with new panels

• Install parking curbs around exterior except for doors and garage doors

BG-BE-2 Benefits

• Improved appearance of structure

• Reduced maintenance

BUILDING ENVELOPE

Repair Gutters and Downspouts, Add Downspout Extenders, Remove Abandoned Footing and Patch Concrete

At the front of the building, install gutters and downspouts at all roof edges, and add downspout extenders to all downspouts at the back of the building to move water away from foundation.

An abandoned fence footing creates a trip. This footing should be removed.

BUILDING ENVELOPE IMPROVEMENTS

BG-BE-3 Repair Gutters and Downspouts, Add Downspout Extenders, Remove Abandoned Footing and Patch Concrete

• Install downspouts extensions at the back side of the building.

• Install gutters and downspouts at the front of the building.

• Remove abandoned footing and pour new concrete to fill the gap.

BG-BE-3 Benefits

• Increase life of structure

• Prevent further deterioration of building

• Improve safety

• Improve comfort

BUILDING ENVELOPE

Replace Three (3) Exterior Doors Including Hardware and Locks. Re-Key All Door Locks to Comply with District Wide Schlage Standard.

The hollow metal swing doors are corroded at the bottom of the door frames. The door and door frame corrosion is due to water ponding against the building. The weatherstripping has failed at the perimeter of the garage doors.

We recommend replacing the three exterior doors including the hardware and locks. Re-key all the door locks to comply with the District wide Schlage standard.

BUILDING ENVELOPE IMPROVEMENTS

BG-BE-4 Replace Three (3) Exterior Doors Including Hardware and Locks. Re-Key all Door Locks to Comply with District Wide Schlage Standard

• Replace 3 exterior doors and frames including hardware and locks

• Replace weatherstripping on garage doors

• Re-key all locks to district wide Schlage standard

BG-BE-4 Benefits

• Increase life of structure

• Prevent further deterioration of building

• Improve safety

MECHANICAL AND PLUMBING

Add Remote Alarm Detection

The Chisago Lakes Bus Garage currently has no connection to the District’s head building automation system. The building is currently controlled by standalone thermostats and furnaces with no alarms in the event something goes wrong.

Nexus recommends retrofitting with new communication thermostats that would allow for more control of the building.

New remote access to the building would also be integrated as a part of this upgrade so the District will have remote access for alarming if something goes wrong.

Benefits of this controls upgrade include reduced energy consumption, reduced maintenance, improved equipment troubleshooting, and alarm monitoring.

MECHANICAL AND PLUMBING

BG-ME-1 Add Remote Alarm Detection

• Replace existing thermostats with new communication thermostats

• Provide all controls and programming required for alarm monitoring

• Provide remote access through the District’s building automation system

BG-ME-1 Benefits

• Improved temperature control and occupant comfort

• Reduced energy consumption

• Reduced maintenance

MECHANICAL AND PLUMBING

Add CO/NO2 Detectors, Gas Shutoff Valve, Exhaust, and Intake Air for Bus Bay, Mechanical Shop, and Wash Bay

The Bus Bay, Mechanical Shop, and Wash Bay currently have no CO/NO2 alarm detection system.

These areas typically have a lot of activity with mechanics working on buses and drivers moving vehicles in and out. Without a detection system, there is a risk that dangerous levels of CO or NO2 could accumulate without anyone being aware, potentially causing accidents or injuries.

Nexus recommends adding new CO/NO2 sensors, exhaust fans, and fresh air intakes in these spaces to keep the air better circulated. New gas shutoff valves would also be installed.

The benefits of these modifications include increased system life expectancy, improved ventilation, and an improved working environment.

MECHANICAL AND PLUMBING

BG-ME-2 Add CO/NO2 Detectors, Gas Shutoff Valve, Exhaust, and Intake for Bus Bay, Mechanical Shop, and Wash Bay

• Provide new CO/NO2 detectors

• Provide and install new exhaust fans and air intakes

• Provide and install new gas shutoff valves to main gas line entering these spaces

• Provide all associated general construction and electrical work as required

BG-ME-2 Benefits

• Increased ventilation for improved indoor air quality

• Improved temperature control

• Improved occupant comfort

• Improved work environment

MECHANICAL AND PLUMBING

Add Gas Fired Suspended Unit Heaters to Bus Bay (Qty 4) and Mechanical Shop (Qty 2), and Wash Bay (Qty 1); Remove 1993 Make Up Air Handling Unit

There are currently no gas fired unit heaters in the Bus Bay or the Mechanical Shop. There are two (2) existing gas fired unit heaters in the Wash Bay. One (1) that is newer and one (1) that has exceeded its recommended service life and is in need of replacement.

Nexus recommends replacing the older gas fired suspended unit heater in the Wash Bay and adding new gas fired unit heaters in the Bus Bay (Qty 4) and Mechanical Shop (Qty 2). The 1993 Bus Bay make up air handling unit will also be removed as it is no longer needed with this improvement.

The benefits of this improvement include improved temperature control, energy savings, and improved occupant comfort.

MECHANICAL AND PLUMBING

BG-ME-3 Add Gas Fired Unit Heaters in Bus Bay (Qty 4), Mechanical Shop (Qty 2), and Wash Bay (Qty 1); Remove 1993 Make Up Air Handling Unit

• Replace old gas fired unit heater in the Wash Bay one for one with a new gas fired unit heater

• Provide four (4) new high efficiency gas fired unit heaters to the Bus Bay

• Provide two (2) new high efficiency gas fired unit heaters to the Mechanical Shop

• Extend new gas piping as required for new unit heater additions

• Demo 1993 Bus Bay make up air handling unit

• Provide all required general construction work

BG-ME-3 Benefits

• Increased energy savings

• Increased heating system life

• Improved temperature control

• Improved occupant comfort

• Reduced maintenance

MECHANICAL AND PLUMBING

Replace Breakroom Furnace and Add Cooling, Replace Make Up Air Handling Unit for Shop with Supply Distribution Ductwork

There is currently a 1997 Bryant furnace serving the drivers room areas at the Bus Garage and a 2004 make up air handling unit serving the Mechanical Shop. Both of these units are beginning to need more maintenance and should be considered for replacement.

Nexus recommends replacing the 1997 Bryant furnace with a new gas fired furnace with DX dehumidification. The addition of dehumidification to this unit will improve indoor environmental requirements such as temperature, humidity, and air speed.

Nexus also recommends replacing the 2004 Mechanical Shop make-up air handling unit one for one with a new make-up air handling unit with code compliant filtration, a gas heating coil, access sections, and supply fans. New supply ductwork would also be installed to better distribute the air in the Mechanical Shop.

The benefits of this HVAC improvement include increased system life expectancy, improved ventilation/exhaust, increased energy savings, improved occupant comfort, and an improved working environment.

MECHANICAL AND PLUMBING

BG-ME-4 Replace Breakroom Furnace and Add Cooling, Replace Make-Up Air Handling Unit for Shop with Supply Distribution Ductwork

• Replace 1997 Bryant Furnace with new furnace with gas heating and DX dehumidification

• Extend new refrigerant piping to furnace as required

• Replace 2004 Mechanical Shop make-up air handling unit with new make-up air handling unit with gas heating

• Provide new supply distribution ductwork in Mechanical Shop

• Provide all roofing and sealing work as required

• Provide DDC controls, sequencing, and programming

• Provide all associated general construction and electrical work as required

BG-ME-4 Benefits

• Upgraded HVAC infrastructure

• Increased ventilation for improved indoor air quality

• Improved temperature control

• Improved occupant comfort

• Reduced maintenance

• Improved learning/work environment

MECHANICAL AND PLUMBING

Add New Exhaust Fan for Mechanical Shop and Replace Inline Exhaust Fan with New Hose Reels (Qty 2), Remove Sidewall Exhaust Fan

The existing Mechanical Shop exhaust fan is inadequate as it is directly vented into the Bus Bay so fumes being exhausted from the Mechanical Shop go directly into the Bus Bay. The existing inline exhaust fan and associated hose reels in the Mechanical Shop are aging and should be considered for replacement.

Nexus recommends adding a new rooftop exhaust fan with associated exhaust ductwork in the Mechanical Shop to provide an adequate general exhaust system that will disperse fumes from this space directly outside in lieu of the Bus Bay.

Nexus also recommends replacing the existing inline exhaust fan and associating hose reels with a new inline exhaust fan with new drop-down hose reels (Qty 2) that you can directly connect to an exhaust pipe when a bus is running in this space. The new exhaust fans will have premium efficiency motors installed to increase energy savings.

The benefits of this HVAC improvement will result in increased energy savings and improved flow. It will also result in reduced maintenance for exhaust fans and reduced leaks from seals.

MECHANICAL AND PLUMBING

BG-ME-5 Add New Exhaust Fan for Mechanical Shop and Replace Inline Exhaust Fan with New Hose Reels (Qty 2), Remove Sidewall Exhaust Fan

• Remove sidewall exhaust fan and install new rooftop exhaust fan with associated ductwork

• Replace inline exhaust fan and hose reels with new exhaust fan and new drop-down hose reels

• Provide all roofing and sealing work as required

• Provide DDC controls, sequencing, and programming

• Provide all associated general construction and electrical work as required

BG-ME-5 Benefits

• Upgraded exhaust system infrastructure

• Improved temperature control

• Improved occupant comfort

• Reduced maintenance

• Improved work environment

MECHANICAL AND PLUMBING

Water Heater Replacement and Add Recirculation Piping and pump; Replace urinal and flush valve

The existing Mor-Flo water heater has started to increase in maintenance and is in need of replacement. It also does not have recirculation piping which causes the water in the piping to become cold when not in use.

Nexus recommends replacing the existing water heater one for one with a new high efficiency electric water heater and adding new hot water recirculation piping with an associated recirculation pump.

Replacing the water heater would provide energy savings, reduced maintenance, and extend the life expectancy of the system. The addition of the recirculation piping and pump will ensure that the hot water keeps circulating so it does not cool down when there is no demand in the building.

There is also an existing urinal in the Bus Garage that has a flush valve that has corroded. Nexus recommends replacing the existing urinal and flush valve one for one with a new urinal and flush valve.

Replacing the existing Mor-Flo water heater and existing urinal would provide energy savings, reduced maintenance, and extend the life expectancy of the plumbing system.

MECHANICAL AND PLUMBING

BG-ME-6 Water Heater Replacement and Add Recirculation Piping and Pump, Replace Urinal and Flush Valve

• Remove existing Mor-Flo water heater

• Install new high efficiency, electric hot water heater

• Install new recirculation piping and associate recirculation piping

• Replace existing urinal and flush valve with new urinal and flush valve

• Provide all associated electrical work as required

• Provide associated general construction work as required

BG-ME-6 Benefits

• Improved domestic water system

• Reduced energy consumption

• Increased equipment life

• Reduced maintenance

MECHANICAL AND PLUMBING

Replace Sanitary Lines Under Bus Garage and Replace Sand Trap

There are several issues with the sanitary lines at the Bus Garage. The District had the sanitary lines scoped and found the following issues:

The easternmost drain that was scoped was found to be capped and abandoned. Any water that goes into the floor grate in the bus barn area, has nowhere to go. The western drain (wash bay) ties into the same drain line as the shop drains. However, it was never properly piped. It was tied into the existing shop drains with a T instead of sweeping it into the line with an elbow or Y connection. The drain is about 60' to the main, and then out to the city hook up. All the drain piping from the wash bay and shop areas are cast iron and are recommended to be replaced. They are starting to flake on the interior of the pipe and were so full of dirt and debris that they needed to be jetted out just to get visibility from the camera.

Nexus recommends piping the drains in the bus barn to the sand trap in the Mechanical Bay and repiping the sanitary line from the Wash Bay properly to the sand trap in the Mechanical Bay. The sand trap in the Mechanical Bay would be replaced with a new inflammable seperator as well as part of this improvement.

Replacing these sanitary lines would reduce maintenance and extend the life expectancy of the sanitary system.

MECHANICAL AND PLUMBING

BG-ME-7 Replace Sanitary Lines Under Bus Garage and Replace Sand Trap

• Install new sanitary piping from drains in Bus Barn to sand trap in Mechanical Shop

• Re-pipe sanitary line from Wash Bay to the sand trap in the Mechanical Shop

• Replace sand trap in Mechanical Shop with new inflammable separator

• Provide associated general construction work as required

BG-ME-7 Benefits

• Improved sanitary system

• Increased equipment life

• Reduced maintenance

MECHANICAL AND PLUMBING

Add Fire Protection System

The existing Chisago Lakes Bus Garage does not have a fire protection sprinkler system installed and is not protected from property loss or life safety in the event of a fire. Installing fire protection sprinklers in buildings significantly enhances safety by automatically discharging water to suppress fires upon heat detection. According to the National Fire Protection Association (NFPA), buildings equipped with sprinklers see a lower rate of fire-related injuries and property damage compared to those without, highlighting their effectiveness.

Moreover, retrofitting buildings with these systems ensures compliance with modern safety standards and can lead to lower insurance premiums due to reduced risks of fire damage. Fire sprinkler systems also require minimal maintenance, ensuring durability and consistent performance over time, making them a reliable choice for enhancing safety.

Nexus proposes installing a fire protection sprinkler system for the entire Chisago Lakes Bus Garage. Installation is a proactive measure to protect students, staff, and property.

MECHANICAL AND PLUMBING

BG-ME-8 Add Fire Protection System

• Install new wet-pipe fire protection system to fully protect the entire building

• Provide all required general construction work

BG-ME-8 Benefits

• Reduced damage during a fire event

• Increased occupant safety

MECHANICAL AND PLUMBING

Retro-Commissioning

Building retro-commissioning is a systematic process that ensures all buildings perform as efficiently as possible according to the owner’s operational needs as well as adjustment of HVAC equipment’s operational parameters to meet current space use.

The Building Automation System (BAS) plays a crucial role in providing a comfortable, energy-efficient environment for students, parents, and staff. Over time, damper and valve controls have gone out of proper adjustment, components fail, and controls sequences are modified and may not be programmed to provide an optimal balance between comfort, indoor air quality, and energy efficiency.

This Nexus Retro-commissioning Team will identify the root cause of HVAC equipment operational issues and will provide adjustments to the sequences and outdoor air setting to improve occupant comfort while reducing energy consumption where possible. The retro-commissioning process will also identify components that require adjustment or replacement.

Retro-commissioning activities include:

HVAC Equipment: Nexus will verify existing HVAC equipment operation and control sequences through observation. We will provide adjustment and tuning services to achieve optimal operation and improved occupant comfort. Documentation of the findings with corrections and recommendations for further improvements will be made.

Services include:

• Ventilation study to assure all spaces are ventilated per the current code requirements and the outdoor air setpoints will be adjusted up or down based on current space occupancy

• Test point commands vs actual controller output at each device for heating, cooling, and mixed air control

• Verify valve/damper operation on reheat coils and air handler coils

• Verify indicated vs actual (duct static, supply and return temperatures)

• Verify mixed-air operation (damper position and economizer operation)

Valves and Dampers: Nexus will test all existing rooftop (RTU) and indoor air handling unit (AHU) sequences along with the valve and damper operation to ensure control actuators are fully operational. We observe valve/damper/actuator operation and check for any physical signs of valve/damper leakage or binding, which results in operational issues and increased energy consumption. We check discharge temperature with valves in the fully open and closed positions. In addition, we will provide unit pricing to replace any defective valves and/or actuators. Proper RTU and AHU operation provides improved occupant comfort at optimal energy efficiency.

Zone Reheat Valves: Nexus will test existing zone reheat valves for proper operation. We ensure command valves fully open and close and observe valve/actuator operation. We inspect valves for any physical signs of valve leakage or binding, check discharge temperature with valve in the fully open and closed positions and provide unit pricing to replace any defective valves and/or actuators.

Economizer: Nexus will update the control sequence for mixed-air dampers to their setpoints with economizer lockout setpoints.

Heating Water Pump Variable Speed Drives (VSDs): Nexus will lower the pressure setpoint to allow drives to modulate down to the slowest speed required to satisfy the most critical room temperature sensor.

Boilers: Nexus will optimize sequencing and staging of equipment and adjust the water reset schedules based on outside air temperature.

The action steps noted above are part of the Nexus retro-commissioning process. The benefits of this process include improved temperature control and occupant comfort, reduced energy consumption, reduced maintenance, and extended HVAC equipment life.

MECHANICAL AND PLUMBING

BG-ME-9 Retro-Commissioning

• Provide retro-commissioning of all existing HVAC systems

• Provide adjustments to existing sequences to improve HVAC system operation

• Verify operation of all dampers, actuators, valves, and terminal HVAC devices

BG-ME-9 Benefits

• Improved temperature control and occupant comfort

• Reduced energy consumption

• Reduced maintenance

• Extended HVAC equipment life

ELECTRICAL, TECHNOLOGY, AND SAFETY SYSTEMS

LED Lighting Upgrade for Areas with Fluorescent. Retrofit Kits for Fixtures in Good Condition, Replacement for Unique or Outdated Fixtures

The existing light fixtures fluorescent lamps throughout. The fixtures are in fair condition; however, LED lamp technology is more energy efficient.

Replacing the light fixtures with LED light fixtures will reduce energy use and maintenance costs. LED light fixtures have a life span of more than 50,000 hours and do not require lamp replacements, which reduces maintenance costs.

ELECTRICAL, TECHNOLOGY, AND SAFETY SYSTEMS

BG-ES-1 LED Lighting Upgrade for Areas with Fluorescent. Retrofit Kits for Fixtures in Good Condition, Replacement for Unique or Outdated Fixtures

• Replace/Retrofit light fixtures throughout building with LED light fixtures to reduce energy costs with this more efficient technology and reduce maintenance costs due to lamp replacements.

• Consolidate and simplify lighting controls for exterior lighting.

BG-ES-1 Benefits

• Improved energy efficiency

• Reduced maintenance costs

• Improved code compliance

ELECTRICAL, TECHNOLOGY, AND SAFETY SYSTEMS

Upgrade Electrical Power Distribution, Including 1973 Switchgear and Panels

The switchboard and panels that are original to the 1973 building are now 50 years old and are at the end of their useful life.

It is recommended that the 1973 electrical panels be replaced. New panels will provide a safer electrical system since new equipment will be in compliance with current manufacturing standards for electrical equipment and will reduce maintenance costs.

Equipment recommended to be replaced includes five panelboards.

ELECTRICAL, TECHNOLOGY, AND SAFETY SYSTEMS

BG-ES-2 Upgrade Electrical Power Distribution, Including the 1973 Switchgear and Panels

• Replace five original 1973 electrical panelboards. Replace/Retrofit light fixtures throughout building with LED light fixtures to reduce energy costs with this more efficient technology and reduce maintenance costs due to lamp replacements.

• Consolidate and simplify lighting controls for exterior lighting.

BG-ES-2 Benefits

• Improved energy efficiency

• Reduced maintenance costs

• Improved code compliance

ELECTRICAL, TECHNOLOGY, AND SAFETY SYSTEMS

Replace Outdated Network Cable

The existing network cable is CAT-5e and is outdated. It is recommended that the network cabling be replaced with CAT-6a cable to provide a more robust network system that will not require replacement for twenty years.

ELECTRICAL, TECHNOLOGY, AND SAFETY SYSTEMS

BG-ES-3 Replace Outdated Network Cable

• Upgrade the CAT-5e cabling to CAT-6a

BG-ES-3 Benefits

• Provide flexibility for future delivery needs

SITE IMPROVEMENTS

Remove, Regrade, and Replace the Asphalt Parking Lot Surrounding the Bus Garage

The existing parking lot surrounding the bus garage is in poor condition with large cracks and an uneven surface. The major concern is the slope of the pavement is into the building. This is causing ponding of water, rusting of doors, damage to the steel structure.

To solve the problems it is recommended that the entire parking lot be removed to allow extensive regrading of the site to improve the drainage. The lot can then be replaced.

SITE IMPROVEMENTS

BG-SI-1 Remove, Regrade, and Replace the Asphalt Parking Lot Surrounding the Bus Garage

• Remove existing asphalt surface

• Regrade the area

• Repave the asphalt

BG-SI-1 Benefits

• Improved surface features and drainage patterns

• Reduced areas where water pooling and ice patches occur

• Improved facility aesthetics

ELECTRICAL, TECHNOLOGY AND SAFETY SYSTEMS

Upgrade Telephone System Throughout All Buildings

The existing telephone system throughout the schools is a Mitel system. The existing servers were last replaced in 2018, and the handsets were acquired in 2010-2014. The average life of a telephone server is 5-7 years, and the telephone handsets are 15-20 years. Both the servers and handsets are at or nearing the end of their useful life.

It is recommended that the telephone system be replaced throughout all of the schools. Having a single system for all schools provides an easier to use system overall since there is only one system to maintain.

A cloud-based system, such as the 3CX telephone system, provides for lower initial and operating costs. A cloud-based system does not require additional physical equipment in each building. In addition, the newer handsets are less expensive and not required to be brand specific to match the system equipment. The 3CX system also has no per user licensing fees, which results in reduced operating expenses.

DW-ES-1 Upgrade Telephone System

• Replace telephone system and handsets in all 5 schools and bus garage.

DW-ES-1 Benefits

• Reduced operating costs.

• Reduced maintenance time and expenses.

Turn static files into dynamic content formats.

Create a flipbook
Issuu converts static files into: digital portfolios, online yearbooks, online catalogs, digital photo albums and more. Sign up and create your flipbook.