Midcountry Homes EDGE 2024

Page 1


EDGE EDGE EDGE EDGE

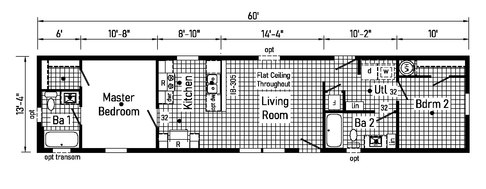
EZ14602A | 1460 | 800

Model Size Sq Ft

Available as 16’ wide (1W1800-P) (1W1801-P)

Model Size Sq Ft

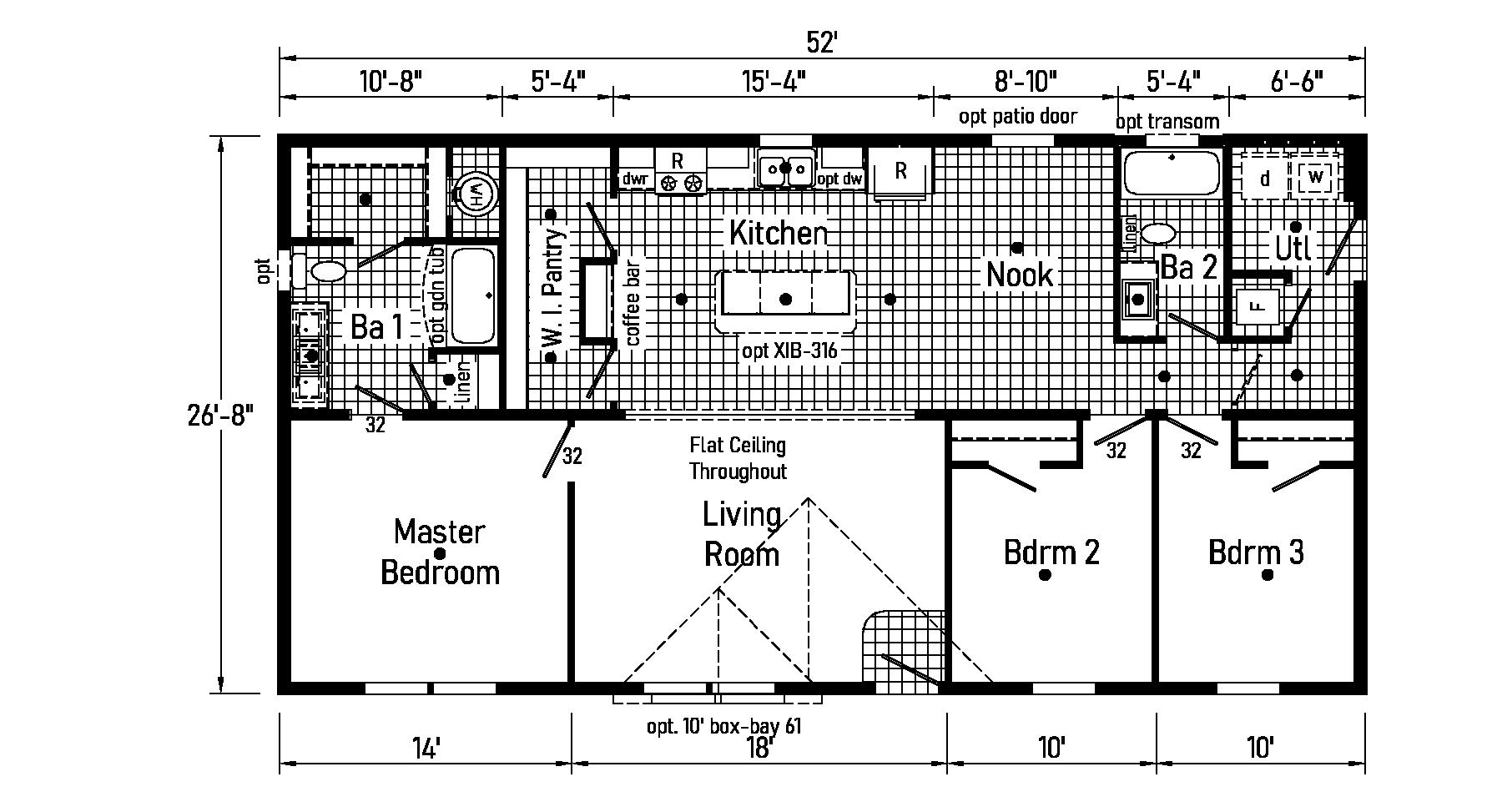
EZ14663A | 1466 | 880

Scan to View Model!

Available as 16’ wide

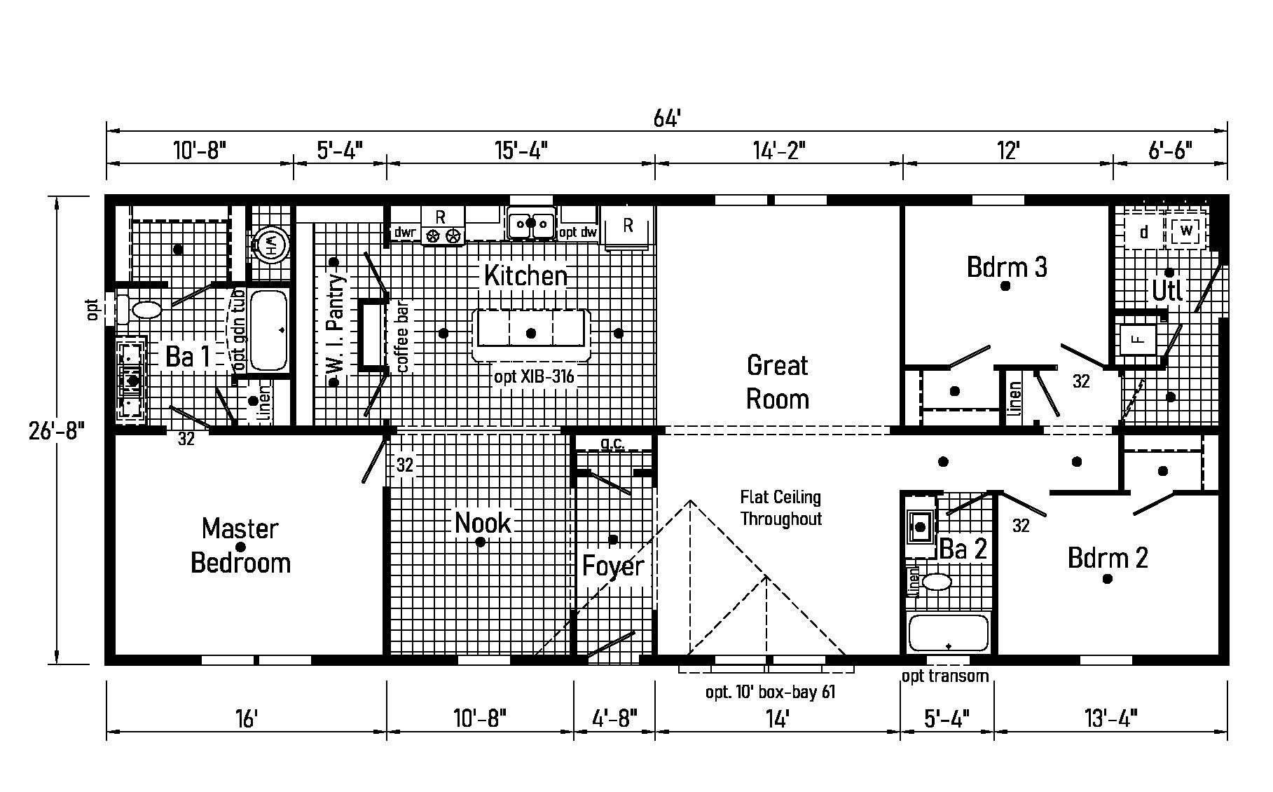
EZ14682A | 1468 | 907

Model Size Sq Ft

Available as 16’ wide (1W1802-P) (1W1803-P)

Model Size Sq Ft

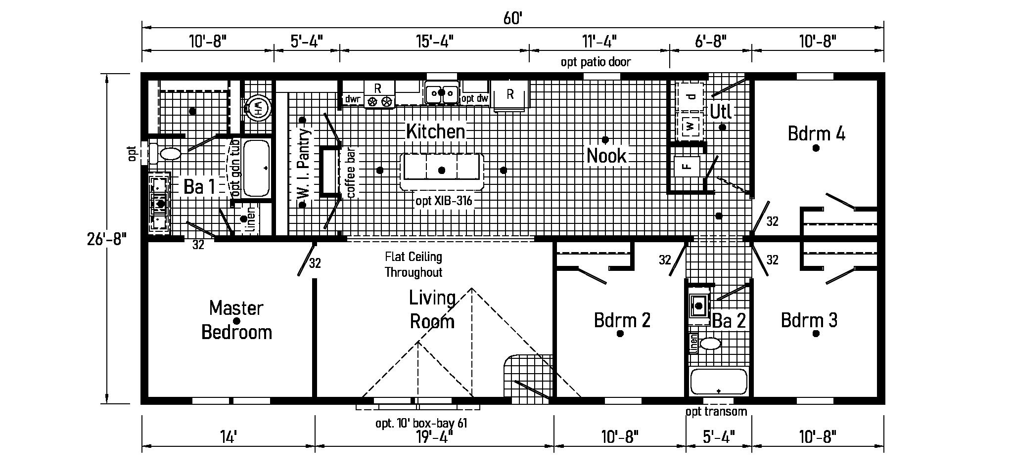
EZ14763A | 1476 | 1013

Available as 16’ wide

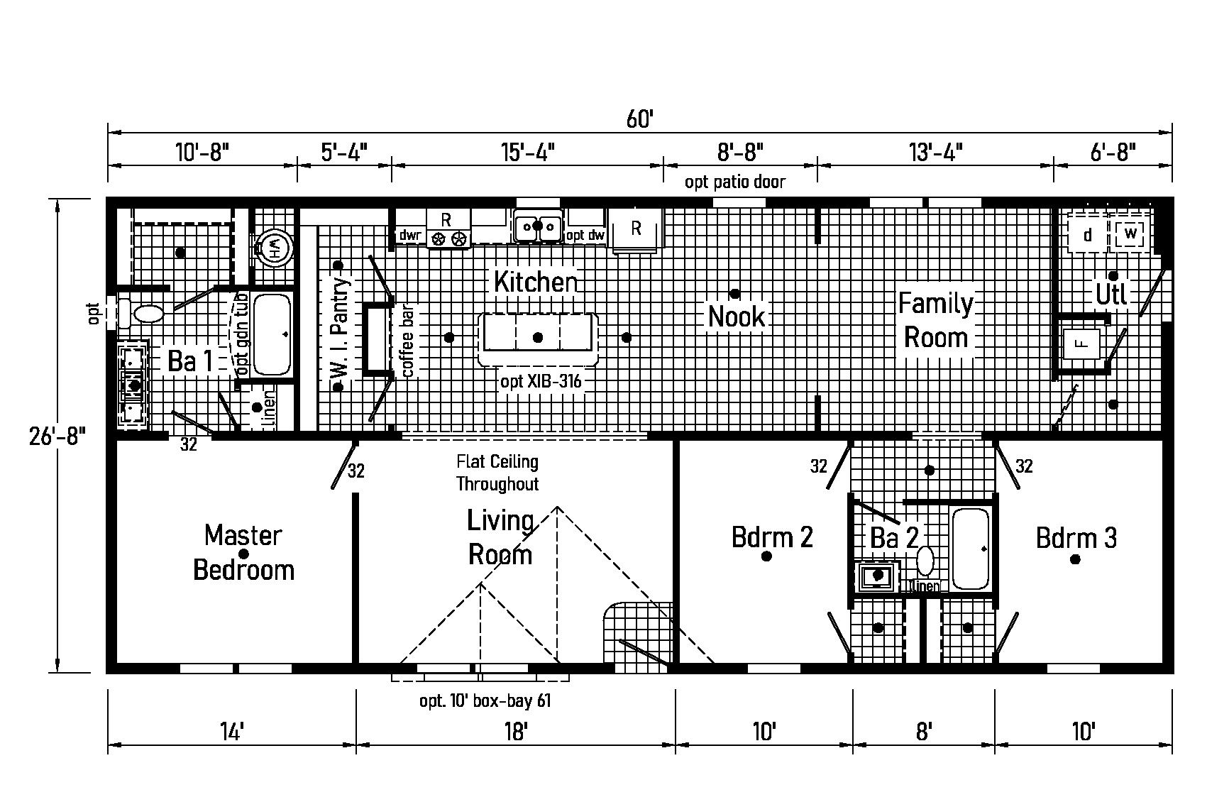
EZ14602B | 1460 | 800

Model Size Sq Ft

Available as 16’ wide (1W1804-P) (1W1805-P)

Model Size Sq Ft

EZ14662A | 1466 | 880

Available as 16’ wide

Available as 16’ wide

EZ14683A | 1468 | 907

Model Size Sq Ft

(1W1806-P) (1W1807-P)

Model Size Sq Ft

EZ14763B | 1476 | 1013

Available as 16’ wide

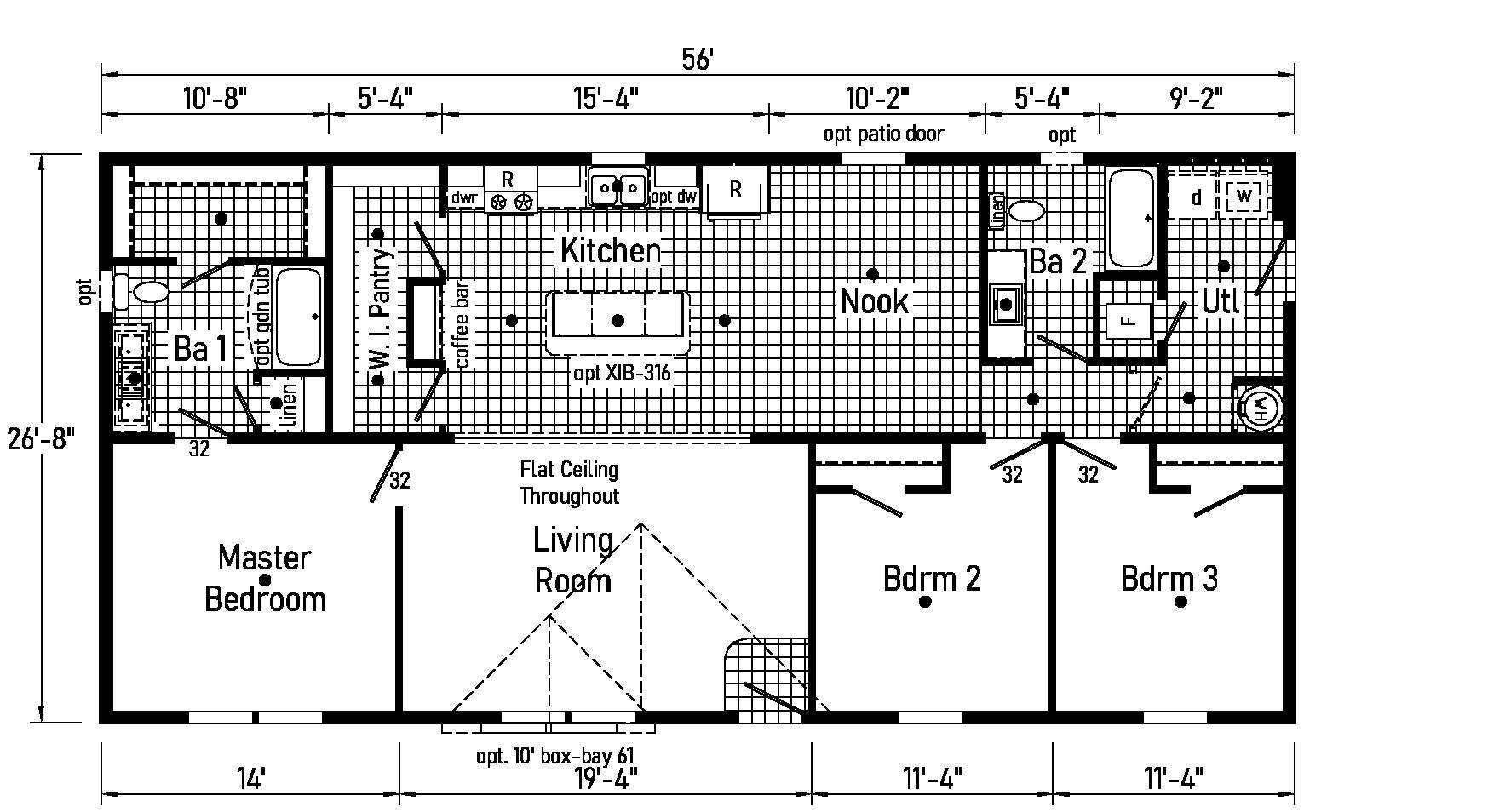
EZ28483A | 2848 | 1280

Model Size Sq Ft

EZ28523A | 2852 | 1387 (3W1800-P) (3W1801-P)

Model Size Sq Ft

(3W1802-P)

EZ28563A | 2856 | 1493

Model Size Sq Ft

Model Size Sq Ft

EZ28603A | 2860 | 1600

(3W1804-P)

EDGE

Manufactured Home Features

Primed Drywall Throughout Orange Peel Finish

8’-0” Flat Ceiling Orange Peel Finish

Recessed LED Lights

3-Panel Barnwood Shaker

Interior Doors

Pre-Hung Doors with Mortise Hinges

Metal Interior Passage Sets

Window Valances

Bed 1, Kitchen, Living Room

1” Mini Blinds Throughout Smoke Detectors with Battery Back-Up

Wire Shelving in Closets

Barnwood Wrapped

Mouldings Throughout

Black Light at Front and Rear Door

Vinyl Dutch Lap Siding

Vinyl Insulated Windows with Low-E Glass

Lineals Front Doorside

GFI-Protected Exterior Receptacle at Each

Exterior Door

O.S.B. Roof & Sidewall

Sheathing

Fixed Roof

12” Overhangs & Eaves (Ranch)

4” Overhangs & 12” Eaves (Single)

3-Tab Shingles

Ridge Vent Roof Ventilation System

Ice Shield

3/0x6/8 Fiberglass 6-Panel

Front & Rear

Door w/ Deadbolt Keyed Alike Locksets

Empire Brushed Nickel High Rise Faucet

Stainless Steel Sink 33x22x8

One USB Receptacle

30” Black Free-Standing Gas Range

Power Range Hood with Fan & Light

18 Cu. Ft. Black Frost-Free Top/Bottom Refrigerator

60” Fiberglass Tub/Showers

Tub/Shower Curtain & Curved Rod

Dual Flush Hi-Rise Toilets

China Stool, Tank & Lid

Square China Sinks with Overflows & Pop-Up Drains

Bevel Edge Mirrors

Empire Brushed Nickel Faucets

Anti-Scald Valves on Showers & Tubs

KCMA Certified Cabinets

Staggered Overhead Cabinets

Barnwood Wrapped Mission

Cabinet Doors with Full Overlay

Barnwood Wrapped Cabinet

Face Frames & Stiles

Brushed Nickel Cabinet

Pulls Hardware

Soft Close Hidden Cabinet

Door Hinges

Base & Wall Cabinets with Adjustable Shelves

100# Undermount Soft

Close Drawer Guides

Laminate Countertops with Crescent Edge

4” Laminate Backsplash

36” High Vanities

100 AMP Electrical Service

Plumb & Wire for Washer

Wire & Vent for Dryer

Water Shut Offs Throughout

Main Water Shut-Off Valve at Utility

One Exterior Water Faucet (Frost Free)

30 Gallon Electric Water

Heater with Pan

Gas Furnace

5-Wire Thermostat

Copper Wiring Throughout

Ceiling R-30 Avg. Blown

Insulation

Walls R-19 Fiberglass

Insulation

Floor R-11 Fiberglass

Insulation

Edgewater Shaw Carpet with ShawGuard Carpet Protector

Rebond Carpet Pad with Tackstrip Carpet

Installation

Congoleum No-Wax Vinyl Floor

Wire Shelving in Closets

Switched Light in All Walk-In Closets

Egress Windows

Transverse Floor System on 16” Centers**

3/4” OSB Decking**

2x6 Floor Joist on 14 & 28

Wide Models

2x8 Floor Joists on 16 Wide Models

2x6 Exterior Walls on 16” Centers**

82” Window Headers

30# Roof Load

Turn static files into dynamic content formats.

Create a flipbook
Issuu converts static files into: digital portfolios, online yearbooks, online catalogs, digital photo albums and more. Sign up and create your flipbook.
Midcountry Homes EDGE 2024 by Commodore Homes, LLC - Issuu