

Floorplan Literature


Introduction
About Deercreek Allure
This limited offering includes open, family friendly floorplans, pre-selected beautiful home decors and our most popular features as standard.
These High Value Homes allow our home building process to be highly efficient.
High efficiency means we can provide you more house for your money.

APPROX. 1387 SQ. FT.
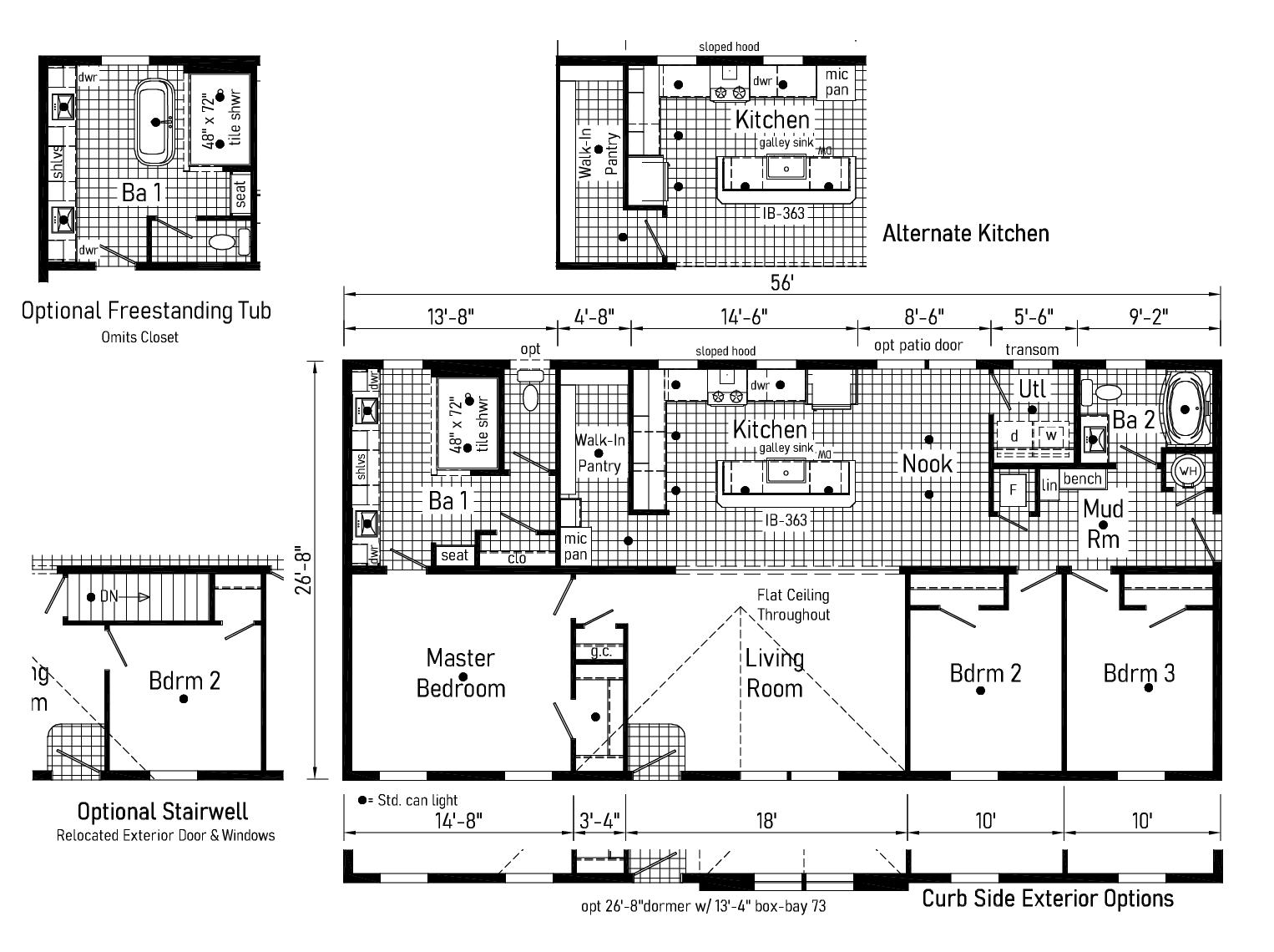
Moose - DA28523A (DE3020P)
28β X 52β
APPROX. 1493 SQ. FT.
28β X 56β
28β
APPROX. 1493 SQ. FT.
White Tail - DA28563A (DE3030P)
Allure

X 56β

Scan to Watch Video!





WHITE TAIL PHOTOS
*Please use pictures for floorplan vision only. Decors and materials used are constantly changed and improved.
APPROX. 1600 SQ. FT.
Reindeer - DA28603A (DE3024P)
Allure
28β X 60β
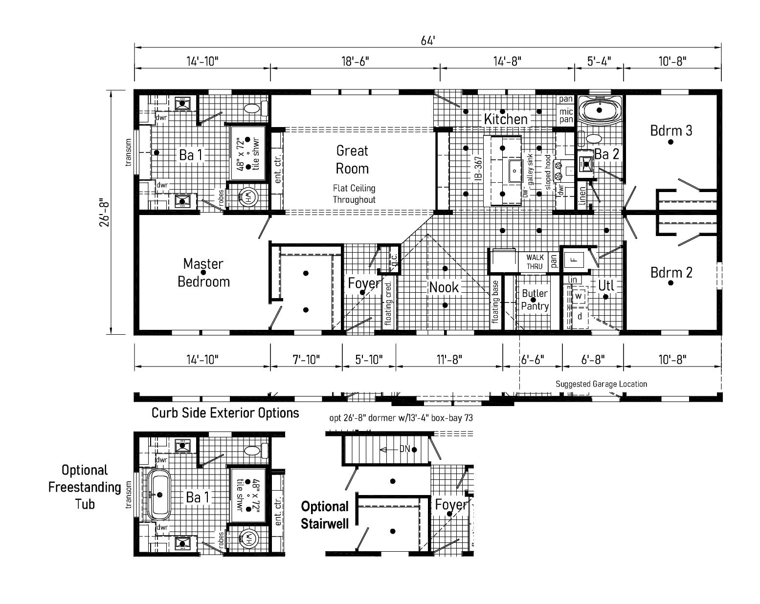
APPROX. 1707 SQ. FT.
Mule Deer - DA28643A (DE3034P)
28β X 64β

28β X 64β

Scan to Watch Video!





SIKA PHOTOS
*Please use pictures for floorplan vision only. Decors and materials used are constantly changed and improved.
APPROX. 1680 SQ. FT.

28β X 68β





PRONGHORN PHOTOS
*Please use pictures for floorplan vision only. Decors and materials used are constantly changed and improved. Scan to Watch Video!




Allure Features



INTERIOR
Flat Ceiling Throughout
Smooth Ceiling w/ Cove Moulding
8β Sidewall Height
Primed Smooth Drywall Throughout
LED Flush Mount Ceiling Lights
Pre-Hung Door Jambs
Mortise Hinges
Lever Interior Passage Sets
Floor Mount Door Stops
Smoke Detectors With Battery Back-Up
Wire Shelving in Guest Closet
2β Mini Blinds
Designer Window Treatments
White 2-Panel Passage Doors
Craftsman Moulding Package
EXTERIOR
Gatsby Light - Front & Rear Door
GFI-Protected Exterior Receptacles (Front & Back)
Vinyl Dutch Lap Siding
OSB with Wind Wrap
Architectural Shingles
2/12 Roof Pitch with 10β Eaves
12β Gable End Overhang
Ridgevent Roof Ventilation System
38x82 Fiberglass 6-Panel Front Door
38x82 Fiberglass 6-Panel Rear Door
Schlage Exterior Locksets Keyed Alike
Vinyl Insulated Windows w/Grids
Window Lineals on Front Door Side
KITCHEN
Stainless Steel SxS Refrigerator
Stainless Steel Self Cleaning Range
Stainless Steel Dishwasher
Galley Sink w/ Coil Spring Faucet
Full Ceramic Backsplash
Refrigerator Surround
1 USB Receptacle
BATHS
Curved Front Garden Tub/Shower - Bath 2
4x6 Ceramic Walk-in Shower - Bath 1
1.6 Gallon Per Flush Elongated Toilets
China Stool, Tank and Lid
Square China Lav Sinks
Lighted Vent Fan in Each Bath
Structured Flow Brushed Nickel Faucets
Anti-Scald Faucets in Tub/Shower
Shower Drain with Removable Strainer
Double Lav Sinks in Master Bath
CABINETRY
Evermore Custom Cabinetry (KCMA Certified)
Premium Cabinetry - Stained Hardwood
Mission Style Cabinet Doors
Euro Cabinet Pulls
Contemporary Moulding on Cabinets
Lined Overhead Cabinets
42β Overhead Cabinets
Drawer over Door Base Cabinets
Concealed Cabinet Hinges
Soft Close Drawers
CONSTRUCTION
2x6 Transverse Floor, 16β centers**
2x6 Exterior Walls on 16β Centers**
ΒΎβ T&G OSB Floor Decking
30# Roof Load
Recessed Frame Design
**NOTE: Spacing for Framing Members may vary due to Design Requirements
Dovetail Drawers
Soft Close Cabinet Doors
Base and Center Shelves in Base Cabinets
Base Shelf in Vanities
36β High Bath Vanities
UTILITIES
Plumbed and Wired for Washer
Vented and Wired for Dryer
Wire Shelf over W/D Hookups
100 AMP Electrical Service
w/Extended Panel
40 Gallon Electric Water Heater with Pan
Hi-Efficiency Gas Furnace
White 2-Panel Furnace Door w/Grill
Perimeter Heating System
Air Exchanger System for Furnace
Aluminum Heat Ducts
In-Floor Cross-Over Heating System
Copper Wiring Throughout
Main Water Line Shut-Off Valve
Water Shut-Off Valves
Exterior Water Faucet (Front & Back)
8-Wire Thermostat
FLOORING
Choice of Various Styles of Textured Carpet:
-Standard Shaw Cape Canaveral
-Upgrade Styles Available
Rebond Carpet Pad with Tackstrip
Carpet Installation
Shaw Fortress Vinyl Flooring per print
BEDROOMS
LED Flush Mount Lights
Egress Window Each Bedroom
Wire Shelving in Wardrobes
Switched LED Light in All Walk-In Closets
Drape Package in Secondary Bedrooms

INSULATION
R-22 Fiberglass in Floor
R-19 Fiberglass in Walls
R-31 Avg. Blown in Ceiling
