Chris Anderson | 23691 Country Villa Road, Ramona

Page 1

CHRIS ANDERSON | REALTOR ® | DRE #01041297 760.803.2001 | Chris@RealEstateChris.com www.RealEstateChris.com 23691 Country Villa Road | Ramona, CA 92065 Golf Course Views IN THE SAN DIEGO COUNTRY ESTATES
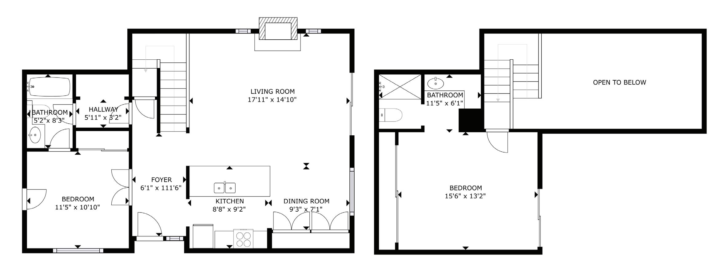
2 Bedrooms | 2 Bathrooms | 1,280 ESF

home WELCOME

Amazing location on the 12th Green and pond of the San Vicente Golf Course. Updated 2-bedroom, 2-bathroom condo with quartz counter island, newer appliances, wood-look tile and new carpet flooring, decorative wrought iron slats and custom hand rails on stairs. Spacious primary suite upstairs with slider to view deck, open living room with soaring ceilings with skylight and wood burning stove

insert in fireplace, and 1-car garage with direct access into the home plus a carport. The patio is over sized, covered and has privacy lattice. Just steps away from the complex swimming pool plus all the amenities of San Diego Country Estates: PGA Championship golf course, 15 miles of non-motorized trails, 2 equestrian facilities, park, playground, volleyball, basket ball, tennis and pickle ball courts.

FOR THE 3D TOUR scan here

floorplan GREAT

SAN DIEGO

Country Estates

Ramona

With a country charm and laidback lifestyle, Ramona is a quaint town with much to offer. Living in Ramona provides a rural feel while still offering easy access to stunning natural scenery. Enjoy the wide variety of shopping, eateries, and exciting events throughout the year to celebrate everything from music and art, to cowboy history and wine.

Estates

• 18-hole championship golf course

• Tennis courts lit til 10 pm

• 2 equestrian facilities (English & Western) with boarding options

• 15 miles of hiking, biking, and riding trails

• Park with kids’ play area, horse-shoe pits, pavilion and pool

• Main clubhouse with bar, dining, pool, kiddy pool & spa

• Cardio course for training

EXPLORE

CHRIS ANDERSON

Passionately selling real estate for over 30 years... and counting!

• 2023 Immediate Past President, Greater San Diego Association of REALTORS®

• 2023 Regional Chair, California Association of REALTORS® (CAR)

• 2023 Regional Representative, Risk Management & Consumer Protection, California Association or REALTORS®

• 2022 President Greater San Diego Association of REALTORS®

• 2023 Director, National Association of REALTORS® (NAR)

• 2023 Director, California Association of REALTORS® (CAR)

• 2023 Member, Professional Standards Committee San Diego Association of REALTORS®

• 2023 Member, REALTOR® Risk Management & Consumer Protection, California Association or REALTORS®

• 2023 Land Use & Environmental Committee member, California Association of REALTORS®

• 2023 Chair, Ramona Old West Festival

• 2023 San Diego County Assessment Appeals Board, Member

• 2023 Director, Ramona Outdoor Community Center

• 2023 Secretary, Ramona Tree Trust

• 2009-2023 Co-Chair and Co-Founder of Ramona Bluegrass & Old West Festival

• 2023 Director & Founding Member, Ramona H.E.A.R.T. Murals

• 2006-2022

Ramona Design Review Board, member

• 2017 & 2005 “Volunteer of the Year,” Greater San Diego Association of REALTORS®

• 2015 President, Greater San Diego Association of REALTORS®

• 2001 & 2019 “REALTOR® of the Year,” Greater San Diego Association of REALTORS®

REALTOR®, GRI, SFR, RLI, e-Pro, RMS, CRS, PMN, CDPE
©2023 Coldwell Banker Real Estate LLC. All Rights Reserved. Coldwell Banker® and the Coldwell Banker Logo are registered service marks owned by Coldwell Banker Real Estate LLC. Coldwell Banker Real Estate LLC fully supports the principles of the Fair Housing Act and the Equal Opportunity Act. Each office is independently owned and operated. If your property is listed with a real estate broker, please disregard. It is not our intention to solicit the offerings of other real estate brokers. We are happy to work with them and cooperate fully. DRE #01481919

Turn static files into dynamic content formats.

Create a flipbook
Issuu converts static files into: digital portfolios, online yearbooks, online catalogs, digital photo albums and more. Sign up and create your flipbook.
Chris Anderson | 23691 Country Villa Road, Ramona by Coldwell Banker West - Issuu