Casas de Nevogilde

VIVER COM PRIVACIDADE
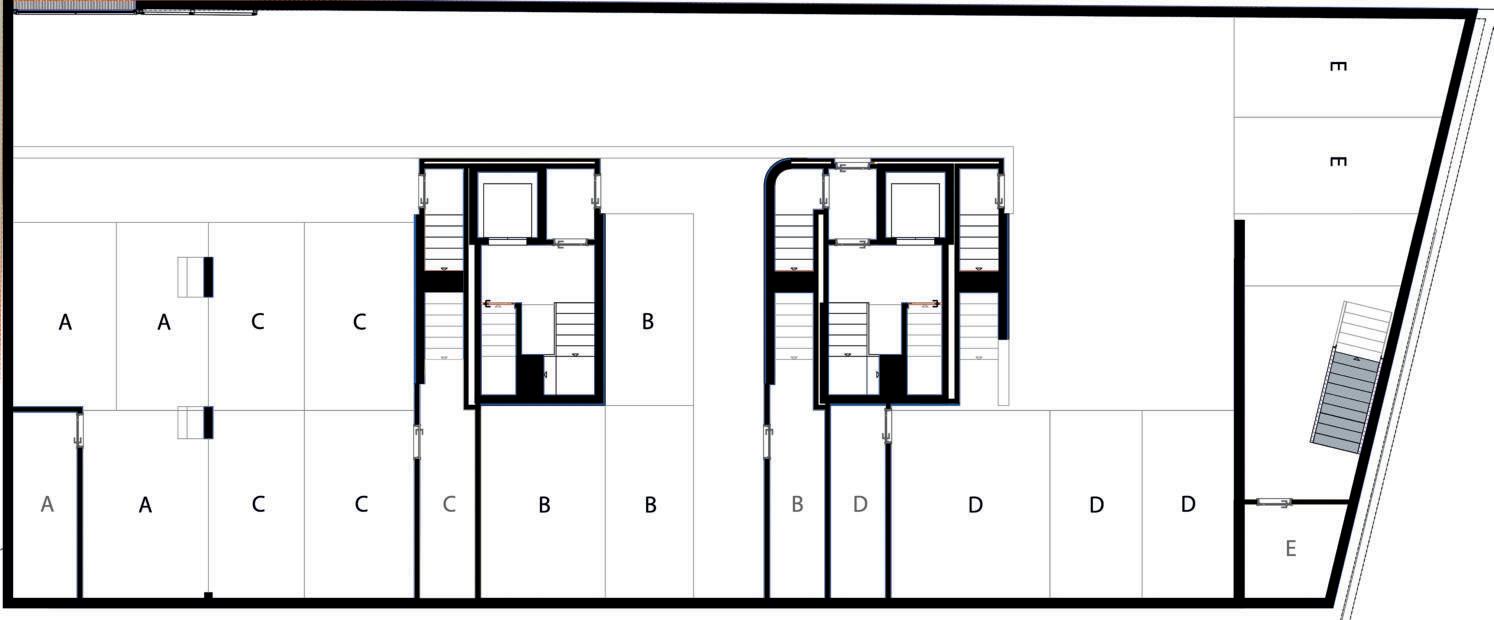
O Condomínio de Luxo Casas de Nevogilde, assegura que cada fracção tem acesso independente pelo exterior. O projecto pretende assegurar relações de privacidade e potenciar a exposição solar dos espaços habitacionais. As Casas A, C e E localizadas no Piso 1 e R/C, asseguram logradouros privativos. As casas B e D no Piso 2 têm acesso a cobertura, terraço e piscina.
O parqueamento automóvel está localizado numa semi cave, a partir da qual se poderá aceder directamente a cada uma das casas. Este condomínio pretende dar continuidade a um conjunto harmonioso e equilibrado de habitações existentes na zona de Nevogilde, trazendo-lhe toda a tranquilidade e conforto de um apartamento de luxo.
