


![]()



Less than a month after the U.S. Supreme Court’s decision allowing municipalities to enforce prohibitions on camping sites in public areas, the San Marcos City Council adopted a citywide ban on encampments. While local officials say the law is on their side, advocates say the move only further criminalizes homelessness. Story on 5. Photo by Frank Armstrong

Local Break magazine recently published its first issue, focusing on North County surfing, travel, fitness and more. 18

By Laura Place SAN MARCOS —
The body of a young man was discovered in a field in San Marcos last week.
According to sheriff’s Lt. Patrick Fox, the body was discovered shortly after 11 p.m. on July 10 in a vacant field at the intersection of South Las Posas Road and Linda Vista Drive. The individual appears to be a male in his late 20s, Fox said.
The San Diego County Medical Examiner’s Office is currently investigating the death.
The field where the man’s body was found is a 33-acre vacant site in the industrial zone next to Bradley Park.
The southern area of the lot is the proposed site of a 228-unit residential development that will go before the San Marcos City Council for approval later this month.

The newly formed Boys & Girls Clubs of Northwest San Diego County, a merger of the Oceanside and San Dieguito club chapters, will serve as many as 6,500 youth across six North County communities. The move follows a national trend of Boys & Girls Clubs merging to improve services. Story on 6. Courtesy photo
City manager, others accused of defamation
By Jordan P. Ingram ENCINITAS
— An October trial date has been set for a Michigan city official’s defamation lawsuit alleging several board members of a national association for government professionals, including City Manager Pamela Antil, participated in a targeted and retaliatory censure vote.


After nearly a year in federal court, Port Huron City Manager James Freed’s anti-defamation complaint against the International City/County Management Association and several of its board members has returned to St. Clair County District Court in Port Huron, Michigan.
“This was a politically motivated campaign of personal destruction waged by Antil and others to destroy the career and reputation of Freed because he embarrassed the governor,” said Joe Turner, president of the American Association of Municipal Executives, of which Freed is a member. “Instead of being lauded for defending the rights of employees and ensuring continuity of services to residents, he was shamefully persecuted by his professional association and peers.”
According to Freed’s attorney, Todd Shoudy of Fletcher Fealko Shoudy & Francis, all parties must appear in person at the St. Clair County courthouse for TURN TO CITY MANAGER ON 35












By Laura Place SAN MARCOS — Law
enforcement is seeking the public’s help in identifying and locating suspects involved in a home burglary in San Marcos.
On June 30, around 11 a.m., two suspects broke into a home in the 1200 block of South Hampton Road and stole about $20,000 worth of belongings, including jewelry and purses.
The individuals then used stolen credit cards to make around $1,300 in fraudulent purchases at multiple stores.
These stores included Albertsons in the 1900 block of West San Marcos Boulevard, Ralphs in the 300 block of South Twin Oaks Valley Road, and Food 4 Less in the 600 block of North Broadway.
Surveillance footage captured a white, newer-model Chevrolet Suburban near the scene of the home burglary and an unknown man and woman outside the home.
The woman is described as White, between 30 and 40 years old, with brown hair, wearing a brown “Modelo” hat, a white “Budweiser” T-shirt and black shorts.
The man is described as White and wearing a strawstyle hat, a black face mask, sunglasses, black shorts and black shoes.
Anyone with information on the identity or location of the suspects is urged to call the San Marcos Sheriff’s Station at (760) 5105200 or the Crime Stoppers anonymous tip line at (888) 580-8477.
Crime Stoppers is offering a reward of up to $1,000 for anyone with information that leads to an arrest in the case.
CoasT News

By Jordan P. Ingram
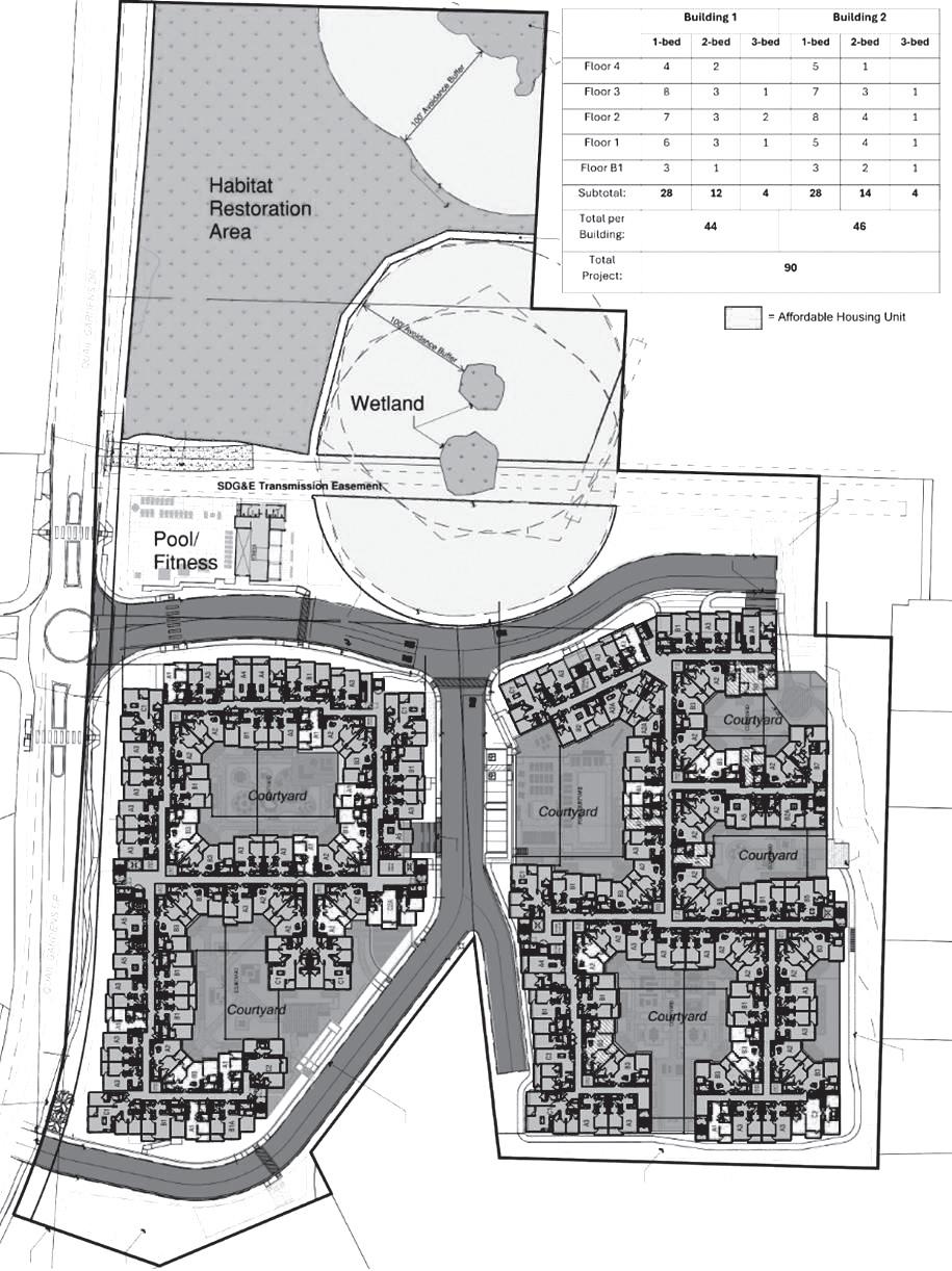
ENCINITAS — After withering public debate and a monthslong hiatus spent reevaluating the controversial Quail Meadows Apartments, the developer has revised its plans for the largest residential complex in the city’s history.
Developer Baldwin & Sons’ previous version comprised 485 apartments within a pair of six-story buildings, described by a resident as “subpar Soviet-style architecture,” resting atop a 12-acre plot along Quail Gardens Drive.
However, after hours and weeks of community feedback about everything from increased traffic along an already congested twolane road to large buildings blocking residents’ ocean views, Baldwin & Sons has dialed back its initial proposal to include fewer total units, more affordable housing, reduced building heights and improved design aesthetics.
According to documents released earlier this month, the latest version of Quail Meadows Apartments will consist of 448 units, 37 fewer than the original.
The proposal increases the number of affordable units to 90 while reducing
the buildings’ size from six to four stories.
Under the revised proposal, the project will consist of two main buildings: Building 1 will contain 44 affordable and 168 market-rate units, while Building 2 will have 46 affordable and 190 market-rate units.
Each building will now have two levels of underground parking. A separate two-story fitness center and community amenity building with an outdoor pool will be located north of Building 1 along Quail Gardens Drive.
The project will also include a roundabout (which still requires final council approval) at the intersection of Kristen Court and Quail Gardens Drive, marking the primary entrance to the complex.
The secondary access point is located off Quail Gardens Drive, which is a right-in/right-out only at the property’s south end.
The site on Quail Gardens Drive, formerly utilized as a commercial plant nursery, is surrounded by neighborhoods of duplexes

By City News Service
ESCONDIDO — A western lowland gorilla at the San Diego Zoo Safari Park has died due to a string of age-related conditions, zoo officials announced on July 15, and is being remember as representing “the best of us” today.
Winston, 52, died Saturday and had been receiving medical treatments for heart disease, degenerative joint disease and kidney disease. Wildlife care teams monitoring Winston’s heart noticed signs of decline in recent years, according to the San Diego Zoo Safari Park.
“This gentle giant will be remembered for his quiet strength, easygoing nature, and heart of gold. Winston served as the pro-

tector of his family and was recognized as one of the oldest silverbacks in the world,’’ park officials said. Winston’s wildlife care specialists described him as representing “the best of us,’’ and said his contributions to gorilla conservation will continue to improve the lives of great apes around the world for generations to come.








OWNER/CEO
Jim Kydd
Chris Kydd
MANAGING
Jordan P. Ingram
Becky
CONTACT THE EDITOR jordan@coastnewsgroup.com
CALENDAR SUBMISSIONS calendar@coastnewsgroup.com
COMMUNITY NEWS community@coastnewsgroup.com
CLASSIFIED ADS classifieds@coastnewsgroup.com
LEGALS legals@coastnewsgroup.com
DISTRIBUTION distribution@coastnewsgroup.com
WRITERS/COLUMNISTS
Samantha Nelson Oceanside, Carlsbad, Escondido samantha@coastnewsgroup.com
Laura Place
Del Mar, Solana Beach, San Marcos, Vista laura@coastnewsgroup.com
Claire Strong Encinitas claire@coastnewsgroup.com
Chris Ahrens (Waterspot) waterspot@coastnewsgroup.com
David Boylan (Lick the Plate) david@artichoke-creative.com
E’Louise Ondash (Hit the Road) elouise@coastnewsgroup.com
Jano Nightingale (Jano’s Garden) janosgarden@gmail.com
Jay Paris (Sports Talk) jparis8@aol.com
Scott Chambers (Cartoonist) scott@coastnewsgroup.com
Frank Mangio & Rico Cassoni (Taste of Wine & Food) info@tasteofwineandfood.com
INTERNS


Tuesday, July 16, was another big day in state politics, as the ongoing meltdown in California was met with a sharp response from Elon Musk. Musk announced his intention to move the headquarters of both X (formerly Twitter) and SpaceX from California to new locations in Texas after passing a controversial new law.
Assembly Bill 1955 triggered the event. This bill prohibits any school board, administrator, employee, or contractor from disclosing “any information related to a student’s sexual orientation, gender identity, or gender expression to any other person without the student’s consent.”
This prohibition is pointedly intended to hide such matters from parents, who would normally want to be involved with their children as they navigate difficult currents in their young lives.
children,” Musk said.
Berkeley journalist Michael Shellenberger also condemned the measure, contrasting California’s move with recent steps in the United Kingdom. After a UK government-mandated study into the ethics and effectiveness of puberty blockers highlighted their psychological and medical risks, the decision was made to ban their use.
This followed the closure of Britain’s Tavistock Child Gender Identity Clinic in 2022 after the validity of surgical procedures was challenged.
California seems to be going the other direction.
afford that. The state government is bleeding red ink profusely. Sacramento will have two options for dealing with the problemcut spending materially or raise taxes.
Which way do you think they’ll go? We have already seen a push for higher taxes in San Diego County and some individual municipalities. At the risk of stating the obvious, high tax rates are destructive to economic enterprises and diminish our standard of living. It’s not a direction we want to go.
Once again, California voters face bad ideas passed into law by the Democratic
Musk’s California exit will worsen the state’s outmigration trend, which in turn negatively impacts the economy and challenges businesses, consumers, and government.
Blackmail has been the rule for the last year as insurance companies terrified California’s insurance commissioner into giving them their way on almost everything they want. Deception has now joined this scene.
The blackmail began when company after company canceled policies last winter while threatening to pull out of the state’s insurance sales market. When Commissioner Ricardo Lara gave in and granted price increases whose need had not been proven and thoroughly vetted, the industry turned to deception.
This comes via manipulation of Lara, who is desperate for the companies to keep existing policies and write new ones for owners of property in areas the insurance industry deems endangered by wildfires, even if those areas have never burned.
Instead, Lara could have stood tall, telling the industry, “Either sell property insurance here, or sell no other coverages, either, like auto or life.”
Here’s how the new situation looks: If a company increases its market share in supposedly endangered areas to 85% of its statewide market share, that company will be authorized to use secret, socalled “black box” algorithms (another term for formulas) to set its rates in all parts of the state.
If a company writes 20% of all property policies statewide, it could get secrecy in rate-setting by insuring 17 of every 100 homes in threatened areas. If a company writes 10% of policies statewide, it could get rate freedom by selling 9% of policies in threatened places.

iled places to win virtually unfettered profits elsewhere.
What’s more, the rate levels from which that 5% increase would be figured would be the latest ones, not counting policies they previously canceled.
This is complete deception, coming after Lara trumpeted the supposed 85% of overall market share figure as a consumer boon.
The reality is that his new rules will put even more pressure than before on homeowners whose mortgage lenders require them to have fire coverage. Go without a homeowner policy for long and you could end up homeless.
This pressures homeowners to turn to the already overused state Fair Plan, California’s insurer of last resort, which for the most part charges higher premiums than any individual company, while offering less coverage than most other policies.
So the coverage expansion that was supposed to help consumers and eliminate panicked hunts for coverage will for the most part be small potatoes if this plan goes forward.
The bottom line here is that rates will soon rise for every Californian, including renters for whom insurance rates are often a pass-through added to their monthly expense.

The measure passed the legislature on a party-line vote and was signed by Gov. Gavin Newsom on Monday, July 15. No Democratic lawmakers voted against it. Assemblymember Chris Ward (San Diego) sponsored it, and state Sens. Toni Atkins and Steve Padilla were co-sponsors, among others.
Musk described AB 1955 as “causing massive destruction of parental rights and putting children at risk for permanent damage.”
“I did make it clear to Governor Newsom about a year ago that laws of this nature would force families and companies to leave California to protect their
Musk’s move out of California will worsen the trend of outmigration. Many individuals, families, and businesses have left the state for more hospitable locales, resulting in population declines or stagnation even in some areas that have seen an increase in the illegal immigrant population.
This negative trend naturally affects California’s economy, creating a more challenging environment for businesses, consumers, and the government.
According to a report by the Tax Policy Center, a joint project of the Urban Institute and the Brookings Institution, in the fourth quarter of 2023, California suffered the sharpest decline in “real” tax revenues among the 50 states, corresponding with GDP growth below the median.
Moves like Musk’s will worsen things; we can’t
supermajority.
Unchallenged power always presents a temptation, but it is especially prone to abuse now that the party in power is dominated by its radical progressive wing. We’ve never seen anything like this. The inmates are running the asylum.
As we enter election season, it seems like a good time to remind people that “the definition of insanity is doing the same thing over and over again and expecting a different result.”
If measures like AB 1955 are what California voters really want, then they’re on the right path.
But if they don’t want this kind of destructive legislation, they must elect different people to represent them in Sacramento.
Garvin Walsh is a resident of Encinitas who shares his opinions on policy and politics.
All other Californians will pay for such new availability in fire-prone areas via higher premiums. It was no accident that State Farm and Allstate, two of the largest insurers in America, announced planned price increases of 30% or more for homeowner policies soon after Lara’s plan was announced.
But wait. Now deception kicks in. For in order to get those increases, companies won’t really have to raise their market share in possible wildfire areas to 85% of their statewide market share.
Rather, they could get still get full freedom in setting premiums if they merely increase their number of policies in risky areas by 5%.
If, say, State Farm now writes 200 policies for homes in fire-plagued Malibu, it would only have to add 10 policies there and in similarly fire-per-
Said Carmen Balber, executive director of the Consumer Watchdog advocacy group, “The massive loopholes in the text of the (new) regulation won’t get insurance companies selling (much) again in the hardest-hit areas of California.”
What’s more, price hikes will likely start quickly, while even the tiny requirements for more policies in the hardest-hit areas won’t begin until two years from now.
While Lara said the 5% increase alternative for sales in threatened areas is intended for small companies, it could also be used by giants like State Farm, Farmers and Allstate. It adds up to a pernicious mix of blackmail and deception with every property owner in the state now figuring to be victimized by rate increases topping even those already assessed over the last two years.
By Laura Place
SAN MARCOS — The San Marcos City Council amended the municipal code to prohibit homeless encampments on public property, regardless of whether shelter space is available, establishing one of the most restrictive bans in San Diego County.
In a 4-1 first-reading vote on Tuesday, with Councilmember María Nuñez opposed, the council agreed to ban encampments on all city-owned streets, alleyways, parking lots, sidewalks, parks, open spaces, and areas near waterways, including San Marcos Creek.
Individuals who violate the ordinance can be issued infractions, including fines, at the city’s discretion.
The proposed ordinance, which will become city law if approved by the council after a second reading, was introduced less than two weeks after the U.S. Supreme Court issued a landmark decision in Johnson v. Grants Pass.
In its 6-3 decision on June 28, the court’s conservative majority upheld a ban on homeless camping in Grants Pass, Oregon, finding that laws criminalizing


sleeping in public spaces do not violate the Eighth Amendment’s protections against cruel and unusual punishment in the U.S. Constitution.
“It’s time to take action.
We finally have the law behind us with the most recent Supreme Court ruling,” said Mayor Rebecca Jones.
The ordinance explicitly bans the presence of encampments, defined as



tents or other temporary structures used to shelter someone or their personal belongings, and “camping paraphernalia,” including tents, mattresses, sleeping bags, buckets, cots, and
cooking equipment, on public property. It also prohibits individuals from living in vehicles parked on public property.
Several speakers begged the city not to pass
the ordinance, arguing that it criminalizes individuals living outside or in their cars as a last resort and qualifies as a human rights violation.
“This is criminalizing and making things even harder on those people trying to get housing or do even better,” said Angelica Santiago, speaking through tears. “It’s definitely hard, you know, people have fees and then you’re adding more fees and more fees. It’s definitely not okay.”
“We are talking about human beings, people who are in need. We need to treat them with compassion and decency. With no place to go, it’s deeply troubling to think that without any other options for people, you would like to see them arrested,” said Tracy Ganz.
City spokesperson Tess Sangster said the ordinance does not mandate that fines be issued for violators; it depends on the situation. Potential infractions start at $250 and can increase to $500 and $1,000 for second and third offenses, and an individual can be charged with a misdemeanor by the fourth violation of the same offense.
“The City will continue the compassionate approach it has been taking with respect to its unhoused population. This will include providing information regarding re-
Cognitive decline can steal the past, but it doesn’t have to steal the future. Pioneered to curb the effects of cognitive decline, Circle of Friends® is a unique, evidence-based program for building brain fitness. It was developed by Belmont Village in collaboration with the nation’s top universities and healthcare institutions — and it works. Residents enjoy a rich, therapeutic program of physical and mental activities designed to maintain brain function and build self-esteem.

By Samantha Nelson ESCONDIDO —
The Escondido City Council agreed to put a citizen-led, one-cent sales tax increase initiative on the November ballot during its July 10 meeting.
If voters approve the ballot initiative, the city’s sales tax rate will see a hike of one cent on the dollar, or 1%, bumping the city’s current rate to 8.75% for the next 20 years.
The sales tax revenue would be used primarily for public safety, increased police, fire and paramedic services, addressing homelessness, improving streets, sidewalks and other infrastructure, reducing traffic congestion, and maintaining parks, trails and open space.
A coalition of police, firefighters, city employees and local business owners banded together at the beginning of the year to get the one-cent sales tax on the November ballot.
For the next several months, the group collected thousands of signatures from Escondido residents who supported the ballot measure.
The coalition delivered approximately 11,898 signatures to the city clerk’s office on May 31.
According to City Clerk Zack Beck, the coalition made an effort to avoid duplicates or invalid signatures during his prima facie count of the signatures in early June.
The sales tax measure needs 7,748 valid signatures to qualify for the ballot.
The city has an Aug. 9 deadline to submit the ballot measure in time for the November election.
Due to the time constraints and confidence that the measure will qualify, staff recommended that the City Council approve putting it on the ballot despite the full count deadline.
The city has faced an ongoing structural budget deficit in its general fund for the last few years, having also closed a $11.3 million budget shortfall in the last two years.
Without a significant increase in revenues, the city’s reserve funds and one-time funding resources will be gone by 2030, which could result in deep cuts to city services.
The sales tax placement on the November ballot will cost the city between $150,000 and $200,000.
While Councilmember Consuelo Martinez ultimately supported the initiative, she would have preferred the City Council to implement the its own measure instead of a citizen-led coalition.
Most Escondido voters previously denied a city-proposed ¾-cent sales tax measure in 2022.

By Samantha Nelson OCEANSIDE
— The Oceanside and San Dieguito chapters of the Boys & Girls Clubs have recently merged to form the Boys and Girls Clubs of Northwest San Diego County.
The merger, which leaders of the newly formed larger club describe as historic, will now serve as many as 6,500 youth across six North County communities, including Oceanside, Marine Corps Base Camp Pendleton, Encinitas, Solana Beach, Del Mar and Carmel Valley.
The move follows a national trend of Boys & Girls Clubs merging to combine their efforts to improve services, diversify and expand programming, reduce costs, serve more youth and operate more efficiently.
According to the merger’s announcement released July 9, the new organization will “prioritize mental health, inspire academic success, encourage self-discovery, and provide essential skill building” to empower the future leaders of tomorrow.
Jodi Diamond, former CEO of the Boys & Girls Clubs of Oceanside, will now assume the role of president for the Boys & Girls Clubs of Northwest San Diego County Foundation.
Diamond said the clubs will be “greater together” through the merger.
“We are thrilled to unite our organizations for greater impact, bringing together our resources to enrich the lives of the youth we proudly serve,” Diamond said. “This merger amplifies our ability to foster leadership, academic achievement, and character development among the youth we serve, preparing them for successful futures.”
Marineke Vandervort,

former CEO of the Boys & Girls Clubs of San Dieguito, who has now assumed the same role as the newly merged club, plans to build on both of the former clubs’ legacies.
“I am proud to partner with Jodi, a true champion and innovator in youth development,” Vandervort
ly navigate childhood and prepare for adulthood,” Hass said.
The new club will provide after-school programming at eight clubhouses for youth students between kindergarten and twelfth grade across the six communities. The organization will also offer eight spe-
We are excited to leverage our resources and ensure club kids have the skills and resilience to safely navigate childhood and prepare for adulthood.”
Robbie Calderon Hass Member, Boys & Girls Clubs
said. “Together, we will work diligently with our communities and expand on our shared goals to ensure all children have the opportunity and access they need to thrive.”
Robbie Calderon Hass, a 17-year board member of the Boys & Girls Clubs of Oceanside, said the new club intends to become the “recognized leader in outof-school time services” in the region.
“We are excited to leverage our resources and ensure club kids have the skills and resilience to safe-
Solana Beach agrees to $1.7M for new vehicle
By Laura Place SOLANA BEACH — The Solana Beach
Fire Department is moving forward with a much-needed fire truck replacement using $1.7 million in funds from the city’s Measure S sales tax.
The new Pierce Enforcer 107-foot Aerial Truck will replace the department’s current Pierce Arrow truck from 2008. According to firefighters, it is past its recommended 15-year lifespan and has to be pulled out of service for repairs more and more frequently.
The Solana Beach City Council unanimously authorized the $1.7 million payment for the truck on Wednesday, spending around $454,000 less than originally budgeted. Those extra dollars will stay in the Asset Management Fund to be used for other equipment replacement. It will be approximately four years before the truck is built and ready for service.
“By the time we get it, [the old truck] is gonna be 20 years old, which is very old for a truck that the community depends on,” said Solana Beach Fire Chief Josh Gordon.
Solana Beach voters approved the one-cent Measure S tax in 2022 as a new source of revenue for street maintenance, public safety services, and maintaining safe and clean public spaces like beaches and parks. In the upcoming year, the tax is expected to bring in around $4.6 million.
Measure S dollars also go toward other projects in the 2025 fiscal year. Along with the fire truck, the City Council approved allocations of $50,000 for an electric vehicle for the Parks and Recreation Department, $80,000 for the Highland Drive median project and $45,000 for the Santa Helena Neighborhood Project.
These purchases will leave approximately $1.9 million in Measure S funds for the 2025 fiscal year.
sure S funds this year to move ahead sooner.
Pierce will build the new truck to meet the specific needs of the Solana Beach Fire Department. This will include a 100foot ladder, which assists in cliff rescues and accessing multistory buildings, as well as equipment for technical rescue, ventilation, extrication, forcible entry and stabilization.
Pierce also built the station’s two current fire engines (fire engines are designed to specifically carry water while fire trucks carry ladders and other equipment.)
Gordon said the new truck will not only save the city money in the long run by eliminating the need for costly repairs but also keep the community and firefighters safer. For example, Pierce’s new truck will feature a “clean cab” design, which stores equipment contaminated by carcinogens and other harmful substances away from the firefighters in the truck’s cab.
“We’re losing the health and wellness battle in the fire service. If we can take all that carcinogen-covered equipment and store it separate, away from our firefighters, that’s gonna help them,” Gordon said.
Councilmember Dave Zito said that in the future, he would like to see the city begin socking away asset replacement funds for new engines and trucks much earlier to avoid pulling from the General Fund, which Measure S is part of.
City Manager Alyssa Muto said the city is preparing to conduct a fleet conversion study to better understand what vehicles need to be replaced or converted to electric models to comply with state law. This will help the city determine how much it should budget per year.
“We’re really getting in front of it, as opposed to grabbing from the well for Measure S,” Muto said.
City officials said the city is also getting a head start on saving for a replacement fire engine, setting aside $313,000 annually for the next four years.
cialty programs, including Pardee Aquatics Center and the Rancho San Dieguito Swim Team, Athletics and BIG 8 Middle School Sports, Bulldogs Basketball, Carmel Valley Montessori School, Centers for a Healthy Lifestyle and Culinary Arts, R.O.A.D.’s (Real Options for Adults with Disabilities), Summer Adventure Camps and a Youth Arts Academy.
For more information about the Boys & Girls Clubs of Northwest San Diego County, visit www.bgcgreatertogether.org.
“I love to see our Measure S dollars at work. These are the things we promised the community that we would do with these funds, and it’s great to see that we’re doing them,” said Councilmember Jewel Edson.
The city was originally planning to purchase the truck next year after saving enough money over a three-year period. However, due to the long wait times for construction and a discount offered by truck manufacturer Pierce, the city opted to increase its annual allocation of Mea-


Plan to protect homebuyers from corporate greed
By City News Service
REGION — The San Diego County Board of Supervisors voted 3-1 on July 16 in favor of a proposal that will address corporate “bad actors’’ who purchase homes and, in the words of the proposal, contribute to an already difficult affordable-housing situation.
Vice Chair Terra Lawson-Remer said her sponsored policy aims “to protect communities from illegal business practices, and safeguard housing options for first-time homebuyers and working families.’’ Lawson-Remer said private equity giants and large corporations “are increasingly buying up the
nation’s scarce supply of homes, including in the San Diego region,’’ driving up prices for their own profit and making the housing affordability crisis worse.
According to Lawson-Remer’s office, the proposal will:
• analyze how pervasive commercial ownership of single-family residential properties is in the county by using property tax roll data, and look at single-family detached property sales over the past five years to see ownership trends;
• examine possible legal actions in response to allegations of price gouging, tenant harassment and price-fixing across the county real estate market;
• analyze local ordinances and legislation to address increasing threats to renters, single-family
TURN TO HOUSING ON 20
By Laura Place SAN MARCOS —
San Marcos voters will be asked to approve a 1-cent sales tax to generate up to $20 million in additional revenue for various city services in November, following unanimous approval by the City Council on Tuesday.
Revenue from the proposed sales tax, which now goes on the Nov. 5 ballot, would go toward law enforcement and emergency response services, maintaining public streets and infrastructure, reducing traffic congestion, and maintaining parks, trails, playgrounds and community facilities.
The need for new local revenue sources has grown more apparent in recent years, especially as the population continues to grow and San Marcos maintains one of the lowest shares of property tax in San Diego County at 6.6%.
The city had to dip into reserves to close a $3.8 million budget gap in 2023 and could only balance this year’s budget by making cuts in most departments. Without new revenue, the city will not be able to maintain the current quality of life in terms of safety and cleanliness, officials said.
“Every budget season that I’ve been here, it’s been

tax rate is 7.75%, including 7.25% in state taxes and a 0.50% TransNet tax. The additional 1-cent measure would increase the city’s overall rate to 8.75% for ten years.
To pass, the measure must be approved by at least 50% of voters. In a survey of San Marcos residents by True North Research earlier this year, 64% said they would probably or definitely vote yes in favor of a sales tax measure.
nothing but cutting. Cut enough, and you hit bone,” said Councilmember Mike Sannella. “For me, this is really an easy decision. It is never a tough decision to give our residents a voice.”
Members of the city’s budget committee, fire department and other organizations have urged the City Council to put the sales tax to voters for several months. The Boys and Girls Club of San Marcos, Deputy Sheriff’s Association of San Diego County, San Marcos Chamber of Commerce and San Marcos Professional Firefighters Association have endorsed the measure.
At Tuesday’s meeting, dozens of residents showed up to voice their support for the measure during public comment.
“I have been amazed at the groundswell of support that has reared its head in the last couple months regarding this measure,” said
Jay Petrek, a member of the Committee for a Safe and Strong San Marcos, the committee supporting the measure. “There’s been a lot of work to get to this point, and a lot of work, if this gets voted to the ballot, will be needed to get the support to grow.”
One of the measure’s main focuses is additional revenue for law enforcement and emergency services. San Marcos firefighters are in dire need of a fifth fire station, noting that their calls for service have nearly doubled since the last station was added in 2008.
“As our city continues to expand, public safety must remain a top priority,” said SMFFA President Jordan Abeel. “A 1% sales tax would provide a sustainable revenue source to support essential services without compromising our financial stability.”
San Marcos’s current
Some residents and city officials said that while increased taxes are not ideal, this measure will ensure that all of the revenue generated stays in the city.
“I’m somewhat reluctant about putting this on the ballot, for the reason of it being a very tough time right now financially for our families,” said Mayor Rebecca Jones. “I’ve always supported and believed that our residents should be involved in the community. They should have their voices heard.”
Nine of the 18 cities in San Diego County have their own local sales tax. Chula Vista, Del Mar, Solana Beach, Imperial Beach and National City each have a 1-cent tax; El Cajon, Oceanside and Vista have a half-cent tax; and La Mesa has a 3/4-cent tax.
Encinitas and Escondido voters are being asked to approve their own 1-cent sales tax this November. The city of Oceanside is also asking voters to extend their half-cent sales tax by another 10 years.
By Samantha Nelson REGION — Local Reps.
Scott
Peters
(D-San Diego) and Mike Levin (D-San Juan Capistrano) have joined a growing group of Democrats calling on President Joe Biden to drop out of the presidential race.

half years. But I believe the time has come for President Biden to pass the torch.”
Nineteen Democratic members of the House and one Democratic U.S. senator have called on Biden to withdraw as of July 12, including Connecticut Rep.
I ask President Biden to withdraw from the
presidential
campaign. The stakes are high, and we are on a losing course.”
Levin released a statement formally calling on Biden to step down as the Democratic nominee just moments after asking him to drop out of the race during the Congressional Hispanic Caucus’s July 12 call with the president.
“First, let me say that President Biden has been an outstanding leader, not only of our nation, but of the entire free world. Making this statement is not easy,” Levin said. “I have deep respect for President Biden’s five plus decades of public service and incredible appreciation for the work we’ve done together these last three and a
Jim Himes, the top Democrat on the House Intelligence Committee.
The day before Levin’s public statement, Peters asked Biden to step down after the president concluded a high-stakes briefing with reporters on July 11 at the NATO Conference in Washington, D.C.
The White House characterized the briefing as a “big-boy press conference,” hoping to assuage fears about Biden’s age and mental acuity after the president appeared to lack energy and lose his train of thought in a disastrous June 27 debate performance against former

president and Republican nominee Donald Trump.
“The nation owes an enormous debt of gratitude to President Biden for saving us from a second term of a Trump Presidency in 2020 and for leading with his huge heart and a steady hand in challenging times,” Peters said. “It’s now clear, however, that the president’s record of accomplishments will not translate into similar success in his reelection campaign. This was not a blip. And while the Biden campaign claims the post-debate national polls remain relatively unchanged, polling in the swing states has
worsened alarmingly. Today, I ask President Biden to withdraw from the presidential campaign. The stakes are high, and we are on a losing course. My conscience requires me to speak up and put loyalty to the country and to democracy ahead of my great affection for, and loyalty to, the president and those around him.’’
But just as he has in multiple appearances since the debate, Biden dug in last Thursday on his determination to stay in the race.
“I’m not in this for my legacy,” Biden said. “I’m in this to complete the job I started... My schedule has
been full bore. So, if I slow down and can’t get the job done, that’s a sign that I shouldn’t be doing it. But there’s no indication of that yet – none.”
Biden touted his firstterm accomplishments, continuing to make a force-
against the incalculable threat Donald Trump poses to the American institutions of freedom and democracy,” Levin’s statement said. “Donald Trump actively seeks a bleak authoritarianism and the overthrow of the values which have guided us to-
I have deep respect for Biden’s five plus decades of public service... but I believe the time has come to pass the torch.”
ful case for his candidacy.
However, Biden also made some verbal gaffes at the NATO conference that did not go unnoticed.
Near the top of the event, he referred to Vice President Kamala Harris as “Vice President Trump” and introduced Ukrainian President Volodymyr Zelenskyy as “President Putin,” mixing him up with the president of Russia, which is at war with Ukraine. Biden quickly corrected the mistake.
Peters and Levin both said Democrats need to find a new candidate to defeat Donald Trump.
“We must prevail

wards justice and prosperity for nearly two and a half centuries. Once again, our national mettle must be forged in the crucible of history. It is time to move forward with a new leader together.” Major Democratic Party donor and Hollywood actor George Clooney also said the president needs to step asid. Clooney cited what he implied were signs of decline he witnessed during a record-setting Los Angeles fundraiser on June 15 for Biden with former President Barack Obama.
City News Service contributed to this report.
Business news and special achievements for North San Diego County. Send information via email to community@ coastnewsgroup.com.
The following students graduated from their respective universities: Brant Kelley of Carlsbad and Emily O’Keeffe of Encinitas from the University of Northern Colorado; Constantino Felicetta of Vista from Shenandoah University in Virginia; Neal Presa of Carlsbad and Joseph Welch of Encinitas from Missouri State University; Joe Crotty of San Marcos, Ella Salvagio of Carlsbad and Aiden Springer of San Diego from Miami University in Ohio; and Paolo Martino of Encinitas from Clarkson University in New York.
DEAN’S LIST
The following students were named to the dean’s list at their respective colleges and universities: Ella Biebel and Noah Gabriel of San Diego and Ricardo Covarrubias of Oceanside at Oregon Institute of Technology; Natalie Huestis of Carlsbad at Wichita State University in Kansas; Van Coughlin of Solana Beach at the College of the Holy Cross in Massachusetts; Ignatio Tran of Carlsbad at Hamilton College in New York; and Ian Palmroos of San Diego at Augustana College in Illinois.
CHARTER GRADS
Pivot Charter School San Diego in San Marcos hosted a graduation ceremony for its 12 2024 graduates on May 31. According to administrators, the ceremony marks a significant milestone and underscores
the partnership between Pivot and the San Marcos Unified School District.
HONORS ATHLETE
Angel Torres of Oceanside is one of 460 student athletes named to the athletic director’s honor roll at Midway University in Kentucky.
ACADEMY GRADS
The 56 graduates of the Army and Navy Academy’s Class of 2024 received a total of 165 college acceptances from 85 institutions and more than $11 million in scholarships.
SUPPLY DRIVE
Home Start, a nonprofit organization dedicated to child abuse prevention and providing evidence-based family strengthening services, is hosting its annual Backpack and Supply Drive until July 31. Donations of supplies or filled backpacks ready to distribute can be dropped off at Home Start’s main office at 5005 Texas St., Suite 203 in San Diego from Monday through Friday between 9 a.m. and 5 p.m. Those who are interested in donating can also shop through Home Start’s Amazon Wishlist, which allows the school supplies to be shipped directly to Home Start.
VOLUNTEERS NEEDED
The USS Midway Museum is recruiting volunteer tour guides. Training begins Sept. 23. No military experience is required. Women and civilians are encouraged to apply. Each volunteer shift is four hours long and docents will be asked to volunteer roughly 20 or more hours per month once training is completed. The classes include training in naval customs and procedures, interpersonal skills, guest relations, engineering and aviation features and more.



San Diego Zoo Wildlife
United States in 21 years. The
The pandas won’t be viewable to the public for at least several
iegozoo.org/giant-pandas. Courtesy photos

By Staff
CARLSBAD — Republic Services introduced North County’s first fully integrated electric recycling and waste collection truck on July 11 at the Palomar Transfer Station in Carlsbad.
The waste disposal company debuted the truck after announcing plans last year to expand its electric fleet, aiming for electric vehicles to make up half of its new truck purchases within the next five years.
Republic Services was awarded a 10-year, $27.7 million waste contract by the City of Carlsbad in 2021, taking over for the city’s previous garbage hauler, Waste Management.
“As the operator of 17,000 trucks, Republic Services is uniquely positioned to advance decarbonization through our commitment to electrification, delivering meaningful environmental and economic benefits,” said Jon Vander Ark, president and CEO of Republic Services.
“We’ll continue to invest in innovations that will help reduce emissions, benefit the environment and help our customers meet their own sustainability goals.”
The recycling and waste collection business is suited for electric vehicles, with trucks operating consistent routes and returning to a base to recharge overnight.





LOVEBIRD is Rancho Coastal Humane Society’s pet of the week. She is a 2-year-old, 7-pound, female, domestic short hair cat with a torbie (tortoiseshell/tabby) coat.
Lovebird was a stray who was taken to a shelter. When nobody claimed her, she was transferred to RCHS through Friends of County Animal Shelters.
Lovebird needs to sniff someone before she lets them pet her. Once she feels comfortable, Lovebird will investigate. Don’t try to rush this. Everything needs to move at her pace.
The $100 adoption fee includes a medical exam, neuter, up-to-date vaccinations, registered microchip and a one-year license if the new home is in the jurisdiction of San Diego Humane Society’s Department of Animal Services.
For information about adoption or being a virtual foster, stop by RCHS at 389 Requeza St., Encinitas, call (760) 753-6413 or visit SDpets.org.
BRAD is pet of the week at the Helen Woodward Animal Center. He is a 56-pound Australian cattle


dog and blue heeler mix. Animal center workers described Brad as athletic, sweet and friendly.
Brad’s adoption fee is $345 plus a $36 microchipping fee. All pets adopted from HWAC are altered and up-to-date on vaccinations and micro-chipped for identification.
HWAC is at 6523 Helen Woodward Way in Rancho Santa Fe. Kennels are open Wednesday-Sunday, 10 a.m. to 6 p.m. (by appointment only).
For more information call (858) 756-4117, option #1 or visit animalcenter.org.

SIDNEY is pet of the week at the San Diego Humane Society. Sidney is a 5-year-old Weimaraner who is quite the social butterfly and loves to make new friends. There’s nothing she likes better than findng a good spot to nap. Sidney is available for $25 (normally $110) until July 31 at the San Diego campus. The adoption fee includes spay/neuter services, vaccinations, permanent microchip identification, an incentive for pet insurance and a license for residence in the city limits of Carlsbad, Del Mar, Encinitas, Escondido, Oceanside, Poway, San Diego, San Marcos, Santee, Solana Beach and Vista. For questions, visit sdhumane.org/adopt or call 619-299-7012.

CARLSBAD YOUTH Baseball hosts the Pony-13 World Series from July 18-22 at Calavera and Aviara parks. Courtesy photo
By Jordan P. Ingram CARLSBAD —
For the first time in the organization's history, Carlsbad Youth Baseball will host the Pony-13 World Series as part of a two-year contract for 2024 and '25.
This year's Pony-13 World Series, featuring young sultans of swat from several international and U.S. teams, will be held July 18-22 at Calavera and Aviara community parks.
“Carlsbad Youth Baseball is honored to host the 2024 Pony-13 World Series,” said Carlsbad Youth Baseball League President Tom Benton. “The community of Carlsbad is excited to be the home of this event. Our guests from around the world will enjoy visiting our beach town.”
The Pony-13 World Series will kick off with a skills competition, followed by opening ceremonies on July 18 at Calavera Park with a salute to local firefighters, police and first responders. Carlsbad High School graduate and former Anaheim Angels infielder Troy Glaus will throw out the first pitch to Mayor Keith Blackburn.
The following day, July 19, will feature a skills competition followed by a full slate of games at Aviara Park. The remainder of the Pony-13 World Series games will be held at the baseball fields at Calavera Park.
This year’s Pony-13
World Series will bring together teams from the East Zone, North Zone, South Zone, West Zone, Mexico Zone, Asia Pacific Zone, and the Caribbean Zone.
Carlsbad Youth Baseball will represent the host team in the Pony-13 World Series.
The Pony Champions League, consisting of special-needs athletes, will play its World Series championship game at 2 p.m. on July 20 at Calavera Park.
The four-day baseball tournament is sponsored by many local businesses, including That Pizza Place, Senor Grubby’s, Big Fly Athletics, Handel’s Homemade Ice Cream, Ohana Creations, Chik Fil A, Carlsbad Engraving and more.
Apparel vendor Swim West will also be selling World series logo gear online and on-site, with an option for standard and personalized designs on t-shirts, sweatshirts and hats.
Local business Thai Mama Homemade Food will be selling delicious Thai food onsite, and a local baseball team will host a fundraiser, serving food to raise money for a trip to compete in Cooperstown, New York.
Only three Pony World Series have been held in San Diego, the last of which was in 1978, when Campbell Moreland defeated Joliet, Illinois, in the championship game.
The North Coastal Sheriff’s Station is recruiting for its Volunteer Sheriff’s Patrol. This program involves:
• Conducting home vacation security checks
• Assisting with traffic control
• Patrolling neighborhoods, schools, parks, and shopping centers in patrol cars and on foot
• Visiting homebound seniors who live alone in the communities of Encinitas, Solana Beach, Del Mar, and portions of the county’s unincorporated areas, such as Rancho Santa Fe
• Performing other duties as needed
The primary mission of the volunteers is to serve as an extra set of eyes and ears for the deputies on patrol. To be eligible, volunteers must be at least 50 years old, in good health, and have no significant mobility limitations. Volunteers must pass a background check, have auto insurance, and a valid California driver’s license. Training involves two weeks at the Sheriff’s Academy plus several in-field patrols. Volunteers must commit to four 6-hour shifts with a partner and attendance at one program meeting per month. If interested, please contact the Volunteer Sheriff’s Patrol at (760) 966 3579 to schedule an initial interview.


Barry Axelrod was absent, but in every direction one looked, it was clear he was present.
A head spin saw famous athletes and actors laughing and remembering, all brought together once again by the incomparable Axelrod, a super agent to the stars and anyone else.
“We will always toast you, Barry, as we do today,” said Mark Sweeney, a former Padre and among Axelrod's onetime clients.
Axelrod, of Cardiff, died on May 9 at 77, and he was saluted on Monday at a favorite haunt, the Del Mar Thoroughbred Club.
The personable Axelrod was more than someone who crunched numbers for those who demolished baseballs or flung them past hitters. His niche was being an equal part financial guru and the fun-guy-to-be-with.
Axelrod seldom whiffed on an opportunity to share a tale, spin a joke or poke someone in the ribs.
“But he treated everyone with respect and loyalty,” North County's Sweeney added.
Others knowing him as a friend, and a business partner, all nodded and my what a collection there were in attendance.
Those with baseball

Carol Conley Fenske Oceanside July 6, 2024
Mark Rodriguez Montanez Solana Beach June 20, 2024
credentials hanging out in the paddock, in addition to Sweeney, were impressive: Rick Sutcliffe, Phil Nevin, Wally Joyner, Mark Grace, Mark Grant, Hall of Famers Craig Biggio and Jeff Bagwell and others.
Mark Harmon, the TV star and former UCLA quarterback, was on hand, returning to North County. Years ago, Axelrod lured Harmon to Cardiff and surprised him with a birthday party at the Kraken on Highway 101.
Axelrod rode through a life that few can match, considering the people he met and the impact he had on them.
It started when Axelrod was a UCLA student, working on his law degree and as part of the athletic training staff under the watchful eye of coach John Wooden. Axelrod's love for UCLA, and all those he came in contact with, never faded.
“Right now he's up there drinking tequila and talking baseball with Kevin Towers or maybe football with Bruce Walton with a Coors Light or he's going over the pyramid of success with John Wooden and wondering who the next UCLA quarterback is going to be,” Sweeney said.
Good stuff and not a bit off-base.
There were two things Axelrod accomplished with unparalleled success: giving wise counsel and connecting people from various walks of life, nurturing those relationships into more than just a meet-and-greet.

BARRY AXELROD of Cardiff, an agent who represented scores of athletes and entertainers, was saluted this week with a celebration of his life after passing away in May at age 77. Courtesy photo
“He brought people together better than anyone I've known in my life,” Nevin said.
The compassion Axelrod distributed was evident with more than 300 people in attendance at his celebration of life. Many unloaded stories that kept the mood light and the laughter heavy.
Cardiff's Sutcliffe remembered a bachelor party Axelrod was planning in Chicago and here we go.
Then a standout Cubs pitcher, Sutcliffe pulled strings to let Axelrod's lads have their shindig at Wrigley Field with the team having an off day. They were enjoying their shenanigans on the outfield grass, which stays pristine thanks to a keen watering system.
That was something Axelrod's bunch learned firsthand when nearing the ivy-covered walls in center field.
“I went over to the groundskeeper and I had him turn on the sprinklers,”
Sutcliffe said. “It got them pretty good.”
It was always a contest of gotcha with Axelrod, and yes, he got his revenge.
When the 1990 AllStar Game came to Chicago, Axelrod rented a billboard near Wrigley Field. It conveyed a warm message from Sutcliffe, welcoming the baseball world to the Windy City and adding that if they needed All-Star Game tickets, to call him.
The crowd couldn't stop chuckling and Sutcliffe, the 1984 National League Cy Young Award winner, was just getting loose.
“One year I'm on the cover of Sports Illustrated, which is pretty cool, but it's for a story on the most overpaid players in baseball,” Sutcliffe said, somewhat embarrassed. “Right there in the middle of the cover is my big fat head.”
The arrows were out and Sutcliffe was the target at this stage of his stellar career when his fading production and soaring compensation didn't align.
“I called Barry and said, ‘Man, I'm getting crushed for being on the cover,’ ” Sutcliffe said.
Axelrod's reply didn't miss a beat and was a true lesson in perspective.
“You may be getting crushed,” Axelrod told Sutcliffe, “but my phone is ringing off the hook.” Axelrod is gone, but his influence on those fortunate enough to call him a friend remains.
Contact Jay Paris at jparis8@aol.com and follow him @jparis_sports

Kalae Anne Meyers Oceanside June 20, 2024
Richard Hoffman Van Thiel Fallbrook June 18, 2024
Is it Appropriate to Attend the Services if I am Not of the Same Religious Belief? Share the story of your loved ones life... because every
For more information:
Submission Process
Please email obits@coastnewsgroup.com or call (760) 436-9737. All photo attachments should be sent in jpeg format, no larger than 3MB. the photo will print 1.625” wide by 1.5” tall inh black and white. Timeline
Obituaries should be received and approved before Friday at 12 p.m. for publication in the next week Friday’s newspaper.
Rates:
Text: $15 per inch Approx. 21 words per column inch
Photo: $25 Art: $15 (Dove, Heart, Flag, Rose)
Funeral services are not about personal beliefs; it is a time when friends and family come together to celebrate a loved one’s life. The funeral service can be held at a church, temple, mosque, funeral home, graveside, or even the residence.
If the service is held in a church, mosque, or temple not of your religion, just follow what the family is doing if you wish to participate. If not, you may also ask the funeral director what the appropriate participation would be for someone of a different faith.
The family will greatly appreciate that you took the time to join them to honor their loved one and you will have the opportunity to say your final farewell.

www.allenbrothersmortuary.com

CITY OF ENCINITAS DEVELOPMENT SERVICES DEPARTMENT
505 S. Vulcan Avenue, Encinitas, CA 92024
Phone: (760) 633-2710 | Email: planning@encinitasca.gov | Web: www.encinitasca.gov
City Hall Hours: Monday through Thursday 8:00 AM to 5:00 PM and every other Friday (7/26, etc.) 8:00 AM TO 4:00 PM (Closed 12:00 PM to 1:00 PM)
NOTICE OF PENDING ACTION ON ADMINISTRATIVE APPLICATIONS AND COASTAL DEVELOPMENT PERMITS
1. PROJECT NAME: Bennetti ADU - 563 Hermes Av, Unit 2; CASE NUMBER: CDPNF-006725-2023/BLDR-028518-2023; FILING DATE: 10/25/2023; APPLICANT: Maureen Benetti; LOCATION: 563 Hermes Av, Unit 2 (APN: 256-110-54);
PROJECT DESCRIPTION: A Coastal Development Permit for the construction of an attached accessory dwelling unit (ADU); ZONING/OVERLAY: The project site is located within the Residential 8 (R-8) and Coastal zones; ENVIRONMENTAL STATUS: The project has been determined to be exempt from environmental review pursuant to California Environmental Quality Act (CEQA) Guidelines Section 15303(a) which exempts the construction of a second (accessory) dwelling unit in a residential zone; STAFF CONTACT: Fran Carr, Associate Planner: (760) 633-2738 or fcarr@encinitasca.gov
2. PROJECT NAME: 149 Avocado St ADUs; CASE NUMBER: CDPNF-006741-2023, CDPNF-006742-2023, BLDR-025378-2023, & BLDR-025377-2023; FILING DATE: 04/11/2023; APPLICANT: F and F Encinitas Beach Colony; LOCATION: 149 Avocado St, Unit 1 and Unit 2 (APN: 254-030-25); PROJECT DESCRIPTION: A Coastal Development Permit for the construction of two detached accessory dwelling units (ADU); ZONING/OVERLAY: The project site is located within the Residential 11 (R-11) and Coastal Overlay zones; ENVIRONMENTAL STATUS: The project has been determined to be exempt from environmental review pursuant to California Environmental Quality Act (CEQA) Guidelines Section 15303(a) which exempts the construction of a second (accessory) dwelling unit in a residential zone; STAFF CONTACT: Fran Carr, Associate Planner: (760) 633-2738 or fcarr@encinitasca.gov
3. PROJECT NAME: Encinitas Boulevard Apartments Time Extension; CASE NUMBER: MULTI-007166-2024, EXT-007270-2024; FILING DATE: 4/17/2024; APPLICANT: 2220 Encinitas LLC; LOCATION: 2220, 2228, & 2230 Encinitas Blvd (APNs: 259-231-28, -30, -31, & -32); PROJECT DESCRIPTION: Time Extension for a Density Bonus request and Design Review Permit for the Goodson Apartments Project/Encinitas Boulevard Apartments project; ZONING/OVERLAY: RR2/R-30 (Rural Residential 2/Residential 30) and Scenic/Visual Corridor and Special Study; ENVIRONMENTAL STATUS: The project has been determined to be exempt from environmental review pursuant to California Environmental Quality Act (CEQA) Guidelines Section 65583.2(h) and (i), which provide that, if a project is located on a site designated for ‘by right’ approval, contains at least 20 percent of the units a ordable to lower income households, and does not require a subdivision, the City may only require design review approval of the project, and design review approval shall not constitute a “project” under CEQA; STAFF CONTACT: Fran Carr, Associate Planner: (760) 633-2738 or fcarr@encinitasca.gov
PRIOR TO 5:00 PM ON MONDAY, JULY 29, 2024, ANY INTERESTED PERSON MAY REVIEW THE APPLICATIONS AND PRESENT TESTIMONY, ORALLY OR IN WRITING, TO THE DEVELOPMENT SERVICES DEPARTMENT. WRITTEN TESTIMONY IS PREFERRED IN ORDER TO HAVE A RECORD OF THE COMMENTS RECEIVED.
If additional information is not required, the Development Services Department will render a determination on the application, pursuant to Section 2.28.090 of the City of Encinitas Municipal Code, after the close of the review period. An Appeal of the Department’s determination accompanied by the appropriate ling fee may be led within 10-calendar days from the date of the determination. Appeals will be considered by the City Council pursuant to Chapter 1.12 of the Municipal Code. Any ling of an appeal will suspend this action as well as any processing of permits in reliance thereon in accordance with Encinitas Municipal Code Section 1.12.020(D)(1) until such time as an action is taken on the appeal.
Items 1 and 2 are located within the Coastal Zone and require the issuance of a regular Coastal Development Permit. The action of the Development Services Director may not be appealed to the California Coastal Commission for Items 1 and 2. Item 3 is not located within the Coastal Zone.
Under California Government Code Sec. 65009, if you challenge the nature of the proposed action in court, you may be limited to raising only those issues you or someone else raised regarding the matter described in this notice or written correspondence delivered to the City at or prior to the date and time of the determination.
07/19/2024 CN 29199

T.S. No. 24-24042 Loan No. 502 Cleveland Order No 15950963 APN: 150-185-0102 NOTICE OF TRUSTEE’S SALE YOU ARE IN DEFAULT UNDER A DEED OF TRUST DATED 8/1/2020. UNLESS YOU TAKE ACTION TO PROTECT YOUR PROPERTY, IT MAY BE SOLD AT A PUBLIC SALE. IF YOU NEED AN EXPLANATION OF THE NATURE OF THE PROCEEDING AGAINST YOU, YOU SHOULD CONTACT A LAWYER. On : 8/12/2024 at 10:30 AM (or as postponed from time to time), Best Alliance Foreclosure and Lien Services Corp. as the duly appointed trustee under and pursuant to deed of trust recorded 9/24/2021, as Instrument No. 20210673355, of O cial Records in the o ce of the Recorder of San Diego County, California, executed by 502 S Cleveland 2 LLC as Trustor, Ferrell Family
Trust, Bene ciary, WILL SELL AT PUBLIC AUCTION SALE TO THE HIGHEST BIDDER FOR CASH, (payable at the time of sale in lawful money of the United States, by cash, a cashier’s check drawn on a state or national bank, check drawn by a state or federal credit union, or a check drawn by a state or federal savings and loan association, or savings association, or savings bank speci ed in Section 5102 of the Financial Code and authorized to do business in this state) At: THE ENTRANCE TO THE EAST COUNTY REGIONAL CENTER BY STATUE, 250 E. MAIN STREET, EL CAJON, CA 92020, all right, title, and interest conveyed to and now held by it under said deed of trust in the property situated in said county, California describing the land therein: AS MORE FULLY DESCRIBED ON SAID DEED OF TRUST The property heretofore described
is being sold “as is”. The street address and other common designation, in any, of the real property described above is purported to be: 502 South Cleveland Street, Unit 2, Oceanside, CA 92054 The undersigned Trustee disclaims any liability for any incorrectness of the street address and/or other common designation, if any, shown herein. If the property has no street address or other common designation, directions may be obtained pursuant to a written request submitted to the bene ciary c/o the Trustee listed herein within 10 days from the rst publication of this notice. Said sale will be made, but without covenant or warranty, expressed or implied, regarding the physical condition of the property, title, possession, or encumbrances, to pay the remaining principal sum of the note(s) secured by the Deed of Trust and personal property, if any,, with interest and late charges thereon, as
NOTICE INVITING BIDS
CITY OF ENCINITAS
FY 2024 Annual Sewer Rehabilitation Project Phase 1 Project No. CC04E/CE04H
Notice is hereby given that the City of Encinitas (City) will receive ELECTRONIC BIDS ONLY, via the on-line bidding service PlanetBids, up to 2:00 PM, on August 20, 2024. At which time said ELECTRONIC BIDS will be publicly opened and read. The results will be posted on PlanetBids immediately at the close of the bid opening.
WORK TO BE DONE: The work to be done generally consists of the rehabilitation of wastewater mains via cured-in place pipe, manhole rehabilitation, and all incidental work or services.
ENGINEER’S ESTIMATE: $1,950,000
LOWEST RESPONSIVE AND RESPONSIBLE BIDDER: The award of the contract, if it is awarded, will be to the lowest responsive and responsible bidder submitting a bid whose summation of the base bid is the lowest. Pursuant to Public Contract Code Section 1103, a “Responsible Bidder”, means a bidder who has demonstrated the attributes of trustworthiness, as well as quality, tness, capacity, and experience to satisfactorily perform this public works contract.
OBTAINING CONTRACT DOCUMENTS: The website for this advertisement and related documents is: PlanetBids (https://encinitasca.gov/Bids). All bid documents and project correspondence will be posted on the PlanetBids website. It is the responsibility of Proposers to check the website regularly for information updates and Bid Clari cations, as well as any addenda. To submit a bid, a bidder must register as a vendor (planholder) and download the contract documents from the City of Encinitas Website at https://encinitasca.gov/Bids. To register as a vendor, go to the following link (https://encinitasca.gov/Bids) and then proceed to the “Register As A Vendor” link. In compliance with California Contract Code, Section 20103.7 electronic copies will be made available to contractor plan series bid boards and contractors upon their request. The City makes no representation regarding the accuracy of Contract Documents received from third party plan rooms and Contractor accepts bid documents from third parties at its own risk.
Contractors shall be responsible for obtaining all addendums for the project and signing and submitting all addendums with their bid. Any contractor that does not acknowledge receipt of all addendums by signing and submitting all addendums with their bid shall be deemed a non-responsive bidder and their bid will be rejected.
PREVAILING WAGE: This is a prevailing wage project and prevailing wage rates for this locality and project as determined by the director of industrial relations apply, pursuant to labor code section 1770, et. Seq. A copy of the prevailing wage rates shall be posted on the job site by the contractor. A schedule of prevailing wage rates is available for review at the California Department of Industrial Relations web site found on the internet at http://www.dir.ca.gov/ Public-Works/Prevailing-Wage.html. The successful bidder shall be required to pay at least the wage rates set forth in that schedule.
Certi ed Payroll records shall be maintained by the contractor and copies of the certied payroll shall be electronically sent to the Department of Industrial Relations and hardcopies of the certi ed payroll shall be delivered to the City at the end of each month during the entire duration of the project.
Notice: Subject to exceptions as set forth in Labor Code section 1771.1, contractor or Subcontractor shall not be quali ed to bid on, be listed in a bid proposal, subject to the requirements of Section 4104 of the Public Contract Code, or engage in the performance of any contract for public work, as de ned by statute, unless it is currently registered and quali ed to perform public work pursuant to Labor Code Section 1725.5. The City may not accept a bid nor any contract or subcontract entered into without proof of the contractor or subcontractor’s current registration to perform public work pursuant to Section 1725.5. For more information, go to http://www.dir.ca.gov/Public-Works/Certi ed-Payroll-Reporting.html
COMPLIANCE WITH LABOR LAWS: The prime contractor shall be responsible for insuring compliance with all applicable provisions of the Labor Code, including, but not limited to, section 1777.5.
Please also see INFORMATION AND INSTRUCTIONS FOR BIDDERS in bid documents for additional bid information and requirements.
END OF NOTICE INVITING BIDS
07/19/2024, 07/26/2024 CN 29200
provided in the note(s), advances, if any, under the terms of the Deed of Trust, estimated fees, charges and expenses of the trustee and of the trusts created by said deed of trust, to wit: amount of unpaid balance and other charges: $233,390.96 (Estimated as of 8/1/2024) Accrued interest and additional advances, if any, will increase this gure prior to sale. If the Trustee is unable to convey title for any reason, the successful bidder’s sole and exclusive remedy shall be the return of monies paid to the Trustee and the successful bidder shall have no further recourse. NOTICE TO POTENTIAL BIDDERS: If you are considering bidding on this property lien, you should understand that there are risks involved in bidding at a trustee auction. You will be bidding on a lien, not on the property itself. Placing the highest bid at a trustee auction does not automatically entitle you to free and clear ownership of the property or necessarily a 100% ownership interest in the property. You should also be aware that the lien being
auctioned o may be a junior lien. If you are the highest bidder at the auction, you are or may be responsible for paying o all liens senior to the lien being auctioned o or resolving ownership interest issues, before you can receive clear title to the property. You are encouraged to investigate the existence, priority, and size of outstanding liens as well as the ownership interest(s) that may exist on this property by contacting the county recorder’s o ce or a title insurance company, either of which may charge you a fee for this information. If you consult either of these resources, you should be aware that the same lender may hold more than one mortgage or deed of trust on the property. Please Note, the sale may not be nal until either 15 or 45 days after the sale date – see Notice to Tenant. Further, no TDUS can be issued until the sale is nal. Your bid is subject to being over bid by the Tenant or “eligible bidder” after the sale and if your bid is over bid, your only remedy is to the refund of your actual bid amount without interest or payment of any
other costs, expenses or funds of any kind or nature incurred by the initial successful bidder.
NOTICE TO PROPERTY OWNER: The sale date shown on this notice of sale may be postponed one or more times by the mortgagee, bene ciary, lien holder, trustee, or a court, pursuant to Section 2924g of the California Civil Code. The law requires that information about trustee sale postponements be made available to you and to the public, as a courtesy to those not present at the sale. If you wish to learn whether your sale date has been postponed, and, if applicable, the rescheduled time and date for the sale of this property, you may call (866) 266-7512 or visit this Internet Web site www. elitepostandpub.com using the T.S. number assigned to this case. Information about postponements that are very short in duration or that occur close in time to the scheduled sale may not immediately be re ected in the telephone information or on the Internet Web site. The best way to verify postponement information is to attend the scheduled sale.
NOTICE TO TENANT: You may have a right to purchase this property after the trustee auction pursuant to Section 2924m of the California Civil Code. If you are an “eligible tenant buyer,” you can purchase the property if you match the last and highest bid placed at the trustee auction. If you are an “eligible bidder,” you may be able to purchase the property if you exceed the last and highest bid placed at the trustee auction. There are three steps to exercising this right of purchase. Step one, 48 hours after the date of the trustee sale, you can call (866) 2667512, or visit this internet website www.elitepostandpub. com using the le number assigned to this case TS# 2424042 to nd the date on which the trustee’s sale was held, the amount of the last and highest bid, and the address of the trustee. Step two, you must send a written notice of intent to place a bid (“NOI”) accompanied by an a davit or declaration in accordance with Civil Code Section 2924m(c)(2)(A)(B)(C)(D) so that the trustee receives it no later than 5 p.m. on the 15th day after the trustee’s sale. Step three, you must submit a written bid along with the funds constituting the bid payable in lawful money of the United States, in the form of cash, a cashier’s check drawn on a state or national bank, check drawn by a state or federal credit union, or a check drawn by a state or federal savings and loan association, or savings association, or savings bank speci ed in Section 5102 of the Financial Code and authorized to do business in this state so that the trustee receives the bid and the funds no later than 5 p.m. on the 45th day after the trustee’s sale. Bids will only be accepted from an eligible tenant buyer or eligible bidder who has submitted a timely NOI per Step two above. If you think you may qualify as an “eligible tenant buyer” or “eligible bidder,” you should consider contacting an attorney or appropriate real estate professional immediately for advice regarding this potential right to purchase.The bene ciary under said Deed of Trust heretofore executed and delivered to the undersigned a written Declaration of Default and Demand for Sale, and a Written Notice of Default and Election to Sell. The Notice of Default and Election to Sell was recorded in the county where the real property is located, and more than three months have elapsed since such recordation. OFFICE VISITS ARE BY APPOINTMENT ONLY, NO WALK INS CAN BE ACCOMMODATED. PLEASE CALL FIRST. Date: 7/15/2024 WE ARE A DEBT COLLECTOR ATTEMPTING TO COLLECT A DEBT. ANY INFORMATION OBTAINED WILL BE USED FOR THAT PURPOSE. Best Alliance Foreclosure and Lien Services Corp., as Trustee 16133 Ventura Blvd., Suite 700 Encino, California 91436 For Payo /Reinstatement: (888) 785-9721 Sales Line: (866) 266-7512 or www. elitepostandpub.com Cindy Sandoval for Best Alliance EPP 40645 Pub Dates 07/19, 07/26, 08/02/2024 CN 29197 NOTICE OF TRUSTEE’S SALE T.S.
AGAINST YOU, YOU SHOULD CONTACT A LAWYER. A public auction sale to the highest bidder for cash, (cashier’s check(s) must be made payable to National Default Servicing Corporation), drawn on a state or national bank, a check drawn by a state or federal credit union, or a check drawn by a state or federal savings and loan association, savings association, or savings bank speci ed in Section 5102 of the Financial Code and authorized to do business in this state; will be held by the duly appointed trustee as shown below, of all right, title, and interest conveyed to and now held by the trustee in the hereinafter described property under and pursuant to a Deed of Trust described below. The sale will be made in an “as is” condition, but without covenant or warranty, expressed or implied, regarding title, possession, or encumbrances, to pay the remaining principal sum of the note(s) secured by the Deed of Trust, with interest and late charges thereon, as provided in the note(s), advances, under the terms of the Deed of Trust, interest thereon, fees, charges and expenses of the Trustee for the total amount (at the time of the initial publication of the Notice of Sale) reasonably estimated to be set forth below. The amount may be greater on the day of sale. Trustor: Robert A. Rees and Liliana Rees, Husband and Wife as Joint Tenants Duly Appointed Trustee: National Default Servicing Corporation Recorded 01/11/2006 as Instrument No. 2006-0021175 (or Book, Page) of the O cial Records of San Diego County, California. Date of Sale: : 08/23/2024 at 9:00 AM Place of Sale: Entrance of the East County Regional Center, East County Regional Center, 250 E. Main Street, El Cajon, CA 92020
Estimated amount of unpaid balance and other charges: $1,060,419.92 Street Address or other common designation of real property: 6379 Paseo Potrero Rd, Carlsbad, CA 92009 A.P.N.: 222-590-0900 The undersigned Trustee disclaims any liability for any incorrectness of the street address or other common designation, if any, shown above. If no street address or other common designation is shown, directions to the location of the property may be obtained by sending a written request to the bene ciary within 10 days of the date of rst publication of this Notice of Sale. If the Trustee is unable to convey title for any reason, the successful bidder’s sole and exclusive remedy shall be the return of monies paid to the Trustee, and the successful bidder shall have no further recourse. The requirements of California Civil Code Section 2923.5(b)/2923.55(c) were ful lled when the Notice of Default was recorded. NOTICE TO POTENTIAL BIDDERS:
If you are considering bidding on this property lien, you should understand that there are risks involved in bidding at a trustee auction. You will be bidding on a lien, not on the property itself. Placing the highest bid at a trustee auction does not automatically entitle you to free and clear ownership of the property. You should also be aware that the lien being auctioned o may be a junior lien. If you are the highest bidder at the auction, you are or may be responsible for paying o all liens senior to the lien being auctioned o , before you can receive clear title to the property. You are encouraged to investigate the existence, priority, and size of outstanding liens that may exist on this property by contacting the county recorder’s o ce or a title insurance company, either of which may charge

CITY OF ENCINITAS
DEVELOPMENT SERVICES DEPARTMENT
LEGAL NOTICE OF PUBLIC HEARINGS BY THE PLANNING COMMISSION PLACE OF MEETING:
Council Chambers, Civic Center 505 S. Vulcan Avenue Encinitas, CA 92024
IN COMPLIANCE WITH THE AMERICANS WITH DISABILITIES ACT/SECTION 504 REHABILITATION ACT OF 1973 AND TITLE VI, THIS AGENCY IS AN EQUAL OPPORTUNITY PUBLIC ENTITY AND DOES NOT DISCRIMINATE ON THE BASIS OF RACE, COLOR, ETHNIC ORIGIN, NATIONAL ORIGIN, SEX, RELIGION, VETERANS STATUS OR PHYSICAL OR MENTAL DISABILITY IN EMPLOYMENT OR THE PROVISION OF SERVICE. IF YOU REQUIRE SPECIAL ASSISTANCE TO PARTICIPATE IN THIS MEETING, PLEASE CONTACT THE DEVELOPMENT SERVICES DEPARTMENT AT (760) 633-2710 AT LEAST 72 HOURS PRIOR TO THE MEETING.
It is hereby given that a Public Hearing will be held on Thursday, the 1st day of August 2024, at 6 p.m., or as soon as possible thereafter, by the Encinitas Planning Commission to discuss the following hearing items of the City of Encinitas: 1. PROJECT NAME: American Legion, Post 416; CASE NUMBER: MULTI-003345-2019, VRNC-003349-2019, USE-003348-2019, DR-0033472019, CDP-003346-2019; FILING DATE: 9/10/2019; APPLICANT: Bart Smith, DZN Architects; LOCATION: 210 W F St (APN 258-165-08-00); PROJECT DESCRIPTION: Major Use Permit, Design Review Permit, Variance, and Coastal Development Permit for the demolition of all existing structures onsite, the construction of a new commercial two-story building with associated site grading and landscaping improvements, authorize the Private Club land use in the D-CM-2 zone and authorize a Type 52 ABC License to support the operations of a Veterans Club; ZONING/OVERLAY: Downtown Encinitas Speci c Plan Commercial Mixed 1 (D-CM-1) and Coastal Zone; ENVIRONMENTAL STATUS: The project has been determined to be exempt from environmental review pursuant to California Environmental Quality Act (CEQA) Guidelines Sections 15301(l) (Class 1 – Existing Facilities) and Section 15303 (c) (Class 3 – New Construction or Conversion of small facilities). Section 15301(l) exempts demolition of existing small commercial structures and Section 15303(c) exempts a store, motel, o ce, restaurant or similar structure not exceeding 10,000 square feet in oor area on sites zoned for such use, if not involving the use of signi cant amounts of hazardous substances where all necessary public services and facilities are available, and the surrounding area is not environmentally sensitive. The project proposes a demolition and construction of the existing American legion Commercial building, a proposed construction of 4,237 square feet in an urban area. Therefore, the project meets the criteria for the exemptions.
STAFF CONTACT: Fran Carr, Associate Planner: (760) 633-2738 or fcarr@encinitasca.gov
2. PROJECT NAME: Breakers Café Bar & Grill; CASE NUMBER: MULTI-006254-2023, DR-006255-2023, USE-006256-2023, CDPNF-006260-2023; FILING DATE: May 16, 2023; APPLICANT: Benji Weatherley, Breakers LLC; LOCATION: 481 Santa Fe Drive (APN 260-640-29); PROJECT DESCRIPTION: Public hearing to consider a Minor Use Permit, Design Review Permit and Coastal Development Permit for a new alcohol serving restaurant, including a 2,278-square foot outdoor patio dining areas, live entertainment, 300 sq. ft. bar, an ABC Type 47 license, and site improvements; ZONING/OVERLAY: The subject property is located in General Commercial Zone and the Coastal, Special Study, and Scenic/Visual Corridor overlay zones; ENVIRONMENTAL STATUS: The project is categorically exempt pursuant to California Environmental Quality Act (CEQA) Guidelines Section 15301 (e), which exempts the additions to existing structures. The project meets the criteria of the guidelines section. The project will not impact any historic resources and none of the exceptions in Section 15300.2 exists.
STAFF CONTACT: Christina Bustamante, AICP, Senior Planner, cbustamante@ encinitasca.gov or 760-943-2207.
An appeal of the Planning Commission determination, accompanied by the appropriate ling fee, may be led by 5 p.m. on the 10th calendar day following the date of the Commission’s determination. Appeals will be considered by the City Council pursuant to Chapter 1.12 of the Municipal Code. Any ling of an appeal will suspend this action as well as any processing of permits in reliance thereon in accordance with Encinitas Municipal Code Section 1.12.020(D)(1) until such time as an action is taken on the appeal.
The above items are located within the Coastal Zone and requires issuance of a regular Coastal Development Permit. The action of the Planning Commission or City Council on an appeal may not be appealed to the California Coastal Commission for these items.
Under California Government Code Section 65009, if you challenge the nature of the proposed action in court, you may be limited to raising only the issues you or someone else raised regarding the matter described in this notice or written correspondence delivered to the City at or before the time and date of the determination.
For further information, or to review the applications prior to the hearing, please contact sta or contact the Development Services Department, 505 South Vulcan Avenue, Encinitas, CA 92024 at (760) 633-2710 or by email at planning@encinitasca.gov
07/19/2024 CN 29198

July 15, 2024
you a fee for this information. If you consult either of these resources, you should be aware that the same lender may hold more than one mortgage or deed of trust on the property.
NOTICE TO PROPERTY OWNER: The sale date shown on this notice of sale may be postponed one or more times by the mortgagee, bene ciary, trustee, or a court, pursuant to Section 2924g of the California Civil Code. The law requires that information about trustee sale postponements be made available to you and to the public, as a courtesy to those not present at the sale. If you wish to learn whether your sale date has been postponed, and, if applicable, the rescheduled time and date for the sale of this property, you may call
800-280-2832 or visit this internet website www.ndscorp. com/sales, using the le number assigned to this case 22-20017-SP-CA. Information about postponements that are very short in duration or that occur close in time to the scheduled sale may not immediately be re ected in the telephone information or on the internet website. The best way to verify postponement information is to attend the scheduled sale. NOTICE TO TENANT*: You may have a right to purchase this property after the trustee auction pursuant to Section 2924m of the California Civil Code. If you are a “representative of all eligible tenant buyers” you may be able to purchase the property if you match the
last and highest bid placed at the trustee auction. If you are an “eligible bidder,” you may be able to purchase the property if you exceed the last and highest bid placed at the trustee auction. There are three steps to exercising this right of purchase. First, 48 hours after the date of the trustee sale, you can call 888-264-4010, or visit this internet website www. ndscorp.com, using the le number assigned to this case 22-20017-SP-CA to nd the date on which the trustee’s sale was held, the amount of the last and highest bid, and the address of the trustee. Second, you must send a written notice of intent to place a bid so that the trustee receives it no more than 15 days after the trustee’s sale. Third, you must submit a
CITY OF CARLSBAD
NOTICE OF FINDING OF NO SIGNIFICANT IMPACT AND NOTICE OF INTENT TO REQUEST A RELEASE OF FUNDS
City of Carlsbad 1200 Carlsbad Village Drive Carlsbad, CA, 92008 442-339-2810
These notices shall satisfy two separate but related procedural requirements for activities to be undertaken by the City of Carlsbad, California.
REQUEST FOR RELEASE OF FUNDS
On or about August 21, 2024, the City of Carlsbad will submit a request to HUD for the release of Community Project Funding (CPF) funds under the Consolidated Appropriations Act, 2023 (Public Law 117-328), to undertake a project known as Veteran’s Memorial Park for the purpose of developing a new public park. The proposed Veteran’s Memorial Park will improve a vacant site with a family-oriented and multi-generational park inclusive amenity that are incorporated into active and passive recreational elements. The project has a total estimated cost of $54,550,000, including an estimated $3,000,000 of Community Project Funding funds. The Veteran’s Memorial Park project will be located on a vacant site comprised of 91.5 acres of which 48 acres are developable; the remainder of the site is dedicated for protected habitat. The project is located southeast of the intersection of Faraday Avenue and Whitman Way, Assessor’s Parcel Number 212-271-0300.
FINDING OF NO SIGNIFICANT IMPACT
The City of Carlsbad has determined that the project will have no signi cant impact on the human environment. Therefore, an Environmental Impact Statement under the National Environmental Policy Act of 1969 (NEPA) is not required. Additional project information is contained in the Environmental Review Record (ERR). The ERR will be made available to the public for review electronically on the City of Carlsbad website at: https:// www.carlsbadca.gov/departments/parks-recreation/parks-community-centers/parks/future-park-planning/veterans-memorial-park by clicking on “What the latest.” If you do not have access to the internet, you may contact Senior Program Manager Nicole Piano-Jones at the phone number below to request a copy of the ERR. The city has a limited number of physical copies of the ERR that are available for persons who do not have access to a computer by contacting Nicole Piano-Jones at the email or phone number below. Sta will arrange a time that the physical copy will be provided to you for pick-up at the designated location outside the City of Carlsbad Housing and Homeless Service Department, 1200 Carlsbad Village Drive, Carlsbad, California, 92008. Please submit your request to: nicole. pianojones@carlsbadca.gov, or (442) 339-2191.
PUBLIC COMMENTS
Any individual, group, or agency may submit written comments on the ERR to the City of Carlsbad by mail to:
City of Carlsbad Housing & Homeless Services Department 1200 Carlsbad Village Drive Carlsbad, CA 92008
Or email: nicole.pianojones@carlsbadca.gov
All comments received by August 19, 2024, will be considered by the City of Carlsbad prior to authorizing submission of a request for release of funds. Comments should specify which Notice they are addressing.
ENVIRONMENTAL CERTIFICATION
The City of Carlsbad certi es to HUD that Mandy Mills in her capacity as Director of the Housing and Homeless Services Department consents to accept the jurisdiction of the Federal Courts if an action is brought to enforce responsibilities in relation to the environmental review process and that these responsibilities have been satis ed. HUD’s approval of the certi cation satis es its responsibilities under NEPA and related laws and authorities and allows the City of Carlsbad to use Program funds.
OBJECTIONS TO RELEASE OF FUNDS
HUD will accept objections to its release of funds and the City of Carlsbad’s certi cation for a period of fteen days following the anticipated submission date or its actual receipt of the request (whichever is later) only if they are on one of the following bases: (a) the certi cation was not executed by the Certifying O cer of the City of Carlsbad; (b) the City of Carlsbad has omitted a step or failed to make a decision or nding required by HUD regulations at 24 CFR part 58; (c) the grant recipient or other participants in the development process have committed funds, incurred costs or undertaken activities not authorized by 24 CFR Part 58 before approval of a release of funds by HUD; or (d) another Federal agency acting pursuant to 40 CFR Part 1504 has submitted a written nding that the project is unsatisfactory from the standpoint of environmental quality. Objections must be prepared and submitted in accordance with the required procedures (24 CFR Part 58, Sec. 58.76) and shall be addressed via (1) physical address to the HUD O ce of Community Planning and Development, Los Angeles Field O ce, 300 N. Los Angeles St., Ste. 4054, Los Angeles, CA 90012 or (2) email the HUD Los Angeles O ce of Community Planning and Development at CPDLA@hud.gov. Potential objectors should contact the HUD Los Angeles O ce of Community Planning and Development via email at CPDLA@hud.gov to verify the actual last day of the objection period.
Mandy Mills, Director of Housing & Homeless Services Department
City of Carlsbad
Certifying O cer
PUBLISH: Friday, July 19, 2024
CITY OF CARLSBAD
bid so that the trustee receives it no more than 45 days after the trustee’s sale. If you think you may qualify as a “representative of all eligible tenant buyers” or “eligible bidder,” you should consider contacting an attorney or appropriate real estate professional immediately for advice regarding this potential right to purchase. *Pursuant to Section 2924m of the California
Civil Code, the potential rights described herein shall apply only to public auctions taking place on or after January 1, 2021, through December 31, 2025, unless later extended. Date: 07/12/2024 National Default Servicing Corporation c/o Ti any and Bosco, P.A., its agent, 1455 Frazee Road, Suite 820 San Diego, CA 92108 Toll Free Phone: 888264-4010 Sales Line 800-280-
2832;
07/19/2024

CITY OF CARLSBAD
NOTICE OF PUBLIC HEARING
NOTICE IS HEREBY GIVEN to you, because your interest may be a ected, that the City Council of the City of Carlsbad will hold a public hearing at the Council Chamber, 1200 Carlsbad Village Drive, Carlsbad, California, at 5 p.m. on Tuesday, July 30, 2024, to consider a series of amendments to the city’s Municipal Code as part of a bi-annual e ort, the Zone Code Clean Up, to maintain the city’s code.
The 2024 Zone Code Clean Up is part of the Planning Division’s work program to maintain the Carlsbad Municipal Code (CMC) for ease of use and accuracy. The Zone Code Clean Up consists of miscellaneous amendments to Titles 8, 11, 15 and 21 of the city’s code, including the Zoning Ordinance. These amendments include corrections and updates for the purpose of addressing inconsistencies, updated terminology, and new state regulations. Additionally, the Zone Code Clean Up is proposed for the purpose of adding or deleting minor requirements and improving the overall clarity and usability of the code. The proposed amendments apply citywide and do not change allowable uses or intensities.
On May 15, 2024, the City of Carlsbad Planning Commission voted 5/0/1 (La erty absent) to recommend approval of a Zoning Ordinance Amendment and Local Coastal Program Amendment to Title 21 (the Zoning Ordinance). Amendments to Titles 8, 11 and 15 are not subject to the Planning Commission’s authority, although information on these proposed changes was provided to the Planning Commission for informational purposes. The City Planner has determined that the project is exempt from the provisions of the California Environmental Quality Act (CEQA) in accordance with CEQA Guidelines Section 15061(B)(3).
Those persons wishing to speak on this item are cordially invited to attend the public hearing. Copies of the sta report will be available on and after Friday, July 26, 2024. If you have any questions, please contact Nicole Morrow in the Planning Division at 442-339-5438 or nicole. morrow@carlsbadca.gov. The meeting can be viewed online at https://www.carlsbadca.gov/ city-hall/meetings-agendas or on the city’s cable channel. In addition, written comments may be submitted to the City Council at or prior to the hearing via U.S. Mail to the attention of Ofce of the City Clerk, 1200 Carlsbad Village Drive, Carlsbad, CA 92008, or via email to clerk@ carlsbadca.gov
If you challenge the Zone Code Amendment, Municipal Code Amendment or Local Coastal Program Amendment in court, you may be limited to raising only those issues you or someone else raised at the public hearing described in this notice or in written correspondence delivered to the City of Carlsbad, Attn: City Clerk’s O ce, 1200 Carlsbad Village Drive, Carlsbad, CA 92008, at or prior to the public hearing.
CASE FILE: ZCA 2024-0001, MCA 2024-0001, LCPA 2024-0020 (PUB 2024-0005)
CASE NAME: 2024 ZONE CODE CLEAN UP
PUBLISH: FRIDAY, JULY 19, 2024
CITY OF CARLSBAD CITY COUNCIL
Coast News legals continued from 11
T.S. No.: 2023-01182-CA
A.P.N.: 272-661-14-00 Property Address: 728
INSPIRATION LANE, ESCONDIDO, CA 92025 NOTICE OF TRUSTEE’S SALE
PURSUANT TO CIVIL CODE § 2923.3(a) and (d), THE SUMMARY OF INFORMATION REFERRED TO BELOW IS NOT ATTACHED TO THE RECORDED COPY OF THIS DOCUMENT BUT ONLY TO THE COPIES PROVIDED TO THE TRUSTOR.
NOTE: THERE IS A SUMMARY OF THE INFORMATION IN THIS DOCUMENT ATTACHED
本文件包含一个信息摘要 참고사항: 본 첨부 문서에 정보 요약서가 있습니다 NOTA: SE ADJUNTA UN RESUMEN DE LA INFORMACIÓN DE ESTE DOCUMENTO TALA: MAYROONG BUOD NG IMPORMASYON SA DOKUMENTONG ITO NA NAKALAKIP LƯU Ý: KÈM THEO ĐÂY LÀ BẢN TRÌNH BÀY TÓM LƯỢC VỀ THÔNG TIN TRONG TÀI LIỆU NÀY
IMPORTANT NOTICE TO PROPERTY OWNER: YOU ARE IN DEFAULT UNDER A DEED OF TRUST DATED 10/10/2005. UNLESS YOU TAKE ACTION TO PROTECT YOUR PROPERTY, IT MAY BE SOLD AT A PUBLIC SALE. IF YOU NEED AN EXPLANATION OF THE NATURE OF THE PROCEEDING AGAINST YOU, YOU SHOULD CONTACT A LAWYER.
Trustor: DAVID WILLIAMS and SUSAN C. WILLIAMS, husband and wife
Duly Appointed Trustee: Western Progressive, LLC Deed of Trust Recorded 10/14/2005 as Instrument No. 2005-0893406 in book , page--- and of O cial Records in the o ce of the Recorder of
San Diego County, California, Date of Sale: 08/28/2024 at 10:30 AM
Place of Sale: AT THE ENTRANCE TO THE EAST COUNTY REGIONAL CENTER BY THE STATUE, 250 E. MAIN STREET, EL CAJON, CA 92020
Estimated amount of unpaid balance, reasonably estimated costs and other charges: $ 567,090.09
NOTICE OF TRUSTEE’S SALE THE TRUSTEE WILL SELL AT PUBLIC AUCTION TO HIGHEST BIDDER FOR CASH, CASHIER’S CHECK DRAWN ON A STATE OR NATIONAL BANK, A CHECK DRAWN BY A STATE OR FEDERAL CREDIT UNION, OR A CHECK DRAWN BY A STATE OR FEDERAL SAVINGS AND LOAN ASSOCIATION, A SAVINGS ASSOCIATION OR SAVINGS BANK SPECIFIED IN SECTION 5102 OF THE FINANCIAL CODE AND AUTHORIZED TO DO BUSINESS IN THIS STATE:
All right, title, and interest conveyed to and now held by the trustee in the hereinafter described property under and pursuant to a Deed of Trust described as: More fully described in said Deed of Trust.
Street Address or other common designation of real property: 728 INSPIRATION LANE, ESCONDIDO, CA 92025
A.P.N.: 272-661-14-00
The undersigned Trustee disclaims any liability for any incorrectness of the street address or other common designation, if any, shown above.
The sale will be made, but without covenant or warranty, expressed or implied, regarding title, possession, or encumbrances, to pay the remaining principal sum of the note(s) secured by the Deed of Trust with interest thereon, as provided in said note(s), advances, under the terms of said Deed of Trust, fees, charges

07/19/2024 CN 29190
and expenses of the Trustee and of the trusts created by said Deed of Trust. The total amount of the unpaid balance of the obligation secured by the property to be sold and reasonable estimated costs, expenses and advances at the time of the initial publication of the Notice of Sale is: $ 567,090.09
Note: Because the Bene ciary reserves the right to bid less than the total debt owed, it is possible that at the time of the sale the opening bid may be less than the total debt.
If the Trustee is unable to convey title for any reason, the successful bidder’s sole and exclusive remedy shall be the return of monies paid to the Trustee, and the successful bidder shall have no further recourse.
The bene ciary of the Deed of Trust has executed and delivered to the undersigned a written request to commence foreclosure, and the undersigned caused a Notice of Default and Election to Sell to be recorded in the county where the real property is located.
NOTICE OF TRUSTEE’S SALE
NOTICE TO POTENTIAL
BIDDERS: If you are considering bidding on this property lien, you should understand that there are risks involved in bidding at a trustee auction. You will be bidding on a lien, not on the property itself. Placing the highest bid at a trustee auction does not automatically entitle you to free and clear ownership of the property. You should also be aware that the lien being auctioned o may be a junior lien. If you are the highest bidder at the auction, you are or may be responsible for paying o all liens senior to the lien being auctioned o , before you can receive clear title to the property. You are encouraged to investigate the existence, priority, and size of outstanding liens that may exist on this property by contacting the county recorder’s o ce or a title insurance company, either of
CITY OF CARLSBAD
NOTICE OF PUBLIC HEARING
NOTICE IS HEREBY GIVEN, that the City Council of the City of Carlsbad will hold a public hearing on Tuesday, July 30, 2024, at 5 p.m., at the Council Chamber, 1200 Carlsbad Village Drive, Carlsbad, California, to hear objections of property owners concerning costs of weed abatement activity on private properties, to approve cost assessments for weed abatement activity, and to direct the City Clerk to le a certi ed copy of the Hazard Reduction Resolution with the San Diego County Auditor before Aug. 10, 2024.
Those persons wishing to speak on this proposal are cordially invited to attend the public hearing. The sta report will be available on and after Friday, July 26, 2024. If you have any questions, please contact Randy Metz, Fire Marshal, at (442) 339-2661 or randy.metz@ carlsbadca.gov. The meeting can be viewed online at https://www.carlsbadca.gov/city-hall/ meetings-agendas or on the City’s cable channel. In addition, written comments may be submitted to the City Council at or prior to the hearing via U.S. Mail to the attention of O ce of the City Clerk, 1200 Carlsbad Village Drive, Carlsbad, CA 92008, or via email to clerk@carlsbadca.gov
If you challenge the Hazard Reduction Program in court, you may be limited to only raising issues presented at the public hearing described in this notice or in written correspondence delivered prior to the public hearing to the City of Carlsbad, Attn: City Clerk’s O ce, 1200 Carlsbad Village Drive, Carlsbad, CA 92008.
PUBLISH DATE: FRIDAY, JULY 19, 2024
CITY OF CARLSBAD | CITY COUNCIL
which may charge you a fee for this information. If you consult either of these resources, you should be aware that the same lender may hold more than one mortgage or deed of trust on this property.
NOTICE TO PROPERTY
OWNER: The sale date shown on this notice of sale may be postponed one or more times by the mortgagee, bene ciary, trustee, or a court, pursuant to Section 2924g of the California Civil Code. The law requires that information about trustee sale postponements be made available to you and to the public, as a courtesy to those not present at the sale. If you wish to learn whether your sale date has been postponed, and, if applicable, the rescheduled time and date for the sale of this property, you may call (866)-960-8299 or visit this Internet Web site https://www. altisource.com/loginpage. aspx using the le number assigned to this case 202301182-CA. Information about postponements that are very short in duration or that occur close in time to the scheduled sale may not immediately be re ected in the telephone information or on the Internet Web site. The best way to verify postponement information is to attend the scheduled sale.
NOTICE OF TRUSTEE’S SALE
NOTICE TO TENANT: You may have a right to purchase this property after the trustee auction, if conducted after January 1, 2021, pursuant to Section 2924m of the California Civil Code. If you are an “eligible tenant buyer,” you can purchase the property if you match the last and highest bid placed at the trustee auction. If you are an “eligible bidder,” you may be able to purchase the property if you exceed the last and highest bid placed at the trustee auction. There are three steps to exercising this right of purchase. First, 48 hours after the date of the trustee sale, you can call (877)-518-5700, or visit this internet website https://www. realtybid.com/, using the le number assigned to this case 2023-01182-CA to nd the date on which the trustee’s sale was held, the amount of the last and highest bid, and the address of the trustee. Second, you must send a written notice of intent to place a bid so that the trustee receives it no more than 15 days after the trustee’s sale. Third, you must submit a bid, by remitting the funds and a davit described in Section 2924m(c) of the Civil Code, so that the trustee receives it no more than 45 days after the trustee’s sale. If you think you may qualify as an “eligible tenant buyer” or “eligible bidder,” you should
consider contacting an attorney or appropriate real estate professional immediately for advice regarding this potential right to purchase.
Date: July 11, 2024 Western Progressive, LLC, as Trustee for bene ciary C/o 1500 Palma Drive, Suite 238 Ventura, CA 93003 Sale Information Line: (866) 960-8299 https://www. altisource.com/loginpage.aspx Trustee Sale Assistant BCNS # 231532 07/19/2024, 07/26/2024, 08/02/2024 CN 29182
T.S. No. 119080-CA APN: 122-540-42-00 NOTICE OF TRUSTEE’S SALE IMPORTANT NOTICE TO PROPERTY OWNER: YOU ARE IN DEFAULT UNDER A DEED OF TRUST, DATED 5/17/2006. UNLESS YOU TAKE ACTION TO PROTECT YOUR PROPERTY, IT MAY BE SOLD AT A PUBLIC SALE. IF YOU NEED AN EXPLANATION OF THE NATURE OF THE PROCEEDING AGAINST YOU, YOU SHOULD CONTACT A LAWYER On 8/26/2024 at 10:30 AM, CLEAR RECON CORP, as duly appointed trustee under and pursuant to Deed of Trust recorded 5/22/2006 as Instrument No. 20060360495 of O cial Records in the o ce of the County Recorder of San Diego County, State of CALIFORNIA executed by: GEORGE DALA AND DEBBIE L. DALA, HUSBAND AND WIFE WILL SELL AT PUBLIC AUCTION TO HIGHEST BIDDER FOR CASH, CASHIER’S CHECK DRAWN ON A STATE OR NATIONAL BANK, A CHECK DRAWN BY A STATE OR FEDERAL CREDIT UNION, OR A CHECK DRAWN BY A STATE OR FEDERAL SAVINGS AND LOAN ASSOCIATION, SAVINGS ASSOCIATION, OR SAVINGS BANK SPECIFIED IN SECTION 5102 OF THE FINANCIAL CODE AND AUTHORIZED TO DO BUSINESS IN THIS STATE; AT THE MAIN ENTRANCE TO THE EAST COUNTY REGIONAL CENTER BY STATUE, 250 E. MAIN STREET, EL CAJON, CA 92020 all right, title and interest conveyed to and now held by it under said Deed of Trust in the property situated in said County and State described as: MORE ACCURATELY DESCRIBED IN SAID DEED OF TRUST. The street address and other common designation, if any, of the real property described above is purported to be: 5547 NANDAY CT, OCEANSIDE,
that information about trustee sale postponements be made available to you and to the public, as a courtesy to those not present at the sale. If you wish to learn whether your sale date has been postponed, and, if applicable, the rescheduled time and date for the sale of this property, you may call (855) 313-3319 or visit this Internet website www.clearreconcorp. com, using the le number assigned to this case 119080CA. Information about postponements that are very short in duration or that occur close in time to the scheduled sale may not immediately be re ected in the telephone information or on the Internet Web site. The best way to verify postponement information is to attend the scheduled sale.
07/19/2024 CN 29189
CA 92057 The undersigned Trustee disclaims any liability for any incorrectness of the street address and other common designation, if any, shown herein. Said sale will be held, but without covenant or warranty, express or implied, regarding title, possession, condition, or encumbrances, including fees, charges and expenses of the Trustee and of the trusts created by said Deed of Trust, to pay the remaining principal sums of the note(s) secured by said Deed of Trust. The total amount of the unpaid balance of the obligation secured by the property to be sold and reasonable estimated costs, expenses and advances at the time of the initial publication of the Notice of Sale is: $669,769.54 If the Trustee is unable to convey title for any reason, the successful bidder’s sole and exclusive remedy shall be the return of monies paid to the Trustee, and the successful bidder shall have no further recourse. The bene ciary under said Deed of Trust heretofore executed and delivered to the undersigned a written Declaration of Default and Demand for Sale, and a written Notice of Default and Election to Sell. The undersigned or its predecessor caused said Notice of Default and Election to Sell to be recorded in the county where the real property is located. NOTICE TO POTENTIAL BIDDERS:
If you are considering bidding on this property lien, you should understand that there are risks involved in bidding at a trustee auction. You will be bidding on a lien, not on the property itself. Placing the highest bid at a trustee auction does not automatically entitle you to free and clear ownership of the property. You should also be aware that the lien being auctioned o may be a junior lien. If you are the highest bidder at the auction, you are or may be responsible for paying o all liens senior to the lien being auctioned o , before you can receive clear title to the property. You are encouraged to investigate the existence, priority, and size of outstanding liens that may exist on this property by contacting the county recorder’s o ce or a title insurance company, either of which may charge you a fee for this information.
If you consult either of these resources, you should be aware that the same lender may hold more than one mortgage or deed of trust on the property.
NOTICE TO PROPERTY OWNER: The sale date shown on this notice of sale may be postponed one or more times by the mortgagee, bene ciary, trustee, or a court, pursuant to Section 2924g of the California Civil Code. The law requires
NOTICE TO TENANT: E ective January 1, 2021, you may have a right to purchase this property after the trustee auction pursuant to Section 2924m of the California Civil Code. If you are an “eligible tenant buyer,” you can purchase the property if you match the last and highest bid placed at the trustee auction. If you are an “eligible bidder,” you may be able to purchase the property if you exceed the last and highest bid placed at the trustee auction. There are three steps to exercising this right of purchase. First, 48 hours after the date of the trustee sale, you can call (855) 313-3319, or visit this internet website www. clearreconcorp.com, using the le number assigned to this case 119080-CA to nd the date on which the trustee’s sale was held, the amount of the last and highest bid, and the address of the trustee. Second, you must send a written notice of intent to place a bid so that the trustee receives it no more than 15 days after the trustee’s sale. Third, you must submit a bid so that the trustee receives it no more than 45 days after the trustee’s sale. If you think you may qualify as an “eligible tenant buyer” or “eligible bidder,” you should consider contacting an attorney or appropriate real estate professional immediately for advice regarding this potential right to purchase. FOR SALES INFORMATION: (844) 4777869 CLEAR RECON CORP 3333 Camino Del Rio South, Suite 225 San Diego, California 92108 STOX 946054_119080CA 07/19/2024, 07/26/2024, 08/02/2024 CN 29175
T.S. No. 122384-CA APN: 161-424-24-00 NOTICE OF TRUSTEE’S SALE IMPORTANT NOTICE TO PROPERTY OWNER: YOU ARE IN DEFAULT UNDER A DEED OF TRUST, DATED 7/1/2022. UNLESS YOU TAKE ACTION TO PROTECT YOUR PROPERTY, IT MAY BE SOLD AT A PUBLIC SALE. IF YOU NEED AN EXPLANATION OF THE NATURE OF THE PROCEEDING AGAINST YOU, YOU SHOULD CONTACT A LAWYER On 8/23/2024 at 9:00 AM, CLEAR RECON CORP, as duly appointed trustee under and pursuant to Deed of Trust recorded 7/6/2022 as Instrument No. 2022-0275342 of O cial Records in the o ce of the County Recorder of San Diego County, State of CALIFORNIA executed by: JAMES DELEE JR, AN UNMARRIED MAN WILL SELL AT PUBLIC AUCTION TO HIGHEST BIDDER FOR CASH, CASHIER’S CHECK DRAWN ON A STATE OR NATIONAL BANK, A CHECK DRAWN BY A STATE OR FEDERAL CREDIT UNION, OR A CHECK DRAWN BY A STATE OR FEDERAL SAVINGS AND LOAN ASSOCIATION, SAVINGS ASSOCIATION, OR SAVINGS BANK SPECIFIED IN SECTION 5102 OF THE FINANCIAL
CODE AND AUTHORIZED TO DO BUSINESS IN THIS STATE; ENTRANCE OF THE EAST COUNTY REGIONAL CENTER, 250 E. MAIN STREET, EL CAJON, CA 92020 all right, title and interest conveyed to and now held by it under said Deed of Trust in the property situated in said County and State described as: MORE ACCURATELY
DESCRIBED IN SAID
DEED OF TRUST. The street address and other common designation, if any, of the real property described above is purported to be: 4554 ROYAL OAK DRIVE, OCEANSIDE, CA 92056 The undersigned Trustee disclaims any liability for any incorrectness of the street address and other common designation, if any, shown herein. Said sale will be held, but without covenant or warranty, express or implied, regarding title, possession, condition, or encumbrances, including fees, charges and expenses of the Trustee and of the trusts created by said Deed of Trust, to pay the remaining principal sums of the note(s) secured by said Deed of Trust. The total amount of the unpaid balance of the obligation secured by the property to be sold and reasonable estimated costs, expenses and advances at the time of the initial publication of the Notice of Sale is: $527,291.70 If the Trustee is unable to convey title for any reason, the successful bidder’s sole and exclusive remedy shall be the return of monies paid to the Trustee, and the successful bidder shall have no further recourse. The bene ciary under said Deed of Trust heretofore executed and delivered to the undersigned a written Declaration of Default and Demand for Sale, and a written Notice of Default and Election to Sell. The undersigned or its predecessor caused said Notice of Default and Election to Sell to be recorded in the county where the real property is located.
NOTICE TO POTENTIAL BIDDERS:
If you are considering bidding on this property lien, you should understand that there are risks involved in bidding at a trustee auction. You will be bidding on a lien, not on the property itself. Placing the highest bid at a trustee auction does not automatically entitle you to free and clear ownership of the property. You should also be aware that the lien being auctioned o may be a junior lien. If you are the highest bidder at the auction, you are or may be responsible for paying o all liens senior to the lien being auctioned o , before you can receive clear title to the property. You are encouraged to investigate the existence, priority, and size of outstanding liens that may exist on this property by contacting the county recorder’s o ce or a title insurance company, either of which may charge you a fee for this information. If you consult either of these resources, you should be aware that the same lender may hold more than one mortgage or deed of trust on the property.
NOTICE TO PROPERTY
OWNER: The sale date shown on this notice of sale may be postponed one or more times by the mortgagee, bene ciary, trustee, or a court, pursuant to Section 2924g of the California Civil Code. The law requires that information about trustee sale postponements be made available to you and to the public, as a courtesy to those not present at the sale. If you wish to learn whether your sale date has been postponed, and, if applicable, the rescheduled time and date for the sale of this property, you may call (855) 313-3319 or visit this Internet website www.clearreconcorp. com, using the le number assigned to this case 122384CA. Information about postponements that are very

Notice of Intent to Adopt a Mitigated
Notice is hereby given that the California State University has completed an Initial Study and Mitigated Negative Declaration in accordance with the California Environmental Quality Act for the project described below.
Project Title: California State University, San Marcos (CSUSM) Integrated Science and Engineering (IS&E) Building Project
Project Description: CSUSM is proposing to construct an IS&E building project with a combined 125,000 square feet on a 2.46-acre site and an approximately 750-foot-long o -site utility tunnel on an additional 0.17 acre within the existing campus (proposed project). The proposed project would provide state of the art facilities for teaching, learning, and research, featuring integrative innovative technology and exible con gurations for classrooms and laboratories. The proposed project would require re-routing an existing service road and underground utilities. Other on-site improvements would include a loading dock and freight elevator, landscaping, exterior lighting, building and way nding signage, re lane access, re hydrants, and access for trash collection. The proposed project would be constructed in separate phases. Once operational, the proposed project would support new College of Science, Technology, Engineering, and Mathematics undergraduate programs on campus. The proposed project is anticipated to result in approximately 350 new students (i.e., students not currently enrolled) and 33 new sta and faculty in the opening year.
Project Location: The proposed project is located in the eastern portion of the CSUSM campus, which is located at 333 S. Twin Oaks Valley Road in the City of San Marcos. The project site is not included on a list compiled pursuant to Government Code section 65962.5.
Filing: On the basis of the Initial Study, CSUSM has determined that with the incorporation of the mitigation measures proposed in the Initial Study, the proposed project would not have a signi cant adverse e ect on the environment. Mitigation measures for biological resources, cultural resources, and tribal cultural resources will be required to reduce impacts to a less than signi cant level. Accordingly, CSUSM intends to adopt a Mitigated Negative Declaration, pursuant to Section 21080(c) of the Public Resources Code.
Public Comment Period: The Initial Study/proposed Mitigated Negative Declaration (IS/proposed MND) is available for a 30-day public review and comment period from July 17, 2024 to August 16, 2024. Your comments on the IS/proposed MND are welcome. If you wish to comment on the IS/proposed MND, please send any written comments with your name and/or the name of your agency contact person (if applicable), to the following address or email address by August 16, 2024.
Michelle Alves, Campus Planner Planning, Design, and Construction
California State University, San Marcos 333 S. Twin Oaks Valley Road San Marcos, California 92096
Email: malves@csusm.edu
Document Availability: A copy of the IS/proposed MND and supporting documents can be reviewed at the CSUSM O ce of Planning, Design & Construction during regular business hours, located at 441 La Moree Road, San Marcos, CA 92078. The document is also available for viewing online at: https://www.csusm.edu/pdc/projects_construction/ise.html
07/19/2024 CN 29178







NOTICE INVITING BIDS
SAN DIEGUITO WATER DISTRICT
General Asphalt Removal and Repair Services
Notice is hereby given that the San Dieguito Water District will receive ELECTRONIC BIDS ONLY, via the on-line bidding service PlanetBids, up to 2:00 PM, on August 2, 2024. At which time said ELECTRONIC BIDS will be publicly opened and read. The results will be posted on PlanetBids immediately at the close of the bid opening.
WORK TO BE DONE: The work General Asphalt removal and repair services
ENGINEER’S ESTIMATE: $418,000
LOWEST RESPONSIVE AND RESPONSIBLE BIDDER: The award of the contract, if it is awarded, will be to the lowest responsive and responsible bidder submitting a bid whose summation of the base bid is the lowest. Pursuant to Public Contract Code Section 1103, a “Responsible Bidder”, means a bidder who has demonstrated the attributes of trustworthiness, as well as quality, tness, capacity, and experience to satisfactorily perform this public works contract.
OBTAINING CONTRACT DOCUMENTS: The website for this advertisement and related documents is: PlanetBids (https://encinitasca.gov/Bids). All bid documents and project correspondence will be posted on the PlanetBids website. It is the responsibility of Proposers to check the website regularly for information updates and Bid Clari cations, as well as any addenda. To submit a bid, a bidder must register as a vendor (planholder) and download the contract documents from the City of Encinitas Website at https://encinitasca.gov/Bids. To register as a vendor, go to the following link (https://encinitasca.gov/Bids) and then proceed to the “Register As A Vendor” link. In compliance with California Contract Code, Section 20103.7 electronic copies will be made available to contractor plan series bid boards and contractors upon their request. The District makes no representation regarding the accuracy of Contract Documents received from third party plan rooms and Contractor accepts bid documents from third parties at its own risk.
Contractors shall be responsible for obtaining all addendums for the project and signing and submitting all addendums with their bid. Any contractor that does not acknowledge receipt of all addendums by signing and submitting all addendums with their bid shall be deemed a nonresponsive bidder and their bid will be rejected.
PREVAILING WAGE: This is a prevailing wage project and prevailing wage rates for this locality and project as determined by the director of industrial relations apply, pursuant to labor code section 1770, et. Seq. A copy of the prevailing wage rates shall be posted on the job site by the contractor. A schedule of prevailing wage rates is available for review at the California Department of Industrial Relations web site found on the internet at http://www.dir.ca.gov/ Public-Works/Prevailing-Wage.html. The successful bidder shall be required to pay at least the wage rates set forth in that schedule.
Certi ed Payroll records shall be maintained by the contractor and copies of the certi ed payroll shall be electronically sent to the Department of Industrial Relations and hardcopies of the certi ed payroll shall be delivered to the District at the end of each month during the entire duration of the project.
short in duration or that occur close in time to the scheduled sale may not immediately be re ected in the telephone information or on the Internet Web site. The best way to verify postponement information is to attend the scheduled sale.
NOTICE TO TENANT:
E ective January 1, 2021, you may have a right to purchase this property after the trustee auction pursuant to Section 2924m of the California Civil Code. If you are an “eligible tenant buyer,” you can purchase the property if you match the last and highest bid placed at the trustee auction. If you are an “eligible bidder,” you may be able to purchase the property if you exceed the last and highest bid placed at the trustee auction. There are three steps to exercising this right of purchase. First, 48 hours after the date of the trustee sale, you can call (855) 313-3319, or visit this internet website www. clearreconcorp.com, using the le number assigned to this case 122384-CA to nd the date on which the trustee’s sale was held, the amount of the last and highest bid, and the address of the trustee. Second, you must send a written notice of intent to place a bid so that the trustee receives it no more than 15 days after the trustee’s sale. Third, you must submit a bid so that the trustee receives it no more than 45 days after the trustee’s sale. If you think you may qualify as an “eligible tenant buyer” or “eligible bidder,” you should consider contacting an attorney or appropriate real estate professional immediately for advice regarding this potential right to purchase. FOR SALES INFORMATION: (800) 2802832 CLEAR RECON CORP 3333 Camino Del Rio South, Suite 225 San Diego, California 92108 STOX 945997_122384CA 07/19/2024, 07/26/2024, 08/02/2024 CN 29174
BATCH: AFC-4030
NOTICE OF TRUSTEE’S SALE YOU ARE IN DEFAULT UNDER A DEED OF TRUST DATED AS SHOWN BELOW. UNLESS YOU TAKE ACTION TO PROTECT YOUR PROPERTY, IT MAY BE SOLD AT A PUBLIC SALE. IF YOU NEED AN EXPLANATION OF THE NATURE OF THE PROCEEDINGS AGAINST YOU, YOU SHOULD CONTACT A LAWYER. CHICAGO TITLE COMPANY as the duly appointed Trustee under and pursuant to Deed of Trust Executed by: AS SHOWN BELOW, as Trustor, AS SHOWN BELOW, as Bene ciary, recorded on AS SHOWN BELOW as Instrument No. AS SHOWN BELOW of O cial Records of the County Recorder of SAN DIEGO County, California, and pursuant to the Notice of Default and Election to Sell there under recorded on AS SHOWN BELOW as Instrument No. AS SHOWN BELOW of said O cial Records. WILL SELL BY PUBLIC AUCTION TO THE HIGHEST BIDDER FOR CASH
On 8/15/2024 at 10:00 AM, AT THE FRONT ENTRANCE TO CHICAGO TITLE COMPANY 2121 PALOMAR AIRPORT ROAD, CARLSBAD CA 92011
(Payable at time of sale in lawful money of the United States, by cash, a cashier’s check drawn by a state or national bank, a check drawn by a state or federal credit union, or a check drawn by a state or federal savings and loan association, savings association, or savings bank), all right, title and interest conveyed to and now held by it under said Deed of
Trust in the property situated in said County and State hereinafter described as more fully described on said Deed of Trust. The property heretofore described is being sold “as is”. The street address and other common designation, if any, of the real property described above is purported to be: 5805 ARMADA DRIVE, CARLSBAD, CA, 92009 TS#, CUSTOMER REF#, ICN#, Unit/Interval/Week, APN#, Trustors, Bene ciary, DOT Dated, DOT Recorded, DOT Instrument No., NOD Recorded, NOD Instrument No., Estimated Sales Amount 108743 B0468575C 193 BIENNIAL EVEN 08 211-022-28-00 LEYLAND L. GONZALES AND ERIN Y. MARTINEZ HUSBAND AND WIFE AS JOINT TENANTS GRAND PACIFIC CARLSBAD LP. A CALIFORNIA LIMITED PARTNERSHIP 06/21/2016 07/07/2016 2016-0337755 4/15/2024 2024-0092776
$13585.87 108744 B0538435S 274 ANNUAL 38 211-02228-00 MARK C. HALL AND ERNESTINA HALL
HUSBAND AND WIFE AS JOINT TENANTS GRAND
PACIFIC CARLSBAD
LP. A CALIFORNIA
LIMITED PARTNERSHIP
10/26/2021 11/12/2021 20210784472 4/15/2024 20240092776 $29241.33 108745
B0538205H 295 BIENNIAL EVEN 03 211-022-28-00
ELIZABETH KEALOHA AND FREDERICK KEALOHA
WIFE AND HUSBAND AS JOINT TENANTS GRAND
PACIFIC CARLSBAD LP.
A CALIFORNIA LIMITED
PARTNERSHIP 10/12/2021 10/28/2021 2021-0750779 4/15/2024 2024-0092776
$15667.63 108746 B0522285S
294 ANNUAL 08 211-02228-00 ANTHONY L. LILLEY
A(N) SINGLE MAN AND DOBYNELLE NEVERIDA
A(N) SINGLE WOMAN AS JOINT TENANTS GRAND
Notice: Subject to exceptions as set forth in Labor Code section 1771.1, contractor or Subcontractor shall not be quali ed to bid on, be listed in a bid proposal, subject to the requirements of Section 4104 of the Public Contract Code or engage in the performance of any contract for public work, as de ned by statute, unless it is currently registered and quali ed to perform public work pursuant to Labor Code Section 1725.5. The District may not accept a bid, nor any contract or subcontract entered into without proof of the contractor or subcontractor’s current registration to perform public work pursuant to Section 1725.5. For more information, go to http://www.dir.ca.gov/Public-Works/Certi ed-Payroll-Reporting.html
COMPLIANCE WITH LABOR LAWS: The prime contractor shall be responsible for insuring compliance with all applicable provisions of the Labor Code, including, but not limited to, section 1777.5.
Please also see INFORMATION AND INSTRUCTIONS FOR BIDDERS in bid documents for additional bid information and requirements.
END OF NOTICE INVITING BIDS
07/05/2024, 07/12/2024, 07/19/2024 CN 29112
PACIFIC CARLSBAD LP.
A CALIFORNIA LIMITED PARTNERSHIP 06/09/2019 06/27/2019 2019-0252596 4/15/2024 2024-0092776
$20978.86 108747 B0546015H 159 ANNUAL 18 211-022-2800 JENNIFER L. LONG AN UNMARRIED WOMAN AS HER SOLE AND SEPARATE PROPERTY GRAND
PACIFIC CARLSBAD LP.
A CALIFORNIA LIMITED PARTNERSHIP 09/10/2022 09/28/2022 2022-0379442 4/15/2024 2024-0092776
$28176.41 108750 B0421265S 391 ANNUAL 09 211-022-2800 DAVID B. MOOR A(N) SINGLE MAN AND HAYDEE V. MARCKSTADT A(N) UNMARRIED WOMAN AS JOINT TENANTS GRAND
PACIFIC CARLSBAD LP. A CALIFORNIA LIMITED PARTNERSHIP 12/22/2013 01/16/2014 2014-0020698 4/15/2024 2024-0092776
$11277.09 108751 B0517505S 393 ANNUAL 35 211-02228-00 PATRICIA D. MOYE A(N) WIDOWED WOMAN AS SOLE AND SEPARATE PROPERTY GRAND
PACIFIC CARLSBAD LP. A CALIFORNIA LIMITED PARTNERSHIP 02/18/2019 03/07/2019 2019-0081362 4/15/2024 2024-0092776
$18307.57 108752 B0547005S 298 ANNUAL 08 211022-28-00 MARY RITA MUTAGALOA-WALKER AND WILLIAM LLOYD WALKER HUSBAND AND
WIFE AS JOINT TENANTS GRAND PACIFIC CARLSBAD LP. A CALIFORNIA LIMITED PARTNERSHIP 09/24/2022 10/27/2022 2022-0413289 4/15/2024 2024-0092776
$26735.06 108753 B0534355C 282 ANNUAL 30 211-02228-00 BRIDGET LYNN YELTON A(N) AS SOLE AND SEPARATE PROPERTY GRAND PACIFIC CARLSBAD LP. A CALIFORNIA LIMITED PARTNERSHIP 04/14/2021 04/29/2021 2021-0330566 4/15/2024 2024-0092776
$22736.66 The undersigned Trustee disclaims any liability for any incorrectness of the street address and other common designation, if any, shown herein. Said sale will be made, but without covenant or warranty, expressed or implied, regarding title, possession, or encumbrances, to pay the remaining principal sum of the note(s) secured by said Deed of Trust, with interest thereon, as provided in said note(s), advances, if any, under the terms of the Deed of Trust, estimated fees, charges and expenses of the Trustee and of the trusts created by said Deed of Trust, to-wit is estimated at AS SHOWN ABOVE Accrued interest and additional advances, if any, may increase this gure prior to sale. The bene ciary under said Deed of Trust heretofore executed and delivered to the undersigned a written Declaration of Default and Demand for Sale, and
a written Notice of Default and Election to Sell. The undersigned caused said Notice of Default and Election to Sell to be recorded in the county where the real property is located and more than three months have elapsed since such recordation. NOTICE TO POTENTIAL BIDDERS: If you are considering bidding on this property lien, you should understand that there are risks involved in bidding at a trustee auction. You will be bidding on a lien, not on the property itself. Placing the highest bid at a trustee auction does not automatically entitle you to free and clear ownership of the property. You should also be aware that the lien being auctioned o may be a junior lien. If you are the highest bidder at the auction, you are or may be responsible for paying o all liens senior to the lien being auctioned o , before you can receive clear title to the property. You are encouraged to investigate the existence, priority, and size of outstanding liens that may exist on this property by contacting the county recorder’s o ce or a title insurance company, either of which may charge you a fee for this information. If you consult either of these resources, you should be aware


JULY 20 - SEPTEMBER 8
SUNDAY, JULY 21
OPENING DAY SAT JULY 20 WILL SELL OUT
Sample a wide variety of delicious tastings from over 50 brews, ciders and seltzers plus music and more. Ages 21 & up only.*

SATURDAY, AUGUST 3

SATURDAY, AUGUST 10
Get FREE admission, program and seat, plus 40% off 16 oz. Michelob ULTRA, Brandt Beef hot dogs and sodas at concession stands with FREE Diamond Club membership.
Half off Del Mar Signature Drinks every Friday at select locations. We’ll drink to that!
Enjoy over 100 wines and champagnes, live races, DJ, local favorite food trucks, and more. Ages 21 & up only.*
Specialty tequilas, margaritas and cervezas paired up with tasty tacos from the best taco shops in town. Ages 21 & up only.*

By Laura Place DEL MAR — Lead-
ers of the Del Mar Fairgrounds lambasted one of SANDAG’s proposed rail realignment routes that would run directly through the property, saying that the Fairgrounds would not survive the devastating disruption to its operations.
Known as Alternative A, the nearly 7-mile route is the longest and most expensive of the three proposed tunnel realignments
that SANDAG advanced for environmental study in a June notice of preparation (NOP).
The proposed route would begin south of the Solana Beach train station in the existing trench and transition from a cut-andcover to a bored tunnel at the site of the Fairgrounds midway. The tunnel would then continue east beneath the San Dieguito Lagoon and follow Interstate 5 before emerging from a grassy knoll along the highway south of Los Peñasquitos Lagoon.
At a Monday meeting, leaders of the 22nd District Agricultural Association — the body managing the
Fairgrounds — stated their vehement opposition to Alternative A and any other alignment that negatively impacts their operations.
“After nearly 90 years at this location, over 140 years in operation, Alternative A or any route that disrupts the Fairgrounds operations begs the question — how would the 22nd DAA survive? Fairs and other events would be drastically impacted, if even operable, with construction alone,” Fairgrounds CEO Carlene Moore said.
The other two proposed alternatives would begin in Del Mar near JimTURN TO FAIRGROUNDS ON 21
SATURDAY, AUGUST 17

Breeders’ Cup Giveaway
SATURDAY, AUGUST 24
SATURDAY, AUGUST 31
$1,000,000 FanDuel Racing Pacific Classic
Get a free, branded 12 oz. stainless steel, hot and cold Travel Tumbler with each paid admission, while supplies last.
An epic celebration of New Orleans culture with Cajun cuisine, themed drinks, music, mini parade and more.*
Don’t miss Del Mar’s only $1 million purse for 3-year-olds & up. A “Win And You’re In” race for the Breeders’ Cup Classic. The day features five graded stakes races.

Over 50,000 votes were cast in the hunt for the best businesses in North County San Diego. Gold and Silver winners have been announced and the results are now available online at

Report: Singlefamily home sales dropped by 11%
By City News Service REGION
— Sales of previously owned homes slowed in June after a steady increase since the beginning of the year, according to data released July 15 by the Greater San Diego Association of Real-
By Staff
VISTA — Aaron Byzak, a resident of the TriCity area and longtime healthcare executive, has announced his candidacy for the Tri-City Healthcare District board of directors in the November 2024 election.
Byzak, currently the chief strategist and lead consultant for Galvanized Strategies, a strategic communications consulting firm, has experience in healthcare and community service and aims to improve the quality of care at TriCity Medical Center.
“I am running for the Tri-City Healthcare District board to be your voice and advocate for change in our healthcare system,” said Byzak. “Our community deserves access to high-quality healthcare services, and I am dedicated to making
tors. According to the data compiled through the San Diego Multiple Listing Service, the number of single-family home sales dropped 11% in June compared to May, and about a 5% decline from June 2023.
Sales of attached properties such as condominiums and townhomes saw a more significant drop of 16% month over month. The supply of homes

that a reality.”
Born at Tri-City Medical Center and raised in Carlsbad, Byzak has professional experience in emergency medical services and health policy advisory roles to state and local officials. He also spent over 15 years in healthcare executive roles at Tri-City Medical Center and UC San Diego Health.
Byzak’s campaign focuses on enhancing healthcare quality, improving the patient experience, and redeveloping the hospital’s Oceanside campus while also seeking to restore community confidence in TriCity Medical Center.
and single-family homes. A commercial office and the future Sunshine Gardens Apartments site are situated between the property and Encinitas Boulevard to the south.
During the Planning Commission’s Feb. 1 meeting, the last time city officials, residents and developers openly discussed the project, opponents suggested the developer rework the plans to make it more consistent with the surrounding area and compatible with the land.
Resident Steve Gerken, who opposes the project, said he gives the developer credit for reducing the project’s overall height and footprint, creating variations in roofline height, and mitigating noise and light pollution by taking the parking lot underground.
However, Gerken’s concerns about the project’s size and location remain firmly in place.
for sale continues to improve from a year ago, up more than 44%.
According to the SDAR, home median prices have stabilized, with single-family homes settling at $1.09 million — unchanged from May — and attached properties selling for a median price of $698,500 in June — an increase of 2% over May.
Compared to this time in 2023, San Diego County home prices are up 10%.
“We are most excited to see that home supply has nearly doubled since 2023, as this is indicative of increased construction and buying options for consumers to meet the ever-growing demand of San Diego County,’’ said SDAR President Spencer Lugash. “While home sales have slowed, we view this as the market beginning to correct itself to adapt to the high interest rates.
“With anticipated rate
decreases by the end of the year, we expect sales to increase over the coming months. As always, we encourage our members to consult with a local realtor to help make the most educated purchasing decision before buying a home.’’
The top-selling ZIP codes in June were Fallbrook with 50 properties sold, Rancho Bernardo East with 37, Rancho Bernardo West with 36, Spring Valley with 32 and Oceans-
ide East and San Marcos tied with 29.
According to the SDAR, the most expensive single-family property sold last month in San Diego County was a custom-built home less than a block from Coronado Beach.
Built in 2007, the 3,600-square-foot home has 3 bedrooms, 5 baths, a butler’s pantry and a rooftop terrace. The home sold on June 21 for $9,825,000.
Icasually mentioned to my friend Keith that tomorrow is the 18th anniversary of this column.
“That’s Chai! That’s Hebrew for ‘life.’ It’s a good sign,” he observed, adding “you should write about that.”
By now, it’s become standard practice for friends to recommend column topics, but my writing anniversary? What’s the angle?
Still, Keith commented about Chai meaning life. Now consider how much time we’ve spent talking about marketing, strategy, tactics, technology, grammar, branding, fashion and dad jokes.
Too many dad jokes. My apologies!
Over the years I’ve noticed a pattern of comments from community members.
People regularly say “I don’t need marketing, but always read your column. It’s entertaining, informative and easy to understand.”

AN AERIAL view of Quail Meadows Apartments shows the layout of the buildings adjacent to a wetland and habitat

After 40+ years in the communications trenches, I’ve seen up-close that marketing combines art, psychology, math, systems engineering, communication, and empathy. It’s a complicated field that requires an ability to utilize creativity AND logic.
Meaning one could argue I’m breathing life into a subject most people would otherwise ignore.
There are four parallel truths taking place here simultaneously:
• Everyone has an opinion, but it’s oftentimes not based on having the needed experience to achieve success.
• Most people think they know how to market their own business or non-profit. But without the experience, they can’t figure out why their strategies and tactics aren’t working.
• Most businesses see marketing as an expense, rather than an investment. Thus when times get tough, they look to cut marketing. This is precisely the time when you’re supposed to INCREASE your marketing efforts.
• People don’t read much anymore.
Business managers willing to listen to professional communications advice are always sure to
generate better results than those thinking they know it all. Because, hard as it may be to believe, marketing is no different than any other profession. It takes years of study, research, and experience to do it right. Besides, strategies that work for one organization may not work for another.
Recognizing we all need to sell ourselves on some level, I see this column as a vehicle for helping you try and sell your message, regardless of the business you’re in.
As my father was fond of saying, “It costs you to learn.” Consider this column as my contribution to helping lower the costs of your education.
With that said, I wish you a week of profitable marketing.

“We have a desire to see affordable housing in Encinitas,” Gerken said. “And we also have a desire to make safe projects that don’t impact every person in the city. We’re grateful they did a redesign, but it’s not enough. We need Baldwin to be a good neighbor and realize this is not the site to build the largest apartments in the history of this city. It doesn’t fit; it doesn’t work.”
Baldwin & Sons COO Nick Lee has consistently argued that despite resi-
dents’ concerns, the project would help to address the city’s housing shortage, enable more Encinitas workers who commute from outside to live there, and help younger residents attain

It is an unplanned but pleasing coincidence that our visit to Montpelier, the home of James Madison, the fourth U.S. president (1809-1817), coincides with Juneteenth.
Recognized as a federal holiday in 2021, Juneteenth (June 19) commemorates the date that slavery ended in Texas, the last state to abolish the 246-year-old institution.
This historical fact holds a bit more gravity while sitting in the cellar of this plantation home that sits on 2,650 acres in Orange County, Virginia.


Here, below ground, is where enslaved people made meals for the Madison household. It also is the site of “Mere Distinction of
Colour,” an exhibit that uses artifacts and art to give visitors a deeper sense of the experience of being enslaved.
Wraparound graph-
ics showcase the names of Montpelier’s 100-plus enslaved; interactive exhibits demonstrate aspects of everyday life for an enslaved
person; and a short film brings to life the story of Sarah, whose family was continually torn apart by the sale and trade of family

members.
Her story, taken from letters and other writings, gives visitors an intimate, emotional and tangible feel for life as an enslaved person.
Visitors to Montpelier, President James Madison’s home in Orange County, Virginia, see this replication of the desk where he penned the Constitution and Bill of Rights.
Similar to other current exhibits on slavery, Montpelier’s use of the word “enslaved” instead of “slave” denotes that the condition of slavery was imposed and not at the core of the person's existence.
At the conclusion of the house tour, we stand near a replica of the desk at which Madison wrote the Constitution, the Bill of Rights and his many thoughts on the birth of our nation and the institution of slavery. One must wonder how this learned man penned documents in which liberty was the central theme while enslaving dozens of people. Madison never freed any of his enslaved and took several with him to the White House, but he wrote that slavery would surely tear apart the nation.
Madison’s Montpelier “confronts visitors with a historic site that is simultaneously a place where ideas of Liberty were conceived and…a place where the same ideas were systematically denied,” according to the Montpelier Foundation.
The cellar exhibition, coupled with tours of the main house, gardens and cemeteries where the Madison family and an untold number of enslaved people are buried, exemplifies just how “messy and bipolar” is the history of the United States.
Highlighting the lives of the enslaved at historic sites wasn’t a given until the Black Lives Matter movement gained traction, opines Christine C., a former Californian who moved to Virginia seven years ago.
Soon after, she became a docent at the nearby Civil War battlefields, where slavery once received little mention. (The National Park Service asks that volunteers do not use their full names.)
“First, we had very little information on the site’s en-
By City News Service
ESCONDIDO
—
One of two brothers who kidnapped a trio of migrants and held them for ransom at an Escondido home was sentenced this week to nearly six years in federal prison.
According to the U.S. Attorney’s Office, Virves Pablo-Francisco, 22, and his 20-year-old brother Nicolas Pablo-Francisco held a 16-year-old Afghan boy, as well as a 41-year-old father and his 19-year-old son from Ecuador, hostage and demanded thousands of dollars from their families.
The siblings demanded between $4,000 and $10,000 for each person’s release, according to court documents.
The U.S. Attorney’s Office alleges Virves Pablo-Francisco specifically
CONTINUED FROM 16
slaved workers,” Christine says. Some records were destroyed during the war and “records the families took with them during the war were lost.”
But then, the park service “dug deeper” and found a “treasure trove of court cases (that) provided invaluable information.”
didn’t provide food to the Ecuadorian father and son “and told them they were required to pay extra if they wanted to eat.’’
Prosecutors said the abductions came to light on June 13 of last year, when the 16-year-old boy’s family in the United States was contacted by his kidnappers.
The family reached out to law enforcement and, according to a probable cause statement filed in federal court last year, investigators obtained cell phone records for a phone the kidnappers used to call the family.
Records showed Nicolas Pablo-Francisco was the phone’s user, with a listed address in Escondido, according to the statement. Virves Pablo-Francisco was listed as the billing party for the account.
On June 14, agents searched the home listed on the phone’s account and found all three kidnapping victims. Nicolas PabloFrancisco was arrested at the home, while Virves Pablo-Francisco was arrested at a later time.
Both brothers pleaded guilty to federal charges earlier this year.
...A vehicle fatally struck a bicyclist on July 17 at a freeway interchange in Carmel Mountain Ranch.
The deadly collision took place at the intersection of Interstate 15 and state Route 56 shortly before 9:30 a.m., according to the California Highway Patrol.
The accident forced a closure of westbound SR-56 around the site of the crash and led to heavy congestion in the area.


• Jaccuzi ™ hot tub Custom hardscape yard details • 4 beds | 3 baths | 3069 SF A must see property! Offered at $2,350,000
This information exists because, since enslaved people were property, “they frequently appeared in court cases, which was enlightening.” she adds. “Now, the park service has a larger trove of very specific histories of different enslaved individuals who lived on the battleground sites.”
Virginia in the early 1700s. Their original, pentagonal-shaped fort was just across the road, and archeology students from local colleges help to uncover the layers of history.
Christine now volunteers for Historic Germanna, where she catalogs artifacts found at a nearby archeological dig. The organization works to preserve and promote the history of German settlers who began arriving in this area of
“History is one of the reasons I fell in love with Virginia,” Christine says. “It is central to the framing of America and home to many early presidents.”
For more discussion and information, visit www. facebook.com/elouise.ondash.




REALTOR, DRE #01110385 760.585.8860 Sold@TerriFox.com
REALTOR, DRE #01110385 760.585.8860 Sold@TerriFox.com
REALTOR®, DRE #02056724 760.450.5839 trudy@trudycoastalproperties.com Ferri Fox
REALTOR, DRE #02056724 760.450.5839 Trudy@TrudysCoastalProperties.com



By Laura Place REGION
— A team of passionate local surfers has launched a new magazine spotlighting surf stories, local athletes, shapers, photographers and companies making waves in North County.
Founded by Carlsbad residents Elaine Brodie and Lorenzo Diaz, Local Break magazine recently published its inaugural issue with a circulation of 7,000 copies that will be spread out over the coming weeks.
Brodie, a former writer for Carlsbad Neighbors Magazine with a background in marketing, now serves as the magazine’s publisher, editor and main writer. Diaz, a longtime surfing coach and owner of Surf Skate 101, serves as business development director.
The couple met several years ago through surfing and eventually began talking about starting a surf magazine. They recognized the myriad of unique stories waiting to be told in the region and realized they could combine Brodie’s writing chops, Diaz’s connections in the local surf community and their joint passion for the sport.
“I want to make it a

community magazine. I want people to contribute to it, be stoked about it, and read about their neighbors and their friends,” said Brodie, who began surfing in her late 40s and quickly became hooked. “Now that we have the first magazine, and it’s getting momentum, people can understand it’s here to stay.”
The first July/August issue of Local Break magazine, which can be found in most surf shops throughout North County, kicked things off with a cover
story about ocean photographer Saxon Chang (son of renowned photog Aaron Chang) and a feature about the Encinitas mother-daughter duo of board shaper Valerie Duprat and rising USA Surf champion Victoria Duprat.
The magazine aims to be a go-to guide for local surfers, with an explainer on surf skate training, fitness and travel recommendations, tide charts and local recommendations for surf shops, surf lessons, board shapers, photogra-
phers and more.
Local Break will be published bimonthly, with the September/October issue currently in development.
Diaz said he is excited for the magazine to highlight all the different people involved in surfing in North County, from “moms to groms” in Del Mar, Solana Beach, Encinitas, Carlsbad and Oceanside.
“It's kind of knowing who’s in our community, who our predecessors are, and who’s up and coming …

2977 Ocean St
Carlsbad, CA
5 BED | 6.5 BATH | 4,564 SQ FT $11,550,000

Santistevan

it's not just the surf culture, it's who makes up the surf culture,” said Diaz. “We have this little micro-community that’s so cool, and it’s definitely different from Leucadia, to Cardiff to Carlsbad.”
Despite the challenge of starting a print venture in 2024, Diaz said Local Break has been received well in the community. The magazine also recently added sales director Skye Deitelbaum of Cardiff to their small but mighty team.
“It’s been fun, but also a lot of work,” said Diaz. “When you put out something, hopefully it gets received well, but I don't think we had one negative comment. It’s been amazing.”
For Brodie, a magazine offers the perfect marriage
of photography and graphics, both of which she is passionate about. It also allows local contributors to submit stories and photos, and there’s been a ton of interest so far, she said.
The first issue includes a travel piece about a local’s surf expedition in Alaska, an informational piece from an Encinitas doctor about surfer’s eye, and a surfing workout recommendation from the owner of an Encinitas fitness center.
“The contributing writers are local people, and everybody has a story,” Brodie said.
Readers can visit localbreakmagazine.com to find magazine pickup locations and digital issues or to inquire about advertising or contributing content.



While regularly driving through Oceanside on Coast Highway, I keep an eye out for restaurants that may not be generating a lot of buzz but remain open during challenging times.
Petite Madeline Bakery and Bistro is one such place I recently noticed, always bustling with activity.
Despite its name, Petite Madeline’s only French influence is its extensive croissant and pastry selection. Breakfast and lunch offerings are more of an eclectic mix of delicious options.
During my first visit at lunchtime, the specialty sandwiches caught my eye. As a fan of chicken salad, I was drawn to their Chicken Salad Sandwich, which includes chicken, celery, onion, sherry wine-soaked cranberries, mayo, Dijon mustard, and cayenne.
I opted for rustic whole wheat bread and a side salad. The sandwich was sizable, providing enough for both lunch and dinner. It was one of the best chicken salad sandwiches I’ve had.
Other appealing options on the sandwich menu include the Fried Chicken Sando, featuring panko-crusted, buttermilk-brined thigh, housemade spiced pickle, honey-chipotle sauce, lettuce, and tomato on a brioche





bun.
On my second visit, I tried the Chicken Pesto sandwich with bechamel sauce and pesto on rustic bread. The Crustless Veggie Quiche with mushrooms, zucchini, tomatoes, onions, and Gruyere cheese is another winner.
Breakfast at Petite Madeline is a big draw, with offerings such as Ben-


edicts, Breakfast Bowls, Crepes (both savory and sweet), omelets, and scrambles. I sampled the Greek Egg Bowl, which includes scrambled eggs, spinach, artichoke, onion, tomato, feta, lemon crema, hashbrowns, and added Black Forest Ham. It was among the best breakfast bowls I’ve had.
Breakfast sandwich-
es served on house-made croissants, like the Smoked Salmon Croissant sandwich with scrambled eggs, tomato, capers, and red onions, are also noteworthy.
The pastries and desserts are the real stars at Petite Madeline, so be sure to save room. I encountered my friend Joe Manfredi, a former chef, who raved about their Vegan Pop Tart. Manfredi described it as “as big as a small book with a diagonal glaze design and colorful sprinkles.”
He appreciated that the raspberry jam paired well with the firm, flaky crust and was not overly sweet. Joe’s description of enjoying the pop tart with a cup of coffee was spot on.
My own samplings included a spectacular Almond Croissant, Carrot Cake, and, of course, a Madeleine. I plan to return for the Tres Leches, Fruit Tart, Red Velvet Cake, Key Lime Tower, Chocolate Pyramid, Caramel-Turtle Cheesecake, Eclair, and the savory Ham and Cheese Croissant.
Petite Madeline is also known throughout San Diego as a premier bakery for special event cakes, offering cakes from six to fourteen inches with three layers of cake and two layers of filling, with extensive filling options.
Don’t forget their cookies, which are also exceptional. Even though I don’t eat a lot of sweets, biting into one of their splendid cookies was a delightful experience. The list includes Lemon Oatmeal Pecan, Ginger Molasses, Coconut Macaroon, Brown Butter Chocolate Chip, and
Peanut Butter. The beverage menu is robust, with several barista specials, an espresso bar featuring Vietnamese Coffee, a variety of gourmet teas, and champagne mimosas with fresh juices for those inclined to indulge.
If you visit, go early, as baked goods are first come, first serve.
Located at 223 N. Coast Highway in Oceans-
ide, Petite Madeline Bakery and Bistro offers a sweet and savory experience that includes people-watching. Contact Petite Madeline Bakery at 760-2317300 and cakes@petitemadelinebakery.com. Store hours are Monday - Friday 7 a.m. - 2 p.m. and Saturday and Sunday 7:30 a.m. - 2:30 p.m. Learn more at www. petitemadelinebakery.com.




Monday - Friday Call For Hours
Friday, 4:30-7pm Great









homeowners and momand-pop landlords due to allegedly unfair and anti-competitive practices; • supporting state legislation to “rebalance’’ the housing market and limit influence by institutional investors.
Supervisor Jim Desmond introduced a friendly amendment that will also have the policy look at townhouses and condominiums. It will also include a “threshold number’’ of 25 on what is considered a mom-and-pop business, according to Lawson-Remer’s office.
Before the vote, Lawson-Remer said California leads the nation in the number of single-family homes purchased by investors.
In 2021, the Blackstone private equity firm spent $1.5 billion to acquire 66 properties, or 5,600 units, in San Diego County, Lawson-Remer said, adding that those properties would otherwise go toward affordable housing with modest rents.
Blackstone is the largest residential landlord in the United States, according to Lawson-Remer’s office.
Blackstone on Tuesday said the company has “invested approximately $100 million to improve living conditions for thousands of San Diego residents who live in our communities.’’
The allegations from Tuesday’s board meeting “rely on cherry-picked data and are not based on any facts whatsoever,’’ Blackstone officials said. “The reality is that average rents at these San Diego communities are 20% below the San Diego market average.’’
Resident review scores have increased 40% under Blackstone ownership and “resident retention rates are significantly higher than the national average,’’ Blackstone said, adding the company has completed “over 44,000 repairs, including those that were previously unaddressed.’’
“We hold ourselves and our operators to the highest standard of care,’’ Blackstone officials said. “During the pandemic, Blackstone recognized that many were experiencing extreme hardship. We believe we are the only major landlord in the (United States) that did not evict a single tenant for non- payment during those two-plus years.’’
Supervisor Joel Anderson voted no on the proposal, which he said takes time away from building more housing for residents.
“We don’t need to quibble over whether 10% of the market is being manipulated,’’ Anderson said, adding that California has an attorney general who can prosecute investors who break the law.




“I can’t stress it enough, but as tenants, we are getting displaced due to corporate greed,’’ said Patricia Mendoza, of the Alliance of Californians for Community Empowerment. “Our communities are not for sale.’’
Alysson Snow, a Lemon Grove City Council member, said she remembers growing up in a time “where you used to be able to afford your first home.’’ However she said the system now encourages allcash buyers, who snatch up homes in a manner that was widespread after the 2008 financial crisis.
Opponents said more regulation was unnecessary. Melanie Woods of the California Apartment Association said the proposal “is a solution in search of a problem,’’ as the percentage of single-family homes owned by large property owners is less than 1.7%, and is trending downward. Woods added that out of 800,000 housing units in the county, only 60,000 belong to large property owners, and there are already mechanisms in place against those who price gouge.
A rental housing representative said that while the county policy is well-intended, it is “just more regulation on top of regulation.’’
Anderson also said that without investment from large corporations, many housing projects would not be built. During public comment, over a dozen people spoke in favor of the proposal.
my Durante Boulevard and Camino Del Mar. The 5.3mile Canyon Crest alignment (Alternative B) would tunnel southeast to exit at a knoll near I-5, and the 4.9-mile Camino Del Mar alignment (Alternative C) would exit at Torrey Pines Road and Carmel Valley Road onto a bridge over Los Peñasquitos Lagoon.
Fairgrounds officials’ concerns about the controversial Alternative A route echo those shared by the city of Solana Beach.
Both Solana Beach and Fairgrounds leaders said SANDAG gave no warning that this route was being advanced for further study and were not given the chance to provide feedback beforehand.
Moore even claimed that in the past, SANDAG officials had stated that a Fairgrounds rail alternative was not feasible and would not be moving forward. However, when asked by The Coast News about a potential Fairgrounds alignment in November, SANDAG representatives said no alternatives were off the table.
The Fairgrounds, the cities of Solana Beach and Del Mar, and other entities are submitting formal response letters to the NOP by the July 19 deadline.
SANDAG will use this feedback as it completes its draft environmental impact report, which will be completed sometime in 2025.
SANDAG has not con-

firmed many details about the impacts of each of the three alignments, noting that further study is needed.
However, agency officials have said Alternative A is the most expensive at around $4 billion and would take between seven and 12 years to construct, while B and C would take up to seven years.
Alternative A would also require the removal of the Via de la Valle bridge and the San Dieguito rail bridge, which is already planned to be renovated via nearly $54 million in committed state funding.
The special events rail platform, a planned rail stop at the fairgrounds covered by the funding, would need to be placed hundreds of feet underground rather
than at grade, as previously planned.
The 22nd DAA board voted to continue advocating for SANDAG to move forward with its double-tracking project and special events platform.
On Monday, the 22nd DAA also unanimously agreed to pause all affordable housing discussions with the city of Del Mar until the City Council formally opposes Alternative A.
The city and Fairgrounds board entered into an exclusive negotiating rights agreement earlier this year to explore options for developing 61 affordable housing units on Fairgrounds property to help Del Mar fulfill its state housing obligations.

At Mission Fed, banking isn’t just about transactions—it’s about community, connection, and making San Diego County a better place.
Real People, Real Support: Receive exceptional service from real people via phone, email, secure web chat, or at one of our 34 local branches.
Empowering Benefits: Enjoy competitive rates on loans and savings, plus personalized financial coaching, home-buying support, and more.
Giving Back Together: Your membership supports local nonprofits, making a positive impact on our community.
Stop by a branch today and let’s chat about how we can help you achieve your financial goals. Learn more at missionfed.com/joinus




from Del Mar residents hoping to reduce impacts on private property.
While the Del Mar City Council has declined to take a position on any alignment thus far, many residents have expressed concerns about alternatives B and C because of their potential impacts on local homes.
During the Del Mar City Council’s meeting on Tuesday to discuss their response to the NOP, Councilmember Dan Quirk asked how the city would respond to the Fairgrounds’ pause on housing talks. City leaders said they would discuss it soon.
Despite Del Mar’s request to oppose Alternative A, the city will not be responsible for selecting an alignment. That will be decided by the SANDAG Board of Directors in 2026 at the earliest after the completion of the final environmental impact report.
Fairgrounds leaders have repeatedly stated in the past year that any advancement of a rail realignment that negatively impacts their operations would require them to cease housing discussions.
“We invested quite a bit of time, energy and relationships with the city of Del Mar to work with them to date on affordable housing. I can’t imagine that this isn’t on the minds of every board member, and perhaps people throughout the city of Del Mar, of the impact on the city of Del Mar’s efforts, coming to us, asking for our help,” said 22nd DAA President Fred Schenk.
Some board members also said they were frustrated with the city, noting that Alternative A was largely created out of feedback
“We need to talk with our team and fully understand the implications of the action. It’s too early for us to give much insight on that,” said City Manager Ashley Jones, noting that the council could likely discuss this topic in August or September.
Del Mar City Council members Dwight Worden and Tracy Martinez did speak to the 22nd DAA board at their Monday meeting, stating that the Fairgrounds is an important stakeholder and partner in the region.
“Routes A, B and C all have significant impacts on all of the parties here today,” Martinez said, referencing Solana Beach. “We all have concerns, and so we shouldn’t be fighting amongst ourselves, but we should impress upon SANDAG that they should maybe look at less impactful routes, and an alternate route should be sought.”
In its own NOP response, approved Tuesday, the Del Mar council stated that the project description, alternatives, and objectives were too vague and incomplete and that neither construction impacts nor a lead agency had been identified. In its response, the city also requested to be recognized as a responsible agency under the California Environmental Quality Act (CEQA) due to the project’s impacts on the city.
Looking ahead, SANDAG is expected to identify a lead federal agency sometime in the fall, which will allow it to start the National Environmental Policy Act process. This is essentially the federal version of the environmental impact report under the California Environmental Quality Act.
The federal environmental study must be completed before the SANDAG board can select an alignment. It will also be essential in securing crucial federal funding for the project.
Construction of the new alignment and relocation of the train off the Del Mar bluffs is expected to be completed by 2035 at the earliest.

1-844-501-3208
Miscellaneous




Prepare for power outages today with a Generac Home Standby Generator. Act now to receive a FREE 5-Year warranty with qualifying purchase* Call 1-855-948-6176 today to schedule a free quote. It’s not just a generator. It’s a power move.
Eliminate gutter cleaning forever! LeafFilter, the most advanced debris-blocking gutter protection. Schedule free LeafFilter estimate today. 20% off Entire Purchase. 10% Senior & Military Discounts. Call 1-833-610-1936
Don’t let the stairs limit your mobility! Discover the ideal solution for anyone who struggles on the stairs, is concerned about a fall or wants to regain access to their entire home. Call AmeriGlide today! 1-833-399-3595
Home break-ins take less than 60 seconds. Don’t wait! Protect your family, your home, your assets now for as little as 70¢/day! 1-844-591-7951





Autos Wanted
Donate Your Car to Veterans Today! Help and Support our Veterans. Fast - FREE pick up. 100% tax deductible. Call 1-800-245-0398
Health & Fitness
VIAGRA and CIALIS USERS! 50 Generic Pills SPECIAL $99.00. 100% guaranteed. 24/7 CALL NOW! 888-445-5928 Hablamos Español
Dental insurance from Physicians Mutual Insurance Company. Coverage for 400+ procedures. Real dental insurance - not just a discount plan. Get your free Information Kit with details! 1-855526-1060 www.dental50plus. com/ads #6258

Bath & shower updates in as little as 1 day! Affordable prices - No payments for 18 months! Lifetime warranty & professional installs. Senior & military discounts available. 1-877-543-9189
Become a published author. We want to read your book! Dorrance Publishing trusted since 1920. Consultation, production, promotion & distribution. Call for free author’s guide 1-877-729-4998 or visit dorranceinfo.com/ads Safe Step. North America’s #1 Walk-in tub. Comprehensive lifetime warranty. Topof-the-line installation and service. Now featuring our free shower package & $1600 off - limited time! Financing available. 1-855-417-1306
Wesley Financial Group, LLC
Timeshare Cancellation ExpertsOver $50,000,000 in timeshare debt & fees cancelled in 2019. Get free info package & learn how to get rid of your timeshare! Free consultations. Over 450 positive reviews. 833-308-1971
DIRECTV Stream - Carries the most local MLB Games! Choice Package $89.99/mo for 12 mos Stream on 20 devices at once. HBO Max included for 3 mos (w/Choice Package or higher.) No contract or hidden fees! Some restrictions apply. Call IVS 1-866-859-0405


Attention oxygen therapy users! Discover oxygen therapy that moves with you with Inogen Portable Oxygen Concentrators. Free information kit. 1-866-477-9045
Home Services
Aging Roof? New Homeowner? Got Storm Damage? You need a local expert provider that proudly stands behind their work. Fast, free estimate. Financing available. Call 1-888-878-9091
Water damage cleanup: A small amount of water can cause major damage to your home. Our trusted professionals dry out wet areas & repair to protect your family & your home value! Call 24/7: 1-888-872-2809. Have zip code!
Professional lawn service: Fertilization, weed control, seeding, aeration & mosquito control. Call now for a free quote. Ask about our first application special! 1-833-6066777
Replace your roof w/the best looking & longest lasting material steel from Erie Metal Roofs! 3 styles & multiple colors available. Guaranteed to last a lifetime! Limited Time Offer up to 50% off install + Additional 10% off install (military, health & 1st responders.) 1-833-370-1234
Jacuzzi Bath Remodel can install a new, custom bath or shower in as little as one day. For a limited time, waving ALL installation costs! (Additional terms apply. Subject to change and vary by dealer.) Offer ends 8/25/24. Call

MobileHelp America’s premier mobile medical alert system. Whether you’re home or away. For safety & peace of mind. No long term contracts! Free brochure! Call 1-888-489-3936





















sources available to assist in finding alternative shelter and other services; it will also include citing for illegal camping or encampments when deemed appropriate, which will depend on the facts of any given situation,” Sangster said.
Jones and other council members argued that the ban does not criminalize homelessness itself but conduct that causes environmental, health and safety concerns, such as trash accumulation, blocking the public right-of-way, waste dumping into storm drains, and fire risks.
In the first five months of the year, the city received 84 complaints about RVs and motorhomes parked for long periods of time along public streets or other public property. According to staff, several instances of individuals dumping human waste and black water directly into storm drains were reported.
“We’re faced with an environmental disaster that’s taking place right in front of our eyes,” said Councilmember Mike Sannella.
Under the ordinance, individuals camping on public property must be given at least 24 hours notice of their need to vacate, except in extreme situations. The city may seize any personal property not removed by this time, and information about where the property is being stored and can be recovered must

be left at the site. Nuñez said she could not support the ordinance and that the city should focus on providing more resources for individuals who are homeless or at risk of becoming homeless.
“Our unhoused individuals, although some may be criminals, that’s not what we’re seeing … What I see are entire families, single moms with kids of all ages,” Nuñez said. “Making the possibility of criminalizing these individuals and families, I don’t think will help their situation. I don’t think it will help to solve homelessness.”
The council will hold
its final vote after a second reading of the ordinance at its next regular meeting.
‘Take back the public right-of-way’
City leaders said they modeled the ordinance on restrictions in the cities of San Diego and Escondido, which have significantly higher rates of homelessness as well as shelters within their city boundaries.
San Diego’s controversial 2023 ban prohibits camping within two blocks of K-12 schools or a shelter, along trolley tracks and transportation hubs, with-





in city parks, open spaces or waterways.
Escondido banned camping in all public spaces but changed its encampment regulations just two days before the Grants Pass decision, identifying more specific locations where it is prohibited.
San Marcos has among the lowest rates of homelessness in San Diego County, but like other cities, its numbers have increased over the years. From 2023 to 2024, the number of individuals tracked during the Regional Task Force on Homelessness Point in Time Count grew from two to 35.
While it does not have its own shelter, San Marcos contributes $120,000 annually to be part of the Alliance for Regional Solutions Bridge to Housing network, which connects North County residents to short-term shelters.
Leaders also highlighted the 3,300 affordable housing units currently offered in San Marcos — 10% of its total housing stock — and partnerships with county social workers and organizations like PATH, which provide street outreach to unhoused residents and offer services and shelter.
However, residents and local organizations say this is not enough, as shelter space becomes more and more limited and the number of people becoming homeless outpaces those who are exiting homelessness.
“The proposed en-
campment ordinance ignores the severe shortage of both temporary shelter and permanent supportive housing in our region. On a given day, only a handful of shelter beds become available when there are thousands of people who need them,” the social justice organization Alliance San Diego said in a letter to the city.
Greg Anglea, CEO of Interfaith Community Services in Escondido, said camping bans do not help resolve homelessness, as they often result in people being shuffled around to different unsheltered locations.
“We haven’t seen the data that they reduce homelessness, even in the small communities where they’re deployed. In San Diego, for example, we haven’t seen homelessness decrease since their ban,” Anglea said.
San Marcos City Attorney Helen Holmes Peak claimed that many homeless individuals turn down offers of shelter and other services because they want to live by their own rules. San Marcos was previously unable to ban camping if shelter space was available, but the Grants Pass ruling removes this barrier.
“Now, the city is able to enforce and essentially take back the public rightof-way for citizens, even if shelter is not available. It may not be an issue, because very often, the unhoused do not want shelter,” Peak said. “One of the things we are hoping with
this prohibition … is that they will be encouraged to seek shelter and seek services and take advantage of those shelters and services when they are available.”
However, homelessness service providers have emphasized that there are several reasons someone might turn down a shelter bed.
These include safety concerns, barriers such as the prohibition of pets or requirements to be sober, or distrust of law enforcement due to past negative experiences.
Anglea said he expects more of these bans in local cities after the Supreme Court decision.
“For us, it heightens the need to work in closer partnership and offer solutions for people to overcome homelessness, and not have to be moved from place to place … from one unsheltered location to another, but to be able to move from an unsheltered location into a sheltered location,” Anglea said.
In the city of Vista, leaders plan to bring forward their own camping restrictions on Aug. 13.
This follows a discussion back in April in which the City Council said they would support a prohibition on camping within two blocks of a homeless shelter or school and 250 yards of a play structure or recreation field if a shelter bed is offered and refused.
It is unclear if the City Council will adopt stricter regulations in light of the Grants Pass decision.
“ The three menaces to any chimney, fireplace, or stove.”
Every year there are over twenty thousand chimney/ fireplace related house fires in the US alone. Losses to homes as a result of chimney fires, leaks and wind damage exceeds one hundred million dollars annually in the US.
CHIMNEY SWEEPS, INC., one of San Diego’s leading chimney repair and maintenance companies, is here to protect you and your home from losses due to structural damage and chimney fires.
Family owned and operated and having been in business for over 30 years, Chimney Sweeps Inc. is a fully licensed and insured chimney contracting company (License #976438) and they are certified with the National Fireplace Institute and have an A+ rating with the Better Business Bureau.
For a limited time, readers of this paper will receive a special discount on our full chimney cleaning and safety inspection package with special attention to chimney water intrusion points in preparation for the rainy season.
511415AE 5114 BIENNIAL EVEN 15 211-130-02-00
DANNY J. CLARK AND SANDRA K. CLARK
HUSBAND AND WIFE
3/4/2024
3/14/2024 20240064733 4/15/2024 20240092848 $4236.06 108504
512316AZ 5123 ANNUAL 16
211-130-02-00 STEVEN B.
RICH AND BRENDA M.
RICH HUSBAND AND WIFE AS JOINT TENANTS
3/4/2024 3/14/2024 20240064733 4/15/2024 20240092848 $7122.84 108505
513118BZ 5131 ANNUAL 18
211-130-02-00 WILLIE H. WRIGHT AND MABEL
VICTORIA WRIGHT
HUSBAND AND WIFE AS JOINT TENANTS 3/4/2024
3/14/2024 2024-0064733 4/15/2024 2024-0092848
$5743.80 108506 513135BE 5131 BIENNIAL EVEN 35 211130-02-00
KABUSHIKIGAISHA BLUE CHIP INVESTMENT A JAPANESE CORPORATION
3/4/2024 3/14/2024 20240064733 4/15/2024 20240092848 $4077.44 108507 513140BO 5131 BIENNIAL ODD 40 211-130-02-00
KENNY D. KORRELL A(N)
UNMARRIED MAN AND CANDACE L. SOUTHERN A(N) UNMARRIED WOMAN AS JOINT TENANTS
3/4/2024 3/14/2024 20240064733 4/15/2024 2024-
0092848 $4522.03 108508
513204AE 5132 BIENNIAL EVEN 04 211-130-02-00
CYTNHIA L. MCALLISTER A SINGLE WOMAN AS SOLE AND SEPARATE PROPERTY
3/4/2024 3/14/2024 20240064733 4/15/2024 20240092848 $5447.01 108509
513224AZ 5132 ANNUAL 24 211-130-02-00 JOSEPH A. PEJSA AND CARLENE A.
PEJSA HUSBAND AND WIFE AS JOINT TENANTS
3/4/2024 3/14/2024 20240064733 4/15/2024 20240092848 $7605.07 108510 513247AO 5132 BIENNIAL ODD 47 211-130-02-00
BARBARA J. KESSLER AS TRUSTEE OF THE BARBARA J. KESSLER REVOCABLE TRUST DATED JANUARY 20 1998 AND ANY AMENDMENTS THERETO
3/4/2024 3/14/2024 20240064733 4/15/2024 20240092848 $3078.61 108512 513344AO 5133 BIENNIAL ODD 44 211-130-02-00
JEVON M. SIMMONS (A)
WIDOWED MAN AND SHANNAN J. WOODS A (N)
SINGLE WOMAN AS JOINT TENANTS 3/4/2024
3/14/2024 2024-0064733
4/15/2024 2024-0092848
$5100.45 108513 521118B1O
5211 BIENNIAL ODD 18 211130-02-00 CURT MICHAEL PALOMINO AND ANNA MARIE PALOMINO
HUSBAND AND WIFE AS JOINT TENANTS 3/4/2024
3/14/2024 2024-0064733
4/15/2024 2024-0092848
$4448.54 108514 521210AO
5212 BIENNIAL ODD 10 211-
130-02-00 JOHN P. SWANEY AND JACQUE R. SWANEY
HUSBAND AND WIFE AS JOINT TENANTS 3/4/2024
3/14/2024 2024-0064733
4/15/2024 2024-0092848
$5050.83 108515 521212AZ 5212 ANNUAL 12 211-130-0200 DANIEL M. MANSON AND ANGELA R. MANSON
HUSBAND AND WIFE AS JOINT TENANTS 3/4/2024
3/14/2024 2024-0064733
4/15/2024 2024-0092848
$5827.22 108516 521316AE
5213 BIENNIAL EVEN 16 211130-02-00 ANDRE BASKETT AND JACQUELINE
BASKETT HUSBAND AND WIFE AS JOINT TENANTS
3/4/2024 3/14/2024 20240064733 4/15/2024 20240092848 $4762.82 108517 521324AZ 5213 ANNUAL 24
EVEN 35 211-130-02-00
211-130-02-00 JEANNOT NAHMIAS A(N)
UNMARRIED MAN AND GILDA BOUZAGLOU A(N)
UNMARRIED WOMAN AS JOINT TENANTS 3/4/2024
3/14/2024 2024-0064733
4/15/2024 2024-0092848
$5047.13 108518 521351B1Z 5213 ANNUAL 51 211-130-0200 CHALAKWATUD A. CHIQUITI A(N) SINGLE MAN AS SOLE AND SEPARATE PROPERTY
3/4/2024 3/14/2024 20240064733 4/15/2024 20240092848 $5814.69 108519
521405D1E 5214 BIENNIAL EVEN 05 211-130-02-00
KENNETH E. MAYNARD AND DIANNE MAYNARD
HUSBAND AND WIFE AS JOINT TENANTS 3/4/2024
3/14/2024 2024-0064733 4/15/2024 2024-0092848
$4262.31 108520 522201B1E 5222 BIENNIAL EVEN 01 211130-02-00 BRANDON M. FLOWERS AND RATANA DUONG HUSBAND AND WIFE AS JOINT TENANTS
3/4/2024 3/14/2024 20240064733 4/15/2024 20240092848 $4481.63 108521 522202D1E 5222 BIENNIAL EVEN 02 211-130-02-00
CHARLES C. KILMER AND ROCHELLE KILMER
HUSBAND AND WIFE AS JOINT TENANTS 3/4/2024
3/14/2024 2024-0064733 4/15/2024 2024-0092848 $4268.60 108522 522206D1E 5222 BIENNIAL EVEN 06 211-130-02-00 EVONNE E. ESTES A(N) UNMARRIED WOMAN AS SOLE AND SEPARATE PROPERTY
3/4/2024 3/14/2024 20240064733 4/15/2024 20240092848 $4369.69 108523 522234B1E 5222 BIENNIAL EVEN 34 211-130-02-00
JAMES C. MERRICK AND JANICE L. MERRICK HUSBAND AND WIFE AS JOINT TENANTS 3/4/2024
3/14/2024 2024-0064733
4/15/2024 2024-0092848
$4524.33 108524 522242B1E 5222 BIENNIAL EVEN 42 211-130-02-00
CHRISTOPHER D. PHILLIPS A(N) SINGLE MAN AS SOLE AND SEPARATE PROPERTY
3/4/2024 3/14/2024 20240064733 4/15/2024 20240092848 $5010.75 108525 522245D1O 5222 BIENNIAL ODD 45 211-130-02-00
WILLIAM L. DOWER AND JILL C. DOWER HUSBAND AND WIFE AS JOINT TENANTS 3/4/2024 3/14/2024 2024-0064733 4/15/2024 2024-0092848 $3479.69 108526 522308D1O 5223 BIENNIAL ODD 08 211130-02-00 MATTHEW MOORE 3/4/2024 3/14/2024 2024-0064733 4/15/2024 2024-0092848 $6805.03 108527 522310D1O 5223 BIENNIAL ODD 10 211-13002-00 DANNY E. CIMON A(N) MARRIED MAN AS SOLE AND SEPARATE PROPERTY 3/4/2024 3/14/2024 2024-0064733 4/15/2024 2024-0092848 $4350.51 108528 522322D1Z 5223 ANNUAL 22 211-130-0200 KATHYRYN SIMEUS A(N) UNMARRIED WOMAN AS SOLE AND SEPARATE PROPERTY 3/4/2024
3/14/2024 2024-0064733 4/15/2024 2024-0092848 $5685.99 108529 522421D1E 5224 BIENNIAL EVEN 21 211130-02-00 WILLARD COOK AND DEBORAH COOK HUSBAND AND WIFE AND WYATT AND GLENDA TULLOS HUSBAND AND WIFE ALL AS JOINT TENANTS 3/4/2024
3/14/2024 2024-0064733
4/15/2024 2024-0092848
$4833.94 108530 522423B1O 5224 BIENNIAL ODD 23 211130-02-00 JOSE I. ESCOLERO AND DIANA M. ESCOLERO HUSBAND AND WIFE AS JOINT TENANTS
3/4/2024 3/14/2024 20240064733 4/15/2024 20240092848 $4644.26 108531 522435B1E 5224 BIENNIAL
SANDY CHAN A(N)
UNMARRIED WOMAN AS SOLE AND SEPARATE
PROPERTY 3/4/2024
3/14/2024 2024-0064733
4/15/2024 2024-0092848
$3587.16 108532 522443D1Z
5224 ANNUAL 43 211-130-0200 PAUL S. WOODLEY AND CLAUDIA WOODLEYLEYENDA HUSBAND AND WIFE AS JOINT TENANTS
3/4/2024 3/14/2024 20240064733 4/15/2024 2024-
0092848 $5517.89 108533
523106BO 5231 BIENNIAL
ODD 06 211-130-02-00
JACQUELINE M. ROBERTSON A(N)
MARRIED WOMAN AS SOLE AND SEPARATE PROPERTY 3/4/2024
3/14/2024 2024-0064733
4/15/2024 2024-0092848
$4587.75 108534 523115BZ
5231 ANNUAL 15 211-130-0200 JAMES P. MACFARLANE AND JOAN C. MACFARLANE
HUSBAND AND WIFE AS JOINT TENANTS 3/4/2024
3/14/2024 2024-0064733
4/15/2024 2024-0092848
$7912.84 The street address and other common designation, if any, of the real property described above is purported to be: 1594 MARBRISA CIRCLE, CARLSBAD, CA, 92008 The undersigned Trustee disclaims any liability for any incorrectness of the street address and other common designation, if any, shown herein. Said sale will be made, but without covenant or warranty, expressed or implied, regarding title, possession, or encumbrances, to pay the remaining principal sum due under said Notice of Delinquent Assessment, with interest thereon, as provided in said notice, advances, if any, estimated fees, charges and expenses of the Trustee. Estimated amount with accrued interest and additional advances, if any, is SHOWN ABOVE and may increase this gure prior to sale. The claimant under said Notice of Delinquent Assessment heretofore executed and delivered to the undersigned a written Declaration of Default and Demand for Sale, and a written Notice of Default and Election to sell, in accordance with the provision to the Covenants, Conditions and Restrictions.
The undersigned caused said Notice of Default and Election to Sell which recorded on SHOWN ABOVE as Book SHOWN ABOVE as Instrument No. SHOWN ABOVE in the county where the real property is located and more than three months have elapsed since such recordation. NOTICE TO POTENTIAL BIDDERS: If you are considering bidding on this property lien, you should understand that there are risks involved in bidding at a trustee auction. You will be bidding on a lien, not on the property itself. Placing the highest bid at a trustee auction does not automatically entitle you to free and clear ownership of the property. You should also be aware that the lien being auctioned o may be a junior lien. If you are the highest bidder at the auction, you are or may be responsible for paying o all liens senior to the lien being auctioned o , before you can receive clear title to the property. You are encouraged to investigate the existence, priority, and size of outstanding liens that may exist on this property by contacting the county recorder’s o ce or a title insurance company, either of which may charge you a fee for this information. If you consult either of these resources, you should be aware that the same lender may hold more than one mortgage or deed of trust on the property.
NOTICE TO PROPERTY
OWNER: The sale date shown
on this notice of sale may be postponed one or more times by the mortgagee, bene ciary, trustee, or a court, pursuant to Section 2924g of the California Civil Code. The law requires that information about trustee sale postponements be made available to you and to the public, as a courtesy to those not present at the sale. If you wish to learn whether your sale date has been postponed, and, if applicable, the rescheduled time and date for the sale of this property, you may call the phone number shown below in bold, using the Reference number assigned to this case on SHOWN ABOVE. Information about postponements that are very short in duration or that occur close in time to the scheduled sale may not immediately be re ected in the telephone information or on the Internet Web site. The best way to verify postponement information is to attend the scheduled sale. Said sale will be made, but without covenant or warranty, express or implied regarding title, possession or encumbrances, to satisfy the indebtedness secured by said Notice, advances thereunder, with interest as provided therein, and the unpaid assessments secured by said Notice with interest thereon as provided in said Covenants, Conditions and Restrictions, fees, charges and expenses of the trustee and the trusts created by said Notice of Assessment and Claim of Lien. IN ORDER TO PAY YOUR ACCOUNT CURRENT, PLEASE CONTACT ADVANCED FINANCIAL COMPANY AT (800) 234-6222 EXT 189 Date: 7/15/2024 CHICAGO TITLE COMPANY, As Trustee, 2121 Palomar Airport Road, Suite 330, Carlsbad , CA 92011 Phone no. (858) 207-0646 By LORI R. FLEMINGS, as Authorized Signor. 07/19/2024, 07/26/2024, 08/02/2024 CN 29170
NOTICE OF TRUSTEE’S SALE T.S. No.: 2024-01821 Loan No.: BAY-02323 APN: 203-351-22-00 YOU ARE IN DEFAULT UNDER A DEED OF TRUST DATED 2/6/2023. UNLESS YOU TAKE ACTION TO PROTECT YOUR PROPERTY, IT MAY BE SOLD AT A PUBLIC SALE. IF YOU NEED AN EXPLANATION OF THE NATURE OF THE PROCEEDING AGAINST YOU, YOU SHOULD CONTACT A LAWYER. A public auction sale to the highest bidder for cash, cashier’s check drawn on a state or national bank, check drawn by a state or federal credit union, or a check drawn by a state or federal savings and loan association, or savings association, or savings bank speci ed in Section 5102 of the Financial Code and authorized to do business in this state will be held by the duly appointed trustee as shown below, of all right, title, and interest conveyed to and now held by the trustee in the hereinafter described property under and pursuant to a Deed of Trust described below. The sale will be made, but without covenant or warranty, expressed or implied, regarding title, possession, or encumbrances, to pay the remaining principal sum of the note(s) secured by the Deed of Trust, with interest and late charges thereon, as provided in the note(s), advances, under the terms of the Deed of Trust, interest thereon, fees, charges and expenses of the Trustee for the total amount (at the time of the initial publication of the Notice of Sale) reasonably estimated to be set forth below. The amount may be greater on the day of sale. Trustor: Sonny Investments, LLC, A California Limited Liability Company Duly Appointed Trustee:
Superior Loan Servicing Recorded 2/8/2023 as Instrument No. 2023-0032492 in book , page of O cial Records in the o ce of the Recorder of San Diego County, California, Date of Sale: 8/5/2024 at 10:00 AM Place of Sale: At the entrance to the East County Regional Center by statue, 250 E. Main Street, EI Cajon, CA 92020 Amount of unpaid balance and other charges: $573,678.39 Street Address or other common designation of real property: 3039 Je erson Street, Suites A and Suites B (Purported to be Suites A through G) Carlsbad, California 92008
A.P.N.: 203-351-22-00 “As Is Where Is” The undersigned Trustee disclaims any liability for any incorrectness of the street address or other common designation, if any, shown above. If no street address or other common designation is shown, directions to the location of the property may be obtained by sending a written request to the bene ciary within 10 days of the date of rst publication of this Notice of Sale. NOTICE TO POTENTIAL BIDDERS: If you are considering bidding on this property lien, you should understand that there are risks involved in bidding at a trustee auction. You will be bidding on a lien, not on the property itself. Placing the highest bid at a trustee auction does not automatically entitle you to free and clear ownership of the property. You should also be aware that the lien being auctioned o may be a junior lien. If you are the highest bidder at the auction, you are or may be responsible for paying o all liens senior to the lien being auctioned o , before you can receive clear title to the property. You are encouraged to investigate the existence, priority, and size of outstanding liens that may exist on this property by contacting the county recorder’s o ce or a title insurance company, either of which may charge you a fee for this information. If you consult either of these resources, you should be aware that the same lender may hold more than one mortgage or deed of trust on the property.
NOTICE TO PROPERTY OWNER: The sale date shown on this notice of sale may be postponed one or more times by the mortgagee, bene ciary, trustee, or a court, pursuant to Section 2924g of the California Civil Code. The law requires that information about trustee sale postponements be made available to you and to the public, as a courtesy to those not present at the sale. If you wish to learn whether your sale date has been postponed, and, if applicable, the rescheduled time and date for the sale of this property, you may call (714) 730-2727 or visit this Internet Web site www.servicelinkASAP. com, using the le number assigned to this case 202401821. Information about postponements that are very short in duration or that occur close in time to the scheduled sale may not immediately be re ected in the telephone information or on the Internet Web site. The best way to verify postponement information is to attend the scheduled sale.
NOTICE TO TENANT: You may have a right to purchase this property after the trustee auction pursuant to Section 2924m of the California Civil Code. If you are an “eligible tenant buyer,” you can purchase the property if you match the last and highest bid placed at the trustee auction. If you are an “eligible bidder,” you may be able to purchase the property if you exceed the last and highest bid placed at the trustee auction. There are three steps to exercising this right of purchase. First, 48 hours after the date of the trustee sale,
you can call (714) 730-2727, or visit this internet website www. servicelinkASAP.com, using the le number assigned to this case 2024-01821 to nd the date on which the trustee’s sale was held, the amount of the last and highest bid, and the address of the trustee. Second, you must send a written notice of intent to place a bid so that the trustee receives it no more than 15 days after the trustee’s sale. Third, you must submit a bid so that the trustee receives it no more than 45 days after the trustee’s sale. If you think you may qualify as an “eligible tenant buyer” or “eligible bidder,” you should consider contacting an attorney or appropriate real estate professional immediately for advice regarding this potential right to purchase. Date: 7/5/2024 Superior Loan Servicing, by Asset Default Management, Inc., as Agent for Trustee 7525 Topanga Canyon Blvd. Canoga Park, California 91303 Sale Line: (714) 7302727 Julie Taberdo, Sr. Trustee Sale O cer A-4820525 07/12/2024, 07/19/2024, 07/26/2024 CN 29158
BATCH: AFC-4021 NOTICE OF TRUSTEE’S SALE YOU ARE IN DEFAULT UNDER A DEED OF TRUST DATED AS SHOWN BELOW. UNLESS YOU TAKE ACTION TO PROTECT YOUR PROPERTY, IT MAY BE SOLD AT A PUBLIC SALE. IF YOU NEED AN EXPLANATION OF THE NATURE OF THE PROCEEDINGS AGAINST YOU, YOU SHOULD CONTACT A LAWYER. CHICAGO TITLE COMPANY as the duly appointed Trustee under and pursuant to Deed of Trust Executed by: AS SHOWN BELOW, as Trustor, AS SHOWN BELOW, as Bene ciary, recorded on AS SHOWN BELOW as Instrument No. AS SHOWN BELOW of O cial Records of the County Recorder of SAN DIEGO County, California, and pursuant to the Notice of Default and Election to Sell there under recorded on AS SHOWN BELOW as Instrument No. AS SHOWN BELOW of said O cial Records. WILL SELL BY PUBLIC AUCTION TO THE HIGHEST BIDDER FOR CASH On 8/1/2024 at 10:00 AM, AT THE FRONT ENTRANCE TO CHICAGO TITLE COMPANY 2121 PALOMAR AIRPORT ROAD. CARLSBAD CA 92011 (Payable at time of sale in lawful money of the United States, by cash, a cashier’s check drawn by a state or national bank, a check drawn by a state or federal credit union, or a check drawn by a state or federal savings and loan association, savings association, or savings bank), all right, title and interest conveyed to and now held by it under said Deed of Trust in the property situated in said County and State hereinafter described as more fully described on said Deed of Trust. The property heretofore described is being sold “as is”. The street address and other common designation, if any, of the real property described above is purported to be: 5805 ARMADA DRIVE, CARLSBAD, CA, 92009 TS#, CUSTOMER REF#, ICN#, Unit/Interval/Week, APN#, Trustors, Bene ciary, DOT Dated, DOT Recorded, DOT Instrument No., NOD Recorded, NOD Instrument No., Estimated Sales Amount 108465 B0521075A MGP37915AE 379 BIENNIAL EVEN 15 211-022-28-00 REBEKKAH BECKSTEAD AND JUSTIN GONKA HUSBAND AND WIFE AS JOINT TENANTS GRAND PACIFIC CARLSBAD LP. A CALIFORNIA LIMITED PARTNERSHIP 12/28/2018 05/23/2019 2019-0195694 3/26/2024 2024-0074450 $29413.01 108466 B0532945P MGP28433CZ 284 ANNUAL 33 211-022-28-00 BRIAN K. BIGGS AND KIMBERLY M. BIGGS HUSBAND AND WIFE AS JOINT TENANTS GRAND PACIFIC CARLSBAD LP. A CALIFORNIA LIMITED PARTNERSHIP 11/27/2020 12/17/2020 20200811071 3/26/2024 20240074450 $29382.85 108467 B0560195H MGP18331BZ 183 ANNUAL 31 211-022-2800 ROCIO KARINA CASTRO AND RODOLFO GERARDO MORENO CASTRO WIFE AND HUSBAND AS JOINT TENANTS GRAND PACIFIC CARLSBAD LP. A CALIFORNIA LIMITED PARTNERSHIP 07/29/2023 09/07/2023 2023-0242749 3/26/2024 2024-0074450 $32796.06 108469 B0458815H MGP36750CZ 367 ANNUAL 50 211-022-2800 ALVIN C. DELA CRUZ AND VANESSA T. DELA CRUZ HUSBAND AND WIFE AS JOINT TENANTS GRAND PACIFIC CARLSBAD LP. A CALIFORNIA LIMITED PARTNERSHIP 10/28/2015 01/14/2016 2016-0016415 3/26/2024 2024-0074450 $35901.38 108470 B0552245P MGP17938AO 179 BIENNIAL ODD 38 211-022-28-00 MATEO PAPILLON DIAZ A SINGLE MAN AS HIS SOLE AND SEPARATE PROPERTY GRAND PACIFIC CARLSBAD LP. A CALIFORNIA LIMITED PARTNERSHIP 02/24/2023 03/09/2023 2023-0060086 3/26/2024 2024-0074450 $20923.69 108471 B0446275H MGP27505AZ 275 ANNUAL 5 211-022-28-00 CLARENCE R. HOGAN AND BERTHA A. HOGAN HUSBAND AND WIFE AS JOINT TENANTS GRAND PACIFIC CARLSBAD LP. A CALIFORNIA LIMITED PARTNERSHIP 03/25/2015 06/18/2015 20150315789 3/26/2024 20240074450 $44608.11 108472 B0462735S MGP15837AZ 158 ANNUAL 37 211-022-2800 ANGELA K. HENDRIX A(N) MARRIED WOMAN AND JOANNA R. HENDRIX A(N) MARRIED WOMAN AS JOINT TENANTS GRAND PACIFIC CARLSBAD LP. A CALIFORNIA LIMITED PARTNERSHIP 03/14/2016 4/1/2016 2016-0146769 3/26/2024 2024-0074450 $20624.62 108473 B0560935S MGP39509BE 395 BIENNIAL EVEN 9 211-022-28-00 ANDRIA LAROCCO AN UNMARRIED WOMAN AS HER SOLE AND SEPARATE PROPERTY GRAND PACIFIC CARLSBAD LP. A CALIFORNIA LIMITED PARTNERSHIP 09/10/2023 09/28/2023 20230263075 3/26/2024 20240074450 $18207.49 108474 B0540585S MGP19014BE 190 BIENNIAL EVEN 14 211-022-28-00 JEFFREY KIEL RICHARDSON AND AIMEE K. RICHARDSON HUSBAND AND WIFE AS JOINT TENANTS GRAND PACIFIC CARLSBAD LP. A CALIFORNIA LIMITED PARTNERSHIP 09/24/2021 03/10/2022 2022-0108900 3/26/2024 2024-0074450 $23543.57 108475 B0534495P MGP19612CO 196 BIENNIAL ODD 12 211-022-28-00 BRIGITTE ROUX AND CARL ROUX HUSBAND AND WIFE AS JOINT TENANTS GRAND PACIFIC CARLSBAD LP. A CALIFORNIA LIMITED PARTNERSHIP 04/23/2021 05/06/2021 2021-0351155 3/26/2024 2024-0074450 $16254.71 108476 B0455655C MGP17246CZ 172 ANNUAL 46 211-022-28-00 HECTOR M. SALGADO AND MARIA E.
SALGADO HUSBAND AND WIFE AS JOINT TENANTS
GRAND PACIFIC CARLSBAD
LP. A CALIFORNIA LIMITED
PARTNERSHIP 10/24/2015
11/12/2015 2015-0587237
3/26/2024 2024-0074450
$16802.79
The undersigned Trustee disclaims any liability for any incorrectness of the street address and other common designation, if any, shown herein. Said sale will be made, but without covenant or warranty, expressed or implied, regarding title, possession, or encumbrances, to pay the remaining principal sum of the note(s) secured by said Deed of Trust, with interest thereon, as provided in said note(s), advances, if any, under the terms of the Deed of Trust, estimated fees, charges and expenses of the Trustee and of the trusts created by said Deed of Trust, to-wit is estimated at AS SHOWN ABOVE
Accrued interest and additional advances, if any, may increase this gure prior to sale. The bene ciary under said Deed of Trust heretofore executed and delivered to the undersigned a written Declaration of Default and Demand for Sale, and a written Notice of Default and Election to Sell. The undersigned caused said Notice of Default and Election to Sell to be recorded in the county where the real property is located and more than three months have elapsed since such recordation. NOTICE TO POTENTIAL BIDDERS:
If you are considering bidding on this property lien, you should understand that there are risks involved in bidding at a trustee auction. You will be bidding on a lien, not on the property itself. Placing the highest bid at a trustee auction does not automatically entitle you to free and clear ownership of the property. You should also be aware that the lien being auctioned o may be a junior lien. If you are the highest bidder at the auction, you are or may be responsible for paying o all liens senior to the lien being auctioned o , before you can receive clear title to the property. You are encouraged to investigate the existence, priority, and size of outstanding liens that may exist on this property by contacting the county recorder’s o ce or a title insurance company, either of which may charge you a fee for this information. If you consult either of these resources, you should be aware that the same lender may hold more than one mortgage or deed of trust on the property.
NOTICE TO PROPERTY
OWNER: The sale date shown on this notice of sale may be postponed one or more times by the mortgagee, bene ciary, trustee, or a court, pursuant to Section 2924g of the California Civil Code. The law requires that information about trustee sale postponements be made available to you and to the public, as a courtesy to those not present at the sale. If you wish to learn whether your sale date has been postponed, and, if applicable, the rescheduled time and date for the sale of this property, you may call the number shown below in BOLD, using the REF number assigned to this case on SHOWN ABOVE. Information about postponements that are very short in duration or that occur close in time to the scheduled sale may not immediately be re ected in the telephone information or on the Internet Web site. The best way to verify postponement information is to attend the scheduled sale. Said sale will be made, but without covenant or warranty, expressed or implied, regarding title, possession, or encumbrances, to pay the remaining principal sum of the note(s) secured by said Deed of Trust, with interest thereon, as provided in said
note(s), advances, if any, under the terms of the Deed of Trust. The total amount of the unpaid balance of the obligation secured by the property to be sold and reasonable estimated fees, charges and expenses of the Trustee and of the trusts created by said Deed of Trust. IN ORDER TO BRING YOUR ACCOUNT CURRENT, PLEASE CONTACT ADVANCED FINANCIAL COMPANY AT PHONE NO. 800-234-6222 EXT 189 DATE: 7/2/2024 CHICAGO TITLE COMPANY, AS TRUSTEE 2121 PALOMAR AIRPORT ROAD, SUITE 330B CARLSBAD, CA 92011 PHONE NO. (858) 207-0646 BY LORI R. FLEMINGS, as Authorized Signor 07/12/2024, 07/19/2024, 07/26/2024 CN 29150
T.S. No. 116395-CA APN: 215-610-10-00 NOTICE OF TRUSTEE’S SALE IMPORTANT NOTICE TO PROPERTY OWNER: YOU ARE IN DEFAULT UNDER A DEED OF TRUST, DATED 10/11/2022. UNLESS YOU TAKE ACTION TO PROTECT YOUR PROPERTY, IT MAY BE SOLD AT A PUBLIC SALE. IF YOU NEED AN EXPLANATION OF THE NATURE OF THE PROCEEDING AGAINST YOU, YOU SHOULD CONTACT A LAWYER On 8/19/2024 at 10:30 AM, CLEAR RECON CORP, as duly appointed trustee under and pursuant to Deed of Trust recorded 10/19/2022 as Instrument No. 2022-0403319 of O cial Records in the o ce of the County Recorder of San Diego County, State of CALIFORNIA executed by: CHAD CHINIQUY AND KARIEN CHINIQUY, HUSBAND AND WIFE AS JOINT TENANTS WILL SELL AT PUBLIC AUCTION TO HIGHEST BIDDER FOR CASH, CASHIER’S CHECK DRAWN ON A STATE OR NATIONAL BANK, A CHECK DRAWN BY A STATE OR FEDERAL CREDIT UNION, OR A CHECK DRAWN BY A STATE OR FEDERAL SAVINGS AND LOAN ASSOCIATION, SAVINGS ASSOCIATION, OR SAVINGS BANK SPECIFIED IN SECTION 5102 OF THE FINANCIAL CODE AND AUTHORIZED TO DO BUSINESS IN THIS STATE; AT THE MAIN ENTRANCE TO THE EAST COUNTY REGIONAL CENTER BY STATUE, 250 E. MAIN STREET, EL CAJON, CA 92020 all right, title and interest conveyed to and now held by it under said Deed of Trust in the property situated in said County and State described as: MORE ACCURATELY DESCRIBED IN SAID DEED OF TRUST. The street address and other common designation, if any, of the real property described above is purported to be: 7124 AVIARA DR, CARLSBAD, CA 92011-4900 The undersigned Trustee disclaims any liability for any incorrectness of the street address and other common designation, if any, shown herein. Said sale will be held, but without covenant or warranty, express or implied, regarding title, possession, condition, or encumbrances, including fees, charges and expenses of the Trustee and of the trusts created by said Deed of Trust, to pay the remaining principal sums of the note(s) secured by said Deed of Trust. The total amount of the unpaid balance of the obligation secured by the property to be sold and reasonable estimated costs, expenses and advances at the time of the initial publication of the Notice of Sale is: $2,591,401.37 If the Trustee is unable to convey title for any reason, the successful bidder’s sole and exclusive remedy shall
be the return of monies paid to the Trustee, and the successful bidder shall have no further recourse. The bene ciary under said Deed of Trust heretofore executed and delivered to the undersigned a written Declaration of Default and Demand for Sale, and a written Notice of Default and Election to Sell. The undersigned or its predecessor caused said Notice of Default and Election to Sell to be recorded in the county where the real property is located. NOTICE TO POTENTIAL BIDDERS:
If you are considering bidding on this property lien, you should understand that there are risks involved in bidding at a trustee auction. You will be bidding on a lien, not on the property itself. Placing the highest bid at a trustee auction does not automatically entitle you to free and clear ownership of the property. You should also be aware that the lien being auctioned o may be a junior lien. If you are the highest bidder at the auction, you are or may be responsible for paying o all liens senior to the lien being auctioned o , before you can receive clear title to the property. You are encouraged to investigate the existence, priority, and size of outstanding liens that may exist on this property by contacting the county recorder’s o ce or a title insurance company, either of which may charge you a fee for this information. If you consult either of these resources, you should be aware that the same lender may hold more than one mortgage or deed of trust on the property.
NOTICE TO PROPERTY
OWNER: The sale date shown on this notice of sale may be postponed one or more times by the mortgagee, bene ciary, trustee, or a court, pursuant to Section 2924g of the California Civil Code. The law requires that information about trustee sale postponements be made available to you and to the public, as a courtesy to those not present at the sale. If you wish to learn whether your sale date has been postponed, and, if applicable, the rescheduled time and date for the sale of this property, you may call (855) 313-3319 or visit this Internet website www.clearreconcorp. com, using the le number assigned to this case 116395CA. Information about postponements that are very short in duration or that occur close in time to the scheduled sale may not immediately be re ected in the telephone information or on the Internet Web site. The best way to verify postponement information is to attend the scheduled sale. NOTICE TO TENANT: E ective January 1, 2021, you may have a right to purchase this property after the trustee auction pursuant to Section 2924m of the California Civil Code. If you are an “eligible tenant buyer,” you can purchase the property if you match the last and highest bid placed at the trustee auction. If you are an “eligible bidder,” you may be able to purchase the property if you exceed the last and highest bid placed at the trustee auction. There are three steps to exercising this right of purchase. First, 48 hours after the date of the trustee sale, you can call (855) 313-3319, or visit this internet website www. clearreconcorp.com, using the le number assigned to this case 116395-CA to nd the date on which the trustee’s sale was held, the amount of the last and highest bid, and the address of the trustee. Second, you must send a written notice of intent to place a bid so that the trustee receives it no more than 15 days after the trustee’s sale. Third, you must submit a bid so that the trustee receives it no more than 45 days after the trustee’s sale. If you think you may qualify as an “eligible tenant buyer” or
“eligible bidder,” you should consider contacting an attorney or appropriate real estate professional immediately for advice regarding this potential right to purchase. FOR SALES INFORMATION: (844) 4777869 CLEAR RECON CORP 3333 Camino Del Rio South, Suite 225 San Diego, California 92108 STOX 945909_116395CA 07/12/2024, 07/19/2024, 07/26/2024 CN 29147
BATCH: AFC-4029 NOTICE OF TRUSTEE’S SALE YOU ARE IN DEFAULT UNDER A DEED OF TRUST DATED AS SHOWN BELOW. UNLESS YOU TAKE ACTION TO PROTECT YOUR PROPERTY, IT MAY BE SOLD AT A PUBLIC SALE. IF YOU NEED AN EXPLANATION OF THE NATURE OF THE PROCEEDINGS AGAINST YOU, YOU SHOULD CONTACT A LAWYER.
CHICAGO TITLE COMPANY as the duly appointed Trustee under and pursuant to Deed of Trust Executed by: AS SHOWN BELOW, as Trustor, AS SHOWN BELOW, as Bene ciary, recorded on AS SHOWN BELOW as Instrument No. AS SHOWN BELOW of O cial Records of the County Recorder of SAN DIEGO County, California, and pursuant to the Notice of Default and Election to Sell there under recorded on AS SHOWN BELOW as Instrument No. AS SHOWN BELOW of said O cial Records. WILL SELL BY PUBLIC AUCTION TO THE HIGHEST BIDDER FOR CASH
On 7/26/2024 at 10:00 AM, AT THE FRONT ENTRANCE TO CHICAGO TITLE COMPANY 2121 PALOMAR AIRPORT ROAD. CARLSBAD CA
92011
(Payable at time of sale in lawful money of the United States, by cash, a cashier’s check drawn by a state or national bank, a check drawn by a state or federal credit union, or a check drawn by a state or federal savings and loan association, savings association, or savings bank), all right, title and interest conveyed to and now held by it under said Deed of Trust in the property situated in said County and State hereinafter described as more fully described on said Deed of Trust. The property heretofore described is being sold “as is”. The street address and other common designation, if any, of the real property described above is purported to be: 1594 MARBRISA CIRCLE, CARLSBAD, CA, 92008 TS#, CUSTOMER REF#, ICN#, Unit/Interval/Week, APN#, Trustors, Bene ciary, DOT Dated, DOT Recorded, DOT Instrument No., NOD Recorded, NOD Instrument No., Estimated Sales Amount 108718 B0561325P
GMP652323A1Z 6523
ANNUAL 23 211-13113-00 TERRY AALTO AND KATHRYN AALTO
HUSBAND AND WIFE AS JOINT TENANTS GRAND PACIFIC CARLSBAD LP. A CALIFORNIA LIMITED PARTNERSHIP 05/22/2023 10/19/2023 2023-0285735
3/29/2024 2024-0078844
$54021.92 108719 B0550665S
GMP691103D1O 6911
BIENNIAL ODD 3 211-131-1300 CARLI N. BARR A SINGLE WOMAN AS HER SOLE AND SEPARATE PROPERTY GRAND PACIFIC CARLSBAD LP. A CALIFORNIA LIMITED PARTNERSHIP 12/19/2022 02/09/2023 2023-0033118
3/29/2024 2024-0078844
$18471.27 108720 B0528475H GMP532213AZ 5322 ANNUAL 13 211-130-03-00 GREGORY
ALAN BOUFFARD AND DOREEN ROSE BOUFFARD HUSBAND AND WIFE AS JOINT TENANTS GRAND
PACIFIC CARLSBAD LP. A CALIFORNIA LIMITED PARTNERSHIP 12/05/2019 12/19/2019 2019-0594625
3/29/2024 2024-0078844
$29268.32 108721 B0526015S GMP662320D1E 6623
BIENNIAL EVEN 20 211131-13-00 TROY BOWERS AND MICHELE BUNNAGE HUSBAND AND WIFE AS JOINT TENANTS GRAND PACIFIC CARLSBAD LP. A CALIFORNIA LIMITED PARTNERSHIP 09/30/2019 10/17/2019 2019-0467562 3/29/2024 2024-0078844
$14554.85 108722 B0505855C GMP601244A1O 6012
BIENNIAL ODD 44 211-13111-00 MICHAEL J. CLINGER AND PATRICIA A. CLINGER HUSBAND AND WIFE AS JOINT TENANTS GRAND PACIFIC CARLSBAD LP. A CALIFORNIA LIMITED PARTNERSHIP 06/16/2018 07/05/2018 2018-0273152
3/29/2024 2024-0078844
$15146.99 108723 B0509915C GMP612123A1Z 6121 ANNUAL 23 211-131-1100 RICK L. DOBSON AND BOBBI K. DOBSON HUSBAND AND WIFE AS JOINT TENANTS GRAND PACIFIC CARLSBAD LP. A CALIFORNIA LIMITED PARTNERSHIP 08/20/2018 09/20/2018 2018-0393304 3/29/2024 2024-0078844
$30016.82 108724 B0551935P GMO603101D1O 6031
BIENNIAL ODD 1 211-13111-00 LAUREN MARGARET ELLIS AND JUSTIN PAUL ELLIS WIFE AND HUSBAND AS JOINT TENANTS GRAND PACIFIC CARLSBAD LP. A CALIFORNIA LIMITED PARTNERSHIP 01/27/2023 03/09/2023 2023-0059973
3/29/2024 2024-0078844
$17532.78 108725 B0424635H GMP581120D1Z 5811 ANNUAL 20 211-131-05-00
DONALD EVJEN GIBSON AND CARINA PERICO GIBSON HUSBAND AND WIFE AS JOINT TENANTS GRAND PACIFIC CARLSBAD LP. A CALIFORNIA LIMITED PARTNERSHIP 02/16/2014 03/13/2014 20140099473 3/29/2024 20240078844 $10052.60 108726 B0560725P GMP661307A1Z 6613 ANNUAL 7 211-13113-00 STEPHANIE WHA YEE HONG A MARRIED WOMAN AS HER SOLE AND SEPARATE PROPERTY GRAND PACIFIC CARLSBAD LP. A CALIFORNIA LIMITED PARTNERSHIP 09/02/2023 09/21/2023 2023-0256431 3/29/2024 2024-0078844
$40747.02 108727 B0531285C GMS8020751L3Z 80207 ANNUAL 51 212-271-04-00
JENNIFER L. LONG A(N) UNMARRIED WOMAN AS SOLE AND SEPARATE PROPERTY GRAND PACIFIC CARLSBAD LP. A CALIFORNIA LIMITED PARTNERSHIP 07/08/2020 07/23/2020 2020-0398427
3/29/2024 2024-0078844
$69156.54 108728 B0521125H GMP8010516BE 80105
BIENNIAL EVEN 16 212271-04-00 JENNISE LOPEZ A(N) UNMARRIED WOMAN AS SOLE AND SEPARATE PROPERTY GRAND PACIFIC CARLSBAD LP. A CALIFORNIA LIMITED PARTNERSHIP 03/13/2019 05/23/2019 2019-0195756
3/29/2024 2024-0078844
$18312.71 108729 B0524265H GMS8020435BZ 80204
ANNUAL 35 212-271-04-00
AMPARO V. MADRIGAL A(N)
MARRIED WOMAN AS SOLE AND SEPARATE PROPERTY
GRAND PACIFIC CARLSBAD LP. A CALIFORNIA LIMITED PARTNERSHIP 10/28/2018 08/15/2019 2019-0345257
3/29/2024 2024-0078844
$30086.53 108730 B0553115H GMO512309D1O 5123
BIENNIAL ODD 9 211-13002-00 ASHER STERLING
PLUTO A SINGLE MAN AS HIS SOLE AND SEPARATE PROPERTY GRAND PACIFIC CARLSBAD LP. A CALIFORNIA LIMITED PARTNERSHIP 01/24/2023
03/23/2023 2023-0074519
3/29/2024 2024-0078844
$17658.26 108732 B0532915P GMO613440A1Z 6134
ANNUAL 40 211-131-11-00
DENNIS JOE STORCH A SINGLE MAN AS HIS SOLE AND SEPARATE PROPERTY GRAND PACIFIC CARLSBAD LP. A CALIFORNIA LIMITED PARTNERSHIP 11/12/2020 12/17/2020 2020-0811133
3/29/2024 2024-0078844
$49002.54 108733 B0544895S GMS8030650L3Z 80306 ANNUAL 50 212-271-0400 MICHAEL TSUAN AND CHRISTINA TSUAN
HUSBAND AND WIFE AS JOINT TENANTS GRAND PACIFIC CARLSBAD LP.
A CALIFORNIA LIMITED
PARTNERSHIP 08/03/2022 08/18/2022 2022-0333583
3/29/2024 2024-0078844
$35822.98 108734 B0455185H
GMP653208D1E 6532
BIENNIAL EVEN 8 211131-13-00 DAVID LEON AND FEIRA G. VILLALBA HUSBAND AND WIFE AS JOINT TENANTS GRAND PACIFIC CARLSBAD LP. A CALIFORNIA LIMITED PARTNERSHIP 10/18/2015 11/05/2015 2015-0578411 3/29/2024 2024-0078844
$10043.30 108735
B0532375H GMO511114D1O 5111 BIENNIAL ODD 14 211-130-02-00 THOMAS WEBER AND KELLY WEBER HUSBAND AND WIFE AS JOINT TENANTS GRAND PACIFIC CARLSBAD LP. A CALIFORNIA LIMITED PARTNERSHIP 10/09/2020 10/22/2020 2020-0647123
3/29/2024 2024-0078844
$16931.23 108736 B0549685S GMO561348D1O 5613
BIENNIAL ODD 48 211130-03-00 MARY TERESA WHITE A SINGLE WOMAN AS HER SOLE AND SEPARATE PROPERTY GRAND PACIFIC CARLSBAD LP. A CALIFORNIA LIMITED PARTNERSHIP 10/26/2022 01/05/2023 2023-0002534
3/29/2024 2024-0078844
$15467.55
The undersigned Trustee disclaims any liability for any incorrectness of the street address and other common designation, if any, shown herein. Said sale will be made, but without covenant or warranty, expressed or implied, regarding title, possession, or encumbrances, to pay the remaining principal sum of the note(s) secured by said Deed of Trust, with interest thereon, as provided in said note(s), advances, if any, under the terms of the Deed of Trust, estimated fees, charges and expenses of the Trustee and of the trusts created by said Deed of Trust, to-wit is estimated at AS SHOWN ABOVE Accrued interest and additional advances, if any, may increase this gure prior to sale. The bene ciary under said Deed of Trust heretofore executed and delivered to the undersigned a written Declaration of Default and Demand for Sale, and a written Notice of Default and Election to Sell. The undersigned caused said Notice of Default and Election to Sell to be recorded in the county where the real property is located and more than three months have elapsed since such recordation. NOTICE TO POTENTIAL BIDDERS:
If you are considering bidding on this property lien, you should understand that there are risks involved in bidding at a trustee auction. You will be bidding on a lien, not on the property itself. Placing the highest bid at a trustee auction does not automatically entitle you to free and clear ownership of the property. You should also be aware that the lien being auctioned o may
be a junior lien. If you are the highest bidder at the auction, you are or may be responsible for paying o all liens senior to the lien being auctioned o , before you can receive clear title to the property. You are encouraged to investigate the existence, priority, and size of outstanding liens that may exist on this property by contacting the county recorder’s o ce or a title insurance company, either of which may charge you a fee for this information. If you consult either of these resources, you should be aware that the same lender may hold more than one mortgage or deed of trust on the property. NOTICE TO PROPERTY OWNER: The sale date shown on this notice of sale may be postponed one or more times by the mortgagee, bene ciary, trustee, or a court, pursuant to Section 2924g of the California Civil Code. The law requires that information about trustee sale postponements be made available to you and to the public, as a courtesy to those not present at the sale. If you wish to learn whether your sale date has been postponed, and, if applicable, the rescheduled time and date for the sale of this property, you may call the number shown below in BOLD, using the REF number assigned to this case on SHOWN ABOVE. Information about postponements that are very short in duration or that occur close in time to the scheduled sale may not immediately be re ected in the telephone information or on the Internet Web site. The best way to verify postponement information is to attend the scheduled sale. Said sale will be made, but without covenant or warranty, expressed or implied, regarding title, possession, or encumbrances, to pay the remaining principal sum of the note(s) secured by said Deed of Trust, with interest thereon, as provided in said note(s), advances, if any, under the terms of the Deed of Trust. The total amount of the unpaid balance of the obligation secured by the property to be sold and reasonable estimated fees, charges and expenses of the Trustee and of the trusts created by said Deed of Trust. IN ORDER TO BRING YOUR ACCOUNT CURRENT, PLEASE CONTACT ADVANCED FINANCIAL COMPANY AT PHONE NO. 800-234-6222 EXT 189
DATE: 7/1/2024 CHICAGO TITLE COMPANY, AS TRUSTEE 2121 PALOMAR AIRPORT ROAD, SUITE 330B CARLSBAD, CA 92011 PHONE NO. (858) 207-0646 BY LORI R. FLEMINGS, as Authorized Signor 07/05/2024, 07/12/2024, 07/19/2024, CN 29123
BATCH: AFC-4028 NOTICE OF TRUSTEE’S SALE YOU ARE IN DEFAULT UNDER A DEED OF TRUST DATED AS SHOWN BELOW. UNLESS YOU TAKE ACTION TO PROTECT YOUR PROPERTY, IT MAY BE SOLD AT A PUBLIC SALE. IF YOU NEED AN EXPLANATION OF THE NATURE OF THE PROCEEDINGS AGAINST YOU, YOU SHOULD CONTACT A LAWYER. CHICAGO TITLE COMPANY as the duly appointed Trustee under and pursuant to Deed of Trust Executed by: AS SHOWN BELOW, as Trustor, AS SHOWN BELOW, as Bene ciary, recorded on AS SHOWN BELOW as Instrument No. AS SHOWN
13-00 ROBERTA LANDETTE
BELOW of O cial Records of the County Recorder of SAN DIEGO County, California, and pursuant to the Notice of Default and Election to Sell there under recorded on AS SHOWN BELOW as Instrument No. AS SHOWN BELOW of said O cial Records. WILL SELL BY PUBLIC AUCTION TO THE HIGHEST BIDDER FOR CASH On 7/26/2024 at 10:00 AM, AT THE FRONT ENTRANCE TO CHICAGO TITLE COMPANY 2121 PALOMAR AIRPORT ROAD. CARLSBAD CA 92011
(Payable at time of sale in lawful money of the United States, by cash, a cashier’s check drawn by a state or national bank, a check drawn by a state or federal credit union, or a check drawn by a state or federal savings and loan association, savings association, or savings bank), all right, title and interest conveyed to and now held by it under said Deed of Trust in the property situated in said County and State hereinafter described as more fully described on said Deed of Trust. The property heretofore described is being sold “as is”. The street address and other common designation, if any, of the real property described above is purported to be: 1594 MARBRISA CIRCLE, CARLSBAD, CA, 92008 TS#, CUSTOMER REF#, ICN#, Unit/Interval/Week, APN#, Trustors, Bene ciary, DOT Dated, DOT Recorded, DOT Instrument No., NOD Recorded, NOD Instrument No., Estimated Sales Amount 108699 B0553245H
GMP582301A1Z 5823
ANNUAL 01 211-131-1100 MOHAMED AMINE
BELAKHDAR A SINGLE MAN AS HIS SOLE AND SEPARATE PROPERTY GRAND PACIFIC CARLSBAD
LP.
A CALIFORNIA
LIMITED PARTNERSHIP
01/13/2023 03/23/2023 20230074457 3/29/2024 20240078845 $36637.62 108700
B0472725H GMO604251L2Z
6042 ANNUAL 51 211-13111-00 BRUCE P. BEQUETTE AND BRENDA C. BEQUETTE
HUSBAND AND WIFE AS JOINT TENANTS GRAND
PACIFIC CARLSBAD LP.
A CALIFORNIA LIMITED
PARTNERSHIP 08/25/2016
09/08/2016 2016-0469945
3/29/2024 2024-0078845
$38035.34 108701 B0516405A
GMP582107B1Z 5821
ANNUAL 07 211-131-11-00
ZACKARIA BINDAR AND HARVEST D. KITTANI
HUSBAND AND WIFE AS JOINT TENANTS GRAND
PACIFIC CARLSBAD LP.
A CALIFORNIA LIMITED
PARTNERSHIP 12/24/2018
01/31/2019 2019-0035439
3/29/2024 2024-0078845
$20761.82 108702 B0499665C
GMP611131A1Z 6111 ANNUAL
31 211-131-11-00 CHARLES BURKS JR. A(N) SINGLE
MAN AS SOLE AND
SEPARATE PROPERTY
GRAND PACIFIC CARLSBAD
LP. A CALIFORNIA LIMITED
PARTNERSHIP 02/10/2018
03/08/2018 2018-0090672
3/29/2024 2024-0078845
$31825.25 108703 B0555855S
GMP651310D1O 6513
BIENNIAL ODD 10 211-13113-00 REBA M. ESCHMANN
A SINGLE WOMAN AS HER SOLE AND SEPARATE PROPERTY GRAND PACIFIC CARLSBAD LP.
A CALIFORNIA LIMITED
PARTNERSHIP 04/07/2023
05/04/2023 20230116248 3/29/2024 20240078845 $19166.17 108704 B0524135H GMP681108D1O 6811 BIENNIAL ODD 08 211-131-13-00 ISMAEL
FLORES AND NICHOLE LEE COURTRIGHT HUSBAND AND WIFE AS JOINT TENANTS GRAND
PACIFIC CARLSBAD LP. A CALIFORNIA LIMITED PARTNERSHIP 07/30/2019 08/15/2019 2019-0345249
3/29/2024 2024-0078845
$14622.12 108705 B0556835S GMP663104BZ 6631 ANNUAL 04 211-131-13-00
IRVING OMAR JIMENEZ AND MARIA DEL ROCIO ACOSTA HUSBAND AND WIFE AS JOINT TENANTS GRAND PACIFIC CARLSBAD LP. A CALIFORNIA LIMITED PARTNERSHIP 03/30/2023 05/25/2023 2023-0137102 3/29/2024 2024-0078845 $30725.48 108706 B0492605H GMP602339A1O 6023 BIENNIAL ODD 39 211-131-11-00 DAVID J. KIRK AND SANDRA L. KIRK
HUSBAND AND WIFE AS JOINT TENANTS GRAND PACIFIC CARLSBAD LP.
A CALIFORNIA LIMITED PARTNERSHIP 08/29/2017 11/01/2017 2017-0445034 3/29/2024 2024-0078845 $19061.54 108707 B0518955S GMS8020652L3Z 80206 ANNUAL 52 212-271-04-00
JENNIFER L. LONG A(N) UNMARRIED WOMAN AS SOLE AND SEPARATE PROPERTY GRAND PACIFIC CARLSBAD LP. A CALIFORNIA LIMITED PARTNERSHIP 03/22/2019 04/04/2019 2019-0119943 3/29/2024 2024-0078845
$68305.27 108708
B0524225H GMO613340D1E 6133 BIENNIAL EVEN 40 211-131-11-00 JUDESTHER MARC AND KERBIE MARC HUSBAND AND WIFE AS JOINT TENANTS GRAND PACIFIC CARLSBAD LP.
A CALIFORNIA LIMITED PARTNERSHIP 07/23/2019 08/15/2019 2019-0345128 3/29/2024 2024-0078845
$10047.90 108709 B0545465P GMP692407D1Z 6924
ANNUAL 07 211-131-13-00
VICKI L. MOORE A SINGLE WOMAN AS HER SOLE AND SEPARATE PROPERTY GRAND PACIFIC CARLSBAD LP. A CALIFORNIA LIMITED PARTNERSHIP 08/07/2022
09/08/2022 2022-0356743
3/29/2024 2024-0078845 $21894.79 108710 B0451795H
GMP651102D1E 6511
BIENNIAL EVEN 02 211131-13-00 MIKE ALAN PAQUETTE AND CORINA PAQUETTE HUSBAND AND WIFE AS JOINT TENANTS GRAND PACIFIC CARLSBAD LP. A CALIFORNIA LIMITED PARTNERSHIP 08/22/2015 09/10/2015 2015-0477661 3/29/2024 2024-0078845 $13508.83 108711 B0518415C GMP602250D1O 6022
BIENNIAL ODD 50 211-131-1100 BRANDON ALLAN SIPE AND KAITLYN DANIELLE INNESS HUSBAND AND WIFE AS JOINT TENANTS GRAND PACIFIC CARLSBAD LP. A CALIFORNIA LIMITED PARTNERSHIP 02/28/2019 03/21/2019 2019-0100861 3/29/2024 2024-0078845 $15123.20 108712 B0553795S GMP702116D1E 7021
BIENNIAL EVEN 16 211131-13-00 PAULA STEWART A SINGLE WOMAN AND CHARLES DWAYNE HEWLETT A SINGLE MAN AS JOINT TENANTS GRAND PACIFIC CARLSBAD LP.
A CALIFORNIA LIMITED PARTNERSHIP 11/26/2022
03/30/2023 2023-0081980 3/29/2024 2024-0078845
$17906.40 108713 B0526565C
GMP612312D1Z 6123
ANNUAL 12 211-131-11-00
ANTONIA M. TJADEN A(N)
UNMARRIED WOMAN AS SOLE AND SEPARATE PROPERTY GRAND
PACIFIC CARLSBAD LP.
A CALIFORNIA LIMITED
PARTNERSHIP 10/08/2019
10/31/2019 2019-0497143
3/29/2024 2024-0078845
$18711.32 108714 B0551205C
GMP681102D1E 6811
BIENNIAL EVEN 02 211-131-
TOWNES AND STEVE
CALLOWAY TOWNES WIFE AND HUSBAND AS JOINT TENANTS GRAND
PACIFIC CARLSBAD LP.
A CALIFORNIA LIMITED
PARTNERSHIP 11/17/2022
03/03/2023 2023-0054795
3/29/2024 2024-0078845
$18596.38 108715 B0506575H
GMP8010521BO 80105
BIENNIAL ODD 21 212271-04-00 ROBERT
BENJAMIN WIENERT AND ROMINA LAYGO WIENERT
HUSBAND AND WIFE AS JOINT TENANTS GRAND
PACIFIC CARLSBAD LP.
A CALIFORNIA LIMITED
PARTNERSHIP 06/28/2018
07/12/2018 2018-0283499
3/29/2024 2024-0078845
$13823.41 108716 B0551195C
GMP702208D1O 8022
BIENNIAL ODD 08 211131-13-00 JOEL PETER
WILLIAMS A MARRIED MAN AS HIS SOLE AND SEPARATE PROPERTY GRAND PACIFIC CARLSBAD LP. A CALIFORNIA LIMITED
PARTNERSHIP 10/28/2022
03/02/2023 2023-0053574
3/29/2024 2024-0078845
$17385.50 108717 B0497985H
GMP612446D1E 6124
BIENNIAL EVEN 46 211-13111-00 MARLA R. ZUNI A(N)
SINGLE WOMAN AS SOLE AND SEPARATE PROPERTY
GRAND PACIFIC CARLSBAD
LP. A CALIFORNIA LIMITED
PARTNERSHIP 12/16/2017
01/25/2018 2018-0029828
3/29/2024 2024-0078845
$13671.70
The undersigned Trustee disclaims any liability for any incorrectness of the street address and other common designation, if any, shown herein. Said sale will be made, but without covenant or warranty, expressed or implied, regarding title, possession, or encumbrances, to pay the remaining principal sum of the note(s) secured by said Deed of Trust, with interest thereon, as provided in said note(s), advances, if any, under the terms of the Deed of Trust, estimated fees, charges and expenses of the Trustee and of the trusts created by said Deed of Trust, to-wit is estimated at AS SHOWN ABOVE Accrued interest and additional advances, if any, may increase this gure prior to sale. The bene ciary under said Deed of Trust heretofore executed and delivered to the undersigned a written Declaration of Default and Demand for Sale, and a written Notice of Default and Election to Sell. The undersigned caused said Notice of Default and Election to Sell to be recorded in the county where the real property is located and more than three months have elapsed since such recordation. NOTICE TO POTENTIAL BIDDERS:
If you are considering bidding on this property lien, you should understand that there are risks involved in bidding at a trustee auction. You will be bidding on a lien, not on the property itself. Placing the highest bid at a trustee auction does not automatically entitle you to free and clear ownership of the property. You should also be aware that the lien being auctioned o may be a junior lien. If you are the highest bidder at the auction, you are or may be responsible for paying o all liens senior to the lien being auctioned o , before you can receive clear title to the property. You are encouraged to investigate the existence, priority, and size of outstanding liens that may exist on this property by contacting the county recorder’s o ce or a title insurance company, either of which may charge you a fee for this information. If you consult either of these resources, you should be aware that the same lender may hold more than one mortgage or deed of trust on the property. NOTICE TO PROPERTY
OWNER: The sale date shown on this notice of sale may be postponed one or more times by the mortgagee, bene ciary, trustee, or a court, pursuant to Section 2924g of the California Civil Code. The law requires that information about trustee sale postponements be made available to you and to the public, as a courtesy to those not present at the sale. If you wish to learn whether your sale date has been postponed, and, if applicable, the rescheduled time and date for the sale of this property, you may call the number shown below in BOLD, using the REF number assigned to this case on SHOWN ABOVE. Information about postponements that are very short in duration or that occur close in time to the scheduled sale may not immediately be re ected in the telephone information or on the Internet Web site. The best way to verify postponement information is to attend the scheduled sale. Said sale will be made, but without covenant or warranty, expressed or implied, regarding title, possession, or encumbrances, to pay the remaining principal sum of the note(s) secured by said Deed of Trust, with interest thereon, as provided in said note(s), advances, if any, under the terms of the Deed of Trust. The total amount of the unpaid balance of the obligation secured by the property to be sold and reasonable estimated fees, charges and expenses of the Trustee and of the trusts created by said Deed of Trust. IN ORDER TO BRING YOUR ACCOUNT CURRENT, PLEASE CONTACT ADVANCED FINANCIAL COMPANY AT PHONE NO. 800-234-6222 EXT 189 DATE: 7/1/2024
CHICAGO TITLE COMPANY, AS TRUSTEE 2121 PALOMAR AIRPORT ROAD, SUITE 330B CARLSBAD, CA 92011 PHONE NO. (858) 207-0646 BY LORI R. FLEMINGS, as Authorized Signor 07/05/224, 07/12/2024, 07/19/2024 CN 29122
BATCH: AFC-4025 NOTICE OF TRUSTEE’S SALE YOU ARE IN DEFAULT UNDER A DEED OF TRUST DATED AS SHOWN BELOW. UNLESS YOU TAKE ACTION TO PROTECT YOUR PROPERTY, IT MAY BE SOLD AT A PUBLIC SALE. IF YOU NEED AN EXPLANATION OF THE NATURE OF THE PROCEEDINGS AGAINST YOU, YOU SHOULD CONTACT A LAWYER.
CHICAGO TITLE COMPANY as the duly appointed Trustee under and pursuant to Deed of Trust Executed by: AS SHOWN BELOW, as Trustor, AS SHOWN BELOW, as Bene ciary, recorded on AS SHOWN BELOW as Instrument No. AS SHOWN BELOW of O cial Records of the County Recorder of SAN DIEGO County, California, and pursuant to the Notice of Default and Election to Sell there under recorded on AS SHOWN BELOW as Instrument No. AS SHOWN BELOW of said O cial Records.
WILL SELL BY PUBLIC AUCTION TO THE HIGHEST BIDDER FOR CASH
On 7/26/2024 at 10:00 AM, THE FRONT ENTRANCE TO CHICAGO TITLE COMPANY 2121 PALOMAR AIRPORT ROAD CARLSBAD CA 92011
(Payable at time of sale in lawful money of the United States, by cash, a cashier’s check drawn by a state or national bank, a check drawn by a state or federal credit union, or a check drawn by a state or federal savings and loan association,
savings association, or savings bank), all right, title and interest conveyed to and now held by it under said Deed of Trust in the property situated in said County and State hereinafter described as more fully described on said Deed of Trust. The property heretofore described is being sold “as is”. The street address and other common designation, if any, of the real property described above is purported to be: 3075 CARLSBAD BLVD, CARLSBAD, CA, 92009 TS#, CUSTOMER REF#, ICN#, Unit/Interval/Week, APN#, Trustors, Bene ciary, DOT Dated, DOT Recorded, DOT Instrument No., NOD Recorded, NOD Instrument No., Estimated Sales Amount 108649 A0525517R CBI34130A 341 30 203-25469-30 CRAIG MAGGI AND SARA MAGGI HUSBAND AND WIFE AND CHRISTIAN J. MAGGI A SINGLE MAN ALL AS JOINT TENANTS ADVANCED COMMERCIAL CORPORATION A CALIFORNIA CORPORATION 07/15/2019 10/08/2019 2019-0449169 3/29/2024 2024-0078814 $31195.57
The undersigned Trustee disclaims any liability for any incorrectness of the street address and other common designation, if any, shown herein. Said sale will be made, but without covenant or warranty, expressed or implied, regarding title, possession, or encumbrances, to pay the remaining principal sum of the note(s) secured by said Deed of Trust, with interest thereon, as provided in said note(s), advances, if any, under the terms of the Deed of Trust, estimated fees, charges and expenses of the Trustee and of the trusts created by said Deed of Trust, to-wit is estimated at AS SHOWN ABOVE Accrued interest and additional advances, if any, may increase this gure prior to sale. The bene ciary under said Deed of Trust heretofore executed and delivered to the undersigned a written Declaration of Default and Demand for Sale, and a written Notice of Default and Election to Sell. The undersigned caused said Notice of Default and Election to Sell to be recorded in the county where the real property is located and more than three months have elapsed since such recordation. NOTICE TO POTENTIAL BIDDERS:
If you are considering bidding on this property lien, you should understand that there are risks involved in bidding at a trustee auction. You will be bidding on a lien, not on the property itself. Placing the highest bid at a trustee auction does not automatically entitle you to free and clear ownership of the property. You should also be aware that the lien being auctioned o may be a junior lien. If you are the highest bidder at the auction, you are or may be responsible for paying o all liens senior to the lien being auctioned o , before you can receive clear title to the property. You are encouraged to investigate the existence, priority, and size of outstanding liens that may exist on this property by contacting the county recorder’s o ce or a title insurance company, either of which may charge you a fee for this information. If you consult either of these resources, you should be aware that the same lender may hold more than one mortgage or deed of trust on the property.
NOTICE TO PROPERTY
OWNER: The sale date shown on this notice of sale may be postponed one or more times by the mortgagee, bene ciary, trustee, or a court, pursuant to Section 2924g of the California Civil Code. The law requires that information about trustee sale postponements be made available to you and to the
public, as a courtesy to those not present at the sale. If you wish to learn whether your sale date has been postponed, and, if applicable, the rescheduled time and date for the sale of this property, you may call the number shown below in BOLD, using the REF number assigned to this case on SHOWN ABOVE. Information about postponements that are very short in duration or that occur close in time to the scheduled sale may not immediately be re ected in the telephone information or on the Internet Web site. The best way to verify postponement information is to attend the scheduled sale. Said sale will be made, but without covenant or warranty, expressed or implied, regarding title, possession, or encumbrances, to pay the remaining principal sum of the note(s) secured by said Deed of Trust, with interest thereon, as provided in said note(s), advances, if any, under the terms of the Deed of Trust. The total amount of the unpaid balance of the obligation secured by the property to be sold and reasonable estimated fees, charges and expenses of the Trustee and of the trusts created by said Deed of Trust. IN ORDER TO BRING YOUR ACCOUNT CURRENT, PLEASE CONTACT ADVANCED FINANCIAL COMPANY AT PHONE NO. 800-234-6222 EXT 189 DATE: 7/1/2024 CHICAGO TITLE COMPANY, AS TRUSTEE 2121 PALOMAR AIRPORT ROAD, SUITE 330B CARLSBAD, CA 92011 PHONE NO. (858) 207-0646 BY LORI R. FLEMINGS, as Authorized Signor 07/05/2024, 07/12/2024, 07/19/2024 CN 29121
ORDER TO SHOW CAUSECHANGE OF NAME CASE# 24CU001082N TO ALL INTERESTED
PERSONS:
Petitioner(s): Carla Hassanna Cole led a petition with this court for a decree changing name as follows: a. Present name: Carla Hassanna Cole change to proposed name: Carla Hassanna Carrasco THE COURT ORDERS that all persons interested in this matter appear before this Court at the hearing indicated below to show cause, if any, why the petition for a change of name should not be granted. Any person objecting to the name changes described above must le a written objection that includes the reasons for the objection at least two court days before the matter is scheduled to be heard and must appear at the hearing to show cause why the petition should not be granted. If no written objection is timely led, the court may grant the petition without a hearing.
NOTICE OF HEARING: On August 30, 2024 at 8:30 a.m., in Dept. N-25 of the Superior Court of California, 325 S Melrose Dr., Vista CA 92081, North County Division. (To appear remotely, check in advance of the hearing for information about how to do so on the court’s website. To nd your court’s website, go to www. courts.ca.gov/find-my-court. htm.) NO HEARING WILL OCCUR ON THE DATE SPECIFIED IN THE ORDER TO SHOW CAUSE. The court will review the documents led as of the date speci ed on the Order to Show Cause for Change of Name (JC Form #NC-120). If all requirements for a name change have been met as of the date speci ed, and no timely written objection has been received (required at least two court days before the date speci ed), the Petition for Change of Name (JC Form
#NC-100) will be granted without a hearing. One copy of the Order Granting the Petition will be mailed to the petitioner. To change a name on a legal document, including a birth certi cate, social security card, driver license, passport, and other identi cation, a certi ed copy of Decree Changing Name (JC Form #NC-130) or Decree Changing Name and Order Recognizing Change of Gender and for Issuance of New Birth Certi cate (JC Form #NC-230) may be required. Contact the agency(ies) who issues the legal document that needs to be changed, to determine if a certi ed copy is required. A certi ed copy of Decree Changing Name (JC Form #NC-130) or Decree Changing Name and Order Recognizing Change of Gender and for Issuance of New Birth’ Certi cate (JC Form #NC230) may be obtained from the Civil Business O ce for a fee. Petitioners who are seeking a change of name under the Safe at Home program may contact the assigned department for information on obtaining certi ed copies. If all the requirements have not been met as of the date speci ed, the court will mail the petitioner a written order with further directions. If a timely objection is led the court will set a hearing date and contact the parties by mail with further directions. A RESPONDENT OBJECTING TO THE NAME CHANGE MUST FILE A WRITTEN OBJECTION AT LEAST TWO COURT DAYS (excluding weekends and holidays) BEFORE THE DATE SPECIFIED. Do not come to court on the speci ed date. The court will notify the parties by mail of a future hearing date. Any Petition for the name change of a minor that is signed by only one parent must have this Attachment served along with the Petition and Order to Show Cause, on the other non-signing parent, and proof of service must be led with the court. IT IS SO ORDERED. Filed Date: 07/16/2024 Brad A. Weinreb Judge of the Superior Court. 07/19, 07/26, 08/02, 08/09/2024 CN 29205
NOTICE OF PETITION TO RANDALL JAY WILSON Case# 24PE001691C To all heirs, bene ciaries, creditors, contingent creditors, and persons who may otherwise be interested in the will or estate, or both, of Randall Jay Wilson A Petition for Probate has been led by Charlene Elizabeth Wilson, in the Superior Court of California, County of San Diego. The Petition for Probate requests that Charlene Elizabeth Wilson be appointed as personal representative to administer the estate of the decedent.
The petition requests authority to administer the estate under the Independent Administration of Estates Act. (This authority will allow the personal representative to take many actions without obtaining court approval. Before taking certain very important actions, however, the personal representative will be required to give notice to interested persons unless they have waived notice or consented to the proposed action.) The independent administration authority will be granted unless an interested person les an objection to the petition and shows good cause why the court should not grant the authority.
A hearing on the petition will be held in this court as follows: Date: August 21, 2024; Time: 1:30 PM; in Dept.: 1603. Court address:
1100 Union St., San Diego CA 92101, Central Courthouse.
https://www.sdcourt.ca.gov/ sdcourt/probate2/probatevh
Court appearances may be made either in person or virtually, unless otherwise ordered by the Court. Virtual appearances must be made using the department’s Microsoft Teams (“MS Teams”) video link; or by calling the department’s MS Teams conference phone number and using the assigned conference ID number. The MS Teams video conference links and phone numbers can be found at www.sdcourt.ca.gov/ ProbateHearings. Plan to check in 15 minutes prior to the scheduled hearing time.
If you object to the granting of the petition, you should appear at the hearing and state your objections or le written objections with the court before the hearing. Your appearance may be in person or by your attorney.
If you are a creditor or a contingent creditor of the decedent, you must le your claim with the court and mail a copy to the personal representative appointed by the court within the later of either (1) four months from the date of rst issuance of letters to a general personal representative, as de ned in section 58(b) of the California Probate Code, or (2) 60 days from the date of mailing or personal delivery to you of a notice under section 9052 of the California Probate Code. Other California statutes and legal authority may a ect your rights as a creditor. You may want to consult with an attorney knowledgeable in California law.
You may examine the le kept by the court. If you are a person interested in the estate, you may le with the court a Request for Special Notice (form DE-154) of the ling of an inventory and appraisal of estate assets or of any petition or account as provided in Probate Code section 1250.
A Request for Special Notice form is available from the court clerk.
Petitioner:
Charlene Elizabeth Wilson 2743 Treetops Way Santa Rosa CA 95404 Telephone: 415.421.4153 07/19, 07/26, 08/02/2024 CN 29204
NOTICE OF PETITION TO ADMINISTER ESTATE OF DARLENE SLETTEN Case# 24PE001729C
To all heirs, bene ciaries, creditors, contingent creditors, and persons who may otherwise be interested in the will or estate, or both, of Darlene Sletten
A Petition for Probate has been led by Janina Sakiewicz in the Superior Court of California, County of San Diego – Central Division. The Petition for Probate requests that Robert Michero be appointed as personal representative to administer the estate of the decedent. The petition requests the decedent’s will and codicils, if any, be admitted to probate.
The will and any codicils are available for examination in the le kept by the court.
A hearing on the petition will be held in this court as follows: Date: August 21, 2024; Time: 1:30 PM; in Dept.: 1603; Court address: 1100 Union St., San Diego CA 92101, Central Courthouse. https://www.sdcourt.ca.gov/ sdcourt/probate2/probatevh
*Court appearances may be made either in person or virtually, unless otherwise ordered by the Court. Virtual appearances must be made using the department’s Microsoft Teams (“MS Teams”) video link; or by calling the department’s MS Teams conference phone number and
using the assigned conference ID number. The MS Teams video conference links and phone numbers can be found at www.sdcourt.ca.gov/ ProbateHearings. Plan to check in 15 minutes prior to the scheduled hearing time.
If you object to the granting of the petition, you should appear at the hearing and state your objections or le written objections with the court before the hearing. Your appearance may be in person or by your attorney.
If you are a creditor or a contingent creditor of the decedent, you must le your claim with the court and mail a copy to the personal representative appointed by the court within the later of either (1) four months from the date of rst issuance of letters to a general personal representative, as de ned in section 58(b) of the California Probate Code, or (2) 60 days from the date of mailing or personal delivery to you of a notice under section 9052 of the California Probate Code. Other California statutes and legal authority may a ect your rights as a creditor. You may want to consult with an attorney knowledgeable in California law. You may examine the le kept by the court. If you are a person interested in the estate, you may le with the court a Request for Special Notice (form DE-154) of the ling of an inventory and appraisal of estate assets or of any petition or account as provided in Probate Code section 1250. A Request for Special Notice form is available from the court clerk.
Attorney for Petitioner: Gregory J Belnap, Esq. Hillary Verheyen, Esq. 400 S. Melrose Dr., Ste 111 Vista CA 92081 Telephone: 760.305.1334 07/19, 07/26, 08/02/2024 CN 29203
Notice of Public Sale of Personal Property
Pursuant to the California Self-Storage Facility Act (B & P Code 21700 et seq.) The undersigned will sell at public auction on or after 08/14/2024 at 12:00 P.M., 2936 San Luis Rey Rd, Oceanside, Ca 92058 personal property, including furniture, appliances, o ce equipment, clothing, tools, toys and/or other household and misc. items stored by the following person Mergl, Jennifer Lee Unit 020 Bateman, Issac Jr Unit 047 Hurley, Patricia Unit 074 Campa, Jenny Irene Unit 136 Vague, Alyssa Anne Unit 212 Childers, Erin Unit 301 Owner reserves the right to bid at the sale. Purchases must be made with cash only and paid for at the time of purchase. All purchased goods are sold “asis” and must be removed at the time of sale. Sales subject to prior cancellation in the event of settlement between owner and obligated party. Dated this 07/19/24 and 07/26/2024. Magna & Magna, Inc. dba: Oceanside Self Storage (323) 721-1621
Mark D. Magna, Pres. 7/19, 7/26/24 CNS-3833377# CN 29194
NOTICE TO CREDITOR’S OF BULK SALE AND OF INTENTION TO TRANSFER ALCOHOLIC BEVERAGE LICENSE
(UCC Sec. 6101 et seq. and B & P 24073 et seq.) ESCROW # 0126021464
Exempt from fee per GC 27388.1 (a) (1). Recording not related to real property
NOTICE IS HEREBY GIVEN that a bulk sale of assets and a transfer of alcoholic beverage license is about to be made.
The name(s) and business address(es) of the seller(s) is/ are: Dija Mara, LLC 232 S
Coast Highway, Oceanside, CA 92054
Doing Business as: Dija Mara
All other business name(s) and address(es) used by the seller(s) within the past three years, as stated by the seller(s), is/are: (if none, so state) NONE
The location in California of the chief executive o ce of the seller is: SAME
The name(s) and business address of the buyer(s) is/ are: Café Zenon 232 S Coast Highway, Oceanside, CA 92054
The assets being sold are generally described as: furniture, xtures, equipment, inventory, and liquor license and are located at: 232 S Coast Highway, Oceanside, CA 92054
The kind of license to be transferred is: on sale beer and wine eating place #626876 issued for the premises located at: 232 S Coast Highway, Oceanside, CA 92054
The anticipated date of the bulk sale/transfer is August 6, 2024 and upon approval by Department of Alcoholic Beverage Control at the o ce of OLD REPUBLIC TITLE COMPANY located at 1000 Burnett Avenue, Suite 400, Concord, CA 94520.
The amount of the purchase price or consideration in connection with the transfer of the license and business, including estimated inventory, is $335,000.00
It has been agreed between the Seller/Licensee and the intended Buyer/Transferee, as required by Sec 24703 of the Business and Professions Code, that the consideration for the transfer of the business and license is to be paid only after the transfer has been approved by the Department of Alcoholic Beverage Control.
Dated: 07/10/2024
Café Zenon /S/ By: Suzanne Nguyen, CEO Dija Mara, LLC /S/ By: Simran Kaur Soin, member 7/19/24 CNS-3833357# CN 29193
NOTICE OF PETITION TO ADMINISTER ESTATE OF MARY ELIZABETH BOWEN WOODWARD aka MARY BOWEN WOODWARD aka MARY ELIZABETH WOODWARD aka MARYBETH BOWEN WOODWARD Case# 37-2023-00045023PR-LA-CTL
To all heirs, bene ciaries, creditors, contingent creditors, and persons who may otherwise be interested in the will or estate, or both, of Mary Elizabeth Bowen Woodward aka Mary Bowen Woodward aka Mary Elizabeth Woodward aka Marybeth Bowen Woodward A Petition for Probate has been led by Tricia Woodward, in the Superior Court of California, County of San Diego.
The Petition for Probate requests that Tricia Woodward be appointed as personal representative to administer the estate of the decedent.
The petition requests authority to administer the estate under the Independent Administration of Estates Act. (This authority will allow the personal representative to take many actions without obtaining court approval. Before taking certain very important actions, however, the personal representative will be required to give notice to interested persons unless they have waived notice or consented to the proposed action.) The independent administration authority will be granted unless an interested person les an objection to the petition and shows good cause why the court should not grant the authority.
A hearing on the petition will be held in this court as follows: Date: January 7, 2025; Time: 8:30 AM; in
Dept.: 504. Court address: 1100 Union St., San Diego CA 92101, Central Courthouse. https://www.sdcourt.ca.gov/ sdcourt/probate2/probatevh Court appearances may be made either in person or virtually, unless otherwise ordered by the Court. Virtual appearances must be made using the department’s Microsoft Teams (“MS Teams”) video link; or by calling the department’s MS Teams conference phone number and using the assigned conference ID number. The MS Teams video conference links and phone numbers can be found at www.sdcourt.ca.gov/ ProbateHearings. Plan to check in 15 minutes prior to the scheduled hearing time.
If you object to the granting of the petition, you should appear at the hearing and state your objections or le written objections with the court before the hearing. Your appearance may be in person or by your attorney.
If you are a creditor or a contingent creditor of the decedent, you must le your claim with the court and mail a copy to the personal representative appointed by the court within the later of either (1) four months from the date of rst issuance of letters to a general personal representative, as de ned in section 58(b) of the California Probate Code, or (2) 60 days from the date of mailing or personal delivery to you of a notice under section 9052 of the California Probate Code. Other California statutes and legal authority may a ect your rights as a creditor. You may want to consult with an attorney knowledgeable in California law. You may examine the le kept by the court. If you are a person interested in the estate, you may le with the court a Request for Special Notice (form DE-154) of the ling of an inventory and appraisal of estate assets or of any petition or account as provided in Probate Code section 1250.
A Request for Special Notice form is available from the court clerk.
Petitioner:
Tricia Woodward 3630 Vista Campana S. Unit 29 Oceanside CA 92057 Telephone: 760.672.1333
07/19, 07/26, 08/02/2024 CN 29186
ORDER TO SHOW CAUSECHANGE OF NAME CASE# 24CU000175N TO ALL INTERESTED
PERSONS:
Petitioner(s): Hannah Marie Neely led a petition with this court for a decree changing name as follows: a. Present name: Hannah Marie Neely change to proposed name: Hannah Marie Thomas THE COURT ORDERS that all persons interested in this matter appear before this Court at the hearing indicated below to show cause, if any, why the petition for a change of name should not be granted. Any person objecting to the name changes described above must le a written objection that includes the reasons for the objection at least two court days before the matter is scheduled to be heard and must appear at the hearing to show cause why the petition should not be granted. If no written objection is timely led, the court may grant the petition without a hearing.
NOTICE OF HEARING: On August 23, 2024 at 8:30 a.m., in Dept. 25 of the Superior Court of California, 325 S Melrose Dr., Vista CA 92081, North County Division. (To appear remotely, check in advance of the hearing for information about how to do so on the court’s website. To nd your court’s website, go to www.
courts.ca.gov/find-my-court. htm.) NO HEARING WILL OCCUR ON THE DATE SPECIFIED IN THE ORDER TO SHOW CAUSE. The court will review the documents led as of the date speci ed on the Order to Show Cause for Change of Name (JC Form #NC-120). If all requirements for a name change have been met as of the date speci ed, and no timely written objection has been received (required at least two court days before the date speci ed), the Petition for Change of Name (JC Form #NC-100) will be granted without a hearing. One copy of the Order Granting the Petition will be mailed to the petitioner. To change a name on a legal document, including a birth certi cate, social security card, driver license, passport, and other identi cation, a certi ed copy of Decree Changing Name (JC Form #NC-130) or Decree Changing Name and Order Recognizing Change of Gender and for Issuance of New Birth Certi cate (JC Form #NC-230) may be required. Contact the agency(ies) who issues the legal document that needs to be changed, to determine if a certi ed copy is required. A certi ed copy of Decree Changing Name (JC Form #NC-130) or Decree Changing Name and Order Recognizing Change of Gender and for Issuance of New Birth’ Certi cate (JC Form #NC230) may be obtained from the Civil Business O ce for a fee. Petitioners who are seeking a change of name under the Safe at Home program may contact the assigned department for information on obtaining certi ed copies. If all the requirements have not been met as of the date speci ed, the court will mail the petitioner a written order with further directions. If a timely objection is led, the court will set a hearing date and contact the parties by mail with further directions.
A RESPONDENT
OBJECTING TO THE NAME CHANGE MUST FILE A WRITTEN OBJECTION AT LEAST TWO COURT DAYS (excluding weekends and holidays) BEFORE THE DATE SPECIFIED. Do not come to court on the speci ed date. The court will notify the parties by mail of a future hearing date.
Any Petition for the name change of a minor that is signed by only one parent must have this Attachment served along with the Petition and Order to Show Cause, on the other non-signing parent, and proof of service must be led with the court. IT IS SO ORDERED. Filed Date: 07/09/2024 Brad A. Weinreb Judge of the Superior Court. 07/19, 07/26, 08/02, 08/09/2024 CN 29179
NOTICE TO CREDITORS OF BULK SALE
(Secs. 6104, 6105 U.C.C.)
Escrow Number. 15278-JH
Notice is hereby given to creditors of the within named seller that a bulk sale is about to be made of the assets described below. The names and business addresses of the seller are: Kevin Au and Thu Thuy Nguyen Dba: Art Nails and Spa 4645 Frazee Rd E. Oceanside, CA 92057
The location in California of the chief executive o ce of the seller is: 4645 Frazee Rd E. Oceanside, CA 92057
As listed by the seller, all other business names and addresses used by the seller within three years before the date such list was sent or delivered to the buyer are: None
The names and business addresses of the buyer are: Ladybosses Enterprises
5215 Robinwood Drive Oceanside, CA 92056
The assets to be sold are described in general as: ALL STOCK IN TRADE, FIXTURES, EQUIPMENT AND GOODWILL, of all certain Nail spa business known as Dba: Art Nails and Spa, and which are located at: 4645 Frazee Rd E. Oceanside, CA 92057
The anticipated date of the bulk sale is August 6, 2024 at the o ce of Oakwood Escrow Metro, 3465 Camino Del Rio So. #200, San Diego, CA 92108. This bulk sale is subject to California Uniform Commercial Code Section 6106.2.
If so subject, the name and address of the person with whom claims may be led is Oakwood Escrow Metro, 3465 Camino Del Rio So. #200, San Diego, CA 92108., and the last date for ling claims shall be August 5, 2024, which is the business day before the sale date speci ed above.
Dated: July 8, 2024 S/ Jenny Tien Nguyen S/ Chloe Bach 7/19/24 CNS-3832184# CN 29177
NOTICE OF PUBLIC LIEN SALE
In accordance with the provisions of the California Self-Storage Facility Act, Section 21700, et seq. of the Business and Professions Code of the State of California the under-signed will be sold at public auction conducted on STORAGETREASURES.
COM on August 3rd 2024, ending at 10am. The personal property including but not limited to: Personal and household items stored at West Coast Self-Storage Carlsbad 2405 Cougar Drive Carlsbad, CA 92010, County of San Diego, by the following persons: Tenant Size Unit Unit Number
Kenya Williams 5x10 1094
David Becerra 10x20 1132
Andrea Bonora 10x10 1187
Greg Manley 5x10 1222
Lourdes Daugherty 5x5 2158
Blanca Castellanos 10x7.5 3030
Property is sold “AS IS BASIS.” There is a refundable $100 cleaning deposit on all units. Sale is subject to cancellation.
07/19/2024 CN 29176
NOTICE OF PUBLIC LIEN SALE
NOTICE IS HEREBY GIVEN that the contents of the following storage units will be o ered for sale at public auction for enforcement of storage lien. The Online Auction will be held Friday, July 26, 2024, at 1:00 pm. Location of Online Auction: www.storagetreasures.com
Storage address: 1566 E. Valley Parkway, Escondido, CA 92027. Terms are CASH ONLY! Valley Rose Self Storage reserves the right to refuse any bid or cancel the auction. The following units may include, but not limited to electronic items, furniture, & household items, unless otherwise stated.
William Chidgey - unit E230 07/12, 07/19/2024 CN 29161
SUMMONS (CITACION JUDICIAL) CASE #: 37-202300026806-CU-PA-CTL
NOTICE TO DEFENDANT: (AVISO AL DEMANDADO): Zachery Young and DOES 1 to 20 Inclusive YOU ARE BEING SUED BY PLAINTIFF: (LO ESTA DEMANDANDO EL DEMANDANTE):
Jesus Gonzales NOTICE! You have been sued. The court may decide against you without your being heard unless you respond within 30 days. Read the information below. You have 30 CALENDAR DAYS after this summons and legal papers are served on you to le a written response at this court and have a copy served on the plainti . A letter or phone call will not protect you. Your written response must be in proper legal form if you want the court to hear your case. There may be a court form that you can use for your response. You can nd these court forms and more information at the California Courts Online SelfHelp Center (www.courtinfo. ca.gov/selfhelp), your county law library, or the courthouse nearest you. If you cannot pay the ling fee, ask the court clerk for a fee waiver form. If you do not le your response on time, you may lose the case by default, and your wages, money, and property may be taken without further warning from the court. There are other legal requirements. You may want to call an attorney right away. If you do not know an attorney, you may want to call an attorney referral service. If you cannot a ord an attorney, you may be eligible for free legal services from a nonpro t legal services program. You can locate these nonpro t groups at the California Legal Services Web site (www.lawhelpcalifornia. org), the California Courts Online Self-Help Center (www. courtinfo.ca.gov/selfhelp), or by contacting your local court or county bar association. NOTE: The court has a statutory lien for waived fees and costs on any settlement or arbitration award of $10,000 or more in a civil. case. The court’s lien must be paid before the court will dismiss the case. AVISO! Lo han demandado. Si no responde dentro de 30 dias, la corte puede decidir en su contra sin escuchar su version. Lea la informacion a continuacion. Tiene 30 DIAS DE CALENDARIO despues de que le entreguen esta citacion y papeles legales para presentar una respuesta por escrito en esta corte y hacer que se entregue una copia al demandante. Una carta o una llamada telefonica no lo protegen. Su respuesta por escrito tiene que estar en formato legal correcto si desea que procesen su caso en la corte. Es posible que haya un formulario que usted pueda usar para su respuesta.Puede encontrar estos formularios de la corte y mas informacion en el Centro de Ayuda de las Cortes de California (www.sucorte. ca.gov), en la biblioteca de leyes de su condado o en la corte que le quede mas cerca. Si no puede pagar la cuota de presentacion, pida al secretario de la corte que le de un formulario de exencion de pago de cuotas. Si no presenta su respuesta a tiempo, puede perder el caso por incumplimiento y la corte le podra quitar su sueldo, dinero y bienes sin mas advertencia. Hay otros requisitos legales. Es recomendable que llame a un abogado inmediatamente. Si no conoce a un abogado, puede llamar a un servicio de remision a abogados. Si no puede pagar a un abogado, es posible que cumpla con los requisitos para obtener servicios legales gratuitos de un programa de servicios legales sin nes de lucro. Puede encontrar estos grupos sin nes de lucro en el sitio web de California Legal Services, (www.lawhelpcalifornia.org), en el Centro de Ayuda de las Cortes de California, (www. sucorte.ca.gov) o poniendose
Coast News legals continued on
en contacto con la corte o el colegio de abogados locales.
AVISO: Por ley, la corte tiene derecho a reclamar las cuotas y los costos exentos por imponer un gravamen sobre cualquier recuperacion de $10,000 o mas de valor recibida mediante un acuerdo o una concesion de arbitraje en un caso de derecho civil. Tiene que pagar el gravamen de la corte antes de que la corte pueda desechar el caso. The name and address of the court is: (El nombre y direccion de la corte es): Superior Court of California, Central Division 330 Broadway San Diego CA 92101
The name, address, and telephone number of plainti ’s attorney, or plainti without an attorney, is: (El nombre, la direccion y el numero de telefono del abogado del demandante, o del demandante que no tiene abogado, es): John C. Hatch Injury Legal Center P.C. 2062 Business Center Dr., Ste 200 Irvine CA 92612
Telephone: 949.756.9300
Date: (Fecha) 06/28/2023
Clerk by (Secretario), B. Krause, Deputy (Adjunto)
NOTICE TO THE PERSON SERVED: You are served as an individual defendant.
07/12, 07/19, 07/26, 08/02/2024 CN 29152
NOTICE OF PETITION TO ADMINISTER ESTATE OF TRACEY GROSS Case# 24PE001482C
To all heirs, bene ciaries, creditors, contingent creditors, and persons who may otherwise be interested in the will or estate, or both, of Tracey Gross A Petition for Probate has been led by William Perez, in the Superior Court of California, County of San Diego. The Petition for Probate requests that William Perez be appointed as personal representative to administer the estate of the decedent.
The petition requests authority to administer the estate under the Independent Administration of Estates Act. (This authority will allow the personal representative to take many actions without obtaining court approval. Before taking certain very important actions, however, the personal representative will be required to give notice to interested persons unless they have waived notice or consented to the proposed action.) The independent administration authority will be granted unless an interested person les an objection to the petition and shows good cause why the court should not grant the authority. A hearing on the petition will be held in this court as follows: Date: August 8, 2024; Time: 1:30 PM; in Dept.: 503. Court address: 1100 Union St., San Diego CA 92101, Central Courthouse. https://www.sdcourt.ca.gov/ sdcourt/probate2/probatevh Court appearances may be made either in person or virtually, unless otherwise ordered by the Court. Virtual appearances must be made using the department’s Microsoft Teams (“MS Teams”) video link; or by calling the department’s MS Teams conference phone number and using the assigned conference ID number. The MS Teams video conference links and phone numbers can be found at www.sdcourt.ca.gov/ ProbateHearings. Plan to check in 15 minutes prior to the scheduled hearing time. If you object to the granting of the petition, you should
appear at the hearing and state your objections or le written objections with the court before the hearing. Your appearance may be in person or by your attorney. If you are a creditor or a contingent creditor of the decedent, you must le your claim with the court and mail a copy to the personal representative appointed by the court within the later of either (1) four months from the date of rst issuance of letters to a general personal representative, as de ned in section 58(b) of the California Probate Code, or (2) 60 days from the date of mailing or personal delivery to you of a notice under section 9052 of the California Probate Code. Other California statutes and legal authority may a ect your rights as a creditor. You may want to consult with an attorney knowledgeable in California law.
You may examine the le kept by the court. If you are a person interested in the estate, you may le with the court a Request for Special Notice (form DE-154) of the ling of an inventory and appraisal of estate assets or of any petition or account as provided in Probate Code section 1250.
A Request for Special Notice form is available from the court clerk.
Attorney for Petitioner: Matthew E. Palmer CFLS
301 Mission Ave., Ste 205 Oceanside CA 92056
Telephone: 760.529.0461 07/05, 07/12, 07/19/2024 CN 29129
ORDER TO SHOW CAUSECHANGE OF NAME CASE# 37-202400029889-CU-PT-NC TO ALL INTERESTED
PERSONS:
Petitioner(s): Dylan Santino led a petition with this court for a decree changing name as follows: a. Present name: Dylan Santino change to proposed name: Francisco Lopez Padilla
THE COURT ORDERS that all persons interested in this matter appear before this Court at the hearing indicated below to show cause, if any, why the petition for a change of name should not be granted. Any person objecting to the name changes described above must le a written objection that includes the reasons for the objection at least two court days before the matter is scheduled to be heard and must appear at the hearing to show cause why the petition should not be granted. If no written objection is timely led, the court may grant the petition without a hearing.
NOTICE OF HEARING: On August 9, 2024 at 8:30 a.m., in Dept. 25 of the Superior Court of California, 325 S Melrose Dr., Vista CA 92081, North County Division. (To appear remotely, check in advance of the hearing for information about how to do so on the court’s website. To nd your court’s website, go to www. courts.ca.gov/find-my-court. htm.) NO HEARING WILL OCCUR ON THE DATE SPECIFIED IN THE ORDER TO SHOW CAUSE.
The court will review the documents led as of the date speci ed on the Order to Show Cause for Change of Name (JC Form #NC-120).
If all requirements for a name change have been met as of the date speci ed, and no timely written objection has been received (required at least two court days before the date speci ed), the Petition for Change of Name (JC Form #NC-100) will be granted without a hearing. One copy of the Order Granting the Petition will be mailed to the petitioner. To change a name on a legal
Clerk. Fictitious Business
document, including a birth certi cate, social security card, driver license, passport, and other identi cation, a certi ed copy of Decree Changing Name (JC Form #NC-130) or Decree Changing Name and Order Recognizing Change of Gender and for Issuance of New Birth Certi cate (JC Form #NC-230) may be required. Contact the agency(ies) who issues the legal document that needs to be changed, to determine if a certi ed copy is required.
A certi ed copy of Decree Changing Name (JC Form #NC-130) or Decree Changing Name and Order Recognizing Change of Gender and for Issuance of New Birth’ Certi cate (JC Form #NC230) may be obtained from the Civil Business O ce for a fee. Petitioners who are seeking a change of name under the Safe at Home program may contact the assigned department for information on obtaining certi ed copies. If all the requirements have not been met as of the date speci ed, the court will mail the petitioner a written order with further directions. If a timely objection is led, the court will set a hearing date and contact the parties by mail with further directions.
A RESPONDENT OBJECTING TO THE NAME CHANGE MUST FILE A WRITTEN OBJECTION AT LEAST TWO COURT DAYS (excluding weekends and holidays) BEFORE THE DATE SPECIFIED. Do not come to court on the speci ed date. The court will notify the parties by mail of a future hearing date.
Any Petition for the name change of a minor that is signed by only one parent must have this Attachment served along with the Petition and Order to Show Cause, on the other non-signing parent, and proof of service must be led with the court. IT IS SO ORDERED. Filed Date: 06/26/2024 Brad A. Weinreb Judge of the Superior Court. 07/05, 07/12, 07/19, 07/26/2024 CN 29110
Fictitious Business Name Statement #2024-9012280
Filed: Jun 11, 2024 with County of San Diego Recorder/County Clerk. Fictitious Business
Name(s): A. ClosetCadet. Located at: 6579 Mesa Norte Dr., San Diego CA 92130 San Diego. Business Mailing Address: Same. Registrant Name and Business Mailing Address: 1. Cleverosity Design Group LLC, 6579 Mesa Norte Dr., San Diego CA 92130 This business is conducted by: A Limited Liability Company. Registrant First Began to Transact Business Under the Names(s) Above as of: 06/03/2024 S/Richard Chesbrough, 07/19, 07/26, 08/02, 08/09/2024 CN 29207
Fictitious Business Name Statement #2024-9014300
Filed: Jul 11, 2024 with County of San Diego Recorder/County Clerk. Fictitious Business Name(s): A. O shore Oral & Facial Surgery. Located at: 1030 La Bonita Dr. #322, San Marcos CA 92078 San Diego. Business Mailing Address: Same. Registrant Name and Business Mailing Address: 1. Exstrom, A Dental Corporation, 1030 La Bonita Dr. #322, San Marcos CA 92078. This business is conducted by: A Corporation. Registrant First Began to Transact Business Under the Names(s) Above as of: 02/14/2022 S/Drake Exstrom, 07/19, 07/26, 08/02, 08/09/2024 CN 29206
Fictitious Business Name Statement #2024-9014417
Filed: Jul 12, 2024 with County of San Diego Recorder/County
Name(s): A. Village Square Dental Care. Located at: 1534 Encinitas Blvd., Encinitas CA 92024 San Diego. Business Mailing Address: Same. Registrant Name and Business Mailing Address: 1. Neda Mobasher DMD Professional Corporation, 1534 Encinitas Blvd., Encinitas CA 92024. This business is conducted by: A Corporation. Registrant First Began to Transact Business Under the Names(s) Above as of: 07/10/2024 S/ Neda Mobasher, 07/19, 07/26, 08/02, 08/09/2024 CN 29202
Fictitious Business Name Statement #2024-9014455 Filed: Jul 15, 2024 with County of San Diego Recorder/County Clerk. Fictitious Business Name(s): A. Soomsoom Bakery; B. Soomsoom Bakery Co. Located at: 4079 Governor Dr. #1144, San Diego CA 92122 San Diego. Business Mailing Address: Same. Registrant Name and Business Mailing Address: 1. Chen Azulay Suhami, 4079 Governor Dr. #1144, San Diego CA 92122. This business is conducted by: An Individual. Registrant First Began to Transact Business Under the Names(s) Above as of: Not Yet Started S/Chen Azulay Suhami, 07/19, 07/26, 08/02, 08/09/2024 CN 29201
Fictitious Business Name Statement #2024-9014418
Filed: Jul 12, 2024 with County of San Diego Recorder/County Clerk. Fictitious Business Name(s): A. Kindle & Stone. Located at: 2910 Capazo Ct., Carlsbad CA 92009 San Diego. Business Mailing Address: Same. Registrant Name and Business Mailing Address: 1. Sarah Dawn Holder, 2910 Capazo Ct., Carlsbad CA 92009. This business is conducted by: An Individual. Registrant First Began to Transact Business Under the Names(s) Above as of: 08/31/2022 S/Sarah D. Holder, 07/19, 07/26, 08/02, 08/09/2024 CN 29196
Fictitious Business Name
Statement #2024-9014412
Filed: Jul 12, 2024 with County of San Diego Recorder/County Clerk. Fictitious Business
Name(s): A. IOH 360. Located at: 9246 Lightwave Ave. #120, San Diego CA 92123 San Diego. Business Mailing Address: Same. Registrant Name and Business Mailing Address: 1. Institutes of Health Behavioral Medicine and Medical Psychology Inc., 9246 Lightwave Ave. #120, San Diego CA 92123. This business is conducted by: A Corporation. Registrant First Began to Transact Business Under the Names(s) Above as of: Not Yet Started S/Elic Anbar, 07/19, 07/26, 08/02, 08/09/2024 CN 29195
Fictitious Business Name
Statement #2024-9014346
Filed: Jul 11, 2024 with County of San Diego Recorder/County Clerk. Fictitious Business
Name(s): A. Classic Clean Windows. Located at: 1930 W. San Marcos Blvd. #406, San Marcos CA 92078 San Diego. Business Mailing
Address: Same. Registrant Name and Business Mailing
Address: 1. Trent Lawler, 1930 W. San Marcos Blvd. #406, San Marcos CA 92078. This business is conducted by: An Individual. Registrant First Began to Transact Business Under the Names(s) Above as of: 03/07/2017 S/Trent Lawler, 07/19, 07/26, 08/02, 08/09/2024 CN 29188
Fictitious Business Name Statement #2024-9013695
Filed: Jul 02, 2024 with County of San Diego Recorder/County Clerk. Fictitious Business
Name(s): A. Aesthetics San Diego. Located at: 16950 Via de Santa Fe #5060-105, Rancho Santa Fe CA 92067 San Diego. Business Mailing Address: Same. Registrant Name and Business Mailing
Address: 1. Aesthetics San Diego A Professional Nursing Corporation, 16950 Via de Santa Fe, Rancho Santa Fe CA 92067. This business is conducted by: A Corporation. Registrant First Began to Transact Business Under the Names(s) Above as of: Not Yet Started S/Juliann M. Hatt, 07/19, 07/26, 08/02, 08/09/2024 CN 29187
Fictitious Business Name Statement #2024-9013302 Filed: Jun 26, 2024 with County of San Diego Recorder/ County Clerk. Fictitious Business Name(s): A. South Paci c. Located at: 6467 La Paloma Ln., Oceanside CA 92057 San Diego. Business Mailing Address: PO Box 1099, Bonsall CA 92003. Registrant Name and Business Mailing Address: 1. Theresa GilliganKrol, PO Box 1099, Bonsall CA 92003; 2. Thomas Krol, PO Box 1099, Bonsall CA 92003. This business is conducted by: A Married Couple. Registrant First Began to Transact Business Under the Names(s) Above as of: Not Yet Started S/ Theresa Gilligan-Krol, 07/19, 07/26, 08/02, 08/09/2024 CN 29185
Fictitious Business Name Statement #2024-9013072
Filed: Jun 21, 2024 with County of San Diego Recorder/County Clerk. Fictitious Business Name(s): A. Anastasian Pastries. Located at: 13604 Jadestone Way, San Diego CA 92130 San Diego. Business Mailing Address: Same. Registrant Name and Business Mailing Address: 1. Anastasian LLC, 13604 Jadestone Way, San Diego CA 92130. This business is conducted by: A Limited Liability Company. Registrant First Began to Transact Business Under the Names(s) Above as of: 06/18/2024 S/ Jaqueline Garabedian, 07/19, 07/26, 08/02, 08/09/2024 CN 29184
Fictitious Business Name Statement #2024-9014313 Filed: Jul 11, 2024 with County of San Diego Recorder/County Clerk. Fictitious Business Name(s): A. Magic Finish Auto Detailing. Located at: 2368 Terraza Ribera, Carlsbad CA 92009 San Diego. Business Mailing Address: Same. Registrant Name and Business Mailing Address: 1. Vince Paul Kasperski, 2368 Terraza Ribera, Carlsbad CA 92009; 2. Melinda Suzanne Kasperski, 2368 Terraza Ribera, Carlsbad CA 92009. This business is conducted by: A Married Couple. Registrant First Began to Transact Business Under the Names(s) Above as of: 07/11/2024 S/Vince Paul Kasperski, 07/19, 07/26, 08/02, 08/09/2024 CN 29183
Fictitious Business Name Statement #2024-9013935
Filed: Jul 05, 2024 with County of San Diego Recorder/County Clerk. Fictitious Business Name(s): A. Applied Defense Systems. Located at: 1348 Knoll Dr., Oceanside CA 92054 San Diego. Business Mailing Address: Same. Registrant Name and Business Mailing Address: 1. Expeditionary Technical Solutions, 1348 Knoll Dr., Oceanside CA 92054; 2. I3Tech Data Solutions, 2201 Francisco Dr. #140, El Dorado Hills CA 95762. This business is conducted by: Joint Venture. Registrant First Began to Transact Business Under the Names(s) Above as of: Not Yet Started S/Kimberly Davis, 07/19, 07/26, 08/02,
08/09/2024 CN 29181
Fictitious Business Name Statement #2024-9013742
Filed: Jul 02, 2024 with County of San Diego Recorder/County Clerk. Fictitious Business Name(s): A. Tidewater Cleaners LLC. Located at: 3400 Cottage Way St G2 #25727, Sacramento CA 95825 Sacramento. Business Mailing Address: Same. Registrant Name and Business Mailing Address: 1. Tidewater Cleaners LLC, 3400 Cottage Wat TE G2 #25127, Sacramentosacramento CA 95825. This business is conducted by: A Limited Liability Company. Registrant First Began to Transact Business Under the Names(s) Above as of: Not Yet Started S/Kaylor Patzelt, 07/19, 07/26, 08/02, 08/09/2024 CN 29180
Fictitious Business Name Statement #2024-9013822
Filed: Jul 03, 2024 with County of San Diego Recorder/ County Clerk. Fictitious Business Name(s): A. Stellar Orthodontics. Located at: 960 W. San Marcos Blvd. #100, San Marcos CA 92078 San Diego. Business Mailing Address: 1293 Holmgrove Dr., San Marcos CA 92078. Registrant Name and Business Mailing Address: 1. Deyo Dental Corporation, 1293 Holmgrove Dr., San Marcos CA 92078. This business is conducted by: A Corporation. Registrant First Began to Transact Business Under the Names(s) Above as of: Not Yet Started S/Laura Deyo, 07/12, 07/19, 07/26, 08/02/2024 CN 29169
Fictitious Business Name
Statement #2024-9013305
Filed: Jun 26, 2024 with County of San Diego Recorder/ County Clerk. Fictitious
Business Name(s): A. Bitch Inc. Located at: 122 15th St. #743, Del Mar CA 92014 San Diego. Business Mailing
Address: Same. Registrant Name and Business Mailing
Address: 1. Bitchcraft LLC., PO Box 743, Del Mar CA 92014. This business is conducted by: A Limited Liability Company. Registrant First Began to Transact Business Under the Names(s) Above as of: 06/17/2024 S/Matthew B. Wol , 07/12, 07/19, 07/26, 08/02/2024 CN 29167
Fictitious Business Name
Statement #2024-9014057
Filed: Jul 08, 2024 with County of San Diego Recorder/County Clerk. Fictitious Business Name(s): A. Mika’s Beauty Services. Located at: 910 S. Santa Fe Ave., Vista CA 92084 San Diego. Business Mailing Address: Same. Registrant Name and Business Mailing Address: 1. Mika’s Beauty Services LLC, 910 S. Santa Fe Ave., Vista CA 92084. This business is conducted by: A Limited Liability Company. Registrant First Began to Transact Business Under the Names(s) Above as of: Not Yet Started S/Tomika Keels, 07/12, 07/19, 07/26, 08/02/2024 CN 29165
Fictitious Business Name
Statement #2024-9013056
Filed: Jun 21, 2024 with County of San Diego Recorder/County Clerk. Fictitious Business
Name(s): A. So Cal Junk Removal & Demo. Located at: 2665 Foothill Dr., Vista CA 92084 San Diego. Business Mailing Address: Same. Registrant Name and Business Mailing Address: 1. P Faulk Hauling, 2665 Foothill Dr., Vista CA 92084. This business is conducted by: A Limited Liability Company. Registrant First Began to Transact Business Under the Names(s) Above as of: 08/28/2023 S/ Paul J. Faulkner, 07/12, 07/19,
07/26, 08/02/2024 CN 29162
Fictitious Business Name Statement #2024-9011398 Filed: May 30, 2024 with County of San Diego Recorder/ County Clerk. Fictitious Business Name(s): A. Stencil Shots. Located at: 3442 Capri Way #3, Oceanside CA 92056 San Diego. Business Mailing Address: Same. Registrant Name and Business Mailing Address: 1. Amanda Wright, 3442 Capri Way #3, Oceanside CA 92056; 2. John Wright, 3442 Capri Way #3, Oceanside CA 92056. This business is conducted by: A Married Couple. Registrant First Began to Transact Business Under the Names(s) Above as of: Not Yet Started S/Amanda Wright, 07/12, 07/19, 07/26, 08/02/2024 CN 29156
Fictitious Business Name Statement #2024-9013869 Filed: Jul 03, 2024 with County of San Diego Recorder/County Clerk. Fictitious Business Name(s): A. Owner’s Club; B. Owners Club. Located at: 7460 Girard Ave. #4, La Jolla CA 92037 San Diego. Business Mailing Address: Same. Registrant Name and Business Mailing Address: 1. Nicholas Stanley Petro, 7460 Girard Ave. #4, La Jolla CA 92037. This business is conducted by: An Individual. Registrant First Began to Transact Business Under the Names(s) Above as of: 07/03/2024 S/Nicholas Stanley Petro, 07/12, 07/19, 07/26, 08/02/2024 CN 29155
Fictitious Business Name Statement #2024-9013636 Filed: Jul 01, 2024 with County of San Diego Recorder/County Clerk. Fictitious Business Name(s): A. The Barking Dog Mobile Grooming. Located at: 3773 30th St. #E, San Diego CA 92104 San Diego. Business Mailing Address: Same. Registrant Name and Business Mailing Address: 1. Shuo Hu, 3773 30th St. #E, San Diego CA 92104. This business is conducted by: An Individual. Registrant First Began to Transact Business Under the Names(s) Above as of: 05/15/2024 S/Shuo Hu, 07/12, 07/19, 07/26, 08/02/2024 CN 29154
Fictitious Business Name Statement #2024-9012384 Filed: Jun 12, 2024 with County of San Diego Recorder/ County Clerk. Fictitious Business Name(s): A. Carlsbad Drones LLC. Located at: 1000 Chinquapin Ave. #C6, Carlsbad CA 92008 San Diego. Business Mailing Address: Same. Registrant Name and Business Mailing Address: 1. Carsbad Drones LLC, 1000 Chinquapin Ave. #C6, Carlsbad CA 92008. This business is conducted by: A Limited Liability Company. Registrant First Began to Transact Business Under the Names(s) Above as of: Not Yet Started S/Thomas Theron Scho eld IV, 07/12, 07/19, 07/26, 08/02/2024 CN 29145
Fictitious Business Name Statement #2024-9012320 Filed: Jun 11, 2024 with County of San Diego Recorder/County Clerk. Fictitious Business Name(s): A. Treehouse Talk. Located at: 731 S. Highway 101 #1B2, Solana Beach CA 92075 San Diego. Business Mailing Address: 521 Sweet Pea Pl., Encinitas CA 92024. Registrant Name and Business Mailing Address: 1. Brooke Hartman Barrett, 521 Sweet Pea Pl., Encinitas CA 92024. This business is conducted by: An Individual. Registrant First Began to Transact Business Under the Names(s) Above as of: 06/11/2024 S/Brooke Hartman Barrett, 07/12, 07/19, 07/26, 08/02/2024 CN 29144
Fictitious Business Name Statement #2024-9013730
Filed: Jul 02, 2024 with County of San Diego Recorder/County Clerk. Fictitious Business
Name(s): A. 5th Hummingbird Financial Wellness. Located at: 2904 Via Conquistador, Carlsbad CA 92009 San Diego. Business Mailing Address: Same. Registrant Name and Business Mailing Address: 1. Lanette Kristin Schmidt, 2904 Via Conquistador, Carlsbad CA 92009. This business is conducted by: An Individual. Registrant First Began to Transact Business Under the Names(s) Above as of: Not Yet Started S/Lanette Kristin Schmidt, 07/12, 07/19, 07/26, 08/02/2024 CN 29143
Fictitious Business Name Statement #2024-9013687
Filed: Jul 01, 2024 with County of San Diego Recorder/County Clerk. Fictitious Business Name(s): A. Cardi Glass and Shower. Located at: 1304 Cambridge Ct., San Marcos CA 92078 San Diego. Business Mailing Address: Same. Registrant Name and Business Mailing Address: 1. Gerald G. Filips, 1304 Cambridge Ct., San Marcos CA 92078. This business is conducted by: An Individual. Registrant First Began to Transact Business Under the Names(s) Above as of: 07/01/2024 S/Gerald G. Filips, 07/12, 07/19, 07/26, 08/02/2024 CN 29142
Fictitious Business Name Statement #2024-9013507
Filed: Jun 28, 2024 with County of San Diego Recorder/ County Clerk. Fictitious Business Name(s): A. USABF. Located at: 1030 La Bonita Dr. #301, San Marcos CA 92078 San Diego. Business Mailing Address: Same. Registrant Name and Business Mailing Address: 1. The Player Factory Inc., 1030 La Bonita Dr. #301, San Marcos CA 9278. This business is conducted by: A Corporation. Registrant First Began to Transact Business Under the Names(s) Above as of: 08/06/2019 S/Joseph Petrucelli, 07/12, 07/19, 07/26, 08/02/2024 CN 29141
Fictitious Business Name Statement #2024-9011460
Filed: May 30, 2024 with County of San Diego Recorder/ County Clerk. Fictitious Business Name(s): A. Seaside Flowers; B. Seaside Flowers and Gifts. Located at: 1002 S. Coast Hwy, Oceanside A 92054 San Diego. Business Mailing Address: Same. Registrant Name and Business Mailing Address: 1. Sherry Shelton, 1002 S. Coast Hwy, Oceanside CA 92054. This business is conducted by: An Individual. Registrant First Began to Transact Business Under the Names(s) Above as of: 07/01/1991 S/Sherry Shelton, 07/05, 07/12, 07/19, 07/26/2024 CN 29137
Fictitious Business Name Statement #2024-9013391
Filed: Jun 26, 2024 with County of San Diego Recorder/ County Clerk. Fictitious Business Name(s): A. Levinson Law Group, Carlsbad Personal Injury & Car Accident Lawyers. Located at: 5927 Balfour Ct. #201, Carlsbad CA 92008 San Diego. Business Mailing Address: Same. Registrant Name and Business Mailing Address: 1. Gordon R Levinson A Professional Corporation, 5927 Balfour Ct. #201, Carlsbad CA 92008. This business is conducted by: A Corporation. Registrant First Began to Transact Business Under the Names(s) Above as of: 06/01/2014 S/Gordon R. Levinson, 07/05, 07/12, 07/19, 07/26/2024 CN 29136
Fictitious Business Name Statement #2024-9013388 Filed: Jun 26, 2024 with County of San Diego Recorder/ County Clerk. Fictitious Business Name(s): A. Levinson Law Group, San
Diego Personal Injury & Car Accident Lawyers; B. Levinson Law Group, Personal Injury and Car Accident Lawyers. Located at: 406 Ninth Ave. #306, San Diego CA 92109 San Diego. Business Mailing Address: 5927 Balfour Ct. #201, Carlsbad CA 92008. Registrant Name and Business Mailing Address: 1. Gordon R Levinson A Professional Corporation, 5927 Balfour Ct. #201, Carlsbad CA 92008. This business is conducted by: A Corporation. Registrant First Began to Transact Business Under the Names(s) Above as of: 12/24/2020 S/Gordon R. Levinson, 07/05, 07/12, 07/19, 07/26/2024 CN 29135
Fictitious Business Name Statement #2024-9013593 Filed: Jun 28, 2024 with County of San Diego Recorder/ County Clerk. Fictitious Business Name(s): A. Sigma Voice; B. Sigmavoice.com. Located at: 5097 Lynch Ct., Carlsbad CA 92008 San Diego. Business Mailing Address: 2604 El Camino Real #2108, Carlsbad CA 92010. Registrant Name and Business Mailing Address: 1. Tava Corporation, 2604 El Camino Real #2108, Carlsbad CA 92010. This business is conducted by: A Corporation. Registrant First Began to Transact Business Under the Names(s) Above as of: 06/28/2024 S/Tom Adishian, 07/05, 07/12, 07/19, 07/26/2024 CN 29134
Fictitious Business Name Statement #2024-9013155 Filed: Jun 24, 2024 with County of San Diego Recorder/ County Clerk. Fictitious Business Name(s): A. Red Hill Lawn Care. Located at: 871 Harold Pl. #109, Chula Vista CA 91914 San Diego. Business Mailing Address: Same. Registrant Name and Business Mailing Address: 1. Tyler Alexander Sanchez, 871 Harold Pl. #109, Chula Vista CA 91914. This business is conducted by: An Individual. Registrant First Began to Transact Business Under the Names(s) Above as of: 06/24/2024 S/Tyler A. Sanchez, 07/05, 07/12, 07/19, 07/26/2024 CN 29133
Fictitious Business Name Statement #2024-9013639 Filed: Jul 01, 2024 with County of San Diego Recorder/County Clerk. Fictitious Business Name(s): A. FW Property Group. Located at: 1301 Blue Sky Dr., Cardi CA 92007 San Diego. Business Mailing Address: Same. Registrant Name and Business Mailing Address: 1. FGW Companies, 1301 Blue Sky Dr., Cardi CA 92007. This business is conducted by: A Corporation. Registrant First Began to Transact Business Under the Names(s) Above as of: Not Yet Started S/Felicia GamezWeinbaum, 07/05, 07/12, 07/19, 07/26/2024 CN 29130
Fictitious Business Name Statement #2024-9013342 Filed: Jun 26, 2024 with County of San Diego Recorder/ County Clerk. Fictitious Business Name(s): A. Copia. Located at: 598 Park Ln., Encinitas CA 92024 San Diego. Business Mailing Address: Same. Registrant Name and Business Mailing Address: 1. Corona Enterprises LLC, 598 Park Ln., Encinitas CA 92024. This business is conducted by: A Limited Liability Company. Registrant First Began to Transact Business Under the Names(s) Above as of: 06/01/2024 S/Ian Cody Harrison, 07/05, 07/12, 07/19, 07/26/2024 CN 29128
Fictitious Business Name Statement #2024-9013571
Filed: Jun 28, 2024 with County of San Diego Recorder/ County Clerk. Fictitious Business Name(s): A. Postcard Girl; B. Postcard Girl SoCal; C. Postcard Girl CA; D. Postcard Girl Art. Located at: 5731 Palmer Way, Carlsbad CA 92010 San Diego. Business Mailing Address: Same. Registrant Name and Business
Mailing Address: 1. Allison Yasuko Rockwell, 5731 Palmer Way, Carlsbad CA 92010. This business is conducted by: An Individual. Registrant First Began to Transact Business Under the Names(s) Above as of: Not Yet Started S/Allison Yasuko Rockwell, 07/05, 07/12, 07/19, 07/26/2024 CN 29127
Fictitious Business Name Statement #2024-9013412 Filed: Jun 27, 2024 with County of San Diego Recorder/County Clerk. Fictitious Business Name(s): A. Future U College Advisors. Located at: 5374 Greenwillow Ln., San Diego CA 92130 San Diego. Business Mailing Address: Same. Registrant Name and Business Mailing Address: 1. Neeti Kukreja, 5374 Greenwillow Ln., San Diego CA 92130. This business is conducted by: An Individual. Registrant First Began to Transact Business Under the Names(s) Above as of: Not Yet Started S/Neeti Kukreja, 07/05, 07/12, 07/19, 07/26/2024 CN 29126
Statement of Abandonment of Use of Fictitious Business Name #2024-9013535 Filed: Jun 28, 2024 with San Diego County Recorder/County Clerk. Fictitious Business Name(s) To Be Abandoned: A. Vista Water Shack. Located at: 807 N. Santa Fe Ave., Vista CA 92084 San Diego. Mailing Address: 360 Hannaeli Dr., Vista CA 92083. The Fictitious Business Name Referred to Above was Filed in San Diego County on: 11/03/2022 and assigned File # 2022-9024346. Fictitious Business Name is being Abandoned By: 1. G & F Embroidery Inc., 360 Hannalei Dr., Vista CA 92083. The Business is Conducted by: A Corporation. S/Fabiola Plata, 07/05, 07/12, 07/19, 07/26/2024 CN 29125
Fictitious Business Name
Statement #2024-9013536
Filed: Jun 28, 2024 with County of San Diego Recorder/ County Clerk. Fictitious Business Name(s): A. Vista Water Shack. Located at: 807 N. Santa Fe Ave., Vista CA 92084 San Diego. Business Mailing Address: Same. Registrant Name and Business Mailing Address: 1. Water Shack Company, 807 N. Santa Fe Ave., Vista CA 92084. This business is conducted by: A Corporation. Registrant First Began to Transact Business Under the Names(s) Above as of: Not Yet Started S/Fabiola Plata, 07/05, 07/12, 07/19, 07/26/2024 CN 29124
Fictitious Business Name Statement #2024-9013444
Filed: Jun 27, 2024 with County of San Diego Recorder/ County Clerk. Fictitious Business Name(s): A. Butter Baked Cake Co. Located at: 3853 Stanford Dr., Oceanside CA 92056 San Diego. Business Mailing Address: Same. Registrant Name and Business Mailing Address: 1. Just Made Sugar Free Inc., 3853 Stanford Dr., Oceanside CA 92056. This business is conducted by: A Corporation. Registrant First Began to Transact Business Under the Names(s) Above as of: 06/27/2024 S/Whitney Lounsbury, 07/05, 07/12, 07/19, 07/26/2024 CN 29120
Fictitious Business Name Statement #2024-9013420
Filed: Jun 27, 2024 with County of San Diego Recorder/County Clerk. Fictitious Business Name(s): A. Skin Deep by Tasha. Located at: 338 N. Coast Hwy 101, Encinitas CA 92024 San Diego. Business Mailing Address: Same. Registrant Name and Business Mailing Address: 1. Tasha Marie Beauchamps, 1816 Manzanita Ct., Encinitas CA 92024. This business is conducted by: An Individual. Registrant First Began to Transact Business Under the Names(s) Above as of: Not Yet Started S/Tasha Beauchamps, 07/05, 07/12, 07/19, 07/26/2024 CN 29118
Fictitious Business Name Statement #2024-9013183
Filed: Jun 24, 2024 with County of San Diego Recorder/ County Clerk. Fictitious Business Name(s): A. BB Bunker LLC; B. BB Bunker. Located at: 885 Cayley Ave., San Marcos CA 92069 San Diego. Business Mailing Address: PO Box 1866, San Marcos CA 92079. Registrant Name and Business Mailing Address: 1. BB Bunker LLC, 885 Cayley Ave., San Marcos CA 92069. This business is conducted by: A Limited Liability Company. Registrant First Began to Transact Business Under the Names(s) Above as of: 06/21/2024 S/ Michael R. Rosano, 06/28, 07/05, 07/12, 07/19/2024 CN 29107
Fictitious Business Name Statement #2024-9013059 Filed: Jun 21, 2024 with County of San Diego Recorder/ County Clerk. Fictitious Business Name(s): A. Loaded Remodeling. Located at: 7556 Gibraltar St. #106, Carlsbad CA 92009 San Diego. Business Mailing Address: Same. Registrant Name and Business Mailing Address: 1. Omar Donoe, 7556 Gibraltar St. #106, Carlsbad CA 92009. This business is conducted by: An Individual. Registrant First Began to Transact Business Under the Names(s) Above as of: 06/21/2024 S/Omar Donoe, 06/28, 07/05, 07/12, 07/19/2024 CN 29106
Fictitious Business Name Statement #2024-9012206 Filed: Jun 10, 2024 with County of San Diego Recorder/County Clerk. Fictitious Business Name(s): A. As You Are Facial Studio. Located at: 560 N. Coast Hwy #10, Encinitas CA 92024 San Diego. Business Mailing Address: 2504 Navarra Dr. #203, Carlsbad CA 92009. Registrant Name and Business Mailing Address: 1. Hannah Blair Sehn, 2504 Navarra Dr. #203, Carlsbad CA 92009; 2. John Julian Carlo Sehn, 2504 Navarra Dr. #203, Carlsbad CA 92009. This business is conducted by: A Married Couple. Registrant First Began to Transact Business Under the Names(s) Above as of: 06/10/2024 S/Hannah Sehn, 06/28, 07/05, 07/12, 07/19/2024 CN 29105
Fictitious Business Name Statement #2024-9012437 Filed: Jun 13, 2024 with County of San Diego Recorder/ County Clerk. Fictitious Business Name(s): A. Proz Designs. Located at: 401 Pile St., Ramona CA 92065 San Diego. Business Mailing Address: Same. Registrant Name and Business Mailing Address: 1. Matthew Richard Prohaska, 401 Pile St., Ramona CA 92065. This business is conducted by: An Individual. Registrant First Began to Transact Business Under the Names(s) Above as of: Not Yet Started S/Matthew Richard Prohaska, 06/28, 07/05, 07/12, 07/19/2024 CN 29104
Fictitious Business Name Statement #2024-9013213 Filed: Jun 25, 2024 with County of San Diego Recorder/ County Clerk. Fictitious Business Name(s): A. KD6X Designs. Located at: 4655 Sunburst Rd., Carlsbad CA 92008 San Diego. Business Mailing Address: Same. Registrant Name and Business Mailing Address: 1. Courtney Evans Krehbiel, 4655 Sunburst Rd., Carlsbad CA 92008. This business is conducted by: An Individual. Registrant First Began to Transact Business Under the Names(s) Above as of: 06/12/2024 S/Courtney Evans Krehbiel, 06/28, 07/05, 07/12, 07/19/2024 CN 29103
Fictitious Business Name Statement #2024-9013194 Filed: Jun 25, 2024 with County of San Diego Recorder/County Clerk. Fictitious Business Name(s): A. MN3 Consulting. Located at: 2523 Walinca Way, Vista CA 92084 San Diego.
Business Mailing Address: Same. Registrant Name and Business Mailing Address: 1. Milo Nunes Holdings, 2523 Walinca Way, Vista CA 92084. This business is conducted by: A Limited Liability Company. Registrant First Began to Transact Business Under the Names(s) Above as of: Not Yet Started S/Jennifer MiloNunes, 06/28, 07/05, 07/12, 07/19/2024 CN 29102
Fictitious Business Name Statement #2024-9012374 Filed: Jun 12, 2024 with County of San Diego Recorder/County Clerk. Fictitious Business Name(s): A. Flour Fox and Cocoa; B. Flour Fox & Cocoa; C. Countertop Collective; D. Flour Box. Located at: 5938 Priestly Dr. #103, Carlsbad CA 92008 San Diego. Business Mailing Address: Same. Registrant Name and Business Mailing Address: 1. Carey Gretchen Fox, 5938 Priestly Dr. #103, Carlsbad CA 92008. This business is conducted by: An Individual. Registrant First Began to Transact Business Under the Names(s) Above as of: Not Yet Started S/Carey Gretchen Fox, 06/28, 07/05, 07/12, 07/19/2024 CN 29101
Statement of Abandonment of Use of Fictitious Business Name #2024-9013035 Filed: Jun 21, 2024 with San Diego County Recorder/County Clerk. Fictitious Business Name(s) To Be Abandoned: A. Green Field Paper Company. Located at: 7196 Clairemont Mesa Blvd., San Diego CA 92111 San Diego. Mailing Address: Same. The Fictitious Business Name Referred to Above was Filed in San Diego County on: 02/18/2022 and assigned File # 2022-9004216. Fictitious Business Name is being Abandoned By: 1. Smith Corp, Inc., 7196 Clairemont Mesa Blvd., San Diego CA 92111. The Business is Conducted by: A Corporation. S/Matthew Walker, 06/28, 07/05, 07/12, 07/19/2024 CN 29100
Fictitious Business Name Statement #2024-9012451 Filed: Jun 13, 2024 with County of San Diego Recorder/ County Clerk. Fictitious Business Name(s): A. Flooded Basement Games. Located at: 14764 Fruitvale Rd., Valley Center CA 92082 San Diego. Business Mailing Address: Same. Registrant Name and Business Mailing Address: 1. Flooded Basement Games LLC, 14764 Fruitvale Rd., Valley Center CA 92082. This business is conducted by: A Limited Liability Company. Registrant First Began to Transact Business Under the Names(s) Above as of: Not Yet Started S/Brooke Byler, 06/28, 07/05, 07/12, 07/19/2024 CN 29099
Fictitious Business Name Statement #2024-9012925 Filed: Jun 20, 2024 with County of San Diego Recorder/ County Clerk. Fictitious Business Name(s): A. Evamma LLC; B. Evamma Retail Store. Located at: 1286 University Ave., San Diego CA 92103 San Diego. Business Mailing Address: 6725 Parkside Ave., San Diego CA 92139. Registrant Name and Business Mailing Address: 1. Evamma LLC, 6725 Parkside Ave., San Diego CA 92139. This business is conducted by: A Limited Liability Company. Registrant First Began to Transact Business Under the Names(s) Above as of: Not Yet Started S/Amma Biaa Acquah, 06/28, 07/05, 07/12, 07/19/2024 CN 29098
Fictitious Business Name Statement #2024-9013036
Filed: Jun 21, 2024 with County of San Diego Recorder/County Clerk. Fictitious Business Name(s): A. Green Field Paper Company. Located at: 7196 Clairemont Mesa Blvd., San Diego CA 92111 San Diego. Business Mailing Address: 2683 Via de la Valle Ste G PMB 210, Del Mar CA 92014. Registrant Name and Business
Mailing Address: 1. Arsurus California LLC, 2683 Via de la Valle Ste G PMB 210, Del Mar CA 92014. This business is conducted by: A Limited Liability Company. Registrant First Began to Transact Business Under the Names(s) Above as of: 06/13/2024 S/ John Buethe, 06/28, 07/05, 07/12, 07/19/2024 CN 29097
Fictitious Business Name Statement #2024-9013001
Filed: Jun 21, 2024 with County of San Diego Recorder/ County Clerk. Fictitious Business Name(s): A. Land Use Pro Consulting. Located at: 7364 Orien Ave., La Mesa CA 91941 San Diego. Business Mailing Address: Same. Registrant Name and Business Mailing Address: 1. Jonathan Peter Frankel 7364 Orien Ave, La Mesa CA 91941. This business is conducted by: An Individual. Registrant First Began to Transact Business Under the Names(s) Above as of: 05/01/2024 S/Jonathan Peter Frankel, 06/28, 07/05, 07/12, 07/19/2024 CN 29096
Fictitious Business Name Statement #2024-9012992 Filed: Jun 20, 2024 with County of San Diego Recorder/ County Clerk. Fictitious Business Name(s): A. Aya’s Galore. Located at: 751 W. Bel Esprit Cir., San Marcos CA 92069 San Diego. Business Mailing Address: Same. Registrant Name and Business Mailing Address: 1. Akram Said Ilaian, 751 W. Bel Esprit Cir., San Marcos CA 92069. This business is conducted by: An Individual. Registrant First Began to Transact Business Under the Names(s) Above as of: Not Yet Started S/Akram Ilaian, 06/28, 07/05, 07/12, 07/19/2024 CN 29095
Fictitious Business Name Statement #2024-9012999 Filed: Jun 21, 2024 with County of San Diego Recorder/ County Clerk. Fictitious Business Name(s): A. Woof Gang Bakery & Grooming Camino Village. Located at: 2588-2 N. El Camino Real, Encinitas CA 92024 San Diego. Business Mailing Address: Same. Registrant Name and Business Mailing Address: 1. Mango Gardens LLC, 1119 Bellingham Dr., Oceanside CA 92057. This business is conducted by: A Limited Liability Company. Registrant First Began to Transact Business Under the Names(s) Above as of: Not Yet Started S/ Matthew Polson, 06/28, 07/05, 07/12, 07/19/2024 CN 29094
Fictitious Business Name Statement #2024-9012881
Filed: Jun 20, 2024 with County of San Diego Recorder/ County Clerk. Fictitious Business Name(s): A. Grand Bazaar Antiques & Rugs; B. Ethnee Home. Located at: 2502 S. Santa Fe Ave. #A5, Vista CA 92084 San Diego. Business Mailing Address: Same. Registrant Name and Business Mailing Address: 1. Ethnee Group LLC, 2502 S. Santa Fe Ave. #A5, Vista CA 92084. This business is conducted by: A Limited Liability Company. Registrant First Began to Transact Business Under the Names(s) Above as of: 06/01/2024 S/ Anderson Devoglio, 06/28, 07/05, 07/12, 07/19/2024 CN 29092
Fictitious Business Name Statement #2024-9012926
Filed: Jun 20, 2024 with County of San Diego Recorder/ County Clerk. Fictitious
Business Name(s): A. San Diego Performance Medicine. Located at: 418 Whitewood Pl., Encinitas CA 92024 San Diego.
Business Mailing Address: Same. Registrant Name and Business Mailing Address: 1. Michael Dennis Hadley, MD, P.C., 418 Whitewood Pl., Encinitas CA 92024. This business is conducted by: A Corporation. Registrant First Began to Transact Business Under the Names(s) Above as of: Not Yet Started S/Michael
Dennis Hadley, 06/28, 07/05, 07/12, 07/19/2024 CN 29091
Fictitious Business Name Statement #2024-9012179 Filed: Jun 10, 2024 with County of San Diego Recorder/County Clerk. Fictitious Business Name(s): A. Eddie Deuce; B. Eddie Deuce Co. Located at: 3809 Plaza Dr. #104, Oceanside CA 92056 San Diego. Business Mailing Address: 833 Ash Rd., Oceanside CA 92058. Registrant Name and Business Mailing Address: 1. Edgar Daniel Rodriguez II, 833 Ash Rd., Oceanside CA 92058. This business is conducted by: An Individual. Registrant First Began to Transact Business Under the Names(s) Above as of: Not Yet Started S/Edgar D. Rodriguez II, 06/28, 07/05, 07/12, 07/19/2024 CN 29090
Fictitious Business Name Statement #2024-9012825 Filed: Jun 18, 2024 with County of San Diego Recorder/ County Clerk. Fictitious Business Name(s): A. Perky Pierogi. Located at: 2498 Sendero Way, San Diego CA 92111 San Diego. Business Mailing Address: Same. Registrant Name and Business Mailing Address: 1. Brittany Ann Rohrman, 2498 Sendero Way, San Diego CA 92111. This business is conducted by: An Individual. Registrant First Began to Transact Business Under the Names(s) Above as of: Not Yet Started S/Brittany Ann Rohrman, 06/28, 07/05, 07/12, 07/19/2024 CN 29087
Fictitious Business Name Statement #2024-9012517 Filed: Jun 14, 2024 with County of San Diego Recorder/ County Clerk. Fictitious Business Name(s): A. Dswan Consulting. Located at: 1759 Yourell Ave., Carlsbad CA 92008 San Diego. Business Mailing Address: Same. Registrant Name and Business Mailing Address: 1. Dana Lauren Swanson, 1759 Yourell Ave., Carlsbad CA 92008. This business is conducted by: An Individual. Registrant First Began to Transact Business Under the Names(s) Above as of: 06/01/2024 S/Dana Lauren Swanson, 06/28, 07/05, 07/12, 07/19/2024 CN 29086
Fictitious Business Name Statement #2024-9012558 Filed: Jun 14, 2024 with County of San Diego Recorder/County Clerk. Fictitious Business Name(s): A. Sustainable Sweets. Located at: 3519 Four Peaks St., Carlsbad CA 92010 San Diego. Business Mailing Address: Same. Registrant Name and Business Mailing Address: 1. Sustainable Sweets, 3519 Four Peaks St., Carlsbad CA 92010. This business is conducted by: A Limited Liability Company. Registrant First Began to Transact Business Under the Names(s) Above as of: Not Yet Started S/Karyn Kulenovic, 06/28, 07/05, 07/12, 07/19/2024 CN 29085
Fictitious Business Name Statement #2024-9011742 Filed: Jun 04, 2024 with County of San Diego Recorder/ County Clerk. Fictitious Business Name(s): A. Carallon Printing and Publishing; B. Carallon Publishing; C. Carallon Printing. Located at: 10455 Rancho Rd., La Mesa CA 91941 San Diego. Business Mailing Address: Same. Registrant Name and Business Mailing Address: 1. John W. Howard, 10455 Rancho Rd., La Mesa CA 91941; 2. Julie E. Howard, 10455 Rancho Rd., La Mesa CA 91941. This business is conducted by: A Married Couple. Registrant First Began to Transact Business Under the Names(s) Above as of: 06/18/2019 S/John W. Howard, 06/28, 07/05, 07/12, 07/19/2024 CN 29083
The Theatre School at North Coast Repertory presents the climactic Shakespearean tragedy, “Hamlet,” as its next student production. The outdoor touring show will feature performances at three venues (Birdwing Open Air Classroom, 3201 Via de la Valle, Del Mar; La Colonia Park, 715 Valley Ave, Solana Beach; and San Diego Botanic Garden, 300 Quail Gardens Dr., Encinitas).
Shows July 18-20, July 2527, and Aug. 1-3. Free admission. All shows start at 5:30 p.m.
FREE SUMMER MEALS
The Boys and Girls Clubs of Oceanside is offering a summer meal program for free to children 18 years old and younger. Meals must be eaten at the club. Meals served at 7 a.m. and 11:30 a.m. from June 10 to Aug. 9 at Boys & Girls Clubs of Oceanside, 401 Country Club Ln, Oceanside.
SHAKE, RATTLE, ROLL BBQ
Dust off your dancing shoes for classic rock and roll hits by Ancora the Band. Free, 2 to 4 p.m. July 19 at Encinitas Community Center, 1140 Oakcrest Park Dr, Encinitas.
SUMMER CAMP
Do you have a creative and curious problem solver? $300-$350, 9 a.m. to 2 p.m. July 19 at San Diego Children's Discovery Museum, 320 N Broadway, Escondido.
BEERS BY THE BAY.
Experience a carefully crafted dinner, that is meticulously paired with each of Coronado Brewing's refreshing beers. Ensuring a delightful blend of flavors and an unforgettable dining adventure. $72, 6 p.m. at San Diego Mission Bay Resort, 1775 E Mission Bay Dr, San Diego.


SONGS & SHELLS OF SEA
Join Discovery Days for stories and songs with a marine biologist. Guests can create their own piece of jewelry to take home at the shell bracelet bar (one per guest). Free, 10 a.m. to 12 p.m. July 19 at The Forum Carlsbad, 1923 Calle Barcelona, Carlsbad.
PAWMICON
The Helen Woodward Animal Center is bringing back Pawmicon, an annual event that invites pet owners to dress up their dogs in cosplay, paying homage to



Comic-Con International. Free, 11:30 a.m. to 2:30 p.m. July 20 at AleSmith Brewing Company, 9900 Alesmith Ct, San Diego.
FAMILY LAGOON WALK
Bring the whole family for a tour the lagoon to learn about its history and the species that live there. The event is suitable for all ages. Free, 10 a.m. at Batiquitos Nature Center, 7380 Gabbiano Ln, Carlsbad.
METALACHI & MORE
Catch Metalachi, Dark Alley Dogs and Punkture perform live at Belly Up as part of the venue's ongoing 50th anniversary celebration. $27.25, 8 p.m. at Belly Up, 143 S Cedros Ave, Solana Beach.
ENCINITAS WALKING TOUR
The Encinitas Historical Society now offers this fun, historical, and educational tour with more varied walking paths. $10, 10 a.m. to 12 p.m. July 20 at Encinitas Historical Society, 390 W F St, Encinitas.
DNA INTEREST GROUP
The DNA Interest Group, sponsored by the
North San Diego Genealogical Society, will host an open forum to help attendees with issues or concerns regarding the use of DNA genealogical research. Free, 1 to 2:30 p.m. July 20 at Georgina Cole Library, 1250 Carlsbad Village Dr, Carlsbad.
40TH HIGH TEA
Join us for a celebratory high tea service in our iconic Beverly Mansion ballroom, where tea guests will be serenaded with live music and three elegant courses featuring loose leaf teas and delectable bite sized accompaniments. $400 for up to four guests, $600 for six guests and $800 for eight guests. 1 to 4 p.m. July 20 at Grand Tradition, 220 Grand Tradition Way, Fallbrook.
North County Road Runners present its 17th Annual Bake at the Lake, a cross country race that will benefit the park trail system at Lake Hodges and El Camino High School in Oceanside. $20, 7:30 a.m. at Lake Hodges, 20175 Lake Dr, Escondido.
MADD HATTER'S RETURN
Welcome to The Madd Hatter’s Return to Carlsbad! Join us for a whimsical afternoon as we celebrate the return of our favorite program, the Madd Hatter’s. Get ready for an enchanting experience filled with creativity, music, and surprises. Free, 10 a.m. to 4 p.m. July 20 at North Coastal Art Gallery, 300 Carlsbad Village Dr, Carlsbad.
COURTLY NOYSE Courtly Noyse brings Renaissance music to life, complete with period repertoire, costumes, and instruments, some of which you will recognize as the grandparents of our guitars, violins, and dulcimers. $15-$18, 7:30 to 9:30 p.m. July 20 at Pilgrim United Church of Christ, 2020 Chestnut Ave, Carlsbad.
GINUWINE
Join us at SeaWorld San Diego to see Ginuwine, R&B sensation known for his hit song “Pony,” weaving tales of love and passion through his soulful lyrics and irresistible melodies. $79, 6 p.m. at
Want


FROM KING FEATURES WEEKLY SERVICE, 628 Virginia Drive, Orlando, FL 32803
CUSTOMER SERVICE: 800-708-7311 EXT. 257
TRIVIA TEST #12345_20240715 FOR RELEASE JULY 15, 2024
By Fifi Rodriguez
FROM KING FEATURES WEEKLY SERVICE, 628 Virginia Drive, Orlando, FL 32803
CUSTOMER SERVICE: 800-708-7311 EXT. 257
TRIVIA TEST #12345_20240715 FOR RELEASE JULY 15, 2024
By Fifi Rodriguez
1. TELEVISION: What is the name of the town in the sitcom “Parks and Recreation”?
1. TELEVISION: What is the name of the town in the sitcom “Parks and Recreation”?
2. GEOGRAPHY: The Earth’s equator runs through how many countries?
3. MOVIES: Who plays the character Morpheus in “The Matrix”?
1. TELEVISION: What is the name of the town in the sitcom “Parks and Recreation”?
2. GEOGRAPHY: The Earth’s equator runs through how many countries?
3. MOVIES: Who plays the character Morpheus in “The Matrix”?
4. MYTHOLOGY: Which Greek hero was dipped in the River Styx as a baby and made almost invulnerable?
5. EXPLORERS: Which English explorer claimed Australia for Great Britain?
6. HISTORY: Which two Native American leaders fought Gen. George Custer’s troops at the Battle of Little Bighorn?
7. GENERAL KNOWLEDGE: What are the two traditional flowers associated with the July birth month?
8. LITERATURE: Which poem begins with the line, “Once upon a midnight dreary, while I pondered, weak and weary”?
9. ANATOMY: Where is the smallest skeletal muscle in the human body located?
2. GEOGRAPHY: The Earth’s equator runs through how many countries?
4. MYTHOLOGY: Which Greek hero was dipped in the River Styx as a baby and made almost invulnerable?
5. EXPLORERS: Which English explorer claimed Australia for Great Britain?
3. MOVIES: Who plays the character Morpheus in “The Matrix”?
4. MYTHOLOGY: Which Greek hero was dipped in the River Styx as a baby and made almost invulnerable?
6. HISTORY: Which two Native American leaders fought Gen. George Custer’s troops at the Battle of Little Bighorn?
10. INVENTIONS: What medication, originally used to treat eye muscle spasms, later became a success in reducing facial wrinkles? Answers
1. Pawnee, Indiana.
2. 13.
3. Laurence Fishburne.
7. GENERAL KNOWLEDGE: What are the two traditional flowers associated with the July birth month?
5. EXPLORERS: Which English explorer claimed Australia for Great Britain?
8. LITERATURE: Which poem begins with the line, “Once upon a midnight dreary, while I pondered, weak and weary”?
6. HISTORY: Which two Native American leaders fought Gen. George Custer’s troops at the Battle of Little Bighorn?
9. ANATOMY: Where is the smallest skeletal muscle in the human body located?
4. Achilles.
5. James Cook.
6. Crazy Horse and Sitting Bull. 7. Larkspur and water lily.
10. INVENTIONS: What medication, originally used to treat eye muscle spasms, later became a success in reducing facial wrinkles? Answers
7. GENERAL KNOWLEDGE: What are the two traditional flowers associated with the July birth month?
8. LITERATURE: Which poem begins with the line, “Once upon a midnight dreary, while I pondered, weak and weary”?
1. Pawnee, Indiana.
13. 3. Laurence Fishburne.
Achilles.
James Cook.
Crazy Horse and Sitting Bull.
9. ANATOMY: Where is the smallest skeletal muscle in the human body located?
Larkspur and water lily.
“The Raven” by Edgar Allen Poe.
Middle ear — the stapedius.
10. INVENTIONS: What medication, originally used to treat eye muscle spasms, later became a success in reducing facial wrinkles? Answers
1. Pawnee, Indiana.
2. 13.
3. Laurence Fishburne.
4. Achilles.
5. James Cook.
6. Crazy Horse and Sitting Bull.
7. Larkspur and water lily.
8. “The Raven” by Edgar Allen Poe.
9. Middle ear — the stapedius.
10. Botox.
© 2024 King Features Synd., Inc.


July 22 - August 3rd 9 AM-12





W. Vista Way, Suite 130 Vista, CA 92083
The Shops 1030 La Bonita Dr., Suite 130 Lake San Marcos, CA 92078 (760) 304-4522

SeaWorld, Bayside Amphitheater, 500 Sea World Dr, San Diego.
ICE CREAM SOCIAL
The Vista Historical Society is hosting its annual ice cream social with ice cream and rootbeer floats, activities for children, vendors and more. $5 for adults, $3 for children. 1 to 5 p.m. July 20 at Vista Historical Society, 2317 Foothill Dr, Vista.
JULY 21
COUNTRY & BLUES BBQ
Leeann Atherton brings her musical guests out for a BBQ and rootsy good time. Free, 2 to 4:30 p.m. July 21 at American Legion Encinitas , 210 W F St, Encinitas.
CARDIFF DOG DAYS
Cardiff 101 Main Street and the city of Encinitas present Cardiff Dog Days of Summer, a free, public event featuring dog-related vendors, rescue groups and more. Free, 10 a.m. to 3 p.m. July 21 at Encinitas Community Park, 425 Santa Fe Dr, Encinitas.
HEALING EVENT
This summer, dive into a world of enchantment with “Disney Dreams: A Magical Melody,” our latest musical theatre production. Featuring beloved scenes and songs from Disney classics like Frozen, Moana, and Aladdin Jr., this program offers a unique opportunity for young performers aged 6 to 15 to create, rehearse, and perform a magical musical play.
Participants will have the chance to immerse themselves in all aspects of theatre. Whether they dream of being in the spotlight or prefer the creative hustle behind the scenes,
technique to receive spiritual energy to heal and transform your life. $20, 6:30 to 8 p.m. July 21 at Spiritual Arts Institute, 527 Encinitas Blvd, Encinitas.
22
PAUL THORN
Catch acoustic blues musician Paul Thorn at Belly Up as part of the venue's ongoing 50th anniversary celebration. $44.25-$74.50, 8 p.m. at Belly Up, 143 S Cedros Ave, Solana Beach.
23
ALVIN & GILMORE
Catch Dave Alvin and Jimmie Dale Gilmore with The Guilty Ones at Belly Up as part of the venue's ongoing 50th annversary celebration. Musicians Jon Langford and Alice Spencer will perform as well. $41.25, 7:30 p.m. at Belly Up, 143 S Cedros Ave, Solana Beach.
TWILIGHT IN THE PARK
Enjoy these summer concerts with family and friends and don’t forget to bring a picnic. See you there. Free, 6:30 to 7:30 p.m. July 23 at Spreckels Organ Pavilion, 2125 Pan American Rd E, San Diego.
there's a role for everyone. Kids can choose the characters they want to portray or the musical parts they wish to perform. Additionally, those who are more interested in stage production can contribute by helping to create costumes, design sets, and manage backstage activities.
One of the unique aspects of this program is its inclusivity. All kids who want to perform will have speaking roles and singing parts, ensuring that everyone gets their moment to shine. Throughout the week, they'll work together to bring this magical sto-
Genealogical Society will host speaker Andy Likins to present, "Locating Images of Putting a Face with a Name" at the regular monthly meeting. 10 to 11:30 a.m. July 23 at Faraday Center, Faraday Ave, Carlsbad.
JULY 24
MICHAEL FRANTI
Catch Michael Franti and Spearhead during the Togetherness Tour stop at the Belly Up as part of the venue's ongoing 50th anniversary celebration. $110.75$194.25, 7 p.m. at Belly Up, 143 S Cedros Ave, Solana Beach.
THREATS TO CIVIC DUTY
In an update to last year's popular event, USD researchers present latest findings on threats to public officials and brainstorm ideas to improve civil discourse. Free, 6 to 7:30 p.m. July 24 at Palomar College, 1140 W Mission Rd, San Marcos.
JIM NORTON
ry to life, culminating in a special public performance where they can showcase their hard work and talent. Our previous productions, including “Aladdin Jr.,” “Willy Wonka,” “James and the Giant Peach” and “Charlie Brown Christmas,” have been met with enthusiasm and applause. This year's “Disney Dreams: A Magical Melody” promises to be just as spectacular, offering an unforgettable experience for all participants. Take advantage of this chance to be part of a magical musical journey. Sign up now and let your creativity soar!
CONCERTS AT THE COVE
The city of Solana Beach and the Belly Up Tavern present artist Slack Key Ohana as part of the Concerts at the Cove series. Free, 6 to 7:45 p.m. July 25 at Fletcher Cove Park, 111 S Sierra Ave, Solana Beach.
SUMMER NIGHTS
Join San Diego Botanic Garden at its highly anticipated Summer Nights every Thursday from July 11 through Aug. 29. 6 p.m. at San Diego Botanic Garden, 300 Quail Gardens Dr, Encinitas.
THE ADDAMS FAMILY
The Carlsbad Community Theatre presents "The Addams Family" featuring 50 performers from North County. Wednesday Addams has fallen in love, and she begs her father to keep it a secret from her mother. $22, 7 p.m. at Carlsbad Cultural Arts Center, 3557 Monroe St, Carlsbad.
‘HELLO, DOLLY!’
Hello, Dolly! is a musical filled with charisma and with heart. Matchmaker Dolly Levi is a widow and a matchmaker. 8 to 10:30 p.m. July 26 at Kit Carson Park Amphitheater, Amphitheater Dr, Escondido. EVENTS
Neil and the Divine Light healers will guide you through a highly effective
GENEALOGICAL SOCIETY
The North San Diego
Comedian Jim Norton will perform live at Belly Up. He is a bestselling author actor and radio personality. $55.50, 8 p.m. at Belly Up, 143 S Cedros Ave, Solana Beach.









including Encinitas City Manager Pamela Antil, right, alleging a retaliatory censure vote damaged his professional repuation. The Coast News graphic
an Oct. 17 pretrial hearing and a scheduled Oct. 29 trial start date.
Antil, a Michigan native who has served as Encinitas city manager since 2020, is one of 16 defendants in the complaint. The Washington D.C.-based ICMA is also a named defendant.
Last October, The Coast News reported that Antil came under fire for engaging in an “inappropriate text exchange” with a fellow board member about Freed during his appeal of the board’s censure vote on June 11, 2022.
“He just looks like a d----ebag,” William Fraser wrote about Freed in a text message to Antil during the virtual hearing.
“He is,” Antil wrote in response.
“I already want to punch him in the face,” Fraser replied.
During the same hearing, Antil and others voted to publicly censure Freed and strip his credentialed manager status, citing ethical violations related to his public comments regarding Port Huron’s successful appeal of COVID-19 workplace violations, opposition to the prospect of enforcing mandatory COVID-19 vaccinations upon city staff and statements to a colleague on a statewide listserv.
The organization later issued a press release detailing Freed’s censure, which was widely shared by local and regional media outlets.
Freed initially filed a defamation, false light and civil conspiracy lawsuit against ICMA, an ethics adviser and 19 executive board members who took part in the censure vote. Freed claimed his censure was unlike others in the organization’s past, “damaged his reputation and impaired his ability to advance in his career.”
“I’m the only city manager that’s ever been censured over social media posts and a private email,” Freed said during an interview on Turner’s podcast, “City Manager Unfiltered.”
Freed later dropped from the complaint five board members who voted against his censure, including Fraser, who later supplied his text exchange with Antil to the court.
The lawsuit has been
contentious since it was filed in September 2022. Shoudy said none of the defendants responded or complied with his request for documents and sworn statements for weeks. Judge Michael West eventually ordered all defendants, including Antil, to comply with the discovery process.
Turner, a former city administrator and president of the newly formed American Association of Municipal Executives, of which Freed is now a member, said that it’s “hypocritical for Antil and the ICMA to hold themselves out to the world as the arbiters of what is ethical conduct for city managers when they will not even comply with court orders.”
“If Antil is willing to defy a judge and obstruct the justice system, how can she be trusted to do the right thing at City Hall,” Turner said.
Michigan attorneys William Cook and Kevin Mulvaney, representing all of the defendants, did not respond to requests for comment. A spokesperson with the City of Encinitas did not respond to a request for comment.
In 2018, before his censure, Freed wrote a letter to Martha Perego, the ICMA’s director of member services and ethics, expressing concerns about her misuse of the organization’s official Twitter account to promote a partisan political agenda by “liking” posts that were critical of Republicans.
According to the lawsuit, Freed’s letter sparked “deep and personal animosity” toward him from members of the ICMA ethics department, resulting in several anonymous ethics complaints levied against him. None of the investigations into Freed found any wrongdoing.
In fall 2020, the Michigan Occupational Safety and Health Administration, or MIOSHA, issued a $6,300 fine for COVID-19 workplace violations to Port Huron, where Freed is the city manager. State inspector Matthew Hartman reported that the city was not requiring employees to wear masks, failed to keep proper records and didn’t follow health screening rules.
During the MIOSHA investigation, Michigan Gov. Gretchen Whitmer is-
Who’s the fastest U.S. broadband provider in the U.S.? It’s Cox Communications, according to a recently released 2024 annual review by HighSpeedInternet.com (HSI), which ranked Cox as the fastest ISP (internet service provider) in the nation based on average download speeds for all of 2023.
sued a press release alleging that “the City of Port Huron, under Mr. Freed’s leadership, had engaged in serious violations of COVID-19 protocols,” the lawsuit states.
Freed and the city defended the allegations and learned through a formal interview that the inspector had “burned his notes” and destroyed his emails with supervisors during the investigation, the Associated Press reported. The state Attorney General’s Office, representing MIOSHA, later dropped the fine against Port Huron.
In response, Freed posted on Twitter, tagging Whitmer, “@gewhitmer you shouldn’t mess with a father who cares about the world his little girl grows up in.”
Freed also shared his views with city staff on the Michigan Municipal Executives listserv about the idea of implementing mandatory COVID-19 vaccinations for municipal employees.
“Hear me now, I will never enforce a vaccine mandate upon my employees. I took an oath to protect and uphold the Constitution when I took this position,” Freed wrote.
The ICMA interpreted Freed’s statement as a promise to defy state law, even though Michigan lawmakers never implemented a vaccine mandate.
The ICMA board stated that Freed’s “preemptive declaration to city employees that he would never implement a specific law or policy when it is the manager’s duty to do so is contrary to the principles in Tenet 3 of the ICMA Ethics Code.”
From the outset of Freed’s troubles with the ICMA, Port Huron officials have defended him.
In a letter to the ICMA, Port Huron Mayor Pauline Repp and members of the Port Huron City Council said they “strongly disagree” with the board’s findings and asked the ICMA to retract its “baseless censure.”
“No law or pending law was preemptively declared to be violated. You provided no such evidence to support your claim.
“Additionally, although you may not like professional criticism of elected or appointed officials, it is lawful, ethical by ICMA standards and constitutionally protected. Our manager did not breach or erode public trust.”
Cox claimed the top spot by delivering average year-long download speeds of 238 Mbps across the country — a full 10 Mbps ahead of its nearest competitor.
“Our Speed Test sets the standard for millions of Americans seeking greater insight into their internet connection. With millions of tests conducted in our 2024 Annual Review, HighSpeedInternet.com has the unique capability to examine speeds for internet users from coast to coast,” said Manuel Delgado, managing director at HighSpeedInternet.com.
“As technologies and ISP infrastructures improve, it is impressive to see Cox emerge as the fastest broadband provider in the U.S. this year in our comprehensive analysis,” Delgado continued.
$11B NETWORK UPGRADE INVESTMENT
In the past 10 years, Cox has invested more than $11 billion in network upgrades to deliver some of the most powerful internet, TV, phone, smart home, and mobile services and will continue making multibillion-dollar annual infrastructure investments over the next several years:
• All Cox markets are powered by fiber today and Cox continues to expand fiber-to-the-home across our footprint in the coming years.
• Today, all Cox customers have access to gigabit speeds and approximately half have access to multi-gigabit speeds.
• Cox increased download speeds for the majority of its customers in 2023, doubling the speed of its

most popular tier from 250 to 500 Mbps at no extra cost.
“As consumers continue to introduce more connected device in their homes, the need for fast fiber-powered broadband becomes increasingly important,” said Sheila Hicks, senior vice president of residential sales at Cox.
“Validating our capabilities with a respected third-party partner reinforces our message to customers that we can deliver the fiber-powered reliable speeds they need now and well into the future.”
SPEED TESTING
APP
Internet users seeking to measure the speed of their connected devices while at home can do so via HighSpeedInternet's website tool or by downloading the speed testing app, available via the Apple App Store and Google Play. As the largest private broadband company in America, Cox operates fiber-powered networks in more than 30 states, providing connections and advanced managed IT and cloud services for nearly seven million homes and businesses nationwide.








