At Home In the Upstate_Part 1: Fall 2024 Fluid Studio

Page 1


AT HOME_IN THE UPSTATE

SUPPORTING COMMUNITY THROUGH ATTAINABLE + SUSTAINABLE HOUSING

FALL 2024 FLUID STUDIO | CLEMSON UNIVERSITY SCHOOL OF ARCHITECTURE

SECTION 1 | About the Studio

Introduction

PROJECT PHASES

Phase 1.1 | Poe Mill and the Case for Middle and Infill Housing

Phase 1.2 | Six Detailed Case Studies

Phase 1.3 | Test Fit Analysis

Phase 2 | Schematic Design

Phase 3 | Design Development

Phase 4 | Techtonic and Envelope Resolution + Final Presentation

Project Partners, Collaborators and Contributors

Snapshots and Highlights from the Semester

SECTION 2 | Middle Housing

Overview Accessory Dwelling Units

Co-Housing

Cottage Clusters

Live / Work

Townhouses

SECTION 3 | Six Detailed Case-Studies

Baywood Houses | Greenville, SC | Boyd Architects | Ashley + Lexi + Mackenzie

Rutledge Row | Charleston, SC | Boyd Architects | Daniel + John

Westside Duplex | Charleston, SC | Boyd Architects | Julia + Kyra

Bastion Homes | New Orleans, LA | Office Jonathan Tate | Joel + Nicolas

3106 St. Thomas | New Orleans, LA | Office Jonathan Tate | Ella + Hamilton + Mina

7510 Zimple | New Orleans, LA | Office Jonathan Tate | Cameron + Kamand

SECTION 4 | Poe Mill Housing and Density Studies

SECTION 5 | Student Design Proposals

Joel Rogers | Mill School Lot

Hamilton Sprawls | Mill School Lot

Kamand Taherkhani | Mill School Lot

Nicolas Beck | Buncombe Road Edge

Cameron Sunkel | Buncombe Road Edge

Lexi DiSaverio | Buncombe Road Edge

Mackenzie Knautz | Buncombe Road Edge

Mina Keshavarzi | Prototypical Interior Block

Ashley Parsons | Hammett Street Corner

Ella Mountcastle | Hammett Street Corner

Julia Campbell | Hammett Street Corner

Daniel Montalvo | Conyers & Shaw Street Corner

Kyra Whiteman | Conyers & Shaw Street Corner

John Trejo-Chavez | Conyers & Shaw Street Corner

172

AT HOME IN THE UPSTATE | ABOUT THE STUDIO

INTRODUCTION

Access to quality affordable housing is one of the most pressing and persistent challenges in contemporary society, and it is clear that the U.S. is in a state of crisis. In its 2023 “State of the Nation’s Housing Report” Harvard’s Joint Center for Housing Studies (JCHS) describes that: “The nation continues to face critical housing challenges. There is a significant housing shortage, and affordable / workforce housing programs pale in comparison to the need. Housing insecurity and homelessness are on the rise as pandemic-era programs expire.”1 While reflecting on and summarizing this same study, Habitat for Humanity describes the following key takeaways2:

• Homeownership costs skyrocketed (by approximately 20%) in 2022, pricing out 2.4 million potential homebuyers. This included a 22% drop in first-time homebuyers.

• Housing cost-burden levels are very high, where “cost-burdened” is defined by housing costs greater than 30% of household income. 22.7% of homeowners were cost-burdened in 2021, while the number of cost-burdened renters reached an all-time high at 49%.

• The supply of homes for sale remains at near-record lows. By the end of 2022 the supply of single-family homes for sale was 30% lower than it was in 2019. This shortage is most pronounced for lowerpriced homes. Rising land prices, high material costs, and regulatory barriers are key contributors.

• On a positive note, various states and localities are helping to demonstrate ways forward through reforms to zoning and other housing regulations. These reforms are aimed at making it easier to build affordable homes. HUD’s new $85 million PRO Housing program will support states and localities as they seek to identify and address their own barriers to affordable housing.

In conjunction with creative and strategic thinking from policy makers, the design and construction industry has a central role to play. For example, the zoning reforms recently enacted in places like Portland, Oregon now invite design innovation for “missing middle” affordable and attainable housing typologies (duplexes, triplexes, mixed-income and below-market six-plexes, group co-living homes, ADUs, etc.).3 Moreover, designers and builders will be called upon to skillfully and resourcefully implement sustainable and resilient design strategies to ensure that this new housing performs well and has a low impact on the environment. From basic passive measures (solar orientation, shading, ventilation, etc.) to energy-efficient envelopes and building systems to

renewable, low-carbon materials, we have a responsibility to critically address the climate crisis while simultaneously addressing the housing crisis. By doing both, we can help to shape and stabilize communities which are environmentally, economically and socially sustainable. The Weyerhaeuser timberland and forest products company understands this and has framed its commitment to these areas (Climate, Homes and Communities) in its 3x30 Sustainability Ambitions.4

In the Fall of 2024, a joint design-studio course was conducted through Clemson’s School of Architecture in partnerships with Weyerhaeuser. The course and its respective projects focused on the topic of equitable and attainable housing with an emphasis on low-carbon wood & timber construction. The course and its project would be organized as a design competition and would serve as a model for wider participation (across U.S. schools of architecture) in the future.

STUDIO & SETTINGS

Among the various semester-long Studio courses in Clemson’s School of Architecture (SoA), the upper-level “Fluid” Studios, in particular, are set aside as unique opportunities for topical, research-driven design projects. These projects are far-reaching in their themes while also being quite local in their connections to selected settings.

In the Fall 2024 Housing Design Studio, we envisioned a collaboration between two fluid studio classes working across two of our SoA centers – Clemson’s main campus and the Clemson Architecture Center in Charleston (CAC.C). In this arrangement, the CAC.C studio, led by Bradford Watson, focused on urban, multifamily housing on the Charleston Peninsula. Special emphasis was placed, in this case, on the use of mass timber or hybrid mass timber / light-frame construction. The Clemson-based studio, led by Dustin Albright, focused on single-family and co-housing typologies in nearby Greenville County (SC), and highefficiency light wood frame construction methods. This studio built upon the work of Albright’s Fall 2023 studio which examined contemporary housing needs and the challenges of gentrification and displacement in the former textile mill villages of Greenville’s “Textile Crescent”.

1 https://www.jchs.harvard.edu/sites/default/files/reports/files/Harvard_JCHS_The_State_of_the_Nations_Housing_2023.pdf (Accessed 01/27/24)

2 https://www.habitat.org/costofhome/2023-state-nations-housing-report-lack-affordable-housing (Accessed 01/27/24)

3 https://www.sightline.org/how-a-city-finally-passed-housing-zoning-reform/ (Accessed 01/27/24)

4 https://www.weyerhaeuser.com/sustainability/3by30/ (Accessed 01/27/24)

https://www.jchs.harvard.edu/son-2023-cost-burdens-map

Both of the proposed settings (Charleston and Greenville) are experiencing rapid growth and development along with significant shortages of housing, particularly affordable housing. Both also exhibit high levels of housing cost burden, according to the JCHS report. Taken together, the cities of Charleston and North Charleston, SC have median monthly housing costs of $1,257, which has led to 31.3% of households being cost-burdened and 15.9% being severely cost-burdened (in which housing costs are over 50% of household income). These are among the highest rates of housing cost burden in the Southeast, United States. Taken together, the Greenville/Anderson/Mauldin areas of Upstate South Carolina are not much better, with a cost-burdened share of 25.3% and a severely cost-burdened share of 12.6%.

In addition to the demonstrated need for affordable housing in both locations, and the opportunity to study a variety housing typologies and scales, we felt that Greenville and Charleston presented climatic challenges (hot humid summers, hurricanes, flooding and sea-level rise) which demand rigorous attention to sustainable and resilient design strategies. We also knew that both of these city’s governments are proactively working to address affordable and workforce housing in their comprehensive planning.5 6 Finally, we understood that the building industries in both locations are dependent on the wood and timber products grown and produced in South Carolina and stand to benefit directly from the use of these

local, renewable materials, and from related innovations in wood construction and project delivery, such as off-site fabrication and hybrid light frame + mass timber, among others.

The joint Housing Design Studio operated within a closely coordinated schedule shared between the two sections (Charleston and main campus). Our course calendar included opportunities for both groups to come together (some virtual, others in-person) in order to cross-pollinate, hear from guest presenters, and visit relevant sites. The projects in each section were ultimately compiled into a design competition format, providing clear and focused final outcomes for the project sponsor (Weyerheauser) and other partners / stakeholders. The studio served as a model/pilot for future student design competitions, sponsored by Weyerheauser, and focused on sustainable, affordable housing and resilient communities.

5

AT HOME_IN THE UPSTATE

What follows in the remainder of this book is a detailed look at the work completed in the main campus studio section, whose studies focused on housing for the Poe Mill community of Greenville, SC. The title of this studio was At Home_In the Upstate: Supporting Communities through Attainable + Sustainable Housing.

The Upstate of South Carolina was once a center of the nation’s textile industry. In 1930, Greenville was home to 16 cotton mills and two bleacheries, all within three miles of the town’s center. This string of sites came to be known as the “Textile Crescent”. The majority of these factories closed their doors during the last fifty years, leaving behind a network of mill villages without their economic engines. More recently, several of the sites have been redeveloped into popular residential, retail and entertainment centers. Currently, the Poe Mill neighborhood stands as an exception to this trend, but heavy-handed development, gentrification and displacement are threats which require careful and creative planning.

A preceding Fluid Studio (Fall 2023) examined alternative forms of redevelopment and reinvestment within former textile communities through the lens of Poe Mill. In so doing we learned much about the Poe Mill neighborhood of Greenville, its unique qualities and opportunities, and also its similarities to the other former mill villages that comprise the “Textile Crescent” of Greenville County. We studied with a critical eye the development pressures that these neighborhoods are facing (including a planned redevelopment of the Poe Mill site which is currently on the table), and thought with optimism about alternative revitalization strategies, programming and infrastructure (physical and social) that may present holistic and lasting value to the Poe Mill neighborhood and neighborhoods like it. Resulting design projects mostly focused on community programs and related facilities, located on or near the mill site itself. Housing needs and opportunities were addressed in a master planning phase, but only a couple of the final student projects focused on housing types and designs.

This, then, set the stage for the Fall 2024 At Home_In the Upstate studio, which was squarely focused on housing at the infill and “missing middle” scales.

PHASE 1.1 | Poe Mill and the Case for Middle and Infill Housing

We will begin by getting (re)acquainted with the Poe Mill neighborhood and its place within Greenville County’s historic “Textile Crescent.” Drawing on the work from the Fall 2023 Poe Mill Thriving studio, we will learn about the history of Poe Mill, from its establishment in 1896 and the formation of its residential fabric, to the divestment of housing by the mill company in the 1950’s, and the eventual closure of the mill in 1977. We will learn about how the neighborhood has evolved in the intervening years and some of the potential challenges now threatened by new and large-scale development.

Through course readings, we will work to understand how communities like Poe Mill come to experience residential displacement at the hands of unchecked gentrification, and we will learn about various interrelated anti-displacement strategies, ranging from policy measures to housing planning and design. Specifically, we will study zoning approaches and related reforms as well as “missing middle” and infill housing typologies. Following an initial period of research, students will present their findings and related case-studies for the following “missing middle” typologies and related concepts:

• Duplexes, Triplexes and Quadplexes

• Townhouses (including Rowhouses)

• Housing Clusters

• Accessory Dwelling Units (ADUs)

• Co-Housing

• Live/Work Arrangements

Throughout these zoning reform and “missing middle” studies, we will keep Poe Mill in our minds, understanding that a key objective for our Studio will be the eventual application of these principles in the interest of sustainable, right-scaled investment and development in the neighborhood. Doing so will sensitively address the need for greater housing density – as a stabilizing factor rather than a destabilizing one.

PHASE 1.2 | Six Detailed Case-Studies (08.30.24 –

09.16.24)

Building upon our initial discussions of housing density, progressive zoning strategies, and “missing middle” typologies, we will now turn our attention to six noteworthy examples of infill housing, in the form of deep, directed case-studies. Taken together, these six houses present a range of creative solutions operating within very particular contextual constraints. The houses are listed below.

• 3106 St Thomas (Starter Home #01)

New Orleans, LA (2014) | Office Jonathan Tate (OJT)

• Bastion Community Housing

New Orleans, LA (2014) | Office Jonathan Tate (OJT)

• 7510 Zimple

New Orleans, LA (2015) | Office Jonathan Tate (OJT)

• Westside Duplex

Charleston, SC (2022) | Boyd Architects

• Rutledge Row Charleston, SC (2023) | Boyd Architects

• Baywood Ave Houses

Greenville, SC (2023) | Boyd Architects

The architects (Jonathan Tate and Rachel and Lucas Boyd) have generously made available to us the construction drawings for each of these houses. Each is built using light-wood framing for the structure, and this will provide a valuable point of entry for us as we dive deeply into the tectonics of light frame construction and related questions of material efficiency and energy performance, and even on-site vs. offsite construction. These studies will naturally dovetail with the August 28th presentations by Sarah Fulcher (Weyerhaeuser) and Jason Griffiths ( University of Nebraska, Lincoln) relating to the ecological and social benefits of building with sustainable wood products.

Note that we will have the chance to meet Rachel and Lucas Boyd and tour the Westside Duplex and Rutledge Row projects during our upcoming trip to Charleston (Sept. 3-4). We will also hear from Jonathan Tate about the three OJT projects during his Sept. 4th presentation. Later on, we will visit the Baywood houses with the Boyds and developer Ashley James on Sept. 23rd.

Working together in teams of three (or two) you will complete the following analyses and related deliverables:

• Analysis of case-study project site and surrounding context, including figure ground drawing

• Coordinated notation of project zoning and any relevant strategies

• A complete digital model (and related drawings) depicting the light wood frame of the case-study house

• These are to be prepared in relation to the reference drawings provided by the architects. With that being said, the drawings will not specify every element of the framing (every stud, joist, etc.) but will instead illustrate certain key conditions. So, you will be left to interpret and infer, while coordinating with the floor plans, locations of door and window openings, etc.

• In addition to the wood framing, you are required to model any foundations and/ or slabs-on-grade in order to understand how these houses meet the ground.

• Additional digital models of a select portion of the structure in which you revise the structural framing to (1) reflect the principles and methods of “Advanced Framing”, and (2) study the potential for prefabricated wall panels

• In conjunction with these alternative framing studies, you should analyze and report on the relative material efficiency and performance characteristics

PHASE 1.3 | Test Fit Analysis (09.18.24 –

Having now studied a range of “Missing Middle” typologies and related examples (phase 1.1), and having performed the more detailed case-studies on six infill housing projects from OJT and Boyd Architects (phase 1.2), we will now turn our attention back to the Poe Mill neighborhood. Working from Rashida Jeffers’ 2009 revitalization plan, plus Master Plan 01 developed in the Fall 2023 Poe Mill Thriving studio (pictured on pages 120-121), we will work together to explore strategies for densifying the neighborhood through infill and middle housing.

In this phase of our project, we will work in teams to perform test fits and related analyses of new housing within the Poe Mill master plan. Each team will collaborate to examine housing opportunities across several sites within the neighborhood, including, for example: the Buncombe Rd edge; the Hammett St / 7th Ave edges; the Conyers St edge; the B St block between 3rd and 4th Avenues; as well as throughout the regular, interior fabric. As the vehicles for this test fit exercise, each group will select from the missing middle and infill housing case-study structures that we have examined up until this point, inserting those structures (in whatever combinations you would like to explore) onto the various sites in question.

A partial list of goals for this stage are:

• Explore increases in housing density and related zoning ramifications

• Study form and scale with respect to neighboring structures

• Examine parking and mobility

• Examine shared-spaces (exterior, porches, etc.) and questions related to the public-to-private gradient

• Study building orientation with respect to neighborhood fabric and with respect to the sun / environmental factors

• Study how the buildings meet the ground and the related elevation of the ground floor relative to existing topography

• Think about a diversity of households and related needs (including co-housing, multi-generation housing, accessibility, aging in place, etc.)

Through iterative studies, each team will come up with a housing master plan consisting of the test fits and related commentary / analysis. In so doing, you may find it necessary to recommend certain basic modifications to the case-study structures (i.e. mirroring, lowering, shortening, lengthening, screening). These and other similar options are up to you and are a part of your analyses.

PHASE 2 | Schematic Design (09.25.24 – 10.09.24)

Up to this point, we have completed the research and analysis of Phase 1, including our initial look at “Missing Middle” housing typologies, our detailed examination of six case-studies, and our test-fit application of these examples within the Poe Mill neighborhood. Next, we will move into the schematic design phase in which we will:

1. Further refine the layouts of new / renovated housing on various sites within the neighborhood.

2. Perform initial site design.

3. Nail down form, orientation and basic organization of the proposed housing.

4. Select and design certain units in further detail.

Below are the expected deliverables and areas of emphasis for this phase.

SITE DESIGN of Selected Area in Poe Mill (working in pairs / small groups)

• Zoning classification and analysis

• Location and orientation of structures (new and existing)

• Parking and circulation

• Vegetation

• Solar and climate analysis

NEW + RENOVATED HOUSING ON SITE (working in pairs / small groups)

• Massing

• Locations / Footprints

• Consideration of Topography

• Orientation and solar analysis (light and shade)

• Basic diagrams of new + renovated housing showing, in turn:

• porches; points of entry; circulation; etc.

• Related statistics, including

• number of new households (per unit and aggregate)

• number of dedicated parking spaces (per unit and aggregate)

SCHEMATIC DESIGN OF SELECTED HOUSE (working as individuals)

• Massing

• Basic program diagram (3D)

• Conceptual floor plans

• locations of most significant spaces

• circulation

• location of core

• Building Sections

• Window and door locations

• related solar studies

*No material definition, exterior elevation details, interior details at this stage.

THESIS / POSITION STATEMENT

• What are the central premises of your project? What design strategies (at the site level and at the building level) might these premises invoke?

In all of this, be sure to remember and consider our framework for analysis...

• Explore increases in housing density and related zoning ramifications

• Study form and scale with respect to neighboring structures

• Examine parking and mobility

• Examine shared-spaces (exterior spaces, porches, etc., and their qualities) along with questions related to the public-to-private gradient

• Study building orientation with respect to neighborhood fabric and with respect to the sun / environmental factors

• Study how the buildings meet the ground and the related elevation of the ground floor relative to existing topography

• Think about a diversity of households and related needs (including co-housing, multi-generation housing, accessibility, aging in place, etc.)

As a starting point, I suggest making clear connections back to the recently-completed case-studies. What worked well from the final test-fit schemes (e.g. height, footprint, circulation, parking, etc). What was lacking or needed changing?

PHASE 3 | Design Development (10.11.24 –

Building upon the housing and site designs accomplished in phase 2, we will now work to develop and refine. Goals for phase 3 include:

1. Finalized floor plans

2. Finalized building massing(s)

3. Finalized building sections (addressing roof form; ground floor elevation; interior spatial relationships; thresholds to exterior; etc.)

4. Finalized building elevations (addressing scale; window and door openings; exterior materials; overhangs / indentions / planar relationships; shading; etc.)

5. Finalized site plans at the scale of the neighborhood block (emphasizing new housing footprints, parking and circulation, vegetation, and other big moves, while following your respective zoning regulations)

6. Finalized site plans at the scale of the individual housing structure(s) selected for full resolution (likely combined with ground floor plan)

7. Any necessary updates / revisions to the other relevant drawings and diagrams that preceded in phase 2.

These will be informed by continued emphasis on case-studies and precedents, as well as through environmental analysis. The environmental analysis will take the form of daylight and energy modeling using cove.tool.

Your work will also necessarily draw on the detailed framing analyses of the casestudy houses in phase 1.2, while recognizing that we will complete full tectonic framing models of our housing proposals in the upcoming phase 4.

PHASE 4 | Tectonic and Envelope Resolution + Final Review

Phase 4 is dedicated to the technical development of the housing designs you have worked on to this point. This will include tectonic development of the framing, with special attention paid to constructability and material efficiency. This will also include resolution of the building envelope and analysis of the associated energy performance. Particular points of emphasis in this last phase include several technical deliverables as well as other final models and renderings. These include:

1. Finalized floor plans and site plans, carried over from previous phase. Refer to previous instructions and examples for these.

• As a reminder, the site plans should probably reflect ground floor building plans and should depict circulation, parking, vegetation, other hardscape, and the locations of any outdoor air-conditioning equipment (i.e. the condensing unit and its pad).

2. Finalized building sections (addressing roof form; ground floor elevation; interior spatial relationships; thresholds to exterior; relationship to the ground plane, etc.)

3. Detailed wall section(s) of your choice showing: the layers of wall, floor and roof construction; structural framing; foundation conditions; roof edge conditions; etc.)

4. Complete digital framing model, drawing from what was learned and modeled during the Phase 1.2 case studies.

• This model will inform the detailed section in point 3, above.

• At least one of the drawings / images made from the framing model must be a 3D view in the same style as the drawings completed for the case-studies in Phase 1.2.

5. Environmental performance analyses studying daylight penetration and energy use intensity for the proposed housing designs. CoveTool will be the platform for these analyses. In conjunction you will need to make and incorporate informed selections on:

• other site features.Building envelope materials and their associated R-values

• Hot water heating system

• Air conditioning system

• Solar collection strategies (if any) for renewable energy and/or hot water

Think critically and reflect on topics such as: window sizing and location; shading strategies; insulating strategies; the energy impact of advanced-framing / alternatives; energy impacts of different AC and hot-water systems; renewable energy; payback periods / return-on-investment; etc. How can you distill these analyses and recommendations down into easy-to-understand graphics / diagrams?

6. Scaled site model depicting locations and massings of proposed housing, along with associated roads, alleyways, parking, and other site features.

7. 3D aerial perspective drawing showing your proposed housing and site designs within their respective contexts.

8. Interior and exterior renderings of your choice.

9. Any necessary updates / revisions to the other relevant drawings and diagrams that preceded in the earlier phases.

10. 1-page (approx. 400-500 word) narrative summarizing your project, its big ideas and related design strategies. This will serve as the anchor for scripting your final presentation, and will roll-over into the narrative submitted with your final competition boards.

+The At Home_In the Upstate studio (along with the coordinated At Home_On the Peninsula studio) marked a continuation of an ongoing partnership between Clemson’s Wood Utilization + Design Institute (WU+D) and the Weyerhaeuser company. This particular collaboration followed on the heels of a successful, interdisciplinary “Sustainable Building Seminar” course in the Fall semester of 2023. This time around, Weyerhaeuser and School of Architecture faculty Dustin Albright and Bradford Watson envisioned topical Design Studio courses addressing the topic of attainable housing and tying together Weyerhaeuser’s 3x30 Sustainability Ambitions: CLIMATE, HOUSING and COMMUNITIES.

The Clemson School of Architecture, WU+D Institute, and Professors Albright and Watson and their students thank Weyerhaeuser for its commitment to these principles and for its support for the “At Home” studios.

PROJECT COLLABORATORS

Senior Manager, Carbon Platform Marketing Weyerhaeuser

Associate Professor

University of Nebraska, Lincoln

JASON GRIFFITHS
SARAH FULCHER
MITCH MILLER Pastor | Griggs Church

PROJECT COLLABORATORS

RACHEL + LUCAS BOYD
Boyd Architects LLC Charleston, SC
ASHLEY JAMES Managing Partner | Nash Homes Greenville, SC
JONATHAN TATE Office of Jonathan Tate Architects New Orleans, LA

SNAPSHOTS FROM THE SEMESTER

STORIES FROM THE POE MILL NEIGHBORHOOD

First meeting with Pastor Mitch Miller at Griggs Church | 09.01.24

POE MILL NEIGHBORHOOD DIY Skate park on the former mill site

POE MILL NEIGHBORHOOD

Scenes from the neighborhood

A. Historic Poe Mill Structure (formerly the mill store and offices)

B. Neighborhood Houses (single story saltbox)

C. Neighborhood House

D. Neighborhood Houses (two-story saltbox)

E. Vacant Commercial Building

F. Siddhi Food Mart (corner of Hammett St. and Goldsmith St.)

G. Ministry Park (River of Life Church, 3rd Ave.)

H. Mountain Goat Coffee (Shaw St.)

I. Soteria Community Development (Shaw St. | Mural by Adam Schrimmer)

With C.A.C.C. Studio | 09.04.2024

CHARLESTON VISIT

With C.A.C.C. Studio | 09.04.2024

CHARLESTON VISIT

With C.A.C.C. Studio | 09.04.2024

CHARLESTON VISIT

CANFOR MILL TOUR

09.03.2024

This visit and tour provided critical insight into the processing of saw timber and the production of softwood lumber. This experience laid the foundation for the studio’s later explorations of light frame construction and underscored the importance of thinking holistically about material life cycles.

MIDDLE HOUSING

AN INTRODUCTION TO “MISSING MIDDLE” TYPOLOGIES

Through course readings, the studio worked to understand how communities like Poe Mill come to experience residential displacement at the hands of unchecked gentrification, and we learned about various interrelated anti-displacement strategies, ranging from policy measures to housing planning and design. Specifically, we studied zoning approaches and related reforms as well as “missing middle” and infill housing typologies. Missing middle housing has been defined as “a range of house-scale buildings with multiple units—compatible in scale and form with detached single-family homes—located in a walkable neighborhood.”

Source: Daniel Parolek https://missingmiddlehousing.com/

ADU

DEFINITIONS

ADU - Accessory Dwelling Unit

Accessory Dwelling Unit - A secondary housing unit on a single residential lot

Definition of an ADU according to the State of South Carolina - Units that may be attached to or detached from the primary residence, encapsulating structure types like converted garages, basement apartments, or separate guest houses

• Detached ADU - a stand-alone unit that is separate from the main house, often a small structure in the backyard

• Attached ADU - an addition connected to the main house that often has a separate entrance than the main home

• Interior ADU - a separate unit located inside the main house, often an attic or basement suite

SOUTH CAROLINA POLICIES

• South Carolina’s policies ensure ADUs serve the primary dwelling in both function and design. Under state laws, these units must comply with specific ownership, location, and construction guidelines. State legislation sets standards that maintain neighborhood consistency and property values. Their zoning adheres to local ordinances, regardless of the zoning district. Provisions in the legislation carefully regulate the size, placement, and architectural style of an ADU. These regulations offer opportunities for homeowners while fostering community harmony.

GREENVILLE COUNTY POLICIES

• Zoning laws in Greenville County, SC state that ADUs must be connected to the home. This can be accomplished by a breezeway. A good way to accomplish this is through basements or garages. They are currently not allowed in areas zoned as single-family residential. They are however allowed in multifamily residentially zoned areas.

https://www.archdaily.com/1002518/explore-15-houses-that-get-the-most-out-of-an-accessory-dwelling-unit-adu/648b342c5921185b5c595be8-explore-15-houses-that-get-the-most-out-of-an-accessory-dwelling-unit-adu-photo

CASE STUDY #1

GREEN HOUSE

Location: Minneapolis, Minnesota

Project Year: 2020

660 sqft

Christopher Strom Architects

This unit is a sustainable compact home for the homeowner’s aging parent. It has a bedroom, full kitchen, and an elevator! Strategically placed windows and skylights were used to make the space feel more expansive. The unit features many sustainable features, including the solar panels on the roof. This is an example of a detached ADU with it being an above garage apartment.

• https://christopherstrom.com/greenhouse/

CASE STUDY #2

ADU ALPHA

Location: Los Angeles, California

Floor Plan for Build

1052 - 1,175 sqft

Modative Build

This company provides two different ADU options that will fit in most backyards. They are 2 bedrooms, 2 stories, and can have 1 - 2.5 bathrooms. Washer and dryer are included, solar panels, and a full-size kitchen. In California, where they are pushing for ADUs, these floor plan options for people to easily add one to their property are quite common.

• https://www.modative.com/los-angeles-accessory-dwelling-unit-alpha-model-adu-granny-flat

CASE STUDY #3

NATALIE + JUSTIN STROM

Location: Portland Oregon

Project Year: 2016

720 sqft

Oreste Construction

Natalie and Justin decided to turn their old garage into a long-term rental. They were inspired by Portland’s push for ADUs in the city and the possibility of additional income. Their ADU matches their existing home and neighborhood and feels more like a single family home. It features large windows and high ceilings to make the space feel larger. It even has two full bathrooms, a loft space, and a washer and dryer!

• https://accessorydwellings.org/2016/12/09/natalie-justin-stroms-adu-two-bathrooms-an-attic/

CASE STUDY #4

BIRDHOUSE ADU

Location: Austin, Texas

Project Year: 2022

1200 sqft

North Arrow Studio

This project which resembles a birdhouse uses the trees in the area to create its form. This ADU was built around 3 protected pecan trees and modified based on the strong Texas sun. It contains a bedroom, bathroom, kitchen, dining and living room all on the first floor and located on the second floor is the main suite. A double gable roof was used to give the feel of more room within this tight space. Circular windows were used to play into this idea that they had of the bird house.

• https://www.archdaily.com/1000098/birdhouse-north-arrow-studio

CO-HOUSING

DEFINITIONS

CO-HOUSING: A semi-communal housing option that combines private homes with a shared community space. The shared space may include a common house with a large kitchen and dining area, laundry, and recreational spaces. They may also have shared outdoor spaces like walkways, playgrounds, gardens, etc.

WHY? Response to the Times

- Younger generations face increased hurdles of home ownership due to the rising cost of housing, making it more challenging for young adults to purchase a house.

- Americans are lonely, with the highest rates of loneliness reported among young adults in lower-income households due to the lack of a “third place”.

- Co-Housing combats these two issues by creating affordable living options centered around a sense of community and social interaction.

SOME TYPES OF CO-HOUSING

Residences: Individual units including a bedroom and bathroom. Kitchens, living rooms, dining rooms, recreational spaces, outdoor spaces, etc. are shared. Second most common type of Co-Housing.

Lofts: Dwellings without separations between the different rooms of the house. Little to no walls or divisions

Apartment-blocks: Single level floors where all rooms are located and private. Most common type of Co-Housing.

Duplex: Dwelling configured in two floors connected by an interior staircase that joins both spaces. Can be configured horizontally as well.

CASE STUDY #1

BAY STATE HOUSING

Location: Malden, Massachusetts

French2d

Typical co-housing projects in the United States are composed of standard houses around a common facility. This project tries to explore ways of creating more dense types of co-housing in urban areas. It explores dismantling single-family zoning codes to give people with different budgets and living arrangements the chance to have spaces that better fit their needs. Key Takeaway: Even in this small subsection of housing (missing middle housing) there is a spectrum of needs, budgets, and family situations which can influence the type of housing needed.

• https://www.french2d.com/cohousing

CASE STUDY #2

BLUE CO-HOUSING COMPLEX

Location: Denver, Colorado

Productora

This project is 8 unites with shared amenities on a lot that would typically accommodate two single-family homes. It is located in a low-density neighborhood surrounding downtown Denver. Productora’s goal for the project was to better reflect the reality of residents’ living arrangements. These homes draw attention to the fact that larger singlefamily residences’ in well-located neighborhoods are often shared by roommates and friends.

• https://www.archdaily.com/967518/co-housing-denver-productora

COTTAGE CLUSTER

DEFINITIONS

Cluster Housing: a group of individual dwelling units or “cottages” on a plot of land with a shared courtyard(s) space. Cottage clusters may include a variety of housing typologies on the given plot of land, such as a single family home or duplex. There are typically 5 to 10 units within a “cluster”, each between 500 and 800 sf. occupying 100’-150’ deep lots.

ECONOMY

In the cottage cluster housing typology the land may be owned cooperatively by the residents or managed by a community land trust, allowing for diverse forms of ownership and affordability. Cottage clusters are not the only way to create more affordable and sustainable housing, but they foster a strong sense of community and shared responsibility. The value of shared land and economy extends beyond financial savings: it promotes a holistic approach to living that balances individual needs with collective well-being. A community land trust (CLT) is a private, nonprofit organization that owns land on behalf of a community, promoting housing affordability and sustainable development and mitigating historical inequities in homeownership and wealth building. CLTs are a response to the increasing lack of affordable housing in major metropolitan areas, particularly for under-served minority communities.

VALUE OF SHARED LAND

Efficient Land Use: Shared land means less space is dedicated to individual yards and more to communal areas. This allows for higher density without sacrificing green space, making it a viable option in urban and suburban settings where land is expensive and limited.

Affordability: By sharing land and resources, the cost per household can be reduced. Cottage clusters are often more affordable than traditional single-family homes, especially in high-demand areas. Cooperative ownership models can also keep housing prices stable, preventing the kind of speculation that drives up costs in traditional markets.

Community and Social Capital: Cottage clusters are designed to promote interaction, which can build strong social networks and increase trust among neighbors. Shared spaces encourage collaboration, from shared gardens to collective child-rearing or elder care.

Sustainability and Resource Efficiency: Sharing land and resources can lead to more sustainable living. For example, community gardens reduce the need for large lawns, rainwater collection systems can serve multiple homes, and communal energy systems like solar panels can be more efficiently used.

Flexibility and Adaptability: Shared spaces and resources allow for more flexibility in how the land is used over time. As needs change, shared spaces can be adapted for different purposes, whether it’s creating a new garden, building a shared workshop, or setting up a community space.

• https://www.linkedin.com/posts/margaret-wallace-brown-aicp-cnu-a-3b0b3931_austin-lets-talk-cottage-courts-activity-7095074291469217792-yXFx?trk=public_profile_like_view

• https://opticosdesign.com/work/wine-country-pocket-neighborhood-riverhouse/

CASE STUDY #1

WINE COUNTRY POCKET NEIGHBORHOOD

Location: Healdsburg, California

Opticos Design

Project centered around creating a community unlike anything in the current market. 1.37 acre lot provides a pocket neighborhood organized around a central shared community garden that faces the Russian river. The community provides eight detached homes ranging from 1250 sf two bedroom, two bath cottages; and 1750 sf two bed, two bath plus half bath. Some units providing a 500 sf ADU. The project combines modern living and construction with an old fashioned sense of community.

This natural centerpiece serves as both a social hub and a calming green space, encouraging interaction, shared experiences, and a sustainable lifestyle. Each home is designed to offer privacy and comfort, while the garden creates a sense of unity and belonging that evokes the charm of small, traditional neighborhoods.

• https://opticosdesign.com/work/wine-country-pocket-neighborhood-riverhouse/

CASE STUDY #2

AGING IN PLACE COTTAGES

Location: Beaverton, Oregon

Propel Studio

Single level homes focused on designing a community of sustainable, affordable homes for retired senior that are not yet in need in assisted living. The homes range from 700sf800sf with either 1-2 bedrooms. Driveway and parking are set to the exterior of the site. This allows for interior pathways that connect the residents to one-another. Within the pathways there are shared amenities for both exterior and interior recreational use.

A key feature of the project is the thoughtful placement of driveways and parking areas on the exterior of the site. This layout creates a safer and more pedestrian-friendly environment within the community, with interior pathways that connect residents to one another. These walkways encourage spontaneous social interactions and help foster a sense of community, allowing seniors to feel more connected and engaged with their neighbors.

• https://www.propelstudio.com/project/aging-in-place-cottage-cluster

LIVE-WORK DEFINITIONS

LIVE-WORK HOUSING: As the name suggests, is a space to live and work. Live-work lofts are generally much more spacious. Typically, this unit style comprises both a workspace and residential area that can be configured to provide an optimal work-life balance for its inhabitants. For entrepreneurs, start-ups, or savvy business minds, live-work units off er a unique opportunity to optimize space, productivity, and, most importantly, costs.

REQUIREMENTS

• live/work unit shall comply with sections 508.5-508.5.11

• exception dwelling or sleeping units that include an office that is less than 10 percent of the area of the dwelling unit are permitted to be classified as dwelling units with accessory occupancies in accordance with 508.2

Limitations

• the live/work unit is permitted to be not greater than 3,000 sf in area

• the nonresidential area is permitted to be not more than 50 percent of the area of each live/work unit

• R-2 occupancy

• more focused and deliberate code restrictions can be found in th 2021 SC Building Code

CASE STUDY #1

Location: Ottawa, Ontario

Karioukarchitects

Live-with

work and residence all occur in one common atmosphere.

Loft style - unit contained in a singular “atmosphere”

Contains:

• bathroom

• kitchen

• bedroom

• work area

• https://kariouk.com/project/ottawa-loft/

CASE STUDY #2

APARTMENTO 43

Location: Canary Islands, Spain cli·ma arquitectura

Live-near

• unit provides some separation between living and working spaces, while

• live-work lofts are generally much more spacious.

• Typically, this unit style comprises both a workspace and residential area that can be configured to provide an optimal work-life balance for its inhabitants.

• For entrepreneurs, start-ups, or savvy business minds, live-work units off era unique opportunity to optimize space, productivity, and, most importantly, costs.

Live-nearby

• live-nearby - work occurs outside the residence but on the same property

• one’s commute requires a walk outside, or down a corridor or a common set of stairs, or even across the street

• clear and distinct line of seperation

https://www.archdaily.cl/cl/988183/apartamento-43-cli-star-ma-arquitectura/630ecdaeae0c1d3c1d7282da-apartamento-43-cli-star-ma-arquitecturaplanta?next_project=no

“live’ on mezannine
“work”

TOWNHOUSES

one of the most common “missing housing typologies given their versatility. the simplest form of many other conmissing middle housing like cottage “-plex” types.

synergize somewhat well with ADU’s when those ADU’s are planned like a style. This is due to the thin lot sizes put on parking, oftentimes meanlot may only have space for two or just one parking spot. Townhouses most attractive to those who want the single-family home without the associatcar-dependency.

TOWNHOUSES

DEFINITIONS

TOWNHOME: A small to medium sized building with one dwelling that is attached to other townhouses in an array of typically four

DATA

Townhouses are one of the most common “missing middle” housing typologies given their versatility. They often are the simplest form of many other conglomerates of missing middle housing like cottage courts and the “-plex” types. Townhouses synergize somewhat well with ADU’s particularly when those ADU’s are planned like a carriage house style. This is due to the thin lot sizes and a premium put on parking, oftentimes meaning that a single lot may only have space for two or sometimes even just one parking spot. Townhouses tend to be most attractive to those who want the space of a single-family home without the associated yard & car-dependency.

Summary of Ideal Missing Middle Housing Characteristics

1 Variation: Pocket Neighborhood. The lot is the size of most of a block or up to an entire block, and the shared court is much larger, or there are several shared courts. The individual cottages are expanded to include a mix of duplex, fourplex, multiplex small, and courtyard buildings.

- Source: Opticos Design, Inc 2019 - MMH Scan: Greenville

Missing Middle Housing Palette

The palette of MMH types above identifies the ideal lot dimensions for each type. The minimum is what each type needs to function and the maximum is the size at which physical compatibility works with existing single-family neighborhood contexts. These dimensions need to be adjusted to each community and its

Source: Opticos Design, Inc 2019 - MMH Scan: Greenville

many units are allowed without record for what can actually fit well. In addition, the results vary depending on front or rear vehicular access to parking.

Although lot area can be used as a regulating factor, it should not be the primary factor. Instead, lot width and the resulting building width should be the primary regulating factors.

Chapter

• https://www.archdaily.com/930788/3-in-1-housing-street-monkey-architects?ad_medium=office_landing&ad_name=article

CASE STUDY #1

OAK + ALDER

Location: Seattle, Washington

HYBRID

This townhouse designed by the Seattle based firm HYBRID was specifically designed with an owner who wanted to move and create a higher property value. To do this, the architects helped them develop a plan for an ADU attachment and renovation of their existing home. What this project does so well is turn the street corner without overbearing onto the sidewalk & still managing to accomidate both cars and people without paving the entire lot. The organization of the volumes still sets back from the sidewalk and the hyphen between the buildings still provides privacy to both units.

One of the unique aspects of this project is the space between the two units. Instead of entirely sharing a wall like many townhomes, the archtiects instead designed a hyphen between them that was accessable to both units, creating an outdoor space that neighbors can share together up on the rooftop. It’s a small detail, but the varieties of space from the rooftop, to the small backyard, to the street make this project a great example of a corner townhouse.

• https://www.archdaily.com/986561/oak-and-alder-house-hybrid

CASE STUDY #2

FLARZ HOUSES

Location: Elsau

Staufer + Hasler Architects

These townhomes designed by Staufer & Hasler Architects does a great job of bringing a rural building form into a more urban typology like a townhome. By mimicing the traditional Flarz barn style and stylizing elements like the chimneys into light wells, the architects brought a local vernacular into a dense housing typology. By densifying in this way, the architects were also able to preserve a larger portion of the exterior greenspace for the village community.

• https://www.subtilitas.site/post/190704952044/staufer-hasler-flarzett-cooperative-housing

SIX DETAILED CASE STUDIES

CLOSE TECTONIC ANALYSES

Building upon our initial discussions of housing density, progressive zoning strategies, and “missing middle” typologies, we will now turn our attention to six noteworthy examples of infill housing, in the form of deep, directed case-studies. Taken together, these six houses present a range of creative solutions operating within very particular contextual constraints.

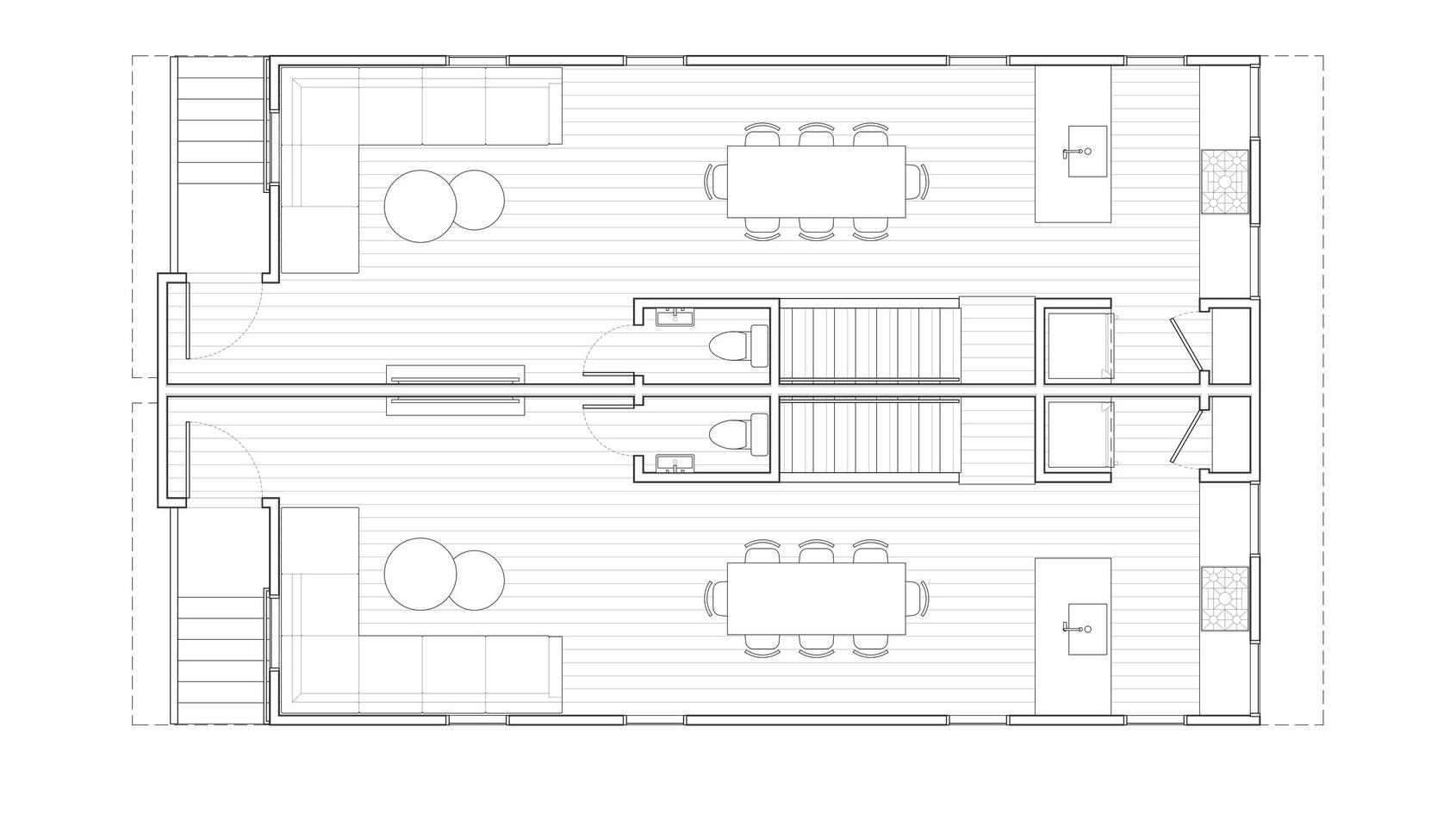
BAYWOOD HOUSES

PROJECT DESCRIPTION

ARCHITECT: BOYD ARCHITECTS

LOCATION: Greenville, SC

YEAR COMPLETED: 2023

AREA: 7,200 sq ft (Total)

BUILDER: Nash Homes

INTERIOR DESIGN: Ashley James

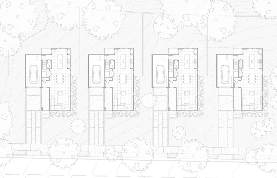
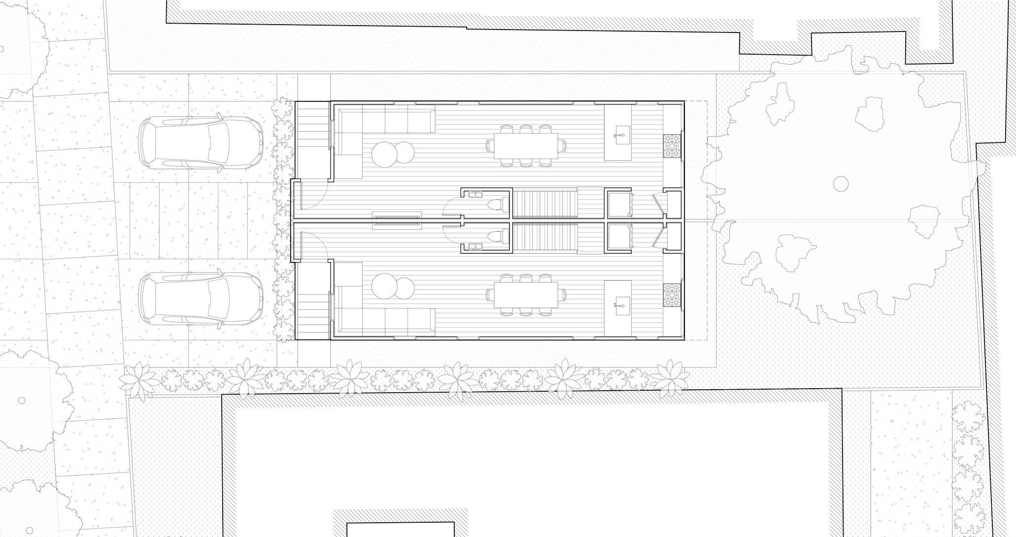
Baywood Houses is a modest infill development of four single-family units in the Arcadia Hills neighborhood of Greenville, SC. Despite the close proximity to downtown Greenville, the 0.38-acre site has been underutilized due to the challenging placement of the lot. The lot is irregularly shaped and squeezed between an institutional building and an interstate highway. The main goal of the project was to design single-family detached homes that reflect a denser urban fabric. In order to accomplish this objective, the initial phases involved close collaboration between the city planners to equally divide the lot into four properties with street frontage, setback lines, and other zoning parameters.

The residential development features four 1,800 SF two-story townhomes with 3 bedrooms and 2.5 bathrooms. A “pinch and pull” design technique was used on the first level of each home in order to reduce the distance between each house, fill the individual parcels, and create a more efficient street wall. The program of each design allows for a recessed porch, rear porch, and single car garage. The materials used are among the most common and cost effective in the area and have been detailed to express familiarity while revealing the contemporary ideas of the design.

Because of the strategic design of the homes, the visual affect of a more urban building is accomplished and establishes incremental urbanism that reflects the context of the site, is economically viable, and repurposes an overlooked piece of the city.

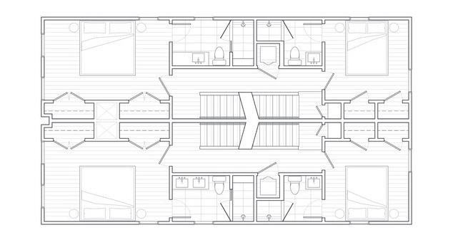
TWO-STORY TOWNHOME

Each townhome features 3 bedrooms and 2.5 bathrooms. The first level reveals an open floor plan fluidly connecting the kitchen and living spaces. The second level plan includes the bedrooms and 2 full bathrooms.

While each level reveals a simplistic and open floor plan, it is evident that spaces were strategically positioned to provide an efficient design. On the second level, both full bathrooms share a wall, making plumbing more efficient. This idea could even be taken a step further in the future to align with the kitchen on the first level. Another efficiency within the plan is the strategic placement of the water heater tucked underneath the stairs, which fills the space that would typically be left un used. Because of the consistency of the design across all four homes on the parcel, the construction process was simplified and efficient.

LEXI DISAVERIO + MACKENZIE KNAUTZ + ASHLEY PARSONS

• https://www.boyd-architects.com/baywood-houses

DINING ROOM GARAGE
KITCHEN
LIVING
BEDROOMS
PRIMARY BEDROOM
LAUNDRY
MECH

TECTONIC STUDIES

ADVANCED FRAMING

POTENTIAL TECHNIQUE

A potential advanced framing technique that we propose for Baywood Houses is a 2x6 nominal 10’ stud frame at 24” O/C, as opposed to the current 2x4 nominal 10’ studs at 16” O/C. In general, this technique significantly reduces construction costs and time as it uses approximately 30 percent less pieces and 5 to 10 percent less lumber. As a result, the framing factor is reduced to 15 percent from 25 percent. Because the framing elements are further apart, the installation of services is easier as fewer holes are drilled for electrical lines and there are fewer cavities for insullation.

To analyze the benefits of using an adanced framing technique, we rebuilt the southwest wall of the homes using advanced framing principles. This study revealed that advanced framing reduced the volume of the lumber used within the wall from 3,463.78 cubic inches to 3,451.89 cubic inches.

PANELIZATION

POTENTIAL TECHNIQUE

A potential panelization technique that we propose for Baywood Houses in order to reduce construction time and costs is to construct 4’x10’ panels off-site with studs placed on the end to cap each panel. Each panel is framed with 2x4 studs at 16” O/C and the windows have been shifted in order to fit in a single panel. A series of 2x4 studs are placed horizontally on the final wall to lock the panels in place.

Typical sheathing: 4’x8’ panels
New sheathing and window placement shifts to fit within off-site constructed panels
Final panelization
2x4 horizontal stud placed on top of 10’ panels to lock them in place

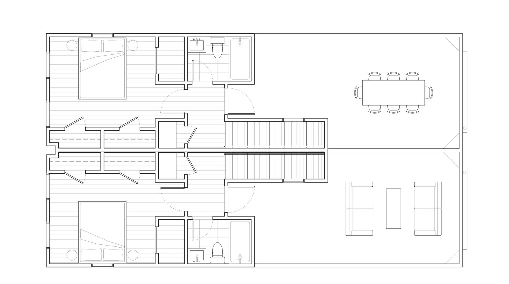
UNITS B/C | 786 RUTLEDGE AVE

PROJECT DESCRIPTION

ARCHITECT: Boyd Architects

LOCATION: Charleston, SC

YEAR COMPLETED: 2023

AREA: 1,400 sq ft (Per Building)

STRUCTURAL: Powell Engineering

CIVIL: Live Oak Consultants

Welcome to 786 Rutledge C, a stunning new modern construction less than a year old, tucked away on a private gated street off Rutledge Avenue. This sleek home features 3 bedrooms, 2.5 bathrooms, plenty of off-street parking, and a brand new turf yard for low-maintenance outdoor living. Inside, you’ll find a blend of concrete and luxury vinyl flooring, complemented by waterfall counter tops. The huge windows throughout let in an abundance of natural light. Spanning three stories, the primary suite occupies the entire third floor, offering a private retreat. The location is perfect for walks or golf cart rides around town, making it easy to enjoy nearby parks, restaurants, and coffee shops.

DANIEL MONTALVO + JOHN TREJO-CHAVEZ

• https://www.boyd-architects.com/rutledge-row

DINING ROOM

Stairs

Circulation for the rest of the three stories

Circulation

Linear circulation on all floors that really captures the zoning envelope of the site

KITCHEN

LIVING ROOM

RutledgeAvenue

TECTONIC STUDIES

THIRD FLOOR

The third floor consists of one bedroom and one bath at around 234 sf.

SECOND FLOOR

The second floor consists of two bedrooms and one bathroom at around 502 sf.

GROUND FLOOR

The ground floor consists of the dining, kitchen and living space at around 424 sf.

KITCHEN
BEDROOM
DINING
LIVING
BEDROOM
BEDROOM

AREAS OF INTEREST

Advance Framing Techniques

This is the area that we focused our research on. This area is a common punched opening and our approach to this was to rebuild this area with methods of advanced framing. The methods we focused on include a more thorough method to punched openings that remove excess cripples studs, a more conservative corner stud, a more efficient way for backing on interior intersections, and top plate connections.

CONVENTIONAL FRAMING

2X4 framing

Conventional framing is the traditional approach to residential and light commercial construction. Although this method is widely use for its effectiveness in speed, flexibility and often times a level of afford-ability, it tends to lack in energy efficiency and overall produces a lot more waste then intended.

PREFABRICATED WALL PANELS

2x6 panel framing

Adcanced framing is a proven method to cost-effectively meet energy code requirements. Pair that with prefabricated panels and you are talking about less labor, fewer errors, quicker and easier builds, increased thermal efficiency and less waste. By using 2x6’s to maximize space, you get more cavity insulation and the reduction of potential insulation voids.

panel

Openings

Simplification and standardization are key to reducing costs throughout any project. This is no different here in the Bastion project. While they key design variation comes from the truss design, there still is only 2 basic truss types per building, a truss over the living and sleeping areas and a truss to support and disguise the MEP for the project.

The extra ceiling height in the standard Type I truss adds a level of openness and scale to spaces that traditionally are as small as possible in budget projects without incurring much cost. Conversely, a relatively small section of Type II trusses house the MEP for the project, and are conveniently located above the plumbing cores of the project.

Top plate connections

2x6 energy corner

Material efficient backing for interior intersection

Corners and Intersections

Advanced framing techniques surged its way into the construction industry due to the need for a more energy efficient construction. It is one of the most cost effective solutions for builders trying to balance stringent energy codes with structural building codes. Advance framing optimizes the usage of framing materials, reduces waste, increases the effectiveness of insulation.

Top plate connections
Punched opening
Punched opening
Section cut at punched opening Metal fastener 2x6 rafter
Rigid insulation
Top Plate

WESTSIDE DUPLEX

PROJECT DESCRIPTION

ARCHITECT: Boyd Architects

LOCATION: Charleston, SC

YEAR COMPLETED: 2022

AREA: 3,000 sq ft (Total Building)

Westside Duplex is a strategic infill development in downtown Charleston’s historic Westside neighborhood. Built within what was formerly the backyard of the adjacent corner lot, two townhouse-style units were meticulously designed to maximize the development potential of the extremely constrained site. The resulting form represents what is effectively the as-of-right conditions articulated by zoning, parking, flood zone, tree protection regulations, and functional requirements. Each of the two units are 1,500SF with 3 bedrooms, 3.5 bathrooms, and a roof terrace. The side-loaded entries are bound by a powdercoated aluminum screen to mitigate the look of a house raised due to flood code. The façades and materiality represent contemporary interpretations of historic Charleston architectural motifs, such as mitered lap siding and ordered window grids.

PROJECT CONTEXT

Downtown Charleston has been experiencing an enormous amount of pressure generated on the existing low-rise housing stock, flooding, rapid growth, and a myriad of other factors. The community surrounding Westside Duplex is located between the arterial Septima Clark Parkway and Hampton Park, the largest green space on the peninsula. A significant portion of the neighborhood sits on sandy infill land and virtually all properties are located within a flood zone.

JULIA CAMPBELL + KYRA WHITEMAN

• https://www.boyd-architects.com/westside-duplex

The design transition from conventional framing to advanced wood framing has led to a significant reduction in lumber use. Initially, the conventional framing approach required 105. With the implementation of advanced wood framing techniques, this requirement has been reduced to 88. This represents a reduction of approximately 16%, resulting in more efficient material use and potential cost savings

Half-Bath
Plumbing on the first floor (bathroom and kitchen) does not align with other floors.
Wet Wall
All of the plumbing from the two bathrooms as well as the laundry is unified on a singe wet wall in this system.
Backyard
Roof Terrace
Full Bath
The bathrooms on the second and third floors align one on top of another.
Third Floor
Roof Drainage Scuppers along the back end of roof allow water to flow into gutters.
Second Floor

Level 3

Level 3 achieves an 8’ floor height by using pre-cut 7’ 8-5/8” studs

Level 2

Level 1 & 2 achieve 9’ floor height by using pre-cut 8’-5/8”studs

Level 1

Level 1 is 5’from grade due to flood zone

TECTONIC STUDIES

1/4”SlopedRoof
1/4”SlopeRoofTerrace
Timber Construction Axon
1’ Cantilever

Level 2 & 3 floors are 16”open web trusses.

Level 1 floor is either 16”2x’s or LVLs

Foundation is a continuous concrete footing with CMU piles spaced evenly along

Sheathing Alignment Diagram

A. Roof Drainage Diagram
Sill Plate
Rim Joist
Scupper
2’6”Cantilever on south side
4’x 8’LP® Flameblock® sheathing aligns perfectly to top of rim joist

INEFFICIENCIES MATERIAL USAGE

4’ Panel Construction

This panelization size was studied to better understand how a more standardized panel size convention would affect the construction of the wall. Due to this panelization method the windows were shifted. The distance between the windows, in each of their respective pairs, were kept the same. Due to the windows being on the open concept first level there was no interference with interior walls. Possibly in the second our third floor this could pose an issue.

~11% More Lumber Used

~9’ Panel Construction

With this panelization method an unconventional panel sizing was created to better fit the existing wall construction. The desired length was close to around 9 feet per panel, however, due to existing stud placement some panels had to be larger or smaller. Overall, no windows had to shift but the larger sizing of the panels might make it hard for construction due not only the physical strain but the tight constraint of the site.

~9% More Lumber Used

20% - 50% Faster project delivery compared to traditional methods

Source: https://tinyurl.com/mckinseyreport2019

Each is a custom panel length

Horizontal Sheathing
On panels without windows sheathing is used more optimally. On panels with windows horizontal sheathing results in same issue as vertical.
Vertical Sheathing
Each panel has around a half an inch excess on the ends of the panel due to the 4’width of the panel and the smaller sheathing size. Maybe a panel based on the exact vertical sheathing dimensions would work better.dimensions

EFFICIENCIES MATERIAL USAGE

Advanced Framing

This advanced framing technique was studied to better understand how one could more efficiently build a timber structure. Advanced framing techniques allow one to use less materials while still achieving the same outcome. Advanced framing techniques do not cut down on construction time, however, which is a big positive aspect of panelization. For this particular building, as shown previously, panelization had some complications, making advanced framing more likely a better strategy.

~30% Less Lumber Used

The number of vertical studs used reduced from twenty-six to fifteen. However, six blockings were used as well. These six blockings can be cut from two vertical studs having some left over (possibly for another wall). In total the number of studs used was seventeen.

Metal clips could also be used with this advanced framing technique to reduce the amount of studs used even further. However, this was not explored in this study.

Metal clips
Metal clips could be used at California corners to reduce stud usage by two.
Blocking for joining partition walls
Advanced Framing Panelization Diagrams Level 1 (East Wall)
Sheathing skirt
7’ Panel on end 8’ Panels
Wall

BASTION | BUILDING 31

PROJECT DESCRIPTION

ARCHITECT: OJT (Office Jonathan Tate)

LOCATION: New Orleans, LA

YEAR COMPLETED: 2018

AREA: 1,752 sq ft (Per Building)

STRUCTURAL: Schrenk & Peterson Consulting + Rober B Anerson LLC

CIVIL: Endom & Flanagan

The Bastion Community is a 58-unit fully affordable housing development centered on the needs of post-9/11 combat veterans, many with lifelong medical challenges, and their families and caregivers. Bastion leverages this concentration of services members with shared life experiences towards a community health model for long term care, support, and integration into the world. It is also a unique type of housing, the first such development of its kind, that addresses the gap between dedicated care facilities and market housing.

The development is located in the Gentilly neighborhood of New Orleans, Louisiana. Developed initially by post-War veterans during the suburban boom and historically a thriving area of the city, it suffered an extreme loss due to the flooding caused by Katrina. The site, a rare 5.5-acre contiguous parcel, was until the flooding was home to a large multi-family complex. Being within a few hundred feet of the London Canal breach — the source of the neighborhood flooding —what remained of the existing housing had to be removed in the cleanup efforts.

After more than ten years of vacancy, the Bastion organization chose the site to create their housing community, the first of what is meant to be a scalable model. In creating the housing here, the objectives were to develop a massing and spatial organization that both supported the mission and integrated into the surrounding neighborhood. The result was a building design and site configuration that was economical, sustainable and socially resilient. While the form of the project may appear to be slightly complex, the project’s construction logic is derived from typical mass-delivery model for single- and double-family homes. Pile-supported, raised dwellings allowed the units to hover above the ground, providing open space for groundwater infiltration while ensuring the historic oak trees’ root systems remained undisturbed.

At the scale of the house, units are paired twice: every residential building consists of two attached units that face another double, effectively creating an open court shared by four neighbors, which was deemed the optimal social network to ensure meaningful relationships between tenants. Each actively engaged cluster of four units, carefully located between the existing oak trees, is connected to a larger, central courtyard, connecting residents with an intentional community while still maintaining an open relationship with the surrounding neighborhood.

NIC BECK + JOEL ROGERS

• https://officejt.com/work/bastion-veterans-housing-development-new-orleans-louisiana-us/

TRUSS VARIATIONS

SECTIONS FLOOR PLANS

Simplification and standardization are key to reducing costs throughout any project. This is no different here in the Bastion project. While they key design variation comes from the truss design, there still is only 2 basic truss types per building, a truss over the living and sleeping areas and a truss to support and disguise the MEP for the project. The extra ceiling height in the standard Type I truss adds a level of openess and scale to spaces that traditionally are as small as possible in budget projects without incurring much cost. Conversely, a relatively small section of Type II trusses house the MEP for the project, and are conviniently located above the plumbing cores of the project.

The sectional quality of these buildings are really where the design starts to be more playful. Each building has its own unique gable form that is simply the same volume on the interior space. The architects at OJT specifically called out this as an easy way to play with the design without adding any cost. The offset gables all have a different slope and angle that is pre-fabricated off-site with a truss manufacturer. Because the inhabited conditions and truss connections are the same, the installers don’t have to change how the build from one building to another, simplifying the construction process significantly.

3 BEDROOM OPTION

The array of the houses at the micro-level create these spaces between the duplexes that have both 1, 2, and 3 bedroom options, with the selections being arrayed differently in each building. These exceedingly simple unit designs create an opportunity for cost savings in that they are easily replicated and built many times over.

Additionally, care was taken to account for the existing oak trees on site, and gave space to preserve the existing shade already on the site. This is all situated around a larged courtyard area that is shared between residents.

LIVING AREA

LAUNDRY

LIVING AREA

BATHROOM

TECTONIC STUDIES

BATHROOM

LAUNDRY
BEDROOMS

AREA OF INTEREST

POTENTIAL MODULAR SYSTEM

One potential change that could have been made to reduce waste on the project would have been to increase the height of the walls so that OSB could be laid as full sheets until the bottom skirt. This could easily have been achieved by using 2” x 6” x 10’ studs and varying the skirt height. This would allow the contractor to not have to make any cuts to most of the studs in the walls or the OSB before placing together, greatly increasing the speed in which a wall could be built.

Bastion Bldg #31

248 3,720 $4,028.76

Cuts Made to 2x6x10’ Studs

Board Feet Wasted of Lumber Disposed Of

ADVANCED FRAMING

POTENTIAL TECHNIQUE

The diagram illustrates a modified wall section showing how the traditionally framed Bastion Building #31 can be re-imagined to utilize advanced framing. Advanced framing allows for an increase in building performance through the optimization of materials such as:

24” O.C. STUD FRAMING:

By using 2x6 framing, builders are able to space studs 24” o.c., which can reduce costs of lumber 5% - 10%.

LADDER BLOCKING AT WALL INTERSECTIONS:

Ladder blocking is now used where walls intersect, using leftover blocking from window framing and further reducing material waste.

StACKED LOAD BEARING MEMBERS:

Allows for the reducing of top plates from 2 to 1 and the reduction of non-load-bearing studs. Structural members need to be aligned , requiring advanced planning before construction.

MINIMAL HEADERS:

Headers are replaced with minimal framing on non-structural walls and optimized on structural walls, using rigid insulation, plywood, and stud members when needed.

REDUCED CRIPPLE STUDS:

The use of cripple studs is reduced under window openings to the minimum neccessary to support the opening.

ONE TOP PLATE:

Because structural members now align, only one top plate is needed to support the wall.

Material Analysis

Existing Exterior Cladding

Efficient exterior material selections contributed to cost savings. Affordable lap siding is used on the majority of the building and saves the more interesting board and batten siding for the high traffic front entrance area.

3,300 600 $26,100

$7 per sqft X $12 per sqft X

2,700 sqft of Vinyl Lap Siding

https://tinyurl.com/mr2ky5zc https://tinyurl.com/ycxfzmuh

Total sqft of Exterior Cladding sqft of Board and Batten Siding of Exterior Cladding

Alternative Exterior Cladding

If board and batten siding were to be applied to the whole building, the total price would be over $13,000 more expensive.

3,300

3,300 $39,600

$7 per sqft X $12 per sqft X

Total sqft of Exterior Cladding sqft of Board and Batten Siding of Exterior Cladding 0 sqft of Vinyl Lap Siding

VINYL SIDING

BOARD AND BATTEN SIDING

STARTER HOUSE NO.1 | 3106 ST THOMAS

PROJECT DESCRIPTION

ARCHITECT: OJT (Office Jonathan Tate)

LOCATION: New Orleans, LA

YEAR COMPLETED: 2015

AREA: 975 sq ft

STRUCTURAL: John C. Bose Consulting Engineers

“The first test site for the Starter Home thesis, 3106 St. Thomas is an undersized lot in the Irish Channel neighborhood. Technically a historic district, the Irish Channel is in fact highly diverse in the character of its built environment, filled with low-density historic housing equally as regional industrial infrastructure. According to the Starter Home argument, the site is all at once a legal definition, an embedded history, a record of activity, and a physical entity. A Starter Home expects no tabula rasa, and in fact relies on the specificities of site in order to function at its best, financially, urbanistically, and spatially. The overlay of zoning – both impediment and opportunity – guides the design process but also provides the potentiality of the site as Starter Home opportunity. With this in mind, no zoning variances were sought, and in its design, 3106 seeks to take advantage of its preconditions: adjacency to a warehouse and a two-family home, a highly restricted, long and narrow footprint, and a rather generous maximum height of forty feet.”

• https://www.archdaily.com/780122/starter-home-star-no-1-ojt

This particular massing study appears to have inspired the roofline of the house

FLOOR PLANS

The unique geometry of the site calls for a reconsideration of the typical home layout. A galley kitchen and narrow stair dominate the otherwise open-concept ground level (A), maximizing the flexibility of the space. The staircase is tucked away from the entrance (B), ensuring privacy of the above bedroom. Above the upper story, a flexible loft (suggested as an office space) overlooks the bedroom (C). This overlook could cause privacy or noise issues if the loft were used as an additional sleeping space.

TECTONIC STUDIES

TECTONIC STUDIES

The framing of this building consists of southern yellow pine. All the lumber in contact with the concrete foundation or soil has been treated for rot resistance.

The framing of this building consists of southern yellow pine. All the lumber in contact with the concrete foundation or soil has been treated for rot resistance.

The integration of a steel moment frame in the house probably remains the most unique feature of its structural system. The tall and unusually narrow profile of the building makes it susceptible to tilting over in high winds, and the steel frame provides an additional layer of resistance. The detail below describes how the steel I-beams attach to wooden top plates through a series of bolts.

FRAMING TECHNIQUES

TRADITIONAL FRAMING

Traditional framing spaces 2x4 studs at 16 inches oncenter atop an 8 to 10 foot mud sill. These sections are connected with an overlapping double top-plate and make use of 3 to 4 studs per corner to create enough attachment points for drywall. Headers always appear above window or door openings and are always supported with jack studs below.

This particular design substitutes 2x4 members with 2x6s, most likely due to the height of the house.

Total # of Studs (all types): 89

Total Length of Members: 10,137 in

ADVANCED FRAMING

Advanced framing (originally called optimum value engineering) aims to minimize material consumption and maximize energy efficiency. The use of 2x6s rather than 2x4s creates deeper cavities allowing for greater insulation infill and the 24” versus 16” spacing on-center of studs reduces the number of thermal bridges created by these members spanning the wall depth. Additional techniques create further opportunities for material savings including the use of connector plates rather than a double top-plate and drywall clips to allow for two-stud corners rather than three or four. The arrangement of the members within a header also creates an opportunity for maximum insulation, and the use of header hangers removes the need for jack studs.

Total # of Studs (all types): 45

Total Length of Members: 6,877 in 32% More Efficient than Traditional Framing (by length)

Corner detail sourced from ProSales Magazine: https://tinyurl.com/vmzpbcsr Header details sourced from Journal of Light Construction: https://tinyurl.com/mhwhadbp

PANELIZATION (TRADITIONAL)

Prefabricated panels permit the assembly of a building more quickly and with fewer workers. The size of these panels makes them easily and affordably transportable, opening the world of prefabrication and therefore time-saving. Much like their 8-to-10-foot counterparts in traditional framing, these panels are linked with an alternating, double top-plate required to unite the individual panels into a single unit. The design does reduce material efficiency, requiring the doubling of studs at panel intersections to allow for additional joining. The window openings had to be shifted from the original design to fit within the boundaries of each 4-foot panel.

Total # of Studs (all types): 95

Total Length of Members: 10,830 in

PANELIZATION (ADVANCED)

Prefabricated wall panels can be combined with the techniques of advanced framing to reap the benefits of both systems. Upgrading 2x4s to 2x6s would not increase the surface area of the prefabricated panels and therefore not impact the ease of transport.

Total # of Studs (all types): 51

Total Length of Members: 7,579 in 30% More Efficient than Panelized Traditional Framing (by length)

ZIMPLE | 7510

PROJECT DESCRIPTION

ARCHITECT: OJT (Office Jonathan Tate)

LOCATION: New Orleans, LA

YEAR COMPLETED: 2016

AREA: 2,217 sq ft

STRUCTURAL: Walter Zehner & Associates INC

MANUFACTRUERS: Andersen Windows & Doors, Corrugated Industries, James Hardie

Three generations occupy a site with one existing home and one new construction; of paramount importance in the development of the site and new structure is fostering a mutually beneficial relationship between structures on site, while respecting existing uses. Building massing helps to frame the outdoor environment according to a desire for a variety of types of open spaces, from quiet and private, to open and active. Areas allotted for guest uses are oriented towards the street, where they can be accessed without passing through main living or outdoor family areas. Physical and visual thoroughfares across the site and building are punctuated by areas flexible enough to absorb a range of activities, whether individual or collective.

PROJECT CONTEXT

The location of the Project done by OJT Firm on Zimple Street in Uptown New Orleans places it in a dynamic and historically rich part of the city. With notable landmarks, educational institutions, and recreational areas in close proximity, the firm benefits from a prime location that is both accessible and engaging. This strategic positioning enhances its connectivity and relevance within the broader New Orleans community.

The project is positioned in the Uptown neighborhood. Uptown is characterized by its tree-lined streets and stately homes, contributing to a pleasant and serene environment.

Just a short distance from Zimple Street, the Garden District is renowned for its beautiful antebellum mansions and lush gardens. It’s a prominent area for both residents and visitors who appreciate New Orleans’ historical charm.

Located to the west of the project’s address, Audubon Park is a significant green space offering recreational facilities, walking trails, and picturesque landscapes. It serves as a local hub for outdoor activities and community events. Tulane University, a major educational institution in New Orleans is stuated to the south.

https://www.archdaily.com/869059/7510-zimple-ojt

The Zimple residence model provides many opportunities for the residence to be divided into different sections. The original design intention provides a single family residence on the ground level and a mother-in-law suite on the second level. Additionally, the model can be altered to be a single family two story residence, two rental apartments, or renter + owner options.

TECTONIC STUDIES

WOOD FRAMING

STRUCTURE

All wood framing fabrication and erection shall conform to the national design specification for wood construction by the nfpa, the plywood design specification by the apa and meet the requirements below. Unless noted otherwise all wood connections shall be in accordance with the fastening schedule of the international residential code. All lumber in contact with concrete or masonry shall be treated: framing lumber - southern yellow pine, s4s, no. 2, maximum moisture content.

The design transition from conventional framing to advanced wood framing has led to a significant reduction in lumber use. Initially, the conventional framing approach required 105. With the implementation of advanced wood framing techniques, this requirement has been reduced to 88. This represents a reduction of approximately 16%, resulting in more efficient material use and potential cost savings

Fiber Cement Batten
Fiber Cement Siding
Barrier
Sheathing Board
Sheathing
Concrete Masonry Unit Foundation
Concrete Footing Treated Wood Pier

Fiber Cement Siding

Fiber Cement Batten

2x6 Wood Stud

Weather Barrier

Plywood Sheathing Board
4’ - 0” Typ.
Weather Barrier
Plywood Sheathing Board
2x6 Wood Stud

Turn static files into dynamic content formats.

Create a flipbook
Issuu converts static files into: digital portfolios, online yearbooks, online catalogs, digital photo albums and more. Sign up and create your flipbook.
At Home In the Upstate_Part 1: Fall 2024 Fluid Studio by Clemson School of Architecture - Issuu