ENTREGA FINAL-BIG VANCOUVER HOUSE

Page 1

Diseñado por el arquitecto danés Bjarke Ingels

BIG VANCOUVER HOUSE T A L L E R D E P R O Y E C T O S A R Q U I T E C T Ó N I C O S I V

ESCUELA DE ARQUITECTURA PERUANA UNIÓN DE ESTUDIANTES

Claudia Ramírez Gonzales María Collantes Ramírez Valeria Iberico Gonzales Carla Macedo Rengifo
UNIVERSIDAD
PRESENTACIÓN
ANÁLISISURBANO ANÁLISISDEMÓDULOS DEVIVIENDA TABLA DE CONTENIDOS UBICACIÓN CONCEPTO ZONIFICACIÓN CONCLUSIONESY BIBLIOGRAFÍA VOLUMETRÍA GENERAL CONCEPTO CIRCULACIÓN CORTES ELEVACIONES VENTILACIÓN ASOLAMIENTO SISTEMA CONSTRUCTIVO MATERIALES CONCLUSIONES RECOMENDACIONES 1 2 3 BIBLIOGRAFÍA

¿QUIÉNESBJARKEINGELS?

Bjarke Ingels (Copenhague, 2 de octubre de 1974) es un arquitecto danés. Dirige el estudio de arquitectura BIG Bjarke Ingels Group, fundado en 2006. Bjarke destaca por la búsqueda del equilibrio entre la arquitectura tradicional y la arquitectura vanguardista.

Fuente: wikipedia

VANCOUVERHOUSE T A L L E R D E P R O Y E C T O S A R Q U I T E C T Ó N I C O S I V A R Q . J H O N N Y M O N T A L V Á L BJARKE INGELS
ANÁLISIS Urbano 01

UBICACIÓN

Ubicado en el continente de América del Norte, se extiende desde el océano Atlántico al este, el océano Pacífico al oeste, y hacia el norte hasta el océano Ártico.

CANADÁ

Vancouver, ciudad de la costa pacífica de Canadá, ubicada en el suroeste de la provincia de Columbia Británica, entre el estrecho de Georgia y las Montañas Costeras. En el cual se encuentra el "BIG VANCOUVER HOUSE".

VANCOUVER
BIG VANCOUVER HOUSE

CONCEPTO

Esta torre tiene la planta de forma triangular permitiendo las vistas sobre el entorno montañoso de la ciudad. La cual cuenta con un podio de uso mixto

Tiene modernas fachadas de cristal, los que , a su vez, colindan con parques y edificios de baja altura.

Los objetivos que tiene la vivienda es cumplir con las siguietes reglas: un buen asolamiento , buenas vistas y un aire fresco.

Incrementar exhibiciones artísticas bajo el Puente de Granville, incrementando el uso peatonal de esa zona.

VOLUMETRÍA

Sitio delimitado por el paso elevado del puente de Granville Extrusión de la planta resultante. Planta rectuangular en la puerta superior.

13
2

VOLUMETRÍA

Silueta resultante

Plataformas continuas accesibles.

Tres nuevos volúmenes extruidos.

4 5 6

Estacionamiento

Alquiler de viviendas Torredeusomixto Zonificaciónenbaseatipodeviviendas LEYENDA:
Departamentos Nivel subterráneo Comercios - Oficinas Departamentos Comercio Oficinas Entretenimiento Alquiler de viviendas Estacionamiento Pentahouse Nivel alto ZONIFICACIÓN
Circulació vehicular HAY UN TOTAL DE 52 VIVIENDAS Núcleo Vertical VOLUMETRÍ LEYENDA: VEHICULAR PEATONAL Circulación peatonal
MÓDULOS de Vivienda 02
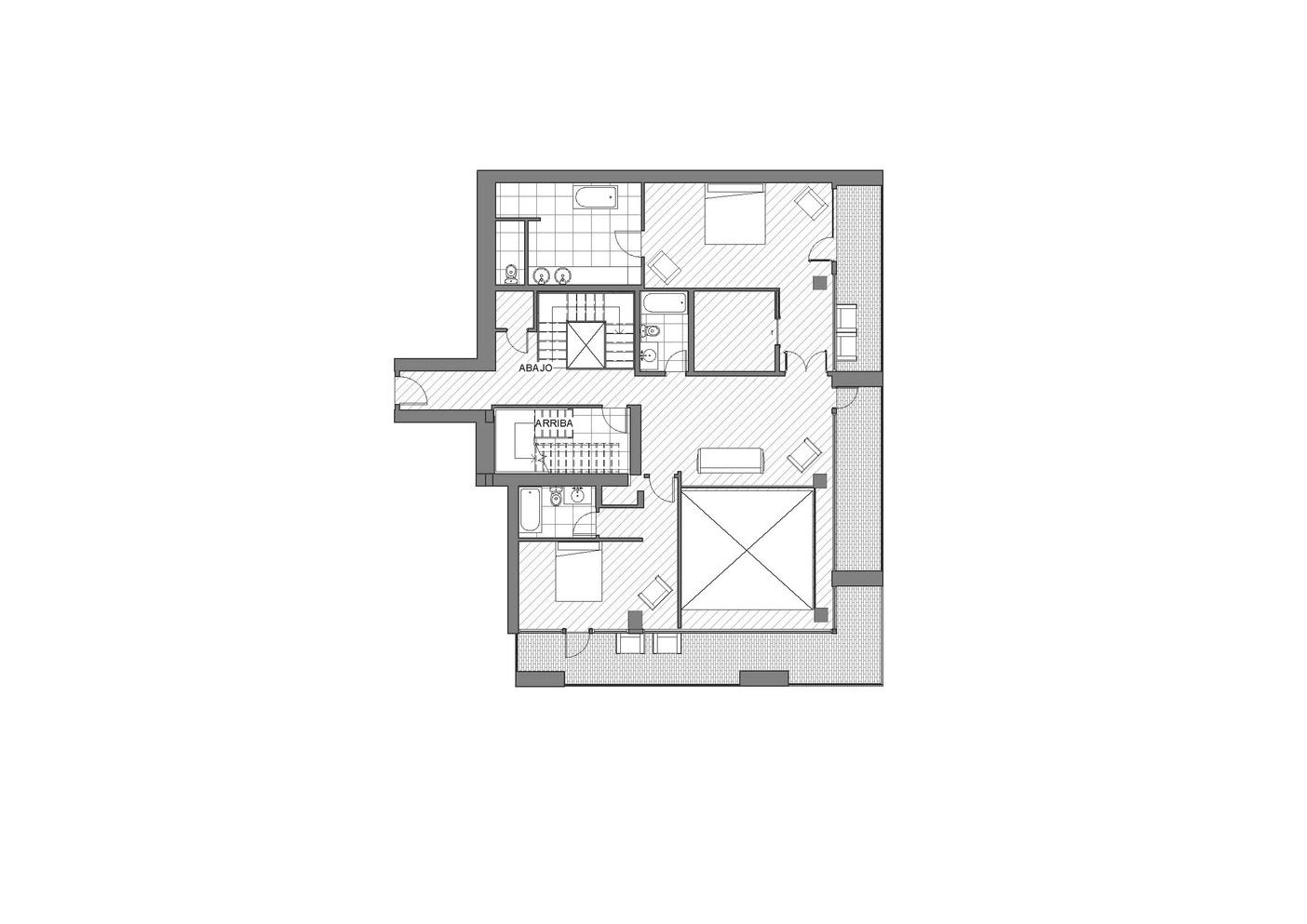
BEAC El edificio cuenta con una amplia cantidad de acristalamiento y luz natural, estos contienen los mismos espacios interiores y otros varían en la parte exterior añadiendo un pequeña terraza con una gran vista por la calle howe. V O L U M E T R Í A Z O N I F I C A C I Ó N PISO 26 CONCEPTO HOWESTREET LEYENDA: 1 WALK IN CLOSET 2 DORMITORIO PRINCIPAL 3 BAÑO 4 SALA DE ESTAR 5 COCINA 6 COMEDOR 7 DORMITORIO 8 WALK IN CLOSET 9 BAÑO 1 2 3 4 65 9 7 8 8
DE LEYENDA: Entrada Circulación PISO 26 C I R C U L A C I Ó N Fotografía de la vista H O W E S T R E E T BEACHAVENUE A A B B A A B B

CORTESYELEVACIONES

PISO 26

PISO 26

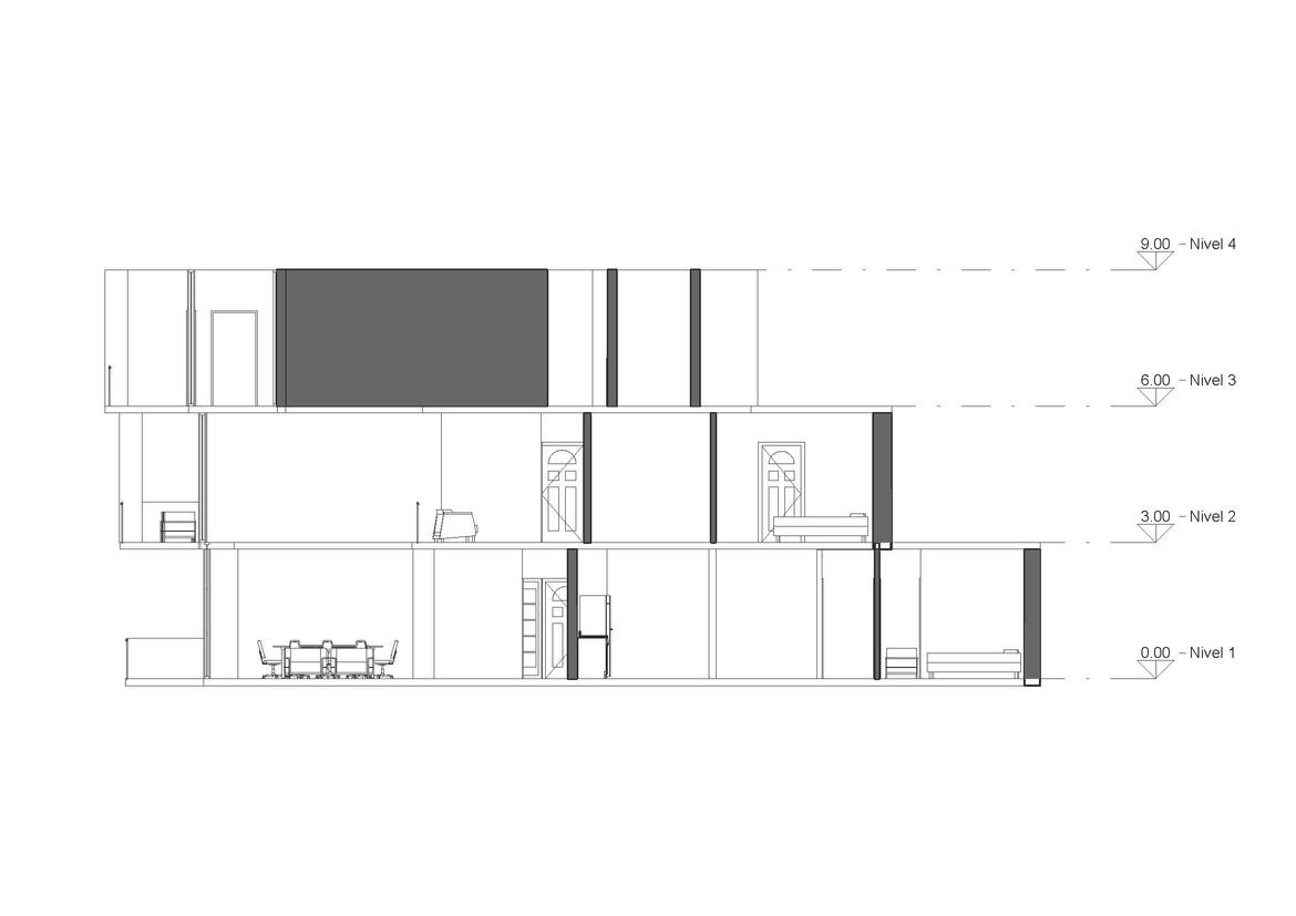
El corte A A se muestra al lado izquierdo la habitación principal, en medio el comedor y sala, y en la parte derecha se encuentra el dormitorio secundario. Y en el corte B-B se visualiza la sala de estar.

PISO 26

ELEVACIÓN SUR

En la elevación sur se encuentra la terraza y ambas habitaciones las cuales están acristaladas (con muros cortina) para que puedan recibir iluminación natural.

E L E V A C I Ó N CORTE A-A CORTE B B C O R T E S

La salida del sol más temprana es a las 05:06 el 16 de junio, y la salida del sol más tardía es 3 horas y 1 minuto más tarde a las 08:07 el 31 de diciembre La puesta del sol más temprana es a las 16:13 el 11 de diciembre, y la puesta del sol más tardía es 5 horas y 8 minutos más tarde a las 21:22 el 25 de junio.

Los vientos vienen predominantemente del oeste, con una velocidad media de 20 km/h Sin embargo, tambien son frecuentes los vientos provenientes, también del este, pero con una velocidad de hasta 25 km/h Por tanto las ventana que dan hacia el este, dado que aire que penetre por la ventana enfriará la edificación

V E N T I L A C I Ó N A S O L A M I E N T

O

C O N S T R M A T E R I A L E

S I S T E M A
U C T I V
S MADERA HORMIGÓN PISO LAMINADO PISO LAMINADO DE MADERA CRISTAL TEMPLADO CON MARCO DE ACERO PASAMANOSDEACERO CRISTALTEMPLADOTRASLUCIDO PARANTESRECTANGULARESDE ACERO
S I S T E M A S T R U C T U R A
E
L
CONCEPTO PISO 43 V O L U M E T R Í A El edificio cuenta con una amplia cantidad de acristalamiento y luz natural, estos contienen los mismos espacios interiores y otros varían en la parte exterior añadiendo un pequeña terraza con una gran vista por la avenida Beach. Z O N I F I C A C I Ó N CONCEPTO HOWESTREET LEYENDA: 1 DORMITORIO PRINCIPAL 2 TERRAZA 3 SALA DE ESTAR 4.COMEDOR 5 COCINA 6 DORMITORIO 2 7 BAÑO 8 WALK IN CLOSET BEACHAVENUE 1 2 3 4 5 6 7 8
C I R C U L A C I Ó N LEYENDA: Entrada Circulación Fotografía de fachada H O W E S T R E E T BEACHAVENUE S DEPARTAMENTO A AA A B B B B

CORTESYELEVACIONES

El corte A A se muestra al lado izquierdo la cocina, lavandería, en el centro está la sala y comedor y en la parte derecha se encuentra la terraza.

En el corte B B está un pequeño almancén, otra visual del comedor y el ss.hh. de la habitación principal.

PISO 43

C O R T E E L E V A

PISO 43

ELEVACIÓN OESTE

En la elevación oeste se encuentra la terraza y ambas habitaciones, en la cual la habitación secundaria tiene salida directa a la terraza, y la habitación principal no.

S
C I Ó N
B

La salida del sol más temprana es a las 05:06 el 16 de junio, y la salida del sol más tardía es 3 horas y 1 minuto más tarde a las 08:07 el 31 de diciembre La puesta del sol más temprana es a las 16:13 el 11 de diciembre, y la puesta del sol más tardía es 5 horas y 8 minutos más tarde a las 21:22 el 25 de junio

Los vientos vienen predominantemente del oeste, con una velocidad media de 20 km/h. Sin embargo, tambien son frecuentes los vientos provenientes, también del este, pero con una velocidad de hasta 25 km/h. Por tanto las ventana que dan hacia el este, dado que aire que penetre por la ventana enfriará la edificación.

V E N T I L A C I Ó N A S O L A M E N T

I
O

PISO LAMINADO DE MADERA

CRISTAL TEMPLADO

PASA MANOS DE ACERO CRISTAL TEMPLADO TRASLUCIDO PARANTES RECTANGULARES DE ACERO CRISTAL TEMPLADO CON MARCO DE ACERO PISO DE CERÁMICA
HORMIGÓN
TRASLUCIDO

CCONCEPTO ONCEPTO

Z CONCEPTO 1 3

El edificio cuenta con una amplia cantidad de acristalamiento y luz natural, estos contienen los mismos espacios interiores y otros varían en la parte exterior añadiendo un pequeña terraza con una gran vista por la avenida Beach y a comparación de los otros departamentos, este cuenta con 3 plantas ya que es Penthouse

V O L U M E T R Í A
O N I F I C A C I Ó N
HOWESTREET NIVEL
NIVEL 2 NIVEL
PENTHOUSE C I R C U L A C I Ó N LEYENDA: Entrada Circulación AA-A A B-B B B AA-A -A B-B B B AA-A A B B B B NIVEL 1 NIVEL 2 NIVEL 3 PENTHOUSE PENTHOUSE PENTHOUSE

CORTESYELEVACIONES

CORTE A-A

ELEVACIÓN SUR

C O R T E S L E V A C

CORTE

ELEVACIÓN ESTE

E
I Ó N
B B

La salida del sol más temprana es a las 05:06 el 16 de junio, y la salida del sol más tardía es 3 horas y 1 minuto más tarde a las 08:07 el 31 de diciembre La puesta del sol más temprana es a las 16:13 el 11 de diciembre, y la puesta del sol más tardía es 5 horas y 8 minutos más tarde a las 21:22 el 25 de junio

Los vientos vienen predominantemente del oeste, con una velocidad media de 20 km/h Sin embargo, tambien son frecuentes los vientos provenientes, también del este, pero con una velocidad de hasta 25 km/h Por tanto las ventana que dan hacia el este, dado que aire que penetre por la ventana enfriará la edificación

V E N T I L A C I Ó N A S O L A M I E N

T O
CONCLUSIONESY 03 Bibliografía

CONCLUSIÓN

La torre Vancouver House simboliza un mejor desarrollo y composición de una vivienda colectiva, ya que es un edificio que llega a satisfacer las necesidades del usuario. Por lo que aspira a crear un tejido urbano denso y equilibrado, permitiendo integrarse con el paisaje y a su vez con el entorno que lo rodea, creando buenas visuales y disfrutar del clima del lugar ( asoleamiento y ventilación) integrándose activamente en la vida de la ciudad.

RECOMENDACIONES

Implementar espacios con rampas cuando es inexistente algún elevador, para las personas con discapacidades físicas.

Implementar zona especiales para la recreación de las personas adultas.

Ejecutar más equipamiento para los turistas.( alquiler de bicicletas, scooter).

BIBLIOGRAFÍA

Viva, A. (2018)

Viva, A. (2018, diciembre 22). Torre de usos mixtos Beach and Howe, Vancouver Bjarke Ingels BIG Bjarke Ingels Group. https://arquitecturaviva.com/obras/torre de usos mixtos beach and howe (S/f). (S/f). Architecturaldesignschool.com. Recuperado el 25 de septiembre de 2022. https://spa.architecturaldesignschool.com/beach howe mixed use tower 84309

Behance. (s/f) Behance. (s.f). Recuperado el 25 de septiembre de 2022. https://www.behance.net/gallery/127291465/Analisis Vancouver House Bjarke Ingels?

tracking source=search projects recommended%7CBjarke%20Ingels

Kraljevich,F (2021)

Kraljevich, F. (2021,junio 10) Vancouver House:Una torre de hormigón que desaía las formas convencionales. Hormigón al día https://hormigonaldia.ich.cl/arquitectura y urbanismo/vancouver house una torre de hormigon que desafia las formas convencionales/#:~:text=Seg%C3%BAn%20inform%C3%B3%20en%20la%20ocasi%C3%B3n,una%20nueva%20tipolog%C3%ADa% 20urbana%20ejemplar%E2%80%9D.

TALLER DE PROYECTOS ARQUITECTÓNICOS IV

Turn static files into dynamic content formats.

Create a flipbook
Issuu converts static files into: digital portfolios, online yearbooks, online catalogs, digital photo albums and more. Sign up and create your flipbook.
ENTREGA FINAL-BIG VANCOUVER HOUSE by Claudia Nicolle Ramirez Gonzales - Issuu