SHOWROOM

Page 1

SHOWROOM

‧Estilo Clásico, Zen y Loft‧ Taller Pre Profesional de Diseño Interior

CÁTEDRA

Arquitecto de profesión con grado de Magister en Gestión Urbana y Vulnerabilidad Socioambiental sólidos conocimientos y experiencia en la docencia por más de 12 años y conferencista en temas relacionados a la Arquitectura, Interiorismo y Paisajismo, Plasmando respeto y motivación en los estudiantes para transmitir el seguir innovando aportando en la mejor carrera del mundo como es la ARQUITECTURA

INTEGRANTES

Arce Valle José Carlos Barboza Delgado, Claudia Lucía López Díaz Fátima Lucía Marini Rojas, Gianella Mendoza Cotrina María Alejandra Merino Acosta Sara Isabel Paredes Esteves Dante Alejandro
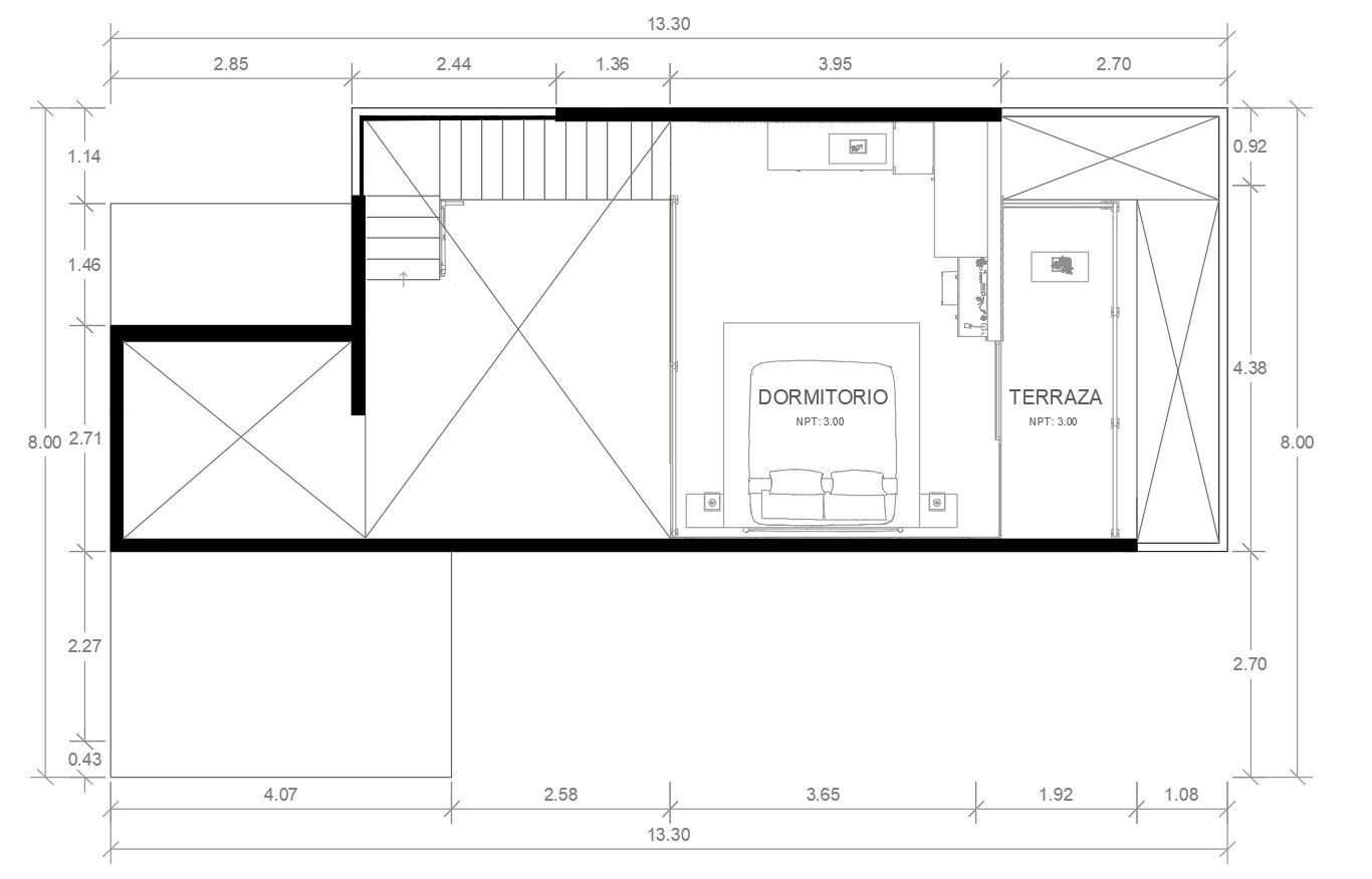
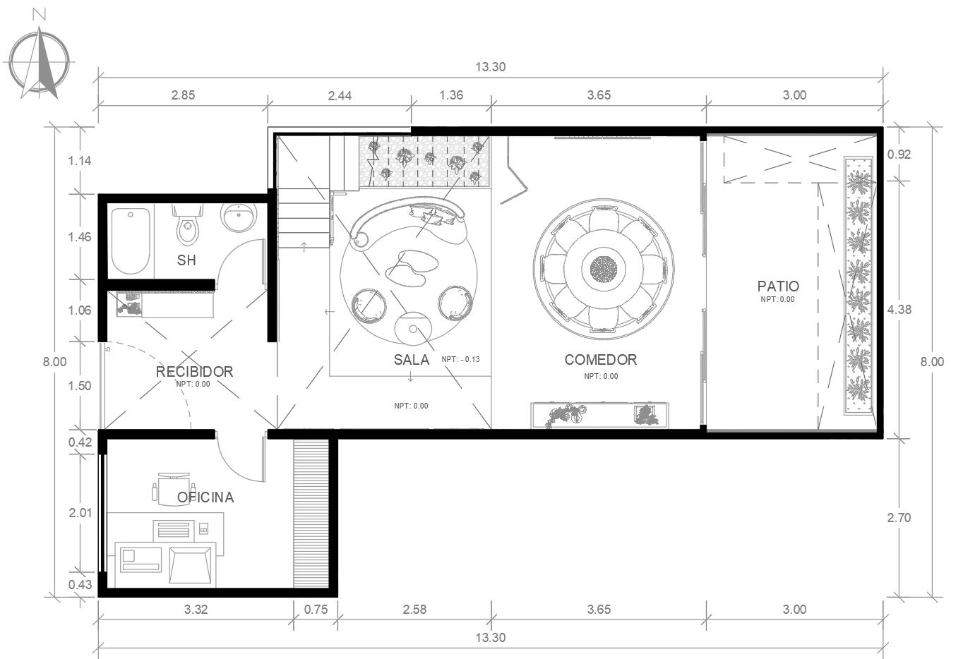
ÍNDICE Moodboards Estilo Clásico Estilo Loft Estilo Zen Planimetría Primer Nivel Segundo Nivel Cortes Corte Transversal A A' Corte Transversal B B' Corte Longitudinal A A' Corte Longitudinal B B' Renders De día De noche 1 a 2 3 a 4 5 a 6 8 9 16 a 49 50 a 57 11 12 13 14

Moodboards

Planimetría

Cortes

Renders

Trujillo - Perú

2022 - 20

Turn static files into dynamic content formats.

Create a flipbook
Issuu converts static files into: digital portfolios, online yearbooks, online catalogs, digital photo albums and more. Sign up and create your flipbook.