


The Knight Frank Hotels Team and Guildprop are delighted to jointly bring to market, The Holiday Inn Express Cambridge – Duxford M11, Junction 10 and the Red Lion Hotel at Whittlesford Bridge.
A rare branded hotel and well-known coaching inn, managed by Interstate Hotels, situated eight miles from Cambridge City Centre and within the heart of the Cambridge science and bio-tech parks. Comprising a total of 93 en suite bedrooms across a site of 1.6 acres with conferencing, shared parking for 91 cars and an opportunity to develop a row of garages into further hotel bedrooms or a residential conversion.
The hotels are held freehold and to be sold as a pair or, alternatively, The Red Lion can be purchased as a standalone asset.
• 73 en suite bedrooms
• Adjacent to Whittlesford Parkway Train Station
• One meeting room with capacity up to 15 delegates, boardroom style
• Ground floor restaurant and bar accommodating up to 100 covers
• The hotel is subject to a franchise agreement to IHG and a management agreement to Interstate Hotels
• Can be purchased free of management
• Eight miles from Cambridge City Centre and within the heart of Cambridge Science and biotech parks including; AstraZeneca, Addenbrookes, The Wellcome Sanger Institute, The Babraham Institute and the proposed Huawei site.
• Built in 2010 (Gen 4)
• Shared parking for circa 91 cars
• Freehold
• Well known four-star coaching inn, adjacent to the Holiday Inn Express Cambridge – Duxford
• 18 en suite bedrooms
• Ground floor restaurant and bar for circa 80 covers
• Modern glass atrium and garden room with seating for up to 200 delegates
• Private dining room with seating for up to 45 delegates, theatre style
• Subject to a Hotel Management Agreement to Interstate Hotels
• Can be purchased free of management
• Popular wedding venue
• Recent refurbishment to all public areas and bedrooms
• Grade II listed
• Freehold
• Retirement sale – first time on the market in 43 years
The site extends to a total of 1.6 acres and encompasses two lots as outlined in the site plan below.
The Holiday Inn Express Cambridge, Duxford and The Red Lion Hotel are located in the county of Cambridgeshire, adjacent to Whittlesford Parkway Train Station and two miles east from Junction 10 of the M11 motorway. Cambridge City is situated eight miles north of the assets and can be accessed within 15 minutes via car, depending on traffic. More locally, the hotels are situated on the north side of the A505, an arterial route through South Cambridgeshire linking with the M11 motorway to the west and the A11 to the east.
The M11 motorway provides convenient vehicular access north towards Cambridge City Centre (eight miles) and south towards Central London (54 miles). The M11 also links with the A14 at junction 14 and can be accessed within 10 minutes from the hotels. The A14 is a major East to West arterial road providing access towards Peterborough, Huntingdon, the Midlands and onwards to the M1. Peterborough is rapidly becoming a combined authority with Cambridge to accommodate the overspill and lack of space within central Cambridge. The
hotels sit within the Oxford-Cambridge Arc, a globally significant area, home to 3.7 million people and supporting over two million jobs which results in circa £110 billion of Gross Value Added to the UK economy annual. The assets are also within close proximity to the A11, a major trunk road in the south east, linking the cities of Cambridge and Norwich.
The nearest train station to the properties is Whittlesford Parkway Train Station, located adjacent to the Holiday Inn Express Cambridge – Duxford. The hotels are situated to the east of
the station, opposite platform 1, which accommodates all services running in a southerly direction. The station offers two services to London Liverpool Street every hour (one hour 15 minutes approximate journey time) and one service to London Stansted Airport every hour (30 minutes approximate journey time). The station also offers two services every hour in a northerly direction which run through to Cambridge City (10 minutes approximate journey time). The nearest London Underground station is situated at Tottenham Hale, serviced by the Victoria Line. Whittlesford Parkway provides direct train serviced to Tottenham Hale with a journey time of approximately 30 minutes.
The nearest international airports to the assets are London Luton Airport, situated approximately 35 miles to the south west and Stansted Airport, situated approximately 20 miles to the south. Stansted airport can be accessed within 30 minutes by car, via the M11 motorway, or 30 minutes by rail, as aforementioned.
Cambridge has been described as the only true university city in England being home to the prestigious University of Cambridge and its 31 colleges. The city boasts spectacular architecture through multiple colleges, chapels and courtyards, enhanced by beautifully landscaped commons and open spaces. Situated in Cambridgeshire in the South East of England, Cambridge is one of the 13 premiere heritage cities in England. The city has a world class reputation for education, science and innovation and is considered crucial for the UK’s economy and its international competitiveness. The strong presence of science and technology sectors within Cambridge have been fundamental to the city’s growth over the decades. The city of Cambridge benefits from an exceptional central location within the UK, easy access into Central London and within close proximity to a selection of international airports. It is a quintessentially English destination.
3,475
The University of Cambridge dates back to 1209 as a setting to provide an orderly place for scholars, with the first college, Peterhouse, being founded in 1284. The university received formal recognition as a stadium generale in 1318. Throughout the decades the university has gained global acknowledgement as one of the leading centres for education. The university is ranked as the top university in the nation and fourth worldwide,
49
£99.78 Average Daily Rate pre COVID-19
according to the Center for World University Rankings.
King’s College Chapel is considered one of the finest examples of Perpendicular Gothic Architecture in the UK. It is a hugely iconic building within the city of Cambridge and is the oldest surviving building within the college site. The university has in excess of 20,000 students enrolled from over 150 countries.
£77.88 RevPAR pre COVID-19
78%
Average occupancy pre COVID-19
Cambridge City CentreThe hotel is conveniently located within the heart of the Cambridge Science and Biotech parks including; AstraZeneca, Addenbrookes, The Wellcome Sanger Institute, The Babraham Institute and the proposed new Huawei site. We outline the location of these Life Science destinations in conjunction to the hotels within the map below.
In 2018, the Greater Cambridge Partnership commissioned a Transport Masterplan for Whittlesford Parkway Station, situated adjacent to the Holiday Inn Express Cambridge – Duxford. The Masterplan focusses on enhancing the capacity and connectivity of the station to facilitate sustainable growth. Over 150 schemes were identified during the baseline analysis resulting in 33 schemes being submitted to stage two of the process. Examples of proposed schemes include the following:
• A new lift and footbridge between the station platforms
• An extended network of cycle links and safe crossing points
• A bus turning circle to enable efficient interchange with trains
• Improved junctions on the A505 to improve safety, access and capacity
• A new car park, increasing spaces by approximately 50%
• A transformed public realm which prioritises pedestrians in the vicinity of the station
The previous schemes will provide positive investment in to the station increasing the capacity of the station, improving connectivity and providing further comfort to the wider investment in the local area.
Plans have been confirmed for the development of a new stadium for Cambridge City Football Club in the village of Sawston, approximately two miles north of the hotels. The site expands an area of circa 35-acres and will house the new 3,000-capacity stadium with the club expecting to open their doors to fans in late 2023.
The Imperial War Museum at Duxford is Europe’s largest air museum opening its doors to over two and a half million visitors during 2019. The museum is host to the Duxford Summer Air Show which typically takes place during the month of July. In 2018, as part of RAF100, the Duxford Battle of Britain Air Show welcomed over 50,000 guests to the event.
The Holiday Inn Express Cambridge – Duxford was built in 2010 as a Generation 4 category and in total comprises 73 en suite bedrooms, one meeting room, ground floor bar and restaurant and a manager’s office.
and is accessed via the shared car park with the Red Lion Hotel. The hotel is rectangular in shape with bedrooms on all floors, whilst all public areas are situated on the ground floor.
The main entrance of the hotel leads into an open plan reception and lobby. Upon entering the hotel and directly to the left-hand side, there is a guest staircase and a lift which provides access to the upper floor. The ground floor restaurant
and bar is situated to the right hand side of the main reception along side nine of the hotels bedrooms.
Male, female and accessible W.C’s are located on the ground floor of the hotel.
The hotel’s kitchen is located on the ground floor and fitted with commercial grade catering equipment. It is well positioned to accept deliveries and cater for the hotel’s food and beverage areas.
The additional back of house facilities located on the ground floor include a laundry room and administration offices. In addition, linen stores are located on all floors of the hotel.
There is one meeting and conference room situated on the ground floor of the hotel. The room offers air conditioning, a
projector and Wi-Fi access. The summary of the conferencing room and seating capacities is listed below.
• Holiday Inn Express is one of 16 brands within the Intercontinental Hotels Group
• The brand benefits from the IHG booking system and the IHG Owners Program
• IHG offers over 5,656 properties and more than 842,000 rooms in approximately 100 countries globally
• Holiday Inn Express offers 2,974 hotels and resorts
• Global System Size: Rooms: 310,780
• Global Pipeline: Hotels: 683
The 73 en suite bedrooms are located over ground and three upper floors. Each room as a minimum is air conditioned
and has satellite television, telephone, tea and coffee making facilities and free Wi-Fi throughout.
The hotel has been converted from a 13th Century coaching inn and subsequently extended and renovated into a popular and well known boutique hotel offering 18 en suite bedrooms, a large conferencing room for up to 200 delegates, a private dining room, ground floor restaurant and bar and landscaped gardens.
The Grade II listed property is located along Station Road East, adjacent to Whittlesford Parkway Train Station and is arranged over ground and two upper floors. The original building is of timber frame construction and has been extended in recent years in order to provide further guest facilities. This comprises of a 200-capacity conference and meeting room as well as upgrades to the bedrooms and ground floor restaurant.
The hotel is approached at ground floor level, providing access into an entrance hall contained within the original part of the property. Upon entering the hotel and immediately to your left hand-side, the hotel offers a quaint reception area and lounge, boasting original features of the property. The restaurant and bar is accessed off the main entrance hall and provides 80 covers whilst the stairs, which provide access to the upper floors, are situated to the right of the entrance hall.
The hotel extension which comprises the new 200 capacity Garden Room with a modern glass atrium is situated to the rear of the property. The room can be accessed through the main hotel restaurant and bar or alternatively, guests can access the Garden Room via an exclusive entrance leading into the landscaped gardens by Duxford Chapel giving the room an exclusive feel.
An additional private dining room, situated within the original building, is accessed through the main hotel restaurant and benefit from an external door which leads onto Station Road East.
Male, female and accessible W.C’s are located on the ground floor of the hotel.
The hotel’s kitchen is located on the ground floor and fitted with commercial grade catering equipment. It is well positioned to accept deliveries and cater for the hotel’s food and beverage areas.
The additional back of house facilities include a servery connected to the Garden Room and an administration office situated off the restaurant.
There are three meeting and conference rooms situated on the ground floor of the hotel. The modern Atrium and Garden Room are air conditioned whilst the private dining room offers a more traditional setting. The summary of the conferencing rooms and seating capacities is listed below.
The 18 en suite bedrooms are located on the two upper floors of the hotel. Each bedroom offers individual designs and concepts boasting timber features throughout and offering a boutique experience. Each room offers a flat
screen television with Freeview, Wi-Fi access as well as tea and coffee making facilities whilst superior rooms offer an additional luxury feel with a freestanding bath in the bedrooms.
BEDROOM TYPE NUMBER OF ROOMS
Cosy Double 7 Double 7
Double Superior 4 TOTAL 18
guests in the Garden Room benefit from sliding doors which lead onto the external areas.
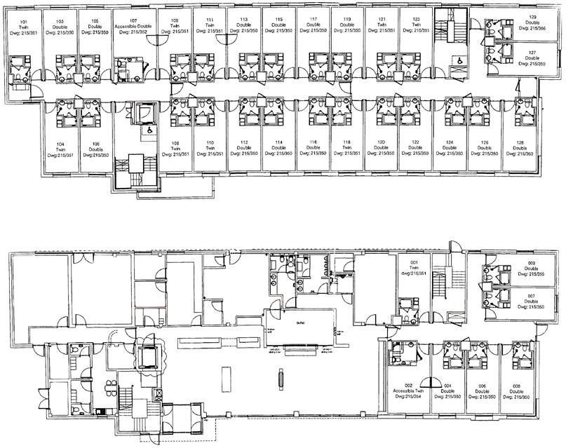
GROUND FLOOR
FIRST FLOOR
SECOND FLOOR
Part of Lot 1 (as outlined in the adjacent site plan) includes a selection of garages, adjacent to the Holiday Inn Express. The garages provide an ideal location for additional hotel bedrooms or a residential conversion with retail on the ground floor, subject to the necessary planning consents.
A separate unlisted, Oast House, situated in the centre of the site, currently comprises two x 1 bed flats. Subject to Planning, Oast House provides an incoming purchaser an opportunity to redevelop the property for other uses including an additional block of accommodation.
The properties are held Freehold.
We have made enquiries through the Valuation Office Agency which indicates the hotels and premises have the following Rateable Values, with effect from 1st April 2023: Holiday Inn Express Cambridge –Duxford: £198,000
The Red Lion Hotel: £60,000
However, as a result of the UK Government introducing business rates relief for retail, hospitality and leisure businesses for this tax year as a result of the Covid-19 pandemic, which is in effect until March 2022, we suggest that interested parties make their own enquiries to confirm what actual business rates will be payable.
South Cambridgeshire District Council.
We are advised that the hotels operate will all necessary licences.
The Holiday Inn Express Cabridge –Duxford is not listed whilst the Red Lion is Grade II listed.
We have been verbally advised that the properties are connected to mains gas, electricity and water.
EPC Holiday Inn Express Cambridge Duxford: Available upon request.
The Red Lion Hotel: Not applicable due to listed status.
Price on application.
Viewing is strictly by prior appointment. Please contact one of the agents below to arrange:
(1) Particulars: These particulars are not an offer or contract, nor part of one. Any information about price or value contained in the particulars is provided purely as guidance, it does not constitute a formal valuation and should not be relied upon for any purpose. You should not rely on statements by Knight Frank in the particulars or by word of mouth or in writing (“information”) as being factually accurate about the property, its condition or its value. Neither Knight Frank LLP nor any joint agent has any authority to make any representations about the property. No responsibility or liability is or will be accepted by Knight Frank LLP, seller(s) or lessor(s) in relation to the adequacy, accuracy, completeness or reasonableness of the information, notice or documents made available to any interested party or its advisers in connection with the proposed transaction. All and any such responsibility and liability is expressly disclaimed.
(2) Photos, Videos etc: The photographs, images, property videos and virtual viewings etc. show only certain parts of the property as they appeared at the time they were taken. Areas, measurements and distances given are approximate only.
(3) Regulations: Any reference to alterations to, or use of, any part of the property does not mean that any necessary planning, building regulations or other consent has been obtained. A buyer or lessee must find out by inspection or in other ways that these matters have been properly dealt with and that all information is correct.
(4) VAT: The VAT position relating to the property may change without notice.
(5) Financial Crime: In accordance with the Money Laundering, Terrorist Financing and Transfer of Funds (Information on the Payer) Regulations 2017 and Proceeds of Crime Act 2002 Knight Frank LLP may be required to establish the identity and source of funds of all parties to property transactions.
(6) To find out how we process Personal Data, please refer to our Group Privacy Statement and other notices at https://www. knightfrank.com/legals/privacy-statement.
Particulars dated July 2021. Photographs dated June 2021.
Knight Frank is the trading name of Knight Frank LLP. Knight Frank LLP is limited liability partnership registered in England and Wales with registered number OC305934. Our registered office is at 55 Baker Street, London W1U 8AN where you may look at a list of members’ names. If we use the term ‘partner’ when referring to one of our representatives, that person will either be a member, employee, worker or consultant of Knight Frank LLP and not a partner in a partnership.
55 Baker Street London W1U 8AN Tel: +44 (0) 20 7629 8171 www.knightfrankhotels.com
Henry Jackson MRICS
Tel: +44 (0) 7767 754 386 henry.jackson@knightfrank.com
Josh Aspland-Robinson MRICS Tel: +44 (0) 7816 605 576 josh.aspland-robinson@knightfrank.com
167 – 169 Great Portland Street Fifth Floor London W1W 5PE
Philip Johnston MRICS
Tel: +44 (0) 7870 555 744 pj@guildprop.com
Richard Davis MRICS Tel: +44 (0) 7818 096 559 rd@guildprop.com