Skip to main content

359_Revista CIFRAS Digital Febrero 2026 - Costos

Page 1


Director General

Arq. Jorge Alberto Benet

Contenidos y Redacción

Arq. Jorge Alberto Benet

Arq. Nanci García

Administración

Matías Perri productoracifras@gmail.com

Cómputo y presupuesto de prototipos tradicionales

Arq. Carlos Barducco carlosbarducco@yahoo.com.ar

Cómputo y presupuesto de prototipo steel frame

Arq. Humberto Annichini

Arq. Walter Meza

Costos de remodelaciones de baños y cocinas

Arq. Luciana Parera

Relevamiento de Costos región Litoral Propio de CIFRAS

Puesta en página

L.D.C.V. M. Victoria Göldy

Distribución

Santa Fe provincia y Entre Ríos provincia. Este de la provincia de Córdoba.

Teléfonos 342 4342062 (móvil) Correo info@cifrasonline.com.ar

AQUÍ COMIENZA LA SECCIÓN DE COSTOS

Construcción tradicional

» Resumen de la variación de costos de la construcción del mes.

» Costo sugerido del M2 de construcción para 4 modelos tipológicos.

» Variación mensual del M2 de construcción de los 4 modelos tipológicos.

» Costos por rubro de cada item de obra.

» Precio del hormigón elaborado.

» Índice de la Cámara Argentina de la Construcción (CAC).

» Costos según resoluciones constructivas con detalles gráficos.

» Costos del M2 de construcción en Argentina- cuadro comparativo.

» Alquiler de máquinas y herramientas.

» Precios de materiales.

» Costo sugerido para la remodelación de baños.

» Costo sugerido para la remodelación de cocinas.

» Costos de mano de obra de instalaciones eléctricas.

» Costos de tareas por contratos independientes.

» Costos de mano de obra de la construcción según UOCRA.

Construcción en acero Steel Frame

» Costos de construcción de un prototipo bajo sistema de construcción en acero.

» Variación mensual del M2 de construcción en acero.

RESUMEN DE LA VARIACIÓN DE COSTOS DE LA CONSTRUCCIÓN EN EL MES DE ENERO

Construcción tradicional para la Región Litoral-Centro de la República Argentina

RESUMEN: Revista Interactiva Cifras Nº: 359 | Fecha de cierre presente edición: 29-ENE-2026 | Cotización Dólar BNA p/venta: $/U$S 1.465,00

COSTOS POR M2

+ 1,39 % a 1,70 %

Fue el rango de variación de los costos globales de los modelos tipológicos de Cifras, que se verifican respecto del mes anterior. (La variación particular desagregada ver en la sección Costos Tipologías)

MANO DE OBRA + 2,60%

Fue la variación que registró la mano de obra que interviene en las tipologías (personal asalariado y de subcontratos) por aplicación de valores vigentes, según lo acordado en materia de política salarial para los dos primeros meses del presente año, para el sector de la industria de la construcción.

MATERIALES

+ 0,70%

Fue la variación ponderada verificada en las canastas de materiales de las tipologías que se publican, según datos de la encuesta de Cifras cerrada el 26-01-26. En la misma se observa, en general, precios sin variación, algunas bajas y otros con incrementos particulares; todo en el contexto macro económico actual.

EQUIPOS

+ 2,30%

Fue la variación global que registró el equipo, por aumentos en sus componentes principales (equipos, combustibles, lubricantes y mano de obra, entre otros) que impactan en los costos de posesión y operación, de los equipos que participan en las distintas tipologías que se publican.

COSTO SUGERIDO DEL M2 DE CONSTRUCCIÓN SEGÚN TIPOLOGÍAS

NIVEL MEDIO PARA LA REGIÓN LITORAL/CENTRO DE LA REPÚBLICA ARGENTINA

TIPOLOGÍAS

¡DESCARGÁ ESTA INFO EN ARCHIVO EDITABLE para trabajar e imprimirla desde tu dispositivo

Los 4 Modelos Tipológicos están proyectados según parámetros de calidad de Nivel Medio o Estándar con tecnología de construcción tradicional. Los valores aquí expresados son referenciales y corresponden a:

(*) Costos Directos: MATERIALES + EJECUCIÓN

(Mano de Obra + Equipos), calculados como de producción industrial, utilizando rendimientos estándares, precios de materiales e insumos relevados por Revista Cifras en mostrador de comercios minoristas de la construcción y con jornales de mano de obra según UOCRA.

(**) Costos Indirectos: Gastos Generales + Beneficios Empresariales + IVA.

y Asociados

Arq. Laura Barducco - Mat.7067

Arq. Javier Barducco - Mat.6829

Arq. Carlos

A ENERO 2026

Todos los valores estimados que se consignan en las secciones “Costos Tipologías”, “Costos por rubro” y “Costos Resoluciones Constructivas” de la Revista son ilustrativos o de referencia para la elaboración de presupuestos estimativos asimilables a las tipologías proyectadas; y con datos relevados al cierre de la presente edición operado el 29 de Enero de 2026. Podés descargar todos los costos desde: cifrasonline.com.ar/Costos/todosloscostos

TRABAJOS PRELIMINARES:Honorarios

Dentro de los TRABAJOS PRELIMINARES se incluyen Gastos de HONORARIOS (Proyecto, Tramitación y otras tareas iniciales), los cuales representan en términos porcentuales genéricos aproximadamente un 5%.

HONORARIOS PROFESIONALES:

A los fines de la presente valoración, se denominan como tales y se incluyen en las ecuaciones de los costos, a las tareas profesionales que ameritan gastos en concepto de honorarios (desregulados por Ley), aportes (regulados por Colegios) y/u otras erogaciones varias, que se estiman para las distintas tipologías según sus hipótesis de cálculos y etapas del proceso de las obras.

GASTOS GENERALES: Honorarios

Dentro de GASTOS GENERALES se incluyen Gastos de HONORARIOS (Dirección, Administración y otras tareas de obra), los cuales representan en términos porcentuales genéricos aproximadamente un 5%.

²

VIVIENDA INDIVIDUAL EN DÚPLEX

COSTO FINAL: 2.212.255,27 $/M2

VARIACIÓN: 1,39% (***)

Vivienda Individual resuelta en Dúplex, implantada en un lote urbano convencional. Consta de Estar, Comedor, Cocina, Lavadero, Toilet y Cochera abierta (PB) y 2 Dormitorios, Baño y expansión (PA). Cubierta chapa hºgº color; con una superficie total de 88m

VIVIENDA INDIVIDUAL EN P. BAJA

COSTO FINAL: 2.216.305,29$/M2 VARIACIÓN: 1,42% (***)

Vivienda Individual resuelta en PB, implantada en un lote urbano convencional. Consta de 2 Dormitorios, Baño, Estar, Comedor, Cocina, Lavadero y Cochera abierta. Cubierta de Tejas y sector terraza plana; con una superficie total de 85m

VIVIENDA COLECTIVA EN TORRE

VARIACIÓN: 1,48% (***) 300m² DEPÓSITO/GALPÓN

COSTO FINAL: 2.030.987,33$/M2

Edificio en Altura para Viviendas Colectivas; implantado en un lote urbano con servicios. Consta de PB (Ingreso, Locales, Servicios y Cocheras); PA (10 Pisos 2 deptos. 2D y dependencias por piso) y Azotea (accesible, con áreas de servicios), con una superficie total de 2.260m2

COSTO FINAL: 1.165.536,30$/M2 VARIACIÓN: 1,70% (***)

Barducco - Mat.1606
Depósito/Galpón implantado en terreno ubicado en zona macro-urbana de la ciudad y consta de un galpón tipo parabólico

$1.650.865

El m2 de construcción en Mendoza tiene un piso de $1,2 millón. El precio de los materiales y su relación con los salarios promedio.

Sea por materiales o por salarios, el costo de la construcción en Mendoza no dejó de subir en 2025. Y arrancó el 2026 con la vara alta: de hecho, edificar un m2 exige contar con al menos 4 salarios mínimos, o hasta 1,5 si es un sueldo medio.

Es lo que surge al comparar ingresos con el resultado del relevamiento del Centro de Ingenieros de Mendoza para enero. Y que concluye que el valor unitario (por m2) de una vivienda económica, de 61 m2, ya se ubica en $1.253.281.

Claro que si la construcción se basa en materiales de mayor calidad y la superficie es superior (136 m2), hay que presupuestar la obra a partir de un precio más elevado: $1.650.865 por m2.

En cualquier caso, el costo actual refleja un incremento de 18,7% (con el 0,98% de diciembre), en un 2025 de altibajos y precios estables por momentos. Todo en medio de un panorama complejo de la construcción y con casi nulo crédito privado para ir por la casa propia.

Cuántos salarios se lleva un m2 de construcción

La conclusión es contundente. Con un SMVM (Salario Mínimo, Vital y Móvil) actual de $341.000, significa que se necesitan no menos de 3,7 para completar un metro cuadrado en Mendoza.

Por ende, habrá que contar con casi 226 salarios para terminar una casa pequeña. Y hasta 658 SMVM si la meta es una más grande, obviamente a esta altura del 2026 y sin

DICIEMBRE 2025

$1.253.281

es el costo del M2 de construcción de una vivienda económica de 61 M2

$1.650.865

es el costo del M2 de construcción de una vivienda de mediana calidad

contar con el efecto inflacionario de todo un año por delante.

Ahora bien, si se toma un salario privado promedio de $1,48 millón (según Índice Interbanking) rendirá más. Aunque para Mendoza la relación será de entre 1,5/2 por m2, dado que de acuerdo al Índice cerró el 2025 en unos $928 mil por mes.

Aunque son datos a noviembre pasado, no sólo muestran el desfasaje de ingresos respecto al resto del país sino con las otras provincias de Cuyo. Es que los sueldos privados en San Juan y San Luis entonces ya superaban el millón de pesos mensuales.

Costo de la construcción, 8.000% más caro en 9 años

Pero si miramos por espejo retrovisor la inflación llegamos a otra conclusión: más por materiales que por la mano de obra, el valor del m2 de construcción en Mendoza se encareció, en porcentaje, más de 4 dígitos en los últimos 9 años.

El cálculo surge al tomar su evolución desde enero de 2017, cuando comenzó el re-

levamiento del Centro de Ingenieros, hasta este primer mes del 2026. Concretamente, los $1,2 millón por m2 de costo actual es 8.195,60% más caro que 9 años atrás.

Todo pese a que el costo de la construcción terminó por debajo de la inflación el 2025.

Pero, volviendo al presente, ¿cuanto subieron los materiales el último año?

Desde Red Edificar, un pool de 11 empresas proveedoras de la construcción en Mendoza que elabora el IRE, su propio índice de evolución del costo de materiales, apuntaron una variación del 27,46% durante el 2025.

2026: costos más estables, presupuestos "quirúrgicos"

Para los responsables de la Red, el 2025 deja "ajustes sostenidos" en precios de materiales y un marco para el 2026: costos más estabilizados a corto plazo, con un arrastre anual que, por ahora, condiciona presupuestos y decisiones de inversión.

Es que el año pasado dejó dos meses negativos como mayo y junio, y un pico de 5,2% para la suba de precios que se registró en septiembre. Y se despidió con un 2,6% en diciembre.

"Es importante planificar y seguir de cerca la evolución mensual de precios. El IRE es una herramienta para ajustar estrategias comerciales, presupuestarias y de obra en un contexto que sigue siendo desafiante", indicaron desde Red Edificar.

Fuente: www.losandes.com.ar

VARIACIÓN DEL M2 DE CONSTRUCCIÓN

Montos y variación porcentual mensual del costo del m2 de construcción de los 4 modelos tipológicos de REVISTA CIFRAS

Según el IPEC, en el aglomerado Gran Santa Fe

En

Diciembre, el M2 de construcción registró nuevos aumentos

El costo de construir en Santa Fe y Rosario dejó una de las señales económicas más contundentes del 2025: los precios vinculados a esa actividad quedaron muy por debajo de la inflación. Según los datos oficiales del Instituto Provincial de Estadística y Censos (IPEC), edificar en ambas ciudades se encareció menos del 20% en todo el año, frente a una inflación provincial del 33%.

Aun así, Santa Fe continuó siendo levemente más cara que Rosario, tanto en el valor del metro cuadrado como en el presupuesto final de una vivienda tipo.

Santa Fe vs Rosario: cuánto costó construir en 2025

De acuerdo con el IPEC, el costo de construcción del metro cuadrado mostró una evolución similar, aunque en ambos casos muy por debajo del aumento general de precios.

» Santa Fe: +18,5% anual

» Rosario: +19,5% anual

» Inflación provincial 2025: 33%

En diciembre, mientras la inflación fue del 2,6%, los costos de construcción subieron:

» Santa Fe: +1,3%

» Rosario: +1,2%

El valor del metro cuadrado al cierre del año reflejó esa diferencia:

» Santa Fe: $857.805

» Gran Rosario: $851.568

Cuánto costó construir una casa en Santa Fe y Rosario

La desaceleración de los costos se volvió aún más visible cuando se mira un ejemplo concreto: una vivienda unifamiliar de 69,5 m².

» Santa Fe: $59.617.456.

» Rosario: $59.183.979.

La diferencia es de $433.477 a favor de Rosario.

Ambos valores incluyen IVA y materiales básicos, pero no contemplan el terreno.

En términos porcentuales, el costo de construir subió casi 15 puntos menos que la inflación, lo que alivió el impacto sobre quienes planificaron obras durante el año.

Qué componentes explicaron la suba de los costos

Durante 2025, la dinámica de los precios de la construcción estuvo marcada por una fuerte desaceleración, con comportamientos muy distintos entre rubros.

En el acumulado anual:

» Materiales: Santa Fe: +20,9%; Rosario: +22,8%;

» Mano de obra: +16%

» Gastos generales: Gran Santa Fe: +17,7%; Gran Rosario: +18,6%

La mano de obra fue el ancla principal de los costos, creciendo muy por debajo de la inflación.

COSTOS POR RUBRO

DESCRIPCIÓN UNIDAD MATERIALES EJECUCIÓN TOTAL

00 | HONORARIOS PROFESIONALES

Si bien los Honorarios Profesionales -por Ley- se encuentran desregulados, se sugiere considerar un 5% sobre el costo neto de Obra para estimar un Costo de Tareas Profesionales. El cálculo definitivo se hará según lo que rija en el Colegio Profesional correspondiente.*

01 | PRELIMINARES DE OBRA

Trabajos, tareas y provisiones

Cartel de Obra m2 $ 52.042,65 $ 49.622,55 $ 101.665,20

Cerco de Obra m $ 26.449,04 $ 18.237,44 $ 44.686,48

Limpieza inicial terreno, retiros grales. m2 $ 423,92 $ 3.695,25 $ 4.119,17

Nivelación y replanteo de obra m2 $ 127,18 $ 6.967,59 $ 7.094,77

Obrador, construcciones provisorias m2 $ 42.719,41 $ 129.914,25 $ 172.633,65

Demoliciones y Retiros

Contenedor, volquete 5m3 (alquiler) día $ 0,00 $ 94.014,98 $ 94.014,98

Demolición de contrapisos y otros solados m2 $ 0,00 $ 14.347,60 $ 14.347,60

Demolición estructuras de hormigón armado m3 $ 0,00 $

$

Demolición mamposterías ladrillos comunes m3 $ 0,00 $ 102.167,00 $ 102.167,00

Demolición mamposterías ladrillos huecos m2 $ 0,00 $ 17.628,72 $ 17.628,72

Picado de revoques m2 $ 0,00 $ 12.530,85 $ 12.530,85 Retiro de pisos/revestimientos m2 $ 0,00 $ 13.439,23 $ 13.439,23

02 | MOVIMIENTO DE TIERRA

Incluye mano de obra y/o maquinaria e insumos varios para la cava, acarreo, desparramos internos en la obra, apisonado por capas; carga en camión y/o volquete.

Desmonte; terraplenamientos y rellenos a máquina m3 $ 0,00 $ 33.648,72 $ 33.648,72

Desmonte; terraplenamientos y rellenos manual m3 $ 0,00 $ 28.913,87 $ 28.913,87

Excavación a máquina para subsuelo m3 $ 0,00 $ 41.565,22 $ 41.565,22

Excavación manual para bases de columnas m3

$ 0,00 $ 43.579,59 $ 43.579,59

Excavación manual para zapata de muros m3 $ 0,00 $ 32.410,58 $ 32.410,58

03 | ESTRUCTURAS

Hormigón armado

Incluye materiales, mano de obra, equipos para encofrado (con madera); corte, doblado y posicionado armaduras; elaboración hormigón en obra (volúmenes menores), llenado y posterior desencofrado.

Bases H°A° -H21/50kg m3 $ 314.980,55 $ 181.187,93 $ 496.168,48

Columnas H°A° H21/90 kg m3 $ 458.783,59 $ 366.526,42 $ 825.310,00

Encadenado H°A° H21/65 kg m3 $ 366.873,57 $ 364.036,01 $ 730.909,59

Escalera H°A° H21/65 kg m3 $ 392.561,08 $ 393.045,14 $ 785.606,22

Losa H°A° con viguetas y ladrillón cerámico 12cm m2 $ 42.065,35 $ 56.876,58 $ 98.941,93

Losa H°A° con viguetas y ladrillón poliestireno expandido 12cm m2 $ 52.543,46 $ 54.100,18 $ 106.643,64

Losa H°A° macizas H21/60 kg m3 $ 382.025,50 $ 360.836,93 $ 742.862,43

Tabiques H°A° H21/70 kg m3 $ 383.127,59 $ 524.613,58 $ 907.741,17

Tanques H°A° - H21/120 kg m3 $ 411.648,04 $ 573.695,44 $ 985.343,48

Vigas H°A° H21/120 kg m3 $ 562.276,39 $ 494.871,85 $ 1.057.148,24

Zapata corrida muros H° cascotes m3 $ 193.915,40 $ 52.272,43 $ 246.187,84

Zapata corrida muros H°A° m3 $ 270.405,98 $ 109.250,32 $ 379.656,30

Metálicas en taller

Incluye materiales, mano de obra, equipos para corte, soldadura y/u otros en Taller y montaje en obra; no incluye pintura ni flete.

Hierros redondos kg $ 3.401,91 $ 5.129,78 $ 8.531,69

Perfiles ángulo kg $ 9.865,54 $ 7.540,78 $ 17.406,31

Los valores aquí expresados son referenciales y corresponden a costos directos: MATERIALES + EJECUCIÓN (Mano Obra + Equipos), calculados como de producción industrial, utilizando rendimientos estándares, precios de materiales e insumos en general relevados por Revista Cifras en mostrador de comercios locales minoristas de la construcción; y con jornales de mano de obra según UOCRA. No incluyen costos indirectos (GG-Gastos Generales, Be-Beneficios, IVA).

DESCRIPCIÓN UNIDAD MATERIALES EJECUCIÓN TOTAL

Tejas francesas esmaltadas (color) sobre losa con aislación m2 $ 60.300,83 $ 21.163,72 $ 81.464,55

Tejas francesas esmaltadas (color), estructura madera sin cepillar con aislación

m2 $ 94.094,04 $ 32.826,11 $ 126.920,15

Tejas francesas esmaltadas (color), estructura madera vista con aislación m2 $ 114.578,49 $ 35.968,80 $ 150.547,30

Ladrillos comunes, cerámicos y bloques de hormigón y HCCA con mezclas húmedas.Técnicas y dosajes tradicionales

Bloques HCCA 10 x 25 x 50cm m2 $ 26.820,54 $

Bloques

Bloques

Ladrillo cerámico

Ladrillos comunes a la vista en elevación m3 $

Ladrillos comunes en cimientos m3 $ 148.975,33 $ 101.763,34 $

Ladrillos comunes en elevación m3 $ 151.236,27 $

Tabiquerías

Estructura de chapa galvanizada y placas. Construcción en seco con materiales y técnicas según el fabricante y el sistema.

Perfiles normales kg $ 8.504,77 $ 6.463,52 $ 14.968,30 04 | MAMPOSTERÍAS Y TABIQUERÍAS Mamposterías DESCRIPCIÓN UNIDAD MATERIALES EJECUCIÓN TOTAL

Tejas francesas esmaltadas sobre losa con aislación m2 $ 47.158,01 $ 20.255,34 $ 67.413,36

Tejas francesas esmaltadas, estructura madera sin cepillar con aislación m2 $ 81.208,24 $ 32.335,29 $ 113.543,53

Tejas francesas esmaltadas, estructura madera vista con aislación m2 $ 101.692,70 $ 35.477,98 $ 137.170,68

Tejas francesas natural sobre losa con aislación m2 $ 39.552,55 $ 19.837,79 $ 59.390,34

Tejas francesas natural, estructura madera sin cepillar con aislación m2 $ 73.774,13 $ 31.426,91 $ 105.201,04

Tejas francesas natural, estructura madera vista con aislación m2 $ 94.258,59 $ 34.569,61 $ 128.828,19

07 | REVOQUES

Azotado impermeable m2 $ 1.200,50 $ 8.243,71 $ 9.444,21

Azotado impermeable en muro doble m2 $ 1.162,15 $ 9.647,85 $ 10.810,00

Exterior a la cal común completo m2 $ 3.992,41 $ 21.801,06 $ 25.793,47

Exterior completo, terminación material de frente m2 $ 5.183,56 $ 23.719,55 $ 28.903,12

Fino a la cal m2 $ 1.413,25 $ 9.623,69 $ 11.036,94

Fino/Estucado yeso m2 $ 1.378,18 $ 13.700,72 $ 15.078,90

Grueso común m2 $ 1.394,31 $ 8.896,25 $ 10.290,56

Placa cementícia doble esp.12,5 cm exterior, con aislación m2 $ 22.040,34 $ 14.113,79 $ 36.154,13

Placa de yeso doble esp.12,5 cm, con aislación m2 $ 18.402,15 $ 11.608,48 $ 30.010,63

Placa de yeso resistente a la humedad esp. 9,5 cm m2 $ 20.960,05 $ 11.840,53 $ 32.800,59

Placa de yeso simple esp. 8,5 cm medio tabique interior m2 $ 8.318,81 $ 5.578,91 $ 13.897,72

Placa de yeso simple esp. 9,5 cm interior, con aislación m2 $ 13.095,10 $ 6.234,51 $ 19.329,61

Placa de yeso simple esp. 9,5 cm interior, sin aislación m2 $ 10.621,43 $ 5.985,31 $ 16.606,75

05 | AISLACIONES

Aislante acústico lana en rollo tipo Acustiver m2 $ 4.410,40 $ 3.951,44 $ 8.361,85

Aislante acústico panel fonoabsorbente tipo Fonac m2 $ 36.753,37 $ 4.541,89 $ 41.295,26

Cementícia doble horizontal en muros m2 $ 8.659,74 $ 5.450,27 $ 14.110,00

Cementícia doble vertical en muros m2 $ 6.152,32 $ 4.541,89 $ 10.694,21

Cementícia vertical con tabique panderete para subsuelo m2 $ 23.086,09 $ 23.075,74 $ 46.161,83

Lana de vidrio con cara aluminio 50 mm m2 $ 7.153,57 $ 1.846,06 $ 8.999,63 Membrana espuma polietileno 10 mm bajo techo m2 $ 9.767,56 $ 2.474,60 $ 12.242,16 Pintura asfáltica sobre paramentos m2 $ 2.245,02 $ 2.307,57 $ 4.552,59 Pintura impermeabilizante sobre paramentos m2 $ 4.514,15 $ 2.474,60 $ 6.988,75

06 | CUBIERTA

Chapas H°G°N°25 color sobre estructura de madera m2 $ 57.956,02 $ 21.163,72 $ 79.119,75

Chapas H°G°N°25 color sobre estructura metálica m2 $ 67.578,04 $ 23.962,11 $ 91.540,15

Chapas H°G°N°25 color sobre estructura mixta m2 $ 61.314,33 $ 23.742,34 $ 85.056,67

Chapas H°G°N°25 sobre estructura madera

Chapas H°G°N°25 sobre estructura metálica m2 $

$ 79.376,05

Chapas H°G°N°25 sobre estructura mixta m2 $ 48.390,70 $ 22.343,14 $ 70.733,84

Plana completa terminación azotea verde m2 $ 83.218,35 $

Plana completa terminación membrana geotextil

Impermeable de cemento m2 $ 10.057,80 $ 24.914,49 $ 34.972,29

Interior a la cal común completo m2 $ 2.594,81 $ 14.827,08 $ 17.421,89

Interior azotado y grueso b/ revestimientos m2 $ 2.888,23 $ 11.193,57 $ 14.081,80

Premezclado fino exterior (manual) m2 $ 2.268,88 $ 12.249,92 $ 14.518,80

Premezclado fino interior (manual) m2 $ 2.053,43 $ 10.556,23 $ 12.609,66

Premezclado grueso y fino interior (manual) m2 $ 21.610,71 $ 11.955,43 $ 33.566,13

Premezclado grueso y fino interior (proyectable) m2 $ 22.039,08 $ 10.138,67 $ 32.177,75

Premezclado impermeable, grueso y fino exterior (manual) m2 $ 24.647,58 $ 13.845,44 $ 38.493,02

Premezclado impermeable, grueso y fino exterior (proyectable) m2 $ 24.904,60 $ 11.076,35 $ 35.980,96

Toma de juntas de ladrillos vistos m2 $ 814,08 $ 19.984,31 $ 20.798,38

08 | CONTRAPISOS

Hormigón alivianado con poliestireno expandido e=6cm m2 $ 12.112,11 $ 11.244,83 $ 23.356,94

Hormigón alivianado con poliestireno expandido e=8cm m2 $ 14.292,29 $ 12.481,76 $ 26.774,05

Hormigón alivianado con poliestireno expandido e=20cm, para rellenos m2 $ 33.758,88 $ 15.903,56 $ 49.662,44

Hormigón alivianado elaborado H8 e=6cm m2 $ 10.154,92 $ 9.428,07 $ 19.582,99

Hormigón alivianado elaborado H8 e=8cm, para banquinas m2 $ 11.856,64 $ 9.845,63 $ 21.702,28

Hormigón armado e=12cm terminación a la llana m2 $ 35.611,89 $ 19.606,91 $ 55.218,80

Hormigón de cascotes e=8cm m2 $ 5.218,07 $ 10.607,49 $ 15.825,57

Hormigón de cascotes e=10cm m2 $ 8.282,79 $ 13.259,36 $ 21.542,15

Hormigón de cascotes e=12cm m2 $ 9.773,69 $ 14.717,89 $ 24.491,59

Mortero elaborado RDC (CUC=150kg/ m ) e=6 cm m2 $ 9.794,61 $ 8.175,40 $ 17.970,01

09 | CIELORRASOS

Hormigón visto (terminaciones) m2 $ 184,23 $ 7.579,50 $ 7.763,72

Madera machimbrada suspendido con estructura de madera m2 $ 25.401,83 $ 13.339,57 $ 38.741,39

Mortero a la cal aplicado bajo losa m2 $ 3.561,76 $ 20.891,61 $ 24.453,37

Placa de yeso común junta tomada con aislación m2 $ 13.437,44 $ 9.595,16 $ 23.032,59

Placa de yeso común junta tomada sin aislación m2 $ 11.981,66 $ 9.380,53 $ 21.362,20

Placa de yeso común para cajones, taparrollos m2 $ 12.540,01 $ 11.095,29 $ 23.635,30

Placa de yeso resistente a la humedad junta tomada m2 $ 14.825,08 $ 9.954,33 $ 24.779,41

13 | CARPINTERÍAS

15 | PINTURAS

Acrílica

Barniz para carpintería madera

Esmalte sintético para carpintería metálica m2 $ 15.454,92 $ 16.936,87 $ 32.391,79

Látex para muros exteriores m2 $ 6.606,38 $ 9.647,85 $ 16.254,24

Látex para muros interiores m2 $ 6.430,63 $ 8.248,66 $ 14.679,29

Látex para cielorraso m2 $ 4.810,31 $ 9.230,29 $ 14.040,61

16 | INSTALACIONES ELÉCTRICAS

Elementos de instalación

Incluye materiales, mano de obra y equipos para apertura canaletas/zanjas, corte y pegado/roscado y colocación/montaje cañería, piezas, artefactos y accesorios para la instalación completa y reglamentaria.

Artefacto de iluminación u $ 72.923,79 $ 20.344,33 $ 93.268,12

Boca de electricidad u $ 85.588,32 $ 35.465,49 $ 121.053,81

Boca de telefonía u $ 77.457,43 $ 31.918,94 $ 109.376,37

Boca de televisión u $ 72.750,07 $ 31.209,63 $ 103.959,70

Tablero de electricidad u $ 169.931,88 $ 47.287,32 $ 217.219,20

Toma de electricidad u $ 76.173,60 $ 31.564,29 $ 107.737,89

17 | INSTALACION SANITARIA

/ INCENDIO

Artefactos, Grifería y Accesorios

Incluye materiales (artefactos, griferías, accesorios), mano de obra y equipos para colocación/montaje de artefactos, piezas y accesorios para la instalación completa y reglamentaria. Artefactos loza blanca y Grifería monocomando, calidad media.

Accesorios de baño loza blanca (9 pzas.) jgo $ 288.022,03 $ 59.387,93 $ 347.409,96

Bañera metálica enlozada blanca con grifería u $ 533.957,65 $ 88.249,89 $ 622.207,54

Bidet loza blanca con grifería u $ 372.628,54 $ 94.561,65 $ 467.190,19

Inodoro pedestal loza blanca incluye depósito y asiento u $ 413.072,09 $ 93.712,43 $ 506.784,52

Lavatorio loza blanca con grifería u $ 337.614,60 $ 65.986,59 $ 403.601,19

Bacha de cocina acero inoxidable con grifería u $ 396.928,46 $ 65.998,06 $ 462.926,52

Pileta de lavar loza blanca con grifería u $ 328.397,26 $ 60.133,87 $ 388.531,12

Agua e Incendio

Incluye materiales, mano de obra y equipos para apertura canaletas/zanjas, corte y pegado/roscado y colocación/montaje cañería, piezas especiales y accesorios para la instalación completa y reglamentaria.

Boca de incendio u $ 912.930,33 $ 185.819,73 $ 1.098.750,06

Bomba centrífuga 1/2 HP u $ 311.674,86 $ 41.560,08 $ 353.234,94

Canilla de servicio Ø 13 mm con pico manguera u $ 28.749,52 $ 9.043,03 $ 37.792,55

Canilla de servicio Ø 13 mm con pico manguera en nicho acero inoxidable u $ 70.723,82 $ 11.613,64 $ 82.337,46

Cañería PP TF Ø 13 mm m $ 9.359,01 $ 6.598,66 $ 15.957,67

Cañería PP TF Ø 19 mm m $ 11.672,47 $ 6.862,61 $

Incluye materiales, mano de obra y equipos para apertura canaletas/zanjas, corte y pegado/roscado y colocación/montaje cañería, piezas especiales y accesorios para la instalación completa y reglamentaria. Boca de Acceso de PVC u $ 71.132,51 $

$

Tanque de agua polietileno tricapa 1100 lt u $ 362.537,47 $ 43.952,81 $ 406.490,28

Tanque de agua polietileno tricapa 2750 lt u $ 468.509,96 $ 57.150,12 $ 525.660,08

Artefactos

Incluye materiales (artefactos, accesorios), mano de obra y equipos para colocación/montaje artefactos, piezas y accesorios para la instalación completa y reglamentaria. Artefactos aprobados, calidad media. Calefactor

Cañerías y Accesorios

Incluye materiales, mano de obra y equipos para apertura canaletas/zanjas, corte y pegado/roscado y colocación/montaje cañería, piezas especiales y accesorios para la instalación completa y reglamentaria. Cañería

Cañería EPOXI Ø 025

Cañería EPOXI Ø 050 mm m $ 12.316,67

$ 13.329,15 $ 33.258,88

19 | EQUIPAMIENTO

Amoblamiento fijo: bajo mesada y alacena (incluye mesada granito) m2 $ 1.246.016,70 $ 183.014,66

Amoblamiento fijo: puertas de placares m2 $ 152.108,11 $ 53.262,08 $ 205.370,19

Amoblamiento fijo: puertas e interiores de placares m2 $ 228.846,65 $ 64.441,79

20 | VARIOS

Ayuda de gremio

Indicador de la variación del costo de un edificio tipo en Capital Federal, con fecha de publicación el día 21/01/2026. (*) Datos provisorios

COSTO DE CONSTRUCCIÓN 18.776,50 1,30% DIC2025* MATERIALES 21.335,30 1,30% MANO DE OBRA 15.026,20 1,30% COSTO DE CONSTRUCCIÓN 18.534,90 2,00% NOV2025* MATERIALES 21.055,90 1,50%

COSTO DE CONSTRUCCIÓN 16.939,50 1,80% JUL 2025 MATERIALES 19.141,70 1,70%

COSTO DE CONSTRUCCIÓN 16.643,40 0,70% JUN 2025 MATERIALES

VARIACIÓN DE COSTO DE CONSTRUCCIÓN RESPECTO DEL MES ANTERIOR

1,30 (índice 18.776,50)

VARIACIÓN DE MATERIALES

RESPECTO DEL MES ANTERIOR 1,30 (índice 21.335,30)

VARIACIÓN DE MANO DE OBRA

RESPECTO DEL MES ANTERIOR 1,30 (índice 15.026,20)

COSTO DE CONSTRUCCIÓN 16.253,50 1,60% ABR 2025 MATERIALES 18.640,10 2,90% MANO DE OBRA 12.755,30 -1,00%

Nota: el indicador de la variación de la mano de obra, producto del relevamiento por encuesta entre empresas que realizan obras en CABA similares a la obra tipo adoptada como modelo, incorpora los valores establecidos en el acuerdo salarial UOCRA homologado por DI–2025–2639-APN-DNRYRT#MCH del 20 de noviembre de 2025 y refleja el monto que hubiera recibido el trabajador durante diciembre, de trabajar normalmente, más los costos empresarios derivados de esa prestación.

www.cifrasonline.com.ar

SEGÚN EL COLEGIO DE ARQUITECTOS DISTRITO 9

El costo del M2 superó los $1.600.000

El colegio lanzó una metodología de cálculo según la cual en octubre el metro cuadrado superó los $1,620 millones.

El ICC9 es una herramienta técnica inédita, desarrollada por el CAPBA Distrito IX, que refleja los costos de construcción y las variaciones del mercado en nuestra región

El Índice del Costo de la Construcción y Variación de Precios (ICC_9) correspondiente a Diciembre de 2025 registró una suba del 1,4 % respecto al mes anterior, en el sector de VIVIENDAS

Este resultado se explica principalmente por:

> Aumento del 1,2% en el capítulo Mano de Obra.

> Aumento del 1,7% en Materiales.

Con esta variación, el costo de construcción en el Distrito IX se ubicó en $1.621.749,89 por metro cuadrado, sin incluir IVA, honorarios profesionales, costo del terreno, costos

jurídicos ni utilidades de empresa.

El Índice General (base 100 = mayo 2025) se situó en 110,9 reflejando la evolución acumulada desde la implementación de esta medición.

Modelo de referencia

El cálculo se realiza tomando como base el proyecto de una vivienda unifamiliar de tipología estándar, de una planta y con una superficie cubierta aproximada de 214 m², considerando sistemas constructivos tradicionales.

Este modelo permite establecer un parámetro homogéneo de comparación mensual y anual para el seguimiento de la variación de costos en la construcción.

Para más información, visita: https://arq9.com. ar/icc-9

HORMIGÓN ELABORADO

Precios según tipo de Hormigón y servicios en obra.

Cuestiones útiles a tener en cuenta: el hormigón puede ser entregado en obra con servicio de BOMBA PLUMA o DESCARGA DIRECTA.

Los hormigones que habitualmente se utilizan en nuestro medio son:

» H 4/8: Para rellenos de zapatas corridas o simples, contrapisos, bases simples. (Estos son hormigones no bombeables).

» H 13/15: Para cimientos viviendas primera planta, cocheras, pisos, veredas, etc. (Estos son hormigones no bombeables).

» H 17/20/21: Para estructuras simples, viviendas hasta tres plantas, losas armadas, vigas, piletas, etc. (Estos son hormigones de descarga directa o bombeables).

» H 25/30: Para estructuras de complejidad media, grandes vigas , estacionamientos y depósitos. (Estos son hormigones de descarga directa o bombeables).

» H 35/mas: Hormigones autocompactantes, de fraguado rápido, alta resistencia, habilitación rápida, etc.

» RDC 50/350: Hormigones para bases, nivelaciones y limpieza.

Aclaración: Compra mínima 4m3 Los precios son con IVA incluido.

COMPOSICIÓN COSTOS: A + B

Muro elevación ladrillos comunes 30 cm de espesor, con revoques exterior e Interior a la cal comunes. Cimentación que incluye excavación en suelo normal, zapata sin opciones, mampostería de cimientos y capas aisladoras; sin detalle.

CIMENTACIÓN 1

CONSTRUCTIVAS Y SUS COSTOS

2

Los valores aquí expresados son referenciales y corresponden a costos directos: MATERIALES + EJECUCIÓN (Mano de Obra + Equipos), calculados como de producción industrial, utilizando rendimientos estándares, precios de materiales e insumos en general relevados por Revista Cifras en mostrador de comercios locales minoristas de la construcción; y con jornales de mano de obra según UOCRA. No incluyen costos indirectos (GG-Gastos Generales, Be-Beneficios, IVA).

LOSA DE HORMIGÓN ARMADO CONTERMINACIÓN BALDOSA CERÁMICA O DOBLADO DE LADRILLOS

LOSA DE HORMIGÓN ARMADO CON MEMBRANA GEOTEXTIL O ASFÁLTICA C/ALUMINIO

LOSA DE HORMIGÓN ARMADO CON

CHAPA H°G° S/ESTRUCTURA METÁLICA CHAPA

MERCURIO TE ACERCA LO MEJOR DE ALBA

Empieza el año y la sensación de un nuevo comenzar se percibe en nuestras casas. Inicia la temporada oficial de vacaciones, ya sea para los que se van de viaje a algún lado o para los que permanecen en sus hogares. Sea cual sea el formato de descanso que tengamos, aparece un deseo generalizado de sentirse de vacaciones todo el año. Afrontar rutinas, responsabilidades y cotidianidad con una mirada reparadora: el hogar como zona de confort, cuidado, refugio.

El color cumple una misión fundamental para provocar sensaciones, y más aún cuando la búsqueda es el bienestar. Este 2026 los tonos azules, tierra y arena serán los aliados fundamentales, frente al sentir social generalizado que se vive a nivel mundial: “tu casa debe bailar al compás de tu alma”. Y si el alma pide vacaciones, nada mejor que provocarlas dentro del espacio en el que vivimos todos los días.

¿CÓMO

GENERAR EL EFECTO VACACIONES?

Tonos que remitan al mar o a la montaña: en grandes o pequeñas dosis los azules, celestes, arena y tierra nos remiten a los escenarios que nos vinculan a momentos de paz y relax. Incorporarlos en los ambientes ayudarán a generar esta sensación de desconexión. No es casual que el color tendencia 2026 sea el Azul Puro.

Texturas naturales: aquellas fibras y materiales que nos recuerden los contextos en los que vivimos en modo “sin horarios”

son clave para esta búsqueda. En cuanto a la pintura, aquí podemos incorporar efectos especiales en las paredes. Por ejemplo, la terminación Velvet de Alba Design, remite a una sensación aterciopelada, mientras que Nuage, genera un efecto nube. Ambas crean paredes que nos sumergen en espacios descontracturados.

Líneas curvas: el efecto rounded es propio de la naturaleza, donde la irregularidad y lo orgánico manda. Muebles y paredes se apropian de este formato para abrazar a las personas que ingresan a los ambientes.

Murales: la literalidad del paisaje, nos trasportará directamente a esos espacios en los que tuvimos esos instantes de felicidad plena, absoluta, sin preocupaciones. Y ¿por qué no hacer de esos instantes momentos diarios? Con un mural que lleve esa foto mental a casa todos los días, podemos vivir en modo vacaciones, al menos un rato, todos los días. Sumarlos en las galerías puede ser clave.

“El color es el recurso más simple y transformador que podemos usar para generar sensaciones en casa. Y definitivamente este 2026 frente al sentir social de que nuestra hogar baile al compás de nuestra alma, los tonos serán clave para hacer del hogar el espacio en el que queremos estar, nuestro refugio” destacó la Arq. Virginia Domínguez, especialista en color de Alba Pinturas.

Fuente: información de prensa, Alba Pinturas.

Los azules, arena y tierra, los tonos que este 2026 marcarán el camino

M2 DE CONSTRUCCIÓN EN ARGENTINA

MAR DEL PLATA

Viv. unifamiliar -

BUENOS AIRES

Viv. unifamiliar - 0,99% $2.248.285 - 0,85% $2.288.232 - 6,8% $2.445.553 Casa de 3 dormitorios desarrollados en una planta

OSCAR CASABIANCA - (Precios con flete incluÍdo)

Tijera elevadora altura de trabajo 14 m - x día con bonificación de 1 día x alquilar semana completa

RICARDO MALLOZZI SA

Contenedor estandar (de 5 m3 de capacidad)

PRECIOS DE MATERIALES

Los mismos han sido relevados al 29/01/26 en «mostrador», por unidad y con IVA incluido (21%), salvo que se indique expresamente lo contrario. Por tal motivo, deben tomarse como valores meramente orientativos que pueden presentar variaciones de acuerdo a la oferta y demanda del mercado.

Podés descargar todos los costos desde:

cifrasonline.com.ar/Costos/todosloscostos

Acelerante de fragüe Adisol 3 x 5 kg $ 17.200,00 Ligante Adisol Látex x 2 kg $ 24.800,00

Ligante Adisol Látex x 5 kg $ 54.600,00

Ligante Adisol Látex x 20 kg $ 190.200,00

SIKA - Mariutti

Acelerante de endurecimiento Sikacrete x 20 kg $ 59.600,00

Acelerante de fragüe Sika 3 x 20 kg $ 63.100,00

Hidrófugo Sika 1 20 kg $ 34.900,00

Ligante Sikacim x 20 lt $ 124.100,00

Membrana líquida blanca Sikalastic x 20 kg $ 223.600,00

AISLANTES TÉRMICOS E IMPERMEABILIZANTES

EMAPI - Emcisa

Membrana asfáltica con terminación de aluminio flexible

W 400 35 kg 10 m2 $ 64.600,00

Membrana asfáltica con terminación de aluminio flexible

W 450 40 kg 10 m2 $ 72.700,00

INROT - Centro de la construcción en seco

Lana de vidrio 50 mm con papel aluminio 21,60 m $ 4.758,91

Lana de vidrio con papel Kraft 50 mm $ 5.251,42

PLAVICON Emcisa

Plavicon Acrílico Semimate p/ladrillo y teja x 20 lt $ 156.800,00

Plavicon Fibrado x 25 kg $ 165.800,00

Plavicon Frente x 25 kg $ 142.700,00

Plavicon Interior x 20 lt $ 132.300,00

Plavicon Muros x 25 kg $ 175.700,00

Plavicon Recovril (texturado) x 25 kg $ 114.300,00

Plavicon Transparente x 20 lt $ 162.500,00

QUIMTEX - Revestimientos Santa Fe

QUIMTEX impermeable para techos-varios colores x 20 lt $ 115.200,00

QUIMTEX impermeabilizante de muros blanco x 20 lt $ 138.900,00

SIKA - Mariutti

Sikalastic 560 Blanco 20 kg $ 223.600,00 SUPERFLEX- Emcisa

Emulsión asfáltica base acuosa - caja 18 kg $ 34.900,00

Membrana asfáltica SUPERFLEX con terminación de aluminio común (variante enconómica de Emapi) 35 kg $ 55.900,00

Alacena de 40 (h=80) 1 puerta de abrir $ 109.782,00

de 45 (h=90) cubre calefón (sin piso, techo, estantes) 1 puerta de abrir $ 148.883,00

Alacena de 50 (h=80) 1 puerta de abrir $ 119.370,00 Alacena de 50 (h=90) cubre calefón (sin piso, techo, estantes) 1 puerta de abrir $ 157.722,00

Alacena de 60 (h=65) 1 puerta de abrir (sobre purificador clásico) $ 131.205,00

Alacena de 60 (h=80) 1 puerta de abrir $ 127.625,00

Alacena de 70 (h=80) 2 puertas de abrir $ 157.722,00

Alacena de 80 (h=80) 2 puertas de abrir $ 170.426,00

Alacena de 90 (h=80) 2 puertas de abrir $ 180.718,00

Alacena de 100 (h=80) 2 puertas de abrir $ 191.010,00

Alacena de 110 (h=80) 2 puertas de abrir $ 201.303,00

Alacena de 120 (h=80) 2 puertas de abrir $ 210.905,00

Alacena esquinera recta de 35 x 70 (h=80) $ 141.483,00

Bajo esquinero recto de 60 x 100 (h=80) 1 puerta profundidad 57,5 cm + puerta $ 198.771,00

Bajo mesada de 40 (h=80) 1 puerta de abrir profundidad

57,5 cm + puerta $ 119.370,00

Bajo mesada de 50 (h=80) 1 puerta de abrir - profundidad

57,5 cm + puerta $ 129.662,00

Bajo mesada de 60 (h=80) 1 puerta de abrir - profundidad

57,5 cm + puerta $ 139.610,00

Bajo mesada de 70 (h=80) 2 puertas de abrir profundidad

57,5 cm + puerta $ 171.505,00

Bajo mesada de 80 (h=80) 2 puertas de abrir profundidad

57,5 cm + puerta $ 185.407,00

Bajo mesada de 90 (h=80) 2 puertas de abrir profundidad

$ 196.898,00

57,5 cm + puerta

Bajo mesada de 100 (h=80) 2 puertas de abrir profundidad 57,5 cm + puerta $ 208.389,00

Bajo mesada de 110 (h=80) 2 puertas de abrir profundidad 57,5 cm + puerta $ 219.580,00

Bajo mesada de 120 (h=80) 2 puertas de abrir profundidad 57,5 cm + puerta $ 230.081,00

Cajonera 40 3 cajones (16+28+36 cm) (h=80 cm)- con sistema PREMOTION $ 451.609,00

Cajonera 50 3 cajones (16+28+36 cm) (h=80 cm)- con sistema PREMOTION $ 458.515,00 ARENAS - PIEDRAS - TRITURADOS Aremat

Arena fina puesta en obra x m $ 45.000,00

Piedra granítica 1:2 puesta en obra x m $ 135.670,00

ASCENSORES | Ascensores Bertossi (Precios sin IVA)

Puerta/Cabina chapa pint. 1100x1300 8 paradas $ 43.777.700,00

Puerta/Cabina chapa pint. 1500x1500 8 paradas $ 41.817.000,00

Puerta chapa pint./Cabina A.Inox.110x130 8 paradas $ 45.110.000,00

Puerta chapa pint./Cabina A.Inox.1500x1500 8 paradas $ 51.330.000,00

AUTOMATIZACIÓN DE PORTONES Prusia

Capea $ 8.032,51

ARTEFACTOS SANITARIOS

Asiento Daccord línea italiana herraje metálico $ 47.736,19

Bañera Sacha Roca 140/70 $ 286.200,17

Bidet Capea $ 88.975,27

Depósito normal entrada derecha plástico $ 24.317,03

Inodoro corto Capea $ 87.087,11

Lavatorio chico Capea $ 42.684,53

Pileta de lavar de loza 507 x 345 Capea $ 79.809,56

GRIFERÍAS

FV Canilla para riego FV 436-13-c cromada $ 16.422,65

Grifería de cocina de embutir FV Allegro 0403/15- cromada $ 130.865,67

Grifería de ducha FV Allegro 0103/15, cromada $ 171.520,89

Grifería de ducha FV Newport $ 146.788,33

Grifería de lavatorio FV Allegro 207/15 cromada $ 151.646,24

Grifería de pared pico móvil FV Allegro 420/15 $ 4.116,68

INSTALACIONES

Adaptador Tanque 1 Mh Pp $ 3.225,68

BoyaTelgopor Flotante p/tanque 1/2 $ 3.735,53

Cámara Insp 60x60x50 Cemento $ 88.143,65

Caño Cámara Mh Pvc 110 $ 4.405,51

Caño PVC 100 x 4 m Reforzado $ 11.862,16

Caño PVC Clásico 110 Tigre 2,8 $ 19.739,18

Caño PVC Clásico 40x4x3.2 $ 7.555,91

Caño PVC Clásico 50x 4 X 3.2 $ 9.767,88

Caño PVC Clásico 63x 4 X3.2 $ 12.455,26

Embudo vertical 110x3.2 R PVC $ 4.134,21

Flexible cromado 1/2x 25 Chicote $ 182.011,45

Flotante para tanque 1/2 RD $ 10.474,48

Llave de Paso 13 Hh hierro 471b $ 11.973,43

Llave de Paso Bronce Hh19 H 471b $ 15.352,24

Pileta de piso multipropósito 15 x 15 PVC $ 5.364,56

Sifón simple con fuelle Cirino $ 4.146,92

Sopapa 40 Plastic Monarca $ 1.488,95 Tanque Tricapa Rotoplast 1.100 lt $ 240.604,90

Tubo 1/2 K6 Grado 2 x

BIODIGESTORES

SEGÚN LA MUNICIPALIDAD DE RECONQUISTA

En enero 2026, los precios de los materiales de construcción reflejan un incremento moderado

La Municipalidad de Reconquista informa los resultados del relevamiento correspondiente al mes de enero de 2026, en relación con los precios de los principales materiales de construcción.

El informe evidencia un escenario de variaciones mayormente positivas en los rubros relevados, con incrementos de distinta magnitud que reflejan la dinámica propia del sector al inicio del año, junto con un ajuste puntual a la baja.

En este período, el hormigón registró la suba más significativa, con un incremento del 6,45%, seguido por las piedras y el arena, que presentaron una variación positiva del 6,23%, consolidándose ambos como insumos de fuerte incidencia en los costos generales de obra.

Por su parte, los ladrillos mostraron un aumento del 1,54%; mientras que las chapas y cubiertas tuvieron un ajuste del 1,39%,

manteniéndose dentro de una tendencia de incrementos moderados. En contraste, los hierros y perfiles registraron una variación negativa del -1,46%, constituyendo el único rubro con descenso de precios durante el mes de enero.

En conjunto, los datos correspondientes al primer mes de este año reflejan un mercado con comportamientos diferenciados según el insumo, combinando subas relevantes en materiales estructurales con una baja puntual, lo que permite un análisis más exhaustivo de la evolución de los costos en el sector de la construcción.

La Municipalidad de Reconquista invita a profesionales del sector y al público en general a consultar el detalle completo del informe técnico, con los cuadros comparativos de precios, disponible a través del enlace correspondiente.

Fuente: Municipalidad de Reconquista

Tendencias en baños 2026: calidad, diseño y tecnología

El cuarto de baño evoluciona hacia un espacio de bienestar donde diseño, tecnología y sustentabilidad conviven. Estas tendencias en baños 2026 muestran cómo el color, la innovación y el uso eficiente de los recursos transforman la experiencia diaria.

El baño como espacio de bienestar y diseño

Las tendencias en baños confirman un cambio claro: el baño deja de ser solo funcional para convertirse en un ambiente pensado para el confort, el uso cotidiano y la identidad del hogar. Ferrum acompaña esta evolución con soluciones que integran diseño contemporáneo, tecnología aplicada e innovación sustentable, adaptadas tanto a viviendas como a obras nuevas y remodelaciones.

El color como identidad del espacio

En las tendencias en baños actuales, el color cumple un rol central. El blanco clásico da paso a tonos que aportan carácter y personalidad.

La línea Fontana incorpora Verde Oliva, un tono que conecta con lo natural, y Negro Satinado, asociado a una estética sobria y minimalista. En este contexto, el Total Black se consolida como una elección frecuente en proyectos de arquitectura e interiorismo, redefiniendo la forma de entender el lujo desde la simpleza.

Tecnología aplicada al confort y la higiene

La innovación tecnológica es otra de las tendencias en baños 2026. El Milano Smart Tec, primer inodoro inteligente de Ferrum, incorpora funciones que facilitan el uso diario.

Entre sus características se destacan la apertura y cierre automático, el sistema bidet con secado y temperatura regulable y la desinfección UV, que eleva el estándar de higiene. Estas soluciones simplifican rutinas y aportan mayor confort, especialmente en hogares que priorizan tecnología y bienestar.

Sustentabilidad y uso eficiente del agua

La sustentabilidad en baños se vuelve un eje clave. Sistemas como Rimless, presentes en la línea Limay, permiten una limpieza más eficiente utilizando menos agua.

A esto se suman los depósitos de doble descarga, que reducen el consumo a 4,5 litros, una solución práctica y confiable para el uso cotidiano. Ferrum consolida así un camino sostenido hacia el cuidado del agua, un recurso natural esencial.

Para más información sobre características técnicas y medidas visitá www.ferrum.com

BAÑO ESTÁNDAR

ARQ. LUCIANA PARERA

Mat. CPSF N° 6599

+54 9 3425 43-6011

Baño: 4.00 m2

Se consideran 3 niveles de terminaciones para un baño de 4.00 m2 (1.60m x 2.50m). No se contemplan trabajos preliminares de demoliciones ni honorarios profesionales.

BAÑO PREMIUM

PARA LA REGIÓN LITORAL-CENTRO DE LA REPÚBLICA ARGENTINA

Baño: 4.00 m2

01 | BAÑO ESTÁNDAR

Incluye materiales, mano de obra y equipos para la colocación/montaje de artefactos, piezas y accesorios para la instalación completa y reglamentaria. Referencia artefactos y grifería de COLOMÉ.

Intalación sanitaria

Accesorios baño línea ALIZE de VASSER: toallero corto, toallero largo, percha, porta cepillo, porta rollo y jabonera

Bacha línea MAHLER: 1 agujero, 0.60 m con griferia monocomando línea KASSIA VASSER

Bidet MÓNACO con griferia monocomando KASSIA VASSER

Grifería para ducha monocomando línea KASSIA VASSER

Inodoro con depósito línea MÓNACO

Plomería: se consideran 3 m de cañería y accesorios. Pileta de patio y llaves de paso

Mobiliario

Mueble para bacha MAHLER 0.60 m, suspendido línea TEKA (de COLOMÉ)

Instalación eléctrica

Incluye materiales, mano de obra

02 | BAÑO SUPERIOR

Incluye materiales, mano de obra y equipos para la colocación/montaje de artefactos, piezas y accesorios para la instalación completa y reglamentaria. Referencia artefactos y grifería de COLOMÉ.

Intalación sanitaria

Accesorios para baño línea CYRANO de VASSER: toallero corto, toallero largo, percha, porta cepillo, porta rollo y jabonera

Bidet línea DAMA de SENSO con grifería monocomando línea KASSIA de VASSER 1 u

Grifería para ducha monocomando, de embutir, línea LYRA de VASSER 1 u $

Inodoro con depósito, línea DAMA de SENSO 1 u $

Mampara (vidrio templado 10mm) 0.60 m x 2,10 m

Mesada loza 0.60 m línea BUONA con grifería monocomando línea LYRA de VASSER 1 u $

Plomería: se consideran 3 m de cañería y accesorios. Pileta de patio y llaves de paso 1 u

Mobiliario

Vanitory 0.60 m Melamina silver color wengue

Instalación eléctrica

Incluye materiales, mano de obra y equipos de apertura canaletas/zanjas, corte y pegado/roscado y colocación/montaje cañería, piezas, artefactos y accesorios para la instalación

Artefacto de luz plafón LED + Spots embutidos

Tomas y bocas de electricidad

Pisos

Porcelánico marca SWEDEN 20 cm x 120 cm, Natural

Revestimientos

Porcelanato ZEN gris 61 cm x 61 cm

Cielorraso

Placas de yeso común junta tomada con aislación

Decoración

Espejo cristal 6 mm de espesor de 1.00 m x 1.00 m

03 | BAÑO PREMIUM

Incluye materiales, mano de obra y equipos para la colocación/montaje de artefactos, piezas y accesorios para la instalación completa y reglamentaria. Referencia artefactos y grifería de COLOMÉ. Intalación sanitaria

Accesorios baño ZAFIRO VASSER - Toallero corto/toallero largo/percha/porta cepillo/porta rollo/jabonera 1

Bañera clásica BAGNARA 150 cm x 70 cm con grifería Emb. LIBBY 1 u $

Bidet INSPIRA c/ grifería LIBBY

Inodoro c/depósito INSPIRA

Mampara (vidrio templado 10mm) 0.80 m x 2.10 m

Mesada loza 0.60 m BUONA c/griferia LIBBY

Plomería: se consideran 3 m de cañería y accesorios. Pileta de patio y llaves de paso

$

$

$

Pisos Porcelanato

Signature se renueva y se expande, incorporando nuevos colores, proporciones y piezas que amplían su lenguaje y fortalecen su identidad.

Se trata de una evolución pensada como un sistema integral, donde diseño, innovación y precisión técnica dialogan entre sí y acompañan las nuevas formas de habitar. Con nuevas proporciones y desarrollos concebidos para convivir en armonía, la familia crece y se consolida como una propuesta capaz de adaptarse a distintos espacios sin perder identidad.

El Rose Gold se incorpora como un nuevo acento dentro de nuestra paleta Signature, sumando una presencia cálida y sofisticada que amplía las posibilidades de diseño. A su vez, la nueva medida Enkel 45 completa la familia siendo la menor de las dimensiones en la gama de productos Enkel, respondiendo a la necesidad de aportar versatilidad y responder a configuraciones más compactas sin resignar carácter ni solidez.

Fabricadas en acero inoxidable con tecnología Nano PVD y diseño monovolumen, las piezas Signature conforman un sistema equilibrado, robusto y preciso, donde cada detalle está pensado para integrarse con naturalidad.

La familia se expande también hacia nuevas expresiones formales. Aura y Axis proponen dos miradas complementarias: Aura, de geometría circular y terminación Rose Gold Nano PVD, aporta una estética orgánica y envolvente, mientras que Axis, de trazo rectangular y terminación Gun Black Nano PVD, expresa un lenguaje más gráfico y arquitectónico. Dos identidades distintas que conviven bajo una misma lógica de diseño, materialidad y calidad constructiva. Diseñadas para apoyarse sobre la mesada, su escala y presencia aportan carácter y coherencia visual, integrándose con naturalidad en espacios contemporáneos.

Como parte de esta evolución, presentamos la grifería Glow, que acompaña la propuesta con un diseño de líneas puras y proporciones equilibradas. Su caño alto y extensible permite dirigir el agua con naturalidad, mientras que sus dos modalidades de chorro —suave y envolvente o más intenso y concentrado— se adaptan a los distintos gestos del uso cotidiano. Disponible en tres terminaciones, Glow dialoga con piletas y superficies, reforzando una experiencia donde diseño, materialidad y funcionalidad avanzan en armonía.

Con esta nueva ampliación de la familia Signature y la incorporación de la grifería Glow, reafirmamos nuestro compromiso con el diseño contemporáneo, la innovación aplicada y la excelencia en cada proceso, ofreciendo soluciones que dialogan con la arquitectura y acompañan las nuevas maneras de vivir los espacios.

COCINA ESTÁNDAR

ARQ. LUCIANA PARERA

Mat. CPSF N° 6599 +54 9 3425 43-6011

01 COCINA ESTÁNDAR

Intalación sanitaria

Incluye materiales, mano de obra y equipos para la colocación/montaje de artefactos, piezas y accesorios para la instalación completa y reglamentaria. Referencia artefactos y

Pileta de cocina simple Z52 52 cm x 32 cm x 13 cm Johnson con grifería para mesada monocomando TROYA VASSER

Plomería: Se consideran 3 m de cañería y accesorios. Pileta de patio y llaves de paso

Instalación de gas

Incluye materiales, mano de obra, piezas y accesorios para la instalación completa y reglamentaria. Se consideran 3 m de cañería y accesorios, y llaves de paso

Instalación eléctrica

Incluye materiales, mano de obra y equipos de apertura canaletas/zanjas, corte y pegado/roscado y colocación/montaje

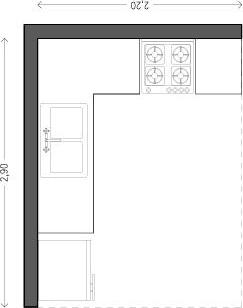
Cocina: 6.40 m2

Se consideran 3 niveles de terminaciones para una cocina de 6.40m2 (2.90m x 2.20m). No se contemplan trabajos preliminares de demoliciones ni honorarios profesionales.

COCINA PREMIUM

Cocina: 6.40 m2

02 COCINA SUPERIOR Intalación sanitaria

Incluye materiales, mano de obra y equipos para la colocación/montaje de artefactos, piezas y accesorios para la instalación completa y reglamentaria. Referencia artefactos y grifería de COLOMÉ. Pileta doble C28 Jonhson 60 cm x 34 cm x 15 cm con grifería para mesada monocomando LYRA VASSER 1 u

Plomería: Se consideran 3 m de cañería y accesorios. Pileta de patio y llaves de paso 1 u

Instalación de gas

Incluye materiales, mano de obra, piezas y accesorios para la instalación completa y reglamentaria.

Se consideran 3 m de cañería y accesorios, y llaves de paso 1 u

Instalación eléctrica

Incluye materiales, mano de obra y equipos de apertura canaletas/zanjas, corte y pegado/roscado y colocación/montaje cañería, piezas, artefactos y accesorios para la instalación

Artefacto: spot semiembutido AR111 móvil + spot embutir metal

Tomas y bocas de electricidad

Pisos

Porcelánico marca SWEDEN 20 cm x 120 cm, natural

Revestimientos

Porcelanato ZEN gris 61 cm x 61 cm

Mobiliario (Simil madera melamina- Perfil Gola)

Alacena 0,80 m sobre heladera - 2 puertas

Alacenas horizontales de 0,80 m

Alacena sobre repisa porta horno microondas

Bajo cajonero 0,50 m 3 cajones con sistema Premotion

Bajo esquinero recto 1 m 1 puerta

Bajo mesada 0,50 m (h:0.80m) - 1 puerta

Bajo pileta de 1 m (h:0.80m) 2 puertas

Granito negro brasil 2 cm

Repisa porta horno microondas 0,50 m 0,60 m

Cielorraso

Placas de yeso común junta tomada con aislación

Placas de yeso común para cajón sobre mesada - 0.60m profundidad

03 COCINA PREMIUM

Intalación sanitaria

Incluye materiales, mano de obra y equipos para la colocación/montaje de artefactos, piezas y accesorios para la instalación completa y reglamentaria. Referencia artefactos y grifería de COLOMÉ.

Pileta simple SI 55A Jonhson 55,6 cm x 42,2cm x 20 cm con grifería para mesada monocomando ZAFIRO VASSER 1 u

Plomería: se consideran 3 m de cañería y accesorios. Pileta de patio y llaves de paso 1 u

Instalación de gas

Incluye materiales, mano de obra, piezas y accesorios para la instalación completa y reglamentaria.

Se consideran 3 m de cañería y accesorios, y llaves de paso 1 u

Instalación eléctrica

Incluye materiales, mano de obra y equipos de apertura canaletas/zanjas, corte y pegado/roscado y colocación/montaje cañeria, piezas, artefactos y accesorios para la instalción completa y reglamentaria. Referencia:

Artefactos: spots + tira LED

Porcelanato AUGUSTUS TERRA 60 cm

Revestimientos

SEGÚN APYMECO (ASOCIACIÓN PYMES DE LA CONSTRUCCIÓN)

El precio del M2 supera los $1.900.000 millones

Tuvo una suba mensual en diciembre de 0,56% y en todo 2025 llegó al 24,71%, según el relevamiento que realizó Apymeco. El metro cuadrado subió 0,56 por ciento en diciembre pasado y su costo llegó a 1.994.703,26 pesos. En todo 2025 la suba del metro cuadrado para construir fue mdel 24,71 por ciento, según difundió la Asociación de Pequeños y Medianos empresarios de la Construcción (Apymeco), en su informe mensual.

Ese incremento mensual en el último mes de 2025 se vio traccionado por un aumento del 0,52% en el rubro de materiales y de un 0,31% en la mano de obra.

Con estas cifras, la evolución interanual del índice general cerró el año en un 24,71%, reflejando una marcada desaceleración en comparación con periodos anteriores.

Uno de los datos más llamativos del reporte es la baja del 3,09% en el costo de construcción medido en dólares respecto a noviembre. Actualmente, el valor se sitúa en 1.334,25 U$S/ m².

parece estar en un momento de oportunidad.

Materiales

Los mayores aumentos mensuales que hubo en los materiales en diciembre de 2025 fue de los porcelanatos, con un 5,87 por ciento; la rampa vehicular, del 4,25 por ciento y el cemento, con el 3,99 por ciento.

Sobre el cemento, destacaron en la asociación que “el despacho de cemento mostró una baja del 9,7 por ciento respecto del mes anterior y una reducción del 1,8 por ciento respecto del año pasado, lo que puede considerarse una disminución en la actividad de la construcción en el ciclo 2025.

También indicaron que “en diciembre se registró un nuevo acuerdo salarial y se contempló una suba no remunerativa.

Para Gustavo Marín, presidente de la entidad, el escenario macroeconómico actual “genera condiciones favorables para el ahorro y la inversión. Al ser el valor de venta del metro cuadrado inferior al costo de construcción, la actividad se presenta como una opción rentable”.

Criticas a los “límites para construir” Sin embargo, ese optimismo se cruza con una fuerte preocupación del sector. A pesar de los indicadores económicos positivos, el panorama

para los desarrolladores y constructores locales se describe como “desalentador”. El foco de conflicto es la Ordenanza Municipal N° 12692/25, la cual, según Apymeco, impactará negativamente en la inversión privada debido a: la baja indiscriminada en los metros cuadrados permitidos para construir; la reducción en las alturas máximas autorizadas para nuevos edificios y la limitación en la cantidad de unidades funcionales que pueden desarrollarse por lote.

Desde la asociación advierten que esas restricciones tendrán una “consecuencia directa en la actividad económica”, amenazando con frenar el ritmo de una industria que, por costos, hoy

En tanto, la evolución mensual del índice general en diciembre fue del 0,56 por ciento, uno de los más bajos del año pasado. Sólo fue superado por el mes de septiembre, en el que se registró un 0,05 por ciento de aumento en el precio del metro cuadrado a construir. El pico máximo que tuvo el año pasado fue en febrero, cuando se produjo una suba del 3,45 por ciento en el metro cuadrado a construir, según el relevamiento realizado por Apymeco, que lleva un largo tiempo en el registro del movimiento de las variables de la construcción.

+info: www.eldia.com

VIVIENDA UNIFAMILIAR

10 Aislaciones Lana de vidrio 100 / 50 mm, c

Aclaraciones: No incluye mobiliarios de cocina, placard, pergolado de galería y asador Los Costos Evaluados no son contractuales. steelwork.com.ar Quintana 3125 S3002CRQ Santa Fe / Argentina + 54 342 4 810 860 + 54 342 6 125 767 consultora@steelwork.com.ar

Planta Arquitectura

En cada publ cación se desarro larán los costos de construcción de un prototipo ba o sistema de construcción en seco con exclusiv dad para Revista CIFRAS.

El interés es poder br ndar costos de referencia para sistema de construcc ón en seco Steel Fram ng y Drywa l

Los costos de mater ales resultan de os relevamientos rea izados por la empresa siendo considerado el precio promedio entre diferentes oferentes de mercado

La mano de obra se desarrolló considerando los costos de producc ón bajo s stema de contratación UOCRA Los resultados finales en ambos casos contemplan IVA (21%) Gastos Generales y Benefic os.

Arq. Humberto Annichini Arq. Walter Meza
Estructura Calculada

VARIACIÓN DEL M2 DE CONSTRUCCIÓN EN ACERO

Montos y variación porcentual mensual del prototipo determinado por SteelWork

PERFORACION DE PILOTES

ARMADURA DE PILOTES

TECNOLOGÍA AVANZADA

SOLUCIONES INTEGRALES

PERSONAL CAPACITADO

TECNOLOGÍA AVANZADA San Jerónimo 3443,ciudad de Sta. Fe +54 9 342 4671100 fundacionesintegralespilotes contacto@fundacionesintegrales.com

726,45 U$D es el costo del m2 de una casa contenedor

Se trata de un modelo de casa que está ganando popularidad, es transportable y recicla materiales

n un mundo que busca ser cada vez más amigable con el medio ambiente, surgen propuestas innovadoras que combinan el reciclaje con soluciones habitacionales. Este es el caso de las “casas contenedores”, viviendas que se hacen con una estructura basada en contenedores marítimos en desuso o containers reciclados, que producen unidades habitacionales ecológicas, que incluso se pueden conseguir por Mercado Libre.

Sí, estas casas reutilizan los contenedores que viajan en los barcos transportando mercadería, para darles un nuevo propósito: ser la casa de una persona o de una familia. Ventajas de estos inmuebles

» Plazos cortos de entrega: pueden estar listas en seis meses o incluso menos.

» Estructuras recicladas: aprovechan contenedores o materiales reutilizados, reduciendo la contaminación ambiental.

» Sustentabilidad: otorgan un segundo uso a estructuras que, de otro modo, serían desechadas.

» Alta resistencia: al estar hechas de acero, soportan condiciones climáticas adversas y viajes marítimos.

» Facilidad de transporte: pueden trasladarse con relativa facilidad por su diseño modular.

» Ampliación flexible: es posible sumar nuevos módulos al original para ampliar la vivienda

cuando se necesite.

» Menor peso: comparadas con las construcciones tradicionales de hormigón o acero, resultan más livianas.

Ahora bien, especialistas del sector advierten que el contenedor fue diseñado originalmente para transportar productos en un barco, no para vivir.

“Es una cáscara de metal que refleja el sol, en la que entra agua, acumula calor, que estructuralmente no está aprobado ni verificado por normas de cálculo, por lo que usarlo como casa no es un buen destino”, alerta Lucas Salvatore, presidente de Idero.

De todas formas, otros expertos, como el caso de Dice Containers, empresa argentina constructora de casas container, explican que muchos no cumplen con los códigos urbanísticos, pero existen algunos jugadores del sector que sí los respetan. “Si el contenedor se utiliza flaco y largo como viene del puerto, no se respetan las medidas mínimas interiores. En nuestro caso, cumplimos con todas las normativas municipales argentinas, por lo tanto, son casas contenedores aptas para la habilitación municipal”, explica el ingeniero José A. Vives, dueño de la fábrica.

¿Cuánto cuesta una casa contenedor?

En Mercado Libre, actualmente, se pueden

encontrar publicaciones desde $7.400.000 (15,6 m²) hasta $32.500.000 (28 m²), y en dólares se publican avisos de casas desde US$6500 -de 15 m²- hasta US$180.000 -con 59 m² y dos ambientes-.

También hay otras opciones, que detallan desde Dice Containers: una casa estándar de 90 m², de cinco ambientes y dos baños se vende por US$65.381. La vivienda viene con revestimiento térmico interior de lana de vidrio, instalación eléctrica interior embutida, conexiones de agua, entre otros.

También hay opciones más económicas: una casa container un poco más chica, de 60 m², cuatro ambientes y un baño, se vende por US$44.463.

Otro de los modelos de 30 m², dos ambientes y un baño se consigue por US$26.740. Por último, los modelos estándar, de 15 m² y un solo ambiente, se ofrece a US$18.369.

No es menor señalar que son viviendas que se pueden comprar financiadas, aptas para adquirir con un crédito del Banco Hipotecario.

Otro dato interesante es que los fabricantes ofrecen la opción de contratar el servicio de traslado e instalación del contenedor en el terreno donde se establecerá la casa.

Fuente: www.lanacion.com.ar

Construcción: UOCRA acordó subas salariales y sumas fijas para enero y febrero 2026

El acuerdo contempla aumentos acumulativos y pagos no remunerativos para todas las categorías del CCT 76/75 y 577/2010.

La Unión Obrera de la Construcción de la República Argentina (UOCRA) alcanzó un nuevo acuerdo salarial con las cámaras empresarias del sector para las y los trabajadores comprendidos en el Convenio Colectivo de Trabajo (CCT) 76/75 y 577/2010.

El entendimiento establece incrementos escalonados sobre los salarios básicos vigentes y el pago de sumas mensuales no remunerativas durante los primeros meses de 2026.

Según lo pactado, en enero de 2026 se aplicará un aumento del 2% sobre los salarios básicos vigentes a diciembre de 2025, mientras que en febrero se sumará una suba adicional del 1,8%, calculada sobre los valores actualizados a enero.

Ambos son acumulativos y alcanzan a todas las categorías previstas en el convenio.

Además, el acuerdo fija el pago de una suma mensual no remunerativa en enero y febrero, con montos diferenciados según categoría y zona.

En la Zona A, por ejemplo, los valores van desde $96.800 para ayudantes y serenos hasta $121.800 para oficiales especializados, y se incrementan en las zonas B, C y C-Austral. Estas sumas se abonarán en forma quincenal y estarán alcanzadas por aportes a la obra social.

Las partes fijaron que el trato tendrá vigencia hasta el 28 de febrero de 2026 y acordaron mantener una comisión de seguimiento para analizar la evolución de las variables económicas y del sector. En ese marco, se convocó una nueva reunión para el 19 de febrero, con el objetivo de definir eventuales ajustes salariales a partir de marzo.

CONSULTÁ EL ACUERDO

de cada 10 MWh consumidos en Argentina ya se cubren con renovables

La Cámara de Generadores y Cadena de Valor de Energías Renovables dio a conocer los principales indicadores de generación verde del 2025 a nivel país, la cual alcanzó un total de 56799 GWh.

La Cámara de Generadores y Cadena de Valor de Energías Renovables (CEA) de Argentina dio a conocer los principales indicadores de generación renovable de 2025 en base a datos oficiales de CAMMESA.

Durante 2025, las energías renovables cubrieron el 40,21% de la demanda eléctrica nacional (contando grandes hidroeléctricas), consolidando su aporte estructural a la matriz energética argentina. Esto significa que, de cada 10 MWh consumidos en el país, 4 MWh fueron abastecidos con energía renovable. En ese contexto, los socios de la CEA registraron 16284 GWh, equivalente al 68,8% de la generación nacional eólica y solar, y por décimo año consecutivo mantuvieron un rol protagónico en el desarrollo del sector, reafirmando el liderazgo de la Cámara como espacio representativo del sector y su cadena de valor en Argentina.

En 2025, la generación renovable alcanzó un total de 56799 GWh. Asimismo, la demanda total de energía eléctrica alcanzó 141.249,245 GWh y la generación renovable permitió cubrir el 40,21% de dicha demanda.

En cuanto a la composición tecnológica de la matriz renovable 2025, el aporte se explicó principalmente por: 52,2% Hidro > 50 MW; 2,5% Hidro < 50 MW (Pequeños aprovechamientos hidráulicos); 33,4% Eólica; 9,2% Sola; y 2,8% Bioenergías (Biomasa + Biogás)

En paralelo, el desempeño del sector energético continuó consolidándose como motor de la actividad económica y del comercio exterior. En este marco, la energía continúa consolidando su aporte al crecimiento económico, a partir de mayor previsibilidad y reglas claras para la inversión privada. Y de cara a 2026, la Cámara remarcó la importancia de sostener el crecimiento del sector con reglas previsibles, planificación de infraestructura eléctrica y fortalecimiento continuo de la cadena de valor local.

Fuente: www.energiaestrategica.com

DESCRIPCIÓN COSTO

01 | INSTALACIONES NUEVAS, REFACCIONES O AMPLIACIONES

Visita, inspección, diagnóstico y asesoramiento

Factor unitario para instalaciones varias ( x 1 boca)

Precio por boca terminada

$ 35.495,00

$ 82.105,00

$ 82.105,00

Instalación mínima/servicio de reparación (tarifa mínima) $ 82.105,00

Hora de Trabajo (mínimo)

Hora de Trabajo (promedio)

DESCRIPCIÓN

Tableros seccionales

Hasta 8 polos

De 8 a 36 polos

De 36 a 54 polos

Tableros especiales

$ 35.495,00

$ 35.495,00

» Boca: caja rectangular, cuadrada u octogonal de medidas estándar con extension máxima de cañería de 5 mts entre sí. Para mayor extensión se cotiza 1(una) boca cada 5 m.

» Boca completa: canalización; amurado de cañería, cableado reglamentario, conexión de módulos de circuitos y portalámparas de obra en cada centro luminoso.

» No se incluye instalación de artefactos obra, apisonado por capas; carga en camión y/o volquete.

» Sólo se puntearán las cañerías para asegurarlas a la pared. Cerrado de canaletas y revoque final a cargo del gremio correspondiente.

» El costo de estos precios se tuvieron en cuenta para instaladores monotributistas En caso de empresas constructoras u otras pequeñas empresas, sumar gastos de aranceles UOCRA, impuestos, viáticos y cargas sociales.

02 | INSTALACIONES DE 220/380V RESIDENCIALES Y COMERCIOS

Canalización de cañería en losa Costo x boca

En losa armada o loseta con viguetas, con caño metálico o PVC rígido $ 43.005,00

Instalación de cañería en mampostería Costo

Ladrillo común x boca

$ 46.740,00

Ladrillo hueco x boca $ 46.310,00

Ladrillo común x m $ 9.745,00

Ladrillo hueco x m $ 9.555,00

Instalación de cañería a la vista o cable canal

Metal, PVC, Cablecanal (14x30) x boca $ 32.585,00

Pase de viga y/o columna

A razón de 1 (una) boca en viga y/o columna

$ 37.840,00

Canalización de cable subterráneo Tierra Bajo mampostería

Se cotizará a razón de 1(una) boca cada 5m $ 35.465,00 $ 37.810,00

Adicional por cada caja de paso $ 38.945,00 $ 41.555,00

Cableado en obra nueva

Cableado sobre obra nueva ejecutada por el profesional $ 22.710,00

Cableado sobre obra nueva ejecutada por otro prof. $ 29.635,00

Recableado con artefactos $ 38.915,00

Recableado sin artefactos * $ 29.635,00

* No incluye cables pegados a la cañería o cualquier otro vicio oculto en la instalación, lo cual se cotizará en el momento.

Conexión de Puntos y Tomas x boca

Punto, toma simple, porta lámpara

Toma doble

Costo por unidad

$ 148.780,00

$ 595.210,00

$ 892.775,00

Costo por unidad

A criterio del instalador según variables

Instalación portero / video portero

Unifamiliar Costo

Instalación portero cableado exterior

Instalación portero cableado embutido

Instalación video portero

$ 107.570,00

$ 99.280,00

$ 138.995,00

Multifamiliar Costo

Instalación portero cableado exterior x u

Instalación portero cableado embutido x u

Artefactos de iluminación y otros

Artefacto aplique simple

Spot Led por unidad

Artefacto colgante liviano 3 luces 1 efecto

Artefacto colgante liviano 5 luces 1 efecto

Artefacto colgante. Adicional x efecto

Artefacto colgante pesado - Mínimo

Equipo de tubo Led simple de 7 w a 36 w

Equipo de tubo Led doble de 7 w a 36 w

Equipo de tubo Led 45 w

Equipo de tubo Led doble 45 w

Ventilador de techo

Ventilador de techo con luminaria 1 efecto

Acometida (amurado + conexión)

En pilar/muro existente + puesta a tierra de Servicio

Gabinete 1 medidor monofásico

Gabinete 2 medidores monofásicos

Gabinete 3 medidores monofásicos

Gabinete 4 medidores monofásicos

Puesta a tierra de servicio (jabalina + caja de insp.)

Pilar completo (gabinete, TP, caño y puesta a tierra)

Caño de acometida (amurado y conexión)

Caja de fusibles NH00

Agregado 1 gabinete de medidor + tablero principal.

$ 12.655,00

$ 16.030,00

Punto combinación $ 13.620,00

Tableros

Incluye canalización, amurado y conexión

Tablero principal monofásico

Tablero principal con 1 interruptor diferencial y 1 llave

térmica + puesta a tierra

Sólo puesta a tierra

Tablero principal trifásico

Costo por unidad

$ 209.345,00

$ 106.260,00

Costo por unidad

Tablero principal con 1 interruptor diferencial y 1 llave térmica + puesta a tierra $ 283.490,00

Interruptor diferencial, ITM u otro módulo bipolar extra $ 51.470,00

Interruptor diferencial tetrapolar $ 88.610,00

Interruptor termo magnético tetrapolar

Interruptor termo magnético tripolar

$ 104.720,00

$ 87.060,00

Costo por unidad

$ 19.420,00

$ 19.420,00

$ 38.840,00

$ 51.450,00

$ 12.655,00

$ 67.955,00

$ 38.840,00

$ 47.815,00

$ 48.570,00

$ 60.270,00

$ 70.865,00

$ 88.610,00

Costo por unidad

$ 148.780,00

$ 212.630,00

$ 496.045,00

$ 566.905,00

$ 106.260,00

$ 584.585,00

$ 148.780,00

$ 212.630,00

$ 212.630,00

Bandejas portacables x metro H<3m H>3m

Bandeja hasta 150 mm de ancho

Por metro lineal

$ 8.605,00 $ 11.480,00

Por c/accesorio (curva plana, unión T) $ 5.750,00 $ 10.750,00

Otros accesorios

Bandeja 200/300mm de ancho

$ 13.590,00 $ 16.500,00

Por metro lineal $ 12.895,00 $ 17.210,00

Por c/accesorio (curva plana, unión T) $ 8.605,00 $ 11.035,00

Otros accesorios

Bandeja 450/600 de ancho

$ 16.630,00 $ 22.170,00

Por metro lineal $ 17.630,00 $ 25.745,00

Por c/accesorio (curva plana, unión T) $ 11.205,00 $ 15.395,00

Otros accesorios $ 23.025,00 $ 30.705,00

Jornales

Mano de Obra contratada por 8 hs de labor

y copia de pago. (**) El total de Municipalidad, es la suma de ambos ítems.

07 | CERTIFICADOS ELÉCTRICOS Habilitación de negocios - Costo mínimo

Residencial Comercial Monofásico (inspección mínima)

Residencial Comercial Trifásico (inspección mínima) $

08 | CERTIFICADO DE PUESTA A TIERRA CON PROTOCOLO SRT900/15

Comercial

ASOCIACIÓN PROFESIONALES INSTALADORES ELECTRICISTAS DE LA CIUDAD DE SANTA FE

Pers. Jur. Res. 1168 del 27 de Julio de 2022 Regimiento 12 de Infantería 1941, Santa Fe î Cel.: 0342 - 15 544 9971 / e @apiesantafe

Diciembre marcó nuevas subas en los costos de construcción

El dato, clave para los profesionales del sector y la comunidad, surge del informe del Instituto de Estadísticas y Costos (IEC) del CAPC.

En la actualidad, edificar una casa promedio con el sistema de construcción Steel Frame (en seco) demanda un presupuesto que ronda los $ 176 millones y el costo por metro cuadrado llega a $ 1.782.483,88.

El dato surge del informe del Instituto de Estadísticas y Costos (IEC) del Colegio de Arquitectos de la Provincia de Córdoba (CAPC), que desde junio de 2025 incorporó esta novedad que permite hacer la comparación con los costos de construcción de una vivienda tradicional sobre la base del mismo diseño.

El IEC, dirigido por las arquitectas Soledad Salgado y Verónica Bariña, trabaja con un modelo de simulación referencial para una vivienda unifamiliar (alberga a un solo núcleo de familia tipo) estándar de 130 metros cuadrados, construida en planta baja con tres dormitorios, baño, estar comedor, cocina, lavadero, toilette y garaje. No contempla el costo del terreno.

Asimismo, el informe discrimina el monto de obra total en seco ($ 175.594.939,94), los honorarios profesionales referenciales según monto total de obra por proyecto sin detalles y conducción técnica ($ 16.025.169,28), el precio por metro cuadrado básico de obra más honorarios ($ 1.474.000,84) y el costo por metro cuadrado de obra más honorarios, cargas sociales e impuestos ($ 1.782.483,88).

Obra tradicional

Cada mes, los costos de la construcción en

seco se ubican por encima de la obra tradicional. Con datos actualizados a diciembre, edificar una casa promedio demanda un presupuesto que ronda los $ 160 millones y el costo por metro cuadrado llega a $ 1.673.367.45, según la última estimación del IEC, que periódicamente actualiza ese indicador clave para los profesionales del sector y para la comunidad.

Cabe recordar que, desde febrero de 2024, el IEC incorporó una nueva modalidad a la carga de valores de materiales: reemplazó el promedio de precios mínimos y máximos por un “precio único intermedio” de mercado. Debido a la coyuntura económica que transita

Argentina, se incorporó el ajuste para lograr mayor precisión en el resultado del “costo por metro cuadrado” de referencia y mejorar el servicio a los profesionales matriculados del CAPC.

Asimismo, el informe discrimina el monto de obra total ($ 159.872.614,26), los honorarios profesionales referenciales según monto total de obra por proyecto sin detalles y conducción técnica ($ 14.590.316,25), el precio por metro cuadrado básico de obra más honorarios ($ 1.342.022,54) y el costo por metro cuadrado de obra más honorarios, cargas sociales e impuestos ($ 1.673.367,45). Fuente: www.lavoz.com.ar

$1.398.922,36 es el costo del M2

de construcción

Se conoció el nuevo Índice CIRCOT de enero, que actualiza el valor del metro cuadrado en San Juan y el costo estimado de construir una vivienda tipo. Aunque los precios subieron por debajo de la inflación, los costos siguen lejanos para la gente y el acceso al crédito hipotecario vuelve a aparecer como la clave para reactivar la construcción.

El Centro de Investigación para la Construcción (CIRCOT) es la unidad técnica de la Facultad de Ingeniería de la UNSJ que todos los meses elabora el valor de la construcción en la provincia. Desde allí se informó a Tiempo de San Juan que el valor del metro cuadrado de la construcción en el primer mes del 2026 se ubicó en $1.398.922,36.

Tuvo un incremento leve, inferior al 1% respecto a diciembre, lo que refleja un comportamiento más estable de los costos en comparación con otros períodos anteriores.

Con esos valores, el CIRCOT estimó que construir en San Juan una casa familiar tipo de tres dormitorios y 77,10 metros cuadrados en un barrio demanda invertir 107.856.913,80 pesos. Es cierto que el aumento de un mes al otro fue poco en porcentajes, pero en valores nominales significó un incremento de alrededor de 846 mil pesos respecto de diciembre.

Eso indica que el impacto sigue siendo significativo para la mayoría de los sanjuaninos que sueñan con el techo propio.

Menor a la inflación

$1.398.922,36 es el costo del M2 de construcción de una vivienda tipo de 77,10 M2 ENERO 2026

0,79% más que en Diciembre 2025

16,42% variación respecto a Enero 2025

limitado.

“Estas curvas no son empinadas, sino bastante horizontales. Eso muestra que la construcción está en cámara lenta, con un movimiento muy cauteloso. Hay obra, pero no en los niveles históricos. Se vende lo justo y se construye lo justo”, describió.

En el corto plazo, la evolución de enero también fue contenida. Respecto de diciembre, el índice general aumentó 0,79%, con una variación de 0,32% en materiales y de 1,30% en mano de obra. Sin embargo, aun con subas moderadas, el impacto en los valores finales sigue siendo fuerte.

“La inflación del año pasado fue de alrededor el 27,9% según el IPC y, aunque todavía no están los datos definitivos de diciembre, se estima que cerrará por debajo del 30%. Frente a eso, la construcción mostró un aumento mucho más bajo”, señaló.

El informe también detalla el comportamiento de los principales componentes del costo. En términos anuales, los materiales de construcción registraron una suba del 13,75%, mientras que la mano de obra aumentó un 19,44%, conforme a los acuerdos salariales de la UOCRA. Para Andrade, estos números explican una curva de precios más plana, pero también un nivel de actividad que sigue siendo

Según explicó Juan Carlos Andrade, director del CIRCOT, la comparación interanual deja un dato relevante: entre enero de 2025 y enero de 2026, el precio del metro cuadrado aumentó 16,42%, una suba muy por debajo de la inflación estimada para el mismo lapso.

La asignatura pendiente: el crédito De cara a los próximos meses del nuevo año, el sector de la construcción vuelve a poner el foco en el financiamiento como factor decisivo para que las familias sanjuaninas puedan construir su vivienda y se reactive el sector. “El precio por metro cuadrado sigue siendo elevado para la gente. Por eso se espera con ansiedad el apalancamiento crediticio”, sostuvo Andrade. Y remarcó: “La clase media necesita de los créditos hipotecarios, que son los verdaderos motores de la reactivación de la construcción”.

Fuente: www.tiempodesanjuan.com

SURGE DEL INFORME DEL INSTITUTO DE ESTADÍSTICAS Y COSTOS (IEC) DEL CAPC.

COSTOS DE TAREAS POR CONTRATOS INDEPENDIENTES

ASCENSORES

Mantenimiento $ 134.615,00

COLOCACIÓN DE APARATOS DE REFRIGERACIÓN

Split a 3 metros (3m de cañeria de cobre, ménsulas, aislación, sin instalación electrica) 3.000 frigorias

$ 230.000,00

Split a 3 metros (3m de cañeria de cobre, ménsulas, aislación, sin instalación electrica) 18.000 frigoria $ 350.000,00

COLOCACIÓN DE PISOS - sin materiales

Alfombra (incluye adhesivo) x m2

$ 9.310,00

Parquet y entablonado (colocación y pulido) x m2 $ 20.890,00

Piso Flotante (zócalo y piso) x m2 $ 21.400,00

Porcelanatos $ 20.800,00

PINTURA

Aberturas (puerta y ventana) masillado, lijado y pintado $ 17.000,00 Barnizado (puerta y ventana) sobre madera virgen $ 13.700,00 Cielorraso

El mercado inmobiliario muestra signos de reactivación en Santa Fe

COSTOS DE LA MANO DE OBRA DE LA CONSTRUCCIÓN

TABLA DE INFORMACIÓN

Tucumán, Chaco, San Luis, Corrientes, La Rioja, Formosa, Jujuy y Misiones.

El 12 de enero de 2026, la Unión Obrera de la Construcción de la República Argentina (UOCRA), la Cámara Argentina de la Construcción (CAMARCO) y la Federación Argentina de Entidades de la Construcción (FAEC) llegaron a un acuerdo paritario, el cual fue homologado por la Dirección Nacional de Relaciones y Regulaciones del Trabajo del Ministerio de Capital Humano el 15/01/26, en los siguientes términos: Se establece un incremento salarial que se aplicará a las distintas categorías previstas en el Convenio Colectivo de Trabajo CCT N° 76/75, el cual se otorgará de la siguiente manera: a) Un aumento en el mes de enero de 2026 del 2% (dos por ciento) que se aplicará sobre los salarios básicos vigentes al 31 de diciembre de 2025; b) Un aumento a partir del mes de febrero de 2026 del 1,8% (uno coma ocho por ciento) que se aplicará sobre los salarios básicos vigentes al 31 de enero de 2026. La totalidad de los porcentuales aquí previstos son acumulativos. Asimismo, se establece el pago de una suma mensual, de carácter no remunerativo, pagadera en los meses de enero de 2026 y febrero de 2026 para los trabajadores del mismo Convenio Colectivo, de la siguiente manera: el 50% será abonado juntamente con el pago de la primera quincena del mes del cual se trate y el 50% restante será abonado juntamente con el pago de la segunda quincena de dicho mes. El presente acuerdo salarial tiene vigencia hasta el 28 de febrero de 2026.

El regreso de líneas de financiamiento y una demanda sostenida impulsan un escenario más dinámico, con mayor oferta y movimiento tanto en alquileres como en ventas.

El mercado inmobiliario de la ciudad de Santa Fe empieza a evidenciar señales de reactivación, apalancado por la reaparición de líneas de financiamiento y por condiciones que, en algunas entidades, se asemejan a las vigentes antes del último proceso electoral. Así lo afirmó Jorge Pighin, vicepresidente de la Federación Inmobiliaria, quien destacó un cambio en la dinámica del sector durante los últimos meses.

“Tenemos una muy buena oferta y una demanda constante. Ya desde fines de octubre y mediados de noviembre comenzaron a aparecer los primeros interesados, tanto de localidades santafesinas como de otras provincias”, explicó Pighin.

En ese sentido, subrayó que la amplia oferta académica que ofrece la ciudad de Santa Fe sigue siendo un factor clave para sostener el interés. “A diferencia de los últimos años, hoy la gente tiene para elegir”, remarcó.

Según la Red Edificar

El

IRE cerró 2025 con una suba anual del

El Índice Red Edificar registró en diciembre un aumento mensual del 2,62% y consolidó un año de ajustes sostenidos en los precios de los materiales de la construcción en Mendoza.

El Índice Red Edificar (IRE), que releva mensualmente la evolución de los precios de los materiales de la construcción en la provincia de Mendoza, cerró diciembre de 2025 con un incremento mensual del 2,62%, llevando el acumulado anual al 27,46%. De este modo, el indicador marca el comportamiento de costos del sector a lo largo de todo el año y se consolida como una herramienta clave para la toma de decisiones en la actividad.

Más suma no remunerativa mensual liquidada quincenalmente: Of. Especializado: $121.800; Oficial: $112.000; Medio Oficial: $102.800; Ayudante: $96.800; Sereno: $96.800

$

$

Ayudante $ 3.980,00 $ 31.840,00 Sereno $ 723.032,00 x mes

Más suma no remunerativa mensual liquidada quincenalmente: Of. Especializado: $121.800; Oficial: $112.200; Medio Oficial: $102.800; Ayudante: $96.800; Sereno: $96.800

A LOS SALARIOS SE LE DEBEN SUMAR EL 20% DE ASISTENCIA. Los trabajadores constructores que revisten las especialidades que se determinan al pie de la presente, tendrán los siguientes porcentajes adicionales por categorías sobre los básicos del convenio. 15% a Oficial Electricista,10% a Medio Oficial, 5% a Ayudante | 10% a Oficial Yesero, 10% a Medio Oficial, 10% Ayudante 15% Oficial Calefaccionista, 10% a Medio Oficial, 5% a Ayudante.

En cuanto a las preferencias, el dirigente inmobiliario señaló que los departamentos de un dormitorio encabezan la demanda, seguidos por las unidades de dos dormitorios, mientras que las casas son buscadas principalmente por familias que necesitan mudarse. No obstante, Pighin advirtió sobre un aspecto que genera preocupación en el sector: el atraso de los salarios y el nivel de endeudamiento de los inquilinos. “Cada recibo de sueldo tiene cada vez más créditos, y eso obliga a pedir más requisitos porque no se puede garantizar un alquiler de 64 meses”, explicó. Además, indicó que ante eventuales incumplimientos, actualmente solo es posible actuar sobre hasta el 20% del sueldo.

Pese a estas dificultades, desde la Federación Inmobiliaria consideran que el escenario general muestra una leve recuperación, con mayor movimiento y expectativas moderadas de crecimiento para los próximos meses.

Fuente: www.radioeme.com

El dato de diciembre confirma un cierre de año con aumentos moderados en términos mensuales, en comparación con los picos registrados en otros períodos, pero con un impacto acumulado significativo sobre el costo total de obra, especialmente en proyectos de mediano y largo plazo.

Un año de ajustes y reacomodamientos en los costos

El 27,46% anual refleja un año atravesado por procesos de corrección de precios, reacomodamientos de listas, variaciones en insumos importados y cambios en la dinámica comercial del sector. Si bien el ritmo de aumentos se desaceleró hacia el último trimestre, el acumulado anual muestra que los costos de los materiales siguieron una tendencia ascendente sostenida.

Este comportamiento estuvo influenciado por

factores macroeconómicos, logísticos y financieros, pero también por la propia dinámica del mercado de la construcción, que durante 2025 mostró niveles de actividad heterogéneos, con segmentos que mantuvieron demanda y otros que operaron con mayor cautela.

Lectura para el inicio de 2026

El cierre del IRE 2025 deja un marco claro para el inicio del nuevo año: costos más estabilizados en el corto plazo, pero con un arrastre anual que continúa condicionando presupuestos, contratos y decisiones de inversión.

Desde Red Edificar destacan la importancia de

planificar con información, seguir de cerca la evolución mensual de los precios y utilizar el IRE como herramienta de análisis para ajustar estrategias comerciales, presupuestarias y de obra en un contexto que sigue siendo desafiante para el sector.

El IRE continuará publicándose de manera mensual durante 2026, aportando datos clave para interpretar la evolución de los materiales de la construcción en Mendoza y acompañar al sector en la toma de decisiones. Más información en: www.edificarmendoza. com.ar

ZONA A: Ciudad Autónoma de Buenos Aires, provincias de Santiago del Estero, Santa Fe, Buenos Aires, Mendoza, San Juan, Catamarca, Córdoba, Entre Ríos, Salta,

El costo de la construcción subió 1,4% en diciembre y cerró 2025 con un aumento del 22,9 por ciento

El informe oficial del Indec marcó variaciones de precios en materiales, salarios y servicios públicos, con efectos sobre los componentes principales de las obras.

El índice del costo de la construcción (ICC) en el Gran Buenos Aires presentó en diciembre una variación mensual de 1,4%, según el relevamiento del Instituto Nacional de Estadística y Censos (INDEC). Este resultado consolidó un incremento acumulado del 22,9% en 2025. La medición abarcó la evolución de precios en materiales, mano de obra y gastos generales, y expuso el impacto de actualizaciones salariales y tarifarias sobre el sector.

Conectado a la fuente CORRECTA uno hace la diferencia...

Leandro Materiales Eléctricos en General 342 516 9094 silek.ldm@gmail.com

El capítulo materiales registró un alza de 1,6% en comparación con el mes anterior. Entre los factores que impulsaron este incremento figuraron los nuevos valores autorizados para los insumos de obra y los ajustes en las tarifas de servicios regulados. Los principales aumentos anuales dentro de los ítems de obra correspondieron a movimiento de tierra (32,4%), carpintería de madera (29,4%), carpintería metálica y herrería (27,6%) y ascensores (31%). Albañilería tuvo una variación de 24,4%, mientras que estructura y vidrios subieron 20,5% y 19,7% respectivamente. Los rubros instalación eléctrica (22,2%), instalación de gas (18,7%), instalación sanitaria y contraincendios (16,8%), yesería (16,9%) y pintura (15,7%) también mostraron variaciones interanuales.

consumos y conexiones de agua y cloaca, al tiempo que el Ente Nacional Regulador del Gas (Enargas) dispuso actualizaciones para todos los conceptos de conexión de gas.

el.: (03492) 428696 GILI

gili-maderas.business.site

El componente mano de obra aumentó 1,3% en diciembre. El informe del INDEC atribuyó este comportamiento al acuerdo salarial alcanzado por la Unión Obrera de la Construcción de la República Argentina (UOCRA), que se aplicó a las distintas categorías laborales contempladas en el Convenio Colectivo de Trabajo 76/75 a partir de diciembre de 2025. Además, se incorporó una asignación extraordinaria de carácter no remunerativo, lo que incidió sobre la estructura de costos de las empresas dedicadas a nuevas construcciones. El capítulo gastos generales también reflejó un incremento mensual de 1,3%. Este bloque incluye el ítem “Sereno”, vinculado a las mejoras salariales, junto con las tarifas de servicios públicos autorizadas por organismos reguladores nacionales. Entre las actualizaciones más relevantes figuraron las tarifas eléctricas aprobadas por el Ente Nacional Regulador de la Electricidad (ENRE) para las distribuidoras Edenor y Edesur, vigentes a partir de diciembre tras la revisión tarifaria integral. Además, la Secretaría de Obras Públicas del Ministerio de Economía autorizó nuevos valores para los

El informe técnico detalló que las variaciones en los precios de los materiales estuvieron asociadas tanto a factores internos del mercado como a la dinámica de contratación y provisión local. Las revisiones salariales y los aumentos tarifarios definieron el comportamiento de los costos durante diciembre y determinaron el cierre anual del indicador.

El análisis por rubros de obra permitió observar diferencias en la magnitud de los incrementos. El mayor ajuste correspondió al rubro movimiento de tierra (32,4%), seguido por carpintería de madera (29,4%) y ascensores (31%). Otros ítems, como albañilería (24,4%), carpintería metálica y herrería (27,6%) y otros trabajos y gastos (24,1%), completaron el cuadro de subas más pronunciadas. Por su parte, los aumentos más moderados se identificaron en yesería (16,9%) y pintura (15,7%).

El seguimiento del índice del costo de la construcción mostró una aceleración de los

precios en los últimos meses del año, en un contexto de revisiones contractuales y acuerdos sectoriales.

La combinación de factores salariales, tarifarios y de insumos básicos influyó sobre el presupuesto de las obras nuevas en el área metropolitana, determinando ajustes escalonados en los distintos componentes.

Los datos oficiales consignaron que la incidencia de los acuerdos salariales, junto a las actualizaciones de tarifas de servicios públicos y de precios de materiales, delineó la dinámica del sector durante el cierre del año.

El ICC se consolidó como una referencia central para la planificación y ejecución de proyectos, tanto públicos como privados, y para la toma de decisiones en la cadena de valor de la construcción.

El cierre de 2025 exhibió variaciones de dos dígitos en todos los ítems del índice, con comportamientos heterogéneos según el rubro.

El informe del INDEC sirvió como insumo para el análisis de la evolución de precios y la definición de estrategias en el sector, especialmente en el ámbito del Gran Buenos Aires.

Turn static files into dynamic content formats.

Create a flipbook
359_Revista CIFRAS Digital Febrero 2026 - Costos by Cifras - Issuu