352_Revista CIFRAS Digital Julio 2025 - Costos gral

Page 1


CIFRAS

Director General

Arq. Jorge Alberto Benet Contenidos y Redacción

Arq. Jorge Alberto Benet

Arq. Nanci García

Administración

Matías Perri productoracifras@gmail.com

Cómputo y presupuesto de prototipos tradicionales

Arq. Carlos Barducco carlosbarducco@yahoo.com.ar

Cómputo y presupuesto de prototipo steel frame

Arq. Humberto Annichini

Arq. Walter Meza

Relevamiento de Costos región Litoral Propio de CIFRAS

Puesta en página

L.D.C.V. M. Victoria Göldy

Distribución

Santa Fe provincia y Entre Ríos provincia. Este de la provincia de Córdoba.

Teléfonos

342 4342062 (móvil) Correo info@cifrasonline.com.ar

AQUÍ COMIENZA LA SECCIÓN DE COSTOS

RESUMEN DE LA VARIACIÓN DE COSTOS DE LA CONSTRUCCIÓN EN EL MES DE JUNIO

Construcción tradicional para la Región Litoral-Centro de la República Argentina

RESUMEN: Revista Interactiva Cifras Nº: 352 | Fecha de cierre presente edición: 27-JUN-2025 | Cotización Dólar BNA p/venta: $/U$S 1.205,00

COSTOS POR M2 + 1,67 % a 1,95 %

Fue el rango de variación de los costos globales de los modelos tipológicos de Cifras, que se verifican respecto del mes anterior. (La variación particular desagregada ver en la sección Costos Tipologías)

MANO DE OBRA

+ 3,50%

Fue la variación que registró la mano de obra que interviene en las tipologías (personal asalariado y de subcontratos) por actualizaciones y ajustes producidos de acuerdo a nuevos valores vigentes, en virtud del acuerdo paritario alcanzado en el marco de la política salarial convenida para los meses de may. y jun. del presente año para el sector de la industria de la construcción.

ACTUALIZADO

Construcción tradicional

» Resumen de la variación de costos de la construcción del mes.

» Costo sugerido del M2 de construcción para 4 modelos tipológicos.

» Variación mensual del M2 de construcción de los 4 modelos tipológicos.

» Costos por rubro de cada item de obra.

» Precio del hormigón elaborado.

» Índice de la Cámara Argentina de la Construcción (CAC).

» Costos según resoluciones constructivas con detalles gráficos.

» Costos del M2 de construcción en Argentina- cuadro comparativo.

» Alquiler de máquinas y herramientas.

» Precios de materiales.

» Costo sugerido para la remodelación de baños.

» Costo sugerido para la remodelación de cocinas.

» Costos de mano de obra de instalaciones eléctricas.

» Costos de tareas por contratos independientes.

» Costos de mano de obra de la construcción según UOCRA.

Construcción en acero Steel Frame

» Costos de construcción de un prototipo bajo sistema de construcción en acero.

» Variación mensual del M2 de construcción en acero.

MATERIALES

+ 0,50%

Fue la variación ponderada que se verifica en el conjunto de materiales integrantes de las canastas de las tipologías, según datos de la encuesta de Cifras cerrada el 24-06-25; de la que se observan precios sin variación en la mayoría de los insumos, con disminución en algunos y ciertas subas particularizadas en otros; todo en la búsqueda de adecuación de valores al contexto macro económico actual.

EQUIPOS

+ 1,80%

Fue la variación global que registró el equipo, por aumentos en sus componentes principales (equipos, combustibles, lubricantes y mano de obra, entre otros) que impactan en los costos de posesión y operación, de los equipos que participan en las distintas tipologías que se publican.

Todos los valores estimados que se consignan en la secciones Costos de Tipologías, Costos Unitarios y Costos de Resoluciones Constructivas de la Revista son ilustrativos o de referencia y están calculados con datos disponibles al cierre de la presente edición.

La Revista de la Construcción

COSTO SUGERIDO DEL M2 DE CONSTRUCCIÓN SEGÚN TIPOLOGÍAS

NIVEL MEDIO PARA LA REGIÓN LITORAL/CENTRO DE LA REPÚBLICA ARGENTINA

TIPOLOGÍAS

¡DESCARGÁ ESTA INFO

EN ARCHIVO EDITABLE para trabajar e imprimirla desde tu dispositivo

Los 4 Modelos Tipológicos están proyectados según parámetros de calidad de Nivel Medio o Estándar con tecnología de construcción tradicional. Los valores aquí expresados son referenciales y corresponden a:

(*) Costos Directos: MATERIALES + EJECUCIÓN (Mano de Obra + Equipos), calculados como de producción industrial, utilizando rendimientos estándares, precios de materiales e insumos relevados por Revista Cifras en mostrador de comercios minoristas de la construcción y con jornales de mano de obra según UOCRA.

(**) Costos Indirectos: Gastos Generales + Beneficios Empresariales + IVA.

TRABAJOS PRELIMINARES:Honorarios

Dentro de los TRABAJOS PRELIMINARES se incluyen Gastos de HONORARIOS (Proyecto, Tramitación y otras tareas iniciales), los cuales representan en términos porcentuales genéricos aproximadamente un 5%.

HONORARIOS PROFESIONALES:

A los fines de la presente valoración, se denominan como tales y se incluyen en las ecuaciones de los costos, a las tareas profesionales que ameritan gastos en concepto de honorarios (desregulados por Ley), aportes (regulados por Colegios) y/u otras erogaciones varias, que se estiman para las distintas tipologías según sus hipótesis de cálculos y etapas del proceso de las obras.

GASTOS GENERALES: Honorarios

Dentro de GASTOS GENERALES se incluyen Gastos de HONORARIOS (Dirección, Administración y otras tareas de obra), los cuales representan en términos porcentuales genéricos aproximadamente un 5%.

A JUNIO 2025

Todos los valores estimados que se consignan en las secciones “Costos Tipologías”, “Costos Unitarios” y “Costos Resoluciones Constructivas” de la Revista son ilustrativos o de referencia para la elaboración de presupuestos estimativos asimilables a las tipologías proyectadas; y con datos relevados al cierre de la presente edición operado el 27 de Junio de 2025.

Podés descargar todos los costos desde: cifrasonline.com.ar/Costos/todosloscostos ESTUDIO

Mat.6829

Arq. Carlos Barducco - Mat.1606

VIVIENDA IND. EN DUPLEX

COSTO FINAL: 1.952.136,09 $/M2

VARIACIÓN: 1,72% (***)

Vivienda Individual resuelta en Dúplex, implantada en un lote urbano convencional. Consta de Estar, Comedor, Cocina, Lavadero, Toilet y Cochera abierta (PB) y 2 Dormitorios, Baño y expansión (PA). Cubierta chapa hºgº color; con una superficie total de 88m

VIVIENDA IND. EN P. BAJA

Vivienda Individual resuelta en PB, implantada en un lote urbano convencional. Consta de 2 Dormitorios, Baño, Estar, Comedor, Cocina, Lavadero y Cochera abierta. Cubierta de Tejas y sector terraza plana; con una superficie total de 85m

VIVIENDA COLECTIVA EN TORRE

COSTO FINAL: 1.965.698,10$/M2 VARIACIÓN: 1,67% (***) 2.260m²

DEPÓSITO/GALPÓN

COSTO FINAL: 1.787.215,98$/M2

VARIACIÓN: 1,94% (***)

Edificio en Altura para Viviendas Colectivas; implantado en un lote urbano con servicios. Consta de PB (Ingreso, Locales, Servicios y Cocheras); PA (10 Pisos 2 deptos. 2D y dependencias por piso) y Azotea (accesible, con áreas de servicios), con una superficie total de 2.260m2

COSTO FINAL: 1.034.037,33 $/M2

Depósito/Galpón implantado en terreno

ubicado en zona macro-urbana de la ciudad y consta de un galpón tipo parabólico de 25x10m y un sector de sanitarios-vestuarios y oficina resuelto en dos niveles;

El Ordenamiento Territorial en la Reforma de la Constitución de la provincia de Santa Fe

"Creo que el objetivo de la convocatoria fue a partir del trabajo que venimos haciendo con las facultades de arquitectura, las públicas y las privadas, el ente de coordinación metropolitana, los centros de investigación. Fue invitar a los constituyentes como invitados VIP teníamos para tratar de poder transmitirles bueno el valor que tiene para nosotros el tema de poder incluir en la constitución el ordenamiento territorial. La verdad que estamos súper satisfechos por la convocatoria y también bueno porque se han arrimado muchas instituciones, institutos de investigación y la idea es sumarlos a todos para poder redactar un texto para poder ofrecérselos a quienes participan como constituyentes en este tema que es un tema más de todos los que se van a discutir".

VARIACIÓN DEL M2 DE CONSTRUCCIÓN

Montos y variación porcentual mensual del costo del m2 de construcción de los 4 modelos tipológicos de REVISTA CIFRAS

Según el IPEC, en Mayo 2025

En mayo, el M2 de construcción es de $770.387,90

A pesar de que construir en Santa Fe sigue siendo más caro que en Rosario, los últimos datos revelan que el costo del metro cuadrado en la ciudad capital sube a un ritmo menor que la inflación general.

Según el Instituto Provincial de Estadística y Censos (IPEC), en el último año, los costos en Santa Fe aumentaron menos que los precios de consumo, que acumularon un 43,4% en 12 meses.

Aunque el aumento sigue siendo significativo, Santa Fe mantiene una diferencia en el costo de la construcción por metro cuadrado frente a Rosario, lo que impacta directamente en el presupuesto necesario para edificar una vivienda. En mayo, el precio del metro cuadrado en Santa Fe alcanzó los $770.387,90, mientras que en Rosario se ubicó en $760.740,51, marcando una diferencia del 1,27%. Este diferencial en los precios es atribuible principalmente a los aumentos en los gastos generales (+1,4%) y los materiales de construcción (+1,3%).

Presupuesto en Santa Fe y Rosario: ¿cuánto cuesta construir una casa?

Aunque se observa una desaceleración en los aumentos de precios, la distancia sigue siendo clara, lo que repercute directamente en el bolsillo de los santafesinos que deseen edificar una vivienda.

Estabilidad y diferencias en la marcha de los precios

Si bien tanto en Santa Fe como en Rosario el aumento de precios para la construcción muestra una tendencia estable, las diferencias entre las dos ciudades siguen siendo notorias.

Según los cálculos del IPEC, el presupuesto para la construcción de una vivienda unifamiliar estándar de 69,5 metros cuadrados (65,64 m2 cubiertos y 3,86 m2 semicubiertos) es de $53.541.959 en Santa Fe, mientras que en Rosario, el costo para la misma construcción se estima en $52.871.465. Estos valores incluyen el IVA, ya que se consideran construcciones realizadas por particulares, pero no comprenden el costo del terreno, que es ajeno al proceso constructivo.

Este impacto en el presupuesto final de los santafesinos se ve reflejado en los incrementos más significativos de algunos materiales y gastos, lo que hace que construir en la ciudad capital sea más caro que en la "cuna de la bandera".

Arq. Rubén Palumbo
Pte. CAUPSF

COSTOS POR RUBRO

DESCRIPCIÓN UNIDAD MATERIALES EJECUCIÓN TOTAL

00 | HONORARIOS PROFESIONALES

Si bien los Honorarios Profesionales -por Ley- se encuentran desregulados, se sugiere considerar un 5% sobre el costo neto de Obra para estimar un Costo de Tareas Profesionales. El cálculo definitivo se hará según lo que rija en el Colegio Profesional correspondiente.*

01 | PRELIMINARES DE OBRA

Trabajos, tareas y provisiones

Cartel de Obra m2 $ 46.788,65 $ 44.817,78 $ 91.606,43

Cerco de Obra m $ 24.294,69 $ 16.471,51 $ 40.766,20

Limpieza inicial terreno, retiros grales. m2 $ 383,89 $ 3.321,06 $ 3.704,94

Nivelación y replanteo de obra m2 $ 115,17 $ 6.746,85 $ 6.862,01

Obrador, construcciones provisorias m2 $ 37.809,45 $ 116.310,41 $ 154.119,86

Demoliciones y Retiros

Contenedor, volquete 5m3 (alquiler) día $ 0,00 $ 81.014,06 $ 81.014,06

Demolición de contrapisos y otros solados m2 $ 0,00 $ 12.917,50 $ 12.917,50

Demolición estructuras de hormigón armado m3

$

Demolición mamposterías ladrillos comunes m3 $ 0,00 $ 91.988,57 $ 91.988,57

Demolición mamposterías ladrillos huecos m2 $ 0,00 $ 15.839,78 $ 15.839,78

Picado de revoques m2 $ 0,00 $ 11.276,59 $ 11.276,59 Retiro de pisos/revestimientos m2 $ 0,00 $ 12.097,05 $ 12.097,05

02 | MOVIMIENTO DE TIERRA

Incluye mano de obra y/o maquinaria e insumos varios para la cava, acarreo, desparramos internos en la obra, apisonado por capas; carga en camión y/o volquete.

Desmonte; terraplenamientos y rellenos a máquina m3

$ 0,00 $ 29.497,12 $ 29.497,12

Desmonte; terraplenamientos y rellenos manual m3 $ 0,00 $ 26.111,59 $ 26.111,59

Excavación a máquina para subsuelo m3 $ 0,00 $ 36.423,73 $ 36.423,73

Excavación manual para bases de columnas m3

Excavación manual para zapata de muros m3

03 | ESTRUCTURAS

Hormigón armado

$ 0,00 $ 39.355,93 $ 39.355,93

$ 0,00 $ 29.269,43 $ 29.269,43

Incluye materiales, mano de obra, equipos para encofrado (con madera); corte, doblado y posicionado armaduras; elaboración hormigón en obra (volúmenes menores), llenado y posterior desencofrado.

Bases H°A° -H21/50kg m3 $ 283.097,13 $ 163.350,59 $ 446.447,72

Columnas H°A° H21/90 kg m3 $ 408.808,84 $ 330.756,64 $ 739.565,47

Encadenado H°A° H21/65 kg m3 $ 328.049,91 $ 328.518,06 $ 656.567,97

Escalera H°A° H21/65 kg m3 $ 355.582,14 $ 354.707,49 $ 710.289,63

Losa H°A° con viguetas y ladrillón cerámico 12cm m2 $ 38.541,61 $ 51.283,25 $ 89.824,87

Losa H°A° con viguetas y ladrillón poliestireno expandido 12cm m2 $ 47.823,45 $ 48.776,24 $ 96.599,69

Losa H°A° macizas H21/60 kg m3 $ 345.170,65 $ 325.617,87 $ 670.788,52

Tabiques H°A° H21/70 kg m3 $ 346.196,78 $ 473.548,95 $ 819.745,73

Tanques H°A° - H21/120 kg m3 $ 370.336,88 $ 517.886,29 $ 888.223,17

Vigas H°A° H21/120 kg m3 $ 499.161,44 $ 446.696,63 $ 945.858,07

Zapata corrida muros H° cascotes m3 $ 172.814,08 $ 46.915,02 $ 219.729,10

Zapata corrida muros H°A° m3 $ 245.046,55 $ 98.376,84 $ 343.423,39

Metálicas en taller

Incluye materiales, mano de obra, equipos para corte, soldadura y/u otros en Taller y montaje en obra; no incluye pintura ni flete.

Hierros redondos kg $ 2.890,84 $ 4.633,39 $ 7.524,23

Perfiles ángulo kg $ 8.383,45 $ 6.811,08 $ 15.194,52

Perfiles normales kg $ 7.227,11 $ 5.838,07 $ 13.065,18 04 | MAMPOSTERÍAS Y TABIQUERÍAS

Mamposterías

Los valores aquí expresados son referenciales y corresponden a costos directos: MATERIALES + EJECUCIÓN (Mano Obra + Equipos), calculados como de producción industrial, utilizando rendimientos estándares, precios de materiales e insumos en general relevados por Revista Cifras en mostrador de comercios locales minoristas de la construcción; y con jornales de mano de obra según UOCRA. No incluyen costos indirectos (GG-Gastos Generales, Be-Beneficios, IVA).

DESCRIPCIÓN UNIDAD MATERIALES EJECUCIÓN TOTAL

Ladrillos comunes, cerámicos y bloques de hormigón y HCCA con mezclas húmedas.Técnicas y dosajes tradicionales

Bloques HCCA 10x25x50cm m2 $ 23.051,52

Bloques HCCA15x25x50cm

Bloques

Bloques

Ladrillo cerámico

comunes a la vista en elevación m3 $ 219.514,44 $

Ladrillos comunes en cimientos m3 $

Ladrillos comunes en elevación m3 $ 136.311,46 $ 122.338,18 $ 258.649,64

Tabiquerías

Estructura de chapa galvanizada y placas. Construcción en seco con materiales y técnicas según el fabricante y el sistema.

Placa cementícia doble esp.12,5 cm exterior, con aislación m2 $ 21.752,23 $ 12.747,64 $ 34.499,87

Placa de yeso doble esp.12,5 cm, con aislación m2 $ 18.210,08 $ 10.484,83 $ 28.694,91

Placa de yeso resistente a la humedad esp. 9,5 cm m2 $ 20.741,28 $ 10.694,43 $ 31.435,71

Placa de yeso simple esp. 8,5 cm medio tabique interior m2 $ 8.257,81 $ 5.038,91 $ 13.296,71

Placa de yeso simple esp. 9,5 cm interior, con aislación m2 $ 12.999,06 $ 5.631,04 $ 18.630,11

Placa de yeso simple esp. 9,5 cm interior, sin aislación m2 $ 10.543,54 $ 5.405,97 $ 15.949,51

05 | AISLACIONES

Aislante acústico lana en rollo tipo Acustiver m2 $ 3.991,60 $ 3.568,99 $ 7.560,59

Aislante acústico panel fonoabsorbente tipo Fonac m2 $ 33.263,31 $ 4.102,29 $ 37.365,60

Cementícia doble horizontal en muros m2 $ 8.241,88 $ 4.922,75 $ 13.164,63

Cementícia doble vertical en muros m2 $ 5.979,27 $ 4.102,29 $ 10.081,56

Cementícia vertical con tabique panderete para subsuelo m2 $ 20.391,46 $ 20.842,89 $ 41.234,36

Lana de vidrio con cara aluminio 50 mm m2 $ 6.472,86 $ 1.667,43 $ 8.140,30 Membrana espuma polietileno 10 mm bajo techo m2 $ 8.178,82 $ 2.235,12 $ 10.413,94 Pintura asfáltica sobre paramentos m2 $ 2.197,35 $ 2.084,29 $ 4.281,64 Pintura impermeabilizante sobre paramentos m2 $ 4.323,95 $ 2.235,12 $ 6.559,07

06 | CUBIERTA

Chapas H°G°N°25 color sobre estructura de madera m2 $ 53.112,55 $ 19.115,04 $ 72.227,60

Chapas H°G°N°25 color sobre estructura metálica m2 $ 58.422,52 $ 21.642,70 $ 80.065,22

Chapas H°G°N°25 color sobre estructura mixta m2 $ 53.487,85 $ 21.443,84 $ 74.931,69

Chapas H°G°N°25 sobre estructura madera

Chapas H°G°N°25 sobre estructura metálica m2 $

Chapas H°G°N°25 sobre estructura mixta m2 $

Plana completa terminación azotea verde m2 $ 72.617,87

DESCRIPCIÓN UNIDAD MATERIALES EJECUCIÓN TOTAL

Tejas francesas esmaltadas (color) sobre losa con aislación m2 $ 48.782,65 $ 19.115,04 $ 67.897,69

Tejas francesas esmaltadas (color), estructura madera sin cepillar con aislación m2 $ 79.362,01 $ 29.648,42 $ 109.010,43

Tejas francesas esmaltadas (color), estructura madera vista con aislación m2 $ 99.846,47 $ 32.486,88 $ 132.333,34

Tejas francesas esmaltadas sobre losa con aislación m2 $ 38.618,61 $ 18.294,58 $ 56.913,19

Tejas francesas esmaltadas, estructura madera sin cepillar con aislación m2 $ 69.426,18 $ 29.205,04 $ 98.631,23

Tejas francesas esmaltadas, estructura madera vista con aislación m2 $ 89.910,64 $ 32.043,50 $ 121.954,14

Tejas francesas natural sobre losa con aislación m2 $ 32.734,26 $ 17.917,50 $ 50.651,76

Tejas francesas natural, estructura madera sin cepillar con aislación m2 $ 63.693,97 $ 28.384,59 $ 92.078,56

Tejas francesas natural, estructura madera vista con aislación m2 $ 84.178,43 $ 31.223,04 $ 115.401,48

07 | REVOQUES

Azotado impermeable m2 $ 1.156,75 $ 7.446,09 $ 8.602,84

Azotado impermeable en muro doble m2 $ 1.119,80 $ 8.714,24 $ 9.834,04

Exterior a la cal común completo m2 $ 3.838,02 $ 19.690,99 $ 23.529,01

Exterior completo, terminación material de frente m2 $ 4.723,29 $ 21.423,80 $ 26.147,09

Fino a la cal m2 $ 1.363,91 $ 8.692,40 $ 10.056,32

Fino/Estucado yeso m2 $ 1.201,85 $ 12.374,19 $ 13.576,04

Grueso común m2 $ 1.332,45 $ 8.035,49 $ 9.367,94

Impermeable de cemento m2 $ 9.597,13 $ 22.504,46 $ 32.101,59

Interior a la cal común completo m2 $ 2.489,21 $ 13.392,48 $ 15.881,69

Interior azotado y grueso b/ revestimientos m2 $ 2.770,59 $ 10.110,65 $ 12.881,24

Premezclado fino exterior (manual) m2 $ 1.930,20 $ 11.064,56 $ 12.994,76

Premezclado fino interior (manual) m2 $ 1.746,09 $ 9.534,70 $ 11.280,79

Premezclado grueso y fino interior (manual) m2 $ 18.372,46 $ 10.798,53 $ 29.170,99

Premezclado grueso y fino interior (proyectable) m2 $ 18.752,81 $ 9.157,62 $ 27.910,43

Premezclado impermeable, grueso y fino exterior (manual) m2 $ 20.950,24 $ 12.505,74 $ 33.455,98

Premezclado impermeable, grueso y fino exterior (proyectable) m2 $ 21.178,45 $ 10.004,59 $ 31.183,04

Toma de juntas de ladrillos vistos m2 $ 783,60 $ 18.050,08 $ 18.833,68 08 | CONTRAPISOS

Hormigón alivianado con poliestireno expandido e=6cm m2 $ 29.597,52 $ 14.364,04 $ 43.961,57

Hormigón alivianado con poliestireno expandido e=8cm m2 $ 10.619,09 $ 10.156,29 $ 20.775,38

Hormigón alivianado con poliestireno expandido e=20cm, para rellenos m2 $ 12.530,52 $ 11.273,48 $ 23.804,01

Hormigón alivianado elaborado H8 e=6cm m2 $ 9.085,25 $ 8.515,38 $ 17.600,63

Hormigón alivianado elaborado H8 e=8cm, para banquinas m2 $ 10.609,30 $ 8.892,46 $ 19.501,76

Hormigón armado e=12cm terminación a la llana m2 $ 32.411,35 $ 17.710,05 $ 50.121,40

Hormigón de cascotes e=10cm m2 $ 7.878,54 $ 11.975,43 $ 19.853,97

Hormigón de cascotes e=12cm m2 $ 9.296,68 $ 13.292,72 $ 22.589,40

Hormigón de cascotes e=8cm m2 $ 4.963,40 $ 9.580,34 $ 14.543,74

Mortero elaborado RDC (CUC=150kg/ m ) e=6 cm m2 $ 9.468,76 $ 7.384,12 $ 16.852,88

09 | CIELORRASOS

Hormigón visto (terminaciones) m2 $ 173,26 $ 6.845,97 $ 7.019,24

Madera machimbrada suspendido con estructura de madera m2 $ 25.319,38 $ 12.048,28 $ 37.367,66

Mortero a la cal aplicado bajo losa m2 $ 3.396,39 $ 18.868,84 $ 22.265,23

Placa de yeso común junta tomada con aislación m2 $ 13.275,88 $ 8.666,38 $ 21.942,26

Placa de yeso común junta tomada sin aislación m2 $ 11.837,61 $ 8.472,53 $ 20.310,14

Placa de yeso común para cajones, taparrollos m2 $ 12.389,24 $ 10.021,31 $ 22.410,55

13 | CARPINTERÍAS

Plana completa terminación membrana geotextil

Placa de yeso resistente a la humedad junta tomada m2 $ 14.613,80 $ 8.990,77 $ 23.604,57

15 | PINTURAS

Acrílica transparente para muros exteriores m2 $ 7.836,36 $ 8.270,87 $ 16.107,22

Barniz para carpintería madera m2 $ 11.890,38 $ 12.393,81 $ 24.284,19

Esmalte sintético para carpintería

metálica m2 $ 15.099,92 $ 15.298,56 $ 30.398,48

Látex para muros exteriores m2 $ 6.368,27 $ 8.714,24 $ 15.082,51

Látex para muros interiores m2 $ 6.109,84 $ 7.450,41 $ 13.560,26

Látex para cielorraso m2 $ 4.536,57 $ 8.337,16 $ 12.873,73

16 | INSTALACIONES

ELÉCTRICAS

Elementos de instalación

Incluye materiales, mano de obra y equipos para apertura canaletas/zanjas, corte y pegado/roscado y colocación/montaje cañería, piezas, artefactos y accesorios para la instalación completa y reglamentaria.

Artefacto de iluminación u $ 70.560,26 $ 18.374,90 $ 88.935,16

Boca de electricidad u $ 69.718,89 $ 32.032,17 $ 101.751,06

Boca de telefonía u $ 63.095,59 $ 28.828,95 $ 91.924,55

Boca de televisión u $ 59.261,06 $ 28.188,31 $ 87.449,37

Tablero de electricidad u $ 154.971,99 $ 42.709,56 $ 197.681,55

Toma de electricidad u $ 62.049,81 $ 28.508,63 $ 90.558,44

17 |

INSTALACION SANITARIA / INCENDIO

Artefactos, Grifería y Accesorios

Incluye materiales (artefactos, griferías, accesorios), mano de obra y equipos para colocación/montaje de artefactos, piezas y accesorios para la instalación completa y reglamentaria. Artefactos loza blanca y Grifería monocomando, calidad media.

Accesorios baño loza blanca (9 piezas) jgo

$ 221.916,45 $ 53.637,81 $ 275.554,26

Bañera metálica enlozada blanca con grifería u $ 428.274,51 $ 79.705,27 $ 507.979,78

Bidet loza blanca con grifería u $ 290.427,73 $ 85.405,91 $ 375.833,64

Inodoro pedestal loza blanca incluye depósito y asiento u $ 318.265,55 $ 84.638,91 $ 402.904,47

Lavatorio loza blanca con grifería u $ 263.234,32 $ 59.597,57 $ 322.831,89

Pileta cocina bacha acero inoxidable con grifería u $ 333.066,99 $ 59.607,93 $ 392.674,92

Pileta lavar loza blanca con grifería u $ 267.345,35 $ 54.311,52 $ 321.656,87

Agua e Incendio

Incluye materiales, mano de obra y equipos para apertura canaletas/zanjas, corte y pegado/roscado y colocación/montaje cañería, piezas especiales y accesorios para la instalación completa y reglamentaria.

Boca de incendio u $ 899.438,75 $ 167.828,10 $ 1.067.266,85

Bomba centrífuga 1/2 HP u $ 311.674,86 $ 37.536,10 $ 349.210,97

Canilla de servicio Ø 13 mm con pico manguera u $ 25.456,14 $ 8.167,46 $ 33.623,60

Canilla de servicio Ø 13 mm con pico manguera en nicho acero inoxidable u $ 62.622,10 $ 10.489,17 $ 73.111,27

Cañería PP TF Ø 13 mm m $ 7.854,76 $ 5.959,76 $ 13.814,52

Cañería PP TF Ø 19 mm m $ 9.796,39 $ 6.198,15 $ 15.994,54

Cañería PP TF Ø 25 mm m $ 11.738,02 $ 6.498,73 $ 18.236,74

Cañería PP TF Ø 38 mm m $ 12.885,34 $ 6.560,91 $ 19.446,26

Cañería

Llave de paso Ø 13 mm u $ 14.367,93 $ 5.959,76 $ 20.327,68

Llave de paso Ø 19 mm u $ 17.959,91 $ 6.902,95 $ 24.862,86

Llave de paso Ø 25 mm u $ 35.919,82 $ 9.898,38 $ 45.818,20

Llave de paso Ø 38 mm u $ 44.899,77 $ 10.727,56 $ 55.627,34

Llave de paso Ø 50 mm u $ 52.981,73 $ 11.262,39 $ 64.244,12

Tanque de agua polietileno tricapa

1100 lt u $ 362.537,47 $ 39.697,16 $ 402.234,63

Tanque de agua polietileno tricapa

2750 lt u $ 468.509,96 $ 51.616,68 $ 520.126,64

Cloacas, Pluviales y Ventilaciones

DESCRIPCIÓN UNIDAD MATERIALES EJECUCIÓN TOTAL

Incluye materiales, mano de obra y equipos para apertura canaletas/zanjas, corte y pegado/roscado y colocación/montaje cañería, piezas especiales y accesorios para la instalación completa y reglamentaria. Boca de acceso PVC

Boca

Cámara de inspección

Cañería

Cañería

Pileta

Artefactos

Incluye materiales (artefactos, accesorios), mano de obra y equipos para colocación/montaje artefactos, piezas y accesorios para la instalación completa y reglamentaria. Artefactos aprobados, calidad media.

Calefactor GN 2000 cal u $ 292.212,40 $ 63.052,41 $ 355.264,81

Calefactor GN 3000 cal u $ 324.680,44 $ 66.370,96 $ 391.051,40

Calefón GN 12 lt u $ 317.900,80 $ 67.889,40 $ 385.790,21

Calefón GN 14 lt u $ 354.141,50 $ 68.657,44 $ 422.798,93

Cocina GN 4H, H y P u $ 353.187,79 $ 70.480,60 $ 423.668,40 Termotanque

Cañerías y Accesorios

Incluye materiales, mano de obra y equipos para apertura canaletas/zanjas, corte y pegado/roscado y colocación/montaje cañería, piezas especiales y accesorios para la instalación completa y reglamentaria.

Cañería

Cañería

Cañería EPOXI Ø 025 mm m $ 9.555,18 $ 10.686,10 $ 20.241,28

Cañería EPOXI Ø 050 mm

19 | EQUIPAMIENTO

$ 12.038,58 $ 27.711,06

Amoblamiento fijo: bajo mesada y alacena (incluye mesada granito) m2 $ 1.004.071,29 $ 165.294,63 $1.169.365,92

Amoblamiento fijo: bajo mesada y alacena (no incluye mesada) m2 $ 423.718,08 $ 133.326,65 $ 557.044,74

Amoblamiento fijo: puertas de placares m2 $ 127.701,12 $ 48.105,08 $ 175.806,20

Amoblamiento fijo: puertas e interiores de placares m2 $ 192.126,33 $ 58.202,34

VARIOS

Ayuda de gremio

Conductos de ventilación, incluye sombrerete y reja m

¡DESCARGÁ ESTA INFO EN EDITABLE para trabajar e imprimirla desde tu dispositivo

HORMIGÓN ELABORADO

Precios según tipo de Hormigón y servicios en obra.

Cuestiones útiles a tener en cuenta: el hormigón puede ser entregado en obra con servicio de BOMBA PLUMA o DESCARGA DIRECTA.

Los hormigones que habitualmente se utilizan en nuestro medio son:

» H 4/8: Para rellenos de zapatas corridas o simples, contrapisos, bases simples. (Estos son hormigones no bombeables).

» H 13/15: Para cimientos viviendas primera planta, cocheras, pisos, veredas, etc. (Estos son hormigones no bombeables).

» H 17/20/21: Para estructuras simples, viviendas hasta tres plantas, losas armadas, vigas, piletas, etc. (Estos son hormigones de descarga directa o bombeables).

» H 25/30: Para estructuras de complejidad media, grandes vigas , estacionamientos y depósitos. (Estos son hormigones de descarga directa o bombeables).

» H 35/mas: Hormigones autocompactantes, de fraguado rápido, alta resistencia, habilitación rápida, etc.

» RDC 50/350: Hormigones para bases, nivelaciones y limpieza.

Aclaración: Compra mínima 4m3 Los precios son con IVA incluído, relevados al 27/06/ 2025.

Pisos eficientes para exterior

Nuevos Decks en PVC

Los nuevos DECKS invitan a transformar cada espacio exterior en una experiencia funcional y perdurable, como opción ideal para proyectos que requieran estilo y practicidad, sin mantenimiento.

DECKS MUCHTEK, pisos de PVC para espacios exteriores como balcones, terrazas, patios, jardines y áreas de relax tanto para proyectos residenciales como comerciales. Con texturas y tonalidades símil madera, ofrecen el encanto visual de los materiales nobles con las ventajas del PVC: una solución resistente al agua, al sol y al paso del tiempo. Sin necesidad de mantenimiento constante, sin astillas, sin decoloración, con fácil colocación y limpieza sencilla: sólo estética, eficiencia y confort.

Además gracias al PVC y a la tecnología de vanguardia de sus folia-

PERFILERÍA- MALLAS ALAMBRES NEGROS Y GALV., ALTA RESISTENCIA, DE PÚAS TEJIDOS Y ROLLOS p/CERCOS - CHAPAS p/TECHAR- PERFILES “C” MEMBRANAS- CAÑOS GALVANI ADOS Y NEGROS (y accesorios) CAÑOS ESTRUCTURALES - ELECTRODOS, DISCOS, etc.

dos, permite mantener una temperatura más baja de la superficie, lo que lo convierte en la solución ideal para lugares con impacto directo del sol y temperaturas extremas.

HACÉ

Indicador de la variación del costo de un edificio tipo en Capital Federal, con fecha de publicación el día 19/06/2025. (*) Datos provisorios A MAYO 2025

COSTO DE CONSTRUCCIÓN 16.521,30 1,60% MAY 2025* MATERIALES 18.695,20 0,30% MANO DE OBRA 13.334,90 4,50%

COSTO DE CONSTRUCCIÓN 16.253,50 1,60% ABR 2025* MATERIALES 18.640,10 2,90% MANO DE OBRA 12.755,30 -1,00%

COSTO DE CONSTRUCCIÓN 15.995,40 0,90%

2025* MATERIALES 18.122,50 0,90% MANO DE OBRA 12.877,80 1,00%

COSTO DE CONSTRUCCIÓN 15.852,40 1,70% FEB 2025* MATERIALES 17.967,50 0,80%

COSTO

COSTO DE CONSTRUCCIÓN 15.043,00

COSTO DE CONSTRUCCIÓN 14.614,90 1,70%

2024 MATERIALES 17.149,90 0,80%

DE OBRA 10.899,20 4,00% COSTO DE CONSTRUCCIÓN 14366,90 2,50% SEP 2024 MATERIALES 17016,60 1,90% MANO DE OBRA 10483,30 4,00%

VARIACIÓN DE COSTO DE CONSTRUCCIÓN

RESPECTO DEL MES ANTERIOR 1,60 (índice 16.521,30)

VARIACIÓN DE MATERIALES

RESPECTO DEL MES ANTERIOR 0,30 (índice 18.695,20)

VARIACIÓN DE MANO DE OBRA

RESPECTO DEL MES ANTERIOR 4,50 (índice 13.334,90)

El indicador de la variación de la Mano de Obra, producto del relevamiento por encuesta entre empresas que realizan obras en CABA similares a la obra tipo adoptada como modelo, incorpora los valores establecidos en el acuerdo salarial UOCRA homologado por DI–2025–1273-APNDNRYRT#MCH del 3 de junio de 2025 y refleja el monto que hubiera recibido el trabajador durante mayo, de trabajar normalmente, más los costos empresarios derivados de esa prestación.

IMPORTANTE: El Indicador del Costo de la Construcción únicamente pretende representar las variaciones que experimenta el costo de la construcción para un determinado tipo de obra de arquitectura. Su uso con otros fines que el de la comparación señalada, no es propiciado por la Cámara Argentina de la Construcción, sino que sus distintos usos deben atribuirse exclusivamente al que así la haga, dado que su contenido es meramente estadístico, marcando una tendencia del sector.

SEGÚN DIRECCIÓN DE ESTADÍSTICAS Y CENSOS DE LA PROVINCIA

El costo del M2 de construcción llegó a $726.399,10

El valor del metro cuadrado tiene un costo de $726.399,1 según índice del costo de la construcción en Córdoba de Mayo 2025.

El costo de la construcción en Córdoba durante el mes de mayo de 2025, registró una variación mensual del 1,6% en su Nivel General y del 33,5% en relación a mayo de 2024.

(El costo se mide según la construcción de una vivienda social tipo, con una superficie cubierta de 50,25 m2, compuesta por cocina-comedor, dos dormitorios y baño.)

El Índice del Costo de la Construcción en Córdoba (ICC- Cba) mide las variaciones mensuales que experimenta el costo de la construcción de una vivienda social tipo.

El índice está compuesto por tres divisiones llamadas “Capítulos” que involucran los precios de diferentes elementos. Estos son: “Materiales”, comprende los precios de 124 insumos; “Mano de Obra”, 6; y “Varios”, 11. El conjunto total de los “Capítulos” se clasifica como “Nivel General”, el cual incluye los precios de los 141 elementos enumerados previamente.

Actualmente, la vivienda tipo está compuesta por cocina-comedor, dos dormitorios y baño.

La superficie cubierta es de 50,25 m2, la mampostería es de bloque cerámico con revoque grueso y fino, los pisos son de cerámica y el techo de losa.

Los supuestos generales consideran que:

» La vivienda es construida por un particular con lo cual los precios son finales, es decir, incluyen el IVA.

» La misma es construida en la ciudad de Córdoba.

» La obra comienza y termina en el mismo mes.

» No se incluye el valor del terreno.

»Se contempla el valor de la contratación a un profesional para que realice el diseño, la dirección de obra y el resto del personal (albañil oficial, medio oficial y peón).

» Se incluyen los valores de los derechos de construcción, como la habilitación municipal y otras tasas relacionadas, honorarios profesio-

nales por proyecto y dirección técnica (considerando la normativa fijada por el Colegio de Arquitectos de la Provincia de Córdoba) y las conexiones a servicios requeridos en el proceso de construcción, como agua corriente, energía eléctrica y gas natural, más el consumo de los mismos durante el mes de referencia

(excepto el consumo de gas).

»Se exceptúan los siguientes costos: el valor del terreno; gasto de flete por insumos; y, de infraestructura como la demarcación de calles, redes cloacales, eléctricas, de agua y otros gastos relativos al contexto en el cual se levanta la vivienda.

Revolución de las finanzas: la CNV aprobó una forma de invertir que moverá cifras millonarias

Con la aprobación de la representación digital de activos del mundo físico mediante tokens, Argentina se posiciona como líder regional de un gran mercado.

La Comisión Nacional de Valores (CNV) dio un paso disruptivo en la modernización del mercado de capitales argentino con la aprobación un régimen legal para la tokenización o representación digital de valores negociables atados a activos físicos, como inmuebles, maquinarias o productos agropecuarios.

"La tokenización lleva a que invertir en activos reales sea más simple, accesible y seguro. Permite fraccionar propiedades, automatizar reglas con smart contracts y reducir costos de intermediación", comenta a iProUP Juan Pablo Fridenberg, director de Asuntos Públicos en Lemon. "Es el inicio de un cambio de paradigma. A nivel global, la tokenización de activos del mundo real viene experimentando un crecimiento explosivo: el mercado actual ronda los $0,6 billones, pero se proyecta que en los próximos 5 años podría alcanzar entre u$s18 billones y u$s30 billones, convirtiéndose en uno de los ejes de las finanzas del futuro", añade.

Y remarca: "Con esta resolución, Argentina se posiciona como un actor regional relevante en la transición hacia un mercado de capitales híbrido, trazable y programable. Aunque el desafío sigue siendo lograr que esta normativa, evolucione hacia un ecosistema plenamente interoperable, donde la tokenización no sea una excepción, sino el nuevo estándar".

TOKENIZACIÓN: QUÉ ACTIVOS SE PUEDEN DIGITALIZAR

Rosendo Gravanago indica a iProUP que "se aprobó restringir inicialmente la tokenización a instrumentos respaldados por activos reales y concretos, evitando, por el momento, su aplicación sobre activos financieros con cotización bursátil, mayor exposición a volatilidad o riesgo de manipulación de mercado".

"Todo ello en el marco de un esquema experimental (sandbox regulatorio) de un año de duración, destinado a evaluar su funcionamiento antes de una eventual ampliación del régimen", agrega.

Gilberto Santamaría, del Estudio Santamaría Abogados, remarca a iProUP: "Es una normativa clave para representar digitalmente instrumentos financieros mediante tecnologías de registro distribuido (TRD), como blockchain, iniciando así un nuevo ciclo de innovación regulada".

"Esta primera etapa se limita a fideicomisos financieros y fondos comunes de inversión cerrados con oferta pública, con subyacentes que sean activos del mundo real (real world assets o RWA). Esto excluye a otros instrumentos clásicos como obligaciones negociables, acciones o valores verdes, que pueden ser incorporados en futuras etapas del régimen", completa Santamaría.

"El fideicomiso se potencia como el principal vehículo jurídico para la tokenización regulada, gracias a su flexibilidad y compatibilidad con activos físicos, desde inmuebles hasta maquinaria o commodities. Esto marca una evolución natural del fideicomiso financiero tradicional hacia una arquitectura digital", afirma.

"Por ahora se permite que activos reales se incorporen a un vehículo de inversión tradicional, como fideicomisos y fondos de inversión cerrados, y luego sean tokenizados. Estos tokens pueden ser ofrecidos solo por PSAV registrados en la CNV", subraya a iProUP Juan Diehl Moreno, de Marval, O’Farrell & Mairal.

El experto advierte que "queda pendiente incorporar la tokenización directa de todo tipo de activos, virtuales o no, sin que deban ser incorporados en forma previa a fideicomisos financieros o fondos comunes de inversión, o incluso de valores negociables con negociación en mercados habilitados del país".

"En el primer proyecto, la CNV contemplaba la posibilidad de tokenizar una amplia gama de instrumentos, incluyendo acciones de sociedades, CEDEAR y obligaciones negociables", recuerda Gravanago.

QUÉ PASA CON LOS ACTIVOS DEL MUNDO FÍSICO Fridenberg subraya que "la CNV habilitó un marco regulatorio para que los PSAV (Proveedores de Servicios de Activos Virtuales) puedan ofrecer tokens respaldados por activos del mundo real. Es un primer paso importante: por ahora, estos tokens solo podrán ofrecerse dentro de exchanges registradas".

"Si bien no se incluyeron valores negociables, marca el inicio de una nueva etapa, en la que la tecnología blockchain refuerza su integración con sectores de la economía. Ya hay experiencias con tokens de oro como PAXG y este nuevo marco acelerará casos similares con impacto en la economía local", expresa.

"En Lemon, gracias a la tokenización, cualquier argentino puede comprar $PAXG, un criptoactivo respaldado en lingotes físicos de oro real, desde $100 y en menos de un minuto. Cuando superó los u$s3.500 por onza en abril, registramos récord histórico en el volumen operado de oro tokenizado", ejemplifica.

TOKENIZACIÓN: CUESTIONES TÉCNICAS Y LEGALES

"Una de las claves del sistema es la equivalencia funcional: el token se considera tan válido como el título escritural. Un punto muy destacable es que la norma apuesta a la neutralidad tecnológica: no importa si se usa una blockchain pública, privada o híbrida, mientras garantice seguridad y trazabilidad", dice el experto en cripto Iván Bolé.

"Nos intriga qué cadenas van a ser las elegidas. Ethereum y Solana tienen buenas chances de ser elegidas, pero no son las únicas, y los PSAV locales son muy innovadores: seguro van a sorprendernos", comenta.

Diehl Moreno señala: "Sobre la titularidad de los valores negociables representados digitalmente, la CNV aclaró que son de titularidad de los clientes de los PSAV, y recordó que esta postura puede ser cuestionada por acreedores en procesos de quiebra, por lo que los inversores deberán tenerlo presente".

Tjor afirma que "se introdujo un concepto novedoso: segregación patrimonial, para separar valores negociables tokenizados del patrimonio de su titular registral ante el ADCVN (Agente Depositario Central de Valores Negociables), equivalente a la Caja de Valores en el mercado bursátil, en un paralelismo al patrimonio de afectación de un fideicomiso con su fiduciario".

"Es una protección adicional hacia los adquirentes, en caso de insolvencia del emisor y titular de dichos bienes representados, de conformidad con la Ley de Concursos y Quiebras: se equipara a bienes de terceros, no ejecutables por los acreedores", advierte.

"Una duda era la responsabilidad de registro. La norma define que habrá registro dual: el valor se mantiene en la caja tradicional (ADCVN) y, a la vez, se emite un token digital", Bolé.

Y aclara: "No hay bifurcación sino una capa 'extra' (envoltorio) vía tokenización: el token no es el activo en sí mismo, es una representación digital anclada a un título inmovilizado en el ADCVN, bajo custodia de un PSAV".

Bolé precisa que "el inversor conserva una posición única: su token digital y su asiento escritural reflejan la misma propiedad. Los PSAV gestionan de forma sincronizada los registros escritural y digital: bloquean ambos para evitar duplicidades o doble gasto. La propiedad del activo tokenizado se ejerce exclusivamente a través de ellos", precisa.

"En definitiva, los PSAV se erigen como nexo neurálgico del nuevo régimen: consolidan la posición del inversor y canalizan el ejercicio de sus derechos –voto, cobros, sustituciones–, ocupando un rol central en la arquitectura del sistema", concluye.

Fuente: www.iproup.com

SEGÚN EL INSTITUTO NACIONAL DE ESTADISTICAS Y CENSOS / INDEC

La

construcción

repuntó con fuerza y subió más de 25% interanual: los materiales más demandados

Así lo informó el INDEC, que también mostró un impulso en el acumulado del primer cuatrimestre. Los "artículos sanitarios de cerámica" sorprendieron en el ranking.

El indicador sintético de la actividad de construcción(ISAC) registró un fuerte crecimiento del 25,9% interanual en abril de 2025. Así lo indicó el Instituto Nacional de Estadística y Censos (INDEC), que también mostró una mejora interanual acumulada en los primeros cuatro meses del año.

El impulso reflejado en el acumulado del primer cuatrimestre (enero-abril) del año fue con una suba del 10,4% respecto al mismo periodo de 2024. Además, lo mismo ocurrió con la serie desestacionalizada, la cual aumentó 5,1% frente a marzo del 2025.

INSUMOS CON GRAN CRECIMIENTO

Entre los insumos con mayores aumentos, en el consumo interanual, se destacaron los artículos sanitarios de cerámica (84,2%) y las placas de yeso (82,6%), mientras que el resto (donde se incluyen grifería, tubos de acero sin costura y vidrio plano) fue el insu-

mo con menor aumento, con 6,2%.

» Artículos sanitarios de cerámica: 84,2%.

» Placas de yeso: 82,6%.

» Asfalto: 74,9%.

» Mosaicos graníticos y calcáreos: 55%.

» Hormigón elaborado: 50,3%.

» Pisos y revestimientos cerámicos: 41,4%.

» Hierro redondo y aceros para la construcción: 29,5%.

» Cemento portland: 27,7%

» Cales: 25,9%.

» Yeso: 20,9%.

» Pinturas para construcción: 19,8%.

» Ladrillos huecos: 15%.

» Resto: 6,2%.

En cuanto a los permisos de edificación, la superficie autorizada creció un 5,1% interanual en marzo, y un 4,8% en el primer trimestre (enero-marzo) del 2025.

Por otro lado, los puestos de trabajo registrados en el sector privado crecieron un 1,5% interanual en marzo. Sin embargo, obtuvo una caída del 2,5% en el primer trimestre del año.

PREDICCIONES

En cuanto a expectativas empresarias, las encuestas cualitativas relevadas del INDEC son en su mayoría positivas.

El 67,6%% de las empresas que realizan obras privadas prevé que el nivel de la actividad no variará entre abril y junio, mientras que el 17,6% espera una baja y el 14,8% restante espera una suba.

En el segmento de la obra pública, el 59,8% prevé que no variará el nivel de actividad, mientras que un 20,6% cree que disminuirá y el 19,6% restante que aumentará.

Fuente: www.losandes.com.ar

La venta de insumos para la construcción registró una nueva baja de 12% en mayo

El Índice Construya (IC), que mide la evolución de los volúmenes vendidos al sector privado de los productos para la construcción que fabrican las empresas que lo conforman, registró una baja del 12,1% en mayo comparado con el mes anterior, y mientras que el IC registró una suba de 8,9% a nivel interanual.

De esta forma, el acumulado de enero-mayo de 2025 cerró 10,5% por encima del mismo período del año anterior.

"La dinámica del índice Construya muestra que la demanda de insumos se está recuperando a un ritmo muy gradual. Y los despachos mensuales están expuestos a una elevada volatilidad, como la que venimos observando en el último año. Hacia adelante, esperamos que en la me-

dida que el proceso de estabilización continúe su marcha, la recuperación de la cadena de valor de la construcción pueda consolidarse y comience a crecer", explican desde Construya.

Cabe resaltar que el índice mide la evolución de los volúmenes vendidos al sector privado de los siguientes productos para la construcción que fabrican las empresas líderes que conforman el Grupo Construya: ladrillos cerámicos, cemento portland, cal, aceros largos, carpintería de aluminio, adhesivos y pastinas, pinturas impermeabilizantes, sanitarios, calderas y sistemas hogareños y centrales de calefacción, grifería y sistemas para conducción de agua y gas, pisos, revestimientos cerámicos y materiales eléctricos y electrónicos.

SEGÚN EL GRUPO CONSTRUYA
Hacé click aquí para ver el INFORME COMPLETO

COMPOSICIÓN COSTOS: A + B

Muro elevación ladrillos comunes 30 cm de espesor, con revoques exterior e Interior a la cal comunes. Cimentación que incluye excavación en suelo normal, zapata sin opciones, mampostería de cimientos y capas aisladoras; sin detalle.

1

CONSTRUCTIVAS Y SUS COSTOS

2

Los valores aquí expresados son referenciales y corresponden a costos directos: MATERIALES + EJECUCIÓN (Mano de Obra + Equipos), calculados como de producción industrial, utilizando rendimientos estándares, precios de materiales e insumos en general relevados por Revista Cifras en mostrador de comercios locales minoristas de la construcción; y con jornales de mano de obra según UOCRA. No incluyen costos indirectos (GG-Gastos Generales, Be-Beneficios, IVA).

LOSA DE HORMIGÓN ARMADO CONTERMINACIÓN BALDOSA CERÁMICA O DOBLADO DE LADRILLOS

LOSA DE HORMIGÓN

VERDE (AZOTEA JARDÍN) S/LOSA DE HORMIGÓN ARMADO

LOSA DE HORMIGÓN ARMADO CON AZOTEA SECA

CHAPA H°G° S/ESTRUCTURA METÁLICA

CUADRO COMPARATIVO DE COSTOS DEL

M2 DE CONSTRUCCIÓN EN ARGENTINA

Índices y porcentajes de aumentos del costo del M2 del último

CAPER - Colegio de Arquitectos de la Provincia de Entre Ríos Vivienda urbana - 0,89%

OSCAR CASABIANCA - Precios con flete incluÍdo)

Tijera elevadora

elevadora

Tijera elevadora altura de trabajo 14 m - x día con bonificación de 1 día x alquilar semana completa

RICARDO MALLOZZI SA

PRECIOS DE MATERIALES

Los mismos han sido relevados al 27/06/25 en «mostrador», por unidad y con IVA incluido (21%), salvo que se indique expresamente lo contrario. Por tal motivo, deben tomarse como valores meramente orientativos que pueden presentar variaciones de acuerdo a la oferta y demanda del mercado.

Podés descargar todos los costos desde:

cifrasonline.com.ar/Costos/todosloscostos

ADISOL - Emcisa

Acelerante de fragüe Adisol 3 x 2 kg $ 8.000,00

Acelerante de fragüe Adisol 3 x 5 kg $ 17.300,00

Ligante Adisol Látex x 2 kg $ 25.200,00

Ligante Adisol Látex x 5 kg $ 54.600,00

Ligante Adisol Látex x 20 kg $ 190.300,00

SIKA - Mariutti

Acelerante de endurecimiento Sikacrete x 20 kg $ 57.400,00

Acelerante de fragüe Sika 3 x 20 kg $ 53.400,00

Hidrófugo Sika 1 x 20 kg $ 29.000,00

Ligante Sikacim x 20 lt $ 106.000,00

AISLANTES TÉRMICOS E IMPERMEABILIZANTES

INROT - Centro de la construcción en seco

Lana de vidrio 50 mm con papel aluminio 21,60 m $ 4.204,99

Lana de vidrio con papel Kraft 50 mm $ 4.666,87

MEGAFLEX - Emcisa

Asfalto secado rápido Megaflex x 1 lt $ 90.000,00

Asfalto secado rápido Megaflex x 4 lt $ 27.400,00

Asfalto secado rápido Megaflex x 18 lt $ 98.700,00

Emulsión asfáltica Megaflex caja x 18 kg $ 30.600,00

Membrana Megaflex con Aluminio MGX 400 No crack rollo de 10 m2 $ 90.000,00

PLAVICON - Emcisa

Plavicon Acrílico Semimate p/ladrillo y teja 20 lt $ 200.700,00

Plavicon Fibrado x 20 kg $ 165.100,00

Plavicon Frente x 25 kg $ 172.700,00

Plavicon Interior x 20 lt $ 160.200,00

Plavicon Muros x 25 kg $ 212.800,00

Plavicon Recovril (texturado) x 25 kg $ 138.300,00

Plavicon Transparente x 20 lt $ 171.200,00

Plavipint Fibrado x 20 kg sin cotizar

QUIMTEX - Revestimientos Santa Fe

QUIMTEX impermeable para techos-varios colores x 20 lt $ 85.500,00

QUIMTEX impermeabilizante de muros blanco x 20 lt $ 125.000,00

SIKA - Mariutti

Sikalastic 560 Blanco 20 kg $ 190.000,00

TELGOPOR - Emcisa

Placa STD 1m espesor: 10 mm Induspol $ 1.900,00

Placa STD 1m espesor: 20 mm Induspol $ 3.900,00

Placa STD 1m espesor: 25 mm Induspol $ 4.800,00

TÉRMICOS Y ACÚSTICOS 100% INCOMBUSTIBLE

A JUNIO 2025

Negro recocido N° 9 x kg $ 3.443,09

Negro recocido N° 16 x kg $ 3.386,64

AMOBLAMIENTOS COCINA Presisso

Gabinete melamina color Aluminio 15mm. Puertas laminado Nature 18mm. Cantos PVC 2mm

Alacena de 40 (h=80) 1 puerta de abrir $ 88.465,00

Alacena de 45 (h=90) cubre calefón (sin piso, techo, estantes) 1 puerta de abrir $ 119.974,00

Alacena de 50 (h=80) 1 puerta de abrir $ 95.793,00

Alacena de 50 (h=90) cubre calefón (sin piso, techo, estantes) 1 puerta de abrir $ 127.579,00

Alacena de 60 (h=65) 1 puerta de abrir (sobre purificador clásico) $ 105.729,00

Alacena de 60 (h=80) 1 puerta de abrir $ 102.843,00

Alacena de 70 (h=80) 2 puertas de abrir $ 127.097,00

Alacena de 80 (h=80) 2 puertas de abrir $ 137.334,00

Alacena de 90 (h=80) 2 puertas de abrir $ 145.627,00

Alacena de 100 (h=80) 2 puertas de abrir $ 153.921,00

Alacena de 110 (h=80) 2 puertas de abrir $ 162.215,00

Alacena de 120 (h=80) 2 puertas de abrir $ 169.953,00

Alacena esquinera recta de 35 x 70 (h=80) $ 114.010,00

Bajo esquinero recto de 60 100 (h=80) 1 puerta profundidad 57,5 cm + puerta $ 160.174,00

Bajo mesada de 40 (h=80) 1 puerta de abrir profundidad

57,5 cm + puerta $ 96.192,00

Bajo mesada de 50 (h=80) 1 puerta de abrir profundidad

57,5 cm + puerta $ 104.485,00

Bajo mesada de 60 (h=80) 1 puerta de abrir profundidad

57,5 cm + puerta $ 112.501,00

Bajo mesada de 70 (h=80) 2 puertas de abrir profundidad

57,5 cm + puerta $ 138.203,00

Bajo mesada de 80 (h=80) 2 puertas de abrir profundidad

57,5 cm + puerta $ 149.406,00

Bajo mesada de 90 (h=80) 2 puertas de abrir profundidad

57,5 cm + puerta $ 158.665,00

Bajo mesada de 100 (h=80) 2 puertas de abrir profundidad 57,5 cm + puerta $ 167.925,00

Bajo mesada de 110 (h=80) 2 puertas de abrir profundidad 57,5 cm + puerta $ 176.943,00

Bajo mesada de 120 (h=80) 2 puertas de abrir

50 3 cajones (16+28+36 cm) (h=80 cm)- con sistema PREMOTION $ 369.483,00 ARENAS PIEDRAS - TRITURADOS Aremat

Jabonera chica de pegar blanca $ 6.196,51

Percha simple Capea $ 4.821,93

Portarrollo de pegar Capea $ 8.948,69

Portavaso de pegar Capea $ 6.196,51

ARTEFACTOS SANITARIOS

Asiento Daccord línea italiana - herraje metálico $ 35.749,99

Bañera Sacha Roca 140/70 $ 220.877,89

Bidet Capea $ 65.695,76

Depósito normal entrada derecha plástico $ 18.458,86

Inodoro corto Capea $ 64.301,62

Lavatorio chico Capea $ 31.516,54

Pileta de lavar de loza 507 x 345 Capea $ 60.930,38

GRIFERÍAS

FV

Canilla para riego FV 436-13-c - cromada $ 15.123,02

Grifería de cocina de embutir FV Allegro 0403/15- cromada $ 115.990,29

Grifería de ducha FV Allegro 0103/15, cromada $ 152.024,27

Grifería de ducha FV Newport $ 130.103,04

Grifería de lavatorio FV Allegro 207/15 cromada $ 134.408,76

Grifería de pared pico móvil FV Allegro 420/15 $ 36.442,98

INSTALACIONES

Adaptador Tanque 1 Mh Pp $ 2.539,29

BoyaTelgopor Flotante p/tanque 1/2 $ 2.904,86

Cámara Insp 60x60x50 Cemento $ 81.180,00

Caño Cámara Mh Pvc 110 $ 3.605,35

Caño PVC 100 x 4 m Reforzado $ 10.641,09

Caño PVC Clásico 110 Tigre 2,8 $ 16.864,07

Caño PVC Clásico 40x4x3.2 $ 6.456,21

Caño PVC Clásico 50x 4 X 3.2 $ 8.345,14

Caño PVC Clásico 63x 4 X3.2 $ 10.641,09

Embudo vertical 110x3.2 R PVC $ 3.383,32

Flexible cromado 1/2x 25 Chicote $ 3.243,77

Flotante para tanque 1/2 RD $ 9.450,66

Llave de Paso 13 Hh hierro 471b $ 10.053,87

Llave de Paso Bronce Hh19 H 471b $ 12.891,00

Pileta de piso multipropósito 15 x 15 PVC $ 4.390,21

Sifón simple con fuelle Cirino $ 3.839,74

Sopapa 40 Plastic Monarca $ 1.183,34

Tanque Tricapa Rotoplast 1.100 lt $ 240.604,90

Tubo 1/2 K6 Grado 2 m $ 533,05

Tubo 3/4 K4 Grado 2 m $ 742,08

Ventilación tanque $ 2.033,04

BIODIGESTORES | Colomé

Biodigestor x 850 lt $ 775.392,80

Biodigestor x 1.300 lt $ 847.637,24

CALES

Aremat

Cal hidratada Santa Elena x 25 kg $ 6.896,00

Cal viva molida/triturada x 25 kg $ 8.254,00

Santa Fe Materiales

Cal hidratada Andina x 25 kg $ 7.695,32

Cal viva molida/triturada LCB x 25 kg sin cotizar

CAÑOS ESTRUCTURALES | Fisa Metal

Caño estructural espesor 1.2 mm x kg $ 2.120,68

Caño estructural espesor 1.6 mm x kg $ 2.120,68

Caño estructural espesor 2.0 mm x kg $ 1.919,10

Lana de vidrio Isover sin papel aluminio 50 mm x m $ 4.080,22

ALAMBRES | Fisa Metal

Galvanizado N°16 (1.62 mm esp-rollo 40/60 kg) x kg $ 3.539,85

Tecnoperfil

CEMENTOS

Aremat

Cemento de albañilería Revofácil x 40 kg $ 8.559,00

Cemento Holcim x 50 kg $ 10.370,00

Santa Fe Materiales

Cemento Avellaneda

Según la Municipalidad de Reconquista

En Junio, los precios de los materiales de construcción registraron movimientos dispares

La Municipalidad de Reconquista difundió el informe mensual con los precios actualizados de los materiales de construcción, correspondiente al mes de junio de 2025. El relevamiento, realizado por la Oficina de Estadísticas y Censo, revela movimientos dispares en los valores registrados y sugiere oportunidades estratégicas para quienes tienen obras en marcha o planean comenzar nuevos proyectos.

SUBAS DESTACADAS

Los ladrillos lideran el alza de precios con un incremento promedio del 4,56% respecto de mayo, marcando la principal variación positiva del mes. En segundo lugar, aparecen los hierros y perfiles, aunque con una suba mucho más leve, cercana al 0,33%.

PRODUCTOS EN BAJA

En contraste, algunos materiales esenciales mostraron descensos significativos. El precio de los áridos —particularmente piedras y arena— cayó un 2,57%, mientras que el hormigón registró una variación negativa del 0,89%. Estos movimientos representan una oportunidad para la compra inteligente, especialmente en aquellas obras que demandan grandes volúmenes de estos insumos.

SIN VARIACIONES

Las chapas y cubiertas, por su parte, se man-

tuvieron estables en comparación con el mes anterior, sin cambios en sus valores.

RECOMENDACIONES

De acuerdo al informe, junio se presenta como un mes adecuado para avanzar en la adquisición de áridos y hormigón, relegando momentáneamente la compra de ladrillos debido a su encarecimiento. Estos datos permiten optimizar los recursos en función del comportamiento del mercado local. Fuente: www.reconquistahoy.com

En un contexto donde el diseño interior pone especial énfasis en los detalles, el baño dejó de ser un espacio secundario para convertirse en el verdadero protagonista de los proyectos arquitectónicos.

En esta evolución, la grifería ocupa un rol central no solo como un componente funcional, sino también como un elemento estético capaz de definir el carácter de un ambiente a través de las texturas, los colores y las formas. Atenta a esta tendencia, Novum, la primera marca de grifería premium fabricada en Argentina bajo los más altos estándares mundiales, creó Diamond, Knurling, Rings y Vertical Lines. Se trata de cuatro texturas diferentes que están presentes en sus lanzamientos más recientes, las líneas J2-Lollipop y K9-Slice.

J2-Lollipop y K9-Slice son griferías de baño de dos llaves que fueron diseñadas para aportar originalidad y sofisticación a los espacios, debido a que cuentan con superficies cuidadosamente trabajadas que dialogan con otros materiales del entorno, como la piedra, el mármol, la madera o el vidrio. Las distintas opciones de textura no solo generan contraste visual, sino que también invitan al tacto. De esta manera, crean una experiencia sensorial que trasciende lo utilitario. Con estos lanzamientos, Novum refuerza su posicionamiento como una marca que no solo sigue las tendencias globales, sino que también las reinterpreta desde una perspectiva local, con una propuesta basada en la calidad, la innovación y el diseño exclusivo. Actualmente, sus productos son reconocidos a nivel internacional por ICFF, IFDA, Dwell on Design y Good Design Awards.

Más información ingresar en https://novumdesign.com.ar/

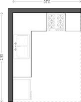
BAÑO ESTÁNDAR

ARQ. LUCIANA PARERA Mat CAU N° 6599 +54 9 3425 43-6011

PARA LA REGIÓN LITORAL-CENTRO DE LA REPÚBLICA ARGENTINA

01 | BAÑO ESTÁNDAR

Incluye materiales, mano de obra y equipos para la colocación/montaje de artefactos, piezas y accesorios para la instalación completa y reglamentaria. Referencia artefactos y grifería de COLOMÉ.

Intalación sanitaria

Accesorios baño línea ALIZE de VASSER: toallero corto, toallero largo, percha, porta cepillo, porta rollo y jabonera

Bacha línea MAHLER: 1 agujero, 0.60 m con griferia monocomando línea KASSIA VASSER

Bidet MÓNACO con griferia monoc. KASSIA VASSER

Grifería para ducha monocomando línea KASSIA VASSER

Inodoro con depósito línea MÓNACO

Mobiliario

Mueble para bacha MAHLER 0.60 m, suspendido línea

Instalación eléctrica

Incluye

Baño: 4.00 m2

Se consideran 3 niveles de terminaciones para un baño de 4.00 m2 (1.60m x 2.50m). No se contemplan trabajos preliminares de demoliciones ni honorarios profesionales.

BAÑO PREMIUM

Baño: 4.00 m2

Incluye materiales, mano de obra y equipos para la colocación/montaje de artefactos, piezas y accesorios para la instalación completa y reglamentaria. Referencia artefactos y

Intalación sanitaria

Accesorios para baño línea CYRANO de VASSER: toallero corto, toallero largo, percha, porta cepillo, porta rollo y jabonera

Bidet línea DAMA de SENSO con grifería monocomando línea KASSIA de VASSER

Grifería para ducha monocomando, de embutir, línea LYRA de VASSER 1 u

Inodoro con depósito, línea DAMA de SENSO 1 u

Mampara (vidrio templado 10mm) 0.60 m x 2,10

Mesada loza 0.60 línea BUONA con grifería monocomando línea LYRA de VASSER

Plomería - Cañería, Pileta de patio y Llaves de Paso

Mobiliario

Vanitory 0.60 m Melamina silver colorwengue

Instalación eléctrica

Incluye materiales, mano de obra y equipos de apertura canaletas/zanjas, corte y pegado/roscado y colocación/montaje cañería, piezas, artefactos y accesorios para la instalación completa y

Artefacto de luz plafón LED + Spots embutidos

Tomas y bocas de electricidad

Pisos

Porcelánico marca SWEDEN 20 x 120 mm, Natural

Revestimientos

Porcelanato ZEN gris 61 cm x 61 cm

Cielorraso

Placas de yeso común junta tomada con aislación

Decoración

Espejo cristal 6mm. 1 m x 1 m

03 | BAÑO PREMIUM

Incluye materiales, mano de obra y equipos para la colocación/montaje de artefactos, piezas y accesorios para la instalación completa y reglamentaria. Referencia artefactos y grifería de COLOMÉ. Intalación sanitaria

Accesorios baño ZAFIRO VASSER Toallero corto/toallero largo/percha/porta cepillo/porta rollo/jabonera

Bañera clásica BAGNARA 150x70 c/grifería Emb. LIBBY

Bidet INSPIRA c/ grifería LIBBY

Inodoro c/depósito INSPIRA

Mampara (vidrio templado 10mm) 0.80mx2.10

Mesada loza 0.60m BUONA c/griferia LIBBY

Plomería - Cañería, Pileta de patio y Llaves de Paso

Mobiliario

Vanitory 0.60m melamina blanca

Instalación eléctrica

Incluye materiales, mano de obra y equipos de apertura canaletas/zanjas, corte y pegado/roscado y colocación/montaje cañería, piezas, artefactos y accesorios

Artefacto de luz plafón LED + Spots embutidos

Revestimientos

Porcelanato CAVA

Cielorraso

Placas de yeso común junta

AUGUSTA

PRO, la nueva grifería de cocina de FV

La línea, que combina diseño, funcionalidad y tecnología, se destaca por elevar la experiencia en la cocina y adaptarse a distintos estilos con múltiples acabados.

FV, empresa líder en Argentina e Hispanoamérica en la fabricación y comercialización de grifería de alta tecnología, presenta Augusta Pro, la evolución de una de sus líneas más reconocidas para cocina. Con nuevo rociador extensible y variedad de acabados, Augusta Pro ofrece una experiencia superior en diseño, uso y estilo.

Diseño que evoluciona, tecnología que inspira. En la cocina moderna, donde cada detalle importa y cada elemento suma, nace Augusta Pro, la evolución de una grifería que ya marcó tendencia. Porque cuando pensábamos que Augusta ya lo había dicho todo, llega esta nueva versión que redefine la experiencia gourmet con innovación, versatilidad y estilo.

Augusta Pro mantiene la esencia que convirtió a su antecesora en una favorita del público: sistema monocomando, instalación práctica con un solo orificio, y brazo extensible tipo duchador que facilita las tareas diarias con mayor libertad de movimiento. Pero ahora, da un paso más allá.

El nuevo rociador extensible amplía su alcance y funcionalidad, permitiendo una limpieza más eficiente y cómoda, tanto de alimentos como de utensilios. Además, cuatro nuevos acabados –además del clásico cromo– ofrecen múltiples opciones para adaptarse a diferentes estilos de cocina: del minimalismo elegante al diseño más audaz.

Su diseño renovado, con líneas elegantes y detalles que resaltan la sofisticación, convierte a Augusta Pro en el centro de todas las miradas. Es más que una grifería: es una pieza de diseño pensada para quienes viven la cocina con pasión y buscan rendimiento sin renunciar a la estética.

Augusta Pro. Porque la evolución del diseño también se siente en cada gota.

Para más información ingresar en www.fvsa.com.

ARQ. LUCIANA PARERA Mat CAU N° 6599 +54 9 3425 43-6011

COCINA ESTÁNDAR

Cocina: 6.40 m2

Se consideran 3 niveles de terminaciones para una cocina de 6.40m2 (2.90m x 2.20m). No se contemplan trabajos preliminares de demoliciones ni honorarios profesionales.

COCINA PREMIUM

COSTO SUGERIDO PARA

PARA LA REGIÓN LITORAL-CENTRO DE LA REPÚBLICA ARGENTINA

01 | COCINA ESTÁNDAR

Intalación sanitaria

Incluye materiales, mano de obra y equipos para la colocación/montaje de artefactos, piezas y accesorios para la instalación completa y reglamentaria. Referencia artefactos y grifería de COLOMÉ.

Pileta de cocina simple Z52 52 x 32 x 13 Johnson con grifería para mesada monocomando TROYA VASSER

Plomería Cañería pileta de patio y llaves de paso

Instalación gas

Incluye materiales, mano de obra, piezas y accesorios para la instalación completa y reglamentaria.

Cañería y llaves de paso

Instalación eléctrica

Incluye materiales, mano de obra y equipos de apertura canaletas/zanjas, corte y pegado/roscado y colocación/montaje cañería, piezas, artefactos y accesorios

Cielorraso

Placas de yeso común junta tomada con aislación

02 | COCINA SUPERIOR

Intalación sanitaria

Incluye materiales, mano de obra y equipos para la colocación/montaje de artefactos, piezas y accesorios para la instalación completa y reglamentaria. Referencia artefactos y grifería de COLOMÉ. Pileta doble C28 Jonhson con grifería para mesada monocomando LYRA VASSER

Plomería - Cañería pileta de patio y llaves de paso

Instalación gas

ncluye materiales, mano de obra, piezas y accesorios para la instalación completa y reglamentaria.

Cañería y llaves de paso

Instalación eléctrica

Incluye materiales, mano de obra y equipos de apertura canaletas/zanjas, corte y pegado/roscado y colocación/montaje cañería, piezas, artefactos y accesorios para la instalción

Artefacto: spot semiembutido AR111 móvil + spot embutir metal

Tomas y bocas de electricidad

Pisos

Porcelánico marca SWEDEN 20 x 120 mm, natural

Revestimientos

Porcelanato ZEN gris 61 cm x 61 cm

Mobiliario (Simil madera melamina- Perfil Gola)

Alacena 0,80 sobre heladera 2 puertas

Alacenas horizontales de 80 cm

Alacena sobre repisa porta horno microondas

Bajo cajonero 0,50 m 3 cajones con sistema Premotion

Bajo esquinero recto 1 m 1 puerta

Bajo mesada 0,50 m (h:0.80m) 1 puerta

Bajo pileta de 1 m (h:0.80m) 2 puertas

Granito negro brasil 2 cm

Repisa porta horno microondas 0,50/0,60

Cielorraso

Placas de yeso común junta tomada con aislación

Placas de yeso común para cajón sobre mesada 0.60m profundidad

03 | COCINA PREMIUM

Intalación sanitaria

Cocina: 6.40 m2

y

Incluye materiales, mano de obra y equipos para la colocación/montaje de artefactos, piezas y accesorios para la instalación completa y reglamentaria. Referencia artefactos y grifería de COLOMÉ. Pileta simple SI 55A Jonhson con grifería para mesada monocomando ZAFIRO VASSER

Plomería - Cañería pileta de patio y llaves de paso

Instalación gas

Incluye materiales, mano de obra, piezas y accesorios para la instalación completa y reglamentaria.

Cañería y llaves de paso

Instalación eléctrica

Incluye materiales, mano de obra y equipos de apertura canaletas/zanjas, corte y pegado/roscado y colocación/montaje cañeria, piezas, artefactos y accesorios para la instalción completa y reglamentaria. Referencia:

Artefactos: spots + tira LED

Tomas y bocas de electricidad

Revestimientos

Mobiliario

SEGÚN EL COLEGIO DE ARQUITECTOS DE LA PROVINCIA DE CÓRDOBA

El

costo del M2 de construcción llegó a $ 1.484.364,31

En la actualidad, edificar una casa promedio con el sistema de construcción Steel frame (en seco) demanda un presupuesto que ronda los $ 160 millones, mientras que el costo por metro cuadrado llega a $ 1.620.621,98.

El dato surge del informe del Instituto de Estadísticas y Costos (IEC) del Colegio de Arquitectos de la Provincia de Córdoba (CAPC), que desde junio de 2025 incorporó esta novedad con datos actualizados a mayo pasado, lo que permite hacer la comparación con los costos de construcción de una vivienda tradicional sobre la base del mismo diseño.

El IEC, dirigido por las arquitectas Soledad Salgado y Verónica Bariña, trabaja con un modelo de simulación referencial para una vivienda unifamiliar (es decir, alberga a un solo núcleo de familia tipo) estándar de 130 metros cuadrados construida en planta baja con tres dormitorios, baño, estar comedor, cocina, lavadero, toilette y garaje (no contempla el costo del terreno).

Asimismo, el informe discrimina el monto de obra total en seco ($ 59.454.289,34), los honorarios profesionales referenciales según monto total de obra por proyecto, pero sin detalles y conducción técnica ($ 14.552.139,03), el precio por metro cuadrado básico de obra más honorarios ($ 1.338.510,99) y el costo por metro cuadrado de obra más honorarios, cargas sociales e impuestos ($ 1.620.621,98).

Obra tradicional Los costos de la construcción en seco se ubican por encima de la obra tradicional: con datos actualizados a mayo pasado, edificar

una casa promedio demanda un presupuesto que supera los $ 140 millones y el costo por metro cuadrado llega a $ 1.484.364,31, según la última estimación del IEC que periódicamente actualiza estos indicadores clave para los profesionales del sector y la comunidad. Cabe recordar que desde febrero de 2024 el IEC incorporó una nueva modalidad a la carga de valores de materiales: reemplazó el promedio de precios mínimos y máximos por un “precio único intermedio” de mercado. Debido a la coyuntura económica que transita Argentina en los últimos años, se incorporó

el ajuste para lograr mayor precisión en el resultado del “costo por metro cuadrado” de referencia y mejorar el servicio a los profesionales matriculados del CAPC.

El informe discrimina el monto de obra total ($ 141.182.707,47), los honorarios profesionales referenciales según monto total de obra por proyecto sin detalles y conducción técnica ($ 12.884.635,44), el precio por metro cuadrado básico de obra sumando honorarios ($ 1.185.133,41) y el costo por metro cuadrado de obra sumando honorarios, cargas sociales e impuestos ($ 1.484.364,31).

2.161 U$S es el valor del M2 residencial en Bs. As.

El precio promedio de cierre por metro cuadrado en la Ciudad de Buenos Aires registró un incremento interanual del 15,68 %

El Índice del M2 Real, desarrollado conjuntamente por la Universidad del CEMA, RE/ MAX Argentina y Reporte Inmobiliario, releva mensualmente los valores efectivos en los que se concretan operaciones de compraventa, proporcionando una referencia precisa y confiable sobre la evolución del precio real de cierre en el mercado inmobiliario.

Este índice refleja el valor promedio del metro cuadrado concretado en operaciones reales en la Ciudad de Buenos Aires, diferenciándose del valor de publicación y permitiendo analizar tanto su evolución en el tiempo como la brecha entre ambos.

En mayo de 2025, el precio promedio de cierre se ubicó en 2.161 U$S/m² para departamentos usados de 1 a 3 ambientes. Aunque esto representa una suba respecto del año anterior, el valor actual aún se encuentra un 1,03 % por debajo del registrado en enero de 2020, inicio de la serie histórica. Al desagregar por tipología los precios por m2 fueron los siguientes:

» Monoambientes: 2.315 U$S/m²

» 2 ambientes: 2.186 U$S/m²

» 3 ambientes: 2.084 U$S/m²

En cuanto a la diferencia entre el último precio publicado y el valor final de cierre, la brecha promedio (o contraoferta) fue de -4,64 %, ampliándose levemente frente al -3,81 % del mes anterior.

A pesar del aumento, este indicador se man-

por debajo del

por décimo cuarto mes consecutivo, reflejando una mayor cercanía entre oferta y concreción en el mercado. Fuente: www.reporteinmobiliario.com/

PRECIO DEL M2 REAL DE CIERRE DE MAYO

Aclaraciones: No incluye mobiliarios de cocina, placard, pergolado de galería y asador Los Costos Evaluados no son contractuales. steelwork.com.ar

En cada publicación se desarrollarán los costos de construcción de un prototipo bajo sistema de construcción en seco con exclusividad para Revista CIFRAS

El nterés es poder brindar costos de referenc a para s stema de construcción en seco Stee Framing y Drywall

Los costos de materiales resu tan de los relevamientos realizados por a empresa, s endo considerado el prec o promedio entre d ferentes oferentes de mercado

La mano de obra se desarro ló considerando los costos de producción bajo sistema de contratación UOCRA Los resultados finales en ambos casos contemplan IVA (21%), Gastos Genera

y Beneficios

Arq. Humberto Annichini Arq. Walter Meza
Item Descripción de Items Materiales Mano de Obra Material y Mano de Obra % de Incidencias

PERFORACION DE PILOTES

ARMADURA DE PILOTES

TECNOLOGÍA AVANZADA

SOLUCIONES INTEGRALES

PERSONAL CAPACITADO

TECNOLOGÍA AVANZADA

San Jerónimo 3443,ciudad de Sta. Fe +54 9 342 4671100 fundacionesintegralespilotes contacto@fundacionesintegrales.com

$1.298.905,55

es el costo del M2 de construcción

$1.298.905,55 es el costo del M2 de construcción de una vivienda tipo de 77,10 M2 JUNIO 2025

los precios de los materiales de construcción.

En efecto, en los últimos doce meses la variación interanual del costo de mano de obra trepó 50,80 %. En el mismo periodo, los materiales aumentaron 6,42 %.

El Índice CIRCOT, que elabora la Facultad de Ingeniería de la Universidad Nacional de San Juan, reveló los datos de junio para una casa de 77 m2. En comparación con el nivel nacional, en la provincia es más barato edificar. Nuevos datos sobre los costos de construcción en San Juan. En junio para construir una casa familiar nueva, de tres dormitorios y 77 metros cuadrados, hay que invertir 100.145.617,77 de pesos, una cifra que vuelve cada vez más inaccesible la casa propia para miles de sanjuaninos.

Pese al incremento, los índices a nivel nacional muestran que es hasta $94.000.000 más barato edificar en la provincia.

El dato lo reveló el informe mensual del Índice CIRCOT, elaborado por la Facultad de Ingeniería de la UNSJ, para una vivienda tipo FONAVI. De acuerdo a estos técnicos, construir un solo metro cuadrado en San Juan ya sale casi 1.300.000 pesos.

El metro cuadrado en los últimos tres años aumentó 955,19%, comparando los costos de junio de 2022 con los de igual mes de 2025. En marzo pasado, el diario La Nación informó que, según fuentes inmobiliarias, el costo de construcción de una casa promedio rondaba

1,51% más que en Mayo 2025 23,83% variación respecto a Junio 2024

los US$2100 -$2.520.000 en base al dólar oficial, cercano a los $1.200-. Ahora bien, si se multiplica por 77 m², construir una casa de ese tamaño rondaría los $194.040.000.

UN METRO CUADRADO, POR LAS NUBES

El costo del metro cuadrado construido en San Juan en junio trepó a 1.298.905,55 pesos, alcanzado un incremento del 23,83 por ciento respecto al mismo mes del año pasado. Este aumento significativo se debe principalmente al incremento en la mano de obra, más que en

VARIACIÓN MENSUAL

Este mes aumentó 1,51% respecto a mayo, y otra vez estuvo impulsado principalmente por el incremento del costo de la mano de obra. Los albañiles recibieron un aumento en sus tareas del 2,20% en 30 días.

En tanto, los materiales se ajustaron un 0,85%, pese a que las ventas en las ferreterías están planchadas y los comerciantes recurren a estrategias de 2x1 y descuentos para impulsar el consumo. Mirá la evolución mensual:

» Enero: $1.201.584,39.

» Febrero: $1.205.440,56

» Marzo: $1.263.530,06

» Abril: $1.278.044,94

» Mayo: $1.279.622,84

» Junio: $1.298.905,55

Según el CIRCOT, durante Junio 2025

El mercado eléctrico argentino se transforma

Más demanda, más tecnología y nuevos hábitos de compra

El mercado de materiales eléctricos en Argentina evoluciona con mayor demanda, tecnología y nuevos hábitos de compra. Empresas como Electrofer marcan la diferencia con asesoramiento técnico, variedad de productos y venta online adaptada a las exigencias actuales.

En un contexto donde la tecnología avanza y las obras exigen cada vez más precisión, el mercado de materiales eléctricos en Argentina se ha vuelto un eje clave para todo tipo de proyectos, desde una instalación doméstica hasta grandes desarrollos industriales. La demanda crece en volumen y en especificidad, y los proveedores que logran responder con variedad, asesoramiento y buen servicio son los que marcan la diferencia.

La diversidad de productos que hoy se utilizan en una obra eléctrica va mucho más allá de cables y luminarias. Hoy, un electricista o contratista necesita acceder a sensores, protectores, porteros, bombas, sistemas de automatización, materiales de señalización, herramientas técnicas y soluciones LED eficientes. Y todo eso, con entrega rápida y respaldo profesional.

En este escenario, empresas como Electrofer se destacan por su experiencia y su propuesta integral. Con más de 25 años en el rubro, ofrecen un catálogo pensado para profesionales y particulares que buscan productos confiables, asesoramiento técnico real y precios competitivos.

Uno de los grandes cambios del último tiempo es la migración de muchas compras al canal digital. La posibilidad de buscar, comparar y adquirir materiales eléctricos online, con fichas técnicas claras y atención directa, cambió la forma en que se planifican las obras. Electrofer responde a esa tendencia con una plataforma pensada para facilitar el proceso, desde el primer clic hasta la entrega en obra.

Otro punto relevante es el rol del asesoramiento. En un rubro donde una mala elección puede implicar un riesgo o una demora, contar con personal capacitado que entienda las necesidades técnicas y proponga soluciones concretas es tan importante como tener buen stock. La atención especializada sigue siendo una de las principales razones por las que muchos profesionales eligen proveedores técnicos por sobre opciones genéricas. El sitio de Electrofer permite acceder al catálogo completo, solicitar asesoramiento y realizar pedidos con envío a todo el país. Esta combinación de alcance, experiencia y variedad convierte a este tipo de plataformas en aliados estratégicos para quienes trabajan con cronogramas, presupuestos cerrados y estándares de calidad cada vez más altos.

En definitiva, el mercado de materiales eléctricos en Argentina no solo crece: se transforma. Y elegir proveedores que estén a la altura de esa evolución es una forma concreta de garantizar seguridad, eficiencia y continuidad en cada proyecto.

Fuente: www.elcomercioonline.com.ar

Tarifas Ciudad

SUGERIDOS PARA

DESCRIPCIÓN COSTO

01 | INSTALACIONES NUEVAS, REFACCIONES O AMPLIACIONES

Visita, inspección, diagnóstico y asesoramiento

Factor unitario para instalaciones varias ( x 1 boca)

Precio por boca terminada

Instalación mínima/servicio de reparación (tarifa mínima)

Hora de Trabajo (mínimo)

Hora de Trabajo (promedio)

$ 24.520,00

$ 48.960,00

$ 48.960,00

$ 48.960,00

$ 24.520,00

$ 24.520,00

» Boca: caja rectangular, cuadrada u octogonal de medidas estándar con extension máxima de cañería de 5 mts entre sí. Para mayor extensión se cotiza 1(una) boca cada 5 m.

» Boca completa: canalización; amurado de cañería, cableado reglamentario, conexión de módulos de circuitos y portalámparas de obra en cada centro luminoso.

» No se incluye instalación de artefactos obra, apisonado por capas; carga en camión y/o volquete.

» Sólo se puntearán las cañerías para asegurarlas a la pared. Cerrado de canaletas y revoque final a cargo del gremio correspondiente.

» El costo de estos precios se tuvieron en cuenta para nstaladores monotributistas En caso de empre- sas constructoras u otras pequeñas empresas, sumar gastos de aranceles UOCRA, impuestos, viáticos y cargas sociales.

02 | INSTALACIONES DE 220/380V RESIDENCIALES Y COMERCIOS

Canalización de cañería en losa Costo x boca

En losa armada o loseta con viguetas, con caño metálico o PVC rígido

$ 29.710,00

Instalación de cañería en mampostería Costo

Ladrillo común x boca $ 32.290,00

Ladrillo hueco x boca $ 31.995,00

Ladrillo común x m $ 6.730,00

Ladrillo hueco x m $ 6.600,00

Instalación de cañería a la vista o cable canal

Metal, PVC, Cablecanal (14x30) x boca $ 22.515,00

Pase de viga y/o columna

A razón de 1 (una) boca en viga y/o columna

$ 26.140,00

Canalización de cable subterráneo Tierra Bajo mampostería

Se cotizará a razón de 1(una) boca cada 5m $ 24.500,00 $ 26.120,00

Adicional por cada caja de paso $ 26.905,00 $ 28.710,00

Cableado en obra nueva

Cableado sobre obra nueva ejecutada por el profesional $ 15.690,00

Cableado sobre obra nueva ejecutada por otro prof. $ 20.475,00

Recableado con artefactos $ 26.885,00

Recableado sin artefactos * $ 20.475,00

* No incluye cables pegados a la cañería o cualquier otro vicio oculto en la instalación, lo cual se cotizará en el momento.

Conexión de Puntos y Tomas x boca

Punto, toma simple, porta lámpara

$ 8.745,00

Toma doble $ 11.075,00

Punto combinación $ 9.410,00

Tableros

Incluye canalización, amurado y conexión

Tablero principal monofásico

Tablero principal con 1 interruptor diferencial y 1 llave térmica + puesta a tierra

Sólo puesta a tierra

Tablero principal trifásico

Tablero principal con 1 interruptor diferencial y 1 llave térmica + puesta a tierra

Interruptor diferencial, ITM u otro módulo bipolar extra

Interruptor diferencial tetrapolar

Interruptor termo magnético tetrapolar

Interruptor termo magnético tripolar

Costo por unidad

$ 144.630,00

$ 73.410,00

Costo por unidad

$ 195.860,00

$ 35.560,00

$ 61.220,00

$ 61.220,00

$ 51.645,00

Tableros seccionales

Hasta 8 polos

De 8 a 36 polos

De 36 a 54 polos

Tableros especiales

A criterio del instalador según variables

Instalación portero / video portero

Unifamiliar

Instalación portero cableado exterior

Instalación portero cableado embutido

Instalación video portero

Costo por unidad

$ 102.790,00

$ 411.225,00

$ 616.805,00

Costo por unidad

$ 74.320,00

$ 68.590,00

$ 96.030,00

Multifamiliar Costo

Instalación portero cableado exterior x u

Instalación portero cableado embutido x u

$ 72.350,00

$ 60.150,00

Artefactos de iluminación y otros Costo por unidad

Artefacto aplique simple

Spot Led por unidad

Artefacto colgante liviano 3 luces 1 efecto

Artefacto colgante liviano 5 luces 1 efecto

Artefacto colgante. Adicional x efecto

Artefacto colgante pesado - Mínimo

Equipo de tubo Led simple de 7 w a 36 w

Equipo de tubo Led doble de 7 w a 36 w

Equipo de tubo Led 45 w

$ 13.420,00

$ 13.420,00

$ 26.835,00

$ 35.550,00

$ 8.745,00

$ 46.950,00

$ 26.835,00

$ 33.035,00

$ 33.555,00

Equipo de tubo Led doble 45 w $ 41.640,00

Ventilador de techo

Ventilador de techo con luminaria 1 efecto

Acometida (amurado + conexión)

En pilar/muro existente + puesta a tierra de Servicio

Gabinete 1 medidor monofásico

Gabinete 2 medidores monofásicos

Gabinete 3 medidores monofásicos

Gabinete 4 medidores monofásicos

Puesta a tierra de servicio (jabalina + caja de insp.)

Pilar completo (gabinete, TP, caño y puesta a tierra)

Caño de acometida (amurado y conexión)

Caja de fusibles NH00

Agregado 1 gabinete de medidor + tablero principal.

$ 48.960,00

$ 61.220,00

Costo por unidad

$ 102.790,00

$ 146.905,00

$ 342.710,00

$ 391.665,00

$ 73.410,00

$ 403.880,00

$ 102.790,00

$ 146.905,00

$ 146.905,00

Bandejas portacables x metro H<3m H>3m

Bandeja hasta 150 mm de ancho

Por metro lineal

$ 5.945,00

$ 7.930,00

Por c/accesorio (curva plana, unión T) $ 3.975,00 $ 7.430,00

Otros accesorios

Bandeja 200/300mm de ancho

$ 9.390,00 $ 11.400,00

Por metro lineal $ 8.910,00 $ 11.890,00

Por c/accesorio (curva plana, unión T) $ 5.945,00 $ 7.625,00

Otros accesorios

Bandeja 450/600 de ancho

$ 11.490,00 $ 15.315,00

Por metro lineal $ 12.180,00 $ 17.785,00

Por c/accesorio (curva plana, unión T) $ 7.740,00 $ 10.635,00

Otros accesorios

Jornales

Mano de Obra contratada por 8 hs de labor

$ 15.910,00 $ 21.215,00

EPE

23.226,00 +IVA Costos por gestiones, certificaciones mínimas y/o firmas de DDJJ (*)

153.889,00 Municipalidad, precio x boca **)

498,82 Municipalidad precio

categoría

6.960,00 (*) Incluye copia de matrícula y copia de pago. (**) El total de Municipalidad, es la suma de ambos ítems.

07 | CERTIFICADOS ELÉCTRICOS

Habilitación de negocios - Costo mínimo $ 70.000,00

Residencial Comercial Monofásico (inspección mínima) $ 70.000,00

Residencial Comercial Trifásico (inspección mínima) $

ASOCIACIÓN PROFESIONALES INSTALADORES ELECTRICISTAS DE LA CIUDAD DE SANTA FE Pers. Jur. Res. 1168 del 27 de Julio de 2022

Regimiento 12 de Infantería 1941, Santa Fe î Cel.: 0342 - 15 544 9971 / e @apiesantafe

COSTOS DE TAREAS POR CONTRATOS INDEPENDIENTES

ASCENSORES

Mantenimiento

COLOCACIÓN DE APARATOS DE REFRIGERACIÓN

COSTOS

$131.976,00

SPLIT a 2 metros (incluye material) 3000 frigorías $ 180.000,00

SPLIT a 2 metros (incluye material) 18.000 frigorías $ 310.000,00

COLOCACIÓN DE PISOS - sin materiales

Alfombra (incluye adhesivo) x m2 $ 8.400,00

Parquet y entablonado (colocación y pulido) x m2 $ 18.900,00

Piso Flotante (zócalo y piso) x m2 $ 19.300,00

Porcelanatos $ 18.800,00 PINTURA

Aberturas (puerta y ventana) masillado, lijado y pintado $ 15.300,00

Barnizado (puerta y ventana) sobre madera virgen $ 12.400,00

Cielorraso látex x m2 $ 8.400,00

Pintura exterior látex x m $ 8.700,00

Pintura interior látex x m $ 7.500,00

YESERIA - sin materiales

Cielorraso armado x m2 $ 32.400,00

Cielorraso bajo losa x m $ 19.000,00

Enduído sobre fino x m2 sin cotizar

INSTALACION ABERTURAS PVC - HABITAT

Incluye espuma, tornillos silicona y mano de obra x m lineal U$D18 + IVA

Duchate con estilo con Ecostat

Comfort

Un termostato que combina comodidad, seguridad y diseño: con Ecostat Comfort, hansgrohe presenta una solución empotrada que garantiza una experiencia de ducha a una temperatura constante y agradable. El termostato impacta por su diseño minimalista, su manejo intuitivo y su control seguro de la temperatura. Es especialmente adecuado para familias y ofrece una amplia gama de opciones de diseño, así como funciones inteligentes que ahorran recursos.

Temperaturas constantes y volumen de agua individual Ecostat Comfort mantiene la temperatura del agua estable durante toda la ducha. Tanto si se utiliza agua fría como caliente, la temperatura se mantiene constante. Esto garantiza una experiencia de ducha agradable y segura. La función SafetyStop integrada limita la temperatura a un máximo de 40 grados. La temperatura solo se puede aumentar pulsando un botón. Esto hace que el termostato sea especialmente adecuado para familias con niños, ya que previene quemaduras. Ecostat Comfort ofrece la opción de regular el consumo de agua de forma específica. La cantidad de agua se puede ajustar con precisión mediante el mando de control. Esto promueve el uso responsable de los recursos y, al mismo tiempo, ayuda a ahorrar costes. +info: https://www.instagram.com/hansgrohe/#

UOCRA [Unión obrera de la Construcción de la República Argentina] Av. Belgrano 1870 Tel.: (011) 4384-7147 / 55 - Buenos Aires, Argentinawww.uocra.org - APLICATIVO DEC. N° 392/03 Y 388/03

TABLA DE INFORMACIÓN ZONA A: Ciudad Autónoma de Buenos Aires, provincias de Santiago del Estero, Santa Fe, Buenos Aires, Mendoza, San Juan, Catamarca, Córdoba, Entre Ríos, Salta, Tucumán, Chaco, San Luis, Corrientes, La Rioja, Formosa, Jujuy y Misiones.

La Unión Obrera de la Construcción de la República Argentina (UOCRA), la Cámara Argentina de la Construcción (CAMARCO) y la Federación Argentina de Entidades de la Construcción (FAEC) firmaron el 28 de mayo nuevas paritarias con aumentos salariales a los trabajadores de la construcción acumulativos y sumas no remunerativas para los meses de mayo y junio 2025.

El acuerdo, que es una continuación de lo firmado anteriormente, abarca a los trabajadores bajo los convenios colectivos CCT 76/75 y CCT 577/10 y estará vigente hasta el 30 de junio.

De esta forma, el primer incremento es en mayo 2025, donde se otorgará un 1,2% sobre los salarios básicos vigentes al 31 de marzo de 2025. Asimismo, se dará un aumento adicional del 1% aplicado de forma acumulativa sobre el valor resultante. En junio, por su parte, se otorgará un aumento del 1% adicional acumulativo sobre los sueldos básicos de mayo 2025 Además del aumento porcentual, se abonará una suma mensual no remunerativa cuyos valores varían según la categoría y zona.

Dicha suma extraordinaria se pagará de la siguiente manera: el 50% juntamente con el pago de la primera quincena de cada mes y el 50% restante será abonado juntamente con el pago de la segunda quincena de cada mes. El presente acuerdo fue homologado el 03/06/2025 por disposición de la Dirección Nacional de Relaciones y Regulaciones del Trabajo del Ministerio de Capital Humano

SEGÚN EL EL CENTRO DE INGENIEROS DE MENDOZA

El desembolso requerido para la construcción de la vivienda creció, pero se mantuvo por debajo de la línea de la inflación de mayo. Los detalles.

Como cada mes, el relevamiento del costo de construcción, configurado por el Centro de Ingenieros de Mendoza, reveló un encarecimiento en los costes para construir una casa en la provincia.

Concretamente, los gastos para construir en el mes de junio de 2025 aumentaron un 1.33%, en comparación a mayo del mismo año.

Esta cifra marcó un aumento apenas inferior al dato de la inflación de mayo, que fue del. 1,5%.

EL VALOR DE LA CONSTRUCCIÓN

Según el informe, el monto requerido para construir una vivienda “económica” (de 61 metros cuadrados) en Mendoza fue de $66.883.755. El informe presentado en mayo definió que el coste para este tipo de construcción fue de $64.643.774.

JUNIO 2025

$1.096.455 es el costo del M2 de construcción de una vivienda de 61 M2

$1.460.625 es el costo del M2 de construcción de una vivienda de 136 M2

+3,49 que en Mayol de 2025

+2,74 que en Mayo de 2025

Los detalles del aumento Los factores que determinaron este encarecimiento son:

» El costo de la mano de obra, que aumentó un 0.97% mensual.

» El costo de los materiales, con un incremento del 1.63% en comparación con mayo. El estudio de los ingenieros mendocinos marcó que los materiales con mayor encarecimiento de sus precios fueron:

» Ladrillón a granel: +29.91%

Más suma no remunerativa mensual liquidada quincenalmente: Ayudante: $33.000, Medio Oficial: $34.000, Oficial: $38.000, Oficial Especializado: $40.000

Más suma no remunerativa mensual liquidada quincenalmente: Ayudante: $33.000, Medio Oficial: $34.000, Oficial: $38.000, Oficial Especializado: $40.000

DE LA MANO DE OBRA DE LA CONSTRUCCIÓN A LOS SALARIOS SE LE DEBEN SUMAR EL 20% DE

CIA. Los trabajadores constructores que revisten las especialidades que se determinan al pie de la presente, tendrán los siguientes porcentajes adicionales por categorías sobre los básicos del convenio. 15% a Oficial Electricista,10% a Medio Oficial, 5% a Ayudante | 10% a Oficial Yesero, 10% a Medio Oficial, 10% Ayudante | 15% Oficial Calefaccionista, 10% a Medio Oficial, 5% a Ayudante.

Por el lado de una vivienda “de mediana calidad” (de 136 metros cuadrados), el valor requerido para su construcción fue de $198.645.000, lo que significó un incremento de más de 5 millones de pesos en solo un mes.

Para este tipo de construcciones, el metro cuadrado tuvo un valor de $1.460.625, equivalente a: U$S 1.270.11 por m² al tipo de cambio oficial; U$S 1.243.09 por m² al dólar blue.

En detalle, el valor por metro cuadrado se posicionó en junio en $1.096.455, lo que equivale a: U$S 953.46 por m² si se toma el dólar oficial ($1.150.); U$S 933.15 por m² si se toma el dólar Blue ($1.175).

» Llave termomagnética 2×10 Sneider Domae: +6.20%

» Perfil aluminio Rotonda blanco ADR 1510 x 6 m: +6.34%

» Hidrófugo Sika 1 caja x 20 kg: +5.00%

» Inodoro Ferrum Andino corto blanco: +5.00%

» Yeso: +2.56%

» Caño fusión gas 20 mm Sigas x 4 m: +0.48% Casi la totalidad de estos materiales aumentaron su valor por encima de la inflación de mayo.

Nueva linea Hansgrohe

Constructores de la Región agrupados en Apymeco advirtieron sobre las subas en honorarios profesionales y tasas municipales, que “encarecen el costo de construcción y generan “desventaja con respecto a otras ciudades cercanas, como Berazategui y Quilmes”.

Según indicaron las autoridades de Apymeco, “proyecto y dirección tuvo un aumento del 41,79 por ciento mensual en los honorarios profesionales que determinan los colegios correspondientes” y agregaron: en “tasas y derechos se registró una suba del 57,23 por ciento mensual, en lo referido a los derechos de construcción establecidos por la Municipalidad de La Plata”.

Gustavo Marín, presidente de Apymeco, sostuvo que “como consecuencia de los casos indicados, nuevamente la construcción en La Plata se ve encarecida y perjudicada, con valores de construcción que se alejan de ciudades vecinas como Quilmes y Berazategui”.

Agregó el dirigente empresarial que “las consecuencias ya sabidas, de menor inversión, menor actividad económica, menor ocupación, menor ingreso fiscal y todo genera un círculo vicioso, donde no hay beneficiados, justo en un proceso lento de mejora”.

gili-maderas.business.site

Tal como informó este diario, el metro cuadrado a construir tiene un valor superior a 1.776.279 pesos, y en dólares está en 1.500 dólares el metro cuadrado, datos que se contrastan con los precios de venta que se negocian en la Ciudad, con precios cercanos a los 1.200 y 1.300 dólares el metro cuadrado.

“Se hace muy difícil invertir en la construcción y poner los departamentos a la venta

con la disparidad de precios y lo caro que está la construcción en la Ciudad”, dijo un operador inmobiliario consultado por este diario.

COSTOS

En lo que va del año, el costo de la construcción subió 11,06 por ciento anual y la variación interanual llegó a 32,23 por ciento, según los datos que informó Apymeco en su

último relevamiento mensual con respecto a los valores de mayo. La última variación mensual fue de 2,42 por ciento, superior a la inflación general informada por el INDEC que estuvo en 1,5 por ciento para mayo.

En el sector de la construcción y el inmobiliario, aguardan que las variables puedan ajustarse pronto para que el mercado platense se torne competitivo.

Blangino Select, la nueva marca de mosaicos destinada a profesionales de la construcción

Mosaicos Blangino lanzó un espacio premium que cuenta con una nueva gama de productos y servicios para los profesionales de la construcción: Blangino Select.

Esta nueva propuesta busca marcar tendencia dentro del mundo del desarrollismo y arquitectura y convertirse en una marca de referencia para toda la comunidad profesional.

Este espacio, abierto al sector de la construcción, busca crear la demanda de profesionales de productos premium para aquellos que estén buscando materiales con estilo, comodidad y durabilidad en sus obras.

Blangino Select apuesta a consolidar una alianza estratégica con cada uno de estos sectores profesionales, a través de una membresía con varios beneficios que incluyen un coworking y soportes que les permita desarrollar sus ideas, sus proyectos, y generar un ámbito de sinergia y de trabajo colaborativo.

BLANGINO SELECT

Un estudio de mercado realizado junto a la agencia de publicidad Oxford le permitió identificar a Mosaicos Blangino que había un nicho de mercado del que no se estaba ocupando: el sector desarrollista. Para satisfacer esa demanda nace Blangino Select.

Blangino Select comprende toda una gama de productos nueva, que apunta, mediante materiales de duración prolongada en el tiempo, a estar en todos los hogares y generar una fidelización total con sus clientes. “Estamos presentando al público un nuevo concepto comercial, que busca justamente mostrar todas las alternativas, todas las posibilidades que tiene nuestra marca. Saliendo un poco de lo tradicional que siempre nos ha caracterizado; lo que son las baldosas tradicionalmente y mostrar que nuestro producto tiene una amplia gama de utilidad”, señala Gustavo Gómez, gerente general de Mosaicos Blangino.

Algunos de los productos que ofrece Blangino Select incluyen diferentes líneas adaptadas a las necesidades de cada cliente como:

• Línea Terrazo: un producto con gran versatilidad para usarlo tanto en pisos como en revestimientos, mesas, mesadas y vanitorys.

• Línea Habitar: placa para piso liviana, de gran resistencia y excelente brillo para el interior del hogar.

• Línea Urbana: losetas graníticas son ideales para veredas,galerías y diferentes espacios exteriores

• Línea Natura: Losetas Rústicas son de tipo calcáreas y tienen aspecto de adoquines rústicos para el exterior.

• Línea Artesanal: piezas únicas hechas completamente a mano. Se producen desde 1966. Y en la actualidad cuentan con más de 300 modelos. Ideal para interiores como galerías,pasillos, living, dormitorios, o comedor.

• Línea Accesibilidad: de diseño exclusivo de Blangino, poseen cualidades antideslizantes.

• Línea Sustentable: fabricadas a partir de del vidrio reciclado y del material cálcareo resultante del proceso de pulido.

• Línea Complementos: productos de limpieza para cada uno de los productos que permiten que tengan una vida útil todavía mayor.

“Buscamos acercar estas propuestas a todos los que son los profesionales de la construcción, arquitectos, maestros mayores de obra, desarrollistas”, agrega Gómez.

Blangino Select nace para dar respuesta a un determinado tipo de necesidad, un tipo de solución personalizada para un tipo de obra. Y si de algo se caracteriza Blangino es la capacidad para dar respuesta y de abordar al mercado.

“También venimos a decirles que Blangino es una empresa de portones abiertos, que pueden venir también con sus iniciativas, con sus ideas, que vamos a tener un equipo preparado para tomar esas iniciativas y hacer todos los procesos internos puertas adentro para que una idea, lo que uno crea en su mente, puedan materializarse después. Porque nosotros tenemos las posibilidades de llevarlo adelante”, agregaba Juan José Blangino, director de Responsabilidad Social de Mosaicos Blangino.

MOSAICOS BLANGINO

Mosaicos Blangino es una empresa dedicada a la fabricación de pisos graníticos para interior y exterior que nació en 1966 en la localidad cordobesa de Monte Cristo. La firma se especializó en la elaboración de distintos tipos de baldosas, placas o losetas cuya funcionalidad es asegurar un piso firme y funcional para todo tipo de proyecto.

En la actualidad, con una capacidad de producción de 12.500 m² por día, generan 3.000.000 m² de baldosas al año para más de 10 países y dan trabajo de forma directa a más de 350 personas. Además, piensan inaugurar una nueva fábrica en el país vecino de Chile.

Blangino utiliza tecnología de primer nivel y sistemas propios de fabricación, control y gestión para alcanzar sus objetivos, mediante un equipo altamente calificado de trabajadores, técnicos especialistas, operarios, artesanos, diseñadores, administrativos y asesores comerciales.

Mosaicos Blangino colabora con el crecimiento de su comunidad, brindando capacitaciones a puertas abiertas y recibiendo la visita de escuelas, universidades y equipos de trabajo. Incluso trabajan de forma mancomunada con equipos a cargo de las más grandes obras del país para encontrar soluciones a problemáticas constructivas.

Fuente: www.lavoz.com.ar

Cuánto cuesta el metro cuadrado para construir en la Ciudad de Buenos Aires

Luego de un año en que el costo de la construcción atravesó fuertes subas, especialistas revelan cuánto cuesta construir hoy una casa y un edificio en la ciudad de Buenos Aires.

El real estate no deja de dar buenas noticias en cuanto a la cantidad de operaciones de compraventa que se hacen, pero un sector dentro de este mercado se mantiene inquieto. Se trata del rubro de la construcción, que acumula un aumento del 126% desde octubre de 2023 en los costos, aunque los valores de las propiedades en venta no subieron al mismo ritmo. De esta forma, se vuelve difícil reponer stock y generar ganancia.

Más precisamente, luego del aumento del costo de construcción, los valores del pozo crecieron fuertemente y se generó una brecha entre los precios de los inmuebles usados y en pozo.

“Hoy la cancha está a favor del segmento residencial usado, que tiene precios muy atractivos, ya que se mantiene en valores del 2006 en términos reales. Recién cuando empiece a vaciarse ese mercado, subirán más fuertemente los precios de los usados, lo que generará también mayor atracción hacia el pozo”, explica Fabián Achával, de la inmobiliaria homónima. En ese contexto, muchos se preguntan en cuánto se ubica el costo de construcción de un metro cuadrado en la ciudad de Buenos Aires. Según especialistas consultados por LA NACION, el costo de construcción hoy de una casa bien hecha arranca en los US$1500/m² y llega a los US$1700/m², teniendo en cuenta los valores más bajos del mercado, pero puede ascender a US$3000, si se eligen materiales más caros para la obra.

Ahora bien, si se analiza el costo de construc-

ción de un edificio, los valores varían. Un informe de reporte inmobiliario analiza un edificio de planta baja y ocho pisos más un retiro y asegura que, en marzo tenía un costo total de obra de $1.503.518.647, lo que equivale a US$1.143.360 (no incluye IVA). El estudio analiza un edificio de esas características sobre un terreno entre medianeras de 8,75 metros de frente y 27,5 metros de fondo. Compuesto por 16 unidades funcionales de dos ambientes distribuidas en semipisos y cuenta con SUM,

Según especialistas consultados por LA NACION, el costo de construcción hoy de una casa bien hecha arranca en los US$1500/m² y llega a los US$1700/ m², teniendo en cuenta los valores más bajos del mercado, pero puede ascender a US$3000, si se eligen materiales más caros para la obra.

parrillas y piscina. El modelo se basa en un caso real de una obra ya finalizada.

Si se baja el análisis al valor por metro cuadrado, en marzo, el costo de obra estaba en $1.409.108 (US$1067) y el metro cuadrado vendible promediaba los $1.903.670 (US$1448). El metro cuadrado vendible es más alto ya que comprende la construcción de los espacios comunes(pasillos, amenities, etc.).

Eso suma un área total del edificio de 1067 m², aunque un área total vendible de 789,80 m².

Si se observa el precio de venta, no ya el costo de construcción sino el valor del inmueble, el portal inmobiliario Zonaprop asegura que el metro cuadrado promedio de un departamento de dos ambientes en pozo se ubicó en mayo en US$2893.

¿Por qué aumenta el costo de construcción? Una de las principales causas detrás de este fenómeno es la estabilidad del dólar o la caída de la cotización de la moneda americana en los últimos meses, que hacen que se necesiten cada vez más dólares para construir lo mismo. Durante más de dos años, los costos medidos en moneda estadounidense se mantuvieron al ritmo de la fluctuación de la inflación en pesos y las constantes devaluaciones. Sin embargo, con un dólar que se ha mantenido prácticamente en el mismo nivel en el último tiempo, los costos de construcción han alcanzado niveles inesperados.

Este escenario genera inquietud entre constructores, propietarios en etapa de obra y desarrolladores de loteos, debido a la disminución en la demanda. “La gran preocupación en el último tiempo entre los constructores fue ver que el dólar bajaba tanto. No sólo inquieta a los constructores, también a quienes tienen una casa en obra. Si disponían de cierta cantidad de dólares para hacer esa casa, van a necesitar bastantes más”, explica Germán Gómez Picasso, director de Reporte Inmobiliario. Fuente: www.lanacion.com.ar

Turn static files into dynamic content formats.

Create a flipbook
Issuu converts static files into: digital portfolios, online yearbooks, online catalogs, digital photo albums and more. Sign up and create your flipbook.