Skip to main content

PORTFOLIO Architecture-Urbanisme LOUIS-SIDNEY Christ-ange .

Page 1


PORTFOLIO

Architecture - Urbanisme

LOUIS-SIDNEY Christange

Christ-ange

22 ans Expérience : 1 an et 8 mois

Permis B

07 87 02 42 74 louissidney.christange@gmail.com

10 rue Anatole France, 92800, PUTEAUX

L’expérimentation constructive, la transformation des contraintes écologiques en opportunités architecturales, et l’attention portée aux dynamiques locales du territoire, constituent aujourd’hui l’orientation que je souhaite donner à mon parcours professionnel.

Après deux années d’alternance, c’est au sein d’une agence engagée dans ces problématiques que je souhaite inscrire cette dernière année, correspondant à mon PFE.

Mon mémoire, « L’imaginaire local au Prêcheur comme outil de résilience face aux risques », s’inscrit dans un contexte de relocalisation.

J’y explore comment l’expertise habitante et les imaginaires locaux peuvent devenir de véritables leviers dans les stratégies d’adaptation territoriale. Ce travail m’a amenée à considérer l’architecture comme indissociable des réalités sociales, culturelles et environnementales qui façonnent le territoire.

Dans cette continuité, je compte orienter mon PFE en mention recherche, en approfondissant ces thématiques.

J’aimerais avoir l’opportunité d’orienter mon alternance en cohérence avec les axes que je souhaite approfondir au long de mon parcours professionnel. Après des expériences riches mais éloignées des problématiques que j’explore aujourd’hui, je souhaite désormais évoluer dans une pratique pleinement en cohérence avec mes engagements : une architecture attentive aux liens immatériels qui structurent l’attachement aux lieux, et capable d’expérimenter les dispositifs constructifs et de transformer les vulnérabilités territoriales en matière de projet.

EXPÉRIENCE PROFESSIONNELLE

ALTERNANCE - 1 an 6 mois - Sous direction de l’immobilier des moyens et de la performance - Premier Ministre

Participation aux réunions de chantier hebdomadaires - Reha bilitation énergétiques d’hôtels particuliers classés (en sites occupés) avec l’ ACMH (architecte en chef des monuments historique) du 7ème arrondissement de Paris.

Participation à des ROC (Reunion d’ouverture de chantier) avec la Mairie de Paris (Reflexion sur les enjeux du chantier, l’impacte du chantier sur l’espace public, les flux, la securité des pietons, l’emprise de l’echafaudage etc.)

• Redaction de CR de Chantier

Organisation et participation aux diagnostics sur site avec différents lots/entreprises et BET structure - amiante plomb - sur les sites historiques (Phase faisa/DIAG).

• Réalisation de petit projet d’aménagement sur les interieurs non classés des monuments --> Dessin de plan/coupe/elevations/DET (REVIT)

Suivi phase DET (Direction de l’execution des travaux), veille au respect des PIC (Plan d’installation de chantier), plans d’exécutions de chaque lot.

• Responsabilisation rapide sur des petits projets de second oeuvre.

Participation aux reunions stratégie avec les BE énergie et développement durable: Quels objectfs de performance pour les Monuments historiques d’ici 2040 ?

STAGE - SAS TORRES GARCIA ARCHITECTURE1 - 1 MOIS

• Conception de projets à partir de l’usage des logiciels revit, autocad et indesing. Travail à plusieurs échelles du projet dans différents programmes tels que des aménagements paysagers et des équipements culturels. Pratiques de l’architecture du paysage.

Stage ouvrier Miroiterie Jacques Alti - 2 SEMAINES

Mise en situation en milieu professionnel sur un chantier. Apprentissage de la pose de verrière Organisation et de la préparation de chantier.

DIPLOMES

DEEA - Diplôme d’étude en architecture

École Nationale Supérieure d’Architecture Paris Val de Seine

Titulaire du Permis B

Baccalauréat : mention très bien, européenne Anglais. Lycée de Bellevue (Martinique)

AUTRES EXPÉRIENCES

Organisation d’événements : premier festival d’art asiatique de Martinique.

Stage Office notarial PALCY : Découverte et sensibilisation à la vie d’entreprise et au droit notarial et foncier d’une durée de deux mois

Stage de troisième: Clinique Veterinaire

LANGUES

Français - Natif

Anglais - C1

Espagnole - A2

Créole Martiniquais - Natif

CENTRES D’INTERETS

Basse guitare - Neo soul, Jazz

Concept art

Art martiaux - Kun-fû wushu

MAITRISE DES LOGICIELS

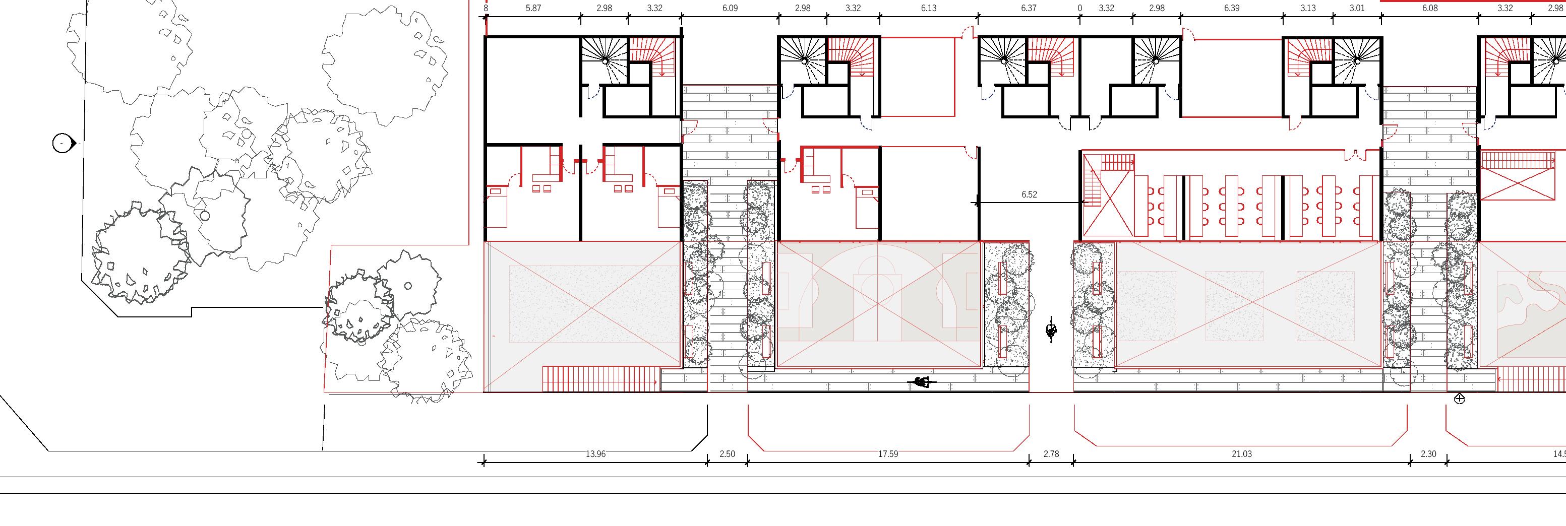
PRATIQUER LES BORDS DE L’YONNE

La revalorisation du quai des Buttes

FRANCHIR UNE VOIE FERRÉE:

La réhabilitation du le Pont St-LADRE

REHABILITER UN IMMEUBLE DE LOGEMENTS Immeuble rue Clisson

Aménagement urbain

Pont-sur-Yonne

2025-Master 1

Aménagement urbain

Crepy-en-Valois

2024-Licence 3

Aménagement urbain

Pont-sur-Yonne

2023-Licence 3

AMENAGER UN EQUIPEMENT CULTUREL

La Maison des Etudiants

L’IMAGINAIRE LOCAL

COMME OUTIL DE RÉSILIENCE FACE AUX RISQUES

Cartes sensibles

Aménagement urbain

Pont-sur-Yonne

2022-Licence 1

Memoire de recherche Martinique - Le Prêcheur 2025

PRATIQUER

LES BORDS DE L’YONNE

La revalorisation du quai des Buttes

Envisagé comme une grande halte fluviale, le projet a évolué vers une proposition plus modeste et contextualisée, privilégiant le respect des usages existants.

Conçu comme un support de sociabilité plutôt qu’un objet monumental, le projet propose un espace à la fois couvert pour les usagers et ouvert sur l’environnement existant. Le quai des Buttes, situé au bord de l’Yonne, s’inscrit dans la continuité historique du développement de Pont-sur-Yonne (mur historique, le boulevard des Buttes et sa double allée de marronniers). Le site accueille des pontons, aujourd’hui en mauvais état.

Le terrain de boules représente un lieu de sociabilité important, ancré dans les pratiques locales des habitants. Il s’agit donc d’un petit équipement léger, à la fois abri pour la pratique de la pétanque, guinguette et salle polyvalente, venant renforcer les usages du site sans en bouleverser l’équilibre.

Valoriser l’écriture urbaine existante en la prolongeant jusqu’aux jardins familiaux et en dessinant une boucle autour de l’ensemble paysager.

Implanter un point focal d’ancrage visuel au milieu de cette boucle d’arbres qui devient alors un espace central majeur et donne une fonction d’espace servant à ces doubles allées d’arbres .

Revaloriser les espaces pouvant être qualitatifs tels que l’espace vert au sud mais aussi les jardins familiaux . Le point central crée alors un lien entre ces trois espaces venant relier le «parc» et les jardinfamiliaux par le terrain de boules.

Encadrer l’architecture et libérer la vue vers le fleuve : une présence végétal qui vient couronner l’architecture.

Objectif : ne pas avoir de poteaux en extrémité et d’éléments entravants la continuité entre le mur historique et l’Yonne

Creer des colonnes en forme d’arbre qui s’élancent vers l’extérieur pour que la façade ouest et est s’ouvre d’une par sur le mur historique et d’autre part sur l’Yonne.

Couverture Zinc 5%

Revetement voligeage OSB

Réseau de poutre en bois lamellé croisé.

Poteaux arborescent CLT

Radier BA surélevé 50 cm

Répartir les charges avec une grille porteuse --> réseau de poutre en bois lamellé croisé.

Ponton flottant

Flotteurs PEHD

Système de guidage vertical

Les deux pièces en verre sont ensuite posées sur une plateforme de 50cm de hauteur penser pour répondre aux risques de crues tout en servant d’assise ombragé.

Un projet intégré dans un cadre paysagé fort

JARDINS FAMILIAUX

MUR HISTORIQUE

SALLE POLYVALENTE

GUINGUETTE

PONTONS FLOTTANTS Rénovés et agrandis

Lame d'air

Couverture zinc

Par pluie

Revetement voligeage OSB

Laine de verre

Par vapeur

Revetement interieur

Linteaux

FRANCHIR

UNE VOIE FERRÉE: 02

Réhabiliter le Pont St-LADRE

Caractérisée par une trame urbaine contenue entre des terres agricoles et des forêts, la ville de Crépy-en-Valois doit faire face à un défi majeur : urbaniser sans s’étendre.

Avec une crise du logement et des zones de friches délaissées nécessitant une densification du territoire, la ville se voit également contrainte de composer avec une rupture urbaine engendrée par la présence de la voie ferrée.

La ville de Crépy-en-Valois, au cours de son expansion, a vu ses tissus urbains coupés par la voie ferrée. Le manque de communication entre le nord et le sud entraîne une inégalité en termes d’équipements et d’infrastructures, renforçant les inégalités sociales.

Un développement en trois temps:

19 e

Centralité historique et économie agricole dominante

20 e

Croissance démographique et de la voie ferrée : émergence d’un

Extension des zones d’activités industrielle et accentuation de la fragmentation territoriale et extension urbaine au-delà d’un tissu urbain inégal

21 e

2 1

L’AVIS DES HABITANTS

L’AVIS DES HABITANTS

L’AVIS DES HABITANTS

Bilan des interviews des habitants de la ville de Crépy-en-Valois

Bilan des interviews des habitants de la ville de Crépy-en-Valois

Bilan des interviews des habitants de la ville de Crépy-en-Valois

LorsdestroisdernièresvisitesdelavilledeCrépy-en-Valois,àla sortiedupontStLadre,nousavonsquestionnerlespersonnessur différentesthématiquesliéesàlazoned’étude.Nouslesavons questionnéssurleurressentielorsquequ’ilempruntelepont,oùil allaitetcommentill’empruntait.Onlesaégalementquestionnés surleurbesoin,dequelsbâtimentsontilbesoins.Onleura demandéleurshabitudes,quellessontleurlieuderéunion,leur lieudeloisirect…

LorsdestroisdernièresvisitesdelavilledeCrépy-en-Valois,àla sortiedupontStLadre,nousavonsquestionnerlespersonnessur différentesthématiquesliéesàlazoned’étude.Nouslesavons questionnéssurleurressentielorsquequ’ilempruntelepont,oùil allaitetcommentill’empruntait.Onlesaégalementquestionnés surleurbesoin,dequelsbâtimentsontilbesoins.Onleura demandéleurshabitudes,quellessontleurlieuderéunion,leur lieudeloisirect…

LorsdestroisdernièresvisitesdelavilledeCrépy-en-Valois,àla sortiedupontStLadre,nousavonsquestionnerlespersonnessur différentesthématiquesliéesàlazoned’étude.Nouslesavons questionnéssurleurressentielorsquequ’ilempruntelepont,oùil allaitetcommentill’empruntait.Onlesaégalementquestionnés surleurbesoin,dequelsbâtimentsontilbesoins.Onleura demandéleurshabitudes,quellessontleurlieuderéunion,leur lieudeloisirect…

DIALOGUER AVEC LES HABITANTS

Onaégalementessayédes’intéressersurleuravissurlarupture liéeàlavoixferré.

Onaégalementessayédes’intéressersurleuravissurlarupture liéeàlavoixferré.

Onaégalementessayédes’intéressersurleuravissurlarupture liéeàlavoixferré.

Intermarché

La zone de l'Intermarché c’est l’endroit où je rejoins des amis le week-end

Bd Victor Hugo Pont St-Ladre
C’est compliqué faire ses sans voitures même en la galère
C’est compliqué de faire ses courses sans voitures et même en bus c’est la galère !

C’est compliqué de faire ses courses sans voitures et même en bus c’est la galère !

OAP 1A

Site du Projet

Zone Industrielle

OAP 1B

Mairie

RETISSER DES LIENS AVEC L’EXISTANT: PROLONGER LES AXES

Vers la cathédral St Thomas: Creer des percées visuel

Vers la fôret: revaloriser et prolonger le Bd Victor Hugo Faire rentrer la fôret dans la ville

PRESERVER ET REHABILITER: LE PONT ST LADRE

Transformer le pont St-Ladre en pont pieton - Connecter le nord et le sud - Favoriser les mobilités douces

Creer un pont adapté au poid des vehicules: --> rejoindre le nord en sécurité

CREER UN ILOT D’HABITATION OUVERT

Bd Victor Hugo
Bd Victor Hugo
Bd Victor Hugo
Bd Victor Hugo
pont St-Ladre
Nouveau pont Vehicule

Comment concevoir un îlot d’habitation durable, à proximité de la voie ferrée, qui favorise la mixité, les interactions sociales et la transition écologique, tout en respectant le contexte urbain et l’architecture local ?

Observer et s’inspirer de l’environnement existant :

Une logique de retournement des façades sur rue : éviter le pignon aveugle

Une continuitée typologique entre les tissus pavillonaires existants et le projet: Réinterprété les maisons accolées 2 à 2.

Un territoire riche en matieriaux: La brique blanche ivoire de l’artisanat local

1.16 Maisons individuelles

2.Ateliers / logements

3.20 Logements intermédiares

4.Allée Végétale

5.Jardin participatif

6.16 places de vélos

7.20 places de stationnement

8. Mur de pierre traversant

Rue des Tournelles

Les maisons soeurs : RDC

Maisons individuelles accolées

Allée végétalisée

Les maisons soeurs : R+1

Semi-collectif T3

Logements collectifs

Duplex- T3-T2

Jardin participatif

Rue Guynemer prolongée

Locaux Ateliers et associations

Jardin participatif

DUPLEX N0
DUPLEX N1
Passerelle

Allée principale

Jardin participatif

Séparation végétalisée

Voirie prolongée

La fôret dans l’ilot

REHABILITER UN IMMEUBLE DE LOGEMENTS 03

Immeuble rue Clisson

Le projet CLISSON consiste en une rénovation durable, à caractère énergétique et écologique , et en la densification (surélévation et extension) d’un ensemble immobilier de 1976, représentatif du patrimoine « domestique » de la seconde moitié du XXe siècle. Cette réhabilitation énergétique s’accompagne d’une valorisation des lieux de sociabilité. Pour cela , le projet comprend une surélévation de 2 niveaux ainsi qu’une serre bioclimatique qui vient couronner le bâtiment.

--Améliorer les capacités énergétiques du bâtiment : optimisation de la performances des façades.

--Densifier les logements de 30%

--équilibrer les typologies de logements

La densification s’opère selon deux dispositifs :

– Une extension à l’est, dissociée de l’existant par un joint creux vitré, accueillant des logements en duplex et des T2. Ce joint assure une transition constructive et lumineuse entre l’architecture existante et l’intervention contemporaine.

– Une surélévation de deux niveaux, reposant sur une structure multiportique venant reprendre les charges sur les têtes de refends du bâtiment existant, assurant ainsi une continuité structurelle.

LA FAÇADE

Le projet ne cherche pas à effacer l’architecture de Roger Anger, mais à dialoguer avec elle par le contraste.

L’existant est marqué par des refends ondulés en béton qui émergent en façade et produisent déjà une épaisseur plastique. Les extensions prennent appui sur cette logique d’émergence en proposant des loggias sous forme de boxes, venant se détacher du plan de façade.

La façade sud est traitée comme une double peau. Une grande baie vitrée assure l’apport lumineux, tandis que les boxes sont protégées par une deuxième couche : un brise-soleil à lames bois orientables sur rail, assurant une régulation solaire passive . Ce dispositif évite les surchauffes estivales tout en conservant les apports passifs en hiver, et joue également un rôle d’intimité et de filtre visuel sur l’espace public.

Les extensions sont conçues comme une structure secondaire en bois CLT rapportée sur l’existant en béton. Les balcons deviennent des espaces de vie élargis, accueillant des volumes légers en ossature bois, habillés d’un bardage à claire-voie en douglas. Ce système permet à la fois une extension spatialeet une requalification de la façade.

LA STRUCTURE

Platine d’ancrage en tête

Platine d’ancrage en pied

Poutres CLT 200 x 60mm

Double vitrage isolant 4/16/4

Ug = 1,1 W/mK

Lames orientables CLT

Tige acier galvanisé 30 mm Ø

Isolation laine de bois

Solives CLT 80 x 200mm

Mode été :

Surventilation naturelle extraction maximale de l’air chaud

Ouvertures hautes serre (tirage)

Mode hiver :

Préchauffage passif de l’air neuf par la serre

ventilation naturelle par effet cheminée permet l’évacuation de l’air chaud en été

Logements traversants = confort d’été sans recours systématique à la méchanisation.

Extraction de l’air chaud par une gaine verticale

patio (rejet)

Dans le cadre de l’extension du bâtiment, le projet s’appuie exclusivement sur le prospect de la rue Dunois afin de libérer la totalité de la toiture et permettre l’implantation d’une serre sur l’ensemble du couronnement. Cette stratégie permet à la fois de densifier l’opération et de dégager un nouvel espace collectif en toiture.

L’amélioration de la vie collective constitue l’un des axes majeurs du projet.

Au rez-de-chaussée et au sous-sol réhabilité, divers espaces partagés sont créés afin de renforcer les interactions entre habitants. Cette dimension collective se prolonge jusqu’en toiture par l’implantation d’une grande serre agricole.

Couronnant le bâtiment, cette serre devient un espace commun productif, dédié à l’agriculture urbaine. Elle permet aux résidents de cultiver leurs propres aliments, de se rencontrer et de tisser des liens sociaux autour d’une activité partagée.

Plus qu’un équipement, la serre constitue un lieu de sociabilité et d’appropriation, contribuant à la construction d’un sentiment de communauté dans un contexte urbain dense.

Ouvertures hautes

AMENAGER

UN EQUIPEMENT CULTUREL

La maison des etudiants

Situé au sein de la Cité universitaire dans le 14ème arrondissement de Paris, le projet s’inscrit dans un campus singulier, composé de pavillons autonomes implantés dans un vaste parc paysager. Ce site se caractérise par une forte identité architecturale, une diversité de styles

À la suite d’un projet de résidence étudiante réalisé en amont, nous avons poursuivi la réflexion à l’échelle du site afin d’y insérer un équipement culturel de proximité : une maison de quartier étudiante.

L’enjeu principal était d’élaborer une architecturale capable de s’articuler avec la résidence existante , non pas comme un simple ajout programmatique, mais comme une extension du lieu de vie des étudiants.

Le projet s’organise autour d’un volume en contrebas, creusé dans le sol, qui abrite une grande salle de spectacle.

Cette implantation en creux permet de limiter l’impact sur le paysage.

En contraste, deux ponts en surélévation viennent traverser et structurer le projet. Suspendus au-dessus du volume principal, ils accueillent une partie des programmes (médiathèque, foyer, maison des associations ainsi que le restaurant).

Le restaurant s’ouvre sur le toit-terrasse de la grande salle, offrant un lieu de rencontre extérieur pour les étudiants.

MEMOIRE DE RECHERCHE / CARTES SENSIBLES:

L’IMAGINAIRE LOCAL AU PRÊCHEUR

COMME OUTIL DE RÉSILIENCE FACE AUX RISQUES

Comment l’intégration des imaginaires prospectifs des Martiniquais peut favoriser une acceptation plus pérenne de la transition du littoral face aux risques climatiques ?

« C’est là-bas, là où il y a la mer au large, que mes parents ont construit leur première maison. »

« Le littoral représente tout dans la commune. Car sans la ligne droite, il n’y a pas de mairie, pas d’église, rien.

Le littoral, c’est LA ROUTE PRINCIPALE. »

« C’est là-bas, là où il y a la mer au large, que mes parents ont construit leur première maison. »

« Et c’est ici que la deuxième maison familiale a été construite, avant que la mer ne l’emporte. »

Anse Belleville

« Pour vous donner un ordre d’idée, vous voyez la barque bleue ? Nous, on jouait là-bas, au foot. »

« Le littoral représente Car sans la ligne droite, pas d’église, rien. Le littoral, c’est LA ROUTE

« Le plus effrayant, c’est quand heure du matin et que tu entends de la sirène. »

Les

Abîmes

C’est pour ça qu’on appelle ce quartier ‘les Abîmes’. »

« Il y avait les « Case Canneau », la maison des pêcheurs. Chaque pêcheur avait sa petite case en bambou, en tôle, c’était leur abri pour stocker le matériel, mais la mer est partie avec… »

« Avant, on pouvait tirer la senne sur la plage, on attachait nos bêtes pour les élevages… »

Bourg

« Il serait temps d’enlever les enfants de là. Lorsqu’ils entendent le bruit de la sirène, ils paniquent. »

La Charmeuse

« Vous savez, on dit qu’aux Abîmes, c’est très, très, très profond, car il y a un rapport avec la Montagne Pelée… comme si la profondeur de la mer venait du volcan. C’est pour ça qu’on appelle ce quartier ‘les Abîmes’. »

Le Bourg

« Il y avait les « Case Canneau », la maison des pêcheurs. Chaque pêcheur avait sa petite case en bambou, en tôle, c’était leur abri pour stocker le matériel, mais la mer est partie avec… »

« Avant, on pouvait tirer la senne sur la plage, on attachait nos bêtes pour les élevages… »

« Au Prêcheur, il y a une double culture : les pêcheurs sont aussi agriculteurs, et les agriculteurs aussi pêcheurs. » maisons

« Il y a aussi le tour des yoles… Les yoles naviguent sur les eaux martiniquaises depuis des générations et contribuent au lien que nous avons avec la mer. »

Pointe Lamar
Le

« Ma mère était traumatisée, même les catastrophes, elle se réveillait de la nuit, elle était persuadée la sirène. »

«La rivière...ce sont des lahars qui emportent roches de plus de 30 tonnes, on a fait ont tous été emportés par la rivière »

8.Anse belleville: Les maisons disparues

« Quasiment tous ceux qui habitaient à Anse Belleville, leurs maisons sont parties. »

« Quand on est enfant, on voit nos parents qui sont tristes et on se pose des questions. »

Le restaurant

RISQUES

5. Une culture agricole, des terres fertiles

« Au Prêcheur, on a des terres très fertiles, mais la menace du volcan est toujours présente.»

même après réveillait au milieu persuadée d’entendre

emportent des trois ponts, ils

4. Zone a vif, secteur de ruine

3. Lieu mémoire du risque

« Lorsqu’on habite autour du pont, on n’est pas tranquille quand la rivière descend. »

6. Le pont

2. Le long de la route du littoral

« Toutes ces maisons de l’autre côté de la route sont aussi condamnées… »

« À l’entrée du Prêcheur, il y a eu beaucoup de maisons qui sont parties avec la mer. »

« Est-ce que dans 10/15 ans, il y aura toujours cette route du littoral ? »

1. Le bourg:

Lieu de départ, zone de repère

7.Les Abimes: restaurant les pieds dans l’eau

« Durant Beryl, les vagues passaient par-dessus le toit et ça rentrait à la maison qui est de l’autre côté de la rue, en face de notre restaurant. »

« On nous a dit qu’il y aurait une houle de seulement 1 m 50 à 3 m, alors à 5 h du matin, on était prêts à partir pour la pêche.

À 6 h, on entend le bruit de la mer qui arrive de plus en plus fort, alors on décide de retirer les bateaux.

À 7 h, la maison était déjà presque partie… Cette chambre-là avait déjà disparu. »

Illustrations sensibles sur l’evolution du trait de côte :

Entre la mer et le volcan

LOUIS-SIDNEY Christange MERCI

Turn static files into dynamic content formats.

Create a flipbook