
Selected Works - Chenxi Li
The University of Pennsylvania Stuart Weitzman School of Design


![]()

Selected Works - Chenxi Li
The University of Pennsylvania Stuart Weitzman School of Design


Individual Project 2022 Spring Instructor Zelig Fok
Architecture, the vessel of space, delves into the intricate connection between physical form and the spaces it encompasses. The initial project begins with an everyday grey Nike shoebox, ingeniously transformed through techniques like folding, cutting, flipping, rotating, bending, and rolling. Witness the metamorphosis from the container to the remarkable Vitra Pavilion.
Designed as a captivating small-scale installation, the Vitra Pavilion hosts an exhibition of the acclaimed .03 chair, an artistic creation by the renowned Maarten Van Severen. Divided into four quadrants, the pavilion astutely creates a vast canyon-like gap, inviting exploration and sparking curiosity. In a captivating twist, the Vitra Pavilion challenges the fusion of architecture and photography. Using tectonics, it reimagines the sectional view, artfully blending function and exterior texture. A visually immersive experience awaits, where light and form intertwine, breathing life into this masterpiece.
Prioritizing the requirment for optimal ventilation and illumination within the Vitra Pavilion, the gap between shells was deliberately widened. Beneath these shells, certain voids were replaced with solid elements to shape the space initially designated for the viewer. In contrast, other sections were intentionally retained as voids to serve as exhibition spaces for showcasing objects. The original curves on the shoebox have been retained, not unlike the perfect curves on the .03 chair. As a result, the building is divided into four zones due to its different structures, each corresponding to a different function.






Elevation/Section
Diagrams show the relationship of light/ventilation, solid/void, seating/leaning.



The vignette from top view is project onto the surface of building, indicating the distribution of circulation.
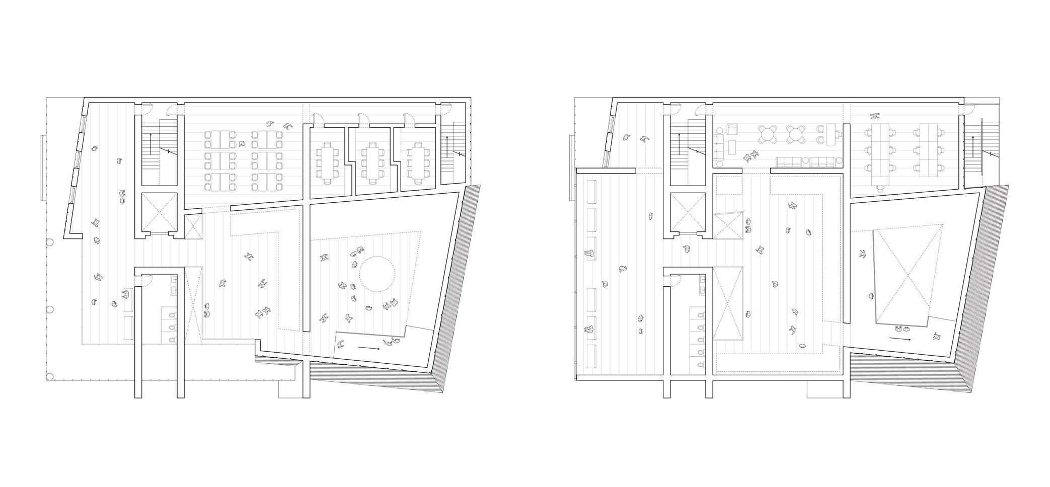
After designing a pavilion for the campus, a new prototyping warehouse need to be built at the Vitra campus since the Weil am Rhein is a popular tourist attractions now for chair fans from all over the world. This newcomer need to bring together several programs, including a workshop, a design studio, a furniture prototype archive, and a large amount of exhibition area into one building.
Using the similar form as the previous project, Vitra Pavilion, the rectangular warehouse is divided into four quadrants and shaped by reconstructing the blocks. On the exterior skin of the building, a grid system covers the light structure of the building, demonstrating a sense of order. In addition, the combination of solid and void in the building fulfills the requirements of form as well as function.
The interior space uses grids to reorient the entire internal architectural structure and the concept of deconstruction becomes the main theme for this new warehouse. The floor heights of different areas are designed according to their functions, making the space more practical. The spaces are linked by multiple stairs and elevators. The staircase design makes the whole visiting and shopping route unidirectional.



Campus Site Plan

The site is a new extension of the classic Vitra Campus

Variation
The shape is divided into four quardrants which are relatively separate

There is a large courtyard in the middle of building constructed by a inserted box structure

The size of massing follows the form of the previous warehouse on site

The entrance and exit are located at the north-west side, facing the intersection

Light enters the building from different angles to meet the different lighting needs in the building









Single-Living House
Individual Project 2021 Fall Instructor Dow Kimbrell
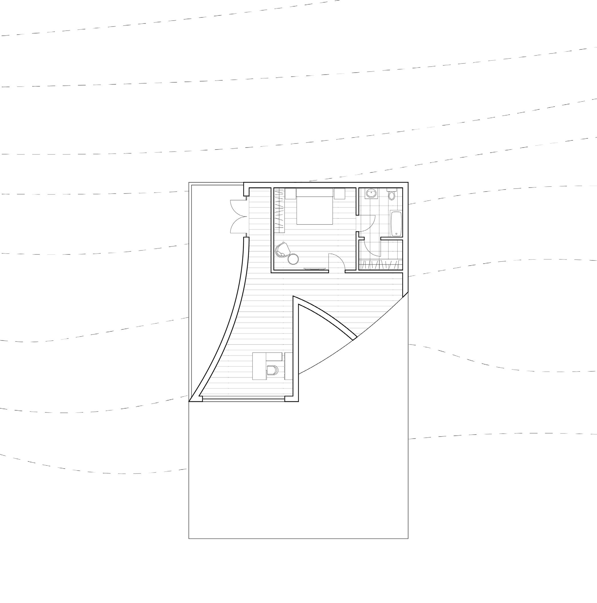
In this captivating architectural endeavor, a secluded onebedroom sanctuary graces the picturesque shores of Lake Erie, accessible solely by foot or boat. The structure is characterized by its most distinctive feature: a pristine, white curved wall atop its roof, an arresting testament to modern architecture. This monumentality coexists harmoniously with the surrounding natural beauty, the design flawlessly integrating contemporary aesthetics with functional ingenuity. The commanding geometry of the building crafts a unique language, one that asserts its presence in stark contrast to the landscape yet maintains an enigmatic connection with its surroundings. Through the use of black frames, the exterior panorama becomes a living masterpiece, captivating the beholder's gaze.
Internally, organized across two levels connected by a stair, the ground floor serves as the service domain, housing the living room and kitchen. Ascending to the second floor reveals the other entrance with a balcony from the west elevation, along with a bedroom and serene meditation space. The interiors are adorned with light-colored wood décor, complementing the pristine white concrete structure. This fusion of classical, modern, and romantic elements unites the spaces, weaving a tapestry of timeless sophistication within the confines of this architectural marvel.
Offered as a lakeside home for individual, the inner life of the occupant is depicted using a simple architectural graphic. The building blends into the environment with the changing seasons in the form of simple forms and poured concrete. At the same time, the windows act as a medium to link the otherwise disconnected inner and outer environments, introducing wonderful views as decoration to the otherwise white concrete structure. The view brings different emotions to the interior of the house in different seasons. The building here is not only one's home, but also one's emotional support.
Internally, the building distinguishes between internal private spaces and open spaces for daily family life. The daily open space is located on the ground floor and is directly connected to the interior and exterior by a long strip of windows, which provide sufficient light to the interior spaces and also display most of the views. The private spaces are located on the top floor, and the meditation space contains a huge window facing the lake. The bedroom windows face the sky, ensuring privacy and light at the same time.









Site Plan
The House can be only accessed by walking from the hill and boating from the lake.
Zinc Helmet
Precast Concrete Pavors
Screened and Waterproofing Membrane

Stucco Plasterboard Lining
Backup Wall
Extruded Polystyrene Insulation
Air Gap
Facing Concrete Wall
Water-resistant MDF Board and Steel Reveal
Wood Floor Finish
Screened
Extruded Polystyrene Insulation
Leveling Screened
Gravel Layer

Detailed Section
Poured concrete structures as well as interior living scenes of the building.

Plan Floor 1
Living Room, Dining Room, and Kitchen






High-Rise Building
Group Project 2023 Spring
Instructor Samual Tibbs
Studio Award
This project is located in the heart of Columbus. This new high-rise building is one of the city's most striking new landmarks. Located in the bustling downtown area, this modern building is known for its magnificent exterior and versatile design. The purpose of the building is to add an international meeting space to downtown Columbus that is large enough to accommodate more people and add new energy to the city.
The building's interior design focuses on space utilization and functionality. The building houses a conference center, offices, commercial spaces, restaurants, cafes , and recreational areas. Each floor is equipped with modern amenities and a high-speed elevator system for the convenience of residents and visitors.
The Columbus Conference Center is known for its unique and characterful exterior. It features a modern architectural style with a streamlined design and glass curtain wall that makes it stand out in the city skyline. A sunshade system is used on one side of the building and a ventilated skin is used on the other side. The high-rise building is structurally strong and robust, while also focusing on environmental sustainability and incorporating many energy-efficient and environmentally friendly design elements, such as four parks with different functions linked to the building's ventilation system.

Site Plan
Transportation and Montage of 360 Degree Views
The primary architectural massing begins with an inverted quadrangular column, which is twisted to build the basic architectural waistline. After this, there are four openings at different heights pointing to different views of Columbus downtown, depending on the landscape and architecture of the four directions on the outside of the site.
Inside the building, the block is divided equally into two parts, one half for offices and the other half for the hotel. The façade of the office area is covered with a grid plate to ensure ventilation while avoiding excessive light on the south side. The façade of the hotel area is covered with glass, ensuring ample views from the interior. The building is supported by two sets of cores, which together with the internal skeleton serve as the basic structure of the building.








The building is supported primarily by two cores, with two skeletal structures on the interior and exterior.
The structure consists of two cores combined with an internal and external skeleton structure. In the outermost layer of the building there is a glass curtain wall supported by the exoskeleton. Inside the glass curtain wall there is an internal curtain wall, which is used to ensure the natural ventilation of the interior and to minimize the high winds from the upper floors. In the atrium of the building there is a cylindrical hollow that utilizes the stack effect, allowing the exchange of hot and cold air inside the building, while the hot air is exhausted in the outdoor space.
The interior plan of the building is constructed primarily around the circular building interior curtain wall. The building consists of two main halves, office and hotel. The hotel has a smaller floor height and the office area has a higher floor height to fulfill different needs. The open area in the center consists of a variety of different functions and different views to many attractions in Columbus downtown.







The building utilizes the stack effect, which refers to the movement of airflow in a vertical duct in the center of the building caused by temperature differences. In the building, where warm air rises and cool air sinks, a natural ventilation air circulation mechanism is created.
This helps to regulate the temperature and humidity inside the building and provide good indoor air quality. The building's window openings and vents are placed on the interior of the building's facade, allowing the windows to open in this building to improve indoor air circulation and comfort.
The four open spaces of the building serve as the main passive air exchange spaces, where the hot air is exhausted and the cold air enters the building in this massive structure. At the same time a large amount of fresh air is provided in this part of the building, which is suitable for areas with a high concentration of people, such as swimming pools and parks.


Stack Effect
This chuck section includes swimming pool, gym, and hotel.



Tower Physical Model Scale1:100

Container
Individual Project 2024 Fall
Instructor Daniel Markiewicz
This project aims to explore the dual significance of containers in the construction of architectural forms: on the one hand, containers are used for protection, preservation and transportation due to their closed nature, which naturally creates a separation between internal and external spaces; on the other hand, their external surfaces are similar to the façade of a building, which assumes the function of external display and symbolic communication. In this process, we place the container in the context of architectural envelope theory and consider its multiple roles in terms of visual, functional and conceptual.
The design is partly inspired by Kara Walker's exhibition Ruffneck Constructivists, which expresses the dialog between marginal culture and modern art through a reinterpretation of traditional constructivism. In the project, we borrowed the spirit of Walker's exhibition and used the painting Suprematism No.38 as a blueprint to construct a Metal Die container through translation. The container not only inherits the compositionalist exploration of geometric forms and abstract compositions, but also embodies the separation and recombination of space through metallic texture and industrial aesthetics.
The term “Ruffneck Constructivists” is Walker’s intentional recasting of “Russian Constructivists.”
Viewing F. T. Marinetti’s 1909 “Futurist Manifesto” as a precursor to hip-hop artist the Notorious B.I.G.’s “Machine Gun Funk,” the phrase “Ruffneck Constructivists” evokes thuggishness as an expression of abjection. Walker’s wordplay suggests a relationship between the works on view in the exhibition and the moment, a century ago, when art and architecture were remaking a modern world. Yet, in place of the ego of the architect, they evoke the censured braggadocio of the hood and its blackmarket ingenuity. The exhibition focuses on structure and space as it is made and remade by policed bodies and identities.
The design of a container incorporates the ICA’s exhibition “Ruffneck Constructivists”. The design starts from the function and appearance of the original object, and the concept of recasting is amplified in this process, with the combination of massing referencing Constuctivism. The container recasts volumes at different scales and through operations of interpenetration to create a new form for the metal die from which it is derived.



Recasting Constructivism
Early Modernist oil on canvas painting
Volumes in different scales and interpenetration occured

Extracting Pattern
Recasting and Scaling Carving Pattern
Art Museum
In The Exhibitionary Complex, Tony Bennett extends Foucault's theory of the Panopticon to suggest that gallery visitors are both observers and observed, subtly regulated in their behavior by the surrounding architecture. This duality challenges us to rethink how museums interact with their audiences and communities.
By offering diverse exhibitions and fostering community engagement, art museums can become platforms for unexpected interactions and conversations. However, the shadow of Gentrification cannot be ignored. While it brings resources and greater visibility, it often leads to community alienation and loss of cultural diversity. Museums must find a balance in this tension, harmonizing development with community interests. Kara Walker's “Ruffneck Constructivist” exhibition at the ICA highlights how a focus on social issues and the integration of diverse art forms can foster deeper community connections in a modern context.
As we think about the expansion of ICA, is it possible to envision an open design that creates a public space filled with local culture? Can there be a connection between a museum's core mission (The Institute of Contemporary Art believes in the power of art and artists to inform and inspire. The ICA is free for all to engage and connect with the art of our time.) and its physical form that attracts and engages visitors? By embracing provocative ideas, we have the opportunity to redefine the museum experience and elevate its role in the community.


The
aesthetic, discursively realized in salons and museums through the process of critique, was coupled with a promise, the production of public exchange, of a public sphere, of a public subject. It also functioned as a form of self-imagining, as an integral
element in the constitution of bourgeois identity.
Quote from Institutional Critique by Alexander
Alberro and Blake Stimson
Aesthetics is not just an aesthetic experience, but a discursive practice with political and social implications

Through an in-depth study of Ruffneck Constructivism from the previous project and its focus on race, identity, and power structures, the exhibition touches directly on socially sensitive topics, making it more than just a display of art, but also a platform for community dialog.
As a tribute to the exhibiton, the project continues the treatment of form, using different scales of massing to construct the whole, and then interspersing the whole form with a plane, continuing the original architectural structure and materials.

In The Exhibitionary Complex, Tony Bennett extends Foucault's theory of the Panopticon to suggest that gallery visitors are both observers and observed, subtly regulated in their behavior by the surrounding architecture.
The Exhibitionary Complex is a sociocultural system that leverages public displays to maintain and reinforce power structures. Architectural layout, arrangement of light and sight lines can influence visitors' behavioral patterns and experiences.

Andy Warhol has exhibited at ICA Philadelphia, where his Pop Art style breaks traditional artistic boundaries through the intersection of commerce and popular culture.
This exhibition not only showcases Warhol's unique artistic perspective, but also exemplifies ICA Philadelphia's active practice of promoting cultural inclusiveness and pluralistic dialogue, providing a platform for audiences to re-examine the interaction between modern art and society

The design of the façade references the original ICA building, ultilizing the concept of extension.

The design of plan makes great use of the location of the original core, with extended walls running the length of the building. The interior space is divided into two main parts: the education space and the exhibition space.

The two planes form the basic circulation, and the functions of the building are, in descending order, administration, auditorium, office, exhibition, mural art gallery, and educational space. As can be seen from the section, there is an open space between each floor of the building that can be viewed from above and below, constituting a kind of surveillance. In addition, the building creates a separate huge space for local mural art in Philadelphia, showing the inclusiveness of the art gallery.



