I N T E R I O R
A RC H I T E C T U R E
![]()
I N T E R I O R
A RC H I T E C T U R E

2 0 2 2 2 0 2 6

C O N T E N T S






E C E P T

SAN DIEGO COUNT Y
ADMINISTR ATION CENTER
1600 PACIFIC HIGHWAY, SAN DIEGO CA
CONSTRUC TED IN 1938




D I S P L A Y R O O M









A
A



ARTDECOBEGANIN1925ATADESIGNEXPOINPARISTHAT ENCOURAGEDMODERN,DECORATIVESTYLES.THOUGHTHETERM "ARTDECO"WASN’TUSEDUNTIL1968,THESTYLEQUICKLYINF LUENCEDARCHITECTURE,FASHION,ANDDESIGN.ITWASMAINLYAN ARTISTICMOVEMENTBUTWASALSOSHAPEDBYSOCIALAND ECONOMICCONDITIONS.ZIGZAGMODERNE,POPULARINTHE1920S, REFLECTEDTHEEXCITEMENTANDLUXURYOFTHETIMEWITHBOLD GEOMETRICPATTERNS,RICHMATERIALS ANDORNATEDECORATION, OFTENUSEDINLARGEURBANBUILDINGSLIKETHEATERSAND DEPARTMENTSTORES DURINGTHEGREATDEPRESSION,THESTYLE SHIFTEDTOMOREPRACTICALFORMS,INCLUDINGPWAMODERNE ASIMPLER,MOREMONUMENTALVERSIONUSEDINGOVERNMENTFUNDEDPROJECTSLIKESCHOOLS,COURTHOUSES,ANDHOSPITALS. PWAMODERNEBLENDEDSTREAMLINEDDESIGNWITH CLASSICALELEMENTSANDWASPARTOFA POLITICALEFFORTTOPROVIDEJOBS ANDBUILDPUBLICINFRASTRUCTURE.
OVERALL,ARTDECOEVOLVEDAS AMIXOFARTISTICEXPRESSION, ECONOMICREALITY, ANDSOCIAL PURPOSE.










M A N A















1 8 1 5 S T E R L I N G P L , B RO O K LY N, N Y 1 1 2 3 3




S E C R E T A R I A L
S P A C E S

T H E P
E X P O
C L O S
P O RT
B AT H
O P E N
C O M F
T H E W
WA I T RO O M
T O T H
A N D
R E I N F BU F F
P R I VA
E L E VA
C O M P
M A N A
S E C R








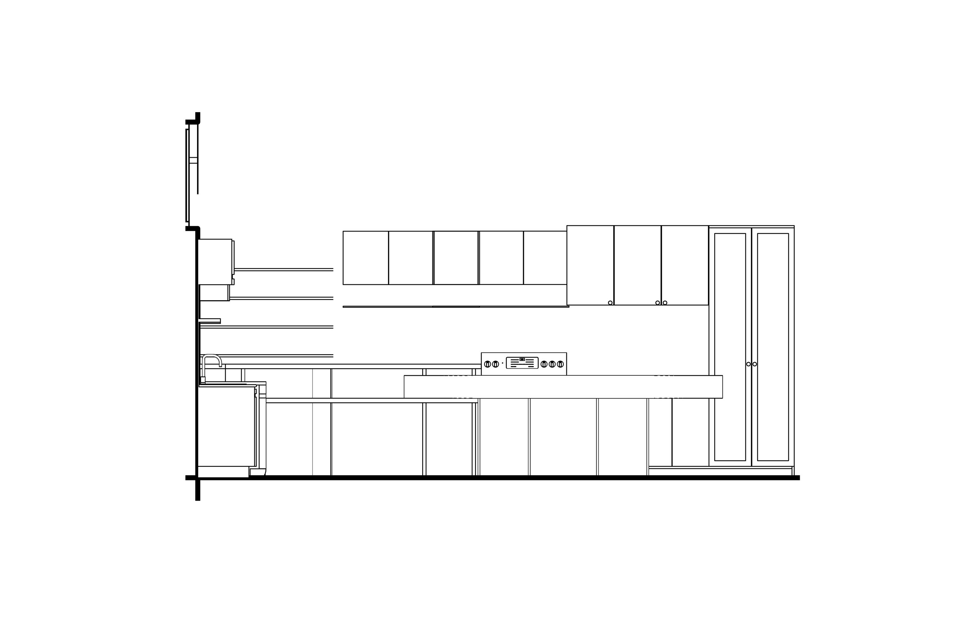
O F F I C E S & M A T E R I A L S
















H O M E D E S I G N









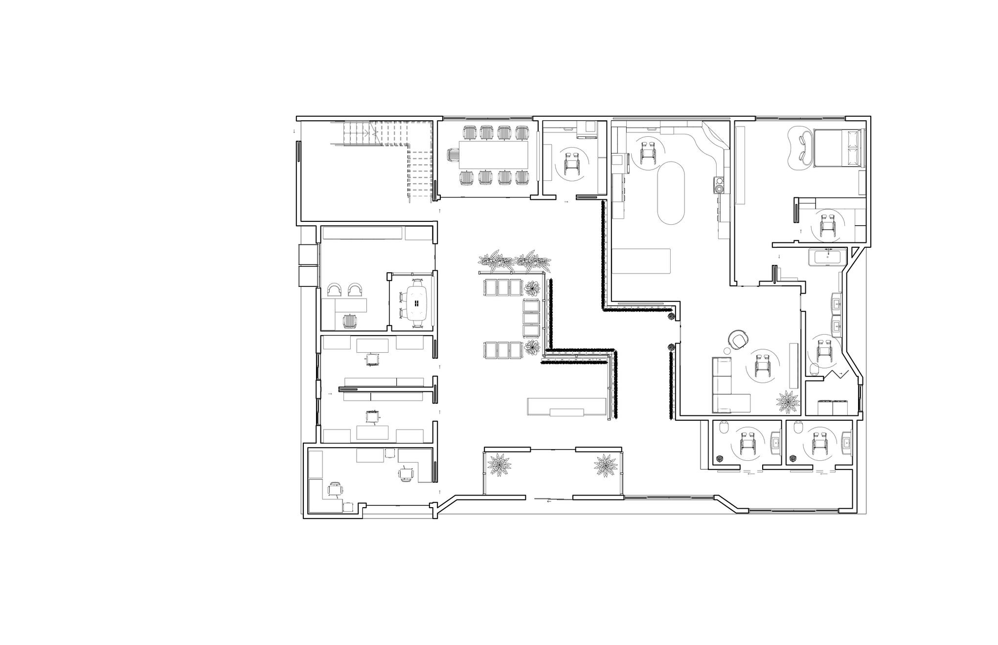
LEVEL 1

LEVEL 2
ROOM


C O U R T Y A R D
H O U S E

E X T E R I O R V I E W






R E N D E R I N G S








N


E C T I O N D R A W I N G & 3 D M O D E L




E X T E R I O R V I E W


D M O D E L




P O R T F O L I O

I N T E R I O R A RC H I T E C T U R E C O X 2 0 2 2 2 0 2 6
C H A R I S S A