Emptying

Page 1

THE CULTURAL PROJECT AS AN INTRODUCTION TO GUERRILLA ARCHITECTURE”

‘EMPTYING ’

WU Changrong 3035894216

CHARLOTTE LAFONT-HUGO & GILLES VANDERSTOCKEN (BEAU)

THE UNIVERSITY OF HONG KONG: MARCH STUDIO SEM1 2022-23 (ARCH7083 DESIGN 13)

RESPONSE

CONTEXT PROGRAM MATERIALISATION

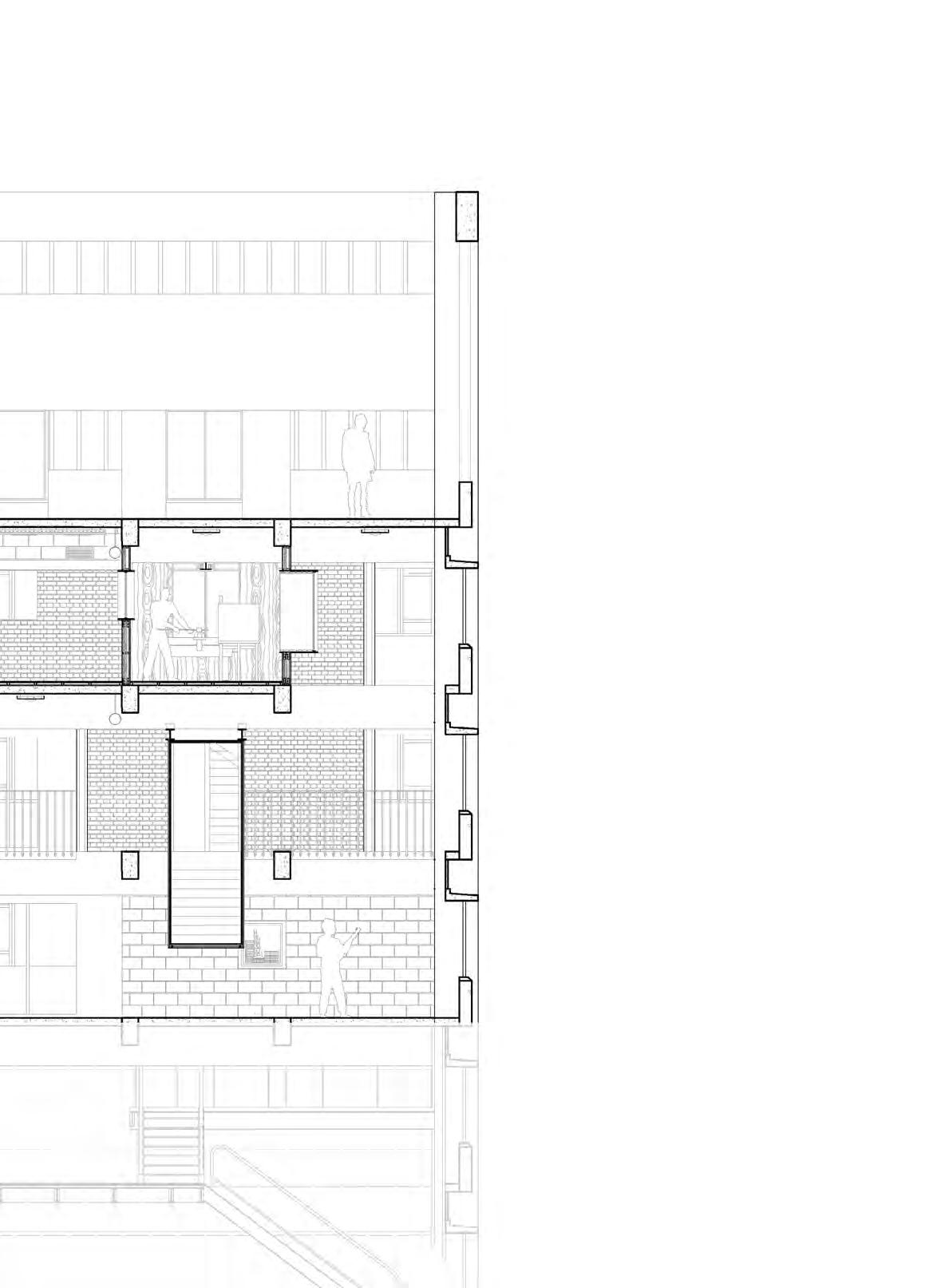
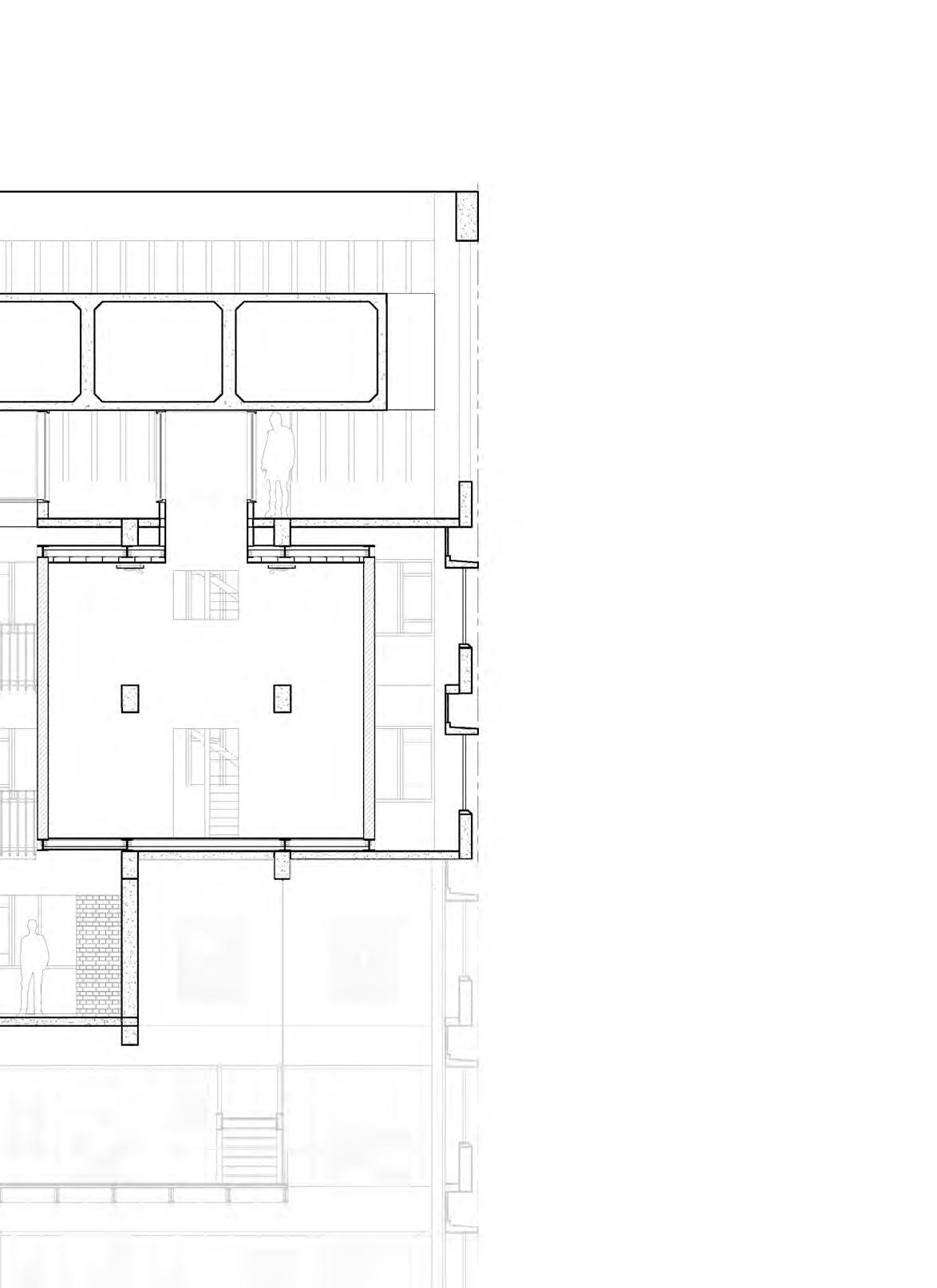
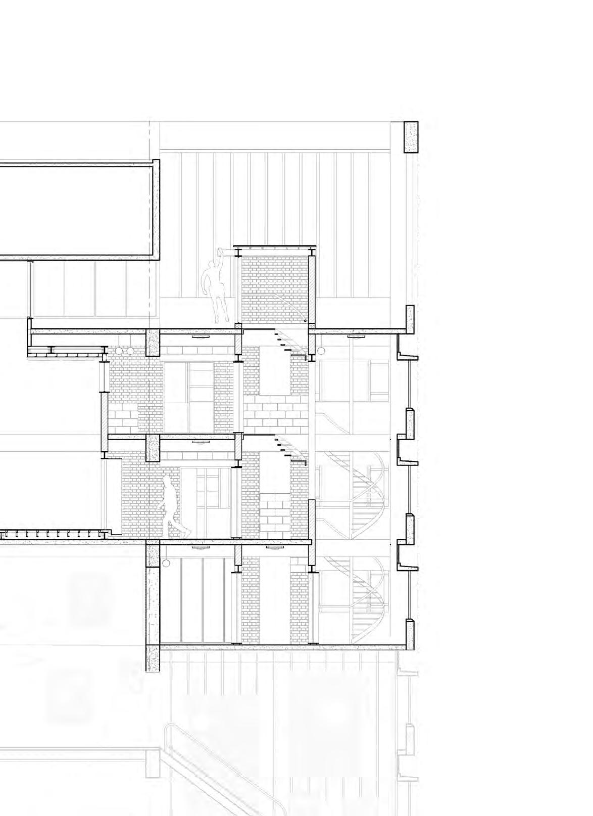
use it show it contrast it dysfunctional plan to live in and exhibit it contrast the raw concrete unfinished walls domestic living space

V
CONTENT WORKSHOP FESTIVAL I 4 CASE STUDY II 24 SITE ANALYSIS III 46 READING IV 68 SCHEMETIC DESIGN
72

-

Group work (3 groups)

-

Assignment: Each group to design and build a 1:1 element related to cultural spaces design; a vertical support, aka “the wall” (group 1), an horizontal support, aka “the vitrine/pedestal” (group 2), a lighting device (group 3). All of these elements should be self-standing, DIY construction, dismountable/remountable (transportable) and within a budget of 1’000HK$ maximum per element. It is recommended to use “off-the-shelf” components and focus on assembly construction logics. (See examples list in REFERENCES)

-

Aim: Develop an eye for hi-jack, bricolage, do-it-yourself or experimental construction potential solutions for the most common elements encountered in cultural projects.

-

Schedule: 1 week organised as…

o DAY 01: Supplier’s area exploration in Tai Kok Tsui / Mongkok / Prince Edward neighbourhood, samples collection and price assessment, first draft of design.

o DAY 02: Design presentation to tutors, including construction method and budget.

o DAY 03-04-05: Fabrication.

o DAY 07-08: Exhibition (together with other studios production) -

Outcome: 3 elements scale 1:1 + related drawings/sketches (1 per group).

-

Grading breakdown: 5% (group grade)

1

FESTIVAL

MASTER OF ARCHITECTURE HKU FESTIVAL 4 /25 H KU
MASTER OF ARCHITECTURE HKU FESTIVAL 5 /25

DAY 1 EXPLORATION

Day1, 2pm, we studio all mee at BEAU studio, and then followed Obie ti start the suppliers exploration and we 3 groups need to think and start the sample collection. After the trip we had a touch-base and drinks with tutors at BEAU studio. What a fun day!

MASTER OF ARCHITECTURE HKU FESTIVAL 6 /25
0 .2.4.6.8 km PENINSULA K O W LOON PENINSULA SHAMSHUIPO PRINCE ED WARD MON G KOK SUPPLIERS MAP 2022 01 02 03 04 05 06 07 09 08 10 11 12 13 14 310 LAI CHI KOK RD. 01 1123 CANTON RD. 08 191 APLIU ST. 02 191 APLIU ST. 02 德利五金 71 TONG MI RD. 09 203 APLIU ST. 宏 大 電 子 03 大照 五金 203 APLIU ST. 10 123-125 TAI NAN ST. 04 354 RECLAMATION ST. 11 07-09 YU CHAU ST. 05 288 RECLAMATION ST. 12 88 PRINCE EDWARD RD. WEST 06 280 RECLAMATION ST. 13 73 LAI CHI KOK RD. 07 大德五金 278 SHANGHAI ST. 14 MASTER OF ARCHITECTURE HKU FESTIVAL 7 /25

DAY 2 ’THE HORIZONTAL’ ?

Day2, 2pm, we met in4F studio with our sketch proposals. Followed by a intro of workshop, we had the first discussion of design. 6pm, we had a touch-base and conclusion with our proposals. Then we have to schedule our plan and took action. Then we design a table with one pole. And we decide to use tensil structure. What a intense start!

MASTER OF ARCHITECTURE HKU FESTIVAL 8 /25
MASTER OF ARCHITECTURE HKU FESTIVAL 9 /25

Day3, We model we test we list. We warped up all the expexted wood and hardware parts and we plan to buy all of them! . Base on the search we did on day1 we scheduled the potential shop lists and we went there to buy all we need. What a promising start!

elements Model shcreenshot Photo Amountnotes column
platform
buffer 1 brick OPT1 8 wood opt2 6
4
code 6 wood Base
8 4-adjuster 8
8
fixer 16
20meter
MASTER OF ARCHITECTURE HKU FESTIVAL 10 /25
1 <2600mm 3inchx3inch
1 1200*1200mm
1-CLAMP
2-corner
Node 3-hook
5-handle
1-wire
2-cable
Node cable
DAY 3 BUY
MASTER OF ARCHITECTURE HKU FESTIVAL 11 /25

DAY 4 FABRICATION

Day4, We start to install the parts. Though all are self-standing and dismountable/remountable, we still need to consider how we connect all and how it would fix to the real site. We sketched and we tested. Also, we have to buy parts all within a budget of HKD1000, and we did it! What a tough bargin process!

MASTER OF ARCHITECTURE HKU FESTIVAL 12 /25
MASTER OF ARCHITECTURE HKU FESTIVAL 13 /25

DAY 5 FABRICATION AND TRANSPORTATION

Day5, We have to finish all the fabrications and transport all to the site. because our design is really clear and easy to install ot uninstall, we easily package all there and install quickly. What a fun project!

MASTER OF ARCHITECTURE HKU FESTIVAL 14 /25
MASTER OF ARCHITECTURE HKU FESTIVAL 15 /25

DAY 6 PARTY

Day6, 6pm we began the party, let’s drink and talk around the elements. What a enjoyable moment!

MASTER OF ARCHITECTURE HKU FESTIVAL 16 /25
MASTER OF ARCHITECTURE HKU FESTIVAL 17 /25
MASTER OF ARCHITECTURE HKU FESTIVAL 18 /25
MASTER OF ARCHITECTURE HKU FESTIVAL 19 /25

The workshop aims at opening up the material side of the studio. Students will explore both the design and construction of three elements classically deployed/ employed in cultural spaces: a vertical display (aka “the wall”), a horizontal display (aka “the pedestal”) and a lighting device. These elements have to be dismountable, cheap and made-out of off-the -shelf standard/proprietary components and materials.

135 3045 270 75 545 6100 475 1545 1160 1020 1900 6100 3940 2050 2200 475 1545 1160 1020 1900 1310 3940 730 2232 2050 2195 775 475 885 1520 120 1100 95 2885 95 1300 1050 2120 1050 420 650 1400 12090 +0mm +2600mm +2710mm 135 240 20 220 2360 775 2095 +0mm +2380mm +2710mm 240 95 2885 95 135 +0mm +2490mm +2710mm +2490mm +2380mm +0mm +2490mm +2710mm +2380mm 885 1520 120 1100 5940 650 1400 475 12090 Hanging Lighting Fixtures Fridge A/C Hanging Rod Plug A/C Drop Ceiling Fridge A/C Overhead Beam Overhead Lighting Drop Ceiling A/C Overhead Beam Overhead Lighting Drop Ceiling A/C Fridge A/C VERTICAL |
|
3 Elements
SPONSORS VENUE Thy Lab, 135 Yu Chau street, Sham Shui Po Opening on Saturday (10/09) at 5pm TUTORS Charlotte Lafont-Hugo | Gilles Vanderstocken WORKSHOP & CONSTRUCTION ASSISTANT Obie Chan STUDENTS Bai Chenye | Subhiksha Bhoovarahan | Chiew Yi Zheng Chu Kit Ying | Lau Bo Yee | Li Xuechang | Long Xiao | Tsui Sui Nam Christina | Wan Po Kwan | Wu Changrong | Yin Yue | Zeng Yiling LEFT FRONT LEFT RIGHT BACK FRONT FRONT BACK BACK RIGHT FRONT BACK MASTER OF ARCHITECTURE HKU FESTIVAL 20 /25
HORIZONTAL
LIGHTING

3 Elements

HORIZONTAL

The initial idea of ‘horizontal’ device came from thinking about the numbers of support legs of a table. As a challenge to the traditional four-legged table, we designed a horizontal display structure supported by a single pillar. To achieve this, a suspension structure was applied to create a floating effect. This design is dedicated to using off-the-shelf node construction for easy assembly/disassembly and also for easy transportation. In terms of structural design, it includes three aspects - the foundation, the cable connection between tabletop and pole, and rigid connection between pole and I-beam.

MASTER OF ARCHITECTURE HKU FESTIVAL 21 /25

DAY 7 AFTER THE PARTY

Day7, after the party we packaged all the parts back to the studio. Festival is over, elements become elements, they remain empty, they remian meaningful as they are in a party.

MASTER OF ARCHITECTURE HKU FESTIVAL 22 /25
MASTER OF ARCHITECTURE HKU FESTIVAL 23 /25

-

Group work (3<4 groups) -

Assignment: Each group to study 3 built architecture projects (see complete list in REFERENCES) through the notions of context (where?), program (what?), materialisation (how?). See the above “After the Party by OFFICE KGVDS, Venice Biennale, 2008.“ as reference. In order to frame the analysis, a series of preliminary parameters will be associated with each topic as per below:

o Context: Physical (i.e. site, surroundings, pre-existing conditions, scales, climate, etc.), cultural and historical, material and technological, programmatic and functional, etc.

o Program: Function legibility, typology legibility, ergonomic legibility, canonical answer, symbolical/Implicit functionalism, possibility of appropriation, etc.

o Materialisation: Material palette, implementation method, expression, influence on design, contextual relevance, functional relevance, standardisation, experimentation, skills level, technological level, complexity, sustainability, etc. -

Aim: Identify, name, categorise and develop the various strategies, tools and mechanisms employed by the Designer and/or the User to deal with these 3 topics and build up a collective toolbox used at later stage. -

Schedule: 2 weeks organised as…

o DAY 01: Site visits (see list at SITE VISITS AND LECTURES SUMMARY)

o DAY 02-03: Studio / work in progress

o DAY 04: Group presentation -

Outcome: Each group to produce/collect drawings, diagrams, technical drawings (partial), pictures, etc. as supportive documents and present the whole to the class. Eventually a print booklet or video montage combining all case studies to be produced. See also “NOTES ON OUTPUT”. -

Grading breakdown: 10% (group grade)

2

CASE STUDIES

HKU
MASTER OF ARCHITECTURE HKU CASE STUDIES 26 /226 02 MUHARRAQ, BAHRAIN ART COLLECTION AND ARCHIVE IMITATION OF NATURAL TEXTURE VIA COMMON MATERIAL 04 CONCÉNTRICO,LOGRONO, SPAIN INSTALLATION TEMPORARY MODULE BASED ON TRADITIONAL CONTEXT 01 DUNKIRK, FRANCE ART SPACE ADDITION CONTEMPORARY INDUSTRIAL MATERIAL 03 VILCHES, CHILE SCULPTURE WORKSHOP VERNACULAR LOW-TECH CONSTRUCTION

4 WAYS OF MAKING

These 4 cases incorporate four separate ways of approaching respective materiality. The influential factors in the selection of building materials are diverse, but what coordinates in the four cases is the intention of architects to read and digest the context and culture faithfully and respectfully.

- Contemporary industrial material

When the north region FRAC was seeking a new place to hold their collections of contemporary art, an old boat warehouse Halle AP2 came into their sight. It is such a bright, huge, and symbolic industrial building on the pier that architects Lacaton & Vassal want to keep its entirety. A double Halle was created next to the old one to achieve this. The duplication has a light and bioclimatic envelope supported by a prefabricated steel structure. The architects researched the greenhouse and used corrugated polycarbonate and double membrane EFTE to create this transparent skin. Inside is a concrete core to store the artworks with a well-designed transporting and handling area. The whole building created a natural ventilation system by utilizing the properties of materials and making it more sustainable.

- Imitation of natural texture via common material

The Green Corner sets up an interesting model for making nature-like artifacts. Cast in formwork made of fine sands, architects achieved the relief effect on the surfaces of the concrete wall panels that resemble the walls of local heritage buildings in Bahrain built from coral stones. This local material has been used for thousands of years. Despite the concerns of “Architectural Integrity” on whether it is ethical to fake certain natural

textures through artificial interventions that are making shortcuts of time and labor, the outcome of the sand-casted concrete walls exhibited the potential of the innovative use of a common construction material rather than pour it simply into a normal frame structure.

- Vernacular low-tech construction

The concept comes from a weak local construction and a muleteer’s shed. Though using almost the same rough material as the muleteer’s shed, Smiljan Radić created a silent shelter in a low-tech but detailed construction. This sculpture workshop consists of a stone corral that surrounds a usable area in the middle of a field, a bridge crane along one side — for moving heavy weights, and a tarp hung from it to provide shade. A simple combination of vernacular materials can create a poetic and silent space.

- Temporary module based on traditional context PALMA + HANGAR collaborated to insert a temporary brick pavilion in the old factory’s narrow passage at the 2021 CONCÉNTRICO Festival in Spain. This pavilion comprises a series of square rooms of 3.6×3.6m that form a spatial procession of corridors and rooms of a domestic character. The whole linear space nods to the factory’s monumental red brick chimney in the background. Walls are stacked with 30x30cm thermo-clay bricks related to the regional building roofs and history. Jagged edges of such special bricks increase both vertical and lateral frictions so the whole walls can be stable enough even only need to pile them up directly without any wet construction.

MASTER OF ARCHITECTURE HKU CASE STUDIES 27 /226

05 FRAC, NORD-PAS DE CALAIS Lacaton & Vassal Dunkerque, France, 2013

05A

The old building Halle AP2 was located in northern France, Dunkerque. It was a boat warehouse in the pier.

05C

Industrial spaces have been repurposed as the industry has shifted over the past century. The large windows, high ceilings, and open floor plans all these factors are suitable for art spaces. The architects Lacaton & Vassal have made a bold decision: leave the space empty and at the same time, build a twin near it. Their approach has a small quantity of irony since they showed the attitude to challenge the so-called ‘architecture renovation’. Thanks to the limited intervention in the old building, FRAC can have exhibition space on different scales and good storage for artworks on a tight budget.

MASTER OF ARCHITECTURE HKU CASE STUDIES 28 /226
05C HALLE AP2 AFTER RENOVATION © EL CROQUIS 177+178 05B TWIN HALL EXHIBITON SPACE © PHILIPPE RUAULT 05A ORIGINAL BUILDING © EL CROQUIS 177+178
MASTER OF ARCHITECTURE HKU CASE STUDIES 29 /226 05D FRAC DUNDERQUE © PHILIPPE RUAULT
MASTER OF ARCHITECTURE HKU CASE STUDIES 30 /226 05E FUNTIONAL DISTRIBUTION © EL CROQUIS, EDITED BY AUTHOR EXHIBITION HALL PUBLIC ARTWORK GOODS RECEIPT LOADING & PREPATATION ROOM PUBLIC ACCESS GOODS HANDLING ADDITINAL SPACES STORAGE EXPERIMENTATION / MEDIATION GOODS HANDLING & ADDITIONAL ACCESS WELCOME / INFORMATION ELEVATOR LABORATORY LOGISTICS ADMINISTRATION

05E

The twin building creates much space for art storage. In addition to the exhibition space, there are many educational and research-related spaces. The space also opens to the public to hold various scale activities from everyday exhibitions to international artistic events, consolidating the redevelopment of the port of Dunkerque.

MASTER OF ARCHITECTURE HKU CASE STUDIES 31 /226
©
STORAGE STORAGE STORAGE STORAGE STORAGE STORAGE TRANSIT DOCK HALLE AP2 INNER STREET TRANSIT
05E FUNTIONAL DISTRIBUTION
EL CROQUIS, EDITED BY AUTHOR

05F CORRUGATED POLYCARBONATE© PHILIPPE RUAULT

05G DOUBLE MEMBRANE EFTE © PHILIPPE RUAULT

05H PREFABRICATED STEEL STRUCTURE © PHILIPPE RUAULT

05I CONCRETE CORE © PHILIPPE RUAULT

05F

The material differences of the identical forms give a sensibility of mass and shadow, sound and echo - the primacy of which switches at night at the translucency of the ETFE sheeting makes a lantern of the building. Thanks to the material architects chose, the budget allows the realization of the FRAC and the setting up of conditions and equipment for public use of the Halle AP2.

MASTER OF ARCHITECTURE HKU CASE STUDIES 32 /226

05J

The whole building created a natural ventilation system by utilizing the properties of materials. Adjusting the movement of slidable covering and the ground floor openings allows the ventilation of the entire space to be controlled. This passive design makes the building more sustainable and creates a proper artwork storage environment.

MASTER OF ARCHITECTURE HKU CASE STUDIES 33 /226
05J VENTILATION AND MATERIAL © DRAW BY AUTHOR

06 THE GREEN CORNER STUDIO ANNE HOLTROP MUHARRAQ, BAHRAIN, 2020

Located in Muharraq, Bahrain, the Green Corner Building is dedicated to art collection and archive. The narrow building is featured with the sandcasted concrete wall panels of relief effects, imitating the look of the tradiontional construction material, namely coral stone.

With many heritage buildings of coral stone nearby, the Green Corner harmonizes with the local Arabic context, by innovatively using sand as the formwork to create the surface texture that feels natural with the geological cut. Meeting the corner of the plot with generous recession, the project is set with a public square in the north and featured facade for display, as a response to the local climate of dry and hot summer and warm winter.

MASTER OF ARCHITECTURE HKU CASE STUDIES 34 /226
06C INTERIOR VIEW © EL CROQUIS 206 ANNE HOLTROP 2009-2020 06B INTERIOR VIEW © ANNE HOLTROP 06A SITE PLAN © EL CROQUIS 206 ANNE HOLTROP 2009-2020
06B,C&D
MASTER OF ARCHITECTURE HKU CASE STUDIES 35 /226 06D
© ANNE
NORTHERN FACADE
HOLTROP
MASTER OF ARCHITECTURE HKU CASE STUDIES 36 /226 06G LATEX LAYER © ANNE HOLTROP 06F SAND-CASTED CONCRETE © ANNE HOLTROP 06E WALL ELEMENTS © EL CROQUIS 206 ANNE HOLTROP 2009-2020 214 Alzado Norte / North elevation Elementos de fachada / Wall elements 214 Alzado Norte / North elevation Elementos de fachada / Wall elements
MASTER OF ARCHITECTURE HKU CASE STUDIES 37 /226 Sección transversal / Cross section 06H NORTHERN FACADE © ANNE HOLTROP

07 CORRAL, SCULPTURE WORKSHOP SMILJAN RADIC VILCHES, CHILE, 2015 07A

Site hidden in a peaceful woodland with low-density villages

Images/ideas of a hut and ‘light&floating‘ roof, become a symbolic element.

A humble, low-tech, and vernacular form. Such space is full of richness. Materials collected by Radic are composited perfectly in this project. Both senses of roughness and attentiveness are present in this workshop.

MASTER OF ARCHITECTURE HKU CASE STUDIES 38 /226
2 4
1 3
167&199
07A
MULETEER’S SHED © GOOGLE EARTH 07C RADIC’S PROJECTS © EL CROQUIS
SMILJAN RADIC
07B OVERALL VIEW © EL CROQUIS 199 SMILJAN RADIC, P195-204
07C 07B
MASTER OF ARCHITECTURE HKU CASE STUDIES 39 /226
P195-204
07D VIEW FROM COURTYARD © EL CROQUIS
199 SMILJAN RADIC,

Overall geometry relationship of the workshop is also operated in a rough method: generally can be composited by four rectangles, and harsh corner is kept.

Four giant trees are playing with the boundary. A square trap stand right in-between trees can provide a shaded space for the artist to create.

MASTER OF ARCHITECTURE HKU CASE STUDIES 40 /226
07F INSIDE VIEW © EL CROQUIS 199 SMILJAN RADIC, P195-204
07E DIAGRAMS © DRAWN BY WU
07E,F

In rural areas, complicated construction is unsuitable and needs a low-tech way to utilize the local raw materials. Stone, tarp, concrete, and steel connectors are sufficient to build. Most of the materials are the same as a shed for livestock.

The structure, four inclined steel poles, and a steel I-Beam are a simple, organic but efficient system. The relationship between a detached tarp roof and linear corral is a typical operation in Smiljan Radic’s projects.

MASTER OF ARCHITECTURE HKU CASE STUDIES 41 /226
03H PHOTO OF ARTICULATION © EL CROQUIS 199 SMILJAN RADIC, P195-204
03J
SECTION © EL CROQUIS 199 SMILJAN RADIC, P195-204
07I
DIAGRAM © DRAWN BY WU CHANGRONG 07G PHOTO OF ARTICULATION © EL CROQUIS 199 SMILJAN RADIC, P195-204
07G-J

08 INSTALLATION AT CONCÉNTRICO

Palma +Hanghar

Logrono,

This installation nods to the factory’s monumental red brick chimney in the background and echoing the historic buildings.

Spain, 2021

Site locates in-between tabacoo factories where at the center of logrono.

Six types of space create a ritual experience which can bring visitors into an unexpected atmospheric experience, allowing people to interact with the installation in a much deeper way.

MASTER OF ARCHITECTURE HKU CASE STUDIES 42 /226
08C SECTION © HANGHAR 08A SITE © GOOGLE MAP 08B FACADE VIEW ON CHIMNEY SIDE © LUIS DÍAZ DÍAZ
08B
08C 08A
MASTER OF ARCHITECTURE HKU CASE STUDIES 43 /226
DÍAZ
08D PHOTO OF ARTICULATION © LUIS DÍAZ

The project shows a strong axis and comprises a series of square rooms of 3.6×3.6m that form a spatial procession of corridors and rooms of a domestic character.

This installation is built with a specific square 30x30cm thermo-clay brick which can be produced in an extruded way and cut in a certain thickness. The method of making is quite efficient for a temporary project, and the discarded part can be part of the flooring material.

MASTER OF ARCHITECTURE HKU CASE STUDIES 44 /226
DIAGRAMS
DRAWN
08F INSIDE VIEW © LUIS DÍAZ DÍAZ 08H
©
BY WU CHANGRONG
08G DETAILS © LUIS DÍAZ DÍAZ
08G,H
08E DIAGRAMS © DRAWN BY WU CHANGRONG
08E,F

Clay bricks respond to the roof of local buildings, and the overall form is quite polite to the historical buildings.

Looking into the detail of bricks, jagged edges can add extra friction in the lateral way and support in the vertical way. This way of construction differs from wet construction, helps to build, and is easy to recycle.

MASTER OF ARCHITECTURE HKU CASE STUDIES 45 /226
08J INSIDE VIEW © LUIS DÍAZ DÍAZ 08I AXON © HANGHAR
08I,J

Group work (full group) -

Assignment: Students to collectively conduct a site survey and collect material related to the Eastern Commercial Centre building, 397 Hennessy Road, Wan Chai, Hong Kong (see appendix). -

Aim: Understand the reality of the site, collect and produce the basis for individual projects development, work as a group.

Schedule: 1 week -

Outcome: As a group, one 1:50 scale model of the existing building (dismountable/remountable to receive future individual projects) + package of general drawings (massing, site plan, plans, sections, elevations in CAD and PDF, scale TBD) + 3D model (Rhino) + additional material (e.g. pictures, solar studies, etc.).

-

Grading breakdown: 10% (group grade)

ANALYSIS

HKU
SITE
3

EASTERN OMMERCIAL CENTRE BUILDING

Year built: 1975 Type:Office building Area: 90840 sqft Storet: 21 Lift: 3

MASTER OF ARCHITECTURE HKU SITE ANALYSIS 48 /226
08H DIAGRAMS © DRAWN BY WU CHANGRONG

WAN CHAI, HONG KONG

Eastern Commercial Centre is an office building located in Wan Chai. Office size are various from 600 sq.ft. to 4,542 sq.ft.. Rental and sale transactions are relatively inactive compared to other office buildings in this district. It is located near HYSAN Place and Times Square. Walking from Eastern Commercial Centre to MTR Causeway Bay Station takes only 5 minutes.

MASTER OF ARCHITECTURE HKU SITE ANALYSIS 49 /226
SITE © GOOGLE MAP
A 1 2 3 4 5 6 B C A 1 2 3 4 5 6 B C GROUND FLOOR PLAN BASEMENT FLOOR PLAN D D C C A A B B D D C C A A B B MASTER OF ARCHITECTURE HKU SITE ANALYSIS 50 /226
CREDIT TO STUDIO DRAWING GROUP
DRAWING DOCUMENTATIONS
SECTION A-A' MASTER OF ARCHITECTURE HKU SITE ANALYSIS 51 /226
CREDIT TO STUDIO DRAWING GROUP

DIGITAL ANALYSIS

MASTER OF ARCHITECTURE HKU SITE ANALYSIS 52 /226

WIND ROSE

MASTER OF ARCHITECTURE HKU SITE ANALYSIS 53 /226

SUNPATH DIAGRAM

MASTER OF ARCHITECTURE HKU SITE ANALYSIS 54 /226

SOLAR ANALYSIS

MASTER OF ARCHITECTURE HKU SITE ANALYSIS 55 /226
MASTER OF ARCHITECTURE HKU SITE ANALYSIS 56 /226 Podium-GF Podium-GF Podium-GF Lower Floor-7F Lower Floor-7F Lower Floor-7F Higher Floor-20F Higher Floor-20F Higher Floor-20F 6am~10am 6am~10am 6am~10am 10am~14pm 10am~14pm 10am~14pm 14pm~18pm 14pm~18pm 14pm~18pm SUNLIGHT HOUR - INTERIOR JANUARY
MASTER OF ARCHITECTURE HKU SITE ANALYSIS 57 /226 Podium-GF Podium-GF Podium-GF Lower Floor-7F Lower Floor-7F Lower Floor-7F Higher Floor-20F Higher Floor-20F Higher Floor-20F 6am~10am 6am~10am 6am~10am 10am~14pm 10am~14pm 10am~14pm 14pm~18pm 14pm~18pm 14pm~18pm SUNLIGHT HOUR - INTERIOR JULY

SOLAR ANALYSIS VOLUMN

MASTER OF ARCHITECTURE HKU SITE ANALYSIS 58 /226
MASTER OF ARCHITECTURE HKU SITE ANALYSIS 59 /226

SOLAR ANALYSIS SKELETON

MASTER OF ARCHITECTURE HKU SITE ANALYSIS 60 /226

L20

L11

L06

MASTER OF ARCHITECTURE HKU SITE ANALYSIS 61 /226 GF

SOLAR ANALYSIS WITH SLABS

MASTER OF ARCHITECTURE HKU SITE ANALYSIS 62 /226

L20

L11

L06

MASTER OF ARCHITECTURE HKU SITE ANALYSIS 63 /226 GF

SOLAR ANALYSIS WITH FACADE

MASTER OF ARCHITECTURE HKU SITE ANALYSIS 64 /226

L20

L11

L06

MASTER OF ARCHITECTURE HKU SITE ANALYSIS 65 /226 GF

PHYSICAL MODEL

MASTER OF ARCHITECTURE HKU SITE ANALYSIS 66 /226
MASTER OF ARCHITECTURE HKU SITE ANALYSIS 67 /226

Individual -

Assignment: Read the following 3 essays:

1 One selected essay (TBD with tutors) from “Fuck Concepts! Context!”, San Rocco 4, Various, 2013.

2 “Inside the White Cube, The Ideology of the Gallery Space, Part I”, Brian O’Doherty, 1976.

3 “Ornament and Crime”, Adolf Loos, 1913.

-

Aim: Explore the studio thematic (context, program, materialisation) via texts from renowned authors to generate a solid critical background.

Schedule: 1 week -

Outcome: Each student to produce a summary/analysis of the 3 texts (200250 words per title).

-

Grading breakdown: 5% (individual grade)

4

READING

HKU

1 ORNAMENT AND CRIME

Loos opposes "ornament" not only because it wastes materials and labor force but, more importantly, because it inevitably conveys inferior forms of craftsmanship that only serve the needs of those who do not reach a high level of civilization. Loos understand the "ornament" of artisans (like shoemakers), but shoemakers do not listen to Beethoven or Wagner, nor do they need to deprive or replace their happiness. But if someone who listens to "the Ninth Symphony" sits down to design wallpaper instead, he is a degenerate. Again, what Loos can't stand is the degradation of civilization, which, in his view, is the use of ornament. Such strong words are aimed at both the separatists and his contemporaries.

Oddly enough, he is one of the best at practicing the ornament. At Villa Miller, he was able to stitch together the natural texture of the marble slab veneer seamlessly, like a "single stone." In the famous pavilion of Mies van der Rohe, there is also a "single stone" screen, from the effect or look comparable to Loos, but this stone is originally the same piece of stone slices and then splicing, from the difficulty of the process is far from the same; In addition, it is Peter Zumthor's the Vals that the concept of this work, "the stone is made of stone" , is in line with the tradition from Alberti to Loos, but Zumthor is based on the compact mechanism of stacked schist to achieve integrity. Compared with Loos's pure veneer splicing operation, still a little inferior. Additionally, as i learned from Loos, he regarded the ornament as a reference to create non-referential art.

“ORNAMENT AND CRIME”, ADOLF LOOS, 1913.

INSIDE THE WHITE CUBE

In this chapter, O’ Doherty describes the modern art gallery as constructed along laws as rigorous as those for building a medieval church. The basic principle behind these rules is the following: the outside world must not come in. Inside the white cube, art is isolated and can take on its own life and anything else become a conundrum of esthetics. Inside the White Cube is a construction of a supposedly unchanging space. It is a space where the effects of change are deliberately disguised and hidden, in an attempt to cast an appearance of eternality over the works of art that are displayed.

Many galleries today are no longer white cubes. From the 19th century to the present, gallery lighting has improved, architecture has changed, and fancy Spaces have multiplied. The changing role of art has often led political activists to express dissatisfaction with galleries and the commercial system they represent. However, the function of the gallery has not changed. It has proven to be a vessel capable of accepting painting, photography, sculpture, and countless forms of contemporary art.

Nevertheless, the White Cube is still a autonomous and interim device that attempts to bleach the past while controlling the future by calling upon the so-called transcendental mode of being and power. It is this mode, or approaches to it, that the white cube represents.

MASTER OF ARCHITECTURE HKU READING 70 /226
2
“INSIDE THE WHITE CUBE, THE IDEOLOGY OF THE GALLERY SPACE, PART I”, BRIAN O’DOHERTY, 1976.

3 FUCK CONCEPTS! CONTEXT!

I like the chapter, BUILDING CONTEXT, and its beginning quoted from Le Corbusier: ‘There is nothing more elegant than the pure line of viaducts in a geographically varied site?’ Emptiness is there. The empty space is the most relevant of space qualities. As for the context, the context of architecture was conceived as a common background that was a generally heterogeneous, disorderly sum of historical and natural shapes that had to be reorganized and redefined by modern culture. We somehow misunderstand the context into content, always want to do some analysis. Just like Rem Koolhaas said, ‘?Where there is nothing, everything is possible. Where there is architecture, nothing (else) is possible.’ It means it gave any project the right to design anything, including its absence.

The essay, THE POSSIBILITY OF DISAPPEARING, is also to some degree related to the architectural absence. There is a point in the example, Rocca Pisana, is a villa which takes all the possible freedom of being seasonal. There are no doors separating the pronaos from the hall, and no windows enclose the north, east and west loggias. The Rocca is also the result of a subtle interplay between the representative function of the exterior and the interior search for solace. To some degree, this house is merged into the ground, a great emptiness comes out.

MASTER OF ARCHITECTURE HKU READING 71 /226
“FUCK CONCEPTS! CONTEXT!”, SAN ROCCO 4, VARIOUS, 2013.

Individual -

Assignment1: Tutors to lead a group workshop and help students to define their individual brief (typology, basic program, location, design direction etc.) while generating a consistent group project at the scale of the whole building.

-

Assignment2: Student to develop his/her project both at Schematic Design and detail level. -

Assignment3: Student to develop his/her project at Detail Design level including fabrication of a scale 1:1 mock-up of a relevant node/element. -

Aim: Apply classic architecture tools (drawings, diagrams, collages, models, etc.) to develop and communicate ideas + application of experience from the Workshop Festival.

Schedule: 5 weeks o Studio / tutorials / pin-upOutcome: Mid-term review presentation documents (combining steps 3, 5 and 6) and Final delivering performance. -

Grading breakdown: 65% (individual grade)

5

DESIGN

HKU

INTERLOCK - ZONING DIVISION

Nicole: Elevator sha�+Exhibi�on

Chris: Living+Art space

Delancy: Auc�on+Exhibi�on

Ivy: Atelier

Subhi: Workshop space

Sherry: Amphitheater+Exhibi�on

Chris�na: library+Cafe

Jessie: Open space for ar�st and public

Lexie: Non-commercial Exhibi�on+ Public space

Lynn: Storage+Conserva�on Lab

Bo: Archive

Shawn: Gallery

MASTER OF ARCHITECTURE HKU SCHEMETIC 74 /226
MASTER OF ARCHITECTURE HKU DESIGN 75 /226
MASTER OF ARCHITECTURE HKU SCHEMETIC 76 /226 B1 GF 1f 3f 5f 7f 2f 4f 6f 8f Jessie: Open space for artist and public Jessie: Open space for artist and public Christina: library+Cafe Sherry: Amphitheater+Exhibition Shawn: Gallery Shawn: Gallery Bo: Archive Bo: Archive Lexie: Non-com- mercial Exhibition+ Public space Lexie: Non-commercial Exhibition+ Public space Nicole Nicole: Elevator+Exhibition Lynn: Storage+Conserva�on Lab
MASTER OF ARCHITECTURE HKU DESIGN 77 /226 9F 10F 11f 13f 15f 17f 12f 14f 16f 18f 19f 20f Sherry: Amphitheater+Exhibition Subhi: Workshop space Subhi: Workshop space Ivy: Atelier
Atelier Delancy: Auction+Exhibition
Living+Art space Chris: Living+Art space Nicole: Elevator +Exhibition
Ivy:
BO - 650sq.m. area, volume 2570 cub.m. Lexie - about 600sqm Christina - 625sqm Lynn - 890sqm Chris - 790sqm Delancy - 700sqm Shawn - 330sqm Sherry - 870 sqm(inclu core) and 640 sqm (exclu core) Jessie - 946.12 sqm (including outdoor deck), 687.2 sqm (indoor area without core) Chris:

DISCUSSION

WHICH IS EXISITING STRUCTURE?

MASTER OF ARCHITECTURE HKU SCHEMETIC 78 /226

from the discussion, we set the rule of exisiting structure:

- Main skeleton should never demolished.

-Keep Secondary beams, if keep the slab

- Panel on the facade shoule also be kept if keep the secondary beam

MASTER OF ARCHITECTURE HKU DESIGN 79 /226

ITERATION 1 SKETCH THE IDEA, PLAN

MASTER OF ARCHITECTURE HKU SCHEMETIC 80 /226

Existing structure is so strong that i always want to use it in a geometrical way. Keep testing the zoning diagram in Plan.

MASTER OF ARCHITECTURE HKU DESIGN 81 /226

ITERATION 1 SKETCH THE

IDEA,

SECTION

MASTER OF ARCHITECTURE HKU SCHEMETIC 82 /226
MASTER OF ARCHITECTURE HKU DESIGN 83 /226

ITERATION 1 SET

THE RULE BASED ON THE EXISTING GRID

We can clearly see there is a grid system hidden in the structure system which consist of skeleton, secondary beams and the core.

MASTER OF ARCHITECTURE HKU SCHEMETIC 84 /226

To responde the context, i choose to develop my rule from the grid system. By ‘layering‘, i try to create a totally different logic of plan layout to maxmize the potential of the existing C-shape plan.

MASTER OF ARCHITECTURE HKU DESIGN 85 /226
LAYERING
MASTER OF ARCHITECTURE HKU SCHEMETIC 86 /226
MASTER OF ARCHITECTURE HKU DESIGN 87 /226

ITERATION 2 TEST IN 3D

18F CUT IN H=1.7M

18F CUT IN H=2.6M

MASTER OF ARCHITECTURE HKU SCHEMETIC 88 /226

19F

CUT IN H=1.15M

19F

CUT IN H=2.15M

MASTER OF ARCHITECTURE HKU DESIGN 89 /226

ITERATION 2 TEST IN 3D

20F CUT IN H=1.6M

20F CUT IN H=2.6M

MASTER OF ARCHITECTURE HKU SCHEMETIC 90 /226

AXON LIVING IN ART SPACE

MASTER OF ARCHITECTURE HKU DESIGN 91 /226

ITERATION 3 REFINE IN PLAN

MASTER OF ARCHITECTURE HKU SCHEMETIC 92 /226
18th floor plan 1:50 19th floor plan 1:50 20th floor plan 1:50 MASTER OF ARCHITECTURE HKU DESIGN 93 /226
18F 19F 20F

ITERATION 3 DOUBLE CIRCULATION

MASTER OF ARCHITECTURE HKU SCHEMETIC 94 /226
MASTER OF ARCHITECTURE HKU DESIGN 95 /226
overall project model photo
MASTER OF ARCHITECTURE HKU SCHEMETIC 96 /226
MASTER OF ARCHITECTURE HKU DESIGN 97 /226

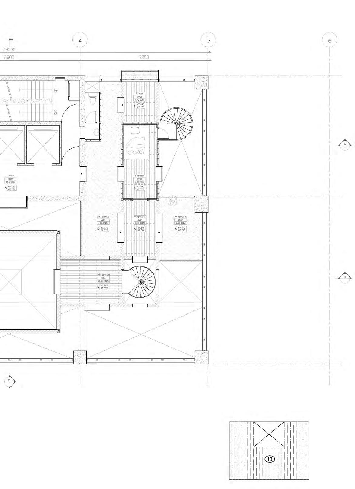
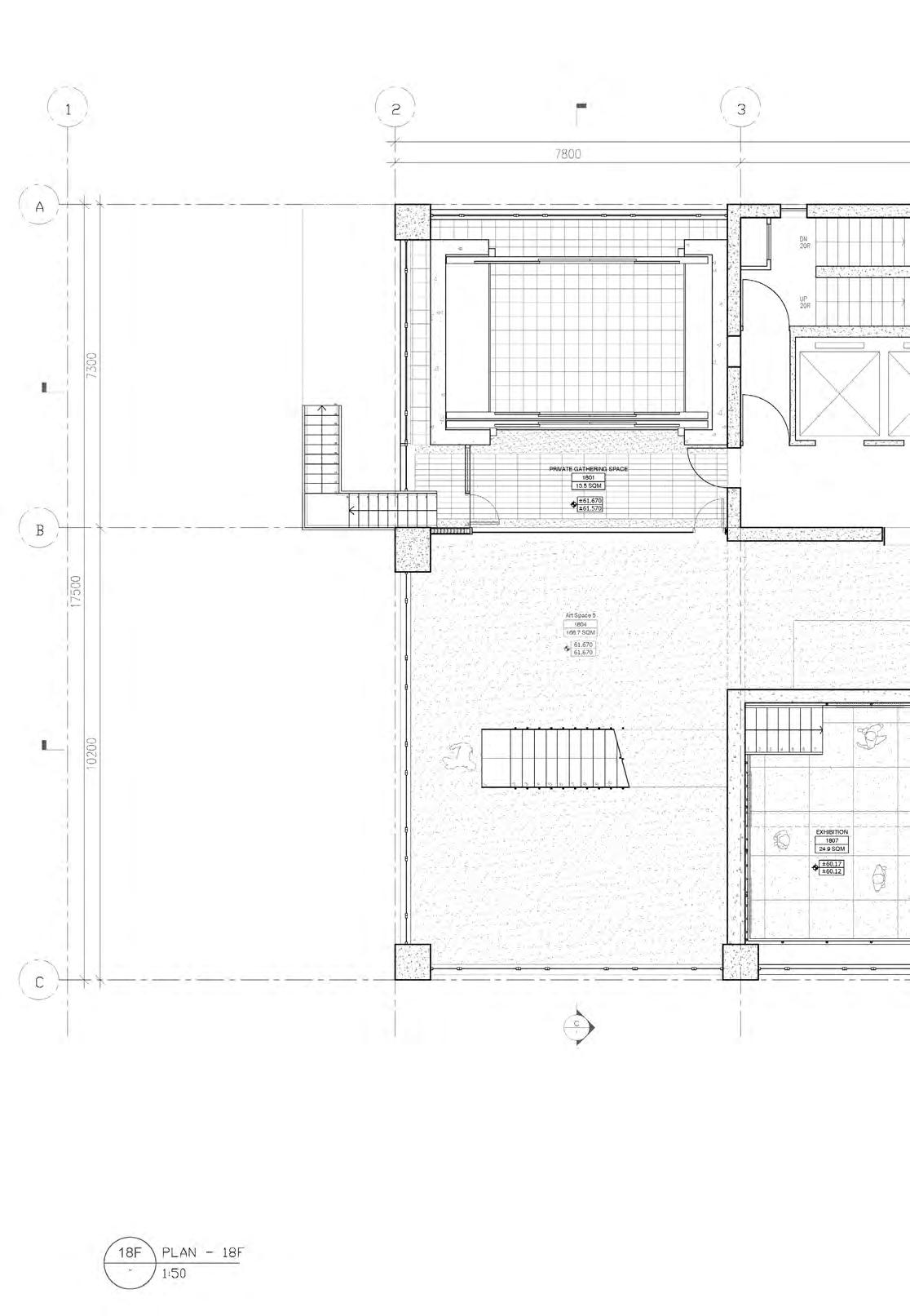
ITERATION 4 MIDTERM - PLAN

18th floor plan 1:50 18/f MASTER OF ARCHITECTURE HKU SCHEMETIC 98 /226
18F
MASTER OF ARCHITECTURE HKU DESIGN 99 /226
18F SCENARIO

ITERATION 4 MIDTERM - PLAN

19th floor plan 1:50 19/f MASTER OF ARCHITECTURE HKU SCHEMETIC 100 /226
19F
MASTER OF ARCHITECTURE HKU DESIGN 101 /226
19F SCENARIO

ITERATION 4 MIDTERM - PLAN

20th floor plan 1:50 20/f MASTER OF ARCHITECTURE HKU SCHEMETIC 102 /226
18F
MASTER OF ARCHITECTURE HKU DESIGN 103 /226
20F SCENARIO

ITERATION 4 MIDTERM - SECTION

MASTER OF ARCHITECTURE HKU SCHEMETIC 104 /226
MASTER OF ARCHITECTURE HKU DESIGN 105 /226
SEC_EW_1

ITERATION 4 MIDTERM - SECTION

MASTER OF ARCHITECTURE HKU SCHEMETIC 106 /226
MASTER OF ARCHITECTURE HKU DESIGN 107 /226 SEC_EW_2

ITERATION 4 MIDTERM - SECTION

MASTER OF ARCHITECTURE HKU SCHEMETIC 108 /226
MASTER OF ARCHITECTURE HKU DESIGN 109 /226
SEC_EW_3

ITERATION 4 MIDTERM - SECTION

MASTER OF ARCHITECTURE HKU SCHEMETIC 110 /226
SEC_NS_1
MASTER OF ARCHITECTURE HKU DESIGN 111 /226 SEC_NS_2

ITERATION 4 MIDTERM - SECTION

MASTER OF ARCHITECTURE HKU SCHEMETIC 112 /226 SEC_NS_3

MIDTERM - MATERIALISATION

For the exisiting structure, i try to use it show it contrast it

MASTER OF ARCHITECTURE HKU DESIGN 113 /226

MIDTERM - MATERIALISATION

For the exisiting structure, i try to use it show it contrast it

MASTER OF ARCHITECTURE HKU SCHEMETIC 114 /226

MIDTERM - MATERIALISATION

For the exisiting structure, i try to use it show it contrast it

MASTER OF ARCHITECTURE HKU DESIGN 115 /226
MASTER OF ARCHITECTURE HKU SCHEMETIC 116 /226
MASTER OF ARCHITECTURE HKU DESIGN 117 /226

space in-between layers always can see through the rooms

MASTER OF ARCHITECTURE HKU SCHEMETIC 118 /226

both direction can see through even the core structure happens and be with the layers

MASTER OF ARCHITECTURE HKU DESIGN 119 /226

i contrast the existing structure.

MASTER OF ARCHITECTURE HKU SCHEMETIC 120 /226
MASTER OF ARCHITECTURE HKU DESIGN 121 /226
MASTER OF ARCHITECTURE HKU SCHEMETIC 122 /226
MASTER OF ARCHITECTURE HKU DESIGN 123 /226

ITERATION 5 FREEZE THE DESIGN - PLAN

VOID
VOID UP UP UP UP UP UP 20R DN 20R 20R 20R VOID VOID VOID 18/f
VOID VOID VOID VOID
VOID UP UP DN 20R 20R MASTER OF ARCHITECTURE HKU SCHEMETIC 124 /226
18/f
19/f
20/f

TECH DRAWINGTECH

VOID VOID VOID
VOID VOID VOID VOID
VOID DN UP 20R 20R UP 20R DN 20R RF DN 20/f DN
19/f
20/f
OPT2
20R 20R MASTER OF ARCHITECTURE HKU DESIGN 125 /226
221111

ITERATION 5 TECTONIC - PLAN

VOID VOID VOID UP 20R DN 20R UP 20R DN 20R MASTER OF ARCHITECTURE HKU SCHEMETIC 126 /226
VOID VOID VOID VOID 20/f UP 20R DN 20R UP 20R DN 20R MASTER OF ARCHITECTURE HKU DESIGN 127 /226

ITERATION 5 FREEZE THE DESIGN - SECTION

RF 70.82

20F 67.77

19F 64.72

18F 61.67

17F 58.62

16F 55.57
MASTER OF ARCHITECTURE HKU SCHEMETIC 128 /226
MASTER OF ARCHITECTURE HKU DESIGN 129 /226

ITERATION 5 FREEZE THE DESIGN - SECTION

16F 55.57 17F 58.62 18F 61.67 19F
RF 70.82 MASTER OF ARCHITECTURE HKU SCHEMETIC 130 /226
64.72 20F 67.77
MASTER OF ARCHITECTURE HKU DESIGN 131 /226

ITERATION 5 FREEZE THE DESIGN - SECTION

MASTER OF ARCHITECTURE HKU SCHEMETIC 132 /226
MASTER OF ARCHITECTURE HKU DESIGN 133 /226

ITERATION 5 FREEZE THE DESIGN - SECTION

MASTER OF ARCHITECTURE HKU SCHEMETIC 134 /226
MASTER OF ARCHITECTURE HKU DESIGN 135 /226

ITERATION 5 TECTONIC - SECTION

MASTER OF ARCHITECTURE HKU SCHEMETIC 136 /226
MASTER OF ARCHITECTURE HKU DESIGN 137 /226

MATERIALISATION AN UNFINISHED COLLAGE

Look at the existing elements, we can see the decay facade and rusty elements. There exists an unfinished environment and atmosphere.

MASTER OF ARCHITECTURE HKU SCHEMETIC 138 /226

Learning from the Hi-jack. i take Beau and advvt architects as reference. They both collage the material and an interesting interior happens.

DEVICE MASTER OF ARCHITECTURE HKU DESIGN 139 /226 YAN, beau, 2022
DETAIL, FROM BEAU ARCHITECTS, YAN, 220525
RAMPELKEN HOUSE, GHENT ARCHITECTEN DE VYLDER VINCK TAILLIEU , 2010-2012 64 HET TONEELHUIS OFFICES, ANTWERP, ARCHITECTEN DE VYLDER VINCK TAILLIEU , 2006-2009

MATERIALISATION COLOR CODE

Set the rule of color code. Therefore i can sketch to explore more.

Red -- Brick --Solid infilling -- public Blue -- Light -- light framing system -- domestic

MASTER OF ARCHITECTURE HKU SCHEMETIC 140 /226
MASTER OF ARCHITECTURE HKU DESIGN 141 /226

massing model

Red -- Brick --Solid infilling -- public white -- Light -- light framing system -- domestic Reflection -- metal -- archi elements -- mutations

MASTER OF ARCHITECTURE HKU SCHEMETIC 142 /226
MASTER OF ARCHITECTURE HKU DESIGN 143 /226

MATERIALISATION COLLAGE TEST

MASTER OF ARCHITECTURE HKU SCHEMETIC 144 /226
MASTER OF ARCHITECTURE HKU DESIGN 145 /226

MATERIALISATION COLLAGE TEST

MASTER OF ARCHITECTURE HKU SCHEMETIC 146 /226
MASTER OF ARCHITECTURE HKU DESIGN 147 /226

MATERIALISATION COLLAGE TEST

MASTER OF ARCHITECTURE HKU SCHEMETIC 148 /226
MASTER OF ARCHITECTURE HKU DESIGN 149 /226

MATERIALISATION COLLAGE TEST

MASTER OF ARCHITECTURE HKU SCHEMETIC 150 /226
MASTER OF ARCHITECTURE HKU DESIGN 151 /226

MATERIALISATION MODEL TEST

SELF-STANDING BOX

Load transfer is tectonic. infillment stands on the steel structure,and steel structure is fixed on the existing.structure. i use it and contrast it.

MASTER OF ARCHITECTURE HKU SCHEMETIC 152 /226
MASTER OF ARCHITECTURE HKU DESIGN 153 /226
MASTER OF ARCHITECTURE HKU SCHEMETIC 154 /226
MASTER OF ARCHITECTURE HKU DESIGN 155 /226
MASTER OF ARCHITECTURE HKU SCHEMETIC 156 /226 DETAIL DESIGN SELF-STANDING BOX
MASTER OF ARCHITECTURE HKU DESIGN 157 /226
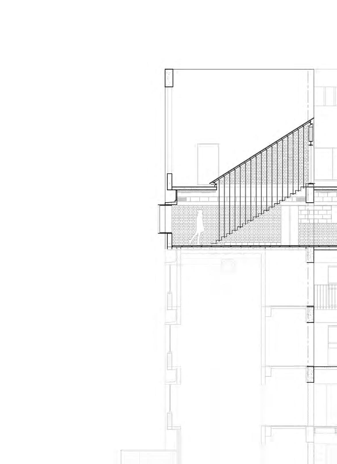
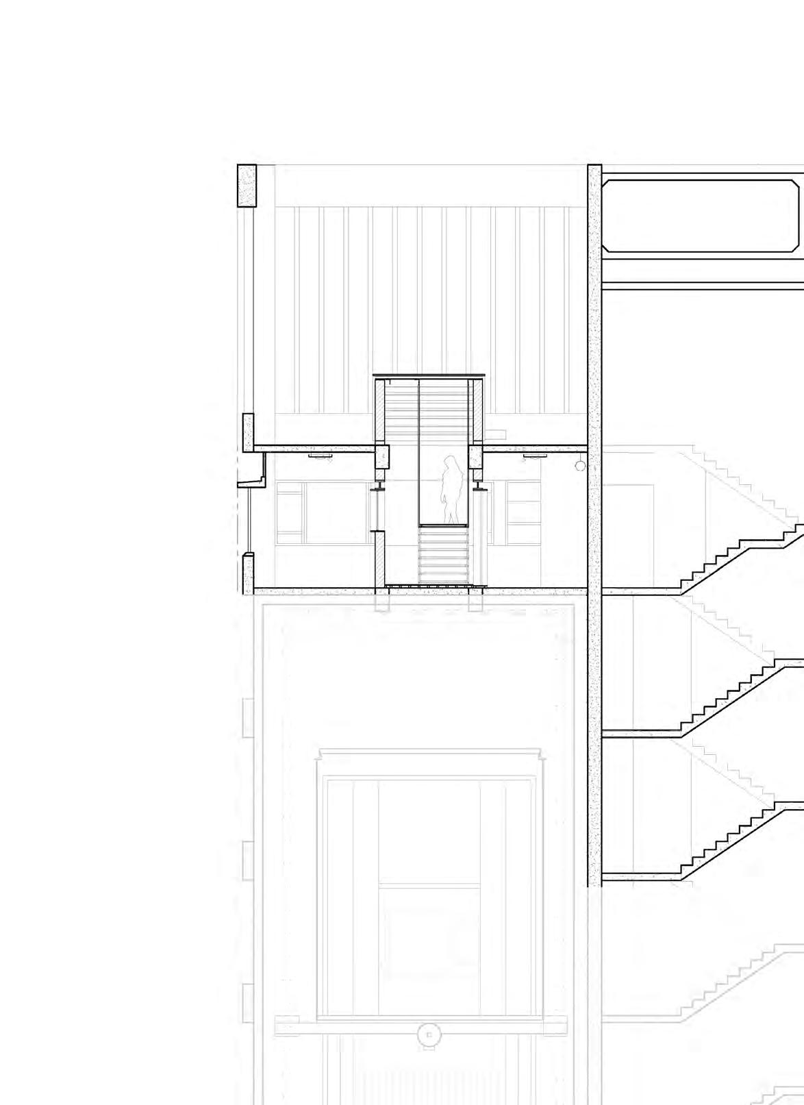
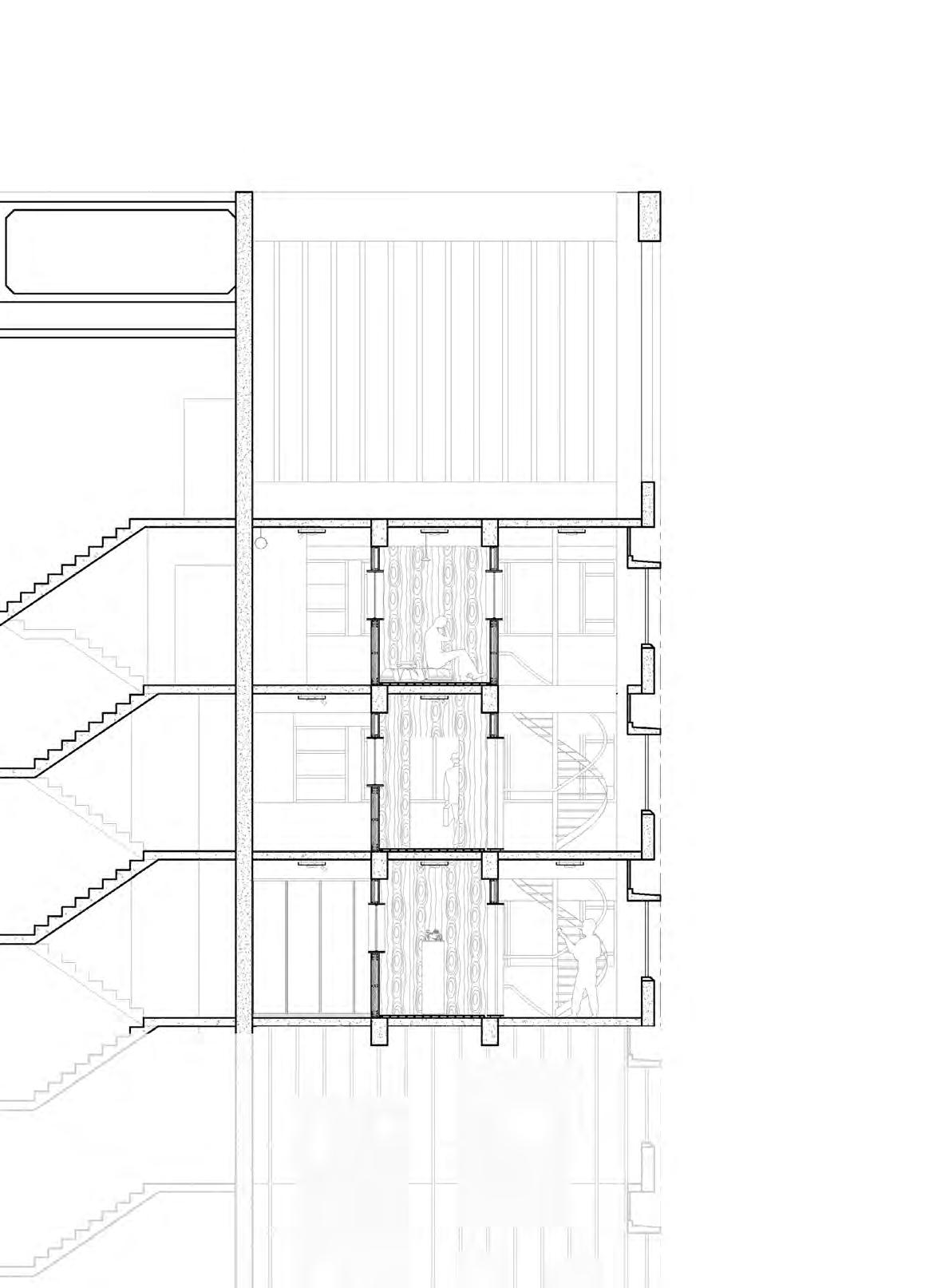
SUSPENSION STAIR

6

3 steel I beam 200x200mm oil paint green 6 Ceiling t=10mm Gysum finish

7 wood joist 30x100mm 11 warpped steel finish t=1mm 12 double layer glass t=5mm 14 silicone

9 Insulation t=50mm 8 wood closure beam 100x100mm 17 wood frame 60x60mm

15 Wood flooring t=10mm 18 bent steel plate t=5mm oil paint 20 web stiffer 22 existing concrete slab t=150mm 23 screws d=10mm 24 steel I beam oil paint green 200x200mm

3 1904 1:10

17

22

1:10 1904 Axon section'Box' gallery detail 13 5
10 Emptying: living in
WU Changrong 4
A B B
box support section
A
4 steel joist h=120mm 13 Channel for lights pipes and cables 15
art space
5 steel joist h=120mm
1:10
B
A Box section 1904
12
10 wood plate t=18mm
23 24
16
19
0
0 existing secondary beam t=400mm 1 AC pipe d=200mm MASTER OF ARCHITECTURE HKU SCHEMETIC 158 /226
18
21 20
2 10 7 8 9 14 1
11
16 wood joist 30x60mm 21 wood adjustment plate t=10mm
2 wood adjustment plate t=10mm 19 steel joist h=120mm

Emptying: living in art space

Suspension Stair detail

Changrong

tin roof t=15mm

Insulation t=50mm

Gysum board t=10mm

5 L-shape Steel beam h=80mm

Steel joist h=50mm

steel bar d=20mm

steel beam h=150mm

concret

Brick wall

Sliding door w=900mm

bent steel plate t=5mm oil paint

Steel Beam connector 10x30mm

Stair support beam h=50mm

Existing structure

bent steel plate 1mm

Wood adjustment plate t=18mm

cement mortar 20mm

waterproof t=5mm

Insulation t=30mm

Lighting system

2002 1:10 Axon section
14 20 7
11
6
8
19
9 10 12
16 1 18 10
3
11
4 10
6
1
14
4
20
15
3
8
2
16
7
17
WU
18
19
9
6
5 17 15 13 2
B
Stair upper part section A A 2002 1:10 1:10 A A Stair section 2002 MASTER OF ARCHITECTURE HKU DESIGN 159 /226
13
12
A

GROUP PART

MASTER OF ARCHITECTURE HKU SCHEMETIC 160 /226
MASTER OF ARCHITECTURE HKU DESIGN 161 /226
MASTER OF ARCHITECTURE HKU SCHEMETIC 162 /226
MASTER OF ARCHITECTURE HKU DESIGN 163 /226
MASTER OF ARCHITECTURE HKU SCHEMETIC 164 /226
MASTER OF ARCHITECTURE HKU DESIGN 165 /226
MASTER OF ARCHITECTURE HKU SCHEMETIC 166 /226
MASTER OF ARCHITECTURE HKU DESIGN 167 /226
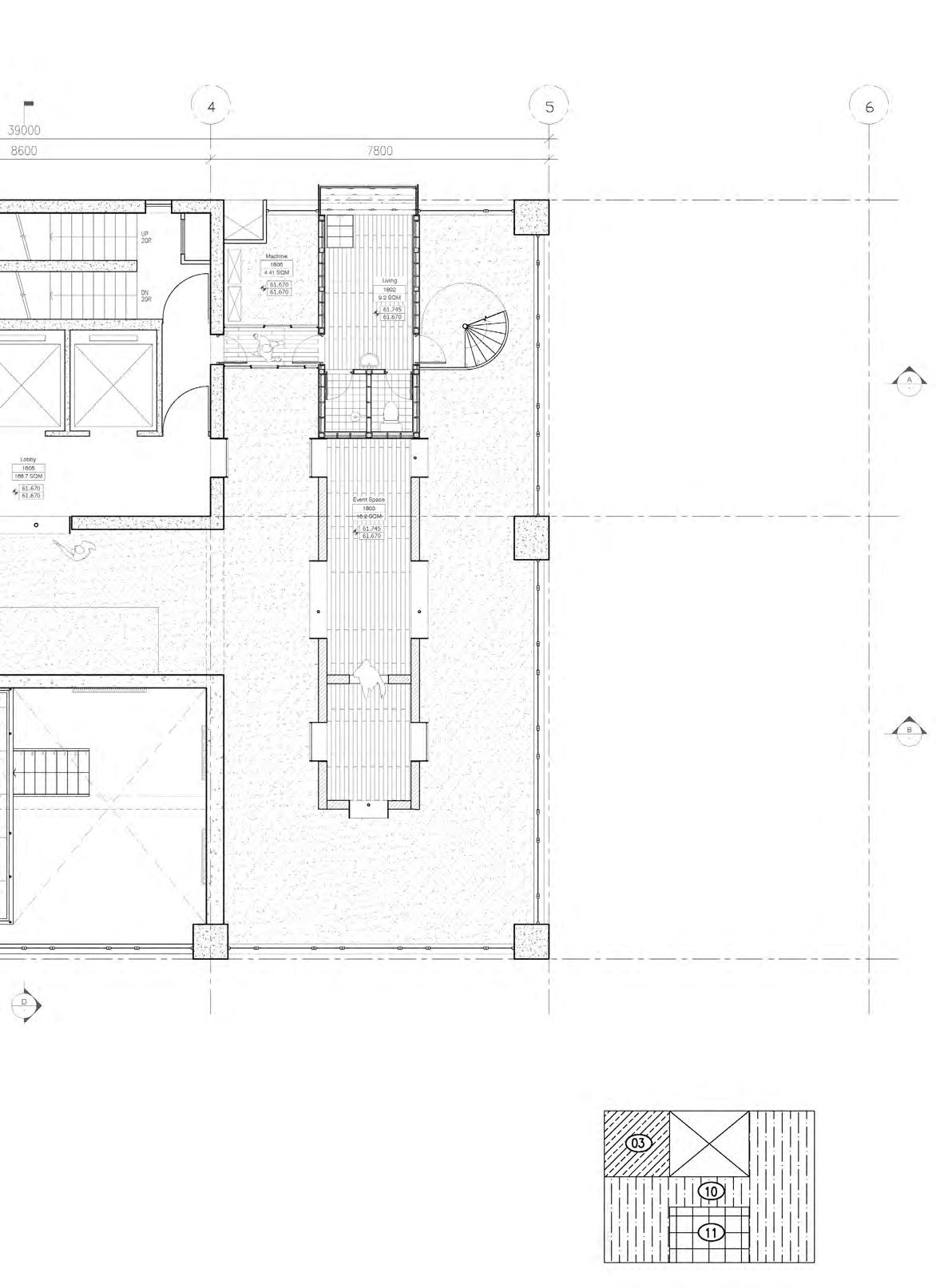
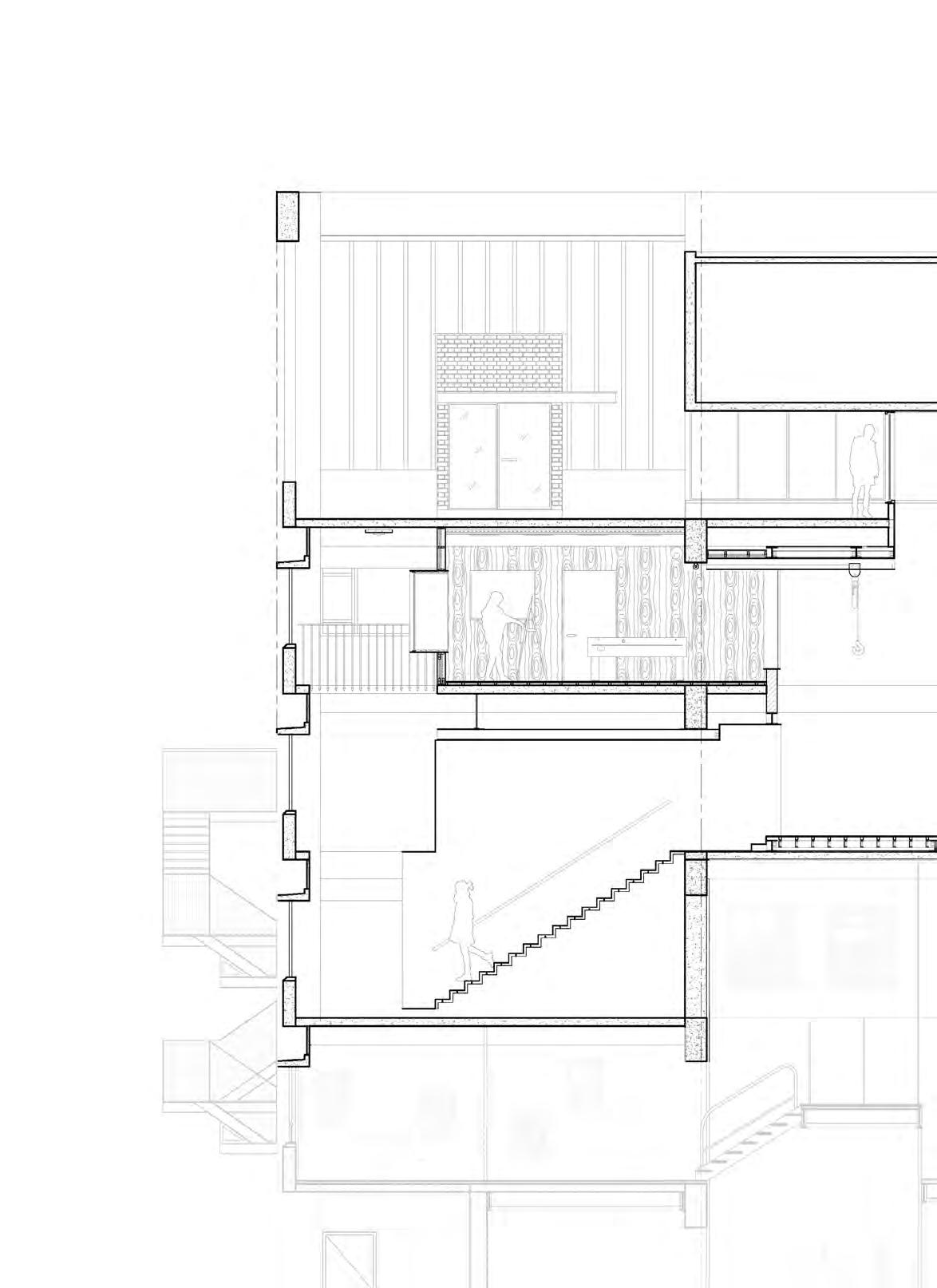
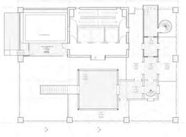
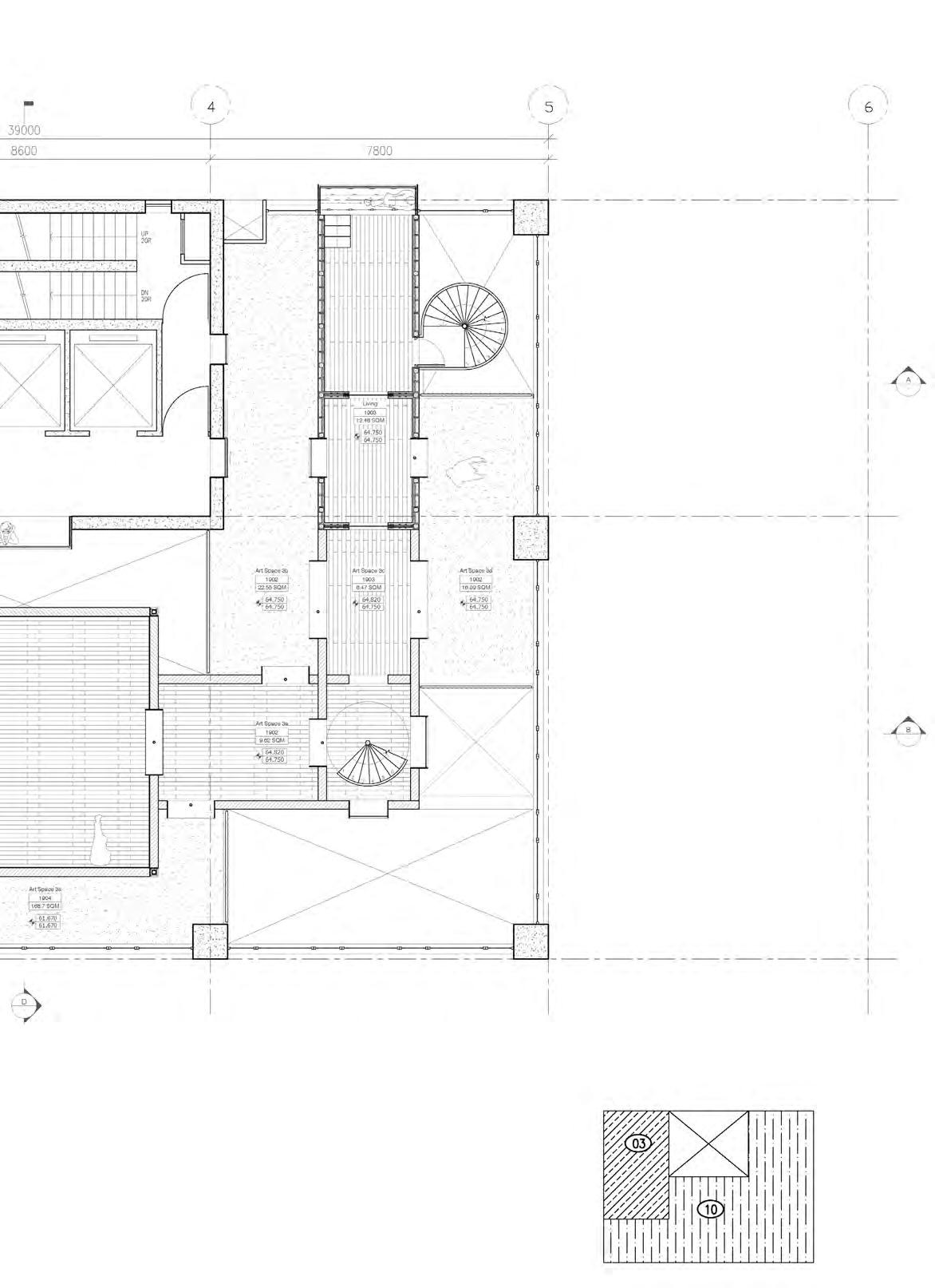
MASTER OF ARCHITECTURE HKU SCHEMETIC 168 /226 10 EMPTYING: LIVING 18F<RF FINAL
WU CHANGRONG
REVIEW
MASTER OF ARCHITECTURE HKU DESIGN 169 /226 10 LIVING IN
18F<RF CHANGRONG
ART SPACE
VOID VOID VOID UP 20R DN 20R UP 20R DN 20R MASTER OF ARCHITECTURE HKU SCHEMETIC 170 /226
use it show it contrast it
dysfunctional to live and exhibit
CONTEXT PROGRAM

PROGRAM

dysfunctional plan live in exhibit it

MATERIALISATION

contrast the raw concrete unfinished walls domestic living space

VOID VOID 19/f VOID
DN MASTER OF ARCHITECTURE HKU DESIGN 171 /226
20/f

ONTEXT

MASTER OF ARCHITECTURE HKU SCHEMETIC 172 /226 ‘EXISITING‘ - C
MASTER OF ARCHITECTURE HKU DESIGN 173 /226 USE IT / SHOW IT / CONTRAST IT
MASTER OF ARCHITECTURE HKU SCHEMETIC 174 /226
MASTER OF ARCHITECTURE HKU DESIGN 175 /226

- OF SEQUENCE TO USE IT

MASTER OF ARCHITECTURE HKU SCHEMETIC 176 /226
‘RULE‘
MASTER OF ARCHITECTURE HKU DESIGN 177 /226OFFSET TO CREATE LAYERS FROM GEOMETRICAL RELATIONS.
MASTER OF ARCHITECTURE HKU SCHEMETIC 178 /226
MASTER OF ARCHITECTURE HKU DESIGN 179 /226
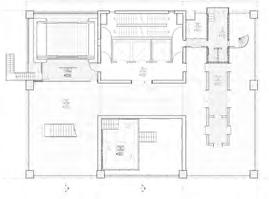
MASTER OF ARCHITECTURE HKU SCHEMETIC 180 /226 PLAN - 18F
MASTER OF ARCHITECTURE HKU DESIGN 181 /226
MASTER OF ARCHITECTURE HKU SCHEMETIC 182 /226 PLAN - 19F
MASTER OF ARCHITECTURE HKU DESIGN 183 /226
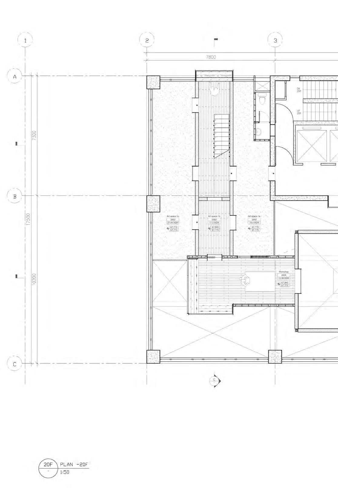
MASTER OF ARCHITECTURE HKU SCHEMETIC 184 /226 PLAN - 20F
MASTER OF ARCHITECTURE HKU DESIGN 185 /226
MASTER OF ARCHITECTURE HKU SCHEMETIC 186 /226
MASTER OF ARCHITECTURE HKU DESIGN 187 /226
MASTER OF ARCHITECTURE HKU SCHEMETIC 188 /226
MATERIALISATION
MASTER OF ARCHITECTURE HKU DESIGN 189 /226

- OF MA TERIALISATION

DOMESTIC

MASTER OF ARCHITECTURE HKU SCHEMETIC 190 /226
‘RULE‘

PUBLIC

MASTER OF ARCHITECTURE HKU DESIGN 191 /226
MASTER OF ARCHITECTURE HKU SCHEMETIC 192 /226
SECTION A-A
MASTER OF ARCHITECTURE HKU DESIGN 193 /226
MASTER OF ARCHITECTURE HKU SCHEMETIC 194 /226
MASTER OF ARCHITECTURE HKU DESIGN 195 /226
MASTER OF ARCHITECTURE HKU SCHEMETIC 196 /226 SECTION C-C
MASTER OF ARCHITECTURE HKU DESIGN 197 /226
MASTER OF ARCHITECTURE HKU SCHEMETIC 198 /226
MASTER OF ARCHITECTURE HKU DESIGN 199 /226
MASTER OF ARCHITECTURE HKU SCHEMETIC 200 /226 SECTION
B-B
MASTER OF ARCHITECTURE HKU DESIGN 201 /226
MASTER OF ARCHITECTURE HKU SCHEMETIC 202 /226
MASTER OF ARCHITECTURE HKU DESIGN 203 /226
MASTER OF ARCHITECTURE HKU SCHEMETIC 204 /226 SECTION D-D
MASTER OF ARCHITECTURE HKU DESIGN 205 /226
MASTER OF ARCHITECTURE HKU SCHEMETIC 206 /226
MASTER OF ARCHITECTURE HKU DESIGN 207 /226

- OF SUSPENSION S TAIR

Steps: 16 Height: 3.05m

MASTER OF ARCHITECTURE HKU SCHEMETIC 208 /226
DETAIL 1
MASTER OF ARCHITECTURE HKU DESIGN 209 /226

Size: 6m x 6m Height: 5.4m

MASTER OF ARCHITECTURE HKU SCHEMETIC 210 /226 DETAIL 2
- OF SELF -STANDING BOX
MASTER OF ARCHITECTURE HKU DESIGN 211 /226
MASTER OF ARCHITECTURE HKU SCHEMETIC 214 /226
MASTER OF ARCHITECTURE HKU SCHEMETIC 216 /226
MASTER OF ARCHITECTURE HKU DESIGN 217 /226
MASTER OF ARCHITECTURE HKU SCHEMETIC 218 /226
MASTER OF ARCHITECTURE HKU DESIGN 219 /226
MASTER OF ARCHITECTURE HKU SCHEMETIC 220 /226
MASTER OF ARCHITECTURE HKU DESIGN 221 /226
MASTER OF ARCHITECTURE HKU SCHEMETIC 222 /226
MASTER OF ARCHITECTURE HKU DESIGN 223 /226

Mid-term:

From invited critics:

- Colour code are a good tools to make study, it should be used more rationally.

- Would you consider removing the slabs? More similar to the concept model?

- Think the connection not only with the back façade but also with the front façade.

From C&G:

- Materials can be used to express transformation process, start addressing it more precisely.

Final:

From invited critics:

- from Kuo, Jze Yi - less restrictions so can develop this pure design? can junp out of the architecture?

- from Leon, like the control of the whole project.

From Chris:

Thanks you! the group. Charlotte and Gilles. I really enjoy the discussion of every detail and ideas. Also like the studio set that i can really have a semi-professional experience.

about the final word --- Disorder

I do believe you pair can control more on the teaching method and output. I still doubt the group production if left decisions to ourselves. If have a general output reference we can have a more precise schedule and better understanding of group things. I already waste too much time to coordinate and adjust the little things like linrtypes in cad. We all have different work flows.

THE CULTURAL PROJECT AS AN INTRODUCTION TO GUERRILLA ARCHITECTURE”

WU Changrong 3035894216

CHARLOTTE LAFONT-HUGO & GILLES VANDERSTOCKEN (BEAU)

THE UNIVERSITY OF HONG KONG: MARCH STUDIO SEM1 2022-23 (ARCH7083 DESIGN 13)

‘EMPTYING ’

Turn static files into dynamic content formats.

Create a flipbook
Issuu converts static files into: digital portfolios, online yearbooks, online catalogs, digital photo albums and more. Sign up and create your flipbook.