Cape Fear - 2026 Dining Modernization Plan

Page 1


BOARD OF DIRECTORS

Jan Capps, President

John Blackwell

Sam Blair

Holly Bullard

M. Terry Coffey

Stephen Diab

Robert Keith

Hill Rogers

Bill Squire

Tony Stroud

Dargan Tunstall

Austin Wilson

2025 HOUSE COMMITTEE

Hill Rogers, Chairman

Sam Blair, Vice Chair

Tanner Konrady

Chris Reid

Andrew Cooke

David Falcinelli

David Honeycutt

John Murray (Architect of Record)

2025 STRATEGIC PLANNING

FORMER BOARD MEMBERS

INTERIORS COMMITTEE

Ronel Naude

Claire Reid

Holly Bullard, Chairman

Tony Stroud, Vice Chair

Cal Lewis

Terry Coffey

Peter DiFiore

Anna Averritt

John Sloan

2025 FINANCE COMMITTEE

Patrick Boykin

Greg Thompson

Brian Tuttle

Mason Hawfield

Jennifer Chiavetta

AD HOC COMMITTEE

Jason Wheeler

Marvin Robison

PROFESSIONAL ADVISORS

Bowman Murray Hemingway Architects

Chambers Interior Design

Foodesign Associates

Tunstall Consulting Engineers PLLC

Andrew Consulting Engineers

Thomas Construction Group

Trent Gattis

Preston Davenport

David Martin

Meade Van Pelt

Scott Custer

David Massey

Bill Norris

Neal Andrew

Ashley Basinger

Bill Rudisill

FORMER HOUSE / FINANCE COMMITTEE MEMBERS

John Tunstall

Vicki Dull

Liz Carroll

Jim Murray

David Sprunt

Arch Ellis

Doris Ruffner

Bill Cameron

Charles Buckland

Gary Winstead

Pierre Naude

Mitch Lamm

Leon Pruzan

A LETTER TO OUR MEMBERS

Dear Fellow Members,

For over a century, Cape Fear Country Club has provided countless memories and exceptional dining, social, and recreational opportunities for our members.

Over the past 5-7 years, you may have noticed repeated repairs to rotting wood trim around windows and doors throughout the interior and exterior of the clubhouse. After detailed investigation, it has become evident that an improperly designed kitchen hood ventilation system is the root cause and must be replaced. Less visible, but equally important, is an inefficient kitchen layout that slows food production, limits how much food our staff can reasonably prepare during peak times, and ultimately has a negative impact on our overall dining experience.

Since 2022, the Board, Club Management, and the House Committee have been working diligently to develop a comprehensive, member-driven, and holistic vision for the future of our dining experience. After listening carefully to our members through member surveys, Town Hall Meetings, and Open House Sessions, the Board and House Committee believe the 2025 Dining Modernization Plan presents an exciting and responsible combination of features, benefits, and investment — and the right time to proceed is now.

This brochure provides an overview of the process, conceptual designs, rationale for change, timeline for implementation, and estimated costs. After reviewing this brochure, we hope you share our enthusiasm as we strive to create a vibrant dining experience for all of our members at Cape Fear Country Club. Thank you for your continued involvement and support throughout this entire process.

Our members have been investing in Cape Fear Country Club for 130 years and the Board believes our time is now.

Sincerely,

WHY AND WHY NOW

Overthe last several years, the Board, Club Leadership and the House Committee have been working diligently to improve various aspects of our club experience. In addition to recent improvements to our Men’s Lounge, Golf Performance Center, Ladies’ Locker Room & Lounge, and administrative offices, one of our key initiatives has been evaluating our kitchen facilities and member dining experience.

To guide this process, we have partnered with Foodesign Associates, Bowman Murray Hemingway Architects (BMH) and The H. Chambers Company to identify a vision for our kitchen, architecture, and interior design needs, respectively.

Our planning and design process has been committed to a comprehensive approach focused on four key components: member priorities, infrastructural/operational needs, attraction for prospective members, and financial considerations.

MEMBER PRIORITIES

Member feedback was paramount in developing this plan. During the Strategic Planning Process, the Club conducted a Membership Survey, held Member Listening Sessions and Open House Sessions, and engaged in many small group and one-on-one discussions with members about their concerns, interests, and aspirations for the future.

Feedback obtained from each member interaction has been thoughtfully considered and incorporated into the design and planning efforts to develop the proposed 2025 Dining Modernization Plan with the following priorities:

• Improve food quality and service

• Enhance dining spaces with a more transitional, welcoming design

• Expand outdoor dining capacity with permanent cover for year-round use

INFRASTRUCTURAL & OPERATIONAL NEEDS

A facilities review revealed significant negative air pressure from the kitchen’s mechanical systems, which is straining the clubhouse’s structural integrity. Addressing these issues is essential to prevent continued escalating maintenance costs. Additionally, the current kitchen configuration cannot keep pace with the growing demand for member dining, special programs and events, and carry-out orders.

ENHANCING ATTRACTION & MARKETABILITY

As neighboring clubs continue to invest in their facilities, we must also make improvements to remain attractive to new members, maintain the marketability of our Club, and stay

competitive in the local marketplace. As such, Cape Fear must continue to balance the needs of the current members with those of prospective members, which means offering modern programs, facilities, and amenities that meet the needs of ever-evolving member lifestyles.

FINANCIAL CONSIDERATIONS

Finally, we must plan for the future with an understanding of our financial resources to remain fiscally responsible. The Board has engaged our professional partners to refine drawings, obtain cost estimates, hire independent cost evaluators who double check estimates, and evaluate options to ensure improvements are implemented as efficiently and cost-effectively as possible.

NEXT STEPS

Chambers’ design development documents were provided to a local general contractor and we received a detailed cost estimate based on their experience in the local area. The 2025 Dining Modernization Plan with associated project costs, proposed funding, and implementation timeline were presented to members as outlined in this booklet during Open House Sessions in November 2025.

The Board and House Committee have endorsed the proposed Plan and are now looking to the membership for approval. Following your review of this booklet, we hope that you are excited and pleased with our efforts to enhance the experience for every member at Cape Fear.

OPERATIONAL AND INFRASTRUCTURAL NEEDS

Over the last several years and after significant mechanical and structural analysis, it has been determined that the 20-year-old kitchen ventilation system was improperly designed, drawing unconditioned outside air into the clubhouse through cracks, doors, and windows. This imbalance creates significant negative air pressure throughout the building, which increases strain on heating and cooling systems and produces substantial interior moisture issues, leading to ongoing costly repairs over the last few years.

The proposed kitchen remodel includes upgraded equipment and an expansion of our kitchen footprint from 2,285 SF to 3,025 SF — a 32% increase in overall square footage.

Moisture Issues & Window Damage in Men’s Lounge

Damage from Negative Air Pressure in Men’s Lounge

Window Damage from Negative Air Pressure

Baseboard Damage from Negative Air Pressure

The new layout will replace the outdated setup with a modern, fully conditioned make-up air system tied to new kitchen hoods. Fresh outside air will be conditioned and dehumidified, reducing costly clubhouse maintenance expenses, while providing a much more functionable kitchen environment.

4. Banquet Cooking Separated from Dining Cooking
5. Restrictive Triangular Space for Dining Expo Line & Beverage Service
6. Existing Wash Area Location is Correct 3. Reconfigure Clean End Pinch Point 4. Separate Banquet and Dining Cook Lines with Common Work Aisle for Flexibility 5. Linear Dining Service Expo Line with Full/Open Access and Improved Circulation 6. Existing Wash Area Location to Remain
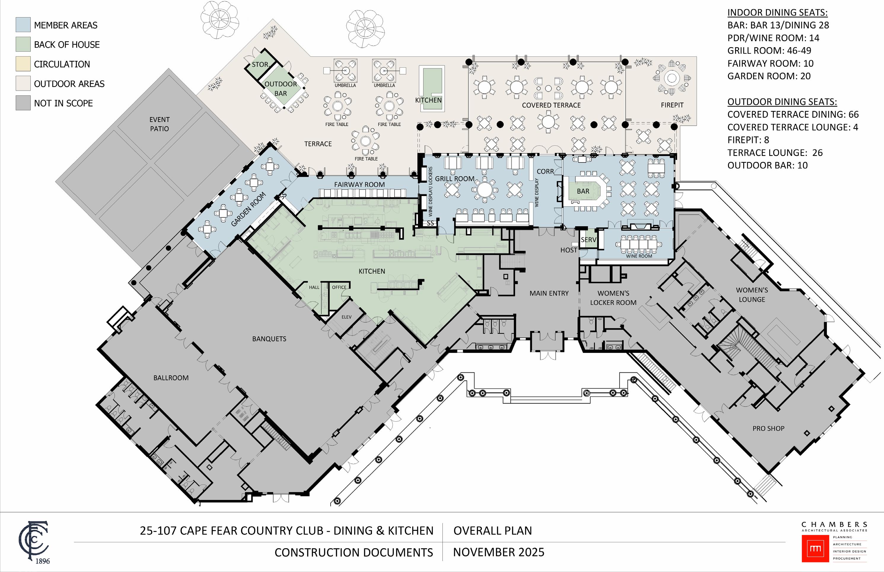
KITCHEN

PROPOSED DINING ENHANCEMENTS

To accommodate the necessary kitchen expansion, the casual dining area must be reconfigured. While resolving critical infrastructural issues, this remodel also provides a strategic opportunity to elevate our overall dining experience.

Our goal is to maintain the traditional Southern aesthetic of our Club within these updated dining spaces. Based on member feedback, the interior design is currently being updated with more transitional furniture and less modern design elements. The renovated dining spaces will encourage members to gather, enjoy an elevated casual dining experience, relax in a comfortable bar area, and take advantage of updated grill and private dining rooms.

GRILL ROOM: 46-49 FAIRWAY ROOM: 10

GARDEN ROOM: 20

OUTDOOR DINING SEATS:

COVERED TERRACE DINING: 60

COVERED TERRACE LOUNGE: 8

FIREPIT: 8

TERRACE LOUNGE: 28

OUTDOOR BAR: 10

INDOOR DINING SEATS:

BAR: BAR 13/DINING/LOUNGE 26

PDR/WINE ROOM: 14

GRILL ROOM: 46-49

FAIRWAY ROOM: 10

GARDEN ROOM: 20

OUTDOOR DINING SEATS:

COVERED TERRACE DINING: 60

COVERED TERRACE LOUNGE: 8

FIREPIT: 8

TERRACE LOUNGE: 28

OUTDOOR BAR: 10

FEATURES & BENEFITS

• Reconfigure Grill Room with a mix of table and settee seating for a variety of casual dining options

• Create a dining corridor walkway with wine displays from the host stand to the outdoor terrace to improve arrival impressions and reduce cross-traffic

• Add Fairway Room dining adjacent to kitchen expansion with operable window walls and terrace/golf course views

• Renovate Garden Room with enhanced millwork and additional staff storage

• Update the Bar aesthetics for a more transitional bar/lounge experience with larger tables and soft seating at fireplace

• Enhance the Wine Room to provide space for more intimate gatherings

• Permanently cover the outdoor dining terrace with upgraded outdoor pizza kitchen and golf course views

• Develop a new outdoor bar on the expanded patio adjacent to the covered outdoor dining terrace

Conceptual animation. Not final design.

IMMERSIVE EXPERIENCE

Click on the image to view a virtual tour of the proposed renovations for the indoor and outdoor dining spaces.

Please note: The interior design elements shown in this animation are conceptual. Based on member feedback, the House Committee is working with Chambers to incorporate more transitional furniture elements to maintain the traditional Southern charm of our interior aesthetics.

Conceptual rendering. Not final design.

Conceptual rendering. Not final design.

FAIRWAY ROOM

Refined architectural detailing, soft neutral finishes, and rhythmic lighting create a calm, airy backdrop for dining in this space. An operable window wall dissolves the boundary between indoor and outdoor spaces, allowing the space to transform into an openair experience connected to the outdoor bar and patio.

GARDEN ROOM

This refined yet relaxed dining experience offers soft coastal hues, tailored millwork, and sculptural lighting to create a light, inviting atmosphere that feels both fresh and timeless. Views of the golf course reinforce a sense of calm, offering members an intimate setting for lingering meals and conversation.

Conceptual rendering. Not final design.

CONCEPTUAL RENDERING OF PROPOSED GRILL ROOM

The Grill Room is envisioned as a light-filled, welcoming dining space that suppor ts a variety of dining experiences while balancing refined elegance with everyday comfort. Warm wood detailing, layered textures, and soft neutral tones are paired with generous daylight and tailored lighting to create an atmosphere that feels both timeless and relaxed.

Please note: All renderings are conceptual. Based on member feedback, the interior furnishings are being updated to maintain the traditional Southern charm of our interior aesthetics.

Conceptual rendering. Not final design.

Note: Soft seating has been added to this design based on member feedback.

CONCEPTUAL RENDERING OF PROPOSED BAR

The updated Bar will continue to be a warm, social hub that blends classic club character with a relaxed, transitional sensibility. Rich wood detailing and layered lighting create a welcoming atmosphere that supports lively gathering with soft seating and comfortable dining, offering a versatile setting for casual meals and conversation throughout the day.

Please note: All renderings are conceptual. Based on member feedback, the interior furnishings are being updated to maintain the traditional Southern charm of our interior aesthetics.

Conceptual rendering. Not final design.

OUTDOOR BAR

The outdoor bar and terrace will provide a vibrant extension of the clubhouse, designed to support social gathering in a relaxed, open-air setting. Classic architectural forms, shaded structures, and comfortable lounge seating create a seamless connection between indoor spaces and the surrounding landscape.

WINE ROOM

Warm wood tones, glass-enclosed wine storage, and layered lighting create a sense of depth and sophistication in the Wine Room, while the long communal table and tailored finishes foster a shared, experiential atmosphere suited for curated dinners, celebrations, and small gatherings.

Conceptual rendering. Not final design.

Conceptual rendering. Not final design.

OUTDOOR TERRACE (ENCLOSED)

When the window walls are closed, the terrace becomes a comfortable, weather-protected space that maintains a strong visual connection to the exterior. Natural light from the skylights and expansive glazing preserve an airy feel, allowing the terrace to function as an inviting, all-season venue regardless of weather conditions.

OUTDOOR TERRACE (WINDOWS OPEN)

With the operable window walls fully opened, the terrace transforms into a true open-air environment, seamlessly connecting members to the surrounding landscape. Fresh air, natural light, and uninterrupted views create an energetic yet relaxed atmosphere ideal for social gatherings, dining, and events.

Conceptual rendering. Not final design.

Conceptual rendering. Not final design.

CONCEPTUAL RENDERING OF PROPOSED COVERED OUTDOOR TERRACE

The outdoor terrace is reimagined as a flexible, year-round destination that enhances the clubhouse’s indoor–outdoor lifestyle. A permanent roof structure with integrated skylights introduces natural light while providing shelter, and operable window walls on all sides allow the space to fully open in fair weather or remain comfortably enclosed during inclement conditions.

PROGRAM COSTS

Bowman Murray Hemingway Architects provided design documentation to Thomas Construction to obtain cost estimates for the proposed Dining Modernization Plan. In addition, Chambers estimated costs for interior furnishings, fixtures, and accessories, and Foodesign provided estimates for kitchen equipment, resulting in the following total project cost.

Project Cost.................................... $ 13,000,000

Estimate includes construction costs, site work, contingency, furniture, fixtures, accessories, equipment, permitting, and soft costs.

PROPOSED TIMELINE

Pending membership approval, implementation for the Dining Modernization Plan is expected to occur as follows:

• Membership Vote .......................... January 2026

• Kitchen Construction ..................... May 2026 – September 2026

• Indoor Dining Renovations ............ July 2026 – February 2027

• Outdoor Terrace Renovations ...... August 2026 – April 2027

• Project Completion ........................ May 2027

During construction, the Club will make every effort to minimize disruption to the membership to the greatest extent possible. While the kitchen is under construction, modified dining service will continue in the ballroom and function rooms.

MEMBER INVESTMENT

The Board and Finance Committee worked diligently to develop a financial model that supports the implementation of the Dining Modernization Plan while remaining fair across all membership categories.

The total $13 million project cost will be funded with a combination of:

• Financed debt totaling approx. $4 million

• Member investment totaling approx.

$9 million

FINANCIAL NOTES

1. Member investment is based on a $12,000 assessment for Full Members prorated by member category.

2. Option 2 will incur 3.75% interest on the second payment only.

3. Financial model is based on a 5-year term with 6% interest.

4. Upon approval, the Board will increase a new member’s initiation fee by an amortized amount of the Option 3 total based on a 10-year pro-rated schedule.

5. Life Members Senior Full Members who are age 80 or older on March 1, 2026 and who will become a Life Member prior to March 1, 2031, may elect any of the three payment options, and if either Option 1 or Option 3 are selected, the Senior Full Member may either:

A. with respect to Option 1, pay a fractional amount of the Single Pay for a Full Senior Member, determined by dividing the number of full months as a Senior Full Member from and after March 1, 2026 by 60 months, OR

B. with respect to Option 3, pay monthly installments on time only through the date on which they become a Life Member.

FREQUENTLY ASKED QUESTIONS

How can we be sure the cost estimates are accurate?

During the conceptual planning process, a professional cost estimator provided guidelines for potential project costs based solely on square footage. As the process continued, the drawings were refined into schematic and design documents, which were then provided to Thomas Construction for a detailed cost estimating process.

Are the proposed interior selections final?

Based on member feedback, the interior furnishings are being updated to maintain the traditional Southern charm of our interior aesthetics. Chambers is exploring alternative color and pattern options for the Grill Room carpet to help lighten the overall aesthetic, and reviewing alternative chair styles for both the Garden Room and Grill Room. All selections will remain contract-grade and high-quality to ensure durability for frequent use and high-traffic areas.

Are there alternative options to the settee-style seating?

Yes. A variety of seating styles will be offered throughout the dining spaces—including traditional tables and chairs, banquette seating, settees, and lounge seating—to meet the diverse preferences of members and support different dining experiences.

Will there be a designated dining area for families/ children?

While children are welcome in all dining spaces, the intent is for the Garden Room, Grill Room, and enclosed outdoor terrace to serve as family-friendly areas. The Bar and Fairway Room will continue to cater primarily to adults.

Will the Bar area maintain its current warmth and charm?

Absolutely. The goal is to elevate the bar experience while preserving the comfortable and welcoming ambiance members enjoy today. In response to member feedback, the design team is exploring opportunities for additional soft seating and window-covering options to mitigate afternoon sun.

Will there still be a salad bar in the Grill Room?

While the new Grill Room will not include a permanent salad bar station, members will continue to enjoy a Build-Your-Own Salad option on the menu. There is also potential for a mobile salad bar to be offered during select events. The Club will continue to explore additional options to ensure member dining preferences are fully supported as part of the Dining Modernization Plan.

Did the Committee consider alternatives for the enclosed outdoor terrace?

Yes. Several solutions were evaluated; however, the Committee determined that the glass Nana Wall system offers the best experience for year-round terrace use. This operable glass system is designed to withstand varying weather conditions, sun exposure, and potential impact from errant golf balls. The team is also exploring the addition of retractable screens or shades to further reduce heat and sun exposure and providing soft seating in the terrace to extend the bar atmosphere outdoors.

WHAT HAPPENS NEXT?

The Board has endorsed the proposed 2026 Dining Modernization Plan and is now looking for members to vote on the funding plan.

Special Member Meeting:

Wednesday, January 21 at 6:00 PM

For more information and to review past updates, please visit the Dining Modernization Plan page on our website.

Turn static files into dynamic content formats.

Create a flipbook
Issuu converts static files into: digital portfolios, online yearbooks, online catalogs, digital photo albums and more. Sign up and create your flipbook.