Cecilia Brock Portfolio

Page 1


CECILIA BROCK

UVA SCHOOL OF ARCHITECTURE 2025 UNDERGRADUATE PORTFOLIO

ypm7jm@virginia.edu

TABLE OF CONTENTS

INDEPENDENT UNDERGRADUATE THESIS

Spring 2025, Peter Waldman & W.G. Clark

INTERSTITIAL GROUNDS

Fall 2024, Luis Pancorbo

GORDON STREET LIBRARY ADDITION

Spring 2024, Jess Vanecheck

THE LOOM

Fall 2023, JT Bachman

RECYCLED PLASTIC SIDE TABLE

Fall 2024, JT Bachman

SKETCHES

Vicenza Summer 2024

CONVERGENCE OF CULTURE, LAND, AND SEA ON A BARRIER ISLAND

UNDERGRADUATE INDEPENDENT THESIS STUDIO

SPRING 25 \\ ARCH 4995 \\ PETER WALDMAN & W.G. CLARK

This thesis explores a new model of coastal community living on Sapelo Island, Georgia, rooted in the cultural and environmental knowledge of the Saltwater Geechee. Rather than simply preserving the existing community of Hogg Hammock, the project envisions a future where marine farming and agriculture sustain both the local economy and the local population.

Gathering Center + Communal Kitchen Axonometric

Explored entirely through hand-drawing, the design moves beyond conventional buildings, focusing on spaces defined by activity rather than form. It considers housing not as isolated structures but as a network of small, essential elements—tools for living that support daily rhythms, seasonal changes, and the evolving needs of the community. Local materials are prioritized, with the structures being composed of wood from the site, tabby made from native oysters, and salvaged metal. These materials combine into passive systems which address increasing environmental threats.

Housing South Elevation

Conceptual Site Model
Sea Farming and Oyster Processing- Section + Plan
Exploration of Stucture + Material Typology

At the heart of the project is a sea-farming operation, extending from the land into the water as a continuous, working landscape from west to east. Housing clusters, gardens, porches and paths emerge from this axis. This project ultimately serves as a home for students from the University of Georgia Marine Institute and volunteers from Sapelo’s SOLO Program, who support the cultivation of the island’s three main agricultural products: Purple Sugarcane, sour oranges, and Sapelo Red Peas. By designing for the patterns of daily life—hour to hour, season to season—the project aims to create an adaptable, living architecture that strengthens both community and environment.

INTERSTITIAL GROUNDS

SHIELDED SEAS:THE FORTIFIED CARIBBEAN CITY

FALL 24 \\ ARCH 4010 \\ LUIS PANCORBO

Driven by the geometric rules of Old San Juan’s historic military bastions, this intervention seeks to break up the linear and dividing function of the city wall without destroying it. The structure itself is drawn from the informal and community-driven construction of houses in La Perla, built with easily attainable and cheap construction materials, with ever-evolving interiors. The structure operates as a gateway and a resting point, connecting the historic fortifications while fostering a dialogue between the unique cultural identity of La Perla and the broader context of Old San Juan.

The space is designed for spontaneity and cultural expression, providing a flexible area for performances and celebrations. Suspended from truss systems of the buildings above, hanging floors create flexible spaces to offer rest, gathering, and temporary art installations. The transparency of steel grates used for the floors allows for natural light to infiltrate the underground.

entering from Old San Juan- rest + community

meandering through temporary structures- slow down + learn

While the purpose is to make spaces for the people of La Perla, potential visitors that enter this space are encouraged to slow down, to meander through, while they learn more about the culture and people that live there before they continue on.

SPRING 24 \\ ARCH 3020 \\ JESS VANECHECK

As Charlottesville faces the challenges of climate change and evolving community needs, the Gordon Avenue Library must evolve as well.The proposed library extension provides a multifunctional space that serves as both a material library and refabrication hub. The program also introduces a restore + salvage center which offers a unique opportunity for community members to find materials they need at little to no cost, promoting economic resilience and reducing financial barriers to access while simultaneously fostering a sense of communal support.

The material library serves as an educational resource, showcasing a diverse array of building and construction materials as well as used books. By delving into the history, recycling methods, and future applications of these materials, the library empowers visitors to make informed decisions about sustainable construction practices.

The form of the library addition is composed of curved, solid brick walls, which expand space and create private reading and meeting areas. These curved pockets transform into introverted quiet areas, while the large interior and exterior spaces provide extroverted community spaces. A collection of orthogonal, porous walls acts as a disruptor to the curved form, creating meandering circulation patterns. These walls also act as shelving, with the ability to hold collections of recycled materials whether as storage or artistic display.

second floor plan
first floor plan
Gordon Street Elevation
long section

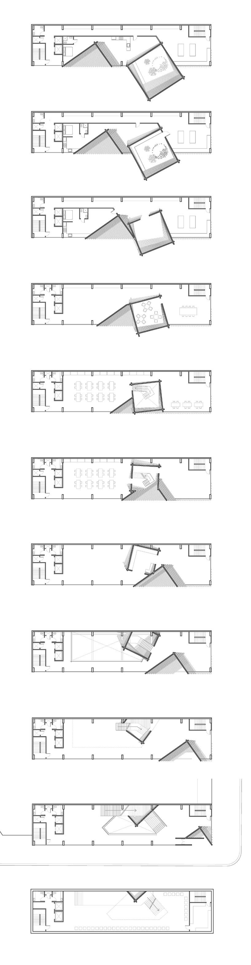
THE LOOM

GOOD RIDDANCE: TEXTILE RE-USE HUB ON 14TH STREET FALL 23 \\ ARCH 3010 \\ JT BACHMAN

New Yorkers throw out 200,000 tons of clothing and textiles every year. The Loom aims to educate and provide studios for the artistic reuse of textiles with the ultimate goal of creating a circular system in fashion. The design incorporates visual connections throughout the building to both literally and figuratively stimulate consciousness of the resources we discard to landfills every day.

Two central cuts in the structure of the building, one solid and one void, divide the program into areas for artistic and industrial activities. The Loom weaves together spaces for reuse, research, artistic endevours, fashion design, and display.

RECYCLED PLASTIC SIDE TABLE

PROCESSING THE ANTRHOPOCENE

FALL 24 \\ ARCH 5500 \\ JT BACHMAN

This course examined the life cycles of discarded materials, with the primary goal of establishing circular closed-loop recycling methods for plastic waste material via inhouse processing and fabrication techniques. We transformed everyday waste into functional objects, artifacts of the Anthropocene

shred melt press
CNC cut assemble

SKETCHES

VICENZA AND THE VENETO

SUMMER ‘24 \\ LUIS PANCORBO + INES MARTIN ROBLES

Basilica di San Antonio di Padova
Verona Roman Ampitheater La

Turn static files into dynamic content formats.

Create a flipbook
Issuu converts static files into: digital portfolios, online yearbooks, online catalogs, digital photo albums and more. Sign up and create your flipbook.
Cecilia Brock Portfolio by ceciliarbrock - Issuu