Arquitetura & Aço nº 08 - Indústrias

Page 1

& Indústrias Uma publicação do Centro Brasileiro da Construção em Aço número 8 dezembro de 2006 Uma do Centro Brasileiro Aço número dezembro 2006 ARQUITETURA AÇO

Evoluindo com a indústria

SEM DÚVIDA,O AÇO É UM ELEMENTO bastante conhecido por quem projeta edificações industriais.A tecnologia de construção em aço evoluiu muito em poucas décadas,saindo do simples galpão de armazenagem,para edifícios complexos e sofisticados.Além da facilidade em vencer grandes vãos,o aço tornou-se um elemento que possibilita soluções estéticas e estruturais nunca antes imaginadas.Assim,o material acompanha a necessidade das indústrias em serem cada vez mais competitivas,transmitindo a imagem corporativa de solidez e inovação,exigida pelo mercado.

Nesta edição de Arquitetura & Aço estão reunidos alguns projetos industriais nos quais o aço mostra-se como um elemento-chave para o sucesso da obra.Neles,a harmonia entre forma e função é um requisito básico,que se une à flexibilidade,racionalidade,economia e sustentabilidade – itens cada vez mais em pauta na indústria brasileira.

Um ótimo exemplo é o projeto da Ipel,de Sidonio Porto,premiado pelo Instituto dos Arquitetos do Brasil,Departamento São Paulo,e pela Bticino graças à solução arquitetônica que reúne plasticidade,conforto térmico e economia de energia – e tudo graças ao desenho arrojado da cobertura metálica.

A cidade de Colatina,no Espírito Santo,ganhou um marco arquitetônico de grande impacto visual com a construção da sede da PW Brasil Export, concebida pelos arquitetos Elio e Juliana Madeira,premiados pela Abcem (Associação Brasileira da Construção Metálica).

O aço também garantiu contemporaneidade à Circuit Equipamentos Esportivos,uma indústria do interior de São Paulo. Como o principal objetivo era remodelar a sede da empresa,os arquitetos Marcelo Couto e Olegário Vasconcelos encontraram no aço a alternativa ideal. Confira,nas próximas páginas,estas e outras boas soluções em aço para instalações industriais.

Boa leitura!

1 ARQUITETURA&AÇO
editorial

sumário

04. Elio Madeira cria uma referência arquitetônica para o vale do Rio Doce 08. Estrutura e revestimentos metálicos definem o caráter de uma moderna indústria 10. Cláudio Rampazzo assina a obra da Açotubo, em Guarulhos 12.

Identidade Visual de empresa no Rio Grande do Sul gerada a partir de estrutura em aço 14. Ipel: projeto de Sidonio

Porto marca nova fase de indústria de embalagens paulista 20. Executada com estrutura metálica tubular , a cobertura é

o destaque do edifício principal da Flextronics 22. O Globo: um desenho internacional para o centro gráfico de um dos maiores jornais brasileiros 24. Paulo Bruna e o projeto de uma fábrica “em construção” há exatamente 30 anos

27. Planejamento: terminal de cargas e entreposto alfandegário trazem interessantes soluções arquitetônicas em aço

04. 08.12.10.14. 20. 22. 24. 27. Foto da capa: colunas esbeltas e inclinadas caracterizam o edifício do O Globo, projetado
Sowerby Arquitetura & Aço n0 8 dezembro Foto Infoglobo
por Kenneth

Identidade metálica

ELEMENTOSDEAÇOCOMPÕEMAESTRUTURA, ACOBERTURAEOFECHAMENTO DOSQUATROBLOCOSDEUMCOMPLEXOINDUSTRIALNOVALEDO RIO DOCE, GARANTINDOUNIDADEEHARMONIAAOCONJUNTO

> Projeto arquitetônico: Elio Madeira e Juliana Madeira

> Área construída: 8.500 m2

> Aço empregado: aço de maior resistência à corrosão

> Cálculo estrutural: MCA Tecnologia de Estruturas Ltda.

> Fornecimento e montagem da estrutura metálica: Art Metal Estruturas Metálicas Ltda.

> Execução da obra: P&P Engenharia Ltda.

> Local: Colatina, ES

> Data do projeto: novembro de 2000

> Data da conclusão: junho de 2003

A INTENÇÃO DE CRIAR uma obra que se tornasse referência arquitetônica para a cidade de Colatina,importante pólo industrial do vale do Rio Doce,no Espírito Santo,norteou o projeto dos arquitetos Elio e Juliana Madeira para a nova sede da PW Brasil Export,empresa que atua no setor do vestuário há mais de 25 anos.

Erguido em um terreno panorâmico e privilegiado,que se situa cerca de 30 metros acima do plano da cidade,o complexo industrial foi concebido inteiramente em elementos metálicos,utilizando aproximadamente 220 toneladas de aço para a composição da estrutura,cobertura e fechamento das fachadas de seus quatro edifícios.

O resultado,de grande impacto plástico,como desejavam os profissionais,rendeu ao projeto o prêmio de melhor obra na categoria edificações industriais na premiação Abcem (Associação Brasileira da Construção Metálica),em 2003.

Segundo o arquiteto Elio Madeira,a escolha da solução construtiva recaiu sobre o aço,primeiramente,pelas exigências de grandes vãos,

5 ARQUITETURA&AÇO 4 ARQUITETURA&AÇO
Fotos Tom Boechat/Usina de Imagem A nova sede da PW Brasil Export foi erguida com 220 toneladas de aço, material que compõe a estrutura, a cobertura e o fechamento de seus quatro edifícios. Na página ao lado, destaque para o contraventamento estrutural, feito por tirantes fixados a treliças e pilares metálicos estaiados diretamente no chão

que chegam a 60 metros nos ambientes fabris.“Além disso,o uso de elementos metálicos permitiu uma obra limpa,sem desperdícios e executada em um curto espaço de tempo”,completa Madeira. Posicionados paralelamente,os quatro blocos independentes da nova fábrica somam uma área construída de 8.500 m 2.As estruturas e coberturas aparentes,combinadas com grandes esquadrias envidraçadas nas fachadas e cercadas por uma sucessão de pórticos metálicos,garantem unidade ao conjunto.

O programa arquitetônico destaca-se,ainda,pela correta utilização dos recursos naturais.A água destinada aos processos de lavagem e tingi-

mento dos tecidos é retirada de poço artesiano e reaproveitada em um sistema que atinge um grau de reciclagem de até 98%.

Para reduzir o consumo de energia elétrica,venezianas e telhas de PVC translúcido permitem a entrada da luz solar em grandes áreas.Na cobertura, a instalação de sheds favorece a captação do vento norte-sul,mantendo o conforto térmico nos ambientes.O arquiteto Elio Madeira ressalta esse aspecto:“em uma região em que os picos de temperatura chegam a 40°C, não é necessário utilizar luz elétrica nem sistemas de ar-condicionado das 7 às 17 horas em quase todos os setores da fábrica”. (C.P.) M

à

por meio de tirantes metálicos, eliminando a necessidade de pilares intermediários e permitindo a criação de grandes vãos 3. Devido à utilização do aço como material construtivo, a obra pôde ser executada com limpeza e rapidez 4. O PVC translúcido, aplicado em telhas da cobertura e em venezianas da fachada, permite a entrada de luz natural no interior da fábrica 5. Orientados linear e paralelamente, os diferentes volumes da implantação se harmonizam e confirmam a unidade do conjunto arquitetônico

7 ARQUITETURA&AÇO 6 ARQUITETURA&AÇO
1. Cerca de 30 metros acima do nível da cidade, o terreno escolhido para a implantação do complexo industrial tem vista panorâmica para o Vale do Rio Doce 2. Os pilares estruturais foram concebidos para se conectar cobertura 1. 4. 2. 3. 5. Fotos Tom Boechat/Usina de Imagem

A força visual do aço

CONSTRUÇÃOMETÁLICACOM DESIGN CONTEMPORÂNEOVALORIZAA IMAGEMDEINDÚSTRIA

DEEQUIPAMENTOSESPORTIVOS

PARA REFORMULAR o projeto de uma indústria de equipamentos esportivos,em Pindamonhangaba,São Paulo,os arquitetos Marcelo Couto e Olegário Vasconcelos apostaram na linguagem do aço.Como resultado,a Circuit Equipamentos Esportivos ganhou uma edificação que se destaca não só por atender as exigências de funcionalidade de uma grande fábrica,mas também pela relevância arquitetônica.

Quando os profissionais foram contratados,a obra já havia sido iniciada por uma empresa especializada em concreto.A construção, no entanto,não agradava ao proprietário,que,acostumado a viajar ao exterior,queria que sua indústria tivesse uma sede “modelo” como ditam os modernos padrões mundiais de arquitetura.

Para atender a estas expectativas,os arquitetos definiram uma nova imagem e,sobretudo,um novo conceito para o projeto.A proposta aprovada seguiu três princípios básicos:valorização estética do conjunto,fluxo de circulação eficiente e intenso diálogo com a paisagem.

Do desenho inicial,foram mantidos apenas dois galpões de concreto,de 2.500 m2 cada,que já haviam sido parcialmente implantados.A criação de

> Projeto arquitetônico: Marcelo Couto e Olegário Vasconcelos

> Colaborador: Adilson Santos

> Área construída: 7 mil m2

> Aço empregado: ASTM A36, ASTM A572 e aço de maior resistência à corrosão

> Cálculo estrutural: Beltec Engenharia Ltda.

> Montagem da estrutura metálica: Aluaço Metalúrgica Indústria e Comércio Ltda.

> Construção: CVA Couto & Vasconcelos Arquitetura

> Local: Pindamonhangaba, SP

> Data do projeto: fevereiro de 2002

> Conclusão da obra: agosto de 2004

A área administrativa, construída em estrutura metálica, é o módulo que define a resolução plástica do projeto. No lobby, um grande pano de vidro privilegia a iluminação natural e confere amplitude aos espaços

um bloco administrativo em estrutura metálica,no entanto,é o que define a resolução plástica da edificação.

Formado por uma série de pequenos volumes,este módulo abriga recepção,escritórios,restaurante para os funcionários e espaço para showroom.

“Nesse setor,a escolha pela estrutura metálica foi muito importante,pois nos permitiu criar formas elegantes e criativas”,explica Olegário Vasconcelos.

As múltiplas possibilidades do aço também foram exploradas nos revestimentos da fachada,na cobertura curva do estacionamento de caminhões e em uma escada vazada em grade metálica, no centro do lobby

Na parte interna,o programa foi planejado para que os funcionários pudessem se sentir bem em seu local de trabalho.Os espaços são abertos,generosos e de fácil circulação.A luz natural invade o prédio por grandes panos de vidro na fachada principal e, para completar,um imenso rasgo na parede do refeitório enquadra o visual da Serra da Mantiqueira,presenteando os trabalhadores com um atrativo a mais em suas horas de descanso e lazer. (C.P.) M

9 ARQUITETURA&AÇO 8 ARQUITETURA&AÇO
Fotos Olegário Vasconcelos

> Projeto arquitetônico: Cláudio

Rampazzo

> Área construída: 2.700 m2

> Aço empregado: aço de maior resistência à corrosão

> Cálculo estrutural e projeto da estrutura metálica: ABEDE Consultoria e Engenharia

> Fornecimento da estrutura

metálica: Açotubo

> Execução da obra: Ancolar

> Local: Guarulhos, SP

> Data do projeto: agosto de 2000

> Data de conclusão da obra: dezembro de 2002

Estrutura confiável

UTILIZAÇÃODETUBOSDEAÇOGARANTEQUALIDADECONSTRUTIVAPARAASEDEDA AÇOTUBO

Acima, vistas do edifício administrativo e do pavilhão de produção; projetado com estrutura de aço patinável, o conjunto totaliza 2.700 m2 de área construída. No alto da página, vista parcial da fachada, com destaque para a estrutura de tubos metálicos, organizada de forma a conferir ritmo e movimento ao edifício. A especificação do material foi definida em função do programa e do perfil da empresa.

Na página ao lado, a fachada principal do setor administrativo e, no detalhe, totem com tubos metálicos demarcam o acesso principal

PARA O PROJETO DA SEDE de uma empresa fornecedora de tubos de aço,inclusive para o setorda construçãocivil,nada mais apropriado do que utilizar este material de forma significativa no projeto arquitetônico,tirando partido de sua expressividade.No caso da Açotubo,em Guarulhos,o arquiteto Cláudio Rampazzo seguiu esta lógica e,para conseguir outros benefícios na obra,especificou o aço patinável para toda a estrutura do novo edifício.“Pelo partido empregado na concepção do projeto,o aço oferece muitas vantagens,como a racionalização da obra,pouca perda de material, economia na montagem e rapidez na construção,além da leveza conferida ao projeto”,enumera Rampazzo.

Tanto a área administrativa quanto a de produção possuem estrutura em aço e fechamento em alvenaria,somando 2.700 m2 de área construída,formada pelo edifício administrativo (com dois pavimentos e um terraço na cobertura) e o galpão fabril.

As paredes externas foram executadas em bloco de cimento, enquanto as paredes internas dos escritórios e da recepçãosão formadas por divisórias drywall,com acabamento em massa corrida e pintura acrílica.

Toda a estrutura e as escadas metálicas foram implantadas com pintura eletrostática na cor branca,com exceção das vigas frontais,recobertas pela pele de vidro.

A ampla utilização do aço nas instalações da Açotubo,tanto na área fabril quanto na administrativa,reforça uma das características mais conhecidas e valorizadas deste material no campo da arquitetura:a versatilidade. (V.S.) M

11 ARQUITETURA&AÇO 10 ARQUITETURA&AÇO
Fotos Marketing Açotubo / Sidnei Palatnik

Símbolo de crescimento

A GEOMETRIADOEDIFÍCIOPRINCIPALÉTÃOMARCANTEQUESETORNOUAIDENTIDADEVISUALDA

EMPRESA . E OCONJUNTOINDUSTRIALREFLETEAPRÓPRIAEVOLUÇÃODOAÇONO B RASIL

COM TRELIÇAS APARENTES o edifício administrativo da Metasa,construído em 1997 na cidade de Marau,RS,passara a compor a identidade visual da companhia.O aço utilizado em toda a estrutura foi o ASTM A36,pela melhor relação custo x benefício e por ser um recurso abundante na empresa – que fabrica e executa a montagem de edificações em aço em todo o país.Os pavilhões industriais,também projetados em aço,acompanharam a evolução do material e das técnicas construtivas.

O arquiteto Aldechi Colnaghi projetou o edifício administrativo da Metasa quase 20 anos depois de ter realizado o primeiro pavilhão industrial, em 1979.Na época,propôs um galpão em sistema shed.Já no edifício-sede, com o desenvolvimento tecnológico atual,foi possível utilizar treliças e pele de vidro em um projeto arrojado, que também transmite leveza.O mesmo padrão deverá ser utilizado em novos projetos da empresa.

O cálculo estrutural e a montagem do edifício administrativo ficaram a cargo dos engenheiros da Metasa,

> Projeto arquitetônico: Adelchi Colnaghi

> Área construída: 1.200 m2

> Aço empregado: ASTM A36

> Cálculo estrutural: Metasa

> Fornecimento e execução da estrutura metálica: Metasa

> Local: Marau, RS

> Data do Projeto: dezembro de 1997

> Data de conclusão da obra: julho de 1998

que levaram pouco mais de uma semana para deixar a estrutura pronta para receber o fechamento de painéis de vidro e alvenaria. O engenheiro Douglas Roso,gerente de contratos da empresa, acompanhou todo o processo e afirma que a opção pelo aço foi fundamental para garantir a elegância da estrutura e a geometria da edificação,que tem a base mais estreita,formando um T de três pavimentos.

Na ampliação do pavilhão industrial,em 2000,o conceito das edificações antigas da Metasa foi mudado do sistema shed para pórticos em perfis soldados de alma cheia e terças tipo joist.“Esta opção nos permitiu otimizar o tempo de fabricação e de montagem dos prédios,além de ser visualmente mais limpa,por ter menos elementos estruturais”,informa Douglas Roso.

A Metasa inicia nova fase de ampliação,prevista para 2007, somando um total de 15 mil m2 de área construída.“Manteremos o mesmo conceito arquitetônico,porém com pés-direitos mais elevados.Daremos,ainda,bastante importância para a ventilação e à iluminação natural”,revela o engenheiro. (V.S.) M

13 ARQUITETURA&AÇO 12 ARQUITETURA&AÇO
Acima, detalhe da estrutura de sustentação em aço ASTM A36 no térreo do edifício administrativo, cuja fachada (página ao lado) tem treliças aparentes e pele de vidro azul que deram uma identidade visual para a empresa. Com o aço, foi mais fácil criar o desenho geométricoda edificação sem causar prejuízo à estrutura. No topo da página, detalhes dos interiores Fotos Douglas Roso Acima, pavilhão industrial ampliado há seis anos, quando os sheds foram substituídos. Abaixo, vista lateral do edifício administrativo

Embalagem de aço

C OBERTURAMETÁLICAÉODESTAQUEDOPROJETO PREMIADODE SIDONIO PORTOPARAINDÚSTRIAPAULISTA

DA LINHA DE PRODUÇÃO saem estojos de maquiagem e embalagens de cosméticos.Beleza na Ipel,portanto,é mais que uma questão de gosto ou conceito,é um negócio sério que integra um mercado em franca expansão. Uma constatação clara deste quadro foi a transferência da fábrica,em 2001,da capital paulista para o Condomínio Industrial de Cajamar,no interior de São Paulo.

Ali,às margens da rodovia Anhangüera,o arquiteto Sidonio Porto criou

um projeto arrojado para acompanhar a nova fase e marcar a imagem corporativa da Ipel.A obra,que tem 6.000 m2 de área construída e está dentro de um terreno de 11.500 m2,privilegiou a funcionalidade e flexibilidade de serviços e,como não poderia deixar de ser para uma empresa que trabalha com beleza,o desenho arquitetônico do conjunto prima também pela estética.

“O projeto foi concebido levando-se em conta todas as colocações do cliente”,explica Sidonio.Um local ventilado,bem-iluminado e confortável para os trabalhadores foram as principais solicitações dos proprietários.“A premissa de se criar um edifício agradável para os funcionários foi atendida levando-se em conta a integração entre os espaços interiores e exteriores,bem como a criação de percursos e espaços de trabalho aprazíveis”,fala o arquiteto.

Formadas por telhas metálicas com isolamento termoacústico, as curvas abertas da cobertura metálica, com pintura branca, são a marca principal da obra

15 ARQUITETURA&AÇO 14
&AÇO
ARQUITETURA
Foto Divulgação

A estrutura metálica curva da cobertura apóia-se no solo e caracteriza uma segunda fachada em que é possível perceber brises que vencem vãos de 12,5 m.Os brises combinados com os vidros laminados e a caixilharia de alumínio pintada de branco garantem o aproveitamento máximo da luminosidade natural, o que representou significativa economia no total de gastos mensais da empresa

> Projeto arquitetônico: Sidonio Porto Arquitetos Associados

> Área construída: 6 mil m2

> Aço empregado: ASTM A36 (chapas), ASTM A500 (tubos), ASTM A570 (perfis dobrados)

> Cálculo estrutural: Projecta

> Fornecimento da estrutura metálica: Projecta

> Execução da obra: ECAP Engenharia Ltda

> Local: Cajamar, SP

> Data do projeto: janeiro de 2000

> Data de conclusão da obra: junho de 2001

Sidonio conta que para um edifício empresarial deste porte,e de natureza fabril,o desafio foi organizar os fluxos de produção e administração em um mesmo espaço.A solução não foi setorizar em blocos distintos tais atividades,mas criar um monobloco para abrigar ambas.“Os fluxos são organizados dentro de um mesmo espaço,sem, no entanto,haver conflitos.Pelo contrário,esta condição foi arquitetonicamente tratada de forma que a administração do controle da produção pôde ser facilitada”,comenta o arquiteto.

Para a construção deste monobloco,a pré-fabricação foi amplamente adotada,utilizando para isso basica-

mente o concreto e o aço.“O edifício é composto por pilares pré-fabricados de concreto,tanto internamente quanto nas fachadas.Estas são fechadas por painéis pré-fabricados de concreto e vidro.Já o aço foi utilizado como estrutura de cobertura”,completa.

Como aponta o próprio arquiteto,a cobertura metálica,com pintura branca e isolamento termoacústico,é o elemento de maior destaque na obra. Sidonio descreve que “a concepção da cobertura foi baseada na orientação solar,funcionando como um conjunto de sheds.Desta forma,há iluminação natural interna,eliminando a necessidade de energia elétrica durante o

Um ambiente claro, limpo e com ótima circulação de ar garantiram o cumprimento de uma das premissas básicas do projeto: criar um ambiente agradável para os trabalhadores. Assim, o bloco da produção foi construído voltado para a face sul, o que evita a incidência direta da luz solar; mas, devido ao sistema de sheds, torna possível o aproveitamento da iluminação natural de uma forma mais estimulante aos funcionários

17 ARQUITETURA&AÇO 16 ARQUITETURA&AÇO
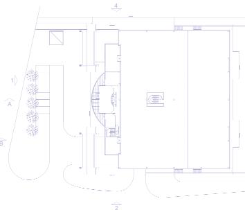
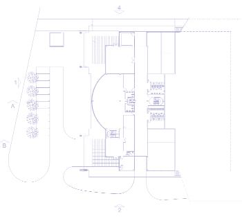
4
VISTA
VISTA 2
Fotos Divulgação

NÍVEL TÉRREO

O projeto de Sidonio Porto transforma a tradicional cobertura tipo shed em uma sequência de curvas, que culminam em um grande plano curvo na fachada principal (em último plano, na foto acima)

LEGENDA:

1. Showroom e recepção

2. Treinamento

3. Vendas

4. Sala de reunião

5. Sanitários

6. Escritório

7.

13. Subestação

14.

8. Copa

9. Ferramentaria

10.

11.

15.

16.

12.

17.

período diurno.O sistema de telhas zipadas possibilita total estanqueidade da cobertura e uma boa acústica. Além disso,seus grandes beirais conferem leveza e plasticidade à obra”.

A opção pela estrutura metálica, segundo Sidonio Porto,foi feita considerando-se as possibilidades de vencer vãos com maior leveza,melhor acabamento estético e devido à rapidez de montagem.“O aço possibilita que o arquiteto trabalhe com a linguagem dos vazios.Neste caso,seu contraste com o concreto,também utilizado nessa obra,permitiu força e expressividade arquitetônica”,explica.

O projeto de Sidonio Porto para a fábrica de embalagens e pincéis Ipel ganhou o prêmio Rino Levi,do IAB

(Instituto de Arquitetos do Brasil),em dezembro de 2002. (I.G.) M

18 ARQUITETURA&AÇO
NÍVEL SUPERIOR
Recursos humanos Manutenção Vestiários Sala de moagem Utilidades Administração Gerência Área injetora 18. Expedição
8 49 17 19 18 4 15 15 16 7 12 14 13 11 11 10 9 2 1 3 4 5 5 6 Foto Divulgação
19. Almoxarifado

> Projeto arquitetônico: Sidonio Porto

> Colaboradores: Equipe Sidonio Porto Arquitetos Associados

> Área total: 750 mil m2

> Área construída: 52.650 m2

> Aço empregado: aço de maior resistência à corrosão (tubos), ASTM A570 (perfis dobrados), ASTM A36 (perfis laminados e perfis compostos de chapa)

> Cálculo estrutural: OA e Aço Tec

> Fornecedor da estrutura metálica: Alufer e Açotec

> Local: Sorocaba, SP

> Data do projeto: março de 1999

> Conclusão da obra: outubro de 2001

Tecnologia em meio ao verde

PROJETOPARAINDÚSTRIADECOMPONENTESELETRÔNICOSREÚNE

MODERNIDADEERESPEITOAMBIENTAL

O ESCRITÓRIO Sidonio Porto Arquitetos Associados,sediado na cidade de São Paulo,recebeu em 2002 dois prêmios da Asbea (Associação Brasileira de Escritórios de Arquitetura) na categoria de edifícios industriais.Um refere-se à obra da Ipel (ver matéria nesta mesma edição);o outro,ao projeto da Flextronics.Em ambos,é possível perceber o estilo inconfundível de Sidonio,seja na otimização de luz e espaço,no diálogo que propõe com o entorno ou na utilização da estrutura metálica para vencer grandes vãos. Localizada em Sorocaba,interior de São Paulo,a Flextronics é uma multinacional norte-americana que fabrica componentes eletrônicos para outras grandes empresas,como HP, Dell,Microsoft,IBM,Sony,Motorola e Siemens.De suas linhas de produção saem desde computadores,softwares, celulares até equipamentos médicos. A arquitetura preocupou-se não só

em refletir este conceito de tecnologia e modernidade,mas também em proporcionar aos trabalhadores um ambiente de convívio acolhedor.

O conjunto industrial é composto por uma grande nave central, que abriga produção e depósitos,e edifícios anexos para os setores administrativos,interligados por rampas e escadas.A construção é do tipo mista,que integra estrutura em concreto pré-moldado e cobertura metálica.

É justamente a cobertura metálica que confere destaque ao complexo fabril.Com perfis tubulares,sua estrutura é configurada em três apoios,que saem dos pilares,vencendo um vão de 60 m.O aço pode ser conferido,ainda,em elementos como as passarelas que circundam a área de produção.

Por estar localizada em uma região de preservação ambiental da Serra do Mar,a implantação da obra foi,de início,um desafio. Mas,depois de um trabalho sério de pesquisa junto à construtora Racional e sob supervisão do DEPRN (Departamento Estadual de Preservação de Recursos Naturais),órgão da Secretaria Estadual do Meio Ambiente,foi possível chegar a uma bem-sucedida solução de preservação da vegetação nativa.Fato que também só agregou diferenciais ao projeto arquitetônico,já que,além do conforto térmico,o verde circundante representou um verdadeiro alento para os funcionários,que,devido ao sistema de vidro estrutural,podem admirar o visual do entorno mesmo do interior do edifício. (I.G.) M

21 ARQUITETURA&AÇO 20 ARQUITETURA&AÇO
Vigas e pilares pré-moldados de concreto formam a estrutura do edifício. A cobertura da área fabril é composta por estrutura metálica tubular e complementada por telhas zipadas com manta de lã de rocha. O sistema de apoio da cobertura é feito em três pontos, vencendo um vão de 60 metros Transparência e luminosidade são duas premissas básicas deste projeto de Sidonio Porto. A cor branca apenas reforça este concei to agregando modernidade e leveza tanto às áreas internas quanto externas do edifício Fotos divulgação

Desenho internacional

N OFIMDADÉCADADE 90, ARQUITETOAUSTRALIANOASSINOUOPROJETODOPARQUE GRÁFICODEUMDOSMAIORESJORNAISDO BRASIL

EM 1998,O ARQUITETO australiano Kenneth Sowerby deixou sua marca na construção em aço brasileira.Inspirado por formas e traços futuristas,ele criou o projeto do parque gráfico do jornal O Globo,localizado em Duque de Caxias,no estado do Rio de Janeiro. Com estrutura mista de aço e concreto,a obra ganhou o concorrido prêmio da Abcem (Associação Brasileira da Construção Metálica),no ano de sua execução,como um dos melhores exemplos de utilização do aço na arquitetura nacional.

“Minha idéia foi trabalhar em cima da simplicidade da arquitetura industrial,dando a ela um algo a mais – uma forma,uma dinâmica,uma escultura”,conta o arquiteto.Segundo ele,o elemento utilizado para criar este efeito foi uma ampla cobertura metálica,que,pousada sobre colunas esbeltas e inclinadas, envolve toda a edificação.

Projetado para imprimir mais de 1 milhão de exemplares do jornal O Globo aos domingos,o parque era o maior da América Latina em sua categoria quando foi inaugurado.Implantado em um terreno de 175 mil m2,tem área construída de mais de 67 mil m2 e exigiu,para a sua execução,nada menos do que de 800 toneladas de aço de maior resistência à corrosão e ASTM A36. (C.P.) M

23 ARQUITETURA&AÇO 22 ARQUITETURA&AÇO
memória
Projeto do arquiteto australiano Ken Sowerby, o centro gráfico do jornal O Globo em Duque de Caxias, RJ, utilizou mais de 800 toneladas de aço para a sua construção – a maior parte do material foi destinada a uma imensa cobertura branca, que, inclinada e apoiada apenas sobre delgadas colunas metálicas, envolve toda a edificação Fotos Infoglobo

Confluência de períodos

NO BRASIL,A DÉCADA DE 70 foi marcada pela construção de unidades fabris com projetos arquitetônicos arrojados. Seguindo uma tendência mundial,as indústrias deixavam de ser projetadas como simples galpões e,aos poucos,ganhavam formas mais elaboradas e layouts que se preocupavam com o bem-estar dos funcionários.

E foi justamente neste período que a Unilever,uma das maiores fornecedoras de bens de consumo do mundo,contratou o escritório Rino Levi Arquitetos

Associados para elaborar o plano diretor das novas instalações industriais de sua divisão de cosméticos,em Vinhedo,interior de São Paulo.À frente do projeto, estava Paulo Bruna,um dos diretores do escritório que,a partir de então,se tornou o arquiteto responsável por todas as fases de expansão do complexo.

O projeto original,que data de 1976,

atende a todas as exigências de uma edificação industrial de grande porte,sem deixar de lado a necessidade da humanização dos espaços.A luz natural é distribuída de maneira uniforme sobre as linhas de produção,favorecendo a economia de energia e o conforto dos operários.No pátio,um jardim assinado pelo paisagista Roberto Burle Marx,valoriza ainda mais o ambiente,podendo ser observado do interior da unidade fabril através de grandes paredes envidraçadas.

Todas estas características foram mantidas ao longo dos anos, mesmo após a fábrica receber dezenas de reformas e ampliações. Segundo Paulo Bruna,trata-se de uma obra em contínua evolução, mas que se apóia sempre nos mesmos princípios básicos.

A lógica estrutural também continua a mesma,seguindo à risca o plano diretor original.Desde a década de 70,todos os módulos do edifício industrial utilizam um sistema construtivo misto, que combina elementos metálicos com pré-moldados de concreto. Para o arquiteto,“a racionalização extrema da construção”tem sido um dos principais benefícios desta escolha.

O projeto,após 30 anos de contínuas ampliações,provou ser flexível e adequado.Inicialmente,o conjunto de prédios somava cerca de 18 mil m2.Hoje,já são mais de 45 mil m .A essência da construção,no entanto,permanece inalterada. (C.P.) M

25 ARQUITETURA&AÇO
RGUIDAEM 1976,
U NILEVERRECEBEUINÚMERASAMPLIAÇÕES EMODERNIZAÇÕES , MANTENDO - SEFIELAOSPRINCÍPIOSORIGINAISDOPROJETO
E
ADIVISÃODECOSMÉTICOSDA
No topo da página ao lado, um amplo jardim assinado por Burle Marx valoriza o ambiente fabril e promove o bem-estar de funcionários e visitantes. Embaixo, imagens aéreas mostram a implantação do projeto em 1976 e em 2002. Acima, em um dos edifícios que abriga as linhas de produção, aestrutura mista de aço e concreto permite a criação de extensos vãos livres
memória
1976 VISTAAÉREA 2002 24 ARQUITETURA&AÇO
Fotos Nelson Kon
VISTAAÉREA

Espaço de transição

TERMINALDECARGASEENTREPOSTOALFANDEGÁRIOESTRUTURADOSEMAÇOSÃOEXEMPLOSDESOLUÇÕES ARQUITETÔNICASCRIATIVASEFLEXÍVEISAPARTIRDATÍPICAARQUITETURAINDUSTRIAL

27 ARQUITETURA&AÇO
Foto Roberto Stuckert Foto Cláudio Libeskind Na entrada principal do entreposto alfandegário Aurora Eadi (acima) e do Teca III (no alto), já é visível a opção pelo aço, permitindo o uso de grandes vãos livres

UMA FICA NO CORAÇÃO do Amazonas,outra no interior de São Paulo; duas obras geograficamente distantes e com diferenças óbvias de função e concepção,mas com pontos comuns determinantes.Ambas revelam na arquitetura e nas atividades desenvolvidas suas facetas no mercado globalizado.Com formas limpas,amplas e estruturadas em aço,tanto a

terceira unidade (Teca III) do Terminal de Cargas do Aeroporto Internacional Eduardo Gomes,em Manaus (AM),como o entreposto alfandegário da Aurora Eadi,em Sorocaba (SP),são pontos estratégicos de transação econômica do Brasil com o mundo. O Teca III é composto por sete edificações e foi resultado de investimento da Infraero,que conseguiu,com esta obra,ampliar em quatro vezes a capacidade do complexo aéreo – de 3 mil toneladas,hoje chega operar com 12 mil toneladas mensais.A concepção da obra,orçada em R$ 23,6 milhões,ficou a cargo do escritório brasiliense do arquiteto Sergio Parada.

29 ARQUITETURA&AÇO 28
Proteção das fachadas por grelhas metálicas que funcionam como quebra-sóis e fechamento superior com venezianas de fibra de vidro para aproveitar a iluminação natural e favorecer a ventilação cruzada, demonstram a preocupação do arquiteto em adaptar a arquitetura do Teca III ao clima amazônico
ARQUITETURA&AÇO
Fotos Roberto Stuckert

Parada,que,entre outros grandes projetos,teve a primazia de ser o primeiro arquiteto brasileiro a elaborar um aeroporto na China, explica que o projeto para o Teca III envolveu,além da construção de novas edificações,a reforma de estruturas já existentes.O arquiteto ressalta que todo o prédio foi adaptado ao clima amazônico.Para isso,foram adotadas soluções como a proteção das fachadas por grelhas metálicas,que funcionam como quebra-sóis,e,no fechamento superior,venezianas em fibra de vidro,que,além de aproveitarem a iluminação natural,induzem a circulação cruzada de ar. A planta do novo edifício é caracterizada pela liberdade de layout

Um aspecto que exemplifica este fato é a estrutura modulada em vãos de 10 x 5 m, que,desta forma,permite acréscimos de pavimentos,caso haja necessidade futura.E,para comportar o grande estoque de cargas,foi adotada uma volumetria de grandes proporções neutras,em que a cobertura de aço, sustentada por dois pilares de concreto e vigas treliçadas de aço,é formada

por telhas arqueadas autoportantes que vencem vãos de 30 m. Já em Sorocaba,o arquiteto Cláudio Libeskind tinha a missão de criar um galpão moderno e modular que se adequasse a futuras ampliações para o entreposto alfandegário Aurora Eadi. Assim,explica Libeskind,o galpão foi executado com painéis pré-moldados de concreto até a altura de 3,50 m e

telhas de aço fixadas na estrutura metálica,que atinge 20 m de altura.Para “quebrar”a verticalidade do galpão,foram usados dois tipos de perfil de telha com a mesma cor.“Esta solução permite grande flexibilidade nas expansões”,afirma o arquiteto. Para o bloco administrativo,que abriga de escritórios e posto bancário até dependências da Receita Federal,foi criada uma cobertura metálica apoiada em pilares redondos implantados no nível do galpão,ou seja,1,30 m acima das vias laterais.Segundo Libeskind,a opção pela estrutura em aço veio em função da necessidade de se implantar o entreposto no menor prazo possível. (I.G.) M

O arquiteto Cláudio Libeskind encontrou na estrutura metálica a solução para cumprir os prazos e as exigências construtivas do entreposto alfandegário localizado no interior de São Paulo. Com 5 mil m de área construída e 20 m de altura, o galpão destaca-se entre seus pares tanto peladesenho arquitetônico das fachadasquanto pela solução adotada na verticalização do estoque

31 ARQUITETURA&AÇO
Fotos Cláudio Libeskind

Apoio:

expediente

Revista Arquitetura & Aço

Uma publicação trimestral da Quadrifoglio Editora para o CBCA (Centro Brasileiro da Construção em Aço)

CBCA: Av.Rio Branco,181 – 280 andar

20040-007 – Rio de Janeiro/RJ

Tel.:(21) 2141-0001

cbca@ibs.org.br

www c b c a - i b s o r g b r

NÚMEROS ANTERIORES:

Os números anteriores da revista Arquitetura & Aço estão disponíveis para download na área de biblioteca do site: www.cbca-ibs.org.br

PRÓXIMAS EDIÇÕES:

Construções esportivas – março de 2007 Instalações comerciais – junho de 2007

Retrofit – setembro de 2007

Lazer e cultura – dezembro de 2007

MATERIAL PARA PUBLICAÇÃO:

Contribuições para as próximas edições podem ser enviadas para o CBCA e serão avaliadas pelo Conselho Editorial de Arquitetura & Aço. Entretanto, não nos comprometemos com a sua publicação. O material enviado deverá ser acompanhado de uma autorização para a sua publicação nesta revista ou no site do CBCA, em versão eletrônica. Todo o material recebido será arquivado e não será devolvido. Caso seja possível publicá-lo, o autor será comunicado.

É necessário o envio das seguintes informações em mídia digital: desenhos técnicos do projeto, fotos da obra, dados do projeto (local, cliente, data do projeto e da construção, autor do projeto, engenheiro calculista e construtor) e dados do arquiteto (endereço, telefone de contato e e-mail).

Conselho Editorial

Alcino Santos – CST Arcelor

Catia Mac Cord Simões Coelho – CBCA/IBS

Marcelo Micali – CSN

Paulo Cesar Arcoverde Lellis – Usiminas

Roberto Inaba – Cosipa

Ronaldo do Carmo Soares – Gerdau Açominas

Supervisão Técnica

Sidnei Palatnik

Publicidade

Sidnei Palatnik – tel.:(11) 8199-5527

arquiteturaeaco@ajato.com.br

cbca@ibs.org.br

Quadrifoglio Editora

Rua Lisboa,493 – 05413-000 – São Paulo/SP

Tel.:(11) 6808-6000

cbca@arcdesign.com.br

Coordenação

Cristiano S.Barata e Winnie Bastian

Redação

Carine Portela,Isis Gabriel e Vânia Silva

Revisão

Deborah Peleias

Projeto Gráfico e Editoração

Cibele Cipola

Pré-impressão e Impressão

Eskenazi Indústria Gráfica

Endereço para envio de material:

Revista Arquitetura & Aço – CBCA

Av.Rio Branco,181 – 28o andar 20040-007 – Rio de Janeiro/RJ

cbca@quadried.com.br

É permitida a reprodução total dos textos,desde que mencionada a fonte. É proibida a reprodução das fotos e desenhos,exceto mediante autorização expressa do autor.

Da fundação à cobertura. Da estrutura à fachada. Do projeto à realização. As soluções em aço

Belgo-Arcelor Brasil estão em todas as etapas da construção civil. Soluções completas que aliam segurança, inovação, economia e preservação do meio ambiente. Para a Belgo-Arcelor Brasil, construir em aço significa mais que levantar edifícios. Significa construir um mundo melhor .

Belgo-Arcelor Brasil. Soluções em aço para um mundo melhor.

32 ARQUITETURA&AÇO
A inspiração é sua. A solução em aço é nossa.

Turn static files into dynamic content formats.

Create a flipbook
Issuu converts static files into: digital portfolios, online yearbooks, online catalogs, digital photo albums and more. Sign up and create your flipbook.
Arquitetura & Aço nº 08 - Indústrias by cbca-acobrasil - Issuu