Arquitetura & Aço nº 50 - Centro-Oeste

Page 1

ARQUITETURA AÇO ARQUITETURA&AÇO

Uma publicação do Centro Brasileiro da Construção em Aço número 50 novembro de 2017

Uma publicação do Centro Brasileiro da Construção em Aço número 50 novembro de 2017

CENTRO-OESTE CONSTRUÇÃO EM AÇO

AVANÇA E CONQUISTA

NOVOS MERCADOS

O Centro Brasileiro da Construção em Aço – CBCA, entidade sem fins lucrativos gerida pelo Instituto Aço Brasil, procura ampliar e promover a participação da construção em aço no mercado nacional por meio de ações de incentivo ao conhecimento, divulgação, normalização e apoio tecnológico. Conheça o CBCA!

Principais ações do CBCA

Cursos online e presenciais

Desenvolvimento de material técnico e didático, como as videoaulas e os manuais de construção em aço, disponibilizados gratuitamente em seu site

Pesquisas anuais junto aos fabricantes do setor, traçando um panorama da evolução e expectativas para o futuro desse sistema no País

Promoção de palestras e Road Shows por diversas cidades brasileiras

Realização do Concurso CBCA para Estudantes de Arquitetura, que anualmente incentiva a investigação das possibilidades da construção em aço e a manifestação criativa de alunos de arquitetura de todo o Brasil

www.cbca-acobrasil.org.br

Acesse o site e descubra tudo que o CBCA tem a oferecer!

CONQUISTANDO NOVOS TERRITÓRIOS

CHEGAMOS AO NÚMERO 50 DA REVISTA ARQUITETURA & AÇO! Uma marca emblemática, motivo de satisfação e, principalmente, de estímulo para todos que contribuem para sua realização e no fomento da construção em aço no Brasil. É notória a ampliação da presença desse sistema construtivo no mercado brasileiro, como registramos a cada número da revista desde o lançamento, em 2004. Nos vem à lembrança a produção das primeiras edições, quando garimpávamos bons exemplos de obras em aço para compor seu conteúdo. Hoje, até aumentamos o número de páginas da publicação, tantos são os casos interessantes a destacar. Podemos, inclusive, dedicar uma edição inteira para mostrar apenas uma região do país, como fazemos agora, abordando a construção em aço no Centro-Oeste brasileiro. Uma das áreas de ocupação territorial mais recente no Brasil, a região apresenta dois vetores de desenvolvimento distintos. Por um lado, a riqueza gerada pela atividade agropecuária, base da sua economia; de outro, o dinamismo de Brasília, a cidade construída no final dos anos 1950 para ser a capital da República e que se tornou uma metrópole com mais de 4 milhões de habitantes, além de apresentar a maior renda per capita do país. Para atender aos prazos extremamente exíguos na instalação da nova capital, o aço foi um importante aliado. O emblemático conjunto do Congresso Nacional foi estruturado com aço importado dos Estados Unidos, assim como os prédios dos Ministérios; também em Brasília está um dos primeiros edifícios erguidos com estruturas em aço fabricadas no Brasil, o Hotel Palace – que apresentamos nesta edição –, todos eles projetados por Oscar Niemayer.

Assim, seguindo as demandas da região, o desenvolvimento da construção em aço no Centro-Oeste brasileiro seguiu por essas duas vias: tanto respondendo à grande demanda por galpões e armazéns, para os quais o aço oferece soluções construtivas rápidas, flexíveis e duráveis, como atendendo às necessidades típicas dos centros urbanos em crescimento – com edificações para atividades comerciais e de serviços até instalações industriais, de residências a grandes prédios públicos e institucionais, além de obras de infraestrutura. Nesta edição, trazemos 25 casos de obras que, além de mostrar uma grande variedade de soluções criativas, demonstram que o setor da construção em aço na região Centro-Oeste está pronto para atender às necessidades de uma região que cresce em ritmo acelerado.

Boa leitura!

EDITORIAL
1 &ARQUITETURA AÇO
sumário Foto da capa: Confederação Nacional dos Municípios, em Brasília (DF) Arquitetura & Aço nº 50 novembro 2017 CONTATOS 52 06. 28. 10. 30. 34. 14. ENTREVISTA 22 Cezar Valmor Mortari, engenheiro e diretor da Irontec Construção Metálica, fala sobre o uso do aço em obras no Centro-Oeste do Brasil REFERÊNCIAS 42 Estruturas metálicas são destaque em 12 projetos já publicados por Arquitetura & Aço nos últimos anos. Confira! ACONTECE 50 Estruturas em aço agregam velocidade construtiva e conferem design moderno à academia do Clube de Engenharia de Goiás Leonardo Finotti

06. Universidade do Distrito Federal, Brasília, DF: estruturas metálicas transformam layout de centro universitário projetado na década de 1960 10. Fabrika Filmes, Brasília, DF: aço confere apelo estético, velocidade construtiva e layouts flexíveis à nova sede de produtora de audiovisual 14. União Química, Brasília, DF: indústria farmacêutica adota estruturas de aço, com projeto de Ruy Ohtake 16. Confederação Nacional dos Municípios, DF: beleza e modernidade na nova sede da entidade 20. Brasília Palace Hotel, Brasília, DF: projeto de Oscar Niemeyer foi pioneiro ao ser construído com aço 100% nacional 24. Shopping Flamboyant, GO: centro comercial recorre ao aço para viabilizar sucessivas ampliações 28. Sesc, Goiânia, GO: aço possibilita integração perfeita de novo edifício à sede já existente 30. Restaurante Coco Bambu, Goiânia, GO: tradicional rede de restaurantes ganha identidade sofisticada e elegante com o uso de estruturas em aço 34. Ginásio Poliesportivo Professor Aecim Tocantins, Cuiabá, MT: grandes arcos em aço compõem a estrutura da cobertura e aceleram prazo de execução da obra 36. Atacadão, Várzea Grande, MT: aço contribui para vencer vãos de até 25 m e atender a cronograma enxuto; obra ficou pronta em nove meses 38. Shopping Center Bosque dos Ipês, Campo Grande, MS: com uma cúpula central e pilares em formato de árvore, centro comercial tira partido do aço em prol da plasticidade e sustentabilidade 40. Pontes metálicas, MT: leves, fáceis de serem transportadas e capazes de vencer grandes vãos, pontes em aço oferecem soluções às demandas da região

16. 36. 20. 38. 24. 40.
Cada projeto pede uma solução. E toda solução pede Vallourec. vallourec.com/br

Os tubos de aço sem costura Vallourec são a melhor solução para grandes obras. A tecnologia Vallourec garante resistência e durabilidade com mais leveza e economia. O resultado é moderno e arrojado, permitindo projetos com grandes vãos, além de reduzir custos, prazo de construção e peso da obra. A Vallourec é líder em soluções tubulares premium e está presente nos setores petrolífero, de energia, industrial, da construção civil e automotivo. Vallourec. A solução para grandes desafios.

vendas.estrutural-bra@vallourec.com | (31) 2102-4511

EXPANSÃO HARMONIOSA

Estruturas metálicas vencem vãos de até 30 m e garantem ampliação de centro universitário em prazo inferior a dois anos

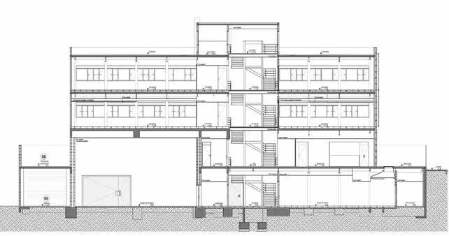
QUEM OBSERVA A VOLUMETRIA modular e multifacetada do prédio da Universidade do Distrito Federal, em Brasília (DF), não imagina, em um primeiro momento, que a harmônica construção que alia painéis em concreto, estruturas em aço, transparências e nuances de luz seja, na verdade, a extensão de um programa construído na década de 1960, tamanha a unicidade do novo projeto.

A ampliação, que ficou a cargo da Kruchin Arquitetura, teve como premissa a execução de três novos pavimentos para atender à demanda

da universidade por novos espaços: um incremento de 5.000 m2 de área construída sobre o centro educacional já existente. E para viabilizar o novo conjunto de salas de aulas, áreas de circulação verticais e auditório no pavimento térreo, tudo em um período inferior a dois anos, o aço se mostrou um importante aliado.

Segundo o arquiteto Samuel Kruchin, que assina o projeto com sua equipe de arquitetura, somente com o material foi possível vencer vãos de até 30 m e, ainda, alcançar a plasticidade desejada. “Várias foram as premissas que

&ARQUITETURA AÇO
6

Brises metálicos instalados na fachada associados a placas de concreto coloridas formam uma elegante composição

7 &ARQUITETURA AÇO
Daniel Ducci

nos levaram a essa opção, como a presença de grandes vãos associados a um número reduzido de pilares; a restrição de altura imposta pela Prefeitura, que exigiu peças de vigamento esbeltas; a velocidade de construção e montagem; e a execução, que precisou ser realizada com o edifício em funcionamento”, exemplifica Kruchin.

Na obra, tanto os pilares como as vigas são em aço. Já as lajes foram executadas em steel deck. “Temos uma estrutura principal composta por 12 pilares em perfis de aço do tipo I, vigas de até 55 x 94 cm, além de seis treliças externas e duas treliças internas com 20 x 3,90 m”, detalha o arquiteto.

Para conferir rigidez ao conjunto, as treliças foram dimensionadas como pórticos e ajudaram a contornar parte das restrições do projeto. “As estruturas do segundo e terceiro pavimentos tiveram de ser atirantadas. Também houve a necessidade de limitar a altura máxima das vigas em 55 cm para atender ao gabarito imposto pela Prefeitura”, explica o engenheiro Ernesto Tarnoczy Jr., autor do projeto estrutural da universidade. Para Kruchin, esse foi um dos

Execução de três novos pavimentos na construção já existente garantiu um ganho de 5.000 m2 de área à universidade

> Projeto arquitetônico: Kruchin Arquitetura

> Área construída: 5.000 m²

> Aço empregado: perfis laminados em aço ASTM 572 GR50

> Volume de aço: 420 t

> Projeto estrutural: Ernesto Tarnockzy

> Fornecimento da estrutura de aço: CPC Estruturas

> Execução da obra: Construtora Costa Feitosa Ltda.

> Local: Brasília, DF

> Conclusão da obra: 2016

8 &ARQUITETURA AÇO
etapa 1 etapa 3 etapa 2 Fotos Daniel Ducci

pontos mais complexos. “Atender às restrições de altura em Brasília e resolver os grandes vãos por meio de treliças foi um grande desafio.”

E a presença do aço não ficou restrita unicamente aos elementos estruturais da obra. Para conferir um aspecto mais esbelto à edificação e ainda agregar ventilação e iluminação naturais, brises metálicos foram instalados na fachada da universidade. Associados a placas de concreto coloridas e vidros reflexivos, formam uma composição elegante que confere identidade ao conjunto.

“Queríamos um edifício ventilado e aberto, com ambientes integrados, dos corredores às salas de aula. Tudo para que a beleza pudesse ser fluida desde o interior da edificação”, finaliza Kruchin. (E.Q.) M

Brises em aço protegem o interior da incidência direta de raios solares, ao mesmo tempo que mantêm a iluminação natural e proporcionam boa ventilação ao edifício

9 &ARQUITETURA AÇO
Fotos Daniel Ducci

FORMA E FUNÇÃO

Projeto em aço une estética e funcionalidade em sede de produtora em Brasília

A NOVA SEDE DA PRODUTORA de audiovisual Fabrika Filmes, em Brasília, celebra o casamento harmonioso entre forma e função. Para cada elemento, há uma justificativa funcional relacionada ao cotidiano da empresa. E para a execução do projeto o sistema construtivo em aço foi o que melhor atendeu à necessidade de, no menor prazo possível, viabilizar uma obra contemporânea, com planta flexível, modulação eficiente, com um grande vão no hall de entrada.

“O aço foi empregado em todo o prédio, à exceção do estúdio de filmagens, localizado no subsolo”, conta o arquiteto Pedro Grillo, sócio-diretor da CoDa Arquitetos, que responde pela autoria do projeto.

A decisão pela construção em aço foi resultado de um amplo processo de avaliação. “Nossa cultura projetual e formação brasiliense foi sempre focada no concreto armado. A opção pelo sistema estrutural em aço veio das discussões com o cliente, em parte pela velocidade da execução, mas principalmente pelos aspectos estético e funcional da solução. O sistema permitiu ao projeto vãos maiores e total flexibilidade no espaço interno, tanto em planta como em altura. Além disso, o caráter industrial da estrutura remete à própria concepção da empresa, uma ‘fábrica’ de filmes”, reflete Grillo.

10 &ARQUITETURA AÇO

Uso do aço contribuiu para reforçar a identidade da empresa e, ainda, viabilizou vãos de grandes dimensões

11 &ARQUITETURA AÇO
Fotos Joana França/divulgação

> Projeto arquitetônico: CoDA Arquitetos

> Área construída: 1.700 m²

> Aço empregado: perfis laminados ASTM A-572 GR50; perfis soldados de abas planas e chapas de ligação ASTM A-572 GR50

> Volume de aço: 100 t

> Projeto estrutural: Paulo Resende e Sander Nascimento

> Fornecimento da estrutura de aço: Medabil Sistemas Construtivos S.A.

> Execução da obra: Medabil Sistemas Construtivos S.A.

> Local: Brasília, DF

> Conclusão da obra: 2011

Integrando pessoas

O cotidiano de uma produtora de audiovisual consiste em uma intensa interação entre diversas equipes: produção, logística, direção, edição, montagem, iluminação, sonorização, roteiro, redação, casting, atendimento aos clientes, filmagem, manutenção e limpeza. Quanto mais harmonia entre elas, maiores as chances de sucesso. E o projeto da sede da Fabrika Filmes foi idealizado para atender a esse perfil. Em seu núcleo, um átrio com pé-direito triplo, com 11,1 m de altura, integra passarelas suspensas, de circulação vertical. O local, considerado o coração da convivência, interliga os dois lados do edifício e favorece a integração das equipes. “Para reforçar o dinamismo desse espaço, utilizamos um recurso plástico pouco usual: um cubo torcido, como uma espinha dorsal, criando vazios irregulares a partir de recortes nas passarelas”, explica o arquiteto. A integração também é propiciada nas varandas longitudinais, formadas pelos amplos balanços do edifício ao longo dos pavimentos de escritórios, fechadas com chapas metálicas perfuradas.

12 &ARQUITETURA AÇO
Na foto abaixo, átrio com pé-direito triplo, funciona como uma espécie de espinha dorsal que interliga os dois lados do edifício e favorece a integração das equipes. Ao lado, área de reuniões e trabalho das equipes de produção Fotos Joana França/divulgação

Na foto abaixo, a montagem das estruturas metálicas foi realizada com precisão por meio de ligações parafusadas

Outra característica marcante nos pavimentos é a abundância de luz natural aliada à ventilação cruzada, dispensando, em grande parte do dia, o uso de recursos artificiais. Uma produtora, muitas vezes, precisa acomodar equipes inteiras de empresas parceiras, o que demanda espaços flexíveis. Assim, os vãos livres transversais com mais de 10 m, possíveis devido à estrutura metálica empregada, aliados ao piso elevado, permitem rápidas mudanças de layout. “O prédio serve a uma empresa em constante transformação, na qual a intensa convivência nos espaços comuns é um dos seus principais destaques”, diz Grillo. (A.L.) M

13 &ARQUITETURA AÇO
Divulgação Fotos Joana França/divulgação

CORES E CURVAS

Instalação industrial estruturada em aço leva a assinatura de Ruy Ohtake

UMA DAS MAIORES INDÚSTRIAS farmacêuticas do Brasil, a União Química inaugurou sua unidade de produção em Brasília, em 2006, para a fabricação de medicamentos humanos não estéreis, com destaque para cremes, pomadas, drágeas, soluções efervescentes e líquidos.

Implantada no distrito industrial JK, a unidade chama a atenção pelas curvas arrojadas e pelos volumes revestidos com tons marcantes, característicos da obra do arquiteto Ruy Ohtake, autor do projeto de arquitetura.

A unidade ocupa um terreno de 220 mil m2 de área total e abriga edificações para produção, estocagem, administração e construções auxiliares, como refeitório, auditório, portaria, grêmio, utilidades e áreas externas. No local, trabalham aproximadamente 1.400 colaboradores.

O extenso programa da fábrica farmacêutica se distribui em um amplo volume retangular, tipicamente industrial, revestido com painéis térmicos constituídos por núcleos isolantes e placas de aço, além de telhas termoisolantes, também em aço.

A fachada principal, contudo, se sobressai muito em função do pórtico com formas orgânicas, revestido com painéis metálicos em azul anil e dos dois volumes circulares vermelhos posicionados na periferia do edifício. Sob o elemento azul foi disposto um longo hall de convivência, com 6 m de largura, faces envidraçadas e cobertura semitransparente em vidro.

As cores intensas e vibrantes, em detrimento do concreto cinza, deixam clara a assinatura de Ohtake.

Projeto marcado por cores intensas e vibrantes foi executado em menos de um ano, com o uso de estruturas em aço

Fotos
14 &ARQUITETURA AÇO
divulgação

Ganhos financeiros

De acordo com o engenheiro e projetista de estruturas Marco Antônio Mendonça Pedroza, diretor da Metta Construções Tecnológicas, o grande desafio por trás da construção da União Química foi compatibilizar o cumprimento do prazo exíguo – menos de um ano – à necessidade de se manter fiel à arquitetura nas partes curvas, com qualidade de execução e acabamento.

Ele conta que a opção pelo aço se revelou a mais vantajosa pela necessidade de vencer grandes vãos, que chegam a 30 m, com pé-direito de 12 m de altura. “Era fundamental que tivéssemos elementos que oferecessem precisão na execução e a melhor relação custo-benefício”, acrescenta Pedroza, destacando entre outros benefícios dessa escolha a liberdade de layout e a melhor adequação de pé-direito, características impres-

cindíveis a instalações industriais dessa natureza. De acordo com o engenheiro, foram registrados, ainda, ganhos financeiros em função da maior agilidade na construção, o que permitiu antecipar ao máximo o início de operação da fábrica. Além disso, a estrutura em aço, mais leve, dispensou a necessidade de se utilizar fundações profundas, mais complexas e caras.

Na fábrica da União Química, o esquema estrutural previu a combinação de pilares de concreto pré-fabricado, vigas em aço de seção variável em chapas soldadas e terças em perfis formados a frio tipo Z para suporte da cobertura. As ligações foram 100% parafusadas com contraventamentos em K.

Para a proteção contra a corrosão, as peças de aço receberam tratamento com jato padrão SA 21/2, com pintura eletrostática a pó de 60 micras. (J.N.) M

> Projeto arquitetônico: Ruy Ohtake

> Área construída: 39 mil m²

> Aços empregados:

ASTM A-709 GR 50W

> Volume de aço: 700 t

> Projeto estrutural:

engenheiros Marco Pedroza e Marco Aurélio Ribeiro

> Estrutura de aço: Metta Construções Tecnológicas Ltda. e Medabil Sistemas

Construtivos S.A.

> Construtora: HTB

Engenharia e Construção

> Local: Brasília, DF

> Conclusão da obra: 2005

Leonardo Finotti Leonardo Finotti

BELEZA ORTOGONAL

Estruturas em aço sobre base de concreto formam conjunto de grande impacto e plasticidade

INAUGURADO EM 2016, o edifício da Confederação Nacional dos Municípios (CNM), em Brasília (DF), chama atenção por sua plasticidade e forma. O edifício, projetado pela equipe do Mira Arquitetos, serve de sede ao movimento municipalista e conta com elementos em aço, concreto e vidro, que conferem leveza e modernidade ao conjunto.

No projeto, formado por três subsolos, térreo, pavimentos superiores e cobertura, a presença de vãos de até 18 m – vencidos

com a ajuda de estruturas metálicas – e a transparência presente na fachada são destaques. “A opção pela estrutura metálica nos pisos superiores se deu pela modulação da estrutura e pelos grandes vãos. Optamos pelo aproveitamento do sistema misto em aço e concreto, com uso de conectores do tipo stud bolts, implicando em vigas com altura de 80 cm”, explica o engenheiro Jairo Fruchtengarten, da Kurkdjian e Fruchtengarten Engenheiros Associados.

Andares superiores estruturados a partir de treliças longitudinais em aço se apoiam em dois pilares de concreto no térreo do edifício, contribuindo para a formação de um vão central de 45 m e de balanços de 15 m

16 &ARQUITETURA AÇO
17 &ARQUITETURA AÇO
Fotos Leonardo Finotti

No programa, o terceiro e segundo subsolos, reservados ao estacionamento de veículos, são em concreto, assim como o primeiro subsolo, que abriga o foyer, a praça cívica e uma área para exposições e eventos. No térreo, a estrutura é suportada por vigas protendidas, se convertendo para o aço a partir do primeiro andar do edifício. “A partir deste ponto, ela passa a ser toda em perfis metálicos, exceto pelo núcleo, composto pelas caixas do elevador e escadas, que são em concreto. As vigas em aço se apoiam apenas em duas treliças longitudinais nas extremidades de cada pavimento, que, por sua vez, estão apoiados em dois pilares de concreto formando um vão central de 45 m e balanços de 15 m”, detalha Fruchtengarten. Os pórticos formados pelas treliças e vigas vinculadas aos montantes verticais foram cruciais para assegurar a resistência dos esforços horizontais. Conforme explica o arquiteto Luis Eduardo Loiola, do Mira Arquitetos, escritório que responde pelo projeto arquitetônico da CNM, a partir do térreo esses esforços são transferidos às cortinas de contenção, em tubulões justapostos, aliviando, assim, a carga das estruturas.

O aço também está presente em uma passarela localizada no vazio central, mais precisamente na interligação junto à caixa dos elevadores e na fachada do edifício. “A passarela conta com vigas metálicas que vencem 22,5 m de extensão”, relata Loiola. Já na fachada, estruturas metálicas atuam para conferir mais transparência ao volume, seguindo a linguagem arquitetônica adotada no projeto. “Distinta, a estrutura do fechamento é constituída por perfis verticais espaçados a cada 1,25 m, que se apoiam nas treliças da fachada. A ligação da estrutura se dá, em alguns pontos específicos, por meio de consolos metálicos sobre as réguas perfuradas”, diz Fruchtengarten. A solução adotada favoreceu a incidência da luz e ventilação naturais no edifício, reduzindo o uso de ar-condicionado em seu interior.

18 &ARQUITETURA AÇO
NÚCLEO
DE CIRCULAÇÃO
TRELIÇA
METÁLICA
COBERTURA AJARDINADA PROTEÇÃO TÉRMICA EM RÉGUAS PERFURADAS PRAÇA NO TÉRREO INFERIOR
RAMPAS DE ACESSO ÀS GARAGENS Fotos Joana França
ESPELHO D'ÁGUA

Telhado verde

O aço também contribuiu para a adoção de uma outra solução que busca ampliar o caráter sustentável da edificação. O material foi especificado para a cobertura do salão nobre do edifício, sobre a qual foi instalado um ecotelhado. No local, além dos pilares em aço, é possível observar vigas atirantadas do mesmo material em um dos apoios, no banzo inferior da treliça, que vencem vãos de até 20 m. Segundo o engenheiro estrutural do projeto, neste ponto, a modulação dos pilares é de 3,75 x 6,25 m, enquanto as vigas têm um vão de 6,25 m e balanço de 2,5 m. “Não há contraventamentos, apenas pórticos formados por ligações rígidas do tipo viga-pilar”, detalha o profissional. (E.Q.) M

> Projeto arquitetônico: Mira Arquitetos

> Área construída: 10.488 m²

> Aço empregado: perfil soldado e laminado

ASTM A572 GR50, chapas e cantoneiras de ligações ASTM A36 e parafusos especiais A325

> Volume de aço: 440 t

> Projeto estrutural: Kurkdjian & Fruchtengarten

Engenheiros Associados S/S Ltda.

> Fornecimento da estrutura de aço: CPC

Estruturas

> Execução da obra: Soltec Engenharia Ltda.

> Local: Brasília, DF

> Conclusão da obra: 2016

Vigas metálicas na passarela vencem um vão de 22,5 m no interior do edifício Haruo Mikami Leonardo Finotti

PIONEIRO NACIONAL

Histórico, hotel Brasília Palace segue como exemplar em aço da arquitetura moderna de Oscar Niemeyer

A CIDADE DE BRASÍLIA era ainda um grande canteiro de obras quando o hotel Brasília Palace foi oficialmente inaugurado, em 30 de junho de 1958, com uma antecedência proposital e estratégica: o então presidente Juscelino Kubitschek necessitava de acomodações para as ilustres caravanas, nacionais e estrangeiras, que visitariam a capital federal em construção. Apenas o sistema construtivo em aço, ainda embrionário no país, viabilizaria o cronograma e a marcante expressão arquitetônica pretendidos. Assim, a obra foi iniciada em setembro de 1957, às margens do Lago Paranoá, cercado por uma extensa área verde, nos arredores do Palácio da Alvorada.

A concepção do edifício segue a cartilha da escola moderna: um projeto marcado pelo racionalismo e funcionalismo, de forma geométrica definida que busca integrar-se ao pai-

sagismo e à presença de obras de arte – neste caso, do artista Athos Bulcão, que criou um painel de azulejos e um grande afresco para o salão principal, com 3,25 m de altura e 26 m de comprimento. Algumas dessas características, notadamente o funcionalismo exacerbado, já estavam, à época, sendo abandonados por Niemeyer, que se entregava às formas curvilíneas, como sinaliza a piscina em formato oval se contrapondo aos ângulos retos do hotel.

O hotel foi, muitas vezes, a hospedaria oficial do presidente Juscelino Kubitschek, tendo sido utilizado como gabinete de despachos e palco de cerimônias oficiais. Com amplos vãos, o hotel transpirava um ar moderno, de conforto e exclusividade. Sua entrada, localizada em piso semienterrado, permitia total independência entre os hóspedes recém-chegados e os que já estavam circulando pela edificação.

Erguido no período da construção de Brasília para atender ao fluxo de visitantes e autoridades à nova capital, o hotel foi pioneiro no uso do aço produzido no Brasil, com estruturas fornecidas pela FEM –Fábrica de Estruturas Metálicas

20 &ARQUITETURA AÇO
Fotos divulgação

Essa separação permitia a acomodação rápida e discreta dos que não desejavam, naquele momento, o convívio social.

Mais do que um exemplar arquitetônico, o Brasília Palace é um verdadeiro testemunho do que representou o espírito da década de 1950 para o país. Os chamados Anos Dourados emanavam os ideais de um Brasil moderno, industrial, urbano. A política desenvolvimentista de Juscelino Kubitschek – da qual a construção de Brasília é o principal estandarte – fomentava o fortalecimento da nação, sob o lema de “50 anos em 5”. O Plano de Metas visava conduzir o país a um crescimento econômico expressivo, apoiado no fortalecimento de três pilares: indústria, transporte e energia. E a indústria nacional do aço foi uma das impulsionadas.

Em 1953, foi instalada em Volta Redonda (RJ) a Fábrica de Estruturas Metálicas (FEM), uma subsidiária da Companhia Siderúrgica Nacional, dedicada a fornecer estruturas de aço para o mercado interno. As estruturas metálicas utilizadas no hotel Brasília Palace – com volume total estimado em pouco mais de 900 toneladas – foram produzidas pela FEM e transportadas de trem e rodovia até Brasília. Ou seja, o hotel é uma das construções pioneiras a utilizar aço 100% nacional, contribuindo para a difusão da tecnologia da construção em aço.

Contudo, na madrugada de 5 de agosto de 1978, uma sobrecarga elétrica em uma das cafeteiras provocou um curto circuito no terceiro andar, iniciando um incêndio. Fogo e pânico alastraram-se rapidamente. Por sorte, todas as pessoas escaparam ilesas, mas não o edifício

projetado por Oscar Niemeyer: 13.500 m2 de área construída, 135 quartos, acervo artístico, tudo destruído. Não restou alternativa a não ser sua interdição. E, fechado, o Brasília Palace permaneceu por longos 28 anos. Esta realidade só seria enfrentada no final dos anos 1990, quando o Governo do Distrito Federal abriu uma licitação para a recuperação do hotel. O escritório de Oscar Niemeyer foi envolvido na supervisão da reconstrução, que manteve as estruturas em aço. O próprio artista Athos Bulcão foi convocado para o restauro das suas obras de arte. Em setembro de 2006, após quase dez anos de obras, o Brasília Palace foi reinaugurado. (A.L.) M

Acima, salão principal do hotel, conforme projeto original. Abaixo, edifício aparece restaurado, 30 anos após o incêndio que o destruiu. Na reconstrução, as estruturas em aço foram mantidas

21 &ARQUITETURA AÇO
MEMÓRIA
Divulgação Fotos divulgação

Arquitetura&Aço – As características culturais e econômicas da região Centro-Oeste, contando também com a influência da construção de Brasília, fortemente associada ao concreto a partir das concepções de Lúcio Costa e Oscar Niemayer, representaram alguma barreira ao desenvolvimento da construção em aço na região?

Cezar Valmor Mortari – Sem dúvida, esses fatos tiveram uma importância cultural significativa, principalmente porque o meio técnico superestimou as obras monumentais em concreto armado, deixando em segundo plano as dezenas de construções em aço feitas à época. Lembremos, por exemplo, que todos os Ministérios e as duas torres do Congresso Nacional são em aço, fabricado nos Estados Unidos e montado por engenheiros brasileiros.

AA – E quando esse cenário mudou e o aço passou a merecer maior atenção dos arquitetos e construtores da região?

CVM – O assunto começou a circular com mais desenvoltura no meio técnico a partir do ano de 2000, quando passaram a existir congressos e seminários específicos sobre construção metálica. Nossa atuação, desde essa época, tem sido intensa no sentido do desenvolvimento deste mercado. Gradativamente, os agentes estão reconhecendo as vantagens do sistema.

Graduado em engenharia civil pela Universidade Federal do Rio Grande do Sul (UFRGS), Cezar Valmor Mortari iniciou sua carreira em 1984 e participou do planejamento de importantes obras de infraestrutura portuária na região Sul do país. Sua atuação exclusiva com o aço e em obras industriais no Centro-Oeste, entretanto, se deu apenas alguns anos depois, a princípio com a Arquitrave e mais tarde com a Irontec Construção Metálica, empresa especializada na fabricação de estruturas metálicas, a qual dirige atualmente e que está sediada em Goiânia (GO). Em três décadas, Mortari atuou em mais de 200 obras que levam estruturas metálicas em sua concepção: uma estimativa de 18 mil toneladas do material aplicadas no período em questão. Em entrevista, o engenheiro, que também é diretor de construção metálica do Sinduscon-GO e ministra palestras no Brasil e no exterior, fala sobre o mercado do aço na região.

AA – Quais são, entre essas vantagens, as que o senhor destacaria como mais importantes, considerando as particularidades do mercado do Centro-Oeste?

CVM – A questão da velocidade é a vantagem que mais agrega valor ao uso da estrutura metálica no Centro-Oeste, com seus evidentes ganhos de antecipação de receita, diminuição de custos fixos e menor incidência de juros sobre o capital investido. Quando se precifica estas diversas vantagens chega-se a um custo-benefício muito favorável à construção em aço. Ultimamente, outras vantagens menos evidentes, porém tão importantes quanto, começam a prevalecer. O menor consumo de energia, de água e de transportes, todos itens importantes para as certificações LEED (Leadership in Energy and Environmental Design), são algumas delas. Outra questão importante é a necessidade que as construtoras passaram a ter de evitar grandes contratações de pessoal, tanto pela escassez de mão de obra entrante no mercado como pelos riscos com passivos trabalhistas. Assim, a construção industrializada passou a ser a resposta natural para essas demandas.

AA – No mercado da região, quais as tipologias de obra apresentam maior demanda?

CVM – Os galpões, tanto industriais como os de logística, já há

22 &ARQUITETURA AÇO
AÇO: DESENVOLVENDO O CENTRO-OESTE
Acervo pessoal

bastante tempo têm sido o nosso mercado cativo. O que mudou foi a gradativa introdução do sistema nas obras comerciais de grande porte, como shopping centers. Também o setor de serviços demonstrou vigor, com dezenas de universidades sendo edificadas em aço. Por último, posso citar os prédios multiandares, que começam a surgir, especialmente para uso comercial, devido às evidentes vantagens agregadas e que até pouco tempo não eram consideradas em construções.

AA – Como devemos encarar a distância entre o grande número de obras em aço que vemos em Brasília comparativamente ao que ocorre nas outras grandes cidades da região?

CVM – Não esqueçamos que o mercado imobiliário de Brasília é pujante, em função da alta renda per capita, a maior do Brasil, e da maior receptividade às construções não convencionais, em razão das características do nascimento da cidade. Importante lembrar a profusão de prédio públicos, que também passaram a ser estruturados em aço. Mas essa situação está mudando. Recentemente, foram executados grandes shoppings em Cuiabá e em Campo Grande, como o Várzea Grande Shopping e o Shopping Bosque dos Ipês, respectivamente, ambos com intenso uso do aço. Em Goiânia, também tivemos outras intervenções em aço, como a expansão do Flamboyant Shopping, o novo Shopping Mega Moda, a sede da Unimed, além de um edifício de 14 pavimentos em estruturas mistas em aço e concreto. A demanda está crescendo.

AA – O senhor considera que a cadeia construtiva da região está preparada para atender ao crescimento da demanda por obras em aço de grandes dimensões?

CVM – Sim, certamente. Hoje, não temos dificuldades com insumos. Tínhamos sérias indisponibilidades de mão de obra especializada, mas agora estão sendo equacionadas. Os fabricantes locais estão muito bem equipados e os montadores e projetistas estão preparados. Em Goiânia, temos ao menos sete fabricantes médios bem tecnificados, com máquinas que operam com o sistema de Comando Numérico Computadorizado (CNC). Em Cuiabá e Campo Grande são dois, e em Brasília temos um grande fabricante. Dispomos, ainda, na região de ao menos 15 projetistas especializados que utilizam programas 3D em

plataforma BIM. E como temos um bom canal com as universidades, especialmente com a Universidade de Brasília (UNB) e PUC de Goiânia, estamos contribuindo para a formação de profissionais melhor capacitados, e que, certamente, ajudarão a ampliar esse mercado no futuro.

AA – Mas ainda há desafios a ser vencidos, não?

CVM – Desde 2007, também estou à frente da diretoria de construção metálica do Sinduscon-GO e, com base em minha atuação no setor, acredito que o maior desafio que enfrentamos ainda é a resistência do meio técnico – dos engenheiros e arquitetos – ao uso intenso da estrutura metálica em edifícios multiandares. O nosso market share somente será significativo, a exemplo dos 50% que vemos no mercado norte-americano, quando houver o uso maciço da estruturação de prédios em andares múltiplos.

AA – E por que isso ainda não ocorre?

CVM – Existem alguns fatores, sendo a barreira do financiamento, que exige um desembolso alto no início das obras, o mais significativo. Mas a questão cultural ainda persiste e não por causa do comprador, como se faz parecer, mas pela própria resistência dos atores das obras. Isso advém de um círculo vicioso no qual não se ensina na academia porque não se usa e, dessa forma, tanto engenheiros como arquitetos impõem restrições devido ao pouco domínio que têm da matéria.

AA – Como o setor espera contornar essas questões para ampliar a popularidade dos sistemas em aço na região? O que está sendo feito?

CVM – Temos de atuar em todas as frentes para o desenvolvimento desse mercado. A nossa missão institucional é viabilizar, cada vez mais, o sistema construtivo metálico como uma das opções mais viáveis para o meio técnico. Imaginamos que uma melhor formação dos arquitetos, com bom domínio dessa técnica nas fases de projeto e pré-dimensionamento, seja um bom caminho. Claro, tem de haver a busca da melhoria contínua mesmo onde, em tese, já estamos com a tecnologia dominada. Conseguir soluções para resolver o nó górdio do financiamento das obras também é crucial. (E.Q.) M

23 &ARQUITETURA AÇO
“ Todo país que enriquece tem como consequência natural um uso mais intenso da construção industrializada, e isso inclui as obras em aço “

Nos últimos 14 anos, shopping passou por diversas reformas que incluíram modificações na praça da cúpula, na praça de alimentação, no estacionamento e nas alas norte e sul

TRANSFORMAR COM AÇO

Nas diversas reformas de centro comercial em Goiânia, o aço aparece como protagonista

Divulgação Divulgação/Arquitrave

INAUGURADO EM 1981, o Flamboyant é o mais antigo shopping center de Goiás. Ao longo da sua existência, passou por diversas etapas de ampliação e modernização, tornando-se um importante centro de compras e lazer para a população de Goiânia, com mais de 138 mil m2 de área construída.

Apesar de a construção original ter sido realizada em concreto, o aço gradativamente passou a ter um papel de maior destaque na edificação, contribuindo para viabilizar as sucessivas transformações, que sempre contaram com as estruturas em aço para reconfigurar o espaço.

A necessidade de realizar as obras sem comprometer o funcionamento normal do shopping, além da versatilidade do material, sua leveza e a velocidade na execução, foram os fatores essenciais que determinaram a opção pelo material.

Entre as diversas reformas, uma grande expansão foi realizada em 2003, com o obje-

tivo de revitalizar a identidade visual do conjunto comercial e, para isso, 1.200 toneladas de aço foram utilizadas. O terceiro piso da ala sul foi ampliado e uma grande cúpula foi instalada, espaço que hoje é chamado de Praça da Cúpula e recebe exposições. Com 26 m de diâmetro e 8 m de altura, a cúpula foi estruturada a partir de perfis em aço tubulares retangulares. Também foram construídas outras duas abóbadas ao longo do shopping, com estrutura em aço, recebendo fechamento com vidros laminados.

Já em 2006, uma nova ampliação acrescentou 48 mil m2 à área construída do empreendimento, incluindo um novo estacionamento com quatro pavimentos e capacidade para 800 veículos. Nesse período, também houve uma expansão na ala norte do shopping. Para o sistema estrutural, pilares e vigas em aço foram especificados, além das rampas de acesso ao estacionamento, com um consumo de mais de 2 mil toneladas do material.

Estacionamento com capacidade para abrigar 800 veículos foi dimensionado a partir de pilares e vigas laminados em aço

25 &ARQUITETURA AÇO
Sidnei Palatnik

A mais recente

Por fim, a última grande ampliação em aço aconteceu em 2014, quando a ala norte foi revitalizada e passou a contar com mais 11,3 mil m2 de área construída. O projeto completou o piso 3 e revitalizou os pisos 1 e 2 da ala norte e a praça de alimentação da ala oeste. “Com as estruturas metálicas usadas no terceiro andar, não tivemos de realizar reforços nas fundações”, explica o engenheiro Cezar Valmor Mortari, da Irontec Construção Metálica, empresa especializada na fabricação de estruturas metálicas e também responsável pelas alterações. A informação é enfatizada pelo engenheiro Angelos Katopodis, da MK Estruturas Metálicas. Segundo ele, o uso de pilares em aço, de vigas mistas em aço e concreto e de lajes em steel deck, dispensou os escoramentos e foram fundamentais para trazer mais velocidade e qualidade construtiva à obra.

Executar toda a obra em oito meses, sempre com o shopping funcionando, com restrições de horário, barulho e espaço para trabalho; fazer reforços estruturais de pilares e fundações sem interromper a operação das lojas; manter a estanqueidade do prédio;

26 &ARQUITETURA AÇO
Acervo MK Estruturas Metálica Fotos divulgação/Arquitrave

atender às rigorosas normas de segurança foram os principais desafios, “que conseguimos superar com muito sucesso, já que estas são exatamente algumas das vantagens do uso do aço”, complementa Mortari.

Montagem planejada

A montagem das peças, apesar de ocorrer sem entraves, exigiu uma atenção maior da equipe de engenharia na área da praça de alimentação, localizada em uma região central da construção e muito distante das fachadas. “Foi feita a troca da cobertura da praça de alimentação, onde foram instaladas vigas em aço sobre 35 m de vão livre e 12 toneladas de peso, projetadas para receberem fechamento em vidro”, explica Mortari. Para realizar a troca da cobertura, a estrutura antiga foi desmontada e um mezanino em painel wall foi adotado para servir de estrutura provisória e possibilitar o acesso à cobertura pelo lado interno. As peças foram içadas por guindastes e equipamentos de movimentação horizontal do tipo ponte rolante, junto a uma estrutura mecânica de trolleys rolantes laterais possibilitaram a movimentação das vigas mais pesadas até o local de montagem definitiva.

Nos andares inferiores houve uma readequação das áreas, que consistiu na demolição de escadas rolantes, elevadores e uma nova configuração de circulação, mais aberta, de dimensões e visual mais impactantes, introduzindo um conceito arquitetônico mais contemporâneo. “A estrutura metálica projetada assume um papel preponderante, clássico e marcante na nova imagem do prédio”, explica o arquiteto Antônio Cordeiro, da CDC Arquitetos.

O uso da estrutura metálica também trouxe ganhos em termos de sustentabilidade. O arquiteto concebeu lanternins e claraboias generosos com vidros, que diminuíram sensivelmente a incidência de raios ultravioletas e infravermelhos, sem prejuízo à iluminação natural. A alteração, além dos ganhos energéticos, também trouxe reduções significativas nos custos com condicionamento de ar. (N.L.) M

> Projeto arquitetônico: Arquitetura Espacial e CDC Arquitetos

> Área construída: 71.311 m²

> Aço empregado: ASTM A36, ASTM A-572 GR42, ASTM A572 GR50, ASTM A-709 GR 50W, ASTM A345 GR50

> Volume de aço: 4.080 t

> Projeto estrutural: Guiper Engenharia Ltda., Irontec Construção Metálica Ltda., MK Estruturas Metálica Ltda. e Colmeia Consultoria e Projetos Ltda.

> Fornecimento da estrutura de aço: Irontec Construção Metálica Ltda. e Pedra Grande Engenharia Ltda.

> Execução da obra: Toctao Engenharia Ltda. e Dan Hebert Engenharia S.A.

> Local: Goiânia, Goiás

> Conclusão da obra: 2014

A cúpula em aço, instalada no espaço que recebe exposições, tem 26 m de diâmetro e 8 m de altura

27 &ARQUITETURA AÇO
Fotos divulgação/Arquitrave

UNIÃO PERFEITA

Aço viabiliza integração precisa de um novo edifício à unidade já existente do Sesc em Goiânia

INCORPORAR TEATRO, salão de eventos, salas multiuso, consultórios odontológicos, banheiros e vestiários em um edifício já existente foi a demanda do programa de expansão do Sesc Goiânia (GO), em 2014. Os espaços deveriam ser distribuídos de modo racional em uma nova construção de quatro pavimentos, localizada em uma área marcada por um tráfego intenso.

Como o edifício projetado se integraria a outro bloco de cinco andares, também pertencente ao Sesc, a construção deveria ter medidas geométricas precisas para evitar ajustes improvisados. E para tanto, o aço se mostrou a melhor solução.

Na obra, tanto os perfis usados na cravação para a contenção do subsolo como toda a estrutura do prédio, desde a cobertura, lajes em steel deck e até os complementos como escadas, marquises, pergolados e estrutura da pele de vidro, contam com o material. Ao todo, 327 toneladas de aço foram empregadas no local. “Usamos colunas em aço, além de vigas mistas em perfis I solidarizadas às lajes, formando um conjunto

resistente à flexão. O sistema de contraventamentos, também executado em aço, garantiu estabilidade às cargas horizontais. Para as lajes, adotamos o sistema steel deck, o que dispensou qualquer tipo de escoramento durante a construção”, detalha Paulo Sérgio de Souza Ribeiro, diretor técnico da Ferenge Estruturas Metálicas.

Sem transtornos

Além de atender ao dimensionamento e às características peculiares do projeto, o sistema construtivo conferiu precisão e velocidade construtiva à obra, que ficou pronta em um período inferior a dois anos.

“A opção pelo aço também foi essencial para viabilizar uma execução sem os transtornos de ruído e logística dos caminhões betoneiras, comuns na construção convencional em concreto”, lembra o engenheiro Gustavo Henrique de Lima e Silva, assessor técnico do Sesc Goiás. Dessa forma, a ampliação pôde ser realizada ao lado do prédio já existente, que manteve suas atividades normalmente. O uso

Novo edifício de quatro pavimentos foi construído em aço ao lado da unidade do Sesc já existente. Nele, pilares, vigas, lajes, escadas, marquises, pergolados e cobertura contam com o material

Fotos divulgação

da estrutura metálica também minimizou impactos na rotina dos usuários dos prédios públicos e dos moradores do entorno.

Com o aço, as marquises e pérgolas curvas projetadas para as fachadas puderam ser executadas sem grandes dificuldades, dispensando formas e escoramento, integrando-se à estrutura principal por meio de parafusos. Aproveitando as características do aço, a estrutura metálica permite que as vigas sejam mais esbeltas, em comparação com estruturas em concreto, o que resultou em maior leveza e amplitude à nova edificação.

O uso da estrutura em aço viabilizou, ainda, a instalação do teatro entre o térreo e o primeiro pavimento, de modo racional e simples. Para executá-lo, a alternativa foi criar uma treliça-pavimento no nível do segundo pavimento. Assim, foi possível vencer o grande vão de 16 m e ainda contemplar as necessidades técnicas do espaço. “Tínhamos de atender às altas cargas da instalação que atuam na cobertura, disponibilizar espaço para a passagem de grandes dutos de ar-condicionado e também tratar a carga vibratória das atividades de dança na laje que cobre o teatro”, lembra Ribeiro.

Desafio construtivo

Por estar situado na região central da cidade, com ruas estreitas, trânsito intenso e uma densa ocupação, a preocupação com a instalação do canteiro de obras e com o impacto no entorno foi muito grande. “A escolha do aço reduziu os inconvenientes gerados pela obra. As peças produzidas em fábrica chegavam

ao local prontas para montagem, reduzindo a necessidade de canteiros e o trânsito nas imediações”, explica Ribeiro.

Já no que diz respeito à montagem das estruturas, a alternativa para contornar a ausência de espaços amplos foi utilizar uma pequena área anexa ao prédio existente para realizar a expansão da unidade. Por conta da indisponibilidade de área para estoque, as peças eram entregues no canteiro a cada dois dias, na quantidade necessária para o período. Uma rampa foi executada no início da obra para facilitar a entrada dos equipamentos.

Como o guindaste usado na montagem foi posicionado no nível do subsolo e não podia sair do local com a estrutura já montada, outros dois guindastes tiveram de ser usados para retirá-lo do local. “Os últimos ajustes da estrutura foram feitos com o guindaste já do lado de fora da obra”, relembra Gustavo Mendonça dos Santos, proprietário da Engeseg, empresa responsável pela montagem da estrutura metálica.

Além dos perfis I laminados com ligações parafusadas, lajes em steel deck e escadas em aço, a estrutura também contou com estacas metálicas utilizadas para a contenção da escavação. A laje do térreo acabou se fundindo às estacas resultando em uma solução que também serviu como travamento da contenção.

“O novo prédio tem ambientes mais amplos, maior número de garagens, hall com pé-direito duplo e fachadas de vidro. Isso só foi possível em função da opção pela estrutura metálica”, diz Santos. (G.C.) M

Colunas em aço e vigas em perfis I solidarizados às lajes em steel deck foram especificadas para a obra, localizada em um terreno de pequenas dimensões

> Projeto arquitetônico: Griffe Arquitetura Ltda.

> Área construída: 6.116,76 m²

> Aço empregado: ASTM A572 GR50 nas vigas, colunas e contraventamentos; chapas

ASTM A-572 GR 42

> Volume de aço: 327 t

> Projeto estrutural: Ferenge

Soluções em Estruturas

Metálicas

> Estrutura de aço: Dagnese

Estruturas Metálicas

> Montagem da estrutura: Engeseg Estrutural Ltda.

> Execução da obra: Âncora

Engenharia Ltda.

> Local: Goiânia, GO

> Conclusão da obra: 2014

29 &ARQUITETURA AÇO
Fotos divulgação

SOFISTICADO E MODERNO

Rede de restaurantes aposta em novo visual ao inaugurar casa em Goiânia

Fachadas envidraçadas exibem contraventamento em aço aparente. Outras estruturas metálicas, como escadas, pilares e vigas de alma cheia podem ser observadas do interior do local

COM MAIS DE 20 UNIDADES no Brasil, o restaurante Coco Bambu chegou a Goiânia em 2014. Instalado na área externa do shopping Flamboyant, o espaço idealizado pela arquiteta Rachel Fechina apresenta arquitetura moderna e elegante. Apesar das primeiras casas da rede cearense seguirem uma arquitetura praiana e tropical, a expansão da marca permitiu a flexibilização da proposta original, incluindo criações mais sofisticadas. A unidade de Goiânia segue essa premissa, em um projeto no qual o aço, o vidro e a madeira têm papel de destaque.

Construído totalmente em aço em uma área de quase 2 mil m2, o restaurante, com capacidade para 500 pessoas, conta com quatro pavimentos e está dividido em subsolo, térreo e dois andares superiores – estes suportados por pilares, vigas e contraventamentos em aço aparentes. Enquanto a combinação de estruturas metálicas e vidro garantem um

aspecto moderno ao local, os elementos em madeira adotados no projeto conferem um ar aconchegante ao ambiente.

Segundo a arquiteta responsável pelo projeto, além do aspecto estrutural, o aço foi escolhido também como uma forma de expressão da linguagem arquitetônica. “Exploramos a estrutura metálica aparente e o uso de revestimentos que remetem ao natural e orgânico. Na face externa, é possível avistar um sistema de contraventamento em uma das fachadas envidraçadas. As estruturas em aço, como escadas, pilares e vigas de alma cheia, podem ser observadas do interior do restaurante”, acrescenta a profissional.

A opção pelo material permite que as estruturas possam ser desmontadas e reutilizadas pelo estabelecimento no futuro, caso o mesmo opte por transferir a unidade de endereço. Outras características desse sistema construtivo, reconhecido por proporcionar

30 &ARQUITETURA AÇO
Leandro Moura/divulgação
Fotos Ricardo Lima/divulgação

uma obra mais limpa, veloz e com apelo estético marcante, também foram importantes para a decisão. “O restaurante foi concluído em apenas oito meses. E isso entre contenção, escavação, execução da estrutura, obra civil e acabamentos. Apenas com o aço conseguiríamos realizar essa obra de forma tão rápida”, diz o sócio do Coco Bambu de Goiânia, Bruno Vasconcelos.

O engenheiro estrutural Paulo Sérgio Ribeiro, que participou do projeto, reforça: “a necessidade era por algo moderno e que permitisse a redução dos custos com revestimentos.” Segundo ele, a solução adotada contribuiu, ainda, para reduzir riscos, uma vez que a obra em aço, por se tratar de um sistema industrializado, tem preço, prazo e qualidade definidos e controlados.

“Usamos perfis laminados e soldados nas colunas em função das cargas de até 170 toneladas de compressão. Já as chapas e acessórios de ligações utilizaram o aço ASTM A36”, diz Ribeiro.

As vigas em aço vencem vãos de até 10 m e, na avaliação do engenheiro Ribeiro, trabalhar com esses vãos em pavimentos com 3 m de altura, permitindo a passagem das instalações necessárias sem comprometer o pé-direito útil da edificação, foi o maior desafio do projeto. “Trabalhar com alturas de vigas não naturais para o vão poderia implicar em deformações e vibrações inaceitáveis. Por isso, técnicas como o rearranjo da disposição das vigas e o uso de treliça-pavimento e de contraflechas possibilitaram o sucesso da obra”, afirma o engenheiro. As lajes são em steel deck, unidas às vigas metálicas por meio de conectores do tipo stud bolt, com estabilidade horizontal garantida por meio de contraventamentos. O sistema foi fundamental para proporcionar rapidez construtiva, pois, ao dispensar escoramentos, permitiu que o trabalho fosse realizado de forma simultânea em vários pavimentos. (N.L.) M

> Projeto arquitetônico: Rachel Fechina

> Área construída:

1.974,89 m²

> Aço empregado: laminados ASTM A36 e ASTM 572 GR50

> Volume de aço: 94 t

> Projeto estrutural: Ferenge Soluções em Estruturas

Metálicas

> Fornecimento da estrutura de aço: Globsteel

Engenharia Ltda.

> Execução da obra: Globsteel Engenharia Ltda.e Conenge

Construções e Engenharia Ltda.

> Local: Goiânia, GO

> Conclusão da obra: 2014

32 &ARQUITETURA AÇO
Uso de estruturas metálicas totalmente desmontáveis conferem flexibilidade ao projeto, que pode ser montado em outro local, em caso de necessidade
28/06/2013 03/07/2013 10/07/2013 26/07/2013 26/07/2013
Fotos Bruno Vasconcelos/divulgação Fotos Leandro Moura/divulgação

DOMO DE AÇO

Arcos metálicos permitem execução simultânea da cobertura e demais elementos de ginásio de esportes, reduzindo o prazo da obra pela metade

PARA ACELERAR AO MÁXIMO a construção do ginásio poliesportivo Professor Aecim Tocantins, em Cuiabá (MT), os responsáveis pelo projeto arquitetônico optaram por dissociar a cobertura metálica das edificações em concreto – como arquibancadas e vestiários, além da quadra de esportes propriamente dita –, de modo que esses dois componentes fossem completamente autônomos.

“Toda a estrutura da cobertura e das rampas de acesso foi projetada, fabricada e montada em paralelo ao processo construtivo dos demais elementos do ginásio, o que reduziu o nosso cronograma pela metade”, explica o arquiteto José Roberto Andrade, do escritório Arqprojet Arquitetura e Planejamento, que elaborou o projeto arquitetônico do ginásio.

Contratado pela Secretaria de Esportes do Governo do Mato Grosso, o empreendimen-

to compreendia um ginásio que atendesse à demanda de esportes indoor – sobretudo o voleibol, já que a intenção, na época, era sediar alguns jogos da Liga Mundial de Vôlei. Portanto, era fundamental satisfazer toda a normatização internacional do esporte e, principalmente, entregar a obra sem atrasos.

“Decidi trabalhar com um domo, uma cobertura em formato de cúpula, apoiada em quatro grandes arcos metálicos – dois arcos principais e dois laterais”, lembra Andrade. A ideia, de acordo com o arquiteto, era tirar partido dos arcos de maneira que sua percepção externa evidenciasse sua volumetria. Em parceria com a Multimetal, empresa responsável pelo projeto de estrutura metálica, foi possível dimensionar as seções dos arcos e viabilizar a solução arquitetônica.

O acesso ao ginásio se dá por rampas metálicas atirantadas aos arcos laterais. Os tirantes

Grandes arcos em aço suportam a cobertura do ginásio e os tirantes que sustentam as rampas de acesso

34 &ARQUITETURA AÇO
Divulgação

> Projeto arquitetônico: Arqprojet Arquitetura & Planejamento Ltda.

> Área construída: 15.430,83 m² (área total)

> Aço empregado: ASTM A-709

GR50W

> Volume de aço: 780 t

> Projeto estrutural: Multimetal Engenharia e Montagem de Estruturas Ltda.

> Fornecimento da estrutura de aço: Multimetal Engenharia e Montagem de Estruturas Ltda.

> Execução da obra: Lotufo Engenharia e Construções Ltda.

> Local: Cuiabá, MT

> Conclusão da obra: 2007

metálicos, fixados no bordo externo das rampas, contribuem para o preenchimento visual das laterais da construção. “As rampas metálicas atirantadas uniram, desse modo, a solução estrutural e o equilíbrio estético.”

O projeto arquitetônico previu que os arcos se encontrassem em dois momentos, apoiados em blocos de fundação aparentes, executados em concreto, que revelam o apoio da estrutura da cobertura. “Essas fundações, vale destacar, são independentes do restante das fundações do ginásio.”

Execução simultânea

Com vão livre principal de cerca de 135 m, a instalação dos arcos exigiu duas torres de montagem. Cada um dos arcos principais foi composto por três segmentos, apoiados e travados com o auxílio das tor-

res para evitar movimentações. O projeto feito pela Multimetal previu o comportamento das estruturas durante a execução dos serviços de içamento e montagem.Ao todo, foram empregadas 780 toneladas de aço. Concluído o travamento, telhas duplas de perfil trapezoidal, do tipo sanduíche e preenchidas com isolante termoacústico, foram posicionadas sobre os arcos. Por fim, foram instaladas as rampas metálicas atirantadas.

Simultaneamente, outra equipe executava as edificações em concreto, com o uso intensivo de pré-fabricados. Os fechamentos foram efetuados com blocos de concreto aparente e elementos vazados compuseram o sistema de ventilação.

“Trabalhamos muito pouco com reboco. Estruturas aparentes geralmente demandam maiores cuidados de manutençao”, complementa Andrade. (E.C.L.) M

35 &ARQUITETURA AÇO
JLSiqueira/ALMT

RAPIDEZ E BAIXO CUSTO

Aço vence vãos de até 25 m e possibilita entrega de loja em apenas nove meses

A LOJA DA REDE de supermercados Atacadão, em Várzea Grande (MT), ficou pronta em apenas nove meses graças ao uso do aço. O material, que divide a cena com lajes e alguns pilares em concreto, foi crucial para atender não apenas a um cronograma enxuto, mas também para viabilizar o layout do empreendimento, que tradicionalmente apresenta amplas áreas livres, marcadas por grandes vãos, destinadas à operação da loja.

No projeto, que conta com vãos de 25 m, longarinas e tesouras treliçadas foram posicionadas a cada 8,33 m para reduzir a quantidade de pilares dentro da loja, assegurando, com isso, amplitude e leveza ao interior da construção. “Com a solução estrutural adotada na cobertura, conseguimos reduzir em 25% a quantidade de pilares utilizados na obra”, afirma Rafael Hoffmann Ribeiro, diretor técnico da Projesul Engenharia.

Ao todo, foram utilizados apenas seis pilares internos, viabilizando a execução de uma área de loja ampla e livre, com 6.255 m2. A redução do número de pilares resultou em um espaço onde a movimentação dos paletes de

mercadorias e a locomoção dos clientes pode acontecer com mais facilidade.

Para garantir um rígido controle de custos – um ponto crítico para o cliente –, foi preciso empenho de todos os envolvidos na obra na busca de soluções que ajudassem a reduzir os gastos com material. Neste ponto, Ribeiro relata a contribuição do projeto arquitetônico. “Algumas diretrizes na arquitetura facilitaram para que tivéssemos uma obra econômica e com pouca variação de tipos de peças. O fato de optarmos por terças contínuas também foi importante para reduzir os custos da obra”, explica.

Segundo ele, o uso de terças contínuas em perfis Z reduziram o consumo de aço em 18%, em comparação às terças metálicas convencionais. “A diferença de peso entre um sistema e outro para essa obra foi de aproximadamente 14 mil quilos, o que se refletiu em uma economia de aproximadamente R$ 120 mil em material e mão de obra”.

Ao todo, 205 toneladas de aço foram usadas nas vigas de transição e nos perfis formados

> Projeto arquitetônico: Rede Atacadão

> Área construída: 14.052 m²

> Aço empregado: terças Z, perfis formados a frio ASTM A-572 GR42 e perfis laminados ASTM A572 GR50

> Volume de aço: 205 t

> Projeto estrutural: Projesul Soluções em Estrutura Metálica

> Estrutura de aço: Engeseg Estrutural Ltda.

> Execução da obra: Orca Construtora Ltda.

> Local: Várzea Grande, MT

> Conclusão da obra: setembro de 2015

Solução estrutural adotada na cobertura permitiu reduzir em 25% a quantidade de pilares utilizados, liberando mais espaço para a operação da loja

&ARQUITETURA AÇO
36

a frio das terças, treliças e chapas do projeto. Como as peças são pré-fabricadas e chegam direto à obra no momento da montagem, a solução estrutural em aço também trouxe reduções significativas nos custos com transporte e armazenagem em canteiro.

Trabalho no canteiro

O curto espaço de tempo para executar a montagem da estrutura exigiu que fosse realizada a pré-montagem de algumas peças no canteiro. Por conta da dimensão do vão entre pilares, de 25 m, as treliças e seus elementos complementares, como as terças, estabilizadores e contraventamentos, tiveram de ser interligados ainda no solo e içados como um módulo, até a cobertura, com o auxílio de guindastes de grande capacidade. “O padrão adotado para o transporte é de peças com até 12 m. Portanto, para atender à necessidade da obra, tivemos de executar as emendas no canteiro”, explica o profissional.

A estrutura metálica foi projetada e fabricada com vistas a obter-se a menor quantidade possível de peças, o que otimizou o transporte e, como consequência, aumentou a velocidade de execução da etapa de montagem, reduzindo também a necessidade de ligações a ser executadas no canteiro de obra. Todas as ligações foram parafusadas, tanto nas estruturas principais como nas secundárias. “Para essa obra,

com a presença de grandes vãos, a estrutura metálica mostrou-se economicamente mais vantajosa do que construção em concreto pré-moldado”, ressalta Gustavo Mendonça dos Santos, proprietário da Engeseg, empresa responsável pelo fornecimento e montagem da estrutura metálica.

O resultado atendeu tão bem às expectativas do cliente que, desde então, outras oito lojas da rede já foram executadas com a solução estrutural projetada pela Projesul. (G.C.) M

No projeto, que conta com vãos de 25 m, longarinas e tesouras treliçadas foram posicionadas a cada 8,33 m para reduzir a quantidade de pilares dentro da loja

37 &ARQUITETURA AÇO
Fotos divulgação Divulgação

INSPIRADO NA NATUREZA

Árvores de aço que remetem à paisagem do Pantanal marcam a identidade de shopping center

INAUGURADO NO SEGUNDO semestre de 2013, o shopping Bosque dos Ipês, em Campo Grande (MS), foi pensado para ser um importante centro de compras e lazer na cidade. O empreendimento deveria apresentar, em seus 58 mil m2 de área construída, características como formas contemporâneas, referências às riquezas naturais da região do Pantanal, além de uma operação eficiente garantida pela certificação de sustentabilidade LEED (Leadership in Energy and Environmental Design), na categoria Silver.

O projeto, de autoria dos arquitetos do escritório norte-americano RTKL Associates em parceria com o escritório local Madeira & Madeira, preservou valores caros a esse tipo de construção, como boa circulação e ótima visibilidade às lojas. Ao mesmo tempo, buscou imprimir personalidade com elementos

que remetem à natureza local. Os painéis das fachadas, por exemplo, trazem tons e texturas que evocam os solos avermelhados típicos da região Centro-Oeste do país. Internamente, os granitos utilizados no piso receberam desenhos com representações dos rios do Pantanal. Muitas das estruturas verticais, especialmente os pilares em Y, lembram a forma de árvores.

“A estratégia foi construir um ambiente que seja um pano de fundo interessante para a experiência do varejo”, explica o arquiteto Dan Freed, da RTKL. De acordo com o arquiteto, outro objetivo almejado foi garantir transparência e dar ênfase à luz do dia e à iluminação noturna, daí as amplas superfícies envidraçadas, com destaque para as três cúpulas distribuídas sobre cada uma das praças do centro de compras e claraboias nos corredores de circulação.

Cúpula metálica em formato de cone envidraçado cobre um vão livre de 40 m, tem pé-direito de 25 m e é o ponto alto do projeto. Elemento está estruturado sobre pilares de aço em Y

Árvores de aço

O centro comercial com cerca de 160 lojas foi construído com dois pavimentos e distribui-se por três blocos conectados por uma praça principal, posicionada sob uma cúpula de vidro. Composta por um cone envidraçado, skylight lateral e 16 claraboias, a cúpula cobre um vão livre de 40 m, tem pé-direito de 25 m e é o principal ponto de destaque do projeto.

O elemento é estruturado sobre pilares em aço em formato de Y, e tem atirantamento radial convergindo em um pivô central.

Em todo o conjunto, o projeto do Bosque dos Ipês priorizou o uso de estruturas em aço para atender a três condições objetivas: a necessidade de reduzir o prazo de execução da obra, o interesse em mitigar desperdícios para favorecer a obtenção do selo de construção verde e, especialmente, para alcançar a plasticidade e a esbelteza exigidas no projeto arquitetônico.

“A tradução do conceito da arquitetura para a estrutura metálica resultou em um projeto com muitas variáveis geométricas e, por consequência, em alguns desafios”, comenta a arquiteta Tainá Marra Batista, da Globsteel, empresa responsável pela execução da estrutura metálica.

Ela cita como exemplos os pilares das marquises de entrada do shopping, que se parecem com troncos de árvores. Para produzir essas peças de seções não convencionais, foram utilizados alguns métodos de caldeiraria. “As três coberturas dos malls e dos acessos possuem formato paraboloide. Para a perfeita execução, foi preciso criar peças especiais em aço, que possibilitaram a angulação da estrutura de sustentação dos vidros”, acrescenta Tainá.

Na etapa de projeto, também foi necessário um esforço conjunto para a compatibilização de possíveis conflitos entre os componentes. “À medida que as estruturas metálicas eram detalhadas, seguiam para aprovação do cliente, que verificava possíveis interferências com outros sistemas – cobertura, fechamento, redes elétricas, ar-condicionado, vidros, entre outros”, conta a arquiteta. Além disso, as estruturas das claraboias nos malls, as cúpulas, bem como os

pilares em formato arbóreo das fachadas norte e sul foram pré-montadas para a visualização antecipada de possíveis interferências.

Além da cobertura, o aço está presente no Bosque dos Ipês em pergolados, fechamentos laterais do átrio central, marquises, escadas, guarda-corpos e esquadrias. (J.N.) M

> Projeto arquitetônico:

Dan Freed – Callison RTKL

> Área construída: 58 mil m²

> Aços empregados: chapas ASTM

A-709 GR50W e perfis

laminados ASTM A572 GR50

> Volume de aço: 400 t

> Projeto estrutural: RCM

Estruturas Metálicas

> Estrutura de aço: Globsteel

Engenharia Ltda. e Multimetal Engenharia e Montagem de Estruturas Ltda.

> Construção: MPC

Engenharia Ltda.

> Local: Campo Grande, MS

> Conclusão da obra: 2014

39 &ARQUITETURA AÇO
Fotos Divulgação/Globsteel

LOGÍSTICA EFICAZ

Aço é aliado na construção de pontes na região Centro-Oeste do país

PARA APOIAR O CONTÍNUO crescimento do agronegócio, base da economia da região Centro-Oeste, é indispensável o investimento em infraestrutura, especialmente na melhoria das condições de transporte para facilitar o acesso às novas fronteiras de produção e para o escoamento da riqueza produzida.

O governo do Mato Grosso, de acordo com informações da Secretaria de Estadual de Infraestrutura, vem contratando obras como, por exemplo, a execução de 31 pontes de estrutura mista para substituir as antigas construções em madeira em um trecho de cerca 100 quilômetros na rodovia MT-060, a

Transpantaneira, localizada em uma região que alterna períodos de seca e de cheia ao longo do ano.

A Bimetal foi a empresa contratada para o fornecimento da estrutura em aço das pontes, com extensão variável entre 10 e 30 m. “Naquela região pantaneira, estruturas mais leves – como as construídas em aço – trazem muitas vantagens, sobretudo no que se refere ao transporte”, explica Abner Vieira Martins, coordenador de engenharia da empresa.

Segundo ele, o peso da estrutura metálica de uma ponte de 20 m de extensão é de cerca de 10 toneladas, de forma que um único

Ponte de 20 m de extensão pesa cerca de 10 toneladas e tem seu transporte favorecido em função do uso do aço

40 &ARQUITETURA AÇO
Divulgação

Estruturas mais leves e em aço levam vantagem sobre o concreto nas regiões pantaneiras

caminhão pode entregar as peças para até três pontes nos seus respectivos canteiros. “E isso em uma única viagem, o que barateia e acelera o processo”, conclui.

O solo instável da região pantaneira é outro ponto que soma a favor das estruturas em aço, já que exige longarinas e transversinas mais leves na hora do lançamento. “O concreto protendido ou pré-moldado tem um peso muito mais elevado, o que inviabiliza a operação”, explica Martins.

As pontes contratadas para a região foram projetadas com fundações em concreto, tabuleiros em steel deck com 20 cm de altura e conectores de cisalhamento do tipo U dobrado. Longarinas em perfis soldados com chapas estruturais em aço e transversinas em perfis do tipo cantoneira laminada dispostas em X e K também foram usadas. “Nor-

malmente, utilizam-se lajes pré-moldadas ou maciças, mas a solução empregada garantiu agilidade e trouxe mais praticidade.”

Executadas as fundações, as longarinas e transversinas – que foram montadas em solo, em terreno próximo à obra – foram lançadas com guindaste. “Uma vez posicionada a estrutura sobre a mesoestrutura, colocadas as lajes steel deck e feitos os arremates, instalaram-se as armações necessárias [armadura de fissuração e de reforço], para combater os momentos negativos da estrutura”, descreve o engenheiro. Em seguida, o concreto foi lançado em segmentos, já que foram previstas juntas de dilatação a cada 5 m e, por fim, o nivelamento do tabuleiro com a pista foi feito para que a ponte pudesse ser liberada. Entre a data de projeto e a execução, a obra levou menos de um ano para ficar pronta. (E.C.L.) M

> Projeto arquitetônico: Construtora

Santa Lúcia Ltda. e Construtora HG3

> Área construída: 2473,8 m² (nas 31 pontes)

> Aço empregado: perfis e chapas estruturais ASTM A572 GR50 e parafusos de alta resistência

ASTM A325

> Volume de aço: 296 t (nas 31 pontes)

> Projeto estrutural: Bimetal

Indústria Metalúrgica Ltda.

> Estrutura de aço: Bimetal

Indústria Metalúrgica Ltda.

> Execução da obra: Construtora Santa Lúcia Ltda. e Construtora HG3

> Local: Rodovia Transpantaneira MT-060, MT

> Conclusão da obra: 2016

41 &ARQUITETURA AÇO
Fotos divulgação

EXPANSÃO EVIDENTE

Em franco crescimento no mercado da região Centro-Oeste do país, o uso de estruturas em aço tem conquistado cada vez mais adeptos entre os profissionais e empresários da construção civil, por suas características e vantagens construtivas. A variedade de projetos residenciais, comerciais e de infraestrutura que fazem uso do material comprova esta realidade. Para exemplificar, trazemos, a seguir, uma diversificada seleção de casos emblemáticos já publicados em edições anteriores de Arquitetura & Aço, os quais fazem bom uso do aço em sua concepção. Confira!

Ponte JK, Brasília, DF

> Projeto arquitetônico: Alexandre Chan • Aço empregado: patinável de maior resistência à corrosão • Conclusão da obra: 2002

Sinuosa e com três arcos estaiados, a Ponte JK, de autoria do arquiteto Alexandre Chan, sobre o lago Paranoá, em Brasília, liga o Setor Habitacional Individual Sul ao Centro do Plano Piloto e serve de marco arquitetônico da cidade. Com 720 m de extensão por 24 m de largura, conta com quase 14 mil toneladas de aço em sua composição. Os arcos diagonais cumprem a função de sustentar o tabuleiro central por meio de estais formados por cordoalhas metálicas, e conferem um aspecto arrojado e artístico à obra, inaugurada em 2002. Segundo o arquiteto, a escolha do aço como material predominante possibilitou a utilização de chapas em dimensões especiais, minimizando as perdas e viabilizando a padronização do projeto.

42 &ARQUITETURA AÇO ESPECIAL: REFERÊNCIAS
CRIATIVAS
EDIÇÃO 42
Joana França

Fórum do Meio Ambiente do Distrito Federal, Brasília, DF

> Projeto arquitetônico: Zanettini Arquitetura e Sandra Henriques, TJDFT • Área construída: 6.282 m² • Conclusão da obra: 2011

Elaborado pela Zanettini Arquitetura, em coautoria com a arquiteta Sandra Henriques, do TJDFT, o Fórum do Meio Ambiente do Distrito Federal, em Brasília, demorou dois anos para ficar pronto e teve sua estrutura projetada em aço. O material foi importante para trazer dinamismo à construção, reduzir o tempo de obra e minimizar o uso de fôrmas e escoramentos. Nos 6.282 m² de área construída, cinco pavimentos abrigam oito varas da Fazenda Pública. A estrutura em aço é aparente, com lajes em steel deck. O projeto conta com telas de sombreamento em aço inoxidável instaladas a 80 cm da fachada. Por fim, há na cobertura, simultaneamente ao sistema ajardinado, a presença de telhas metálicas zipadas simples, com 1 mm de espessura.

43 &ARQUITETURA AÇO
BRASÍLIA EDIÇÃO 28
Fotos divulgação

REFERÊNCIAS CRIATIVAS

Estádio Nacional de Brasília (Mané Garrincha), Brasília, DF

> Projeto arquitetônico: Castro Mello Arquitetos • Área construída: 214 mil m² • Conclusão da obra: 2013

De autoria do escritório Castro Mello Arquitetos, o Estádio Nacional de Brasília, antigo Mané Garrincha, tem capacidade para 71 mil pessoas e teve sua cobertura projetada em aço com a ajuda de 6,5 km de cabos metálicos. A estrutura tensionada encontra-se apoiada sobre três linhas concêntricas com 288 pilares cilíndricos de concreto, de 36 m de altura. Para o acabamento de 90 mil m², na porção mais central, uma membrana especial de PTFE (politetrafluoretileno), além de placas de aço, concreto e vidro foram usados. O aço inoxidável marca presença nos peitoris da arquibancada, gradis e perfis de fixação dos vidros de segurança.

Aeroporto Internacional de Brasília, Brasília, DF

> Projeto arquitetônico: Sérgio Roberto Parada • Ampliação: Corporación América e Engevix • Área construída: 110 mil m² • Conclusão da obra: 2014 (última expansão)

O aeroporto de Brasília é um dos três maiores do país, com trânsito de 17,5 milhões de passageiros em 2016. Para atender a esta demanda, a utilização do aço foi essencial, possibilitando a execução de grandes obras de modernização e ampliação, sempre mantendo o aeroporto em pleno funcionamento. Inicialmente, o projeto do arquiteto Sérgio Parada, executado a partir de 1990, conferiu ao terminal a sua forma atual e promoveu uma grande transformação, envolvendo o uso de 2.200 toneladas de aço. Já na última expansão, conduzida pela Corporación América e Engevix, o aço novamente aparece em grande destaque, com consumo de 5.200 toneladas do material. "Tínhamos 18 meses para executar o projeto. Como também precisávamos vencer grandes vãos, optamos pela solução que fazia o uso de peças mais leves e com menores dimensões, além da rapidez na execução", explica a Inframerica, empresa que administra o aeroporto.

44 &ARQUITETURA AÇO ESPECIAL:
EDIÇÃO 37 Divulgação
Fotos
EDIÇÃO 45
cedidas por CPC ESTRUTURAS

EDIÇÃO

Sede Nacional Sebrae, Brasília, DF

> Projeto arquitetônico: Alvaro Puntoni, Luciano Margotto, João Sodré e Jonathan Davies • Área construída: 25 mil m² • Conclusão da obra: 2010

Com 25 mil m² distribuídos em seis pavimentos, incluindo dois subsolos, a Sede Nacional do Sebrae em Brasília (DF) adota soluções mistas em concreto e aço em sua estrutura. “Sem o aço, seria impossível chegar a esse tipo de configuração”, diz Luciano Margotto, da República Arquitetura. Ao todo, 550 toneladas de aço foram utilizadas no projeto. O pavimento de escritórios conta com duas treliças longitudinais espaçadas 18 m entre si e apoiadas em pórticos transversais, com modulação de 7,5 m. As treliças, vinculadas às empenas laterais, estão apoiadas a cada 15 m em pilares de concreto, que saem dos níveis inferiores. O aço é destaque na fachada, onde chapas perfuradas protegem a edificação da iluminação direta e ajudam a controlar a temperatura interna do edifício. O material também surge na cobertura do pátio, com duas vigas-vagão e vigamento secundário: as primeiras têm 3,6 m de altura e vencem o vão principal de 36 m de comprimento.

Casa pré-fabricada em aço, Brasília, DF

> Projeto arquitetônico: Sérgio Roberto Parada Arquitetos Associados • Área construída: 400 m² • Conclusão da obra: 2013

Projetada pelo arquiteto Sérgio Roberto Parada, a casa pré-fabricada foi idealizada em aço, com fechamentos em vidro e painéis industrializados. Na construção, os conceitos da pré-fabricação e da sustentabilidade são evidentes, podendo a mesma ser montada e desmontada com completo aproveitamento dos seus componentes. Para a vedação de paredes, assim como o suporte dos pisos, foram adotados painéis sanduíches com duas placas cimentícias. As estruturas em aço utilizadas somam 27,6 toneladas do material.

45 &ARQUITETURA AÇO
BRASÍLIA
28
EDIÇÃO
42
Edgard Cesar/divulgação Fotos Nelson Kon

REFERÊNCIAS CRIATIVAS

Centro de Distribuição Pague Menos, Hidrolândia, GO

> Projeto arquitetônico: LDBW – Luiz Deusdara Building Workshop • Área construída: 19.856 m² • Conclusão da obra: 2013

Totalmente desmontável, o centro de distribuição da rede Pague Menos, em Hidrolândia (GO), foi concebido com estruturas e fechamentos em aço."Optamos pela solução metálica porque queríamos que o edifício fosse inteiramente reciclável e, também, que ficasse pronto em um ano", explica o arquiteto Luiz Deusdara, do escritório LDBW – Luiz Deusdara Building Workshop. O centro de distribuição tem pé-direito de 12,2 m. Os pilares de aço, em perfis I, foram distribuídos conforme a modulação projetada, contemplando vãos de até 28 m. "Queríamos o mínimo possível de pilares para garantir a distribuição mais eficaz dos corredores de abastecimento", explica Deusdara. Ao todo, 867 toneladas de aço galvanizado foram usadas no projeto.

Agências Caixa, Posse, GO

> Projeto arquitetônico: Fox Engenharia • Área construída: 640 m² • Conclusão da obra: 2012

EDIÇÃO 42

Com uma área útil de 640 m2, a agência da Caixa Econômica Federal no município de Posse (GO), a 400 km de Brasília, levou apenas 60 dias para ficar pronta. A rapidez na execução do projeto se deu pelo sistema construtivo empregado, o light steel frame, composto por perfis leves conformados a frio em aço galvanizado, cujas paredes estruturais suportam o peso da cobertura dispensando o uso de pilares e vigas. Na agência, junto às paredes, foram instaladas treliças verticais a cada 6 m para ajudar no contraventamento. As paredes e tesouras são formadas por perfis U enrijecidos, em aço, com espessuras que variam entre 0,80, 0,95 e 1,25 mm. No total, são 12 m de vão livre para a estrutura das tesouras, com 85 kg de sobrecarga sobre elas, e paredes com 5 m de altura. A altura máxima da agência chega a 7 m. Paredes, laje e cobertura são constituídas com os mesmos perfis.

46 &ARQUITETURA AÇO ESPECIAL:
EDIÇÃO 44
Fotos Marko/divulgação Fotos Divulgação

Centro Cultural da Universidade Federal de Goiás, Goiânia,

GO

> Projeto arquitetônico: Fernando Simon e Suzy Simon • Área construída: 2.800 m² • Conclusão da obra: 2010

EDIÇÃO 29

Para oferecer atividades como música, dança, artes cênicas, artes plásticas e oficinas experimentais à comunidade universitária, o Centro Cultural da Universidade Federal de Goiás (UFG), em Goiânia (GO), passou por uma revitalização em 2010, na qual o aço teve um importante papel. Dele, a estrutura original em concreto pré-moldado e alvenaria cerâmica foi mantida, mas novas estruturas metálicas foram planejadas para as fachadas, mezaninos, passarelas, forros, painéis e demais instalações. O conjunto é formado por cubos diagonais inseridos nas laterais de um prisma retangular apoiado no solo. “Temos um cubo vermelho, um amarelo e um prisma retangular com envelopamento metálico cinza”, afirma o arquiteto Fernando Simon. O sistema tem fechamento com telhas em aço , evidenciando a volumetria simples do conjunto.

Escultura em aço na Praça Latif Sebba, Goiânia, GO

> Projeto arquitetônico: Marco Antônio Amaral • Aço empregado: patinável de maior resistência à corrosão • Conclusão da obra: 2007

Implantada na Praça Latif Sebba, a Praça do Ratinho, a escultura projetada pelo arquiteto Marco Antônio Amaral foi feita com perfis formados a frio revestidos com chapas metálicas perfuradas. Seus três elementos em forma de lança apontam para diferentes sentidos – Leste, Sul e Oeste – em uma referência às direções do crescimento da cidade. Na obra, que pesa 20 toneladas e mede 56 m de altura, cada uma das torres pontiagudas se apoia em outras duas, em intersecção. A opção pelo aço veio, em grande parte, para reduzir o transtorno nas vias públicas durante a obra. Contando com a escavação, a fase mais trabalhosa, toda a execução pôde ser realizada em apenas 120 dias. Para Amaral, porém, as questões estéticas também foram decisivas na escolha do material: “o aço possibilitou a criação de efeitos visuais distintos, de acordo com o período do dia”.

47 &ARQUITETURA AÇO
GOIÁS
14
EDIÇÃO
Helio Sperandio Divulgação

ESPECIAL: REFERÊNCIAS CRIATIVAS

MATO GROSSO

Arena Pantanal, Cuiabá, MT

> Projeto arquitetônico: GCP Arquitetos e Grupo Stadia • Área construída: 77 mil m² • Conclusão da obra: 2014

EDIÇÃO 37

A Arena Pantanal, de Cuiabá (MT), foi projetada para receber apresentações esportivas, culturais e de entretenimento. Seus autores, o GCP Arquitetos e Grupo Stadia, realizaram o projeto em parceria com o escritório alemão GMP Architekten, especializado em arquitetura esportiva para atender, principalmente, à Copa do Mundo. Segundo o arquiteto Sérgio Coelho, da GCP Arquitetos, o aço foi escolhido em razão das suas possibilidades estéticas e por permitir a flexibilização de capacidade no estádio. “O aço presente na cobertura metálica proporcionou leveza ao projeto. A flexibilização da capacidade, de 44 mil lugares, para 30 mil lugares, também foi um diferencial”, diz Coelho. Na Arena, as arquibancadas são divididas em quatro módulos independentes, com estruturas em aço revestidas com membranas perfuradas, que podem ser parcialmente desmontadas para serem reaproveitadas em outros locais.

48 &ARQUITETURA
AÇO
Fotos Assessoria Secitec

Aquário do Pantanal, Campo Grande, MS

> Projeto arquitetônico: Ruy Ohtake Arquitetura e Urbanismo • Área construída: 17 mil m²

• Conclusão da obra: 2015

Dentro do Parque das Nações Indígenas, o Cepric (Centro de Pesquisa e Reabilitação da Ictiofauna), mais conhecido como Aquário do Pantanal, foi projetado pelo arquiteto Ruy Ohtake em aço e conta com 16 grandes aquários em seu interior, além de outros seis na área externa. Elíptico e alongado, o volume abriga, ainda, o lobby principal além de auditórios, instalações administrativas e espaço para eventos. Sobre a opção pelo aço, Ohtake comenta: “Havia uma preocupação com a sustentabilidade, desde a especificação dos materiais e, também, com aspectos como o reuso adequado de água e a redução do consumo de energia”. No projeto, 500 toneladas de aço foram usadas. Fechamentos em painéis metálicos também foram adotados nas extremidades. A parte central, entretanto, permaneceu translúcida com vidros.

49 &ARQUITETURA AÇO
MATO GROSSO DO SUL EDIÇÃO 42
Fotos Flávio D'Alambert

FUNCIONAL E SUSTENTÁVEL

Academia projetada em aço agrega visual moderno às instalações do clube de engenheiros em Goiânia

Conferir um layout moderno a um espaço dedicado a atividades físicas e ainda executá-lo em um curto prazo foi o desafio da arquiteta Patrícia Domingues Ferreira da Silva ao idealizar a nova academia do Clube de Engenharia de Goiás, em Goiânia (GO). A instalação, que funciona como uma extensão da área já existente no clube para a prática de exercícios físicos, começou a ser construída em maio e, em função das exigências do cliente por uma obra limpa e rápida, está sendo executada totalmente em aço.

“O cliente solicitou uma modificação que se integrasse à arquitetura atual a partir de sistemas construtivos modernos, sustentáveis e que valorizassem a beleza do local. A execução também deveria ser rápida, limpa e não causar transtornos. Foi assim que chegamos ao aço”, conta Patrícia. A escolha pelo material teria se dado também em função de outras propriedades, como durabilidade e versatilidade em casos de adaptações ou requalificação do espaço. Além da estrutura em aço, a obra receberá revesti-

> Projeto arquitetônico: Patrícia Domingues Ferreira da Silva

> Área construída: 197,41 m² (prédio principal) e 28,56 m² (passarela)

> Aço empregado: cantoneiras, perfis formados a frio ASTM A36; laminados ASTM A572 GR50 e parafusos galvanizados ASTM A325 e ASTM A307

> Volume de aço: 14 t

> Projeto estrutural: Irontec Construção Metálica Ltda.

> Fornecimento da estrutura de aço: Irontec Construção Metálica Ltda.

> Execução da obra: Irontec Construção Metálica Ltda.

> Local: Goiânia, GO

> Conclusão da obra: 2018

50 &ARQUITETURA AÇO
Divulgação

mento em vidro laminado e cobertura curva em telha termoacústica. “Temos perfis em aço nos pórticos e pilares, nas peças de até 9 m para as vigas e nas estruturas que farão a sustentação dos vidros. A cobertura também será metálica e termoacústica, com telhas em aço pré-pintado e cartolas separadoras para instalação de midfelt do tipo poliéster”, detalha o engenheiro Cezar Valmor Mortari, da Irontec Construção Metálica Ltda., que responde pela execução do projeto.

De acordo com o engenheiro, a estrutura da academia consiste, basicamente, em um reticulado de pórticos engastados concebidos para ficarem à vista. “Como a intenção era

rejuvenescer o layout do clube, optou-se por um desenho contemporâneo, de visual arrojado e com materiais que trouxessem um apelo sustentável para que a obra possa obter, no futuro, a certificação LEED”, diz Mortari. Apesar de seguir sem entraves na execução até esse momento, o projeto precisou passar por algumas alterações para atender às novas solicitações do cliente. “A princípio, a fachada não teria elementos curvos, mas, quando solicitaram um acréscimo no pé-direito, optamos pela execução de um elemento curvo não só para ampliar o espaço, mas, também, para trazer mais harmonia à concepção”, explica a arquiteta. (E.Q.)

ACONTECE
51 &ARQUITETURA AÇO
“ Com o aço, conseguimos executar um projeto moderno, sustentável e leve. Também garantimos uma obra limpa e agilidade na execução
Fotos divulgação
Divulgação

CONTATOS

> ESCRITÓRIOS DE ARQUITETURA

Arqprojet Arquitetura & Planejamento Ltda. arqprojet@terra.com.br

CDC Arquitetos apcordeiro@cdca.com.br

CoDA Arquitetos www.coda.arq.br

Concessionária Rota do Oeste www.odebrecht.com

Construtora HG3 Eireli www.construtorahg3.com.br

Construtora Santa Lúcia Ltda. engenheiro@santalucialtda.com.br

Dan Freed – Callison RTKL www.rtkl.com

Griffe Arquitetura Ltda. www.griffearquitetura.com.br

Kruchin Arquitetura www.kruchin.arq.br

Mira Arquitetos www.miraarquitetos.com.br

EXPEDIENTE

Patrícia Domingues Ferreira da Silva patricia@tciconstrutora.com.br

Rachel Fechina fechinaarquiteta@gmail.com

Rede Atacadão www.atacadao.com.br

Ruy Ohtake www.ruyohtake.com.br

> PROJETO ESTRUTURAL

Beton Stahl www.betonstahl.com.br

Bimetal Indústria Metalúrgica Ltda. www.bimetal.eng.br

Colmeia Consultoria e Projetos Ltda. www.colmeia.com.br

Ernesto Tarnockzy etj@uol.com.br

Ferenge Soluções em Estruturas Metálicas www.ferenge.com.br

Irontec Construção Metálica Ltda. www.irontec.com.br

Revista Arquitetura & Aço é uma publicação trimestral do CBCA (Centro Brasileiro da Construção em Aço) produzida pela Roma Editora

CBCA: Av. Rio Branco, 108 – 29º andar 20040-001 – Rio de Janeiro/RJ

Tel.: (21) 3445-6332 cbca@acobrasil.org.br www.cbca-acobrasil.org.br

GESTOR: INSTITUTO AÇO BRASIL

Conselho Editorial

Marcelo Chang Baldino – Gerdau

Carolina Fonseca – CBCA

Eneida Jardim – CSN

Humberto Bellei – Usiminas

Silvia Scalzo – ArcelorMittal Tubarão

Revisão Geral

Rosane Bevilaqua

Publicidade

Ricardo Werneck: (21) 3445-6332

Kurkdjian & Fruchtengarten Engenheiros Associados S/S Ltda. www.kfprojetos.com.br

Marco Pedroza e Marco Aurélio Ribeiro www.mettaeng.com.br

MK Estruturas Metálica Ltda. www.mkestruturasmetalicas.com.br

Multimetal Engenharia de Estruturas www.multimetal.com.br

Projesul Soluções em Estrutura Metálica www.projesul.com

RCM Estruturas Metálicas rcm@rcmproj.com.br

> ESTRUTURA METÁLICA

Bimetal Indústria Metalúrgica Ltda. www.bimetal.eng.br

CPC Estruturas www.cpcestruturas.com.br

Dagnese Estruturas Metálicas www.dagnese.com.br

Engeseg Estrutural Ltda. www.grupoengeseg.net

Roma Editora Rua Barão de Capanema, 343, 6º andar CEP 01411-011 – São Paulo/SP Tel.: (11) 3061-5778 cbca@arcdesign.com.br

Direção

Cristiano S. Barata

Coordenação Editorial

Eliane Quinalia

Redação

Globsteel Engenharia Ltda. www.globsteel.com.br

Irontec Construção Metálica Ltda. www.irontec.com.br

Pedra Grande Engenharia Ltda. www.pedragrandeeng.com.br

Medabil Sistemas Construtivos S.A. www.medabil.com.br

Metta Construções Tecnológicas Ltda. www.mettaeng.com.br

Multimetal Engenharia e Montagem de Estruturas Ltda. www.multimetal.com.br

> EXECUÇÃO DA OBRA

Âncora Engenharia Ltda. www.ancoraengenharia.com.br

Conenge Construções e Engenharia Ltda. www.conenge.com

Construtora Costa Feitosa Ltda. www.costafeitosa.com.br

Construtora HG3 Eireli www.construtorahg3.com.br

Construtora Santa Lúcia Ltda. engenheiro@santalucialtda.com.br

Dan Hebert Engenharia S.A. www.danhebert.com.br

Globsteel Engenharia Ltda. www.globsteel.com.br

HTB Engenharia e Construção www.htb.eng.br

Irontec Construção Metálica Ltda. www.irontec.com.br

Lotufo Engenharia e Construções Ltda. www.lotufoengenharia.com.br

Medabil Sistemas Construtivos S.A. www.medabil.com.br

MPC Engenharia Ltda. www.mpc-eng.com.br

Orca Construtora Ltda. www.grupoorca.net

Soltec Engenharia Ltda. www.soltecengenharia.com.br

Toctao Engenharia Ltda. www.toctao.com.br

Endereço para envio de material: Revista Arquitetura & Aço – CBCA Av. Rio Branco, 108 – 29º andar 20040-001 – Rio de Janeiro/RJ

Tiragem: 5.000 exemplares

Distribuídos para os principais escritórios de engenharia e arquitetura do país, construtoras, bibliotecas de universidades, professores de engenharia e arquitetura, prefeituras, associações ligadas ao segmento da construção e associados do CBCA.

André Larcher, Eduardo Luiz Campos Lima, Eliane Quinalia, Gisele Cichinelli, Juliana Nakamura e Nicole Lallée

Revisão Ortográfica

Deborah Peleias

Edição de Arte Cibele Cipola

É permitida a reprodução total dos textos, desde que mencionada a fonte. É proibida a reprodução das fotos e desenhos, exceto mediante autorização expressa do autor.

Agradecemos a todos aqueles que contribuiram para a produção desta edição, fornecendo imagens, informações e comentários sobre as obras publicadas e os processos construtivos.

NÚMEROS ANTERIORES

Os números anteriores da revista Arquitetura & Aço estão disponíveis para download na área de biblioteca do site: www.cbca-acobrasil.org.br

A&A nº 01 - Edifícios Educacionais

A&A nº 02 - Edifícios de Múltiplos Andares

A&A nº 03 - Terminais de Passageiros

A&A nº 04 - Shopping Centers e Centros Comerciais

A&A nº 05 - Pontes e Passarelas

A&A nº 06 - Residências

A&A nº 07 - Hospitais e Clínicas

A&A nº 08 - Indústrias

A&A nº 09 - Edificações para o Esporte

A&A nº 10 - Instalações Comerciais

A&A nº 11 - Retrofit e Outras Intervenções

A&A nº 12 - Lazer e Cultura

A&A nº 13 - Edifícios de Múltiplos Andares

A&A nº 14 - Equipamentos Urbanos

A&A nº 15 - Marquises e Escadas

A&A nº 16 - Coberturas

A&A nº 17 - Instituições de Ensino II

A&A nº 18 - Envelope

A&A nº 19 - Residências II

A&A nº 20 - Indústrias II

A&A Especial - Copa do Mundo 2014

A&A nº 21 - Aeroportos

A&A nº 22 - Copa 2010

A&A nº 23 - Habitações de Interesse Social

A&A nº 24 - Metrô

A&A nº 25 - Instituições de Ensino III

A&A nº 26 - Mobilidade Urbana

A&A nº 27 - Soluções Rápidas

A&A nº 28 - Edifícios Corporativos

A&A Especial - Estação Intermodal de Transporte Terrestre de Passageiros

A&A nº 29 - Lazer e Cultura

A&A nº 30 - Construção Sustentável

A&A nº 31 - Construções para Olimpíadas

A&A nº 32 - Instalações Comerciais II

A&A nº 33 - Hotéis

A&A nº 34 - Shopping Centers

A&A nº 35 - Hospitais e Edificações para a Saúde

A&A nº 36 - Pontes e passarelas

A&A nº 37 - Estádios da Copa 2014

A&A nº 38 - Mobilidade Urbana

A&A nº 39 - Varandas, Mezaninos e Escadas

A&A nº 40 - Residências

A&A nº 41 - Centros de Pesquisa e Tecnologia

A&A nº 42 - Especial 10 anos

A&A nº 43 - Edifícios Multiandares

A&A nº 44 - Centros de Distribuição e Logística

A&A nº 45 - Aeroportos

A&A nº 46 - Jogos Olímpicos Rio 2016

A&A nº 47 - Light Steel Framing

A&A nº 48 - Porto Maravilha

A&A nº 49 - Região Nordeste

A&A nº 50 - Região Centro-Oeste

52 &ARQUITETURA AÇO

Defensas de aço

Engradamento de aço

Estruturas em aço

Painéis e divisórias

Parafusos e fixação

Perfis de aço (Light Steel Framing)

Portas e janelas em aço

Proteção térmica

Steel deck

Telhas de aço

Tintas para aço

Tubos de aço

Distribuição e centros de serviços

Galvanização

Montagem de estruturas de aço

Projetos e detalhamento de construção em aço

Software para projetos em aço

Solicite a inclusão de sua empresa
G U I A D A C O N S T R U Ç Ã O E M B R A S I L
que você procura? Categoria BUSCAR
Fabricantes Serviços
O
e baixe o Guia completo www.cbca-acobrasil.org.br
Acesse
www.cbca-acobrasil.org.br ACESSE O SITE +CAPACITAÇÃO +PESQUISAS +PUBLICAÇÕES +NOTÍCIAS SOBRE O SETOR

Turn static files into dynamic content formats.

Create a flipbook
Issuu converts static files into: digital portfolios, online yearbooks, online catalogs, digital photo albums and more. Sign up and create your flipbook.
Arquitetura & Aço nº 50 - Centro-Oeste by cbca-acobrasil - Issuu