Arquitetura & Aço nº 39 - Varandas, Escadas, Mezaninos...

Page 1

ARQUITETURA AÇO ARQUITETURA&AÇO

Uma publicação do Centro Brasileiro da Construção em Aço número 39 setembro de 2014

Uma publicação do Centro Brasileiro da Construção em Aço número 39 setembro de 2014

vArAndAs

vArAndAs

escAdAs

escAdAs

mezAninos

mezAninos

mArquises e PergolAdos

mArquises e PergolAdos

A versAtilidAde do Aço em soluções que levAm modernidAde e vAlorizAm os imóveis

A versAtilidAde do Aço em soluções que levAm modernidAde e vAlorizAm os imóveis

CURSOS ONLINE

Introdução à Construção em Aço

Sistemas Estruturais em Aço

Dimensionamento de Estruturas de Aço (básico)

Dimensionamento de Estruturas de Aço (avançado)

Mais informações:

www.cbca-acobrasil.org.br

aço: modernização e valor

Ao longo do tempo, construções demandam reformas e obras de atualização. Esta edição de Arquitetura&Aço explora as contribuições e vantagens do material em projetos que respondem a necessidades atuais: conforto, estética, segurança, melhor utilização do espaço e valorização dos imóveis. O aço em diversas funções, atendendo novas exigências.

Varandas de aço contribuindo para engenhosas reformas de fachadas em edifícios de São Paulo, Rio de Janeiro e até em Paris, com projetos que, além de ampliar a área útil e modernizar os imóveis, também propiciaram significativo ganho com sua valorização e com a melhoria da qualidade de vida dos moradores. Seguindo no tema das varandas, temos uma bela e criativa solução adotada no projeto do Grupo São Paulo para o edifício Simpatia, em um charmoso bairro paulistano.

A versatilidade do aço, a facilidade e velocidade na execução dos projetos e a possibilidade de ser utlizado associado aos mais diferentes materiais – além da resistência e leveza que o caracterizam – são alguns dos atributos destacados por arquitetos e engenheiros ao comentar a opção pelo uso do aço nos projetos apresentados.

Nesta edição, trazemos, ainda, inúmeras outras situações onde o aço aparece como solução ideal em intervenções para unir ou ampliar ambientes, viabilizar coberturas ou requalificar espaços, destacando-se por sua eficácia, perfeita adequação, qualidade técnica e beleza. Um bom exemplo é a inclusão dos grandes mezaninos que ampliaram o espaço e os serviços oferecidos ao público no tradicional Mercado Municipal de São Paulo. Ou uma interessante marquise na cobertura de um antigo edifício, que chama atenção e imprime identidade contemporânea ao novo espaço cultural ali instalado.

São vários exemplos de projetos de mezaninos, marquises, pergolados e escadas, todos assinados por destacados profissionais, que demonstram a grande flexibilidade e possibilidades no uso do aço em obras de todos os portes, das mais simples àquelas de grande complexidade. Confira!

editorial
Ciro Coelho/CiroCoelho.com/Divulgação
sumário
Arquitetura & Aço nº 39 setembro 2014 Nelson Kon / Divulgação ENtrEviStA 18 O arquiteto Hugo Hamann fala sobre o acréscimo de varandas em fachadas e revela as etapas deste tipo de implantação. ENDErEÇOS 39 04. 14.
Foto da capa: Edifício Simpatia, São Paulo, SP

04. Edifício Rio Novo, SP: edifício da década de 1970 passa por retrofit e recebe varandas metálicas de 40 m 2 08. Edifício na rua João Lira, Leblon, RJ: atualização da fachada com o acréscimo de varandas em aço traz valorização de 30% aos apartamentos. 10. Edifício Simpatia, Vila Madalena, SP: vigas em aço sustentam terraços de 11 m 2 12. Residência no Pacaembu, SP: pórtico metálico em moradia da década de 1960 transforma a sala de estar. 14. Edifício Bois-le-Prêtre, Paris, França: varandas em aço atualizam fachada e trazem mais qualidade de vida aos moradores. 20. Escadas metálicas: peças-chave em residências e ambientes comerciais, escadas em aço possuem menor peso estrutural e conferem beleza estética. 28. Mezaninos: estruturas em aço criam novos espaços em intervenções simples e rápidas.

34. Marquises e pergolados: valorização para coberturas e acessos.

08. 20. 10. 28. 12. 34.

FACHADA valorizada

Varandas metálicas de 40 m² modificam o layout de edifício da década de 1970 na zona sul de São Paulo e proporcionam grande valorização ao imóvel

O usO de estruturas eM açO no retrofit do edifício Rio Novo, na zona sul de São Paulo, proporcionou não apenas o acréscimo de 40 m2 de varanda a cada um dos 33 apartamentos do conjunto, mas também um expressivo retorno sobre o valor investido na obra. “A concretização do projeto trouxe significativa melhoria na utilização do imóvel, atualização arquitetônica e valorização”, considera Alberto Alves, responsável pela BR Retrofit, empresa que gerenciou a instalação das varandas em aço no local.

Para a modernização da fachada do edifício de 17 andares, construído na década de 1970, todos os condôminos tiveram de ser consultados e, somente após esta etapa, a Prefeitura foi procurada para a emissão do alvará de Aprovação e Execução – a legislação permite um aumento de área desde que respeitadas as determinações vigentes, tais como o não sobreamento de edificações vizinhas e um recuo mínimo da intervenção em relação à calçada; na obra, as varandas estavam distanciadas em 30 m.

Estrutura revelada

As varandas acopladas ao edifício têm 4,87 x 16,84 m, totalizando 82,13 m2 divididos entre os dois apartamentos de cada andar – a da cobertura ocupa o pavimento todo.

Para o projeto, o sistema estrutural de pórtico frontal, com ligações aparafusadas rígidas e conexões rotuladas no sentido transversal, foi o escolhido por permitir a transferência das cargas da estrutura em aço para os pilares de concreto existentes. A conexão entre a nova estrutura e a original foi feita por meio de chapas fixadas aos pilares de concreto com chumbadores químicos. “Tecnicamente, utilizar a estrutura de concreto para descarregar parte da carga, engastando nela as novas vigas metálicas, não é trivial”, comenta Alves, que conta, ainda, que a remoção do revestimento da fachada revelou que os pilares não tinham seção constante, o que obrigou os projetistas a adotarem vigas de comprimentos diferentes. Os dois pilares frontais da estrutura depositam as suas cargas em blocos de concreto

4 &ARQUITETURA AÇO
Para a concepção das varandas de 82,13 m² um sistema estrutural de pórtico frontal com ligações aparafusadas rígidas e conexões rotuladas no sentido transversal foi adotado Antes Depois
varandas Fotos B r r etrofit Gerenciadora/ d ivulgação

Graças ao uso do aço, a instalação das varandas foi feita em apenas 30 dias

armado apoiados sobre estacas escavadas com 18 m de profundidade – os quais foram executados a partir do primeiro subsolo do edifício.

Da cota -2,5 m até o nível +7,21 m, os pilares sobem em seção caixão. A partir deste nível, são em perfis de abas largas.

Triplo apoio

O primeiro andar conta com uma viga de transição que dá origem a mais um pilar. Desta maneira, as varandas contam com três apoios: um em cada extremidade e outro oculto pela parede em blocos de concreto, na seção intermediária.

As vigas que compõem o piso são em perfis de seção I de abas paralelas e perfis de seção H. Sobre elas, há uma laje em steel deck solidarizada por conectores de cisalhamento de 19 mm. Já na borda das varandas, foi soldado um perfil de arremate de seção U.

Rápida execução

Para a montagem da estrutura, foram necessários menos de 30 dias e esse foi um dos

6 &ARQUITETURA AÇO
B r r
etrofit Gerenciadora/ d ivulgação
Ciro Coelho/CiroCoelho.com/Divulgação

> Projeto arquitetônico: Pax Arquitetura

> Área construída: 40 m² por varanda

> aço empregado: ASTM A572

> volume de aço: 110 t

> Cálculo estrutural e obra

civil: Sistema Engenharia e Arquitetura

> Projetista da estrutura

metálica: Eder Pascoal Besson

> assessoria estrutural: Aluizio D’Avilla Engenharia de Projetos

> Fabricação e montagem da estrutura metálica: Nicmetal-Totalmetal Indústria Metálica

> Gerenciamento de obra: BR Retrofit Gerenciadora

> Gerenciadora executiva: Addvent Engenharia e Construções

> local: São Paulo, SP

> data do projeto: 2011-2013

fatores que mais pesaram na escolha do aço. De acordo com o gerenciador da obra, “construir em pilares e vigas de concreto em um edifício com 100 moradores traria muitos incômodos e a obra demoraria mais para ser concluída”. Neste contexto, a tecnologia seca, limpa e rápida se mostrou a melhor opção. "Os benefícios também se refletem no custo total do empreendimento. O item mão de obra pesa nesse tipo de construção. Se o tempo de obra é reduzido, os gastos com operários também o são”, complementa. Para minimizar os transtornos, a obra foi feita de fora pra dentro.

A definição do esquema de montagem levou em conta o projeto estrutural, as normas vigentes e o memorial de cálculo. A aplicação do software Strap analisou as interações estruturais e os carregamentos. A estrutura foi montada com um guindaste.

Como o planejamento pré-obra foi intenso, os desafios logísticos foram pequenos, “a não ser pelo fato de existirem apenas três guindastes no Brasil que poderiam montar os três últimos andares sem o uso do espaço público”, diz Alves. Caso fosse necessário um guindaste maior, parte da rua e da calçada seria comprometida, o que complicaria a gestão da obra.

Detalhamento do projeto

“Os moradores continuaram usando as salas ao longo da obra”, salienta Alves, uma vez que foram instalados painéis de madeira para isolar as varandas em obras.

Durante esta fase, ainda, os caixilhos e a alvenaria da fachada foram retirados deixando a estrutura aparente. “Neste momento, o rebaixamento de 40 cm da seção superior da viga frontal semi-invertida, que compunha a estrutura original, também foi feito.”

O rebaixamento teve como intuito permitir a passagem da sala para a varanda. Feitos os serviços de reforço estrutural e montagem da estrutura, deu-se início às instalações elétricas e hidráulicas, alvenarias, contrapisos, forros de gesso, instalações de peitoris em granito, dos guarda-corpos, pintura e limpeza. (B.L.) M

7 &ARQUITETURA AÇO
Base dos pilares Viga de transição Preparação para receber o engaste Lajes em steel deck
varandas

TRANSFORMAÇÃO e atualização

Apartamentos no Leblon, no Rio de Janeiro, ganham valorização de até 30% após a inserção de varandas metálicas na fachada

a transfOrMaçãO dO LeBLOn, na zona sul do Rio de Janeiro, se faz notar também em suas edificações residenciais. O bairro, conhecido por abrigar a elite carioca, possui um dos metros quadrados mais caros do país. Os edifícios dispõem não só de uma ampla área interna, como também apresentam um design harmonioso em suas fachadas. E aqueles que ainda não se enquadram neste perfil, caso das construções mais antigas, correm para se atualizar.

No último ano, por exemplo, o retrofit da fachada de um edifício da década de 1970, situado na Rua João Lira, foi concluído. O proje-

to, que incluiu o acréscimo de varandas de aço na face frontal da edificação, foi concebido pelo arquiteto Hugo Hamann, da HCH Arquitetura e Planejamento, e trouxe uma valorização de até 30% ao imóvel situado à beira-mar. No projeto, 20 varandas, com 26 m cada, foram executadas em dez pavimentos – duas por andar. A obra durou cerca de um ano. “Tomei o cuidado de realizar o acréscimo de varandas com visual moderno e leve, que não destoasse do restante da construção. Não queria que elas parecessem ter sido aplicadas anos mais tarde, mas que aparentassem ser parte integrante do projeto original”, explica Hamann.

No edifício da década de 1970, 20 varandas de 26 m² cada foram executadas em dez pavimentos – duas por andar

8 &ARQUITETURA AÇO
Fotos divulgação

Para a obra, que teve a participação do engenheiro Ronoel Souto, da Estatec Serviços Técnicos à frente do projeto estrutural, perfis estruturais em aço ASTM 572 GR50 e chapas A36 foram usados. As peças pré-fabricadas chegaram prontas ao local, sendo posteriormente içadas e aparafusadas.

“Após a conclusão das fundações, fizemos o nivelamento dos topos dos blocos e iniciamos a montagem com a ajuda de um guindaste. Cada sequência de pilares, correspondente a dois pavimentos da edificação, teve as peças içadas e aparafusadas para um posterior travamento das estruturas. Os pilares vencem vãos de 7,80 m”, detalha Souto, que explica, inclusive, que, após a montagem, lajes em concreto foram executadas para servir de piso às varandas.

“Elas foram impermeabilizadas e receberam revestimentos em porcelanato e granito.”

Solução veloz

De acordo com Hamann, a escolha do aço para a obra foi motivada por sua leveza e velocidade construtiva. “Esta foi a solução ideal para atender aos nossos objetivos, já que queríamos montar uma estrutura independente que não trouxesse transtornos ou fizesse os moradores deixarem suas residências”, explica o arquiteto, que também optou pelo uso da estrutura metálica por outras razões.

“Com ela, conseguimos vencer vãos maiores usando peças e pilares de menor seção do que os de concreto.” (e.Q.) M

> Projeto arquitetônico: HCH

Arquitetura e Planejamento

> Área construída: 599,04 m² (área total)

> aço empregado: perfis estruturais

ASTM 572 GR50 e chapas A36

> volume de aço: 31 t

> Projeto estrutural: Steel Tech BR Ltda.

> Fornecimento do aço: Açolink

Estruturas e Obras Ltda.

> execução da obra: Ronoel Souto (Estatec Serviços Técnicos)

> local: Rio de Janeiro, RJ

> data do projeto: 2013

9 &ARQUITETURA AÇO
varandas
Peças pré-fabricadas chegaram prontas ao local da obra, sendo içadas e aparafusadas para compor a nova estrutura

uMa prOpOsta OriginaL marca a concepção arquitetônica do edifício Simpatia, localizado na Vila Madalena, em São Paulo. O projeto, assim como o bairro, que chama a atenção por suas peculiaridades, como as ruas estreitas e a presença de muitos artistas e intelectuais, também cativa a atenção de quem passa pelas redondezas. Além da fachada frontal da edificação, que une estruturas metálicas pintadas de vermelho a elementos em madeira, a face posterior revela varandas de aço em balanço, que mais parecem flutuar sobre a paisagem urbana. “Queríamos uma instalação que servisse de extensão do espaço interno e nos aproveitamos da prerrogativa de utilizar até 10% da área de projeção do edifício como varanda”, explica o arquiteto Álvaro Puntoni, do Grupo SP.

Executadas de forma descendente, de cima para baixo, as varandas, de 11 m2, se atirantam a grandes vigas metálicas localizadas no topo da construção. Na proposta inicial, teriam estrutura em concreto, mas por questões operacionais e de custo foram modificadas, visando também atender aos prazos da obra.

“O concreto não iria viabilizar o balanço proposto pelo projeto arquitetônico devido ao maior peso e à sua dificuldade de execução. Além disso, o uso de vigas muito maiores do que as metálicas para suportar os esforços, certamente, acabaria com a intenção de conferir um aspecto de leveza à construção”, explica o engenheiro estrutural Helio Ricardo Stefoni.

As vigas metálicas em perfil soldado, com aço de maior resistência à corrosão, têm dimensão de 1.350 mm de altura por 250 mm

De CiMA Para Baixo

Vigas metálicas em balanço no topo do edifício Simpatia, na Vila Madalena, em São Paulo, marcam a estrutura e sustentam varandas em aço que parecem flutuar sobre a paisagem urbana

10 &ARQUITETURA AÇO
Fotos Nelson Kon

de largura. As estruturas, apoiadas sobre as colunas de concreto da edificação, possuem 12 m de comprimento – 7,80 m de vão e 7,3 m de balanço – e suportam os oito pavimentos de terraços que resistem, cada um, a uma sobrecarga de 300 kg por metro quadrado.

“Das vigas, descemos dois tirantes redondos em aço A36 fixados com parafusos ASTM A325 em cada nível para garantir o apoio dos terraços inferiores”, explica Stefoni, que reforça que, nas varandas, uma chapa de piso em aço de maior resistência à corrosão serviu de forma para a laje de concreto de todos os andares. “O piso em concreto sobre uma chapa metálica lisa teve a função de pré-forma e forro para a varanda inferior.” (e.Q.) M

Perfis soldados empregados nas vigas do topo do edifício têm dimensão de 1.350 mm de altura por 250 mm de largura e suportam o peso dos terraços em balanço

> Projeto arquitetônico: Grupo SP

> Área construída: 11 m² por varanda

> aço empregado: perfil soldado e chapas de piso em aço de maior resistência à corrosão; perfis laminados ASTM A570 GRC; tirante em aço A36 e parafusos ASTM A325 galvanizados a fogo

> volume de aço: 16 t

> Projeto estrutural: Helio Ricardo Stefoni

> Fornecimento do aço: PlanMetal Estruturas Metálicas

> incorporadora: Idea! Zarvos

> execução da obra: C.P.A. Engenharia e Construções Ltda.

> local: São Paulo, SP

> data do projeto: 2007-2011

11 &ARQUITETURA AÇO
varandas
Projeto foi montado de forma descendente, de cima para baixo, a partir das vigas principais instaladas no alto do edifício. As estruturas, depois de fixadas, receberam tirantes de aço, vigas de apoio secundárias e pisos em chapas de aço para compor as varandas

ViSTA reNovada

Pórtico metálico vence vão de 11,50 m e transforma os fundos de uma antiga residência localizada no bairro do Pacaembu, em São Paulo, oferecendo uma bela vista da cidade

transfOrMar Os fundOs de uma residência-padrão localizada em um bairro nobre da capital paulista foi a meta do arquiteto Daniel Caliari Pollara, do Laboratório de Arquitetura Brasileira, em 2011. A casa, com construção datada de 50 anos atrás, precisava passar por uma reforma geral que conferisse não só mais mobilidade aos usuários, mas também trouxesse mais qualidade de vida aos moradores. “A configuração original da habitação foi invertida e as áreas de convivência, como a sala de estar e a cozinha, antes voltadas para a face frontal, foram transferidas para os fundos para garantir um melhor aproveitamento da vista após a instalação do terraço em aço”, explica o profissional.

Para alcançar o propósito, um pórtico metálico de dois níveis, com pilares em perfil H e vigas em perfis I, foi adotado. A grande estrutura, capaz de vencer um vão de 11,50 m, contou com dois pontos de apoio sobre os novos blocos de fundação, além de um travado horizontal. “No pórtico, foram soldados perfis I transversais de menor porte que apoiam a estrutura de madeira do piso do terraço, um banco linear de pranchas de madeira maciça, um brise em chapa expandida e os toldos da cobertura”, revela Pollara, que explica que as esquadrias foram apoiadas e fixadas nas duas vigas principais.

O terraço, que tem 14,5 m lineares e suporta uma carga adicional de 200 kg por metro quadrado, foi montado com rapidez e simplicidade. Na época, a residência não estava ocupada o que, segundo o arquiteto, não seria um empecilho para a realização da obra. “Caso

houvesse a presença de moradores, a transformação ainda assim seria viável, já que o aço possui um processo de execução limpo, rápido e econômico.”

Passo a passo Para a montagem da estrutura metálica, foram executados, primeiramente, dois novos blocos de fundação. Posteriormente, as lajes já existentes da casa foram escoradas e as paredes de alvenaria dos fundos, demolidas. Em seguida, foi a vez dos perfis metálicos serem posicionados.

Enquanto os de menor dimensão foram ajustados manualmente, com o auxílio de cabos de aço e tensores, os de maior porte foram instalados com a ajuda de um guindaste. “Utilizamos um equipamento mediano

> Projeto arquitetônico: Daniel Caliari Pollara, Laboratório de Arquitetura Brasileira

> Área construída: 315 m² (residência) e 35,70 m² (terraço)

> aço empregado: perfis estruturais ASTM A36

> volume de aço: 21,4 t

> Projeto estrutural: Stec do Brasil Engenharia

> Fornecimento do aço: Aracoara Construções Metálicas

> execução da obra: Romeu Del Negro (1ª fase) e S. Brasil Arquitetura (2ª fase)

> local: São Paulo, SP

> data do projeto: 2011-2012

12 &ARQUITETURA AÇO
Estrutura permitiu vencer o vão da fachada posterior sem a presença de nenhum pilar intermediário que bloqueasse o acesso ao terraço ou à vista

devido à localização do terraço e, em alguns casos, optamos por cabos de aço tensionados para posicionar e garantir a estabilidade das peças até a etapa de soldagem e fixação definitiva”, lembra Pollara.

Com a estrutura devidamente posicionada, as tábuas de madeira foram, então, instaladas. “A partir deste ponto, tudo ficou mais fácil: a fixação dos trilhos e esquadrias nos pilares e vigas metálicas, a montagem do banco de madeira, que foi aparafusado nos pilaretes, bem como a instalação do brise em chapas expandidas de aço”, conta Pollara, que recorda que este último item, com bordas dobradas, foi aparafusado em quadros de perfis T soldados aos perfis transversais superiores. (e.Q.) M

Perfis metálicos apoiaram o piso de madeira e o brise metálico
varandas
Fotos divulgação

ReTROFiT em aço

Revitalizado, edifício Bois-le-Prêtre, construído na década de 1950 em Paris, ganha um novo visual após a inserção de varandas metálicas na fachada

Quand O f O i indicad O pelo Office Publique d’Habitations, de Paris, no final dos anos 1950, para projetar o desenvolvimento urbano de áreas livres da capital francesa, o arquiteto Raymond Lopez sequer imaginava que o icônico edifício Bois-le-Prêtre, construído na época com 16 andares e 50 m de altura, passaria por uma reforma 40 anos mais tarde.

A construção, projetada para abrigar 96 apartamentos de um, dois e cinco cômodos, ganhou o seu primeiro retrofit da fachada no início dos anos 1990. Na adaptação, a edificação recebeu, externamente, camadas de isolamento térmico, fechamento de balcões e seus vãos foram drasticamente reduzidos. Um moderno sistema de calefação também foi

Construção abriga 96 apartamentos e recebeu o primeiro retrofit no início dos anos 1990, mas só recentemente, em 2011, é que os moradores puderam contar com a nova fachada e as varandas

14 &ARQUITETURA AÇO
Frédéric d
ruot

existentes

idealizado em resposta às críticas ao modelo “defasado” de arquitetura e urbanismo das décadas anteriores.

Os anos se passaram e, novamente, as necessidades trouxeram à tona uma nova proposta de modernização. Desta vez, a reforma não deveria trazer, unicamente, melhorias à fachada, mas também um considerável ganho de qualidade de vida aos moradores.

Assim, em 2005, diante da estimativa de um custo de 170 mil euros por unidade habitacional para demolir o prédio e construir um novo, os arquitetos da Frédéric Druot Architecture, em parceria com o escritório Lacaton & Vassal, apresentaram uma solução de custo muito inferior: o acréscimo de varandas em aço à fachada.

Solução metálica

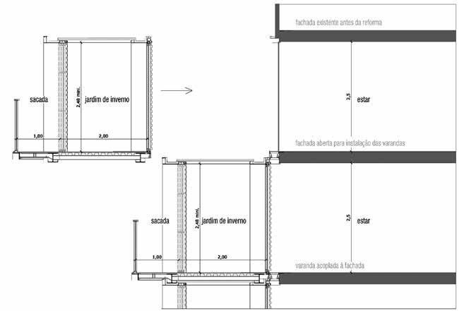
Para a renovação, varandas metálicas pré-fabricadas, vencendo os 3 m de altura do andar e 7,5 m de largura, foram e fixadas às vigas de concreto armado existentes. Cada módulo de varanda – um por unidade, compondo um jardim de inverno e um balcão-terraço – trouxe um ganho de 22 a 51 m2 à área construída dos apartamentos.

E a intervenção não só trouxe melhores condições de ventilação e iluminação naturais para as unidades, como também teve a vantagem de não interferir na estrutura original do prédio ou exigir a desocupação da edificação por parte dos moradores durante as obras – cada módulo foi montado separadamente com agilidade e sem gerar resíduos.

Frédéric d ruot Frédéric d ruot
Módulos formados por uma laje steel deck, apoiados em quatro pilares metálicos presos às vigas existentes do edifício
Para a renovação, varandas metálicas pré-fabricadas de 3 m de altura e 7,5 m de largura foram fixadas às vigas de concreto armado
Philippe r uault

Passo a passo

O processo de montagem implicou a substituição dos fechamentos originais da fachada – janelas e alvenaria – por portas de correr envidraçadas. Os módulos metálicos foram, então, içados com uma grua e adicionados à nova fachada.

“Cada módulo é formado por uma laje mista de vigas de aço com piso em concreto, à qual se conecta a um guarda-corpo em vidro. O apoio encontra-se em quatro pilares metálicos, que trabalham em conjunto com as vigas transversais de concreto armado”, conta a arquiteta Anne Lacaton, da Lacaton & Vassal, que complementa: “depois de apoiada à laje mista, os quatro pilares de aço, com 3 m de altura, são fixados para apoiar o módulo do nível imediatamente superior. E, assim, sucessivamente”.

Elemento estrutural principal do módulo, a laje mista é composta por um conjunto de perfis longitudinais e transversais, chapa ondulada de aço, manta isolante de 90 mm e pilares metálicos.

Pronto desde 2011, o novo Boulevard Bois-le-Prêtre de Paris pode ser considerado a materialização do lema que conduziu o trabalho dos projetistas: “derrubar nunca, subtrair ou substituir jamais; adicionar, transformar e reutilizar, sempre”. (g g.) M

> Projeto arquitetônico: Frédéric Druot Architecture e Lacaton & Vassal

> Área total: 12.460 m² (8.900 m² pré-existentes e 3.560 m² de extensão)

> Projeto estrutural: VP & Green

> local: Paris, França

> data do projeto: 2010-2011

Intervenção trouxe um ganho de 22 m² a 51 m² à área construída de cada apartamento sem exigir a desocupação das unidades durante as obras

16 &ARQUITETURA AÇO
Philippe r uault

Formado em 1971 pela FAU/UFRJ (Faculdade de Arquitetura e Urbanismo da Universidade Federal do Rio de Janeiro), HUgo HAmAnn trabalhou no desenvolvimento do Plano Urbanístico da Barra da Tijuca e junto a órgãos públicos, como a Diretoria de Projetos Especiais do Departamento de Construção Civil, da Secretaria municipal de obras e Secretaria municipal de Planejamento do Rio de Janeiro, se dedicando, posteriormente, ao estudo e implantação de varandas nas fachadas dos edifícios da região.

Desde 1990, é sócio da HCH Arquitetura e Planejamento. Elaborou estudos de viabilidade para acréscimo de varandas para 360 condomínios, com 11 obras já concluídas e outras 16 em execução ou prestes a iniciar. Em 1995, recebeu menção honrosa na 33ª Premiação Anual do IAB (Instituto dos Arquitetos do Brasil) e, em 2006, teve um projeto sobre o tema selecionado para a 44ª Premiação.

AA – Qual a importância das varandas para a arquitetura brasileira?

Hugo Hamann – As varandas sempre ocuparam um lugar de destaque na arquitetura tradicional brasileira, herança dos tempos coloniais, tão úteis quanto agradáveis, protegendo as edificações do sol intenso e das fortes chuvas – comuns em climas tropicais.

AA – Qualquer edifício pode receber varandas, mesmo após décadas de sua construção?

HH – Sob o ponto de vista construtivo, de maneira geral, qualquer edifício pode receber o acréscimo de varandas, uma vez que elas são executadas a partir de uma estrutura independente do prédio. Atualmente, elas são anexadas à construção existente com pilares de sustentação próprios. Contudo, em muitos casos, devido ao afastamento frontal reduzido, só podemos acrescer varandas pequenas, o que inviabiliza a obra sob o ponto de vista do custo versus benefício.

AA – Então, não há interação entre as estruturas antigas e as novas?

HH – Por vezes, elementos estruturais do prédio interferem no acesso às varandas. É o caso, por exemplo, de vigas invertidas nas fachadas, que podem ser mantidas quando pequenas. Neste tipo de situação, o nível do piso das varandas acaba ficando um pouco mais elevado que o da sala. Já quando a viga invertida é alta, a situação é diferente. Ela precisa

ser retirada e a estrutura do prédio, reforçada – alteração que sempre buscamos evitar. Em um prédio em Ipanema, no Rio de Janeiro, esse tipo de intervenção foi necessária, pois a viga invertida da fachada tinha 1 m de altura.

AA – Se, tecnicamente, a questão é de simples solução, como é legalmente?

HH – Sob o ponto de vista legal, para a construção de varandas tradicionais, em balanço e em concreto armado, o prédio precisa apresentar um afastamento frontal compatível com a legislação municipal em vigor. No Rio de Janeiro, as dimensões e características das varandas construídas durante a execução do prédio ou anexadas posteriormente seguem as mesmas normas estabelecidas pela legislação urbana municipal. A diferença básica é que as varandas anexadas são parcialmente em balanço, uma vez que possuem pilares de sustentação próprios, afastados em, no máximo, 1 m do plano de fachada do prédio.

AA – Em qual cidade brasileira essa prática tem sido mais comum?

HH – Certamente, a cidade do Rio de Janeiro concentra a maior quantidade de acréscimos do gênero, mas outras, como Santos, por exemplo, também criaram dispositivos legais semelhantes aos da legislação carioca – eles foram influenciados pelos resultados positivos das intervenções. Dependendo da localização e da fachada do prédio, é possível afirmar que, com

18 &ARQUITETURA AÇO
Acréscimo de v A r A nd A s metálic A s

o acréscimo de varandas, os imóveis tiveram uma valorização de 30% após a obra.

AA – As varandas acopladas em aço estão sendo cada vez mais requisitadas, por quê?

HH – Pela rapidez, praticidade, uso de peças com menores seções e por sua capacidade de vencer grandes vãos. O aço também permite uma menor interferência na vida dos condôminos, que podem continuar a viver em suas unidades até o fim da obra. A limpeza é um ponto favorável, já que a modificação não exige formas, armação de ferragens e concretagens. A estrutura metálica chega à obra, é içada, instalada no local, aparafusada ou soldada e o serviço é concluído com rapidez e segurança.

AA – Como é feita a inserção da nova estrutura à já existente?

Geralmente, é feita com parafusos ou tirantes soldados.

AA – A estrutura é toda em aço? Se sim, qual tipo de metal costuma ser usado?

HH – Tanto os pilares quanto as vigas são. O piso é uma opção do construtor, podendo ser executado em lajes pré-moldadas ou em steel deck. De maneira geral, são utilizados perfis de mercado W ou H, em aço ASTM A572. Por vezes, quando há necessidade de utilizar perfis fabricados para atender a situações específicas, as peças são fabricadas em A36.

AA – A tecnologia usada no Brasil está alinhada às tendências internacionais?

HH – A presença do aço em acréscimos ou em construções novas é cada vez maior em todo o mundo. Em outros países, vemos a utilização do aço na construção civil em maior escala e há muito mais tempo, porém, a utilização em construções nacionais tem se intensificado enormemente nas últimas décadas.

AA – Quanto tempo leva para a conclusão de uma obra desse tipo?

HH – O prazo de obra gira em torno de 12 meses, dependendo da quantidade de pavimentos e da intervenção na fachada do prédio. Na maioria das vezes, como os prédios têm de 40 a 60 anos de idade, aproveita-se a oportunidade para realizar um retrofit geral na fachada, com a troca do revestimento externo e das esquadrias.

AA – Então, o projeto original da fachada é significativamente alterado?

HH – Sim, altera muito, sempre modernizando o prédio, sobretudo quando é realizado um retrofit em toda a fachada, e não apenas uma intervenção pontual onde as varandas foram executadas. Em geral, a modificação da fachada é tamanha que muitas pessoas acreditam tratarem-se de prédios novos.

AA – Como a adequação arquitetônica é feita?

HH – Tenho a preocupação constante para que as varandas não pareçam acrescidas a um prédio originalmente sem varandas, denunciando a intervenção realizada na fachada. A ideia é que, com a obra pronta, os prédios pareçam possuir varandas desde a sua concepção.

AA – Como é ponderado o ganho em valor e em espaço frente à alteração das características originais do prédio?

HH – Como o metro quadrado da obra de acréscimo de varandas é sempre muito inferior ao custo do metro quadrado do imóvel, ganha-se em espaço e em valorização da unidade. Muitas vezes, as varandas aumentam em até 70% a área social dos apartamentos. (B.L.) M

19 &ARQUITETURA AÇO
“ Dependendo da localização e da intervenção na fachada do prédio, o acréscimo de varandas pode propiciar uma valorização de até 30% no preço de cada imóvel.
Acervo pessoal

design em aço

Fáceis de serem instaladas, escadas metálicas se tornam presença marcante em projetos residenciais e comerciais por suas possibilidades estéticas e facilidades construtivas

Mais do que transportar de um andar para o outro, as escadas contribuem para compor o visual dos ambientes. Certamente, estão entre os elementos mais antigos das construções e podem ser feitas de vários materiais e apresentar inúmeros formatos.

Quando produzidas em aço, elas possuem um menor peso estrutural e conferem beleza estética e precisão à obra. A redução do prazo de instalação também surge como um diferencial positivo, além da facilidade construtiva, pois não demandam formas e armaduras especiais para serem executadas no local.

“As metálicas, em sua maioria, já vêm

prontas de fábrica e apenas precisam ser posicionadas e fixadas nas vigas ou pilares para ficarem prontas”, explica o arquiteto Marcelo Moura, da Tripper Arquitetura. Ainda segundo ele, para os perfis de composição, o mais indicado é o aço estrutural ASTM A36 e ASTM A572. Já para a execução dos degraus, as chapas expandidas ou xadrez são as mais apropriadas.

“Os patamares, por sua vez, podem ser totalmente metálicos ou parcialmente preenchidos com concreto. Neste último, a concretagem deve ser feita in loco”, diz Moura, que lembra que o aço também oferece boas soluções para os guarda-corpos. (n.L.) M

20 &ARQUITETURA AÇO
Divulgação

LEVE E SOLTA

desenhada para uma residência no Brooklin, em são Paulo, pela Zanettini Arquitetura, a escada pintada com tinta epóxi na cor branca impressiona por sua leveza. O modelo suspenso, sustentado por duas vigas laterais, foi feito em aço AsTM A36. “A estrutura da escada já veio pronta e foi instalada na base inferior com quatro chumbadores de ¾'' igualmente espaçados”, explica o arquiteto siegbert Zanettini, que informa que os espelhos e pisos têm chapas de 6 mm soldadas entre si com uma viga lateral. “enquanto o piso tem 300 mm, o espelho tem 160 mm.”

> Projeto arquitetônico: Zanettini Arquitetura Planejamento e Consultoria

> aço empregado: perfil estrutural vertical lateral em aço ASTM A36 com altura de 200 mm e espessura de 25 mm

> Fornecimento do aço: BMC Construções Metálicas

e Silva/divulgação

> Projeto arquitetônico: Andréa Sevá e Bete Dadalte

> aço empregado: tirantes em ferro redondo 1/2''

> Fornecimento do aço: GG Construções Metálicas

InTEgrAçãO COmpLETA

Projetada pelas arquitetas Andréa sevá e Bete dadalte para uma residência em Atibaia, no interior de são Paulo, a escada possui estrutura em aço carbono 1020, degraus em madeira e acabamento em tinta esmalte preta fosca. O elemento, que divide os ambientes da sala e leva ao andar superior, apresenta tirantes de aço instalados nas laterais e corrimão em madeira no lado direito da construção. Já os degraus são formados por pranchas de madeira aparafusadas. “A escada veio pronta, sem o corrimão e foi chumbada no local, mais precisamente na viga do andar de cima da casa, onde, posteriormente, recebeu os tirantes que dão estabilidade à construção”, explica Bete.

21 &ARQUITETURA AÇO
escadas
Fotos Tacito Carvalho
Divulgação

HArmOnIA Em AçO E mADEIrA

na residência intitulada Casa Ubiracica, na capital paulista, o projeto de escada idealizado pela Brasil Arquitetura traz uma harmônica combinação de metal e madeira. Para a composição, a estrutura da escada chegou à obra segmentada e foi executada em apenas três dias. Conforme aponta o arquiteto Marcelo Ferraz, a escada foi feita com chapas de aço carbono de 16 mm com estrutura autoportante engastada em um bloco de concreto da fundação. Revestida em esmalte sintético branco em sua base e guarda-corpo, a escada traz um corrimão em madeira pau-marfim e degraus no mesmo material com 90 cm de largura, piso de 30 cm e 18 cm de altura.

> Projeto arquitetônico: Brasil Arquitetura

> aço empregado: chapas de aço carbono de 16 mm

22 &ARQUITETURA AÇO
Fotos Brasil a rquitetura

ESCULTUrAL

Uma escada escultural no formato espiral foi a proposta criativa do escritório Betty Birger Arquitetura para uma academia em santana, na zona norte de são Paulo. O projeto com pintura na cor preta e desenhos grafitados em seu exterior foi fabricado em chapa metálica de aço. de acordo com a arquiteta Maria Laura Barrichello, o material foi escolhido por conta de sua leveza e por permitir a execução de uma proposta mais arrojada e escultural.

“A escada é sustentada por um pilar central cilíndrico de 12 mm de espessura por 700 mm de diâmetro e dá acesso aos três pisos da academia", explica Maria Laura. nas laterais, chapas de aço calandradas formam um guarda-corpo que recebeu ilustrações grafitadas, que formam um elemento escultural impactante e destacado no projeto.

> Projeto arquitetônico: Betty Birger Arquitetura

> aço empregado: chapas metálicas 1010/1020 e chapas a frio

> Fornecimento do aço: ICC Escadas

23 &ARQUITETURA AÇO escadas
Fotos Gal o ppido/divulgação

mODErnA E FUnCIOnAL

José Armênio de Brito Cruz e gustavo Marchetti Panza são os autores do projeto do escritório de advocacia no bairro do itaim, em são Paulo. A escada da edificação, do tipo cascata, foi executada em chapa de aço carbono de 6,3 mm. “Para dar rigidez à cascata, soldamos um tubo de aço maciço de 1'' no topo de cada degrau e na intersecção entre o espelho e o piso”, detalha Panza, que explica que o sistema funciona como uma viga treliçada diagonal para vencer o desnível entre os dois andares.

Para a montagem da escada, apenas sete dias foram necessários. A pintura foi feita com tinta esmalte automotiva branca. no guarda-corpo, foi adotado um perfil tubular de aço de 2''. Os degraus têm 33 cm de profundidade, 1 m de largura e espelhos de 17 cm.

> Projeto arquitetônico: Piratininga Arquitetos Associados

> aço empregado: chapa de aço carbono 6,3 mm e perfis tubulares de seção redonda de 1''

> Fornecimento do aço: Serralheria Maxfer

24 &ARQUITETURA AÇO
Fotos m aíra a cayaba/divulgação

gigAnTe Do NILo

gigAnTe Do NILo

Feita em chapa de aço inoxidável dobrada, escada em espiral helicoidal ocupa seis andares do edifício comercial Nile House, em Praga, na República Tcheca

Feita em chapa de aço inoxidável dobrada, escada em espiral helicoidal ocupa seis andares do edifício comercial Nile House, em Praga, na República Tcheca

escadas escadas INT e RN a CI o N a L
Fotos RFR Group/ Divulgação

Degraus feitos em chapa de aço inox dobrada passaram por um intenso processo de polimento, que envolveu 12 fases manuais e químicas para garantir um brilho excepcional à escada. À direita, detalhe do sistema de fixação dos degraus e do guarda-corpo

eLeMento Marcante no interior do edifício comercial Nile House, localizado a leste do centro histórico de Praga e à margem do Rio Moldava, o mais longo da República Tcheca, a escada de aço enche os olhos de quem a vê. Definida a partir do átrio central, a intervenção arquitetônica, que ocupa seis pavimentos, mais parece uma escultura com projeção infinita graças à sua concepção no formato helicoidal e ao uso do aço. “Queríamos que a obra tivesse uma característica marcante tal como o Palácio Itamaraty, em Brasília [DF], que traz uma belíssima escada de Oscar Niemeyer”, diz o arquiteto Jean Le Lay, diretor da KPF Internacional de Londres.

A obra funcional com apelo artístico foi idealizada pelo escritório de arquitetura KFP em parceria com a RFR Group, responsável

26 &ARQUITETURA AÇO
Fotos RFR Group/Divulgação

pela parte estrutural, que juntas, optaram pelo uso de um tubo em chapa de aço estrutural soldada para o apoio dos degraus e de uma chapa inox com espessura de 8 mm para a formação dos mesmos – estes últimos, aliás, têm sua extremidade de maior largura em balanço e se destacam por suas propriedades altamente reflexivas. “Para atingir esse feito e garantir um brilho excepcional aos degraus em inox, a escada passou por um intenso processo de polimento que envolveu 12 fases manuais e químicas. Esta foi a etapa mais demorada do projeto, que precisou de cinco meses para ser concluído”, revela Le Lay.

Com peso de 12,1 toneladas, 6,4 toneladas para a longarina e 5,7 toneladas para a hélice, a escadaria foi projetada para garantir o escoamento de 2,5 mil pessoas que trabalham

no local e está totalmente de acordo com as exigências do corpo de bombeiros tcheco.

Enquanto o aço carbono foi usado no tubo de suporte, a hélice gigante em inox forma os degraus. “A forma geométrica de leque dobrado como alternativa aos ângulos agudos permitiu o suporte da chapa em inox à estrutura principal por meio de espaçadores em aço”, diz Le Lay. Para a montagem, a estrutura pré-fabricada chegou semipronta ao local, sendo soldada a cada pavimento já na obra, o que resultou na criação de uma escada com as extremidades dos degraus em balanço.

“Ela foi trazida para o átrio principal do edifício e a sua montagem não trouxe qualquer dificuldade inesperada. Na verdade, o processo foi extremamente simples”, finaliza o arquiteto. (e q.) M

> Projeto arquitetônico: Kohn Pedersen Fox Associates

> aço empregado: tubo suporte em chapa de aço estrutural. Degraus em chapa de aço inox dobrada de 8 mm de espessura

> Volume de aço: 12,1 t – 6,4 t (longarina S355) e 5,7 t (espiral em inox)

> Projeto estrutural: RFR Group

> Fabricação do aço: Excon Steel

> Local: Praga, República Tcheca

> Data do projeto: 2005

Estrutura pré-fabricada que pesa 12,1 toneladas chegou semipronta ao local e foi soldada a cada pavimento já na obra. Abaixo, à direita, detalhe da fabricação das peças em aço inox

27 &ARQUITETURA AÇO
escadas escadas INT e RN a CI o N a L
Hélice em balanço é apoiada por uma longarina em aço carbono que vai do térreo ao último pavimento
Fotos divulgação

PAVIMENTO METÁLICO

Leveza do material, velocidade de execução e limpeza no canteiro são os principais atrativos do aço para a concepção de mezaninos

pp M s arquitetos associados Marcelo s candaroli

Em difErEntEs projEtos, mais simples ou sofisticados, os mezaninos de aço estão sendo cada vez mais utilizados e conquistam a preferência de arquitetos e projetistas.

A leveza do material, a velocidade de execução e a limpeza que confere à obra estão entre os principais atrativos do metal para esse tipo de intervenção construtiva. De acordo com Marcos Aldrighi, arquiteto do escritório Piratininga Arquitetos Associados, “em projetos com este tipo de estrutura, as peças já chegam prontas e com as dimensões corretas. Isso facilita não só a logística da obra, como também confere mais limpeza ao canteiro. As vantagens são muitas”, afirma.

Para entender melhor, basta saber que, dependendo do tamanho da obra, os mezaninos podem ser montados em uma semana, como é possível observar em alguns dos exemplos a seguir. (A.f.) M

MODERNIZAÇÃO NO MERCADÃO

Para desenvolver o projeto de requalificação do Mercado Municipal de São Paulo, em 2004, o arquiteto Pedro Paulo de Melo Saraiva trabalhou em duas etapas. Na primeira, a recuperação do patrimônio local, que apresentava sinais de deterioração devido à ação do tempo, foi a prioridade. Já a segunda fase tratou da inserção de novos elementos estruturais no interior da edificação – foi nesta etapa que a estrutura em aço que deu origem ao mezanino foi concebida.

Conforme conta Saraiva, um dos motivos que o levaram a escolher o aço para a obra em questão foi a Carta de Veneza. “Ela rege intervenções em prédios históricos e dita que não se pode interferir em um patrimônio com a inserção de elementos parecidos com os de uma época antiga. É preciso que haja distinção, ou seja, que as intervenções deixem em evidência quais estruturas são novas e quais não o são.”

A opção pelo aço foi motivada, também, pela coloração do material, leveza e velocidade construtiva. “Os perfis chegaram prontos e foram executados com rapidez permitindo uma obra mais limpa e com uma logística viável, minimizando quaisquer transtornos à operação diária do mercado”, explica o profissional.

Para a montagem, as peças foram erguidas com pequenos guindastes para compor o mezanino. Também em estrutura metálica aparecem a cabine do elevador, as escadas e outros pequenos elementos que dão suporte ao pavimento intermediário.

“Não poderíamos ter encontrado uma solução melhor. O aço foi uma escolha acertada”, diz Saraiva.

> projeto arquitetônico: PPMS Arquitetos Associados

> Área construída:

19.805,43 m² (total);

4.133,97 m² (acréscimo)

> Aço empregado: perfis e chapas ASTM A36 e A572 GR50 e parafusos A 325 e A307 N galvanizado

> Volume de aço: 328 t

> projeto estrutural:

Figueiredo Ferraz Consultoria e Engenharia (projeto básico), PRCA Engenharia e Ponto de Apoio Engenharia e Arquitetura (projeto executivo)

> Execução da obra: Consórcio Paulistano (OAS e JZ Engenharia)

> Local: São Paulo, SP

> Data do projeto: 2002-2004

29 &ARQUITETURA AÇO
mezaninos
Fotos Marcelo s candaroli

SKYLINE URBANO

Preservar a vista panorâmica da janela principal foi uma das principais preocupações do arquiteto Marcos Aldrighi, do escritório Piratininga Arquitetos Associados, ao projetar o mezanino em um imóvel que apresentava um pé-direito duplo no último andar.

“Quando o cliente, um escritório de advocacia em São Paulo, nos informou suas necessidades em relação ao número de advogados que atuariam no local, áreas de arquivamento e salas de reuniões, percebemos que a construção de um mezanino era indispensável”, lembra Aldrighi.

Assim, para preservar o skyline da janela central e evitar a colocação de vigas e pilares, dois mezaninos foram criados nas laterais do conjunto comercial. “Projetamos os

pavimentos no primeiro e no terceiro módulos deixando o miolo o mais livre possível. Lá, além da escada em espiral, apenas uma espécie de passarela foi construída em aço para interligar as áreas localizadas no andar superior”, detalha o profissional. Conforme aponta o arquiteto, a escolha do aço nesse projeto foi motivada, principalmente, por sua leveza. “Para evitar sobrecargas, optamos pela construção de uma estrutura metálica apoiada por tirantes laterais aos pilares em concreto da construção.”

Para o processo de montagem, algumas vigas tiveram de ser picotadas para chegar ao último andar do edifício por elevador, sendo posteriormente soldadas no local da obra.

30 &ARQUITETURA AÇO
Fotos Maira Acayaba/ Divulgação

> projeto arquitetônico: Piratininga Arquitetos

Associados

> Área construída: 273,71 m²

> Aço empregado: perfil estrutural de abas paralelas e em U, chapa lisa e xadrez, além de tubos

> Volume de aço: 4 t

> projeto estrutural e fornecimento do aço: Plasmont Estrutura Metálica

> Execução da obra: DM

Engenharia

> Local: São Paulo, SP

> Data do projeto: 2011

31 &ARQUITETURA AÇO mezaninos

CRIANDO ESpAÇOS

Para aproveitar o pé-direito duplo de 4,60 m existente em uma residência localizada no Baixo Gávea, no Rio de Janeiro, as arquitetas Carolina Escada e Patrícia Landau, sócias do escritório Escala Arquitetura, projetaram um mezanino de aço. “A proposta foi aproveitar melhor a área existente acima da sala de TV, onde foi criado um espaço de leitura“, detalha Carolina.

Para que o mezanino ocupasse com leveza a área de 8 m², foi instalado um pilar de aço, com 4,60 m de altura para suportar o

pavimento intermediário, também metálico, que se localiza à 2,40 m do chão. “A estrutura que dá origem ao andar superior leva perfis metálicos em U e I na cor fosca carmim. Sobre ela, tábuas de madeira formam o piso.” A estrutura em aço não apenas viabiliza o mezanino, mas também abriga uma estante em madeira freijó vazada com nichos irregulares.

De acordo com a RGB Engenharia, responsável pela parte estrutural, o projeto demorou apenas uma semana para ser concluído.

> projeto arquitetônico: Escala Arquitetura

> Área construída: 220 m² (área total); 8 m² no mezanino

> Aço empregado: perfis em U e em I e chapas metálicas (execução de degraus)

> Volume de aço: 2,3 t

> Fornecimento do aço: RGB Engenharia Ltda.

> Local: Rio de Janeiro, RJ

> Data do projeto: 2010

32 &ARQUITETURA AÇO
Fotos: MCA s tudio/ Divulgação

> projeto arquitetônico: Zemel+Chalabi Arquitetos

> Área construída: 170 m² (área total)

> Aço empregado: perfis e chapas em aço estrutural

> projeto estrutural: Stec do Brasil Engenharia

> Volume de aço: 19 t

> Fornecimento do aço: Skylight Estruturas Metálicas

> Execução da obra:

Luiz Augusto Roselli

> Local: São Paulo, SP

> Data do projeto: 2012-2013

CAIXA SUSpENSA

Quando foi projetada pelos arquitetos Eduardo Chalabi e Paula Zemel, em 2012, a loja Galeria Nacional ainda não tinha uma identidade clara que evidenciasse os tipos de produtos que seriam armazenados e comercializados em seu interior. “Pensamos na criação de uma área que garantisse flexibilidade e pudesse receber itens de tamanhos distintos, ou seja, pequenos e grandes”, conta Paula, que sugeriu a concepção de uma estrutura metálica que criasse uma caixa suspensa para atender a tal propósito. “Escolhemos o aço também por uma questão de prazo, dimensionamento, desenho e custo”, explica a profissional.

Para a execução do projeto, que ao todo soma 170 m² de área total construída, as peças de aço foram entregues prontas na obra. “Os pilares e vigas chegaram ao local nas medidas exatas, fato que facilitou a implantação. Se tivemos algum corte na obra foram apenas pequenos ajustes. A instalação foi feita em uma semana”, lembra a arquiteta, que confessa ter tido um ótimo resultado em seu primeiro trabalho com estrutura em aço. “Nossa equipe ficou surpresa com a precisão da construção, algo que nunca havia acontecido em obras anteriores com outros materiais.”

Fotos Douglas Garcia/ Divulgação

Mais que uMa cobertura

Estruturas metálicas garantem a transparência e junto a outros materiais, como vidros e madeiras, transformam marquises e pergolados em verdadeiras obras de arte

34 &ARQUITETURA AÇO
Fotos Daniel Ducci/ Divulgação

Por sua leveza e resistência, o aço tem sido frequentemente empregado em projetos de pergolados e marquises. “Quando bem concebidos, tais elementos revelam coberturas que valorizam a passagem de luz em entradas de edifícios, acessos e em passarelas, que respondem bem à linguagem do vazio”, diz o arquiteto Siegbert Zanettini.

Nesta tipologia, em boa parte dos projetos as estruturas feitas com perfis de aço aparecem associadas a outros tipos de materiais para soluções de fechamento, como vidros, chapas metálicas ou madeira. A flexibilidade encontrada no uso do aço é percebida como um diferencial importante. “Praticamente, não há restrições para mesclar o aço com outros materiais”, conta Paulo Bacchin, da Prodenge Engenharia e Projetos.

Mas é preciso atenção com a seleção dos materiais que serão empregados, sempre levando em conta o ambiente em que a estrutura estará inserida, destaca o profissional. Assim, o uso dos tipos de aços de maior resistência à corrosão traz uma contribuição importante aos projetos. As tintas de proteção também podem ser adotadas para evitar danos e prolongar a vida útil das estruturas. Neste quesito, segundo Zanettini, os revestimentos à base de resina epóxi e poliuretano podem trazer bons resultados visuais, conforme é possível observar em alguns dos projetos a seguir. (M.G.) M

> Projeto arquitetônico:

RoccoVidal P+W

> Aço empregado: grelhas em aço de maior resistência à corrosão; chapa LQ COR

420 e perfis I W310 x 38,7

ASTM A572 12 mm

> Fornecimento do aço:

Metalúrgica Aragão

ARROJADO E ELEGANTE

uma grelha em aço de alta resistência à corrosão, com 2 mil m² de área, forma o pergolado que cobre a praça de acesso ao centro de eventos e atividades culturais do condomínio alphaville, em brasília (DF). o espaço, que foi projetado para, inicialmente, servir como ponto de vendas do condomínio, chama atenção por sua concepção arrojada e harmoniosa.

Pesando cerca de 50 toneladas, a grelha é apoiada em sete lâminas de concreto paralelas e vence um vão de 30 m, até encontrar-se com o bloco retangular da edificação. este, concebido em concreto, recebeu revestimento em pedra basáltica cinza.

35 &ARQUITETURA AÇO marquises e pergolados
36 &ARQUITETURA AÇO

RETROFIT URBANO

o centro cultural da estação red bull, construído em 2013 em um edifício tombado e antigamente ocupado por uma companhia de eletricidade, em são Paulo, abriga uma marquise metálica que mais parece flutuar no telhado. Lá, uma espécie de folha de aço de 178 m² compõe a cobertura de 22,5 toneladas apoiada em três pontos: dois pilares metálicos de seções e comprimentos distintos e um outro, de menor dimensão, na caixa do antigo elevador do edifício, que foi readaptado no retrofit além de proteger o espaço, a cobertura capta a água da chuva e a redistribui para os banheiros e para o antigo chafariz.

> Projeto arquitetônico: Triptyque Architecture

> Aço empregado: perfis laminados A572 GR50 e tubos, cantoneiras e chapas em aço ASTM A36

> Fornecimento do aço: Engemetal Estruturas Metálicas

37 &ARQUITETURA AÇO
marquises e pergolados
Fotos divulgação

> Projeto arquitetônico: Casa de Arquitetura

> Aço empregado: perfis em aço tipo ASTM A36 e ASTM

A572 G50

> Fornecimento do aço: Aço Vertical

FIXAÇÃO ESTUDADA

No hotel Hilton Morumbi, na zona sul de são Paulo, a marquise composta por perfis tubulares em aço pré-pintado e cobertura em vidro forma uma solução em grande balanço para a proteção da entrada principal do edifício. o principal desafio no projeto foi em relação à fixação na fachada revestida com granitos grampeados. como não foi possível ancorar a cobertura diretamente no revestimento, as treliças foram presas na estrutura do edifício e máscaras metálicas foram desenvolvidas para o arremate sobre o granito, simulando a fixação superficial. a estrutura, que conta com tubos e vigas calha em chapa dobrada, pesa 10 toneladas.

> Projeto arquitetônico: Botti Rubin Arquitetos

> Aço empregado: tubos e vigas em aço MR 250

> Fornecimento do aço: Forte Metal Estruturas Metálicas

DUPLA UTILIDADE

uma grande estrutura em aço, associada a fechamentos vazados em madeira e telhas translúcidas, cobre o acesso às instalações esportivas do condomínio sainte Helene, em campinas, são Paulo. No pergolado, foram utilizados perfis laminados em i, em L e chapas dobradas para compor a cobertura, além de perfis tubulares no centro da estrutura para a sustentação do conjunto, que cobre uma área de 828,4 m².

a proposta do projeto é oferecer, além de um espaço de circulação, um local para que o público possa assistir aos jogos nas quadras descobertas, localizadas no nível mais baixo do terreno.

38 &ARQUITETURA AÇO
Divulgação Fotos Divulgação

> EScRITóRIOS DE ARqUITETURA

Andréa Sevá www.andreaseva.com

Bete Dadalte www.betedadalte.com.br

Betty Birger Arquitetura www.bettybirger.com.br

Botti Rubin Arquitetos www.bottirubin.com.br

Brasil Arquitetura www.brasilarquitetura.com

Casa de Arquitetura www.casadearquitetura.com.br

Daniel Caliari Pollara danielpollara@lab.arq.br

Escala Arquitetura www.escala.arq.br

Frédéric Druot Architecture www.druot.net

GrupoSP www.gruposp.arq.br

HCH Arquitetura e Planejamento hcharquitetura@uol.com.br

Kohn Pedersen Fox Associates www.kpf.com

Lacaton & Vassal www.lacatonvassal.com

Pax Arquitetura www.pax.arq.br

Piratininga Arquitetos Associados www.piratininga.com.br

PPMS Arquitetos Associados www.ppms.com.br

Rocco Vidal P+W www.roccovidal.com.br

Tripper Arquitetura www.tripperarquitetura.com.br

Triptyque Architecture triptyqueblog.blogspot.com.br

Zanettini Arquitetura Planejamento e Consultoria www.zanettini.com.br

Zemel+Chalabi Arquitetos www.zemelchalabi.com

> PROJETO ESTRUTURAL Addvent Engenharia e Construções www.addvent.com.br

Aluizio D’Avilla Engenharia de Projetos www.aluiziodavila.com.br

Eder Pascoal Besson epbesson@uol.com.br

Figueiredo Ferraz Consultoria e Engenharia www.figueiredoferraz.com.br

Helio Ricardo Stefoni ricardo@compositeestruturas.com.br

Ponto de Apoio Engenharia e Arquitetura www.pontodeapoio.eng.br

PRCA Engenharia www.prcaeng.com.br

Prodenge Engenharia e Projetos paulo@prodengesp.com.br

RFR Group www.rfr-group.com

Sistema Engenharia e Arquitetura www.sistemaltda.com.br

Stec do Brasil Engenharia www.stecdobrasileng.com.br

Steel Tech BR Ltda. www.estruturas.eng.br

VP & Green www.vpgreen.fr

> ESTRUTURA mETáLIcA Açolink Estruturas e Obras Ltda. www.acolink.com.br

Aço Vertical www.acovertical.yolasite.com

Aracoara Construções Metálicas administrativo@aracoaraconstrucoes. com.br

BMC Construções Metálicas www.bmccm.com.br

Engemetal Estruturas Metálicas www.engemetal.com.br

Excon Steel www.exconsteel.cz

Forte Metal Estruturas Metálicas www.fortemetal.com.br

GG Construções Metálicas www.gg-cortedobra.com.br

ICC Escadas www.iccescadas.com.br

Metalúrgica Aragão www.metalurgicaaragao.com.br

Nicmetal – Totalmetal Indústria Metálica www.sistemaltda.com.br

PlanMetal Estruturas Metálicas www.planmetal.com.br

Plasmont Estrutura Metálica www.plasmont.com.br

RGB Engenharia Ltda. www.rgbengenharia.com.br

Serralheria Maxfer www.serralheriamaxfer.com.br

Skylight Estruturas Metálicas www.skylightestruturas.com.br

> EXEcUÇÃO DE OBRA BR Retrofit Gerenciadora www.brretrofit.com.br

C.P.A. Engenharia e Construções Ltda. www.cpaeng.com.br

DM Engenharia www.dmeng.com.br

Estatec Serviços Técnicos www.estatecampos.com.br

JZ Engenharia www.jz.eng.br

Idea! Zarvos www.ideazarvos.com.br

Luiz Augusto Roselli guga77@terra.com.br

OAS www.oas.com

Romeu Del Negro rogedn@hotmail.com

S.Brasil Arquitetura www.sbrasilarquitetura.com Incorporadora

39 &ARQUITETURA AÇO
eNDereços

Revista Arquitetura & Aço é uma publicação trimestral do CBCA (Centro Brasileiro da Construção em Aço)

produzida pela Roma Editora

CBCA: Av. Rio Branco, 181 – 28º andar

20040-007 – Rio de Janeiro/RJ

Tel.: (21) 3445-6332

cbca@acobrasil.org.br www.cbca-acobrasil.org.br

Conselho Editorial

Carolina Fonseca – CBCA

Humberto Bellei – Usiminas

Ronaldo do Carmo Soares – Gerdau

Silvia Scalzo – ArcelorMittal Tubarão

Supervisão Técnica

Arq. Silvia Scalzo

Publicidade

Ricardo Werneck

tel: (21) 3445-6332 cbca@acobrasil.org.br

números anteriores

Roma Editora

Rua Barão de Capanema, 343, 6º andar CEP 01411-011 – São Paulo/SP

Tel.: (11) 3061-5778

cbca@arcdesign.com.br

Direção

Cristiano S. Barata

Coordenação Editorial

Eliane Quinalia

Redação

Aline Mariane Fernandes, Bruno Loturco, Eliane Quinalia, Giovanny Gerolla, Maryana Giribola e Nicole Lallée

Revisão

Deborah Peleias

Editoração

Cibele Cipola (edição de arte)

Impressão Silvamarts

Endereço para envio de material: Revista Arquitetura & Aço – CBCA

Av. Rio Branco, 181 – 28º andar 20040-007 – Rio de Janeiro/RJ cbca@quadried.com.br

Tiragem: 5.000 exemplares

Distribuídos para os principais escritórios de engenharia e arquitetura do país, construtoras, bibliotecas de universidades, professores de engenharia e arquitetura, prefeituras, associações ligadas ao segmento da construção e associados do CBCA.

É permitida a reprodução total dos textos, desde que mencionada a fonte. É proibida a reprodução das fotos e desenhos, exceto mediante autorização expressa do autor.

os números anteriores da revista Arquitetura & Aço estão disponíveis para download na área de biblioteca do site: www.cbca-acobrasil.org.br

A&A nº 01 - Edifícios Educacionais

A&A nº 02 - Edifícios de Múltiplos Andares

A&A nº 03 - Terminais de Passageiros

A&A nº 04 - Shopping Centers e Centros Comerciais

A&A nº 05 - Pontes e Passarelas

A&A nº 06 - Residências

A&A nº 07 - Hospitais e Clínicas

A&A nº 08 - Indústrias

A&A nº 09 - Edificações para o Esporte

A&A nº 10 - Instalações Comerciais

A&A nº 11 - Retrofit e Outras Intervenções

A&A nº 12 - Lazer e Cultura

A&A nº 13 - Edifícios de Múltiplos Andares

A&A nº 14 - Equipamentos Urbanos

A&A nº 15 - Marquises e Escadas

A&A nº 16 - Coberturas

A&A nº 17 - Instituições de Ensino II

A&A nº 18 - Envelope

A&A nº 19 - Residências II

A&A nº 20 - Indústrias II

A&A Especial - Copa do Mundo 2014

errata ediçÃo 38

Matéria "Oficina de Aço", na página 13, informação sobre a cobertura do pátio de manutenção da linha 4 do metrô de São Paulo: “Trapezoidais, as telhas metálicas possuem 33 mm de altura de onda em chapas de aço galvalume, pré-pintadas (Sistema Coil Coating), na cor cinza e miolo em poliuretano com espessura de 30 mm, que garantem propriedades termoacústicas relevantes. O fechamento lateral do shed é feito em painéis duplo-térmicos em chapas de aço galvalume, pré-pintadas, micronervuradas e miolo em poliuretano de 40 mm de espessura, também na cor cinza."

Fornecimento das Telhas: Arcelor Mittal Perfilor

A&A nº 21 - Aeroportos

A&A nº 22 - Copa 2010

A&A nº 23 - Habitações de Interesse Social

A&A nº 24 - Metrô

A&A nº 25 - Instituições de Ensino III

A&A nº 26 - Mobilidade Urbana

A&A nº 27 - Soluções Rápidas

A&A nº 28 - Edifícios Corporativos

A&A Especial - Estação Intermodal de Transporte Terrestre de Passageiros

A&A nº 29 - Lazer e Cultura

A&A nº 30 - Construção Sustentável

A&A nº 31 - Construções para Olimpíadas

A&A nº 32 - Instalações Comerciais II

A&A nº 33 - Hotéis

A&A nº 34 - Shopping Centers

A&A nº 35 - Hospitais e Edificações para a Saúde

A&A nº 36 - Pontes e passarelas

A&A nº 37 - Estádios da Copa 2014

A&A nº 38 - Mobilidade Urbana

40 &ARQUITETURA AÇO
expediente

Executar grandes obras de mobilidade sem precisar parar o trânsito é um grande diferencial.

Os tubos de aço sem costura Vallourec permitem a construção de estruturas modulares, com facilidade de repetições, aplicabilidade em áreas urbanas e transposição de vias expressas. Além disso, as estruturas de tubos de aço proporcionam maior resistência aos esforços e menor custo de manutenção.

Disponibilizamos suporte técnico e customizamos soluções para o uso de estruturas tubulares em parceria direta com os clientes.

A Vallourec, primeira siderúrgica do Brasil a ser certificada na norma ISO 50001 (Sistema de Gestão de Energia), é líder mundial na produção de tubos de aço sem costura e atende aos setores petrolífero, industrial, automotivo, de energia e da construção civil.

Vallourec. A solução para grandes desafios.

vallourec.com/br

VALLOUREC.
Belo Horizonte: +55 (31) 3328-2874 | E-mail: vendas.estrutural-bra@vallourec.com
SOLUÇÕES RÁPIDAS PARA OBRAS DE MOBILIDADE URBANA.

O aço da Gerdau tem a força da transformação.

Os Perfis Estruturais Gerdau representam um jeito moderno de construir. Trazem beleza, inovação e flexibilidade, além de diminuir o tempo de construção e o desperdício de materiais. Do início ao fim, a qualidade que toda obra pede tem a marca da Gerdau.

www.gerdau.com.br

/gerdausa /gerdau

Para cidades cada vez mais modernas, nosso país tem a força do aço Gerdau. A força da transformação.

Turn static files into dynamic content formats.

Create a flipbook
Issuu converts static files into: digital portfolios, online yearbooks, online catalogs, digital photo albums and more. Sign up and create your flipbook.