Arquitetura & Aço nº 32 - Instalações Comercias II

Page 1

ARQUITETURA AÇO ARQUITETURA&AÇO

Uma publicação do Centro Brasileiro da Construção em Aço número 32 dezembro de 2012 Uma publicação do Centro Brasileiro da Construção em Aço número 32 dezembro de 2012

Instalações comerciais II

Nós mostramos.

Do projeto à montagem, a máxima confiabilidade Dânica para Construção Civil de grande porte.

90% PUR até 2015.

Telhas e fachadas térmicas Dânica. Solução Turn-Key, que otimiza tempo em construção de grandes obras.

Opções de Cobertura:

• ZipDânica Contínua - Lã de Rocha ou Lã de Vidro;

• TermoZip - PUR ou PIR;

• TermoRoof - PUR ou PIR.

Opções de Fechamento:

• TermoWall - Vertical ou Horizontal PUR ou PIR;

• Fechamento simples sem isolamento.

SUDESTE:

São Paulo, SP: 11 3043-7872

Jundiaí, SP: 11 2448-3700

Rio de Janeiro, RJ: 21 2498-0498

Betim, MG: 31 3593-5003

Produção com máquinas contínuas de alta qualidade, produtividade e com sustentabilidade.

NORTE: Belem, PA: 91 3255-7555

CENTRO-OESTE: Lucas do Rio Verde, MT: 65 3549-8200

Goiania, GO : 62 3582-9001

• ECONOMIA DE ENERGIA.

• ECONOMIA NA ESTRUTURA.

SUL: Joinville, SC: 47 3461-5300

Porto Alegre, RS: 51 3302-7308

NORDESTE: Recife, PE: 81 2125-1900

• REDUÇÃO EM ATÉ

40% NO SEGURO.

vendas@danica.com.br | www.danica.com.br

conecte-se ao grupodânica
Você procura por soluções do projeto à montagem para grandes obras.
Hyundai - Piracicaba, SP.

comerciais Demandas

Nas edições anteriores de Arquitetura & Aço, procuramos apresentar os avanços que o sistema construtivo em aço tem alcançado, demonstrando que esta tecnologia é uma grande aliada da construção civil. E se características como durabilidade, resistência e rapidez de montagem tornaram seu emprego indispensável às obras de infraestrutura, os mesmos fatores somados a sua estética contemporânea fazem do produto uma excelente solução para edificações comerciais.

Com linguagem característica e única, o aço possibilita criações arrojadas, como é o caso do showroom da Ferrari e Masserati, em São Paulo, onde o arquiteto recorreu a conceitos do ecodesign para a concepção de uma obra que une aço e concreto. Também imponente e original é a loja da Suxxar, em São Paulo, cuja estrutura metálica colaborou não só com o design, mas com o prazo reduzido da construção. Ainda na área gourmet, o restaurante Zozô, no Rio de Janeiro, se abre para a paisagem com a combinação de aço e vidro.

Também na capital paulista, showroom da Hyundai se destaca pela sóbria combinação do aço e do vidro. Dois outros estabelecimentos que também se beneficiaram da rapidez e da limpeza da construção em aço são mostrados nesta edição: o Torra Torra, em São José do Rio Preto, e o supermercado Angeloni, que passou por projeto de reforma sem interrupção de suas atividades.

Na entrevista dessa edição, o arquiteto Luiz Fernando Rocco fala de sua afinidade com o aço e o uso de elementos metálicos aparentes. Um exemplo é o restaurante Empório Baglioni, de sua autoria e apresentado aqui. Por fim, uma agência da Caixa Econômica Federal, em Posse (GO), em steel framing, que integra a proposta de novos projetos que buscam responder a questões de sustentabilidade. Já no cenário internacional, apresentamos o The Cube, um insólito restaurante itinerante que, como uma instalação, percorre as capitais europeias. Boa leitura!

1 &ARQUITETURA AÇO
Foto Cinara Piccolo
sumário
Foto da capa: Showroom da Hyundai em São Paulo Arquitetura & Aço nº 32 dezembro 2012
16. 12. 08. 04. 20. 26. 24. 22. 32. 28.
Divulgação Spadoni AA

04. Na capital paulista, concessionária da Hyundai é construída em aço e vidro. 08. Restaurante

Zozô é destaque em meio à paisagem natural do Rio de Janeiro. 12 Projeto da nova loja da Suxxar , em São Paulo, foi concebido com sistema estrutural que remete ao “duplo X” da marca. 16. Estrutura metálica viabiliza projeto de ampliação do supermercado Angeloni, em Santa Catarina. 20. No interior de São Paulo, filial da loja Torra Torra tem estrutura em aço aparente. 22. Ambiente intimista com ares de galpão industrial define a linguagem do restaurante Empório Baglioni, em São Paulo. 24. Em entrevista, arquiteto Luiz Fernando Rocco revela o porquê de sua afinidade com o aço. 26. Sistema steel framing possibilita cons -

trução de agência da Caixa Econômica Federal em apenas 60 dias. 28. Como uma instalação, restaurante itinerante The Cube percorre países da Europa. 32. Showroom da Ferrari e Masserati, em São Paulo, é projetado sob ideais de ecoeficiência.

ENDEREÇOS 35

Para

ver visto e ser

Showroom da h yundai , na zona S ul de S ão P aulo , P rivilegia a tran SParência ao S er con S truído ba S icamente em aço e vidro

Por meio de uma sobrePosição de transParências, o Pavilhão da Hyundai, localizado no bairro do Morumbi, em São Paulo, se destaca por permitir a visibilidade total da área interna da loja, ao mesmo tempo em que, de dentro do edifício, mantém a vista da cidade. Para uma concessionária, mais do que uma opção estética, ver e ser visto é uma estratégia importante para garantir a exposição e valorizar seus veículos.

O projeto foi desenvolvido para ser executado em três meses. “Isto implicou no uso de sistemas construtivos racionalizados, como as estruturas em aço, solução que favoreceu a expressão dos demais materiais empregados”, explica o arquiteto Tiago Andrade, coordenador técnico da Spadoni AA. “O aço ofereceu agilidade, simplicidade, luminosidade e leveza estrutural para o tipo de projeto que desejávamos”, complementa.

A composição da estrutura metálica levou em consideração o peso dos vidros, garantindo maior transparência por meio da utilização de perfis esbeltos. Na fachada, é possível observar as vigas e as colunas em perfis laminados. Cruzando diagonalmente esta trama, os contraventamentos são em perfis tubulares.

Toda a edificação é fechada por painéis de vidro. Outro destaque é a fachada principal, que tem 45 m de comprimento e 9,60 m de altura, superando o pé-direito do showroom, que é de 7 m. A construção está elevada a 1,20 m do nível da rua, e apoiada sobre uma base de concreto. Desta maneira, é possível visualizar melhor o seu interior, mesmo quando há carros no estacionamento. A planta em L é composta, basicamente, por dois blocos; outra solução, que gerou leveza visual ao partido arquitetônico, foi a criação de um mezanino onde foram instalados o departamento administrativo, os sanitários, bem como recepção e área de entrega de carros. Abaixo, ficam os veículos expostos e área de atendimento.

&ARQUITETURA AÇO 5
Vigas metálicas dão horizontalidade ao edifício, marcando linhas de ponta a ponta e afastadas 70 cm dos pilares
AA
Foto Divulgação Spadoni

Sistema de fixação

Por se tratar de uma “grande caixa de vidro”, o desafio foi encontrar uma solução construtiva que permitisse a supressão completa dos caixilhos, maximizando a transparência da construção ao aplicar as placas de vidro diretamente na estrutura principal. Segundo o arquiteto, as superfícies são formadas por painéis de vidro laminado com espessura de 12 mm, com modulação horizontal de 1,25 m e vertical de 3,20 m. Posicionados à frente da estrutura metálica, os painéis estão fixados apenas nas estruturas horizontais, eliminando os montantes verticais.

Para executar a fixação da primeira fileira horizontal de vidros na estrutura metálica, o projeto lançou mão de inserts de aço inoxidável, chumbados no piso do pavilhão. Desta maneira, não foram necessários caixilhos ou colunas demarcando cada uma das folhas de vidro. Uma viga metálica, formada por dois perfis, percorre todo o perímetro do edifício no nível intermediário do pavilhão e está afastada 70 cm dos apoios verticais acentuando a horizontalidade da solução. Esta estrutura horizontal é for-

> Projeto arquitetônico: Spadoni AA (responsável: Francisco Spadoni; coordenador: Tiago Andrade; equipe: Carolina Mina Fukumoto, Fabiana Benine, Ricardo Canton e Sabrina Chibani; coordenação Hyundai-CAOA: J.Pereira, e Priscila Sperandio)

> Área construída: 1.170 m²

> Aço empregado: ASTM A36, ASTM A572 e ASTM A500 (tubos)

> Projeto estrutural: Prodenge Engenharia

> Fornecimento da estrutura metálica: Açotec Indústria e Comércio

> Execução da obra: Lampur Engenharia

> Local: São Paulo, SP

> Data do projeto: 2009

> Conclusão da obra: 2009

6 &ARQUITETURA AÇO

À esquerda, a grande parede de vidro da Avenida Chucri Zaidan tem 45 m de comprimento e 9,60 m de altura, superando o pé-direito do showroom, que é de 7 m. Acima, à direita, observam-se, em detalhes, os painéis de vidro que formam o envelope de fechamento

mada por dois perfis de aço laminado, avançando 70 cm para o exterior da loja, e soldada à superestrutura da construção. A cada 10 m, no comprimento da travessa, foram soldadas cantoneiras em aço inox, contribuindo para o suporte dos vidros da parte superior, onde foi utilizado silicone estrutural para a sua fixação.

Devido ao tipo de fechamento com grandes panos de vidro, um sistema de cortina em rolo foi instalado na fachada principal, sendo acionado nos horários em que o sol é mais intenso, acentuando a sobreposição de superfícies e transparências do edifício. (e c.) M

&ARQUITETURA AÇO 7
Fotos Divulgação Spadoni AA

Paisagem privilegiada

8 &ARQUITETURA AÇO E strutura E m aço do r E staurant E Z o Z ô põ E E m d E staqu E a vista para a E stação do "B ondinho " E o m orro C ara d E C ão , no r io d E J an E iro
Foto Michael Biersack

O projeto explora a ideia das bay windows, em estrutura metálica e vidro, e incorpora ao espaço uma centenária mangueira

Que a beleza natural é característica do rio de Janeiro, ninguém discute. Integrar e desfrutar desta beleza em meio a tantas construções típicas de uma grande cidade, porém, é um desafio que parece instigar os arquitetos, urbanistas e empresas do setor da construção. Exemplo disso é o restaurante Zozô, na zona sul da cidade.

Com 1.750 m2 de área construída, num terreno de 750 m2, e estrutura em aço, totalizando quatro pavimentos, o espaço é um complexo gastronômico e de entretenimento. O grande destaque é sua inserção na paisagem: está localizado ao lado da estação do “Bondinho”, em frente aos morros da Urca e do Pão de Açúcar, e de fundos para a encosta rochosa do Morro Cara de Cão.

O desafio inicial da obra foi destacar o Zozô e, ao mesmo tempo, “desintegrá-lo” no seu entorno imediato, um dos maiores ícones do Rio de Janeiro e do Brasil, segundo o arquiteto Vicente Giffoni, diretor do escritório responsável pelo projeto.

Tudo foi pensado a partir da criação das chamadas bay windows – retráteis, em estrutura metálica e vidro com controle solar –, responsáveis por potencializar as perspectivas visuais do entorno, e integrar os três pavimentos de uso público com a mangueira centenária que atravessa o restaurante. O pavimento dedicado às áreas de infraestrutura, fica em meio nível em relação ao terreno. Todas as janelas instaladas contam com esquadrias móveis em aço de maior resistência à corrosão, mesmo material dos perfis “I” da estrutura.

Ainda de acordo com o arquiteto Giffoni, o aço garantiu rapidez na fase construtiva, diminuição das sobrecargas, minimização de

&ARQUITETURA AÇO 9
C ort E longitudinal

desperdícios e perdas no canteiro. “Sem falar que no aspecto estético, deu um ar mais esbelto à construção.”

Pelas características multifuncionais e pela necessária flexibilidade de uso, o partido desenvolveu-se de modo a maximizar as áreas de estar e atendimento, além de um núcleo de circulação vertical, alimentando o restaurante e o lounge no térreo. A cobertura e o terraço contam com uma casa de shows e área de eventos, respectivamente. A implantação escalonada permitiu maximizar a iluminação natural e a ventilação, aumentando a sensação de amplitude. Além disso, a transparência do fechamento em vidro garantiu o acesso ao cenário privilegiado. (c.e.) M

> Projeto arquitetônico: VG. Vicente Giffoni Arquitetura e Planejamento Ltda.

> Área construída: 1.750 m²

> Aço empregado: aço de maior resistência à corrosão

> Projeto estrutural: Projest Consultoria e Projetos

> Fornecimento da estrutura metálica: BR-Aço

> Execução da obra: Arte Engenharia

> Local: Rio de Janeiro, RJ

> Data do projeto: 2003

> Conclusão da obra: 2007

Acima, o espaço gastronômico e de entretenimento tem quatro pavimentos e foi construído inteiramente com estrutura em aço. Dos fundos da construção se avista o Morro Cara de Cão. À esquerda, na imagem aérea é possível entender o conceito de implantação do restaurante

10 &ARQUITETURA AÇO
Foto Michael Biersack

Marca registrada

P ilares de aço em "X" reforçam a ligação entre a marca s u XX ar e sua loja

O prOjetO da nOva LOja Suxxar, em São Paulo, encomendado ao escritório de arquitetura de Jayme Lago

Mestieri pelo Grupo Santa Helena, apresentou o desafio de abrigar cerca de 10 mil acessórios e utensílios para o segmento gourmet. Inspirando-se no próprio nome da empresa, o arquiteto concebeu um sistema estrutural que remete ao duplo X da marca. A opção pela estrutura em aço, segundo

o arquiteto, além de colaborar com o design, também garantiu a redução do prazo de entrega da obra.

Em um terreno vazio de 400 m2, localizado na Avenida Faria Lima, em São Paulo, e há duas quadras do antigo endereço da loja, o gabarito permitia a construção de no máximo dois pavimentos, o que se tornou uma dificuldade, diante da necessidade de espaço para exibição dos inúmeros produtos e também para o estacionamento de veículos.

A solução foi aproveitar a área ao máximo. Subdividida em dois blocos, interligados pelo acesso central, que acolhe o elevador e escadas, a loja abriga, no térreo, uma área de estacionamento para

A fachada marcante apresenta estrutura em aço e fechamento em vidro. Um rendilhado composto por letras "X", fabricado em aço, dá um toque de elegância ao projeto

Foto Ary Diesendruck

17 veículos e uma grande vitrine, onde estão expostos os produtos maiores da loja, os eletroportáteis e eletrodomésticos. Atrás da recepção, a área para funcionários conta com vestiários masculino e feminino, além de um refeitório. O piso superior comporta, além da exposição de todos os outros produtos, o estoque, dois banheiros e os caixas. A Suxxar segue um conceito diferenciado na exposição dos seus produtos. Eles são organizados não pelo tipo, mas pelo uso. Assim, a loja sugere diferentes momentos: Preparar, Cozinhar, Servir, Comemorar e Organizar.

O arquiteto Mestieri destaca que vários fatores acabaram favorecendo a utilização do aço na estrutura. Como ele se inspirou no nome da loja para projetar as paredes inclinadas e os pilares em “X”, necessitava de um material adequado para sua execução. “Se as

paredes inclinadas fossem executadas em alvenaria, aumentariam muito o peso da estrutura, ao contrário do aço, que deu leveza ao projeto.”

A estrutura em aço agregou transparência e leveza à fachada se adequando facilmente à caixilharia. Ainda na fachada, que tem vista para a Avenida Faria Lima, um brise constituído por uma chapa de aço estampada e vazada, compondo letras "X", colabora para a proteção solar. Para a cobertura, foram utilizadas telhas

14 &ARQUITETURA AÇO
Fotos Ary Diesendruck

A edificação foi dividida em dois blocos ligados entre si. Eles foram apoiados em pilares convencionais e nos quatro pilares em formato de "X", conforme pode ser visto na imagem acima e, abaixo, à esquerda. Na área interna, as instalações e a estrutura do telhado são aparentes, proporcionando uma linguagem contemporânea e elegante à loja

metálicas termoacústicas, além da própria estrutura em aço.

Na área interna, com o objetivo de propiciar um ambiente com visual contemporâneo, o arquiteto optou por deixar aparentes as instalações e os materiais utilizados.

Estrutura metálica

O engenheiro Flávio Motta Júnior, da Trianon Engenharia de Projetos, responsável pela parte estrutural, explica que a edificação foi dividida em dois

> Projeto arquitetônico: Jayme Lago Mestieri

> Área construída: 400 m2

> Aço empregado: ASTM A572 GR 50

> Volume de aço: 38 t

> Projeto estrutural: Trianon Engenharia de Projetos

> Fornecimento da estrutura metálica: Trimetal Estruturas Metálicas e Construção Civil

> Execução da obra: Souza Lima Construtora

> Local: São Paulo, SP

> Data do projeto: 2010

> Conclusão da obra: 2011

blocos, ligados entre si. O primeiro se apoia sobre pilares convencionais e o segundo, sobre os quatro pilares em “X”, que, devido a sua geometria e às vigas em balanço nos seus contornos, tornaram-se um grande desafio. A estrutura do piso superior utiliza uma grelha reticulada em aço, revestida com material laminado melamínico, que acompanha o revestimento da empena lateral.

Toda a estrutura utiliza pilares metálicos com seção de 150 x 150 mm. Apenas os quatro pilares em “X” do térreo são diferenciados e têm 250 mm na transversal. A edificação utiliza laje steel deck no segundo piso. Motta Júnior completa dizendo que o projeto do mobiliário foi pensado de forma a incorporar a estrutura, fazendo com que os pilares se confundissem com os móveis, uma ideia já aplicada em outras lojas da rede. (M.C.S.) M

&ARQUITETURA AÇO 15

Em EstabElEcimEntos comErciais, ampliar os espaços é sinal de que os negócios vão bem, mas uma reforma pode significar dias ou até meses de funcionamento paralisado. Para evitar prejuízos, no projeto de ampliação do supermercado Angeloni, localizado em Criciúma (SC), o arquiteto Douglas Piccolo investiu no conceito de obra limpa, baseado em estruturas pré-fabricadas em aço, entre outras soluções industrializadas. A tecnologia possibilitou a execução da obra em apenas seis meses, sem interrupção no funcionamento do supermercado.

“Além da rapidez, com o uso do sistema, a perda de materiais foi praticamente zero”, afirma o arquiteto. A construção preexistente, projetada pelo mesmo profissional em 1976, contava com 10.800 m2

de área construída, distribuída em dois andares. Durante a reforma, as atividades do supermercado foram deslocadas, inicialmente, para o pavimento térreo, sendo depois transferidas para o andar superior. O térreo foi transformado em subsolo e, entre os dois andares foi construído mais um pavimento.

As novas estruturas foram executadas em perfis metálicos laminados e lajes steel deck, incluíram pilares mistos, que combinaram aço e concreto.

16 &ARQUITETURA AÇO
Foto Cinara Piccolo

Fluidez e transparência fazem parte do partido arquitetônico, que buscou a solução de uma nave central cercada pelo centro comercial

pronta entrega

“O fato de serem esbeltas, deu origem a uma construção, do ponto de vista visual, mais leve e elegante”, analisa Piccolo. Além disso, este tipo de concepção estrutural facilitou a instalação dos demais componentes industrializados adotados na obra, como os painéis isotérmicos, entre outros sistemas. Já os tubos de seção circular compõem os apoios inclinados, além de toda a estrutura da cobertura e o sistema de suporte dos fechamentos em vidro.

Nova configuração

Ao todo, foram utilizadas 494 toneladas de aço, com a estrutura deixada aparente, tirando-se partido estético de seus elementos.

E strutura E m aço agiliza r E forma d E sup E rm E rcado E m s anta c atarina
&ARQUITETURA AÇO 17
Para

Acima, praça de alimentação. Os tubos de seção circular que compõe a estrutura dão suporte aos fechamentos em vidro. Nas áreas internas, é possível observar a estrutura aparente na cobertura, que ainda recebeu sheds para a entrada de luz natural. A fachada é composta por painéis isotérmicos e vidros autolimpantes

Fotos Cinara Piccolo

“Elaboramos, cuidadosamente, cada detalhe da estrutura, principalmente da parte em que foi adotado o sistema metálico”, explica Piccolo.

Para reforçar a contemporaneidade do projeto, o arquiteto criou uma marquise, com formas geométricas inspiradas em elipse.

Instalado sobre uma estrutura em aço, o elemento arquitetônico chama a atenção de quem passa pela Avenida Centenário, principal via da cidade. A solução contrastou com os antigos arcos de concreto, conservados da obra original.

A nova configuração conta com uma nave central, que abriga o supermercado, e em torno dela ergueu-se um centro comercial, com praça de alimentação para 600 pessoas e diversas lojas complementares. O piso térreo foi destinado para serviços, como cabeleireiro e pet shop, enquanto o subsolo abriga uma academia de ginástica.

Questões ambientais também foram consideradas. Privilegiando a entrada de luz natural, o sistema de

> Projeto arquitetônico: Douglas Piccolo

> Área construída: 37.400 m²

> Aço empregado: aço de maior resistência à corrosão; ASTM A36; ASTM A572 GR 50 (estrutura); ZAR 280 (steel deck)

> Volume do aço: 494 t

> Projeto estrutural: HF Engenharia – Hercílio Ferrari

> Projeto estrutural da cobertura: João Pedro Kossmann - Engeaço

> Fornecedor de estrutura metálica: Engeaço

> Execução da obra: departamento de obras da rede Angeloni (engenheiro Leandro da Silva Mello)

> Local: Criciúma, SC

> Data do projeto: 2009/2010

> Conclusão da obra: 2011

fachada de vidro autolimpante e a instalação de sheds possibilitam a integração do ambiente com a área externa, tornando-se um agradável local de permanência ou encontro. Além disso, a água da chuva passou a ser armazenada em um grande reservatório, sendo utilizada para limpeza e manutenção das instalações. As fontes de calor também foram isoladas e a construção adequada ao aproveitamento de irradiação solar: coletores solares são usados para o aquecimento de água e placas fotovoltaicas para a geração de energia elétrica.

Com o resultado extremamente positivo do trabalho, o arquiteto foi convidado para assinar outros projetos para a mesma rede em diversas cidades no Sul do país. (c a.) M

&ARQUITETURA AÇO 19

Máxima visibilidade

A locAlizAção do terreno erA privilegiAdA: uma esquina de frente para uma praça. Ao conceber o projeto de uma das filiais da loja Torra Torra, em São José do Rio Preto (SP), o escritório Trikini Arquitetura e Design pensou em uma edificação com três pavimentos, tirando partido da visibilidade.

De acordo com a arquiteta Paula Fagundes, da Trikini, o aço foi escolhido para compor as estruturas devido à facilidade de execução, uma vez que as peças chegam prontas ao canteiro, além da redução das seções estruturais. “O espaço físico para a construção era limitado a uma área de 1.734 m2, o que obrigou que a montagem fosse realizada em uma sequência preestabelecida em projeto”, afirma a arquiteta.

A estrutura em aço é aparente desde a entrada principal do prédio, onde há um átrio com pé-direito de 15 m, coberto por uma pele de vidro, que ocupa a esquina onde está o edifício. Como forma de realçar a fachada, foram utilizados painéis metálicos com acabamento em vermelho.

Para a estrutura foram utilizados perfis "H", de 300 mm, para as colunas, e perfis "I", de 250 a 700 mm para as vigas. Para os casos com maior

20 &ARQUITETURA AÇO
E x E cutado com E strutura E m aço E átrio d E vidro , a L oja t orra t orra , E m s ão j osé do r io P r E to , E xib E Partido arquit E tônico cont E m P orân E o Foto divulgação

> Projeto arquitetônico: Trikini

Arquitetura e Design (Paula Fagundes)

> Área construída: 7.134 m²

> Aço empregado: ASTM A572

GR 50 e aço de maior resistência à corrosão

> Volume de aço: 420 t

> Projeto estrutural: Paulo Sergio de Souza Ribeiro (Ferenge Estruturas

Metálicas)

> Fornecimento das estruturas

metálicas: EMTEC Construções

Metálicas

> Execução da obra: Salvatta

Engenharia

> Local: São José do Rio Preto, SP

> Data do projeto: 2010

> Conclusão da obra: 2012

solicitação, a opção foi por perfis soldados com aço de maior resistência mecânica e à corrosão.

Vigas mistas

A edificação utiliza sistema de laje forma metálica tipo steel deck. Com exceção da cobertura do estacionamento, onde a laje steel deck foi deixada aparente, os tetos dos demais pavimentos foram rebaixados com painéis de gesso acartonado para embutir as instalações e a iluminação da loja.

Do ponto de vista estrutural, as vigas foram calculadas como mistas, uma vez que se ligam à laje por stud bolts, formando um conjunto resistente.

“O conjunto da estrutura metálica com as lajes steel deck nos proporcionou a eliminação do escoramento, garantido rapidez em todo o processo construtivo, sobretudo durante a etapa

O aço compõe as estruturas básicas e se destaca visualmente na entrada principal da edificação, onde há um átrio com pé-direito de 15 m coberto por uma pele de vidro. Da garagem, é possível visualizar a laje steel deck conectada às vigas e pilares de aço

de fechamentos”, destaca Marco Aurélio Moraes, engenheiro da Salvatta Engenharia, responsável pela execução da obra.

Entre os recursos para conferir maior sustentabilidade à construção, foi utilizado um sistema para a captação e reuso de águas pluviais, bem como a instalação de cobertura com telhas isotérmicas, compostas por chapas galvanizadas preenchidas por EPS, a fim de garantir o conforto térmico da edificação e a redução do custo com sistemas de ventilação. (e c.) M

&ARQUITETURA AÇO 21
Fotos divulgação

Conceitos antagônicos

C onstruído a partir dos pre C eitos da boa arquitetura , restaurante revela ambiente intimista C om ares de galpão

Vista interna do restaurante, onde as vigas e as tesouras metálicas receberam destaque. Ao lado, vista externa, com a varanda em primeiro plano, que, dando continuidade à calçada, liga as áreas externa e interna

Situado no itaim, em São Paulo, o restaurante Empório Baglioni foi projetado pela RoccoVidal a partir de um conceito de integração entre os ambientes. A entrada funciona como continuidade do passeio, uma espécie de “praça de interligação” entre a área pública e a privada.

Contemporânea, a construção se destaca por linguagens distintas: de um lado, elementos comuns a projetos de galpões de fábrica, como pé-direito duplo, vigas e demais instalações aparentes, além do uso de materiais rústicos como a pedra. Do outro, a presença de soluções requintadas no projeto de interiores, reveladas na aplicação de filetes de madeira em composição com o vidro e a parede de espelho. Para complementar a ambiência, o efeito luminotécnico evidencia os materiais e a configuração dos ambientes, criando efeitos de luz e sombra.

> Projeto arquitetônico: Rocco

Vidal P+W

> Área construída: 816 m²

> Aço empregado: ASTM A572 GR 50

> Volume de aço: 120 t

> Projeto estrutural: Pedro Paulo

Maciel Engenharia Estrutural & Consultoria

> Fornecimento da estrutura

metálica: Gradimetal Construções

Metálicas

> Execução da obra: DMF Construtora e Incorporadora

> Local: São Paulo, SP

> Data do projeto: 2009

> Conclusão da obra: 2010

Mas, afinal, por que a adoção de conceitos tão antagônicos em um único espaço? No que se refere à linguagem arquitetônica, todas as escolhas foram feitas com base nas características do restaurante. Quanto à combinação dos sistemas construtivos – em aço e concreto –, o arquiteto Luiz Fernando Rocco, admirador confesso do aço, afirma que a opção pelo material foi devido à praticidade e rapidez na montagem que este proporciona. Sem contar, é claro, a resistência e estética únicas.“Tínhamos um prazo muito reduzido para a execução do projeto, além de limitações no lote e no canteiro de obras”, justifica. O arquiteto explica que devido ao perfil da construção – projeto de tipologia comercial implantado em terreno locado –, o cliente tinha a máxima urgência em iniciar as atividades do estabelecimento.

Sistema misto

Com área de 816 m2, a edificação tem estrutura concebida a partir de elementos em concreto armado e perfis laminados em aço. “Lajes pré-moldadas treliçadas se apoiam em vigas de concreto e em perfis de seção 'I'", explica o engenheiro Pedro Paulo Maciel, responsável pelo cálculo estrutural da obra.

O pé-direito elevado possibilitou a criação de um elegante mezanino, cujas seções dos perfis estruturais foram uniformizadas para perfis W 310 x 28.3, em função das vigas mais solicitadas e sujeitas a maiores deformações.

Já a opção por telhado em água conferiu amplitude aos espaços. Para explorar a plasticidade dos materiais, o arquiteto fez questão de manter as tesouras metálicas aparentes. A cobertura é composta por telhas metálicas termoacústicas apoiadas em terças metálicas tipo “U”, a cada 1,55 m. Pode-se dizer que o efeito inusitado dos materiais de acabamento junto ao uso de sistemas construtivos distintos potencializou a intenção do arquiteto em criar um ambiente intimista e sóbrio, porém, com ares de galpão de fábrica. Bem-sucedida, a ideia rendeu ao escritório RoccoVidal menção honrosa no Prêmio Asbea 2010. (n.F.) M

&ARQUITETURA AÇO 23
Fotos Daniel Ducci

Preferência estética

Formado pela FAU-Mackenzie, o arquiteto Luiz Fernando Rocco e seu sócio Fernando Vidal anunciaram, recentemente, a união com a Perkins+Will, escritório de arquitetura e design americano, com 24 unidades em todo o mundo. A empresa está inaugurando um novo modelo no mercado de arquitetura do Brasil, com projetos colaborativos que aproveitam, em tempo real, toda a estrutura dos mais de 1.400 profissionais locados em diversos países. “A Perkins+Will passa a ter acesso ao mercado sul-americano, enquanto a RoccoVidal faz a operação nacional de uma estrutura colaborativa global”, destaca. Com 32 anos de profissão, confessa ter grande afinidade com o aço. Observando-se seu portfólio, é fácil entender porquê. Rocco tem preferência pela estética aparente do material, além de considerar, é claro, a indiscutível resistência do aço. Para ele, os sistemas construtivos industrializados chegam para atender a diversos impasses urbanos. “Em geral, construções comerciais são realizadas em regiões de grande adensamento, o que tem tornado quase obrigatória a adoção de sistemas construtivos industrializados.”

AA – Quando surgiu o interesse pelo uso do aço?

LFR – Desde a faculdade, me interesso pelo aço como elemento estrutural. O arrojo da estrutura é mais fácil de ser executado em aço do que em outros materiais. A pré-fabricação me atrai, sobretudo devido à falta de qualificação de mão de obra. Ainda que tenhamos deficiências nos serviços executados no canteiro, não atrapalha o resultado arquitetônico pelo fato das peças chegarem prontas ao local. Outro ponto que sempre me chamou a atenção foi a resistência do material e a leveza arquitetônica, do ponto de vista visual. Porém, o que me encanta mesmo é tirar partido da estética do aço. Gosto de deixá-lo aparente.

AA – Então, quer dizer, o aço sempre influencia a estética dos projetos, sobretudo comerciais?

LFR – Sim, desde que o projeto tire partido da estrutura. O aço propicia uma linguagem característica e única. Mas existem projetos em que isso não acontece. Em Brasília, por exemplo, muitos prédios são em aço, apenas revestidos em concreto. Quem olha, nem imagina. A rapidez da construção na época só foi possível graças ao aço; do contrário, levaria muito mais tempo para ser erguido. Em Nova York, 80% dos edifícios são em aço, mas o material não é visível, pois as estruturas são revestidas.

Eu, particularmente gosto de ousar no uso do material e mostrar porquê estou usando. Mas isso varia de arqui-

24 &ARQUITETURA AÇO
Foto divulgação

teto para arquiteto. Um bom exemplo é Paulo Mendes da Rocha. Em seus projetos, “a estrutura canta”, pois ele aplica sempre o material de acordo com o seu melhor desempenho.

AA – De que maneira o uso do aço pode contribuir com os projetos de instalações comerciais?

LFR – As estruturas em aço trazem flexibilidade e mais racionalidade ao projeto. Sem contar que, por serem mais leves, favorecem o menor gasto com fundações e aproveitamento de terrenos com baixa capacidade de carga. Uma característica importante do sistema metálico é que ele traz velocidade à execução da obra, possibilitando, com isso, ganhos adicionais pela ocupação antecipada do imóvel e pela rapidez no retorno do capital investido. Para o segmento comercial, estas questões são imprescindíveis, uma vez que o estabelecimento começa a operar em curto prazo de tempo. Neste tipo de construção, existem outros pontos importantes, como a falta de canteiro de obras. Em geral, construções comerciais são realizadas em regiões com grande ocupação, o que torna quase obrigatória a adoção de sistemas construtivos industrializados.

AA – O aço pode ser uma solução construtiva para regiões com adensamento urbano, uma tendência para os próximos anos?

LFR – Os sistemas construtivos industrializados chegam para atender a diversos impasses urbanos. Em função dos

novos investimentos em infraestrutura, em obras esportivas, outras construções são desencadeadas. E se tudo não for muito bem planejado, a cidade se tornará um verdadeiro caos. Não há tempo e nem espaço para construções in loco. A tendência é buscar melhorar cada vez mais as cidades, mas as coisas têm de acontecer rapidamente, para não causar grandes impactos à qualidade de vida das pessoas.

AA – Uma obra em aço é pensada de maneira diferente?

LFR – Um projeto não precisa, necessariamente, nascer em aço ou em concreto. Porém, tudo o que é previamente pensado, certamente tem melhor desempenho. Por outro lado, o aço pode solucionar muitas adaptações estruturais durante uma reforma, por exemplo. Um estabelecimento pode ser ampliado, sem que as atividades sejam paralisadas. Temos casos interessantes em que o material também resolve problemas diversos, sem o qual seria impossível modificar ou ampliar um imóvel, a exemplo de obras de retrofit muito bem resolvidas. Mas, quando um projeto nasce em aço, o resultado é muito mais satisfatório.

AA – Como você vê a participação do aço em relação a outros processos construtivos?

LFR – Em primeiro lugar, acho que de um modo geral, o mercado deve aumentar cada vez mais o uso dos sistemas construtivos industrializados: banheiros prontos, placas pré-fabricadas de fechamento e revestimento etc. Se toda a cadeia evoluir para a adoção de sistemas inteligentes, não há como dispensar o uso de estruturas metálicas em um projeto. O sistema não peca em tecnologia para aumentar as opções de uso – a evolução, aliás, anda muito bem. Para a proteção passiva, por exemplo, já existem diversos recursos de proteção ao fogo. Ao mesmo tempo, os próprios perfis evoluíram, adquirindo maior flexibilidade de aplicação, com novos desenhos e abas assimétricas e maior resistência, o que garante maiores vãos.

AA – Como os arquitetos podem auxiliar na expansão do aço no país?

LFR – Primeiro, pela troca de informações. A comunicação ajuda muito na divulgação. Além disso, quanto maior a produção, menor o custo. A estrutura em aço padronizada acaba tendo um custo menor. Para mim, não há como retroceder. A tendência é de aplicação cada vez maior desse tipo de tecnologia, em virtude das demandas do país. (N. F.) M

&ARQUITETURA AÇO 25

Inteligência construtiva

C aixa E C onômi C a F E d E ral inv E st E E m t EC nologia para a C riação d E agên C ias EC ologi C am E nt E C orr E tas

A pArtir de normAtivAs e diretrizes internAs, a Caixa Econômica Federal, responsável por 4.790 imóveis, entre agências e prédios administrativos, tem investido na sustentabilidade de seus projetos. Exemplo disto são as três agências inauguradas neste ano: uma no Distrito Federal, outra na cidade de Campos Belos (GO), e, a mais recente, no município de Posse (GO), localizado a 400 km de Brasília.

Com uma área útil de 640 m2, a obra de Posse foi iniciada em novembro de 2011 e levou apenas 60 dias para ficar pronta. A rapidez na execução do projeto se deve ao sistema construtivo empregado, o steel framing, cuja característica principal é a adoção de estrutura constituída por perfis leves conformados a frio, em aço galvanizado, utilizado para a composição de painéis estruturais.

A sustentabilidade também influenciou a escolha do steel framing por parte do departamento de obras da CEF, visto que o objetivo é atuar na promoção do desenvolvimento sustentável do país. De acordo com o engenheiro civil Rivelino Andrighetti de Almeida e o gerente de padrões de engenharia e arquitetura Martiniano

Ribeiro Muniz Filho, que acompanharam o projeto, a utilização de perfis leves de aço confeccionados sob medida diminui os custos com transportes. “Além disso, neste tipo de construção, a geração de resíduos é extremamente baixa e todo o descarte, quando há, pode ser reciclado”, afirmam os profissionais.

Outra preocupação, segundo eles, foi em relação ao conforto térmico da edificação, aspecto favorecido pelo sistema de fechamento por painéis contendo proteção térmica. Destaca-se, ainda, a redução no prazo da obra – que pode atingir até 40% devido ao caráter industrial do processo construtivo, que possibilita rápida montagem

26 &ARQUITETURA AÇO
Fotos Divulgação CEF

À esquerda, projeto da Caixa Econômica Federal de Posse. A estrutura pode ser resumida em um simples sistema de componentes apoiados, no qual estão as paredes estruturais que suportam o peso da cobertura, dispensando, assim, pilares e vigas

e fácil capacitação da mão de obra no canteiro –, além de maior precisão nos orçamentos e mesmo a possibilidade de execução de projetos com grandes vãos. “Estes aspectos são de grande valia para uma empresa pública como a CEF, que depende de licitações para construir agências com eventuais mudanças de layout”, acrescentam.

Detalhes construtivos

A estrutura da CEF de Posse pode ser resumida em um simples sistema de componentes apoiados, no qual paredes estruturais suportam o peso da cobertura, dispensando, assim, pilares e vigas – exceto quando não há paredes para apoiar a cobertura, o que ocorre apenas em uma pequena área da agência.

Junto a algumas paredes, foram instaladas treliças verticais, a cada 6 m

para ajudar no contraventamento. Essas paredes e tesouras são formadas por perfis “U” enrijecidos, de aço com espessuras que variam entre 0,80, 0,95 e 1,25 mm. No total, são 12 m de vão livre para a estrutura das tesouras, com 85 kg de sobrecarga sobre elas, e paredes com 5 m de altura. A altura máxima da agência chega a 7 m de altura. Toda a estrutura das paredes, laje e cobertura são constituídas com os mesmos tipos de perfis. O objetivo principal foi criar grandes espaços livres para o atendimento do público, além de garantir flexibilidade nas mudanças de layout, quando necessárias. A meta da Caixa é construir mais 200 agências com esse mesmo sistema, em todo país. (C.e.) M

> Projeto arquitetônico: Fox Engenharia

> Área construída: 640 m²

> Aço empregado: aço

galvanizado zincado nas espessuras de 0,80, 0,95 e 1,25 mm

> Volume de aço: 9.592 t

> Projeto estrutural: Brasgips

> Fornecimento da estrutura

metálica: Gypsteel

> Execução da obra: Shox do Brasil

> Local: Posse, GO

> Data do projeto: novembro/ 2011

> Conclusão da obra: janeiro/ 2012

&ARQUITETURA AÇO 27

Projeto pop-up

Todos os dias, milhões de habiTanTes das cidades europeias circulam pelas ruas, acostumados com a paisagem e a sua bela arquitetura. Buscando quebrar este padrão, a Electrolux contratou um projeto inovador para promover seus produtos, denominado “The Cube”. Trata-se de uma construção itinerante, que abriga um restaurante para 18 pessoas, proporcionando aos convidados uma experiência gastronômica única, com os melhores chefs da região, e uma vista espetacular, já que sua estrutura é erguida sempre sobre marcos históricos famosos. O tour do restaurante pela Europa

se iniciou em 2011, em Bruxelas, sobre o arco do Parc du Cinquantenaire, passou por Milão, depois seguiu para Londres e Estocolmo.

A cidade de Milão foi o segundo endereço do Cubo, onde permaneceu entre dezembro de 2011 e abril de 2012, sobre a Piazza del Duomo, na região central. O projeto arquitetônico, de

28 &ARQUITETURA AÇO
R estau R ante itine R ante , const R uído em aço e madei R a , ci R cula po R cidades eu R opeias

Abaixo, The Cube sobre a Piazza del Duomo, em Milão. À direita: a instalação no Parc du Cinquantenaire, em Bruxelas. Em Londres, o Cubo esteve empoleirado no Royal Festival Hall, com vistas panorâmicas para o Rio Tamisa. O projeto também pousou no topo do Stockholm’s Nineteenth-century Royal Opera House, com vista para a linda cidade escandinava construída sobre 14 ilhas

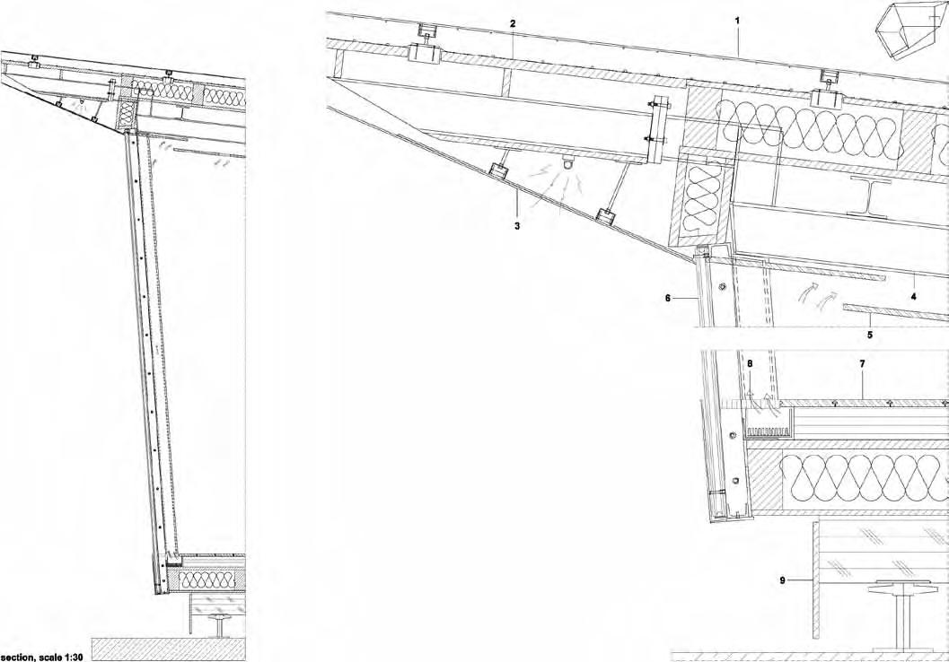
1 - Sobrecobertura

Painéis metálicos de 5 mm, com recorte a laser

2 - Cobertura

Elementos pré-fabricados de aço são usados para a cobertura

3- Platibanda

Composta por painéis metálicos recortados, painéis de acrílico colados e iluminação embutida

4 - Estrutura principal

Perfis de aço de várias dimensões

5 - Forro

Painéis acústicos de madeira com microfuros e grelha linear para insuflamento de ar

6 - Fachada

Painéis metálicos recortados e vidros pré-montados em estrutura de aço

7 - Piso

Deque de madeira fixado com grampos metálicos sobre contrapiso de madeira com isolante térmico

8 - Fachada com cortina de ar

Dutos instalados no piso para insuflamento de ar utilizando princípio de convecção natural

9 - Base

Estrutura de nivelamento principal: vigas de madeira com sistema de base metálica, ajustável a diferentes alturas e distribuição de cargas, com tapamento frontal em compensado de madeira

9 8 7 5 4 6 3 2 1

autoria do escritório Park Associati, foi concebido como um módulo, facilmente montado e desmontado. A estrutura demandou 6 toneladas de aço, sendo utilizados perfis "H" com 100 mm para as colunas e 120 mm para as vigas. Segundo os arquitetos, como havia a necessidade de criar uma caixa transparente em vidro, o aço foi o elemento estrutural adequado para garantir a otimização do espaço e abrir o interior, tanto quanto possível, para abrigar a sala de jantar. Já na cozinha e área técnica, que precisam de alto isolamento térmico, foram utilizados painéis com lã de rocha.

A construção é adequada a todas as condições climáticas, sempre proporcionando conforto, com uma estética refinada e o uso de materiais de alta qualidade. O revestimento com “pele” metálica cortada a laser, criou uma textura com desenho geométrico, que trouxe movimento à estrutura.

Internamente, soluções tecnológicas avançadas foram utilizadas no sistema de iluminação, aquecimento e no equipamento de cozinha.

Os ambientes

A área total construída de 140 m2 foi dividida entre o espaço interno livre de 90 m2 e um terraço de 50 m2. O interior do cubo foi projetado para acomodar várias configurações: o pavilhão consiste em um grande espaço aberto com uma cozinha visível e uma mesa única de grande porte para o jantar, que pode desaparecer, sendo elevada ao teto, deixando espaço para uma sala de estar.

Segundo o arquiteto e designer Michele De Lucchi: “este é um daqueles projetos onde as possibilidades se abrem: muitas vezes temos soluções viáveis, mas não deixam espaço para a imaginação, para a inovação, para a evolução". Para De Lucchi, este ‘suposto cubo’, tem uma grande força e imediatamente se apresenta para o que é, desafiando a paralisia do pensamento e da imaginação. E continua: “Não só isso, ele também desafia a imobilidade produzida pelo crescimento contínuo da burocracia ao exigir o consentimento do governo, conselho etc. Se de fato padrões são necessários e úteis para assegurar uma melhor arquitetura, também é verdade que os padrões têm se espalhado em todas as opções de design, na medida em que os sistemas são cada vez mais frequentemente uma interpretação dos regulamentos atuais, em vez de um ato consciente criativo que dá continuidade na história da arquitetura”. (m.C.s) M

&ARQUITETURA AÇO 31
Na página ao lado, na foto, detalhe do Cubo, que pesa cerca de 30 t. Na parte externa, a “pele” metálica cortada a laser cria uma textura com desenho geométrico. Acima, à esquerda, mesa de jantar, que pode acomodar até 18 pessoas, um dos diferenciais do restaurante. À direita, imagem do restaurante também em Milão, cujo deque em balanço possibilita vista geral da cidade

Nova experiência espacial

L oja da V ia i tá L ia , importadora e representante oficia L das marcas f errari e m aserati no B rasi L , surge so B ideais de conforto am B ienta L

A estrutura foi fixada ao corpo central com a aplicação de chumbadores químicos. À direita, na perspectiva esquemática, detalhes do corpo central e da malha metálica

O prOgrama para O showroom da Ferrari e Masserati, na região dos Jardins, em São Paulo, determinava que o desenho do espaço fosse único e original – à altura dos veículos. A ideia era criar uma nova configuração para apresentar um veículo especial. Além disto, a edificação deveria atender a condições ideais de conforto ambiental, aliadas à construção de fachadas transparentes e que dessem destaque à exposição dos automóveis.

Para atender à demanda e chegar ao desenho atual, o arquiteto José Wagner Garcia, do escritório Noosfera Projetos Especiais, recorreu aos conceitos do ecodesign. O edifício com 1.500 m2 foi concebido em três partes distintas quanto a função, forma, tratamento de materiais e setorização. Uma exuberante estrutura em aço com fechamento em vidro, que abriga o salão de exposição, é o local de destaque e atração do público. Este espaço é atravessado por um “grande paralelepípedo” alongado de concreto suspenso, em que ficam salas de administração e reunião. Deste corpo central partem duas asas estruturadas em aço.

O arquiteto explica que em função do desenho atípico, vigas e pilares foram eliminados, dando origem a uma espécie de membrana metálica autoportante. “Rompemos com a ideia

de paredes e teto propriamente ditos. De uma asa a outra, as linhas têm continuidade, de maneira que fachadas e coberturas se transformam em uma única pele, que ainda funciona como vedação”, destaca. Sob o nível do salão de exposições, existe um pavimento enterrado, com mais áreas de trabalho e demais funções de apoio, que se comunica com o ambiente externo por espaços abertos adjacentes, visando principalmente a entrada de iluminação natural.

Projeto estrutural

Para a execução da estrutura metálica da edificação, foram utilizados perfis dobrados com seção retangular de 300 x 170 mm. Além disso, as formas geométricas dos panos envidraçados auxiliaram no próprio contraventamento vertical. Devido à complexidade da obra, o arquiteto José Wagner Garcia destaca que a Construmet, empresa responsável pelo projeto e montagem da estrutura metálica, precisou calcular minuciosamente a logística de trabalho. “Após a pré-montagem em fábrica, esta malha, ou membrana metálica, foi fixada nas bases com a aplicação de concreto. Já a união do aço com o corpo central da edificação foi feita com chumbadores químicos”, enfatiza.

A malha metálica originou vãos de formas não ortogonais, preenchidos por vidro ou painéis de aço inox compostos por duas chapas de aço escovado, intermediadas por uma camada de poliuretano, a fim de garantir o isolamento termoacústico.

Quanto à cobertura, também recebeu um tratamento especial. Assim como as fachadas, a inclinação foi orientada para a face em

&ARQUITETURA AÇO 33

c

orte

que a incidência solar é menor durante todo o ano. Para garantir qualidade estética e ambiental, como fechamento empregou-se vidro laminado leitoso branco, acrescidos por duas películas de polivinil butiral (PVB), sendo uma incolor e outra leitosa.

Cuidados termoacústicos Essencialmente, a criação de um ambiente dentro de uma caixa de vidro com forma quadrilátera era um desafio do ponto de vista térmico, mesmo contando com a ação de um eficiente sistema de climatização artificial. O mesmo pode ser dito em relação à acústica. Tamanha diferenciação dos aspectos formais e construtivos do projeto exigiu da equipe de profissionais uma avaliação criteriosa do desempenho ambiental da obra. Para tanto, foi contratada a consultoria do Laboratório de Conforto Ambiental e Eficiência Energética da FAU/USP (Labaut) que, após diversas análises, definiu as soluções mais adequadas para essas questões.

“A forma final desta edificação é o resultado dos primeiros croquis que elaborei, acompanhados pelas diretrizes de conforto ambiental, desenvolvidas pelo Labaut e que deu origem a uma nova experiência espacial”, conclui José Wagner. (N.F.) M

> Projeto arquitetônico: José Wagner Garcia (Noosfera Projetos Especiais)

> Área construída: 1.500 m2

> Aço empregado: ASTM A570 Gr C

> Volume de aço: 58 t

> Projeto estrutural: Construmet

> Fornecimento da estrutura metálica: Construmet

> Execução da obra: WTorre

> Local: São Paulo, SP

> Data do projeto: 2007

34 &ARQUITETURA AÇO
1
> Conclusão da obra: 2008 2
c orte

> Escritórios

dE ArquitEturA

Douglas Piccolo Arquitetura e Planejamento Visual

End.: Rua Basílio Machado, nº 58, cj.29, São Bernardo do Campo (SP)

Tel.: (11) 4127-6122

www.douglaspiccolo.com.br

Fox Engenharia e Consultoria

End.: SIA Sul – Qd. 4C – Bl. D –loja 37, Brasília (DF)

Tel.: (61) 2103-9555

E-mail: fox@foxengenharia.com.br

www.foxengenharia.com.br

Jayme Lago Mestieri

End.: Alameda Casa Branca, nº 851, São Paulo (SP)

Tel.: (11) 3085-3933

E-mail: contato@ jaymelagomestieri.arq.br

www.jaymelagomestieri.arq.br

Park Associati

E-mail: info@parkassociati.com

www.parkassociati.it

Noosfera Projetos Especiais

End.: Rua Conselheiro Cotegipe, nº 685, São Paulo (SP)

Tel.: (11) 2737-4275

www.noosferaarquitetura.com.br

RoccoVidal P+W

End.: Rua Eugênio de Medeiros, nº 639, 1º and., São Paulo (SP)

Tel.: (11) 3817-6963

www.roccovidal.com.br

Spadoni & Associados Arquitetura e Urbanismo

End.: Rua Capital Federal, nº 201, São Paulo (SP)

Tel.: (11) 3673-2283

www.spadoni.com.br

Trikini Arquitetura e Design

Tel.: (11) 5051-6621, São Paulo (SP)

VG. Vicente Giffoni Arquitetura e Planejamento

End.: Rua Nascimento Silva, nº 66, cj. 205

Rio de Janeiro (RJ)

Tel. (21) 2247-1962

www.vicentegiffoni.com.br

> ProJEto EstruturAL Brasgips

End.: Rua Vieira Ferreira, nº 254, Rio de Janeiro (RJ)

Tel.: (21) 3525-5500

www.brasgips.com.br

Construmet Engenharia e Construções Metálicas Ltda.

End.: Rua Manuel Lajes do Chão, nº 434, Cotia (SP)

Tel.: (11) 3842-5622

Email: wilson@construmet.com.br

Ferenge Soluções em Estruturas

Metálicas

End.: Rua STrês, nº 759, sala 2, setor Bela Vista, Goiânia (GO)

Tel.: (62) 3255-2777

www.ferenge.com.br

HF Engenharia

End.: Rua Nizo Jaime de Gusmão, nº 1.031, Rio Verde (GO) Tel.: (64) 3602-7900

www.hfengenharia.com.br

Pedro Paulo Maciel Engenharia

Estrutural & Consultoria

Tel.: (11) 4402-3719

E-mail: contato@ ppmengenharia.com.br

www.ppmengenharia.eng.br

Prodenge Engenharia e Projeto

End.: Calçada das Papoulas, nº 74, 2º and., cj. 6, Barueri ( SP) Tel.: (11) 4689-1487

Projest Consultoria e Projetos

End.: Av. Rio Branco, nº 18, 11º and., Rio de Janeiro (RJ) Tel.: (21) 2253-0083

Email: projest@projest.eng.br www.projest.com.br

Trianon Engenharia de Projetos

End.: Rua Américo Brasiliense, nº 1.479, cj. 11, São Paulo (SP) Tel.: (11) 95181-4713

> EstruturA MEtÁLicA

Açotec Indústria e Comércio

End.: Rua Frei Bruno, nº 305 E, Chapecó (SC)

Tel.: (49) 3361-8700 www.acotecbr.com.br

BR-Aço

Tel.: (11) 3859-6363

E-mail: braco@ bracoestruturas.com.br www.bracoestruturas.com.br

EMTEC Construções Metálicas

Tel.: (11) 5184-2454

Email: emtec@emtec.eng.br www.emtec.eng.br

Engeaço Estruturas Metálicas

End.: Rua Inocêncio de Souza Branco, nº 280 E, Chapecó (SC)

Tel.: (49) 3323-5494

E-mail: engeaco@engeaco.ind.br www.engeaco.ind.br

Gypsteel

End.: Rodovia Amaral Peixoto, km 56, Saquarema (RJ)

Tel.: (22) 2654-2361

E-mail: contato@gypsteel.com.br

www.gypsteel.com.br

Gradimetal Construções Metálicas

End.: Rua Templários, nº 83, São Paulo (SP)

Tel.: (11) 2671-8599

E-mail: gradimetal@gradimetal. com.br

www.gradimetal.com.br

Trimetal Estruturas Metálicas e Construção Civil

End.: Rua João Duva, nº 120, São José do Rio Pardo (SP)

Tel.: (19) 3608-3757

www.trimetal.com.br

> coNstrutorAs

Arte Engenharia

End.: Dr. Rufino Gonçalves

Ferreira, nº 577, sala 101, Nilópolis (RJ)

Tel.: (11) 2564-2545

DMF Construtora e Incorporadora

End.: Alameda Gabriel Monteiro da Silva, nº 2.878, São Paulo (SP)

Tel.: (11) 3031-9799

www.dmfconstrutora.com.br

Lampur Engenharia

End.: Av. Pavão, nº 955, cj. 125, São Paulo (SP)

Tel.: (11) 5051.3873

www.lampur.com.br

Salvatta Engenharia

End.: Av. Ipiranga, nº 103, 5º and., cj. 52, São Paulo (SP)

Tel.: (11) 3211-2118

www.salvatta.com.br

Shox do Brasil

End.: SIA/SUL trecho 3, lote 625, bloco C, sala 126, Brasília (DF)

Tel.: (61)3361-6411

www.shoxdobrasil.com.br

Souza Lima Construtora

End.: Rua do Rócio, nº 313, 3º and., São Paulo (SP)

Tel.: (11) 3723-2050

www.slconstrutora.com.br

WTorre S.A.

End.: Rua George Eastman, nº 280, São Paulo (SP)

Tel.: (11) 3759-3300

www.wtorre.com.br

Endereços
&ARQUITETURA AÇO 35

Material para publicação: Contribuições para as próximas edições podem ser enviadas para o CBCA e serão avaliadas pelo Conselho Editorial de Arquitetura & Aço. É desejável o envio das seguintes informações, em mídia digital: desenhos técnicos do projeto, fotos da obra, dados do projeto (local, cliente, data do projeto e da construção, autor do projeto, projetista estrutural e construtor) e referências do arquiteto (telefone, endereço e e-mail).

NúMeroS aNterioreS:

Os números anteriores da revista

Arquitetura & Aço estão disponíveis para download na área de biblioteca do site: www.cbca-acobrasil.org.br

A&A nº 01 - Edifícios Educacionais

A&A nº 02 - Edifícios de Múltiplos Andares

A&A nº 03 - Terminais de Passageiros

A&A nº 04 - Shopping Centers e Centros Comerciais

A&A nº 05 - Pontes e Passarelas

A&A nº 06 - Residências

A&A nº 07 - Hospitais e Clínicas

A&A nº 08 - Indústrias

A&A nº 09 - Edificações para o Esporte

A&A nº 10 - Instalações Comerciais

A&A nº 11 - Retrofit e Outras Intervenções

A&A nº 12 - Lazer e Cultura

A&A nº 13 - Edifícios de Múltiplos Andares

A&A nº 14 - Equipamentos Urbanos

A&A nº 15 - Marquises e Escadas

A&A nº 16 - Coberturas

A&A nº 17 - Instituições de Ensino II

A&A nº 18 - Envelope

A&A nº 19 - Residências II

A&A nº 20 - Indústrias II

A&A Especial – Copa do Mundo 2014

A&A nº 21 - Aeroportos

A&A nº 22 - Copa 2010

A&A nº 23 - Habitações de Interesse Social

A&A nº 24 - Metrô

A&A nº 25 - Instituições de Ensino III

A&A nº 26 - Mobilidade Urbana

A&A nº 27 - Soluções Rápidas

A&A nº 28 - Edifícios Corporativos

A&A Especial – Estação Intermodal de Transporte Terrestre de Passageiros

A&A nº 29 - Lazer e Cultura

A&A nº 30 - Construção Sustentável

A&A nº 31 - Construções para Olimpíadas

próxiMaS ediçÕeS:

– Hotéis

- Shopping Centers

- Hospitais e Edificações para Saúde

- Pontes e Passarelas

expediente

Revista Arquitetura & Aço

é uma publicação trimestral do CBCA (Centro Brasileiro da Construção em Aço) produzida pela Roma Editora.

CBCA: Av. Rio Branco, 181 – 28º andar 20040-007 – Rio de Janeiro/RJ

Tel.: (21) 3445-6332 cbca@acobrasil.org.br www.cbca-acobrasil.org.br

Conselho Editorial

Catia Mac Cord Simões Coelho – Aço Brasil

Roberto Inaba – Usiminas

Ronaldo do Carmo Soares – Gerdau Açominas

Silvia Scalzo – ArcelorMittal Tubarão

Supervisão Técnica

Sidnei Palatnik

Publicidade

Ricardo Werneck

tel: (21) 3445-6332 cbca@acobrasil.org.br

Roma Editora

Rua Lisboa, 493 – 05413-000 – São Paulo/SP Tel.: (11) 2808-6000 cbca@arcdesign.com.br

Direção

Cristiano S. Barata

Coordenação Editorial

Nádia Fischer

Redação

Camila Escudero, Cely Andrade, Evelyn Carvalho, Maria Clara Souza e Nádia Fischer

Revisão

Deborah Peleias

Editoração

Cibele Cipola (edição de arte), Luiz Marques e Emílio Fim Neto (estagiários)

Impressão

Ibep Gráfica

Endereço para envio de material:

Revista Arquitetura & Aço – CBCA

Av. Rio Branco, 181 – 28º andar 20040-007 – Rio de Janeiro/RJ cbca@quadried.com.br

É permitida a reprodução total dos textos, desde que mencionada a fonte. É proibida a reprodução das fotos e desenhos, exceto mediante autorização expressa do autor.

36 &ARQUITETURA AÇO

A cobertura da Arena Corinthians terá uma estrutura de aço com mais de 4 mil toneladas de tubos quadrados e retangulares com a qualidade Vallourec & Mannesmann. O Brasil está trabalhando sério para organizar uma grande Copa e temos orgulho de participar deste capítulo da história do país. E o trabalho não para aí: no Brasil já são nove estádios que contam com a agilidade, a confiança e a capacidade técnica das soluções tubulares da V & M do BRASIL.

A V & M do BRASIL, empresa do Grupo Vallourec, é líder na produção de tubos de aço sem costura no país e abastece os setores de energia, indústria mecânica, automotivo, indústria petrolífera e construção civil.

A Arena Corinthians vai sediar a abertura da Copa. E a V & M do BRASIL vai cobrir este jogo. V & M do BRASIL. Aprimorando a qualidade e valorizando a vida. Grupo Vallourec | www.vmtubes.com.br (31) 3328-2874 | estrutural@vmtubes.com.br
Obras da Arena Corinthians - Odebrecht Infraestrutura.

Perfis Estruturais Gerdau. Fundamentais para as melhores obras.

Da fundação à estrutura, os perfis estruturais Gerdau proporcionam racionalidade, eficiência e rapidez ao processo construtivo. Produzidos em aço de alta resistência, em ampla variedade de bitolas, oferecem flexibilidade aos projetos e permitem ganhos no custo geral da obra. Um compromisso da Gerdau com a qualidade e a rentabilidade na hora de construir.

Turn static files into dynamic content formats.

Create a flipbook
Issuu converts static files into: digital portfolios, online yearbooks, online catalogs, digital photo albums and more. Sign up and create your flipbook.
Arquitetura & Aço nº 32 - Instalações Comercias II by cbca-acobrasil - Issuu