ARCHITECTURE & DESIGN
This portfolio traces the arc from concept to construction, projects shaped by a clear design intent and carried through to technical resolution. Each piece reflects a commitment to both the quality of the idea and the rigour required to build it.
Caroline Steranka, Architect AIBC


crsteranka@gmail.com https://www.caro-concepts.com
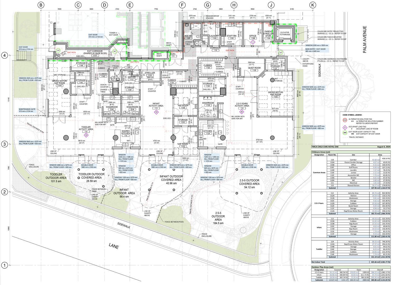
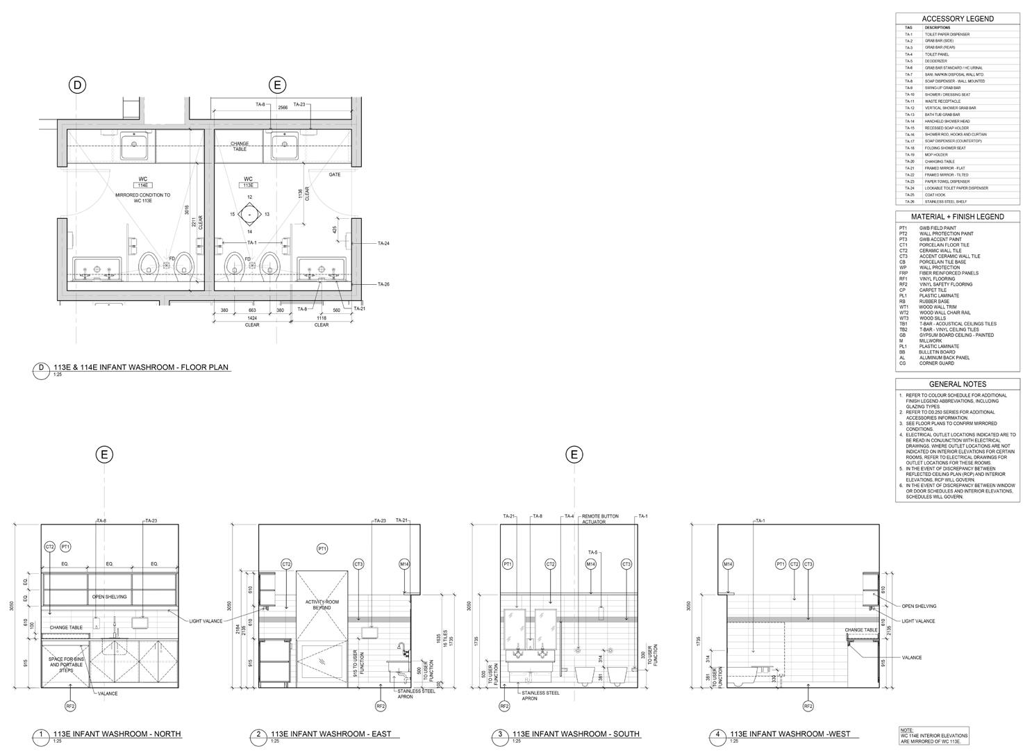
Royal Oak Affordable Housing + Childcare
Burnaby, BC
DA Architects + Planners
Role: Technical documentation and coordination lead on childcare facility
Issued for Building Permit - Working Drawings
A mixed-use development comprising two market rental towers above a podium containing office, café, and a licensed YMCA childcare facility, within walking distance of SkyTrain.
Led full technical documentation for the childcare facility, coordinating YMCA technical guidelines, age-grouped activity areas, outdoor play provisions, and accessible paths of travel.
Selected drawings include floor plans, reflected ceiling plans, interior details, and millwork documentation. The childcare facility was intended to be submitted as a Building Permit Amendment.



Royal Oak Affordable Housing + Childcare
Burnaby, BC
DA Architects + Planners
Role: Technical documentation and coordination lead on childcare facility
Issued for Building Permit - Working Drawings



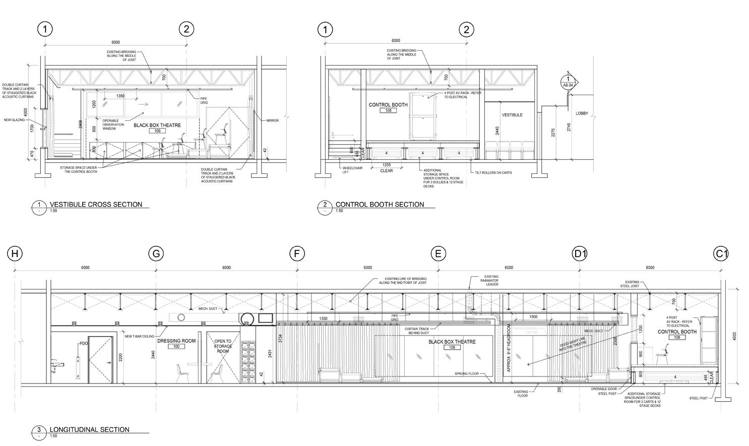
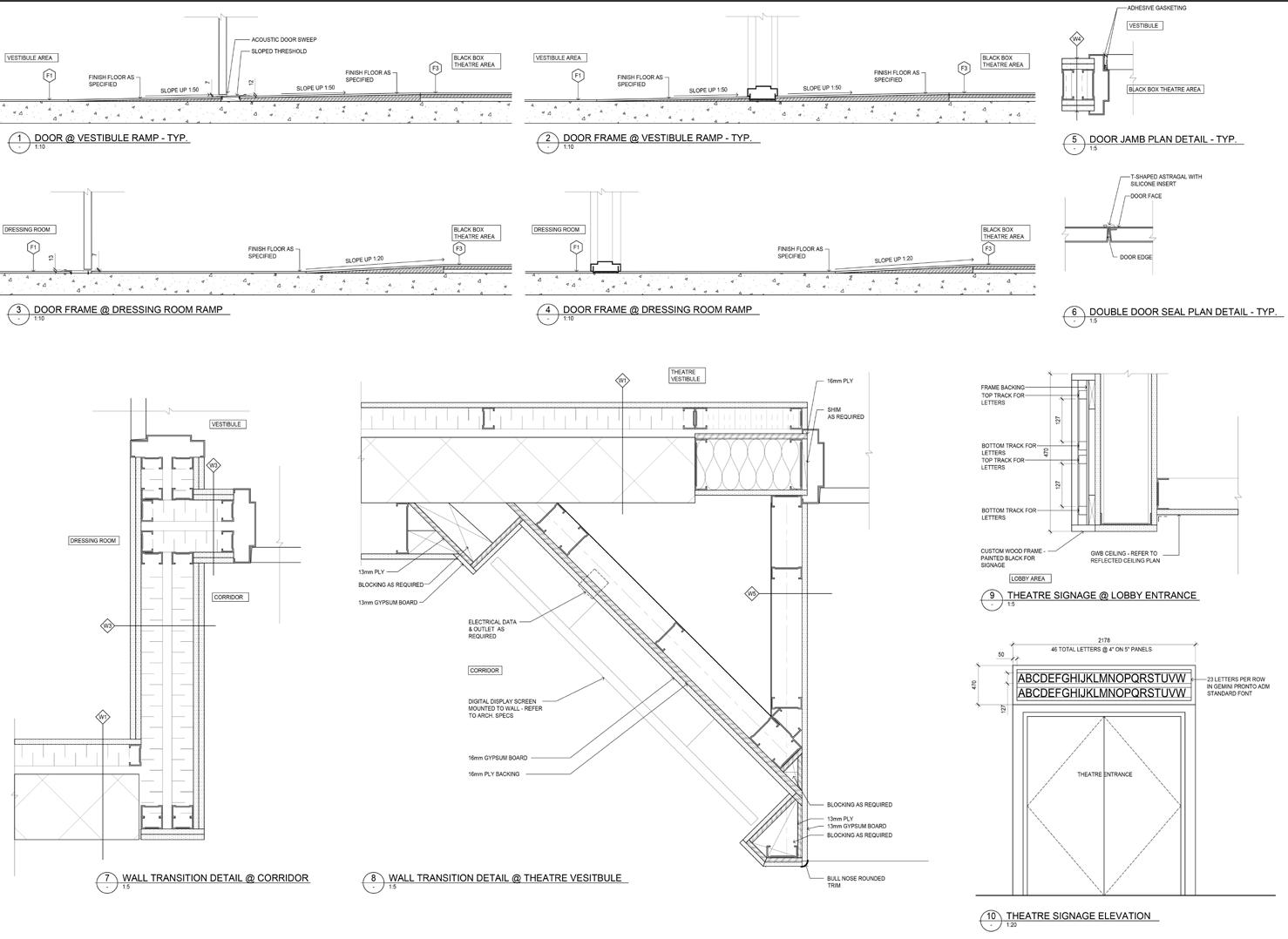
Surrey, BC
DA Architects + Planners
Role: Technical documentation and coordination lead on theatre renovation
Issued for Building Permit and Pricing - Working Drawings
A renovation of an existing classroom space into a flexible black box performance theatre for Kwantlen Polytechnic University’s Arts Faculty, including a redesigned lobby and hallway sequence. The theatre accommodates variable seating and staging configurations with an integrated control booth, supporting a range of productions and encouraging experimentation.
Coordinated the full building permit and pricing drawing set, working closely with mechanical, electrical, and structural engineers on air handling, acoustics, and accessibility compliance to Rick Hansen Foundation and CSA standards. Maintained direct communication with the KPU project manager. Prepared visual renderings of the lobby and dressing room on a tight schedule for a design development presentation to the school board and project funder. In collaboration with Indigenous artist Leslie Wells, custom vinyl wall wraps embed cultural expression into the corridor and lobby.
Selected drawings are building sections, interior details, door and acoustic assemblies, signage elevations, and custom digital display screen details.



Central Presbyterian Church
Vancouver, BC
Henriquez Partners Architects
Role: Visualization and presentation production
Interior Renders for client
A mixed-use redevelopment in partnership between the church and a private developer, financing 168 market rental units alongside 45 non-market seniors housing units and a new church sanctuary, all without government subsidy. The podium houses the sanctuary, community spaces, and retail, wrapped in a 30,000 ft² glass canvas of coloured fritted crosses by artist Michael Lin, dramatically illuminating the worship space at dusk.
Interior renderings independently produced from an existing base model for the congregation client. Developed lighting, furniture, materiality, and visual composition to communicate the proposed development and RGB façade installation within the sanctuary.


Mirvish Village
Toronto, ON
Henriquez Partners Architects
Role: Visualization and presentation production
Interior Renders for client
A 900,000 ft² mixed-use redevelopment on the former Honest Ed’s site in Toronto’s Bloor and Bathurst neighbourhood, comprising nearly 900 rental suites across 33 micro buildings. Inspired by Tokyo’s fine-grain density, the project preserves the rhythm and scale of the existing streetscape, treating retail and public space as key storytelling layers that activate the ground plane and honour the site’s heritage.
Market Hall renderings independently produced from an existing base model for a client presentation. Developed the lighting, materiality, furniture, and visual composition of the interior perspectives.


Toronto, ON
Henriquez Partners Architects
Role: Technical documentation
Exterior elevations issued for Site Plan Control
Contributed to the facade elevation drawings submitted as part of a Site Plan Control application under Ontario’s Planning Act, ensuring exterior appearances, materiality, and retail activation comply with local regulations and design policies.


Vancouver, BC
Henriquez Partners Architects
Role: Coordination and producing response matrix, graphics and drawings to City of Vancouver
Drawings and report issued for Development Permit Prior-to Response
A 683,000 ft² collaborative campus across five buildings and four city blocks in Vancouver’s Mount Pleasant neighbourhood, designed to nurture the local innovation economy within a light industrial framework. Activated laneways serve as social corridors marked by special paving and murals commemorating the Vancouver Mural Festival, while incubator pods allow interior activities and pop-up spaces to spill into the public realm. The campus targets 70% lower carbon emissions than conventional buildings through a centralized waste heat recovery and cooling system shared across the neighbourhood.
Produced exterior renderings and massing diagrams as part of a Development Permit Priorto Response, working collaboratively with the in-house graphics team to compile consultant reports and drawings including traffic, landscape, public realm, and code documentation. Materials were prepared to ensure alignment with municipal guidelines and design advisory panel expectations.








Burnaby, BC
dys architecture
Role: Design Rationale Report, graphics, writing and visualization
Masterplan and Rezoning Application
A 14.6-acre transit-oriented urban village master plan located steps from the Sperling-Burnaby Lake SkyTrain station, situated between the Brentwood and Lougheed Town Centres. The master plan establishes strategies for a lively, sustainable community organized around a network of public realm elements including the Esplanade, the Serpentine, and the Forest Walk. The plan offers a range of housing types alongside live-work units, community workspaces, and indoor and outdoor amenity.
Contributed to the design rationale report through site analysis, zoning and planning policy review, building program and massing diagrams, and overall visualization, supporting the municipal rezoning submission to the City of Burnaby.



Burnaby, BC
dys architecture
Role: Design Rationale Report, graphics, writing and visualization Masterplan and Rezoning




Openspace Architecture
Role: Design Development presentation for client and working drawings prepared for pricing
A private retreat compound in Northern California comprising a main house, guest house, and wine cellar organized around a sequence of intimate and expansive spaces. Deep overhangs filter daylight into a shifting glow throughout the day, while full-height sliding glass dissolves the boundary between interior and landscape. Natural stone, aged brass, oak millwork, and cedar ceilings layer warmth and texture into an atmosphere that feels curated yet effortless.
Primarily responsible for the guest house, collaborating with the in-house interior design team on client-facing drawings and reports, contributing rendered floor plans, material and finish selections, and visualization. Participated in structural engineer coordination meetings to advance working drawings for pricing.




Openspace Architecture
Role: Design Development presentation for client and working drawings prepared for pricing



