Aló, 911 ?

Page 1

Curso:

Taller de Arquitectura 7

Docentes:

Mg. Arq. Carlos Barlades O.

Arq. Alexandra Arteaga C.

Centro de educación:

Universidad Privada del Norte

Facultad:

Arquitectura y Diseño de Interiores

La Libertad - Perú

ÍNDICE 01 03 04 05 02 PARQUE DE LA TRANSFORMACIÓN DE RSU A ENERGÍA ELÉCTRICA 16 - Propuesta de solución. EL RECICLAJE DE RESIDUOS SÓLIDOS URBANOS 08 - Problemática, Conceptos, Normativa CICLO DE LA TRANSFORMACIÓN 37- Localización, perfil del usuario, programa arquitectónico y conceptualización. sacha wasi 00 -Planos arquitectónicos y volumetria LOS REFERENTES 36 - Proyecto 2 22 - Proyecto 1
06 08 09 07 DE UN ORGÁNICO A ENERGÍA experiencisa de diseño proyecto 1: Sacha Wasi Proyecto 2: Royal Organic Factory ROYAL ORGANIC FACTORY bibliografías Referencias Localización, perfil del usuario, programa arquitectónico y conceptualización. -Planos arquitectónicos y volumetria
eciclaje ECIC

Trujillo es una de las ciudades que enfrenta uno de los problemas más críticos de desechos sólidos, domésticos, industriales y comerciales, de hecho en estos últimos años la deficiencia y la mala administración del servicio de recolección de los desechos sólidos urbanos ha sido cada día más notable, poniendo en riesgo nuestra salud, pero la verdad es que no solo los responsables son las autoridades de nuestra ciudad, si no también nuestra población, quienes presentan una ausencia de sensibilidad hacia el problema de los desechos sólidos.

Es por ello por lo que un grupo de estudiantes del séptimo ciclo de la carrera de arquitectura de la Universidad Privada Del Norte en la Sede Trujillo - El Molino se vio en la necesidad de elaborar un libro titulado "Aló, 911?" La basura está urbanizando Trujillo, con la finalidad de concientizar a la población acerca de la importancia del reciclaje y con el objetivo realizar un parque para la transformación energética eléctrica para el beneficio de la ciudad de Trujillo.

El trabajo es realizado en base de reuniones virtuales y a través de distintas plataformas dinámicas.

Autores del Artículo:

Bautista Namó Jhenny Alessandra

Caballero García Angie Sofía

Cuno Chuques Gianfranco Ronaldo

Perez Del Valle Lucía Meylin

PRESENTACIÓN

LAJE

EL RECICLAJE DE RESIDUOS SÓLIDOS URBANOS

Un antagonista, sin protagonista 01

Autores del Artículo:

Bautista Namó Jhenny Alessandra

Caballero García Angie Sofía

Cuno Chuques Gianfranco Ronaldo

Perez Del Valle Lucía Meylin

PROTAGONISTA, SIN ANTAGONISTA un

¿DE QUÉ TRATA?

Principalmente debemos tener en claro los conocimientos básicos que engloban el tema, comenzando por los desechos urbanos y basura

¿No son lo mismo? los conocemos a ambos como "basura", sin embargo hay una gran diferencia, podemos identificar fácilmente a la basura como la que no se puede reciclar y su proceso final es su eliminación, mientras los RSU se pueden clasificar como orgánicos (provienen de un ser vivo), inorgánicos (fabricado por el ser humano) y sanitarios (objetos que ven con la higiene) ambos deberían ser responsabilidad de las autoridades sea en su eliminación o reutilización este proce-

01

so conlleva la transformación de materiales para convertirlos en nuevos productos, el concepto más utilizado para aplicar el reciclaje son las 3R:Reducir la mayor cantidad de residuos posibles, Reusar todo lo que es posible antes de desechar y Reciclar los residuos para elaborar nuevos productos; esta idea está tomando mayor fuerza debido a que el ser humano va depredando mas lugares sin importarle el biorregionalismo, y te preguntaras: ¿Qué es el biorregionalismo?, es un fenómeno

ESTA PASANDO EN TRUJILLO?

que pretende lograr un equilibrio en que los seres humanos dejen espacio a otras especies y armonicen sus actividades dentro de los ecosistemas naturales. Una de las principales causas por el cual no se da el Biorregionalismo es por la gran contaminación de residuos solidos que atraviesa el botadero El Milagro, el cual ya cumplió su ciclo de vida útil en el 2016. Hoy en día Trujillo , tiene una población de 928 mil habitantes – es decir, casi el doble – y cada uno genera, al un kilo de basura

¿QUÉ

LOS PUNTOS DE BASURA EN TRUJILLO

Mercado La Hermelinda

Áv Túpac Amaru

Reservorio

Calle de Bussy

Áv Miraflores Áv Villareal con Áv Vallejo

Urb. El Molino

política educativa; falta de estudios de impacto ambiental e inadecuado desempeño de tecnologías y procesos industriales ; aumento de la producción y consumo de bienes y servicios. Después de evaluar esta problemática y su crecimiento a gran escala, hace que nos genera la siguiente pregunta, ¿Existen normas o leyes que intenten combatir este mal?: si, pero son escasos; en su mayoría son normas superficiales que se resumen en crear mas rellenos sanitarios, por ejemplo: Existe la

ley de gestión integral de residuos sólidos, que fue aprobada por el Reglamento del Decreto Legislativo N°1278, en este solo nos comentan las empresas encargadas en recibir estos desechos, su transporte, almacenamiento y disposición final; pero no se propone un sistema de tratamiento para evitar el gran impacto ambiental que se genera, pues es de conocimiento de los ciudadanos que nuestros desechos solo terminan incinerados. En esta ley también se recalca sobre las

las zonas en estado de emergencia por los rellenos sanitarios. Sin embargo, en Trujillo se sigue utilizando el botadero que se ubica en el milagro, cuando éste ya no se encuentra en las condiciones necesarias para seguir funcionando, evidenciando el desinterés de las autoridades por enfrentar el problema. En comparación a las normas, leyes e incluso organizaciones que se encuentran a nivel mundial, es visible el compromiso que varios países tienen con manejo está situación. Por ejemplo,

Brasil tiene como principio, cuidar a los seres humanos y su hábitat, de los probables riesgos que se tienen que eludir y no arriesgar a toda la población, a consecuencias ambientales irreparables. Además, en la Conferencia de las Naciones Unidas sobre el Medio Ambiente y el Desarrollo, se decretan 27 principios para que a nivel internacional se logre con éxito el desarrollo sostenible. Por esta razón, como futuros arquitectos nos encontramos en la responsabilidad de involucrarnos en

este problema ambiental que enfrenta nuestro país, puesto que estamos en la capacidad de combatir problemáticas por medio de propuestas arquitectónicas. En este caso, nuestra labor seria diseñar un sistema que se encargue en reducir la contaminación ambiental a causa de los residuos sólidos urbanos, pues como nos indica en la declaración de río, es una prioridad, tratar evitar daños irreparables en nuestra ciudad.

NORMAS
¿HAY
LEYES Ó
EN NUESTRO PAÍS ?

Parque de la transformación energética

Autores del Artículo:

Bautista Namó Jhenny Alessandra

Caballero García Angie Sofía

Cuno Chuques Gianfranco Ronaldo

Perez Del Valle Lucía Meylin

02

TRANSFORMACIÓN

ENERGÉTICA

Ante la situación actual en la que se encuentra Trujillo y sus distritos, se da a conocer el crecimiento sin planificación de rellenos sanitarios y botaderos al aire libre hechos por la misma población, quienes desechan la basura y los

RSU en lugares públicos los cuales son llevados hacia el botadero provocando un colapso en dicha zona que ya caduco en el año 2016, es por ello que nuestro objetivo principal es rehabilitar el botadero "El Milagro" con la finalidad de dar una nueva vida a un espacio que ha sido malogrado por el ser humano, y no solo sea una planta, si no a su vez proponer centros de recreación y áreas verdes para darle una nueva perspectiva a la zona, asimismo con el beneficio de producir energía eléctrica para los pobladores .

02
PARQUE DE LA

BOTADERO

Área

¿CUAL SERÁ

UBICACIÓN?SU UBICACIÓN?

ELEGIDO

La Libertad :Provincia Distrito : Trujillo El Milagro :Sector

Por eso optamos por algunos puntos importantes para su ubicación, como utilizar un suelo clasificado en zona industrial, contar con una topografía totalmente plana, evaluamos la conectividad del terreno con las princi-

pales lineas de transporte (Francisco Bolognesi), asimismo este terreno fue elegido ya que esta dentro al botadero con la finalidad facilitar el traslado y de lograr recolectar la mayor cantidad residuos orgánicos; por lo que al examinar todas estas variables encontramos un terreno que cumple con todos estos requisitos, este terreno se encuentra en el sector de El Milagro en el centro poblado homónimo, teniendo de referencia que esta dentro de el botadero de "El Milagro", el cual solo será rehabitado un área aprox. de 5 hectáreas.

Centro poblado homónimo (Cerca al botadero "El Milagro") :Ubicación apróx.
:
160.000 m2.
ELMILAGRO TERRENO EL MILAGRO
Francisco Bolognesi

aceite se envía a un circuito orgánico que calienta e orgánico, para luego expandirlo en una turbina conectada a un

ya que nuestro enfoque esta en diseñar un parque temático que genere puntos de encuentro para los pobladores, reduzca el mal olor con el implemento de las áreas verdes y sirva como un espacio educativo para el distrito de Trujillo. Con respecto a la accesibilidad, se encuentra cerca a la Av. Miguel Grau, siendo de fácil acceso. Además, no se generarían nuevos recorridos para el trasporte de los RSU, pues se conecta con la vía evitamiento del Milagro y Francisco Bolognesi, quienes se encuentran habilitadas para la movilidad de estos. Finalmente se pensó en crear espacios culturales como talleres que se

¿CUÁL ES SU

RESPONSABILIDAD SOCIAL?

dedicarán a dinversas actividades de reciclaje como la creación de juguetes de material reutilizado, la producción de papel reciclado, entre otros. Seguido de esto, se diseñará una sala de usos múltiples (SUM), y deseando mejorar la economía de este sector, se consideró un centro de restauración y venta de artículos reciclados. Estos implementos en el programa arquitectónico, nos permitirá generar una estrategia de educación medio ambiental, pues los visitantes y residentes comenzarán a tomar conciencia de esta situación y se difundirá la cultura del reciclaje en nuestro país.

Análisis de casos referentes

Autores del Artículo:

Bautista Namó Jhenny Alessandra

Caballero García Angie Sofía

Cuno Chuques Gianfranco Ronaldo

Perez Del Valle Lucía Meylin

03

DATOS GENERALES

BOLZANO CIUDAD

cl& aa tuvo como objetivo reducir el impacto visual del área industrial mediante el diseño de un edificio coherente cuyas líneas y colores recuerdan el horizonte circundante, creando un equilibrio entre lo natural y lo artificial que coincide con el paisaje en el mejor sentido.

El terreno está ubicado en la entrada sur de Bolzano, a un paso de la zona industrial entre el río Isarco y la carretera, en un susceptible panorama de montañas y viñedos. Considerado para la forma del proyecto y diseño.

"DE RESIDUOS ECO CENTER" UBICACIÓN

PLANTA DE RECICLAJE

ORGANIZACIÓN ACCESOS Y

ORGANIZACIÓN AGRUPADA

AGRUPACIÓN A LO LARGO DE UN RECORRIDO

el complejo consta de dos volúmenes principales como entradas principales, de dos alturas diferentes. Un volumen que abre hacia las zonas de oficinas, y el segundo volumen revestido con una plancha verde que lleva hacia los hornos y calderas. El tercer .

volumen con entrada secundaria, se compone de concreto, el cual está destinado para el lugar de almacenaje de desechos.

LEYENDA
Acceso Principal

secrearonvolúmenes con ligeras bajadas, para lograr una aparencia a montañas con desniveles.

Naciendovolumenesde diferentes alturas y acopladasentresí.

elconceptoinicialfue crear un edificio que se asemejase a la formadelasmontañas de la ciudad para respetar la morfología del entorno y su naturaleza.

ZONIFICACIÓN

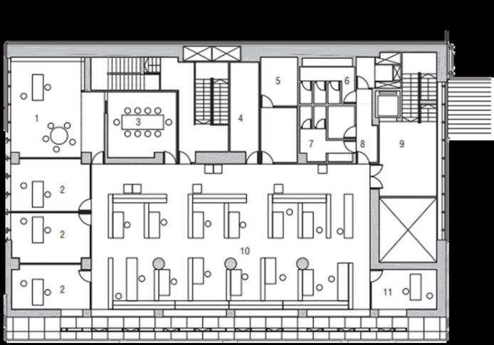
PLANTA DE INCINERACIÓN AMBIENTES SALA DE TURBINAS ÁREA 80.69 m2 CALDERAS 62.98m2 ZONAS MANEJO DE RESIDUOS 29.16m2 FOSA DE ALMACENAMIENTO 27.64m2 CENTROS DE CONTROL 74.79m2 RECUPERACIÓN DE ENERGÍA 356.03m2 DESCARGA DE RESIDUOS 174.40m2 SISTEMAS AUXILIARES 41.25 m2 SALA DE MAQUINAS 132.96m2 N° 1 2 3 4 5 6 7 8 9 SERVICIOS AMBIENTES VESTIDORES TRABAJADORES ÁREA 27.79m2 CONTROL 12.50m2 ALMACENAMIENTO 17.35 m2 ZONAS 10 11 12 N°

PROGRAMA ARQUITECTÓNICO

ADMINISTRACIÓN AMBIENTES SUM ÁREA 85.74 m2 RECEPCIÓN 41.60m2 SALA DE REUNIONES 33.27m2 ZONAS OFICINA+BAÑO 20.73 m2 DESPACHO 15.93 m2 S.S.H.H 12.18m2 N° 13 14 15 16 17 18 PLANTA DE ENERGÍA AMBIENTES CENTRO DE ALIMENTACIÓN ÁREA 207.14m2 LABORATORIO 19.53 m2 CENTRO DE MONITOREO 13.44 m2 ZONAS MAQUINARIA 23.40 m2 N° 19 20 21 22 CUARTO DE PRUEBA 13.50m2 23
CÁMARA DE COMBUSTIÓN CÁMARA DE COMBUSTIÓN DE PASADIZOS Y ESCALERAS MEDIDAS 1.20 M 2.00 M 1.30 M
INTERIOR CIRCULACIÓN FOSA DE ALMACENAMIENTO

DISTRIBUCIÓN DEL PROCESO

DE MAQUINAS Y CONTROLADORES DE ENERGÍA
ZONA
ZONA ADMINISTRATIVA Y SUM: CENTRO DE ALIMENTACIÓN DE ENERGÍA: 3.00 M 1.00 M 1.00 M 1.50 M
t oneladasderesiduosinorgánico s 130.000 La planta es capaz de procesar
DE ENERGÍA
1 2 3 5 4
PLANTA GENERADORA
DEL PROCESO DISTRIBUCIÓN

Fosa de almacenamiento de residuos: capacidad para 7 camiones de basura

Cámara de combustión: Capacidad aprox. de 15 personas.

HORIZONTAL

CIRCULACIÓN DEL PROCESOINDUSTRIAL

VERTICAL

Sala de turbina: Capacidad aprox. de 20 personas.

Zona administrativa y sum: Capacidad aprox. 40personas.

Sala de maquinas y controladores de energía: Capacidad aprox. de 30 personas.

Centro de seleción de reciclaje de metales, cenizas, reciclaje y oficinas:Capacidadaprox. para130personas.

¿CUÁL

Centro de alimentación de energía: Capacidad aprox.de40personas.

Invernadero:Capacidad aprox. para 50 personas.

ZONIFICACIÓN

Se trasladan los descechos hacia una fosa de almacenamiento

Los desechos pasan por una cabina de selección de residuos para reciclaje y los residuos restantes son llevados al incinerador. El calor generado se encargará de calentar las calderas de agua y generar vapor.

El vapor se encargará de impulsar el generador de energía eléctrica.

La energía generada se almacenará en contenedores.

Los desechos como el carbón y metal, son llevados al centro de seleción y reciclaje.

CALSIFICACIÓN DE RSU

ASCENSOR PARA USO ADMINISTRATVO Y PERONALENGENERAL

ESCALERAS: PARA USO ADMINISTRATVO Y PERONALENGENERAL

GENERADOR DE ENERGÍA CONTENEDORES DE ENEGÍA

RAMPAS: PARA TRANSPORTE DE VAGONES Y MAQUINRIA.

INCINERADOR

CALDERAS

6
CIRCULACIÓN VEHÍCULAR CIRCULACIÓN
1. 2. 3. 4. 5. 6.
ES SU PROCESO DE TRANSFORMACIÓN?
Antes de ingresar al horno, los rsu pasan por un flitro que separa todo material que se pueda reciclar como el papel, cartón, plástico, vidrio, textiles y metál, para despúes ser trasladados hacia el área de reciclaje para ser tratados y tener un nuevo uso. Los residuos sobrantes tales como Tazas, macetas y otros objetos de cerámica, papel de fotos, empaques plásticos de alimentos, tubos de pasta dental, envases de colores o serigrafiados entre otros, son incinerados.

TIPOS DE USUARIO

Fosa de almacenamiento de residuos.

Personal de seguridad y recepción de RSU.

Cámara de combustión:

Quemador y técnicos especialistas .

Para el proceso de producción de energía eléctrica, se requieren de varios especialistas que se encargarán de cumplir una función en espacífico según su área de trabajo. Para la fosa de almacenamiento de residuos, se necesitará personal de seguridad y recepcionistas, quienes se encargarán del control de ingreso de los camiones de basura y pesarán la cantidad de RSU que ingresa al lugar.

Asi mismo, el quemador y los técnicos especialistas estarán a cargo de la cámara de combustión, donde el vapor generado ingresará a la sala de la turbina, que se encuntra a cargo de los operadores de transferencia. Este recurso generado será almacenado por los operadores de de energía electrica,en el centro de alimentación.

Saladeturbina: Zona administrativa ySUM: Consejo administrativo.

Operadoresde transferencia

Salademaquinasy controladoresdeenergía:

Operadoresde maquinariasy veladores

Centrode alimentaciónde

energía: Operadoresde energíaeléctrica

Invernadero: Ingresode personal circulación delusuario

Personalde servicio

Por ultimo, las zonas de administración y Sum, serán el espacio de trabajo para el consejo administrativo y el invernadero estará en constante cuidado por el personal de servicio.

Escala Normal: Espacios de circulación de 3.00 M 20.00 M 3.00 M

FORMA Y ENVOLVENTE

eledificiocuentacon dobles alturas en la mayoría de sus volúmenes. Predominando los espacios para el tratamiento de desechos. Teniendo escalasmonumentales yescalasnormalesen su interior como sería elinvernadero.

Lamayoríadelos volúmenes son opacos, debido a que se encuentran las maquinarias utilizadas para el tratamiento de desechos, sin embargo, la zona de oficinas, se compone de muros transparentes.

La geometría del proyecto fue pensada con el objetivoderedefinir la relación entre la infraestructura de residuos y el entorno urbano de la ciudad sin obstruir el delicado panorama en la zonadeBolzano.

MATERIALES

uno de los bloques está conformado por un volumen de hormigón el cual se encuentran todos los desechos, en el vestíbulo inclinado se cubrió de policarbonato verde para su exterior como barrera de ruido. Teniendo por último otro volumen acristalado con caras inclinadas dedicado a uso de oficinas que abren paso al campo.

ESTRUCTURA Y

MATERIALIDAD

setomóimportanciaa la utilización de los colores debido a que cada uno de ellos representaunazonade programacióndiferente. Tomando en consideración el tono decoloraciónquetiene el paisajismoexterior. dentro y fuera del proyecto.

POLICARBOTADO VERDE VIDRIO ACERO HORMIGÓN

Vegetación

ENERGÉTICA EFICIENCIA

SISTEMA DE REFRIGERACIÓN POR MEDIO DE VEGETACIÓN

Este sistema utiliza la vegetación en las aberturas del proyecto, para enfriar el aire antes de ingresar a sus espacios.

USO SUSTENTABLE DE ENERGÍA ELÉCTRICA

El proyecto es capaz de operar me manera 100% independiente a una red eléctrica externa, pues es capaz de uilizar la misma energía que produce para su funcionamiento.

VENTILACIÓN CRUZADA

El proyecto tiene diferentes coberturas proyectadas para permitir una ventilación cruzada por medio del diseño de sus aberturas en la mayoria de las caras del proyecto.

VENTILACIÓN EFECTO CHIMENEA EFECTO

Asi mismo, se implementó un sistema de aberturas cenitales generando un efecto chimenea, pues al ingresar el aire por los extremos genraran preción, haciendo que el aire caliente salga por estas aberturas.

LAVADO DE GASES

Este proceso se encargará de procesar los gases tóxicos emitidos por los RSU, por medio de una torre de lavado o scrubber, que utilizará un líquido de lavado para eliminar los contaminantes del flujo de gas antes de su liberación a la atmósfera.

El plástico, cartón, vidrio y metal seleccionado antes de ingresar al horno, son procesados para su venta, las cenizas generadas por la incineración se utilizarán para el relleno de vertederos y el metal sobrante también será fundido para su venta.

INVERNADERO

SEGURIDAD BIO-

Desde la proyección del diseño se procuro incorporar la planta con su entorno natural, por esta razón su cerco perimétrico esta constituido por arboles oriundos de la zona, admás de contar con espacios verdes como parte del proyecto, un invernadero, y el uso de vegetación en el diseño interior de sus espacios.

INFRAESTRUCTURA VERDE Y PAISAJISMO

DE LOS RSU
RECORRIDO PROCESO DE RECICLAJE

Análisis de casos referentes

PLANTA DE TRATAMIENTO DE RESIDUOS SOLIDOS URBANOS

Autores del Artículo:

Bautista Namó Jhenny Alessandra

Caballero García Angie Sofía

Cuno Chuques Gianfranco Ronaldo

Perez Del Valle Lucía Meylin

“LOS HORNILLOS”

PLANTA DE TRATAMIENTO DE RESIDUOS SOLIDOS URBANOS

“LOS HORNILLOS”

ESPAÑAVALENCIA PAÍS

DATOS GENERALES

Arquitecto : Israel Alba

Superficie: 178.000 ��2

Área construida: 67.580

Año : 2012

QUART DE POBLET

CIUDAD

este proyecto de servicio público tiene como finalidad reciclar y a su vez concientizar al público, a través de un diseño de instalaciones que minimice el impacto ambiental, tanto desde el punto de vista funcional como estético, con el entorno circun -

dante, optando que todos los procesos se desarrollen en naves cerradas con captación de olores y posterior tratamiento de este aire de esa manera no generar emisión de malos olores.

UBICACIÓN

ORGANIZACIÓN

ORGANIZACIÓN

el proyecto presenta varios volúmenes con la misma forma en distintos tamaños destacando siempre volumen central, por lo que este presenta una jerarquía por tamaño, asimismo la planta de tratamiento constadeuna asimetría.

CONCEPTUALIZACIÓN

os elementos del entorno como la topografía, la escala, los colores y las texturas, se utilizan como fuente de inspiración estableciendo una intensa relación entre paisaje y tecnología

Inicialmente el área era un patrón de campos de cultivos y huertos.

Se inició con una fragmentación de cuatro bandas adaptándose así al entorno inmediato.

l
s

se crearon cuatro bandas longitudinales responde tanto a la lógica interna del proceso del tratamiento del residuo como a la necesidad de disponer de luz natural para todas las labores

Los volúmenes fueron organizados de acuerdo a los espacios exteriores, construyendo así un fragmento de ciudad con su pequeña plaza de acceso

ZONIFICACIÓN

SERVICIOS GENERALES

ÁREA DE RECEPCIÓN Y TRATAMIENTO AMBIENTES ZONAS 2 176.12 m2 ÁREA ADMINISTRATIVA Y EDUCATIVA 100
CONTROL Y PESAJE RECEPCIÓN DE RESIDUOS EDIFICIO DE PRETRATAMIENTO ALMACÉN DE RECUPERABLES
DE ORGÁNICOS
ÁREA DE RECHAZOS
ALMACÉN
PRENSADO
AMBIENTES ÁREA 10 814.84 m2 11 802.13 m2 1 849.62 m2 6 296.85 m2 7 342.55 m2 293.66 m2 3 527.13 m2 3 798 m2 AFORO 10 20 10 5 10 20 10 40 MADURACIÓN TÚNELES DE COMPOSTAJE AFINO ROTOPALA PASARELA DE VISITAS ESTACIÓN DEPURADORA DE AGUAS RESIDUALES ALMACÉN, GARAJE, LABORATORIO Y TALLER BIOFILTROS PROGRAMA ARQUITECTÓNICO

AREAS AUXILIARES

Servicios Generales

Administrativos

1 Vestíbulo de acceso

2 Recepción

3 Distribuidor

4 Enfermería

5 Vestuario masculino

7 Limpieza / almacén

8 Voz + datos

9 Control Control

2 PLANTA

Oficinas

Administrativas

1 Despacho director general

2 Despacho

3 Sala de reuniones

4 Archivo

5 Limpieza / almacén

6 Aseos femeninos

7 Aseos masculinos

8 Distribuidor aseos

9 Distribuidor planta segunda

10 Sala diáfana de trabajo

11 Despacho director comercial

1 PLANTA
Área Educativa 1 Salón de actos 2 Almacén 3 Observatorio de fosos 4 Aula educativa 5 Aseos femeninos Área Educativa y acceso a la Cubiertarea 1 Acceso a la cubierta 2 Aula educativa 3 Área de instalaciones 4 Patio de instalaciones 3 PLANTA 4 PLANTA 6 Aseos masculinos 7 Distribuidor aseos 8 Distribuidor planta tercera 9 Laboratorio

DISTRIBUCIÓN

DEL PROCESO TIPOS DE USUARIOS

La planta es capaz de procesar

ÁREA DE RECEPCIÓN Y TRATAMIENTO

Personal de seguridad y operadores de maquinaria

. Control y pesaje

. Recepción de residuos

. Edificio de pretratamiento

. Almacén de recuperables

. Almacén de orgánicos

. Prensado

. Área de rechazos

ÁREA ADMINISTRATIVA Y EDUCATIVA

Personal administrativo y guías educativos

. Servicios generales

ÁREA DE COMPOSTAJE

Operadores de maquinas especializados

. Maduración

. Túneles de compostaje

. Afino

. Rotopala

ÁREA AUXILIAR

Personal de servicio

. Biofiltros

. Pasarela de visitas

. Estación depuradora de aguas residuales

. Almacén, garaje, laboratorio y taller

CIRC. PRINCIPAL DEL PROCESO

ORDEN DEL PROCESO

LEYENDA -

1 1A 2 2 3 3 1A 4 5 6 8 9 7B 7A

CONTENEDOR Y GARRAS TROMEL DE CRIBADO TÚNEL DE COMPOST ROTOPALA AFINADOR

5.Los materiales orgánicos van a los tuneles de compostaje.

6.Luego madurarán mediante soleras de maduración.

7.Después pasarán por la rotopala y serán llevadas en excavadoras al área de afinamiento.

8.Al final pasarán para el afinamiento y se almacenarán.

2 4 6 7B BARRA TRANSPORTADORA COMPACTADORA SOLERA DE MADURACIÓN EXCAVADORA 1 3 5 7A 8
EQUIPAMIENTO

VERTICAL

HORIZONTAL

CIRC. DE RESIDUOS ORGÁNICOS

CIRC. DE RESIDUOS RECUPERABLES

ESCALERAS ASCENSOR

Cartón, plástico, papel

CIRC. DE RESIDUOS RECHAZASABLES

Metal, voluminosos, vidrio

CIRC. VEHICULAR

RAMPAS

7 CIRCULACIÓN DEL
PROCESO DISTRIBUCIÓN
SERVICIOS GENERALES
PASARELA DE VISITAS

1.ZONA DEL PROCESO

Poseen una altura monumental debido a las maquinarias que se utilizan y al espacio de almacenaje.

VANOS OPÁCOS

RELACIÓN ENTRE OBJETO Y TERRENO

El edifico se encuentra apoyado en el terreno adaptandose a este, sin embrago hay sitios en concretos donde se realizaron infiltraciones para el almacenamiento.

2. ZONA AUXILIAR

Talleres: altura normal, para tener una sensación más íntima.

Zonas de encuentros: altura monumental, da una sensación de amplitud contrastando con el aforo.

VANOS
TRANSLUCIDOS
ESPACIALIDAD
Y ATMÓSFERA

FORMA ENVOLVENTE Y

aorganizaciónespacialprevia a la construcción del edificio fue planteada en una cuadricula ortogonalde30x10metrospara una adaptación al sistema constructivo con materiales metálicos.

27.00M

En el proyecto encontramos una variedad de altura , la gran mayoría de espacios de tratamientodedesechoscuentan con un altura monumental y la parte de Áreas auxiliares cuentan con una escala norma deaprox.3.50m

la forma del proyecto se fractura en cuatro bandas paralelas que deslizan entre sí, suben, bajan y se cubren con los colores y texturas del paisaje que las

rodea hasta fundirse por completo con el, asimismo cuenta con una semejanza de textura y color a estos.

l
¿CUÁL ES SU FORMA ?

MATERIALES

GRAVA VIDRIO

MEMBRANA IMPERMEABILIZANTE7

PAVIMENTO ECOLÓGICO

POLICARBONATO RECICLADO

1-SoladodeConcreto

2-FalsoPiso

3-VigasWarren

4-EstructuraSecundaria

5-Doble Columna Metálica, reforzadaconángulos.

6-ColumnaMetálica.

7-MurosdeConcreto

ESTRUCTURA Y MATERIALIDAD

EFICIENCIA ENERGÉTICA DEL PROYECTO SOSTENIBILIDAD VENTILACIÓN

ZONAS DEL PROCESO ZONA ADMINISTRATIVA Y EDUCACIÓN

Ventilarán mediante un sistema de túneles.

ILUMINACIÓN

Ventilación natural cruzada.

SISTEMAS AUXILIARES

Se utilizó luz natural y artificial en todos los ambientes.

SCRUBBERS

LECHOS FILTRANTES

NOR ESTE SUR OESTE

LEYENDA

SALIDAS DE EMERGENCIAS ESCALERAS DE EMERGENCIAS

EVACUACIÓN EN CASO DE EMERGENCIA

BIO- SEGURIDAD

LAVADO DE GASES

El aire interno (gases) que provoca el proceso de tratamiento es llevado por los ductos de ventilación hacia los Scrubbers para ser lavados

DESODORIZACIÓN

Luego de que los gases sean lavados serán llevados a los lechos filtrantes para ser desodorizados

PROTOCOLOS DE BIOSEGURIDAD

DEPURADORA DE AGUAS LIXIVIADAS

Se capta el líquido de los RSU recolectados y son llevados a las maquinarias depuradoras, donde pasarán por varias filtraciones, para luego ser utilizadas en el tratamiento de residuos

INFRAESTRUCTURA VERDE

PAISAJISMO Y

TECHOS VERDES

El objetivo principal del proyecto desde un inicio fue la integración paisajística y territorial de la planta con su entorno natural, por esta razón se incorporo plazas a su alrededor y así como también las cubiertas reproducen las mismas texturas y colores de su entorno paisajístico .

PRINCIPALES JARDINES

ciclo de la transformación

Autores del Artículo:

Cuno Chuques Gianfranco Ronaldo

Caballero García Angie Sofia

04

“EL MILAGRO” LA LIBERTAD-PERÚ

el sector "El Milagro" es una zona residencial ubicada en la ciudad de Trujillo, Perú. Esta área se encuentra al norte del centro histórico de la ciudad y está limitada por importantes vías de comunicación, lo que la convierte en una zona de fácil acceso y excelente conectividad. Una de las vías principales que conecta al sector El Milagro con el resto de la ciudad es la Avenida Miguel Grau, una amplia avenida que atraviesa la ciudad en sentido este-oeste. Además, la zona también está conectada con la Avenida Larco, una de las arterias más importantes de Trujillo, que conecta con el centro histórico de la ciudad.

De acuerdo con los datos del censo del INEI de 2017, la población del distrito "El milagro" es de alrededor de 40,003 hab. El porcentaje de población por grupos de edad es de 20,4% para aquellos de menores de 18 , 63,8% para aquellos de 18 a 65 años, y 15,8% para aquellos de 65 años o más. Esto significa que la mayoría de la población en el distrito está dentro del grupo de edad de 15 a 65 años. Es así que el terreno elegido para el estudio cuenta con un uso de suelos Industrial I1-I2 y al estar dentro del botadero, tendrá una posición estratégica que posibilitará un acceso sencillo tanto para los vehículos recolectores de residuos, como para los ciudadanos que quieran trasladar sus desechos hasta la instalación.

4.1 LOCALIZACIÓN:
SECTOR
PROVINCIA DE TRUJILLO

C.FRANCISCOBOLOGNESI

VÍAEVITAMIENTO

HUANCHACO

CONECTIVIDAD ACCESIBILIDAD Y

LEYENDA: LIMITES

Terreno Huanchaco

La esperanza

Av.Miguel Grau

C.Francisco Bolognesi

Vía Evitamiento

l terreno seleccionado se carácteriza por ser de fácil acceso, pues tiene como vía pincipal a la avenida Miguel Grau que inicia en el centro histórico de Trujillo y se extiende hacia los distritos del Porvenir, La Esperanza y Victor Larco. Además, cuenta con la calle Francisco Bolognesi, la cual tiene ingreso directo hacia la via evitamiento del Milagro, que es la principal vía para el trasporte de los RSU de Trujillo hasta su desposición final. Esta característica nos ayudará en el proceso de recolección de RSU para la planta de tranformación energética.

DISTANCIA HACIA HITOS IMPORTANTES DE LA CIUDAD

Moll plaza. 19 minutos

UPN sede San Isidro. 19 minutos

UPN sede el Molino. 22 minutos

UNT 24 minutos

Plaza de Armas 25 minutos

DISTANCIA HACIA PUNTOS DE ACUMULO DE BASURA

Mercado la Hermelinda. 21 minutos

Mercado Mayorista. 30 minutos

V.A M I GURAUGLE
e
LA ESPERANZA

USO DE SUELOS

Terreno zonas mixtas

zona industrial

zona de salud

zona educativa otros usos

zonas de recreación zona residencial y de comercio

n particular, la zonificación en el Milagro se divide en cinco categorías principales: residencial, comercial, industrial, de equipamiento y servicios públicos, y de protección y conservación. Sin embargo, el sector del Milagro es visto como una zona marginada debido a diversos factores

como sería la presencia de asentamiento informales, la falta de infraestructura básica y servicios públicos en algunas zonas, entre otros. Estos factored generan como consecuencia que el desarrollo urbano sostenible no sea suficiente para garantizar el bienestar y la calidad de vida de toda la población.

ZONIFICACIÓN Y 6 7 8 9 3 5 1 2 10 11 12
e LEYENDA URBANA

IMPORTANTES

Y PAISAJÍSTICAS

l sector del Milagro tiene diversos establecimientos que se combierten en hitos indispensables para sus pobladores. Sin embargo, estos no se encuentran en las condiciones adecuadas, pues su ausencia de mantenimiento y equipamiento adecuado las combierte en zonas olvidadas por sus usuarios.

DESÉRTICO Y DESOLADO

El paisaje que rodea al sector es desértico y desolado, mostrando una gran usencia de áreas verdes y zonas de recreación. Por esta razón, nuestro proyecto busca rehabilitar el botadero del Milagro para darle una mejor calidad de vida a los usuarios y relevacia a este sector; ademas de combatir nuestra problemática provocada por el mal manejo de los RSU.

CARACTERÍSTICAS URBANAS
PENAL DEL MILAGRO I.E. JULIO GUTIERREZ SOLARI GRIFO MILAGRITOS MERCADO SANTA ROSA IGLESIA ADVENTISTA EL SÉNTIMO DÍA I.E JULIO GUTIERREZS SOLARI I.E. SAN MARTÍN DE PORRES PILIDEPORTIVO EL MILAGRO
e
PARQUE CESAR VALLEJO PLANTA LLAMAGAS TERRENO
HITOS
PAISAJE
1 2 3 4 5 6 7 8 9 10 11 12 4
CONDOMINIO EL MILAGRO II

CARACTERÍSTICAS AMBIENTALES

ste sector se caracteriza por su clima cálido y seco, convirtiéndose en una región con pocas lluvias y con temperaturas altas durante la mayor parte del año, además presenta graves problemas ambientales debido a la mala gestión del tratado de residuos sólidos. Aunque se evidencie la gran escases de vientos en la zona, estos provienen del sur con dirección al norte y con respecto a su asoleamiento. Se tomó como ejemplo el terreno seleccionado para el proyecto y se analizó las zonas mas afectadas en el verano (diciembre a marzo), dando como resultado que es su punto mas alto, el sol afecta el lado Sureste del terreno.

N 75 OCURRENCES 50 OCURRENCES 25 OCURRENCES 0 OCURRENCES NNE NE ENE E ESE SE SSE S SSW SW WSW W WNW NW NNW
vientos dominates: Sur-Norte ASOLEAMIENTO EN VERANO Zona más efectada en verano CLIMA
Árido Seco e
CONTAMINACIÓN AMBIENTAL

REINSECCIÓN DEL CRIMINAL

BOTADERO EL MILAGRO

ROL E IMPORTANCIA

DEL SECTOR e

l sector del Milagro en Trujillo, tiene un rol importante en la gestión de los residuos sólidos y en la seguridad ciudadana, debido a que alberga el basurero de la ciudad y un centro penitenciario. En cuanto al botadero, el sector del Milagro es el encargado de almacenar y gestionar los residuos generados por la ciudad y la región. Además, se encarga de reducir los riesgos sanitarios manteniendo limpio todo el distrito.

Por otro lado, el centro penitenciario cumple un rol importante en la reinserción social de las personas privadas de su libertad y la seguridad ciudadana, así como en la prevención y el control del delito en la ciudad y la región. Por ello, ambas infraestructuras son necesarias para el bienestar y la protección de la población.

c e s i d a d

Equipamiento

Area de Trabajo

Servicios Proovedor

Mantenimiento y control

Generación de energía

a c t i v i d a d

n e c e s i d a d

Calidad de Vida

Capacitación

Empleo

Proporcionar

Recolección Clasificación

a c t i v i d a d

u s u a r i o

trabajador

proovedor e s p a c i o s

e s p a c i o s

generación de energíamatenimiento

Cuarto de almacenamiento

Salas de monitoreo

Cabinas de control

Salas de sistemas

auxiliares

Centrales eléctricas.

Planta de energía.

capacitación

Áulas.

SUM.

proporcionar

Área de descarga. Estacionamiento.

recoleción clasificación

Punto de acopio. Recepción.

Almacenamiento. Salas de gestión.

n e
D
PERFI L

E U SUARIO

Fosas de

Salas de Clasificación

Estacionamiento.

transfromación

Sala de incineración.

Sala de turbina.

Sala de almacenamiento de energía.

Jardines.

Áreas verdes.

Anfiteatros. plazuelas.

recreación interacción consumo educación

Cafeteria.

Comedor. Auditorios. Aulas.

s u a r i o c i o s n e
u s u a r i o e s p
c i o s
a c t i v i d a d n e c e s i d a d
Interacción Recreación Consumo Maquinaria a c t i v i d a d
materia prima visitantes
a
Bienestar
EducaciónConocimiento
Residuos UrbanosTransformación Trabajador Reciclaje Transporte
4 . 2PROGRAMAARQUITECTÓNI C
O
PROGRAMA edanoZ m a n ejo dersu t r a t ado deresiduos servicios s s hhmujeres s.s.h.hhombres almacén almacenamiento derso clasificación deresiduos sala de fundido parametal e s p a c i o de me p a q u e tamiento rabme q u e fosa de ÁREA:65m2 m2/persona:10 m2/persona:10 m2/persona:10 m2/persona :10 m2/persona : 1 0 m2/ per s o n a : 1 8 0 m2/persona: 10 m2/persona:10 m2/persona:2 m 2 /persona: 2 /2m srep o n a : 2 a.de recreación edanoz er h a bilitación euqrap ámet t i c o zonade descanso paraelp. de s. jardines otreuh Á . edsopmoc t a j e Á. libre a. de r e c r e a c i ón oredanrevni ortaetifna URBANA revalorac i ó n acitégrene zonadecombustió n zona dedeenerg í a servicios recepc i ó n ed de b a s u r a fosa dealmacenamien t o zonade clasificació n saladecalderas saladecontrol dymonitoreo eturbinas fosa de cenizas s i s t e aux i l i a r e s monitoreodeturbinas cam i o n e s sala d e turbina s vestuarioduchasysshhparamujeres vestuarioduchasysshh parahombres almacén generació n ÁREA:500 m2 ÁREA:50m2 ÁREA:65m2 ÁREA:20m2 ÁREA :115m2 Á R E A : 1,280m 2 ÁR E A: 8 00m2 ÁREA:65m2 ÁREA:65m2 aforo: 84 ÁREA:60m2 ÁREA:90m2 ÁREA:50m2 m2/persona: 6 aforo:5 ÁREA:500m2 aforo:84 m2/persona:3 aforo:6 aforo:6 ÁREA: 5000m2 aforo: 715 m2/persona: 7 aforo:1 aforo : 11 a f o r o : 7 AERÁ : 1 0 0 0 m 2 ofa r o : 3 3 4 m 2 / p e r s o n a : 3 m 2 / p e r s ona: 6 a f o r o : 133 m 2 /persona: 12 aforo: 8 m2/persona:8 aforo:7 Á REA : 300 m2 a f oro : 20 m 2 / p ersona:15 3L,3I aforo:20 ÁREA:200m2 aforo:10 m2/persona :20 3L,3u,3I aforo:30 m2/persona: 10 aforo: 5 aforo: 22 ÁREA:100m2 aforo:25 m2/persona:4 ÁREA:225m2 ÁREA: 50 m2 aforo: 50 m2/persona: 1 aforo:22 ÁREA:225m2 aforo:75 ÁREA:150m2 a f oro: 25 ÁREA : 50m2 orofa : 1 0 0 ÁREA : 200 2m ÁREA:30m2 3L ,3I aforo:10 ÁREA:60m2 3L , 3u , 3I aforo:20 ÁREA:50m2 m2/persona:10 aforo:5 1 ,000m² 1,300m ² 45000m²
mdaanoz i n i strativa estacio n a otneim g e
s a lud estacionamientoadministrativo estac .para camiones de b a s u r a estacionam i e n t o para visitan t e s
debicicletas estacionamiento para discapacitados y
hall recepción + secretaría general + s.s.h.h gerencia gerenciade opera-ciones gerenciade mante-nimiento gerenciadeseguridad,higienteymedioambiente gerenciaderecursoshumanos oficina t écnica o f i cina delmedio a mbiente s a l a de r e u n i ones s s h h ótocip ót p i c o almacén sshh hombres ss.h.hmujeres sm.shhdisc ujeres s.s.hh disc.hombres Zonacom p l airatneme
zon a pedagóg i c a bienestar tallerde produccióndepapelreciclado taller de juguetes de materialreciclado centro d e restaurac i ó n y venta d e articulo s aula d e inform a c i ó n s u m portería limpieza depósito máreade manteniiento ss.hhhombres ss.hhmujeres ssh h discaphombres s s h h discapmujeres cafetería cocina comedor ÁREA:360m2 ÁREA:10m2 ÁREA:90m2 ÁREA:90m2 ÁREA:90m2 ÁREA : 6 0m 2 Á R EA :1 0 0 m2 Á R E A : 1 6m2 m 2 / p e r s ona : 2 Á R E A : 2 88m2 m 2 / p e rsona:1.5 ÁREA:50m2 m2 /persona:10 ÁREA:25m2 m2/persona:1.5 ÁREA:20m2 m2/persona:1.5 ÁREA:3.5m2 m2/persona: 2 ÁREA:3 5m2 m2/persona: 2 ÁREA:792m2 aforo:60%de88=53 ÁREA :800m2 ÁREA:990m 2 ÁREA:198m2 ÁREA:185m2 aforo:1cada100 de119=1 aforo : 8 ÁREA:10m2 m2/persona 1 5 aforo: 7 ÁREA:6m2 m2/persona 2 aforo 3 ÁREA:150m2 m2/persona:15 aforo:100 m2/persona:1 aforo:360 m2/persona aforo 10 1 m2/persona:3 aforo:30 m2/persona: 3 aforo: 30 m 2 /persona: 3 aforo: 30 ÁREA:20m2 m2/persona: aforo: 5 35 m 2 / p e r s ona: 2 a f o r o : 30 2m / p e r s o n a : 1 ofa r o : | 0 0 ÁREA:30m2 m2/persona: aforo:3 10 ÁREA:22m2 m2/persona: aforo:2 10 ÁREA:22m2 m 2 /persona: aforo: 4 5.5 ÁREA: 22m2 m 2 /persona: aforo: 4 5.5 a f o r o : 8 ÁREA:45m 2 m 2 / p e r sona: a f o r o : 1 8 2 5 ÁREA:6m2 m2/persona:2 aforo:3 a f oro:1 aforo:5 aforo:16 aforo:13 ÁREA:12m2 m2/persona:2 aforo:6 aforo:1 ÁREA:100m2 m2/persona:2 aforo:50 aforo: 2 ÁREA:15m2 m2/persona:15 aforo:10 ÁREA:15m2 m2/persona :15 aforo:10 ÁREA:4m2 m2/persona : 3 aforo:1 ÁR EA :4m2 m2/persona : 3 aforo : 1 ÁREA:22m2 m2/persona: aforo: 2 10 ÁREA:22m2 m2/persona:aforo:2 10 ÁREA:22m2 m2/persona: aforo:2 10 m2/persona: 15 m2/persona : 100 aforo: 20/ 1 3 2 2 = 6 6 m 2 /per s o n a : 15 aforo:10/1322 = 132 m2/persona: 1.5 m2/persona: 185 A RQUITETÓNIC O 280m² 1,100m ² 2780m²
stiónadministrativa servicios privado público
estacionamiento
coordinaciónde personal
servicios

CONCEPTOS CLAVES

AUTORES:

e plantea una propuesta sostenible apartir de la basura descontrolada que existe en la ciudad. El proyecto promete generar gran impacto positivo hacia uno de los sectores más pobres de Trujillo. Siendo este capaz de reciclar los RSO y combertirlos en energía eléctrica mediante procesos de incineración, reduciendo la cantidad de basura que se almacena en los vertederos y mitigando el impacto ambiental de los mismos.

Binestar

La idea comienza a partir de la recolección de residuos sólidos urbanos para su posterior reciclaje y clasificación, donde por medio de procesos industriales se transformará en energía eléctrica. Tomando como recurso fundamental el residuo orgánico que conforma el 60% de basura que más abunda en la ciudad de Trujillo, debido a la presencia de actividades agrícolas y alimentarias en la zona. Abasteciendo de esta manera a la población que más necesita de este servicio básico.

TRANSFORMACIÓN 4.3. CICLO DE LA
s
Angie Sofia Caballero García
r s o r e c i c l a j e e n e r g í a i n d u s t r i a
clasificación
Gianfranco Ronaldo Cuno Chuquez
Transporte Residuos inorgánicos Residuos Orgánicos
Generación de energía

os residuos orgánicos pueden ser reciclados para generar energía y reducir la contaminación ambiental producida por el botadero "El Milagro". Esto es una práctica sostenible que generará empleo y mejorá la calidad del suelo, además, de evitar la filtración de líquidos tóxicos hacia las aguas subterráneas. También se podrá crear compost a partir de los residuos restantes para aumentar la productividad agrícola. En cuanto a los residuos inorgánicos, serán distribuidas para las empresas dedicadas al plástico, contribuyendo a una economía más sostenible y saludable.

El objetivo de la planta es transformar los residuos orgánicos en una fuente de energía renovable. El cual se encargará de recibir los residuos para someterlos a un proceso de separación y tratamiento, eliminando las materias no orgánicas. Luego, los residuos orgánicos se someterán a un proceso de digestión anaerobia, generando biogás. Este biogás por medio de una turbina se encargará de producir energía térmica o eléctrica. Por último, los desechos restantes se podrán utilizar como fertilizante.

TIPO DE RESIDUOS

l
r e s i d u o s o r g á n i c o e n e r g í a r e s i d u o s i n o r g a n i c o s n e g o c i o residuos 10% Calderas Cenizas y Metales turbina residuos 100% filtroschimenea 6 7 4 2 3 energía electrica 5 1 fosas
digestión anaerobia
materia orgánicaresiduos ganaderoscompostresiduos agroindustriales

¿QUÉ TIPO DE ZONAS TRENDRÁ?

después de analizar nuestros usuarios, necesidades y actividades a realizar, se logró identificar 6 zonas que se organizaron por jerarquía. Nuestro proyecto tendrá dos zonas principales con el mismo valor de relevancia. La zona de "Revalorización energética" se encargará del eficaz tratamiento de RSU y la generación de energía por medio de los RSO. Asimismo, nuestro objetivo es rehabilitar los terrenos del actual botadero el milagro, pues se encuentran gravemente alterados por la malas prácticas de tramaniento que se vienen realizando. Por este motivo se

implementará la zona de "Reabilitación urbana" quien se encargará de darle el título de parque a la edificación, pues estará conformado por jardínes, invernaderos y áreas de recreación; todo deacuedo a la teoría del paisaje del desecho. Para la clasificación y posterior venta de los desechos, se implemento la "Zona de manejo de RSU", y pensando en la concientizacion e integración de los pobladores, se tiene como propuesta una "Zona complemenaria", donde se realizarán actividades como talleres, capacitaciones y conferencias. Este conjunto de zonas, necesitarán de espacios de gestión y coordinación, dando origen a la "Zona administrativa". Finalizando con la "Zona de estacionamiento", donde los recolectores de basura, personal de servicio y público en general, cuenten con un espacio para depositar sus vehículos.

QRAP U E DELATRANSFO NÓ energética CICLO DE LA
TRANSFORMACIÓN
INDUSTRIA RECICLAJE
RSO
ENERGÍA E.

n base a nuestros conceptos claves nuestra volumetría nace a partir del ícono que representa al reciclaje, generando un ciclo seccionado en dos partes, para después obtener un forma circular que caracteriza a una turca, simbolizando a la industria. La producción de energía eléctrica se verá reflejada en el signo del rayo, separando la forma en un volúmen encima del otro, creando una sensación de poder y continuidad, caracterísca propia del rayo. El proyecto obtendrá su silueta final tomando en cuenta las formas orgánicas, pues un lado de los dos volúmenes tendrá menos altura que el otro, produciendo curvas cualidad que representa el símbolo de un hoja.

VARIABLES

VIENTOS

Se direccionó el proyecto de sur a norte,paraaprovechar el uso de los vientos dominantes que provienendelamisma dirección.

CALLEFRANCISCOBOLOGNESI

RUIDOS

INGRESO

La zona industrial se ubico en la parte posterior para evitar los ruidos producidos lasmaquinarias.

Las zonas se conforman por dos volúmenes separados, con el fin de no mezclar la circulación de uso público con el uso industrial. La zona de industria, tratados de RSU y estacionamiento, se ubicarán cerca a la calle Francisco Bolognesi para facilitar el ingreso de los RSU, debido a ello, tanto la zona administrativa y complementaria, se situarán en el ingreso para un correcta recepción de los visitantes y autoridades. Finalmente, todos estos espacios se encontrarán rodeados por la zona de rehabilitación urbana, una de las más importantes del proyecto que estará constituido por áreas verdes.

Se localizó la zona industrial en la parte norte del terreno, para evitarlaincidenciasolar.

¿DÓNDE SE UBICARÁN?

oz nacomplementa r i a z onaadministrativ a noz a deestacionamie n ot zoan d e rehabilitació n u anabr ASOLEAMIENTO noza de manejoderes i d ous
e
ver a l oraciónenergé t i ac
INGRESO
zona industrial

sacha wasi

PLANTAS ARQUITECTÓNICAS

Autores del Artículo:

Cuno Chuques Gianfranco Ronaldo

Caballero García Angie Sofia

05
5.1. AREA DEL ÁREA LIBRE 51235.72 M2
ÁREA CONSTRUIDA 8060.83 M2 ÁREA TOTAL 58523.49 M2 PRIMER NIVEL 7271.7955 M2 SEGUNDO NIVEL 502.4426 M2 POR NIVELES LEYENDA TOTAL 8060.83 M2
TERRENO

TOPOGRÁFICAS Y AMBIENTALES

TIPO DE SUELO

e

NORTE: 289.3 m

SUR: 225.8 m

ESTE: 289.3 m

OESTE: 292.19 m

VARIABLES DIMENSIONES

MORFOLOGÍA RECTANGULAR

l terreno donde se encuentra ubicado el proyecto tiene 4 frentes con una forma rectangular y una topografía plana. Además se identificaron dos variables ambientales importantes, orientando el proyecto en dirección de sur a norte con la finalidad de aprovechar los vientos dominates, y la zona de producción energética se emplazó en el lado noreste del terreno para evitar la incidencia solar y sobrecalentar la maquinaría. .

PLANO
CARACTERÍSTICAS

la zona de clasificación de RSU fue diseñada para clasificar los siguentes 8 tipos de residuos ( R. orgánicos, R. Inorgánicos, Plásticos, Papel y Cartón, Vidrio, Metál, R. Electrónicos y R. peligrosos). Además se organizó de manera sucesiva iniciando por el área de recepción de residuos, para despues ingresar a la fosa de almacenamiento, posteriormente los residuos serán llevados a la clasificadora terminando en la zona de almacenamiento para su disposción final, como su venta y en especial la generación de energía eléctrica en base a los RSO.

alc s i ficación deres i d sou e stacionamiento of s adealmacenamie n ot c a p a c i d a d c a p a c i d a d d e p ósitoderesidu o s 2 p
PRIMER NIVEL 3p 6p
3
PLANIMETRÍA CORTES
ESCALA MONUMENTAL ESCALA NORMAL Altura 1: 25.6 m Altura 2: 20.5 m Altura 3: 13.15 m m Altura 4: 3.00 m 1 2 4
CORTE B-B
CORTE A-A CORTE B'-B'

PRIMER NIVEL

La zona de valorización energética será el encargado de generar energía en base a los RSO que colleva al 60% de los RSU y será capaz de procesar 540 toneladas de RSO en 4 jornadas de 8 horas. Este proceso inicia con la recepción de los residuos y su almacenamiento en una fosa, para despues, ingresar a la cámara de incineración generando el vapor que necesita la turbina para producir energía eléctrica, para finalmente almacernarce el la planta de energía eléctrica. Todos estos espacios fueron diseñados en base a una secuencia y adaptandose a las necesidades que requiere cada parte del proceso.

ZONA DE REVALORIZACIÓN
ác m aradeinciner n ut r binaregenerado ra z onaadministrati v a 18p e stacionamiento c a p a c i d a d 8p of s adealmacenamie n ot c a p a c i d a d 1p c a p a c i d a d laboratorio 6p
ENERGÉTICA
1p
4 CORTE Y-Y CORTE P-P CORTE Y'-Y' ESCALA MONUMENTAL ESCALA NORMAL Altura 1: 25.6 m Altura 2: 20.5 m Altura 3: 13.15 m m 1 2 3 Altura 4: 3.00 m

ZONA COMPLEMENTARIA

e

l volumen se encuentra apartado de la zona industrial, para una mejor concentración de actividades. seguridad y libre de ruido. En primera instancia, la primera planta está unicamente dedicado a la zona pública, ofreciendo diversos talleres para el público, con el fin de aumentar y fomentar la concencia ambiental y aprendizaje de los pobladores de la localidad, así mismo se proporcionará oportunidades de empleo para los usuarios dedicados al reciclaje en el sector "El milagro".

Por consiguente, estos ambiente albegarán la cantidad de 30 personas por taller, por el cual se implementó una cafetería exclusivamente para los usuarios que ocupen estas instalaciones. Finalmente tambien contará con una sala de usos multiples, tópico, S.S.H.H y un aula de información. Los talleres tendrán la finalidad de restaurar diversos residuos reutilizables, como el plastico, juguetes en mal estado, entre otros, para su posterior comercialización en el ambiente de venta de artículos.

ORPARAPERSO N LA c a p a c i d a d 30p s a l adeusosmúltip l e s 30p v entade artículo s 10p c a p a c i d a d cafetería 30p c a p a c i d a d llat e rescomplement a soir 30p c a p a c i d a d s.s.h.h 6p c a p a c i d a d ót picoparapúblic o c a p a c i d a d 2p llat e rescomplement a soir c a p a c i d a d 30p ZONA PEDAGÓGICA,
BIENESTAR
DE
Y SERVICIOS PRIMER NIVEL
AUTORES: Angie Sofia Caballero García Gianfranco Ronaldo Cuno Chuquez

En el segundo nivel de la planta se encuentra la zona administrativa, que se distingue por su carácter más privado y se dedica a funciones específicas. Esta área es responsable de la planificación y programación de las actividades de la planta .En este sentido, en el segundo nivel se han designado áreas específicas, como la gerencia general, la gerencia de operaciones, la gerencia de mantenimiento, la gerencia de recursos humanos y la gerencia de seguridad, higiene y medio ambiente.

Estas áreas están encargadas de llevar a cabo una planificación eficiente de procesamiento de la planta y garantizar una mayor eficiencia y efectividad en ambas áreas. Los espacios están diseñados para cada actividad y conectados por muros translúcidos, fomentando la convivencia. además comparten una sala de reuniones. Por último, tener la zona administrativa en un solo piso ayuda a un entorno laboral seguro, eficiente y saludable para todo el personal de la planta.

s.s.h.h 6p c a p a c i d a d gerencias c a p a c i d a d 2p
S A LADEREUNION E S 17P c a p a c i d a d GESTIÓN
:
ADMINISTRATIVA Y COORDINACIÓN DE PERSONAL SEGUNDO NIVEL ZONA ADMINISTRATIVA AUTORES
Angie Sofia Caballero García Gianfranco Ronaldo Cuno Chuquez
CORTE A-A PLANIMETRÍA
CORTE
5.3. ESPACIALIDAD Y CIRCULACIÓN VERTICAL.
CORTES GENERALES CORTE LONGITUDINAL
TRANSVERSAL

CORTES GENERALES

CORTE LONGITUDINAL

CORTE TRANSVERSAL

5.3. ESPACIALIDAD Y CIRCULACIÓN VERTICAL.

PROCESO CONSTRUCTIVO

ZONA CLASIFICACIÓN DE RESIDUOS

l a estructura se compone de un sistema construc el uso de perfiles estructurales de acero, como vigas y columnas para el proyecto. Este sistema nos permite mayor flexibilidad con el diseño de la zona de clasificación de residuos, ya que puede adaptarse fácilmente para crear espacios abiertos y de mayor luz entre ellas, lo que facilita la circulación de los trabajadores y los equipos. Además, el acero puede ser modificado o ampliado con relativa facilidad en el futuro si se requieren cambios en la planta de clasificación.

ENCUENTRO DE VIGA CON TIJERALES

ENCUENTRO DE VIGA CON COLUMNA

Este sistema nos ofrece una iluminación adecuada para que los trabajadores puedan ver y distinguir correctamente los diferentes tipos de materiales, como plásticos, vidrios, metales, papel, etc. Otro punto a favor es que este tipo de zonas tiende a ser un proceso intensivo que exige en términos de uso y desgaste de la infraestructura, por lo que el acero ayudará en resistencia, durabilidad para soportar el peso de los equipos utilizados en el proceso de clasificación, así como cualquier carga adicional que pueda presentarse.

5.4. SISTEMA ESTRUCTURAL EN ACERO
DETALLES

CONSTRUCTIVOS

ANCLAJE DE PISO CON COLUMNA

ENCUENTRO DE VIGA CON TIJERALES

n la siguiente zona de revalorización energética se planteó el mismo sitema constructivo de acero ya que también ofrece flexibilidad en el diseño del proyecto, especialmente donde se requieren diferentes equipos y sistemas de procesamiento, como reactores, calderas, chimeneas y conductos. por lo que puede adaptarse fácilmente a las diferentes formas y tamaños, facilitando la construcción de estructuras complejas y la integración de los equipos necesarios.

Este sistema tambíen ofrece una resistencia estructural, el cual brinda un material altamente resistente y duradero para la construcción, permitiendo que la zona sea capáz de soportar grandes cargas, como el peso de los residuos y condiciones adversas, como las vibraciones y las altas temperaturas que las camaras de incineración generen. Por lo tanto, el uso del acero garantiza la seguridad y la eficiencia de las instalaciones, promoviendo una gestión más sostenible de los residuos y la producción de energía.

E
ZONA DE REVALORIZACIÓN ENERGÉTICA

ZONA ADMINISTRATIVA

ENCUENTRO DE ZAPATA CON COLUMNA

ENCUENTRO DE VIGA CON COLUMNA

l sistema constructivo de la zona administrativa de la planta estará conformado por zapatas, columas y vigas de acero, el cual cumplirá la función de soportar cargas pesadas, como el peso de equipos, muebles, archivos y sistemas de almacenamiento, ofreciendo de igual forma flexibilidad en el diseño arquitectónico.

Este material nos otorga grandes espacios abiertos sin la necesidad de columnas o paredes intermedias. lo que permite una distribución eficiente del espacio en una zona administrativa. como sería el SUM y las salas de reuniones de las gerencias, gerantizando mejor fluidez en los ambientes y recorridos para los trabajadores y/o visitantes.

e
DETALLES

CONSTRUCTIVOS

LOSA COLABORANTE

LOSA COLABORANTE

se planteó también el uso de losas colaborantes unicamente para la zona administrativa debido a que este cuenta con dos niveles. Estas losas colaborantes están compuestas por una combinación de acero y concreto. proporcionando una mayor resistencia y capacidad de carga, proporcionando la misma flexibilidad que el sistema de acero.

VISTA ISOMÉTRICA DE LA MALLA ESTRUCTURAL

Este material nos otorga grandes espacios abiertos sin la necesidad de columnas o paredes intermedias. lo que permite una distribución eficiente del espacio en una zona administrativa. como sería el SUM y las salas de reuniones de las gerencias, gerantizando mejor fluidez en los ambientes y recorridos para los trabajadores y/o visitantes.

SISTEMA CONSTRUCTIVO

ZONA ADMINISTRATIVA

2

UNIÓN DE VIGAS CON MURO CORTINA

DETALLE DE MUROS

SISTEMA SPIDER

DETALLE DE PUERTAS DE MADERA 3

En esta sección, exploramos los detalles arquitectónicos del bloque de oficinas y los espacios adicionales del proyecto. Uno de los aspectos más destacados de este diseño es la integración del sistema spider en los ventanales. Estas ventanas, que consisten en múltiples paneles de vidrio del piso al techo, brindan vistas panorámicas del entorno circundante y permiten que ingrese abundante luz natural al interior del espacio.

Estos paneles de vidrio están conectados por un ingenioso sistema de soporte metálico en forma de araña que les otorga estabilidad y resistencia. La elección de utilizar un sistema de araña como soporte no es solo funcional sino también estética. Con su apariencia única y elegante, estas estructuras metálicas crean sorprendentes efectos visuales al combinar armoniosamente líneas rectas y curvas.

5.5. MATERIALIDAD
6 4 3 2 1
CORTINA
1

PROCESO CONSTRUCTIVO EXTERIOR

DETALLE DE PISO DE CERÁMICA

ALTAS

CIELO RAZO Y PISO DE CERÁMICO

los techos bajos juegan un papel crucial en la funcionalidad, la estética y la comodidad del interior. La elección del techo suspendido tiene varias ventajas. En primer lugar, proporciona un aspecto limpio y unificado al ocultar los elementos estructurales y los sistemas técnicos normalmente visibles en el techo. Crear una sensación de orden y limpieza en el espacio interior.

UNIONES DE PERFILES CON CIELO RASO 6

Además, el cielo raso suspendido permite la fácil instalación y acceso a sistemas de iluminación empotrados, sistemas de aire acondicionado y otras infraestructuras, lo que facilita el mantenimiento y las posibles modificaciones en el futuro. La elección de la cerámica de debe a su gran capacidad de soportar un alto tráfico y el desgaste diario. Además, su superficie lisa facilita la limpieza y el mantenimiento, lo que contribuye a un entorno de trabajo higiénico y saludable.

5.5. MATERIALIDAD
VENTANAS
4
DETALLE DE CIELO RASO 6
4

5.5. MATERIALIDAD E

PROCESO CONSTRUCTIVO

n el marco de nuestro proyecto pionero de conversión de residuos sólidos urbanos (RSU) en energía eléctrica sostenible, hemos diseñado un espacio recreativo único que aprovecha las propiedades naturales y la versatilidad del bambú: el Domo de Bambú. Este domo se convertirá en un punto de encuentro para la comunidad, donde se podrán desarrollar actividades agrícolas, invernaderos y diversas actividades recreativas.

El Domo de Bambú es una estructura arquitectónica impresionante que ofrece una combinación perfecta de belleza natural y funcionalidad. Su diseño único permite el aprovechamiento óptimo del espacio y ofrecerá espacios multifuncionales que aprovechen al máximo su forma y estructura. En su interior del domo se crearán huertos, invernaderos y zonas de usos múltiples.

EXTERIOR DETALLE DE CIMIENTO DE GEODÉSIA DETALLE DE UNIÓN DE COBERTURA DOMO 2 1 3 2 1 4 DETALLE DE UNIÓN DE COBERTURA 1

5.5. MATERIALIDAD PROCESO CONSTRUCTIVO

s e destinarán áreas para el cultivo de huertos y la instalación de invernaderos, permitiendo el crecimiento de alimentos frescos y saludables para la comunidad. Estas áreas serán diseñadas de manera eficiente, utilizando técnicas agrícolas sostenibles y sistemas de riego inteligentes que maximicen el uso del agua y los recursos disponibles. Presentando así los detalles arquiectónicos que especifican su instalación y ubicación.

Por lo tanto, el Domo de Bambú será el corazón del área recreativa y comunitaria de nuestro proyecto, ofreciendo un espacio versátil y atractivo, con su diseño arquitectónico impresionante y su enfoque en la sostenibilidad, el domo se convertirá en un símbolo de la transformación de los residuos en energía eléctrica y en un punto de encuentro para los pobladores, fomentando la participación activa y el desarrollo de prácticas sostenibles.

DETALLE DE UNIONES DE GEODÉSIA DETALLE DE CIMIENTO DE GEODÉSIA 3
EXTERIOR

DETALLE 1

POZO CANADIENSE

n esta sección, exploramos tecnologías sostenibles implementadas en residuos sólidos municipales (RSU) para proyectos de energía. Uno de los aspectos más destacados de nuestro enfoque sostenible es la adición de un pozo canadiense, una solución innovadora para la regulación del calor y la eficiencia energética. Los pozos canadienses, también conocidos como pozos de aire, son una tecnología sostenible para el acondicionamiento térmico de interiores.

Funciona haciendo circular aire a través de tuberías subterráneas a cierta profundidad. En verano, el aire caliente del edificio es enfriado por el suelo fresco y devuelto al interior. En invierno, el aire frío exterior se calentará al pasar por la habitación. Fontanería subterránea, lo que reduce la necesidad de calefacción adicional. Esta solución altamente eficiente aprovecha la temperatura constante de la tierra,

E
5.6. TECNOLOGIAS SUSTENTABLES.
D1
5
POZOS CANADIENSES

ahorra energía y reduce las emisiones de gases de efecto invernadero. Se realizó una investigación geotécnica en el diseño de la oficina para determinar la profundidad y longitud correcta de la tubería. Canadá complementa el enfoque sostenible Respetar el medio ambiente proporcionando una regulación térmica eficiente. Su eficacia depende de la ubicación geográfica, el suelo y el diseño del sistema.

El aislamiento, las ventanas de alta eficiencia y la orientación del edificio pueden aumentar aún más la eficiencia. Finalmente, los pozos de agua en Canadá utilizan la temperatura del suelo para enfriar o calentar el aire, lo que reduce la dependencia de los sistemas tradicionales y contribuye a la gestión térmica sostenible de los edificios.

5.6. TECNOLOGIAS
POZO CANADIENSE
SUSTENTABLES.

PANELES FOTOVOLTÁICOS

PANELES FOTOVOLTÁICOS

VENTANAS CON PANELES FOTOVOLTÁICOS

S

e proponen ventanas con paneles fotovoltaicos para el proyecto, ya que representan una evolución significativa en el diseño arquitectónico sostenible. Estas ventanas, fabricadas con materiales semiconductores, permiten la captación de la luz solar y su transformación en energía eléctrica. Al integrar paneles fotovoltaicos en las ventanas en las zonas del proyecto los cuales requieren de mayor energia en en todo el dia, podemos aprovechar la energía solar de forma pasiva y eficiente.

reduciendo así la dependencia de fuentes convencionales de electricidad. Estas ventanas con paneles fotovoltaicos ofrecen múltiples ventajas. Además de generar electricidad limpia, actúan como aislantes térmicos, reduciendo la necesidad de sistemas de climatización y disminuyendo el consumo energético del proyecto. Además, al aprovechar la luz natural, se optimiza la iluminación interior, creando espacios más agradables y confortables para los usuarios.

5.6. TECNOLOGIAS
SUSTENTABLES.
5

LUMINARIAS EXTERIORES CON USO DE ENERGIA SOLAR

Lampara Solar Alumbrado Publico 400w

LUMINARIAS CON ENERGÍA SOLAR

otro elemento clave en el diseño de áreas exteriores sustentables son las luminarias con uso de energía solar. Estas luminarias están equipadas con paneles solares integrados y baterías recargables que almacenan la energía captada durante el día para iluminar los espacios exteriores durante la noche. Al utilizar energía solar, se eliminan las emisiones de gases de efecto invernadero asociadas a fuentes convencionales de electricidad,

reduciendo así la huella ambiental del proyecto. Además de su impacto positivo en el medio ambiente, las luminarias exteriores con energía solar ofrecen una mayor flexibilidad en el diseño de áreas exteriores. Al no depender de la infraestructura eléctrica convencional, se pueden ubicar en áreas remotas o de difícil acceso, lo que amplía las posibilidades de diseño y la utilización de espacios al aire libre.

5.6. TECNOLOGIAS
SUSTENTABLES.
3

MURO VERDE 3

MUROS

VERDES

consisten en la instalación de vegetación en las formas orgánicas de los bloques, en forma de paneles modulares que albergarán plantas. Estos jardines verticales no solo añaden una apariencia verde y natural al entorno construido, sino que también brindan una serie de beneficios ecológicos y funcionales.

Los muros verdes ofrecen una serie de beneficios ambientales y sustentables. En primer lugar, actúan como un aislante térmico natural, ayudando a reducir la temperatura del edificio en verano y a retener el calor en invierno. Esto conduce a una disminución del consumo de energía para calefacción y refrigeración, lo que a su vez reduce las emisiones de carbono.

5.6. TECNOLOGIAS
SUSTENTABLES.

MURO VERDE

MUROS VERDES

A

demás, los muros verdes mejoran la calidad del aire al filtrar y absorber contaminantes atmosféricos, así como al liberar oxígeno fresco. Esto resulta en un entorno interior más saludable y una reducción de la contaminación del aire en áreas urbanas densamente pobladas.

Asimismo, los muros verdes contribuyen a la biodiversidad urbana al proporcionar hábitats para insectos beneficiosos, aves y otros animales. Estos jardines verticales también ayudan a reducir la escorrentía de agua de lluvia, promoviendo la gestión sostenible del agua y evitando la sobrecarga de los sistemas de drenaje.

5.6. TECNOLOGIAS
SUSTENTABLES.
3

Compuerta

Filtro Malla

SISTEMA DE LIMPIADO FINO

PTAR (BIOBOX) SISTEMA AERÓBICO CON PERFECCIONAMIENTO

LIMPIADO

USO DE AGUAS RESIDUALES

Salida de Agua Tratada

Soporte Biologico con Nitrificación

Sistema de Aireación (Platos Difusores)

Soporte Biologico con Desnitrificación

Bomba de Proceso

Blower de Aireación (Medo)

Lamparas de Desinfección

Ultravioleta Flitro

E n esta fase reconocemos la importancia de utilizar prácticas sostenibles en todas las etapas del proyecto y, por lo tanto, hemos propuesto la implementación de un sistema de tratamiento de aguas residuales como parte integral de nuestro proyecto de conversión de residuos sólidos en energía eléctrica. Al hacerlo, buscamos no solo generar energía limpia, sino también abordar de manera efectiva los desafíos relacionados con la gestión de las aguas residuales generadas por el proyecto.

Presentando un diseño detallado del sistema de tratamiento de aguas residuales propuesto. examinando las diferentes etapas del proceso de tratamiento, desde la captación inicial hasta la disposición final del agua tratada. permitirá maximizar la eficiencia del recurso hídrico y promover un entorno sostenible. Al combinar estas técnicas sustentables, nuestro proyecto se posicionará como un modelo a seguir para futuras iniciativas de energía renovable y gestión de residuos.

5.7. AHORRO Y REUTILIZACIÓN DEL AGUA.
GRUESO Y MEDIO TANQUE DE ESTABILIZACIÓN Y PROCESO BIOLÓGICO ANAERÓBICO DE LODOS ACTIVADOS TANQUILLA PARA AGUA TRATADA 1 2 3 4 5 6 7 8 9 10 11 12 13 14 15
Visualización
de
Multimedia Dosificador de Cloro Tablero Eléctrico Purga de Lodos
Peristaltico
Eléctrico PLANTA DE TRATAMIENTO DE AGUAS RESIDUALES 3
Disificador
Tablero

CORTE LONGITUDINALCORTE TRANSVERSAL

5.7. AHORRO
Y REUTILIZACIÓN DEL AGUA.

RECORRIDO DE RESIDUOS

INGRESO Y SALIDA

PRINCIPAL DE LA PLANTA DE RESIDUOS

ESTACIONAMIENTO PARA

CAMIONES DE BASURA CON RESIDUOS URBANOS

FOSA DE ALMACENAMIENTO DE RESIDUOS URBANOS

CLASIFICACIÓN DE RESIDUOS URBANOS

ZONA DE ALMACENAMIENTO DE RESIDUOS TRATADOS

SISTEMA DE GESTIÓN DE RESIDUOS

E

n este capítulo, hemos explorado el proceso de gestión de residuos en nuestra planta, desde la entrada y salida principal hasta la revalorización energética de los residuos orgánicos. A través de una serie de etapas clave, garantizamos una gestión eficiente y responsable de los residuos urbanos. El proceso comienza con la entrada y salida principal de la planta, donde los camiones de basura descargan los residuos urbanos.

Los residuos se estacionan en áreas específicas antes de pasar a la fosa de almacenamiento correspondiente. Luego, los residuos se clasifican, separando los materiales reciclables de los no reciclables. Los materiales reciclables se envían a instalaciones de reciclaje, mientras que los no reciclables se dirigen a la zona de almacenamiento de residuos tratados.

5.8. GESTIÓN DE RESIDUOS
1 2 3 4 5

RECORRIDO DE CAMIONES DE BASURA

SISTEMA DE GESTIÓN DE RESIDUOS

n paralelo, los camiones de basura vacíos continúan su recorrido hacia el estacionamiento designado para los residuos orgánicos. Estos residuos se almacenan en una fosa dedicada antes de pasar a la zona de revalorización energética. En la zona de revalorización energética, los residuos orgánicos se someten a un tratamiento especializado

ESTACIONAMIENTO PARA CAMIONES DE BASURA CON RESIDUOS ORGÁNICOS

FOSA DE ALMACENAMIENTO DE RESIDUOS ORGÁNICOS

ZONA DE REVALORIZACIÓN ENERGÉTICA

LABORATORIO DE CALIDAD DE RESIDUOS ORGÁNICOS

Ecomo la digestión anaeróbica o el compostaje controlado, para producir biogás o compost de alta calidad. Antes de utilizar o comercializar los productos finales obtenidos de la revalorización energética, se realizan pruebas y análisis en un laboratorio de calidad especializado.

6
7
10 9 8
E

CLASIFICACIÓN DE RESIDUOS URBANOS

RECORRIDO DE RESIDUOS

RESIDUOS NO RECICLABLES

RESIDUOS ORGÁNICOS

SISTEMA DE GESTIÓN DE RESIDUOS

ALMACENAMIENTO DE RESIDUOS URBANOS POR CATEGORÍA

VENTA DE RESIDUOS URBANOS A EMPRESAS

RESIDUOS DE VIDRIO

RESIDUOS DE PAPEL RESIDUOS DE CARTÓN

RESIDUOS DE PLASTICO RESIDUOS TEXTILES

RESIDUOS DE METALES

LEYENDA

En nuestro proyecto innovador de conversión de Residuos Sólidos Urbanos (RSU) en energía eléctrica, la gestión adecuada de los residuos desempeña un papel fundamental. Antes de que los RSU puedan ser procesados y convertidos en energía, es esencial llevar a cabo un proceso de clasificación exhaustivo, detallando el proceso de clasificación de residuos y su importancia para la conservación de recursos y a la protección del medio ambiente.

FLUJO

PEATONAL FLUJO VEHICULAR

La clasificación de residuos es el proceso mediante el cual se separan y organizan los diferentes tipos de residuos presentes en la corriente de RSU. Este proceso implica la identificación y separación de los materiales que pueden ser reciclados, reutilizados o sometidos a otros métodos de tratamiento, de aquellos que se consideran residuos no aprovechables, maximizando el potencial de reciclaje y reduciendo la cantidad de desechos que terminan en los vertederos.

5.8. GESTIÓN DE RESIDUOS
1 2 3

VENTA COMERCIAL PARA RELLENO SANITARIO

LEYENDA FLUJO

PEATONAL FLUJO

VEHICULAR

SISTEMA DE GENERACIÓN DE ENERGÍA

CAMARA DE INCINERACIÓN TURBINA GENERADORA

CLASIFICACIÓN DE CENIZAS

PLANTA DE ENERGÍA

ALMACENAJE DE CENIZAS CALIDAD DE RESIDUOS

a demás del proceso de clasificación de residuos, es crucial comprender cómo se lleva a cabo en la Zona de Revalorización Energética, donde se realiza la transformación de los RSO en energía. En primera instancia, esta zona está diseñada para aprovechar al máximo el potencial energético de los RSO. En esta zona, los residuos se someten a un proceso de clasificación y tratamiento específico para su conversión en energía eléctrica.

Estos residuos orgánicos pueden ser destinados al compostaje o a la producción de biogás. Posteriormente, se realiza el almacenamiento y tratamiento posterior de los residuos clasificados, y finalmente, la transformación de los residuos no aprovechables en energía eléctrica utilizando tecnologías avanzadas, como la digestión anaeróbica, contribuyendo así a la generación de electricidad limpia y sostenible.

ZONA DE REVALORIZACIÓN ENERGÉTICA CON RESIDUOS ORGÁNICOS ALMACENAMIENTO DE CENIZAS DE LA CAMARA DE INCINERACIÓN
1
2 3

DOMO: JARDÍN , INVERNADERO Y SUM

Estamos investigando la implementación de infraestructura verde y paisajismo en un antiguo vertedero en Trujillo. Siguiendo la teoría del paisaje del desecho y el biorregionalismo, nuestro objetivo es transformar este espacio degradado en un entorno regenerado y sostenible. Para lograrlo, planeamos construir jardines, invernaderos, cúpulas como anfiteatros y plazas para brindar espacios verdes y funcionales para el público.

POLICARBONÁTO

Además, implementaremos sistemas sostenibles de gestión de agua y residuos que promuevan la protección del medio ambiente y reduzcan nuestra huella ecológica. El principal objetivo de la infraestructura verde planificada en el vertedero recuperado es crear un entorno atractivo y funcional para la comunidad local. Los domos, actuando como jardines e invernaderos, contribuirán a la conservación de la biodiversidad y la producción sostenible de alimentos.

BAMBÚ CHANCADO ESTRUCTURA DE BAMBÚ 1

ANFITEATRO

l anfiteatro y la plaza proporcionarán un lugar para eventos culturales y comunitarios que promuevan la interacción social y la cohesión comunitaria.

Estos elementos se complementarán con un sistema de gestión de agua y residuos que incluye la recolección y reutilización de agua de lluvia, así como el compostaje y la clasificación de residuos para una gestión más sostenible.

En conclusión, la creación de infraestructura verde y paisajismo en el antiguo Relleno Sanitario de Trujillo representa una transición significativa de un espacio degradado a un entorno restaurado y sostenible. Mediante la creación de domos como jardines, invernaderos, anfiteatros y plazas, buscamos crear espacios verdes y funcionales para la sociedad, promoviendo la protección del medio ambiente y la interacción social.

5.9. INFRAESTRUCTURA
VERDE Y PAISAJISMO E

LOSA DEPORTIVA

l a construcción del campo de deportes y estatuas que simbolizan el cuidado del medio ambiente promoviendo la importancia de las actividades físicas y la conciencia ambiental en el proyecto. Los campos deportivos brindan espacios para una variedad de deportes y actividades físicas, que son esenciales para promover un estilo de vida saludable y activo en la comunidad local. Proporcionar lugares apropiados y seguros para la actividad física puede contribuir a la salud física y mental de las personas.

Además, los tableros deportivos se pueden usar para actividades recreativas y eventos comunitarios que fortalecen las conexiones sociales y el sentido de pertenencia. Por otro lado, las estatuas representan símbolos con temas relacionados, como la protección de la flora y la fauna, la reducción de desechos y el ahorro de agua. Estos espacios no solo brindan oportunidades para la actividad física y la recreación, sino que también sirven como un recordatorio constante de la importancia de cuidar el entorno natural.

5.9. INFRAESTRUCTURA VERDE Y PAISAJISMO

ESTATUAS DE CONCIENTIZACIÓN

conciencia y comprensión del público sobre la importancia de la protección del medio ambiente. Estas estatuas pueden representar símbolos relacionados con temas relacionados, como la protección de la flora y la fauna, la reducción de desechos, el ahorro de agua y más. Colocar las estatuas en la plaza crea un espacio visualmente atractivo que invita a la reflexión y promueve la adopción de prácticas sostenibles.

El tablero deportivo y la estatua de protección del medio ambiente se complementan y juntos hablan de un estilo de vida saludable y respetuoso con el medio ambiente. Estos espacios también sirven como un recordatorio constante de la importancia de cuidar el entorno natural. La combinación de ejercicio y conciencia ambiental promueve un equilibrio saludable entre el bienestar personal y el respeto por la naturaleza.

5.9. INFRAESTRUCTURA VERDE Y PAISAJISMO

ATMÓSFERA Y SIGNIFICADO - ZONA DE CLASIFICACIÓN DE RESIDUOS

5.9.

ATMÓSFERA Y SIGNIFICADO - ZONA DE CLASIFICACIÓN DE RESIDUOS

5.9.

ATMÓSFERA Y SIGNIFICADO - ZONA DE CLASIFICACIÓN DE RESIDUOS

5.9.

ATMÓSFERA Y SIGNIFICADO - ZONA DE REVALORIZACIÓN ENERGÉTICA

5.9.

ATMÓSFERA Y SIGNIFICADO - ZONA DE REVALORIZACIÓN ENERGÉTICA

5.9.

ATMÓSFERA Y SIGNIFICADO - RENDER DE FACHADA PRINCIPAL

5.9.

ATMÓSFERA Y SIGNIFICADO - ZONA ADMINISTRATIVA Y COMPLEMENTARIA

5.9.

ATMÓSFERA Y SIGNIFICADO - ZONA ADMINISTRATIVA Y COMPLEMENTARIA - COMEDOR

5.9.

5.9. ATMÓSFERA Y SIGNIFICADO - ZONA ADMINISTRATIVA Y COMPLEMENTARIA

Y SIGNIFICADO - PLAZUELA CENTRAL

5.9.
ATMÓSFERA

Y SIGNIFICADO - PLAZUELA CENTRAL /BLOQUE DE CLASIFICACIÓN DE R.S.U.

5.9.
ATMÓSFERA

ATMÓSFERA Y SIGNIFICADO - PLAZUELA CENTRAL / BLOQUE DE LA TRANSFORMACIÓN ENERGÉTICA

5.9.

5.9. ATMÓSFERA Y SIGNIFICADO - DOMOS / BLOQUE DE LA TRANSFORMACIÓN ENERGÉTICA

ATMÓSFERA Y SIGNIFICADO - BLOQUES INDUSTRIALES/ RECEPCIÓN DE R.S.U.

5.9.

ATMÓSFERA Y SIGNIFICADO - BLOQUES INDUSTRIALES/ RECEPCIÓN DE R.S.U.

5.9.

ATMÓSFERA Y SIGNIFICADO - BLOQUES INDUSTRIALES/ RECEPCIÓN DE R.S.U.

5.9.

Y SIGNIFICADO - EXTERIORES / LOSA DEPORTIVA

5.9.
ATMÓSFERA

5.9. ATMÓSFERA Y SIGNIFICADO - EXTERIORES / ANFITEATRO

DE UN ORGÁNICO A ENERGÍA

06

"EL MILAGRO"

PAÍS

EL MILAGRO

El sector de estudio seleccionado se encuentra ubicado en la ciudad de Trujillo - La libertad,

perteneciente del distrito de Huanchaco, esta zona es de uso comercial y residencial,"El Milagro" es parte de la antigua expansión urbana del lado norte de la ciudad

conformada por 67 manzanas donde en total se hallan 1,593 lotes; aquí como en la gran parte de la ciudad, la trama urbana es lineal, conllevando a un sector mas ordenando y un trafico vehicular controlado. De acuerdo al censo realizado en el año 2017 "El Milagro" cuenta con 40.003 habitantes suponiendo el 58% del distrito de Huanchaco, quienes mayormente se dedican al rubro del comercio y la manufactura, conviviendo día a día con la delincuencia y los RSU generados por ellos.

TRUJILLO
6.1 LOCALIZACIÓN
CIUDAD
DISTRITO
DEPARTAMENTO LA LIBERTAD

L LIMITES Y EMPLAZAMIENTO

os límites del sector, estan distribuidos de la siguiente manera, por el lado Norte

colinda con el distrito de Chicama, de la provincia de Ascope mediante la Av. Miguel Grau, por el lado Este colinda con el distrito de Simbal, provincia de Trujillo a través de la Av

LEYENDA

TERRENO

LIMITES

La Esperanza

Chicama

Simbal

Huanchaco

LIMITES

Panamerica Norte

Av. Miguel Grau

Aux. José Gabriel

Condorcanqui

Auxiliar José Gabriel Condorcanqui, por el lado Sur colinda con el distrito de la Esperanza, provincia de Trujillo mediante la Av. Miguel Grau, finalmente por el lado Oeste colinda con el distrito de Huanchaco, provincia de Trujillo a través de la panamericana norte. El sector se encuentra emplazado en un terreno plano con una contexto urbano consolidado, contando con distintos equipamientos donde predomina el comercio, asimismo encontramos terrenos construidos destinados a viviendas.

Terreno

Accesibilidad principal Panamericana Norte

Av. Miguel Grau CA. 720 (sin nombre)

C.A Francisco Bolognesi

Vía evitamiento

CONECTIVIDAD

Las vías de tránsito son fundamentales en la planificación urbana, pues

estas determinan la eficiencia y la accesibilidad. El sector elegido "El Milagro" cuenta con tres vías arteriales principales, quienes conectan con otros sectores, entre

ellas tenemos la Panamericana Norte, Áv. Miguel Grau, Áv. 720, las cuales garantizan un fácil acceso desde cualquier punto de la ciudad, además cuenta con gran variedad de calles colectoras dentro del sector, una de las vías mas importantes para nuestro futuro proyecto es la Ávenida. Francisco Bolognesi, ya que es la vía principal que conecta hacia el terreno y que a su vez se conecta con la vía Evitamiento del milagro, la cual transporta los residuos solidos urbanos hacia su disposición final (el botadero).

HITOS IMPORTANTES Estadio Mansiche 9.5km1h 52min20 min Plazuela recreo 10.5km2h min24 min Plaza de armas 10.3km1h 59min25 min Hospital Belén 10.5km1h 3min24 min Comisaria El Porvenir 11.8km2h min27 min
HOSPITAL
COMISARIA
ESTADIO PLAZAS
LEYENDA

En la accesibilidad del sector de estudio hemos considerado algunos hitos importantes de la ciudad de Trujillo , como: mercados, comisarias, plazas, colegios, universidades

y hospitales, con el fin de poder ver la conexión que presenta con el terreno, además de su cercanía y el tiempo empleado, ya sea de forma vehicular o peatonal para llegar hacia esos sitios, estos hitos son los mas concurrentes por los habitantes de la ciudad, fuera por su alta actividad comercial, no solo de los mercados y si no también

por otros centros comerciales, donde se pudo evidenciar que estos hitos estan conectactos directamente hacia una de sus principales vias la Av. Miguel Grau permitiendo su accesibilidad sea altamente eficaz y rapida hacia el sector .

Hermelinda 11.5km1h 43 min22 min UPAO MERCADOS EDUCACIÓN IMPORTANTES 24 min
ACCESIBILIDAD

ZONIFICACIÓN Y USOS DE SUELO

Para el siguiente proyecto fue necesario analizar el mapa de usos de suelos de Trujillo, el

cual es una herramienta fundamental para la arquitectura y la planificación urbana, de esta manera podemos determinar el uso de suelos que le pertenece a cada uno de sus

LEYENDA

Polideportivo el " El Milagro "

PAISAJISMO

CARACTERÍSTICAS URBANAS Y PAISAJÍSTICAS

Áreas secas

Parque "César Vallejo"

El sector 7 " El milagro " cuenta con 3 características paisajísticas entre ellas tenemos los parques verdes ,los parques secos y basura, donde se pudo evidenciar la inexistencia de área verde y basura acumulada, por ende nosotros como futuros arquitecto tenemos como objetivo principal rehabitar una parte del botadero haciendo que este incorpore con nuestro diseño, de esta manera darle una mejor calidad de vida a la población y que este sea relevante.

TERRENO

TERRENO

ASOLEAMIENTO

La dirección del viento en el milagro provienen del Sur durante el año, la parte más ventosa es entre los mes de Abril y noviembre, asimismo se sabe que el mes más ventoso es Agosto, en este sector los meses más calmado son de Diciembre a Marzo. Este nos servirá para la orientación del proyecto de tal manera de aprovechar la máxima ventilación natural con la finalidad de reducir el uso de los sistemas eléctricos y así como también la organización de espacios exteriores para obtener áreas agradables

El clima en el milagro durante los meses Enero a Abril son los mas calurosos llegando a una temperatura de 35 °C estos días son los mas soleados y con pocas nubes en el cielo, sin embargo los meses Julio a Noviembre, el clima es mas fresco y agradable llegando a una temperatura de 23 °C, asimismo es importante saber que el mes más frío es Septiembre. Es por ello, que se debe analizar cada punto con la finalidad de plantear estrategias de protección y maximizar la eficiencia enérgica.

LEYENDA EL MILAGRO

EL BOTADERO "EL MILAGRO"

de tal manera que nos ayuda con la reducción de los riesgos sanitarios y ambientales, ademas de conversar la limpieza de la ciudad, entre ellas también se encuentra el penal "El milagro", el cual se encarga se intervenir y restringir a las personas de su libertad , quienes incumplen las normas y delitos ocasionados dentro y fuera de la ciudad , asimismo este nos brinda una mejor seguridad ciudadana.

PERFIL DEL USUARIO

PROVEDOR

ADULTO MAYOR

DISCAPACITADOS

ADULTOS

VISITANTES

ADOLECENTES

NIÑOS

EQUIPAMIENTO

ADMINISTRATIVO

TRABAJADOR

CONTROL Y SEGURIDAD

EXTERIORES

ORIGEN LIQUIDOS

MATERIA

ORIGEN VEGETAL

ORIGEN

ORGANICA

ANIMAL

TRANSPORTE

DADES ACTIVIDADES

FOSA

ALMACEN DE BASURA

RECOLECTAR INFORMARSE

MAQUINARIAS

CLASIFICAR

RECREACION

EDUCACIÓN ALIMENTACÍON SOCIALIZACIÓN TRANSPORTE

RECREARSE

CONCIENTIZAR COMPRAR

EXPREZARSE

VEHICULOS

AREA DE OFICINAS CASETAS

GENERAR ENERGIA

HERRAMIENTAS DE CUIDADO

ADMINISTRAR SEGURIDAD MANTENEREL ÁREAVERDE

PLANTA DE SELECCIÓN

CAMIONES

SEPARAR LA MATERIA ORGANICA

TRANSPORTE

ACTIVIDADES ACTIVIDADES

6.2 PROGRAMA ARQUITECTONICO

ZONA REGREATIVA AL AIRE LIBRE

2. ZONA DE VALORIZACIÓN ENERGETICA

3. ZONA DE SELECCIÓN DE RSU

4. ZONA ADMINISTRATIVA

5. ZONA COMPLEMENTARIAS

ZONAS GENERALES

1.
Exteriores Bio - Huerto Atrio 140 m2 50 m2 Espejos de agua Exposición del proceso Plazuela central EXTERIOR ÁREA RECREATIIVA ÁREA VERDE 2000 m2 236 m2 165 m2 208 m2
Zona de Parques
Fosa 415 m2 Caldera 900 m2 12 pers. Cámara de combustion 260 m2 4 pers. Tolva alimentadora 130 m2 3 pers. Reactor semiseco 215 m2 Filtro de mangas 450 m2 Turbina + Generador 280.70 m2 1 pers. Plataforma de descarga 2959.00 m2 7 pers. HORNOCALDERA SS.HH. Mujer 6.30 m2 3 pers. RECEPCIÓN RSU TRATAMIENTO DE GASES
de Valorización Energética GENERACIÓN DE ENERGÍA CICLO AGUA - VAPOR TRATAMIENTO DE ESCORIAS SERVICIOS BÁSICOS Puente grua Ventilador de tiro 45 m2 Chimenea 90 m2 100 m2 4 pers. Aerocondensador 2346.35 m2 Agua de alimentación Área: 50 m2 Trojes de Recepción 817.26 m2 4 pers. Cintas de Transporte 134.40 m2 Vestuarios 117 m2 39 pers. Duchas 93.60 m2 4 pers. SS.HH. Hombre 9.90 m2 3 pers. Gas a Vapor 180 m2 12 pers.
Zona
2,959 m2 Fosa 415 m2 Separador Magnetico 5 m2 Separador de vidrios RECEPCIÓN DE RSU
Selección de RSU Tromel de cribado 49.50 m 5 pers. Circulación Coches Oficina de Control 57 m2 Báscula 55 m2 Plataforma de Descarga CONTROL Y PESAJE SELECCIÓN DE RSU
BÁSICOS Trituradora de RSU 50 m2 1 pers. Vestuarios 117 m2 10 pers. 145 m2 5 pers. Separador balístico 45.50 m2 Separador optico de pastico 1 Separador optico de pastico 2 20 m2 1pers. 20 m2 1pers. 20 m2 1pers. SS.HH. Mujer 6.30 m2 2 pers. SS.HH. Hombre 9.90 m2 2 pers. Duchas 93 m2 3 pers.
Zona de
SERVICIOS
Aula Informatica 250 m2 25 pers. Sala de reciclaje Laboratorios 95 m2 10 pers. Dirección de medio ambiente Sala de Conferencias Despacho General 30 m2 3 pers. Recepción 20 m2 2 pers. 6.30 m2 4 pers. 25 m2 10 pers. Dirección de compras 193 m2 20 pers. 195 m2 20 pers. Zona administrativa Salón Multiusos 203 m2 20 pers. 195 m2 20 pers. Aula educativa
EDUCACIÓN SS.HH. Mujer
GENERALES Archivo 14.25 m2 2 pers. Enfermería 19.80 m2 2 pers. SS.HH. Hombre 9.90 m2 4 pers. Limpieza + Almacén 14 m2 1 pers. Sala de Control 28 m2 3 pers. Sala de reuniones 150 m2 15 pers. Secretaria 22 m2 2 pers. Recepción 20 m2 2 pers. 25 m2 3 pers.
ÁREA DE
OFICINAS SERVICIOS
complementaria Estacionamiento Público Estacionamiento de Camiones Cafetería ESTACIONAMIENTO 1,220.40 m2 9 pers. COMEDOR Estacionamiento Administrativo 600 m2 16 carros. 600 m2 16 carros. 15.60 m2 2 carros. 120 m2 80 pers.
Zona

ORGÁNICO A ENERGÍA de un

VIDRIO PÁ S T I OC CANÓTR ENERGIAELESTRIC

PROCESODESELECCIÓN

oy en día, se puede evidenciar la excesiva cantidad de residuos solidos urbanos encontrados en la ciudad Trujillo siendo estos llevados y almacenamos en el relleno sanitario, donde no reciben un tratamiento o una eliminación adecuada, trayendo consigo la contaminación ambiental y problemas de salud en los pobladores, por lo ANIMAL V E LATEG

H CONCEPTOS CLAVES Y ORIGEN ER S I D UOSINORGANICOS Z O N A DETRANSFROMACIÓN ILQSODIU

que nos basamos en esta situación para plantear uno de nuestros principales conceptos que da origen a nuestro proyecto. Nuestra idea principal empieza a partir de la recolección de RSU llevándolos a un mejor uso para seguidamente ser seleccionados y clasificados, quedándo solo con los Residuos inorgánicos, los cuales serán llevados a las áreas industriales con finalidad de obtener energía eléctrica para abastecer a la población que mas lo requiera. Asimismo

RESIDUOSRECOLECTADOS R E S I D UOSORGÁNICOS

RESIDUOS ORGÁNICOS RESIDUOANIMAL ¿QUÉ TIPOS DE RESIDUOS SON?

RESIDUOSVEGETALES

L ÍQUIDOS

para este proyecto se necesito evaluar la llegada de desperdicios que proviene desde la ciudad, obteniendo como resultado que los residuos solidos urbanos se componen de un de materia orgánica conformada por restos vegetales, que pertenece a materia restante es de materiales diversos, como son los desperdicios hospitalarios y desechos de empresas de construcción.Es por esta razón como equipo se tomo la deicisi-

ón de reutilizar los residuos orgánicos ya que la mayor parte de basura proviene de ella, es así como evitamos seguir con la acumulación y los líquidos tóxicos sigan siendo filtrados en las aguas subterráneas, esto quiero decir que los residuos generados por la población serán llevados a un proceso de selección dejando solo la materia orgánica a utilizar y el resto de residuos serán trasladados a un centro de reciclaje, luego se pasará a un proceso de incineración y de captación de vapor para ser convertidos en energía renovable.

transformación

TROMEL CRIBADO

Por ende, en nuestro futuro proyecto se planteó dos plantas de transformación, las cuales son complementarias para lograr un mismo objetivo, la primera actividad desarrollada consta de separar los residuos solidos urbanos a solo seleccionar la materia orgánica, este procedimiento se inicia mediante los Tromeles de cribado, separadores magnéticos, separadores ópticos, entre otras maquinarias pasando a ser la biomasa que pasara a la segunda actividad desarrolla, una

vez obtenida está pasara a la planta de incineración que tiene como propósito la quema de materia orgánica a través del horno - caldera, este vapor generado será inmediatamente llevado a las turbinas, las cuales generarán energía eléctrica para el consumo de los ciudadanos; y el vapor será llevado hacia el aerocondensador donde se convertirá en agua para luego ser trasladado hacia el tratamiento de gases y ser expulsado mediante un ventilador de tiro hacia el exterior.

SEPARADORBALÍST I C O SEPARADORMAGNÉTICO PLATAFORMADEDESCARGA CONTROL- PESAJE 06 03 02 01 07 11 08 10 12 FOSA 05
DE RESIDUOS DE
FOSA
SEPARADORÓPTICO
PLATAFORMADEDESCAR G A
TOLVAALIMENTADORA
CALDERA TRATAMIENTODEESCORIAS ENERGÍA ELÉCTRICA VENTILADORDETIRO 14 09 15 13 16 17 18 20 21 22 23 TRANSPORTEDEBIOMA S A INCINERACIÓN TURBINADEVAPOR
GENERADOR
TERCAMBIADORD E GASAVAPOR

del proyecto

El concepto inicial para establecer la forma del proyecto fue la bioenergía, por lo que se utilizo de referencia los símbolos representativos del reciclaje, es ahí donde se obtuvo como idea principal el bosquejo de tres volúmenes en forma de flecha y organizados en un eje central, en seguida se obtuvo la forma de una hoja que representa a las plantas de transformación de energía, finalmente se implementó al boceto el entorno del lugar, donde se evidencia los cerros de distintos tamaños, por ello se empleo inclinaciones en los techos dando

una noción a ello.Asimismo se consideró las siguientes zonas: zona recreativa al aire, que forma parte de la rehabilitación del botadero y a su vez sirve como espacio de entretenimiento y socialización; la zona de valorización energética tiene como objetivo realizar energía mediante los residuos orgánicos; la zona de selección de residuos solidos urbanos es la planta donde los residuos serán seleccionados para conseguir la biomasa; la zona administrativa cuenta con distintas áreas para dirigir un mejor funcionamiento en la empresa; por ultimo tenemos la zona complementaria (estacionamientos).

CONCEPTUALIZACIÓN
S ÍMBOLODE RECICLAJE
Inclinaciones en los volúmenes referencia a los cerros Símbolo de flechas referente al reciclaje Símbolos de plantas referencia a las plantas de transformación Símbolo central referente a la energía que producirá

ZONIFICACIÓN VARIABLES

ZONA DE VALORIZACIÓN ENERGÉTICA

ZONA RECREACION

BIOHUERTO

ZONA DE SELECCIÓN DE RSU

vientos

El volumen se organizo en dirección de lado Norte de tal manera de obtener una ventilación cruzada.

ESTACIONAMIENTO CAMIONES

accesos

ESTACIONAMIENTO PUBLICO

Se planteó el ingreso principal en función a las zonas primordiales obteniendo una circulacióncentral.

ZONA RECREACIÓN

Se implementaron diversos de niveles en los volúmenes para obtener una mejor iluminación. Asimismo este se protegerá concelosías.

ATRIO
Peatonal Vehicular Mayor Intensidad Sombra Media Intensidad Celosíasde madera

07 ROYAL ORGANIC FACTORY

Autores del Artículo:

Bautista Namó Jhenny Alessandra

Perez Del Valle Lucía Meylin

de un

ORGÁNICO A ENERGÍA

l terreno donde se ubicara nuestro nuevo proyecto consta de una topografía plana, con 4 frentes lo que nos facilita su su accesibilidad,asimismo este es de forma rectangular. Se considero importante analizar dos variables para la orientación del proyecto, el cual esta direccionado desde el lado sur a norte con la finalidad de obtener la máxima

máxima ventilación para los diversos ambientes planteados y a la vez generar una ventilación cruzada, asimismo se considero importante analizar los lados con mayor incidencia solar los cuales serán protegidos por celosías y a su vez estos nos sirven para obtener una mejor orientación para los de paneles solares.

Callesinnomb AMBIENTALES

S

e planteo dos tipos de escalas , para el área administrativa se planteo una escala normal de 5.30m permitiendo el fácil acceso de ventilación e iluminación natural , asimismo en las plantas tanto de selección e incineración se utilizaron escalas monumentales de 15.10m y 20.20 m con la finalidad de obtener un buen uso de amoblado de maquinas y facilitar su movilización.

CORTE A - A'

PLANO GENERAL ZONA ADMINISTRATIVA
ZONA DE SELECCIÓN DE RESIDUOS
ATRIO

ZONA DE EXPOSICIÓN

ZONA ADMINISTRATIVA

CORTE D - D'

ZONA DE VALORIZACIÓN ENERGETICA

ZONA DE SELECCIÓN DE RESIDUOS

ZONA DE VALORIZACIÓN ENERGETICA

ZONA DE EXPOSICIÓN

ZONA DE VAPORIZACIÓN ENERGETICA PLAZUELA CENTRAL

ZONA DE VALORIZACIÓN ENERGETICA

ZONA DE SELECCIÓN DE RESIDUOS

PLAZUELA CENTRAL

PLANTA DE ADMINISTRACIÓN

Eplanteada con diversos ambientes de interacción social, con la finalidad de dar a conocer los beneficios e importancia sobre el parque de la transformación energética, asimismo cuenta con una circulación amplia y definida para fácil acceso de los usuarios, ademas se considero

1 PISO
CORTE B-B
SALA DE EXHIBICION ALMACEN TOPICO SALA DE ESTAR LABORATORIO AULA EDUCATIVA AULA INFORMATICA SALA DE RECICLAJE CAFETERIA SALON MULTIUSOS SS.HH SALA DE CONFERENCIA
CORTE B-B
i nombre Callesinnom e José Ca

importante plantear un pozo para obtenerla máxima iluminación y ventilación natural. En el segundo piso se plantearon solo los ambientes de administración, los cuales están conformados con distintas funciones tanto como para los visitantes como los trabajadores, asimismo estos espacios fueron separados de las zonas sociales con la finalidad de se vean afectados por los ruidos.

CORTE B-B 2 PISO
CORTE B-B CORTE B - B' OFICINAS TECNICAS SALA DE ESTAR ALMACEN DIRECCIÓN DE COMPRAS GERENCIA DE RECURSOS SALA DE ESTAR SS.HH DIRECCIÓN MEDIO AMBIENTAL OFICINA ADMINISTRATIVA
SECRETARIA
DESPACHO DE GERENCIA SALA DE REUNIONES CAFETERIA

La planta de incineración es una de las mas importantes en nuestro proyecto , ya que tiene como función quemar los residuos orgánicos, los cuales producirán unos gases que serán llevados a una turbinas para obtener energía eléctrica.

CORTE B - B' CORTE C - C'
HORNO Y CALDERA
GENERACIÓN DE ENERGIA
FOSA DE ORGANICOS RECEPCIÓN DE RSO
CICLO AGUAVAPOR
TRATAMIENTO DE GASES
FOSA DE ESCORIAS CORTEC-C CORTEC-C CORTE B-B
PLANTA DE
Calle sin nombre
José Carl os Mariá t e gui
CORTE B-B
INCINERACIÓN FranciscoBolognesi
Callesinnombre

PLANTA DE SELECCIÓN DE RESIDUOS

Callesinnombre

Asimismo la planta de selección, es fundamental ya que a través de las diversas maquinas seleccionadoras podemos obtener solo residuos orgánicos, para luego ser llevados a su incineración y el resto de residuos sobrantes sean almacenados para su reciclaje.

CORTE A-A
A-A CORTE DD CORTE DD RECEPCIÓN DE RSO
FOSA DE ESCORIAS
CORTE
CORTE A - A' CORTE D - D'
ALMACEN DE FOSA DE RSO
nombre
J os

PROCESO CONSTRUCTIVO

PLANO DE UBICACIÓN

ESTRUCTURA TIPICA

ISOMETRICO - ZAPATAS
José C

ARMADO INFERIOR DE ZAPATA DE ZAPATA

La estructura del proyecto empieza desde las zapatas, estas son elementales para la base de toda edificación, por lo que serán los primeros elementos estructurales que se emplearan dentro del proyecto, este tipo de cimentación esta reforzada por un armado de fierro y rellenada de concreto la cual cumple la función de ancla y transmite las tensiones y

fuerzas sobre el terreno en el cual se encuentra, asimismo se tubo en consideración las medidas de las columnas para definir las dimensiones de las zapata , las cuales son de 2.40 m * 2.40 m.

DETALLES DE ZAPATA

3. PLANTA - ZAPATAS 2. CORTE - ZAPATAS
1.
ISOMETRICO - ZAPATAS
ZAPATAS
4. PLANTA - ZAPATAS MEDIDAS DE ZAPATA ZAPATA ARMADO DE ZAPATA UNIONES DE ZAPATA 5. TIPOS DE ZAPATAS ZAPATA CENTRAL ZAPATA ESQUINERA

PROCESO CONSTRUCTIVO ESTRUCTURA TIPICA

PLANO DE UBICACIÓN

ISOMETRICO - COLUMNAS
José C

Posteriormente para su sistema estructural se emplearon columnas de acero perfil H, las cuales están ancladas hacia las zapatas por medio de 4 pernos tipo L con la ayuda de unas tuercas de acero galvanizado, asimismo en sus extremos fueron reforzadas con de placas soldadas, para un mejor anclado entre la zapata y la columna se le coloco una

placa de apoyo de 12mm y un espacio para el mortero de nivelación, al ser una arquitectura industrial la luz entre columnas será grande, se consideró una luz máxima de 30 m debido a eso se colocaron columnas de 60 x 60.

DETALLES DE COLUMNAS

2. CORTE COLUMNAS
4. PLANTA - ZAPATAS MEDIDAS DE ZAPATA 3. PLANTA - ZAPATAS
I. SOMETRICO -
ARMADO DE ZAPATA ZAPATAS ARMADO INFERIOR DE ZAPATA UNIÓN DE ZAPATA - COLUMNA 5. TIPOS DE ZAPATAS ZAPATA CENTRAL ZAPATA ESQUINERA

ESTRUCTURA TIPICA

PROCESO CONSTRUCTIVO
PLANTA-
VIGAS ISOMETRICO - VIGAS
José C

Seguidamente, en el ensamblaje de la estructura se emplearon vigas de perfil H de acero tanto para las principales como las secundarias, estas vigas están conformadas por una dimensión de 1.00 m de alto y 60 cm de ancho,estas están ancladas hacia las columnas a través de unos ángulos de 1'' de acero galvanizado por medio de pernos de 1'', para

una mayor estabilidad y resistencia del techo se implementaron viguetas de perfil H de acero con unas dimensiones de 25 cm de alto y 10 cm de ancho, estas se colocaron cada 60 cm, la cual se anclan en las vigas principales.

DETALLES DE VIGAS

VIGAS
DETALLE 3: ELEVACIÓN DETALLE 4: PLANTA UNION DE VIGUETAS A VIGAS UNIÓN DE COLUMNA - VIGA Y VIGUETAS UNIÓN DE COLUMNA -VIGA DETALLE 2: ISOMETRICO DETALLE 1: CORTE UNIÓN DE COLUMNA -VIGA

PROCESO CONSTRUCTIVO

PLANO DE UBICACIÓN

TIPICA ESTRUCTURA

PLANTA- TECHOS

ISOMETRICO - TECHOS José C

UNIÓN DE TECHO COLABORANTE CON VIGUETAS

UNIÓN DE TECHO VERDE CON VIGUETAS

65 cm de espesor, conformada por diferentes capas como se muestra en el detalle 4 de la lamina, de igual forma se ancla mediante las vigas y viguetas, este techo se encuentra de forma inclinada obteniendo una forma mas orgánica dentro del proyecto.

DE TECHOS

MATERIALIDAD INTERIORES

DETALLE 1:

DETALLE

UNIÓN SPIDER DE MAMPARA SOPORTE ALETA ISOMETRICO 2 3 CORTE - ZONA ADMINISTRATIVA + CAFETERIA 4 1
2: CIELO RAZO
CAFETERÍA CAFETERÍA
MAMPARA DE VIDRIO ANCLAJE CON CIELO RAZO CON CIELO RAZO

La zona administrativa cuenta con una materialidad calidad con la finalidad de brindar un confort entre los usuarios que harán uso de los diferentes ambientes, los muros de esta zona están hechos de placa de roca yeso drywall revestidos de pintura blanca para ayudar con la iluminación interior, ademas cuenta con mamparas de piso a techo ancladas con un sistema spider para aprovechar la máxima iluminación natural,

se complemento también con una iluminación artificial, la cual consiste en un cielo razo de color amarillo ancladas entre las viguetas, por ultimo tenemos el piso de porcelanato gris de 0.60 x0.60 el cual hace contraste con los colores.

DETALLES ARQUITECTONICOS

CORTE CORTE ISOMETRICO
MATERIALIDAD 1 2 1
INDUSTRIAL CORTE DETALLE 2: COBERTURA DE FACHADA DETALLE 1: PUERTA 3
INDUSTRIAL ISOMETRICO ELEVACIÓN 4
ZONA
CORTE - ZONA

ISOMETRICO

La zona industrial ¿ fue diseñada con la finalidad de no solo tener una estructura sólida de acero, si no de incorporar los diferentes colores y diseños con el objetivo de que los usuarios se sientan confortables en su trabajo laboral, se opto por combinar los colores tanto en la maquinas como el diseño del piso, paraello utilizamos un piso tipo poliuretano

para darle un mejor estilo asi como también definir la circulación, se vio conveniente implementar las vigas de color amarillo para resaltar el diseño y por ultimo tenemos la cobertura con un diseño circular destacando arquitectura orgánica

DETALLES INDUSTRIALES

3
4
DETALLE 4: LOSA COLABORANTE

TECNOLOGIAS SUSTENTABLES PANEL SOLAR

DETALLE : PANEL FOTOVOLTAICO

ISOMETRÍA

PROCESO DE FUNCIONAMIENTO

ISOMETRÍA

Los paneles solares son de gran importancia en el proyecto, ya que cumplen la función de poder iluminar cada ambiente propuesto y nos ayuda a ahorrar energía eléctrica, a través de ellos podemos captar la máxima luz solar para ser convertidos en electricidad y poder almacenarlos en el sistema eléctrico

CORTE - DETALLE 1

POZO CANADIENSE

DETALLE 3 FILTRO

CORTE - DETALLE 2

A si mismo en el proyecto se considero los pozos canadienses, los cuales nos ayudan a mantener una sensación térmica agradable dentro del área industrial durante todo el año, el cual mediante un filtro es capaz de captar aire del exterior, para luego ser pasado bajo tierra donde el aire sera expulsado hacia el ambiente, la temperatura del aire varia dependiendo del clima en el exterior.

ELEVACIÓN INVIERNO: LA SENSACIÓN TÉRMICA DENTRO DE LA ESTRUCTURA ES MAS CÁLIDA VERANO: LA SENSACIÓN TÉRMICA DENTRO DE LA ESTRUCTURA ES MAS FRÍA

TECNOLOGIAS

ubicados en todos los volúmenes, los cuales ambientes, gracias a su capa vegetal.

CORTE ISOMETRICO

Para la reutilización de agua se empleo un sistema de purificador, la cual esta compuesta por dos cámaras que se encargan de tratar todas las aguas grises con la finalidad de obtener agua purificada y puedan ser expulsados hacia el exterior, en las diferentes áreas verdes mediante un aspersor de riego.

DETALLE 1: ASPERSOR DE RIEGO DETALLE RIEGO

REUTILIZACIÓN DE AGUA

2: EL PURIFICADOR DE AGUAS RESIDUALES

CORTE
AHORRO Y
CORTE
DETALLE

GESTIÓN DE RESIDUOS

ENTRADA PRINCIPAL DE CAMIONES

RECEPCIÓN DE RESIDUOS SÓLIDOS URBANOS

CLASIFICACIÓN DE RESIDUOS SÓLIDOS URBANOS

RECOJO DE RESIDUOS ORGANICOS

ACOPIO DE RESIDUOS

INORGANICOS

RECEPCIÓN DE RESIDUOS ORGÁNICOS

ZONA DE VALORIZACIÓN ENERGÉTICA

RECOJO DE ESCORIAS

ESTACIONAMIENTO DE CAMIONES

SALIDA DE CAMIONES

PLANTA DE SELECCIÓN

RECEPCIÓN DE

LEYENDA

FOSA DE ORGANICOS

FLUJO PEATONAL

FLUJO VEHICULAR ENTRADA

SALIDA RECEPCIÓN DE RSU

REMISIÓN DE RSU

El sistema de evacuación de residuos inicia desde la entrada principal pasando un control de pesaje, posteriormente son llevados hacia el área de selección de residuos solidos urbanos donde mediante las diferentes maquinas seleccionadora se tendrá como finalidad solo los residuos orgánicos y el resto sera transportado a un almacén para luego ser llevados a su respectivo reciclaje.Luego de haber recolectado los residuos orgánicos estos

ÁREA DE SELECCIÓN DE RSU
RSU
TRITURADOR
ALMACÉN DE RESIDUOS INORGANICOS SEPARADOR MAGNÉTIVO
FOSA DE RSU
TROMEL DE CRIBADO SEPARADOR BALISTICO
FOSA DE RSO SEPARADOR OPTICO
ALMACEN DE RESIDUOS INORGANICOS REMISIÓN DE RSU
FOSA DE RSU
FOSA DE RSO

LEYENDA

PLANTA DE INCINERACIÓN

FLUJO PEATONAL

FLUJO VEHICULAR

ENTRADA

SALIDA

serán recogidos y llevados hacia la planta de incineración, al llegar serán vaciados a una fosa para luego ser depositados en la tolva alimentadora que esta conectada al horno - caldera, esta combustión reproducirá unos gases que inmediatamente se conectara con la turbina generando asi energía eléctrica , finalmente antes de su exposicion al aire libre los gases sobrantes pasaran por un biofiltro de mangas y serán expulsados por una chimenea.

RECEPCIÓN DE RSU
FOSA DE RSU
TOLVA ALIMENTADORA
AEROCONDE NSADOR TURBINA DE VAPOR GENERADOR FILTRO DE MANGAS
DE
HORNOCALDERA
FOSA
ESCORIAS

VERDE INFRAESTRUCTURA

ANFITEATRO AL AIRE LIBRE PLAZA CENTRAL

El proyecto desde el inicio fue pensado para dar una aporte a la comunidad, por lo que su diseño debería contener espacios variados para diferentes tipos de actividades que podrian realizar los usuarios, entre estos espacios consideramos los siguientes: un anfiteatro, donesta ubicada estrategicamente en medio del terreno, por lo que de esta zona podrás desplazarte a cualquier parte del terreno, a su vez esta rodeada de vegetación y areas verdes

ESPEJO DE AGUA

Tambien contamos con espejos de agua, los cuales estan dispersos en torno a la zona administrativa, este espacio social esta rodeado de paseos peatonales, áreas verdes y diverza vegetación que los usarios pueden recorrer sin ningun problema; y por ultimo e importante un bio - huerto donde se cosecharán diversos tipos de hortalizas, el objetivo es concientizar a las personas sobre el uso y realización del compost, además de sus beneficos en la alimentación

PAISAJISMO

BIOHUERTO

ATMÓSFERA Y DISEÑO

EXTERIOR

EXTERIOR

EXTERIOR

EXTERIOR

EXTERIOR

EXTERIOR

EXTERIOR

EXTERIOR

INTERIORZONA INDUSTRIAL

INTERIORZONA INDUSTRIAL

INTERIORCAFETERIA INDUSTRIAL

INTERIORCAFETERIA INDUSTRIAL

EXPERIENCIA DE DISEÑO

proyecto 1: Sacha Wasi

Proyecto 2: Royal Organic Factory

08

Sacha Wasi

PARQUE DE LA TRANSFORMACIÓN ENERGÉTICA

ESTUDIANTE:

Caballero García, Angie Sofia

CARRERA:

Arquitectura y diseño de interiores

CICLO:

7° CICLO

ESTUDIANTE:

Cuno Chuquez, Gianfranco Ronaldo

CARRERA:

Arquitectura y Urbanismo

CICLO:

Después de culminar con éxito el diseño de una planta generadora de energía con residuos, me siento orgullosa y satisfecha con el resultado final. Aprendí la importancia de la colaboración, el trabajo en equipo y la investigación exhaustiva. Valoré la inclusión social y tomé consciencia de la problematica que existe en Trujillo con respecto a la basura, logrando adaptar el proyecto a sus necesidades. Esta experiencia enriquecedora me ha brindado lecciones valiosas para mi desarrollo profesional y

La experiencia fue desafiante y enriquecedora. Enfrentamos una volumetría orgánica y compleja, lo que requirió un enfoque innovador y creativo. Trabajar en estrecha colaboración con mi compañera de trabajo nos permitió fusionar ideas y conocimientos para encontrar soluciones arquitectónicas únicas. Nos sumergimos en la investigación de tecnologías sostenibles y nos inspiramos en la cultura y entorno local para diseñar una planta que se integrara armónicamente en la comunidad.

DISEÑO 8. EXPERIENCIA DE

DISEÑO

ORGANIC FACTORY ORGANIC FACTORY Royal

ESTUDIANTE:

Bautista Namo, Jhenny Alessandra

CARRERA:

Arquitectura y diseño de interiores

CICLO: 7° CICLO

ESTUDIANTE:

Perez Del Valle Lucía Meylin

CARRERA:

Arquitectura y Urbanismo

CICLO:

7° CICLO

Disfruté muchísimo del curso de Taller 7 ,fue una experiencia única que jamas pensé experimentar. Al comienzo no sabía bien qué me iba a encontrar pero debo decirles que superó mis expectativas ya que realizar un libro arquitectónico era algo muy distinto que en cualquier otro taller . Apliqué en el aula todo lo que pude y la más grande de las satisfacciones fue ver mi proyecto como iba evolucionando . Este curso me dio la oportunidad de desarrollar mis habilidades con el apoyo de ambos arquitectos que siempre me motivaban a seguir adelante .

Puedo decir desde mi experiencia que fue todo un desafio llegar hasta este punto. Al inicio de ciclo nos propusieron varios retos, el hacer un libro y a su vez diseñar una tipologia industrial fueron los mas destacados, disfrute el proceso desde el primer momento, ya que al ser una experiencia nueva todo se trataba de descubrir, y ovbiamente hubieron momentos estresantes como a cualquier arquitecto le sucede, pero siempre disfrutas hasta el final, se que esta experiencia me aportó mucho en mi forma de diseñar y ambito profesional, pero mas importante me hizo ver que estoy en el camino correcto.

8. EXPERIENCIA DE

bibliografía

Autores del Artículo:

Cuno Chuques Gianfranco Ronaldo

Caballero García Angie Sofia

Bautista Namó Jhenny Alessandra

Perez Del Valle Lucía Meylin

09

Autor, S. (2016). Política nacional del ambiente. Paideia, 2(3). https://doi.org/10.31381/paideia.v2i3.462

Alicia Minchan Calderón, Blanca Gladys Vásquez León, Claudia Liliana Vásquez Arangoitia. (2018). Vigilancia de residuos sólidos. http://bvs.minsa.gob.pe/local/MINSA/4519.pdf

Vargas, L. M. G. (2017). PROBLEMÁTICA AMBIENTAL DEL BOTADERO CON TROLADO ELMILAGRO Y LA FORMALIZACIÓN DERECICLADORES.TRUJILLO.https://www.minam.gob.pe/politicas/wpcontent/uploads/sit es/17/2017/03/LALIBERTAD.compressed.pdf

de Asuntos Ambientales Energéticos, D. G. (2017). Ley General del Ambiente.

https://www.minem.gob.pe/minem/archivos/file/DGGAE/DGGAE/ARCHIVOS/legislacion/L EGISLACION%202017/Normas%20ambientales%20generales/1.%20LEY%20N%C2%BA %2028611.pdf

Defensoría publicó análisis sobre la gestión de residuos sólidos en el país. (2019, diciembre12). SPDA Actualidad Ambiental |; SPDA Actualidad Ambiental.

https://www.actualidadambiental.pe/libro-pdf-defensoria-publico-analisis-sobre-la-gestionderesiduos-solidos-en-el-pais/

Moratorio, D., Rocco, I., & Lemez, M. C. (Eds.). (2012). Conversión de Residuos Sólidos Urbanos en Energía (Vol. 10, Número Agosto 2012). Memoria de Trabajos de Difusión Científica y Técnica.

Sánchez, D. (2013, octubre 30). Planta para Tratamiento de Residuos / Israel Alba.

ArchDaily Perú.

https://www.archdaily.pe/pe/02-305022/planta-para-tratamiento-deresiduos-israel-alba Instalación 1. (s/f). Uteloshornillos.es. Recuperado el 19 de mayo de 2023, de https://www.uteloshornillos.es/instalacion-1/

bibliografía

Turn static files into dynamic content formats.

Create a flipbook
Issuu converts static files into: digital portfolios, online yearbooks, online catalogs, digital photo albums and more. Sign up and create your flipbook.