Re-cul

Page 1

01

Trujillo, la llamada Ciudad de la eterna primavera, viene afrontando desde hace tiempo atrás el problema del mal controldelabasuraqueestaproduce.

La disposición de residuos sólidos se viene realizando desde 1989enelbotadero“ElMilagro”,elcualrecibecercade1,000 toneladasdiariasderesiduossólidosqueabarcandesdesus localidadescolindantescomo:Trujillo,ElPorvenir,Florenciade Mora, Huanchaco, La Esperanza, Laredo, Moche, Salaverry, VíctorLarcoHerrera,SantiagodeCao.

El volumen de residuos sólidos y la no existencia de infraestructuraparalacorrectadisposiciónfinaldelosresiduos sólidosenlaProvinciadeTrujillorepresentan unamalacalidad ambiental que puede conllevar a más problemas futuros. En 2014,unreporteanualdeWaste Atlas,ubicóalbotaderodeEl Milagrocomounodelos50vertederosmásgrandesdelmundo, elterceroenAmérica Latina.

Por ende, el presente libro llamado "RE-CUL", elaborado por alumnosdeTallerdeArquitecturaVIIdelaUniversidadPrivada delNorte,abarcaunanálisisyalcanceparaladisposiciónfinal delosresiduossólidosdelaprovinciadeTrujillodando como reportefinalunproyectoarquitectónicodealta complejidad.

Estelegadofuerealizadograciasalaasistenciade

Arq. Alexandra Arteaga Celedonio y Arq, Carlos Bardales Orduña, como también de la ayuda que se tomo de las plataformasvirtuales,gratasreunionesycooperaciones como integrantesdegrupo.

Los autores

A U T O R E S

- ARQ. ALVAR AALTO

03
"La arquitectura moderna no significa el uso de nuevos materiales, sino utilizar materiales existentes en una formamáshumana."

"El biorregionalismo nos recuerda que somos parte de lanaturaleza,yquelasaludy elbienestardenuestroplaneta dependen de cómo interactuamos con él en nuestras comunidades locales."

04
05
06
07
08

Realidad problemática de los residuos sólidos urbanos en Trujillo

Enlaactualidadnuestropaísse veafectadoporlacontaminación delosresiduossólidosquetoda lapoblaciónprovoca,perolagran interrogante sería: ¿Qué son? Y que mejor que la Organización MundialdelaSalud(OMS),para definirla como "Todos los residuos, ya sean sólidos, semisólidos o líquidos, que resultendeactividadeshumanas oanimalesqueseandesechados como inútiles o no deseados" (OMS,2014).

Si nos detuviéramos a pensar quetodoloquedesechamosno esbasuraotraseríalarealidadde nuestro país, ya que ciertos gruposdefamiliasencontraronun trabajo en lo que nosotros llamamos basura. A esto lo conocemos como reciclaje de residuos sólidos urbanos porque esunprocesoqueconsisteenla recuperacióndematerialesútiles

y valiosos de residuos generados en las ciudades y pueblos; tales como: papel, cartón, plásticos, vidrios, metales, materia orgánica, entreotros.

Según Barrientos (2010), define el reciclaje como: “Un procesos fisicoquímico mecánico de trabajo, que consiste en someter a una materia o un producto ya utilizado(basura),aunciclode

tratamiento total o parcial para obtener una materia prima de un nuevo producto”, por ejemploalmomentodereciclar las botellas plásticas (pet), podemos obtener nuevos productos como: tubos, contenedores, telas plásticas comopoliéster,entreotros.

Por ello, la educación de los ciudadanos es importante ya que desde casa se puede empezarareciclaryasí

evitaríamos tanta contaminaciónyproblemasde salud. Porende,laprimeratareapara reciclaresseparartusresiduos en orgánicos e inorgánicos. Coloca en un contenedor los residuosorgánicoscomorestos decomida,cáscarasdefrutasy verduras. En otro contenedor separado, coloca los residuos inorgánicos como plásticos, vidrio, papel y cartón, y metales.

09
10
11

Estamos de acuerdo con lo mencionado anteriormente, porque es un derecho que tenemoscomociudadanos.

Como estudiantes de arquitectura, nuestro aporte ante esta problemática consistiría en diseñarunaplantadetratamiento deresiduossólidosurbanosque

permitareduciryreutilizardichos residuos sin afectar a la población.

Porotrolado,endichaplantade tratamiento se contará con un área para realizar compost casero, otro para residuos sólidos;comoelreciclajedePET (polietilenotereftalato)

En conclusión, deberíamos cambiar la educación a fin de controlar nuestra mala práctica enelcontroldedesperdiciosya que si no cambiamos nuestra manera de pensar y de actuar nunca saldremos de este problemaqueradicaennuestro entorno.

12
RENDEREJEMPLOPROYECTO1 13
14
15
16
17
18
19
20
21
22
23
25
26
27
28
29
30
31
32
33
34
35
36
37
38
39
40
41
43
45
47
49
51
53
55
57
59
60
61
62
63
64
65
66
68
69
70
71
72
73
74
75
76
77
78

PROCESO

ORGÁNICO

En la planta de tratamiento (RSU)Paisajeecológicourbano tiene conocimiento sobre la mala recepción de desechos que se se viene realizando actualmente es por ello no también se gestionara los residuosorgánicos,laplantase encargaraderealizarelproceso decompostytambiénenseñara en los talleres la manera de realizaruncompostcasero.

Ya que es un método de descomposiciónnaturalquese ha usado hace años atrás el cual se realiza con materiales orgánicos para producir compost, un abono orgánico rico en nutrientes el cual tambiénlopodránadquirirenla tiendadelaplanta.

Este proceso es beneficioso tanto para el medio ambiente como para la gestión y uso adecuado de los residuos orgánicos.

79
80
81

Aquí podemos apreciar forma base denuestroesquemadeldiseñode la planta de tratamiento, es solo el punto de partida en el diseño arquitectónico.

Apartirdeahí,seagregandetallesy serefinanaspectosespecíficospara completar el proyecto. Esta forma proporciona una estructura y una dirección que nos ayuda a desarrollar y enriquecer el proceso delproyecto.

A medida que avanzamos en el proyecto, se agregan detalles y se refinan aspectos específicos para completaryenriquecerlapropuesta. Se pueden incorporar elementos adicionales como patios interiores, diseños exteriores, coberturas y envolventes, entre otros. Estos elementosseintegraneneldiseño para mejorar la funcionalidad, la estéticayelrendimientodeledificio.

COBERTURAS

ESPACIOS INTERACTIVOS

82
83
84
85

Luego de realizar la programación de la planta de tratamiento pasamos a diseñar teniendo encuentra los ambientes y zonas de importancia asi mismo el estudio de asolamiento y vientos.

Comozonaprincipaltenemos la zona industrial seguidamente la zona complementaria que se encuentradirectamenteconla zona industrial, a la zona culturalselediomayoráreaa diferencia de las zonas complementarias ya que esta destinadaaconcientizaralos visitantesteniendoeneltaller de compostaje, taller de manualidadesyespaciospara exposiciones abiertas y cerradas.

86

Fecha: Junio del 2023

AUTORES:

La Rosa Cedano, Yolanda

Gariza Nunura, Yasmin

PAISAJE ECOLÓGICO DE TRATAM

87
05
88
89
90
92
93
94
95
96
97
98
99
100
101
102
103
104 PLANTA DE LOSACERO ZONA INDUSTRIAL
105
106
108
109
110
112
114
115
116
117
FORMATO : 10 y 25 x 12

5.7

119
121
122
123

Laevacuacióndeemergenciaes el proceso de desalojar rápidamente a los colaboradores y visitantes de la planta de tratamiento de residuos urbanos por lo cual todas las zonas tienen un recorrido rápido hacia el exterior brindándoles seguridad y bienestar de los ciudadanos.

Estos recorridos nos ayudan en casos de incendios, terremotos, inundaciones, fugas de gas u otrasemergencias.

Por lo cual se implementa en cada zona los planos de evacuación y así tengan conocimientodelrecorrido.

125
127
ESPACIO SOCIAL PLAZA DE INGRESO
MIRADOR
AREA COMPOSTAJE PARQUE TEMATICO LAGO
129
130
131
132
133
134
135
136

ZONA ADMINISTRATIVA

137
138 ZONA CULTURAL
139 ZONA INDUSTRIAL
140

FOSA ORGANICA Y INORGANICA

141
142

AUTORES:

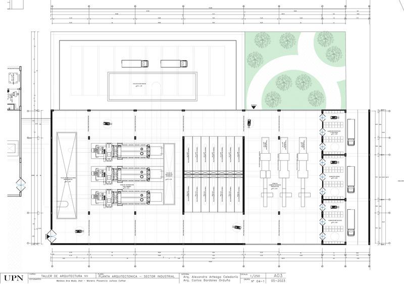
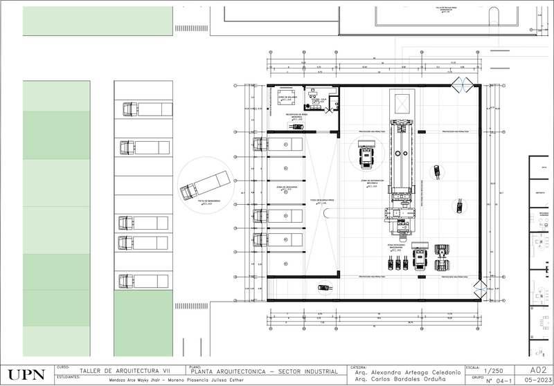
Mendoza Arce, Mayky Jhair

Moreno Plasencia, Julissa Esther

OASIS INDUSTRIAL ECOLOGICO

143
144
146
147
148
149
150
151
154
155
156
157
158
159
160
161
162
163
164
165
166

INSTALACIÓN DE GESTIÓN DE RESIDUOSURBANOSPARATRUJILLO

Fecha: Mayo del 2023

AUTORES:

Mendoza Arce, Mayky Jhair

Moreno Plasencia, Julissa Esther

169
07
170
171
172
173
174 A
175
176
177
179
180
181
182
183
185
188
190
193
198
199
200
201
203
205
207

CIRCUITO PRODUCTOS INORGANICOS

209
210
211
213
213
ZONA AGRIVOLTAICA
214 PARQUE RECREATIVO INFANTIL
PARQUE ECOLOGICO
216 PARQUE DEPORTIVO
217
218

ZONA EMPACADO DE FERTILIZANTES

219

EMPACADO DE FERTILIZANTES

220 ZONA

ZONA RECOJO DE FERTILIZANTES

221

ZONA RECOJO DE FERTILIZANTES

222

ZONA RECOJO DE INORGANICOS

223

ZONA RECOJO DE INORGANICOS

224
225
226
227
228
229
230
231
232
233

https://www.bestoneco.com/planta-de-tratamiento-de-residuos/

https://repositorio.ucv.edu.pe/bitstream/handle/20.500.12692/55787/B_Alva_ AAU-Figueroa_RDN-S%C3%A1nchez_AKV-SD.pdf?sequence=1

https://www.archdaily.pe/pe/02-305022/planta-para-tratamiento-de-residuosisrael-alba

http://repositorio.ug.edu.ec/handle/redug/9411

https://openjicareport.jica.go.jp/pdf/11685211_09.PDF

https://www.nyfdecolombia.com/plantas/tratamiento-de-aguas-residuales https://www.researchgate.net/profile/Jose-Martinez-Sepulveda2/publication/323292343_Cuadernillo_de_rellenos_Sanitarios_en_America_ Latina/links/5a8c5711458515a4068ad722/Cuadernillo-de-rellenosSanitarios-en-America-Latina.pdf

https://www.redalyc.org/pdf/4760/476047388001.pdf

https://copesco.gob.pe/conociendo-la-planta-de-tratamiento-de-residuossolidos-de-urubamba/

https://www.sotecma.es/planta-tratamiento-residuos-solidos/

https://biblus.us.es/bibing/proyectos/abreproy/90850/fichero/Memoria+PFC.p

df

http://www.ecopuerto.com/Bicentenario/informes/PLANTATRATAMIENTOS CUDEL.pdf

http://coparm.es/plantas_de_tratamiento_de_residuos_solidos_urbanos.htm

https://ingemecanica.com/proyectos/proyecto144.html

https://www.rdsanjuan.com/tratamiento-de-los-residuos-solidos-urbanos/

https://www.residuosprofesional.com/tratamiento-residuos-urbanos-2019/ https://www.residuosprofesional.com/stadler-planta-seleccion-residuosbrasil/

https://www.alcaldesdemexico.com/revista/marzo-2020/stadler-lider-enplantas-de-rsu-y-cdr-en-mexico/

http://www.laenergiadelcambio.com/la-gestion-de-los-residuos-solidosurbanos-como-fuente-de-energia/

https://blog.structuralia.com/tratamiento-de-residuos

https://twitter.com/maquetas_DIMALE/status/947906494556725248?

lang=zh-Hant

324
235

A lo largo de nuestra formación académica, nunca habíamos trabajado un proyecto de esta magnitud, era un desafío que se nos presentabaenesteséptimociclo,dondetodos pensábamos que trabajaríamos un proyecto de hospital. Eh aquí donde conocimos a nuestros nuevos docentes, los Arquitectos, Carlos Bardales Orduña y Alexandra Arteaga Celedonio, personas agradable y empáticas, los cuales nos sorprendieron al comentar lo queseveniaatrabajarenesteciclo2023-I. Es aquí donde nos formamos como grupo, esto nos permitiría abrir una investigación sobre un nuevo tema EL RECICLAJE. Permitiéndonosirmashalladeloconocido,es todo el proceso de como cada parte de la basuratienesulugar,desdedondesalehasta donde termina. Es cuando por primera vez escuchamos del botadero EL MILAGRO, comenzando nuestra curiosidad sobre este tema.Yaformadosengrupode4integrantes, comenzamos a investigar proyectos relacionados con el tema, casos internacionales de como eran las plantas de tratamiento o rellenos sanitarios desde como funcionaban hasta su CULTURA, es aquí el titulodenuestrolibro"RE-CUL"(Laculturade reciclar), aunque al arquitecto no le convenció mucho dicho titulo, nosotros seguimos firmes conladecisión.

.

Ah! olvidábamos mencionar que todo lo indagado tenia que ser registrado en un LIBRO, el famoso LIBRO, era la primera vez quetrabajamosenesteformato,fuetodouna odisea, ya que teníamos que llegar a un acuerdo con la linea grafica, todos aportamos ideas y seleccionamos una que nos representécomoungrupoordenado, formal y queseacomprensibleparacualquierlector. Finalmente nos toco separarnos en dúos, Yasmin y Yolanda formaron el primer equipo, trabajandoelproyectoPAISAJEECOLOGICO

URBANO, donde se reunían por meet y hacían coordinaciones en clases, donde poco a poco se fue puliendo mas el diseño arquitectónico. Por otro lado Mayky y Julissa lograron desarrollar el proyecto de INSTALACION DE GESTION DE RESIDUOS

SOLIDOS URBANOS PARA TRUJILLO, los cuales coordinaban a través de reuniones presenciales como virtuales. Llegando así ambos grupos a lograr culminar con satisfacción el TALLER DE DISEÑO 7, gracias a nuestros docentes, familiares , amigos, por todo el apoyo brindado en este proceso de formación como futuros arquitectos, y no queremos dejar de mencionar a nuestra universidad UPN por abrirnos las puertas para poder lograr este sueñoanhelado.

GRACIAS

TALLER DE ARQUITECTURA 7 TRUJILLO - PERÚ 2023 - I LA ROSA CEDANO , YOLANDA - MENDOZA ARCE, MAYKY JHAIR MORENO PLASENCIA, JULISSA - NUNURA GARIZA, YASMIN

Turn static files into dynamic content formats.

Create a flipbook
Issuu converts static files into: digital portfolios, online yearbooks, online catalogs, digital photo albums and more. Sign up and create your flipbook.