En la misma piel

Page 1


UNIVERSIDAD NACIONAL DE TRUJILLO

ESCUELA DE ARQUITECTURA Y URBANISMO

DISEÑO ARQUITÉCTONICO IV

DOCENTE

DR. MG. ARQ. CARLOS BARDALES ORDUÑA

AUTORES

ARTIAGA LOZANO, Jerald Daniel

MURGA CARBAJAL, Beatriz Antonella

OBESO PUGA, Anthony Mijael

SÁNCHEZ PAREDES, Carlos Kevin Jhair

TOMÁS SALINAS, Kevin Steven

VÁSQUEZ ARMAS, Handey Jhosvan

EDICIÓN

2024 - I

PRESENTACIÓN

En un mundo en constante transformación, donde las necesidades, aspiraciones y sueños de las comunidades frecuentemente se dejan de lado, se hacen necesarias respuestas creativas y comprometidas. En este contexto, emerge la arquitectura participante como un enfoque transformador e innovador que busca conectar a la comunidad con la arquitectura.

En este libro, “En la Misma Piel”, estudiaremos y aplicaremos los principios de la arquitectura participante. Este enfoque desafía la arquitectura tradicional y redefine las relaciones entre arquitectos y comunidades. A través de estas páginas, conocerás historias de colaboración profunda y significativa entre la arquitectura y la comunidad.

Por ello, un grupo de apasionados estudiantes del V Ciclo de la Escuela de Arquitectura y Urbanismo de la Universidad Nacional de Trujillo se embarcará en este emocionante viaje hacia una nueva forma de entender y practicar la arquitectura. A medida que nos sumergimos en esta experiencia, conoceremos el impacto significativo de esta metodología en la sociedad.

Att. Los Autores

¿Qué consecuencias trae vivir en barrios donde la infraestructura está en constante deterioro?

¿Cómo afecta a la comunidad vivir en un entorno donde las oportunidades de desarrollo son prácticamente inexistentes? En un país tan diverso y complejo como el Perú, con profundas desigualdades socioeconómicas y problemas de corrupción, la marginación de amplias zonas urbanas y rurales ha provocado la proliferación de asentamientos con deficientes condiciones de vida.

Debido a esto, hoy en día la sociedad se ha fragmentando. La distinción de clases sociales se refleja en la ciudad, mientras los sectores centrales disfrutan de servicios básicos y recreativos, en las zonas más alejadas del centro (barrios), las comunidades carecen de estos recursos e infraestructuras de calidad, esto conlleva a que aumente la brecha entre ricos y pobres. En consecuencia, al crearse sociedades fragmentadas, el espacio habitable y la ciudad, también se vuelve desigual y fragmentada.

Dada la situación actual del Perú, resulta difícil compartir y expandir la arquitectura en comunidades que están en las periferias de las grandes ciudades El Estado aprueba proyectos basados principalmente en intereses monetarios, sin tomar en cuenta lo que ocurre en las áreas suburbanas. Esto genera que en el ámbito arquitectónico nos hagamos la siguiente pregunta: ¿Cuál es el rol que cumple el arquitecto en un país fragmentado, corrupto, marginal como lo es el Perú?

El rol del arquitecto en una sociedad tan compleja y desafiante como la peruana va más allá de simplemente diseñar estructuras físicas o proyectarlas a futuro. Es un agente de cambio social, un defensor de la ética y la transparencia, un promotor del desarrollo sostenible Es esencial que la arquitectura no solo beneficie las personas privilegiadas, sino también a la gente que se encuentra en los rincones más alejados de nuestro territorio.

Los arquitectos deben entonces abogar por una mayor inclusión en las políticas urbanas y trabajar en conjunto con organizaciones no gubernamentales y comunidades locales para

desarrollar proyectos que respondan a las necesidades de todos los ciudadanos, promoviendo así un desarrollo urbano más equitativo y sostenible. Surge entonces una pregunta crucial: ¿Cómo puede la arquitectura ayudar a mejorar la calidad de vida de las comunidades que viven en las periferias de las grandes ciudades? La respuesta es, mediante la arquitectura participante.

Podemos definir a la arquitectura participante como un proceso mediante el cual la comunidad participa activamente en la fase de diseño y construcción del proyecto arquitectónico y urbanístico de la zona. Durante este proceso, el arquitecto convive con la gente, aprende y comprende su cultura, convirtiéndose así en un miembro más de la comunidad y participa del proyecto como uno más del grupo.

Este enfoque busca no solo involucrar a los habitantes en el diseño de sus entornos, sino también promover la co-creación de soluciones arquitectónicas que respondan a las necesidades específicas y contextos culturales de las comunidades, especialmente en áreas

marginadas Logrando así un sentido de pertenencia y propiedad sobre los espacios que ellos mismos construyeron.

Es por ello, que un punto sumamente interesante que se ha abordado en esta corriente arquitectónica, es el vínculo entre el arquitecto y la comunidad como un elemento central. Esto implica una profunda conexión con las personas que habitan el entorno, entendiendo su estilo de vida y compartiéndolo día a día Al formar lazos con la comunidad, el arquitecto se convierte en uno de ellos, familiarizándose con sus espacios y comprendiendo su importancia para la vida cotidiana.

Este proceso de conexión es crucial antes de comenzar proyecto, ya que permite involucrar a la comunidad en todas las etapas del diseño. Las propuestas se desarrollan de manera conjunta, como una unidad, donde cada miembro aporta ideas desde el principio. Al trabajar en colaboración con la comunidad, se fomenta un vínculo emocional con los espacios, promoviendo así un ambiente de cuidado mutuo y empoderamiento.

Como dijo el arquitecto Sverre Fehn: “La verdadera arquitectura existe donde la gente realmente vive, trabaja, juega y piensa”. Desde esta perspectiva, la declaración de Fehn resalta la importancia de crear espacios que reflejen y respondan a las necesidades y aspiraciones de las personas que los habitan. La arquitectura participante promueve justamente esta conexión directa entre el arquitecto y la comunidad, asegurando que los proyectos arquitectónicos no sean simplemente estructuras impuestas desde el exterior, sino el resultado de un proceso colaborativo donde la vida diaria de las personas informa y guía el diseño.

Un claro ejemplo de arquitectura participante es el proyecto “Fitekantropus” liderado por la Coordinadora de la Ciudad en Construcción (CCC) en conjunto con el arquitecto Javier Vera Cruz en el barrio de La Balanza, Comas. Antes del inicio del proyecto, el barrio enfrentaba múltiples desafíos relacionados con la falta de espacios públicos adecuados y cohesión comunitaria. La calidad de vida era percibida como baja, con áreas descuidadas y un sentido de desarraigo entre los vecinos.

El Proyecto Fitekantropus es uno de los precursores de la aplicación de la arquitectura participante, en este podemos notar el impacto significativo que tuvo en el comunidad, mejorando la seguridad y la calidad de vida de los vecinos, promoviendo la cohesión social y el desarrollo comunitario. Como menciona Francis

Keré: "La participación de la comunidad en el proceso de construcción es fundamental No solo se trata de diseñar edificios, sino de empoderar a la gente, de darles las herramientas y el conocimiento para que ellos mismos puedan construir y mejorar sus espacios."

Promover el conocimiento y la práctica de la arquitectura participante es fundamental para crear entornos más equitativos, resilientes y sostenibles. En un mundo donde los desafíos urbanos son cada vez más complejos, este enfoque permite abordar problemas de desigualdad social de manera más efectiva y humana. Al priorizar las necesidades y la participación de las personas, se construyen no solo edificios, sino también comunidades capaces de ajustarse a los cambios con facilidad y prosperar ante la adversidad.

En conclusión, la arquitectura participante en el Perú tiene incluido el potencial para ser una vasta fuerza transformadora, tiene esa capacidad de enfrentar desafíos complejos y contribuir a la construcción de un país sostenible, justo e idealmente inclusivo. Al poner a las personas en el centro del proceso de diseño, se puede crear un entorno construido que no solo satisfaga las necesidades físicas, sino que también enriquezca la vida cultural y social de las comunidades. En un país tan diverso y lleno de vida como el Perú, la arquitectura participante deja de ser solo una mera opción, y pasa a convertirse en una necesidad para construir un futuro mejor para todos

Referencias

Fjeld, P. O. (2009). Sverre Fehn: The pattern of thoughts. The Monacelli Press.

Kéré, F. (2022, abril 12). Francis Kéré Premio Pritzker 2022 (subtitulado al español) [Video] YouTube https://www.youtube.com/watch?v=b1ksSMWD6zY

Ruiz Fernández, D. R. (2019). Capital social y desarrollo local El caso del proyecto Fitekantopus en el barrio cultural de La Balanza – Comas (Tesis). PONTIFICIA UNIVERSIDAD CATÓLICA DEL PERÚ, Lima, Perú.

2.1

Lima es una ciudad donde la informalidad predomina en cada rincón. Primero se busca habitar y luego construir (de invasión a barriadas). Durante la década de 1950, los asentamientos informales o barriadas surgieron en los alrededores de la ciudad de Lima. Con el paso del tiempo, su crecimiento ha sido exponencial, al punto de que pasó a ser considerada una ciudad policéntrica, con “nuevas Limas” divididas en Norte, Sur y Este. “Si Lima hace 30 años era una ciudad agobiada por las barriadas, hoy es una mega-barriada con pequeñas porciones de ciudad consolidada”, menciona el arquitecto y urbanista peruano Willey Ludeña.

Una de las "nuevas Limas", Lima Norte, es de las más pobladas con más de 2 millones y medio de habitantes. De los 9 distritos que la conforman, Comas será nuestro referente. Este distrito comenzó como una ocupación de migrantes de distintas regiones del Perú, y el 12 de diciembre de 1961 fue reconocido oficialmente como distrito.

Alberga a más de 500 mil habitantes, lo que lo convierte en el segundo distrito de Lima Norte más poblado con un 25% y un 6% de toda la ciudad de Lima. Su población es predominantemente joven, ya que el 43.6% son niños, niñas y adolescentes. Como pasa en muchos asentamientos informales, la población autoconstruye sus casas y barrios debido a la gran ausencia del Estadio y de administraciones públicas.

La diversa multiculturalidad generada por las migraciones en el distrito ha dado lugar a una comunidad única en el barrio de La Libertad, comúnmente llamado "La Balanza" debido a una bodega que fue un punto de referencia en la zona.

En este entorno, ha surgido un tejido social y urbano peculiar. Grupos de teatro, conformados mayormente por jóvenes, han emergido como una forma de expresión y enriquecimiento cultural. Así nació en 1990 la "Gran Marcha de los Muñecones".

Dado el limitado espacio de infraestructura disponible, se decidió utilizar las calles como escenario para estas actuaciones.

Dada su gran popularidad, en 2002 se creó la Fiesta Internacional de Teatro en Calles Abiertas

(FITECA), impulsada por el grupo teatral de "La Gran Marcha de los Muñecones". A esta celebración se unió también el Comedor San Martín del Once, un lugar que ha estado sirviendo a la comunidad local durante más de 30 años. Este comedor, junto con varios otros, fue establecido a finales de los años 70 por un grupo de mujeres de diferentes barrios. Gracias a FITECA, la comunidad ha desarrollado un profundo aprecio por el arte y la cultura, transformando así al barrio de "La Balanza" en un lugar vibrante y activo.

En 2007, la llegada de estudiantes de arquitectura de la Universidad Nacional de Ingeniería (UNI) marcó el inicio de un proyecto de gran importancia para nuestra comunidad, convirtiendo al barrio "La Balanza" en un punto de referencia cultural y turístico. Así surgió el proyecto Fitekantropus, al reconocer el potencial del impacto urbano generado por FITECA. Se planteó la idea de que el evento artístico de una semana en un espacio público pudiera desarrollarse en un proyecto integral para todo el barrio a lo largo del año.

Desde entonces, como parte de una visión urbana integral construida en colaboración, se han

desarrollado varios proyectos, como los Domingos Comunitarios y el Paseo de la Cultura Fiteca, entre otros, con el objetivo de crear una infraestructura física que refleje los aspectos socioculturales de la comunidad.

En 2012, se obtuvo financiamiento de la cooperación internacional para iniciar la renovación del parque Tahuantinsuyo, el cual es el corazón del barrio. Se decidió comenzar estratégicamente convirtiendo el Comedor San Martín en un centro cultural, desde donde se promovería la idea de lo público en todo el parque y la vecindad, contrarrestando la tendencia actual hacia la fragmentación y la privatización. El desafío consistía en transformar un espacio destinado a comer en un lugar para la vida, un punto de referencia y encuentro para la comunidad.

La obra se llevó a cabo durante 2014, reorganizando los espacios para mejorar su funcionalidad y ampliar sus usos comunitarios, como la creación de una sala multiusos, biblioteca, baños y huerto. Además, se reemplazó la estructura para permitir la construcción de un segundo piso y se modernizaron las instalaciones.

El Perú es un país que muestra diversas características que están presentes en sus 3 regiones naturales, siendo: Costa, Sierra y Selva y no solo con respecto a su geografía , si no también a su clima.

Ya enfocándonos un poco más en el lado costero del país, la Costa sería una región, que representa el corazón de la economía del Perú, junto a sus 2250km y el 11% de la superficie total. Por otro lado, su clima es característico por ser árido, aunque siempre varia durante todo el año.

Lima, la capital del Perú se encuentra en la costa central , la cual estaría compuesta por 43 distritos y tiene una población mayor de 10 292 408 habitantes , en cuanto a la tasa de crecimiento intercensal esta contaría con un 1.7%.

Un 2 de noviembre de 1961, ubicado a una altitud que varia desde 150 a 811 m.s.n.m, con una longitud oeste de 77° 04' 00'’,y la invasión por parte de pequeños grupos de las áreas de llanura y ladera baja, conocidas como Pampas de Comas, se realiza la creación del distrito de Comas y un crecimiento urbano y demográfico rápido desde sus orígenes

Sin embargo hoy en la actualidad, la tasa de crecimiento, ha llegado al límite de la posibilidad de expansión

Es el segundo de los distritos más poblados de Lima metropolitana, y constituye el 25% de la población de Lima Norte,y el 6% de Lima Metropolitana Cuenta con 112 Asentamientos Humanos y Pueblos Jóvenes, 14 asociaciones de vivienda y 32 urbanizaciones. Cabe destacar que un 57% de la población total es de carácter informal y la mayoría de los pobladores cuentan solo con educación básica, son de clase baja y media baja, y se dedican al comercio menor y a la construcción

Referente a sus limitaciones, son por el Norte con el distrito de Carabayllo, por el Sur con el distrito de Independencia, por el este con el distrito de San Juan de Lurigancho y finalmente por el Oeste con los distritos de Puente Piedra y los Olivos.

Y con respecto a su clima es sub-tropical árido, lo que implica un entorno generalmente oscuro y húmedo, con lluvias poco frecuentes, veranos cálidos e inviernos templados. Esto significa que para que exista un buen habitar. los materiales como la disposición de los espacios deben optimizar el confort térmico y la ventilación, aprovechando la luz natural para una mejor iluminación.

En el corazón de Comas, un distrito vibrante pero a la vez un poco caótico de Lima, ya se un enigmático barrio llamado “La Balanza”, lugar que se caracteriza por el aprovechamiento del suelo, donde más de un 50% seria dedicado al comercio ya sea en tiendas o pequeña bodegas, asi mismo, también veremos que para el acceso al barrio, se debe recalcar que como avenida principal acceso es la Av. Tupac Amaru, y luego la Av. Puno. donde surgen ahí precariedad en cuanto pistas y veredas en mal estado y de igual manera, no seria ajeno a la inseguridad en las calles.

Sin embargo, también seria un lugar que representaría un constante cambio puesto que se entrelazarían de manera única y muy sorprendente, el arte y la comunidad.

Reflejo de ello, seria, la implantación del proyecto Fitekantropus en el lugar mismo, el cual, no seria un punto de encuentro común, si no, un epicentro cultural, donde se puede sentir una “trasformación continua”; es por ello que gracias a la intervención de este proyecto donde tanto la comunidad como el arquitecto Javier Vera Cubas, serian los protagonistas de lo que hoy conocemos como la arquitectura participante, convirtiendo al sector en un espacio cultural jamás antes visto en otro barrio popular del Perú.

En cuanto a la distribución del proyecto, el perímetro de todo el terreno es 375 m y cuenta con un área de 8225 m2, dentro de los cuales están, los espacios con uso pero también sus vacíos, y la morfología, son bases ortogonales , respecto a la topografía es bastante accidentada ya que presenta desniveles pronunciados en todo el terreno.

Parte del origen del proyecto empezó con el “Festival Internacional de Teatro En Calles Abiertas” (FITECA).

Donde, al buscar la participación, en un barrio con limitaciones tanto infraestructurales como sociales, se llegaría a que la población, intervenga en proceso de diseño, mediante talleres y asambleas que contaría con la capaciones a personas de diferentes edades, para que puedan mas adelante desarrollarse y también brindar un aporte a la comunidad.

Es asi que mediante este proyecto, se ve un faro de esperanza, además de una manifestación tangible, de cómo la colaboración y el compromiso pueden transformar un barrio con espacios aislados y sin vida, a una reactivación para mejorar la calidad de vida, y no únicamente del lugar, si no, un espacio para personas de todos los entornos, basado en una idea que ellos mismo crearon

Es así como el arquitecto, trata de generar esa iniciativa en las personas, brindándoles las herramientas necesarias para que puedan ir construyendo una comunidad. Se empiezan a crear reuniones y diferentes actividades mediante las cuales se permite compartir un conocimiento previo y ya por consiguiente escuchar a los distintos tipos de usuarios.

Es aquí donde el reto de materializar todo ese concepto de organización se hace mas complicado. ¿Cómo conseguir que los ciudadanos tengan ese sentido de comunidad? Y es asi como poco a poco se crean y terminan haciendo costumbre reuniones mensuales de capacitación, donde se tocan temas como el financiamiento del proyecto, y futuros problemas en el proyecto.

Una vez definida su organización, se busca entender como una persona que quizás no tiene conocimiento de arquitectura y urbanismo, puede visualizar a futuro lo que ve en su entorno; localizando 3 grupos de personas a la cuales se les permite realizar bocetos como referencia al diseño del proyecto.

BÚSQUEDA DE FINANCIAMIENTOS

REUNIONES

MENSUALES CENTRO DE CAPACITACIÓN

PARLANTE

PARTICIPACIÓN

VECINAL

COMUNICACIÓN

BOLSA

ORGANIZACIÓN

FOMENT

RECICLA

PROYECTOS CATALIZADORES

SE

TRABAJO COMUNITARIO

GESTIÓN PARA ILUMINACIÓN

ASAMBLEA “UN VECINO, UN PANEL”

NUEVO USUARIO Y ADAPTACIÓN.

TRABAJO COMUNITARIO Y CAPACITACIONES

GURIDAD

ENMALLADO CANCHA

Se le permite definir y bocetear el proyecto a un gran número de personas las cuales obviamente son pertencientes a la zona, y luego se clasifican en 3 grupos, de los cuales se destacan los proyectos con mayor fuerza tanto en el diseño, organización y en la viabilidad, los cuales son base del proyecto final Fitekantropus.

Por un lado, las mujeres en su diseño nombrado “Parque de las Amazonas” resaltaban el hecho de que las de su mismo sexo eran protagonistas al ocupar y darle un uso a los espacios, al igual que los niños. Le daban un uso al comedor, y lo planteaban como su principal espacio de trabajo y reuniones.

MANTENIMIENTO

FINANCIAMIENTO PARA AMPLIAR EL LOCAL COMUNAL DEL COMEDOR.

Del mismo modo, los hombres se inclinaban más a su gusto, y le denominaron al proyecto “Paseo de la Cultura”. Quizas en ellos se puede ver mas explayada la idea de Cultura, con múltiples espacios y funciones, pero si hay algo común entre ambos puntos de vista, es el diseño a partir de la continuación del proyecto del comedor, lo cual hace pensar que es el punto central de Fitekantropus.

Y por último, los niños como tercer grupo diseñaron espacios menos regulares, dejaron que su imaginación se explaye, y de la misma manera generaron y enmarcaron su circulación. Al igual que antes, ellos inclinaron todo el diseño hacia un usuario que estaba conformado por ellos mismos, aunque en este caso se notaba esto con mayor fuerza.

Si bien pareciese algo simple, el hecho de incluir de esta manera a los distintos tipos de usuarios en el diseño, hace que este proyecto tenga esa singularidad para llamarse parte de “arquitectura participante”; aquí el arquitecto se dejaba guiar por la comunidad que al fin y al cabo eran los verdaderos poseedores del proyecto en sí.

Diseñar de esta manera, permite que la comunidad se sienta parte de este espacio importante; pero esto no sería todo lo necesario para llegar a lo que conocemos como Fitekantropus, sino que este empezaría a pasar por una serie de etapas las cuales marcaron un antes y después de la zona intervenida.

Luego de la etapa en que la comunidad participó de manera gráfica para el diseño, el proyecto como tal empieza a materializarse, surgen distintas intervenciones indirectas por parte del arquitecto, y esto gracias a que el diseño empieza a cobrar significado y función mediante la ayuda de un grupo de personas, las cuales posteriormente son identificadas como potencial usuario.

Básicamente se busca primero darle un significado al espacio, busca entender como un niño, adulto, joven, ven su entorno para poder construir sobre esos cimientos. Este antecedente, hace que el proyecto pueda ir evolucionando constantemente y le dá este sentido de flexibilidad tanto a mobiliarios como objetos que se asientan como parte del proyecto.

Un claro ejemplo se dá cuando inicialmente, se colocan objetos con la finalidad de que estos eviten que los antiguos sitios de estacionamiento sirvan de acceso para vehículos, y de esta manera vuelvan a apropiarse nuevamente del espacio intervenido.

Para ser mas tubos de acer el cual descu divertirse, em este acto llam que inicialme vuelven un pa pequeños.

Este cambio arquitecto, y

En conclusión, la conceptualización del proyecto Fitekantropus posee una complejidad, donde se resaltan puntos como la posible solución de la “fragmentación urbana” por medio de este tipo de arquitectura, al que se le denomina participante.

Del mismo modo, se denota claramente el rol participante de la comunidad tanto en la fase de creación del proyecto mediante charlas, reuniones de capacitación, oportunidades de diseñar el mismo espacio, y demás actividades.

La “arquitectura participante” resulta no mantenerse estática, por lo que vemos otro concepto; “flexibilidad”, lo cual permite ir adaptando algunos espacios o mobiliarios de acorde a las necesidades o usos que los mismos usuarios pueden darles.

Claramente, el arquitecto tiende a sentirse en la piel de las personas que conforman esta comunidad, y terminan por formar parte de todo este proceso el cual fue parte importante y necesaria para crear “Fitekantropus”.

Antes de la propuesta de mejo

Fitekantropus, el entorno del barr enfrentaba múltiples dificultades.

Martín del Once era un espac operaba en condiciones instalaciones básicas y recurso espacios públicos alrededor del deteriorados y eran utilizados pa deseables, como el consumo de alcohol, lo que contribuía a un ambiente inseguro. Todos esos factores limitaban el uso de estos espacios.

Los principales usuario

Fitekantropus en La Balanza del comedor popular, asim adolescentes del barrio. Las s desempeñan un papel cru operar el comedor comunita alimentos y actuando como a social. Los niños y adolesce son usuarios esenciales deb de espacios recreativos seg para su desarrollo físico y soc

ALIMENTACIÓN

SALUDABLE

RECURSOS ALIMENTARIOS

PREPARACIÓN DECOMIDA

GESTIÓNDE RECURSOS

CAPACITACIÓN YACESORIA

INFRAESTRUCTURA ADECUADA

GESTIÓNDE

ORGANI DEEVE

PROGRAMAS DE CAPACITACIÓN

ZACIÓN

NTOS

TALLERES FORMATIVOS

PROGRAMAS

EDUCATIVOS

DESARROLLO ACADEMICO

TALLERES

CULTURALES

ESPACIOS CULTURALES

APOYO

COMUNITARIO

ACTIVIDADES DEPORTIVAS

ESPACIOSDE ENCUENTRO

CUIDADOSDE LOSESPACIOS

INTERACCIÓN

SOCIAL

REUNIONES COMUNITARIAS

Las señoras del comedor popular son mujeres con un fuerte compromiso hacia su comunidad. Son líderes y organizadoras dentro del barrio, gestionando el comedor popular que proporciona comidas a bajo costo o gratuitas a los residentes que lo necesitan. Estas mujeres no solo juegan un papel vital en la seguridad alimentaria de la comunidad, sino que también son agentes importantes de cohesión social y participación comunitaria.

La población joven de La Balanza, participan en actividades deportivas, talleres educativos, y eventos culturales que no solo les proporcionan entretenimiento, sino también oportunidades de aprendizaje y desarrollo de habilidades. Al proporcionar espacios recreativos adecuados para que los niños y jóvenes jueguen no solo sería beneficioso para su desarrollo individual, sino que también tendría un impacto significativamente positivo en toda la sociedad, se podría revitalizar espacios que actualmente se utilizan de manera inapropiada en la zona.

La falta de integración y participación comunitaria en actividades colectivas debilitaba la cohesión social y reducía el apoyo comunitario para iniciativas locales. Esta situación resaltó la necesidad de fomentar la participación activa de la comunidad en la gestión y mantenimiento de los espacios públicos, promoviendo un sentido de propiedad y empoderamiento entre los vecinos.

Por otro lado, la falta de recursos educativos y culturales afectaba negativamente a la comunidad, limitando las oportunidades de crecimiento personal y social, tanto para los niños y adolescentes como para los adultos. Los residentes, especialmente las señoras del comedor, tenían pocas oportunidades de formación y desarrollo personal.

Esto subrayaba la necesidad de proveer acceso a recursos educativos y culturales mediante la creación de bibliotecas y centros de aprendizaje. Asimismo, era crucial ofrecer programas de formación y desarrollo personal para los adultos, mejorando así sus habilidades y oportunidades de vida.

El Proyecto Fitekantropus abordó las necesidades de las señoras del comedor, los niños y jóvenes de manera integral, aplicando principios de arquitectura participante que involucraron activamente a la comunidad en todo el proceso.

El comedor San Martín del Once fue remodelado y ampliado, incluyendo la construcción de un segundo piso con una biblioteca y una sala de usos múltiples, convirtiéndolo en un centro comunitario que ofrecía no solo alimentos, sino también recursos educativos y espacios para actividades comunitarias.

Áreas anteriormente descuidadas fueron transformadas en parques y áreas recreativas seguras, proporcionando espacios donde los niños podían jugar y los residentes podían reunirse.

Al atender las necesidades específicas de los principales usuarios, como las señoras del comedor y los niños y adolescentes, el proyecto revitalizó el entorno y fortaleció el tejido social y cultural de la comunidad.

e c r e a c i ó n

b l i o t e c a

U M

m a c é n y S S H H

o c i n a

o m e d o r

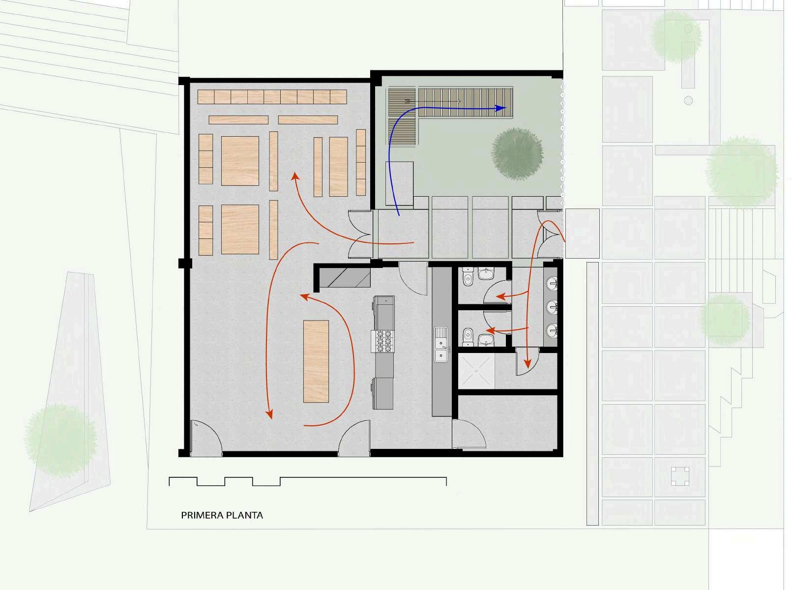
El proyecto de diseño del Local Comunal Comedor San Martín del Once se centra en la volumetría principal de este espacio, que se divide en planta y formas paralelepípedos. La flexibilidad es un elemento clave en este diseño, gracias a la distribución móvil del mobiliario y el uso limitado de muebles fijos, lo que facilita la multiplicidad de opciones al momento de desplazarse por el espacio.

En la planta baja, el comedor tiene una anchura de seis metros y se fusiona con el estar para crear un espacio prácticamente ininterrumpido de doce metros de profundidad. Las mesas y bancas de madera prensada, elaboradas por la comunidad misma, son los objetos que completan este área. Dependiendo del uso que se le dé al estar.

La cocina se separa del comedor mediante un mesón de concreto, que no cierra completamente el espacio y permite circulación en ambos lados. El área de cocina cuenta con elementos fijos y móviles, y en su centro se encuentra una isla de estufas que, aunque móviles, deben estar ubicadas allí debido a una campana extractora en el techo.

El comedor comunitario está diseñado alrededor de un espacio central destinado a la distribución de alimentos. Las áreas de comedor están dispuestas a ambos lados de esta zona central, facilitando un flujo eficiente de personas durante las horas de comida. El mobiliario del comedor incluye mesas rectangulares y sillas robustas, dispuestas de manera que maximicen el espacio disponible y permitan una circulación fluida. Las mesas están agrupadas para acomodar tanto a grupos grandes como pequeños, ofreciendo flexibilidad para diferentes tamaños de familias y grupos comunitarios. El comedor tiene una capacidad aproximada de 80 personas, asegurando que se pueda atender a un gran número de usuarios simultáneamente.

La sala de estar está ubicada cerca de la entrada principal, ofreciendo un espacio cómodo y acogedor para que los usuarios puedan descansar y socializar.

Los pasillos y pasadizos en la planta baja son amplios y bien iluminados, permitiendo una circulación fluida entre la sala de estar y el comedor.

Las zonas de transición conectan los espacios interiores con los exteriores, facilitando un movimiento continuo y sin barreras.

La distribución del espacio en el segundo nivel del proyecto Fitekantropus está dedicado a actividades comunitarias y educativas, con espacios como el salón multiusos y la biblioteca.

El salón multiusos es un espacio amplio y flexible diseñado para adaptarse a una variedad de actividades comunitarias, desde reuniones y talleres hasta eventos culturales, así mismo este salón es usado para exposiciones y la proyección de películas para el público en general de la comunidad . El mobiliario en este espacio es modular, incluyendo sillas plegables y mesas que pueden reconfigurarse fácilmente según las necesidades del evento. Este mobiliario permite que el salón sea transformado rápidamente para diferentes usos, facilitando una alta rotación de actividades. Equipos audiovisuales integrados, como proyectores y sistemas de sonido, están disponibles para apoyar presentaciones y eventos. El salón multiusos tiene una capacidad para aproximadamente 100 personas, lo que lo convierte en un centro vital para la vida comunitaria.

La biblioteca en el primer piso está diseñada para ser un espacio tranquilo y funcional, dedicado al estudio y la lectura. Está equipada con estanterías accesibles llenas de libros y materiales de referencia. Las mesas de lectura y sillas ergonómicas están distribuidas de manera que cada usuario tenga su propio espacio personal para estudiar o leer en silencio. Además, hay áreas de trabajo grupal con mesas más grandes para fomentar la colaboración. La biblioteca tiene una capacidad para aproximadamente 50 personas, incluyendo estudiantes y lectores de todas las edades, este espacio fue realizado para que los niños de la comunidad puedan tener acceso a programas de educación y así contribuir a su desarrollo intelectual.

Para conectar el primer y segundo nivel se instaló una escalera, con la cual los miembros de la comunidad pueden acceder a todos los ambientes del proyecto Fitekantropus.

Los pasillos que conectan el salón multiusos y la biblioteca están diseñados para asegurar un flujo continuo y accesible. Estos pasillos son lo suficientemente amplios para permitir el paso cómodo de varias personas al mismo tiempo, y están bien iluminados para proporcionar un ambiente seguro y acogedor.

CIRCULACIÓN EXTERIOR

6,3 m 2,6 m 5,4 m
0.7 m 2 m 1,8 m 1,2 m 0,6 m 0,5 m

El Proyecto Fitekantropus en el barrio de La Balanza es un claro ejemplo de participación comunitaria en la construcción y ejecución de espacios públicos. Este proyecto destaca por la colaboración entre arquitectos, estudiantes de arquitectura y, especialmente, los vecinos del barrio. Desde su inicio en 2012, se ha llevado a cabo un proceso participativo integral que ha permitido transformar espacios urbanos, fortaleciendo al mismo tiempo el tejido social de la comunidad.

La comunidad del barrio de La Balanza jugó un papel crucial en todas las fases del proyecto, desde el diseño hasta la implementación y el mantenimiento Los vecinos no solo participaron activamente en la planificación de los espacios, sino que también colaboraron en la construcción, utilizando materiales reciclados y disponibles, lo que reforzó su sentido de pertenencia y compromiso con el proyecto. Un aspecto fundamental del Proyecto Fitekantropus fue el proceso participativo integral.

Este enfoque permitió a los residentes del barrio involucrarse directamente en la identificación de necesidades, la planificación y la ejecución de las obras. Se adoptó una metodología de investigación-acción participativa, lo que facilitó la adaptación continua del proyecto a las necesidades reales de la comunidad, basándose en la retroalimentación constante de los participantes. Uno de los logros más destacados del proyecto fue la transformación del Comedor Popular San Martín.

Este espacio, que originalmente se encontraba en mal estado, fue convertido en un local comunal multifuncional que incluye un huerto, una biblioteca y una sala de usos múltiples. La participación activa de los vecinos en la planificación y construcción de este espacio fue esencial para su éxito. Esta iniciativa no solo mejoró las infraestructuras físicas del barrio, sino que también empoderó a los residentes al demostrar que, trabajando juntos, podían lograr mejoras significativas en su entorno. Este enfoque colaborativo no solo permitió el uso de materiales reciclados y económicos, sino que también fomentó un sentido de pertenencia y apropiación del espacio por parte de la comunidad

CIMIENTOS

MUROS Y COLUMNAS

LOSAS

PINTURA Y JARDINERÍA

Estado del comedor 2012
LIMPIEZA Y CARPINTERIA
Obra bruta terminada - julio, 2014
Comedor 2015

SEGUNDA ETAPA ( 2016 - 2017 )

COMEDOR

MEJORA DE AREAS VERDES Y HUERTOS

AMPLIACIÓN DE BIBLIOTECA

CONSTRUCCIÓN DE MOBILIARIO

CONSTRUCCIÓN DE LA ESTRUCTURA DEL SEGUNDO NIVEL

SISTEMA ESTRUCTURAL

El proyecto comenzó con una infraestructura base en el primer piso, pero esta no estaba preparada para soportar un segundo piso. Por lo tanto, se implementó una estructura nueva para soportar el segundo piso, el cual debía ser ligero y no muy alto debido a que el suelo del parque es de relleno. Esta condición estructural fue definitiva para el diseño y la ejecución de la obra.Durante los primeros seis meses de obra en 2014, se logró construir la estructura sin techo y se instalaron las instalaciones sanitarias y eléctricas.

Posteriormente, una ONG se unió al esfuerzo.

El sistema estructural de la edificación se basa en la combinación de dos sistemas, por un lado en el primer piso se encuentran 9 columnas conectadas a las viga, formando así un sistema porticado. Pasando al segundo nivel Se puede encontrar un ambiente, destinado a ser una sala de usos múltiples que destaca por su forma, escala la cual tiene una estructura metálica debido a que el suelo del parque es de relleno. la estructura del segundo piso debía ser ligera y no muy alta para no comprometer la estabilidad del edificio.

En cuanto a la cimentación inicialmente la casa postraba sobre 9 zapatas aisladas la cual durante la remodelación no se le hizo ninguna modificación.

Primer nivel + Biblioteca

V i g a s m e t á l i c a s

E s t r u c t u r a m e t á l i c a

- t r a m a d o

Segundo Nivel - Sala Multiusos

V e n t a n a

MATERIALIDAD

M o v i l i a r i o

( O S B ) -

m a d e r a

E s c a l e r a

( m e t a l )

P u e r t a s

( m e t a l )

M a r c o d e

a l u m i n i o

V i d r i o

M u r o s

( l a d r i l l o )

T e c h o ( c a l a m i n a )

F a l s o t e c h o

e s t e r a s )

P a n e l

( e s t e r a s )

P a n e l

( C a l a m i n a d e

p l á s t i c o )

M a r c o

( m a d e r a )

2.7

El Proyecto Fitekantropus ha tenido un gran impacto en el significado de los diversos espacios, así como en las sensaciones que estos generan. La escala de los diferentes ambientes desempeña un papel crucial en las emociones que transmiten. La Sala de Usos Múltiples, con su escala monumental, inspira una sensación de grandiosidad y flexibilidad. Este amplio y multifuncional espacio permite la realización de diversas actividades, desde reuniones comunitarias hasta talleres y eventos culturales, promoviendo un ambiente de inclusión y colaboración. En contraste, el comedor, con su escala más íntima, crea una atmósfera de calidez y convivencia, donde los residentes se sienten cómodos y en casa mientras comparten alimentos. La biblioteca, también con una escala íntima, genera una sensación de enfoque y concentración, proporcionando un entorno propicio para el aprendizaje y el desarrollo de nuevas habilidades.

El uso de materiales locales y sostenibles, como la madera y el ladrillo, no solo es ecológicamente responsable, sino que también conecta a los residentes con su entorno, cabe resaltar que cada miembro de la comunidad elaboró un marco que fue colocado en la estructura que envuelve el salón multiusos. Estos marcos crean una atmósfera cálida y familiar, como objetos representativos de cada personas, contribuyeron a la formación de un ambiente confortable y relajante. Los colores, combinados con la textura de los materiales, proporcionan una sensación de seguridad y pertenencia, vital para la cohesión social y el bienestar de la comunidad.

Las condiciones de ventilación e iluminación han sido cuidadosamente consideradas en el diseño de los espacios principales. La mayoría de los ambientes utilizan ventilación natural y cruzada, con grandes ventanas y aberturas que permiten la circulación de aire fresco. Esta ventilación no solo mejora la calidad del aire, sino que también reduce la necesidad de sistemas de ventilación

mecánica, creando un entorno más saludable y sostenible. La buena ventilación es esencial en espacios como el comedor y la SUM para mantener un aire limpio y fresco, lo que contribuye a una sensación de bienestar y comodidad.

La iluminación en los espacios principales combina luz natural y artificial para crear efectos dinámicos de luz y sombra. Grandes ventanales y claraboyas permiten la entrada de luz natural durante el día, creando un ambiente luminoso y alegre.

La interacción de la luz natural con los espacios resalta los colores y materiales, mientras que las sombras añaden profundidad y dimensión. Por la noche, se utilizan luces cálidas que mantienen un ambiente acogedor y seguro. Los efectos de luz y sombra no solo enriquecen la experiencia visual, sino que también influyen en las emociones y sensaciones de los usuarios, proporcionando una atmósfera que es tanto funcional como estética.

El Proyecto Fitekantropus, ha transformado significativamente el Comedor San Martín del Once y otros espacios comunitarios, convirtiéndolos en símbolos de unidad para la comunidad. Originalmente, el comedor solo funcionaba como un lugar para proporcionar alimentos a los vecinos. Sin embargo, con la intervención, este espacio ha sido remodelado y ampliado, incluyendo la construcción de un segundo piso con una biblioteca y una sala de usos múltiples. Esta transformación no solo ha mejorado las instalaciones físicas, sino que también ha fortalecido el sentido de pertenencia y cohesión social entre los residentes, quienes ahora ven el edificio como un centro comunitario esencial.

El diseño del proyecto presenta volumetrías claras y definidas que responden tanto a las necesidades funcionales como estéticas del espacio. La geometría del edificio es sencilla y funcional, con formas rectangulares y cúbicas que facilitan la organización de los distintos usos del espacio.

La altura del edificio es moderada, lo que permite que se integre armoniosamente con el entorno sin imponerse visualmente. La densidad del edificio ha sido planeada para evitar la congestión, creando espacios amplios y abiertos que promueven la ventilación y la iluminación natural.

Las fachadas del edificio combinan elementos de transparencia y opacidad, reflejando la dualidad de privacidad y apertura que caracteriza al proyecto. Las zonas de mayor transparencia, con amplias ventanas y puertas de vidrio, están diseñadas para áreas de uso común como la biblioteca y la sala de usos múltiples, permitiendo una conexión visual con el exterior y creando un ambiente acogedor y abierto. La relación del entorno interior y exterior del proyecto se da de la siguiente manera, mientras las señoras cocinas pueden observar a los niños que juegan en el área recreacional que está al lado del edificio. Esta combinación asegura una relación cercana entre el espacio interior y exterior.

La integración exitosa del proyecto con e ambiente exterior ha sido fundamental para su éxito. Las áreas, que antes eran zona descuidadas o utilizadas para actividades n deseables, han sido revitalizadas y ahora sirve como extensiones naturales del edificio. La áreas verdes no solo mejoran la estética de entorno, sino que también proporcionan áreas d recreación y descanso para los residentes.

La relación entre el edificio y estos espacio exteriores es simbiótica, ya que ambos s benefician mutuamente: el edificio ofrece u punto focal y de encuentro para la comunidad mientras que los espacios exteriore proporcionan un entorno saludable y agradable.

El Comedor San Martín del Once y el Proyect

Fitekantropus en su totalidad se han convertid en un verdadero hito social y un símbolo para l comunidad de La Balanza. Este cambio ha sid impulsado no solo por las mejoras físicas, sin también por la arquitectura participante.

ARTÍCULO DE OPINIÓN ARTÍCULO DE OPINIÓN

A finales de los años 70, se comenzaron a establecer los primeros asentamientos en lo que ahora se conoce como Cerro Pesqueda. La comunidad creció desorganizadamente, con muchas viviendas improvisadas sobre el terreno de piedra. Durante la década de los 90, el Sector II del Cerro Pesqueda comenzó a desarrollarse significativamente. Con el tiempo, la comunidad empezó a organizarse para mejorar su calidad de vida y apoyarse entre sí y poder salir adelante, lo que llevó a la creación de diversos comités para abordar las necesidades de la comunidad.

Entre estas organizaciones sociales destacan la Asociación Cultural "Piedra Eterna", La Organización Social Base " El Buen Pastor", el Comedor Popular "María Parado de Bellido", la "Hermandad Señor de los Milagros" y el "Comité de Progreso y Desarrollo del Sector II – Cerro Pesqueda". Cada organización tiene roles específicos y realizan actividades que contribuyen al bienestar y desarrollo desarrollo integral de las personas del sector

La Asociación Cultural “Piedra Eterna”, fundada a finales del 2020, surgió como una respuesta a los desafíos iniciales de falta de espacios culturales y educativos en la comunidad. El terreno donde se erige actualmente la asociación, fue adquirido gracias a la gestión del alcalde vecinal del sector en colaboración con la comunidad. La construcción del local donde actualmente funciona la asociación ha sido posible gracias al compromiso y apoyo de varios miembros destacados de la comunidad, como se encuentran doña Esperanza Polo, el señor Felipe Castillo, doña Luz Nery y el señor Manuel López La participación de estas personas ha inspirado a otros miembros de la comunidad a sumarse y apoyar con las iniciativas de la asociación en la mejora en el sector.

El nombre "Piedra Eterna" refleja el deseo de la asociación de llegar a los más jóvenes a través de la educación y la cultura, promoviendo su desarrollo. Este nombre simboliza la conexión entre el pasado y el presente, destacando la importancia de transmitir estos valores a las futuras generaciones. En el logo de la asociación se pueden apreciar tres piedras, que representan los tres grupos principales del tejido social del Sector II del Cerro Pesqueda: la familia, los vecinos y los amigos.

Actualmente, la estructura organizativa de la asociación está conformada por Héctor Valencia como director general, supervisando todas las operaciones; Renato García se encarga de la gestión de la biblioteca, asegurando un acceso eficiente a recursos educativos; Luis Villanueva como encargado y coordinador de actividades; Leidy Ortega encargada de gestión de libros y Carolina Araujo como responsable de los patrocinios. Este equipo busca garantizar continuidad de las iniciativas que impulsan el desarrollo de los niños de la comunidad.

La asociación busca alianzas estratégicas para mejorar la infraestructura y realizar actividades culturales Generalmente, solicitan apoyo de las diferentes facultades de las universidades, y también cuentan con el respaldo de CENIPRO, Danper y Barrio Seguro. En este momento, están buscando el respaldo de ONG y de la Gerencia de Educación de la Municipalidad de Trujillo. Su objetivo es obtener los recursos necesarios para que la asociación pueda seguir funcionando de manera constante y efectiva. Con estas alianzas no solo se busca mejorar la infraestructura, sino que también fortalecer la oferta cultural y educativa para la comunidad, creando un ambiente sostenible para los niños del sector.

La forma en la que opera la asociación es de manera colaborativa, involucrando principalmente a los niños de la comunidad. Ofrece talleres de escritura, lectura, fotografía, y pintura, además de organizar eventos culturales que fomentan la cohesión social entre los niños. La asociación enfrenta necesidades como la mejora de su infraestructura y la obtención de recursos para expandir sus programas educativos y culturales. Sin embargo, el compromiso de la directiva y la colaboración de la comunidad han permitido que estas actividades se mantengan y se desarrollen de manera constante.

La misión de "Piedra Eterna" es "Crear experiencias educativas, culturales y recreativas con el fin de generar un sentido de identidad con el cerro pesqueda " . Su visión a futuro incluye convertirse en un referente cultural a nivel regional, con un impacto significativo en la educación y el desarrollo en el Cerro Pesqueda Entre sus aspiraciones se encuentra fomentar la creación de nuevos espacios culturales en los demás sectores del cerro y de Trujillo en general. "Piedra Eterna" continúa siendo un pilar de la comunidad, trabajando incansablemente por un futuro en el que la educación y la cultura local sigan vivas y sean valoradas por las generaciones venideras.

SUJETO ORGANIZADO

La Organización Social de Base “El Buen Pastor”, surgió en respuesta a la necesidad urgente de garantizar la seguridad alimentaria de las familias más vulnerables del sector II del Cerro Pesqueda. Fue fundada en 1979, esta organización comenzó como una pequeña iniciativa comunitaria para ofrecer comidas diarias a los niños y ancianos, ya que como el sector estaba en su primera década de desarrollo, los miembros de la comunidad no tenían los recursos suficientes para poder subsistir.

Con el tiempo, la organización obtiene un terreno que previamente estaba destinado para áreas verdes, pero por la necesidad urgente de alimentar a las familias más vulnerables del sector, las madres adquieren el terreno, por su propio medio, y empieza la construcción del comedor comunitario. La iniciativas para la construcción del comedor fue posible gracias al compromiso de las madres del sector, tocaron las puertas de los vecinos, pidieron apoyo a los demás miembros de la comunidad y juntos lograron recaudar los fondos suficientes para poder empezar a construir. Más adelante, pudieron formalizar su asociación gracias a la ayuda de la Municipalidad.

La OSB. "El Buen Pastor" es una aso comunitaria que toma su nombre de la p del Buen Pastor. Este nombre refleja la m la organización de proporcionar no alimentos, sino también, cuidado y susten comunidad, especialmente los niños y an más vulnerables del sector, fomentando solidaridad y el fortalecimiento de los comunitarios para mejorar la calidad de sus beneficiarios,

En la actualidad, en el comedor funcion organizaciones, la “Junta del Vaso de L Buen Pastor” conformada por Rosita Eustaquio (Presidenta), María Lezama (Vicepresidenta), Joselin Lozano (Tesorera), Bridny Ayala de la Cruz (Sec Gladys Zavala Arenas (Coordinadora) y Rodriguez de Aguilar (Almacenera). organización se encarga de distribuir l alimentos complementarios a los niños m de 6 años, así como a madres gesta lactantes. La directiva de esta junta compuesta principalmente por mujeres comunidad, quienes gestionan la recepc insumos por parte de la Municipalid preparación de los alimentos y la distrib las familias beneficiarias.

La otra organización se llama “Comedor Popular

- Buen Pastor” está conformada por Esmelda

Alayo Esparza (Presidenta), Ysabel Rodriguez

Zavala (Vicepresidenta), Laura Rodriguez

Arqueros (Secretaria), Sugey Aredo Flores (Tesorera), Carla Rivera (Coordinadora),

Milagritos Gomez Pereda (Vocal), Liliana

Suclupe Farroñan (Fiscal) e Irene Cruz Sanchez (Almacenera). Esta organización, por su parte, ofrece almuerzos diarios a un grupo más amplio de personas, incluyendo ancianos y familias en situación de vulnerabilidad. La directiva del comedor popular también está conformada por miembros de la comunidad.

A pesar de tener directivas diferentes, ambas iniciativas comparten el espacio del comedor y conforman La Organización Social de Base “El Buen Pastor”, coordinan sus actividades para evitar conflictos y optimizar recursos, así con el apoyo mutuo entre ambas organizaciones pueden contribuir de mejor manera con la comunidad. La organización en general tiene el apoyo y respaldo de la Municipalidad Provincial de de Trujillo, ya que les brinda ayuda con respecto a los alimentos y la remesa es mensual. Con este apoyo la organización puede seguir funcionando y proporcionando alimentos a los más necesitados de la comunidad.

El comedor, con sus dos programas, ha tenido un impacto significativo en la comunidad del Cerro Pesqueda. La junta de vaso de leche ha contribuido a la reducción de la desnutrición infantil, mejorando así la salud y desarrollo de los niños; mientras que el comedor popular ha proporcionado una red de seguridad alimentaria para muchas familias, asegurándoles el acceso regular a comidas con bajo costo. Además, estos espacios han fomentado una mejora en la comunidad y han contribuido al empoderamiento de las mujeres, quienes son las principales gestoras de estas iniciativas Su liderazgo en la gestión ha fortalecido el bienestar familiar.

La misión de la OSB. “El Buen Pastor” es "Proveer una alimentación nutritiva y accesible a las familias vulnerables, promoviendo la salud y el bienestar de la comunidad." Su visión es mejorara y remodelar el comedor, contar con un segundo piso, poder tener acceso a electricidad y alcantarillado, con el fin de poder brindar una atención de calidad a los vecinos. La OSB. “El Buen Pastor” aspira poder seguir contribuyendo con los miembros del sector mediante la alimentación, ayudando así al crecimiento y la fortalecimiento de la comunidad de Pesqueda.

SUJETO ORGANIZADO

Por otro lado tenemos a la Organización Social de Base “Comedor Popular - María Parado de Bellido”, nace a partir de un club de madres y su necesidad de apoyar con la alimentación a los residentes del del sector II del Cerro Pesqueda.

La organización fue fundada en 1988, el club de madres buscaba brindar comidas a un bajo costo, lo que conllevarían a un mejor desarrollo del lugar, apoyando en la economía de los vecinos de la comunidad, así mismo proyectaban a futuro con la implementación de un comedor, el cual mejoraría la salud y la economía local.

El terreno donde actualmente funciona el comedor se obtuvo en el año 1989 mediante la compra de un lote por parte de las fundadoras. En consecuencia de no haber tenido un apoyo inicial por parte de la Municipalidad Provincial de Trujillo y, también debido a que se acrecentaba la necesidad de alimentación entre los miembros de la comunidad. La construcción del comedor fue posible gracias a los esfuerzos del club de madres y al apoyo solidario de los vecinos. Juntos, organizaron actividades y eventos para recaudar fondos y materiales necesarios. Este trabajo colectivo realizado por la comunidad del Sector II consolidó la construcción del comedor, que perdura hasta hoy en día.

El comedor popular toma su nombre en honor a María Parado de Bellido, una heroína peruana de la independencia. María Parado de Bellido es recordada por su valentía y sacrificio. Su legado y lucha por la libertad refleja los valores de solidaridad y servicio, los cuales fueron implementados en el comedor, con la finalidad de ofrecer apoyo alimentario y esperanza a la comunidad.

Entre las fundadoras del comedor tenemos a doña María Esperanza Polo Cruzado, que también conformó el club de madres, este último grupo tuvo la iniciativa de crear el comedor, mostrando así su compromiso con la comunidad y su preocupación por mejorar las condiciones de vida de quienes más lo necesitan. El comedor se dirige a partir de la comitiva comunal, donde los cargos duran dos años, cumplido este plazo, se realizan elecciones por votación de los nuevos integrantes de la comitiva, los cuales no pueden ocupar los mismos cargos, si previamente pertenecían a la comitiva . Actualmente, la junta directiva del comedor está conformada Deysi Nuñez Ávila (Presidenta), María Elsa Sandoval Rodríguez (Vicepresidenta), Katia Elizabeth Flores Quiñonez (Tesorera), María Esperanza Polo Cruzado (Secretaria), Lourdes Magali

Flores Quiñonez (Coordinadora), Benita Cornelio Paredes (Vocal) y Miriam Marleny Leonardo Rodriguez (Almacenera). El comedor popular se esfuerza continuamente buscando asegurar el bienestar de las personas vulnerables que necesitan una buena alimentación, ofrecen alimentos para las cincuenta socias que conforman el grupo total de madres beneficiadas. Además de proporcionar almuerzos diarios, el comedor funciona como un punto de encuentro, a pesar del espacio reducido, hay mesas donde algunas personas pueden degustar sus alimentos

El comedor se encarga de alimentar a más de cincuenta personas por día, entre desayunos y almuerzos, donde de manera rotativa, las cocineras encargadas se turnan para evitar el agotamiento. Por otra parte, el apoyo con los víveres lo brinda la Municipalidad Provincial de Trujillo, que lo hace de manera constante y mensual, asimismo, la comitiva organiza actividades pro-fondo en las cuales puede recaudar dinero para implementar más alimentos en el menú y hacerlo más variado y nutritivo. Gracias a esta metodología, el comedor continúa funcionando y apoyando en alimentación de los miembros más vulnerables de la comunidad.

El comedor popular, se ha convertido en un pilar fundamental para la comunidad local. Su labor diaria de ofrecer almuerzos nutritivos ha sido clave para garantizar la seguridad alimentaria de los vecinos. La misión del “Comedor PopularMaría Parado de Bellido” es "Atender y apoyar a la población asegurando el acceso regular a alimentos sanos y nutritivos”. Su visión convertir como un comedor con instalaciones amplias para incluir más áreas de servicio, contar con baños adecuados, espacios para sus utensilios y un ambiente que funcione como almacén para los alimentos

Tanto el comedor “María Parado de Bellido”, como “El Buen Pastor”, funcionan por separado, ambos están ubicados en la Av. 5 de abril y se encuentran a poco distancia entre sí. Pero esto no significa que haya un apoyo mutuo entre ambos comedores, tampoco evidencia que hayan disputas internas. Sin embargo, cada uno tiene su propia lista de madres beneficiarias y propio forma de brindar la ayuda a la comunidad. Dejando de lado estas diferencias, es necesario recalcar que ambas organizaciones comparten una meta en común, la cual es velar por la alimentación de los miembros más necesitados del sector, entre los cuales están los niños y los ancianos.

Comite La hermandad

Para muchas comunidades, la espiritualidad y la fe actúan como pilares fundamentales que sostienen la vida cotidiana. La religión no solo ofrece consuelo en tiempos de adversidad, sino que también fortalece los lazos entre vecinos, creando un sentido profundo de pertenencia y unión. En lugares donde las necesidades materiales pueden ser abrumadoras, la conexión con lo divino proporciona un refugio de esperanza y una fuente constante de inspiración para enfrentar los desafíos diarios.

En base a esto, surge la ‘’Hermandad Señor de los Milagros’’, un grupo social con más de quince años de funcionamiento Se crea con la noble misión de brindar un espacio para la conexión espiritual con Dios. Fundada en 2009 gracias a dos familias, una de ellas fundadoras del Cerro Pesqueda, esta hermandad no solo busca ofrecer un espacio para la conexión espiritual con Dios, sino que también ha sido un motor crucial para el desarrollo y la cohesión social de la comunidad, marcando una profunda influencia en la historia y el tejido social del Sector II del Cerro Pesqueda, consolidando su papel como un ejemplo de cómo la fe y la acción pueden transformar positivamente una comunidad.

La estructura organizativa está compuesta por Grecia Benítez Castro, como presidenta, quien lidera con dedicación, organizando misas, actividades pro-fondo, celebraciones de festividades, entre otras actividades. Raúl Lozano Gamboa, como vicepresidente, apoya en las decisiones y actúa como relevo en caso de ausencia de la presidenta Tomasa de Andrade, como tesorera, encargada de manejar con responsabilidad los fondos de la hermandad. Las vocales María Aguilar Vásquez y Amparo Mendocilla Gutiérrez, por su parte, brindan apoyo logístico y comunicacional, asegurando la participación activa de los vecinos en las actividades

Sus actividades se realizan en un pequeño espacio compartido junto con una losa deportiva y el Puesto de Salud Pesqueda II. A diferencia de otras religiones e iglesias de la zona, la Hermandad del Señor de los Milagros aún no cuenta con su propio espacio, por el momento solo cuentan con su terreno el cual es donado por las mismas familias fundadoras. La falta de un ambiente propio no ha sido un impedimento para su funcionamiento; al contrario, ha fortalecido y motivado a los miembros de la hermandad a trabajar de manera más unida.

Las actividades realizadas por la hermandad son diversas y vitales para la fomentar la cohesión en el sector mediante misas, actividades pro-fondos y celebraciones de festividades religiosas. El Día del Señor de los Milagros es especialmente significativo, pero también se celebran el Día de la Madre, el Día del Padre y la Navidad, entre otras fechas importantes. En cada festividad, es costumbre decorar las fachadas de las casas cercanas a la capilla, creando un ambiente festivo y de comunión. Estas celebraciones van juntando a las personas del sector, con las cuales poco a poco se va creando un sentido pertenencia entre los miembros de la comunidad.

El rol de la hermandad en el Cerro Pesqueda es buscar difundir la fe en el Señor de los Milagros y fomentar una vida espiritual activa entre los vecinos Ofrecen un lugar donde los devotos pueden realizar sus actos de fe y compartir su conocimiento con los demás. Además, las festividades organizadas por ellos generan una participación activa de todas las edades, fortaleciendo los lazos comunitarios. La hermandad se ha convertido en un eje central de la vida social y espiritual de Pesqueda, proporcionando un ambiente donde los creyentes pueden compartir entre sí.

Mirando hacia el futuro, la hermandad tiene el objetivo de conseguir su propio espacio, es su mayor necesidad. Han recibido promesas vacías por parte del estado, pero no pierden la esperanza de poder cumplir su objetivo. Para ellos, nuestra intervención y el apoyo de la comunidad son una luz de esperanza para alcanzar sus metas y continuar su labor invaluable en el Cerro Pesqueda. Obtener un espacio propio permitiría a la hermandad expandir sus actividades y servicios, ofreciendo un lugar más adecuado y digno para sus eventos religiosos y comunitarios

La Hermandad del Señor de los Milagros es un ejemplo notable de cómo la fe y la espiritualidad pueden fortalecer y unir a una comunidad. A pesar de la falta de un ambiente, la dedicación y el esfuerzo colectivo de sus miembros han permitido que la hermandad siga siendo un punto focal de apoyo, consuelo y celebración en Pesqueda. Su historia de perseverancia, colaboración y devoción refleja la importancia de la religión en la vida diaria de la comunidad y el poder transformador de la fe para generar esperanza.

Colindante al espacio de la “Hermandad” tenemos una losa deportiva, a cargo del "Comité de Progreso y Desarrollo del Sector II – Cerro Pesqueda" también conocida como el “Comité de la Losa”, el cual surgió como respuesta a la creciente necesidad de promover actividades recreativas significativas dentro de la comunidad, un área históricamente marginada, donde los vecinos se enfrentaban a la falta de espacios seguros y estructurados para recreación. El comité fue fundado en 2022, y desde entonces se han esforzado para poder implementar y mejorar el espacio recreativo de la losa de fulbito y con lo poco que aún tienen se logra evidenciar esas ganas de sacar adelante a los suyos, como dicen las personas de esa zona “sudar la gota gorda por su barrio”.

El terreno donde se encuentra ubicado la losa fue obtenido por el comité con el fin de crear un espacio recreativo para niños, jóvenes y adultos. Los fondos que cubrieron los gastos de para la construcción de la losa se obtuvieron en base a actividades que realizó el comité, además contaron con el apoyo de los vecinos que siempre salían a hacer deporte y necesitaban un espacio propio donde puedan realizar sus actividades recreativas.

El comité está compuesto por Segundo Paredes, y Alexis Cruz, como presidentes, son responsables de coordinar y supervisar todas las actividades relacionadas con la losa, esto incluye la organización de eventos deportivos, la gestión del mantenimiento y mejora del espacio; asimismo tenemos a Esmeralda Cueva Vejerán como tesorera, se encarga de la administración financiera, asegurando que los fondos sean utilizados de manera efectiva para el beneficio de la organización; además hay cuatro personas que tienen la función de vocales, con el fin de garantizar que las voces de todos los miembros del comité sean escuchadas.

Las actividades del Comité se llevan a cabo en una losa deportiva justo al lado del Puesto de Salud Pesqueda II y el ambiente de la “Hermandad”. Actualmente, la organización de la losa está en disputa por el terreno perteneciente a la “Hermandad”, ya que la organización desea que ese espacio sea utilizado para áreas verdes, y se construya un parque aledaño donde sirva como punto de encuentro para la comunidad y para los niños, ya que sería de los pocas áreas verdes que hay en el Sector. A pesar de eso, ambas organizaciones buscan poder llegar a un acuerdo.

Por otra parte, el gracias al comité de la losa, con su determinación y esfuerzo han llevado a la construcción de arcos, pisos, veredas y enmallados, todo financiado a través de actividades comunitarias y fondos recaudados desde torneos de fulbito, actividades pro-fondos y eventos recreativos, cada iniciativa se realiza con el fin de alentar a los demás miembros de la comunidad a sumarse y ver la importancia de la losa en el sector. Los campeonatos de fulbito son especialmente significativos, donde los equipos del barrio compiten no solo por un premio, sino por el orgullo y la unión comunitaria

La principal misión del comité ha sido y sigue siendo proporcionar un espacio adecuado para la práctica deportiva en Pesqueda. Sin embargo, el proyecto ha enfrentado desafíos significativos debido a la oposición de algunos residentes y la falta de apoyo de la Municipalidad. Actualmente, el comité sigue operando, con su visión de un espacio con infraestructura completa, y con áreas destinadas para espectadores. El comité de la losa es un ejemplo de cómo el trabajo conjunto y la dedicación pueden ayudar a mejorar un espacio donde personas de todas las edades pueden aprovecharlo para realizar deporte y actividades de recreación.

El Sector II de Pesqueda se ha beneficiado enormemente de la coexistencia de estos comités, cada uno aportando de manera significativa al desarrollo comunitario. La dedicación y el esfuerzo de sus fundadores y miembros actuales han permitido que estas organizaciones no solo aborden necesidades inmediatas, sino que también promuevan un sentido de comunidad y colaboración.

Con misiones claras y visiones ambiciosas, cada comité continúa trabajando hacia un futuro en el que el bienestar, la cultura, la fe, la alimentación y el deporte sean accesibles para todos los habitantes del sector. El apoyo de las organizaciones ha sido clave para enfrentar desafíos complejos, logrando no solo mejoras tangibles en las condiciones de vida, sino también un fortalecimiento que une a la comunidad La unión y el compromiso de estas organizaciones no solo aseguran un presente más equitativo y solidario, sino que también sientan las bases para un futuro más prometedor, donde cada habitante pueda prosperar y contribuir activamente al bienestar colectivo.

Referencias

Buenapepa, R (2023, septiembre 16) Cerro Pesqueda: inauguran Casa Cultural Piedra Eterna.

SUJETO ORGANIZADO

CARACTERÍSTICAS CARACTERÍSTICAS

CUANTITATIVAS CUANTITATIVAS

Población en general

La población general del Sector II del Cerro Pesqueda incluye una amplia gama de edades, desde niños, jóvenes adultos hasta personas de la tercera edad, entre otros. Muchos de estos pobladores trabajan en empleos informales como la construcción y luchan por acceder a servicios básicos. La mayoría son de origen rural en busca de mejores condiciones de vida.

Este sector cuenta con un total de 24 manzanas, en las cuales existe una población de 2444 según el censo realizado por el INEI en el año 2017. En base al género, las mujeres representan el 51.6% de la población total, mientras que los hombres conforman el 48.4 %.

Edad

La población del Sector II del Cerro Pesqueda se divide en varias categorías de edad, de las cuales las más predominantes son los adultos entre los 20 y 29 años, así como los niños de entre 0 y 9 años. Por otro lado, los adultos mayores a los 60 años de edad, representan un pequeño porcentaje de la comunidad.

Población en edad para trabajar

El número de mujeres en edad para trabajar es de 922 representando el 51.4% de la comunidad, superando a los hombres que tienen un número de 872, el cual es equivalente al 48 6%

Nivel de eduación

El nivel de educación en el Sector II del Cerro Pesqueda es variado, con un predominio de educación primaria y secundaria. La representación de la educación superior es baja, lo que refleja las limitaciones económicas y de acceso a oportunidades educativas más avanzadas. Las madres y los jóvenes en particular enfrentan desafíos para continuar su educación más allá del nivel secundario, aunque hay un alto deseo de mejorar sus circunstancias a través del aprendizaje.

Maestría / Doctorado 13

Superior U. Completa

Superior U. Incompleta

Superior No U. Completa

Superior No U. Incompleta

Secundaria

Primaria

Inicial

Sin Nivel

En el sector predominan los trabajos informales debido a la falta de oportunidades formales de empleo. El ámbito de la construcción es el más significativo en el sector, reflejando la demanda de mano de obra que incluye a la mayoría de habitantes de la zona. Muchos residentes se dedican al comercio, vendiendo productos en sus viviendas. Las mujeres que no participan en la economía formal o informal se dedican a las labores domésticas como amas de casa. Los choferes, predominantemente hombres, incluyen conductores de transporte público. Los profesionales, aunque una minoría, son aquellos con educación superior o técnica que trabajan en campos específicos Por último, otros trabajos informales y diversas ocupaciones que no entran en las categorías mencionadas también forman parte del panorama laboral del sector.

Ocupación, oficio o trabajo Otros

Usuarios Vulnerables

Entre los usuarios vulnerables se encuentran niñas y adolescentes embarazadas, así como personas de la tercera edad. Las niñas y adolescentes embarazadas, que generalmente tienen entre 8 y 16 años, esto debido al poco conocimiento sobre salud sexual y cuidado, lo que conlleva a que el problema de madres jóvenes se acreciente no solo en el sector, sino en todo el Perú Estas madres de temprana edad necesitan apoyo integral que incluya educación, atención médica y soporte emocional para superar las barreras que enfrentan. Por otra parte, las personas de la tercera edad, que superan los 60 años, a menudo viven en condiciones de abandono y requieren acceso a servicios de salud y programas que promuevan su bienestar Los organizaciones sociales han desarrollado iniciativas que son cruciales para asegurar que los usuarios vulnerables no sean dejados atrás en el proceso de desarrollo comunitario

Niñas Gestantes
Mayores

Usuarios discapacitados

El Sector II del Cerro Pesqueda cuenta con un total de 239 personas que padecen alguna dificultad o o limitación permanente. En este tipo de usuario se incluye a personas con discapacidades físicas, cognitivas, auditivas y visuales. Estos individuos enfrentan barreras significativas para acceder a la educación, el empleo y otros servicios esenciales. Los organizaciones sociales del sector trabajan arduamente para promover la inclusión y la igualdad de oportunidades, implementando programas y actividades que faciliten la integración de estas personas en la vida comunitaria. Esto incluye la provisión de servicios de apoyo y la organización de actividades que fomenten su participación activa en la comunidad. La atención a las personas con discapacidad es un aspecto fundamental para asegurar una comunidad inclusiva y equitativa.

NIÑOS BENEFICIARIOS

Los niños son el futuro de cualquier comunidad, y en el Sector II de Pesqueda, representan una parte vital del esfuerzo de la Asociación Cultural "Piedra Eterna". Los niños beneficiarios son un total de 111, con edades que van desde los 4 hasta los 14 años, provienen de diversas familias que buscan ofrecerles mejores oportunidades educativas y recreativas. La mayoría de estos niños asiste a las escuelas locales y participa en programas extracurriculares organizados por la asociación, donde pueden desarrollar actividades artísticas, recreativas y educativas. Al proporcionarles un ambiente seguro y estimulante, la asociación no solo promueve su desarrollo integral, sino que también fortalece su sentido de pertenencia y comunidad desde una edad temprana.

La Asociación acoge a niños de diversas edades dentro del rango de 4 a 14 años, quienes participan activamente en programas educativos y recreativos.

Los niños participan activamente en una variedad de talleres extracurriculares, como fotografía, pintura, lectura y escritura

NIÑOS Y MADRES BENEFICIARIAS

Entre los beneficiarios del Comedor “El Buen Pastor” se encuentran 50 madres, 50 niños y un grupo de 7 adultos mayores. Los niños beneficiarios, que van desde gestantes hasta los 13 años, reciben desayunos nutritivos que aseguran su crecimiento y desarrollo saludables. Por otro lado, los adultos mayores, aquellos, también reciben alimentos esenciales que contribuyen a su bienestar general.

A través de su labor, "El Buen Pastor" no solo asegura que los miembros más vulnerables de la comunidad reciban la nutrición que necesitan, sino que también fomenta un sentido de comunidad y solidaridad entre sus participantes.

Adultos Mayores

MADRES BENEFICIARIAS

El "Comedor Popular María Parado de Bellido" despliega una labor fundamental al alimentar a más de 50 personas diariamente, entre madres y niños. Este número incluye principalmente familias que dependen del comedor para recibir desayunos y almuerzos nutritivos. La organización de las 50 socias del comedor son las principales beneficiarias junto a sus familiares, esto debido al apoyo constante que brindan al comedor. Los beneficiarios del comedor, que varían en edad y situación socioeconómica, encuentran en este espacio no solo una fuente de alimentación, sino también un punto de encuentro donde se pueden degustar los alimentos.

Madres
Niños

COMUNIDAD BENEFICIARIA

Los beneficiarios de la Hermandad son todos los miembros del Sector II del Cerro Pesqueda. Las familias son beneficiadas con un espacio donde pueden fortalecer su fe mediante la organización de oraciones, procesiones y otras prácticas espirituales que fomentan una conexión más profunda con el Señor de los Milagros y pueden tener una vida espiritual activa entre los vecinos. Esta labor no solo fortalece los lazos comunitarios, sino que también asegura un apoyo fundamental en momentos difíciles para todos los residentes del sector.

NIÑOS, JÓVENES Y ADULTOS BENEFICIARIOS

Los principales beneficiarios por parte del Comité son los niños, jóvenes y adultos del sector. Los niños y jóvenes encuentran en las actividades físicas y recreativas ofrecidas por el organización una oportunidad invaluable para desarrollar habilidades físicas y sociales, promoviendo un estilo de vida activo que contribuye a su crecimiento y bienestar general. Asimismo, los adultos del sector se benefician al tener acceso a espacios seguros y estructurados para la recreación, lo cual no solo mejora su salud física, sino que también fortalece el tejido social y la cohesión comunitaria alrededor de actividades compartidas.

Adultos

Jóvenes

Adolescentes

Niños

El sector se encuentra ubicado en el noroeste del Perú, en la región de La Libertad, ciudad de Trujillo, y dentro de esta ciudad, al noreste del centro histórico, se localiza el Territorio Municipal de Pesqueda, un sector que ha experimentado un significativo crecimiento urbano en las últimas décadas. El Cerro Pesqueda, cuyo nombre se ha convertido en sinónimo de una zona densamente poblada y en desarrollo, formando parte del paisaje periférico urbano trujillano, reflejaría tanto los desafíos como las oportunidades del proceso de urbanización que caracteriza a muchas ciudades peruanas.

Aun cuando el territorio se denomina oficialmente

Territorio Municipal de Pesqueda, la población lo llamaría por su nombre popular como “El Cerro Pesqueda", es un territorio vecinal que tuvo sus primeras viviendas entre los años de 1979 - 1980, y hoy en día cuenta con una población de 14 mil habitantes, los cuales fueron impulsados principalmente por la expansión de la ciudad y la necesidad de espacios para la construcción de viviendas.

Por otra parte, en cuanto a la accesibilidad al cerro, estaría relativamente conectado con otras partes de Trujillo, donde nos daríamos cuenta que las principales vías de accesibilidad, como la calle 5 de abril, incluirían características de asfaltados y caminos completamente de tierra, por lo cual su deterioro crearía también una dificulta en el tránsito, especialmente durante la temporada de lluvias.

Además del crecimiento y su urbanización, “El cerro Pesqueda” enfrentaría muchas otras carencias, donde las más notables serian , la falta de servicios básicos, como el agua potable o la electricidad en casi todas las zonas, o un buen servicio de saneamiento, es asi que muchas de las viviendas además de contar con una construcción informal , puesto que se realizó de manera propia, la conexión de estos servicios también irían por el mismo camino generando que a menudo resulte en un suministro intermitente y de baja calidad.

Junto a ello, una insuficiencia en infraestructura de espacios públicos, se hace presente en el lugar, obligando asi a los lugareños a desplazarse a otras partes de la ciudad para acceder o disfrutar de ellos.

Sin embargo, a pesar de su importancia y crecimiento, la razón de la mención del cerro Pesqueda, es justamente porque es el lugar donde se encuentra ubicado el sector de estudio llamado “El Sector II”, el

cual contaría con características principales como un morfología muy heterogénea debido a su topografí por la misma pendiente del cerro, esto, dificultaría la condiciones físicas para llevar acabo la intervenciones en el lugar que ayudarían a llevar un vida más confortable para los habitantes, por otr parte, si bien es cierto que la accesibilidad al cerro y es un poco difícil, para poder acceder, especialmen al sector de estudio, se contaría con una sola empres de transporte llamada “Los Girasoles Service”, la cu sería la encargada de la ruta por el sector y exteriores

Por otra parte, la población del Sector II, contaría co un total de “2444" habitantes, que en general estar conformada por los niños, jóvenes, adultos y persona de la tercera edad, donde gracias a su personalida activa y participativa, y mediante su organización e distintas comitivas es que ellos propondrían la mejoras para su sector y así mantener un ambien agradable para ellos mismos.

Ya yendo para la parte de la urbanización en es área, se puede observar que sido acelerad resultando en una mezcla de edificacione residenciales (entre 1 o 2 pisos máx.) y de las cuale no siguen un plan urbanístico formal y presenta características de autoconstrucción, así mismo pasar en cuanto a los servicios básicos del lugar como la

falta de agua potable, electricidad y saneamiento para cada vivienda, haciendo que el habitante busque por sus propios medios dichos servicios de manera informal también.

Así mismo, la pesar de la planificación urbana previa, se puede evidenciar escasez de espacios adecuados para que puedan realizar sus actividades, como una capilla, ampliaciones de los locales para los comedores, áreas de zonas verdes y de juegos.

Esto genera que también estén presenten los problemas ambientales, como la acumulación de desechos sólidos, que afectan la calidad de vida de los habitantes. Y de igual manera la seguridad que es una preocupación constante debido a la presencia de zonas vulnerables a la delincuencia, y en parte por la limitada presencia policial y la escasez de iluminación pública adecuada.

El Sector II en el Cerro Pesqueda, en Trujillo es una zona en proceso de urbanización con accesibilidad moderada, pero enfrenta significativas carencias en infraestructura y servicios básicos que requieren atención para mejorar las condiciones de vida de sus habitantes.

El Cerro Pesqueda se encuentra estratégicamente ubicado cerca de importantes arterias viales que conectan esta área con diversos distritos de Trujillo. Esta ubicación facilita el acceso a las vías tanto al centro urbano como a las zonas comerciales, lo que resulta beneficioso para los residentes y visitantes de la zona Las principales vías que rodean el cerro permiten una comunicación eficiente con el resto de la ciudad, favoreciendo el transporte y la movilidad de personas y mercancías hacia el sector.

Sin embargo, a pesar de esta notable accesibilidad y la ventaja que representa estar bien conectado, el desarrollo urbano en el Cerro Pesqueda ha sido desigual. Existen áreas dentro del cerro que aún carecen de una infraestructura básica adecuada, lo que incluye calles pavimentadas, sistemas de alcantarillado, suministro regular de agua potable y redes eléctricas confiables. Esta carencia de infraestructura básica impacta negativamente en la calidad de vida de los habitantes, quienes enfrentan desafíos diarios para acceder a servicios esenciales

LAREDO

DA

esqueda - sector II

ncisco de asis - sector II

Sofia

nsisco de asis

stico el bosque

ación el Bosque

osa I

onada - etapa V

onada - etapa II

onada - etapa I

onada - etapa II

esqueda - sector III

Rinconada

ación Aranjuez

onada - etapa I

esqueda

POR EL ESTE

LA URB. SANTA SOFIA

El cerro Pesqueda, limita con la urb. Santa Sofía, el cual presenta residencias de hasta 3 niveles, sin embargo, también presenta una topografía similar a la del sector de estudio.

POR EL OESTE

URB LA RINCONADA (URB. RINCONADA ETAPA 2 Y 5)

El cerro Pesqueda limita con la urb. La Rinconada, el cual es una zona muy diferente en cuanto a su topografía y si contaría con espacios recreativos y viviendas de hasta unos 3 pisos.

POR EL NORTE

URB. LA RINCONADA ETAPA 1

El cerro Pesqueda limita con la urb. La Rinconada, el cual también presentaría una topografía uniforme, y su urbanización es muy residencial, pero de igual manera cuenta con áreas verdes.

POR EL SUR

EL BOSQUE Y SEMIRUSTICA EL BOSQUE

El cerro Pesqueda limita con la urb. El bosque y semirústica el bosque, los cuales presentan áreas verdes, viviendas construidas con material noble, de diferentes niveles y diversos comercios

La accesibilidad, tanto vehicular y peatonal, es fundamental para el desarrollo de cualquier sector, facilitando la movilidad de sus habitantes y visitantes. Y para el Cerro Pesqueda, su accesibilidad puede verse complicado por el tráfico y los atascos que se presentan en diversas partes de la ciudad de Trujillo, especialmente durante el mediodía y gran parte de la tarde. La ruta hacia el Cerro Pesqueda pasa por varios hitos urbanos importantes, como la Universidad Nacional de Trujillo (A), el Hospital Regional Docente de Trujillo (B) y el mismo Centro Histórico (C). Además, en las cercanías del sector se encuentran el Centro Recreacional La Rinconada (D) y el Hospital Víctor Lazarte Echegaray (E), facilitando la conexión con servicios educativos, de salud y recreativos para los residentes del Cerro Pesqueda.

A

C B

D

E

Cerro Pesqueda

El Cerro Pesqueda comenzó a formarse alrededor del año 1979. Siendo una zona arqueológica, un grupo de personas migrantes de diversas ciudades de La Libertad, como Huamachuco, Otuzco y Santiago de Chuco, se asentaron y comenzaron a ocupar el espacio desde las faldas del cerro, denominándolo “Pesqueda”, el cual se fundó inicialmente un jueves 5 de abril del año 1979, bajo el mandato del Alcalde de Trujillo en ese entonces el Médico Cirujano Oswaldo Ganoza Iturri, con periodo de mandato del 31 de mayo de 1976 al 5 de abril de 1979. En honor a la fecha de fundación, la calle principal que da acceso al Cerro Pesqueda se llama Avenida 5 de Abril. La expansión llevó a la creación del Sector I de Pesqueda, conocido como “San Francisco de Asís” , establecido el 4 de octubre de 1979

En los años siguientes, llegaron más migrantes de diversas regiones del Perú, incluyendo Cajamarca, Piura y Lambayeque. Lo que dio paso posteriormente a la conformación del Sector II “Juan Pablo”, que se estableció el 1 de mayo de 1980 y al Sector III que nace en los años posteriores.

Mancha Urbana
CERRO PESQUEDA - 1989

CERRO PESQUEDA - 2024

En 1984, bajo la administración del alcalde de la Municipalidad Provincial de Trujillo Luis Santa María Calderón, se iniciaron los procesos de legalización de los terrenos y las viviendas. Ese año se emitió la resolución N° 1579-85-CPT , en la cual se aprueba el plano de demarcación de las juntas vecinales del distrito de Trujillo

El mismo año, la Dirección de Planeamiento Urbano atienden la petición de obtener un título de propiedad por parte de las familias de Pesqueda. El 5 de noviembre de 1985 se aprueba mediante la resolución de Consejo Provincial N° 485-1985-CPT, con el Plano Perimétrico y la Memoria Descriptiva de los terrenos de Pesqueda en una extensión de 395 538.50 m2.

Más adelante, el 11 de diciembre de 1986 se aprueban los planos de trazado y lotización mediante la Resolución de Consejo N° 684-1986. En la cual se especifica un área total 376 427.87 m2, incluyendo al Sector I con un área de 114 954 m2, al Sector II con 45 421.42 m2 y finalmente al Sector III 40 061.66 m2. Bajo el nombre de Asentamiento Humano Marginal "Pesqueda"

Posteriormente, mediante el Decreto Legislativo N°80396, se crea COFOPRI (Organismo de Formalización de la Propiedad Informal) el 27 de marzo de 1996. El cual brinda apoyo a Pesqueda entre en los años de 1998 y 1999 modificando los planos de trazado y lotización, finalmente entregando títulos de propiedad en el año 2000.

El clima de Cerro Pesqueda en Trujillo es árido y semiárido, con temperaturas cálidas todo el año. Las temperaturas máximas oscilan entre 15°C y 33°C, y las mínimas entre 13°C y 23°C. Las precipitaciones son escasas, siendo más bajas entre julio y septiembre y más altas en febrero y marzo. Los veranos son cortos y parcialmente nublados, mientras que los inviernos son largos y medianamente soleados, con temperaturas máximas de hasta 26°C y mínimas de 10°C

El solsticio de invierno en Pesqueda ocurre alrededor del 21 de diciembre, cuando el sol alcanza su punto más bajo en el cielo al mediodía, resultando en días más cortos y noches más largas. Este fenómeno reduce la cantidad de luz solar, afectando la temperatura y la energía solar disponible El solsticio de verano, aproximadamente el 21 de junio, trae los días más largos y las noches más cortas del año, favoreciendo las actividades al aire libre y reduciendo la dependencia de iluminación artificial.

El viento predominante en Pesqueda sopla de suroeste a noreste, con un Valor mínimo: 0 04 kmh, Valor máximo: 36.36 kmh, Valor medio: 17.35 kmh.

SOLSTICIO DE INVIERNO

SOLSTICIO DE VERANO

TEMPERATURA

La ubicación elevada del Cerro Pesqueda implica una mayor exposición a la radiación UV, lo que puede tener efectos perjudiciales para la salud, como quemaduras solares, envejecimiento prematuro de la piel y un mayor riesgo de cáncer de piel. El diagnóstico de radiación UV es una actividad operativa realizada por servicios meteorológicos a nivel mundial, y SENAMHI lo lleva a cabo en Perú, aunque de manera limitada.

NUBLADO Y PRECIPITACIÓN

La calidad del aire en Cerro Pesqueda es generalmente buena, con niveles muy bajos de contaminación. Sin embargo, es importante monitorear la presencia de partículas finas PM2.5 y PM10, que provienen de emisiones de vehículos y otras fuentes. Las PM10 pueden causar problemas pulmonares y reducir la capacidad del cuerpo para combatir infecciones, mientras que las PM2.5 pueden influir en muertes por causas cardiovasculares debido a su tamaño más pequeño y su capacidad de penetrar más profundamente en los pulmones.

La buena calidad del aire es esencial para la salud pública y la calidad de vida en las comunidades Los arquitectos deben considerar estos factores al diseñar espacios para mitigar la contaminación del aire y proporcionar un entorno saludable. La selección adecuada de materiales, la orientación eficiente de los edificios y la inclusión de ventilación natural son aspectos cruciales en el diseño arquitectónico en Cerro Pesqueda

Cerro Pesqueda en Trujillo enfrenta varios desafíos que lo convierten en una zona crítica lo largo de estos años Problemas como, ausencia o poco abastecimiento de servicios esenciales como luz, agua; y recolección de residuos sólidos hacen que sea un ambiente con baja calidad de vida. Asimismo, la inseguridad ciudadana, la alta probabilidad de derrumbes o inundaciones, y el crimen organizado le dan ese sobrenombre de “zona roja”.

Esto no es un mero prejuicio, es el resultado de acontecimientos dados como, intervenciones de sujetos de mal vivir que participan en crimen organizado, hurtos, venta de drogas; del mismo modo; noticias de derrumbes de rocas enormes, que si bien en algunos casos no causaron perjuicios en la vida de personas, sigue siendo un riesgo hasta el momento

Y si bien, esta comunidad es un grupo en potencia para proyectos donde la arquitectura participante puede tomar un rol significativo, cada uno de estos factores pueden ser trabas al momento de ejecutar las distintas intervenciones. Es por ello que este análisis permite ver y tener en cuenta cuales son las zonas mas vulnerables, ya que decir que algo es crítico, es el resultado del estudio de diversos factores.

Gracias a la participación y entrevistas con algunas personas de la comunidad de Cerro Pesqueda, se pudo identificar algunos puntos donde mayormente se suscitan actos delictivos como robos; del mismo modo, lotes en muy mal estado o simplemente vacíos que dan una mal vista hacia el entorno y terminan por volverse un punto de reunión de borrachos y drogadictos.

De hecho, en la última entrevista realizada en una visita al barrio, el teniente gobernador, Felipe Castillo declaró que efectivamente como en todo lugar, Cerro Pesqueda no está exento al crimen organizado, siendo que la zona se vuelve mas peligrosas mientras mas subes la pendiente del cerro,

Tambien aclaró que esta es propensa a inundaciones debido a las quebradas en temporadas de lluvia excesiva, tal como sucedió hace años cuando el fenómeno del niño activó la quebrada San Idelfonso, trayendo pérdidas materiales en varias familias de la zona, y si bien esto es un miedo colectivo, los pobladores solo tienen la mera solución de construir muros de contención para prevenir un desastre más.

Lastimosamente, todo lo que respecta a seguridad en estos distintos ámbitos, aún está en proceso; por lo que hasta la fecha esta zona viene a ser una zona crítica, e inclusive una con un muy alto nivel de peligro.

En el sector, desafortunadamente, los servicios de recolección de basura, no cuenta con un plan eficiente, empezando por las rutas de recolección donde solo pasa por la Av. 5 de abril y no hay una implementación de más rutas que cubran todas las áreas del sector de manera regular y eficiente, de igual manera se puede observar con respecto a la falta de instalación de contenedores en puntos estratégicos, todo ello genera que los habitantes del lugar al ver la ausencia tanto de los contenedores como de las rutas de recolección ,tengan que bajar y colocar en ciertos puntos la basura, o si no, dejarlo en lotes vacíos, ocasionando acumulación de desechos que también resulta ser dañino para las propias personas del lugar por la misma contaminación que se genera.

HORARIOS

DÍA

Ruta de recojo de residuos (5 de Abril) 05:30 am - 07:00 am

LUNES - VIERNES

Puntos de acumulación de basura

*Información proporcionada por la Sub Gerencia de Limpieza Pública - SEGAT

Por otra parte, en cuanto a la gestión de los residuos que si se puedan reutilizar En el caso de los comedores, se lleva a cabo el que los desperdicios orgánicos como las cascaras de frutas, verduras o restos de la comida, se da a una persona para la crianza de cerdos, sin embargo no solo termina ahí, en cuanto a cajas, o celdas de huevo se aprovecharía para realizar manualidades.

El Sector II del Cerro Pesqueda en Trujillo, Perú, desempeña un rol multifacético y crucial en diversos ámbitos locales y regionales. Además de su impacto cultural y social, derivado de asociaciones como la Casa Cultural Piedra Eterna, el sector cumple funciones importantes como albergar cobijo a las personas de bajos recursos A pesar de su ubicación sobre un terreno rocoso y difícil, la comunidad ha demostrado una notable capacidad de adaptación, construyendo viviendas y escalinatas empedradas que aprovechan la caliza local, lo que no solo facilita la movilidad interna sino que también sirve como atractivo y ejemplo de aprovechamiento del entorno para construir.

El sector también juega un rol esencial en la cohesión social y la seguridad, utilizando actividades culturales y educativas para reducir la delincuencia y fortalecer la identidad comunitaria. La importancia del sector se proyecta hacia el futuro con la expectativa de expandir estas iniciativas, convirtiéndose en un modelo de desarrollo sostenible, demostrando que se puede progresar en las zonas periféricas de las grandes ciudades, que con poco apoyo pero con gran voluntad se puede realizar mejoras en la comunidad

En el plano de uso de suelo correspondiente a la planificación urbana por parte de la Municipalidad Provincial de Trujillo, podemos notar que es predominante el uso residencial para la zona, en el cual se incluyen zonas destinadas para la recreación pública, así mismo una zona de educación y de salud.

Constatando con el trabajo de campo realizado podemos apreciar que este uso planificado no se respecto, o no se desarrolló acorde al plano original, esto puede ser debido a la invasión y a la construcción informal.

El plano de usos actual del sector II en Cerro Pesqueda, Trujillo, revela una predominancia entre viviendas unifamiliares y multifamiliares, lo que sugiere que la zona es predominantemente residencial, y que aún se encuentra en proceso de desarrollo hacia actividades mixtas en comercio.

El espacio destinado a educación, fue ocupado y convertido en un espacio residencial, por otra parte las áreas destinadas a recreación no tienen un desarrollo como tal en el sector, y se encuentran vacías.

USO DE SUELOS PLANIFICACIÓN URBANA

Educación

Residencial
Público Recreativo
Salud
PLANO DE USO DE SUELOS

USO DE SUELOS TRABAJO DE CAMPO

Vacíos Vivienda unifamiliar

Vivienda comercio

Otros usos

Vivienda multifamiliar

Comitivas

También se puede notar claramente, como las viviendas se vienen construyendo a lo largo de la pendiente del cerro, lo cual si bien aún no es muy denso en ciertas zonas, se logra visualizar un próximo indice de expansión. Y es justamente, esta zona con mas lotes vacíos, a diferencia de la parte mas baja donde las manzanas son mas densas, con un mayor o casi completo número de lotes ocupados.

Por otro lado, se visualizan 4 zonas las cuales son ocupadas por distintas comitivas de la zona; “Comitiva de la Losa” y la “Comitiva de la capilla”; el “Comedor María Parado de Bellido”; el “Comedor Buen Pastor”, y finalmente la “Casa Cultural Piedra Eterna”; todas se encuentran dispersas en la parte baja del Cerro Pesqueda, en Sector II

Técnicamente, este plano de usos evidencia una predominancia de viviendas unifamiliares y multifamiliares, con una tendencia hacia el desarrollo de actividades mixtas y comerciales. La baja densidad de lotes dedicados a otros usos sugiere una necesidad de mayor infraestructura comunitaria y servicios médicos, la cual también es notoria en la misma población.

ALTURA DE EDIFICACIÓN

En el análisis de la altura de las edificaciones en el Sector II de Cerro Pesqueda, se observa una predominancia de viviendas de uno y dos pisos, con un número significativamente reducido de construcciones de tres pisos a más. Esta distribución de alturas está influenciada por las condiciones topográficas y geológicas del cerro, ya que este está compuesto principalmente de piedra. Las viviendas de un solo piso son más comunes en las partes más altas del cerro debido a la mayor inclinación del terreno y la naturaleza rocosa del subsuelo. La construcción en estas áreas es más desafiante debido a la necesidad de nivelar el terreno y estabilizar los cimientos en un suelo compuesto mayoritariamente de piedra. Estas condiciones imponen limitaciones técnicas que dificultan la edificación de estructuras más altas

Además, las viviendas de uno y dos pisos son más viables en términos de seguridad estructural en terrenos empinados como lo es el cerro. Construir edificios más altos en estas áreas podría aumentar el riesgo de deslizamientos de tierra y colapsos estructurales, especialmente durante eventos climáticos extremos como el fenómeno del niño.

Piso

Piso

Piso

LEYENDA

La construcción de cimientos y estructuras en este tipo de suelo generan grandes costos y demandan demasiado esfuerzo en picar las piedras. Esto es perjudicial para muchas familias que residen en el cerro, quienes a menudo cuentan con recursos limitados.

La naturaleza rocosa del cerro Pesqueda también contribuye a las dificultades de construcción. Ya que no permite la construcción de una buena red de servicio de alcantarillado o esta es limitada. Además, la infraestructura necesaria para suministrar servicios básicos, como agua y electricidad, a edificaciones más altas demanda mayores gastos. Esto puede limitar aún más la altura de las construcciones debido a la dificultad de garantizar un suministro adecuado y constante de estos servicios en áreas de mayor elevación.

Otra característica importante es la accesibilidad y el transporte de materiales de construcción en áreas empinadas. Las vías de acceso pueden ser estrechas y difíciles de transitar, algunas solo son escalinatas para llegar a los puntos más altos, lo que complica y aumenta los costos de transporte de materiales pesados necesarios para construir edificios más altos. Este factor contribuye a la preferencia por edificaciones más bajas que requieren menos materiales y son más fáciles de construir y mantener en estas condiciones.

VACÍOS URBANOS

Observamos una trama urbana que se adapta a la topografía del cerro Pesqueda en Trujillo, específicamente en el Sector II. A medida que ascendemos por la pendiente, notamos cómo la inclinación del terreno influye en la disposición de las viviendas y las vías. Esta configuración no es arbitraria, sino que sigue un patrón debido a la complejidad de construir en las zonas más altas del cerro.

Las conexiones entre las distintas etapas de desarrollo urbano son evidentes, con caminos que facilitan el acceso a las diferentes áreas del sector, pero cabe resaltar que para llegar a partes más altas se usan escalinatas largas. Estos enlaces permiten la movilidad de los habitantes en el sector.

La combinación de llenos y vacíos en el plano urbano del cerro Pesqueda nos dan indicios de cómo fue la ocupación del cerro. Los vacíos, representados por áreas sin edificaciones, ya sea por la dificultad de construir en el lote o por la falta de recursos. Este balance entre lleno y vacío expresa la cantidad de edificaciones presentes en el sector y como se fue dando a medida que se escala por el cerro.

LEYENDA
Lleno Vacios

PLANO DE MATERIALIDAD

Este mapa proporciona una descripción de los materiales utilizados en las distintas edificaciones

A través de un análisis exhaustivo, se ha determinado que el 90 % , casi todas las estructuras están construidas con material noble, mientras que el 10 % restante utiliza adobe. Aunque estos datos son significativos, lo ideal sería que todas las edificaciones fueran construidas con una técnica adecuada debido a los notables desniveles presentes en la zona.

No obstante, se ha observado una gran deficiencia importante al visitar el sector y es que, los rellenos de tierra no son lo suficientemente seguros para garantizar la buena habitabilidad. Esta falta de seguridad en los rellenos de tierra compromete la estabilidad y durabilidad de las viviendas, poniendo en riesgo a los habitantes.

Es crucial abordar estos problemas de construcción, pues, se necesita asegurar que las edificaciones sean resistentes y seguras. La presencia de materiales nobles en la mayoría de las construcciones es un buen indicio, pero es necesario implementar mejores técnicas constructivas que se adapten a las características geográficas del sector

PERFILES URBANOS

Av. 5 de Abril

Para realizar un análisis del perfil urbano de la Avenida 5 de Abril en el Sector II de Cer Pesqueda, Trujillo, es crucial destacar su pap central en el sector ya que es la principal v que conecta a Pesqueda con el Cent Histórico, así mismo sirve como conexió interna entre los los tres sectores del cerro.

Sin embargo, a medida que nos alejamos d esta arteria principal, y vamos escalando Cerro Pesqueda, la topografía del terreno s vuelve más inclinada, limitando la altura de la viviendas a uno o dos pisos, lo reduce accesibilidad y aumenta los desafíos técnicos económicos para la construcción en esta áreas.

El desarrollo del perfil urbano se debe diferentes factores, la estabilidad del terren juega un papel crucial, construir edificios má altos podría comprometer la segurida estructural debido al riesgo de deslizamiento de tierra o colapsos. Además, los costo asociados con la nivelación del terren aumentan significativamente en terrenos inclinados, haciendo que proyectos de

Perfil 5 de Abril Lateral Derecho
Perfil 5 de Abril Lateral Derecho
Perfil 5 de Abril Lateral Derecho

ás altos sean económicamente comunidades con recursos perfil urbano es diverso y onde las viviendas construidas rmal o adaptativa son comunes. uras reflejan no sólo las cas del terreno, sino también las conómicas y la falta de una egral. Como resultado, la calidad residentes puede verse afectada por la falta de acceso adecuado básicos como agua potable, onfiable y transporte público

raestructura adecuada también los problemas ambientales y de omo la contaminación del agua y on desafíos adicionales para el tenible y resiliente de estas Por lo tanto, es esencial abordar dades en la planificación urbana entornos más inclusivos, seguros n el Sector II de Cerro Pesqueda s

Perfil 5 de Abril Lateral Izquierdo
Perfil 5 de Abril Lateral Izquierdo

El pasaje Tupac Amaru en el Sector II, presenta un perfil urbano caracterizado por viviendas de uno o dos pisos debido a la inclinación del terreno La topografía del terreno limita la altura de las edificaciones para garantizar la estabilidad y seguridad estructural, reduciendo el riesgo de deslizamientos y colapsos, que son más probables en terrenos inestables. Además, la construcción en laderas aumenta los costos, ya que requiere nivelación y cimientos adecuados.

En el perfil podemos apreciar que a medida que se sube el cerro, la circulación es beneficiada por las escalinatas de piedra En Perú, el Reglamento Nacional de Edificaciones y otras normativas específicas para la construcción establecen que las edificaciones deben adaptarse a las condiciones del terreno para minimizar riesgos. Esto incluye el uso de técnicas y materiales que mejoren la estabilidad. En el pasaje podemos observar que se utilizan las mismas piedras del cerro en las escalinatas y también para poder nivelar el terreno para posteriormente construir

El perfil urbano de esta área no solo se adapta a la pendiente del cerro, sino que también refleja las limitaciones económicas y técnicas de las comunidades locales, que optan por soluciones constructivas sencillas pero efectivas, como el uso de la misma piedra del cerro, garantizando la habitabilidad y seguridad de sus viviendas

La “Casa Cultural - Piedra Eterna” es emblemático ubicado en la parte alta del c Sector II de Pesqueda. Aunque su espacio e su importancia para la comunidad es especialmente para los niños. Este cen convertido en un pilar fundamental para e educativo y cultural de los más jóvenes.

El diseño de la “Casa Cultural” incluye una espacios que se adaptan perfectamente a lo talleres que se ofrecen. Esta adaptabilidad para el máximo aprovechamiento de las áreas y culturales, permitiendo que cada rincón del c un propósito específico y beneficie a los múltiples maneras.

La distribución de los espacios dentro d Cultural” ha sido cuidadosamente planif satisfacer las necesidades educativas y recrea niños. La biblioteca, por ejemplo, no solo materiales y libros, sino que también es un los niños pueden expandir sus conocimientos. biblioteca está equipada con recursos que aprendizaje autónomo y la investigación.

Espacio Talleres Múltiples

área de lectura es otro espacio crucial dentro de la asa Cultural”. Aquí, los niños participan en talleres de tura y escritura que no solo mejoran sus habilidades rarias, sino que también les permiten explorar su eatividad y expresión personal. Este espacio está eñado para ser cómodo y acogedor, proporcionando ambiente tranquilo y estimulante para que los niños edan concentrarse y disfrutar de sus actividades.

área común es un espacio versátil destinado al sarrollo de actividades lúdicas y sociales. Estas ividades no solo benefician a la “Casa Cultural” en sí, o que también fortalecen el sentido de comunidad tre los niños En este espacio, se llevan a cabo gos, dinámicas de grupo y eventos que fomentan la operación, la amistad y el desarrollo social. La xibilidad de esta área permite que se adapte a erentes tipos de actividades, desde reuniones ormales hasta eventos comunitarios más grandes.

nalmente, el área de talleres es donde se llevan a bo una variedad de actividades creativas y ucativas. Talleres de fotografía y pintura, por ejemplo, rmiten a los niños explorar sus talentos artísticos y sarrollar nuevas habilidades. Estos talleres están eñados para ser interactivos y prácticos, oporcionando a los niños la oportunidad de aprender ciendo y de expresarse de manera creativa. 4 3 1 2 3 4 Biblioteca Espacio de Lectura Espacio Social

LENGUAJE ARQUITECTÓNICO

La “Casa Cultural” es un claro eje adaptabilidad del edificio al contexto está ubicado. Se pudo aprovechar la previamente existente en el luga construir, como son las árboles de cuales tienen un gran significad vecinos y para el mismo Centro Cult les otorga pequeñas áreas verdes donde es difícil poder conservar plan

Por otro lado, la biblioteca cuenta co e iluminación natural gracia implementación de ventanas en la e cual permite un ambiente cómodo pa mientras desarrollen sus talleres, a área de lectura cuenta con prote gracias al techo que s momentáneamente para el cuidado del sol

El área común y el espacio donde fu demás talleres, son flexibles para e de diferentes actividades que pued darse en el lugar, lo que brinda donde los niños pueden explorar su c desarrollar sus habilidades en un ent y acogedor.

ELEVACIÓN

CORTE

SISTEMA CONSTRUCTIVO

La “Casa de Cultura Piedra Eterna” combina diferentes materiales y técnicas para crear un espacio funcional y acogedor. La cimentación del edificio está realizada en concreto simple, proporcionando una base sólida que garantiza la estabilidad y durabilidad de la estructura. El sistema estructural se basa en el uso de drywall, con muros construidos de placas de fibrocemento, un material resistente y versátil.

El techo del edificio se sostiene mediante un sistema de armadura metálica, proporcionando la fuerza y estabilidad necesarias para soportar las cargas del techo y ofreciendo una solución duradera y resistente a las condiciones climáticas.

En la zona de lectura, se ha optado por un diseño que incluye barras metálicas para sostener la cubierta, cumpliendo una función estructural.

Por último, la cubierta del área destinada a los talleres múltiples está construida con bambú. Además de ser ecológico y sostenible, proporciona un ambiente cálido y natural

Pilotes y vigas de bambú

1 Techo: Sistema en armadura metálica

2 Estructura : Sistema Drywall

4 Muros: Sistema en placas de fibrocemento

Cimientos de concreto simple

Eternit ondulado

Acero galvanizado

Placas

Acero galvanizado

de fibrocemento
Acero inoxidable
Adoquín Concreto
Concreto
Estera
Bambú
Vidrio
Aluminio Galvanizado
Gravilla

ESTADO DE CONSERVACIÓN

La Casa de la Cultura Piedra Eterna, inaugurada en septiembre de 2023, representa un importante hito para la comunidad, no solo por su aporte cultural y educativo, sino también por su buen estado de conservación. Al tratarse de una edificación nueva, sus instalaciones se encuentran en condiciones óptimas, lo cual es un factor crucial para el éxito de los programas y talleres que se llevan a cabo en sus espacios.

El mantenimiento regular y preventivo del edificio es otro aspecto fundamental que asegura su buena conservación Los miembros de la asociación cultural han implementado protocolos rigurosos para la limpieza y el cuidado de las instalaciones, garantizando que cada área se mantenga en condiciones impecables, para el uso de los espacios por parte de los niños. Asimismo, se riega continuamente las áreas verdes presentes en el ambiente, promoviendo su cuidado. Este compromiso con el mantenimiento no solo prolonga la vida útil del edificio, sino que también crea un ambiente agradable y motivador para los participantes de los talleres.

SOSTENIBILIDAD

Uno de los puntos fuertes en términos de sostenibilidad es la iluminación y ventilación natural del edificio. Gracias a las ventanas instaladas en la estructura, se garantiza una abundante entrada de luz natural, además, permiten una buena circulación del aire, asegurando un ambiente interior fresco y saludable

Sin embargo, la edificación enfrenta algunos desafíos importantes. Una de las principales debilidades es la falta de servicios higiénicos adecuados debido a la ausencia de un sistema de alcantarillado. La ubicación del edificio en un cerro rocoso dificulta la instalación de infraestructura sanitaria.

Otro aspecto a considerar es el área de lectura, que cuenta con una cubierta destinada a proteger a los niños de los rayos solares. Aunque esta estructura proporciona cierta sombra, no es lo suficientemente eficaz para garantizar una protección completa durante todas las horas del día. Como resultado, el tiempo disponible para realizar actividades al aire libre en esta área es limitado, lo cual afecta la programación de los talleres y la comodidad de los participantes.

Tanto la Losa, como la Capilla y el Centro de Salud son colindantes entre sí, y se ubican en la Av. 5 de abril, lo que beneficia significativamente a la población, ya que en casos de emergencia ya sea por accidentes o temas de salud, el traslado y evacuación de pacientes se puede dar de forma rápida por parte de la Posta Médica, la cual cuenta con espacios para brindar primeros auxilios frente a cualquier desafortunado incidente que pueda llegar a ocurrir en el sector.

Por su parte, el espacio donde funciona la Capilla, es muy significativo para los residentes de religión católica, en ese espacio, todavía en esta de planificación y diseño, se reúnen y comparten sus creencias y, además, realizan actividades de confraternidad a la cual pueden asistir toda la población.

La losa de fulbito cumple un rol muy especial en la comunidad, ya que este espacio está destinado a recreación pública. Es ocupada por personas de diferentes edades, las cuales llegan a este lugar para poder realizar actividades deportivas; además, actividades donde puedan obtener apoyo económico para continuar mejorando el espacio. PL 3 2 3 A A B

LENGUAJE ARQUITECTÓNICO

El terreno donde se encuentra la capilla presenta una pendiente y tiene una forma triangular, lo que ha representado un desafío para su desarrollo. Aunque actualmente solo es un terreno donde se reúne la gente, su ubicación y forma ofrecen una oportunidad única para un diseño arquitectónico innovador que pueda aprovechar estas características naturales para crear un espacio de reunión espiritual que sea acogedor y funcional para los vecinos

Por otro lado, la posta médica está diseñada para cumplir con los requisitos de ventilación e iluminación de manera eficiente. Gracias a sus paredes que no llegan hasta el techo y al diseño a dos aguas del mismo, se facilita tanto la ventilación como la entrada de luz natural. Esto crea un ambiente saludable para los pacientes.

En cuanto a la losa de fútbol, esta cuenta con un diseño adecuado para la práctica deportiva, pero presenta la desventaja de no tener un espacio destinado a espectadores. La implementación de bancos o áreas de descanso sería una mejora significativa, permitiendo que las familias puedan disfrutar del tiempo al aire libre mientras los niños practican deporte

CORTE A-A ELEVACIÓN
CORTE B-B

SISTEMA CONSTRUCTIVO

El sistema constructivo de la Posta de Salud se caracteriza por su robustez y durabilidad El techo está sostenido por una estructura de cercha metálica, que proporciona una solución resistente y estable para proteger el interior del edificio. Las columnas perimetrales, realizadas en concreto armado, aseguran la integridad estructural del puesto, soportando tanto las cargas verticales como las horizontales. Este sistema portante garantiza la solidez y estabilidad del edificio, ofreciendo un entorno seguro para los usuarios

Por otro lado, la pequeña capilla está construida con concreto reforzado con acero, lo que proporciona una estructura firme y duradera. El uso de acero aumenta la resistencia del material. Finalmente, la losa de fútbol está realizada en concreto y reforzada con una malla de varillas de acero. Este tipo de construcción asegura una superficie plana y resistente, capaz de soportar el uso constante y el desgaste. La combinación de concreto y acero en la losa proporciona la durabilidad necesaria para mantener la funcionalidad y la seguridad del espacio.

1 2 3

4 5

Techo: estructura con cercha metalica

Perimetro: Columnas de concreto armado

Estructura : Muro portante

Capilla:Concreto con refuerzo de alambre de fierro

Malla de varillas de Acero

Eternit hondulado

Acero inoxidable

Aluminio reforzado

MATERIALIDAD

de

Concreto

Capa de pintura

Concreto

El puesto de salud se levanta sobre una sólida estabilidad y ofrecen un sencial para alidad a los de eternit ura de barras otra parte, la ha de acero do con una nte acogedor structura de acabado en no está sin a. Sobre la bolizando la spacio dentro

Capa de pintura

La losa, posee arcos de aluminio reforzado y un piso de concreto sólido, ofrece un espacio versátil y funcional para actividades comunitarias y eventos. Su diseño combina funcionalidad con estética, proporcionando un entorno acogedor.

Barras de fierro
Ladrillo
Capa
pintura
Ladrillo
Concreto
Tierra

ESTADO DE CONSERVACIÓN

El Puesto de Salud se encuentra en buen estado general y es vital para brindar primeros auxilios y atención médica básica a la comunidad Sin embargo, en la parte que colinda con la losa deportiva, se observan desprendimientos en la pared. Este deterioro puede ser atribuido a los golpes de la pelota durante los juegos en la losa y al paso del tiempo.

La Capilla, actualmente no cuenta con una infraestructura formal. En su lugar, hay un espacio con una pequeña capilla que tiene una cruz encima, y el terreno aún es de tierra Aunque este espacio es sencillo, sirve como un punto de encuentro espiritual para los habitantes de la zona.

La Losa Deportiva se encuentra en buen estado de conservación y es muy utilizada por la comunidad para actividades recreativas y deportivas, lo que demuestra su importancia y funcionalidad. El estado general de la losa es positivo, aunque se podrían realizar mejoras adicionales para optimizar su uso y aumentar su durabilidad.

SOSTENIBILIDAD

En general, los tres ambientes tienen asolamiento y ventilación natural, lo cual permite que en el centro de salud los pacientes disfruten de un ambiente interior bien iluminado y aireado, mejorando su confort y facilitando la recuperación. En la Capilla y losa deportiva, la ventilación y luz natural aseguran un espacio agradable para los creyentes y los que realizar actividades físicas

Sin embargo, la capilla presenta un desafío significativo debido a su ubicación en un terreno triangular. Esta particularidad exige una intervención cuidadosa para aprovechar al máximo el espacio disponible.

Asoleamiento

Ventilación

La losa deportiva enfrenta dos debilidades principales. Primero, la falta de equipamiento adecuado para proteger a las viviendas circundantes de posibles daños causados por la pelota de fútbol. Segundo, la ausencia de un área destinada a los espectadores. Actualmente, hay un pequeño triángulo con un árbol frente a la losa que podría ser adecuado para implementar una zona de espectadores, mejorando la experiencia de quienes acuden a ver los partidos y actividades

El comedor se encuentra ubicado en la de Abril, la cual es considerada com principal del sector, facilitando así las r para llegar al lugar a recoger los alim parte de los beneficiarios. Esta estratégica permite un fácil acceso familias que dependen de los servicios of

La edificación acoge a dos organizac tienen el rol de proporcionar ayuda mediante la alimentación: primero, el Vaso de Leche, y en segundo lugar, el Popular “El Buen Pastor”. Ambas orga se encargan de velar por el bienest madres y niños beneficiarios, propo alimentos.

La distribución del edificio está organiza niveles. En el primer nivel, encontra espacios principales. Uno de estos funciona como cocina y es el lugar preparan los alimentos tanto para el Vaso de Leche como para el Comedo Esta cocina está equipada con los u y equipos necesarios para preparar comidas nutritivas y adecuadas para las necesidades de los beneficiarios.

ceso al segundo nivel del edificio se realiza vés de una pendiente de tierra, esto debido e el edificio no cuenta con escaleras que an ayudar a tener una mejor circulación al, lo que condiciona un poco el acceso niveles En el segundo nivel, encontramos año en estado precario que no cuenta con oro ni lavamanos, lo que limita su onalidad. Además, este nivel solo funciona o una azotea, careciendo de muros de ridad de al menos un metro de altura, lo presenta un riesgo potencial para los rios.

spacio en el segundo nivel está vacío almente, pero se está planeando vecharlo para mejorar el comedor. Hay es para convertir esta área en un espacio onal que pueda incluir, por ejemplo, un edor adicional, áreas de almacenamiento, o so espacios para talleres de cocina y dades comunitarias. Estas mejoras no solo entaría la capacidad y funcionalidad del comedor, sino que también proporcionaría un ambiente más seguro y acogedor para los beneficiarios.

LENGUAJE ARQUITECTÓ

El "Comedor El Buen Pastor" pesar de su simplicidad, ref ingeniosa al entorno natural d Su forma ortogonal se asienta piedra gruesa, que propor armoniza con la topografía ro elección de material no estructura robusta, sino que edificio en su contexto geog recursos disponibles de maner

El diseño del comedor funcionalidad. El alm estratégicamente junto a la co obtención de ingredientes, op trabajo y la eficiencia en alimentos. Esta proximidad p más ágil y efectiva de los recu todos los usuarios del comedo

El acceso al segundo nive significativos debido a las pen sustituyen una circulación ver condición limita la accesibilida para futuras mejoras en la infra

calera calidad podría haciéndolo más usuarios. Mejorar la olo aumentaría la permitiría un mejor l segundo nivel, as adicionales

sanitarias es crucial igiénicas adecuadas suarios del comedor. uir la instalación de ilación y sistemas de e proporcionaría un pio para todos. La le en el primer nivel ideración importante sonas con movilidad ad general.

El Buen Pastor itario para adaptarse entorno. Si bien su varios retos, estos cen oportunidades para futuras arquitectónicas que podrían mejorar nte la funcionalidad y comodidad del

SISTEMA CONSTRUCTIVO

El sistema constructivo del Comedor Buen Pastor se adapta a las características topográficas del cerro sobre el cual está construido. Los cimientos están compuestos de concreto simple que descansan sobre piedras gruesas, proporcionando una base sólida y estable. Esta solución es especialmente necesaria debido a la topografía irregular del terreno Los muros del comedor están construidos con ladrillo, ofreciendo una capacidad portante que asegura la estructura del edificio. Además, se han incorporado columnas que refuerzan el sistema estructural, proporcionando una mayor resistencia y estabilidad ante las cargas verticales y horizontales.

Las losas del Comedor Buen Pastor están realizadas en concreto armado, asegurando una superficie resistente y duradera. Este tipo de construcción garantiza la integridad estructural del techo y proporciona un espacio seguro para los usuarios del comedor.

1 Losas 2° Nivel: concreto armado

3

Cimientos 1° nivel: Losa de concreto simple

Sistema Estructural: aporticado y muro portante

compromiso de El Buen Pastor con la calidad y el bienestar de la comunidad que sirve.

Vidrio
Concreto
Ladrillo
Metal
Capa de pintura
Concreto
Ladrillo
Concreto
Estructura de fierro
Adobe Tierra

ESTADO DE CONSERVACIÓN

El estado de conservación del comedor "El Buen Pastor" se clasifica como intermedio. A pesar del deterioro notable debido a la antigüedad del edificio, este sigue siendo funcional y cumple con su propósito de servicio comunitario.

La edificación muestra signos evidentes de envejecimiento, con áreas que requieren atención para mantener su funcionalidad y seguridad. La falta de mantenimiento adecuado a lo largo del tiempo ha llevado a un desgaste significativo en varias partes de la estructura debido a la humedad.

El acceso al segundo nivel es uno de los aspectos más críticos. La pendiente de tierra que sirve como acceso no está en buen estado, presentando huecos debido a la falta de cuidado. Esta situación no solo dificulta el acceso sino que también representa un riesgo de seguridad para los usuario.

El baño del segundo nivel está en pésimo estado. Actualmente, solo existe el espacio físico sin ningún mobiliario sanitario, lo que impide su uso y afecta negativamente la funcionalidad del segundo nivel.

SOSTENIBILIDAD

El comedor cuenta con ventanas que permiten la entrada de luz natural, reduciendo la necesidad de iluminación artificial durante el día. Sin embargo, a pesar de la presencia de estas ventanas, la ventilación en la cocina no es suficiente. Cuando la cocina está en uso, el ambiente se vuelve sofocante, afectando el confort y la salud de quienes trabajan allí Este problema destaca la necesidad de mejorar la ventilación en el espacio.

La circulación vertical hacia el segundo nivel no es la más óptima. La rampa de tierra en mal estado, no solo dificulta el acceso, sino que también representa un riesgo de seguridad para los usuarios.

El baño del segundo nivel es otra área que requiere atención Actualmente, este espacio no cuenta con un sistema de alcantarillado adecuado, lo que impide su funcionamiento correcto y afecta las condiciones de higiene del comedor.

Asoleamiento

Ventilación

En términos de servicios, aunque el comedor "El Buen Pastor" cumple con varias necesidades básicas, aún requiere mejoras para alcanzar un nivel de sostenibilidad integral.

El Comedor Popular “María Parado de Bellido” se encuentra ubicado en la Avenida 5 de Abril, al igual que el Comedor El Buen Pastor. Estas edificaciones no están muy alejadas entre sí.

El Comedor Popular María Parado de Bellido es notablemente diferente a la del Comedor El Buen Pastor en cuanto a su estructura. Este comedor cuenta con un solo nivel principal en el cual se encuentra el ambiente de la cocina. Este espacio está equipado con los utensilios y equipos necesarios para su funcionamiento Además de la cocina, el mismo espacio es utilizado para guardar las ollas y otros utensilios de cocina, optimizando el uso del área disponible

Por otra parte, el comedor tiene acceso a una parte inferior respecto al piso principal, a la cual se llega mediante una escalera de madera. Este nivel inferior está prácticamente vacío, representando un espacio desaprovechado que podría ser utilizado para mejorar las operaciones del comedor La incorporación de este espacio en las actividades diarias podría permitir un almacenamiento más eficiente de los alimentos y utensilios, o incluso la creación de un comedor más amplio.

LENGUAJE ARQUITECTÓNICO

CORTE A-A

El "Comedor Popular María Parado de Bellido" es un edificio que, a pesar de su simplicidad, refleja una adaptación ingeniosa al entorno del Cerro Pesqueda.

El comedor cuenta con un solo nivel principal. Este espacio multifuncional, ya que en este, además de preparar la comida, hay una pequeña mesa dentro del mismo ambiente permite que algunos beneficiarios puedan comer allí, además sirve como almacén de los alimentos que son utilizados en la cocina, lo que subraya la importancia de cada metro cuadrado en la operación diaria del comedor.

La estructura del está diseñada para ser accesible y funcional, aunque actualmente enfrenta desafíos en el acceso a un área vacía que se busca integrar al comedor. Ubicado estratégicamente en la arteria principal del sector, garantiza fácil acceso a los servicios para las familias locales. La inclusión de ventanas en el diseño permite la entrada de luz natural, creando un ambiente más acogedor y saludable para los usuarios.

Eternit ondulado

Madera
Ladrillo
Ladrillo Metal Capa de pintura
Tierra
Estructura de fierro
Vidrio

ESTADO DE CONSERVACIÓN

El estado de conservación del comedor "María Parado de Bellido" se sitúa en un nivel intermedio Aunque el edificio continúa cumpliendo con su función principal, presenta varios aspectos que requieren atención urgente para asegurar su seguridad y funcionalidad a largo plazo.

Las grietas visibles en las paredes son evidencia del desgaste estructural causado por la antigüedad del edificio. Estas grietas no solo comprometen la estabilidad física del comedor, sino que también pueden empeorar si no se abordan de manera adecuada y oportuna.

Por otro lado, en la parte trasera del comedor, existe un área vacía que no está en buen estado. Esta zona, actualmente de tierra, carece de bordes perimetrales y acceso adecuado entre niveles, lo cual representa riesgos de seguridad y limitaciones en la funcionalidad del espacio.

Para mantener el comedor "María Parado de Bellido" en condiciones óptimas, es crucial implementar un programa regular de mantenimiento preventivo.

SOSTENIBILIDAD

La sostenibilidad del comedor "María Parado de Bellido" se ve influenciada por varias características clave de su diseño y funcionamiento. Las ventanas del edificio permiten una ventilación natural y una adecuada iluminación durante el día, reduciendo así la dependencia de la iluminación artificial y mejorando la calidad del aire interior

Sin embargo, una debilidad significativa es la falta de espacios de servicios higiénicos adecuados. Esta carencia no solo afecta la comodidad de las cocineras y usuarios, sino que también plantea problemas de higiene que deben abordarse urgentemente para mantener estándares sanitarios adecuados.

Asoleamiento

Ventilación

Además, no existe una circulación vertical hacia el nivel inferior como tal, sino que presenta una pequeña escalera de madera. Esta escalera, aunque funcional, puede representar riesgos de seguridad debido a su diseño y materiales. Es esencial considerar la instalación de una escalera más segura y accesible que cumpla con los estándares de seguridad actuales, mejorando así la accesibilidad y la seguridad del edificio para todos sus usuarios.

La vivienda productiva se encuentra ubicada en un pasaje que continúa pasando el Puesto Médico Pesqueda II. Esta edificación es notablemente diferente a otras viviendas en la zona debido a su función dual como hogar y panadería.

La casa está construida con material noble, lo que le proporciona una estructura sólida y duradera. En el primer nivel, se encuentran varias habitaciones, una panadería, una cocina y una sala comedor La panadería está equipada con los hornos y utensilios necesarios para su funcionamiento, mientras que la cocina y la sala comedor sirven tanto a los residentes como a las operaciones diarias de la panadería.

En el segundo nivel, la vivienda cuenta con varios dormitorios destinados a los miembros de la familia. Además, hay una parte del segundo nivel que aún no ha sido acabada, permaneciendo prácticamente vacía Este espacio desaprovechado representa una oportunidad para futuras ampliaciones o mejoras, que podrían incluir la creación de más habitaciones o la ampliación de las áreas de trabajo de la panadería.

LENGUAJE ARQUITECTÓNICO

La vivienda productiva es un ejemplo de adaptación ingeniosa al entorno y la topografía del área Este edificio ha sabido integrarse al terreno, permitiendo la construcción de dos niveles que optimizan el uso del espacio disponible y aprovechando el lugar donde está ubicada

El primer nivel de la vivienda es multifuncional, albergando habitaciones y la zona productiva que es la panadería. La distribución espacial permite que las actividades domésticas y productivas coexistan de manera eficiente. Sin embargo, la vivienda enfrenta desafíos en términos de confort térmico y luminosidad debido a la escasez de vanos en los espacios. La falta de aperturas limita la entrada de luz natural y la ventilación, afectando el bienestar de los residentes y trabajadores.

El segundo nivel, aunque a medio terminar, muestra el potencial de crecimiento de la vivienda

Actualmente, este nivel cuenta con dormitorios y un área vacía que está pendiente de acabados. La buena circulación vertical, facilitada por una escalera bien ubicada, permite un acceso cómodo y funcional entre los niveles.

muros del segundo nivel, complementado por vigas de madera que proporcionan soporte adicional y refuerzan la estructura del techo.

1 Cimientos: Zapata

3 Sistema Estructural: (Aporticado y portante)

4 Escalera : Concreto armado

2 Muros portantes

5 Techo: Estructura de madera

Calamina
Madera
Aluminio
Vidrio
Concreto
Madera
Vidrio Reja metalica
Ladrillo
Reja metalica
Madera
Capa de pintura
Capa de pintura
Ladrillo

ESTADO DE CONSERVACIÓN

El estado de conservación de la vivienda productiva se clasifica como de buena. Aunque presenta algunos signos de deterioro, el edificio cumple adecuadamente su función principal. Las áreas deterioradas no afectan significativamente su operatividad, lo que permite que continúe sirviendo a los habitantes de manera efectiva.

Una observación importante es que la construcción no está completamente terminada. En el segundo nivel, hay espacios vacíos que indican un estado inconcluso de la edificación. Esto puede estar relacionado con limitaciones económicas que han impedido la finalización de ciertas áreas. La falta de tarrajeo en el segundo no solo afecta la estética, sino que también puede representar un riesgo de desgaste adicional si no se aborda oportunamente.

A pesar de estos desafíos, la circulación vertical de la casa panadería está en buen estado y es funcional. La escalera que conecta los niveles es segura y permite un acceso adecuado entre las distintas áreas del edificio, lo cual es crucial para la operatividad diaria y la seguridad de los usuarios.

SOSTENIBILIDAD

La sostenibilidad de la vivienda se ve reflejada en varios aspectos de su diseño y funcionamiento. Todos los espacios del edificio están equipados con ventanas, lo que permite una adecuada ventilación y asoleamiento natural. Esto reduce la necesidad de iluminación artificial y mejora la calidad del aire interior.

La circulación vertical es otro aspecto positivo, ya que se encuentra en buen estado y es funcional, facilitando el acceso seguro entre los diferentes niveles del edificio. Sin embargo, en el segundo nivel, las grandes aberturas que favorecen la ventilación no están equipadas con ventanas. Esta falta de cerramientos adecuados puede representar un riesgo significativo, ya que expone el interior del edificio a las inclemencias del tiempo, a posibles intrusiones y a problemas de seguridad.

Asoleamiento

Ventilación

Otro desafío importante para la sostenibilidad del edificio son las vigas de madera utilizadas en su estructura. Con el paso del tiempo, estas vigas pueden deteriorarse y llegar a colapsar si no se les da el mantenimiento adecuado.

La vivienda unifamiliar ubicada al lado del Comedor Buen Pastor es un ejemplo interesante de cómo se puede utilizar la topografía del terreno para favorecer el diseño arquitectónico. Construida sobre una base de piedra, esta casa aprovecha las características naturales del suelo, lo que no solo proporciona una base sólida, sino que también ayuda a integrar la construcción con el entorno.

En el primer nivel, la casa se distribuye con dos dormitorios, un baño y una cocina. Esta distribución refleja un diseño orientado a la funcionalidad, asegurando que los espacios esenciales para la vida diaria

El segundo nivel de la vivienda está dedicado exclusivamente a un tendedero de ropa. El acceso a este nivel se realiza mediante una circulación vertical externa, una solución ingeniosa que permite mantener el interior de la casa libre de escaleras, optimizando así el espacio disponible en el primer nivel.

PRIMERA PLANTA

NGUAJE ARQUITECTÓNICO ELEVACIÓN

vivienda unifamiliar del Sector II del Cerro queda está construida principalmente en illo. Este tipo de construcción se desarrolla en solo nivel, dividido en dos dormitorios, un baño na cocina comedor integrada.

embargo, debido a la falta de ventanas cuadas, la entrada de luz natural es limitada, lo uede afectar la calidad del ambiente interior y minación durante el día. Esta situación én influye en la ventilación. Además, el o de la vivienda muestra signos de deterioro precariedad estructural, común en ucciones más antiguas o con mantenimiento do, lo cual representa desafíos en términos guridad y durabilidad a largo plazo.

structura muestra signos de deterioro y riedad, lo cual puede afectar su estabilidad a plazo y la seguridad de sus ocupantes. La ación directa del baño con las áreas de a y comedor indica una planificación espacial sacrifica la privacidad y la separación de nes.

CORTE A-A

Circulación vertical: Escalinata de piedra 1

Cimientos : Suelo de las rocas del cerro 2

Sistema estructural: Muro portante de ladrillo 3

Techo: Estructura de madera 4

5 Balcón - Tendedero : Losa de concreto

adecuen a la economía local.

Concreto
Madera
Madera
Piedra pequeña
Piedra grande
Vidrio
Ladrillo
Capa de pintura
Calamina Madera

ESTADO DE CONSERVACIÓN

El estado de conservación de una vivienda unifamiliar en el área se clasifica como bajo. Aunque la vivienda cumple su función básica de proporcionar refugio, presenta varios signos evidentes de deterioro que afectan tanto su apariencia como su durabilidad a largo plazo.

Externamente, la vivienda muestra un notable deterioro debido al paso del tiempo. Las paredes, que consisten únicamente en ladrillos apilados sin ningún tipo de tarrajeo, presentan erosión, lo cual es un claro indicador de desgaste por las condiciones climáticas y la falta de mantenimiento adecuado. La ausencia de tarrajeo no solo afecta, ya que los ladrillos expuestos son más susceptibles a daños y deterioro.

Este estado de conservación deficiente puede estar relacionado con limitaciones económicas, lo que ha impedido la realización de mejoras necesarias, como el tarrajeo de muros y la implementación de medidas de protección contra la erosión.

Ventilación

SOSTENIBILIDAD

La sostenibilidad de esta vivienda unifamiliar presenta varios desafíos debido a las limitaciones en su diseño y construcción. El espacio cuenta únicamente con una pequeña ventana, lo cual es insuficiente para proporcionar una ventilación y asoleamiento adecuados. Esta carencia de iluminación natural y circulación de aire afecta negativamente a las habitaciones, creando un ambiente oscuro y poco saludable.

Otro aspecto crítico es la proximidad del baño a la cocina. Esta configuración no es ideal desde el punto de vista de la sostenibilidad y la higiene. La cercanía entre estos dos espacios puede provocar problemas de contaminación cruzada y malos olores, comprometiendo la salubridad del ambiente doméstico.

Asoleamiento

El desgaste de los ladrillos es otro factor importante que afecta la sostenibilidad de la vivienda. Los ladrillos sin protección ni tarrajeo están expuestos a las inclemencias del tiempo, lo que acelera su deterioro. Este desgaste no solo compromete la estética de la vivienda, sino también su integridad estructural

7.1

PRESENTACIÓN DEL

PROYECTO

Artiaga

Este año ha sido muy importante en nuestra formación como futuros arquitectos, ya que cursando Diseño Arquitectónico IV, hemos podido comprender un concepto nuevo en arquitectura, el cual tiene gran importancia aprender y desarrollar: "La Arquitectura Participante".

Tomando como base este concepto, nos adentramos en la comunidad de Cerro Pesqueda Pese a la lejanía del sitio, esto no fue un impedimento para llegar al lugar. Estuvimos entusiasmados de poder, poco a poco, comprender su identidad, entender su esencia, aprender de su cultura y sus valores, conocer a sus miembros, entender sus necesidades y fortalezas, hasta sentirnos parte de su comunidad.

Así, centramos nuestra atención en uno de los hitos más importantes del sector: “La Casa Cultural Piedra Eterna”. Este centro cultural con arduo trabajo, busca transformar la realidad de muchos jóvenes y niños en la zona, haciéndoles ver que con la educación y la cultura se puede lograr un futuro mejor.

A través de la recopilación de necesidades, testimonios y conceptos aportados por los propios niños del centro cultural, desarrollamos la propuesta proyectual para este centro. En este proceso, evidenciamos la esencia de la arquitectura participante, pues, a través de los conceptos de los niños, logramos elaborar y proyectar sus ideas, tomando en cuenta siempre el contexto ambiental de la zona, en las etapas de diseño.

Este proyecto refleja cómo la comunidad puede ser parte fundamental en el diseño del mismo Nos sentimos honrados de haber trabajado con la comunidad y tenemos plena confianza en que el proyecto desarrollado tendrá un impacto significativo en el sector.

Nuestro deseo es que este proyecto, elaborado en conjunto, siente las bases para la creación de más iniciativas de este tipo. Invitamos a otros arquitectos a descubrir la riqueza de la arquitectura en estos lugares y a unirse en la noble tarea de desarrollar proyectos que beneficien a comunidades necesitadas. Con este trabajo, esperamos inspirar a otros a seguir el camino de la arquitectura participante, donde cada diseño es una colaboración y cada estructura, un reflejo del espíritu comunitario.

VASQUEZ ARMAS, HANDEY 21 años SANCHEZ PAREDEZ , CARLOS 23 años
ARTIAGA LOZANO, JERALD 23 años

El proyecto de mejoramiento se enfoca en varias áreas clave; la mejora del entorno inmediato busca revitalizar la zona urbana que rodea el centro cultural, creando espacios más accesibles para los niños. Esto incluye la mejora de los accesos y la incorporación de áreas donde los niños puedan jugar y socializar, así como la creación de espacios representativos y sociales, como un mural en el piso.

La diversificación de talleres se facilitará mediante la implementación de mobiliario urbano versátil, que permitirá la realización de una variedad de actividades Una de las intervenciones más importantes es la construcción de una cubierta multifuncional que no solo protegerá a los niños del viento y del sol, sino que también permitirá la realización de actividades al aire libre, creando así también un área de exposición dentro del centro cultural, proporcionando un espacio donde los niños y jóvenes puedan mostrar sus trabajos y proyectos, promoviendo el reconocimiento y la apreciación del talento local.

Para las áreas de talleres múltiples y de lectura, se elaborará una cubierta adicional que protegerá a los usuarios de los fuertes rayos del sol, especialmente durante las tardes, permitiendo un uso más cómodo y prolongado de estos espacios.

El proyecto de mejoramiento del Centro Cultural Piedra Eterna, se presenta como una intervención arquitectónica significativa que busca potenciar la infraestructura y los espacios de uso de este importante centro cultural, el cual ha sido un pilar fundamental en la comunidad de Cerro Pesqueda, proporcionando un espacio para el desarrollo cultural, educativo y social de sus habitantes. La relevancia de un centro cultural en esta zona radica en su capacidad para actuar como un punto de encuentro comunitario y ofreciendo oportunidades educativas y recreativas a los niños y jóvenes del área.

Como tipología arquitectónica, un centro cultural sirve no solo como un espacio físico, sino también como un símbolo de identidad y progreso para la comunidad. En el caso de Cerro Pesqueda, donde el acceso a infraestructuras educativas y culturales es limitado, el Centro Cultural Piedra Eterna juega un papel crucial en el desarrollo personal y colectivo de sus residentes.

La participación activa de los miembros de la comunidad en el diseño y desarrollo del proyecto garantiza que las intervenciones respondan directamente a sus necesidades y aspiraciones, logrando así un espacio que realmente les pertenezca y del cual puedan sentirse orgullosos.

EL TERRENO EL TERRENO

UBICACIÓN DEL TERRENO UBICACIÓN DEL TERRENO

El sector de intervención se encuentra en el Sector II del Cerro Pesqueda, Trujillo, Perú, específicamente en el Psje Independencia, que es la única vía por la que se puede acceder a este espacio. Esta ubicación es significativa debido a su posición en uno de los cerros más reconocidos de la ciudad.

El área donde actualmente está el terreno fue inicialmente destinada para uso recreacional, con la implementación de áreas verdes. Este espacio estaba pensado para ser uno de los escasos parques que tiene la comunidad. Sin embargo, gracias a las iniciativas de un grupo de personas interesadas en compartir la cultura local y nacional, y con el apoyo de la comunidad para mejorar la educación de los niños, se decidió darle otro uso a este espacio. Así nació el Centro Cultural Piedra Eterna. Esta transformación contribuyó con el desarrollo de los niños de la comunidad.

El entorno urbano inmediato del terreno se caracteriza por las condiciones del sector. Al estar sobre un cerro de piedra, esta característica se refleja en las viviendas aledañas, cuyos habitantes han logrado construir y prosperar sobre este terreno complejo. Las viviendas están construidas principalmente con materiales locales, adaptándose a la topografía y al tipo de suelo que hay en el lugar.

La pista des Psje independencia no cuenta con asfalto o adoquinado, y no hay medios de transporte puedan llegar hasta el lugar, por lo que el tipo de circulación es netamente peatonal. Esto limita el acceso para personas de avanzada edad o con capacidades especiales.

A pesar de estas limitaciones, el terreno cuenta con dimensiones adecuadas que son aprovechadas por el centro cultural. Además, tiene pequeñas áreas verdes propias, que se han conservado desde mucho antes que exista el centro cultural, el cual le otorgan más vida al lugar.

La presencia de vegetación contribuye a que en el terreno se genere un ambiente agradable y acogedor para los niños del sector.

ANÁLISIS DEL ENTORNO URBANO ANÁLISIS DEL ENTORNO URBANO

INMEDIATO DEL TERRENO INMEDIATO DEL TERRENO

El terreno de estudio en donde se hará la intervención arquitectónica posee un área de 146.97 m2. El terreno está dividido en cuatro zonas principales: la área cultural, el área de lectura, la biblioteca y el área de talleres múltiples. Estos espacios son actualmente ocupados por los niños que participan en los diversos talleres ofrecidos por Piedra Eterna.

La zona cultural se destaca como el espacio principal, ya que en esta aparte de desarrollarse actividades culturales, también sirve como espacio social, donde los niños pueden realizar diversas actividades recreativas y educativas. Por otro lado, la biblioteca alberga los libros, materiales y mobiliario que se utilizan en los diversos talleres que brinda la casa cultural.

El área de lectura, solo se enfoca en el desarrollo de la capacidad lectora de los niños, mientras que en el área de talleres múltiples, e potencian las demás cualidades y habilidades que poseen estos niños.

En cuanto al contexto inmediato, frente al proyecto hay una calle sin asfaltar, que es netamente de uso peatonal, ya que los vehículos no pueden acceder a esta parte de Pesqueda. Las viviendas cercanas varían en materialidad, con algunas construidas de adobe y otras de ladrillo. Por el momento, los lotes colindantes no están desarrollados, lo que evidencia los espacios abiertos alrededor del centro cultural.

Respecto al uso de suelo del contexto inmediato, la mayoría es residencial. Cabe destacar que hay dos viviendas frente al centro cultural que tiene un uso mixto de vivienda y comercio. Esta vivienda proporciona abarrotes a los vecinos e incluso a los niños que asisten a Piedra Eterna, facilitando la compra de algunos víveres sin necesidad de bajar hasta la avenida principal.

En el perfil urbano, predominan las viviendas de un piso, con algunas de dos pisos, lo que indica la complejidad de trabajar con la topografía del lugar.

Leyenda

Residencial

Vivienda Comercio

DIMENSIONES DEL TERRENO DIMENSIONES DEL TERRENO

El terreno tiene una forma completa irregular, con un perímetro de 73.10 metro área total de 146.97 metros cuadrados terreno está dividido en seis espacios disti

El espacio destinado para la biblioteca tie perímetro de 19.49 metros y un área de metros cuadrados, sirviendo como almac libros y mobiliario que se utilizan e diferentes talleres del centro cultural.

El espacio de lectura, con un perímet 20.25 metros y un área de 24.77 m cuadrados, es donde se desarrolla el ta lectura.

El espacio social, con un perímetro de metros y un área de 47.64 metros cuad es utilizado para diversas activi recreativas, culturales y sociales.

El espacio destinado a talleres múltiples un perímetro de 26.70 metros y un ár 24.66 metros cuadrados, donde se desa talleres de pintura, dibujo, escritura, entre

Además, el terreno incluye dos áreas verdes con perímetros de 10.70 metros y 8.80 metros, y áreas de 6.70 metros cuadrados y 4.75 metros cuadrados, respectivamente.

Por último, hay dos espacios vacíos que tienen perímetros de 21.31 metros y 15.58 metros, con áreas de 13.67 metros cuadrados y 7.35 metros cuadrados, respectivamente.

El terreno no cuenta con servicios de electricidad o alcantarillado, lo que representa un desafío adicional para el desarrollo y funcionamiento del centro cultural.

ACCESIBILIDAD ACCESIBILIDAD

Mediante un estudio para conocer la accesibilidad al terreno, pudimos determinar las vías de acceso disponibles. Las vías principales que conectan el sector donde está ubicado el terreno con el centro de la ciudad de Trujillo son la Avenida Federico Villareal y la Avenida Camino Real. Estas avenidas se conectan con la avenida principal del Sector II del Cerro Pesqueda, la Avenida 5 de Abril.

La Avenida Federico Villareal se conecta directamente con la Avenida 5 de Abril, mientras que la Avenida Camino Real lo hace a través de la calle Perla de los Andes.

Para llegar específicamente al terreno desde la Avenida 5 de Abril, se accede mediante pasajes. Desde la posta médica, se toma el Pasaje Independencia hasta llegar al terreno. Otra opción es, a partir de la Avenida 5 de Abril, tomar el Pasaje 9-6, que también conduce directamente al terreno.

AV. FEDERICO VILLAREAL

AV CAMINO REAL

AV. 5 DE ABRIL

PASAJE 9 - 6

PASAJE 4 - 6

CALLE PERLA DE LOS ANDES

TOPOGRAFIA TOPOGRAFIA

El terreno está a 83 msnm y se encuentra específicamente en el Cerro Pesqueda, una zona con una topografía muy accidentada. El plano topográfico del terreno muestra claramente las curvas de nivel, que indican la irregularidad del terreno debido a las grandes piedras presentes en la zona.

Esta condición topográfica hace que la nivelación sea un desafío significativo, complicando la construcción en el lugar. Sin embargo, esto no ha impedido que los habitantes del lugar sigan adelante.

La accidentada topografía también limita el acceso para personas con capacidades especiales, ya que, a medida que se sube en el sector, el acceso se realiza principalmente mediante escalinatas. En las inmediaciones del terreno, encontramos una pendiente de 1 metro, que se hace más evidente al acceder por el Pasaje Independencia. Esta pendiente refleja la topografía general del sector, donde la mayoría de los pasajes y calles presentan desniveles similares conforme se asciende por el cerro.

Distancia a Hitos Vecinales

Distancia a Hitos Vecinales

El proyecto de intervención Casa Cultural Piedra Eterna se encuentra en el Sector II del Cerro Pesqueda. Su ubicación le permite tener un acceso relativamente sencillo a varios hitos vecinales importantes que se encuentran también en el sector.

Primeramente, para llegar desde la Casa Cultural Piedra Eterna hasta la losa, la capilla y la posta, es necesario utilizar escalinatas de piedra, ya que no es posible el acceso vehicular debido a la topografía del lugar. El tiempo estimado para llegar caminando es de aproximadamente 3 minutos y 30 segundos.

Desde el Jardín de Niños N° 1691, el acceso al Centro Cultural sigue una ruta similar al de la losa, la capilla y la posta. Sin embargo, debido a la mayor distancia, el tiempo de caminata es de aproximadamente 4 minutos y 20 segundos. Esta ruta también implica el uso de las escalinatas de piedra, lo que identifica el aprovechamiento del material de la zona y su implementación en la circulación vertical.

Para llegar desde el Comedor María Parado de Bellido al Centro Cultural, se debe acceder por la avenida 5 de abril y luego caminar por una escalinata. El tiempo promedio de llegada es de 5 minutos con 20 segundos.

El acceso desde el Comedor El Buen Pastor al Centro Cultural Piedra Eterna se realiza mediante un pasaje, el tiempo promedio de caminata es de aproximadamente 3 minutos con 40 segundos.

El mirador, ubicado en la punta del cerro, tiene un acceso más desafiante. Para llegar desde el Centro Cultural hasta el mirador, se deben usar escalinatas y pequeñas trochas. Debido a la altitud y la dificultad del terreno, el tiempo estimado de caminata es de aproximadamente 25 minutos. Este hito, aunque más difícil de alcanzar, ofrece una vista panorámica impresionante del sector.

Jardín de Niños

4:20 min

Losa, Capilla y Posta

Mirador

Comedor Buen Pastor

Comedor María Parado

3:30 min 25:00 min 3:40 min 5:20 min

Distancia a Hitos Metropolitanos

Distancia a Hitos Metropolitanos

Tomando en cuenta los hitos metropolitanos más importantes para el sector y para Piedra Eterna, hemos considerado cinco puntos clave: el Mall Plaza de Trujillo, el Real Plaza de Trujillo, la Universidad Nacional de Trujillo, la Plaza de Armas de Trujillo y el Mercado Mayorista. Cada uno importante por los beneficios que pueden ofrecer.

El Mall Plaza de Trujillo es un centro comercial importante a nivel de toda la ciudad. La distancia entre el Mall Plaza y Piedra Eterna es de 7.8 km, y el tiempo de viaje entre estos dos puntos es de aproximadamente 25 minutos en taxi. Este centro comercial ofrece una variedad de servicios y tiendas que son accesibles para todos.

El Real Plaza de Trujillo, otro centro comercial de gran envergadura, se encuentra a 6.3 km de distancia de Piedra Eterna. El tiempo estimado de viaje en taxi es de 21 minutos. Este hito también es un punto de encuentro y consumo importante para los ciudadanos.

La Universidad Nacional de Trujillo es un hito fundamental para la formación universitaria a nivel nacional. Es el punto más alejado de Piedra Eterna, con una distancia de 8.4 km. El tiempo de viaje en taxi entre la universidad y el Centro Cultural Piedra Eterna es de aproximadamente 27 minutos. Si se opta por el transporte público, como la combi, el tiempo de viaje se extiende a 35 minutos.

La Plaza de Armas de Trujillo, ubicada en el corazón del centro histórico de la ciudad, es un atractivo turístico y cultural significativo. La distancia entre la Plaza de Armas y el Centro Cultural Piedra Eterna es de 5.3 km, lo que se traduce en un tiempo de viaje de 13 minutos en taxi.

Por último, el Mercado Mayorista, un importante foco comercial para una gran población de Trujillo, está a 4.9 km de distancia del Centro Cultural Piedra Eterna. El tiempo estimado de viaje en taxi es de 19 minutos. Este mercado es un punto vital para el abastecimiento de productos y alimentos para los residentes de Piedra Eterna.

TIPO DE SUELO TIPO DE SUELO

El terreno está compuesto por un suelo rocoso con una gran presencia de piedras y rocas grandes, lo cual complica la nivelación y la construcción en la zona. Esta condición hace que el proceso de edificación sea un desafío, aunque no un impedimento para la población local.

En estudios realizados se ha encontrado que el terreno está compuesto por suelos de baja capacidad portante, a menudo formados por materiales granulares no consolidados y suelos de origen aluvial en áreas más planas.

Para construir en este tipo de suelo, es crucial llevar a cabo un análisis detallado de la mecánica del suelo, incluyendo pruebas de capacidad de carga y estudios de compactación. Para mejorar las condiciones del suelo en áreas rocosas como la del terreno se incluye el uso de agentes compactantes y la implementación de cimentaciones semiprofundas o profundas para soportar adecuadamente las cargas estructurales.

ANTECEDENTES DEL TERRENO ANTECEDENTES DEL TERRENO

Durante la lotización formal del Sector II del Cerro Pesqueda por parte de la Municipalidad de Trujillo, el terreno en cuestión estaba destinado originalmente para áreas verdes. Esto se evidencia por la presencia de árboles en la zona, como el árbol de papaya, entre otros.

Debido a la necesidad de la comunidad y las peticiones de algunos vecinos, se decidió darle un uso más significativo mediante la construcción de un centro cultural. En el diseño inicial se consideraron los árboles presentes en el área para integrarlos en el proyecto, asegurándose de no perder ninguno de estos elementos naturales importantes para la comunidad

Actualmente, el centro cultural está dirigido por Héctor Valencia, quien se encarga del mantenimiento y cuidado tanto del centro como de la vegetación presente en el terreno. El uso actual del espacio es exclusivamente como centro cultural, donde se desarrollan diversos talleres para los niños de la comunidad, incluyendo talleres de lectura, dibujo, pintura, fotografía, entre otros.

ANÁLISIS AMBIENTAL DEL TERRENO ANÁLISIS AMBIENTAL DEL TERRENO

A partir del análisis de asoleamiento del terreno, se pudo identificar que el frente que recibe mayor incidencia solar es el que está orientado al noroeste. Esta orientación provoca que el frente esté expuesto a una radiación solar intensa durante gran parte del día, lo cual puede generar un ambiente incómodo para los niños que participan en los talleres del centro cultural debido al calor excesivo.

En contraste, el frente del terreno que recibe mayor protección solar y sombra está orientado al sureste. Esta orientación permite que el área permanezca más fresca y protegida de la radiación solar directa, ofreciendo un confort ambiental más adecuado para actividades al aire libre.

Respecto al análisis de vientos, se identificó que el mayor flujo de viento proviene del suroeste. Estos vientos predominantes pueden ser aprovechados para mejorar la ventilación natural del terreno, proporcionando un ambiente más fresco y agradable, asegurando un mayor confort en el terreno.

VIENTOS PREDOMINANTES DEL SUROSTE SOLSTICIO DE VERANO SOLSTICIO DE INVIERNO

ASPECTOS NORMATIVOS ASPECTOS NORMATIVOS

Según el Reglamento Nacional de Edificaciones (RNE) en su norma A.090, menciona que las edificaciones que brindan servicios culturales se consideran edificaciones para servicios comunales.

El terreno destinado para el centro cultural en el Cerro Pesqueda cumple con los parámetros normativos en varios aspectos. A pesar de tener una forma irregular y haber sido inicialmente destinado para áreas verdes, cumple con las siguientes características mencionadas en la normativa:

Ubicación Compatible: El terreno está ubicado en una zona que ha sido señalada en los planes de desarrollo urbano, lo cual es compatible con la zonificación vigente.

Iluminación y Ventilación: El centro cultural cuenta con suficientes fuentes de iluminación natural y artificial, así como con sistemas de ventilación adecuados que cumplen con los requerimientos establecidos en el RNE.

7.3

CONCEPTUALIZACIÓN CONCEPTUALIZACIÓN

PARTICIPANTE PARTICIPANTE

El Proyecto consta de tres fases fundamentales que reflejan el enfoque de la arquitectura participante.

Integración a la comunidad como primera fase, consiste en adentrarnos en la comunidad, aprender de sus valores, costumbres y necesidades, y convertirnos en parte integral de ella. Este proceso permite que nosotros como arquitectos comprendamos profundamente el contexto social y cultural en el que se desarrollará el proyecto.

La segunda fase viene hacer los talleres de conceptualización, donde se llevan a cabo talleres participativos con los beneficiarios del proyecto, principalmente los niños. Durante estos talleres, se recogen las ideas y aspiraciones de la comunidad mediante bocetos conceptuales que los participantes crean. Estos talleres fueron cruciales para captar las necesidades específicas de la niños y asegurar que sus voces sean la base del diseño arquitectónico.

Como última fase el desarrollo del proyecto, implica la recopilación y organización de los conceptos obtenidos en los talleres. Estos conceptos se transforman en una composición formal y espacial en el terreno de intervención, integrando las ideas de la comunidad en el diseño final del proyecto.

La conceptualización participante es fundamental para el proyecto, ya que los beneficiarios son los principales protagonistas y sus ideas son esenciales desde las fases preliminares. Los talleres han sido vitales para recoger las necesidades y aspiraciones de los niños, quienes han expresado sus ideas a través de dibujos y bocetos.

Por ejemplo, los niños sugirieron una cubierta para protegerse del viento en el costado lateral del área común, actualmente sin cobertura. Esta idea se tradujo en un diseño que incluye una estructura para proteger la zona común del viento, permitiendo un uso más efectivo y cómodo del espacio. Alexis propuso una cubierta para protección solar en el área común, ya que el sol de la tarde dificultaba las actividades educativas. Esta propuesta fue fundamental y se diseñó una

cubierta aparte de brindar sombra, también permite la proyección de películas, ampliando las actividades posibles en el área común. María José sugirió la necesidad de mobiliario flexible que ocupe poco espacio y sirva tanto para el área de lectura como para la común, con capacidad de almacenamiento. Ella brindó la idea de un mobiliario multifuncional y compacto que facilite el almacenamiento y se adapta a diversas actividades, optimizando el uso del espacio disponible.

Héctor Valencia propuso una cubierta lateral para el área social con múltiples usos, como ventanas que funcionen como caballetes para pintar y paredes para proyecciones y exposiciones. En la cubierta lateral se reflejará estas funciones, proporcionando un espacio dinámico y versátil para actividades educativas y culturales. María José también destacó la necesidad de mejoras en la calle, que actualmente es de tierra y causa contaminación. Se proyectaron mejoras en la calle, como la pavimentación y la creación de murales que identifican a los vecinos y niños de Piedra Eterna, mejorando la calidad del entorno y reduciendo la contaminación.

El proyecto no solo incorpora los requerimientos de los usuarios, sino que también toma en cuenta las características ambientales y contextuales del lugar. Se hizo un estudio del ambiente conforme a los conceptos de propuesta por parte de los niños y Héctor, con el fin de poder tomar y extender sus ideas, por consiguiente proyectarlas e incorporarlas de la mejor manera posible en el proyecto.

Se consideraron aspectos como la zonificación, la distribución espacial y los accesos, asegurando una integración armoniosa con el entorno, se busca por parte de la conceptualización tener una idea clara de mejora para cada zona, siempre teniendo en cuenta lo que proponen los principales beneficiarios.

La organización formal y espacial del proyecto se basa en una zonificación clara que responde a las necesidades de los miembros que forman parte del “Centro Cultural Piedra Eterna”. Se diseñaron accesos adecuados para facilitar la circulación y se distribuyeron las funciones en el terreno de manera que cada espacio propuesto se beneficie del contexto y las ideas de los beneficiarios.

El proyecto en cuestión parte de un programa comunitario que busca mejorar arquitectónicamente el entorno y la infraestructura en el que opera la Casa Cultural Piedra Eterna, teniendo siempre en cuenta la participación activa de los usuarios principales de este centro cultural. El proyecto tiene como finalidad contribuir en las mejoras necesarias para convertir la casa cultural en un espacio más funcional y acogedor.

El perfil de usuario principal del proyecto son los niños, ya que ellos representan la esencia del Centro Cultural Piedra Eterna. Este centro está destinado a compartir cultura y educación con todos los niños de la zona. A través de un análisis y un proceso de integración en la comunidad de Piedra Eterna, hemos identificado una programación arquitectónica específica para los espacios de la casa cultural, divididos en cinco grupos: la zona administrativa, la zona de lectura, la zona cultural, la zona educativa, y la zona urbana inmediata al proyecto.

Tallerde

Zonade Lectura

Cultu

Patiode

Juegos

Activida

Sociale

Proyecciónde

Películas

Tallerde Fotografía

En la zona administrativa tenemos a la biblioteca, que es el único espacio cerrado y comprende un área donde se guardan los libros, materiales e instrumentos que los niños utilizan en su aprendizaje. Además, este ambiente sirve para almacenar las mesas y mobiliario que se emplean en los diversos talleres que se desarrollan en los demás ambientes.

La zona de lectura es un espacio abierto contiguo a la biblioteca donde los niños pueden desarrollar el taller de lectura contribuyendo así a mejorar su comprensión lectora.

El área cultural es un espacio versátil donde se realizan actividades culturales, y también actividades recreativas, permitiendo a los niños jugar y desarrollar habilidades motrices. La zona de educativa acoge actividades como dibujo y pintura, entre otros. Al ser un espacio multifuncional, ayuda al desarrollo de los diversos talleres que ofrece “Piedra Eterna”.

En la zona urbana inmediata, consideramos a la calle que es de uso exclusivo para peatones, y espacios vacíos sin intervención.

Respecto a las necesidades específicas de los principales usuarios del Centro Cultural Piedra Eterna, comenzaremos con la biblioteca. Este espacio requiere un área de almacenamiento adicional para el mobiliario utilizado en los talleres, como mesas y bancos. Actualmente, la disposición de los estantes para los libros no es eficiente, lo que limita la capacidad de almacenamiento de nuevos libros que se planea adquirir. Es crucial proponer una solución para reordenar los estantes y así poder maximizar el uso del espacio disponible, garantizando que todos los materiales educativos sean fácilmente accesibles para los niños.

La zona de lectura, siendo un espacio abierto, enfrenta el problema del sol intenso durante las tardes. Esta situación impide que los niños puedan desarrollar el taller de lectura de una manera continua a lo largo del día, limitando su acceso a ciertas horas. Para solucionar este problema, es necesario proponer una cubierta que proteja a los niños del sol, permitiendo extender las horas de actividad y mejorar el confort durante los talleres.

Protección del Viento Área de Juegos Espacio de Exposición

del Entorno

El área cultural, destinada a actividades culturales y recreativas, también está expuesta a las inclemencias del tiempo. El viento fuerte que golpea en esta zona interfiere con las actividades que se desarrollan en ese espacio. Para mitigar este problema, se necesita una cubierta lateral que proteja esta área del viento, asegurando un entorno más seguro y agradable para las actividades que se realizan en este ambiente.

La zona de educativa enfrenta problemas similares, ya que también expuesta al viento. Estas condiciones climáticas adversas dificultan la realización de talleres de dibujo, pintura y otras actividades artísticas. Se requiere protección contra el viento, para mejorar este ambiente.

Finalmente, la zona urbana inmediata, al ser una calle de tierra, algunos espacios están contaminados con desechos de mascotas, esta situación representa un riesgo para la salud de los niños; también existen espacios vacíos sin intervención. Por lo que existe una necesidad de transformar estos ambientes y convertirlos en lugares que puedan ser usados por los niños del Centro Cultural y por los vecinos de la zona.

Compartir Exponer Descansar Colaborar Pintar

ZONA DE LECTURA

ZONIFICACIÓN

ZONA EDUCATIVA

ÁREA DE LECTURA

ÁREA DE TALLERES

ZONA CULTURAL

ÁREA CULTURAL

ZONA ADMINISTRATIVA

ZONA URBANA

BIBLIOTECA ACCESOS

personas

ÍNDICE DE OCUPACIÓN

personas

personas

personas

1.5 m2 / persona 1.5 m2 / persona 1.2 m2 / persona 1.5 m2 / persona

personas

personas

personas

m2 / persona

personas

El proyecto en cuestión, parte de un programa comunitario que busca mejorar arquitectónicamente el entorno y la infraestructura en el que opera la Casa Cultural Piedra Eterna, teniendo siempre en cuenta la participación activa de los usuarios principales de este centro cultural. El proyecto tiene como finalidad contribuir en las mejoras necesarias para convertir la casa cultural en un espacio más funcional y acogedor.

El perfil de usuario principal del proyecto son los niños, ya que ellos representan la esencia del Centro Cultural Piedra Eterna. Este centro está destinado a compartir cultura y educación con todos los niños de la zona. A través de un análisis y un proceso de integración en la comunidad de Piedra Eterna, hemos identificado una zonificación específica para los espacios de la casa cultural, divididos en cinco grupos: la zona destinada a la biblioteca, la zona de lectura, la zona social, la zona de talleres múltiples, y la zona urbana inmediata al proyecto.

A. TERRENO ACTUAL

a. Zona de lectura

b. Biblioteca

c. Espacio común

d. Zona de talleres

1 Muros traslúcidos

3 Mesas para lectura

4. Cubierta vertical (muro)

5. Zona comunitaria

6. Zona de taller ampliada

7. Pasaje peatonal

8. Cubierta horizontal

2 Mobiliario flexible lectura

C. PROPUESTA INTERVENCIÓ
B. ESPACIO AMPLIADO

La biblioteca, es el único espacio cerrado y comprende un área donde se guardan los libros, materiales e instrumentos que los niños utilizan en su aprendizaje. Además, este ambiente sirve para almacenar las mesas y mobiliario que se emplean en los diversos talleres que se desarrollan en los demás ambientes.

na de lectura es un espacio abierto contiguo a ioteca donde los niños pueden desarrollar el de lectura contribuyendo así a mejorar su ensión lectora.

ea común es un espacio versátil donde se an actividades festivas, como compartir con los en navidad, y también actividades recreativas, iendo a los niños jugar y desarrollar dades motrices.

ona de talleres múltiples acoge actividades dibujo y pintura, entre otros Al ser un espacio uncional, ayuda al desarrollo de los diversos s que ofrece “Piedra Eterna”.

zona urbana inmediata, consideramos a la la cual es de uso exclusivo para peatones.

ZONIFICACIÓN ZONIFICACIÓN

Los diagramas presentan la zonificación exterior e interior de la Casa Cultural Piedra Eterna. En la vista exterior, se identifican varias áreas con diferentes funciones. La biblioteca, destacada en color rojo, es una de las áreas principales, proporcionando un espacio como almacén de los libros y el mobiliario que se utiliza para el desarrollo de los diversos talleres que se dan en el centro cultural.

El área de lectura en color amarillo, proporcionando un espacio donde los niños desarrollan y mejorar su habilidad lectora. Por otro lado tenemos el área de talleres múltiples, marcada en verde, ofrece un lugar donde se desarrollan actividades para los talleres de dibujo, pintura, escritura, entre otros.

También existe una zona social en color celeste, en esta se realizan actividades recreativas y culturales, además se desarrollan eventos comunitarios. Así mismo, se han considerado áreas de ampliación en color morado y la implementación de partesoles en color naranja, que brindan protección solar.

En la zonificación interior, se observa un espacio de lectura central rodeado por varios muebles y almacenamiento, optimizando el uso del espacio disponible. Un mueble para libros en color naranja permite el acceso fácil a una variedad de materiales de lectura, mientras que un mueble de almacenamiento en púrpura ofrece soluciones de organización adicionales.

La combinación de mueble de almacenamiento y mesa de trabajo en verde está estratégicamente ubicada para maximizar la funcionalidad del espacio, facilitando tanto el almacenamiento como el trabajo creativo. El acceso principal está señalado en negro, y las rutas de circulación internas están delineadas en rojo para guiar el flujo de personas dentro del edificio, asegurando una navegación eficiente y cómoda.

Con la zonificación propuesta se busca que los espacios de la Casa Cultural Piedra Eterna se puedan aprovechar al máximo y obtener la mayor funcionalidad posible, integrar todos los aspectos existentes y las necesidades fundamentales, para así lograr una propuesta que aborde todas las cualidades que debería tener el proyecto.

El proyecto tuvo varios puntos los cuales mejorar destacando elementos arquitectónicos clave que contribuyen a su funcionalidad y estética. Se puede observar como propuesta una cubierta de mallas tensadas, la cual proporciona una solución eficiente y atractiva para proteger a los niños del sol y del viento, ya que por las tardes la incidencia del sol es demasiada.

También se consideró un mural en el piso, el cual le da mayor sentido de pertenencia al lugar, ya que con este se busca fomentar la cultura local, así mismo en este espacio se consideró la implementación de mesas que pueden ser utilizado por los niños y visitantes.

El proyecto también incluye un espacio especialmente dedicado para que los niños puedan realizar actividades de lectura. Este área, situada bajo la protección de las cubiertas, está pensada para ser un lugar seguro y atractivo para los más pequeños, fomentando el hábito de la lectura en un entorno agradable y protegido. Además, la disposición del mobiliario y la selección de materiales aseguran que el espacio sea duradero y fácil de mantener.

a integración de estos elementos se hizo en base trabajo de conceptualización con los principales eneficiarios del Centro Cultural, Se desarrollaron us ideas en el proyecto, también incluyendo las ondiciones climáticas locales, el estudio de las otencialidades y limitaciones del terreno, con el fin e proporcionar confort y funcionalidad.

a Casa Cultural Piedra Eterna, con la propuesta e mejora y la implementación de elementos adicionales, se erige como un ejemplo de quitectura participante que armoniza con el ntorno, las ideas conceptuales de los principales eneficiarios y responde a las necesidades de sus suarios.

a atención al detalle en la elección de materiales y diseño de los espacios se hizo con el fin de crear ostenibilidad y el bienestar en la comunidad. Este oyecto no solo ofrece un espacio cultural, sino ue también se convierte en un símbolo de la entidad con el Cerro Pesqueda. Mediante el oyecto se busca un impacto positivo en la omunidad local y además contribuir a la eservación de la herencia cultural en el sector.

7.6

DISTRIBUCIÓN Y CIRCULACIÓN DISTRIBUCIÓN Y CIRCULACIÓN

HORIZONTAL HORIZONTAL

El proyecto en cuestión parte de un programa comunitario que busca mejorar arquitectónicamente el entorno y la infraestructura en el que opera la Casa Cultural Piedra Eterna, teniendo siempre en cuenta la participación activa de los usuarios principales de este centro cultural. El proyecto tiene como finalidad contribuir en las mejoras necesarias para convertir la casa cultural en un espacio más funcional y acogedor.

El perfil de usuario principal del proyecto son los niños, ya que ellos representan la esencia del Centro Cultural Piedra Eterna. Este centro está destinado a compartir cultura y educación con todos los niños de la zona. A través de un análisis y un proceso de integración en la comunidad de Piedra Eterna, hemos identificado una zonificación específica para los espacios de la casa cultural, divididos en cinco grupos: la zona destinada a la biblioteca, la zona de lectura, la zona social, la zona de talleres múltiples, y la zona urbana inmediata al proyecto.

El proyecto en cuestión parte de un programa comunitario que busca mejorar arquitectónicamente el entorno y la infraestructura en el que opera la Casa Cultural Piedra Eterna, teniendo siempre en cuenta la participación activa de los usuarios principales de este centro cultural. El proyecto tiene como finalidad contribuir en las mejoras necesarias para convertir la casa cultural en un espacio más funcional y acogedor.

El perfil de usuario principal del proyecto son los niños, ya que ellos representan la esencia del Centro Cultural Piedra Eterna. Este centro está destinado a compartir cultura y educación con todos los niños de la zona. A través de un análisis y un proceso de integración en la comunidad de Piedra Eterna, hemos identificado una zonificación específica para los espacios de la casa cultural, divididos en cinco grupos: la zona destinada a la biblioteca, la zona de lectura, la zona social, la zona de talleres múltiples, y la zona urbana inmediata al proyecto.

1 2 3

4

Biblioteca Espacio comunitario

Àrea de lectura

Àrea para mesas de lectura

Espacio comùn

Àrea de talleres

Pasaje

Àrea de ampliaciòn para talleres

CIRCULACIÓN EXTERIOR HORIZONTAL

CIRCULACION INTERIOR HORIZONTAL

7.7

ESPACIALIDAD Y CIRCULACIÓN

ESPACIALIDAD Y CIRCULACIÓN

VERTICAL VERTICAL

En cuanto a la espacialidad del proyecto, la biblioteca se considera que tiene una escala normal, con una altura de 3.25 m. En contraste, la zona cultural se percibe con mayor jerarquía debido a la implementación de una cubierta de tela tensada, lo que aumenta la altura del espacio a 4 m, generando un cambio de escala. Este amplio espacio sirve como sala de exposiciones, área de proyección de películas y un lugar donde los niños pueden jugar y desarrollar sus habilidades cognitivas.

La zona cultural, situada en el centro del proyecto, actúa como un espacio de enlace, conectando todos los ambientes y sirviendo como el foco principal para diversas actividades en la Casa Cultural. Aunque el proyecto cuenta con un solo nivel y no presenta una circulación vertical convencional, sí existen desniveles. Por ejemplo, la zona de lectura tiene una diferencia de altura de 0.29 cm respecto a los demás espacios, lo que contribuye a una variada experiencia espacial. La distribución del proyecto permite que cualquier persona pueda acceder al centro cultural sin problema.

Biblioteca

SISTEMA ESTRUCTURAL

El sistema estructural de la biblioteca ha sido diseñado con un enfoque en durabilidad y eficiencia. El techo está compuesto por cerchas de aluminio inoxidable, un material ligero y resistente a la corrosión, ideal para soportar cargas y crear espacios amplios sin columnas, lo que es perfecto para una biblioteca

Los muros se construyen con un sistema de drywall utilizando perfiles de aluminio inoxidable, conocido por su rapidez en la construcción, resistencia a la humedad y al fuego, y durabilidad.

Este sistema ligero reduce la carga sobre los cimientos, mejorando la estabilidad estructural.

Los cimientos consisten en una losa de concreto simple, que proporciona una base sólida y uniforme, distribuyendo eficazmente las cargas sobre el terreno y minimizando el riesgo de asentamientos diferenciales.

El suelo de la biblioteca está compuesto por una capa de tierra sobre una capa rocosa, lo que asegura una base firme y estable. La capa rocosa distribuye las cargas uniformemente, mientras que la capa de tierra facilita la nivelación para la construcción de la losa de concreto

Estructura de techo:

Cercha de Aluminio inoxidable

Estructura de muros:

Sistema drywall en aluminio inoxidable

Cimientos:

Losa de concreto simple

Suelo: Capa de tierra - Capa rocosa

Marcos: Pizarras

Marcos: Madera

Esqueleto: Madera

Cubierta Lateral

ural que se está utilizando para de la zona cultural se conoce madera o marco entramado de de madera es adecuada para la está proponiendo, debido a su eño. Además, la madera es un que reduce la carga sobre la al de la cubierta, y es un recurso a hace una opción sostenible, y ermite que se integre fácilmente ales, como las pizarras que se n la trama, y los marcos que caballetes de dibujo. de la trama se construye zas de madera en un patrón s marcos se unen mediante cos, clavos o tornillos, mejorando ructural y evita deformaciones

La madera, cuando está dimensionada y tratada, ofrece significativa a la compresión y mente si se protege contra la agas. La madera puede ser un e en el sector, lo que reduce rte y apoya a la economía local, s madereros de la comunidad

Cubierta - Techo

Antes de la fase de diseño y planificación, se realizaron talleres con los niños que utilizarán este espacio. De estos talleres surgió una clara necesidad de crear un área protegida que ofrezca confort y seguridad durante las actividades al aire libre. La cubierta tensada responde a estas necesidades, creando un entorno agradable donde los niños pueden jugar y aprender sin preocuparse por las inclemencias del tiempo.

Se identificaron 3 zonas con una alta necesidad de protección: La zona de lectura, zona social y zona de talleres múltiples. Inicialmente se pensó realizar cubiertas separadas, pero daba la sensación de que esto separaba estos espacios.

La cubierta tensada apareció como una solución arquitectónica moderna y eficiente, la cual combinaba funcionalidad y estética. Estas estructuras se caracterizan por su diseño flexible y ligero, además de permitir la cobertura de grandes áreas sin necesidad de soportes voluminosos, generando ambientes abiertos y acogedores.

1 Capas externas de PVC

Esqueleto de Acero estructural de alta resistencia (HSS)

4 Soportes de Acero al carbono galvanizado

La estructura de la cubierta está compuesta por soportes de acero galvanizado, que ofrecen una base sólida y resistente a la corrosión, asegurando durabilidad y estabilidad a largo plazo. El esqueleto principal de la estructura está hecho de acero estructural de alta resistencia tipo HSS, diseñado para soportar las cargas y tensiones a las que estará sometida la cubierta, proporcionando seguridad y firmeza. La cubierta en sí está confeccionada con una tela de poliéster, la cual está recubierta con una capa externa de PVC en la parte superior e inferior de la tela de poliéster, lo que le confiere una excelente resistencia a las condiciones climáticas, así como durabilidad frente al desgaste.

El color para la cubierta fue elegido por su capacidad para integrarse armoniosamente con el entorno natural, mientras proporciona un ambiente visualmente relajante y fresco. Este tono de verde azulado evoca sensaciones de calma y equilibrio, lo cual es ideal para un espacio diseñado para el uso de los niños, ya que contribuye a crear un ambiente sereno y acogedor

MATERIALIDAD

Los materiales utilizados en el proyecto fueron seleccionados cuidadosamente para proporcionar la mejor eficiencia en términos de sostenibilidad y costo económico, al tiempo que contribuyen a la economía local.

En primer lugar, se propone que el pavimento de la calle sea de adoquines, un material duradero y fácil de mantener, que también proporciona una estética armónica con el entorno. En la zona urbana, que funciona como espacio social, se propone la construcción de mesas de concreto, un material resistente y de bajo mantenimiento, ideal para espacios públicos.

La biblioteca está construida con un sistema de drywall, que ofrece rapidez en la ejecución y una buena relación costo-beneficio Este sistema se complementa con una estructura metálica que sostiene el techo, el cual está elaborado con calamina, un material ligero y resistente a las inclemencias del clima. Además, se han utilizado placas de fibrocemento en algunos sectores de la biblioteca, aportando resistencia al fuego y durabilidad

Moviliario con modulos exagonales

Juego de mesas dinamicas de OSB Adoquin

Vigas
Piso exterior
Piso de lectura
Cubierta lateral
Estructurara d cubierta en mad
Ceramica
Madera
Mobiliario exterior
Concreto
Acero
Acero
Tela poliester

e era

Biblioteca Acabado

Placa de fibrocemento Capa de pintura Murales

Piso de espacio comun

Piso de zona de lectura

Grabilla

Adoquin

Piso de talleres zona ampliada

Adoquin

Moviliario exterior

Concreto

Pizarras

Tablero de triplay

3mm

Piso de pasaje

Adoquin rojizo

Capa de pintura

acrilica para tiza

En la zona de lectura, se propone un uso mixto de mobiliario, elaborado a base de madera. Los maceteros en esta área están hechos de concreto, lo que les otorga estabilidad y durabilidad. El piso de esta zona será de cerámica, un material resistente y fácil de limpiar. Tanto el mobiliario de la zona de lectura como el de la biblioteca estarán hechos de OSB, un material económico, reciclable y de gran versatilidad.

En la zona cultural, el piso también será de adoquín, aportando coherencia con el resto del proyecto. La cubierta lateral de esta área se construirá con una armadura de madera, la cual sostiene tanto los marcos como láminas de madera que serán utilizadas como pizarras, promoviendo la flexibilidad del espacio.

La zona educativa, destinada a talleres múltiples, contará con un piso de gravilla, un material natural que facilita el drenaje y la circulación. El mobiliario en esta área, al igual que en el área de extensión, será de concreto, lo que garantiza su durabilidad en espacios de alta rotación. En la extensión, se propone un piso de adoquines.

Finalmente, el techo de las áreas exteriores contará con una cubierta elaborada en lona, un sistema de tela de poliéster que ofrece protección contra el sol y la lluvia, y es fácil de desmontar y reutilizar. La armadura que sostiene toda la cubierta del techo es de acero.

7.10 TECNOLOGÍAS

SUSTENTABLES

En el proyecto se han propuesto diversas estrategias para maximizar la ventilación e iluminación natural, fundamentales para garantizar la eficiencia energética en todos los espacios del edificio. La biblioteca, por ejemplo, ahora cuenta con un ventanal alto estratégicamente ubicado, que permite una ventilación cruzada y una iluminación natural óptima durante gran parte del día. Este ventanal reemplaza las tres ventanas previamente planificadas, logrando así una mayor integración con el entorno exterior y reduciendo la necesidad de iluminación y ventilación artificiales.

En la zona de lectura y el área cultural, se ha implementado una cubierta de madera tramada que no solo protege lateralmente estos espacios, sino que también crea un ambiente dinámico donde la luz y el aire circulan de manera natural.

La trama de madera está cuidadosamente intercalada con planos traslúcidos que permiten el paso de luz natural en diferentes momentos del día, ajustándose a la posición del sol y al ángulo de incidencia de la luz.

Estos planos no solo iluminan, sino que también actúan como puntos de ventilación, facilitando la circulación de aire fresco y manteniendo una temperatura agradable.

Además, la cubierta incluye tableros que funcionan como pizarras, agregando un elemento funcional y estético a los espacios Esta solución arquitectónica se extiende a todas las áreas parcialmente abiertas, como la zona de lectura y la sala cultural, donde la ventilación natural fluye libremente y la luz del día penetra sin obstáculos, creando un entorno acogedor y energéticamente eficiente. La combinación de estos elementos no solo realza la calidad espacial, sino que también promueve un ambiente saludable y sostenible para los usuarios. Este enfoque integral de diseño refuerza el compromiso con la sostenibilidad y el bienestar, garantizando un espacio que es tanto funcional como respetuoso con el medio ambiente. En conjunto, estas estrategias no solo optimizan el rendimiento energético del edificio, sino que también mejoran la experiencia de los ocupantes, proporcionando un espacio que responde a las necesidades climáticas y de confort a lo largo del año.

En cuanto a la implementación de tecnologías sustentables en el proyecto, se ha propuesto la instalación de un panel solar sobre el techo de la biblioteca. Este panel solar está diseñado para captar y convertir la energía del sol, una fuente renovable y abundante, en electricidad que alimentará las luces de emergencia ubicadas en este espacio. Las luces de emergencia son esenciales para garantizar la seguridad y el bienestar de los ocupantes en caso de desastres naturales o cortes de suministro eléctrico. Al proporcionar una iluminación constante y confiable durante situaciones críticas, este sistema asegura que la biblioteca se mantenga operativa y segura en todo momento, incluso cuando otras fuentes de energía fallan

Además, la capacidad del panel solar para generar energía de manera autónoma representa un avance significativo en la reducción de la dependencia del edificio de la red eléctrica convencional. Este enfoque no solo contribuye a la disminución de los costos operativos a largo plazo, sino que también juega un papel clave en la minimización de la huella de carbono del proyecto. Al reducir la necesidad de energía proveniente de fuentes no renovables, el edificio se alinea con las mejores prácticas de sostenibilidad y eficiencia energética, demostrando un compromiso tangible con la protección del medio ambiente.

Energia solar
2 Panel fotovoltaico
3 Conductores
4 Uso Domestico

El aprovechamiento de una fuente de energía limpia como la solar no solo responde a las necesidades energéticas actuales, sino que también anticipa los desafíos futuros relacionados con la sostenibilidad y el cambio climático. Al integrar esta tecnología de vanguardia con las estrategias pasivas de ventilación e iluminación natural previamente implementadas, el proyecto se posiciona como un ejemplo de construcción sostenible. La combinación de estos enfoques demuestra que es posible diseñar y construir espacios que sean tanto funcionales como respetuosos con el entorno, promoviendo un equilibrio entre confort, eficiencia y responsabilidad ambiental. Este enfoque integral y consciente del diseño convierte al edificio en un modelo a seguir, mostrando que la arquitectura moderna puede y debe ser parte de la solución a los retos globales de sostenibilidad.

En este contexto, el uso de paneles solares no solo resalta la capacidad del edificio para adaptarse a las exigencias energéticas contemporáneas, sino que también subraya su potencial para influir positivamente en la comunidad. Al establecer un estándar de construcción ecológica y resiliente, el proyecto invita a otras iniciativas a seguir su ejemplo, contribuyendo colectivamente a un futuro más sostenible y armonioso con el planeta.

AHORRO Y REUTILIZACIÓN

DE AGUA

La reutilización del agua es un componente crucial en la arquitectura sostenible, ya que permite aprovechar este valioso recurso de múltiples maneras, contribuyendo significativamente a la preservación del medio ambiente. En el proyecto del Centro Cultural Piedra Eterna, se ha implementado un sistema de recolección y almacenamiento de agua de lluvia, con el objetivo de reutilizar este recurso hídrico como agua no potable para diversas actividades, como el riego de las áreas verdes y la limpieza de las zonas exteriores.

El diseño contempla que el techo de la biblioteca funcione como un recolector de agua de lluvia. A través de una red de canales y tuberías, el agua se conduce hacia un depósito especialmente diseñado para su almacenamiento. Una vez almacenada, esta agua podrá ser utilizada posteriormente para el riego eficiente de las áreas verdes del centro cultural, así como para la limpieza de las zonas exteriores, como la zona cultural. Así mismo podrá ser utilizado para limpiar la calle en caso sea necesario.

Esta práctica no solo mejora la sostenibilidad del proyecto, sino que también contribuye positivamente al entorno, ya que reduce la dependencia de fuentes de agua potable para usos no esenciales. Al estar ubicado en Cerro Pesqueda, donde las condiciones para mantener viva la vegetación son desafiantes, la implementación de un sistema de reutilización de agua se vuelve aún más esencial. Este sistema permite optimizar el uso del agua, un recurso vital en esta región, asegurando que las áreas verdes se mantengan saludables y vibrantes, y al mismo tiempo, minimiza el impacto ambiental del proyecto.

En un contexto como el de Cerro Pesqueda, donde el acceso al agua puede ser limitado, implementar estrategias de reutilización como esta además de ser una necesidad, se convierte en un acto de responsabilidad social y ambiental. Al integrar estas soluciones, el proyecto demuestra cómo la arquitectura puede ser una herramienta poderosa para fomentar una relación más equilibrada y respetuosa con la naturaleza, asegurando que los recursos naturales sean preservados para las futuras generaciones.

1 Lluvia
Captación

GESTIÓN DE DESASTRES

En el proyecto “Centro Cultural Piedra Eterna”, se ha considerado cuidadosamente la señalización de zonas seguras y rutas de evacuación para brindar resguardo y seguridad ante desastres naturales o situaciones de emergencia. El sistema de evacuación ha sido diseñado para garantizar la seguridad de los niños, así como de los visitantes que se encuentren en la casa cultural durante situaciones críticas como sismos o inundaciones

La configuración de los accesos también actúan como puntos de salida en caso de emergencias que puedan poner en riesgo la salud y seguridad de las personas. Las zonas de evacuación están estratégicamente ubicadas, con el objetivo de mejorar la rapidez y eficiencia de la evacuación.

Dado que el proyecto se desarrolla en un solo nivel, esto facilita significativamente la evacuación en situaciones de emergencia. Además, se han designado puntos específicos para la ubicación de extintores y botiquines, permitiendo así atender de manera rápida y efectiva situaciones como incendios o la prestación de primeros auxilios a personas que puedan verse afectadas.

LUCES DE EMERGENCIA

BOTIQUÍN

EXTINTOR

ZONA DE MENOR RIESGO

Las señales de seguridad son fundamentales para garantizar una respuesta rápida y organizada durante situaciones de emergencia. Estas señales proporcionan orientación clara y precisa sobre cómo actuar, indicando la ubicación de equipos esenciales como extintores y botiquines, así como las rutas de evacuación y zonas seguras. Su presencia y visibilidad no solo ayudan a prevenir accidentes, sino que también minimizan el riesgo de pánico y confusión, protegiendo la vida y la integridad de las personas en cualquier entorno.

ZONA SEGURA SALIDA DE EMERGENCIA PUNTO DE REUNIÓN

7.13

GESTIÓN DE RESIDUOS

La gestión de residuos en el proyecto "Centro Cultural Piedra Eterna" ha sido desarrollada con el propósito de manejar de manera eficiente los desechos orgánicos e inorgánicos, contribuyendo así a la sostenibilidad ambiental.

El sistema de gestión de residuos se basa en la implementación de contenedores de basura elaborados con materiales reciclados Estos contenedores están diseñados en cinco colores específicos, cada uno destinado a un tipo de residuo: papel, plástico, desechos en general, desechos orgánicos y vidrio. Esta diferenciación permite una correcta segregación en la fuente, facilitando el reciclaje y la disposición final adecuada.

Los contenedores están distribuidos estratégicamente por todo el proyecto, considerando las áreas clave como la biblioteca, la zona cultural, la zona educativa y la zona urbana inmediata. Esta disposición estratégica asegura que cada ambiente cuente con su propio punto de acopio, promoviendo una gestión efectiva de los residuos generados en cada área.

Los colores de los basureros son cruciales para una gestión de residuos eficiente y sostenible. Cada color está destinado a un tipo específico de residuo, lo que facilita la separación en origen y promueve el reciclaje.

DESECHOS ORGÁNICOS

DESECHOS GENERALES

PAPEL PLÁSTICO
VIDRIO

INFRAESTRUCTURA

Maceteros forma triangular

Maceteros forma rectangular irregular

En el proyecto de la Casa la vegetación se ha dis para integrar naturaleza un ambiente acogedor y a Alrededor de la bibliot maceteros con formas g solo añade un elemento e optimiza el uso del e triangulares, que se encu de la entrada de la bibliote pencas de sábila. La sá , p propiedades medicinales y su fácil cuidado, te aporta

En la zona superior, sobre el área de la biblioteca, se encuentran maceteros de forma rectangular e irregular, donde se ha optado por una combinación de pencas de sábila y suculentas. Estas plantas, además de ser visualmente atractivas, son ideales para climas cálidos y requieren un mantenimiento mínimo, lo que las hace perfectas para este tipo de proyectos. La combinación de formas y texturas entre las sabanas.

Planta de cansabocas

Pencas de sabila + suculentas
Pencas de sabilas

Planta de guaba Planta de maguey

Planta de cansabocas

Geranios Pencas de sabila

Arboles Frutales

Mandarinos

Avanzando hacia la zona de talleres, se observa una integración de plantas más grandes y árboles frutales que aportan sombra y un ambiente natural al área. Entre estas plantas, destacan la planta de gu.

En la intersección entre la biblioteca y la zona de talleres, se encuentra un área dedicada a la lectura al aire libre, enriquecida por la presencia de plantas de cansabocas. Este

En la zona de talleres, la vegetación se expande con la presencia de geranios, que aportan un toque de color vibrante con sus flores rojas, contrastando con el verde predominante de las otras plantas Los geranios son conocidos por su resistencia y facilidad de cuidado, lo que los convierte en una excelente opción para un espacio de uso.

Esta integración de vegetación no solo embellece el lugar, sino que también ofrece múltiples beneficios ambientales, como la mejora de la calidad del aire, la creación de microclimas agradables y el fomento de la biodiversidad local. Además, las plantas frutales y medicinales presentes en el proyecto refuerzan la conexión con la cultura y las tradiciones locales, ofreciendo oportunidades para la educación comunitaria y la participación activa en el cuidado del medio ambiente.

tanto utilidad como un valor estético añadido.

Mueble para libros Muebles de almacenamiento

Mueble de libros

gen parte de "L", que ha e un nuevo pacidad de nsión se ha o un mueble a el uso del en "L", ya spacio para de mayor e este nuevo n construido Board), se nsiones y la nal, manteniendo la al del conjunto. eble ahora ofrece una acenamiento, lo que cción más amplia de spacio ni el acceso a a solución no solo tica de más espacio, e el entorno con un e manera efectiva y p p ible.

Muebles de almacena

El conjunto de muebles p es un sistema altament diseñado para optimizar combinar almacenamien trabajo en un mismo modular está compuesto que se pueden adaptar a permitiendo la creación d eficiente.

El primer elemento almacenamiento, una ofrece múltiples esp almacenar diferentes t modular permite que elementos del conju personalización seg específicas del usuario

El segundo compon almacenamiento con trabajo, que no solo guardar objetos, sino utilizar como superficie doble funcionalidad lo ideal para espacios centímetro cuenta y e uso de los muebles dis

Mueble de almacenamiento Mueble de almacenamientomesa de trabajo

3 Mueble flotante de almacenamiento

4 Cajones multiusos

table para quienes buscan alidad de su espacio, miento y áreas de trabajo y estéticamente agradable. atilidad de los elementos personalice su entorno de ades, creando un espacio eficiente y adaptable a

Muebles de lectura

El mobiliario presentado consiste en un conjunto de módulos hexagonales de madera diseñados a diferentes alturas, pensado específicamente para crear una zona de lectura para niños. Este diseño modular permite que los elementos se integren de manera orgánica en el espacio, formando un área lúdica y acogedora que invita a los niños a sentarse y disfrutar de la lectura. Cada módulo hexagonal está construido con superficies de madera y varía en altura, lo que crea una dinámica visual atractiva y permite a los niños interactuar con el entorno de diferentes maneras. Los módulos pueden ser utilizados tanto para sentarse como para acostarse, lo que hace que la experiencia de lectura sea más cómoda y adaptable a las preferencias individuales de cada niño.

Además, la disposición de los módulos en diferentes niveles fomenta la exploración y el juego, convirtiendo la zona de lectura en un espacio no solo educativo, sino también divertido. Este tipo de mobiliario modular es ideal para bibliotecas, escuelas o espacios públicos dedicados a la infancia, donde se busca promover la lectura en un ambiente amigable y estimulante.

Mueble integrado para zona de lectura

Este mobiliario integrado fue diseñado a partir de una mesa y una silla como módulos base, teniendo en cuenta la antropometría de los niños para asegurar que sea cómodo y ergonómico. Al considerar las dimensiones y proporciones adecuadas para los pequeños, se ha creado un sistema que no solo cumple con los requisitos de funcionalidad, sino que también asegura una postura correcta y un uso seguro.

El uso de material OSB, complementado con toques de color, le da al mobiliario un carácter robusto y visualmente atractivo, perfecto para captar la atención de los niños y fomentar su participación en las actividades. Los módulos base de mesa y silla se combinan para formar diferentes configuraciones, permitiendo la creación de espacios dedicados a la lectura, el trabajo en grupo o incluso actividades recreativas.

La consideración de la antropometría infantil en el diseño asegura que cada elemento esté a la altura adecuada para los niños, facilitando su acceso y uso. Esto significa que las mesas están a una altura que permite una postura cómoda mientras leen o escriben, y las sillas ofrecen el soporte necesario para que los niños puedan sentarse correctamente sin forzar su postura.

Además, la versatilidad del sistema permite que las piezas se reconfiguren según las necesidades del momento, ya sea para crear un área de lectura tranquila o un espacio más dinámico para actividades grupales. Este enfoque modular, combinado con un diseño que respeta la escala infantil, hace que el mobiliario no solo sea práctico y funcional, sino también acogedor y adaptable a diversas situaciones.

El diseño modular del mobiliario permite una gran flexibilidad en su disposición, lo que facilita su adaptación a diferentes espacios y actividades. Esta flexibilidad es clave en entornos educativos, donde la capacidad de reconfigurar rápidamente el espacio según la actividad es esencial. Por ejemplo, los módulos pueden ser organizados para crear un rincón de lectura íntimo, o distribuidos de manera que fomenten la colaboración en grupo. El mobiliario no solo atiende las necesidades funcionales, sino que también enriquece el entorno educativo al proporcionar un espacio que puede evolucionar junto con las actividades y los intereses de los niños, todo mientras asegura su confort y bienestar a través de un diseño que respeta su escala y ergonomía.

7.16 ATMÓSFERAS Y SIGNIFICADO

Richard Rogers alguna vez dijo: "El propósito principal de la arquitectura es crear lugares que mejoren la vida de las personas y fortalezcan las comunidades." Es por ello que el proyecto SINERGÍA, que involucra a la capilla, la loza deportiva y la posta médica, se ha destinado a unir a ese pequeño sector que ha discutido durante mucho tiempo sobre qué espacio debe prevalecer en el terreno que ocupan.

Es por ello, que en el marco del proyecto del Centro Integral de Servicios Comunitarios ‘’NUEVO

HORIZONTE’’, para poder conocer la esencia propia del lugar, se realizó un exhaustivo estudio del lugar, para luego llevar a cabo una serie de talleres, en los que se invitó a los miembros de la comunidad a expresar sus ideas y necesidades a través de dibujos, anotaciones, entre otros, permitiendo recoger una diversidad de propuestas, y fomentando un sentido de pertenencia y colaboración entre los participantes.

En síntesis, podemos observar que a través de estrategias, el apoyo comunitario y lo estudiado sobre Arquitectura Participante, el resultado final, muestra que logramos convertir un espacio conflictivo en uno donde se ha logrado la reconciliación y el trabajo conjunto de las comitivas.

En nuestra práctica como estudiantes de Arquitectura y Urbanismo de la UNT, cabe resaltar que estamos comprometidos con el desarrollo, de una manera que sea sostenible e innovadora, a la creación de espacios que se diseñan por y para la gente, que no solo cumplen con las necesidades funcionales, sino que también promueven la interacción y el bienestar comunitario

Nuestra visión se basa en la arquitectura participante, donde el arquitecto se involucra en un proyecto de la comunidad ya hecho o por hacerse, asegurando que este refleje sus aspiraciones y necesidades.

Este proyecto es una demostración de que la arquitectura es mucho más que diseñar formas y hacer dibujos, proyectar una idea funcional y de gran beneficio para una comunidad es para nosotros parte de una base importante para hacer arquitectura.

De igual manera , cabe mencionar que el objetivo principal de nosotros como proyectistas es lograr descifrar el reto, el cual es que estos tres espacios conflictivos puedan integrarse, buscando su revitalización, sin olvidar la confortabilidad, la calidez y su accesibilidad al proyecto dándole una identidad que permita a la población conocerse entre si y se unan para formar el concepto de comunidad.

El terreno a intervenir está ubicado en el sector II del Cerro Pesqueda, en este se ubican tres espacios siendo una capilla, una loza deportiva y la Posta Médica de Pesqueda II. Cada uno de ellos tiene un rol importante para la comunidad de Pesqueda ya sea en lo religioso o recreativo. Es un sitio bastante concurrido por niños, jóvenes, adultos y personas de la tercera edad. La cercanía de estos espacios con las viviendas residenciales y algunos comercios es algo característico, ya que pueden acudir a estos rápidamente. 8.2

LEYENDA

Zona de Intervencion

Vivienda unifamiliar

Manzanas N° Lotes

Vivienda comercio

Vivienda multifamiliar

Posta de Salud Capilla Losa Deportiva
Pasaje
Pasaje

En cuestión al área de intervención junto a un perímetro de 96.74m y un área total de 52890 m , el terreno se compone de 3 espacios, cada uno utilizado para diferentes propósitos:

El primero seria correspondiente a la capilla, con un área de donde se realizan misas y otras actividades religiosas, el cual estaría ubicado en una de las esquinas del terreno.

PERIMETRO

El segundo espacio se dedica a la losa donde se llevaría a cabo actividades múltiples de su uso, como el ser un espacio deportivo, o sum para festividades o bailes que pueda organizar los comités de la comunidad.

El tercer espacio es una posta la cual por el momento solo cuenta con un único piso , en el cual muchas veces por la falta de espacios se satura la atención

Asi mismo, es relevante mencionar que los servicios básicos como la electricidad , agua y desagüe, solo brindarían disponibilidad a la posta por la importancia de su necesidad, para con el resto de la comunidad.

El sector cuenta con una gran accesibilidad, incluyendo también el terreno, se puede llegar con tan solo tomar el transporte B1 de la empresa Girasoles o algún otro transporte como los taxis Aunque la circulación si es algo difícil debido a la casi nula mejora de la avenida principal de Pesqueda.

Cerca al terreno podemos toparnos con otros espacios importantes dentro del sector, siendo los comedores María Parado de Bellido y el Buen Pastor, también se encuentra la Casa Cultura que brinda distintos talleres para los niños que viven allí.

El terreno en el que se va intervenir ya cuenta con la Posta Médica construida, un nicho con una cruz encima que representa a la capilla y una loza deportiva hecha de concreto.

Estos tres espacios son muy importantes para aquellos que los usan. El comité de la Hermandad Señor de los Milagros tiene su espacio en el cual se llevan a cabos las misas y rezos en aquel nicho colocado en una e juegan fútbol al costado, espe concreto que cuenta con dos arco la Posta Médica, utilizada por u encarga de brindar el servicio de asisten.

1

2

3

MOVILIDAD DIRECTA A CERRO PESQUEDA

Nuevos Girasoles

4 HITOS METROPOLITANOS HITOS METROPOLITANOS

Hospital Regional Docente de Trujillo

1h 26min 30min 16min 5.8 km

Universidad Nacional de Trujillo

1h 43min 47min 20min 6.7 km

Centro Histórico de Trujillo

1h 19min 25min 15min 5.4 km

37min --- 10min 1.9 km

Centro Recreacional La Rinconada

Hospital Víctor Lazarte Echegaray 45min --- 9min 2.6 km

HITOS VECINALES HITOS VECINALES

PUNTO DE PARTIDA: LOZA PUNTO DE PARTIDA: LOZA

Casa Cultural a 218 m

Casa Cultural a 218 m

Comedor Buen Pastor a 291 m

Comedor Buen Pastor a 291 m

Comedor Parado de Bellido a 209 m

Comedor Parado de Bellido a 209 m

LOZA + CAPILLA
CASA CULTURAL
MARIA PARADO BELLIDO
BUEN PASTOR

A través del estudio del proyecto, observamos que una de las arterias principal para acceder al terreno es la Av. 5 de Abril, las cuales si bien es cierto se encuentra en un nivel medio de la subida hacia el cerro, con el paso del tiempo también observamos mediante registro fotográfico, significativas mejoras en su accesibilidad en los últimos años. Además de ello, la implementación de nuevas rutas y la optimización de las vías de acceso han facilitado el tránsito hacia y desde esta importante arteria. Las obras de distintas infraestructuras, como la pavimentación de veredas, han hecho que el acceso sea un poco seguro y eficiente para los residentes y visitantes. Por otra parte la Av. 5 de Abril goza de una conectividad clave en el cerro Pesqueda, ofreciendo enlaces directos con otras áreas importantes de Trujillo puesto que allí prácticamente es por donde pasa la ruta de la combi de la empresa de los “Girasoles”, es asi que estos pequeños para algunos pero grandes cambios para la población del Sector II han transformado esta principal avenida en una vía accesible y conveniente.

Asi mismo concluimos, que la accesibilidad a la avenida para con el terreno, ha tenido un impacto positivo en el desarrollo urbano del cerro Pesqueda, y junto con el proyecto lo que buscamos es crear un entorno más atractivo y funcional para los residentes y pero a la vez también esperamos promover un crecimiento urbano sostenible

En cuanto a la topografía del terreno elegido para el proyecto arquitectónico, vemos que está caracterizada por pendientes un tanto pronunciadas y terrenos irregulares que se ven de acuerdo a su emplazamiento y a través de las curvas de nivel del plano, además de ello, el suelo salitroso del lugar seria debido a la zona enmarcada de todo el cerro rocoso y el clima.

Asi mismo, la irregularidad del terreno dificulta el acceso para personas adultas e incapacitadas, ya que, no todos los espacios están a un mismo nivel, generando que haya ciertas bajadas o subidas que hagan que la circulación de las personas se dificulten.

Siendo asi, que tenemos en cuenta esa pendientes e inclinaciones, cuando se realizaron los cortes de los perfiles topográficos, observamos mas a detalles la gran pendiente por la que está establecida el terreno, donde a la hora de diseñar seria un poco desfavorable, sin embargo a pesar de ciertas limitaciones, y del desafío significante, se continua adelante, siguiendo adelante el ejemplo de la comunidad en cuando a su resiliencia y perseverancia. A B D C

A C

Finalmente cabe mencionar que el carácter referencia que se tomó en cuenta para los datos expuestos fueron proporcionados por Google Earth, que aunque tienen cierto grado de precisión, se mostrarían factibles a la hora de estudiar la topografía y a tomar en cuenta con respecto al diseño del lugar

CORTE LONGITUDINAL

A-A

En el primer perfil que pasa por el terreno escogido, se muestra que cada vez que subes desde el pasaje Santa Rosa, hasta la Av. 5 de Abril, hay una pendiente un tanto pronunciada que como max. a los 66 m

CORTE TRANSVERSAL B-B

En el segundo perfil que pasa por el terreno escogido, se muestra que cada vez que pasas por la Av. 5 de Abril, hay una pendiente un tanto pronunciada que empieza con unos 64 m hasta unos 65 m como max.

CORTE C-C

En el tercer perfil que pasa alrededor del terreno escogido, se muestra el lado lateral izquierdo, donde a través de un relleno que se ve mucho más claro en la loza , hay una pendiente un tanto pronunciada que empieza con uno 64 m y máx. llega a unos 66 m

PERFIL D-D

En el cuarto perfil que está en el lado posterior del terreno, se muestra que cada vez que pasas por un pequeño pasaje donde al frente hay viviendas , hay una elevación muy pronunciada, que se nota mucho más si nos colocamos al frente y miramos hacia la losa.

Tras las invasión y ocupación de terrenos en 1979, los cuales hoy en día conforman lo que es el Cerro Pesqueda, el “Organismo de Formalización de la Propiedad Informal” (COFOPRI) hace legal todos los terrenos ocupados durante 1988 y 1989

El comité de la ‘’Hermandad Señor de los Milagros’’ logra la obtención de un terreno destinado para la elaboración de una capilla. El terreno se usaba como un punto para dejar basura, es entonces que los vecinos ayudaron con su limpieza para poder ocupar dicho espacio. Pero tras un cambio de directiva y el surgimiento de una nueva comitiva que buscaba crear un ambiente recreativo para los niños y jóvenes, parte del terreno es ocupado y usado para ser una loza deportiva. Pero no fue la única necesidad que surgió, ya que al no haber un lugar para que la población pueda tener una atención médica, estos mismos decidieron brindarles un espacio y construir lo que es hoy en día el Puesto de Salud Pesqueda II Es así como este terreno pasó de tener un uso requerido a tres espacios con distintas organizaciones.

En estos espacios se han llevado a cabo distintas actividades. Comenzando por el comité de la ‘’Hermandad Señor de los Milagros’’, todos los sábados se reúnen desde las 4 de la tarde para realizar una lectura de la biblia, la cual se encarga un hermano perteneciente a la comitiva. También se han llevado a cabo misas para los

LOS NIÑOS EMPIEZAN A USAR UNA PARTE DEL TEREENO PARA JUGAR

SURGIMIENTO DE LA HERMANDAD Y OBTENCIÓN DEL TERRENO

SE CREA LA ‘’PROGRESO Y

VISTA SATELITAL DEL TERRENO (1998)

SE CONSTRUYE UNA LOZA DEPORTIVA

EL TERRENO ACTUALMENTE CON UNA DISPUESTA CON LAS 2 COMITIVAS Y EL PERSONAL MÉDICO ANTE LA NECESIDAD DE

difuntos y la familia tenga un lugar para velar por la persona fallecida.

Por parte del comité ‘’Progreso y Desarrollo’’, su espacio todos los días recibe a los niños y jóvenes que quieren jugar al fútbol, pero también se ha llevado a cabo presentaciones artísticas, talleres, campeonatos interbarriales, etc. Este mismo espacio el personal médico de la Posta Médica lo utiliza para llevar a cabo sus programa del Adulto Mayor, ferias gastronómicas, charlas, campañas de vacunación, etc.

En la Posta Médica se lleva a cabo todo tipo de atención primaria requerida para los pobladores como los chequeos médicos. Cuentan también con habitaciones con camillas para colocar a los pacientes que puedan padecer alguna enfermedad y necesite de una revisión. Su atención es toda la mañana hasta las 2 de la tarde de lunes a sábado.

Se ha observado que varios vecinos dejan basura en algunas esquina del terreno para que el camión recolecto se lo lleve, además alrededor se ha colocado vegetación para dar algo de vida al espacio.

Para muchos vecinos, este espacio es bastante conflictivo debido a las 3 organizaciones las cuales buscan una forma de ampliarse, pero para ello se debe quitar o buscar otro terreno para uno o hasta dos espacios y así conseguir la tan anhelada ampliación.

Temperaturas medias y precipitación

El "máximo diario medio" (línea muestra la temperatura máxima promedio para cada mes para Pe mismo modo, "mínimo diario medi sólida) muestra la temperatu promedio. Los días calurosos y las (líneas rojas y azules discontinuas promedio del día más caluroso y l fría de cada mes de los últimos 3 la planificación de vacaciones, pu las temperaturas medias y esta para los días más cálidos y fríos.

Temperaturas máximas

El diagrama de temperatura máxima para Pesqueda muestra cuántos días al mes alcanzan ciertas temperaturas. Dubai, una de las ciudades más calientes de la tierra, casi no tiene días por debajo de 40°C en julio. También puedes ver el inviernos fríos en Moscú con unos días que ni siquiera alcanzan -10°C como máximo diar 20°C

TEMPERATURAS MEDIAS Y PRECIPITACIÓN

Temperatura máxima

Temperatura mínima

VELOCIDAD DEL VIENTO

VELOCIDAD DEL VIENTO

El terreno es ocupado por tres tipos diferentes de edificación, uno de ellos trabaja en coordinación con la municipalidad provincial de Trujillo. Por lo tanto se usara la normativa nacional (RNE) y la de Trujillo.

NORMA A.090 - SERVICIOS COMUNALES

Artículo 1.- Se denomina edificaciones para servicios comunales a aquellas destinadas a desarrollar actividades de servicios públicos complementarios a las viviendas.

La capilla ha servido como un espacio de reunión para la realización de misas, velorios, festividades como la del Señor de los Milagros, etc.

Artículo 2 - Se encuentran comprendidas dentro de los alcances de la presente norma, los siguientes tipos de edificaciones: Servicios de Seguridad y Vigilancia, Protección Social, Servicios de Culto, Servicios culturales y Gobierno.

La capilla se ubica dentro de los Servicios de Culto dado las actividades que realizan allí.

NORMA A.090 - RECREACIÓN Y DEPORTE

Artículo 1 - Se denominan edificaciones para fines de Recreación y Deportes aquellas destinadas a las actividades de esparcimiento, recreación activa o pasiva, a la presentación de espectáculos artísticos, a la práctica de deportes o para concurrencia a espectáculos deportivos.

El terreno presenta un espacio al aire libre donde se ha construido una losa deportiva en donde se llevan a cabo torneos interbarriales de fútbol, presentaciones artísticas, ferias, etc

Artículo 2.- Se encuentran comprendidas dentro de los alcances de la presente norma, los siguientes tipos de edificaciones: Centros de Diversión, Salas de Espectáculos, Edificaciones para Espectáculos Deportivos

La losa deportiva se ubica dentro de las Edificaciones para Espectáculos Deportivos.

Artículo 4.- Las edificaciones para recreación y deportes se ubicarán en los lugares establecidos en el plan urbano, y/o considerando lo siguiente: Facilidad de acceso a los medios de transporte.

El terreno tiene fácil accesibilidad vehicular, ya que está ubicado en la circulación de la Av 5 de abril, siendo el carril principal de acceso para los transportes públicos.

EQUIPAMIENTO DE SALUD

El puesto de salud es el establecimiento encargado de desarrollar actividades de atención médica elemental. Reciben supervisión periódica del centro de salud.

La edificación brinda los servicios básicos de atención médica para todo el sector II de Pesqueda.

Este tipo de establecimientos asistenciales deben servir con eficiencia a una población de 5,000 a 7,500 hab. Y un radio de influencia es de 200 a 600 m. El área máxima requerida para un puesto de salud es de 1,500 m2

Todo el sector II de Pesqueda es atendido en la edificación, además de estar cerca a distintas viviendas lo que hace más fácil su accesibilidad y poder contar con este servicio. Sin embargo, no cuenta con el área requerida por la normativa.

EQUIPAMIENTO (SERV. PÚBLICOS COMPLEMENTARIOS)

Artículo 15 - Frente mínimo de lotes El frente mínimo, para fines de sub-división de predios existentes, y para las nuevas habilitaciones urbanas, y acuerdo con la zona donde se encuentra la propiedad, es el siguiente: H: Según Nivel de Equipamiento. Ver Cuadro Nº4: Usos Especiales

En el cuadro N°4 se menciona que el frente mínimo para un equipamiento de Salud H1 (Posta Médica) es según el parámetro comercial o residencial de su entorno. El frente mínimo del terreno es de 12 6 m

Artículo 18.- Altura máxima La altura máxima de los edificios, de acuerdo con la zona en la que se ubican, será la siguiente: H: Según parámetro de su entorno

La edificación cuenta con tan solo un piso con altura de 3m.

Artículo 28.- En caso de terrenos destinados a Otros Usos (Educación, Salud, Otros Usos, Comercio: C3 al C9), de afluencia masiva de personas, ubicados en zonas consolidadas se solicitará obligatoriamente el Retiro Municipal indistintamente del Área de Estructuración que se encuentre.

La edificación no cuenta con un retiro, su fachada esta cerca a la vereda. Por lo tanto, el equipamiento incumple con el artículo de la normativa.

Buscando la manera de poder integrarnos en un proceso de diseño para distintas organizaciones, siguiendo los principios de la arquitectura participante, se realizo un taller en el cual las organizaciones de los espacios a intervenir puedan expresar mediante bocetos o ideas las necesidades faltantes que desean incorporan en sus espacios.

El primer taller se realizo con la participación de algunos niños y adolescentes que jugaban, mediante dibujos expresaron su sueño de tener una loza deportiva donde pudieran jugar y practicar deportes de manera segura. Además se imaginaron una capilla que no solo sirviera para los servicios religiosos, sino también como un espacio multifuncional para reuniones comunitarias y eventos culturales La posta médica fue concebida como un centro accesible y bien equipado, capaz de brindar atención primaria de salud a todos los residentes.

El resultado final es un espacio polivalente y acogedor, donde la capilla, la loza deportiva y la posta médica coexisten de manera complementaria, reflejando la riqueza de la diversidad comunitaria y promoviendo una convivencia pacífica y colaborativa.

El segundo taller se realizo con la comitiva de la Hermandad Señor de los Milagros, algunos de sus miembros realizaron dibujos en el cual expresaron su deseo que como seria este espacio por el que tanto han luchado.

En estos se aprecia la manera eficiente de aprovechar el poco espacio con el que cuentan, para tener los espacios necesarios para actividades que realizan, como las misas. Además, algo destacable en las representaciones es la pequeña estructura donde esta colocada la cruz, para ellos es un símbolo muy representativo y que debe prevalecer.

El señor Raúl Lozano, uno de los miembros de la comitiva y el encargado de las lecturas bíblicas, menciona el uso de ventanas largas para proporcionar el ingreso de luz natural al espacio, un gran portón que permita el fácil acceso de las personas a la capilla, además de que este cuente con algo parecido a una doble altura, debido que al ingresar las personas se topen con un espacio el cual refleja a distancia entre el mundo terrenal y lo divino.

Tras las invasión y ocupación de terrenos en 1979, los cuales hoy en día conforman lo que es el Cerro Pesqueda, el “Organismo de Formalización de la Propiedad Informal” (COFOPRI) hace legal todos los terrenos ocupados durante 1988 y 1989.

En estos espacios se han llevado a cabo distintas actividades. Comenzando por el comité de la ‘’Hermandad Señor de los Milagros’’, todos los sábados se reúnen desde las 4 de la tarde para r

En estos espacios se han llevado a cabo distintas actividades. Comenzando por el comité de la ‘’Hermandad Señor de los Milagros’’, todos los sábados se reúnen desde las 4 de la tarde para realizar una lectura de la biblia, la cual se encarga un hermano perteneciente a la comitiva También se han llevado a cabo misas para los

En estos espacios se han llevado a cabo distintas actividades. Comenzando por el comité de la ‘’Hermandad Señor de los Milagros’’, todos los sábados se reúnen desde las 4 de la tarde para realizar una lectura de la biblia, la cual se encarga un hermano perteneciente a la comitiva. También se han llevado a cabo misas para los

Tras la elaboración de talleres para conocer la idea de proyección de la propia comunidad, se rescato la mayoría de las propuestas y se las integró en un programa arquitectónico para la distribución de las zonas orientadas al uso del espacio y sus subzonas en las cuales se desarrollaran las actividades en base a las necesidades de aquellos que ocupen los espacios como por ejemplo: los niños, adolescentes, adultos, personas de la tercera edad, la Hermandad

Señor de los Milagros, el personal médico y personas con discapacidad.

En el programa se evidencian las tres zonas primordiales que se aprecian en el terreno como pueden ser para la recreación, otro para todo lo relacionado con la religión y otro para el servicio de salud.

Se busca que el proyecto agrupe los tres espacios para que trabajen de manera unificada, haciendo que el vínculo entre la comunidad se fortalezca y se deje de lado la disputa por la ocupación del terreno que tanto ha generado conflictos entre vecinos.

Tras la elaboración de talleres para conocer la idea de proyección de la propia comunidad, se rescato la mayoría de las propuestas y se las integró en un programa arquitectónico para la distribución de las zonas orientadas al uso del espacio y sus subzonas en las cuales se desarrollaran las actividades en base a las necesidades de aquellos que ocupen los espacios como por ejemplo: los niños, adolescentes, adultos, personas de la tercera edad, la Hermandad Señor de los Milagros, el personal médico y personas con discapacidad.

En el programa se evidencian las tres zonas primordiales que se aprecian en el terreno como pueden ser para la recreación, otro para todo lo relacionado con la religión y otro para el servicio de salud.

Se busca que el proyecto agrupe los tres espacios para que trabajen de manera unificada, haciendo que el vínculo entre la comunidad se fortalezca y se deje de lado la disputa por la ocupación del terreno que tanto ha generado conflictos entre vecinos

Para la zonificación de una posta médica es importante , el poder asegurar un buen flujo eficiente en cuanto a los pacientes y la prestación adecuada de servicios de salud. Es por ello que a mitad de proceso de diseño, y sobre todo de los talleres, nuestro objetivo principal fue buscar una buena funcionalidad, pero a la vez, también garantizar la seguridad, y el fácil acceso a los servicios según las necesidades de los pacientes. Sin embargo también consideramos aspectos como la privacidad, la comodidad y la eficiencia operativa, para asi poder mejorar, la experiencia de los pacientes como del personal médico.

Siendo asi , el primer piso a pedido del personal de la posta y a favor de las necesidades principales de sus pacientes, ubicamos espacios como recepción, triaje, tópico, un área de TBC, un espacio para obstetricia (espacio importante que necesitaban por el pedido de la población y los casos de embarazadas)

Por otra parte decidimos nuclear tanto escaleras como baños y brindar una circulación central para con los consultorios , baños y demás espacios.

Enfermería

Baños

Escaleras

Cuarto de limpieza

Consultorios

Tópico

TBC

Farmacia

Sala de espera

Recepción

SUM

Pediatría

Almacén

Lugar de oración

Cadena de frío

Obstetricia

Por el lado de la capilla, a través de los talleres de conceptualización, se buscó generar una mejora del área. Es asi que los principales espacios serian el presbítero, la asamblea , y un buen diseño de la entrada, ya un espacio adicional y que fue aprobado por la población seria el confesionario y los baños, área integrada que serviría más adelante para ser utilizada no solo por las personas de la capilla s no también por las personas de losa .

el lado de losa, nos concentramos en s verdes nuevas, donde una de ellas ién estaría implementada con una zona juegos para niños, con juegos pletamente nuevos y interactivos para diferentes edades, otro espacio gado fue la área o zona de hidratación, mbién agregamos zonas de descanso uales serian las escaleras, amplias y s, para poder abarcar una buena dad de personas que puedan ser ctadoras de las diferentes que se an realizar allí.

Loza

La distribución fue diseñada de acu necesidades de cada usuario, por p posta se cumplió cubrir todos los que el personal necesita para desa actividades, la distribución fue dividi plantas, la primera mas dirigida a ate segunda planta fue destinad consultorios, estratégicamente se log los ambientes alrededor de la sala como punto central junto a la es capilla igualmente tiene una horizontal para sus ambientes, la asamblea que es el espacio cen confesionario con un baño ubicados a sus extremos de los vértices de cuenta también con una entrada qu un espacio como un pequeño hall. L divide en tres espacios, la zona de d principal, la zona de área de jueg espacio triangular que se aprovecho y un espacio residual como rehidratación 8.6

1ERA PLANTA

La espacialidad que presenta el proyecto es un punto atractivo e interesante pues este sigue una serie de un juego de altura entre posta, capilla y losa, las gradas que nos llevan hacia estos espacios son conectores importantes e indispensables para la unificación del proyecto.

La posta esta compuesta por dos alturas siendo el bloque central el que da la sensación de expansión hacia el siguiente espacio, presenta una circulación vertical a través de una escalera nuclear que conecta los dos niveles y una escalera en la parte trasera que da salida hacia la posta es un gran desnivel de un metro que presenta por la misma topografía del terreno Por otro lado la capilla es un espacio donde impone grandeza por su doble altura que también al circular verticalmente nos encontramos en la entrada un desnivel mediante gradas y otro desnivel hacia el podio donde se encuentra la cúpula; por ultimo la losa juega sus desniveles mediante gradas en alguno de sus lados perimetrales, asimismo cuenta con accesibilidad vertical para la posta y capilla.

Para la posta se busco economizar en el sistema constructivo, para el primer piso se empezaría anivelando el terreno tomando como referencia 1m de altura de la posta, después de ello para los cimientos se colocaría una losa de concreto simple que sería la base para el primer piso amarrando así las columnas las cuales se usan varillas de fierro con las dimensiones de treinta por treinta para tener un buen sustento para así poder asentar el ladrillo, un sistema de muro portante será el que hará las divisiones para todos los ambientes.

Para la fachada implementamos como diseño hacer unas celosías de hormigón, se usa este material para poder reforzarlas y que tenga una dureza eficiente ya que como al ser fachada necesitaría defenderse muy bien antes cualquier accidente que pueda darse por la avenida. Así se culminaría la construcción del primer piso un sistema de columnas y muro portantes, simpleza y eficiencia para una posta que prioriza economizar en cuanto a los materiales y este proyecto busca hacer eso al momento de proponer este sistema cosntructivo.

PRIMER PISO

Paredes

Muro portante de ladrillo 4 3 2

Contorno

Muro portante de ladrillo

Celosías

Barras de hormigon

Columnas

Varillas de fierro de 30 x 30 cm 1

Cimientos:

Losa de concreto simple

SEGUNDO

PISO

Estructura de techo:

Losa aligerada de concreto simple

Paredes

Muro portante de ladrillo

Columnas

Varillas de fierro de

30 x 30 cm

Cimientos:

Losa de concreto simple

Para el segundo piso el sistema constructivo es similar, se empieza colocando el techo que a la vez viene a ser el piso para el segundo nivel, una losa de concreto simple donde la estructura es armada a base de rejillas de fierro que estas a su vez amarran a las columnas, la estructura principal para hacer las divisiones del ambiente, al igual que el primer nivel las columnas serán compuestas en forma cuadrado por cuatro fierros, encofradas con concreto y arena, después de ello se asienta el ladrillo con el sistema de muro portante, se levantan los muros formando los ambientes que conforman la segunda planta de la posta. Por ultimo la estructura de la cubierta es un modulo de tres piezas, todas serán hechas de losa aligerada, los extremos serán colocadas a una altura de tres metros tomando como referencia el segundo nivel y la pieza del centro se colocara a tres metros ochenta, esto se hace por cuestión de diseño, una posta que vista por fuera se ve dividida por tres bloques un central que tiene ochenta centímetros que los extremos, una pieza que cumple el concepto de jerarquía en un diseño. Y así es como se llevaría a cabo la construcción de la propuesta que se presenta, con conceptos básicos de construcción, que sin dificultades podría hacerlo un equipo de obreros.

La capilla a simple vista tiene un diseño con una composición de elementos de varios materiales, el sistema estructural esta diseñado con eficiencia y dureza el suelo esta anivelado ya que actualmente la topografía de esta se encuentra en un desnivel muy pronunciado, así que después de hacer esta nivelación se colocan los cimientos, una losa de concreto simple. Encima de esta se mantiene la cúpula de concreto, esto es un tipo de preexistencia arquitectónico, un elemento simbólico por la cual se caracteriza la capilla, así que se podría dar mantenimiento colocándole una capa de concreto para poder reforzarla y darle el acabado como nueva.

Las columnas están ubicadas estratégicamente con los muros y de acuerdo al peso de la cubierta, se usan varillas de fierro y se arman de treinta por treinta. Para la estructura de muros se usa el sistema de muro portantes, las divisiones hacen juego de diagonales esto se debe al diseño que se propone, unos muros que tienen diversas medidas de altura para la fachada y para el contorno perimetral de esta.

Paredes

Muro portante de ladrillo

Barras de hormigon

Cimientos:

Losa de concreto simple

CAPILLA
Celosías

Ladrillos de concreto

Columnas

Varillas de fierro de 30 x 30 cm

Estructura de techo:

Cercha de Aluminio inoxidable

Estructura de techo:

Losa aligerada de concreto simple

laterales del muro derecho con la losa se colocan tres celosías mple tipo columnas, ubicadas a de cuarenta centímetros cada ienen un diseño de una serie de rtical como simbología de la én se hace uso del ladrillo de s por sus resistencia y dureza s en la esquina protegiendo la a doble altura donde en la parte e se deja un hueco con la cer posible el ingreso de la luz la cúpula. Finalmente para el plementa un combinación de sa aligerada, estas cerchas iones en su interior y son de able, tienen la función de dar luz ven de soporte para la cubierta, siguiente una serie de forma de una escalera. La cubierta que aligerada de concreto simple, te piezas, una central que tiene bo con una abertura romboide ural y las otras seis piezas en lados que van en forma ente el terreno triangular que illa.

La infraestructura es uno de los principales puntos económicos, inclusivo y sostenibles en este sector de Pesqueda. Si hablamos de espacios de recreación publica, en este caso una losa deportiva multifuncional y un área de juegos para los mas pequeños, juegan un papel importante ya que este espacio permite el sano esparcimiento y el desarrollo de diferentes actividades de integración, deporte y actividades sociales de la comunidad. Es por ello que para la losa se usa un sistema estructural teniendo en cuenta diversos factores y uno de los mas importantes es el daño que le podría hacer el sol al revestimiento que se aplique para esta superficie, entonces teniendo en cuenta este factor se usara concreto armado o conocido también como hormigón, este material es un componente entre concreto y gravilla, pues este material es uno de los mas resistentes, no presenta tantas grietas ni fisuras durante el fraguado , no requiere de cuidados excesivos y acepta muy bien la coloración a su superficie, así que es uno de los materiales que tienen todo lo necesario para ser usado en una estructura donde habrá mucha actividad fisica.

Grosor de 30mm

Cimientos: Losa de concreto armado

as usaríamos el sistema de mple, están tendrían un rejillas mediante varillas de e puedan ser encofradas y ofrado del concreto simple, a el área de rehidratación se osa de concreto con un pulido , así el noventa por estructura de la losa estaría e concreto simple y armado, ue sin duda darán la eficiencia que necesita este a las diversas activadas que asignar. Para la zona de a perimetral tiene un borde centímetros de altura hecha simple, esta base es a la rejilla que se le aplica el cerramiento Y para la esta área se compone de de acero que están a la base, este material es puede darse el acabado con orrecta para que se peda uperficie

La elección de los materiales para la posta de salud fue un aspecto crucial, puesto que impactaría, directamente en la calidad del servicio, la seguridad de los pacientes y el mantenimiento a largo plazo de la infraestructura.

Uno de los principales factores a considerar fue la durabilidad y resistencia, ya que en áreas rurales o de difícil acceso, las postas, deben estar construidas con materiales que resistan las inclemencias del clima, el desgaste por uso intensivo y la falta de mantenimiento regular.

Por otro lado, la higiene y Seguridad, es fundamental para cualquiera de las superficies a utilizar, puesto que, se necesita que sean fáciles de limpiar y desinfectar para evitar la proliferación de bacterias y virus. .

En conclusión, la elección adecuada de materiales en una posta de salud es esencial para garantizar su funcionalidad, seguridad, y longevidad

VIDRIO TEMPLADO
PORCELANATO BEIGE

VIDRIO TEMPLADO CONCRETO

Ofrece alta resistencia a impactos y cambios de temperatura, siendo cinco veces más fuerte que el vidrio normal, además, es duradero, fácil de limpiar y mantiene su transparencia con el tiempo, siendo ideal para aplicaciones donde la seguridad y la durabilidad son esenciales.

PORCELANATO BEIGE

Alta durabilidad, resistencia a la humedad y fácil mantenimiento. Su color neutro se adapta a diversos estilos, proporcionando un ambiente cálido y elegante Además, es ideal para áreas de alto tráfico, debido a su resistencia al desgaste y su capacidad de un aspecto impecable a lo largo del tiempo.

ACERO

Su versatilidad permite diseños estéticamente atractivos y su mantenimiento es relativamente bajo, haciendo del acero una opción práctica y confiable.

Altamente duradero y resistente, ideal para soportar cargas pesadas y condiciones climáticas adversas y su bajo mantenimiento, y versatilidad en diseño lo convierten en una opción económica y confiable para la construcción de infraestructuras duraderas.

PORCELANATO NEGRO

Alta durabilidad, resistencia a la humedad y fácil mantenimiento. Su color neutro se adapta a diversos estilos, proporcionando un ambiente cálido y elegante Además, es ideal para áreas de alto tráfico, debido a su resistencia al desgaste y su capacidad de un aspecto impecable a lo largo del tiempo.

VIDRIO TEMPLADO OSCURO

Ofrece resistencia a impactos y temperaturas extremas, haciéndolo más seguro que el vidrio convencional; y su capacidad para reducir la transmisión de luz solar disminuye el deslumbramiento y mejora la eficiencia energética al mantener los interiores más frescos.

La elección de los materiales para la construcción de una capilla es fundamental, puesto que, no solo influye en la durabilidad y resistencia del edificio, sino también en su capacidad para transmitir espiritualidad y reverencia. Materiales como la piedra, la madera y el vidrio no solo aportan a la estética y la acústica del espacio, sino que también tienen un simbolismo profundo en la arquitectura religiosa, evocando sensaciones de fortaleza, calidez y luz divina.

Además, la correcta selección de materiales garantiza que la capilla pueda perdurar en el tiempo, resistiendo los elementos y conservando su función sagrada para las generaciones futuras

TABLILLAS DE ACERO

Por lo tanto, la elección de los materiales no es solo una decisión técnica, sino un acto de creación espiritual que influye en la experiencia de quienes acuden a ese espacio sagrado.

CONCRETO

CONCRETO OSCURO

MADERA

CONCRETO GRIS

VARILLAS DE ACERO

VIDRIO TEMPLADO

VIDRIO TEMPLADO

Ofrece alta resistencia a impactos y cambios de temperatura, siendo cinco veces más fuerte que el vidrio normal, además, es duradero, fácil de limpiar y mantiene su transparencia con el tiempo, siendo ideal para aplicaciones donde la seguridad y la durabilidad son esenciales

LADRILLO DE CONCRETO

Los ladrillos de concreto son duraderos, resistentes a incendios y a condiciones climáticas extremas, ofrecen buen aislamiento térmico y acústico, y requieren poco mantenimiento Además, son versátiles en su uso, fáciles de fabricar y se pueden producir localmente, lo que reduce costos de transporte y apoya el desarrollo económico local.

MADERA

Material excelente debido a su aislamiento térmico natural, que ayuda a mantener temperaturas confortables en el interior. Además, es estéticamente atractiva, aporta calidez y puede ser personalizada fácilmente.

CONCRETO

Altamente duradero y resistente, ideal para soportar cargas pesadas y condiciones climáticas adversas. y su bajo mantenimiento, y versatilidad en diseño lo convierten en una opción económica y confiable para la construcción de infraestructuras duraderas.

ADOQUIN

Ofrece durabilidad y resistencia al desgaste, lo que lo convierte en una opción ideal para pavimentos de alto tráfico. Su instalación es sencilla, permite un drenaje natural del agua, y es fácil de reemplazar o reparar individualmente.

ACERO

Su versatilidad permite diseños estéticamente atractivos y su mantenimiento es relativamente bajo, haciendo del acero una opción práctica y confiable.

MADERA
LADRILLO DE CONCRETO

En el caso de la losa, se buscaron materiales los cuales brinden una estructura solida pero a la vez también duradera, desde el cemento como material principal asi como también acero de refuerzo para que puedan soportar el paso del tiempo y las cargas estructurales.

Nuestra propuesta de losa está compuesta por una combinación de acabados, los cuales maximizan la resistencia y a la vez también ayudan a poder darle un bonito diseño al espacio y un claro ejemplo de ello, es el material de la Pintura Epóxica, especializado para áreas como losas deportivas, donde el acabado seria un tanto brilloso y brindaría una buena accesibilidad para las personas, este enfoque innovador en la selección de materiales permitiría un rendimiento óptimo y una durabilidad excepcional.

Por otro lado el espacio de las escaleras que van para los lados laterales de la losa serian construidas con concreto , para que también brinden una durabilidad con el paso del tiempo.

Y lo que constaría de varilla de acero, ya serian os arcos , y las varillas de la tensionadas.

PINTURA EPOXICA AZUL
PINTURA EPOXICA MOSTAZA
CONCRETO BLANCO

PINTURA EPÓXICA

Ofrece una excepcional durabilidad y resistencia a la abrasión, haciéndolo ideal para la protección de superficies con alto tráfico. Además, es resistente ,puesto que proporciona una barrera protectora que prolonga la vida de pisos y otras superficies.

CONCRETO

Altamente duradero y resistente, ideal para soportar cargas pesadas y condiciones climáticas adversas. y su bajo mantenimiento, y versatilidad en diseño lo convierten en una opción económica y confiable para la construcción de infraestructuras duraderas.

ACERO

Su versatilidad permite diseños estéticamente atractivos y su mantenimiento es relativamente bajo, haciendo del acero una opción práctica y confiable.

ZONA RECREATIVA

Sabemos que hoy en día muchos recursos naturales están empezando a escasear, entre ellos se encuentra el agua No es sorpresa para nadie que en distintas partes del mundo, el agua es cada vez más escasa. Por ello, se implementan sistemas para reutilizar aguas residuales, pluviales, grises, etc.

Al regar nuestros jardines o patios, usamos una cantidad de agua bastante elevada Esto a veces se soluciona cuando ocurren días lluviosos, pero en una ciudad como Trujillo, donde las lluvias no son abundantes, este problema persiste. Trujillo se encuentra en un tipo de clima templado, desértico y oceánico. Por esta razón, en nuestro proyecto hemos implementado un sistema de recolección de aguas pluviales para los días más tormentosos de Trujillo, y reutilizarlas en el biohuerto de la Plaza Deportiva 'Progreso y Desarrollo'.

El sistema involucra la instalación de canaletas unidas a una cerca metálica mediante sogas o bridas de nylon, y en estas se colocan filtros para recolectar únicamente el agua pluvial,

Filtraciónderesiduos

Salidaporpequeños agujeroseneltubo

dejando atrás todo tipo de residuos como tierra, piedras, hojas, etc. Al final de la canaleta, se realiza un agujero por el cual pasa un tubo de PVC que se conecta a un depósito.

Este contará con un grifo que, al abrirse, llevará el agua almacenada a través de otras tuberías de PVC colocadas a nivel del biohuerto. A lo largo de la tubería se harán pequeños agujeros que permitirán la salida gradual del agua pluvial.

Este sistema permite que aprovechemos eficientemente los días lluviosos en Trujillo para obtener agua que, a futuro, servirá para regar plantas en momentos en los que ya casi no haya lluvias. Además, es un sistema que permite reutilizar tuberías viejas, lo que significa un ahorro de dinero para su elaboración.

Todo esto refleja el cómo soluciones simples y accesibles pueden tener un impacto significativo en la conservación del agua y en la creación de espacios más verdes y autosuficientes para la comunidad. Todo representa un compromiso con la sostenibilidad y el aprovechamiento de recursos locales

Salvaguardar la vida de visitantes durante even riesgo su vida, es por ell en cuenta rutas de ev zonas seguras, la ubica lugares de fácil acceso, e

Por lo tanto, el proyecto las señalización de ev servirán como guía hac segura para mantener a s

La posta de salud es la e con más espacios, es po crea una salida y entrad abril, sino también po haciendo eficiente su eva

Mientras tanto en la capil una salida hacia la ave evacuación.

La losa deportiva al ser u abierto no requiere de un ser tomado como un pu estar.

PRIMERA PLANTA

ca debe contar con un e incendio, y este debe distancia de recorrido de cualquier punto. Se que este en zonas pacio cerrado puede to de querer encontrarlo. la posta de salud se ntores en zonas de para todos, cerca a las apilla se hace uso de 1 de ingreso.

ENDA

EXTINTOR

SALIDA

SEGUNDA PLANTA

En nuestro proyecto decidimos hacer uso de usos de recolección de basura con materiales que pueden ser reutilizados hasta los que son totalmente desechos.

Cada espacios tendrá un depósito destinado a un material el cual puede ser aprovecha a su espacio más cercano. Como por ejemplo un depósito exclusivamente para materiales orgánicos cerca al biohuerto, del cual se obtendrá composta para las plantas Un depósito para desechos plásticos, metálicos y de papel que pueden ser reutilizados en el área de juegos como piezas de ajedrez, bolos con latas, etc.

Para la Posta Médica y la Capilla, se hace implementación de depósitos comunes para el desechos de materiales sin posibilidad de reusó. Los cuales serán llevados por el camión recolector cada vez que pase por la Av. 5 de abril.

Con esto garantizamos una menor contaminación en el lugar, siendo beneficioso para la edificación y viviendas cercanas.

LEYENDA DE RESIDUOS

RESIDUOS ORGÁNICOS

PLÁSTICOS Y ENVASES METÁLICOS

MATERIAL DE PAPEL

MATERIAL DE VIDRIO

DESECHOS EN GENERAL

TACHOS DE BASURA

SEGUNDA PLANTA

Las infraestructuras y espacios verdes en nuestro proyecto ofrecen múltiples beneficios que van más allá de la simple estética. Estas áreas no solo embellecen el entorno, sino que también contribuyen significativamente al bienestar de los habitantes, como objetivo principal buscamos mejorar estos espacios, asi sean desde el más pequeño, pero que le pueden dar otra vista significativa al lugar,

hasta el espacio más grande que pueda crear muchos otros múltiples espacios nuevos. Asi mismo, la selección de plantas fue a base del estudio del clima del lugar, puesto que se observaron aspectos como una humedad media , pero a la vez en ciertos meses puede presentarse un clima un poco seco, por ello, buscamos plantas que sean resistentes a diferentes climas, con un cuidado fácil y practico, pero a la vez que presenten esa estética para poder embellecer el espacio en el que estén.

Cinta de novia

Además de ser una planta muy coqueta y perfecta para decorar, lo cierto es que la cinta cuenta con multitud de beneficios.

Resistencia de vida

Cuidado Fácil y práctico

Lengua de Tigre

Se trata de una planta crasa, que tolera bien la sequía y los escasos cuidados, lo único que no resiste es el exceso de agua, ni el frío extremo

Resistencia de vida

Cuidado Fácil y práctico

Geraneo

Se encuentran plantas con forma de crecimiento variable que pueden ser hierbas anuales o incluso perennes

Resistencia de vida

Cuidado Fácil y práctico

Sábila

Es una planta de tamaño medio a alto. Pero tiene una gran capacidad de crecimiento si se lo permitimos.

Resistencia de vida

Cuidado Fácil y práctico

Este nuevo diseño de arco que se implementara para la losa es un elemento que cumple dos funciones en dos deportes, futbol y basquetbol, ya que el nuevo diseño de la losa es el de una cancha multifuncional, esto se hace con el objetivo de promover el deporte, futbol, basquetbol y vóley fueron las principales ideas para hacer una losa así que esta representada en la textura del piso mediante colores. Pues para completar el diseño necesitaríamos un arco de futbol y un

tablero para el básquet para que estos deportes puedan desarrollarse con satisfacción. El arco de futbol compuesto por travesaños inferiores y superiores de acero inoxidable de seis centímetros con un espesor de dos milímetros, envuelta por una malla blanca de polipropileno torcido, posteriormente en el travesaño superior estaría colocado empernado el brazo del tablero que sostiene el tablero y este a su vez sostiene un aro de cuarenta y cinndo centímetros con doce ganchos que amarran la red para el balon de basquet.

Tablero de Madera de 1.40 x 1.00

Estructura de tubo 6 cm y un espesor de 2 mm.

Aro de 45 cm de acero macizo

Travesaños de 11,5 cm y espesor es de 3 mm.

Pintado con pintura

Electrostática – Color Blanco. 5 Mall blanca de Polipropileno

ARCO

Este mobiliario hecho para el área de juegos se ubica alrededor del árbol que se mantiene por concepto de preexistencia natural, un domo compuesto por trece unidades de llantas, las cuales una vez obtenidas se tendría que primero dar una limpieza a toda la superficie para luego poder aplicarle una capa de color, estos pueden ser elegidos por los mismos niños quienes son los principales beneficiarios en esta zona de juegos. Después de haber pintado estas trece llantas se pasaría al siguiente paso que sería armar una base de ocho llantas, estas las uniremos cosiéndolas con un hilo fuerte que nos ayudara a unificar una tras otra desde un extrema de la llanta hasta empalmarla con la otra. Así el segundo nivel se compone de 4 llantas y la tapa superior es una llanta en orientación horizontal, la cual se colocara alrededor del árbol que se mantendrá en el proyecto. Así este mobiliario de juego para niños cumplirá una doble función, una como protector del árbol y la segunda un juego didáctico donde los mismos niños le pueden dar un uso de diferentes maneras y así poder marcar en ellos esta innovadora idea del hacer un domo, algo que no es tan común, pero que sería algo llamativo para estos pequeños que son quienes disfrutaran de este ambiente lleno de juegos.

3 EN RAYA

Uno de los juegos más clásicos de toda la historia, este juego es perfecto pues es para todas las edades, porque, no importa si sean chicos o grandes, lo que buscamos es fomentar la interacción, y un buen aprendizaje a través del juego.

Los materiales con los que se realizaron el siguiente juego, son de madera, desde el tablero completo , hasta las piezas con un tallado donde serán pintadas las figuras de X y O, se elije este material puesto que brindan una buena preservación a través del tiempo, y sobre todo son muy resistentes.

Para la unión de estas piezas será a través de una varilla de metal que seria uno de los medio mientras que el pegamento para ma

¡Es hora de poner sobre todo de disfru renovado!

ablas de Madera de 10 x 5 cm on una altura de 1.30m ablitas de Madera de 10 x 5 cm on un ancho de 56 cm

arilla de metal de 56 cm

ubitos de madera de 12 x12 m con figuras pintadas de X

Tablas de Madera de 5 x 5 cm con una altura de 1.10m

Tablitas de Madera de 5 x 5 cm con un ancho de 40 cm

TABLERO DE AJEDREZ

A pesar de ser otro de los clásicos, venimos con un diseño renovado y diferente, este tablero será perfecto tanto para los jugadores más experimentados como para aquellos que buscan iniciarse en este juego.

Los materiales con los que también se realizaron el siguiente juego, son de madera, desde el tablero completo , hasta las piezas con un tallado donde serán pintadas los espacios del clásico ajedrez, por otra parte las piezas también serán de madera y pintadas de blanco y negro, piecitas circulares las cuales , tendrán una pequeña varita donde servirán para insertarlas en el tablero de madera

Tablero de ajedrez de madera

Para la unión de estas piezas será a través del pegamento para madera , sin embargo también existe la opción de poder colocarle tornillos para su ensamblaje

Piezas del ajedrez

¡Juego de estrategia, listo para poder aprueba tu conocimiento y habilidad !

SILLA PLEGABLE

En un espacio tan pequeño como lo es la capilla ‘’Señor de los Milagros’’ se decide usar un mobiliario de silla plegable con el cual permita una mayor flexibilidad en la zona de la asamblea para recorrerla, ya que este puede colocarse tanto en el centro como en la esquina, es decir es un mobiliario móvil y no fijo

En un tablón de madera de 60*92 cm se recortan 3 piezas las cuales serán unidas por medio de bisagras metálicas y par asiento se decide utilizar un pequeño c para la comodidad del ocupante.

Su mecanismo además permite que s fácil guardado y deje libre mucho espacio para posibles eventos en los se requiera usar en toda su totalida zona de asamblea.

No requiere de muchos conocimiento armado, por lo que es sencillo cualquier persona pueda construirlo.

DIY PUCKET

Muchos quizás desconozcan de este juego, el cual es un versus en el que el primero en tener todas sus fichas dentro del área rival será el vencedor

Este juego se decidió adaptarse al método de reciclaje de tapas de botellas, por lo cual solo con tener 8 chapas del mismo color, estas más que listo para jugar.

1 2 3

Tablón de madera de 45 * 3 cm

Tablón de madera de 50 * 3 cm

Chapas plásticas de botella

Tablón de madera de 39 * 3 cm 1 2 3 4 6 5 4 5 6 Cuerda de 46 cm

Tronco de madera 78 * 42 cm

Para su armado solo se debe tener tablones de madera de 45 cm y de 50 cm, unos clavos para su unión y un tronco de madera de 78 cm de diámetro con una altura de 42 cm que nos servirá como base. Como se menciono, puedes usar tapas de botella plástica del mismo color o incluso chapas metálicas, no se necesita comprar fichas por si alguna se pierde o se las lleven por error. Recicla tus chapas para ganar en este divertido juego.

Considero que en este V Ciclo, en el curso de Diseño Arquitectónico IV pude comprender lo que realmente significa la arquitectura comenzando por un enfoque más centrado en el sujeto que en el objeto. Si bien es cierto, entender y desarrollar el objeto arquitectónico es indispensable, también debemos estudiar al sujeto por igual, ya que es él quien habita y da vida al objeto.

En este taller IV, aprendí un nuevo enfoque, un nuevo concepto fundamental: la arquitectura participante. Considero que este concepto es uno de lo más importantes que he encontrado en mi formación universitaria. Con este nuevo concepto arquitectónico que desarrollamos durante el ciclo pude comprender que la arquitectura no solo es para las personas que tienen dinero, o exclusivamente para las grandes ciudades, sino que también existe arquitectura en cualquier lugar, ya sea en las periferias o en pequeñas ciudades.

A través de este enfoque podemos proyectarnos a ámbitos más lejanos, y poder trabajar con las personas de pequeñas ciudades e integrarlas en el diseño.

En cuanto al desarrollo del proyecto para la Casa Cultural “Piedra Eterna” en Pesqueda. La experiencia de diseño fue sumamente enriquecedora. Poder compartir con la gente, aprender de ellos, conocer sus costumbres, vivencias, hasta llegar a trabajar en conjunto en el desarrollo de proyecto, fue una grata experiencia Estoy contento y agradecido de haber formado parte de “Piedra Eterna”, haber podido aprender sobre la arquitectura participante y haber aportado con el proyecto en la comunidad de Pesqueda.

Esta experiencia de trabajar en Pesqueda y “Piedra Eterna” fue muy importante para que pueda comprender el rol del arquitecto en la sociedad. Personalmente, al ser de Huamachuco, comprendí que puedo realizar algo por mi gente, el cual considero uno de mis propósitos cuando llegue a culminar la carrera, poder realizar arquitectura en mi ciudad.

Finalmente, quiero agradecer al arquitecto Carlos Bardales por la cátedra en este ciclo y por enseñarnos lo que significa realmente la arquitectura participante. que reitero es un tema fundamental que se debe aplicar en el aprendizaje de jóvenes arquitectos como nosotros.

Cuando escuché por primera vez el término "arquitectura participante" iniciando taller, no supe cómo interpretarlo. Era un concepto completamente nuevo para mí, ya que no es muy relevante en la actualidad. Sin embargo, con el transcurso de las semanas y al comenzar a trabajar en un libro sobre este enfoque, todo empezó a cobrar sentido. Nuestro primer desafío fue realizar un estudio de caso, y a mi grupo le asignaron el proyecto Fitecantropus, ubicado en un barrio de Comas, Lima. Inicialmente, este proyecto no me parecía particularmente atractivo, pero al adentrarme en su historia, descubrí cuán simbólico era para la comunidad.

Este proyecto fue fruto de un esfuerzo conjunto entre los vecinos, un grupo de profesionales y estudiantes de arquitectura. Juntos, transformaron lo que era un simple comedor en un verdadero hito local Después de este primer contacto con la arquitectura participante, llegó el momento de desarrollar nuestro propio proyecto. Un joven llamado Héctor Valencia se acercó a nuestra promoción y nos invitó a visitar Cerro Pesqueda, proponiéndonos participar en el diseño de diversos espacios comunitarios, como comedores, un centro cultural, un mirador, una capilla y una losa deportiva odos con gran potencial de renovación.

La comunidad tenía una gran expectativa por estos proyectos Finalmente, a mi grupo le tocó encargarse del centro cultural Piedra Eterna. Visitamos el lugar junto con Héctor, quien nos recibió cálidamente. Durante nuestra visita, realizamos una actividad con los niños del barrio y pudimos apreciar su gran potencial, además de constatar el excelente trabajo que Héctor estaba realizando con los talleres. Identificamos, además, algunas dificultades y amenazas que discutimos con él para proponer soluciones que fortalecieran el proyecto

A lo largo del curso, entendí que la arquitectura participante no solo busca involucrar a profesionales y estudiantes en el proceso de diseño, sino que también los convierte en actores activos y comprometidos con el desarrollo del proyecto. Este enfoque asegura que el diseño sea más funcional y responda de manera efectiva a las dificultades y necesidades del contexto, alejándose del confort de trabajar únicamente con las ideas del proyectista. En lugar de ello, promueve un diseño realista, alineado con las necesidades expresadas por los clientes y la comunidad.

Esta experiencia ha sido muy enriquecedora Salir a exponer nuestros trabajos a la calles, visitar el cerro y vincularme directamente con las personas ha sido algo único. Me siento muy satisfecho con el trabajo de mi grupo y agradecido con el destino por haberme brindado esta oportunidad.

Es curioso cómo una persona que quizás no sabe mucho de arquitectura tiene una visión algo alejada de como lo vemos nosotros. Y no trato de lanzar una crítica negativa con esto; muy por el contrario, hago una reflexión personal sobre la necesidad de buscar ese punto de equilibrio donde se enfatice la cotidianeidad del vivir y habitar, y donde definitivamente se priorice al ser antes que al mismo objeto.

Desde que empiezas la carrera, ves como cada arquitecto y maestro, visualiza el entorno y la arquitectura de una manera distinta, y de hecho; muchas veces podría terminar por confundirnos; pero es ahí cuando uno debe buscar la manera de definirse a uno mismo, es ahí cuando más debes verle el lado positivo, nutrirte de esa gran densidad de conocimiento y aprender de todo lo que se te proporcione.

Particularmente, estos últimos dos ciclos aprendí a tener una nueva perspectiva, empezando por un concepto como lo fue el habitar un espacio; hasta el actual, donde se busca ser participante de una nueva forma de arquitectura, y ser parte de esos sueños con los que cargan las personas con las que se ha podido trabajar.

De hecho, conforme fueron pasando los meses, y este libro fue tornándose cada vez mas pesado, se fue haciendo notorio que un libro deja de ser solo eso, y se vuelve un repertorio de ideas, y metas para quien lo lee, para quien lo escribió, y finalmente y creo más importante, para quien decidió dar a conocer su anhelo para transformar el lugar donde vive y habita.

Este libro es la prueba viva, y quizás tangible en algún momento, para datar el proceso que tuve que pasar acompañado de cinco personas que semana a semana buscaron la manera de poder también dejar huella, dejar lo que al final será esto, un legado, un paquete de proyectos que creemos y sabemos que servirán de motivación para aquel que sueña en grande.

El proceso de ser parte de la arquitectura participante, fue en gran parte enriquecedora, y se agradece a nuestro maestro, por mostrarnos esa perspectiva, por relatar cada historia, por llevarnos de la mano y soltarnos para nutrirnos de un sinfín de experiencias con el entorno. Definitivamente, este curso me ha dejado una marca imborrable al hacer arquitectura, y espero poco a poco pueda consolidarse mas en mí.

Ingresando a la carrera, mis primeros conocimientos fueron acerca de como la forma y el espacio eran aspectos fundamentales para hacer arquitectura, aún así sentía que la definición no podía quedarse solo en eso, tenia que haber algo más importante que la geometría en un proyecto arquitectónico.

Ingresando al V Ciclo, un nuevo término se nos fue enseñado. La ‘‘Arquitectura Participante’’ es cuando nosotros como proyectistas o diseñadores nos involucramos dentro de una propuesta hecha y elaborada por una comunidad para satisfacer alguna necesidad que puede que le haga falta o que buscan mejorarla. Acá no imponemos nuestras ideas, mas bien aportamos con ellas, ya que es la comunidad la que nos da las ideas y nosotros tratamos de darle vida a través de nuestros diseños.

El tema fue bastante interesante para mí, y siento que este fue el motivo por el cuál me hace querer mucho más a mi carrera. El poder aportar con mis conocimientos a una comunidad que tal vez no conozcan mucho sobre como hacer arquitectura, pero tienen la convicción de crear para un beneficio comunitario, es por lo que decidí tomar el proyecto que trabaje.

Durante una de nuestras clases con el Arq. Bardales Orduña, se presento un joven llamado Héctor Valencia. Presento uno de su proyectos que había implementado en el Cerro Pesqueda, la Casa Cultural ‘’Piedra Eterna’’ y a su vez otros espacios bastante interesantes en el sitio. En un principio el buscaba ayuda para el mejoramiento de su espacio, pero al final obtuvo toda una intervención total el cual llevaríamos acabo toda la X Promoción.

Visitamos el sitio, conocimos a los habitantes del sector y un poco de su historia desde como empezaron ha asentarse. Conocimos los lugares que nos había presentado Héctor, y con esto empezamos nuestra intervención en el lugar. Cada grupo escogió un sitio donde intervenir y proponer algo en base al conocimiento adquirido sobre la Arquitectura Participante

Esto lo escribo antes de presentar nuestros proyectos en el lugar de los hechos, estoy seguro que la población estará contenta con lo que vayamos a presentar.

La experiencia que viví será algo que siempre voy a recordar. Si alguien de Pesqueda esta leyendo esto, gracias por permitirnos involucrarnos en esos sueños que tienen con sus espacios como los comedores, la capilla, la losa deportiva, la casa cultural, entre muchos. Espero volver de nuevo.

Taller siempre deja huella, las clases en el salon con el arquitecto Bardales Orduña, las criticas semanales de el proceso de este libro, los proyectos que hemos realizado como propuesta para el lugar que se nos asigno, el viaje a Lima, las visitas al sector Pesqueda, todo eso ha sido mi V ciclo

Sin duda ha sido un ciclo donde en un inicio tenía muchas expectativas y que durante su proceso la he vivido experimentando nuevos términos y lugares. “Arquitectura Participante” es el concepto nuevo y el eje principal de este producto plasmado en todas las paginas de este libro, es un termino que logre conocer un año antes a través de una maratón arquitectónica donde participe como concursante junto a un grupo de compañeros y pudimos obtener el primer puesto, experiencia que nunca olvidare porque me ayudo a que este termino tenga significado y a familiarizarme mas con el. Así que a incios de ciclo espere mucho el desarrollo de este tema, ha sido un largo camino, conocer el sector Pesqueda fue un lugar nuevo para mí pero como nuestro docente dice: “La arquitectura se aprende viajando e interactuando con el lugar”, así como tambien lo fue el viaje a Lima, conocer el proyecto Fitekantrapus, proyecto que sirvio de mucha inspiración para el desarrolo de nuestra propuesta.

El interactuar con el usuario nos hace conocer las diferentes necesidades que tiene el sector estudiado, a veces pensamos que vivimos en un País donde todos tenemos las mismas posibilidades, agradezco mucho que mi carrera me permita viajar y conocer que has muchas partes de la ciudad que necesitan ayuda profesional. El haber conocido personas que necesitan ayuda para el lugar donde viven y sobre todo el poder ayudarles es un acto que no se olvidará, acciones como estas ha marcado este ciclo, después de todo me siento satisfecho con el resultado que he podido lograr al finalizar esta etapa de la universidad.

Espero poder haber sido de gran ayuda para la gente de este sector de Pesqueda, junto a mi grupo pudimos realizar una propuesta colocándonos en sus zapatos, pero aplicando nuestros conocimientos aprendidos durante las cátedras por parte del arquitecto Bardales pudimos unificar esos dos elementos y llegar a un resultado donde nosotros y el usuario se encuentren contentos.

Espero volver a vivir una experiencia como esta, a lo largo de la carrera se aprende nuevas cosas y este año me tocó ser parte de una nueva aventura, sin duda como lo dije en un inicio, TALLER DEJA HUELLA y vaya la que dejo, un agradecimiento a mi equipo de trabajo, al catedra Bardales y la gente quienes fueron parte de este proceso, ha sido un gusto a ver formado parte de este taller IV.

Antonella Murga Carbajal

Es algo interesante, ver, como a través de los diferentes enfoques, a lo largo de todo el trayecto del proceso de diseño, el curso y la experiencia del arquitecto a cargo, nos ha enseñado muchas cosas

Si recordamos como comenzó todo el trabajo colaborativo, el primer recuerdo seria el de una Antonella, un poco nerviosa pero llena de expectativas por una experiencia completamente nueva que deseaba vivir en diferentes formas (y así fue), asi mismo, también estaría presente el pensamiento del largo camino que nos esperaba a lado de mis compañeros, y nuestro crecimiento de manera grupal, pero a la vez también de manera personal y profesional

Por otro lado , al empezar está aventura, visitamos lugares como Casacor 2024, Fitekantropus , y nuestro sector de intervención el cual fue nuestro principal objetivo este ciclo, anteriormente a nuestro sector, siendo que los lugares que visitamos nos brindaron, ese pedacito de experiencia que aplicamos a nuestro proceso de intervención que fue un mundo totalmente nuevo para mí sobre todo por el termino nuevo que fue la Arquitectura

Participante.

Gracias a todos esos momentos, desde la exploración del lugar , hasta en donde compartimos con la población y sus diferentes actividades , y junto a ello un proceso de intervención en el que estuvimos ahí mediante talleres de conceptualización y el diseño de la idea final, me otorgaron una opinión mucho más clara con el objetivo del curso , el cual, era la Arquitectura Participante y todas sus disyuntivas Es por ello que ahora, ya desde una perspectiva más actualizada y mirando hacia un par de meses atrás, diría que el camino no fue tan largo como lo parecía en su momento. Decidiendo ver mi experiencia como un recorrido, al igual que el que se realizó en el viaje de Lima, en la “Casa Cultura de Rosa Mercedes”, cada habitación guardaba recuerdos y experiencias vividas, que fueron compartidas con nosotros, generando emociones y recuerdos inolvidables.

Con gratitud, puedo decir que cierro un capitulo más en mi experiencia como alumna de esta querida carrera que es Arquitectura y Urbanismo, y junto a ello guardaré y llevaré siempre presente experiencias que sé , podré aplicar mucho más adelante en cualquier ámbito que lo necesite

REFERENCIAS BIBLIOGRÁFICAS

ETSAM. (17 de febrero de 2021). Javier Vera Cubas: 'Proyecto Fitekantropus' [Archivo de Vídeo].

Youtube. https://www.youtube.com/watch?v=Kh6KL6o7GWQ

Buscador de Arquitectura. (15 de marzo de 2022). Francis Kéré Premio Pritzker 2022 [Archivo de Vídeo].

Youtube. https://www.youtube.com/watch?v=b1ksSMWD6zY

Sagredo, R. (2017, mayo 3). Local Comunal del Comedor San Martín / Proyecto Fitekantropus. ArchDaily Perú. https://www.archdaily.pe/pe/870468/local-comunal-del-comedor-san-martin-proyecto-fitekantropus?

ad source=search&ad medium=projects_tab

Proyecto fitekantropus 2016. (2016, septiembre 13). Issuu. https://issuu.com/nnjavier/docs/proyecto_fitekantropus._por_una_par

Casa de la memoria, Nuevo Amanecer. Asociación Semillas para el Desarrollo Sostenible. https://www.semillasperu.com/portfolio-item/casa-de-la-memoria-nuevo-amanecer/

Bayona, D. (2018, agosto 6). Centro Comunitario Nuevo Amanecer: del taller universitario a una comunidad en Chosica, Perú. ArchDaily Perú. https://www.archdaily.pe/pe/899432/centro-comunitarionuevo-amanecer-del-taller-universitario-a-una-comunidad-en-chosica-peru

ARQUITECTURA Y DEMOCRACIA: Conversación con Alejandro Haiek. (2016, abril 20). El Planeta Boston. https://elplaneta.com/2016/04/20/lifestyle/arquitectura-y-democracia-conversacion-con-el-arqu/? fbclid=IwAR0qhbOXSkDgF6dXUMowoO lLLhwvukquoKQLbcsMD1YqLoKwvYoE4r7gcQ

Instituto Nacional de Estadística e Informática. (2023). Censo Nacional de Población y Vivienda 2023.

https://www.inei.gob.pe/estadisticas/censos/ Peñaloza, J. (2022). Innovación y adaptación en la construcción en el Cerro Pesqueda. Revista de Arquitectura Local, 8(2), 45-58.

Correo. (2009). Cerro Pesqueda: la historia de un pueblo | POLITICA | CORREO. https://diariocorreo.pe/politica/cerro-pesqueda-la-historia-de-un-pueblo-338399/

Ministra de Cultura inauguró Casa Cultural en el Cerro Pesqueda en Trujillo que beneficiará a 1 200 niños y adolescentes. (2023, septiembre 16). DDC-LaLibertad | Dirección Desconcentrada de Cultura de la Libertad; DDC-LaLibertad. https://ddclalibertad.gob.pe/ministra-de-cultura-inauguro-casa-cultural-en-el-cerro-pesqueda-entrujillo-que-beneficiara-a-1-200-ninos-y-adolescentes/

Del Pilar Nicacio Carlos, L. E. J. (2024). PLAN DE TRABAJO ANUAL P.S PESQUEDA II.

Turn static files into dynamic content formats.

Create a flipbook
Issuu converts static files into: digital portfolios, online yearbooks, online catalogs, digital photo albums and more. Sign up and create your flipbook.