Camila Ramirez Vargas | Architectural Science Portfolio | Toronto Metropolitan University

Page 1


Camila Ramirez Vargas
Architectural Science Portfolio

About Me

My name is Camila Ramirez Vargas and I am a third-year Architectural Science Co-Op student at Toronto Metropolitan University.

I am looking to develop my experience working and learning from professionals and contributing to the development of projects. I am interested in sustainability, collaboration and architecture as a way of adapting to the many challenges of the future.

This portfolio is a selection of my academic and personal work in the architectural field.

Camila Ramirez Vargas

camila.ramirezvargas@torontomu.ca 437-973-7525

www.linkedin.com/in/camila-ramirez-vargas/ My Portfolio

Education

Bachelor of Architectural Science

Fall 2022 - Present

Toronto Metropolitan University, Toronto, ON

Bachelor of Architecture and Urbanism

2020-2022

Pontifical Catholic University of Peru, Lima, Peru

Work Experience

ACM Group, Pezet 2 - Student Intern, Quality Assurance Team

December 2024-January 2025

Lima, Peru

• Assisted with compliance of finishing details and installation of facade compositions using Construction Drawings

• Participated and took meeting notes to prepare delivery reports

Consorcio 71 SAC - Architectural Student Intern

July - August 2024, June - August 2023

Lima, Peru

• Modelled and created presentation drawings for residential and commercial projects tailored to each client

• Collaborated with the team in the production of design iterations

TMU Housing and Residence Life - Residence Service Desk Agent

August 2023 - present

• Contributed to the engagement of residents to TMU by fostering community and providing support in academic inquiries

• Handled access control, mail shipping and receiving and guest sign-ins to residence buildings

Department of Architectural Science - Gallery Assistant

April - May 2023

• Curated the 2022-2023 Year-End Show exhibition in collaboration with faculty and students

Extracurriculars

Architectural Science Student Society - Projects Executive

May 2024 - May 2025

September 2023 - May 2024 (Projects Subcommittee)

• Managed student appointments and examined funding for projects, design-builds, competitions and conferences

• Coordinated and led the production of designs for the DAS Student Lounge in collaboration with the team

TMU Architecture Course Union - Mentor

September 2024 - May 2025

• Guided and supported two first-year students with software development and course-related questions

Skills

Modelling + Drafting

• Revit

• Rhinoceros

• AutoCAD

• SketchUp

Rendering

• Enscape

• Twinmotion

Post-Production + Layout

• Adobe Photoshop

• Adobe Illustrator

• Adobe InDesign

• Physical Model Making

• Laser Cutting

Fabrication Languages

• Bilingual in English and Spanish

• Basic French and Chinese

Distinctions

• Studio projects displayed in DAS Year-End Show 2023, 2024

• Dean’s List 2023, 2024

• International Architectural Biennale in Lima - Bialima 2021

Certifications

• BIM Methodology in Buildings & Autodesk Construction Cloud / BIM 365 2025

• Navisworks Manage 2025

Design-Builds

• TMU Library 50th Anniversary Team Leader - 2024-2025

Coordinated and developed the design and fabrication of four celebratory and discovery pillars

• The Garden Tapestry 2023-2024

Designed and prototyped an entrance pavillion for the Toronto Botanical Gardens

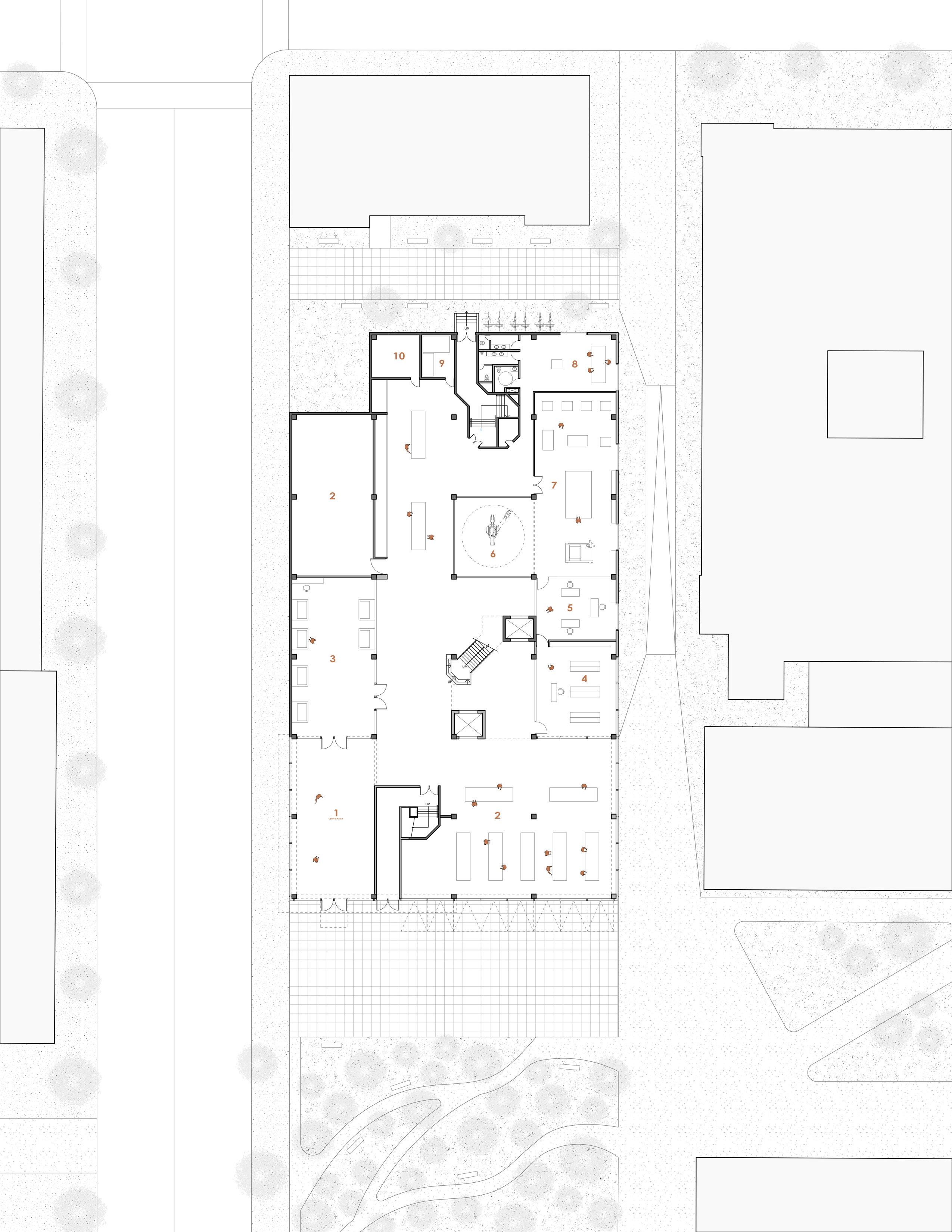
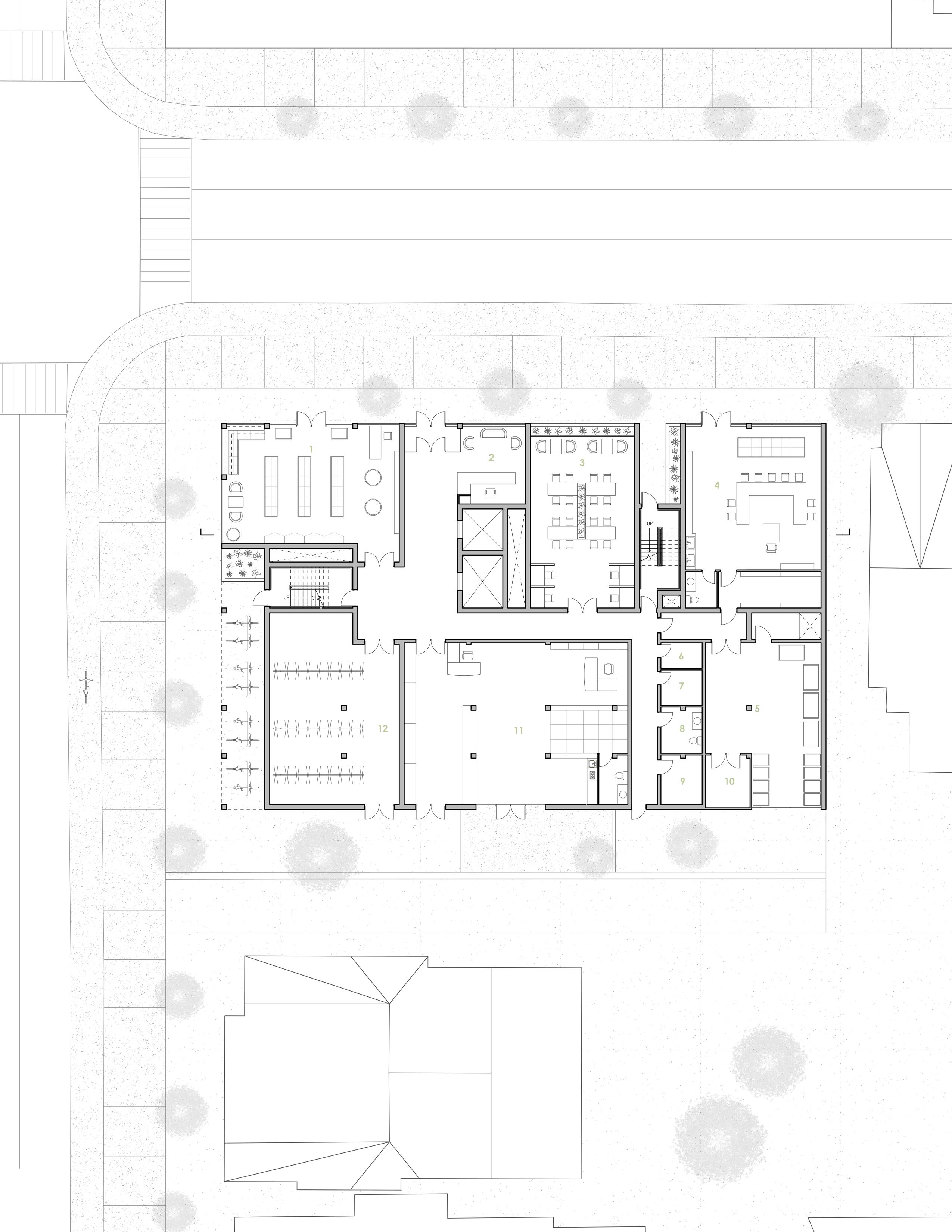
DAS Exposed

325 Church St, Toronto Metropolitan University, ON

The new Department of Architectural Science will EXPOSE the agency of the Architectural Practice. The current building hides activities and the actors’ presence in space, and the transformation aims to expose the engagement to architecture through collaboration and learning by making.

The Collaborative Space is the hearth of the building. In this area, students can prepare mock-ups, exhibitions and develop design-builds to further expose all the activities that DAS students engage in throughout the year.

Revit, Rhinoceros, Enscape, Illustrator, Photoshop

The Creative’s Passage to the North activates a connection to expose student projects.

As aspiring architects, we have the need of communicating what we do. We are creative and share our projects within colleagues and with others, but are not able to be seen. Therefore, the transformation aims to EXPOSE

The Lane

Academic Project: Laneway Housing

The project aims to develop two housing units that blend into Oskenonton Lane and provide a bookstore for the neighbourhood. The main idea to connect both dwellings was to use half levels to generate a fit between them in section and optimize the vertical circulation space.

All the spaces were designed to be oriented to the East and West facades, using skylights and dormer openings to maximize the light entrance.

272 Seaton St. Oskenonton Lane, Toronto, ON
Rhinoceros, Enscape, Illustrator, Photoshop
Base Volume (5.1m width)
Zoning By Laws and Skylights
Final Volume
Bedroom

Reflect

Bowen Island, Vancouver, BC

Competition by Buildner Summer 2024

Project in Collaboration with Rachel Kim

Revit, Rhinoceros, AutoCAD, Enscape, Illustrator, Photoshop

The Gathering Space opens up to the Reflection Garden with a view of Killarney Lake.

Farm House

200 Gerrard St. East, Toronto, ON

Academic Project: Mid-Rise Housing Winter 2024

The community library was designed to engage with the landscaped views of Court Square Park and St. James Park, creating a dialogue with the monumental buildings from the Historic District of Toronto. The project envisions a reading space that connects green spaces and frames views of the Cathedral of St. James.

The project seeks to integrate local art pieces into the Special Collection and within reading spaces, transforming the library into a dynamic third space. The Artistry aims to create a dynamic environment that celebrates art, history, and the city’s vibrant life.

Rhinoceros, AutoCAD, Illustrator, Photoshop

Interior Perspective - Second Floor reading space

The concept for our multicolored perforated panels is derived from the architectural principles of points and planes, allowing for a dynamic interplay of elements that can be added, subtracted, and reoriented in a multitude of configurations.

The versatility of the composition enables the panels to enclose spaces, create intimate areas, or be positioned along circulation paths, guiding visitors through the garden in an engaging and visually stimulating manner to make the TBG public space more enjoyable.

Rhinoceros, AutoCAD, Enscape, Illustrator, Photoshop

Project in Collaboration with Rachel Kim, Parinaz Navab
Avery Jordan, Ka Lee Jian, Marko Jovanovic, Nava Mahouri, Giuliana Fonseca

Exhibition of the proposal at the TBG General Meeting

Proposal Render by Richmond Dakay Fabrication of 1:1 Prototype and Poster by the whole team Model by

Plan of proposed locations

Axonometric Composition and Detail

2m x 0.12 m wood supports Hinges
1m x 1.80 m Tricoya Panels
2m x 0.12 m wood supports Hinges
1m x 1.80 m Tricoya Panels
Marko Jovanovic

Thank You

camila.ramirezvargas@torontomu.ca www.linkedin.com/in/camila-ramirez-vargas/

Turn static files into dynamic content formats.

Create a flipbook
Issuu converts static files into: digital portfolios, online yearbooks, online catalogs, digital photo albums and more. Sign up and create your flipbook.